Технология ремонта втулки цилиндра дизеля тепловоза 2М62

  • Вид работы:
    Курсовая работа (т)
  • Предмет:
    Другое
  • Язык:
    Русский
    ,
    Формат файла:
    MS Word
    63,03 Кб
  • Опубликовано:
    2016-01-23
Вы можете узнать стоимость помощи в написании студенческой работы.
Помощь в написании работы, которую точно примут!

Технология ремонта втулки цилиндра дизеля тепловоза 2М62

Введение

Повышение качества, сокращение сроков и снижение стоимости ремонта - одна из основных задач работников локомотивных депо.

Надежность тепловоза определяется совершенством его конструкции и технологии изготовления, а также уровнем технического обслуживания и ремонта. В процессе эксплуатации на тепловоз воздействуют различные факторы, которые являются не всегда благоприятными.

Эти факторы дают о себе знать по мере нарастания пробега. Оборудование тепловоза в процессе работы постепенно изнашиваются, в результате чего изменяются геометрические размеры и форма деталей, характер посадки сопряженных деталей и качество их поверхностей. Прочность многих деталей под влиянием высоких температур и значительных удельных нагрузок уменьшается, они теряют работоспособность и начинают разрушаться.

Все это приводит к тому, что тяговые показатели тепловоза уменьшаются, он становится менее надежным, чаще случаются поломки, и расходы на его содержание возрастают.

Для сохранения долговечности тепловоза необходимы продуманная система технического обслуживания и ремонта. Цель данного проекта - разработать технологический процесс и конструкцию специального оборудования для ремонта цилиндровой втулки дизеля тепловоза серии 2М62.

1. Конструкция и условия работы цилиндровой втулки

Втулка (гильза) цилиндра подвешена к его крышке. На верхнем опорном бурте втулки и на нижней части крышки имеются кольцевые площадки для прокладки, уплотняющей стык между крышкой цилиндра и втулкой (газовый стык). На опорной поверхности площадок прорезаны кольцевые канавки, способствующие лучшему уплотнению. Втулка скреплена с крышкой цилиндра шестью шпильками, ввернутыми в бурт втулки. Относительно крышки цилиндра втулка фиксируется поверхностью внутреннего диаметра, в которую заходит цилиндрический выступ крышки. В блоке втулка фиксируется верхним, средним и нижним опорными поясами. Наружная поверхность втулки между верхним и средним поясами омывается водой. В средней утолщенной, части втулки равномерно расположено восемнадцать окон, через которые воздух поступает в цилиндр. Наружная поверхность втулки между средним и нижним поясами омывается продувочным воздухом. Между опорными поясами блока и втулки цилиндра установлены кольца из теплостойкой резины. В верхнем поясе расположено кольцо большего размера, изготовленное из более теплостойкой резиновой смеси. В средний и нижний пояса установлены кольца меньшего размера. Два выреза в нижней части втулки служат для прохода стержня шатуна, а два отверстия для крепления приспособления, удерживающего поршень при выемке комплекта цилиндра [1].

Гильза цилиндра предназначена для направления движения поршня. Она представляет собой цилиндр, внутренняя полость которого (зеркало) хонингованием доведена до высокой степени чистоты. Внутренняя часть гильзы между головкой поршня и крышкой цилиндра образуют камеру сгорания. Гильза подвержена значительным тепловым и механическим нагрузкам (температура в зоне горения топлива может достигать 1500-2200 ºС, максимальное давление сгорания около 10-11 МПа.).

Выше продувочных окон гильзы нагревается наиболее интенсивно и охлаждается водой. Работа гильзы в таких условиях обеспечивается за счёт непрерывной циркуляции воды в водяной полости. Водяная полость и воздушный ресивер уплотнены круглыми кольцами из теплостойкой резины.

Впускные окна открываются и закрываются поршнем. Боковые стенки впускных окон направлены под острым углом к цилиндрической поверхности гильзы. Такая форма окон придаёт воздуху вращательное движение, направленное вверх. Это способствует лучшему перемешиванию его с поступающим топливом, а следовательно, и лучшему сгоранию. На дизеле 14Д40 установлено 12 гильз цилиндров, двухрядным V - образным расположением. Продувка цилиндра прямоточная клапанно - щелевая.

Цилиндровая втулка является нагруженной деталью дизеля. На нее действует механические и термические напряжения от давления газов, перепадов температур и монтажных усилий, возникают температурные напряжения при значительном перепаде температур.

К механическим нагрузкам относят трение.

Характерные повреждения (неисправности) цилиндровой втулки условно можно разделить на две группы:

− повреждения механического (износного) характера;

− химико-теплового характера.

Износ деталей проявляется обычно в изменении качества их поверхности, геометрических размеров и формы.

К повреждениям химико-теплового характера относят оплавления, прогары, раковины.

2. Неисправности втулки цилиндра, их причины и способы предупреждения

В эксплуатации работа втулки цилиндра происходит в условиях больших динамических и знакопеременных механических нагрузок. Перечень типичных неисправностей, способы предупреждения отказов деталей и сборочных единиц приведены в таблице 1.

Таблица 1 - Типичные неисправности, способы предупреждения отказов втулки цилиндра дизеля тепловоза 2М62

Возможные неисправности

Причина Возникновения

Способы предупреждения

Трещины

Деформация втулки при установке Химико-тепловое воздействие Механические нагрузки

Соблюдение требований монтажа Соблюдение температурного режима

Накипь или коррозия в полости охлаждения гильзы 

Нарушение технологии термообработки при изготовлении Химико-тепловое Воздействие

Улучшение качества термообработки Качественная подготовка воды

Выкрашивание мест под медное уплотнительное кольцо в гильзе

Механическое изнашивание Тепловые нагрузки Контактно-усталостные нагрузки

Улучшение качества термообработки Соблюдение требований монтажа

Задиры

Тепловые воздействия  Механические нагрузки Абразивный износ

Качественная смазка Соблюдение требований монтажа

Дефекты на гильзе (выкрашивание, риски)

Механическое изнашивание Контактно-усталостные нагрузки

Соблюдение требований монтажа, эксплуатации

Прогар прокладки между втулкой и крышкой цилиндра

Химико-тепловые воздействия Деформация прокладки при установке

Соблюдение требований монтажа Соблюдение температурного режима

Пропуск воды по уплотнительным соединениям

Механическое и контактно-усталостные нагрузки Тепловые воздействия

Соблюдение требований монтажа Соблюдение температурного режима


3. Объем работ при ремонте втулки цилиндра

.1 Общие требования к объему работ согласно правилам ремонта

Объем работ по ремонту цилиндровой втулки регламентируется Правилами ремонта тепловозов серии 2М62 [2, 3].

При выполнении технического обслуживания ТО-3 через люки картера проверяют (обстукиванием) состояние шплинтовки шпилек поршней, состояние рабочих поверхностей втулок цилиндров и поршней с проворачиванием коленчатого вала, а также торцов пальцев прицепных шатунов на отсутствие трещин. Не допускается на сетках поддизельной рамы наличие посторонних частиц.

После каждого текущего ремонта ТР-3 и капитального ремонта на первом ТО-3 производят дополнительную затяжку шпилек крепления втулок цилиндров к крышкам цилиндров. Шпильки затягивают на «холодном» дизеле в соответствии с Руководством по эксплуатации дизель-генератора 4-14ДГУ2.33РЭ. Дозатяжку наружных соединений производят моментом 50+ 10 Н∙м для болтов М12 и 120+ 10 Н∙м для болтов М16.

При выполнении текущего ремонта ТР-1 осматривают при вскрытых люках ресивера и картера через продувочные окна и со стороны картера втулки цилиндров, при наличии видимых дефектов производят ремонт.

При выполнении текущих ремонтов ТР-3 для демонтажа и разборки втулки (гильзы) цилиндра делают определенные работы.

Для выемки втулки цилиндра производится следующее:

а) сливают воду из дизеля и снимают крышки цилиндра;

б) снимают стопорное кольцо, после чего вынимают поршень из цилиндра;

в) устанавливают на шпильки крепления втулки цилиндра к крышке специальное приспособление и закрепляют его;

г) зачаливают за приспособления и вынимают втулку из блока.

Втулку цилиндра можно вынимать из блока вместе с юбкой поршня. Для этого производится следующее:

а) снимают крышку цилиндра, устанавливают и закрепляют на шпильки крепления втулки цилиндра к крышке приспособление.

б) снимают стопорное кольцо поршня, после чего, вращая коленчатый вал, устанавливают поршень в ВМТ. Устанавливают и закрепляют на втулке цилиндра приспособление, фиксирующее положение юбки с головкой поршня во втулке. Чтобы болты крепления приспособления не задевали за вставку, их устанавливают головками с внутренней стороны втулки цилиндра.

в) придерживают шатун со вставкой поршня снизу через люки блока, при помощи подъемного устройства и приспособления вынимают втулку цилиндра вместе с головкой и юбкой поршня из блока. При этом шатун со вставкой отжимают в сторону развала, обеспечивая этим свободный проход нижней части втулки относительно вставки поршня.

При выемке втулки из блока оставшуюся в блоке воду сливают, не допуская попадания воды в масляную ванну.

Для контроля состояния и ремонта вынимают, очищают и осматривают все втулки цилиндров. Очищают полости охлаждения блока от осадка. Накипь на поверхности блока разрешается не снимать. Втулки цилиндров от накипи очищают.

Осматривают рабочие поверхности втулок. Если характер натиров и рисок на рабочих поверхностях указывает на возможность задира поршня и втулки цилиндра, то натиры и риски зачищают мелким наждачным камнем и наждачным полотном. Зачистку производят поперек продольной оси втулки.

Зачищенные места на втулке после обезжиривания ацетоном или бензином протравливают 25 % раствором азотной кислоты следующим образом: кисточкой или ватой смазывают зачищенные поверхности раствором кислоты и выдерживают в течение 5 мин (это проделывается дважды), травленные поверхности промывают водой, затем нейтрализуют 10-15 % раствором каустической соды и смазывают маслом.

Трещины в районе резьбовых отверстий под шпильки в верхней части втулки и в других местах не допускаются. При наличии трещин втулки заменяют. Не допускаются забоины, ржавчина и иные повреждения поверхностей в канавках (дно канавки) под резиновые уплотнительные кольца на наружной поверхности втулки. При осмотрах необходимо обращать внимание на состояние поверхности в районе паза для прохода шатуна внизу втулки. При обнаружении забоин от шатуна принимают меры по устранению касания шатуна о паз. Отдельные грязевые риски шириной более 2 мм и скопления рисок глубиной более 0,1 мм в месте остановки в ВМТ компрессионных колец не допускаются.

Втулки цилиндров с задранной рабочей поверхностью заменяют. На втулках цилиндра с незначительным задиром ниже 170 мм от верха, с хорошо приработавшейся поверхностью и шероховатостью не ниже 0,63 мкм, площадью не более 50 см2, с незначительным повреждением перемычек продувочных окон (с той же шероховатостью), задранную поверхность протравливают азотной кислотой, как указано выше.

Для осмотра и обмера гильзы устанавливают в порядке их номеров на кантователь. Обмер втулок осуществляют по нескольким поясам по двум взаимно перпендикулярным направлениям специальным индикаторным нутрометром с целью определения овальности и конусности рабочей поверхности. Тщательно осмотреть гильзу. При наличии глубоких рисок, подплавлений металла на рабочей поверхности, трещины независимо от размера и места расположения их гильзу заменяют новой. Резиновые уплотнительные кольца заменяют независимо от их состояния.

При повреждении резьбы для вкручивания шпилек перенарезают её на следующий ремонтный размер.

Для восстановления изношенных гильз применяют метод местного хромирования с последующим хонингованием, для этого обезжиривают поверхности гильз, подлежащие хромированию, устанавливают гильзу цилиндра в ванну для хромирования, производят декапирование и хромирование поверхности; после чего производят осмотр хромового покрытия, качество хромового покрытия оценивается по цвету осадка, его равномерности и надежности оцепления с основным металлом гильзы; производят термообработку путём погружения её в масляную ванну с температурой масла 150-180°С и выдерживают в течении двух часов. После хромирования производят хонингование при помощи специального приспособления. Для выявления скрытых усталостных трещин гильзы цилиндров перед постановкой на дизель подвергают дефектоскопии; наиболее часто появление трещин наблюдается в местах концентрации напряжений и продувочных окнах, в углах перехода к буртам, фланцам и ребрам. Дефектацию производят при помощи магнитного дефектоскопа смесью керосина и магнитного порошка.

а) смазывают мыльным раствором резиновые кольца, поверхности расточек блока под втулку в верхнем и среднем поясах перед опусканием втулки в блок;

б) опускают втулку в блок, придерживая при этом шатун со вставкой внизу, через люки блока. В процессе опускания наблюдают за состоянием резиновых уплотнительных колец на втулке, не допуская их перекручивания и механических повреждений;

в) смазывают зеркало втулки и рабочую поверхность поршня маслом;

г) убеждаются в правильности установки регулирующих прокладок на опорном поясе вставки поршня, опускают поршень во втулку до упора;

д) надавливают на головку поршня, опускают его вниз до посадки на опорный пояс вставки, удерживая при этом шатун со вставкой по оси цилиндра. Стопорное кольцо вводится в канавку поршня, обратив внимание на правильное положение кольца. Замеряется зазор между стопорным кольцом и нижней плоскостью вставки.

В случае установки новой втулки очищают ее от консервирующей смазки. После окончания сборки цилиндра, дизель опрессовывают водой на отсутствие течи в уплотнениях верхнего и среднего опорных поясов втулки и в соединении выпускного коллектора с крышкой цилиндра.

При установке на втулку резиновых уплотнительных колец надо иметь в виду, что в верхний опорный пояс устанавливаются два резиновых кольца. Кольцо в первой канавке маркируется белой краской, во второй канавке без маркировки. В среднем и нижнем оперных поясах кольца маркированы желтой краской.

3.2 Ведомость объёма работ по ремонту втулки цилиндра

Ведомость объёма работ по ремонту втулки цилиндра заключается в составлении перечня неисправностей, который приведен в таблице 2 [4].

Таблица 2 - Дефектная ведомость ремонта втулки цилиндра дизеля тепловоза

Возможные неисправности

Способ проверки, Инструмент

Способ устранения

Способы восстановления

 

Натир внутренней  поверхности

Визуальный осмотр, лупа

Восстановление

Механическая обработка  (хонингование)

 

Задир внутренней  поверхности

Визуальный осмотр, лупа, микрометрический инструмент

Замена

-

 

Трещины

Визуальный осмотр, магнитный  дефектоскоп

Замена

-

 

Увеличенный зазор между гильзой и отверстием в блоке

Визуальный осмотр,  замерить зазоры

Восстановление

Нанесение эластомерной пленки  Ф-40

 

Нагар на окнах гильзы

Визуальный осмотр

Восстановление

Механическая обработка (напильник, щетка) и обмывка в выварочной ванне или моечной машине

 

Возможные неисправности

Способ проверки, Инструмент

Способ устранения

Способы восстановления

 Течь воды через  уплотнительные соединения

Визуальный осмотр

Восстановление

Замена резиновых колец при необходимости  пришабрить посадочное место бурта гильзы ремонт

Срыв резьбы в гильзе для шпилек крепления цилиндра к крышке цилиндра

Визуальный осмотр

Восстановление

Перерезка под ремонтный размер

Износ рабочей поверхности

Нутромер Внутренний диаметр: 230,00-230,30 мм; Овальность: 0,00-0,01 мм.

Восстановление

Хромирование,  осталивание



4. Разработка технологии ремонта втулки цилиндра

.1 Составление структурной схемы технологического процесса ремонта

Структурная схема технологического процесса ремонта представлена на рисунке 1.




















Рисунок 1 - Структурная схема технологического процесса ремонта

цилиндровой втулки

4.2 Разработка технологических документов

Маршрутная карта является обязательным документом среди различных типов производства. Она включает в себя наименование и содержание всех операций в технологической последовательности разработки, ремонта и сборки деталей, узлов и механизмов. Маршрутная карта заполняется в соответствии с требованиями ГОСТ 3.1105-84, на форматах 2 и 1б (ГОСТ 3.1118-82).

Технологическая инструкция предназначена для описания технологических процессов, методов и приемов, повторяющихся при ремонте деталей сборочной единицы. Технологическая инструкция заполняется на форматах 5 и 5а (ГОСТ 31105-84).

Карты эскизов является графическим документом, содержащим эскизы, схемы и таблицы, и предназначена для пояснения выполнения технологического процесса ремонта деталей сборочной единицы, включая контроль и перемещение. Карта эскизов заполняется в соответствии с требованиями

ГОСТ 3.1105-84, на форматах 7 и 7а (ГОСТ 3.1105-84).

Маршрутные карты, технологические инструкции и карты эскизов представлены в приложении А.

.3 Организация рабочего места и техника безопасности при ремонте

В связи с разнообразием ремонтных работ в депо производственная деятельность требует большой внимательности в работе и хорошего знания правил техники безопасности и строгого их соблюдения [5].

В настоящее время постановлением Министерства транспорта и коммуникаций Республики Беларусь от 1 июля 2008 года № 79 утверждены правила по охране труда в локомотивном хозяйстве на Белорусской железной дороге.

К требованиям безопасности перед началом работы относятся следующие:

− приводят в порядок рабочую одежду, застегивают рукава, заправляют одежду так, чтобы не было развевающихся концов, убирают волосы под плотно облегающих головной убор. Работать в лёгкой обуви запрещается.

− подготавливают и проверяют исправность индивидуальных средств защиты: защитные очки при работе с пневмоинструментом, каски при выполнении работ в смотровых канавах.

− проверяют наличие и исправность инструмента, необходимого для выполнения данной работы. При работе применяют только исправный инструмент и приспособления.

− осматривают место работы, приводят его в порядок, убирают все мешающие посторонние предметы. Инструмент и детали располагают так, чтобы избежать лишних движений и обеспечить безопасность работы.

К требованиям безопасности при выполнении работ относятся:

− запрещается производить ремонтные работы при запущенном дизеле. При работе с горячим дизелем необходимо быть весьма осторожным, так как отдельные части дизеля достигают высокой температуры;

− зачаливают груз только испытанными чалочными приспособлениями, имеющими бирки с указанием сроков испытаний и их грузоподъёмности. Запрещается при подъёме грузов превышать указанную грузоподъёмность подъёмного механизма и строп;

− ремонтными работами, производимыми на тепловозе руководит мастер или бригадир, приняв все меры к исключению возможности запуска тепловоза (проворот коленчатого вала) при производстве любых ремонтных работ на тепловозе.

− при подъёме и постановке втулки в блок дизеля запрещается находиться под поднятой втулкой. Запрещается держать на крыше тепловоза лишний инструмент и детали.

− для очистки втулки от нагара применяют установку для мойки. Открывать двери на установке нужно только при полном выходе воздуха из системы установки. При выходе в негодность защитных рукавиц нужно их заменить. Для ремонта втулок нужно использовать специальные стеллажи. Места по ремонту должны быть оборудованы специальным приспособлением для подвески, а также деревянными настилами. Моечная машина должна быть оборудована вытяжной вентиляцией и должна находиться в исправном состоянии.

К требованиям безопасности по окончанию работы относятся:

− по окончании ремонта слесари обязаны отключить оборудование, закрыть сжатый воздух, смотать провода, убрать горючие вещества, масла, осмотреть состояние всех узлов, убрать ненужный инструмент, оставшиеся детали;

− соблюдать правила личной гигиены;

Слесари, имеющие контакт с нефтепродуктами, маслами должны применять защитную пасту, которая должна наноситься на предварительно хорошо вымытые сухие руки дважды в течение рабочей смены (перед работой и после перерыва).

Ремонт втулок цилиндров выполняется в дизель-агрегатном отделении, оснащенным специализированным оборудованием для ремонта.

На участке производят разборку и сборку ремонт и обмывку в моечной машине.

При расстановке оборудования, рабочих мест и коммуникаций соблюдают следующие основные требования:

- оборудование располагают в порядке последовательности выполнения технологических операций; обмывки, разборки, дефекации и сортировки, ремонтно-восстановительных операций, сборки, приемки из ремонта, окраски и сушки и т.д.;

- проходы, проезды и расположение оборудования должны позволять осуществлять монтаж, демонтаж и ремонт оборудования, обеспечивать удобство подачи ремонтируемого объекта, технологической оснастки и инструмента, уборки отходов и безопасность работы;

- подъемно-транспортные средства должны быть увязаны с технологическим процессом и расположением оборудования так, чтобы были достигнуты кратчайшие пути перемещения грузов без перекрещивания грузопотоков и не создавались помехи на проходах, проездах и путях движения людей;

- расстановка оборудования должна предусматривать возможность изменения планировки при использовании более прогрессивных технологических процессов.

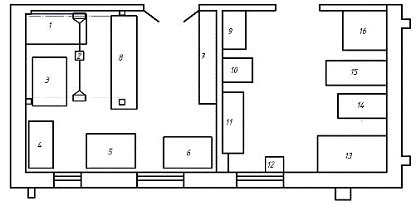
Схема и расположение оборудования в дизель-агрегатном отделении представлена на рисунке 2.

Рисунок 2 - Схема и расположение оборудования в дизель-агрегатном отделении

- стеллаж; 2 - кран подвесной; 3, 4 - пресс гидравлический; 5 - станок для притирки клапанов; 6 - стенд для опрессовки крышек цилиндра; 7 - шкаф; 8 - кантователь шатунно-поршневой группы; 9 - станок настольно-сверлильный; 10 - стенд для испытания насосов; 11 - балансировочный станок; 12 - дефектоскоп ультразвуковой; 13 - станок плоско-шлифовальный; 14 - обдувочная камера; 15 - стеллаж; 16 - машина моечная;

Требования по технике безопасности и вредные факторы на рабочем месте приведены в таблице 3.

Таблица 3 − Вредные и опасные факторы на рабочем месте и требования по безопасности труда

Наименование Операции

Агрессивная среда

Повышенные значения электрического тока

Повышенная запыленность воздуха

Повышенная загазованность воздуха

Повышенный уровень шума

Неблагоприятная температура

Движение машин и механизмов

Световое излучение

Мероприятия по обеспечению безопасных условий труда

Очистка

+



+

+

+



Применение вытяжной вентиляции, ограждений и защитных устройств, СИЗ

Слесарная




+

+




Применение ограждений и защитных устройств, СИЗ

Технический контроль







+


СИЗ, ТБ по операции

Перемещение







+


Контроль состояния чалочных приспособлений, ТБ по операции

Обработка резанием


+


+

+


+


Наличие заземления и защитных устройств, СИЗ

Хромирование

+

+




+



Применение вытяжной вентиляции, ограждений и защитных устройств, СИЗ


5. Конструкция, работа и расчет специального технологического оборудования

В качестве специального оборудования, применяемого при ремонте, рассмотрим кантователь. Кантователь предназначен для кантовки цилиндровых втулок при выполнении обмерки рабочих поверхностей. Кантователь состоит из рамы 4, люльки 6 и привода люльки (редуктора 2 и электродвигателя 1). Все детали кантователя закреплены болтами на станине 3. Чертёж кантователя приведён в графической части курсового проекта.

Люлька имеет две цапфы, вращающиеся в подшипниках скольжения (на чертеже показано пунктирной линией). Одна из цапф соединена муфтой с выходным валом редуктора. Люлька имеет раму, сваренную из швеллеров. В верхней части рамы приварена стальная пластина 5 с вырезами для пропуска гильз. Возле каждого выреза имеется три направляющих, две шпильки для крепления цилиндропоршневой группы к люльке и два направляющих штыря.

Исходными данными для расчета параметров механической передачи кантователя служит принятие ориентировочной мощности электрического двигателя Р = 1 кВт и частоты вращения n = 920 об / мин [7]. При расчёте, в зависимости от нагрузки на кантователь, получится действительная мощность, необходимая для кантователя.

В данном проекте предлагается модернизация кантователя, которая подразумевает кантовку шести цилиндровых гильз вместо четырех

Мощность, необходимую для поворота люльки с шестью гильзами определим по формуле

 (1)

где Р' - часть мощности электрического двигателя, затрачиваемая на механический привод люльки с четырьмя гильзами, кВт;

Р" - часть мощности электрического двигателя, затрачиваемая на поднятие люльки с четырьмя гильзами, кВт;

Ртр - мощность, затраченная на сухое трение в узлах, кВт; Ртр = 0,1 кВт [6].

Мощность P', кВт необходимая для механического привода люльки с четырьмя гильзами, будет затрачиваться на приведение во вращение червячного и цилиндрического редукторов. Определим по формуле


где η1 − КПД червячной передачи; принимаем η1 = 0,75 [6];

η2ч − КПД учитывающий потери в паре подшипников червячного редуктора; принимаем η2ч = 0, 99 [6];

η2к − КПД учитывающий потери в паре подшипников цилиндрического редуктора; принимаем η2к = 0, 99 [6];

η3 − КПД цилиндрической передачи; принимаем η3 = 0,98 [6].


Таким образом, мощность, затрачиваемая на механический привод люльки с четырьмя гильзами составит Р' = 0,72 кВт.

Определяем мощность, кВт затрачиваемую на поднятие люльки с четырьмя гильзами по формуле

 

где F − сила необходимая для поднятия люльки с четырьмя гильзами, Н;− линейная скорость на кулачковом валу, м/с.

Силу F, Н, рассчитаем по формуле


где m1 - масса одной гильзы, кг; Принимаем m1 = 58,6 кг, [8];- масса люльки, кг; m2 = 100 кг, [8];- ускорение свободного падения, g = 9,8 м / с2.


Линейная скорость на кулачковом валу, м / с

= ωr, (5)

где r − радиус вала, м; принимаем r = 0,0275 м;

ω − угловая скорость на приводном валу, рад / с.

Угловую скорость на приводном валу ω, рад / с рассчитаем по формуле

ω = πn1 / 30, (6)

где n1 - частота вращения на приводном валу, об / мин.

Определим частоту вращения на приводном валу n1, об / мин.

 (7)

где U1 − передаточное отношение червячной передачи редуктора.

Зная количество зубьев червячного колеса, и число заходов червяка определяем U1 [6]

, (8)

где z1 - число заходов червяка [6];- число зубьев шестерни [6].


Таким образом, частота вращения на приводном валу n1, об / мин.


Определяем угловую скорость на приводном валу ω, рад / с по формуле (6)

ω = 3,14∙57,5/30 = 6 рад / с.

Линейную скорость на приводном валу, м / с определяем по формуле (5)


Следовательно, мощность, затрачиваемая электрическим двигателем на поднятие четырех втулок, кВт определяем по формуле (3)

Определим мощность, необходимую для проворота люльки с шестью втулками по формуле (1)


В результате получаем, что для проворота люльки с шестью гильзами одновременно необходим электрический двигатель мощностью 2,05 кВт. Учитывая необходимость предусмотрения запаса мощности не менее 10% от расчётной, в качестве привода выбираем стандартный асинхронный электродвигатель АИР100L6 мощностью N = 2,2 кВт, с частотой вращения n = 940 об / мин [7].

Заключение

В курсовом проекте описана технология ремонта втулки цилиндра дизеля тепловоза 2М62. При разработке проекта использована ремонтная документация Белорусской железной дороги, учебные пособия, а также применен практический опыт ремонта втулки цилиндра в локомотивных депо дороги.

При проектировании разработана технологическая документация по ремонту, описана организация рабочего места предложены мероприятия по охране труда, произведен расчёт параметров механической передачи кантователя втулок цилиндра. В графической части представлен чертёж кантователя, применяемого при ремонте.

Список использованных источников

Филонов, С. П, В. И. Бидненко, А. Е. Зиборов и др. Тепловоз М62: пособие для машинистов, помощников и персонала депо / С. П. Филонов, В. И. Бидненко, А. Е. Зиборов и др. М.: Транспорт, 1977. - 280 с.

Временные правила ремонта тепловозов М62, 2М62 ЦТтеп - 9/ЦТВРт - 15, 1985. - 278 с. ремонт втулка дизель тепловоз

Временные правила капитального ремонта КР1 и КР2 тепловозов М62, 2М62 ЦТтеп-89/ЦТВРт -15

Брильков, Г. Е. Технология ремонта тепловозов: пособие по выполнению курсового проекта / Г. Е. Брильков. - Гомель: БелГУТ, 2004. - 29 с.

Крутяков, В. С. Охрана труда на железнодорожном транспорте / В. С. Крутяков - М.: Транспорт, 1988. - 264 с.

Врублевская, В. И. Детали машин и основы конструирования. Учебное пособие по курсовому проектированию для студентов механических специальностей вузов железнодорожного транспорта. Ч. 3/ Врублевская, В. И. БелГУТ-Гомель: 1991 - 84 с.

Двигатели серии АИР основного исполнения и модификации [Электронный ресурс] : каталог содержит сведения об основных параметрах электрических двигателей. - Электронный каталог. - Режим доступа: http://www.mez.by/dvigatel/air_table2.shtml. - Загл. с экрана.

Дизель 14Д40. Техническое описание и инструкции по эксплуатации. - М.: ЭНЕРГОМАШЭКСПОРТ, 1968 - 150 с.

Похожие работы на - Технология ремонта втулки цилиндра дизеля тепловоза 2М62

 

Не нашли материал для своей работы?
Поможем написать уникальную работу
Без плагиата!
Без нейросетей!