Расчет процесса конвективной сушки карбоната калия в барабанной вращающейся сушилке
Оглавление
1. Оглавление
. Введение
. Классификация сушилок
.1 По способу подвода тепла
.2 По уровню давления сушильного
агента в рабочем пространстве сушильной камеры
.3 По характеру работы
.4 По применяемому сушильному агенту
.5 По направлению движения сушильного
агента относительно высушиваемых продуктов
.6 По принципу циркуляции сушильного
агента
.7 По способу нагрева сушильного
агента
.8 По подогреву сушильного агента
.9 По кратности использования
сушильного агента в сушильной установке
.10 По степени замены влажного
воздуха сухим
.11 По конструктивным признакам
. Выбор основного оборудования
. Выбор конструкции аппарата
.1 Барабанная сушилка
.2 Принцип работы барабанных сушилок
.3 Технико-экономическое обоснование
.4 Принципиальная схема барабанной
сушилки
. Физико-химическая характеристика
продуктов
. Выбор конструкционного материала
. Технологический расчет аппарата
.1 Материальный баланс процесса
сушки
.2 Графоаналитический расчет
процесса сушки в теоретической сушилке
.3 Тепловой баланс сушилки
.4 Определение основных размеров
сушильного барабана
. Расчет аппаратов на прочность
.1 Расчет на прочность
.2 Расчет на прогиб
. Расчет дополнительного
оборудования
.1 Расчет бункера
.2 Расчет и выбор вентилятора
.3 Расчет и выбор циклона
.4 Расчет ленточного транспортера
.5 Расчет калорифера
.6 Расчет трубопровода
.7 Выбор мокрого пылеуловителя
.8 Расчет насоса
.9 Расчет отстойника
. Выбор точек контроля параметров
. Вывод
. Литература
. Введение
Сушка представляет собой процесс удаления влаги
из твердого или пастообразного материала путем испарения содержащейся в нем
жидкости за счет подведенного к материалу тепла. Это термический процесс,
требующий значительных затрат тепла.
Сушка широко применяется в химической,
химико-фармацевтической, пищевой и других отраслях промышленности. Относительно
широкое распространение сушка получила в области обработки осадка городских
сточных вод (барабанные сушилки, сушка во встречных струях). Процессы
термического удаления той части влаги, которую невозможно удалить механическим
путем, могут также найти применение при обработке ПО, которые необходимо
подготовить к транспортированию и дальнейшей переработке (например,
гальванические шламы), а также при обработке некоторых отходов химической,
пищевой и других отраслей промышленности.
Метод сушки выбирают на основе технологических
требований к высушиваемому продукту и с учетом технико-экономических
показателей.
Процесс сушки осуществляется за счет тепловой
энергии, вырабатываемой в генераторе тепла. Генератором тепла могут служить
паровые или газовые калориферы, топки, работающие на твердом, жидком или
газообразном топливе, инфракрасные излучатели и генераторы электрического тока.
Выбор генератора тепла обычно определяется
схемой и методом сушки, физическими свойствами высушиваемого материала и
требуемым режимом сушки. При возможности целесообразно использовать тепло
отходящих газов или отработанного пара, при этом одновременно утилизируются
тепловые отходы.
Сушка - процесс тепломассообменный. Удаление
влаги с поверхности тесно связано с продвижением ее изнутри к поверхности.
Сушка отличается от выпаривания тем, что в первом случае удаление влаги
происходит при любой температуре, во втором - если давление образующихся паров
равно давлению окружающей среды (например, кипение воды происходит при
давлении, равном барометрическому).
В воздушной сушке, так же как и в газовой, тепло
передается от теплоносителя непосредственно высушиваемому веществу. Для
получения материала необходимого качества особое внимание должно уделяться
технологическому режиму сушки, правильному выбору параметров теплоносителя и
режиму процесса (выбор оптимальной температуры нагрева материала, его влажности
и т.д.). Оптимальный режим сушки, влияющий на технологические свойства
материала, зависит от связи влаги с материалом.
По мере удаления влаги с поверхности материала
за счет разности концентрации влаги внутри материала и на его поверхности,
происходит движение влаги к поверхности путем диффузии. В некоторых случаях
имеет место так называемая термодиффузия, когда движение влаги внутри материала
происходит за счет уменьшения разности температур на поверхности и внутри
материала.
При сушке некоторых материалов до низкой
конечной влажности тепло расходуется не только на подогрев материала и
испарение влаги из него, но и на преодоление связи влаги с материалом. В
большинстве случаев при сушке удаляется водяной пар, однако, в химической
промышленности иногда приходится удалять пары органических растворителей.
Независимо от того, какая жидкость будет испаряться, закономерности процесса те
же [1, с. 189].
. Классификация сушильных установок [2]
.1 По способу подвода тепла
· конвективные (высушиваемый материал
омывается потоком предварительно нагретого сушильного агента);
· контактные (непосредственный контакт
высушиваемого материала с нагреваемой поверхностью);
· сублимационные (удаление влаги в
замороженном состоянии под вакуумом);
· высокочастотные (удаление влаги под
воздействием электрического поля высокой частоты);
· радиационные (высушивание под
действием инфракрасного излучения).
.2 По уровню давления
сушильного агента в рабочем пространстве сушильной камеры
· атмосферные (сушка осуществляется
при атмосферном или близком к нему давлении);
· вакуумные (давление в сушильной
камере намного ниже атмосферного).
.3 По характеру работы
· сушилки периодического действия
(загрузка и выгрузка высушиваемого продукта осуществляется периодически);
· сушилки непрерывного действия
(загрузка и выгрузка высушиваемого продукта осуществляется непрерывно);
.4 По применяемому сушильному агенту
· воздушные сушилки;
· сушилки на топочных газах;
· сушилки с применением перегретого
пара или инертного газа (используются для сушки продуктов, которые окисляются
кислородом воздуха).
.5 По направлению движения сушильного агента
относительно высушиваемых продуктов
· прямоточные сушилки (направление
движения высушиваемого продукта совпадает с направлением движения сушильного
агента);
· противоточные сушилки (направление
движения высушиваемого продукта противоположно направлению движения сушильного
агента);
· сушилки с перекрестным током
(направление движения высушиваемого продукта перпендикулярно направлению
движения сушильного агента);
· сушилки с реверсивным током
(направление движения сушильного агента переменно относительно направления
движения высушиваемого материала).
.6 По принципу циркуляции сушильного агента
· установки для сушки с естественной
циркуляцией сушильного агента (его движение в сушильной камере осуществляется
за счёт разности плотностей газа в различных частях камеры);
· установки для сушки с искусственной
циркуляцией сушильного агента (его движение в сушильной камере осуществляется
либо центробежными или осевыми вентиляторами, либо струйными
насосами-эжекторами).
.7 По способу нагрева сушильного агента
· сушилки с паровым обогревом
(сушильный агент нагревается в поверхностных подогревателях, в которых пар
находится под давлением 3-10 атм). Нагрев сушильного агента происходит до
температур 60-145°С;
· сушилки с подогревом сушильного
агента в газовых рекуперативных подогревателях (применяются для подачи в
рабочую зону сушильной камеры чистого воздуха с температурой 200-350°С);
· сушилки, в которых в качестве
сушильного агента используется смесь топочных газов;
· сушилки с электрическим нагревом
сушильного агента (такой метод является дорогим и поэтому применяется в
основном в лабораторных условиях).
.8 По подогреву сушильного агента
· подогрев в сушильной камере;
· подогрев в выносных подогревателях
(осуществляется перед вводом в сушилку);
· промежуточный подогрев между зонами
сушки (для продуктов, нетерпящих высоких начальных температур).
.9 По кратности использования сушильного агента
в сушильной установке
· однократные;
· рециркуляционные (сушильный агент
частично возвращается в сушильную камеру). Часть влажного воздуха удаляется и
добавляется свежий.
.10 По степени замены влажного воздуха сухим
· сушилки с воздухообменом (влажный
воздух полностью или частично заменяется);
· сушилки без воздухообмена (замкнутая
циркуляция сушильного агента). Чтобы влажность воздуха не повышалась,
используют специальные конденсаторы, на поверхность которых осаждается влага.
.11 По конструктивным признакам
· камерные сушилки;
Рис. 1. Схема камерной сушилки.
· Коридорные (туннельные) сушилки;
Рис. 2. Схема туннельной сушилки.
· шахтные сушилки;
· ленточные сушилки;
Рис. 3. Схема ленточной сушилки.
· конвейерные сушилки
<#"865255.files/image004.jpg">
Рис. 4. Схема конвейерной сушилки.
· барабанные сушилки
<#"865255.files/image005.jpg">
Рис. 5. Схема барабанной сушилки.
· трубчатые сушилки;
Рис. 6. Схема трубчатой сушилки.
· распылительные сушилки.
Рис. 7. Схема распылительной сушилки.
. Выбор основного оборудования
Конвективный способ сушки применяется в
промышленности наиболее широко. Он предполагает нагрев высушиваемого материала
посредством сушильного агента с использованием тепловой энергии пара, горячей
воды либо электрической энергии. К достоинствам конвективных сушилок можно
отнести простоту конструкции и невысокую стоимость оборудования, к недостаткам
- высокий удельный расход теплоты, сравнительно низкую интенсивность тепло- и
массообмена между теплоносителем и высушиваемым материалом, а, следовательно,
значительную длительность процесса [3].
Широкое промышленное применение получили
конвективные сушилки различных конструкций (камерные, барабанные, пневматические,
с кипящим слоем, распылительные и пр.). В основном варианте конвективной
сушилки сушильный агент, предварительно нагретый в калорифере до максимально
допустимой температуры, движется в сушилке, непосредственно соприкасаясь с
высушиваемым материалом (пищевыми продуктами, медицинскими препаратами,
химическими соединениями и др.). 0тличительная особенность этого варианта -
однократный нагрев и однократное использование сушильного агента.
При сушке термически нестойких материалов
(например, полиэтилена) сушильный агент только частично нагревается в основном
калорифере и вводится в сушильную камеру при допустимой для высушиваемого
материала температуре. Остальное необходимое для сушки тепло агент получает в
дополнительных калориферах, установленных в сушильной камере.
Для сушки некоторых материалов (древесины,
заформованных керамических изделий и пр.) часто применяются сушилки с возвратом
(рециркуляцией) части отработанного воздуха. Этим достигается уменьшение
перепадов температуры и влагосодержания воздуха на входе и выходе из сушилки и
более равномерная сушка. Для сушки огне и взрывоопасных материалов или при
удалении из высушиваемого материала ценных продуктов (спирты, эфиры и пр.)
применяются сушилки с замкнутой циркуляцией потока инертных газов или воздуха
[4].
В зависимости от назначения используются сушилки
различных конструкций.
· Пневматические - для сушки зернистых
материалов (угля, адипиновой кислоты и др.) потоком горячего сушильного агента
- представляют собой одну или несколько последовательно соединённых
вертикальных труб. Высушиваемый материал перемещается по этим трубам потоком
сушильного агента, скорость которого превышает скорость витания наиболее
крупных кусков (обычно 10-40 м/сек). Вследствие кратковременности контакта (1-5
сек) эта сушилка пригодна для термически нестойких материалов даже при высокой
температуре сушильного агента.
Рис. 8. Пневматическая сушилка: 1-бункер;
2-питатель; 3-труба; 4-вентилятор; 5-калорифер; 6-сборник-амортизатор;
7-циклон; 8-разгрузочное устройство; 9- фильтр.
· В сушилке с кипящим
(псевдосжиженным) слоем достигается интенсивное перемешивание материала,
ускоренный тепло и массообмен, благодаря чему сушильный агент можно
использовать при повышенных температурах. Материал через бункер подается на
наклонную решетку, которая может получать колебания от вибратора . На сетке
происходит псевдоожижение материала воздухом, поступающим снизу. Отработанный
воздух проходит две параллельные щели в верхней части камеры и отводится через
патрубок, а материал выгружается через патрубок и частично через патрубок. В
промышленности используют сушилки и с несколькими камерами. Сочетая простоту
устройства с высокой удельной производительностью и лёгкостью автоматизации,
эти сушилки нашли широкое применение в химической промышленности, цветной
металлургии.
Рис. 9. Сушилки с кипящим слоем
<#"865255.files/image010.gif">
Рис. 10. Сушилки с форсуночным (а,
б) и дисковым (в, г) распылением материалов: I - центральный закрученный подвод
сушильного агента (прямоточный аппарат); II-равномерное распределение газов
<#"865255.files/image011.gif">
Рис. 11. Ленточная сушилка: 1-камера; 2,
6-загрузочный и разгрузочный бункеры; 3 - ленточный транспортер; 4 - калорифер;
5- вентилятор.
· Контактные (например, вальцовые) -
для сушки жидких и пастообразных материалов (ксантогенаты щелочных металлов и
др.) под атмосферным давлением или вакуумом. Используются одно- или
двухвальцовые сушилки; основной частью этих сушилок являются медленно
вращающиеся (2-10 об/мин) вальцы, в которые через полую цапфу поступает греющий
пар и от них отводится конденсат. Высушиваемый материал поступает на вальцы,
налипает на их поверхности тонким слоем (1- 2 мм), высушивается и срезается
ножом.
Рис. 12. Вальцовые вакуум-сушилки:
а-одновальцовая; б-двухвальцовая; 1-корпус; 2-полый барабан (валец); 3-корыто;
4-распределит. валик; 5-нож; 6-шнек; 7-приемный колпак; 8-сборник; 9-вальцы;
10-наклонная стенка,
· Сублимационные - для сушки пищевых
продуктов и медицинских препаратов (антибиотиков, плазмы крови и др.) с
сохранением основных биологических качеств материала. В этих сушилках влага
удаляется в замороженном состоянии под вакуумом (остаточное давление 6,65-332,5
Н/м2 или 0,05-2,5 мм рт. ст.) при температуре около 0 °С. В камере
испаряется основная часть влаги (60-85% от общего содержания), остальная влага
удаляется тепловой вакуум-сушкой (при температуре 30-45 °С). Теплота,
необходимая для С., подводится к материалу от нагретых поверхностей или
радиацией от нагретых экранов. При сублимационной сушке отсутствует
окислительное действие кислорода воздуха, не изменяются размеры продукта, что
позволяет получать продукты высокого качества, приближающиеся по
органолептическим показателям и содержанию витаминов, пахучих и других веществ
к свежим [6].
В настоящее время, конвективные сушильные камеры
остаются одними из самых востребованных, благодаря следующему набору
конкурентных свойств:
рентабельность;
невысокая стоимость;
простота и изученность технологического
процесса;
высокое качество высушенных материалов;
проста обслуживания;
исключительная надежность.
. Выбор конструкции аппарата
.1 Барабанная сушилка
Выбор типа сушилки зависит от химических свойств
материала. Конструкции весьма разнообразны и выбор их определяется технологическими
особенностями производства.
Наиболее широкое распространение получили
барабанные сушилки.
Рис. 13. Схема барабанной сушилки.
Эти сушилки отличаются высокой
производительностью и относятся к конвективным сушилкам. В качестве сушильного
агента в них используют воздух и дымовые газы. В этих аппаратах сушке
подвергают соли, топливо, пасты; их используют в производствах соды, удобрений,
ядохимикатов.
Сушилка представляет собой цилиндрический
барабан 1, к которому крепятся бандажи 9, опирающиеся на опорные 3 и
опорно-упорные 6 ролики. Вращение барабану передается от электродвигателя через
редуктор 4 и зубчатый венец 5, закрытый кожухом 10. Мощность двигателя от 1 до
40 кВт. Частота вращения барабана 1-8 об/мин. Размеры корпусов сушилки
нормализованы. Так, по нормали машиностроения МН 2106-61 установлены следующие
диаметры барабанов: 1000, 1200, (1400), 1600, (1800), (2000), 2200, 2500, 2800
мм. Длина барабана зависит от диаметра и составляет 4, 6, 8, 10, 12, 14, 16,
18, 20, 22 м. Обычно отношение длины L
барабана к диаметру D должно быть
L/D
= 3,5 - 7,0.
Основной материал для изготовления барабанов
сушилок, загрузочных и разгрузочных камер - углеродистые стали. В технически
обоснованных случаях дополнительное изготовление барабанов, разгрузочных камер
частично или полностью из жаростойких сталей специальных марок.
.2 Принцип работы барабанных сушилок
Высушиваемый материал подается в приемную камеру
8 (Рис. 13.) и поступает на приемно-винтовую насадку, а с нее - на основную
насадку. Лопасти насадки поднимают и сбрасывают материал при вращении барабана.
Барабан установлен под углом а к горизонтали до 6°; высушиваемый продукт
передвигается к выгрузочной камере 2 и при этом продувается сушильным агентом.
Между вращающимся барабаном и неподвижной камерой установлено уплотнительное
устройство 7. Выбор типа насадки зависит от материала. Для крупных кусков и
налипающих материалов применяют лопастную систему насадки, для сыпучих
материалов - распределительную, для пылеобразующих материалов - перевалочную с
закрытыми ячейками. Барабан заполняют материалом обычно до 20%.
Рис. 14. Внутренние устройства (насадки)
сушильных барабанов:
а, е - подъемно-лопастная система; б, в, г, ж,
з, и, к, о - секторная система; л, м - распределительная система, состоящая из
отдельных сообщающихся ячеек; д- ячейковая система, не сообщающихся ячеек; п-
цепная система.
При сушке материала в сушильных барабанах
необходимо соблюдать следующие условия:
· создавать максимально возможный
перепад температур газов при входе и выходе из барабана. При этом следует
учесть, что при температуре поступающих газов больше 700-800 0С
создаётся опасность деформации барабана, а температуре газов меньше 110-75 0С
возможна конденсация паров воды и не только прекращается сушка материала, но он
даже увлажняется;
· равномерно питать барабан
материалом, куски должны быть одинаковыми по величине. При чрезмерно быстром
поступлении в барабан он выйдет из него недосушенным, а при недостаточном
поступлении - пересушенным;
· обеспечить определённую скорость
движения газов, которая не должна превышать 1,5-2,0 м/сек. При более высокой
скорости повышается унос материала и возрастает пылеобразование [7].
.3 Технико-экономическое обоснование
В данном курсовом проекте будем рассчитывать
барабанную сушилку непрерывного действия, так как:
· благодаря непрерывному перемешиванию
при вращении сушилки частицы высушиваемого материала соприкасаются с газами
очень короткое время, что позволяет применять более высокую температуру газов;
· применение газов с высокой
температурой делает эти сушилки очень экономичными как по расходу тепла, так и
по расходу энергии;
· барабанные сушилки имеют
сравнительно большую производительность;
· при использовании определённых типов
насадок, в этих сушилках можно подсушивать кусковые материалы, не обладающие
сыпучими свойствами;
· имеется возможность сушить высоко
влажный и засоренный материал;
· простота монтажа (для запуска в
работу не требуется капитальных сооружений);
· надежность работы (исключается
образование застойных зон);
· не большая стоимость изготовления
барабанной сушилки, и не большие расходы на обслуживание, так как греющий агент
воздух.
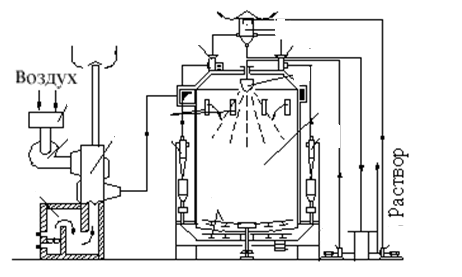
.4 Принципиальная схема барабанной сушилки
Рис.15. Принципиальная схема барабанной сушилки.
- бункер; 2 - питатель; 3 - калорифер; 4, 6 -
вентиляторы; 5 - сушильный барабан; 7 - циклон; 8 - промежуточный бункер; 9 -
транспортер; 10 - зубчатая передача.
. Физико-химическая характеристика продуктов
ПОТАШ - карбонат калия (углекислый калий, поташ)
K2CO3 - средняя соль калия и угольной кислоты,
представляет собой бесцветные кристаллы, плавящиеся при 891° С и хорошо
растворимые в воде. Коэффициент растворимости K2CO3 (в г
на 100 г воды) равен 111,0 при 20° С и 139,2 при 80° С. В водных растворах
карбоната калия сильнощелочная среда за счет гидролиза. При насыщении
карбонатом калия водно-спиртового раствора при 23-25 С образуется двухслойная
система содержащая в нижнем слое 53,6% карбоната калия и 0,28% этанола, а в
верхнем слое 0,095% карбоната калия и 90,65% этанола [8].
Таблица 1.
Физико-химические свойства поташа.
|
Внешний
вид:
|
Бесцветные
моноклинные кристаллы. Брутто-формула: CK2O3. Формула в
виде текста: K2CO3.
|
|
Молекулярная
масса (в а.е.м.):
|
138,21.
|
|
Температура
плавления (в °C):
|
891.
|
|
Плотность
(в г/см3)
|
2,428.
|
|
Стандартная
энтальпия образования ΔH (298 К,
кДж/моль)
|
-1146,1.
|
|
Стандартная
энергия Гиббса образования ΔG (298 К,
кДж/моль)
|
-1059,8.
|
|
Стандартная
энтропия образования S (298 К, Дж/моль·K)
|
156,32.
|
|
Стандартная
мольная теплоемкость Cp (298 К, Дж/моль·K)
|
115,7.
|
|
Насыпная
плотность (в кг/м3)
|
1360.
|
. Выбор
конструкционного материала
Сталь углеродистая обыкновенного качества будем
использовать при изготовлении обечаек, днищ, фланцев, люков, лазов,
патрубков и других деталей
аппаратов, работающих в интервале температур
от -20 до +4250С и давлении до 5 МПа; с антикоррозийными покрытиями она
пригодна и для изготовления аппаратов,
работающих в агрессивных средах. Будем использовать сталь марки Ст 3 ГОСТ
380-71.
Стали имеют наибольшее применение благодаря
своей прочности, вязкости, способности выносить динамические нагрузки,
свариваться, хорошо обрабатываться резанием
и прокаткой, низкой стоимости и
доступности.
Сталь углеродистая обыкновенного качества (ГОСТ 380-71). В зависимости от назначения
и гарантируемых характеристик сталь подразделяется на три группы: А -
поставляемую по механическим свойствам; Б - поставляемую по химическому
составу; В - поставляемую по механическим свойствам, соответствующим нормам для
стали группы А, и по химическому составу, соответствующему нормам стали группы Б.
В обозначении марок буквы Ст означают «сталь»,
цифры от О до 6 - условный номер марки. Буквы Б и В означают группу стали, а
группа А в обозначении не указывается. Изготавливают стали следующих марок:
группы А - СтО; Ст1, Ст2, ... ..., Стб; группы Б - БСтО, БСт1, ...,
БСтб; группы В - ВСт1, ВСт2, ..., ВСт5.
Сталь всех групп с номерами марок 1, 2, 3, 4 по
степени раскисления изготовляют кипящей (кп), полуспокойной
(пс), спокойной (сп), а с
номерами 5 и 6 - полуспокойной и.спокойной.
Для сушилки будем использовать сталь марки 12Х18Н10Т; для аппаратов (калорифер, циклон, пенный газопромыватель и
др.) будем использовать сталь марки Х18Н9Т: стали высоколегированные и
сплавы коррозионностойкие, жаростойкие и жаропрочные (ГОСТ 5632-72),
применяющих для изготовления элементов машин и аппаратов, работающих в
интервале температур от -253 до +800 °С при повышенных давлениях и агрессивных
средах. Благодаря повышенной химической стойкости высоколегированные стали находят широкое применение в различных
отраслях химической промышленности. Широко
используются высоколегированные хромоникелевые стали с содержанием хрома
18-20 % и никеля 8-10 %. Хромоникелевые
стали обладают высокой коррозионной стойкостью к агрессивным средам, жаростойкостью и жаропрочностью, немагнитны, хорошо штампуются,
свариваются, удовлетворительно
обрабатываются резанием. Вследствие высокой прочности легированных сталей аппараты, изготовленные из них, более легки и надежны, чем изготовленные из
углеродистых сталей для тех же
условий работы. [9,с.7].
. Технологический
расчет аппарата
.1 Материальный баланс процесса сушки
а) по всему материалу, подвергаемому сушке:
G1 =G2+W,
(1)
где G1
- масса влажного материала, поступающего на сушку, кг/c;
G2
- масса высушенного материала, кг/с;
W - масса влаги,
удаляемой из материала при сушке, кг/с.
б) по абсолютно сухому веществу в высушиваемом
материале:
G1
=
G2
, (2)
где w1
,
w2 -
начальная и конечная влажность материала соответственно (считая на общую массу
материала)%.
Количество влажного материала, поступающего на
сушку:
G2=G1
(3)
G2=4,7
= 4,47кг/c.
Определим расход влаги, удаляемой из
высушиваемого материала:
(4)
кг/с.
8.2 Графоаналитический расчет процесса сушки в
теоретической сушилке
По таблице XL[10,c.538]
находим среднюю температуру и относительную влажность атмосферного воздуха в
городе Череповец для летних условий (справочные данные смотрим по г. Вологда):
t0=17,6
0С
φ0
= 70%
Рис. 16. Диаграмма I-x
для влажного воздуха.
По пересечению линий t0,
φ0
находим точку А, характеризующую состояние воздуха перед калорифером. Из точки
А проводим вертикаль пересечения с изотермой t1=125
0C. Точка пересечения
В характеризует состояние нагретого воздуха перед входом в сушильную камеру.
Вертикальный отрезок АВ изображает процесс нагрева воздуха в калорифере,
протекающий при х0=х1=0,009=0,01 кг/кг, где х1
- влагосодержание нагретого воздуха. Из точки В проводим линию I1,
которой изображается адиабатический процесс изменения состояния воздуха в
сушилке. Продолжая линию I1
= 156,4 кДж/кг сухого воздуха до пересечения с изотермой t2=60
0C, получаем точку С,
выражающую состояние отработанного воздуха на выходе из сушилки. Отрезок ВС,
параллельный оси абсцисс (I1=I2=156,4
кДж/кг сухого воздуха), изображается охлаждение воздуха в процессе сушки.
Ломанная АВС - графическое изображение всего процесса изменения состояния
воздуха в теоретической сушилке в калорифере и сушильной камере, работающей по
основной схеме. Для точки С находим х2=0,04 кг/кг сухого воздуха
[11].
Определяем удельный расход сухого воздуха:
(5)
= 0,229/(0,04 - 0,01) = 7,63 кг/с.
Определяем удельный расход теплоты:
(6)
Qc = 7,63∙(156,4-
41,9) = 874,1 кВт.
Графоаналитический расчет процесса
сушки в действительной сушилке:
Δ=
(7)
где Δ - разность
между удельным приходом и расходом тепла непосредственно в сушильной камере
(внутренний баланс сушильной камеры)
I1,I2 - энтальпии
воздуха соответственно после калорифера и сушильной камеры, кДж/кг сухого
воздуха.
х1-влагосодержание
воздуха, нагретого в калорифере и поступающего в сушилку, кг/кг сухого воздуха.
х2-влагосодержание на
выходе из сушилки, кг/кг сухого воздуха.
Заменим в уравнении координаты
конечной точки (х2,I2) на текущие
координаты (х,I) для
некоторой произвольно выбранной точки Е, лежащей на линии процесса в
действительной сушилке (рассматривается случай Δ>0).
Тогда
Внутренний баланс сушильной камеры
, (8)
где qд - удельный
дополнительный подвод тепла в сушильную камеру (при работе сушилки по
нормальному сушильному варианту qд=0), кДж/кг
влаги.
св=4,19кДж/кг град,
теплоемкость воды (влаги).
- температура влажного материала, 0С
qM - удельный
подвод тепла в сушильный барабан с высушиваемым материалом, кДж/кг влаги.
qT - удельный
подвод тепла в сушилку с транспортными средствами (в нашем случае она равна
нулю), кДж/кг влаги.
qП - потери в
окружающую среду, равная 22,6 кДж/кг влаги.
, (9)
где сМ - теплоемкость
высушенного материала (для поташа 1,061 кДж/кг*К)
θ2-температура
высушенного материала на выходе из сушилки, 60 0С.
Определяем внутренний баланс
сушильной камеры:
кДж/кг влаги.
Получаем
I=138,5
кДж/кг.
.3 Тепловой баланс сушилки
Барабанная сушилка относится к конвективной
сушилке с перемешиваемыми слоями материала.
Рис. 17. Принципиальная схема
конвективной сушилки непрерывного действия.
Согласно схеме рис.2., тепло
подводится в калорифер К1, установленный перед сушилкой Qк и в
дополнительный калорифер К2 внутри камеры сушилки в количестве Qд=0, тогда с
учетом потерь тепла в окружающую среду имеем:
Пусть на сушку поступает G1 =4,7 кг/с
исходного материала, имеющего температуру θ1=25 0С.В
сушилке из материала испаряется W=0,229 кг/c влаги и из
сушилки удаляется G2=4,47 кг/с
высушенного материала при температуре θ2=60 0С.
Обозначим удельную теплоемкость высушенного материала см=1,061кДж/кг*К
([2], табл.XXV с.527) и
теплоемкость влаги св=4,19 кДж/кг*К. В сушилку подается влажный
воздух(сушильный агент), содержащий L=7,63 кг/с
абсолютно сухого воздуха. Перед калорифером воздух имеет энтальпию I0=41,9 кДж/кг
сухого воздуха, после нагрева т.е. на входе в сушилку энтальпия воздуха
повышается до I1=156,4
кДж/кг сухого воздуха. В процессе сушки в результате передачи тепла материалу,
поглощение испаряющейся из материала влаги и потерь тепла в окружающую среду
энтальпия воздуха изменяется и на выходе из сушилки энтальпия отработанного
воздуха равна I2=138,5
кДж/кг [11].
Приход тепла:
.Тепло, вносимое с наружным
воздухом:
кВт
.Тепло, вносимое с влажным
материалом:
.1. с сухим материалом:
кВт
.2. с влагой, испаряемой из
материала:
кВт
.Теплота, сообщаемая воздуху, в
основном калорифере:
кВт
.Qобщ=320+118,6+24+973,6=1436,2
кВт
Расход тепла:
.Тепло, уносимое с отработанным
воздухом:
кВт
.Расход тепла, с высушенным
материалом
кВт
.Потери тепла в окружающую среду
кВт
.Qобщ=1080,3+280,6+4,17=1364,7
кВт
При установившемся процессе сушки
тепловой баланс выразится равенством:
Вычислим величину Δ, которая
выражает разность между приходом и расходом тепла:
8.4
Определение основных размеров сушильного барабана
Основные размеры барабана выбираем
по нормативам и каталогам-справочникам в соответствии с объемом сушильного
пространства. Объем сушильного пространства V
складывается из объема Vп,
необходимого для прогрева влажного материала до температуры, при которой
начинается интенсивное испарение влаги (до температуры мокрого термометра
сушильного агента), и объема Vс, требуемого
для проведения процесса испарения влаги, т.е. V= Vп +Vс. Объем
сушильного пространства барабана может быть вычислен по модифицированному
уравнению массопередачи :
, (10)
где ∆хср’ -
средняя движущая сила массопередачи, кг влаги /м3;
Кυ- объемный
коэффициент массопередачи, 1/c.
При сушке кристаллических материалов
происходит удаление поверхностной влаги, т.е. процесс протекает в первом
периоде сушки, когда скорость процесса определяется только внешним диффузионным
сопротивлением. При параллельном движении материала и сушильного агента
температура влажного материала равна температуре мокрого термометра. В этом
случае коэффициент массопередачи численно равен коэффициенту массоотдачи Кυ=βυ.
Для барабанной сушилки коэффициент
массотдачи может быть вычислен по эмпирическому уравнению:
, (11)
где ρср - средняя
плотность сушильного агента, кг/м3;
с - теплоемкость сушильного агента
при средней температуре в барабане, равная 1 кДж/(кг·К);
β - оптимальное заполнение
барабана высушиваемым материалом, %;
Р0- давление, при котором
осуществляется сушка, Па; р - среднее парциальное давление водяных паров в
сушильном барабане, Па.
Уравнение (11) справедливо для
значений ωρср = 0,6 - 1,8
кг/(м2·с), n=1,5 - 5,0 об/мин, β = 10 -
25%.
Размер частиц высушиваемого материала
от 0,3 до 2 мм, насыпная плотность поташа 1360кг/м3.
сушилка барабанный
графоаналитический анализ
Таблица 2.
Выбор рабочей скорости газов в
сушильном барабане.
|
Размер
частиц, мм
|
Значение
скорости ω при насыпной
плотности
|
|
350
|
1000
|
1400
|
1800
|
2200
|
|
0,3
- 2
|
0,5
- 1,0
|
2,0
- 5,0
|
3,0
- 7,5
|
4,0
- 8,0
|
5,0
- 10,0
|
|
Более
2-х
|
1,0
- 3,0
|
3,0
- 5,0
|
4,0
- 8,0
|
6,0
- 10,0
|
7,0
- 12,0
|
По таблице 1, принимаем скорость воздуха в
барабане ω=2,0 м/c.
Плотность сушильного агента при средней температуре в барабане tср=(125+60)/2=92,50C:
При этом ωρср =2,0·0,96=1,80
кг/(м2·с), что не нарушает справедливости уравнения ωρср = 0,6 - 1,8
кг/(м2·с).
Частоту вращения барабана принимаем
равной 5,5 об/мин, оптимальное заполнение барабана высушиваемым материалом β = 12%
[11, c.299,рис.9.3.]
Процесс сушки осуществляется под
атмосферным давлением, т.е. при Р0=105Па. Парциальное
давление водяных паров в сушильном барабане определим как среднеарифметическую
величину между парциальными давлениями на входе воздуха в сушилку и на выходе
из нее.
(12)
Тогда на входе в сушилку:
На выходе из сушилки:
Отсюда: р = (р1+р2)/2
= (2665,87+3648,57)/2 = 3157,2 Па
Таким образом, объемный коэффициент
массоотдачи равен:
Движущую силу массопередачи ∆х’cp определим
по уравнению:
(13)
Средняя движущая сила ∆Рср,
выраженная через единицы давления (Па), равна:
(14)
Для прямоточного движения сушильного
агента и высушиваемого материала имеем:
- движущая сила в начале процесса
сушки, Па;
- движущая
сила в конце процесса сушки, Па;
- давление насыщенных паров над
влажным материалом в начале и в конце процесса сушки, Па.
Значения
определяем
по температуре мокрого термометра сушильного агента в начале (tм1) и в конце
(tм2) процесса
сушки. По диаграмме I-x найдем: tм1=380С,
tм2=370С;
при этом
,
. Тогда
Выразим движущую силу в кг/м3
по уравнению (13 ):
Объем сушильного барабана,
необходимый для проведения процесса испарения влаги, без учета объема аппарата,
требуемого на прогрев влажного материала, находим по уравнению (10 ):
Объем сушилки, необходимый для
прогрева влажного материала, находим по модифицированному уравнению
теплопередачи:
, (15)
где Qп - расход
тепла на прогрев материала до температуры tм1, кВт;
Кυ - объемный
коэффициент теплопередачи, кВт/(м3·К);
∆tср - средняя
разность температур, град.
Расход тепла Qп равен:
(16)

(17)
Для вычисления ∆tср необходимо
найти температуру сушильного агента tx, до которой
он охладится, отдавая тепло на нагрев высушиваемого материала до tм1. Эту
температуру можно определить из уравнения теплового баланса:
(18)
Откуда: tx=115,40С.
Средняя разность температур равна:
(19)
Подставляем полученные значения в
уравнение (15 ):
Общий объем сушильного барабана V=30+2,24=32,2м3.
По табл.9.3. [11], в которой
приведены основные характеристики барабанных сушилок, выпускаемых заводами
«Уралхиммаш» и «Прогресс», выбираем барабанную сушилку №7119 со следующими
характеристиками:
Объем сушильного пространства V=30,5м3,
Внутренний диаметр барабана dвн=1,8 м,
Длина барабана l=12 м,
Частота вращения барабана n = 5 об/мин.
[11, c.301].
Находим объемный расход влажного
сушильного агента на выходе из барабана:
(20)
где хср - среднее содержание влаги в
сушильном агенте, кг/кг сухого воздуха. Получим:
Определяем действительную скорость газов в
барабане:
(21)
8,14/(0,785∙1,8) = 2,9 м/с.
Действительная скорость газов (ωД =2,9 м/c) отличается
от принятой в расчете (ω=2,0
м/c) менее чем
на 15 %. Некоторое уменьшение интенсивности процесса сушки при снижении
скорости газов по сравнению с принятой в расчете полностью компенсируется
избытком объема выбранной сушилки по сравнению с расчетным.
Определяем среднее время пребывания
материала в сушилке:
, (22)
где Gм = Vβρм = 30,5 *
0,12 * 1360 =4977,6 кг.
Отсюда
τ =4977,6 / (4,47 + 0,226/2) =
1086,1 с.
Зная время пребывания, рассчитаем
угол наклона барабана:
(23)
α/ = (30∙12/(1,8∙5,5∙1086,1)
+ 0,007∙2,9)∙(180/3,14) = 3,20.
Проверим допустимую скорость газов
по уносу мелких частиц:
, (24)
где ρср - плотность
сушильного агента,
(25)
ρср = [29∙(105-3157,2)+18∙3157,2]∙273/(22,4∙105∙(273+92,5))
= 0,955 кг/м3.
Ar = (d3∙ρч∙ρср∙g) / µср2
= [(1∙10-3)3 ∙2260∙0,8955∙9,8]/(0,022∙10-3)2
= 43700,4;
μср и ρср - вязкость
и плотность сушильного агента при средней температуре;- диаметр частиц
материала, м;
ρч - плотность
частиц материала.
Скорость
уноса равна:
ωс.в. = (0,022∙10-3/1∙10-3∙0,955)∙[43700,4/(18
+ 0,575
)] =7,28
м/с.
Рабочая
скорость сушильного агента в сушилке ωд = 2,9 м/с
меньше чем скорость уноса частиц ωун = 7,28 м/с,
поэтому расчет основных размеров сушильного барабана заканчиваем.
По
итогам расчета мы выбрали сушилку №7119 [12]:
Таблица
3.
Основные
характеристики барабанной сушилки.
|
Внутренний
диаметр барабана, м
|
Длина
барабана, м
|
Толщина
стенок наружного цилиндра, мм
|
Объем
сушильного пространства,м3
|
Число
ячеек, шт
|
Частота
вращения барабана, об/мин
|
Общая
масса, т
|
Потребляемая
мощность двигателя, кВт
|
|
1,8
|
12
|
12
|
30,5
|
28
|
5
|
24,7
|
10,3
|
. Расчет аппаратов на прочность
.1 Расчет на прочность
В задачу данного раздела входит определение
основных размеров аппарата, обеспечивающих его прочность. Механические расчеты
вращающихся барабанов включают определение толщины стенки барабана,
обеспечивающей прочность и жесткость конструкции, расчет на прочность бандажей,
а также упорных и опорных роликов [12].
Толщину стенки барабана предварительно
определяют по нормалям или, в зависимости от диаметра барабана D,
по эмпирической формуле:
(1)
δ = 0,007∙1,8 = 0,0126
м = 12,6 мм.
Затем проверяем на прочность, по допускаемому
напряжению, на изгиб, как балку кольцевого сечения. В простейшей расчетной
схеме барабан можно представить в виде балки длиной L,
свободно лежащей на двух опорах и нагруженной распределенной нагрузкой от веса
барабана и загружаемого материала:
, (2)
где G
= 24700 кг - вес барабана;
Gм
= 4977,6 кг - вес материала, поступающего в барабан;
В наиболее опасном сечении балки
обеспечивается минимальный изгибающий момент:
, (3)
где l0
- расстояние между опорами:
(4)
Барабану передается также крутящий
момент от привода, необходимый главным образом для поднятия центра тяжести
материала на определенную высоту. Крутящий момент (в МНм) можно определить из
уравнения:
, (5)
где N
- мощность привода, кВт;
n - частота вращения
барабана, с-1;
Мкр =
= 0,019 МН∙м
= 19000 Н∙м.
Условие прочности барабана имеет
вид:
, (6)
где расчетный (приведенный) момент Мр
определяют по формуле:
(7)
.
Момент сопротивления кольцевого
сечения:
, (8)
Допускаемое напряжение [σ]н
для нашего случая рекомендуется принимать (с учетом возможных температурных
напряжений, неточностей монтажа и т. п.) для барабанов без футеровки в пределах
от 5 до 10 МН/м2 , тогда:
[σ]н=7
МН/м2.
75795,81/0,032 = 2,32 МН/м2.
,32
[σ]н
, следовательно, условие прочности выполняется.
.2 Расчет на прогиб
Для нормальной работы допускается
прогиб f не больше 1/3 на 1 м длины, т.е. f
0,0003l0
0,0003·7,02
0,0021м.
Прогиб от равномерно распределенной
нагрузки определяется по уравнению:
f
, (9)
где Е = 1,91∙105 МН/м [11, с
406] - модуль упругости материала барабана;
I - осевой момент
инерции кольцевого сечения (в м4), который находят по формуле:
(10)
Подставим необходимые значения в
(9):
,00014<0,0021, следовательно,
условие выполняется.
Бандажи служат для передачи давления
от веса барабана и загруженного в него материала на опорные ролики. Бандажи
представляют собой кольца прямоугольного сечения. Для рассматриваемого барабана
чаще всего применяют свободное крепление бандажей, при котором они надеваются
на чугунные или стальные башмаки. Предварительно по нормалям выбирают ширину и
диаметр бандажей и опорных роликов, а затем выполняют проверку их на прочность.
Ширину бандажей можно приближенно определить по формуле:
, (11)
где qк
= (1,0 ÷ 2,4) МН/м - допускаемая по опыту
эксплуатация нагрузки на единицу длинны касания ролика и бандажа;- реакция
опорного ролика, МН:
, (12)
где φ - угол между
опорными роликами (φ
= 600);
α - угол наклона барабана (20 ÷ 40);
z - число
бандажей, z=2.
.
Ширина опорного ролика bо.р. должна быть
больше ширины бандажа на 30 мм, тогда
мм.
Диаметр опорных роликов принимают в
3 - 4 раза меньше наружного диаметра бандажа.
Находим наружный диаметр бандажа:
(13)
.
Радиус бандажа:
rбан = 1200 мм =
1,2 м.
Тогда диаметр опорных роликов будет
равен:
Dо.р. = 600 мм =
0,6 м.
Радиус опорных роликов:
rо.р. =300 мм =
0,30 м.
Высота бандажа:
hб = 300 мм =
0,30 м.
Условие контактной прочности на
смятие в месте соприкосновения ролика и бандажа записывается в виде:
, (14)
где [σ]с
- допускаемое напряжение материала ролика и бандажа на смятие.
Для стального литья [σ]с
= (300 ÷ 500) МН/м2.
Σс = 0,0418·
.
Условие выполняется, так как [σ]с
> σс , т. е.
37,2< 400.
Ширину упорных роликов,
воспринимающих осевую силу, также выбираем из условия прочности смятия.
Для конического ролика, находящегося
в контакте с плоским бандажом имеет вид:
, (15)
где γ = 170-
угол конусности упорного ролика;
Т - осевая сила:
(16)
,
тогда bу.р.=0,0252 м =
21,5 м.
После проверки контактной прочности
роликов и бандажа выполняют проверку прочности бандажа на изгиб. Рассматривая
участок бандажа между двумя башмаками как кривой брус, можно записать условие
прочности бандажа на изгиб:
, (17)
где Mб
- максимальный изгибающий момент в месте контакта опорного ролика и бандажа, МН∙м;
Wб
- момент сопротивления бандажа прямоугольного сечения, м3.
Находим максимальный изгибающий момент:
, (18)
где l
- расстояние между соседними башмаками, м:
, (19)
где m
= 16 - число башмаков.
Находим момент сопротивления бандажа
прямоугольного сечения:
(20)
где bб
и hб
- соответственно ширина и высота бандажа, м.
Подставим полученные значения в
(17):
Условие прочности бандажа на изгиб
выполняется, так как σн входит в
предел от 5 до 10 т.е. 5<8<10.
. Расчет дополнительного
оборудования
.1 Расчет бункера
Выбираем
Бункер-накопитель.
Бункера-накопители (силосы) серии «БН»
предназначены для накопления, хранения, смешивания и дозированной подачи
различных сыпучих материалов: древесных опилок и стружки, зерна, пищевой и
сельскохозяйственной продукции, пластмасс, резины, производства строительных
материалов и т.д.
Таблица 4.
|
Модель
|
Объём
бункера, м3
|
Габаритные
размеры, мм
|
|
|
D
|
Н
|
Н1
|
|
БН-18
|
39
|
4480
|
7450
|
3800
|
Основные преимущества бункеров-накопителей:
Сборно -разборная конструкция, бункер собирается
без сварки, на болтах за 10-14 дней.
Возможен быстрый демонтаж бункера и перенос на
другое место.
Не требуются специальные автомобили при
транспортировке.
Возможность автоматизации выгрузки,
осуществление дозированной подачи материала.
Невысокая стоимость, монтажа, подъёмные механизмы
нужны на 2 дня [13].
.2 Расчет и выбор
вентилятора
Выберем вентилятор В1 с данными параметрами:
расход воздуха V
= 4,7 кг/с = 4,98 м3/с.
вязкость воздуха: μ=0,022∙10-3
Па∙с при t=92,5 0С
плотность воздуха: ρ=0,97
кг/м3
Целью расчета вентилятора является определение
гидравлического сопротивления.
Примем скорость воздуха в трубопроводе ω=14
м/с.
Тогда диаметр трубопровода:
м (1)
Критерий Рейнольдса для потока в
трубопроводе:
>10000
Т.е. режим турбулентный.
Примем, что трубы стальные, бывшие в
эксплуатации. Тогда абсолютная шероховатость трубопровода принимаем ∆=0,15
мм.
Тогда: e=∆/d=1,5∙10-4/0,808=1,86∙10-4.
;
;
<Re=415424,5<3010560
Таким образом расчет λ следует
проводить для зоны смешанного трения:
(3)
Определим коэффициенты местных сопротивлений:
Вход в трубу(принимаем с острыми краями): ζ1=0,5
Колено: ζ2=1,1
Вентиль регулирующий: ζ3=0,32
Выход из трубы: ζ4=1
∑ζ=0,5+1,1+0,32+1=2,92
(4)
Гидравлическое сопротивление трубопровода:
, (5)
где λ - коэффициент
теплопроводности,
∑ζ - сумма
коэффициентов местного сопротивления,
Ω - скорость воздуха в
трубопроводе, м/с,
ρ - плотность воздуха,
d-диаметр
трубопровода,
l=25 м-длина
трубопровода.
Па
Полезная мощность вентилятора:
кВт (6)
Принимая ηпер=1 и ηн=0,6
получим:
кВт (7)
По таблицам [11,с.42] выбираем
вентилятор марки В-Ц14-46-5К-02, который характеризуется Q=5,55 м3/с,
∆р=2550 Па. Электродвигатель АО2-71-4: Nн=22 кВт, ηдв=0,89.
Для вентилятора В2 выбираем: марка
В-Ц14-46-8К-02, который характеризуется Q=7,78м3/с,
∆р=1870 Па. Электродвигатель АО2-72-6: Nн=22 кВт, ηдв=0,90.
.3 Расчет и
выбор циклона
Рис. 18.Схема устройства циклона.
Исходные данные:
Расход воздуха - V = 4,7 кг/с;
средняя плотность воздуха при
рабочих условиях - r = 0,97 кг/м3;
Для улавливания частиц материала
выбираем циклон типа ЦН-15 с углом наклона выходного патрубка 150С.
Этот циклон обеспечивает наибольшую степень улавливания пыли при наименьшем
значении коэффициента гидравлического сопротивления.
Принимая ∆р/ρг=740 ,
диаметр циклона найдем по формуле:
(8)
Предварительно определив условную
скорость газа в цилиндрической части циклона ωц из
уравнения:
∆р/ρг=
, (9)
где ζ0=160
коэффициент сопротивления циклона из таблицы [ 14, 10.3 ]
м/с
м
Принимаем диаметр циклона равным 1,6
м.
Гидравлическое сопротивление
циклона:
Па (10)
Характеристика циклона ЦН-15 [14,
с.297 ]:
Диаметр выходной трубы D1=0,6 м
Ширина входного патрубка b=0,26
Высота входного патрубка h1=0,66
Высота выходной трубы h2=1,74
Высота цилиндрической части h3=2,26
Высота конической части h4=2,0
Общая высота циклона H=4,56
Коэффициент сопротивления ζ0=160
.4 Расчет ленточного транспортера
Целью технологического расчета
конвейера является определение ширины транспортной ленты В (м) и мощности N (кВт),
необходимой для перемещения материала.
Часовой производительность конвейера
определяется по формуле:
(т/ч), (11)
где S-площадь
поперечного сечения материала, лежащего на ленте, м2;
ω-скорость перемещения
материала, м/с;
ρн-насыпная
масса материала, т/м3;
φ-коэффициент заполнения
транспортной ленты.
Для ленточных конвейеров с плоской
лентой:
, (12)
где В-ширина транспортной ленты (м).
Выбираем В=0,8 м.
Подставляя значение S в уравнение
часовой производительности и при φ=1:
(13)
т/ч
Коэффициент С=200 для плоской ленты.
Потребная мощность на приводном валу
ведущего барабана конвейера:
, (14)
где k3=1,05-
коэффициент сопротивления, зависящий от длины ленты.
Мощность N1,
затрачиваемая на подъем материала на высоту Н=30 м:
кВт. (15)
Мощность N2,
затрачиваемая на перемещение материала по горизонтали:
, (16)
где L=30 м- длина
конвейера, м,
k1=0,054.
кВт.
Мощность N3 холостого
хода конвейера:
, (17)
где k2=10,4-
коэффициент сопротивления, зависящий от ширины ленты.
кВт.
Мощность N4
затрачивается на работу сбрасывающего устройства для сброса материала с ленты: N4=0,01∙В=0,01∙0,8=0,008
кВт - для сбрасывающего ножа.
Тогда потребная мощность на приводном валу
ведущего барабана конвейера:
кВт
Мощность электродвигателя:
, (18)
где k=1,2-
коэффициент, учитывающий условия работы конвейера,
η=0,7- КПД привода.
кВт.
.5 Расчет калорифера
Необходимо рассчитать кожухотрубный
теплообменник для нагрева G1= 4,7 кг/с
воздуха от t1н=25 0С
до t1к=125 0С
греющим паром при давлении 0,5МПа с t2=151 0С.
Воздух при средней температуре t1ср=0,5(60+125)=92,5
0С имеет следующие физико-химические характеристики:
ρ1=1,055 кг/м3;
с1=1,061∙ 103
Дж/кг∙К;
μ1=0,022∙
10-3 Па∙с;
λ1=0,032 Вт/(м∙К).
[15]
Греющий пар при t2=151 0С
имеет следующие физико-химические характеристики:
ρ2=2,544 кг/м3;
с2=1,971∙ 103
Дж/кг∙К;
μ2=0,027∙
10-3 Па∙с;
λ2=0,037 Вт/(м∙К).
[15]
Определим тепловую нагрузку:
Q = G1∙ с1∙∆tср=4,7∙
1,061∙ 103 ∙92,5=461269,75 Вт (19)
Расход греющего пара:
(20)
где с2-удельная
теплоемкость греющего пара,
t2-средняя
температура греющего пара.
кг/с
Средняя разность температур:
∆tср =
∆tб = t2
- t1н
=151 - 25 = 126°C
∆tм = t2
-t1к =
151 - 125= 26°C
∆tср =
=63,3°C
Принимаем ориентировочно значение Re1=110000.
Тогда число труб:
труб (21)
По таблице [9, 2.3] соотношение n/z принимает
наиболее близкое значение у теплообменников с диаметром кожуха D=600 мм,
диаметром труб dн=25х2 мм,
числом ходов z=2 и общим
числом труб 240: n/z=240/2=120.
Уточняем значение критерия
Рейнольдса: d1э=0,025-2∙2=0,021
м
, (22)
где G1-расход
воздуха кг/с
dэ-
эквивалентный диаметр трубы, м
μ1-вязкость
воздуха при данной температуре Па∙с
z-число ходов
Принятый режим течения, одинаков с
расчетным. При Re>10000 режим движения воздуха -
турбулентный.
Критерий Нуссельта:
(23)
Критерий Прандтля:
(24)
Коэффициент теплоотдачи:
Вт/(м2∙К). (25)
Определим скорость движения греющего
пара в межтрубном пространстве:
, (26)
где
м2.
м/с.
м (27)
Критерий Рейнольдса:
- переходная область.
Для достижения турбулентного режима
движения греющего пара в межтрубном пространстве теплообменника необходимо
увеличить скорость движения греющего пара, для чего нужно установить
перегородки [16].
Определим скорость, при которой
наступит турбулизация потока:
м/с
Число перегородок:
m=z-1
Здесь z-число ходов
в межтрубном пространстве:
, (28)
где хпоп - степень
заполнения сечения трубками (обычно в теплообменных аппаратах хпоп=0,75÷0,8)
Тогда m=2-1=1
перегородки.
Толщина перегородки в зависимости от
диаметра аппарата: S=12 мм.
Принимаем величину критерия
Рейнольдса Re=110000
Тогда критерий Нуссельта определяем
по формуле:
где С=1,72 при наличии сегментных
перегородок.
Вт/(м2∙К).
Сумма термических сопротивлений
стенки труб из нержавеющей стали и загрязнений со стороны воздуха и греющего
пара:
м2∙К/Вт (44)
Коэффициент теплопередачи:
Вт/(м2∙К) (29)
Требуемая поверхность теплопередачи:
м2 (30)
Как видно из таблицы [11,2.3],
Теплообменник с длиной труб 2,0 м и поверхностью 40 м2 подходит с
запасом:
%
Толщина трубных решеток:
мм
.6 Расчет трубопровода
Главной задачей этого расчета является
определение диаметра трубопровода:
d =
, (31)
где V -
действительный объемный расход газов, м3/с;
ω воз - скорость
воздуха в трубопроводе (ω
воз
=
4 - 15м/с).
Находим действительный объемный
расход газов:
(32)
где ρср - средняя
плотность сушильного агента, кг/м3;
L - расход
сухого воздуха, кг/с.
d =
.
Выбираем трубопровод, выполненный из
углеродистой стали с наружным диаметром d= 760 мм,
толщиной стенок 4мм [11, с 16].
.7 Выбор мокрого пылеуловителя
Для очистки воздуха от пыли выбираем Скруббер
Вентури. Он является наиболее распространенным типом мокрого пылеуловителя,
обеспечивающим эффективную очистку газов от частиц пыли практически любого
дисперсного состава. Конструктивно скруббер Вентури представляет собой
сочетание орошаемой трубы Вентури и сепаратора. Труба Вентури имеет плавное
сужение на входе - конфузор и плавное расширение на выходе - диффузор. Пережим
сечения трубы Вентури получил название - «горловина». Такая конфигурация трубы
Вентури, выполненная с оптимальными с аэродинамической точки зрения
соотношениями размеров, положена в основу типоразмерного ряда аппаратов ГВПВ
[17].
Таблица 5.
Технические характеристики:
|
Допустимая
запыленность, г/м3
|
Предельная
температура очищаемого газа, 0С
|
Величина
предельного орошения, л/м3
|
Гидравлическое
сопротивление, кПа
|
|
30
|
400
|
0,5-2,5
|
6-12
|
Материал для изготовления трубы Вентури - сталь
марки Ст 3. По производительности V=35235
м3/ч выбираем трубу типа ГВПВ-0,060-400.
Таблица 6.
Технические характеристики трубы Вентури.
|
Размер
трубы
|
Код
ОКТ
|
Диаметр
горловины, мм
|
Производительность,
м3/ч
|
Расход
орошающей жидкости, м3/ч
|
Давление
жидкости перед форсункой, МПа (кгс/см2)
|
Габаритные
размеры
|
|
ГВПВ-0,060-400
|
36
4662 1008
|
280
|
18630-
37800
|
30-75
17-45
|
0,11-0,71
(1,1-7,1) 0,08-0,57 (0,8-5,7)
|
1630×1025×5425
|
.8 Расчет насоса
Полезная мощность, затрачиваемая на
перекачивание жидкости [14]:
, (33)
где V - объемный
расход жидкости, проходящей через аппарат параллельно поверхности осаждения, V=46,5/3600=0,012м3/с;
Н - полный напор, развиваемый
насосом м:
, (34)
где р1 - давление в
аппарате, из которого перекачивается жидкость, Па;
р2 - давление в аппарате,
в который подается жидкость, Па;
ρ - плотность перекачиваемой
жидкости, ρ
= 998кг/м3;
НГ - геометрическая
высота подъема жидкости, м;
g = 9,81 м/с2
- ускорение свободного падения;
hп - напор,
затрачиваемый на создание скорости и на преодоление трения и всех местных
сопротивлений во всасывающей и нагнетательной линиях, м.
р1-р2 = 0, так
как р1 = р2 = ратм.
Геометрическая высота подъема
жидкости:
НГ = Нцик + Нмп (35)
где Нцик - высота циклона, Нцик=4,56м
[14, с.297 ];
Нтр -высота мокрого пылеуловителя, Нмп=5,425м.
НГ =4,56+5,425=9,99м.
Суммарные потери напора во всасывающей и
нагнетательной линии:
hп
= hп.вс.
+ hп.н.,
(36)
Потери на всасывающей линии:
, (37)
где l - длина
всасывающей или нагнетательной линии, м.
Наружный диаметр, м:
.
Примем ωвс = 1,5 м/с,
тогда:
Выбираем стальную трубу наружным
диаметром 108 мм, толщиной стенки 4 мм. Внутренний диаметр трубы dвн
= 0,100 м.
Критерий Рейнольдса:
Re =
где μ - вязкость
жидкости, μ=1,069·10-3 Па·с;
Re >10000 -
режим течения жидкости турбулентный.
Относительная шероховатость трубы:
ε = е/dэ,
где е - абсолютная шероховатость трубы, е= 0,2мм
[10,табл.XII];
ε = 0,2/108=0,0019.
Коэффициент трения для гидравлически шероховатых
стальных труб рассчитываем по формуле:
, (38)
λ=0,025.
Коэффициенты местных сопротивлений:
. Для всасывающей линии:
вс =
1+
2,
где
1 - вход в
трубу:
1 = 0,5 [11,
с 15]- с острыми краями;
2 - вентиль
нормальный:
2 = 4,25 [11,
с 15];
вс = 0,5+4,25
= 4,75.
. Для нагнетательной линии:
н. = 2
1 +
2,
где
2 - выход из
трубы:
1 = 1 [11, с
15];
1 - вентиль
нормальный:
2 = 4,25 [11,
с 15];
н. = 2∙4,25+1
= 9,5.
Потерянный напор во всасывающей
линии:
Потерянный напор в нагнетательной
линии:
Общие потери напора: hп = 0,67+1,23
= 1,90 м.
Полный напор: H = 1,90+9,99
= 11,89 м.
Такой напор при заданной
производительности обеспечивается одноступенчатыми центробежными насосами.
Учитывая широкое распространение этих насосов в промышленности ввиду достаточно
высокого К.П.Д., компактности и удобства комбинирования с электродвигателями.
Полезная мощность насоса:
Мощность на валу двигателя:
, (39)
где ηпер и ηн. -
коэффициенты полезного действия соответственно передачи и насоса от
электродвигателя к насосу. Для центробежных насосов средней производительности
примем ηпер = 1 и ηн. =0,6.
По [11, с. 39] выбираем центробежный
насос марки Х90/19.
Таблица 7.
Технические характеристики
центробежного насоса марки Х90/19.
|
Марка
|
Q, м3/с
|
Н,
м ст. жидкости
|
n, с-1
|
ηм
|
Электродвигатель
|
|
|
|
|
|
Тип
|
Nм,
кВа
|
ηдв
|
|
Х90/19
|
2,5∙10-2
|
13
|
48,3
|
0,7
|
АО2-52-2
|
10
|
0,88
|
Второй насос выбираем с такими же техническими
характеристиками
.9 Расчет отстойника
Отстойники применяют в промышленности для
сгущения суспензий или классификации по фракциям частиц твердой фазы суспензии.
В промышленности широко применяют отстойники
непрерывного действия с гребковой мешалкой. Они представляют собой
цилиндрический резервуар с коническим днищем. В резервуаре установлена мешалка,
снабженная гребками, которые непрерывно перемещают осадок к центральному
разгрузочному отверстию и одновременно слегка взбалтывают осадок, способствуя
его обезвоживанию. Частота вращения мешалки незначительна (0,00025-0,0083с-1),
поэтому процесс осаждения не нарушается. Суспензия непрерывно поступает по трубе
в середине резервуара. Осветленная жидкость переливается в кольцевой желоб и
удаляется через штуцер. Осадок удаляется через штуцер в коническом днище с
помощью диафрагмового насоса. Вал мешалки приводится во вращение от
электродвигателя через редуктор. Отстойники с гребковой мешалкой обеспечивают
однородность осадка, позволяют его обезводить до концентрации твердой фазы
35-55%.
Осаждение проводим при температуре 200С.
Определим значение критерия Архимеда:
, (40)
где d - диаметр
шарообразной частицы, м;
ρ - плотность частицы, ρ=927 кг/м3; ρc - плотность
среды при t=200С,
ρc =1000кг/м3;
μж -
динамический коэффициент вязкости среды, μж=1,069·10-3
Па∙с.
< 617
< 83000,
значит
(41)
Скорость осаждения определяем по
формуле:
, (42)
Площадь осаждения, м2:
, (43)
где V - объемный
расход газа (жидкости), проходящего через аппарат параллельно поверхности
осаждения, V=46,5 м3/ч;
ωос - средняя
расчетная скорость осаждения частиц, м/с.
Таблица 8.
Основные размеры отстойника
непрерывного действия с гребковой мешалкой [11, c 24].
|
Диаметр,
м
|
Высота,
м
|
Поверхность,
м2
|
|
1,8
|
1,8
|
2,54
|
. Выбор точек контроля параметров
Целью выбора приборов и средств автоматизации,
осуществляющих сложные функции, является получение готового продукта указанной
влажности при данной производительности. Основными регулируемыми параметрами
являются: влажность готового продукта, температура сушильного агента на входе в
сушилку и расход влажного исходного материала. Влажность готового продукта
регулируется изменением расхода сушильного агента. Для стабилизации температуры
сушильного агента (воздуха) при помощи регулятора температуры изменяется подача
пара в калорифер.
Все приборы автоматизации, которые контролируют
основные параметры процесса сушки, нанесены на технологическую схему (рис.15.).
1.ТЕ
Первичный измерительный преобразователь
(чувствительный элемент) для измерения температуры, установленный по месту
отбора сигнала (термометр термоэлектрический (термопар));
2.РЕ
Датчик для измерения давления насыщенного пара,
подающегося в калорифер;
.FE
Датчик для определения расхода насыщенного пара,
поступающего в калорифер;
.LE
Датчик уровня (уровнемер), показывающий уровень
высушенного материала в бункере готового продукта;
.QE
Датчик, определяющий величину, характеризующую
качество готового продукта, выходящего из барабана;
.PIR
Вторичный и регистрирующий прибор давления;
.ТIR
Вторичный и регистрирующий прибор температуры;
.FIR
Вторичный и регистрирующий прибор расхода;
.QIR
Вторичный и регистрирующий прибор качества;
.LIR
Вторичный и регистрирующий прибор уровня.
. Выводы
В ходе курсового проекта по заданным условиям
рассчитали процесс конвективной сушки карбоната калия (поташа) в барабанной,
вращающейся сушилке производительностью 4,7 кг/с при действии сушильного
агента, которым является греющий пар.
· Провели введение в процесс сушки,
аналитический обзор, сравнительные характеристики устройств сушек разного вида
и технико-экономическое обоснование выбора конвективной барабанной сушилки
непрерывного действия, дали классификацию сушилок, рассмотрели
физико-химические свойства веществ.
· Произвели расчет материального и
теплового балансов процесса сушки с помощью диаграммы Рамзина, расчет аппарата
на прогиб и прочность, калорифера и другого дополнительного оборудования.
· По расчетам нашли тип барабанной
сушилки - № 7119 с характеристиками: диаметр dвн=1,8
м, длина l=12 м, объем
сушильного пространства V=30,5
м3, частота вращения барабана n=6
об/мин, общая масса m=24,7 т.
· Сделали обзор литературы. К
пояснительной записке прилагаются 3 чертежа: технологическая схема сушильной
установки, чертеж общего вида (корпус барабанной сушилки), теплообменник
горизонтальный (чертеж общего вида).
Данный вид сушильной установки широко
используется при тепловой обработке различных взрыво- и пожароопасных сыпучих
веществ (шлака, известняка, штыба, песка, глины, опилок, щепы, стружки, зерна,
шелухи, круп, измельченной соломы), а также текучих продуктов в строительной,
химической, цементной, металлургической, и других отраслях промышленности.
. Литература
1. Ветошкин
А. Г. Процессы инженерной защиты окружающей среды (теоретические основы): Учеб.
пособие. - Пенза: Изд-во Пенз. гос. ун-та. 2004. - 325 с.
2. Стрижаков
Д.С. Газовые и тепловоздушные сушильные комплексы. 2003 г.
Научно-производственная фирма ООО "Уралдрев-СК"
<http://www.uraldrev.ru/info.php?iid=139>, занимающаяся разработкой и
изготовлением конвективных сушильных камер и оборудования для сушки древесины. [ЭЛЕКТРОННЫЙ
РЕСУРС]
URL:
<http://www.uraldrev.ru/>.
. Красников
В. В. Конвективная сушка. - М.: Энергия, 1973. - 288 с.
. Веденеев
А.В. Разработка технологического оборудования. 2006г. [ЭЛЕКТРОННЫЙ РЕСУРС] URL:
<http://www.tobis.ru/>.
. Лыков
М. В., Леончик Б. И. Распылительные сушилки. - М.: Машиностроение, 1966. - 331
с.
6. Лыков
М. В. Сушка в химической промышленности, -
М.: Химия, 1970.
7. Сажин Б. С. Основы техники сушки. - М.: Химия,
1984.
. "Справочник
химика" т.3, Л.-М.: Химия, 1965 стр. 299, 301
. Лебедев
П. Д. Расчет и проектирование сушильных установок М.:Госэнергоиздат,1963. - 319
с.
10. Павлов К. Ф., Романков П.Г. Примеры и задачи по
курсу процессов и аппаратов химической технологии.- М.: Изд. «Альянс»,
2005.-576 с.
. Основные процессы и аппараты химической
технологии: Пособие по проектированию/Под ред. Ю. И. Дытнерского. - М.:
«Альянс», 2008.-493с.
. Кувшинский
М. Н., Соболева А. П. Курсовое проектирование по предмету «Процессы и аппараты
химической технологии»: Учеб. пособие. - 2-е изд., перераб. и доп. - М.: Высш.
Школа, 1980. - 233 с.
. Сушильные
аппараты и установки. Каталог НИИХИММАШ. 3-е изд., М.: 1975.
. Иоффе
И. Л. Проектирование процессов и аппаратов химической технологии: - Л.: Химия,
1991. - 352 с.
. Канторович
З.Б. Машины химической промышленности. Т.1. Машгиз, - 1957. - 568с.
. Баренбойм
А. М. Тепловые расчеты сушилок и печей: учеб. пособие для вузов - М.:
издательство лит-ры по строительству, 1964. - 496 с.
. Домашнев
А.Д. «Конструирование и расчет химических аппаратов» - М.: - Машгиз, 1961г.