Інтернет-магазин 'Сквозняк'

  • Вид работы:
    Дипломная (ВКР)
  • Предмет:
    Информационное обеспечение, программирование
  • Язык:
    Украинский
    ,
    Формат файла:
    MS Word
    554,08 Кб
  • Опубликовано:
    2015-06-08
Вы можете узнать стоимость помощи в написании студенческой работы.
Помощь в написании работы, которую точно примут!

Інтернет-магазин 'Сквозняк'

Харківський патентно-комп’ютерний коледж

Відділення "Розробка програмного забезпечення"

Предметно-циклова комісія "Програмування"









Дипломний проект

Інтернет-магазин "Сквозняк"


Виконав

студент IV курсу групи П-11

спеціальності 5.05010301

"Розробка

програмного забезпечення"

напряму підготовки 050103

"Програмна інженерія"

Сухоручкін С.В.

Керівник Макарова І.В.

Харків - 2015 року

Реферат

програма інтернет магазин база

Дипломна робота складається з сторінок, рисунків, діаграм та 2 додатків.

Об’єкт дослідження - "Інтернет-магазин "Сквозняк".

Мета роботи - проаналізувати специфіку діяльності інтернет-магазину та розробити такий магазин.

У технічному завданні визначені вимоги до дипломного проекту, до надійності. Вказано призначення розробки, необхідні функціональні характеристики та вимоги до вхідних та вихідних даних. Визначені необхідні умови експлуатації, параметри технічних засобів. Описані етапи розробки програмноro продукту, порядок контролю та приймання.

У першому розділі пояснювальної записки проаналізовано існуючі технології розробки систем моніторингу і управління та різноманітність мов програмування. Також було обгрунтовано вибір технології та мов програмування для розробки.

У другому розділі пояснювальної записки спроектовано структуру додатку, розроблено базу даних. Також було розроблено UML-діаграми та алгоритм виконання функцій додатку.

У третьому розділі пояснювальної записки розраховано економічну ефективність використання системи.

У четвертому розділі пояснювальної записки розглянуто питання охорони праці та техніки безпеки.

У програмі та методиці тестування наведено результати тестування програмного продукту.

У керівництві оператора представлено опис виконання програми та повідомлення оператору.

Ключові слова: Інтернет-магазин, JOOMLA 2.5, JOOMSHOPING

Abstract

consists of pages, figures, diagrams and 2 applications.object - "Online Store" Skvoznyak "".- to analyze the specifics of the online store and develop a store.TOR defined the requirements for the degree project to reliability. The specified destination development required functional characteristics and requirements for input and output data. The necessary operating conditions, parameters of technology. Described stages of prohramnoro product, order control and acceptance.first section of the explanatory note analyzes existing technologies develop monitoring and management and a variety of programming languages. It was also justified the choice of technology and programming languages for development.second section of the explanatory note designed structure developed Applications database. It was also developed UML-diagram and algorithm of the functions the application.third section of the explanatory note calculated the cost-effectiveness of the system.fourth section of the explanatory note considered health and safety.and methods of testing, the results of testing the software.manual operator is a description of the program and message to the operator.: E-commerce, JOOMLA 2.5, JOOMSHOPING

Відомість проекту

Позначення

Найменування

Кільк. стор

Примітка


Документація



ДП5.05010301.11.15.00

"Інтернет-магазин "Сквозняк"








Відомість проекту

1






ДП5.05010301.11.15.91

"Інтернет-магазин "Сквозняк"








Технічне завдання

8






ДП5.05010301.11.15.81

"Інтернет-магазин "Сквозняк"








Пояснювальна записка

58






ДП5.05010301.11.15.51

"Інтернет-магазин "Сквозняк"








Програма та методикатестування

12






ДП5.05010301.11.15.34

"Інтернет-магазин "Сквозняк"








Керівництво оператора

15











Харківський патентно-комп’ютерний коледж

Відділення "Розробка програмного забезпечення"

Предметно-циклова комісія "Програмування"










Технічне завдання

Інтернет-магазин "Сквозняк"


Виконав

Сухоручкін С.В.

Керівник

Макарова І.В.





Харків - 2015 року

Зміст

Вступ

. Підстава для розробки

. Призначення розробки

. Вимоги до програмного виробу

.1 Вимоги до функціональних характеристик

.2 Вимоги до надійності

.3 Умови екплуатації

.4 Вимоги до складу та параметрів технічних засобів

.5 Вимоги до інформаційної та програмної сумісності

.6 Спеціальні вимоги

. Стадії та етапи розробки

.1 Постановка завдання при проектуванні веб-сайту

.2 Вибір програмних засобів для розробки веб-сайта

.3 Розробка інтерфейсу

.4 Розробка бази даних

.5 Розробка адміністративної частини сайту

. Порядок контролю та приймання

Перелік посилань

Вступ

На сьогоднішній день практично кожна організація має власний веб-сайт. В умовах використання сучасних інформаційних технологій - це необхідний чинник існування, що дозволяє розширити поле рекламної діяльності і привернути тим самим додаткових клієнтів.

Створення і розробка сайтів включає:

затвердження первинного технічного завдання на розробку сайта;

визначення структурної схеми сайту - розташування розділів, контента і навігації;

веб-дизайн - створення графічних елементів макету сайту, стилів і елементів навігації;

розробка програмного коду, модулів, бази даних і інших елементів сайту необхідних в проекті;

тестування і розміщення сайту в мережі Інтернет;

Даний програмний продукт дозволить ТОВ "Сквозняк" продавати свої товари в мережі Internet.

1. Підстава для розробки

Підставою для розробки є завдання на дипломне проектування, видане Харківським патентно-комп'ютерний коледжем 6 квітня 2015 року. Найменування: "Інтернет магазин аніме товарів Сквозняк". На замовлення ТОВ "Сквозняк".

2. Призначення розробки

Програмний продукт призначений ознайомлювати користувачів з товарами ТОВ "Сквозняк" та надавати можливість зареєстрованим користувачам оформлювати та сплачувати замовлення цих товарів.

3. Вимоги до програмного виробу

.1 Вимоги до функціональних характеристик

Інтернет-магазин повинен видавати користувачеві готову веб сторінку, сформовану за запитом користувача на сервері, яка відображає необхідну інформацію та кнопки для здійснення наступних запитів.

Програмний продукт повинен виконувати наступні дії:

- при обиранні конкретної категорії, сайт повинен відображати всі наявні товари цієї категорії та їх ціни;

при обиранні конкретного товару сайт повинен надавати користувачеві розширену інформацію про цей товар;

при використанні спеціального пошуку, відображати конкретні товари, що відповідають обраним користувачем фільтрам;

можливість авторизації на сайті для повного доступу до функціоналу останнього та більш швидкого процесу замовлення послуг.

Замовлення товарів:

- короткий опис товарів з посиланням на повний опис на сторінці з відомостями;

вартість товару.

В ході розробки сайту повинна бути розроблена та підготовлена наступна документація:

код сайту;

опис функціоналу сайту;

пояснювальна записка;

керівництво оператора;

методика тестування;

3.2 Вимоги до надійності

Надійність сайту з боку сервера залежить від типу використовуваного устаткування, операційної системи, налаштування системи та завантаженості сервера. Надійність сайту з боку клієнта залежить від операційної системи, налаштування системи та типу використовуваного з’єднання в мережі. Також функція тестування сайту повинна виконувати перевірку вірності введеної інформації згідно з її форматом. Обробляти недопустиму інформацію та видавати клієнту пояснюючі повідомлення. Наприклад перевірка коректності введеної інформації в обов’язкові поля форм для замовлення послуг: ПІБ та обрана послуга.

3.3 Умови екплуатації

сайт має бути розміщений на цілодобово функціонуючому сервері з високою пропускною спроможністю каналу. Умови навколишнього середовища повинні відповідати умовам експлуатації серверів, які вказуються в інструкції з експлуатації сервера. Адміністратор WEB-сайту повинен стежити за станом баз даних і їх наповненням. Сайт має бути розрахований на користувача, не знайомити з програмування, кількість переходів по посиланнях для отримання необхідної інформації, яку необхідно сприйняти і переробити користувачеві для навігації по WEB- сайту, має бути мінімальною. Завантаження WEB- сторінок повинне відбуватися в середньому за 10-15 секунд. Естетичне оформлення WEB- сайту повинне викликати позитиву реакцію користувача. При їх недотриманні розробник сайту не несе відповідальність за коректність роботи сайту та збереження інформаційних ресурсів.

3.4 Вимоги до складу та параметрів технічних засобів

Технічні засоби для використання даного сайту як для серверної, так і для клієнтської частини повинні включати в себе IBM PC сумісний комп’ютер ОС Windows XP/Vista/7/8 і вище.

Вимоги до складу обладнання:

- комп’ютер з процесором Item Pentium - 100;

оперативна пам'ять не менше 16 Mb;

жорсткий диск об’ємом не менше 1 Gb;

наявність адаптера підключення до мережі (мережевої карти, модему і тому подібне);

встановлення ОС Windows XP/Vista/7/8 і вище;

налагоджений протокол TCP/IP.

3.5 Вимоги до інформаційної та програмної сумісності

Всі дані сайту повинні зберігатися в структурованому вигляді під управлінням реляційної СУБД. Винятки становлять файли даних, призначені для перегляду та скачування. Такі файли зберігаються у файловій системі, а в базі даних розміщуються посилання на них.

Для реалізації статичних сторінок і шаблонів повинні використовуватися мови HTML 4.0 і CSS. Вихідний код повинен розроблятися відповідно до стандартів W3C (HTML 4.0).

Для реалізації інтерактивних елементів клієнтської частини повинна використовуватися мова JavaScript. Для реалізації динамічних сторінок повинна використовуватися мова PHP.

Всі посилання на сайті повинні бути відносними (за винятком зовнішніх).

Усі рисунки і фото об'ємом більше 1 kb (крім елементів дизайну сторінки) повинні бути виконані з заміщуючим текстом. Всі рисунки повинні бути в форматі gif, png або jpg.

Для функціонування серверної частини сайту необхідне наступне програмне забезпечення:

- операційна система з підтримкою графічного інтерфейсу Windows, Linux або MAC;

веб-сервер - Apache версії не нижче 2.2.22;

СУБД - MySQL версії не нижче 3.5.1.

Для функціонування клієнтської частини сайту необхідне наступне програмне забезпечення:

- MS IE 5.0 і вище;

Opera 6.0 і вище;

Mozilla Firefox 1.0;

Mozilla 1.7;

Yandex Browser 14.12.2125.10034 і вище;

Internex Explorer 7.0 і вище.

Сайт повинен бути доступний для повнофункціонального перегляду за допомогою вище перелічених браузерів.

.6 Спеціальні вимоги

За замовлення ТОВ "Сквозняк" на сайті, у кожного товару, повинно бути декілька забражень самого товару. Тобто повинний бути реалізований перегляд усі зображень вибраного товару.

4. Стадії та етапи розробки

.1 Постановка завдання при проектуванні веб-сайту

Перед автором було поставлено перше завдання: розробити структурну схему проекту веб - сайту для використання в середовищі Internet. На думку керівника диплому, веб-сайт, що розробляється, повинен володіти наступними особливостями:

гнучкістю, зручною для адміністраторів системою управління структурою;

веб-сайт повинен підтримувати використання графічних вставок, анімації, які повинні підсилювати емоційно-ціннісний компонент змісту, формувати мотивацію;

Проте головним завданням проектування було створення системи управління вмістом, яка б дозволяла вносити зміни веб - сайта для людей, які не мають навичок в розробці веб-сайтів.

.2 Вибір програмних засобів для розробки веб-сайта

Враховуючи поставлені вище завдання, автор вирішив, що найбільш оптимальним засобом для розробки такого роду електронної комерції - HTML+система управління вмістом Joomla. - це Система управління вмістом (CMS), що створена тією ж самою командою, яка отримала безліч нагород і принесла сьогоднішню популярність системі Mambo CMS [4].

Назва Joomla є фонетичною транскрипцією слова "Jumla" з мови суахілі, що означає "всі разом" або "єдине ціле". Воно було вибране, оскільки всі команди мамберів стали одностайні в бажанні захистити інтереси творців і співтовариства, яке і є дійсною причиною успіху проекту.

Ця назва була вибрана серед тисяч запропонованих співтовариством, і на додаток пройшло серйозну перевірку професіоналами брендинга і маркетингу, які також вирішили, що Joomla - це кращий вибір.

Головна відмінність Joomla від інших систем - це прагнення розробників зберегти управління настільки простим, наскільки це можливо, в той же час забезпечуючи максимальну функціональність. У результаті, не маючи спеціальної освіти, можна повністю контролювати свої сайти, замість того щоб платити надмірно великі суми грошей за закрите, таке, що є чиєюсь власністю, програмне забезпечення.

Назва "Joomla" фонетично ідентично слову "Jumla", яке в перекладі з суахілі означає "всі разом" або "в цілому", що відображає підхід розробників і співтовариства до розвитку системи.

Система управления содержанием Joomla є відгалуженням широко відомої CMS Mambo. Команда незалежних розробників відокремилася від проекту Mambo унаслідок незгоди в економічній політиці. І 16 вересня 2005 року в світ вийшла перша версія Joomla, що є по суті перейменованою Mambo 4.5.2.3 і що включає виправлення знайдених на той момент помилок і уязвимостей.Joomla включає різні інструменти для виготовлення веб-сайту. Важливою особливістю системи є мінімальний набір інструментів при початковій установці, який збагачується в міру необхідності. Це знижує те, що захаращується адміністративної панелі непотрібними елементами, а також знижує навантаження на сервер і економить місце на хостингу.- написана на мові PHP і така, що використовує як сховище змісту базу даних MySQL. Joomla є, захищена ліцензією GPL. Одній з головних особливостей Joomla є відносна простота управління при практично безмежних можливостях і гнучкості при виготовленні сайтів. [2]

Назва "Joomla" фонетично ідентично слову "Jumla", яке в перекладі з суахілі означає "всі разом" або "в цілому", що відображає підхід розробників і співтовариства до розвитку системи.

Система управління вмістом Joomla є відгалуженням широко відомої CMS Mambo. Команда незалежних розробників відокремилася від проекту Mambo внаслідок незгоди в економічній політиці. І 16 вересня 2005 року в світ вийшла перша версія Joomla, що є по суті перейменованою Mambo 4.5.2.3 і що включає виправлення знайдених на той момент помилок і уязвимостей.Joomla включає різні інструменти для виготовлення веб-сайту. Важливою особливістю системи є мінімальний набір інструментів при початковій установці, який збагачується в міру необхідності. Це знижує те, що захаращується адміністративна панель непотрібними елементами, а також знижує навантаження на сервер і економить місце на хостингу.

.3 Розробка інтерфейсу

Титульна сторінка (головна) будь-якого сайту повинна максимально інформативно і в стислому об'ємі відображати необхідну користувачеві інформацію про сайт. На головній сторінці необхідно помістити логотип веб-сайту, основне меню сайту (для навігації по його структурі), форму аутентифікації (входу зареєстрованих користувачів), реєстраційне посилання (реєстрація нових клієнтів).

.4 Розробка бази даних

Оскільки сайт написаний за допомогою системи управління вмістом Joomla, база даних якої представлена у вигляді MYSQL, база даних сайта підтримуватиме ту ж структуру (Рис.1), вносячи до неї свої зміни.

.5 Розробка адміністративної частини сайту

Адміністративна частина повинна включати: інформацію про нових користувачів, розділ настройок сайту, можливість адміністрування магазину, можливість виведення статистики по магазину, управління обліковими записами користувачів і інші можливості.

Адміністративна частина сайту представлена у вигляді системи управління вмістом.

Система управління вмістом (англ. Content management system, CMS) - комп'ютерна програма, використовувана для управління вмістом чого-небудь (звичайний цей вміст розглядається як неструктуровані дані наочного завдання в протилежність структурованим даним, СУБД, що зазвичай знаходяться під управлінням). Зазвичай такі системи використовуються для зберігання і публікації великої кількості документів, зображень, музики або відео.

Окремим випадком такого роду систем є системи управління сайтами. Подібні CMS дозволяє управляти текстовим і графічним наповненням веб-сайту, надаючи користувачеві зручні інструменти зберігання і публікації інформації.

Зараз існує безліч готових систем управління вмістом сайту, у тому числі і безкоштовних. Їх можна розділити на три типи, за способом роботи:

Генерація сторінок за запитом. Системи такого типу працюють на основі зв'язки "Модуль редагування > База даних > Модуль уявлення". Модуль уявлення генерує сторінку із змістом при запиті на нього, на основі інформації з бази даних. Інформація в базі даних змінюється за допомогою модуля редагування. Сторінки наново створюються сервером при кожному запиті, а це створює навантаження на системні ресурси. Навантаження може бути багато разів понижена при використанні засобів кешування, які є в сучасних веб-серверах.

Генерація сторінок при редагуванні. Системи цього типу програми для редагування сторінок, які при внесенні змін до змісту сайту створюють набір статичних сторінок. При такому способі жертвуется інтерактивність між відвідувачем і вмістом сайту.

Змішаний тип. Як зрозуміло з назви, поєднує в собі переваги перших два. Може бути реалізований шляхом кешування - модуль уявлення генерує сторінку один раз, надалі вона в рази швидше підвантажується з кеша. Кеш може оновлюватися як автоматично, по закінченню деякого терміну часу або при внесенні змін до певних розділів сайту, так і вручну по команді адміністратора.

5. Порядок контролю та приймання

Випробування представленого програмного продукту і контроль якості його роботи.

Під час випробувань перевірити працездатність програми по наступних позиціях:

завантаження головної сторінку сайту;

зробити замовлення товару;

отримати інформацію про стан замовлення.

Перелік посилань

1. Коротяєв Б.І., Гришин Е.О., Устинко О.А. Педагогіка вищої школи: Навч. посіб. - К.: НМК ВО, 1990. - 176 с.

. ГОСТ 7.1-84. Библиографическое описание документа. Общие требования и правила составления.

. Агафонова Н.Н. Гражданское право: учеб. пособие / Н.Н. Агафонова, Т.В. Богачева, Л.И. Глушкова; под общ. ред. А.Г. Калпина; 2-е изд., перераб. и доп. - Х.: Фактор, 2000. - 542 с.

. Елементи інформатики: довідник / В.С. Височанський, А.І. Кардаш, В.С. Костєв, В.В. Черняхівський. - К.: Наук. думка, 2003. - 192 с.

. Буряк В.К. Формування у школярів потреби в самоосвіті // Рідна школа. - 2000. - №9. - с. 55-57.

. Форум: Електрон. інформ. бюл. - 2005. №18. - Режим доступу::www.mcforum.vinnitsa.com/mail-list/118.html.

Харківський патентно-комп’ютерний коледж

Відділення "Розробка програмного забезпечення"

Предметно-циклова комісія "Програмування"










Пояснювальна записка

Інтернет-магазин "Сквозняк"


Виконав

Сухоручкін С.В.

Керівник

Макарова І.В.





Харків - 2015 року

Зміст

Вступ

. Теоретичний розділ

.1 Аналіз предметної області

.2 Аналіз технологій та мов програмування

.3 Обгрунтування вибору технологій та мов програмування

. Проектний розділ

.1 Розробка структури додатку

.2 Розробка баз даних

.3 Алгоритм функціонування сайту

. Бізнес-план

.1 Резюме

.2 Оцінка ринку збуту

.3 Конкуренція

.4 Стратегія маркетингу

.5 Фінансовий план

. Охорона праці

.1 Загальні питання охорони праці

.2 Гігієна праці та виробнича санітарія

.3 Організація робочого простору

.4 Електробезпека в приміщеннях з ЕОМ

.5 Пожежна безпека

Висновки

Перелік посилань

Додатки

Вступ

З появою веб-технологій комп'ютер починають використовувати абсолютно нові верстви населення Землі. Можна виділити дві найбільш характерні групи, що знаходяться на різних соціальних полюсах, які були стрімко залучені в нову технологію, можливо, навіть крім їх власного бажання. З одного боку, це були представники елітарних груп суспільства - керівники крупних організацій, президенти банків, топ-менеджери, впливові державні чиновники і так далі. З іншого боку, це були представники найширших верств населення - домогосподарки, пенсіонери, діти.

При появі технології веб, комп'ютери обернулися лицем до цих двох абсолютно протилежним категорій потенційних користувачів. Еліту об'єднувала одна межа - через високу відповідальність і практично стовідсотковій зайнятості "великі люди" ніколи не користувалися комп'ютером; типовою була ситуація, коли з комп'ютером працював секретар. У якийсь момент часу вони зрозуміли, що комп'ютер їм може бути корисний, що вони можуть результативно використовувати той невеликий час, який можна виділити на роботу за комп'ютером. Вони раптом зрозуміли, що комп'ютер - це не просто модна і дорога іграшка, але інструмент отримання актуальної інформації для бізнесу. При цьому їм не потрібно було витрачати багато часу, щоб освоїти технологію роботи з комп'ютером (в порівнянні з тим, як це було раніше).

Спектр соціальних груп, що підключаються до мережі Інтернет і що шукають інформацію в WWW, весь час розширюється за рахунок користувачів, що не відносяться до категорії фахівців в області інформаційних технологій. Це лікарі, будівельники, історики, юристи, фінансисти, спортсмени, мандрівники, священнослужителі, артисти, письменники, художники. Список можна продовжувати нескінченно. Будь-який, хто відчув корисність і незамінність мережі для своєї професійної діяльності або захоплень, приєднується до величезної армії споживачів інформації в "Всесвітній Павутині".

Веб-технологія повністю перевернула наші уявлення про роботу з інформацією, та і з комп'ютером взагалі. Виявилось, що традиційні параметри розвитку обчислювальної техніки - продуктивність, пропускна спроможність, ємкість пристроїв, що запам'ятовують, не враховували головного "вузького місця" системи - інтерфейсу з людиною. Застарілий механізм взаємодії людини з інформаційною системою стримував впровадження нових технологій і зменшував вигоду від їх застосування. І лише коли інтерфейс між людиною і комп'ютером був спрощений до природності сприйняття звичайною людиною, послідував безпрецедентний вибух інтересу до можливостей обчислювальної техніки.

З розвитком технологій гіпертекстової розмітки в Інтернеті почали з'являтися все більше сайтів, тематика яких була абсолютно різною - від сайтів крупних компаній, що оповідають про успіхи компанії і її провали, до сайтів маленьких фірм, що пропонують відвідати їх офіси в межах одного міста.

Розвиток Інтернет-технологій послужив поштовхом до появи нової вітки в Інтернеті - Інтернет-форумів. Почали з'являтися сайти, і навіть цілі портали, на яких люди зі всіх куточків планети можуть спілкуватися, отримувати відповіді на будь-які питання і, навіть, укладати ділові операції.

Також в наш час стає поширеним купівля будь-яких товарів в інтернет-магазинах. Шопінг - заняття корисне, іноді захоплююче, що приносить як позитивні емоції, так і розчарування. Уходять у минуле ті часи, коли для того, щоб стати власником бажаного предмету, потрібно було на своїх "двух" здійснювати тривалі подорожі по офлайновим торговим місцям. Тепер в наше життя активно входять інтернет-магазини, ми все частіше робимо покупки, залишаючись на робочому місці, шляхом кількох натисків миші.

1. Теоретичний розділ

.1 Аналіз предметної області

магазин (електронний, віртуальний, e-shop) являє собою спеціалізований Web-сайт, який належить фірмі-товаровиробнику, торговій фірмі тощо та призначений для просування споживчих товарів на ринку, збільшення обсягів продажу, залучення нових покупців.

Інше визначення Internet-магазину характеризує його як реалізоване в мережі Internet представництво шляхом створення Web-сервера для продажу товарів та пов'язаних з ними послуг користувачам Internet. Кількість представлених на сервері видів товарів може коливатися від кількох одиниць до кількох тисяч.

Характерними рисами інтернет-магазинів є те, що вони можуть пропонувати значно більшу кількість товарів та послуг, ніж реальні магазини і забезпечувати споживачів значно більшим обсягом інформації, необхідної для прийняття рішення про покупку. Також завдяки використанню Internet-технологій є можливою персоналізація підходу до споживачів з врахуванням попередніх відвідувань магазину та зроблених в ньому покупок та використання інтернет-магазину як ефективного способу маркетингових досліджень (анкетування, конференції покупців і т.п.).магазини потребують значно менших витрат на утримання та організацію роботи, оскільки у ньому значно обмеженіша матеріально-технічна база (будівлі, споруди, приміщення) та кількість обслуговуючого персоналу.

Проте Internet-магазини мають і недоліки. Основними є невизначеність реального існування товару та відповідність його основним параметрам якості, шахрайства при проведенні грошових трансакцій, проблеми з доставкою.

Основними вимогами, які ставляться користувачами до Internet-магазину є:

- зрозумілий інтерфейс та зручна система навігації по магазину;

зручна система посилань, що дозволяє оптимальним способом одержати необхідну користувачеві інформацію;

мінімальна кількість дій користувача для здійснення покупки.

.2 Аналіз технології та мов програмування

програмування є розділом, який орієнтований на розробку web-застосувань. Це програми, що забезпечують функціонування динамічних сайтів Всесвітньої павутини.

Мови web-програмування в основному призначені для роботи з web-технологіями. Мови web-програмування можна умовно розділити на дві пересічні групи: клієнтські та серверні.

Програми на клієнтських мовах обробляються на стороні користувача, як правило, їх виконує браузер. Це і створює головну проблему клієнтських мов - результат виконання програми (скрипта) залежить від браузера користувача. Також в різних браузерах або в різних версіях браузеру один і той же скрипт виконується по-різному. З іншого боку, якщо програміст покладає надії на серверні програми, то він може спростити їх роботу і понизити навантаження на сервер за рахунок програм, що виконуються на стороні клієнта, оскільки вони не завжди вимагають перезавантаження сторінки. Прикладом клієнтської мови є мова Java Script.

Незважаючи на схожість назв, Java Script та мова програмування Java мають дуже мало спільного. Права на назву Java належать компанії Sun Microsystems.Script розроблений у компанії Netscape. На сьогоднішній день підтримується більшістю браузерів. Текст програми включається безпосередньо в HTML - документ і інтерпретується самим браузером.Script є прототипно-орієнтованою сценарною мовою програмування. ECMA Scripts є діалектом мови.

Нині Java Script використовується в основному для створення вбудованих у web- сторінки сценаріїв, що дозволяють повністю управляти як самими web- сторінками, так і web-браузеррами, в яких ці web-сторінки відкриті. Таким чином, мова Java Script у більшості випадків використовується для створення інтерактивних web-сторінок і web-застосувань.

Основні архітектурні риси: динамічна типізація, слабка типізація, автоматичне управління пам’яттю, функції як об’єкти першого класу.

Незважаючи на схожий з С синтаксис, Java Script в порівнянні з мовою С має корінні відмінності:

- об’єкти, з можливістю інтроспективної;

функції як об’єкти першого класу;

автоматичне приведення типів;

автоматичне складання сміття;

анонімні функції.

У мові відсутні такі корисні речі, як:

- модульна система: Java Script не надає можливості управління залежностями і ізоляцією зон видимості;

стандартна бібліотека: зокрема, відсутній інтерфейс програмування застосувань по роботі з файловою системою, управлінню потоками введення-виведення, базових типів для бінарних даних;

стандартні інтерфейси до web-серверів і баз даних;

система правління пакетами, яка б відстежувала залежності і автоматично встановлювала їх.

Серверні мови програмування відповідно працюють на стороні сервер У взаємодії з базами даних вони підтримують зв'язок між користувачем і сервером. Отримуючи запит з адресою web-документу від браузеру, серверні програми зв’язуються з базою даних. БД віддає інформацію про web-сторінку скриптам сервера , і ті обробивши її, посилають для інтерпретації браузеру клієнта, який і виводить результат спільної роботи на монітор.

Гідністю серверних мов є їх безмежні можливості і те, що їх робота не схильна до дії користувачів і прихована від поглядів. Недолік - залежність від програмного забезпечення хостера. Прикладом серверної мови є мова РНР.

РНР - скриптована мова програмування загального призначення, Нині підтримується переважною більшістю хостинг-провайдерів і є одним з лідерів серед мов програмування, динамічних web-сайтів, що застосовуються для створення.

Існують три основні області, де використовується PHP.

- створення скриптів для виконання на стороні сервера;

створення скриптів для виконання в командному рядку;

створення застосувань GUI, що виконується на стороні клієнта.

створення кросс-платфомених застосувань. PHP - GTK є розширенням PHP і не поставляється разом з дистрибутивом PHP.

Для реалізації управління базами цих сайтів використовуються СУБД MySQL.є вільною реляційною системою управління базами даних.є рішенням для малих і середніх застосувань.

Входить до складу серверів WAMP, AppServ, LAMP і в портативні складки серверів Денвер, XAMPP. Зазвичай MySQL використовується як сервер, до якого звертається локальні або видалені клієнти, проте в дистрибутив входить бібліотека внутрішньго сервера, що дозволяє включати MySQL в автономні програми.

Гнучкість СУБД MySQL забезпечуються підтримкою великої кількості типів таблиць.

Користувачі можуть вибрати як таблиці типу MyISAM, що підтримують повнотекстовий пошук, так і таблиці InnoDB, підтримувальні транзакції на рівні окремих записів. Більше того, СУБД MySQL поставляється із спеціальним типом таблиць EXAMPLE, що демонструє принципи створення нових типів таблиць. Завдяки відкритій архітектурі і GPL - ліцензуванню, в СУБД MySQL постійно з’являється нові типи таблиць.

.3 Обгрунтування вибору технологій та мов програмування

При написанні дипломного проекту були використані мови програмування на технології AJAX, Microsoft SQL Server, PHP, Java Script та HTML, а також каскадні таблиці стилів CSS та система керування реляційними базами даних MySQL.(Hyper Text Markup Language - мова розмітки гіпертекстових документів), що надає широкі можливості по форматуванню і структурній розмітці документів, організації зв'язків між різними документами, засоби включення графічної і мультимедійної інформації.документи є видимими за допомогою спеціальної програми - браузера. Найбільшого поширення в даний час набули браузеры Mozilla Firefox і Internet Explorer компанії Microsoft (MSIE). Реалізації Mozilla Firefox доступні практично для всіх сучасних програмних і апаратних платформ, реалізації MSIE доступні для всіх Windows платформ, Macintosh і деяких комерційних Unix-систем.документ складається з тексту, що є змістом документа, і тегів, що визначають його структуру і зовнішній вигляд при відображенні браузером. Простий html-документ виглядає таким чином:

<html>

<head>

<title>Название</title>

</head>

<body>

<p>Тело документа

</body>

</html>

Як видно з прикладу, тег є ключовим словом, поміщеним в кутові дужки. Розрізняють одинарні теги, як, наприклад, <p>, і парні, як <body> </body>, в останньому випадку дія тега розповсюджується тільки на текст між його відкриваючою і закриваючою дужкою. Теги також можуть мати параметри - наприклад, при описі сторінки можна задати колір фону, колір шрифту і т.д.: <Body bgcolor="white" text="black">.

Текст всього документа полягає в теги <html>, сам документ розбивається на дві частини - заголовок і тіло. Заголовок описується тегами <head>, в яких можуть бути включені назва документа (за допомогою тегов <title>) і інші параметри, що використовуються браузером при відображенні документа. Тіло документа поміщене в теги <body> і містить власне інформацію, яку бачить користувач. За відсутності тегів форматування весь текст виводиться у вікно браузера суцільним потоком, переклади рядків, пропуски і табуляції розглядаються як пробільні символи, декілька пробільних символів, що йдуть підряд, замінюються на один. Для форматування використовуються наступні основні теги:

<p> - початок нового абзацу, може мати параметр, що визначає вирівнювання:

<p align=right>;

<br> - переклад рядка в межах поточного абзацу;

<u></u> - виділення тексту підкресленням

Посилання на інший документ встановлюється за допомогою тега <а href="URL">...</a>, де URL - повна або відносна адреса документа. При цьому текст, ув'язнений в тег <a>, зазвичай виділяється підкресленням і кольором, і після натискання мишею по цьому посиланню браузер відкриває документ, адреса якого вказана в параметрі href. Графічні зображення вставляються в документ за допомогою тега <img src="URL">.(Cascading Style Sheets) - каскадні таблиці стилів, які застосовуються для візуального форматування документу в мовах розмітки. CSS використовується для того, щоб визначити кольори, шрифти, верстку та інші аспекти вигляду сторінки. CSS значно зменшує об’єм коду, дозволяє виносити стилі в окремий файл, який можна повторно використовувати.Script (написання сценаріїв для Web-сторінок) - мова опису сценаріїв, підтримується більшістю браузерів. Код Java Script інтерпретується самим браузером і може бути вбудований безпосередньо в текст сторінки HTML.(генерація HTML-сторінок на сервері) - скрипкова мова програмування, створена для генерації HTML-сторінок на стороні web-сервера.

У даному проекті PHP є базовою мовою програмування. Вона була вибрана з-поміж інших аналогічних мов програмування через свою простоту в освоєнні, популярність серед програмістів, наявність вихідного коду та безкоштовність.

Відмінність PHP від Java Script полягає в тому, що PHP-скрипт виконується на сервері,а клієнту передається результат роботи, тоді як Java Script-код повністю передається на клієнтську машину і тільки там виконується.

Велика різноманітність функцій PHP дають можливість уникнути написання багаторядкових призначених для користувача функцій на C або Pascal.

Наявність інтерфейсів до багатьох баз даних :

- в PHP вбудовані бібліотеки для роботи з MySQL, PostgreSQL, mySQL, Oracle, dbm, Hyperware, Informix, InterBase, Sybase;

через стандарт відкритого інтерфейсу зв'язку з базами даних (Open Database Connectivity Standard - ODBC) можна підключатися до всіх баз даних, до яких існує драйвер.

Ефективність є виключно важливим чинником при програмуванні для розрахованих на багато користувачів середовищ, до яких належить і web. Важливою перевагою PHP є те, що ця мова належить до інтерпретуючих. Це дозволяє обробляти сценарії з достатньо високою швидкістю. За деякими оцінками, більшість PHP-сценаріїв (особливо не дуже великих розмірів) обробляються швидше за аналогічні їм програми, написані на Perl. Проте, щоб не робили розробники PHP, виконувані файли, що відкомпілювалися, працюватимуть значно швидше - в десятки, а іноді і в сотні разів. Але продуктивність PHP цілком достатня для створення цілком серйозних web-додатків.

З точки зору системи типізації, PHP є мовою програмування з динамічною типізацією. Немає необхідності явного визначення типу змінних, хоча така можливість існує. В разі звернення до змінної, інтерпретатор PHP трактує її тип відповідно до контексту. За необхідності можливе приведення змінної до певного типу за допомогою відповідних конструкцій мови. Це може знадобитись, якщо зважити, що значення змінної можуть трактуватись по-різному в залежності від її типу. Також можливе визначення типу відповідної змінної на певному етапі виконання сценарію. Імена змінних чутливі до регістру символів.

До базових типів належать булеві дані, цілі та дійсні числа із плаваючою комою, а також стрічки. Булеві дані виражають істинність значення. Цілі числа можуть бути подані у вісімковому, десятковому та шістнадцятковому вигляді. Розмір цілого числа може змінюватись залежно від платформи, як правило, розрядність становить 32 біти. PHP не підтримує беззнакові цілі числа. Дійсні числа із плаваючою комою можуть бути подані в десятковій або експоненційній формі.

Мова явно підтримує HTTP cookies відповідно до специфікацій Netscape. Це дозволяє проводити встановлення та читання невеликих сегментів даних на стороні клієнта.надає можливість організації роботи з користувачем протягом сеансів (сесій). В сесії можна зберігати різні дані, включаючи об'єкти.(система керування реляційними базами даних) - це одна з найпоширеніших СУБД (систем управління базами даних) в Інтернеті. Це досягнуто завдяки вдалому поєднанню користувацьких властивостей відкритому коду і добрій технічній підтримці. Характеризується великою швидкістю, стійкістю і простотою використання. Для некомерційного використання MySQL є безкоштовним.розглядається як основа для не надто складних проектів (кількість рядків у таблицях може досягати 50 млн), які не вимагають високого рівня збереження даних, як форуми, системи ведення статистики, електронні магазини, тощо.

Можливості серверів MySQL:

- простота у встановленні і використанні;

підтримується необмежена кількість користувачів, що одночасно працюють із БЛ;

висока швидкість виконання команд:;

наявність простої і ефективної системи безпеки;

написаний під десятки видів ОС.

Для мови PHP MySQL виступає як стандарт де-факто, і бібліотека для звернення до MySQL скомпільована в ядро PHP.

Використання PHP дозволяє додавати багато інтерактивних характеристик, як наприклад зворотний зв'язок, гостьова книга, "залишити повідомлення", лічильник, і більш розвинені характеристики сайту, як управління контентом свого сайту, просунуте управління повідомлень і адміністрування свого сайту в цілому.

Саме тому для розробки дипломного проекту було використано мови програмування та технології AKAX, Microsoft SQL Server, PHP, Java Script та HTML, CSS та MySQL.

2. Проектний розділ

.1 Розробка структури додатку

При розробці проекту було проведене детальне опрацювання його структури.

Структура web-сайту представлена у вигляді двох частин: клієнтської та адміністративної. Адміністративна частина дозволяє адміністратору додавати товари, редагувати їх, переглядати замовлення, створювати новини, видаляти коментарі [1].

Клієнтська частина доступна усім відвідувачам сайту. Вона забезпечує доступ до товарів, останніх новин, замовлення послуг. Причому доступ до коментарів для неавторизованих користувачів є обмеженим.

Структура web-сайту має бути логічною та зручною.

.2 Розробка баз даних

СУБД проявляє себе як потужний інструмент у тому випадку, коли інформація, яку необхідно організувати і якою вже необхідно маніпулювати, стає об’ємною і складною, унаслідок чого записи стають незрозумілими і важкооброблюваними уручну. Звичайно, бази даних можуть використовуватися великими корпораціями, оброблювальними мільйони транзакцій, які обробляє одна людина в особистих цілях.

СУБД часто застосовується для таких завдань, для вирішення яких зазвичай використовуються картотеки [2].

СУБД MySQL класифікується як реляційна система управління базами даних (RDBMS - relationaldatabasemanagemetsystem). Слово "реляційна" позначає популярний різновид СУБД, в яких відстежується "відповідність" записів в одній таблиці на "відповідність" записів в іншій таблиці. Потужність реляційних СУБД полягає в їх здатності вибирати відповідні дані з цих таблиць і створювати відповіді на питання, які не можна отримати лише з однієї такої таблиці.

Для спілкування з СУБД MySQL застосовується мова SQL (StucturedQueryLanguage - мова структурованих запитів). В даний час SQL э стандартом робот из базами даних, і всі основні СУБД розуміють його. SQL включає багато різних типів операторів, розроблених для взаємодії з базами даних.

Запити до бази даних можна вводити лише після підключення до сервера. Для введення запиту MySQL достатнє його надрукувати, ввести в кінці крапку з комою і натиснути клавішу <Enter>. Після введення запиту MySQL передає його серверу на виконання. Після обробки запиту сервер передає результат клієнтові MySQL. Клієнт відображує отриманий результат.відображує результат запиту і рядок, який показує, із скількох рядків складається результат і скільки часу витрачено на виконання запиту. Програма MySQL сприймає крапку з комою як закінчення запиту, тому в міру необхідності запити можуть займати декілька рядків. Вибірка існуючих даних фактично є найчастішою операцією при роботі з базами даних. У числі інших найбільш часто використовуваних операцій над таблицями баз даних є вставка нових даних, їх модифікація і видалення[3].

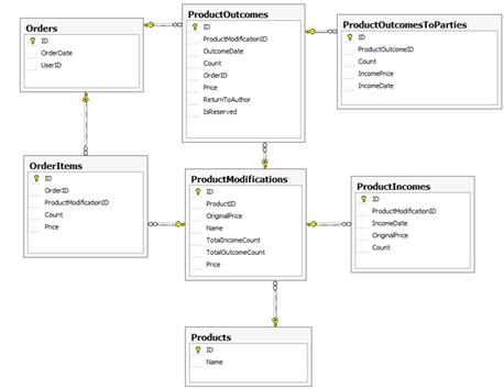
На підставі аналізу області і побудованої інфологічної моделі розроблена реляційна база даних "Интернет-магазин "Сквозняк"". Для реляційної бази даних проектування фізичної структури полягає в тому, щоб розбити всю інформацію по таблицях, а також визначити склад полів для кожної з цих таблиць і встановити зв’язки між таблицями.

У кожній таблиці присутнє унікальне ідентифікаційне поле, яке дозволяє однозначно ідентифікувати запис таблиці. Така структура виключає надмірність даних, дозволяє прискорити відбір записів по умові, виключає вірогідність конфліктів при спільній роботі декількох користувачів.

Рисунок 3.1 - Схема бази даних

.3 Алгоритм функціонування сайту

Рисунок 3.2 - Схема головної сторінки

Сайт складається з декількох сторінок. Вони пов’язані між собою посиланнями та пунктами головного меню. Головне меню на кожній сторінці та має незмінну структуру. Додаткове меню відсутнє або унікальне для кожного розділу [4].

На самому верху сторінки знаходяться Пункти меню:

- "Главная";

"Новости";

"Товары";

"Информация";

"Найти товар";

"О магазине";

"Полезности".

Зліва знаходиться меню з реєстрацією та авторизацією на сайті. Під ним знаходиться рубрикатор (перелік усіх видів товарів):

аніме фігурки (маленькі/великі);

навески (кулони/брелки/підвіски для мобільного/браслети/кільця);

плюшеві іграшки;

манга (Фабрика комиксов/XL Media/Palma Press/Comix Art/Манга разное/ Истари комикс)

комиксы;

товары по фільмам и играм;

косплей (парики /контактные линзы /костюмы /элементы косплея /Нэко-ушки);

одежда (кугуруми /футболки /шапки&кепки /шарфы /тапочки /ремни перчатки /колготки /толстовки /другое);

кошельки;

сумки (Сумки А4 /Сумки А5-почтальонки /Сумки разное);

рюкзаки.

Зправого боку знаходиться "Корзина" та "Нужная информация".

Посередині знаходиться банер рекламою нових товарів, акцій, тощо. Під ним знаходиться каталог з новми товарами, тобто він виводить останні добалені товари.


3. Бізнес-план

.1 Резюме

У дипломній роботі розроблений Інтернет-магазин з продажу аніме товарів "Сквозняк".

Цей програмний продукт не є збитковим, бо він має можливості надання необхідної користувачам інформації, що є актуальною на даний момент, також він має ергономічний дизайн та інтуїтивно зрозумілий інтерфейс, що робить роботу з Інтернет-магазином легкою та приємною.

Витрати на розробку складають 35672 грн.

Прибуток від реалізації даного програмного продукту без врахування ПДВ буде складати 53965 грн.

.2 Оцінка ринку збуту

Даний програмний продукт є індивідуальним замовленням для компанії "ТОВ Сквозняк".

Програмні продукти конкурентів менш конкурентоспроможні, бо значно поступаються у надійності та функціональності.

Прогноз обсягів продажу даного програмного продукту наведений у таблиці 3.1.

Таблиця 3.1 - Прогноз обсягів продажу

Періоди

Споживачі

Кількість

Перший рік реалізації програмного продукту

Січень

 Магазин "Сквозняк"

90

Лютий


105

Березень


115

Квітень


105

Травень


90

Червень


130

Липень


105

Серпень


90

Вересень


105

Періоди

Споживачі

Кількість

Жовтень


120

Листопад


130

Грудень


115

Всього за рік


1300

Другий рік реалізації програмного продукту

1 квартал

 Магазин "Сквозняк"

300

2 квартал


320

3 квартал


310

4 квартал


360

Всього за рік


1300

Всього за 2 роки




.3 Конкуренція

У результаті дослідження товарного ринку було виявлено конкурента та був зроблений аналіз показників їх діяльності. За результатами проведено ранжирування фірм-конкурентів.

Вивчаючи фірми-конкуренти здійснено ранжирування нашого програмного продукту та програмних продуктів - конкурентів. Результати ранжирування наведені в таблиці 3.2.

Таблиця 3.2 - Аналіз фірм-конкурентів

Ключові фактори успіху

Результати ранжирування фірм-конкурентів за силою-слабкістю позицій на ринку


1

2

3

4

5

Швидкодія

Х4

Х2

Х1

X3

0

Ефективність

Х2

Х3

0

X1

Х4

Функціональність

Х4

Х1

X2

0

Х3

Собівартість

Х3

0

Х2

Х1

Х4

Ціна

Х2

Х4

0

Х3

Х1


Що ближче до максимального балу, тим конкурентоздатніша фірма.

Тут Х1, Х2, Х3, Х4 - фірми конкуренти;

- розробник цього програмного продукту

Х1 = 2+4+3+4+5 = 18 б.;

Х2 = 3+1+2+3+1 = 10 б.;

Х3 = 5+2+4+1+4 = 16 б.;

Х4 = 1+5+1+5+2 = 14 б.;

= 4+3+5+2+3 = 17 б.

Найбільш конкурентною для розробника цього програмного продукту є фірма-конкурент Х1, яка набрала 18 балів.

Наступним кроком в оцінці програмного продукту конкурента є аналіз технічних та економічних показників - ключових факторів успіху конкуруючих програмних продуктів. Перелік цих показників внесено у таблицю 3.3.

Таблиця 3.3 - Матриця рангів технічних та економічних параметрів

Параметри

Одиниці виміру

Значення параметру

Вага параметру aj, bj

Одиничний параметричний показник, qj

Одиничний параметричний індекс іjt, іjе



Новий виріб Pjн

Аналог виріб Pjа




Технічні параметри

Універсальність

%

75

53

0,3

1,42

0,426

Ресурсоємність

Кб

215

170

0,4

0,79

0,316

Швидкодія

сек

0,02

0,035

0,3

1,75

0,525

Всього




1


1,267

Економічні параметри

Собівартість

грн

35672

31391

0,5

0,88

0,44

Ціна

грн

46374

49592

0,5

0,94

0,47

Всього




1


0,91

Таблиця розраховується таким чином.

Відбір технічних та економічних показників, які належить оцінювати називають ключовими факторами успіху. Перелік показників заносимо у стовпчик 1 таблиці. Далі заповнюються одиниці виміру та значення параметрів на базі експертних оцінок.

Вага технічного () та економічного () параметру (формула 3.1, 3.2).

 при , (3.1)

 при , (3.2)

де  - кількість параметрів.

Одиничний параметричний показник () (формула 3.3, 3.4).

 при , (3.3)

 при , (3.4)

де  - величина j-го параметру виробу.

Одиничний параметричний індекс технічного () та економічного () параметру (формула 3.5, 3.6).

, (3.5)

. (3.6)

Зведений параметричний індекс технічного () та економічного () параметру (формула 3.7, 3.8)

, (3.7)

. (3.8)

Розрахунок інтегрального показника відносної конкурентоспроможності () нового виробу по відношенню до виробу конкурента (формула 3.9).

. (3.9)


якщо К>1 - новий програмний продукт перевищує програмний продукт - конкурента;

К<1 - поступається;

К=1 - знаходиться на одному рівні.

К > 1, отже пропонує новий програмний продукт переважає Х3 програмним продуктом конкурентів.

За розрахунками конкурентоспроможності, виявлено, що даний програмний продукт конкурентоздатний.

.4 Стратегія маркетингу

Для успішного супроводження програмного продукту на ринку та досягнення запланованого об’єму продаж необхідно ретельно спланувати рекламну компанію, котра дала б можливість усім потенційним користувачам дізнатись про існування та переваги розробленого програмного продукту. Рекламна компанія буде проводиться засобами електронної комерції, на IRC; та сайтах з новинами.

Але для початку рекламна компанія обмежиться розсилкою електронних листів потенційним покупцям. В листах буде знаходитись детальна інформація про даний програмний продукт, що досить зручно та вигідно. Також у листі вказується адреса домашнього сайту розробника, де можна буде внести свої пропозиції.

Витрати на розробку наведені у таблиці 3.5.

Таблиця 3.5 - Розрахунок трудових витрат

Найменування операції

Кількість годин

Аналіз

15

Проектування

85

Кодування

200

Налагодження

15

Тестування

10

Впровадження

10

Оформлення документації

25

Всього

355


Трудовитрати, які потребують для розробки програмного продукту складають 355 годин.

Розрахуємо час роботи на машині

+ 15 + 10 + 10 = 235 годин.

Розрахуємо немашинний час

+ 85 + 25 = 125 годин.

Розрахуємо вартість машинного часу (електроенергія)

Велектр.ен. = машинний час * потужність машини * тариф (3.10)

Велектр.ен.= 235 годин * 0,3 КВтчас * 1,68 грн. = 118,44 грн.

Розрахуємо заробітну плату розробника програмного продукту. Витрачений час на розробку програмного продукту - 360 годин, тариф за годину роботи - 35 грн., звідси

грн. * 360 год. = 12600 грн.

Додаткова заробітна плата (20-50% від основної ЗП)

грн. * 0,4 = 5040 грн.

Відрахування на соціальні потреби (38% від ФОП)

(12600 грн. + 5040 грн.) * 0,38 = 6703,2 грн.

Накладні витрати (40-100% від ФОП)

грн. * 0,5 = 8820 грн.

Розрахуємо вартість матеріалів (Таблиця 3.5 Витрати на матеріали)

Таблиця 3.6 - Витрати на матеріали

Матеріали

Кількість, шт

Ціна за одиницю, грн.

Вартість, грн

Папір

250

0,3

75

Ручка

5

2,5

12,5

Хостинг

1

550

550

Домен

1

55

55

Всього



692,5


Суму витрат на розробку програмного продукту занесемо в таблицю 3.7.

Таблиця 3.7 - Витрати на розробку програмного продукту

Статті витрат

Вартість, грн.

Матеріали

692,5

Вартість електроенергії

118,44

Основна заробітна плата

12600

Додаткова заробітна плата (20 - 50% від ФОП)

5040

Соціальні відрахування (38% від ФОП)

6703,2

Накладні витрати (40 - 100% від ФОП)

8820

Виробнича собівартість

33974,14

Невиробничі витрати (5% від виробничої собівартості)

1698,71

Повна собівартість

35672,85

Прибуток

10701,86

Ціна програмного продукту

46374,71


Розрахуємо витрати на адаптацію(накладні витрати програмного продукту, які складають 3-10% від виробничої собівартості програмного продукту)

,14 грн. * 0,05 = 1698,71 грн.

Визначимо повну собівартість розробленого програмного продукту

,14 грн. + 1698,71 грн. = 35672,85 грн.

Розрахуємо прибуток

,85 грн. * 0,3 = 10701,86 грн.

Ціна:

,85 грн. + 10701,86 грн. = 46374,71 грн.

3.5 Фінансовий план

Цей розділ узагальнює і систематизує всі матеріали попередніх розділів та представляє їх у вартісному вираженні.

З урахуванням раніш визначених витрат на розробку програмного продукту заповнюємо таблицю 3.9.

Таблиця 3.9 - Доходи та витрати

Показники

Витрати до поч. реалізації

1 рік

2 рік

Всього

Обсяг продаж (шт.)


1300

1300

2600

Доходи від реалізації (грн.)


62500

62500

125000

1. Постійні витрати





- Матеріали

692,5

-

-

692,5

- Електроенергія

118,44

-

-

118,44

- Основна зарплата

12600

-

-

12600

- Додаткова зарплата

5040

-

-

5040

- Соціальні відрахування

6703,2

-

-

6703,2

- Накладні витрати

8820

-

-

8820

- Кредит

10000

-

-

10000

- Відсоток за кредит (20%)

-

-

2000

2000

Всього постійних витрат:

43974,14

-

2000

45974,14

2.Змінні витрати





- Оновлення


1500

1500

3000


1000

1000

2000

Всього змінних витрат:


2500

2500

5000

Всього витрат:

43974,14

2500

4500

50974,14

Прибуток:

-43974,14

60000

58000

74025,86

Податок на прибуток (17%)

-

10200

9860

20060

Чистий прибуток:

-43974,14

49800

48140

53965,86


Будуємо графік беззбитковості та розраховуємо точку беззбитковості програмного продукту.

 (3.11)

де  - витрати;

 - ціна.

= 917 шт


4. Охорона праці

4.1 Загальні питання охорони праці

Одним із найважливіших завдань охорони праці є забезпечення таких умов праці, які б виключали можливість дії на працівників різних небезпечних і шкідливих виробничих факторів.

Завдяки досягненням сучасних технологій більшість так би мовити, "канцелярської роботи" в офісі здійснюється з використанням комп’ютерної техніки. Якщо згадати, що в середньому робочий день офісного працівника складає 7-8 годин (як передбачено нормами Кодексу законів про працю України) при п’яти- або шестиденному робочому тижні, можна зробити висновок, наскільки багато часу доводиться проводити віч-на-віч з комп’ютером.

При роботі на комп’ютерах, до складу яких входять відео-дисплейні термінали (ВДТ), на працівників можуть діяти наступні шкідливі та погрожуючі життю і здоров’ю виробничі фактори:

- фізичні:

1)      підвищений рівень шуму (від вентилятора системного блоку);

2)      високий рівень напруги в електричній мережі;

)        підвищений рівень статичної електрики;

)        підвищений рівень електромагнітного випромінювання;

)        підвищений рівень напруженості електричного поля;

)        пряме і відбите від екрана світло;

)        несприятливе розподілення яскравості об’єктів в полі зору.

- психофізіологічні:

1)      фізичні перевантаження статичної та динамічної дії;

нервово-психічні перевантаження (розумове перенапруження, перенапруження зорових аналізаторів, монотонність праці, емоційні перевантаження).

4.2 Гігієна праці та виробнича санітарія

При виконанні робіт на персональних комп’ютерах (ПК) оператори дотримуються вимог загальної інструкції з охорони праці.

Відповідні робочі місця не розташовані у підвальних або цокольних приміщеннях будинків. В обладнанні приміщень не використовуються полімерні матеріали, що виділяють шкідливі хімічні речовини. Також приділено увагу забезпеченню достатнім для здійснення роботи рівнем освітлення (природного та штучного - у темну пору доби) та звукоізоляції. Для регуляції рівня освітлення природним світлом застосовані жалюзі. Окрім того, у приміщеннях, де здійснюється робота з комп’ютерами, щодня здійснюється вологе прибирання з метою недопущення запиленості підлоги та меблів.

Заземлені конструкції, що знаходяться в приміщеннях, де розміщені робочі місця операторів (батареї опалення, водопровідні труби, кабелі із заземленим відкритим екраном), надійно захищені діелектричними щитками або сітками з метою недопущення потрапляння людини під напругу.

Особливої уваги заслуговують заходи дотримання протипожежної безпеки. Так, у всьому приміщені лінії електромережі захищені від виникнення короткого замикання, а також від перепадів мережевої напруги, що може спричинити збої в роботі електронно-обчислювальної техніки. Приміщення оснащені системою автоматичної пожежної сигналізації та вогнегасниками. Під час монтажу та експлуатації ліній електромережі повністю унеможливили виникнення електричного джерела загоряння внаслідок короткого замикання та перевантаження проводів, обмежили застосування проводів з легкозаймистою ізоляцією і, за можливості, застосовувати негорючу ізоляцію. У приміщенні, де одночасно експлуатуються понад п’ять комп’ютерів, на помітному та доступному місці встановлений аварійний резервний вимикач, який може повністю вимкнути електричне живлення приміщення, крім освітлення.

До самостійної роботи на комп’ютерах допускаються особи, які пройшли медичний огляд, навчання з професії, ввідний інструктаж з охорони праці і первинний інструктаж з охорони праці на робочому місці. В подальшому вони проходять повторні інструктажі з охорони праці на робочому місці один раз на півріччя.

Щоб запобігти тимчасовим або хронічним професійним захворюванням, додержуються правил гігієни праці на виробництві.

Санітарія і гігієна праці включає до свого складу частини гігієни праці та санітарної техніки.

Гігієна праці - галузь профілактичної медицини, що вивчає умови збереження здоров'я на робочому місті й заходи, які сприяють цьому. Основні завдання гігієни праці:

-   вивчати вплив на людину метеорологічних умов і розробляє засоби і способи забезпечення комфортних умов праці.

-        вивчати вплив на організм людини небезпечних і токсичних речовин, що виділяються в навколишнє середовище, і розробляє засоби захисту.

         вивчати вплив шуму, вібрації, іонізуючого випромінювання на організм людини і розробляє засоби захисту від цих чинників.

         займатися питаннями освітлення робочих місць.

         давати обґрунтування санітарним нормам.

         займатися створенням індивідуальних засобів захисту.

         розробляти засоби і методи контролю умов праці.

         організовувати санітарно-побутове забезпечення.

Щодня перед початком роботи оператор виконує наступні дії:

-   оглядає своє робоче місце; про виявлення ознак пошкодження обладнання інформує свого безпосереднього керівника;

-        регулює освітленість на робочому місці, переконується в відсутності відблисків на екрані комп’ютера, відсутності зустрічного світла;

         перевіряє правильність підключення обладнання ЕОМ до електромережі;

         очищає екран комп’ютера від пилу та інших забруднень;

         перевіряє правильність організації робочого місця й за необхідності проводить відповідні коригування.

Оператор під час роботи виконує наступні вказівки:

-   виконувати тільки ту роботу, яку йому було доручено;

-        підтримувати порядок і чистоту на робочому місці;

         тримати відкритими всі вентиляційні отвори обладнання;

         коректно закрити всі активні завдання у разі припинення роботи з комп’ютером;

         негайно відключити комп’ютером від електричної мережі у разі виникнення аварійної ситуації.

У ході виконання робіт оператор комп’ютера дотримується наступних правил:

-   витримує відстань від очей до екрана комп’ютером в межах 60-70 см;

-        дотримується внутрішньо-змінного режиму праці та відпочинку, регламентованих перерв у роботі, а саме (при 8-годинній денній робочій зміні):

1) для розробників програм - тривалістю 15 хвилин через кожну годину роботи;

2)      для інших категорій працівників - тривалістю 15 хвилин через кожні дві години роботи;

)        для операторів комп'ютерного набору - тривалістю 10 хвилин, після кожної години роботи.

Під час регламентованих перерв виконуються комплекси вправ для очей, рук, хребта, поліпшення мозкового кровообігу тощо. Про виявлення несправності обладнання або інших факторів, які створюють загрозу для життя або здоров'я працівників, інформують свого безпосереднього керівника.

Операторам ПК заборонено:

-   виконання ремонту та налагодження комп’ютерної техніки безпосередньо на робочому місці оператора;

-        зберігання біля комп’ютера паперу, дискет, інших носіїв інформації, запасних блоків, деталей тощо, якщо вони не використовуються для поточної роботи;

         відключення захисних пристроїв, самочинні зміни в конструкції комп’ютера;

         використання комп’ютерів, на екранах яких під час роботи з'являються нехарактерні сигнали, нестабільне зображення на екрані тощо;

         доторкання до задньої панелі системного блоку при включеному живленні;

         попадання вологи на поверхню системного блоку, монітора, клавіатури, дисководів, принтерів та інших пристроїв;

         приймання напоїв та їжі на робочому місці.

Параметри, характеризуючи санітарно-гігієнічні умови праці представлені в таблиці 4.1.

Таблиця 4.1

Параметри санітарно-гігієнічних умов праці.

Параметр

Фактичне значення

Значення по СН-245-71 чи державному стандарту

Висновок

1

2

3

4

Шум, дБ

54

38-86

В межах норми

Освітленість (загальна), Лк

463

300-500

В межах норми

Значення К.П.О., %

5

1,5-100

В межах норми

Загазованість (концентрація і вид газу), мг/м3

Азот 4,9 Аміак 11 Озон 0,04 Свинець 0,01 Хлор 0,8

Азот 5 Аміак 20 Озон 0,1 Свинець 0,01 Хлор 1

В межах норми

Температура повітря, °С взимку влітку

21-23 22-24

21-24 22-25

В межах норми

Відносна вологість, %

40-55

40-60

В межах норми

Швидкість руху повітря, м/с

0,1-0,15

0,1-0,2

В межах норми


.3 Організація робочого простору

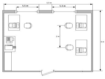
Основним обладнанням робочого місця користувача ПК є: ВДТ, системний блок, клавіатура, друкуючий пристрій (принтер), зовнішні пристрої пам’яті, сканер, "миша", блок безперервного живлення, робочий стіл, стілець та інше; допоміжним - шафи, полиці, сейф та ін. Усі ВДТ, з електронно-променевою трубкою, були замінені на ВДТ з ЖК дисплеями, так як опромінення від терміналу даного типу є незначним, і не шкодить здоров’ю.

Робочі місця з ВДТ розташовані на відстані не менше 1,5м від стіни з вікнами, від інших стін - на відстані 1м, між собою - на відстані не менше 1,5м. Відносно вікон робочі місця доцільно розташовані таким чином, щоб природне світло падало на нього збоку, переважно зліва.

Робочі місця, обладнані ВДТ, розташовані таким чином, щоб запобігти попаданню в очі прямого світла. Джерела освітлення слід розташовані з обох боків екрану, паралельно напрямку зору.

Для запобігання світлових відблисків від екрана, клавіатури в напрямку очей користувача від освітлювачів загального призначення або сонячних променів застосовані анти-відблискові сітки, спеціальні фільтри, захисні козирки, на вікнах регульовані жалюзі.

Фільтри на ВДТ не використовуються, так як для терміналу з ЖК дисплеєм вони не потрібні.

При роботі з текстовою інформацією (в режимі введення даних, редагування тексту і читання з екрану ВДТ) найбільш фізіологічним є зображення чорних знаків на світлому (білому) фоні.

ВДТ розташовані на робочому місці так, щоб поверхня екрану знаходилась в центрі поля зору на відстані 400-700мм від очей користувача. Елементи робочого місця - таким чином, щоб підтримувалась однакова відстань від очей користувача до екрана, клавіатури, пюпітра.

Робота комп’ютера супроводжується електромагнітним випромінюванням різних частот і рівнів, інтенсивність котрого зменшується пропорційно квадрату відстані до екрану. Оператори дотримуються оптимальної для працюючого за ПК є відстані - 50см від екрану ВДТ.

Раціональною робочою позою працюючого за ПК є таке розташування тіла, при якому ступні працівника розташовані горизонтально на підлозі або на підставці для ніг, стегна зорієнтовані в горизонтальній площині, верхні кінцівки рук - вертикально, кут ліктьового суглоба коливається в межах 70-90град., зап’ястя зігнуті під кутом, не перевищує 20град., нахил голови - в межах 15-20град.

Для нейтралізації зарядів статичної електрики в приміщенні, де виконуються роботи на комп’ютерах, в тому числі на лазерних та світлодіодних принтерах, штучно збільшується вологість повітря за допомогою кімнатних зволожувачів. Не рекомендується носити одяг з синтетичних матеріалів.

Рисунок 4.1 - Схема розміщення ПК в приміщеннях

4.4 Електробезпека в приміщеннях з ЕОМ

Для підтримки електробезпеки в приміщенні, весь персонал дотримується вимоги електробезпеки і пожежної безпеки у приміщеннях, де встановлені ВДТ ЕОМ і ПЕОМ, відображені у ДНАОП 0.00-1.31-99: ЕОМ і все устаткування для обслуговування, ремонту та налагодження роботи їх, електропроводи і кабелі відповідають електробезпеці зони за ПВЕ та мають апаратуру захисту від струму короткого замикання.

У приміщенні забезпечена неможливість виникнення джерела загорання внаслідок короткого замикання та перевантаження проводів шляхом переходу на негорючу ізоляцію.

Лінії електромережі ВДТ ЕОМ і ПЕОМ виконуються як окрема групова три-провідна мережа шляхом прокладання фазового, нульового робочого та нульового захисного провідників (заземлення або занулення), причому площі перерізу нульового робочого і нульового захисного провідника не менші за площу перерізу фазового провідника.

При одночасному використанні понад п’яти ПЕОМ на помітному місці встановлений аварійний резервний вимикач, який в разі небезпеки повністю знеструмлює електричну мережу (крім освітлення). В такому випадку використавши три-провідникового захищеного проводу або кабелю в оболонці з негорючого або важко-займистого матеріалу прокладено їх без металевих труб та гнучких металевих рукавів.

Електромережі для під’єднання ВДГ, ЕОМ і ПЕОМ оснащені справжніми штепсельними з’єднаннями та електророзетками, які, крім контактів фазового і нульового робочого провідників, мають спеціальні контакти для під’єднання нульового захисного провідника, що під’єднаний раніше ніж вони. Порядок роз’єднання при відімкненні мережі має бути зворотним. Операторам заборонено під’єднувати обладнання до звичайної двопровідної електричної мережі, зокрема з використанням перехідних пристроїв. Електромережі штепсельних з’єднань та електричних розеток виконані за магістральною схемою, по 3-6 в одному колі. При розташуванні їх уздовж стін провідники прокладені по підлозі в металевих трубах і гнучких металевих рукавах, а при розташуванні їх у центрі приміщення прокладені у каналах або під знімною підлогою в металевих рукавах. При цьому не використовуються провід і кабель в ізоляції з вулканізованої гуми та інші матеріали, що містять сірку. Металеві трубки і гнучкі металеві рукави заземлені відповідно до ДНАОП 0.001.21-98. Не використовується функціональне заземлення для під’єднання захисного заземлення.

Штепсельні з’єднання або електричні розетки для напруги 12 і 36В пофарбовані в колір, що відрізняється від їхнього кольору для напруги 127 і 220В.

Плити знімної підлоги встановлені важко-займисті, з межею вогнестійкості не меншою за 30хв, або негорючими і виконані з матеріалів, які під час горіння не виділяють шкідливих токсичних речовин і газів, що сприяють корозії. Простір під ними розділяють негорючі діафрагми на відсіки площею не більшою за 250м2 з межею вогнестійкості не меншою за 45 хв. Простір під підлогою оснащений системою пожежної сигналізації та засобами пожежогасіння відповідно до вимог пожежного захисту з використанням димових пожежних сповіщувачів.

.5 Пожежна безпека

Пожежна безпека на підприємстві - це один з важливих факторів збереження нашої робочої території і життя персоналу.

Екстремальні ситуації під час пожеж характеризуються набором небезпечних факторів, відповідно до ГОСТ 12.1.004 - 91 "Пожежна безпека. Основні терміни і поняття":

-   відкритий вогонь, підвищена температура;

-        теплове випромінювання;

         дим;

         знижена концентрація кисню;

         небезпека вибухів і обвалення.

         дим має наступні основні види небезпеки:

         токсична дія;

         підвищена оптична щільність.

Підвищена оптична щільність диму становить собою погіршення видимості внаслідок забарвлення диму продуктами горіння. Як правило, дим при пожежі має чорний колір, і на відстані 1 м видимість практично дорівнює 0, що перешкоджає гасінню та евакуації.

Для того, щоб повністю була активною пожежна безпека на підприємстві, першою справою встановлена пожежна сигналізація. Завдання встановленого обладнання - оповістити людей, що працюють на даній території про пожежу або можливому невеликому загорянні. У деяких випадках існує автоматичне гасіння пожежі. Також всі приміщення забезпечені вогнегасниками, які розставлені на вільних видних місцях. До них додається інструкція по користуванню. Працюючий персонал прочитав правила користування вогнегасником до того моменту, коли доведеться його використовувати в дії, інакше це може призвести до плачевних ситуацій. Вогнегасник зберігається в місцях, захищених від прямих сонячних променів.

Правила пожежної безпеки на підприємстві для всіх однакові і виконуються відповідно до вимог.

Одне з головних правил - це план евакуації, що включає в себе план-схему приміщення (поверху), та шляхи безпечної, а також найбільш раціональної, евакуації.

У випадку пожежі треба використовувати план евакуації (рисунок 4.2).

Рисунок 4.2 - План евакуації.

Висновки

Інтернет - магазин (електронний магазин, онлайновий магазин) - це програмний комплекс, який дозволяє продавати товари чи послуги через мережу Інтернет та автоматизувати управління бізнес-процесами.

Електронна торгівля у віртуальному магазині ґрунтується на тій же структурі, що і традиційна торгівля.

Класифікують Інтернет-магазини по різних критеріях: по моделі бізнесу, по відношенню з постачальниками, по товарному асортименту, по методах роздрібного продажу товарів в мережі.

Інтернет-магазини мають свої як позитивні так і негативні сторони. До переваг відносять: економія часу, низькі ціни, безкоштовна доставка, свобода вибору, психологічний комфорт, зручність оплати, анонімність. До недоліків Інтернет-магазину відносять: недосконала система доставки, незручна система оплати, складна система замовлення, нестабільний асортимент, необхідність реєстрації, проблема віртуальності, невиконання вибору замовлення, втрата замовлення [5].

Типовий варіант Інтернет-магазину складається з наступних функціональних частин: каталог товарів, пошукова система, корзина, реєстраційна форма, форма відправки замовлення.

В рамках дипломної роботи було досліджено існуючі Запоріжські, Львівські та Рівненські Інтернет-магазини.

Було проведено маркетингове дослідження Інтернет-магазину, а саме здійснено опитування користувачів Internet на тему: "Чому покупці, що займаються шопінгом в Інтернет - магазинах, віддають перевагу їм над магазинами традиційним?" результати досліджень були оформленні у вигляді діаграми [6].

Враховуючи основні вимоги до створення Інтернет-магазину та за допомогою сучасних Інтернет технологій мови програмування PHP та системи управління базами даних MySQL, було розробленно Web-сайт Інтернет-магазин, функціональна структура якого складається з Web-сайту та бази даних, дані елементи взаємодіють між собою.

Структура бази даних складається з 11 таблиць, які пов’язані між собою зв’язком типу один до багатьох, що забезпечує збереження цілісності даних. Структура Web-сайту базується на адміністративній та клієнтській частині.

Позитивними якостями розробленого Інтернет-магазину є:

- зручний інтерфейс користувача;

відсутність реєстрації клієнтів магазину, що забезпечує їхню анонімність;

сортування товарів по групах та підгрупах, що пришвидшує пошук потрібного товару;

вибір оплати та доставки товару користувачем;

невелика за розміром форма для замовлення;

автоматична зміна даних в базі даних магазину при здійсненні замовлення обраного товару [7].

Негативними якостями Інтернет-магазину є:

- неповна база товарів;

відсутність можливості оплати новітніми засобами;

ціни товарів не представленні в іноземній валюті.

Враховуючи вище сказане можна зробити висновок, що всі поставленні завдання в дипломній роботі виконані в повному обсязі.

Перелік посилань

1       Алексеев А.А. Как сделать рекламу Вашей фирмы в сети Интернет: Пошаговое руководство для фирм, желающих сделать рекламу своей продукции в сети Интернет. - М: Dux comp, 1997.

2       ГОСТ 12.1.030-81*. ССБТ. Электробезопасность. Защитное заземление. Зануление. - Введ. 01.01.82/

         Нольден М. Ваш первый выход в Internet: Для начинающих пользователей Internet и широкого круга пользователей PC / Гл. ред. Е.В. Кондукова; Пер с нем. К.А. Шиндер. - Спб.: ИКС, 1996. - 238 с.

         Популярные Web-сервисы: практика использования. Айверсон Уилл. КУДИЦ - ОБРАЗ, 2005.

5       Правила охорони праці під час експлуатації електронно-обчислювальних машин . Затверджено МінЮстом України 17 червня 1999 р. №382/3675 [44]

6       Правила пожежної безпеки в Україні. - К.: Основа, 2002. - 352 с.

7       Разработка Web-приложений с помощью PHP и MySQL, 3-е издание. Люк Веллинг, Лора Томсон. Вільямс, 2005.

Додатки

Додаток А

Програмний код модулів програми

// mod_jshopping_categories

<?php('_JEXEC') or die('Restricted access');_reporting(error_reporting() & ~E_NOTICE);(!file_exists(JPATH_SITE.DS.'components'.DS.'com_jshopping'.DS.'jshopping.php')){::raiseError(500,"Please install component \"joomshopping\"");

}_once (dirname(__FILE__).DS.'helper.php');_once (JPATH_SITE.DS.'components'.DS.'com_jshopping'.DS."lib".DS."factory.php");_once (JPATH_SITE.DS.'components'.DS.'com_jshopping'.DS."lib".DS."jtableauto.php");_once (JPATH_SITE.DS.'components'.DS.'com_jshopping'.DS.'tables'.DS.'config.php');_once (JPATH_SITE.DS.'components'.DS.'com_jshopping'.DS."lib".DS."functions.php");_once (JPATH_SITE.DS.'components'.DS.'com_jshopping'.DS."lib".DS."multilangfield.php");::loadCssFiles();

$lang = JFactory::getLanguage();(file_exists(JPATH_SITE.DS.'components'.DS.'com_jshopping'.DS . 'lang'. DS . $lang->getTag() . '.php'))_once (JPATH_SITE.DS.'components'.DS.'com_jshopping'.DS . 'lang'. DS . $lang->getTag() . '.php');_once (JPATH_SITE.DS.'components'.DS.'com_jshopping'.DS . 'lang'.DS.'en-GB.php');::addIncludePath(JPATH_SITE.DS.'components'.DS.'com_jshopping'.DS.'tables');

$field_sort = $params->get('sort', 'id');

$ordering = $params->get('ordering', 'asc');

$show_image = $params->get('show_image',0);

$category_id = JRequest::getInt('category_id');

$category = JTable::getInstance('category', 'jshop');

$category->load($category_id);

$categories_id = $category->getTreeParentCategories();

$categories_arr = jShopCategoriesHelper::getCatsArray($field_sort, $ordering, $category_id, $categories_id);

$jshopConfig = JSFactory::getConfig();(JModuleHelper::getLayoutPath('mod_jshopping_categories'));

?>

// mod_banners

<?php

// no direct access('_JEXEC') or die;

// Include the syndicate functions only once_once dirname(__FILE__).'/helper.php';

$headerText= trim($params->get('header_text'));

$footerText= trim($params->get('footer_text'));_once JPATH_ADMINISTRATOR. '/components/com_banners/helpers/banners.php';::updateReset();

$list = &modBannersHelper::getList($params);

$moduleclass_sfx = htmlspecialchars($params->get('moduleclass_sfx'));JModuleHelper::getLayoutPath('mod_banners', $params->get('layout', 'default'));

<?xml version="1.0" encoding="utf-8"?>

<extension="module"="2.5"="site"="upgrade">

<name>mod_banners</name>

<author>Joomla! Project</author>

<creationDate>July 2006</creationDate>

<copyright>Copyright (C) 2005 - 2013 Open Source Matters. All rights reserved.</copyright>

<license>GNU General Public License version 2 or later; see LICENSE.txt</license>

<authorEmail>admin@joomla.org</authorEmail>

<authorUrl>www.joomla.org</authorUrl>

<version>2.5.0</version>

<description>MOD_BANNERS_XML_DESCRIPTION</description>

<files>

<filename module="mod_banners">mod_banners.php</filename>

<folder>tmpl</folder>

<filename>helper.php</filename>

<filename>index.html</filename>

<filename>mod_banners.xml</filename>

</files>

<languages>

<language tag="en-GB">en-GB.mod_banners.ini</language>

<language tag="en-GB">en-GB.mod_banners.sys.ini</language>

</languages>

<help key="JHELP_EXTENSIONS_MODULE_MANAGER_BANNERS" />

<config>

<fields name="params">

<fieldset name="basic"="/administrator/components/com_banners/models/fields">

<field="target"="list"="1"="MOD_BANNERS_FIELD_TARGET_LABEL"="MOD_BANNERS_FIELD_TARGET_DESC">

<option="0">JBROWSERTARGET_PARENT</option>

<option="1">JBROWSERTARGET_NEW</option>

<option="2">JBROWSERTARGET_POPUP</option>

</field>

<field="count"="integer"="1"="10"="1"="5"="MOD_BANNERS_FIELD_COUNT_LABEL"="MOD_BANNERS_FIELD_COUNT_DESC" />

<field="cid"="bannerclient"="MOD_BANNERS_FIELD_BANNERCLIENT_LABEL"="MOD_BANNERS_FIELD_BANNERCLIENT_DESC" />

<field="catid"="category"="com_banners"="JCATEGORY"="true" size="5"=""="MOD_BANNERS_FIELD_CATEGORY_DESC" >

<option value="">JOPTION_ALL_CATEGORIES</option>

</field>

<field="tag_search"="radio"="0"="MOD_BANNERS_FIELD_TAG_LABEL"="MOD_BANNERS_FIELD_TAG_DESC">

<option="0">JNO</option>

<option="1">JYES</option>

</field>

<field="ordering"="list"="0"="MOD_BANNERS_FIELD_RANDOMISE_LABEL"="MOD_BANNERS_FIELD_RANDOMISE_DESC">

<option="0">MOD_BANNERS_VALUE_STICKYORDERING</option>

<option="random">MOD_BANNERS_VALUE_STICKYRANDOMISE</option>

</field>

<field="header_text"="textarea"="safehtml"="3"="40"="MOD_BANNERS_FIELD_HEADER_LABEL"="MOD_BANNERS_FIELD_HEADER_DESC" />

<field="footer_text"="textarea"="safehtml"="3"="40"="MOD_BANNERS_FIELD_FOOTER_LABEL"="MOD_BANNERS_FIELD_FOOTER_DESC" />

</fieldset>

<fieldset="advanced">

<field="layout"="modulelayout"="JFIELD_ALT_LAYOUT_LABEL"="JFIELD_ALT_MODULE_LAYOUT_DESC" />

<field="moduleclass_sfx"="text"="COM_MODULES_FIELD_MODULECLASS_SFX_LABEL"="COM_MODULES_FIELD_MODULECLASS_SFX_DESC" />

<field="cache"="list"="1"="COM_MODULES_FIELD_CACHING_LABEL"="COM_MODULES_FIELD_CACHING_DESC">

<option="1">JGLOBAL_USE_GLOBAL</option>

<option="0">COM_MODULES_FIELD_VALUE_NOCACHING</option>

</field>

<field="cache_time"="text"="900"="COM_MODULES_FIELD_CACHE_TIME_LABEL"="COM_MODULES_FIELD_CACHE_TIME_DESC" />

</fieldset>

</fields>

</config>

</extension>('_JEXEC') or die;modBannersHelper

{function &getList(&$params)

{::addIncludePath(JPATH_ROOT.'/components/com_banners/models', 'BannersModel');

$document= JFactory::getDocument();

$app= JFactory::getApplication();

$keywords= explode(',', $document->getMetaData('keywords'));

$model = JModelLegacy::getInstance('Banners', 'BannersModel', array('ignore_request'=>true));

$model->setState('filter.client_id', (int) $params->get('cid'));

$model->setState('filter.category_id', $params->get('catid', array()));

$model->setState('list.limit', (int) $params->get('count', 1));

$model->setState('list.start', 0);

$model->setState('filter.ordering', $params->get('ordering'));

$model->setState('filter.tag_search', $params->get('tag_search'));

$model->setState('filter.keywords', $keywords);

$model->setState('filter.language', $app->getLanguageFilter());

$banners = $model->getItems();

$model->impress();$banners;

}

}

// mod_search('_JEXEC') or die;

// Include the syndicate functions only once_once dirname(__FILE__).'/helper.php';

$lang = JFactory::getLanguage();($params->get('opensearch', 1)) {

$doc = JFactory::getDocument();

$app = JFactory::getApplication();

$ostitle = $params->get('opensearch_title', JText::_('MOD_SEARCH_SEARCHBUTTON_TEXT').' '.$app->getCfg('sitename'));

$doc->addHeadLink(JURI::getInstance()->toString(array('scheme', 'host', 'port')).JRoute::_('&option=com_search&format=opensearch'), 'search', 'rel', array('title' => htmlspecialchars($ostitle), 'type' => 'application/opensearchdescription+xml'));

}

$upper_limit = $lang->getUpperLimitSearchWord();

$button= $params->get('button', '');

$imagebutton= $params->get('imagebutton', '');

$button_pos= $params->get('button_pos', 'left');

$button_text= htmlspecialchars($params->get('button_text', JText::_('MOD_SEARCH_SEARCHBUTTON_TEXT')));

$width= intval($params->get('width', 20));

$maxlength= $upper_limit;

$text= htmlspecialchars($params->get('text', JText::_('MOD_SEARCH_SEARCHBOX_TEXT')));

$label= htmlspecialchars($params->get('label', JText::_('MOD_SEARCH_LABEL_TEXT')));

$set_Itemid= intval($params->get('set_itemid', 0));

$moduleclass_sfx = htmlspecialchars($params->get('moduleclass_sfx'));($imagebutton) {

$img = modSearchHelper::getSearchImage($button_text);

}

$mitemid = $set_Itemid > 0 ? $set_Itemid : JRequest::getInt('Itemid');JModuleHelper::getLayoutPath('mod_search', $params->get('layout', 'default'));

<?xml version="1.0" encoding="utf-8"?>

<extension="module"="2.5"="site"="upgrade">

<name>mod_search</name>

<author>Joomla! Project</author>

<creationDate>July 2004</creationDate>

<copyright>Copyright (C) 2005 - 2013 Open Source Matters. All rights reserved.</copyright>

<license>GNU General Public License version 2 or later; see LICENSE.txt</license>

<authorEmail>admin@joomla.org</authorEmail>

<authorUrl>www.joomla.org</authorUrl>

<version>2.5.0</version>

<description>MOD_SEARCH_XML_DESCRIPTION</description>

<files>

<filename module="mod_search">mod_search.php</filename>

<folder>tmpl</folder>

<filename>helper.php</filename>

<filename>index.html</filename><filename>mod_search.xml</filename>

</files>

<languages>

<language tag="en-GB">en-GB.mod_search.ini</language>

<language tag="en-GB">en-GB.mod_search.sys.ini</language>

</languages>

<help key="JHELP_EXTENSIONS_MODULE_MANAGER_SEARCH" />

<config>

<fields name="params">

<fieldset name="basic">

<field="width"="text"="20"="MOD_SEARCH_FIELD_BOXWIDTH_LABEL"="MOD_SEARCH_FIELD_BOXWIDTH_DESC" />

<field="text"="text"="MOD_SEARCH_FIELD_TEXT_LABEL"="MOD_SEARCH_FIELD_TEXT_DESC" />

<field="button"="radio"="MOD_SEARCH_FIELD_BUTTON_LABEL"="MOD_SEARCH_FIELD_BUTTON_DESC">

<option="">JNO</option>

<option="1">JYES</option>

</field>

<field="button_pos"="list"="right"="MOD_SEARCH_FIELD_BUTTONPOS_LABEL"="MOD_SEARCH_FIELD_BUTTONPOS_DESC">

<option="right">MOD_SEARCH_FIELD_VALUE_RIGHT</option>

<option="left">MOD_SEARCH_FIELD_VALUE_LEFT</option>

<option="top">MOD_SEARCH_FIELD_VALUE_TOP</option>

<option="bottom">MOD_SEARCH_FIELD_VALUE_BOTTOM</option>

</field>

<field="imagebutton"="radio"="MOD_SEARCH_FIELD_IMAGEBUTTON_LABEL"="MOD_SEARCH_FIELD_IMAGEBUTTON_DESC">

<option="">JNO</option>

<option="1">JYES</option>

</field>

<field="button_text"="text"="MOD_SEARCH_FIELD_BUTTONTEXT_LABEL"="MOD_SEARCH_FIELD_BUTTONTEXT_DESC" />

<field="opensearch"="radio"="MOD_SEARCH_FIELD_OPENSEARCH_LABEL"="MOD_SEARCH_FIELD_OPENSEARCH_DESC"="1">

<option="0">JNO</option>

<option="1">JYES</option>

</field>

<field="opensearch_title"="text"="MOD_SEARCH_FIELD_OPENSEARCH_TEXT_LABEL"="MOD_SEARCH_FIELD_OPENSEARCH_TEXT_DESC" />

<field="set_itemid"="text"="MOD_SEARCH_FIELD_SETITEMID_LABEL"="MOD_SEARCH_FIELD_SETITEMID_DESC" />

</fieldset>

<fieldset="advanced">

<field="layout"="modulelayout"="JFIELD_ALT_LAYOUT_LABEL"="JFIELD_ALT_MODULE_LAYOUT_DESC" />

<field="moduleclass_sfx"="text"="COM_MODULES_FIELD_MODULECLASS_SFX_LABEL"="COM_MODULES_FIELD_MODULECLASS_SFX_DESC" />

<field="cache"="list"="1"="COM_MODULES_FIELD_CACHING_LABEL"="COM_MODULES_FIELD_CACHING_DESC">

<option="1">JGLOBAL_USE_GLOBAL</option>

<option="0">COM_MODULES_FIELD_VALUE_NOCACHING</option>

</field>

<field="cache_time"="text"="900"="COM_MODULES_FIELD_CACHE_TIME_LABEL"="COM_MODULES_FIELD_CACHE_TIME_DESC" />

<field="cachemode"="hidden"="itemid">

<option="itemid"></option>

</field>

</fieldset>

</fields>

</config>

</extension>

// mod_jshopping_top_rating('_JEXEC') or die('Restricted access');_reporting(error_reporting() & ~E_NOTICE);(!file_exists(JPATH_SITE.DS.'components'.DS.'com_jshopping'.DS.'jshopping.php')){::raiseError(500,"Please install component \"joomshopping\"");

}_once (JPATH_SITE.DS.'components'.DS.'com_jshopping'.DS."lib".DS."factory.php");_once (JPATH_SITE.DS.'components'.DS.'com_jshopping'.DS."lib".DS."functions.php");::loadCssFiles();::loadLanguageFile();

$jshopConfig = JSFactory::getConfig();

$product = JTable::getInstance('product', 'jshop');

$count = $params->get('count_products', 4);

$list = $product->getTopRatingProducts($count);($list as $key=>$value){

$list[$key]->product_link = SEFLink('index.php?option=com_jshopping&controller=product&task=view&category_id=' . $value->category_id.'&product_id=' . $value->product_id ,1);

}

$noimage = $jshopConfig->noimage ? $jshopConfig->noimage : "noimage.gif";

$show_image = $params->get('show_image',1);(JModuleHelper::getLayoutPath('mod_jshopping_top_rating'));

?>

<?xml version="1.0" encoding="utf-8"?>

<extension="module"="1.6.0"="site"="upgrade">

<name>Jshopping Top Rating</name>

<creationDate>18.12.2012</creationDate>

<author>MAXXmarketing GmbH</author>

<authorEmail>marketing@maxx-marketing.net</authorEmail>

<authorUrl>#"864109.files/image034.jpg">

Рисунок Б.1 - UML-діаграма діяльності


Харківський патентно-комп’ютерний коледж

Відділення "Розробка програмного забезпечення"

Предметно-циклова комісія "Програмування"










Програма та методика тестування

Інтернет-магазин "Сквозняк"


Виконав

Сухоручкін С.В.

Керівник

Макарова І.В.





Харків - 2015 року

Зміст

Вступ

. Об’єкт тестування

. Мета тестування

. Вимоги до програмного виробу

3.1 Вимоги до функціональних характеристик

3.2 Вимоги до надійності

3.3 Умови експлуатації

3.4 Вимоги до складу і параметрами технічних засобів

3.5 Вимоги до інформаційної та програмної сумісності

. Вимоги до програмної документації

. Засоби та порядок тестування

. Методи тестування

Перелік посилань

Вступ

Об’єктом тестування являється web- ресурс "Інтернет магазин "Сквозняк"", який представляє собою сайт для продажу аніме товарів.

1. Об’єкт тестування

Об’єктом тестування являється web- ресурс "Інтернет магазин "Сквозняк"", який представляє собою сайт для продажу аніме товарів.

2. Мета тестування

Підчас тестування повинно бути перевірено:

створення, редагування записів блогу та коментарів;

коректність виклику та відображення сторінки, при виборі відповідного пункту меню;

коректність перегляду товарів;

коректність перегляду товарів та їх замовлення;

перевірка реєстрації та авторизації на сайті;

перевірка створення замовлень;

перевірка захисту від взломів сайту (XSS, SQL ін’єкцій, CSRF);

перевірка на однозначність формування URL запиту до сторінки і коректність роботи функцій обробітки подій.

3. Вимоги до програмного виробу

.1 Вимоги до функціональних характеристик

Система мають забезпечувати можливість виконання таких функцій:

- ініціалізацію системи (введення списків покупців, переліків товарів у відповідність до торговими планами тощо. п.);

введення і корекцію поточної інформації про виконання обробки замовлення;

зберігання інформації про покупців протягом року з останньої купівлі магазині;

отримання даних про про поточний стан товарів складі.

Вихідні дані:

- обрана покупцем модель вироби;

наявність товару складі;

поточні інформацію про можливості доставки товару.

Результати:

- запис покупця до бази даних;

оформлений договору про купівлі товару;

оплата товару;

замовлення товару в постачальників за його відсутності складі;

доставка товару.

.2 Вимоги до надійності

Надійне функціонування автоматизованої системи має бути забезпечене виконанням організаційно-технічних заходів, як-от:

- використання ліцензійного програмного забезпечення;

організація безперебійного харчування шляхом застосування блоків безперебійного харчування;

забезпечення мінімального часу відновлення після відмови.

Завантаження і відображення основного вікна програми нічого не винні перевищувати 5 секунд.

.3 Умови експлуатації

Експлуатація автоматизованої системи має відповідати санітарним правилами і нормамСанПин 2.2.2.542-96.

Стежити за працездатністю інформаційної системи повинен системний адміністратор, до обов'язків котрого також входять:

- перевірка програмного забезпечення на наявність вірусів не рідше 1 разу на добу;

регулярне відновлення антивірусного програмного забезпечення робочої станції.

.4 Вимоги до складу і параметрами технічних засобів

Автоматизована система повинна працювати на IВМ-совместимих персональні комп'ютери.

Мінімальна конфігурація комп'ютера:

- тип процесора - Pentium 3 і від;

оперативна пам'ять - 128 Mb і від;

обсяг жорсткого диска - щонайменше 10Гб;

джерело безперебійного харчування;

принтер (підтримуючий печатку формату А4).

База даних, і автоматизовану систему розміщуються в одній робочої станції.

3.5 Вимоги до інформаційної та програмної сумісності

Інформаційна автоматизовану систему може працювати під керівництвом сімейства операційними системамиWin32 (Windows 95, Windows 98, Windows 2000, WindowsNT тощо.) з установленою серверомApache.

Під час розробки програмного продукту використовуються:

- систему управління базами даних (>СУБД) -MySQL;

мови програмування - PHP, HTML,JavaScript,CSS;

CASE - засіб - RationalRose.

Інтерфейс інтернет-магазину має бути простим і інтуїтивно зрозумілим для користувачів. Усі функціональні кнопки, виконані вигляді іконок повинні містити текстове опис, відображуване яквспливающей підказки.

4. Вимоги до програмної документації

Розроблюваний програмний продукт мусить мати всі необхідні коментарі і довідкову інформацію, необхідну полегшення роботи користувача і системного адміністратора при усуненні несправності.

Довідка за програмою маєш бути у форматі .>chm чи .html.

До складу супроводжує документації має входити:

- керівництво користувача;

керівництво розробника;

опис програмного коду програми.

5. Засоби та порядок тестування

Тестування виконується засобами інструментарію SpecFlow. Працездатність web-pecypcy перевіряється шляхом:

- динамічного ручного тестування - введенням граничних та недопустимих значень в поля, які можна редагувати;

динамічного ручного тестування на відповідність функціональним вимогам;

статичного тестування коду;

тестування web-pecypcy в різних web-браузерах;

тестування при максимальному навантаженні;

тестування стабільності роботи при різних умовах;

тестування зручності використання;

тестування інтерфейсу.

6. Методи тестування

Тестування виконується методом Gray Box Testing. Перевіряється як код, так і безпосередньо програмний продукт на відповідність функціональним вимогам. Тестування відбувається на рівні "системного тестування".

Використовуються наступні методи:

- функціональне тестування, зокрема на рівні Critical path test (базове тестування);

тестування продуктивності програмного забезпечення, зокрема Stability testing (тестування стабільності) та Load testing (навантажувальне тестування);

тестування інтерфейсу.

Тестові данні наведені в додатку А.

Тестуванню підтягаються будь-які блоки, в яких можливі помилки.

Таблиця 6.1 - Реєстрації на сайті

Логін

Пароль

E-mail

Результат

Тип тесту

1

Login1

password

epa@gmail.com <mailto:epa@gmail.com>"Регистрация прошла успешно!"нормальний



2

Login1

somepass

epa@gmail.com <mailto:epa@gmail.com>"Почта уже используется!"Повторне використання пошти



3

Login1

password

sol@gmail.com <mailto:sol@gmail.com>"Логин уже используется!"спроба використати існуючий логін



4

Login2

Pass1234

lol@gmail.com <mailto:lol@gmail.com>"Неверный формат почты!"спроба використання неіснуючого (непередбаченого формату пошти)




При реєстрації користувач отримує застереження, що слід вказувати справжню поштову адресу. Пошта не перевіряється на існування, а лише перевіряється її формат. При втраті паролю відновити його можна лише за вказаною адресою.

Таблиця 6.2 - Авторизації

Логін

Пароль

Результат

Тип тесту

1

Login1

pass

" Ошибка при вводе логина или пароля"

помилка при вводі

2

Login2

pass

"Ошибка при вводе логина или пароля"

помилка при вводі

3

Login1

password

"Авторизация прошла успешно"

нормальний

4

Login1

password

"Пользователь уже авторизирован"

спроба повторного входу на сайт


Таблиця 6.3 - Відновлення на сайті

E-mail

Результат

Результат

Тип тесту

1

epa@gmail.com <mailto:epa@gmail.com>"Пароль отправлен "" Пароль отправлен "Нормальний





Перехід по пунктам меню працює коректно, усі кнопки і посилання працюють відповідно до їх призначення.

Також перевірена коректність вибору статей та натискання на посилання в них. Усі статті відкриваються і закриваються коректно, посилання в тексті відкривають статті на новій сторінці.

Каталог товарів працює коректно, гіперпосилання відкривають потрібні розділи, інформація про товари при натисканні на товар відображається коректно. Пошук товару одразу показує інформацію про нього, якщо товар знайдено. Якщо ні - про це повідомляється.

Додавання записів до блогу відбувається коректно, редагування та видалення відбувається без помилок. Переглядати можуть будь-які користувачі, залишати коментарі можливо лише для авторизованих

Перелік посилань

1. Коротяєв Б.І., Гришин Е.О., Устинко О.А. Педагогіка вищої школи: Навч. посіб. - К.: НМК ВО, 1990. - 176 с.

. ГОСТ 7.1-84. Библиографическое описание документа. Общие требования и правила составления.

. Агафонова Н.Н. Гражданское право: учеб. пособие / Н.Н. Агафонова, Т.В. Богачева, Л.И. Глушкова; под общ. ред. А.Г. Калпина; 2-е изд., перераб. и доп. - Х.: Фактор, 2000. - 542 с.

. Елементи інформатики: довідник / В.С. Височанський, А.І. Кардаш, В.С. Костєв, В.В. Черняхівський. - К.: Наук. думка, 2003. - 192 с.

. Буряк В.К. Формування у школярів потреби в самоосвіті // Рідна школа. - 2000. - № 9. - с. 55-57.

Харківський патентно-комп’ютерний коледж

Відділення "Розробка програмного забезпечення"

Предметно-циклова комісія "Програмування"










Керівництво оператора

Інтернет-магазин "Сквозняк"


Виконав

Сухоручкін С.В.

Керівник

Макарова І.В.





Харків - 2015 року

Зміст

Вступ

. Призначення програми

. Умови виконання програми

. Виконання програми

.1 Користувальницька частина

3.2 Адміністративна частина

. Повідомлення оператору

Перелік посилань

Вступ

Сайт електронної комерції "Сквозняк" розроблен на замовлення ТОВ "Сквозняк" для реалізаціїї Інтерет-магазину.

Для його перегляду та експлуатації необхідна програма-браузер та з’єднання з мережею Інтернет. Користуватися сайтом або адмініструвати може людина, що має навички звичайного користування мережі Інтернет і досвід роботи з Інтернет-браузером (Opera/Google Chrome/Mozilla Firefox/Internet Explorer).

1. Призначення програми

Сайт електронної комерції "Сквозняк" призначений для здійснення продажу аніме товарів через глобальну мережу Інтернет. Інтерент-магазин дає змогу замовлювати, переглядати найбільш популярні товари. Система сортування дозволяє швидко знаходити товар з потрібними характеристиками і порівнювати його з іншими товарами. Рекламний слайдер виводить товари нові товари або товари зі спеціальними пропозиціями. Кошик сайту дозволяє планувати замовлення.

Інтренет-магазин дозволяє користувачам робити замовлення з будь-якого місця в будь-який час. Пошукові системи Інтернету постійно збільшують кількість відвідувачів сайту, а як наслідок - клієнтів. Використання Інтернет-магазину дає змогу економити час на покупки, доставка товарів в обумовлене місце є більш зручної ніж звичаний спосіб придбання.

2. Умови виконання програми

Технічні засоби для використання даного програмного продукту повинні включати в себе: персональний комп’ютер з частотою процесора більш ніж 200 МГц, RAM 1 ГБ, графічним відеоадаптером обсягом 256 МБ, операційна система WindowsХР і вище, вихід до мережі Інтернет.

3. Виконання програми

Сайт "Інтернет магазин" може працювати в двох режимах.

.1 Користувальницька частина

Для роботи в режимі користувача потрібно ввести в рядку браузера #"864109.files/image036.jpg">

Рисунок 3.1 - Головна сторінка сайту

У режимі користувача сайту надана інформація про товари магазину.

Користувальницький режим дає змогу переглядати інформацію про товари магазину, додавати їх до кошику і замовляти їх.

Обравши пункт "Товары" користувач побачить повний список товарів на сайті.

Рисунок 3.2 - Сторінка магазину

Вибравши один із товарів, користувач має змогу переглянути його характеристики, додати до кошику або замовити його. Для користування кошиком або замовлення товару користувач повинен авторизуватися на сайті.

Рисунок 3.3 - Сторінка товару

За допомогою кнопки "Вход", у лівій частині сайта, користувач має змогу авторизуватися на сайті.

Рисунок 3.4 - Форма авторизації

Обравши кнопку "Регистрация" відкривиється форма регістрації нових користувачів.

Обравши пункт головного меню "Корзина" можна побачити список обраних товарів, редагувати його і робити замовлення. Для видалення товару з кошику потрібно вказати кількість, що дорівнює нулю і оновити таблицю або натиснути "Х".

Рисунок 3.5 - Сторінка кошику

Для здійснення замовлення потрібно натиснути на кнопку "Формить заказ" у кошику або на кнопку "Купить" на сторінці товару і заповнити форму, що відкрилась. Обов'язкові поля помічені зірочкою. Після заповнення форми потрібно натиснути на кнопку "Оформить заказ".

Рисунок 3.6 - Сторінка оформлення замовлення

.2 Адміністративна частина

Для роботи в режимі адміністрування необхідно авторизуватися в якості адміністратора і ввести в рядку браузера адресу #"864109.files/image042.jpg">

Рисунок 3.7 - Головна сторінка адміністративної частини

При виборі товару адміністратор має змогу редагувати його характеристики або видалити цей товар.

Рисунок 3.8 - Сторінка редагування товару

При обранні пункту "Товар" адміністратор може додати новий товар, створити або видалити категорію із магазину.

Пункт "Інформація" дає змогу адміністратору корегувати текстову інформацію сайту.

За допомогою пункту "Слайдер" можна редагувати вміст слайдеру головної сторінки сайту.

У пункті "Заказ" адміністратор сайту може переглянути таблицю замовлень.

4. Повідомлення оператору

"Для выполнения этого действия авторизируйтесь на сайте." - видається у випадку спроби використання кошику або замовлення товару попередньо не авторизувавшись на сайті. Потрібно авторизуватися на сайті і повторити дії.

"Вы ввели не всю информацию, вернитесь назад и заполните все поля!" - видається при спробі авторизуватися, або зареєструватися, або зробити замовлення на сайті з незаповниними полями. Потрібно заповнити усі поля.

"Извините, введённый вами логин уже зарегистрирован. Введите другой логин." - видається при регістрації у випадку, якщо введений логін користувача вже зареєстрований. Потрібно зареєструвати інший логін.

"Введённые вами пароли не совпадают!" - видається, якщо пароль при регістрації не співпадає з перевірочним полем. Потрібно ввести однакові паролі.

"Вы успешно зарегистрированы! Теперь вы можете зайти на сайт." - видається при виконанні успішної регістрації.

"Ошибка! Вы не зарегистрированы." - видається, при невдалій спробі зареєструватися. Потрібно звернутися до адміністратора сайту.

"Неправильный логин или пароль." - видається при спробі авторизуватися з неправильною комбінацією логіна і пароля. Потрібно ввести правильні дані.

"Вы успешно авторизировались!" - видається при виконанні успішної авторизації користувача на сайті.

Перелік посилань

1. Коротяєв Б.І., Гришин Е.О., Устинко О.А. Педагогіка вищої школи: Навч. посіб. - К.: НМК ВО, 1990. - 176 с.

. ГОСТ 7.1-84. Библиографическое описание документа. Общие требования и правила составления.

. Агафонова Н.Н. Гражданское право: учеб. пособие / Н.Н. Агафонова, Т.В. Богачева, Л.И. Глушкова ; под общ. ред. А.Г. Калпина ; 2-е изд., перераб. и доп. - Х.: Фактор, 2000.- 542 с.

. Елементи інформатики: довідник / В.С. Височанський, А.І. Кардаш, В.С. Костєв, В.В. Черняхівський. - К.: Наук. думка, 2003. - 192 с.

. Буряк В.К. Формування у школярів потреби в самоосвіті // Рідна школа. - 2000. - №9. - с. 55-57.

Похожие работы на - Інтернет-магазин 'Сквозняк'

 

Не нашли материал для своей работы?
Поможем написать уникальную работу
Без плагиата!
Без нейросетей!