Киль легкого самолета

  • Вид работы:
    Курсовая работа (п)
  • Предмет:
    Неопределено
  • Язык:
    Русский
    ,
    Формат файла:
    MS Word
    508,68 kb
  • Опубликовано:
    2008-12-09
Вы можете узнать стоимость помощи в написании студенческой работы.
Помощь в написании работы, которую точно примут!

Киль легкого самолета












Курсовая работа по дисциплине:

Конструирование изделий из композиционных

 материалов

Киль легкого самолета









Казань, 2008 г.

Содержание:

        

1. Назначение киля и требования к нему………………………………..………3

2. Техническое описание киля………………………………..………………….3

3. Конструктивно – силовая схема киля…………………………………….…..3

4. Нормирование нагрузок………………………………………….……………5

5. Проектировочные расчеты………………………………………………….....7

I. Построение эпюр……………………………………………………..…………7

II.  Проектировочный расчет на прочность……………………………………10

Список используемой литературы……...……………………..……………….13     

1. Назначение киля и требования к нему

К оперению самолета относятся горизонтальное и вертикальное оперение.

Горизонтальное оперение служит для обеспечения продольной, а вертикальное – путевой устойчивости и управляемости самолета.

К вертикальному оперению самолета предъявляются следующие основные требования:

- обеспечение путевой устойчивости и управляемости самолета на всех режимах полета, в том числе и на режимах, близких к αкр (посадка, штопор);

- наименьшее лобовое сопротивление;

- возможно меньшее затенение оперения крылом, фюзеляжем, гондолами двигателей, а также одной части оперения другой;

- исключение возможности возникновения вибраций;

- простота монтажа и демонтажа оперения на самолете.

                                                              

2. Техническое описание киля

Киль летательного аппарата – часть хвостового оперения самолёта, расположенная в вертикальной (или наклонной) плоскости и предназначенная для обеспечения путевой устойчивости.

Киль представляет собой консольную балку. К задней кромке киля на шарнирах крепится руль направления полёта.

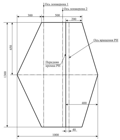
В конструкцию киля входят два лонжерона. Первый располагается позади носка киля, а второй перед передней кромкой руля направления. Первый лонжерон необходим для крепления киля к хвостовой части фюзеляжа, обычно здесь используются шарнирные узлы крепления, которые устанавливаются на поясах лонжеронов.

На заднем (втором) лонжероне расположены узлы навески руля направления.  

3. Конструктивно – силовая схема киля

Конструктивно-силовая схема киля – двухлонжеронная.

Лонжероном воспринимаются изгибающий момент и перерезывающие силы. Пояса лонжерона берут осевые усилия от изгибающего момента, а стенки погонные касательные усилия от перерезывающей силы. Кроме этого в стенке лонжерона могут действовать погонные усилия от крутящего момента. Крутящий момент воспринимается только замкнутыми контурами.

Этот лонжерон целесообразно размещать в месте максимальной строительной высоты. Обычно это совпадает с местом положения оси вращения.

Лонжерон обычно представляет собой балку таврового или швеллерного типа. Стенка лонжерона изготовлена из трехслойного КМ (сотовый заполнитель). Причем несущие слои стенки выкладываются под углом ± 45˚, так как они работают на сдвиг. А пояса лонжерона выклеиваем из лент стеклоткани Т – 10, практически однонаправлены. Пояс будет работать на сжатие и не извернется, т.к. одну кромку будет держать стенка лонжерона, а другая кромка упирается в трехслойную обшивку и не выпадает оттуда. Несущие слои тоже укладываются под углом ± 45˚, это делается для того, что бы повысить жесткость агрегата (деформация в 3 раза меньше). Обшивку в носике целесообразно сделать однослойной, т.к. большая кривизна, нагрузку выдержит, а вся обшивка будет трехслойная.


Рис. 1.

4. Нормирование нагрузок

Исходные данные:

Самолет имеет двухкилевое ВО установленное симметрично относительно плоскости  хорд крыла.


Рис. 2.

Общая площадь вертикального оперения:

Площадь одного вертикального оперения

.

Площадь крыла

.

Вес самолета

.

Максимально допустимая скорость полета

.

Максимально допустимый скоростной напор

.

f = 1,5; nЭmax = 4.

Во всех случаях нагружения распределение нагрузок по размаху оперения принимается пропорционально хордам, а нагрузки параллельные хордам, из-за малой величины не  учитываются.

Расчетный случай: маневренная нагрузка.

Нагрузка вертикального оперения, возникающая при маневре в горизонтальной плоскости, мо­жет быть определена по формуле

где SB.0. - площадь вертикального оперения.

, Н.

В соответствии с АП23 п.23.445 «Разнесенное (двухкилевое) вертикальное оперение» 65% вычисленной нагрузки приходиться на один киль.

, Н.

Удельная нагрузка на вертикальное оперение (нагрузка на единицу площади) равна:

, Н.

В соответствии с "Нормами прочности спортивных планеров" эксплуатационная удельная нагрузка меньше 800н/м2 не берется.

Расчетная удельная нагрузка прикладывается «к части ВО, находящейся выше горизонтального, а 80% этой нагрузки -  к части находящейся ниже».

Расчетная удельная нагрузка прикладывается «к части ВО, находящейся ниже горизонтального, а 80% этой нагрузки -  к части находящейся выше».

Нагрузка ки­ля рассчитывается пропорционально его площади:

, Н,

, Н.

Нагрузка по размаху (высоте) киля распределяется пропорционально его хорде:

, Н,

где bк – хорда киля в сечении, тогда

, Н.

Распределение нагрузки по хорде вертикального оперения в случае маневренной нагрузки и остановки двигателей произво­дится так, как показано на рисунке:

Рис. 3.

5. Проектировочные расчеты

I. Построение эпюр

Киль представляет собой консольную балку. Расчетная схема киля – за­щемленная балка, нагруженная распределенной нагрузкой q и реакци­ями от руля Rt, приложенными в узлах его навески. За ось z прини­маем ось жесткости. В проектировочном расчете делаем допущение, что перерезывающая сила воспринимается стенками лонжеронов, рас­пределяясь между ними пропорционально квадратам их высот, а крутя­щий момент воспринимается замкнутым контуром, образованным обшив­кой и стенкой заднего лонжерона.

Для киля центр давления


Рис. 4.

Определение изгибающих моментов и перерезывающих сил  киля.

Рис. 5.

, Н/м

Расчет ведем с концов киля. Для левого участка (рис. 5.) имеем:

Для правого участка (рис. 5.) имеем:


zр м.

0,00

0,10

0,20

0,30

0,40

0,50

0,60

0,65

0,65

0,60

0,50

0,40

0,30

0,20

0,10

0,00

z м.

0,00

0,10

0,20

0,30

0,40

0,50

0,60

0,65

0,65

0,70

0,80

0,90

1,00

1,10

1,20

1,30

Q н.

91

137

189

248

314

386

465

506

-398

-365

-302

-244

-192

-103

-66

Mи н*м.

0

11

28

49

77

112

155

179

139

120

87

59

37

21

8

0

      

Рис. 6.

Определение крутящих моментов киля.

Расчет ведем с концов киля.

Погонный крутящий момент

Для левого участка (рис. 5.):

Для правого участка (рис. 5.):

zр м.

0,00

0,10

0,20

0,30

0,40

0,50

0,60

0,65

0,65

0,60

0,50

0,40

0,30

0,20

0,10

0,00

z м.

0,00

0,10

0,20

0,30

0,40

0,50

0,60

0,65

0,65

0,70

0,80

0,90

1,00

1,10

1,20

1,30

b м

0,30

0,35

0,39

0,44

0,48

0,53

0,60

0,60

0,58

0,53

0,48

0,44

0,39

0,35

0,30

q н*м.

426

492

557

623

689

754

820

853

682

656

603

551

498

446

394

341

хц.д.  м

0,15

0,17

0,20

0,22

0,24

0,27

0,29

0,30

0,30

0,29

0,27

0,24

0,22

0,20

0,17

0,15

xж м

0,17

0,2

0,2

0,2

0,3

0,3

0,3

0,3

0,33

0,32

0,29

0,27

0,24

0,22

0,19

0,2

m н

6,39

8,5

11

14

17

20

24

26

20,5

16

13,3

10,9

8,75

6,81

5,12

кр

0,00

0,7

0,97

1,23

1,52

1,84

2,18

1,23

0,98

1,75

1,47

1,21

0,98

0,78

0,60

0,00

Mкр(m)

0,00

0,75

1,72

2,95

4,46

6,30

8,48

9,71

7,77

6,79

5,04

3,57

2,36

1,37

0,60

0,00

Mкр(P)

-16

-18

-20

-22

-23

-25

-27

-28

-20

-20

-18

-17

-16

-14

-13

-12

Mкр н*м

-16

-17

-18

-19

-19

-19

-19

-18

-13

-13

-13

-13

-13

-12

-12

 

    

    

Рис. 7.

 

II.  Проектировочный расчет на прочность

Расчет лонжерона.

Площадь поясов лонжеронов определяют по их изгибающим моментам. В проектировочном  расчете изгибающий  момент распределяем между лонжеронами, как и перерезывающую силу пропорционально квадратам их высот:

;

Максимальные изгибающие моменты по расчетному случаю маневренная нагрузка  Н*м,  Н*м.

В зоне максимального изгибающего момента в лонжероне имеем расстояние между ц.т. полок лонжерона 51мм.

В двух-трех наиболее нагруженных сечениях определяем площа­ди поясов лонжерона, толщину его стенки и толщину обшивки. Площадь сечения поясов лонжерона (рис. 8.) опре­деляется по формуле

где М – изгибающий момент;

      Нр - расстояние между центрами тяжести сечений поясов;

      sразр - разрушающее напряжение.

Принимаем для стеклоткани Т-10 допустимые напряжения 

.

Тогда площадь сечения равна:

.

Усилие в полке равно:

, Н.


Рис. 8.

По технологическим соображениям минимальный размер полки лонжерона (2 слоя стеклоткани шириной 10мм) равен , это почти в два раза превосходит требуемое значение.

Расчетное напряжение в полке лонжерона равно:

.

Критическое напряжение местной потери устойчивости при сжатии равно:

.

Расчетное напряжение не превосходит критических значений, следовательно, прочность обеспечивается.

Толщина стенки лонжерона определяется по формуле

где Q - перерезывающая сила;

      Н - высота лонжерона;

      τразр - разру­шающее касательное напряжение.

Максимальная перерезывающая сила равна:


Тогда толщина стенки лонжерона будет

Расчетное напряжение в стенке (2 слоя стеклоткани) равно:

Предполагая, что трехслойная стенка работает без потери устойчивости, допустимые напряжения сдвига равны . Расчетное напряжение сдвига не превосходит допустимых напряжений, следовательно, прочность обеспечивается.

Максимальный крутящий момент, соответствующий случаю маневренной нагрузки:

В проектировочном расчете считаем, что крутящий момент воспринимается обшивкой и стенкой заднего лонжерона. Тогда погонное сдвигающее усилие от кручения будет равно

где Мкр - крутящий момент;

      ω - площадь замкнутого контура.

По величине qкp определяем толщину обшивки, тогда δ = 0,3 мм – толщина обшивки работающей на кручение

Толщина обшивки определяется из условия восприятия ею крутя­щего момента. При этом делается допущение, что крутящий момент воспринимается внешним замкну­тым контуром, образованным об­шивкой.

Напряжения определяются по формуле Бредта:

Здесь ω – площадь контура работающего на кручение = 9333 мм2;

          δ – толщина обшивки работающей на кручение = 0,3 мм (2слоя ткани СВМ).

Предполагая, что трехслойная стенка работает без потери устойчивости, допустимые напряжения сдвига равны . Расчетное напряжение сдвига обшивки не превосходит допустимых напряжений, следовательно, прочность обеспечивается.

Список используемой литературы  

1. Авиационные правила: часть 23 Нормы летной годности гражданских легких самолетов. М.: Межгосударственный авиационный комитет, 1993.

2. Нормы прочности спортивных планеров. СибНИА, 1968. 

3. Справочная книга по расчету самолета на прочность/М.Ф. Астахов, А.В.Караваев, С.Я.Макаров, Я.Я. Суздальцев. М.: Оборонгиз, 1954. 702 с.

Похожие работы на - Киль легкого самолета

 

Не нашли материал для своей работы?
Поможем написать уникальную работу
Без плагиата!
Без нейросетей!