Бизнес-план организации поста ремонта автомобилей УАЗ
Министерство
сельского хозяйства Российской Федерации
Федеральное
государственное бюджетное образовательное учреждение высшего профессионального
образования
Ижевская
государственная сельскохозяйственная академия
Кафедра
«Ремонт машин и технология конструкционных материалов»
КУРСОВАЯ
РАБОТА
по
дисциплине «Экономика и организация технического сервиса»
Тема:
Бизнес-план
организации поста ремонта автомобилей УАЗ
Выполнил
Яковлев Д.В.
студент
343 группы
Ижевск -
2014
СОДЕРЖАНИЕ
Возможности
предприятия (резюме)
.
Виды продукта (услуги)
.
Рынки сбыта продукта (услуги)
.
Конкуренция на рынках сбыта
.
Выручка от реализации (прогноз)
.
Местонахождение предприятия
.
План компьютеризации
.
План маркетинга
.
План производства
.
Организационный план
.
Юридический план
.
План бухгалтерского учета
.
План страхования
.
Финансовый план
.
Стратегии финансирования
Литература
Возможности предприятия (резюме)
Название предприятия - ООО «УАЗ-РЕМОНТ»
Основной целью (миссией) предприятия и
предпринимательской деятельности поста является оказание услуг, получение
прибыли.
Предоставляемая услуга - ремонт отдельных
агрегатов автомобилей УАЗ.
Заказчики и рынки сбыта будут находиться в
городе Ижевск и ближайших районах Удмуртской республики, ими будут являться
организации и владельцы автомобилей УАЗ, финансовое состояние которых позволит
в срок расплатиться за оказываемые услуги.
Уникальность услуги заключается в ее низкой
себестоимости за счет использования прогрессивных технологий, доступности
запасных частей и расходных материалов.
Предприятие расположено по адресу - Удмуртская
республика, г. Ижевск, Воткинское шоссе 194а.
Особенностями занимаемого помещения (общей
площадью 300 м2) является то, что оно оснащено специальным
оборудованием и приспособлениями, предназначенными для ремонта отдельных
агрегатов автомобилей УАЗ. Данное помещение у ООО «Город плюс» с арендной
платой 420 тыс. руб.
Финансовое состояние предприятия изначально
состоит из величины уставного капитала, кредита, общей суммой 958,8 тыс. руб. и
расходуется на приобретение оборудования (912,9 тыс. руб.), компьютерной
техники и мебели (45,9 тыс. руб.), покупку запасных частей (119,6 тыс. руб.).
Потребность в кадрах: на основное производство
(слесари по ремонту автомобилей) потребуется 4 человек, специалисты - 2
человека, руководство - директор.
Источники окупаемости проекта - прибыль и
амортизационные отчисления. Срок окупаемости проекта 0,52 лет.
Прогнозируемый объем выручки согласно расчетам
составляет 1815 тыс. руб. в год.
Перспектива развития - это снижение затрат,
повышение технической оснащенности, предоставление дополнительных услуг.
Руководитель предприятия - Яковлев Дмитрий
Васильевич. Возраст 20 лет.
Образование высшее - инженерно-техническое.
Интересы: ремонт техники, высокий заработок. Опыт работы на предприятии от 4
лет. Функциональные обязанности: заключение сделок и договоров. Показал себя с
положительной стороны, способен управлять коллективом, дисциплинирован.
1. Виды услуги
Данный бизнес-план разработан с целью
организации поста ремонта отдельных агрегатов автомобилей УАЗ. Выполнение работ
заключается в оказании услуг по ремонту следующих агрегатов автомобилей УАЗ:
коробка передач, раздаточная коробка, мост передний, мост задний (рисунок 1).

Коробка передач Раздаточная
коробка

Мост передний Мост задний
Рисунок 1 - Виды ремонтируемых агрегатов
Так как автомобили УАЗ очень широко используются
в каждой организации, их ремонт всегда будет перспективным направлением. Пост
ремонта агрегатов автомобилей УАЗ будет расположен на предприятии ООО «Город
плюс».
Предприятие расположено на окраине города, что
исключает напряженный график движения транспортных средств. Удобен подъезд
длинномерных машин и машин с прицепами.
Нашими клиентами могут быть все владельцы
автомобилей УАЗ. Потребители выберут наше предприятие, так как мы гарантируем
высокое качество ремонта.
На территории Удмуртской республики похожих
предприятий немного, что будет положительно сказываться на проблеме с
конкуренцией. Также понадобится приобретение лицензии на оказание услуги, что
обойдется в 25000 рублей.
Уникальность нашей услуги заключается в
повышении объема ремонта и низкой себестоимости за счет использования
современных технологий и расходных материалов. Чтобы клиенты знали о нашей
фирме, его необходимо как-то привлечь. Действенным методом по привлечению
клиента является реклама.
Таблица
1
Планируемая (возможная) цена ремонта отдельных
агрегатов автомобилей УАЗ
|
Ремонт
агрегата
|
Стоимость,
руб./ед.
|
|
Коробка
передач
|
5000-00
|
|
Раздаточная
коробка
|
4000-00
|
|
Мост
передний
|
5800-00
|
|
Мост
задний
|
5200-00
|
2. Рынки сбыта услуги
Основные клиенты предприятия - это
сельхозтоваропроизводители, автотранспортные предприятия, фермерские хозяйства,
частные предприниматели, государственные дорожные и муниципальные учреждения,
расположенные в центральной зоне Удмуртской Республике, со стабильным
финансовым положением и большим потенциалом финансирования. По условию,
оговоренному в наряде, клиенты платят аванс перед началом работы и оставшуюся
часть только после того, как все работы закончены и претензий клиента по
качеству нет. Таким образом, оплата услуг растягивается во времени, что
желательно для клиента.
Предлагаемые нами услуги просто необходимы на
рынке, поэтому мы предполагаем, что наши услуги будут пользоваться спросом.
Спрос на услуги капитальному ремонту будет только увеличиваться, это
обусловлено нехваткой ремонтных предприятий.
Мы собираемся использовать специальных агентов
для мониторинга и продвижения услуги на рынок, также предусматривается
авктивное размещение рекламы. Все это будет способствовать увеличению годовой
программы разрабатываемого поста.
Потребителя полностью устроит конечный
результат, а также цена оказываемой услуги, так как приобретение новой коробки
передач, раздаточной коробки, переднего и заднего мостов обошлось бы ему в 2 и
более раза дороже. Вследствие малой конкуренции по оказанию данной услуги цена
на нее для потребителя является вполне приемлемой.
На предоставленную нами услугу даем 6 месяцев
гарантии. В период это срока обеспечиваем техническое обслуживание, с выездом
специалистов к заказчику. Благодаря этой услуге мы наилучшим образом планируем
проникнуть на рынок
3. Конкуренция на рынках сбыта
Область деятельности предприятия по ремонту
отдельных агрегатов автомобилей УАЗ не является новой, динамичной; она
существует уже давно; наибольшее развитие было в советские годы. Владение
предприятием единоличное.
Основными нашими потенциальными конкурентами
являются все автосервисы, занимающиеся ремонтов агрегатов УАЗ, в частности
компания «Дизель-мотор-комплект». Данное предприятие достаточно динамично
развивается, поэтому может вызвать серьезную конкуренцию. Основным фактором,
определяющим конкуренцию, в настоящее время и в будущем, это качество
предоставления услуги и цены за ремонт.
При росте качества будет расти объем продаж, а,
следовательно и появление новых заказов. Эти факторы помогут нашему предприятию
стать конкурентоспособными на рынке услуг.
Наши конкуренты имеют стратегию развития, задача
которой заключается в увеличении объема продаж, получении наибольшего
количества заказов и тем самым завладеть рынком и стать монополистами.
Монополия на рынке услуг даст возможность нашим конкурентам диктовать цены, что
приведет к исчезновению с рынка малых и нестабильных предприятий.
Мы считаем, что качество предоставляемой нами
услугами выше. Чем у наших конкурентов, это связано с вполне определенной
специализацией нашего предприятия и внедрением новых технологий ремонта,
применением современно оборудования. Следствием этого является высокий уровень
обслуживания и качество ремонта.
Преимуществом нашего предприятия, по сравнению с
конкурентом, является наличие условий для клиента. При составлении договора и
приемке агрегата, клиенту предоставляется возможность с комфортом подождать
данный процесс в уютном офисе или наблюдать за процессом по желанию клиента,
либо покушать в столовой, которая находится рядом с офисом.
Таблица
2
Сравнительная
карта конкурентов (ремонт КПП)
|
Показатель
|
Предприятия
- конкуренты
|
Предприятие
предпринимателя
|
|
«Дизельмоторкомплект»
|
«ТехПромСервис»
|
|
|
1.
Объем продаж (количественно)
|
0
|
0
|
0
|
|
2.
Цена
|
-
|
-
|
+
|
|
3.
Качество продукта (услуги)
|
-
|
-
|
+
|
|
4.
Методы сбыта
|
-
|
-
|
+
|
|
5.
Культура обслуживания
|
0
|
0
|
0
|
|
6.
Методы работы с клиентурой
|
0
|
0
|
0
|
|
7.
Соблюдение графика заказов
|
-
|
-
|
+
|
|
8.
Время на получение продукта (услуги)
|
-
|
-
|
+
|
|
9.
Гарантии
|
0
|
0
|
0
|
|
10.
Режим работы
|
0
|
0
|
0
|
|
11.
Технологический уровень
|
-
|
-
|
+
|
|
12.
Квалификация кадров
|
0
|
0
|
0
|
|
13.
Наличие условий для клиентов
|
-
|
-
|
|
|
14.
Правовая защита клиентов
|
0
|
0
|
0
|
|
15.
Доверие к предприятию и исполнителям
|
0
|
0
|
0
|
|
16.
Выполнение договорных обязательств
|
0
|
0
|
0
|
|
17.
Реклама
|
-
|
-
|
+
|
|
18.
Эстетика, дизайн
|
-
|
-
|
+
|
(«+») - показатель по продукту (услуге)
предприятия - предпринимателя лучше, («0») - показатель по продукту (услуге)
равен,
(«-») - показатель по продукту (услуге)
предприятия-предпринимателя хуже.
4. Выручка от реализации (прогноз)
Цена на услугу в начальный этап будет зависеть
от цен конкурентов а аналогичную услугу. А в дальнейшем цена будет
формироваться за счет снижения себестоимости, и это будет главным условием
роста прибыльности и рентабельности производства. К важнейшим факторам роста
прибыли мы будем относить также: рост объема услуг, внедрение
научно-технических разработок и, как следствие, повышение производительности
труда, снижение себестоимости и улучшение качества оказываемой услуги.
Рассчитывается получить прибыль на вложенные
средства при уровне рентабельности 13,3% и доли заработной платы 40%.
С каждым клиентом заключается договор хранения
отремонтированного агрегата со сроком 6 месяцев и по истечении клиент обязан
забрать обратно. По истечении обусловленного срока хранения или срока,
предоставленного нашим предприятием для обратного получения вещи, клиент обязан
немедленно забрать переданную на хранение вещь. При неисполнении клиентом своей
обязанности, переданную на хранение, если иное не предусмотрено договором
хранения, после письменного предупреждения клиента самостоятельно продать вещь
по цене, сложившейся в месте хранения.
Размеры выручки будут зависеть от объема услуг и
планируемой цены за оказание услуги, и составлять 1614,8 тыс. руб. (табл. 3).
Мы сможем выйти на данный уровень оказываемой
услуги за счет внедрения научно-технических разработок, повышения
производительности труда и улучшения качества услуги, а также за счет успешно
проведенной рекламной кампании.
Таблица
3
Прогнозирование объема услуг и выручки на
ближайшие три года
|
Год
|
Наименование
показателя
|
Сроки
(месяцы, кварталы, год)
|
Всего
за год
|
|
|
1
|
2
|
3
|
4
|
5
|
6
|
7
|
8
|
9
|
10
|
11
|
12
|
|
|
1
|
Объем
продаж, ед. Коробка передач Раздаточная коробка Мост передний Мост задний
|
7
6 7 7
|
7
6 7 7
|
6
5 7 7
|
8
7 6 6
|
8
6 8 8
|
8
7 7 8
|
7
6 6 4
|
7
7 6 6
|
8
5 7 7
|
7
6 7 7
|
6
5 7 7
|
7
6 7 7
|
322
|
|
Цена,
руб./ед. Коробка передач Раздаточная коробка Мост передний Мост задний
|
5000-00
4000-00 5800-00 5200-00
|
|
Выручка
от реализации, руб.
|
136000
|
136000
|
127000
|
134000
|
152000
|
150200
|
114600
|
129000
|
137000
|
136000
|
127000
|
136000
|
1614800
|
|
2
|
Объем
продаж, ед. Коробка передач Раздаточная коробка Мост передний Мост задний
|
21
17 21 21
|
24
21 22 22
|
22
19 23 24
|
21
19 22 22
|
341
|
|
Цена,
руб./ед. Коробка передач Раздаточная коробка Мост передний Мост задний
|
5000-00
4000-00 5800-00 5200-00
|
|
Выручка
от реализации, руб.
|
404000
|
446000
|
444200
|
423000
|
1717200
|
|
3
|
Объем
продаж, ед. Коробка передач Раздаточная коробка Мост передний Мост задний
|
363
|
|
Цена,
руб./ед. Коробка передач Раздаточная коробка Мост передний Мост задний
|
5000-00
4000-00 5800-00 5200-00
|
|
Выручка
от реализации, тыс. руб.
|
1815000
|
|
|
|
|
|
|
|
|
|
|
|
|
|
|
|
|
|
|
|
|
|
5. Местонахождение предприятия
Юридический адрес нашего предприятия: УР, г.
Ижевск, Воткинское шоссе, 194а (здание ООО «Город плюс»).
Особенностью помещения, занимаемого нашим
предприятием, является то, что производственная площадь уже ранее
использовалась в качестве ремонтной мастерской. Помещение полностью
приспособлено для проведения ремонтных работ по ремонту отдельных агрегатов
автомобилей УАЗ.
Занимаемое нами помещение будет арендовано.
Требуемая производственная площадь
предполагается из условия:
:2800=300 м2
Необходимая площадь для организации
производства, с учетом на повышение объемов производства - 300 м2.
Балансовая стоимость:
Первоначальная
Бс=F∙H∙KП=300∙110∙368=12144000
руб. (5.1)
Остаточная
Бсо=Бс∙0,5=12144000∙0,5=6072000
руб.
Арендная плата:
Ап=(А0+0,1∙Бсо)∙(1+Ур)
(5.2)
Нами будет арендоваться помещение на сумму:
Ап=(6072000∙0,06+0,1∙75000)∙1,13=420156
руб. (таблица 4), выплачивать данную сумму будем ежегодно.
Коммерческая деятельность данного вида на
арендуемой площади разрешена, и для данного вида работ требуется получение
лицензии.
Это место выбрано в связи с тем, что арендуемое
помещение приспособлено для проведения ремонтных работ данного вида и требует
минимальных вложений. Рядом много организаций имеющих в своем парке автомобили
УАЗ, в связи этим будет хороший спрос на наше предложение из-за близкого
местоположения. Арендная плата за 1 м2 ниже, чем в центре города.
Таблица
4
Перечень передаваемых в аренду
зданий
|
Наименование
арендуемых основных средств
|
Количество
(м2)
|
Балансовая
стоимость, тыс. руб.
|
Норма
амортизации, %
|
Амортизационные
отчисления в год, тыс. руб.
|
|
|
Первоначальная
|
Остаточная
|
|
|
|
Помещение
|
300
|
12144
|
6072
|
6
|
364,32
|
6. План компьютеризации
Компьютеры при наличии программного обеспечения
облегчают работу предприятия. Если поручать компьютерную обработку материалов
специальным фирмам, то для этого потребуются большие денежные средства, которые
могут превосходить затраты на приобретение собственного компьютерного
обеспечения. Поэтому наше решение - иметь собственное компьютерное обеспечение.
План компьютеризации определяет потребность
предприятия в информации, описывает обеспечиваемые системой компьютеризации
решаемые задачи, оценивает доступные компьютерные системы, выдает рекомендации
по оптимальной компьютерной системе.
Для работы потребуется приобрести следующую
офисную технику:
персональный компьютер - 22 тыс. руб.;
многофункциональное устройство (принтер,
ксерокс, сканер) - 4-6 тыс. руб.
комплект программного обеспечения: лицензионный Windows,
лицензионный Office (Word,
Excel), антивирусные
программы, прикладные программы (1С: Бухгалтерия, 1С: Заработная плата и т. д.)
- на общую сумму 15-20 тыс. руб.
Также нужно приобрести офисную мебель
(комплект):
столы на общую сумму 6 тыс. руб.;
стол компьютерный 3 тыс. руб.;
стулья на общую сумму 3 тыс. руб.;
шкаф офисный 7 тыс. руб.;
диван - 13тыс. руб.;
Общая сумма приобретения офисной техники и
мебели:
+6+20+6+3+3+7+13=80 тыс. руб.
Компьютерная техника позволяет решать
большинство разделов бизнес-планов, дальнейшие разработки предприятия. Это
также облегчение труда при ведении бухгалтерского учета, ведении учета личного
состава и многое другое.
7. План маркетинга
Для максимальной загрузки производственных
мощностей предполагается использовать такие маркетинговые приемы, как
составление и заключение долгосрочных договоров с заказчиками на предоставление
услуги, ведение картотеки постоянных клиентов и предоставление льгот при
оказании услуги таким клиентам в виде скидок. Так же будет возможность для
предварительной записи на услугу.
Особенностью услуги, формирующей общественное
мнение о предприятии, будет являться высокое качество оказания услуги за счет
использования современного оборудования и материалов, применение прогрессивных
технологий по ремонту, доступную цену.
Для привлечение клиентов будет предоставляться
по оптимальной цене. Такой уровень цены будет достигнут благодаря современным
приемам ремонта и меньшей трудоемкостью выполняемых работ. На первоначальном этапе
оказания услуги планируется ремонт 322 агрегатов автомобилей УАЗ, а далее, по
мере освоения рынка, планируется выйти на уровень 363 агрегатов. Это увеличение
объема производства будет способствовать получению более высокой прибыли.
Использование результатов анализа цен и
состояния услуги на рынке можно сделать вывод о необходимости развития рынка,
не останавливаться на достигнутом.
К методам стимулирования продаж на нашем
производстве можно отнести минимальные затраты времени на оформление заказа,
более быстрый ремонт блоков цилиндров и его получение после ремонта.
Прием заказчиков будет проводиться в отдельном
кабинете. По желанию клиенты смогут ознакомиться с технологией ремонта детали,
заключить долгосрочный договор на предоставляемую услугу. Для реализации услуги
потребуется нанять маркетолога.
Предприниматель намерен реализовать услугу через
розничную сеть по предварительным заявкам по телефону.
Будет проводиться рекламная компания по
оказываемой услуге, так как реклама является действенным методом по привлечению
клиентов. Реклама нашей фирмы будет публиковаться в интернете, так же сделан
заказ на комплект визитных карточек (стоимость комплекта в 500 карточек - 1000
руб.).
8. План производства
Услуга будет производиться в арендуемом
помещении по адресу: г. Ижевск, Воткинское шоссе, 194а.
Годовая программа нашего поста составляет 322
единиц.
Предприятие начнет действовать сразу после
поступления заказов, за счет исправного современного оборудования достаточного
для ремонта и квалифицированных кадров.
Таблица
7
Трудоемкость работ по ремонту агрегатов
|
Марка
|
Трудоемкость,
чел-ч
|
|
Коробка
передач
|
10,8
|
|
Раздаточная
коробка
|
10,8
|
|
Мост
передний
|
10,2
|
|
Мост
задний
|
10,2
|
Трудоемкость работа по ремонту агрегатов
легковых автомобилей:
Т=Tтр∙Wтр;
(8.1)
Ттр=(Ттр1∙N1+Ттр2∙N2+Ттр3∙N3+Ттр4∙N4)/
Nобщ;
(8.2)
Ттр = (10,8∙86 +10,8∙72+
10,2∙82 + 10,2∙82)/322 = (928,8 + 777,6 + 836,4 +
,4) / 322 = 10,5 чел-ч;
Т=10,5∙341=3580,5 чел-ч.
Общая трудоемкость:
Тобщ=Т+0,25∙Т
Тобщ=3580,5+3580,5∙0,25=4475,6
чел-ч.
Годовой номинальный фонд времени:
Ф н = (Д к - Д пр -
Д вых )*n*tсм,
где Д к - число календарных дней в
году, дн.
Д пр - число праздничных дней в году,
дн.
Двых - число выходных дней в году,
дн.
N - число смен в
сутки
tсм
- время смены, ч.
Фн=(365-117)*1*8=1984 ч.
Годовой действительный фонд времени:
Фд = (Дк - Дпр -
Двых - Дот) *n*tсм*ή
(8.5)
где Дот - число дней отпуска в году, дн.
ή- коэффициент
невыхода на работу, ή=0,95
Фд=(365-117-28)*1*8*0,95=1672 ч.
Число основных производственных рабочих по
участкам списочное явочное соответственно:
Рсп=Туч/Фд.р. (8.6)
Руч.я.=Туч/Фнр (8.7)
Где Туч- трудоемкость работ по
участку, чел-ч.
Фд.р. и Фнр-
действительный и номинальный фонды времени рабочего, ч
Рсп=4475,6/1672 =2,6
Руч.я.= 4475,6/1984=2,2
Определим количество постов при выполнении
обслуживающих работ:
m=(TpW)/(Фрм∙n∙KП
∙Kрм),
(8.8)
где m-
количество постов;
Тр- трудоемкость ремонта (услуги)
одного объекта, чел-ч;
W- годовая программа
ремонта (услуги), ед.;
Фрм- действительный годовой фонд
времени рабочего односменной работе предприятия, ч.;
N - число смен
работы предприятия;
Кп - коэффициент средней плотности
работы, равный среднему числу рабочих на одном рабочем месте;
Крм - коэффициент загрузки рабочего
места.
Определим количество постов при выполнении
капитального ремонта:
Потребность в рабочей силе: в первый год и в
ближайшие годы будет задействованы 5 производственных рабочих. Потребности в
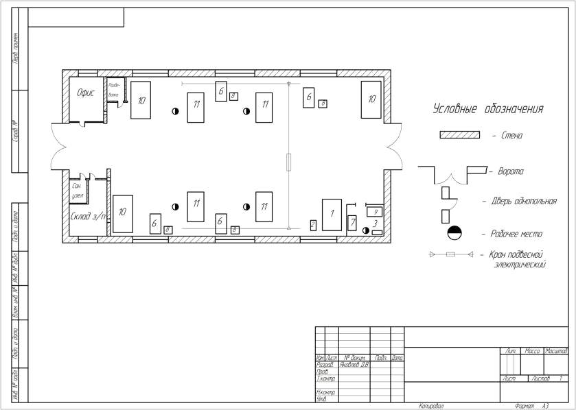
оборудовании и производственной площади указаны в таблице 9 и таблице 10
соответственно.
Арендуемое нами оборудование не является новым,
но находится в хорошем состоянии, это благоприятно для нас, за счет этого мы
выигрываем на затратах по покупке нового оборудования. Помещение, в котором
будет происходить производственный процесс, так же арендуется.
Режим работы предприятия полностью отвечает
режиму спроса ( в неделю 5 рабочих дней, 8 часов продолжительность смены).
Утилизация отходов будет производиться в строго
определенные места и в определенной форме, мероприятия по охране окружающей
среды будут проводиться в соответствии с требованиями.
Таблица
8
Сводные данные по определению численности
рабочих
|
Наименование
цеха (участка)
|
Трудоемкость
поста, чел-ч
|
Фонд
времени рабочих
|
Число
рабочих, чел.
|
|
|
Номин.
|
Действит.
|
явочное
|
списочное
|
|
|
|
|
расчетное
|
принятое
|
расчетное
|
принятое
|
|
Пост
по ремонту агрегатов
|
4475,6
|
1984
|
1672
|
2,6
|
4
|
2,2
|
3
|
Таблица
9
Ведомость оборудования
|
№
на плане
|
Наименование
|
Модель,
тип
|
Число,
ед.
|
Установленная
Мощность, кВт
|
Габариты
в плане, мм
|
Занимаемая
площадь пола, м2
|
|
|
|
|
Единицы
|
общая
|
|
единицы
|
общая
|
|
1
|
Установка
для мойки узлов и агрегатов
|
M315E3
|
1
|
33,4
|
33,4
|
4050x2150*2470
|
8.7
|
8,7
|
|
2
|
Компрессор
|
С415М
|
1
|
5,5
|
5,5
|
1750*600*
1350
|
1,0
|
1,0
|
|
3
|
Сварочный
инвентор
|
DC 5000M
|
1
|
7,2
|
7,2
|
500х340х240
|
0,17
|
0,17
|
|
4
|
Пневмо-гайковерт
|
Байкал
|
1
|
-
|
-
|
-
|
-
|
-
|
|
5
|
Домкрат
|
ДГ-6
|
2
|
-
|
-
|
-
|
-
|
-
|
|
6
|
Верстак
слесарный
|
ОРГ-1468-01
|
4
|
-
|
-
|
1200х800
|
0,96
|
3,84
|
|
7
|
Шкаф
сварщика
|
ОРГ-5129
|
1
|
-
|
-
|
800х430
|
0,344
|
0,344
|
|
8
|
Тумбочка
для инструмента
|
ОРГ-5147
|
4
|
-
|
-
|
666х550
|
0,366
|
1,464
|
|
9
|
Стол
сварщика
|
ССН-01
|
1
|
-
|
-
|
1385х880
|
1,218
|
1,218
|
|
10
|
Стеллаж
для хранения агрегатов
|
ОРГ-1857-03-1867
|
3
|
-
|
-
|
3000х2000
|
6
|
18
|
|
11
|
Стенд
для разборки и сборки агрегатов
|
Р1250
|
4
|
-
|
-
|
1430×940×940
|
0,9
|
3,6
|
|
12
|
Кран-балка
электрическая подвесная
|
-
|
1
|
3
|
3
|
-
|
-
|
-
|
|
13
|
Персональный
компьютер
|
Samsung
|
1
|
0,036
|
0,036
|
-
|
-
|
-
|
|
14
|
Стол
журнальный
|
Иж
Мебель
|
1
|
-
|
-
|
800х500
|
0,4
|
0,4
|
|
15
|
Стул
|
Иж
Мебель
|
4
|
-
|
-
|
400х400
|
0,16
|
0,16
|
|
16
|
Кресло
офисное
|
Иж
Мебель
|
1
|
-
|
-
|
500х500х1200
|
0,25
|
0,25
|
|
17
|
Шкаф
офисный
|
Иж
Мебель
|
1
|
-
|
-
|
458х1996х915
|
0,91
|
0,91
|
|
18
|
Стенд
обкаточный универсальный
|
КС-276
|
1
|
45
|
45
|
3400х1000х830
|
8
|
8
|
|
Всего
|
48,056
|
|
|
|
|
|
|
|
|
|
|
Расчетная площадь помещения:
Sрас.=
∑Sоб,
(8.9)
Где ∑Sоб
- сумма занимаемых оборудованием площадей, м
Sрас. =
8,7 + 1,0 + 0,17 + 3,84 + 0,344 + 1,464 + 1,218 + 18 + 3,6 + 0,4 +
,16 + 0,25 + 0,91 + 8 = 48,056 м2
Для расчета площади занимаемой машинами возьмем
усредненные габаритные размеры ремонтируемых агрегатов равный 2х1 м.
Таблица
10
Сводные данные по расчету площадей
|
№
на плане
|
Наименование
цеха
|
Площадь,
занимаемая машинами, м2
|
Площадь,
занимаемая оборудованием, м2
|
Значение
принятого переходного коэффициента
|
Расчетная
площадь, м2
|
Площадь,
принятая после планировки, м2
|
|
|
Ремонта
агрегатов автомобилей УАЗ
|
53,6
|
48,056
|
4,1
|
280
|
300
(12,5х24)
|
Таблица
11
Потребность в материальных ресурсах
|
Наименование
ресурсов
|
Год
первый
|
|
Количество,
ед.
|
Цена
единичного ресурса, руб.
|
Общая
стоимость, руб.
|
|
Запасные
части и комплектующие изделия
|
|
Коробка
передач
|
|
Комплект
прокладок
|
20
|
21
|
420
|
|
Ремкомплект
крышки
|
20
|
60
|
1200
|
|
Ремкоплект
флажков
|
22
|
8
|
176
|
|
Комплект
роликов первичного вала
|
14
|
33
|
462
|
|
Комплект
сухари муфты скольжения
|
15
|
17
|
255
|
|
Ремкомплект
стопорных колец
|
50
|
959
|
47950
|
|
Ремкомплект
(шайбы, кольца, гайки)
|
25
|
288
|
7200
|
|
Ремкомплект
подшипников
|
30
|
1226
|
36780
|
|
Раздаточная
коробка
|
|
Комплект
прокладок
|
25
|
29
|
725
|
|
Мост
передний
|
|
Комплект
прокладок
|
25
|
37
|
925
|
|
Комплект
вкладышей шкворня
|
23
|
18
|
414
|
|
Комплект
шкворня
|
15
|
468
|
7020
|
|
Мост
задний
|
|
Комплект
прокладок
|
24
|
37
|
888
|
|
Комплект
сателлитов дифференциала
|
30
|
395
|
11850
|
|
Комплект
колец
|
50
|
68
|
3400
|
|
Топливо
и смазочные материалы на технические цели
|
|
Топливо
|
1110
|
24
|
26602
|
|
Трансмиссионное
масло
|
2900
|
84
|
243600
|
|
Материалы
|
|
Электроды
СЧ-4
|
1500
|
6,3
|
9450
|
|
Электроэнергия
|
4,4
|
2,75
|
98527
|
|
Инвентарь
|
|
Огнетушитель
ОВП
|
2
|
645
|
1290
|
|
Огнетушитель
порошковый ОП-10
|
2
|
1145
|
2290
|
|
Лом
|
1
|
1200
|
1200
|
|
Ведро
|
2
|
145
|
290
|
|
Лопата
штыковая
|
1
|
250
|
250
|
|
Лопата
совковая
|
1
|
260
|
260
|
|
Емкость
для хранения воды 0,2 м3
|
1
|
1700
|
1700
|
|
Всего
|
505124
|
Таблица
12
Перечень основного оборудования, его стоимость и
способ получения
|
Наименование
оборудования
|
Способ
получения
|
Модель,
тип
|
Количество,
ед.
|
Сумма,
тыс. руб.
|
|
Собственное
оборудование
|
|
Стенд
для разборки и сборки агрегатов универсальный
|
доставка
|
М-776
|
50
|
4
|
200
|
|
Персональный
компьютер
|
магазин
|
Samsung
|
25
|
1
|
25
|
|
Стол
журнальный
|
магазин
|
Иж
Мебель
|
3
|
1
|
3
|
|
Стул
|
магазин
|
Иж
Мебель
|
0,6
|
4
|
2,4
|
|
Кресло
офисное
|
магазин
|
Иж
Мебель
|
1,5
|
1
|
1,5
|
|
Шкаф
офисный
|
доставка
|
Иж
Мебель
|
7
|
1
|
7
|
|
Принтер,
сканер, копир
|
магазин
|
Epson
|
7
|
1
|
7
|
|
Итого
|
-
|
-
|
-
|
-
|
245,9
|
|
Арендуемое
оборудование
|
|
Компрессор
|
в
наличии
|
С
415 М
|
26
|
1
|
26
|
|
Установка
для мойки узлов и агрегатов
|
в
наличии
|
М315Е3
|
350
|
1
|
350
|
|
Сварочный
инвентор
|
в
наличии
|
ТD
5000М
|
5
|
1
|
5
|
|
Пневмо-гайковерт
|
в
наличии
|
Байкал
|
3
|
1
|
3
|
|
домкрат
|
в
наличии
|
ДГ-6
|
2
|
2
|
2
|
|
Верстак
слесарный
|
в
наличии
|
ОРГ-1468-01
|
3
|
4
|
12
|
|
Шкаф
сварщика
|
в
наличии
|
ОРГ-5129
|
4
|
1
|
4
|
|
Стол
сварщика
|
в
наличии
|
ССН-01
|
5
|
1
|
5
|
|
Тумбочка
для инструмента
|
в
наличии
|
ОРГ-5147
|
2,5
|
4
|
10
|
|
Стенд
обкаточный универсальный
|
в
наличии
|
КС-276
|
100
|
1
|
100
|
|
Стеллаж
для хранения агрегатов
|
в
наличии
|
ОРГ-1857-03-1867
|
5
|
3
|
15
|
|
Кран-балка
электрическая подвесная
|
в
наличии
|
-
|
135
|
1
|
135
|
|
Итого
|
-
|
-
|
-
|
-
|
667
|
Указанные в таблице 12 цены арендуемой техники
приведены от половины балансовой стоимости нового оборудования.
Для собственного оборудования определим
амортизационные отчисления. Они будут равны
АО=245,9∙0,18=44,26 тыс.
руб/год
Для арендуемого оборудования рассчитываем
арендную плату:
Ап=Ао+(ОХР/100∙Б)(1+Ур);
(8.10)
Ап=667∙0,18+(0,1∙667)(1+0,13)=195,431
тыс. руб./год
бизнес план ремонт автомобиль
Таблица
13
Помесячный план график производства продукта
(оказание услуги)
|
Наименование
показателя
|
Сроки
(месяцы, кварталы, год)
|
Всего
за год
|
|
I
|
II
|
III
|
IV
|
V
|
VI
|
VII
|
VIII
|
IX
|
X
|
XI
|
XII
|
|
|
Объем
продаж, ед. Коробка передач Раздаточная коробка Мост передний Мост задний
|
7
6 7 7
|
7
6 7 7
|
6
5 7 7
|
8
7 6 6
|
8
6 8 8
|
8
7 7 8
|
7
6 6 4
|
7
7 6 6
|
8
5 7 7
|
7
6 7 7
|
6
5 7 7
|
7
6 7 7
|
322
|
Рисунок 2 - Схема производственного процесса
. Организационный план
Руководитель будет заниматься вопросами:
организации работы, распределение нагрузки между рабочими, решение о принятии
на пост работников, ведение бухгалтерского учета, ведение отчета в налоговую,
заключение договоров о покупке и поставке оборудования, приобретение
производственных материалов.
Производственные рабочие: приемка, исполнение,
выдача заказов, составление заявки на приобретение производственных материалов,
составление заявки на ремонт оборудования, если оно не снято с гарантии или его
не удается отремонтировать на предприятии.
Бухгалтер: Ведение бухгалтерского учета
имущества, обязательств и хозяйственных операций (учет основных средств, товарно-имущественных
ценностей, затрат на производство, реализации продукции, расчет с поставщиками
и заказчиками), участвует в проведении экономического анализа
хозяйственно-финансовой деятельности.
Заведующий постом: Выдача и учет запчастей, ТСМ
и спецодежды, распределение обязанностей и контроль.
Затраты на заработную плату включают: 1)
основную заработную плату, дополнительные выплаты и премии (26% основной
заработной платы), дополнительную заработную плату (10% основной зарплаты),
доплату с учетом районного коэффициента (Уральский коэффициент - 15% от суммы
основной зарплаты, дополнительных выплат и премий и дополнительной зарплаты);
) начисление на зарплату - страховые платежи 34%
(фонд социального страхования-2.9%; фонд медицинского страхования-5,1%; пенсионный
фонд-26%)
) годовой фонд заработной платы включает затраты
на зарплату и начислении, умноженные на 12.
Таблица
14
Потребность в персонале и заработной плате
(штатное расписание)
|
Категория
работников (должность, профессия), их разряд, класс (категория)
|
Год
первый
|
Год
второй
|
|
Потребность
(штатные единицы)
|
Ср.
зарплата за месяц (осн.), руб.
|
Дополнит.
выплаты и премии, руб.
|
Затраты
на зарплату, руб.
|
Начисления
на зарплату, руб.
|
Потребность
(штатные единицы)
|
Средняя
зарплата за месяц (осн.), руб.
|
Дополнит.
выплаты и премии, руб.
|
Затраты
на зарплату, руб.
|
Начисления
на зарплату, руб.
|
|
1.
Рабочие основного производства: 1.1 Слесарь 1.2 Сварщик 2. Специалисты 2.1
Бухгалтер 2.2 Заведующий цехом 3. Руководители: 3.1 Директор
|
4 1 1 1 1
|
15000 15000 18000 18000 20000
|
1500 1500 1800 1800 2000
|
18975 18975 22770 22770 25300
|
4933 4933 5920 5920 6578
|
4 1 1 1 1
|
15000 15000 18000 18000 20000
|
1500 1500 1800 1800 2000
|
18975 18975 22770 22770 25300
|
4933 4933 5920 5920 6578
|
|
ИТОГО
|
|
86000
|
|
|
|
|
86000
|
|
|
|
Дополнительная заработная плата для:
слесарь 15000*0,10 = 1500 рублей;
- сварщик
15000*0,10 = 1500 рублей;
- бухгалтер
18000*0,10 = 1800 рублей;
- заведующий цехом 18000*0,10 = 1800рублей;
- директор
20000*0,10 = 2000 рублей;
Доплата с учетом районного коэффициента для:
слесарь 0,15*(15000+1500) = 2475 рублей;
сварщик 0,15*(15000+1500) = 2475 рублей;
- бухгалтер
0,15*(18000+1800) = 2970 рублей;
- заведующий
цехом 0,15*(18000+1800) = 2970 рублей;
- директор
0,15*(20000+2000) = 3300 рублей;
Затраты на заработную плату для:
слесарь 15000+1500+2475 = 18975 рублей;
сварщик 15000+1500+2475 = 18975 рублей;
бухгалтер 18000+1800+2970 = 22770 рублей;
заведующий цехом 18000+1800+2970 = 22770 рублей;
директор 20000+2000+3300 = 25300 рублей;
Начисление на заработную плату для:
слесарь 0,26*18975 = 4933 рублей;
сварщик 0,26*18975 = 4933 рублей;
бухгалтер 0,26*22770 = 5920 рублей;
заведующий цехом 0,26*22770 = 5920 рублей;
директор 0,26*25300 = 6578 рублей;
Годовой фонд заработной платы
(((18975 + 4933) + 13%) * 4 + ((18975 + 4933) +
13%) * 1((22770 + 5920)
+ 13%) * 1((22770 + 5920) + 13%) * 1 + ((25300 +
6578) + 13%) * 1) * 12)
= 2442264 руб.
Таблица
15
Квалификационная матрица по видам работ
(ключевые работники)
|
Ключевые
работники по видам работ
|
Год
первый
|
Год
второй
|
|
Требуется,
чел.
|
Имеется,
чел.
|
Отсутствует,
чел.
|
Требуется,
чел.
|
Имеется,
чел.
|
Отсутствует,
чел.
|
|
Основные
работники 1. Производство 2. Продажа 3. Послепродажное обслуживание 4.
Транспорт Специалисты 5. Финансовое обслуживание 6. Бухгалтерия 7.
Юридическое обслуживание 8. Маркетинговые исследования
|
4
1
|
4
1
|
|
4
1
|
4
1
|
|
|
Вспомогательные
работники 9. Хранение 10. Обслуживание производства 11. Реклама 12.
Информационное обеспечение 13. Делопроизводство Руководство директор
|
1 1
|
1 1
|
|
1 1
|
1 1
|
|
|
Итого:
|
7
|
7
|
|
7
|
7
|
|
Рассмотрение кандидатур на принимаемые должности
будет проводиться в индивидуальном порядке через объявления, либо по совету
знакомых. В будущем будет предусмотрен вариант устройства студентов на
производственную практику в летнее время, которые в будущем смогут устроиться
на данное предприятие в качестве производственных мастеров. Главное требование
- интерес к работе, опыт, глубокие знания в сфере ремонта машин.
Основным приемом при отборе кандидатур будет
являться собеседование с руководителем, и испытательным сроком в течение двух
месяцев.
Вся система оплаты труда сдельная. Премия
начисляется по результатам работы, после определенного времени, не менее 2-х
лет продолжительности работы на предприятии. Так же предусмотрены
дополнительные выплаты за работу в выходные и праздничные дни.
Проверка оборудования проводится ежемесячно.
Проверку осуществляет предприниматель. Составляется акт осмотра, в который
заносят все отметки о состоянии оборудования.
Имеется возможность подготовки персонала
требуется в тех случаях, когда работник приходит на предприятие; когда
работника назначают на новую должность или поручают ему новую работу; когда у
работника не хватает навыков для выполнения своей работы, а также когда
происходят серьезные изменения в экономике организации или во внешней среде.
Рациональная организация бухгалтерского учета
предприятия основывается на психологическом исследовании личности бухгалтера,
определении уровня компетенций бухгалтера. Невозможно рационально организовать
учет без классификации затрат по статьям калькуляции, определения системы
оплаты труда бухгалтера и обеспечения оптимального соотношения затрат на
бухгалтерский учет и результатов от использования отчетности.
Рисунок 4 - Структура управления предприятия
Общие сведения о директоре:
Должность руководителя предприятия предлагается
занимать самому, так как я являюсь разработчиком данного поста. Возраст 20 лет.
Образование высшее - специальность «Технический сервис в АПК». Функциональные
обязанности директора: заключение сделок и договоров, контроль работы и
дальнейшее развитие данного предприятия.
10. Юридический план
Инициатором проекта и директором предприятия
будет являться Яковлев Дмитрий Васильевич, возраст 20 лет, обучающийся на 4
курсе по специальности «Технический сервис в АПК» в ИжГСХА. Юридический адрес
будущего предприятия; Удмуртская республика, г. Ижевск, Воткинское шоссе 79.
При регистрации предприятия следует обратиться к
юристу, в создании нового предприятия, желательно воспользоваться советами
знакомых предпринимателей, которые уже проходили эту процедуру, о том какой
именно юрист лучше разбирается во всех юридических тонкостях.
При создании предприятия будут использоваться
следующие регламентирующие законодательные и нормативные акты: Федеральный
закон «О статусе предпринимателей различных видов деятельности» 18.12.1994),
Гражданский кодекс РФ (действует с 01.01.1995), Федеральный закон «О защите прав
потребителей» (от 20.05.1997), Конституции Российской Федерации, Налоговый
кодекс.
Организационно-правовой формой предприятия будет
- общество с ограниченной ответственностью (ООО).
Форма собственности - частная
Достоинством данной
правовой формы является то, что участники общества с ограниченной
ответственностью не отвечают по его обязательствам и несут риск убытков,
связанных с деятельностью общества, в пределах стоимости внесенных вкладов;
уставный капитал определяется минимальным размером имущества общества; возможна
последующая реорганизация ООО в ОАО или в производственный кооператив (ПК).
Кроме того, организационно-правовая
форма ООО является более оптимальной в вопросах налогообложения, ведения учета
и получения налоговых льгот.
Полное наименование предприятия с учетом
организационно-правовой формы будет ООО «УАЗ-Ремонт». Необходимо получить в
государственном регистре справку о неповторимости названия.
При государственной регистрации ООО «УАЗ-Ремонт»
заявителем является учредитель (директор) создаваемого общества. Регистрирующим
органом является налоговая инспекция.
В налоговую инспекцию необходимо предоставить
следующие документы:
- подписанное
заявителем заявление о государственной регистрации по специальной форме
(подлинность засвидетельствована в нотариальном порядке);
- решение
о создании общества с ограниченной ответственностью в виде протокола;
- учредительные
документы 1 устав предприятия (подлинник);
- документы
об уплате государственной пошлины.
После постановки на учет нам выдадут свидетельство,
копии которого мы предоставим во все фонды и банк.
Учредительным документом по регистрации
предприятия ООО «УАЗ-Ремонт» является устав. В нем должны определяться:
наименование общества, его нахождение, предмет и цели деятельности общества,
порядок управления обществом, условии о размере и составе уставного
(складочного) капитала; о размере и порядке изменения долей каждого из
участников в уставном капитале.
Уставной капитал на момент регистрации общества
должен быть оплачен не менее чем на половину, оставшаяся часть подлежит оплате
в течение первого года деятельности.
Для открытия постоянного счета в банке
необходимо предоставить: заявку, нотариально заверенные копни учредительных
документов (устава), копию свидетельства о государственной регистрации,
ксерокопия паспортов лиц, имеющих право подписи банковских документов, карточки
с образцами подписей директора.
Дата начала реализации проекта - 26 июля 2014
года. В качестве учредителя предприятия выступает одно лицо, Яковлев Дмитрий
Васильевич.
Таблица
16
Размеры и составляющие уставного капитала (один
из вариантов)
|
Показатель
|
Размер
вклада, тыс. руб.
|
Доля
вклада, %
|
|
Уставный
капитал, всего
|
958800
|
100
|
|
в
том числе:
|
|
|
|
-
земельный участок;
|
|
|
|
-
здания (помещения);
|
|
|
|
-
оборудование;
|
912900
|
95,2
|
|
-
транспортные средства;
|
|
|
|
-
компьютерная техника;
|
32000
|
3,3
|
|
-
офисная мебель
|
13900
|
1,5
|
В обществе создается резервный фонд в размере 5%
от его уставного капитала и ежегодно пополняется за счет отчислений, которые
составляют не менее 5% от чистой прибыли. Резервный фонд составляет 47,94 тыс.
рублей. Управление предприятием осуществляется единолично, т.е. все решения по
управлению работой предприятия принимает единственный учредитель. Он утверждает
годовые отчеты, бухгалтерский баланс и распределяет прибыль, контролирует
работу предприятия, готовит отчетность в налоговую.
. План бухгалтерского учета
Бухгалтерский учет необходимо вести, чтобы
знать, насколько хорошо работает предприятие, и н каком направлении оно
движется (прогрессивно развивается, находиться в неизменном состоянии или
деятельность ухудшается).
В зависимости от размеров предприятия и объемов
реализаций продукта (услуги) возможны различные варианты ведения бухгалтерского
учета: иметь бухгалтера на постоянной основе: пользоваться услугами временного
бухгалтера; самому ввести бухгалтерский учет. Выбор варианта определяется
следующими факторами: денежными ресурсами, объемом работ. Для нашего
предприятия будет выгодно иметь бухгалтера на постоянной основе.
Основные функции бухгалтерского учета являются:
оформление и проведение финансовых документов; контроль за точностью и
своевременностью расчетов с потребителями, поставщиками и уплаты налогов;
составление отчетом деятельности предприятия; предоставление в срок налоговые и
иные государственные органы финансовые отчеты предприятия; участие в
планирование работы предприятия ценовой политике.
Система бухгалтерского учета обеспечивает высший
уровень точности обработки информации с малыми издержками, сведение к минимуму
воровства и мошенничества, своевременная выплата налогов.
Российская Федерация предусматривает следующие
виды налогов в системе налогообложения:
налоги и сборы федеральные;
налоги и сборы субъектов РФ (региональные);
местные налоги и сборы.
виды минерального сырья, налог на прибыль
(доход) организации, налог на доходы от капитала, подоходный налог с физических
лиц, взносы в государственные, социальные и внебюджетные фонды, госпошлина,
таможенная пошлина и таможенные сборы, налог на пользование недрами, налог на
воспроизводство минерально-сырьевой базы, налог на дополнительный доход от
добычи углеводородов, сбор за право пользоваться объектами животного мира и
воздушными, биологическими ресурсами, лесной налог, водный налог, экологический
налог, федеральные лицензионные сборы.
К региональным налогам и сборам относятся налог
на имущество организации (налог на недвижимость), транспортный налог, налог на
игорный бизнес, региональные лицензионные сборы.
К местным налогам и сборам относятся земельный
налог, налог на имущество физических лиц, налог ни рекламу, налог на
наследование и дарение, местные лицензионные сборы.
Упрощенную систему налогообложения могут
применять предприятия малого бизнеса и предприятия в тесном сотрудничестве с
малыми предприятиями.
Для того чтобы перейти на упрощенную систему налогообложения
необходимо, чтобы выручка (доход) от реализации за 9 месяцев того года, в
котором было подано заявление, не превышало 11 млн. руб. (без НДС); средняя
численность работающих не более 100 человек; остаточная стоимость, находящейся
в собственности, основных средств а материальных активов не превышала 100 млн.
руб.; у предприятия отсутствуют филиалы. Наше предприятие при годовой выручке
1614,800 тыс. руб. и количестве работников 7 человек имеет право перехода на
упрощенную систему.
При переходе на упрощенную систему
налогообложения предусматривается замена следующих налогов; налог на прибыль
организации; налог на добавленную стоимость; единый социальный налог (кроме
уплаты страховых взносов по обязательному медицинскому страхованию). Не заменяются
налог на доходы с физических лиц (подоходный налог, транспортный итог, налог на
рекламу).
При упрощенной системе налогообложения объектами
налогообложения являются доход и доход уменьшенный на величину расхода. Со
ставками 6% и 15%. Мы выбираем доход со ставкой 6%. В качестве налогового
периода выступает календарный год, а в качестве отчетных периодов: квартал,
полугодие, 9 месяцев и год.
При заполнении налоговой декларации предприятие
уплачивает налоги по упрощенной системе после каждого отчетного периода и
налогового периода.
. План страхования
Задачей плана страховании является: покатать
будущим инвесторам или кредиторам организуемого предприятия о возможных рисках
на пути реализации проекта и основных методом защиты от их влияния, то есть как
предприниматель предполагает выйти из сложившейся ситуации.
Перечень возможных типов рисков, которые могут
иметь место в деятельности на нашем посту ООО «УАЗ-Ремонт»:
. производственные;
2. финансовые;
. коммерческие;
. налоговые;
. риски, связанные с форс-мажорными
обстоятельствами.
Производственные риски обусловлены различными
нарушениями: нарушение производственного процесса; выход из строя
производственного оборудования; нарушение технологической дисциплины;
невыполнение поставщиками обязанностей по обеспечению, материалами и
комплектующими изделиями; низкий жизненный цикл услуги; некачественный подбор
рабочих и служащих; увольнение или смерть работников, владеющих новшеством
технологии; передача работниками предприятия отдельных секретов на сторону.
Коммерческие риски приводят к тому, что
предприниматель понесет потери в виде дополнительных расходов,
сверхпредусмотренных прогнозом, либо получит доходов ниже тех, на которые
рассчитывает. Коммерческие риски связаны с реализацией услуги на рынке: низкий
спрос из-за неверного выбора услуги; уничтожение, снижение цен из-за появления
новых предприятий конкурентов; ошибки менеджеров; уменьшение размеров и емкости
рынка; снижение платежеспособности спроса.
Финансовые риски могут вызываться: возможными
неблагоприятными социально-политическими изменениями в стране и регионе;
инфляционными процессами и колебаниями валютных курсов; неожиданными мерами
государственного регулирования в сфере материально-технического снабжения,
ценообразования и налогообложения: всеобъемлющими платежами, в том числе
несвоевременной оплатой клиентами окатанные услуги; трудностями в
прогнозировании уровня продаж. затруднениями в получении банковских кредитов.
Налоговые риски включают взимания дополнительных
налогов. В наложения штрафов налоговыми органами. Они возникают, когда
налоговое законодательство нечетко регулирует условия налогообложения того или
иного вопроса, неожиданные изменения в налоговом законодательстве, сделки
налогоплательщика можно переквалифицировать, невозможно использовать налоговые
льготы, у налогоплательщика неэффективна система внутреннего контроля, ошибки в
бухгалтерском умете, утрачены первичные документы или их ненадлежащее
оформление.
Риски, связанные с форс-мажорными
обстоятельствами - это риски, обусловленные непредвиденными обстоятельствами:
землетрясение, наводнение, пожары, транспортные катастрофы, межнациональные
конфликты, забастовки, смена политического курса страны.
Организационные меры по профилактике и
нейтрализации
. производственных рисков: действенный контроль
за ходом производственного процесса, усиление влияния на поставщиков путем их
дублирования, более качественный подбор рабочих: и служащих, распределение
конкретных рисков за работниками предприятия:
2. коммерческих рисков: организация
дополнительных рынков, систематическое изучение конъюнктуры рынка, создание
дилерской сети, рациональная ценовая политика создание сети сервисного
обслуживания, организация действующей рекламы:
. финансовых рисков: создаются системы
финансового менеджмента, производится работа с посредниками и потребителями на
условиях предоплаты;
13. Финансовый план
Составление финансового плана необходимо для
предоставления I достоверной
системы данных, определяющих ожидаемые финансовые I результаты деятельности
предприятия, обусловленные эффективностью производства выбранной услуги.
Прежде всего, открывая предприятие,
предприниматель должен иметь, информацию по обоснованию необходимых финансовых
средств, включая внутренние и внешние.
План прибыли и убытков (таблица 19) служит для
определения прибыли и убытков для каждого периода деятельности предприятия. В
нем сводится воедино ожидаемая выручка от реализации услуги и ожидаемые
производственные затраты.
План движения денежных средств (таблица 20)
необходим для обоснования источников поступления финансов в зависимости от
периода функционирования.
Финансовый план невозможно рассмотреть без
расчетного баланса (Таблица 21), служащего для отражения активов и пассивов
предприятия на начало и конец года работы поста диагностики, обслуживания и
ремонта автомобилей.
График безубыточности определяет точку объема
продаж, в которой общая выручка будет равен суммарным затратам на реализацию
услуге, то есть в которой предприятие будет способно покрывать свои затраты без
получения прибыли.
Таблица
17
Смета затрат до начала первых продаж и источники
финансирования (тыс. руб.)
|
Статья
затрат
|
Сумма
|
Источники
|
|
|
внутр.
|
внеш.
|
|
1.
Регистрация предпринимательской деятельности, всего 1.1 Госпошлина за регистрацию
1.2 Размножение учредительных и других документов 1.3 Регистрация в органах
статистики и фондах 1.4 Изменения в муниципальных органах самоуправления 1.5
Изготовление печати и штампа 1.6 Открытие банковского счета 1.7 Нотариальные
услуги (заверение подписей на банковских карточках и других документах)
|
27
4 1 7 3 5 5 2
|
|
|
|
2.
Патенты, лицензии, сертификаты качества
|
25
|
|
|
|
3.
Приобретение основных средств, всего 3.1 Оборудование 3.2 Компьютерная
техника и офисная мебель
|
958,8
912,9 45,9
|
|
|
|
4.
Реконструкция и ремонт зданий (помещений)
|
-
|
|
|
|
5.
Технологическая подготовка производства (5% от стоимости оборудования)
|
38,35
|
|
38,35
|
|
6.
Непредвиденные расходы
|
60
|
|
60
|
|
ИТОГО
|
1136,15
|
|
|
|
Источник
финансирования
|
|
|
1.
Уставный капитал
|
958,8
|
|
2.
Инвестиционный кредит
|
-
|
|
3.
Потребительский кредит
|
-
|
|
4.
Содействие госорганов разного уровня (субсидии, компенсации, дотации)
|
-
|
|
5.
Залоговый заем
|
-
|
|
6.
Беззалоговый заем
|
-
|
|
7.
Касса взаимопомощи
|
-
|
|
8.
Другие инвесторы (партнеры)
|
-
|
|
ИТОГО
|
958,8
|
|
Превышение
источников финансирования над затратами
|
177,35
|
Таблица
18
Отпускная цена реализации продукта (услуги)
(тыс. руб.)
|
Статья
затрат
|
Сумма
на годовой объем реализации продукта (услуги), тыс. руб.
|
|
1.
Запасные части
|
119,6
|
|
2.
Материалы
|
9,4
|
|
3.
Покупные комплектующие изделия
|
-
|
|
4.
Инвентарь, оснастка, приборы, инструмент
|
7,3
|
|
5.
Топливо и смазочные материалы на технологические цели
|
270,2
|
|
6.
Электроэнергия на технологические цели
|
98,527
|
|
7.
Транспортно-заготовительные расходы
|
40,65
|
|
8.
Основная заработная плата персонала
|
1392
|
|
9.
Дополнительные выплаты и премии
|
361,9
|
|
10.
Дополнительная заработная плата
|
139,2
|
|
11.
Доплата с учетом районного коэффициента
|
283,968
|
|
12.
Единый социальный налог (при упрощенной системе налогообложения только
страховые взносы в фонд пенсионного страхования)
|
-
|
|
13.
Содержание и эксплуатация оборудования
|
696
|
|
14.
Содержание и эксплуатация транспортных средств (легковой автомобиль)
|
-
|
|
15.
Производственная кооперация
|
-
|
|
16.
Утилизация отходов и охрана окружающей среды
|
40
|
|
17.
Маркетинговые исследования
|
-
|
|
18.
Подготовка, повышение квалификации и переподготовка кадров
|
302
|
|
19.
Аренда зданий (помещений)
|
13,56
|
|
20.
Аренда оборудования
|
166,131
|
|
21.
Амортизация собственного здания (помещения)
|
-
|
|
22.
Амортизация собственного оборудования
|
44,26
|
|
23.
Амортизация транспортных средств
|
-
|
|
24.
Амортизация компьютерной техники и офисной мебели
|
-
|
|
25.
Услуги банка
|
1,305
|
|
26.
Услуги страховой компании
|
-
|
|
27.
Оплата за телефон и почтово-телеграфные расходы
|
6
|
|
28.
Услуги бухгалтера, юриста
|
-
|
|
29.
Расходы на рекламу
|
10
|
|
30.
Выплаты по кредитам
|
348
|
|
31.
Проценты за кредиты
|
38,2
|
|
32.
Приобретение канцтоваров и др.
|
10
|
|
33.
Расходы на уборку помещений
|
10
|
|
34.
Себестоимость продукта (услуги)
|
4378,6
|
|
35.
Наценка (прибыль)
|
-2763,8
|
|
36.
Единый налог (или единый налог на вмененный доход)
|
-
|
|
37.
Транспортный налог
|
-
|
|
38.
Налог на рекламу
|
2.4
|
|
39.
Отпускная цена
|
1617,2
|
Сравнение полученной отпускной цены с ранее
применяемой отпускной ценой:
((1617,2-1614,8)/1614,8)*100%=0,15%
Таблица
19
План прибылей и убытков (тыс. руб.)
|
Показатель
|
Отчетный
период
|
|
Год
первый
|
Всего
|
Год
второй
|
|
1
кв.
|
2
кв.
|
3
кв.
|
4
кв.
|
|
|
|
1.
Остаток средств на начало периода
|
0
|
0
|
0
|
0
|
0
|
|
|
2.
Выручка от реализации
|
399
|
436,2
|
380,6
|
399
|
1614
|
|
|
3.
Переменные затраты, всего
|
261,51
|
268
|
270
|
243
|
1042
|
|
|
3.1
Запасные части
|
29,9
|
34,2
|
32
|
23,5
|
119,6
|
|
|
3.2
Материалы
|
2,35
|
2,35
|
2,35
|
2,35
|
9,4
|
|
|
3.3
Покупные комплектующие изделия
|
-
|
-
|
-
|
-
|
-
|
|
|
3.4
Инвентарь, оснастка, приборы, инструмент
|
1,8
|
2
|
3
|
0,5
|
7,3
|
|
|
3.5
Топливо и смазочные материалы
|
67,5
|
71
|
72
|
60
|
270,2
|
|
|
3.6
Электроэнергия
|
24,6
|
23,2
|
26
|
24,6
|
98,53
|
|
|
3.7
Транспортно-заготовительные расходы
|
10,16
|
10,16
|
10,16
|
10,1
|
40,65
|
|
|
3.8
Заработная плата производственного персонала с надбавками и доплатами
|
125,2
|
125,2
|
125,2
|
125.2
|
500,9
|
|
|
3.9
Единый социальные налог производственного персонала (при упрощенной системе
налогообложения только страховые взносы в фонд пенсионного страхования)
|
-
|
-
|
-
|
-
|
-
|
|
|
3.10
Транспортный налог
|
-
|
-
|
-
|
-
|
-
|
|
|
3.11
Единый налог (или единый налог на вмененный доход) по упрощенной системе
налогообложения
|
-
|
-
|
-
|
-
|
-
|
|
|
3.12
Производственная кооперация
|
-
|
-
|
-
|
-
|
-
|
|
|
4.
Постоянные затраты, всего
|
678
|
678,5
|
678
|
678
|
2712
|
|
|
4.1.
Заработная плата администрации с надбавками и доплатами
|
189,7
|
189,7
|
189,7
|
189,7
|
759
|
|
|
4.2
Единый социальный налог администрации (при упрощенной системе налогообложения
- отчисления в фонд пенсионного страхования)
|
-
|
-
|
-
|
-
|
-
|
|
|
4.3
Содержание и эксплуатация оборудования
|
235,5
|
235,5
|
235,5
|
235,5
|
942
|
|
|
4.4
Содержание и эксплуатация транспорта
|
-
|
-
|
-
|
-
|
-
|
|
|
4.5
Утилизация отходов и охрана окружающей среды
|
10
|
10
|
10
|
10
|
40
|
|
|
4.6
Маркетинговые исследования
|
-
|
-
|
-
|
-
|
-
|
|
|
4.7
Подготовка, повышение квалификации и переподготовка кадров
|
75,5
|
76,8
|
87
|
62,7
|
302
|
|
|
4.8
Аренда зданий (помещений)
|
105
|
105
|
105
|
105
|
420
|
|
|
4.9
Аренда оборудования
|
41,5
|
40
|
39
|
45,6
|
166,1
|
|
|
4.10
Амортизация здания (помещения)
|
-
|
-
|
-
|
-
|
-
|
|
|
4.11
Амортизация оборудования
|
11,05
|
10
|
11
|
12,2
|
44,26
|
|
|
4.12
Амортизация транспортных средств
|
-
|
-
|
-
|
-
|
-
|
|
|
4.13
Амортизация компьютерной техники и офисной мебели
|
-
|
-
|
-
|
-
|
-
|
|
|
4.14
Услуги бухгалтера, юриста
|
-
|
-
|
-
|
-
|
-
|
|
|
4.15
Проценты за кредиты
|
-
|
-
|
-
|
-
|
-
|
|
|
4.16
Услуги банка
|
0,32
|
0,4
|
0,25
|
0,32
|
1,305
|
|
|
4.17
Выплаты страховой компании
|
-
|
-
|
-
|
-
|
-
|
|
|
4.18
Оплата за телефон и почтово-телеграфные расходы
|
1,5
|
2
|
1
|
1,5
|
6
|
|
|
4.19
Расходы на рекламу
|
2,5
|
2,5
|
3
|
10
|
|
|
4.20
Налог на рекламу
|
0,6
|
0,6
|
0,6
|
0,6
|
2,4
|
|
|
4.21
Приобретение канцтоваров и др.
|
2,5
|
3
|
2,5
|
2
|
10
|
|
|
4.22
Расходы на уборку помещений
|
2,5
|
3
|
2,5
|
2
|
10
|
|
|
5.
Прибыль (убыток)
|
-540
|
-509
|
-568
|
-522
|
-2139
|
|
|
6.
Рентабельность, %
|
|
|
|
|
|
|
Таблица
21
Баланс (тыс. руб.)
|
Показатель
|
На
начало года
|
На
конец года
|
|
АКТИВ
1. Внеоборотные активы, всего
|
983,8
|
983,8
|
|
1.1
Нематериальные активы (патенты, лицензии, товарные знаки, сертификаты
качества и др.)
|
25
|
25
|
|
1.2
Основные средства (земельные участки, здания, помещения, машины, транспортные
средства, оборудование, компьютерная техника, офисная мебель и др.)
|
958,8
|
958,8
|
|
1.3
Незавершенное строительство
|
-
|
-
|
|
1.4
Долгосрочные финансовые вложения
|
-
|
-
|
|
1.5
Прочие внеоборотные активы
|
-
|
-
|
|
2.
Оборотные активы, всего
|
545,7
|
545,7
|
|
2.1
Запасы (запчасти, материалы, комплектующие изделия, топливо и смазочные
материалы и др. расходы будущих периодов)
|
545,7
|
545,7
|
|
2.2
Незавершенное производство
|
|
|
|
2.3
Готовая продукция
|
|
|
|
2.4
Дебиторская задолженность (покупатели, заказчики, выданные авансы)
|
|
|
|
2.5
Краткосрочные финансовые вложения
|
|
|
|
2.6
Денежные средства (касса, расчетный счет)
|
|
|
|
Итого
актив:
|
1529,5
|
1529,5
|
|
ПАССИВ
1. Капитал и резервы, всего
|
1028,8
|
1028,8
|
|
1.1
Уставный капитал
|
958,8
|
958,8
|
|
1.2
Резервный капитал
|
70
|
70
|
|
1.3
Добавочный капитал
|
-
|
-
|
|
1.4
Фонд социальной сферы
|
-
|
-
|
|
1.5
Нераспределенная прибыль прошлых лет
|
-
|
-
|
|
1.6
Нераспределенная прибыль отчетного года
|
-
|
-
|
|
2.
Долгосрочные и краткосрочные обязательства
|
-
|
0
|
|
2.1
Долгосрочные обязательства (кредиты и займы)
|
-
|
-
|
|
2.2
Краткосрочные обязательства (кредиты и займы)
|
-
|
0
|
|
2.3
Кредиторская задолженность (поставщики, посредники и др.)
|
|
|
|
2.4
Задолженность перед персоналом
|
|
|
|
2.5
Задолженность перед внебюджетными фондами
|
|
|
|
2.6
Задолженность перед бюджетом
|
|
|
|
2.7
Доходы будущих периодов
|
|
|
|
2.8
Прочие краткосрочные обязательства
|
|
|
|
Итого
пассив:
|
1028,8
|
1028,8
|
|
Баланс:
на начало года на конец года
|
1529,5
1028,8
|
1529,5
1028,8
|
14. Стратегия финансирования
Индекс инфляции - показатель роста цен за данный
период. С каждым периодом времени происходит увеличение инфляции, то есть
происходит рост цен (на продовольственные товары, цены на электроэнергию, на
услуги юристов и т.д.). При этом необходимо будет поднимать заработную плату
производственному персоналу. С ростом инфляции предпринимателю необходимо
дополнительные инвестиции. С учетом индекса инфляции предприниматель определяет
потребность в инвестициях.
К внутренним инвестициям нашего предприятия
относятся: уставный капитал - 958,8 тыс. руб.; резервный фонд (накопления
предпринимателя) - 70 тыс. руб.; прибыль - -2139 тыс. руб.; амортизационные
отчисления - 166,131 тыс. руб.
Срок окупаемости проекта определяется так:
Т = К/Дг;
Где Т - срок окупаемости, лет;
К - капиталовложения (инвестиции внутренние и
внешние), тыс. руб.
Дг - годовые (прибыль плюс
амортизация), тыс. руб.
Т=1028,8/1972,7=0,52 лет.
ЛИТЕРАТУРА
1.
Дипломное и курсовое проектирование: методические указания / В.В. Касаткин,
О.Б. Поробова, Н.Ю. Литвинюк, С.В. Корляков, А.И. Зорин. - Ижевск: ИжГСХА,
2003.-59с.
.
Зорин, А.И. Эффективность агроинженерного ремонтообслуживания: монография /А.И.
Зорин. - Ижевск: «Удмуртия», 2004. - 534с.
.
Надежность и ремонт машин / В.В. Курчаткин, Н.Ф. Тельнов, К.А. Ачкасов и др.;
под ред. В.В. Курчаткина. - М.: Колос, 2000.- 776 с.
.
Техническое обслуживание и ремонт машин в сельском хозяйстве: учебное пособие /
В.И. Черноиванов, В.В. Бледных, В.Э. Северный и др.; под ред. В.И.
Черноиванова. - М. - Челябинск: ГОСНИТИ, ЧГАУ, 2003.- 992 с.
.
Юдин, М.И. Организация ремонтно-обслуживающего производства в сельском
хозяйстве: учебник / М.И. Юдин, Н.И. Стукалин, О.Г. Ширай - Краснодар: КГАУ,
2002.- 944 с.