Зоогигиенические требования и создание нормированного микроклимата при беспривязном содержании коров
Курсовая работа
Зоогигиенические требования и
создание нормированного микроклимата при беспривязном содержании коров
Введение
Поддержание высокой продуктивности животных и
обеспечение ветеринарного благополучия на фермах невозможно без соблюдения
правил гигиены содержания, кормления, ухода, выращивания молодняка и
эксплуатации помещений. Гигиена сельскохозяйственных животных - это
ветеринарная наука о профилактике на организм животных стрессовых ситуаций,
зависящих от климатических, метеорологических, почвенных факторов, условий
кормления, содержания, технологических решений зданий, заложенных в проекты.
Зоогигиена начинается с охраны животноводческих объектов от заноса инфекций и
заканчивается разработкой мер по утилизации отходов производства; она
предупреждает аэрогенный путь распространения микроорганизмов, разрабатывает
зооветеринарные разрывы и санитарно-защитные зоны; формирует принципы
заполнения и освобождения помещения, профилактических перерывов в секциях,
определяет количество животных в секциях и помещениях, а также оптимальные
условия содержания, кормления, поения и ухода за животными для получения от них
экологически чистой, безопасной для человека продукции, отвечающей современным
регламентом и ГОСТам.
Ветеринарная гигиена основывается на профилактике
болезней с учетом экологической цепочки «воздух - почва - вода - корма -
животные - продукция - охрана окружающей среды - человек». Разрыв этой цепи
приводит к непоправимым последствиям как для здоровья животных, так и человека.
Поэтому все зоогигиенические нормативы согласовываются с Государственной
санитарно-эпидемиологической службой. Зоогигиену нельзя отрывать от
ветеринарной санитарии, которая предусматривает мероприятия по дезинфекции,
дератизации и т. д., способствуя тем самым соблюдению зоогигиенических
нормативов.
Зоогигиенические нормативы разрабатываются рядом
научных учреждений (Гипронисельхоз, ВНКИВСГЭ, ВИЖ, ВИГИС, МГУПБ и другими),
утверждаются на бюро отделений ветеринарной медицины и зоотехнии РАСХН, после
чего вносятся в «Ведомственные нормы технологического проектирования» по видам
животных. С учетом этих ВНТП проектные институты разрабатывают индивидуальные и
типовые проекты на строительство, реконструкцию и эксплуатацию ферм.
К настоящему времени такие нормы разработаны для всех
видов сельскохозяйственных животных, в том числе содержащихся в фермерских
хозяйствах. Зооветспециалисты участвуют в разработке заданий на проектирование
и в подготовке проектов, в их экспертизе, выборе местности для строительства и
приеме объектов в эксплуатацию; комплектовании ферм, карантинировании,
транспортировке животных.
В соответствии с ветеринарно-санитарными правилами и
зоогигиеническими нормативами любая ферма должна работать по принципу
«закрытого типа», быть огорожена, озеленена, разделена на «черно-белые» зоны,
иметь санпропускник, дезбарьеры и дезковрики при въезде на территорию и входе в
помещения. Все производственные процессы на ферме должны идти «спереди-назад»,
без перекрещивания путей при перегруппировке животных и работе транспорта.
Большинство помещений, особенно для молодняка нужно
эксплуатировать по принципу «все свободно - все занято», соблюдать
профилактические перерывы для проведения комплекса ветеринарно-санитарных
мероприятий (чистка, ремонт, мойка, дезинфекция с предоставлением
«биологического отдыха»).
Сама ферма в зависимости от количества, вида и
возрастных групп животных должна быть обеспечена ветеринарными объектами:
ветпунктом, изолятором, карантином, убойно-санитарным пунктом или убойной
площадкой, иметь контейнеры для сбора трупов и конфискатов. Все трупы должны
свозить на ветеринарно-санитарные заводы и лишь при их отсутствии допускается
утилизация в биотермических ямах.
Огромную роль в поддержании здоровья животных и
получении качественной продукции играет квалификация работников.
Поэтому зоотехники и ветеринарные врачи должны
постоянно проводить с обслуживающим персоналом зооветучебу, используя при этом
материалы по данной тематике.
1. Обзор литературы
.1 Значение микроклимата и факторы его формирования
Закономерная последовательность атмосферных явлений, создающихся в данной
местности в результате многолетнего воздействия солнечной радиации, почвы,
перемещения воздушных масс, обусловливающих в этой местности характерный режим
погоды или совокупность погод, наблюдающихся на протяжении длительного времени,
называют климатом.
Климат той или другой местности в противоположность погоде отличается
большей устойчивостью. Каждая географическая территория характеризуется
свойственными ей климатическими особенностями.
Климат обширных географических территорий называют макроклиматом. И
наоборот, климат ограниченного пространства включает понятие микроклимата.
В животноводстве под микроклиматом понимают, прежде всего климат
помещений для животных, который определяют как совокупность физического
состояния воздушной среды, его газовой, микробной и пылевой загрязнённости с
учётом состояния самого здания и технологического оборудования.
Микроклимат - климат внутри помещения. Он имеет огромное значение для
формирования конституции животного, его продуктивности и резистентность.
Микроклимат слагается из нескольких параметров, температуры, влажность,
освещения, скорость движения воздуха, газовый состав воздуха. Не соблюдение
этих параметров, хотя бы одного из них, приведёт к патологическим изменениям в
организме. Однако значимость и количественная величина каждого из них зависит
от назначения сельскохозяйственной постройки и животных, которые будут в них
находиться. Для отдельных групп животных тот или иной параметр микроклимата
будет более значимым или наоборот почти нейтральным. В создании оптимального
микроклимата принимает целый ряд специалистов: зоотехник, ветеринар, строители,
инженеры, механики и как завершающее звено в этой цепи технический персонал, но
главная роль несомненно принадлежит зооветспециалистам.
На формирование микроклимата в помещениях для животных значительное
влияние оказывает местный климат, сезон года, термическое и влажное состояние
окружающих конструкций здания, устройство вентиляции и уровень воздухообмена,
отопление, канализация, способы уборки и удаления навоза из помещений,
освещение, а также технология содержания животных, плотность и размещение,
распорядок дня на ферме, тип кормления, способы раздачи кормов, поение и т.д.
Большое влияние имеет строительно-эксплутационное и конструктивные особенности
здания. Рельеф местности насколько может он улучшить микроклимат, на столько же
может ухудшить. Формирование микроклимата обуславливается также удаленностью
животноводческих ферм от промышленных предприятий и населенных пунктов,
защищенностью от господствующих холодных ветров. Немалое значение имеет глубина
залегания грунтовых вод, расположение здания к сторонам света. Немаловажное
значение имеет внутренняя планировка зданий, площадь и кубатура в расчете на
голову, а также количество рядов стойл, станков, клеток, секций, кормовых и
навозных проходов, наличие в помещении тамбуров и тепловой завесы в них,
использование инфракрасных облучателей для молодняка, утеплённость дверей,
размер и количество окон, и их остекление. Важное значение имеет устройство
полов, так как через пол идет теплопотеря от 20 до 40% всех теплопотерь, от
качества пола зависит заболеваемость животных простудными заболеваниями.
1.2 Влияние микроклимата на здоровье животных
Микроклимат может оказывать благоприятное и неблагоприятное воздействие
на организм животных и их продуктивность. При наличии неблагоприятного
микроклимата животные подвергаются к различным, по силе факторам и это может
привести к нарушению состояния равновесия между организмом и окружающей средой,
вследствие чего у животных нередко возникают различные заболевания. Влияние
факторов окружающей среды следует рассматривать только в их сочетании. Так
степень влияния на организм температуры воздуха тесно связана с состоянием его
влажности и скорости движения. Температура окружающей среды оказывает
наибольшее воздействие на животных, так как она непосредственно влияет на
тепловой баланс организма, изменяя тем самым течение жизненно важных процессов.
Деятельность терморегуляторных механизмов находится под контролем центральной
нервной системы, что позволяет животному приспосабливаться к различным
температурным колебаниям окружающей среды и кратковременно переносить
значительные отклонения температуры воздуха от обычных величин. Понижение
температуры ниже критической отметки ведёт к повышению обмену веществ и
повышению продукции тела в организме, что отвлекает энергию дополнительно от
энергии, которая могла пойти на продуктивность. Повышение потерь тепла ведёт к
перерасходу кормов. Если компенсация потерь будет невозможной, несвоевременной
или неполноценной, то наступит снижение продуктивности. При небольших и
непродолжительных переохлаждений, помимо сосудистой реакции кожи,
сопровождающейся уменьшением её температуры, замедляется сердцебиение и
дыхание. Однако если понижение температуры более значительное или
продолжительное, механизм физической терморегуляции становится недостаточным
для сохранения теплового баланса организма. В таких случаях включается механизм
химической терморегуляции, начинается усиление теплопродукции. Первоначально
усиливается энергичное движение и активизируется терморегуляционный тонус всех
мышц. Затем появляется дрожь в виде сокращений мышц кожи.
При длительном воздействии на организм животного крайне низких
температур, процессы терморегуляции нарушаются, снижается температура тела,
наступает переохлаждение, замедление обменных процессов, паралич и затем
смерть. Особенно опасны переохлаждение для молодняка, когда терморегулирующие
механизмы ещё не сформировались и организм подвержен влияниям окружающей среды
очень сильно и любые резкие, и значительные перепады температур могут вызвать
нежелательные последствия. Профилактика переохлаждения животных предусматривает
содержание их в помещениях с оптимальными условиями температурного режима, а
также рационального кормления.
Многие виды сельскохозяйственных животных высокие температуры значительно
хуже переносят, чем низкие. Подъём окружающей температуры за пределы
допустимой, отрицательно сказывается на здоровье животных. Вначале понижается
обмен веществ, вследствие теплового перенапряжения снижается аппетит,
ослабляется секреторная, ферментная, моторная функции желудочно-кишечного
тракта. Питательные вещества корма, в таком случае, плохо усваиваются организмом,
потребление корма и питательных веществ соответственно снижается. Отсюда
вытекает значительное снижение продуктивности. При высоких температурах
воздуха, несмотря на снижение уровня гемоглобина и термоппродукции, учащается
дыхание и работа сердца, изменяется морфологический состав крови, соотношение
белковых фракций, содержание общего белка и минеральных компонентов в сыворотке
крови. Вследствие обильного потоотделения, организм животного теряет много
хлоридов и других солей, а также витаминов. Это следует учитывать при
профилактике высокотемпературного стресса. Следовательно, для нормальной
жизнедеятельности организма животного нежелательны им слишком низкие, или
слишком высокие температуры. Они вызывают перенапряжение в деятельности
основных органов и систем, что вызывает истощение их. Вследствие такой
постоянной реадаптации организма к неоптимальным условиям окружающей среды
снижается, как правило, продуктивность, эффективность использования кормов,
растёт число заболеваний, то есть понижается резистентность организма, растёт
число выбракованных животных. Только поддержание в помещениях для содержания
животных оптимальных температур воздуха, обеспечит наиболее экономное и
физиологичное течение обмена веществ и ненапряжение функционирования органов и
систем, при условие рационального и сбалансированного кормления, сохранения
здоровья и получения высокой продуктивности.
Гигиеническое значение влажности воздуха очень велика. Влажность во
многом определяет микроклимат, чем оказывает как прямое, так и косвенное
влияние на животное. Прямое влияние сводится к воздействию на терморегуляцию.
Высокая относительная влажность отрицательно влияет на организм животного, его
теплоотдачу, как при высоких, так и при низких температурах воздуха. Из
организма животных влага удаляется через кожу виде пота и из дыхательных путей
в газообразной форме. Высокая влажность воздуха в животноводческих помещениях
приводит к конденсации водяных паров на потолке, стенах, металлических
конструкциях, значительно сокращая срок их службы, а также уменьшая
воздухопроницаемость и намного увеличивая теплопроводимость. В таких условиях
интенсивно развиваются микроорганизмы как не патогенные, так и возбудители
различных болезней, грибы, которые поражают конструкции, корма и главное
животных. Для животных вреден не только сильно влажный, но и сильно сухой
воздух. В таких условиях высыхает кожа, слизистая оболочка дыхательных путей,
ротовой полости и увеличивается потоотделение. Снижается сопротивляемость
организма к возбудителям инфекционных заболеваний. В результате долгого
воздействия сухого воздуха высыхает копытный рог, что приводит к его трещинам.
Чем суше воздух, тем больше пыли накапливается в нём. Поэтому, влажность в
помещение следует поддерживать в пределах зоогигиенических норм.
Скорость движения воздуха оказывает существенное влияние на теплоотдачу
организма животных. Зимой повышенная скорость движения воздуха приводит к
охлаждению организма животного. Это происходит потому, что если температура
воздуха ниже чем кожи и буферного слоя воздуха в волосяном покрове, то при
повышенной скорости движения воздуха нарушается воздушная оболочка, холодные
потоки воздуха соприкасаются с кожными покровами, и вызывает усиление
теплоотдачи из организма путём испарения и конвекции. Из вышеизложенного следует,
что при высоких температурах подвижный воздух предохраняет животных от
перегрева, а при низких является причиной переохлаждения. Это особенно
необходимо учитывать при выращивании молодняка сельскохозяйственных животных,
которые более чувствительны к повышению скорости движения воздуха. Достичь
этого можно только в тех хозяйствах, где технологии производства физиологически
обоснованы и отвечают следующим требованиям: наличие стада с высоким
генетическим потенциалом продуктивности; обеспеченность полноценными кормами и
водой хорошего санитарного качества; создание оптимального микроклимата и
условий содержания; организация надежной ветеринарно-санитарной охраны и защиты
животноводческих предприятий, а также охраны природной среды; про-, ведение
необходимого ухода за животными квалифицированными, правильно подобранными,
подготовленными и размещенными кадрами.
Поддержание высокой продуктивности животных
достигается за счет оптимизации условий содержания, постоянного обеспечения
высокого уровня санитарно-гигиенической культуры. В оптимизации условий среды
содержания отражено основное положение зоогигиены, требующее создания гармонии
- баланса между организмом животных и средой их обитания, что особенно важно
при интенсивных технологиях производства. При невозможности создания здоровой
среды для животных нельзя говорить о реальности сохранения их здоровья и
получения от них высокой продуктивности.
Знания зоогигиены необходимы для усвоения основных
положений по охране здоровья животных, правильного решения вопросов по
предупреждению заболеваний, повышенной продуктивности и получению
высококачественной животноводческой продукции.
В зимний период скорость движения воздуха зависит от эффективности работы
вентиляционной системы и уровня воздухообмена. Поэтому для установления
оптимальных параметров скорости движения воздуха нужно организовывать
отлаженную работу вентиляционной системы.
Кислород - бесцветный газ, важнейшая составная часть воздуха. Без него
жизнь невозможна, так как только при кислороде осуществляются процессы
окисления, необходимые для жизни клеток и организма в целом. Животные в
процессе газообмена потребляют в среднем за час , в расчёте на килограмм живого
веса следующее количество кислорода(в мл) : коровы-328; овци-343; свиньи-392;
куры-946. Количество потребляемого кислорода зависит от возраста, пола,
продуктивности и физиологического состояния животного. Организм животного очень
чувствителен к недостатку кислорода, следствием которого является неполное
окисление белков, жиров, и углеводов и в результате накопления органических
кислот и токсических продуктов, при этом нарушается обмен веществ, и у животных
возникают различные заболевания.
Углекислый газ - бесцветный газ. Основным источником поступления
углекислого газа в животноводческие помещения является воздух выделяемый
животными. За один час в расчёте на один килограмм живого веса корова выдыхает
0,306 литра углекислого газа, свинья-0,336л., курыица-0,895л., овца-0,341л. У
млекопитающих животных увеличение количества углекислого газа в крови вызывает
возбуждение дыхательного центра, в результате чего учащается дыхание. В отличие
от этого у птиц, повышение концентрации углекислого газа в крови способствует
замедлению дыхания и может вызвать даже полную его остановку. В закрытом
помещение, продолжительное содержание животных, при повышенной концентрации
углекислого газа, отрицательно влияет на их здоровье и продуктивность, так как
снижаются окислительные процессы. В организме, повышается кислотность тканей,
уменьшается щелочной резерв крови и наступает деминерализация костной ткани, в
крови гемоглобин будет соединяться с углекислым газом, образуется
карбогемоглобин, при повышении его концентрации в крови нарушается
транспортировка кислорода к клеткам, в результате этого и происходят
вышеперечисленные изменения. Выдыхание воздуха с повышенным содержанием
углекислого газа вызывает нарушение терморегуляции в организме-способности
сохранять постоянство температуры тела при резких колебаниях температуры
окружающей среды. Содержание углекислого газа в количестве 1% и выше ведёт к
хроническому отравлению, которое проявляется в вялости, снижении резистентности
организма и продуктивности животных. Определение содержания углекислого газа в
воздухе животноводческих помещений необходимо для выявления их гигиенического состояния,
так как позволяет судить об уровне воздухообмена и качестве воздуха.
Допускаются следующие показатели концентрации углекислого газа: в помещение для
взрослых животных 0,2- 0,25%; для молодняка и племенного скота 0,15-0,2%.
Аммиак - бесцветный газ с едким запахом. В помещениях для животных аммиак
образуется в результате разложения органических остатков содержащих азот (моча,
кал, загрязнённая подстилка). Повышенная концентрация аммиака характерна для
коровников, в которых неудовлетворительно работает канализация, недостаточная
вентиляция, плохой пол и низкое санитарное состояние помещение. Аммиак
скапливается у пола и навозных каналов. При низкой температуре и высокой
влажности аммиак поглощается стенами и подстилкой, а при повышении температуры обратно
выделяется. Аммиак - токсичный газ, который в повышенных концентрациях весьма
отрицательно влияет на организм животных. Продолжительное вдыхание воздуха с
содержанием небольшого количества аммиака вызывает ослабления резистентности
организма и приводит к возникновению заболеваний, особенно лёгочных. Это
объясняется тем, что создаётся благоприятное условие для развития условно
патогенной микрофлоры на слизистой оболочке дыхательных путей. Установлено, что
0,09% концентрации аммиака возбуждающе действует на дыхательный аппарат, а 0,5%
может вызвать воспаление лёгких. От вдыхания такого воздуха может наступить
смерть, в результате отёка лёгких или спазма дыхания.
Сероводород - бесцветный газ с ярко выраженным неприятным запахом. В
животноводческих помещениях сероводород образуется при разложении белковых
веществ, а также поступает из кишечных выделений животных. Сероводород является
сильно токсичным газом и в высоких концентрациях действует наподобие синильной
кислоты. Токсичность его увеличивается, когда он смешивается с газами, а также
при высокой влажности воздуха. При вдыхании сероводорода, содержащегося в
воздухе, он соприкасается с влажными слизистыми оболочками дыхательных путей и
глаз, соединяется с тканевыми щёлочами. В результате образуется сульфид натрия
или калия, который вызывает воспаление слизистой оболочки. Попадая в кровь,
образуется опять сероводород, он отрицательно действует на нервную систему, и
вызывает общее отравление организма. Кроме того, соединяясь с гемоглобином,
образует сернистое железо, после чего гемоглобин не присоединяет кислород,
наступает кислородное голодание тканей организма. Сероводород блокирует
активность ферментов, необходимых для клеточного дыхания. Токсичность
сероводорода начинает проявляться в концентрациях выше 0,01% (0,015 мг/л) и
представляет опасность для людей и животных. Предельнодопустимая концентрация
0,01%. Наличие сероводорода является показателем санитарного состояния
помещений для животных.
Угарный газ или окись углерода (СО) - бесцветный газ, без запаха. В
воздухе животноводческих помещений он может появляться при неполном сгорании
топлива в отопительной системе. Количество угарного газа может увеличиваться за
счёт выхлопных газов двигателей внутреннего сгорания, в которых содержится 6-7%
угарного газа. При попадании в кровь, угарный газ образует с гемоглобином
стойкое соединение - карбоксигемоглобин, после чего гемоглобин не присоединяет
кислород, наступает голодание клеток, тканей, накапливается недоокисленные
продукты обмена. Признаки отравления - учащенное дыхание, судороги, коматозное
состояние, нарушение деятельности ЦНС. Предельнодопустимая концентрация
угарного газа 0,002 мг/л.
Пыль, которая накапливается в животноводческих помещениях в результате
выполнения производственных операций, непосредственно действует на кожу, глаза
и органы дыхания. При попадании на кожу пыль вызывает зуд, возникают различного
рода дерматиты, воспаления. Попадая на слизистую глаз пыль, способствует
развитию коньюктивита и кератита. Пылевые частички, попадая в дыхательные пути,
раздражают и травмируют слизистые оболочки носа, гортани, трахеи, тем самым
способствуют возникновению и развитию заболеваний.
В воздухе закрытых животноводческих помещений часто создаются условия для
развития различных микроорганизмов. По сравнению с атмосферным, в них число
микроорганизмов превышает в 50-100 раз. Из болезнетворных микроорганизмов и
вирусов в воздухе помещений для животных можно обнаружить: туберкулёзную,
столбнячную палочки, стафилакоки, стрептококки, споры сибирской язвы, возбудители
бруцеллёза, паразитов и т.д. Кроме того, в воздухе содержится много спор
плесневых грибов. Для обеззараживания воздуха нужно применять ультрафиолетовые
лампы.
.3 Мероприятия по защите окружающей среды
Основным вопросам по защите окружающей среды является утилизация и
хранение навоза. При выборе места хранения навоза, прежде всего, нужно
учитывать климатические условия местности. Как правило, навозохранилище
устраивают с подветренной стороны фермы. Однако наиболее известный способ
утилизации навоза - это внесение его на поля в качестве удобрения. Благодаря
внесению навоза улучшается физико-химический состав почвы, повышается
плодородие. Навозохранилище нужно строить в таких местах, чтобы был исключён
доступ животных и ограничен доступ людей, так как в навозе могут находиться
различные возбудители заболеваний. Навоз из изоляторов и карантинов, подлежит
сбору и хранению в течение 30 дней в отдельных навозохранилищах или на
бетонированных площадках, размещенных во дворе изолятора или карантина.
Дезинфекцию, утилизацию и транспортировку такого навоза проводят в соответствии
с ветеринарным законодательством.
Необходимо предусматривать земледельческие поля, орошение
сельскохозяйственных культур. Использование сточных вод для орошения не
допускается на территории со стоянием грунтовых вод на глубине менее 1,25м.
Трупы животных вывозят на пункт сбора сырья для отправки на завод по
производству мясокостной муки. С пунктов сбора сырья трупы вывозят на
ветеринарно-санитарный завод по производству мясокостной муки в специальных
машинах завода. Если таких заводов нет, то труппы животных по указанию
ветеринара подвергают утилизации в специальных лотках в утилизационном
отделении убойно-санитарного пункта, с последующем скармливанием животным
другого вида или получения технических продуктов. Трупы животных, погибших от
особо опасных болезней, сжигают в специальных цехах.
В целях охраны воздуха принимают меры насаждения зелёных растений по
периметру и между зданиями, что способствует снижению загрязнения воздуха в 3-5
раз; соблюдение ветеринарно-санитарных разрывов между зданиями (20-25м), здания
располагают параллельно господствующим ветрам для того, чтобы происходило
выдувание загазованного воздуха с территории фермы. Забор чистого воздуха
проводят снизу с торца здания, вытяжку проводят вверх, также необходимо
соблюдать ветеринарно-санитарный разрыв между территорией фермы и населённым
пунктом, навозохранилищем.
2. Краткая характеристика хозяйства
В геоморфологическом отношении территория совхоза представляет собой
плоско-увалистую равнину с небольшим количеством западин, занятых озерами.
Гидрографическая сеть на территории совхоза представлена озерами. Вода озер
пригодна для водопоя скота и хозяйственных нужд.
Общая земельная площадь хозяйства 21342га., из них пашни 15470 га.,
сенокоса1167 га., пастбища 2756га., Крупного рогатого скота 800голов.
3. Зоогигиенические требования к выбору участка для строительства
животноводческого помещения
Земельный участок для строительства животноводческих должен отвечать
зоогигиеническим требованиям. Большое значение для производственной
деятельности ферм и комплексов имеет правильный выбор участка для их
строительства. Удачно выбранный участок позволяет лучше использовать кормовые
угодия и запасы, четко организовывать технологические процессы и труд
обслуживающего персонала, рациональную транспортировку кормов, навоза, животных
и др., правильно разметить на ней входящие в состав фермы здания и сооружения и
по мере надобности расширять и развивать хозяйство.
При выборе участков для строительства животноводческих ферм и комплексов
необходимо соблюдать расстояние до автомобильных дорог. Здесь следует принимать
во внимание как необходимый ветеринарно-санитарный разрыв, обеспечивающий
возможность локализации работы предприятия, так и удобство транспортной связи с
магистральными дорогами, по которым осуществляется завоз кормов и вывозка
производимой продукции.
Зооветеринарные разрывы от комплексов до автомобильных дорог
общегосударственного, республиканского и областного значения I и II категорий
должны быть не менее 300м., до автомобильных дорог республиканского и
областного значения III категории до скотопрогонных трактов - не менее 150м.,
до прочих автомобильных дорог местного значения не менее 50м., за исключением
подъездных путей к предприятию.
Нельзя строить на участке с близко залегающими грунтовыми водами.
Земельный участок должен быть: сухим, несколько возвышенным, не
затопляемым грунтовыми водами, с относительно ровным рельефом. Территория
участка должна достаточно облучаться солнечными лучами и проветриваться
ветрами. Почва должна удовлетворять условиям строительства зданий. Грунтовые
воды должны залегать на глубине не менее 5м. от подошвы фундамента. При выборе
участка необходимо учитывать природно- климатические условия местности. Нужно
собрать сведения о возможности захоронения павших животных на данном месте.
Гарантия обеспечения фермы водой, электроэнергией, кормами и наличие подъездных
путей. Наличие площадей для обеспечения моциона животных. Участок выбирает
население из зооветспециалистов, представителей строительной фирмы-основного
подрядчика, эпидемиологической службы, после чего составляется акт с подписями
всех членов комиссии.
По отношению к господствующим ветрам участок для строительства
животноводческих ферм и комплексов должен находиться с подветренной стороны от
жилых и общественно - коммунальных зданий и с наветренной стороны от
навозохранилищ, ветеринарных построек, очистных сооружений. Желательно, чтобы
участок был защищен от холодных ветров и снежных заносов.
От населённого пункта здания находится на расстояние 1000м., до
магистральной дороги 1500м., до сеновала 600м., до скотомогильника 3500м., до
навозохранилища4500м., до силосохранилища 400м, до мех тока 600м. Между всеми
постройками на территории комплекса соблюдены зооветеринарные разрывы.
секция
микроклимат ферма животное
4. Характеристика отдельной животноводческой фермы, здания
Ферма построена с учётом научно-технического прогресса, износа зданий.
Для чего имеется резервный участок на территории фермы.
Здание предназначено для содержания дойных коров, рассчитано на 200
голов. В этом здании животных содержат в зимний период. Внутри здания
смонтированы кормушки, индивидуальные поилки, кормовые проезды. Рядом со
зданием находится выгульный двор.
Общее санитарно-гигиеническое состояние помещения хорошее. Все параметры
микроклимата поддерживаются в норме. Вентиляция работает исправно. Помещение в
летний период подвергается сушке, дезинфекции и текущему ремонту.
Поголовье животных находится в здании и делится на четыре
производственные группы:. 64 коров по 480кг-10л - удой за одни сутки;. 72 коров
по 500кг-5л - удой за одни сутки;. 25 коров по 490кг-18л- удой за одни сутки;.
38 коров по 550кг- сухостойные.
Основные способы содержания КРС это беспривязное содержание и отгонно-пастбищное.
Отгонно-пастбищная система основана на использовании огромных природных
пастбищ. Эта система применима для данного хозяйства, так как оно располагает
большими территориями.
Зимой животных содержат в коровниках привязным методом, но при этом
коровам периодически предоставляют моцион. На каждую корову рассчитан фронт
кормления 1,1м, длина стойла 1,9м, отсюда площадь 2,09м².
На ферме имеются две выгульные площадки - для взрослы животных и
молодняка. Для коров площадь выгульных площадок 8м² на одну голову. Площадка огорожена
железной изгородью, вдоль которой расположена групповая поилка, на середину
площадки ставят кормушку на пять центнеров сена. Выгульные площадки необходимы
для проведения моциона животных, который способствует повышению резистентности,
закаляет организм животных и формирует устойчивую нервную систему.
Ферма построена, исходя из научных знаний биологии, биохимии и физиологии
животных, обеспечивает все необходимые условия для оптимального существования
животных, обеспечение появления генетического потенциала животных для получения
большей продукции.
5. Размеры здания, секций, оборудования
Коровник построен по типовому проекту на 200 голов, линейные размеры
соответствуют стандартам.
Линейные размеры коровника.
Длина 80м, ширина 12м, высота 2,5м. Линейные размеры выбирают из расчёта
поголовья скота, технологического оборудования, обеспечения нормального
микроклимата. При размерах превышающих нормы возникают нарушения микроклимата.
Высота должна быть не ниже 2,4м при раздаче кормов мобильными средствами и
тракторами.
Для содержания животных оборудование и секции длинной 28м. В каждой
секции два ряда, в каждом ряде 25 голов. Стойла шириной 11м и длиной19м.
Животные в стойлах содержатся на цепной привязи. Кормушки шириной 70см, длиной
28м, высота переднего борта 45см, заднего 60см. Кормовой проезд 2,80см.
Навозный проход 80см.
Стены в здании кирпичные, толщина в два с половиной кирпича, пол на
деревянной основе и покрытый деревом с уклоном в сторону навозного канала.
Имеется в наличии вытяжная труба высотой 5м, сечение её 0.9*0,9м. Сечение
приточного канала 0,3*0,3м. В коровнике имеется 65 двойных окон размером
1,20*0,90м, три двойных двери размером 2,30*2,0м.
6. Технология трудоёмких процессов
Механизация в данном коровнике развита хорошо, все трудоёмкие процессы
механизированы.
Раздача кормов осуществляется при помощи мобильного кормораздатчика
КТУ-10 агрегатируемого трактором МТЗ(обеспечивает одновременную раздачу кормов
на две стороны кормушек, имеет подрессорный кузов и поперечный транспортер из
прорезиненной ленты).
Поение животных механизировано, установлены поилки АП-1А(поилка
одночашечная из полимерных материалов, для поения двух коров или молодняка при
привязном содержании). Это уменьшает затраты времени и труда. Доение животных
осуществляется 3-х тактным доильным аппаратом «Волга», это самый физиологичный
аппарат, поддерживающий рефлекс самоотдачи при доении. Простой и неприхотливый
в обслуживании. Молоко из переносного ведра поступает в танк стоящий на весах в
молочном отделении, оттуда в охладитель молока. В доильно - молочном блоке
расположен танк - охладитель KRYOS,
эффективное охлождение с оптимальным потреблением и электроэнергии, отличная
промывка. Точнейшее устройство для определения объема молока.
Уборка навоза осуществляется транспортером скребковым. Марка
ТСН-3Б(предназначен для удаления навоза из навозных канавок при привязной
системе содержания скота и погрузки его в транспортные средства). После увозят
на навозохранилище.
7. Система вентиляции
В здании установлена система естественной вентиляции. Это
проточно-вытяжная система. Вентиляция осуществляется через каналы: приточные,
расположены внизу; вытяжная труба в потолке высотой 5м.
Часовой объём вентиляции - это количество воздуха, в метрах кубических,
который необходимо подать в данное помещение за один час, для обеспечения в нём
требуемого нормативами воздушного режима.
Вентиляция предназначена для обеспечения воздухообмена в помещение. Из
коровника удаляются накопившиеся газы, пыль, водяной пар. Часовой объём
вентиляции рассчитывают обычно по двум показателям: 1. содержащие в воздухе СО²; 2. накопление водяных паров. Но в
данной работе расчёт проведён по второму показателю. Исходной величиной
является часовой объём вентиляции.
Для расчёта часового объёма вентиляции используют следующую формулу:
Где
L - Количество воздуха, которое необходимо удалить из
помещения, м³/час.
Q -
количество влаги выделяемой животными в парообразном виде и испаряющейся с
пола, кормушек, поилок, г/ч.
q
- абсолютная влажность воздуха помещения при которой
относительная влажность будет в пределах нормы, г/м3
q
- абсолютная влажность воздуха( атмосферного), г/м³
Рассчитываем
Q для всех четырёх групп животных и суммируем:
Q= Q
+Q
+Q
+Q
+10%
Q=n*a
Где n- количество коров.
a-
количество влаги (или тепла) выделяемое животным, ккал/час.
%- испарение с пола, кормушек, поилок, ограждений, г /час.
Когда в таблице не имеется нужной живой массы, используют формулу
интерполяции:
Q=
Где
в- количество тепла, выделяемого животным с более низкой живой массой по
сравнению с животным с заданной массой, ккал/ч.
а- количество тепла, выделяемого животным с более высокой живой массой по
сравнению с животным с заданной массой, ккал/ч.
с
- живая масса животного с более высокой живой массой,
кг.
с
- живая масса животного с более низкой живой массой,
кг.
д
- живая масса заданного животного, кг.
Когда с табличными данными не совпадают живая масса и удой используют
следующую формулу:
Q=в+
Где
в - количество тепла, выделяемого дойной коровой с более низкой живой массой и
более низкой продуктивностью по сравнению с коровой заданной массой и заданной
продуктивностью, ккал/час.
а - количество тепла, выделяемого дойной коровой с более высокой живой
массой и более низкой продуктивностью по сравнению с коровой заданной массой и
заданной продуктивности ,ккал/час.
д - живая масса коровы у которой определяют количество выделяемого тепла,
кг.
с
- живая масса коровы с более высокой живой массой и
более низкой продуктивностью, кг.
с
- живая масса коровы с более низкой живой массой и
более низкой продуктивностью, кг.
р - количество тепла, выделяемого коровой с более низкой живой массой, но
и с более высокой продуктивностью по сравнению с заданной, ккал/час.
м
- суточный удой коровы с более низкой продуктивностью
по сравнению с заданной, л.
м
-суточный удой коровы, в отношении которой
определяется теплопродукция, л.
м
-суточный удой коровы с более высокой продуктивностью
по сравнению с заданной, л.
е-
количество тепла, выделяемого коровой с более высоко
й живой массой и более высокой продуктивностью по
сравнению с заданной, ккал/ч.
Q1 = 64*
г/ч
Q2 = 72*408 =
29376 г/ч
Q3=25*
г/ч
Q4 = 38*
г/ч
Q=28467,2 +29376
+14212,5 +17546,5=89602,2 +10%=98562,42 г/ч
Для
расчёта часового объёма вентиляции нужно знать q
и q
они определяются по таблице метеорологических данных,
среднюю абсолютную влажность воздуха, г/м³. За январь месяц q
=2,0 г/м³
Для
расчёта q
находим в таблице максимальной упругости водяных паров
воздуха. Средняя температура внутри помещения 10ºС, отсюда находим, что это значение равно 9,17мм.
рт.ст.
Пропорция:
,17-100%
Х-70%
Х=
мм рт.ст.
Находим часовой объём вентиляции:
L=
L=
18596,7 м³/ч
Далее рассчитываем кратность воздухообмена по формуле:
Кр=
Где
V-внутренний объём помещения
Кр=
≈8 раз/ч.
Находим объём вентиляции на одно животное:
V
Где
n-количество животных
V
м³/ч
Находим общую площадь сечения вытяжных каналов:
Z=S
*U*t,
из
этой формулы выражаем S
S
=
Где
t-расчётное время, 1ч=3600 сек.
S
-искомая площадь сечения вытяжных каналов.
U-скорость
движения воздуха в канале, м/с, скорость определяем по формуле:
U=0,5*4,427*

tв- температура
воздуха внутри помещения, ºС.
tн-температура наружного воздуха, ºС
U=0,5*4,427*

м/с.
S
=
м²
Находим общую площадь сечения приточных каналов, она составляет 80% от
вытяжных:
S
=3,6*0,8=2,9 м²
Определяем
количество приточных (N
) и вытяжных каналов по формуле:
N
, N
Где
а1-площадь вытяжного канала в типовых проектах (0,9*0,9)
а
-площадь приточного канала (0,3*0,3)
N
≈5
N+≈32
Из всех расчётов видно, что в помещении нужно установить 32 приточных и 5
вытяжных каналов.
.1
Естественная вентиляция
Естественная вентиляция состоит в том, что воздухообмен совершается через
поры строительных материалов, через щели в стенах, потолках, дверях, не
плотности в окнах, то есть без применения искусственных каналов и побудителей.
Причиной воздухообмена в помещении является разница давлений наружного и
внутреннего воздуха, возникающая вследствие скоростного напора ветра, а также в
результате различия температур внутреннего и наружного воздуха и разности
объемных весов воздуха.
Сущность естественного воздухообмена в животноводческих помещениях
заключается в следующем. Ветер на наветренной стороне здания создает повышенное
давление, а на подветренной - пониженное. В местах повышенного давления воздух
нагнетается в помещение, а в местах пониженного давления - высасывается из
него. Объем проникающего воздуха через стену зависит от проницаемости последней
и скорости ветра.
Однако такая естественная, так называемая беструбная вентиляция не в
состоянии обеспечивать необходимый воздухообмен в различные периоды года и
совершенно не поддается регулированию. Для создания благоприятных условий
воздушной среды в зданиях, построенных из материалов с высоким термическим
сопротивлением, целесообразно иметь следующую кубатуру: для коров - не менее 30
м3, молодняка - 20м3.
Поскольку естественная вентиляция не может обеспечить достаточного
воздухообмена и нормального состава его в помещении, то в дополнение к ней в
помещениях для животных необходимо устанавливать искусственную вентиляцию.
.2 Искусственная вентиляция
Трубная вентиляция - это система с естественным побуждением тяги,
удовлетворительно работающие в весеннее и осеннее время года, а также при
температуре наружного воздуха до минус 13°С. При более низкой температуре
наружного воздуха становится недостаточно тепла в помещении и объем вентиляции
приходится искусственно сокращать. Поэтому в таких случаях следует подогревать
вентиляционный приточный воздух. Вытяжные трубы начинаются выше конька крыши
дефлектором. Их равномерно размещают вдоль помещения, утепляют, а в нижней
части оборудуют вращающуюся заслонку.
8. Система отопления помещения
Отопление осуществляется за счет центрального водяного отопления. Подача
горячей воды в радиаторы коровника регулируется в зависимости от температуры
помещения.
Тепловой баланс рассчитывается для нормализации температурного режима
помещения. Он рассчитывается на самые холодные месяцы года и должен быть
положительным. Расход тепла в животноводческих помещениях зависит от вида
животного, теплоёмкости конституции, теплопроводимость материалов,
климатической зоны.
Тепловой баланс рассчитывается по формуле:
Qж=[∆t*(L
31)+(∑К*S)] +Wиспар.
Где
Qж-тепло выделяемое животными, ккал/час.
∆t-разность
между наружной и внутренней температурой воздуха ( январь), ºС.
L
-объёмная масса вентиляционного воздуха, м³/ч.
31-тепло(ккал),
затраченное на обогрев 1м3 воздуха, вводимого при вентиляции, на 1°С.
S-площадь
ограждающих конструкций, м2
К-коэффициент
общей теплопередачи через ограждающие конструкции(ккал/м2*°С)
Wиспар. - расход
тепла на испарение влаги с поверхности пола и других ограждений, ккал/час.
Wиспар.
Находится 0,595*10%, где
,595-количество
ккал. расходуемых на испарение 1 г воды.
%-надбавка
на испарение с ограждающих конструкций.
Находим количество тепла выделяемого животными:
Qж= Q
+Q
+Q
+Q
Формула
интерполяции
Q1 = 64*
ккал/ч
Q
= 72*602 = 43344 ккал/ч
Q
=25*(687+
ккал/ч
Q
= 38*
=25184,5
ккал/ч
Qж=42662,4+43344+19480+25184,5=130670,9
ккал/ч
Находим
разность температур
∆t=10-(-19)=29ºС
Определяем объёмную массу вентиляционного воздуха:
L
=L*м
Где
м-масса 1м³воздуха( из таблицы м=1,247)
L
=18596,7 *1,247=23190м³/кг.
Находим коэффициент теплоотдачи:
К*Sпола=80*12=960*0=0 ккал/ч.
К*Sпотолка=960*0,51=489,6 ккал/ч
К*Sокон=65*1,20*0,90*2,3=161,46 ккал/ч
К*Sдверей=3*2,3*2*3=41,4 ккал/ч
К*Sист.
стен(2*80*2,5+2*12*2,5)-70,2-13,8=976 ккал/ч
Складываем полученные данные и получаем ∑К*S. Учитывают теплопотери через окна, двери, стены и принимают
поправку 0,13.
∑К*S=489,6+161,46+41,4+976=1668,5+(976+41,4+161,46)*0,13=1821,7
ккал/ч
Wиспар
= 0,595*9856,2=5864,4ккал/ч
Рассчитываем тепловой баланс:
,9=[29*(23190*0,31)+1821,7]+5864,4 =216164,2ккал/ч.
Дф=130670,9-216164,2= - 85493,3
Получился отрицательный тепловой баланс. Это говорит о недостатке тепла в
помещении. Известно, что 1КВт/ч равен 860 ккал энергии, отсюда:
,3/860=- 99,4КВт/ч
,4/20=4,97≈5 электроколлориферов нужно установить в помещении
мощностью 20 КВт/ч.
9. Освещённость помещения
Освещённость является существенным фактором в создании оптимальных
условий для жизни животных. Нормы освещённости должны обязательно соблюдаться в
животноводческих помещениях, так как это влияет на здоровье, продуктивность и
репродукцию животных. Освещённость бывает естественная, искусственная и
комбинированная.
.1 Естественная освещённость
Под естественной освещённостью понимают освещение помещения солнечным
светом через окна. Такой вид освещения более дешёвый и эффективный, так как
солнечные лучи кроме видимого спектра содержат ультрафиолет, который оказывает
бактерицидное действие.
Световой коэффициент является основным показателем освещенности
помещения. Это отношение площади пола к площади окон.
Находим по формуле:
СК=
Где
Sn-площадь пола, м²
СК=
=
Это
нормально, так как по норме СК должен быть равен
. Также
применяется в коровнике искусственное освещение, следовательно в коровнике
комбинированное освещение.
9.2
Искусственное освещение
Искусственное
освещение-освещение электролампами накаливания или люминесцентными лампами.
Чаще применяются в сочетании с естественным освещением, когда его недостаточно.
Чтобы проверить хватит ли света, то есть освещённость, рассчитывают
удовлетворительную освещённость.
Для
проверки качества освещённости рассчитываем удовлетворительную освещённость.
Уд.осв.=
Где
N-мощность ламп накаливания, Вт.
n-количество
ламп накаливания, шт.
Sn-площадь пола,
м².
Уд.осв.=
Вт/ м².
По норме на одну корову нужно 30лк, коэффициент перевода освещённости из
Вт/ м² в люксы для лампы накаливания
мощностью 100Вт.=2,5, найдём количество ламп.
П
=
=202(шт)
Реально
в коровнике 200шт. по 100Вт.
Уд.осв.=
Вт/ м².
*2,5=30(лк)
Из
расчётов видно, что освещения в помещении более чем достаточно.
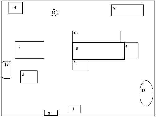
10. Графическая часть
Графическая часть позволяет полезно отобразить расположение зданий на
территории фермы.
Рис. Генеральный план фермы. 1-административное здание;
2-ветсанпропускник; 3-кормоприготовительный цех; 4-изолятор, санчасть;
5-телятник; 6-коровник на 200 голов; 7-доильно-молочный блок; 8-родильное
отделение; 9- навозохранилище; 10- выгульные дворы; 11- водонапорная башня; 12-
сенажный бурт; 13- сено-база.
11. Меры по улучшению эксплуатации и технологического оборудования
. Нужно проводить санитарно-дезинфекционные мероприятия на фермах и
комплексах.
Дезинфекция - один из процессов технологии производства на
животноводческих фермах, а также на предприятиях по производству молока,
говядины, свинины, мяса птицы, яиц и других продуктах животноводства на
промышленной основе.
Профилактическую дезинфекцию проводят по плану, в котором предусмотрены
сроки, методы и режимы дезинфекционных работ, потребность в дезинфицирующих
средствах с учетом вида и производственной группы животных, а также технологии
производства, принятой на предприятии.
Вынужденную дезинфекцию проводят при возникновении инфекционной болезни
животных. При этом проводят текущую дезинфекцию - сразу же после выявления
заболевания животных и при каждом последующем случае выделения на ферме больных
животных(дезинфицируют стойла и другие места, где находились эти животные), а в
дальнейшем - периодически в сроки, указанные инструкции при соответствующей
инфекционной болезни. После полной ликвидации заболевания делают заключительную
дезинфекцию.
Сроки проведения профилактической дезинфекции:
). В помещениях для животных на фермах - 2 раза в год (весной и осенью)
). На предприятиях по производству говядины на промышленной основе:
секций помещений первого периода откорма - через каждые 115дней, после
перевода животных в помещения второго периода откорма;
секций помещений второго периода откорма - через каждые 277 дней, после
отправки откормленных животных на мясокомбинат;
коридоры и галерей - ежедневно в конце смены;
помещений для приема скота - после приема каждой партии телят.
). На предприятиях по производству молока на промышленной основе:
секций для содержания дойных и сухостойных коров - через каждые два
месяца(мойку и дезинфекцию без решетчатых поверхностей - через каждые 14дней);
в родильном отделении стойла - каждый раз после освобождения и перед
постановкой в них коров для отела;
навозные решетки и проходы - ежедневно, стены через каждые 14 дней;
в профилактории для телят в период его освобождения от животных, клетки
каждый раз перед их заполнением;
доильные залы - 2 раза в месяц;
доильные установки - после окончания доения после предварительной
промывки теплой водой до полного удаления остатков молока;
молочную посуду, танкеры для охлаждения и хранения молока - ежедневно в
конце смены.
. Нужно соблюдать ветеринарно-санитарные требования к качеству кормов и
воде.
. Нужно бережно относится к оборудованию.
. При неисправностях сразу по возможности устранять их.
Заключение
При соблюдении параметров микроклимата можно добиться наивысших
показателей продуктивности, что и делается на этой ферме. Зоотехник соблюдает
все зоотехнические нормы. Экономика хозяйства развита достаточно, чтобы
развиваться и внедрять новые технологии.
В последнее время много внимания уделяется полноценному кормлению. В
корма добавляют минеральные и витаминные добавки. Это ведёт к хорошему здоровью
животных, продуктивности и получению здорового потомства.
Климатические условия дают хорошую возможность рационально использовать
пастбища.
Положительным аспектом развития хозяйства является то, что хозяйство
многоотраслевое. Сами заготавливают корма для кормления животных. Так же
осуществляют экспорт сырья: продажа молока, мяса, зерна. Так же в хозяйстве
выращивают сахарную свеклу, отходы производства идут на кормление животных.
Список используемой литературы
1. Волков
Г.К. Значение зоогигиены в практике животноводства / Г.К. Волков, И.Р. Смирнова
// Зоотехния. - 2008. - №9. - С.31 - 32.
. Гигиена
сельскохозяйственных животных: В 2 кн. Кн.1. Общая зоогигиена/ А.Ф.Кузнецов,
М.В.Демчук, А.И.Карелин и др.; Под ред. А.Ф.Кузнецова и М.Ф.Демчука. - М.:
Агропромиздат, 1991. - 399 с.
. Гигиена
сельскохозяйственных животных: В 2 кн. Кн.2. Частная зоогигиена/ А.Ф.Кузнецов,
М.В. Демчук, А.И.Карелин и др.; Под ред. А.Ф.Кузнецова и М.Ф. Демчука. - М.:
Агропромиздат, 1992. - 192 с.
. Костюнина
В.Ф. Зоогигиена с основами ветеринарии и санитарии/ В.Ф.Костюнина,
Е.И.Туманова, Л.Г. Демидчик. - М.: Агропромиздат, 1991. - 480 с.
. Онищенко
В.И. Основы зоогигиены и ветпрофилактики/ В.И.Онищенко, Н.С.Калюжный. - М.:
Высш.шк., 1984. - 304 с.
. Практикум
по зоогигиене/ А.Ф.Кузнецов, А.А. Шуканов, В.И. Баланин и др.; Под ред.
А.Ф.Кузнецова. - М.: Колос, 1999. - 208 с.
. Справочник
зоотехника/ Г.Н.Доброхотов, А.А. Косынкин, В.К. Онисовец. 4-е изд., перераб. -
М.: Колос, 1980. - 768 с.