|
Предел
прочности
|
Относительное
удлинение δ, %
|
Демпферирующая
способность ψ, %
|
Твердость по
Бринеллю НВ, ед.
|
|
σв, МПа
|
σизг, МПа
|
|
|
|
|
200
|
392
|
0,4-0,7
|
25-30
|
170-241
|
Серые чугуны практически не склонны к усадочным раковинам и
пористости, и отливки из них изготавливают без прибылей благодаря расширению
чугуна вследствие выделения графита в некотором интервале температур после
затвердевания, по этой же причине несклонны отливи и к горячим трещинам, так
как расширение происходит в уже затвердевшей корке, и растягивающие
механические напряжения в интервале температур кристаллизации практически не
возникают. Однако при последующем охлаждении проявляется большая склонность
отливок из серого чугуна к холодным трещинам [6].
Склонность чугуна к насыщению газами и образованию
газоусадочной пористости следует признать умеренной. Основные проблемы связаны
с образованием газовых раковин, которые образуются при выделении газов из форм
и стержней, а также в случае неправильно сконструированной литниковой системы,
в которой происходит подсос газов и их захват.
Аналогично, склонность к ликвации и неметаллическим
включениям также не создает особых проблем, исключая шлаковые и песчаные
включения, которые часто попадают в отливку [6].
Из вышесказанного можно сделать вывод, что сплав СЧ 20 ГОСТ
1412-85 в полной мере удовлетворяет механическим и эксплуатационным свойствам
детали "Шкив 525-326-0000-3/02", и при этом имеет меньшую стоимость
по сравнению с другими материалами: углеродистые стали, высокопрочный чугун и
т.д., и как следствие меньшие затраты на изготовление детали и обслуживание
оборудования.
Глава 2.
Анализ технологичности конструкции детали
Задачей проектирования отливки является разработка такой
технологии её получения, при которой при помощи простых приемов литейной
технологии возможно изготовить отливку, удовлетворяющую предъявленным к ней
требованиям. Для оценки технологичности необходимо провести тщательный анализ
требований предъявляемых к отливки и классифицировать её по группам [5].
По условиям применения деталь "Шкив
525-326-0000-3/02" относиться ко второй группе, а именно: детали
ответственного назначения - это детали, работающих при статических нагрузках.
Кроме внешнего вида, размеров и химического состава в отливках этой группы
контролируются также механические свойства.
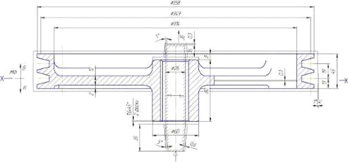
По сложности конфигурации "Шкив 525-326-0000-3/02"
(Рисунок 2) относиться ко второй группе, основной несущей конструкцией детали
является цилиндр, деталь не имеет сложных выступов и поднутрений, однако
имеются рёбра на боковой поверхности и углубления сравнительно несложной
конфигурации. Внутренняя полость имеет форму цилиндра, выполняемая стержнем
пятого класса сложности, боковые же поверхности оформляются при помощи
болванов, так как это предотвратит появления дефектов нарушения геометрии,
из-за перекосов в случае использования стержней [4].
По сложности детали по фактору массы "Шкив
525-326-0000-3/02" относиться к первой, так как имеет массу 9,2 кг,
материалом является серый чугун и изготавливается в песчано-глинистой форме.
По сложности в зависимости от толщины стенок деталь
относиться к пятой группе сложности, так как минимальная толщина стенки детали
12 мм, по сложности в зависимости от габаритного размера "Шкив
525-326-0000-3/02" относиться к первой группе, его максимальный размер 358
мм.
По ГОСТ 26645-85 определяем точность
отливки: 9-8-11-9 где [2]:
- 9 класс размерной
точности;
- 8 точность массы;
- 11 степень коробления;
- 9 ряд припуска на мех
обработку.
Рисунок 2 - эскиз детали "Шкив
525-326-0000-3/02"
Данная конструкция обеспечивает удобное извлечение модели из
формы, без применения отъёмных частей. Конфигурация позволяет иметь одну
плоскость разъёма. Полость отливки имеет свободный выход для знаковых частей
стержня, что обеспечивает устойчивое крепление в форме, и позволяет
производиться выходу газов, образующихся при заливке формы.
Толщина стенок удовлетворяет условиям прочности предъявляемым
к детали и создаёт плавное заполнение формы металлом и способствует равномерной
скорости затвердевания, что положительно влияет на микроструктуру будущей
отливки. Переходы и плавное сопряжения стенок детали исключают вероятность
получения отливки с усадочными раковинами, пористостью и трещинами.
На боковых поверхностях предусмотрены рёбра жёсткости, они
предотвращают коробление плоских поверхностей детали при её изготовления, так
же они обеспечивают жёсткость в дальнейшей эксплуатации детали.
Из выше изложенного можно сделать вывод что деталь "Шкив
525-326-0000-3/02" в полной мере является технологичной конструкцией, для
получения её методом литья.
Глава 3.
Выбор плоскости разъёма формы
Положение формы при заливке и выбор плоскости разъема формы
существенно влияют на качество отливки и экономичность процесса [4].
Отливку "Шкив 525-326-0000-3/02" располагаем в двух
полуформах, с линией разъёма проходящей перпендикулярно оси симметрии (рисунок
3), при этом она будет совпадать с наибольшим габаритным размером, это
позволяет повысить точность и качество отливки, за счёт уменьшения вероятности
брака по перекосу.
Данная плоскость разъёма обеспечивает минимальную высоту
отливке в форме, а наиболее ответственная часть располагается в нижней
полуформе, что обеспечивает постоянное питание этой части, и как следствие
отсутствие дефектов усадочного характера.
Рисунок 3 - Расположение плоскости разъёма для
отливки "Шкив 525-326-0000-3/02"
Глава 4.
Обоснование выбора способа изготовления форм и стержней
Выбор способа изготовления отливок зависит от следующих
факторов: серийности выпуска, конструкции отливки, сплава, техническим условиям
на деталь и др [5].
Преимущества горизонтальных форм бесспорны, особенно в
современных условиях перехода к процессу быстрого освоения большой номенклатуры
отливок для самых различных отраслей промышленности с минимальными затратами их
производства.
Изготовление "сырых" песчано-глинистых форм
является самым распространенным процессом изготовления разовых песчаных форм в
мире. Процесс изготовления таких форм характеризуется, прежде всего, высокими
объемами производства, низкими производственными затратами, а также легкостью в
управлении процессом. Так как снижение цен и в дальнейшем будет оставаться
важной тенденцией, например, в автомобильной промышленности, процесс
изготовления сырых песчаных форм и далее останется основным в области литейного
производства.
В массовом и крупносерийном литейном производстве процессы
изготовления литейных стержней в "холодной" оснастке основаны на
отверждении стержней продувкой их газообразным катализатором или отвердителем
непосредственно в оснастке. Сразу после продувки, которая продолжается
несколько секунд, достигается прочность, достаточная для извлечения стержня из
ящика, проведения других технологических операций и транспортирования.
4.1
Обоснование способа изготовления формы
Для получения отливки "Шкив
525-326-0000-3/02" будет использоваться автоматическая безопочная формовочная
линия немецкой компании Heinrich Wagner Sinto - FBO IV. Она представляет
собой горизонтально раздельную формовочную машину с верхним вдувом.
Машина работает на обычной формовочной смеси с обычным
бентонитом без дополнительных требований к смеси, в отличие от аналогов, что
значительно снижает затраты на формовочные материалы. Такой процесс уплотнения
позволяет варьировать высоту верхней и нижней полуформы независимо друг от
друга. Это обеспечивает существенно более низкий расход смеси, а значит более экономичное
производство благодаря оптимальному соотношению металл-форма. В замкнутой
системе нет просыпей смеси, это обеспечивает чистоту на рабочем месте и не
загрязняет окружающую среду, при этом отпадает необходимости в уборочном
конвейерном возврате просыпи смеси и приямках для монтажа оборудования. Линии FBO соответствуют всем
требованиям, которые предъявляются сегодня к технологиям с точки зрения охраны
окружающей среды [7].
Быстрая смена модельной оснастки, достигается за счёт
отсутствия болтовых соединений. Верхняя опока опускается, чтобы поместить
двухстороннюю модельную плиту между верхней и нижней опоками, соответственно.
То есть происходит установка модельной плиты с автоматической фиксацией, это
позволяет, за короткий срок, в течении нескольких минут, переходить с одного
модельного комплекта на другой, что в значительной степени может расширить
пакет заказов предприятия.
Таблица 4 - Технические характеристики автоматической
безопочной линии FBO IV
|
Характеристика
|
Величина
|
|
1
|
2
|
|
Размер формы,
мм
|
Стандарт 700 х
600 (варьируемая величина)
|
|
Высота кома
смеси. мм
|
От 180 до 250
|
|
Скорость
изготовления форм без простановки стержней (сек. /форма)
|
36
|
|
Производительность,
ок. форм/час
|
100-140
|
|
Усилие
прессования, Н/см2
|
100
|
|
Потребность в
сжатом воздухе, Нм3/форма
|
2,5
|
|
Электрическая
мощность, кВт
|
36
|
Технологический процесс изготовления форм на машине FBO можно
разделить на шесть этапов:
Рисунок 4 - Этапы заполнения и уплотнения формы
Верхняя опока опускается, чтобы поместить двухстороннюю
модельную плиту между верхней и нижней опоками, соответственно (Рисунок 4).
Верхняя и нижняя опоки, между которыми находится модельная плита,
поворачиваются до положения опок под пескодувным бункером. После того как части
опоки помещены под пескодувным резервуаром, прессовые плиты занимают позицию у
контрладов верхней и нижней опок. Установочная позиция прессовых плит напротив
опок может быть гибко выбрана на экране блока управления для выполнения
посредством одного из 3-х вариантов (толстый, средний, тонкий) в соответствии с
желаемой толщиной формы [7].
Режим вдува (режим 1, режим 2 и режим 3) может быть выбран на
экране управления. Песок подается посредством воздушного импульса, чтобы
заполнить верхнюю и нижнюю опоки под желаемым регулируемым давлением. Давление
регулируется контрольно-исполнительным клапаном.
Когда вдув и заполнение закончены, осуществляется прессование
как завершающий процесс уплотнения формы. На экране выбирается один из режимов
давления (высокий, средний, низкий).
Рисунок 5 - Этапы извлечения подмодельной плиты и
сборка формы
После завершения прессования верхняя и нижняя опоки с моделью
внутри возвращаются в исходную позицию с горизонтальным положением (Рисунок 5).
Верхняя часть опоки поднимается, верхняя часть модельной плиты отделяется от
формы. Затем нижняя часть модельной плиты протягивается из нижней части формы.
Стержни могут проставляются в ручную на позиции 4, либо при помощи модуля
установки стержней, так же компании Heinrich Wagner Sinto, предназначенного для
автоматических линий FBO и FBM [7].
Внешне формовочная машина выполняет те же функции, что и
любая формовочная линия, выдавая уже готовую к заливке форму в сборе.
Использование формовочной линии FBO для получения отливки
"Шкив 525-326-0000-3/02" полностью оправдывает себя в условиях
крупносерийного производства, позволяет получить качественные отливки, за
короткий период времени, с использованием минимального количества формовочных
материалов.
Такие формовочные машины компактны, это позволяет значительно
уменьшить занимаемую площадь в цеху. Монтируется машина без фундамента.
Дополнительные подъемные и транспортные устройства устанавливаются быстро и без
проблем, так что линия будет готова к эксплуатации в самое короткое время.
Горизонтальная форма выдается в сборе со стержнями, готовая к заливке.
Рисунок 6 - Планировка формовочной линии FBO IV
Горизонтальная формовка существенно расширяет номенклатуру
отливок, в отличие от вертикальной. Высокое качество формовки, скорость,
легкость в управлении, разнообразие моделей и меньшая стоимость безопочных
горизонтальных машин и линий позволяют создать современный литейный цех, и
наладить качественное, высококачественное и экологически чистое производство
[7].
4.2
Обоснование способа изготовления стержней
Для производства стержней для отливки "Шкив
525-326-0000-3/02" используем пескострельный формовочный автомат, немецкой
компании Laempe модели LL10 работающего по Cold-Box-Amin процессу.
Рисунок 7 - Стержневой автомат Laempe LL10
Данный автомат не нуждается в наличии фундамента, поэтому
возможен быстрый монтаж оборудования и быстрый ввод в эксплуатацию, автомат Laempe LL10 компактный по
габаритам, в связи с чем занимает небольшое пространство в помещении цеха.
Автомат представляет собой комплекс с интегрированным газогенератором, блоком
управления, гидравлической системой и защитной кабиной [8].
Таблица 5 - Технически е характеристики стержневого автомата Laempe LL10
|
Характеристика
|
Величина
|
|
Объем
пескострельной головки (в литрах)
|
10-15
|
|
Максимальный
размер пескострельной плоскости (в мм)
|
380 х 380
|
|
Стандартный
размер пескострельной плоскости (диаметр в мм)
|
230
|
|
Тактовое время
(без продувки, выстрела, вентиляции)
|
16
|
|
Высота
стержневого ящика (в мм)
|
230-480
|
|
Ширина
стержневого ящика с вертикальным разъемом (в мм)
|
150-350
|
|
Ширина
стержневого ящика с горизонтальным разъемом (в мм)
|
150-695
|
|
Глубина
стержневого ящика (в мм)
|
200-700
|
|
Максимальный
вес стержневого ящика (в кг)
|
100
|
Работа автомата осуществляется в двух режимах: холодного и
горячего отверждения стержней. Для стержня отливки шкив используется холодное
отверждение.
Для изготовления стержня для "Шкив
525-326-0000-3/02" используется холодное отверждение по Cold-Box-Amin процессу. После
уплотнения смеси пескострельным способом стержень продувается смесью паров
низкокипящей жидкости - третичного амина (триэтиламина, диметиламина) с
воздухом, стержень приобретает начальную прочность, которая составляет 60 %
конечного ее значения. Время продувки 2-5 с. Продувка осуществляется
универсальным газогенератором серии LG 2" он оснащён пропорциональным клапаном для
возможности реулирования давления в процессе продувки, производительность
насоса при амин процессе составляет 2,0 см³. Данный газогенератор
позволяет уменьшить расход амина да 45% и сократить время продолжительности
такта на 15% по сравнению с аналогами.
Смесь амина с воздухом после прохода через стержневой ящик
направляется в нейтрализатор, где полностью нейтрализуется разбавленной серной
кислотой с образованием водорастворимой соли - сульфата аммония. Степень
очистки воздуха в этой системе близка к 100 %. Таким образом, весь тракт подачи
амина полностью герметизирован, что обеспечивает безопасность процесса. При
необходимости готовые стержни окрашивают противопригарной краской [8].
Производительность данного автомата 180 стержней в час. Объём
токсичных газов при операции выбивки и заливки на 40-50% меньше чем при горячем
отверждении стержней. Данный стержневой автомат полностью удовлетворяет всем
современным экологическим требованиям и позволяет получать высококачественные
стержни, различной конфигурации, за короткий период времени в условиях
крупносерийного и массового производства.
5.1 Выбор
формовочной смеси
Как ранее уже было отмечено, на формовочной линии FBO используется обычная
песчано-глинистая смесь. Формовочная смесь готовиться на смесители компании
WEBAC. Благодаря внутренней облицовке смесителя резиной и применения
"разминающего" принципа действия также обрезиненных смешивающих
бегунов достигается оптимальное обволакивание зерен песка бентонитом.
Смеситель Webac относится к самым быстрым
смесеприготовительным агрегатам, благодаря особому принципу перемешивания.
Вначале в смеситель подается вода, а затем загружается песок. При этом вода
имеет максимально возможную площадь соприкосновения с песком, при загрузке
песка, вода сразу же поглощается и распределяется. За счет разминающего
действия в течение короткого времени происходит оптимальное перемешивание компонентов.
Таблица 6 - Состав формовочной смеси
|
Составляющая
смеси
|
Колличествово
на замес, %
|
|
1
|
2
|
|
Смесь
отработанная
|
100
|
|
Песок кварцевый
|
(сверх
ГОСТ2138-912-5% 100%)
|
|
Глина
бентонитовая марки П1Т1, ГОСТ 28177-89
|
1,8
|
|
Фуркарбен
(уголь/бентонит - 7/3)
|
1,8
|
|
Экструзионно-крахмалосодержащий
реагент (ТУ 18-8-14-83)
|
0,008
|
|
Уголь
гранулированный (ТУ 12-01-81)
|
0,5
|
|
Водный раствор
соды ПФЛХ.
|
0,026
|
|
Вода
техническая
|
до требуемой
влажности
|
На выходе из смесителя получаем смесь со следующими
физико-механическими свойствами:
Таблица 7 - Физико-механические свойства
смеси
|
Наименование
характеристик
|
Технологические
параметры
|
|
Газопроницаемость,
ед.
|
Не менее 200
|
|
Прочность на
разрыв "по сырому", Н/см2
|
13-15
|
|
Прочность на
разрыв в зоне конденсации, Н/см2
|
0,18
|
|
Влажность, %
|
3,2-3,4
|
|
Содержание
активного бентонита, %
|
6-11
|
|
Уплотняемость,
%
|
38-42
|
|
Текучесть, %,
|
не менее 40
|
|
Содержание
углерода, %
|
2,2-3
|
Преимущества смесителя Webac заключаются не только в
быстродействии, эффективности и качестве получаемой смеси, но и в его
экономичности. Она заложена уже в самой конструкции смесителя. Его устройство
позволяет проводить все операции по техническому обслуживанию быстро и легко.
Стенка смесителя в районе наиболее интенсивного износа облицована резиной,
смесительные бегуны снабжены резиновыми кольцами. Многие детали смесителя
изготовлены из чугуна с тем, чтобы увеличить его эксплуатационный ресурс. За
счет того, что в смесителе имеется лишь один двигатель, один редуктор и
вращающийся центральный кройцкопф, повышается надежность в эксплуатации и
снижаются до минимума затраты на обслуживание. Производительность смесителя
Webac до 140 тонн/час, что является весомым экономическим фактором в его
пользу.
5.2 Выбор
стержневой смеси
Для приготовления смеси для Cold-Box-Amin процесса используется
смеситель поставляемый компанией Laempe.
Смесители серии LVM пригодны для объемной дозировки песка,
связующего и порошкообразных добавок. Уже даже при небольшом объеме дозировки
песка и приготовлении небольших порций смеси данная серия смесителей
обеспечивает гомогенное качество смеси и отличается короткой продолжительностью
цикла перемешивания. За счет небольшой конструктивной высоты смесители занимают
мало места [8].
Таблица 8 - Состав стержневой смеси для Cold-Box-Amin процесса
|
Составляющая
смеси
|
Колличествово
на замес, %
|
|
Кварцевый песок
|
100
|
|
Фенольная смола
|
0,6-0,8
|
|
Полиизоцианат
|
0,6-0,8
|
На выходе получаем стержневую смесь со следующими свойствами:
Таблица 9 - Физико-механические свойства
стержневой смеси смеси
|
Наименование
характеристик
|
Технологические
параметры
|
|
Живучесть, ч
|
3-4
|
|
Влажность, ед
|
1,2-1,6
|
|
Прочность на
изгиб через 30 с / 24 ч
|
1,5-2,5/3,0-4,0
|
Благодаря своим свойствам, и производительностью от 2 до 9
тонн в час, данная серия смесителей является очень экономичным решением, как
для крупных, так и для небольших предприятий.
Глава 6.
Расчёт литниково-питающей системы
Одним из важнейших условий получения качественной отливки
является правильное устройство литниковой системы. Литниковая система служит
для плавного подвода расплава в полость литниковой формы и питания отливок в
процессе затвердевания.
Для получения отливки "Шкив 525-32600 003 002"
будет применяться тангенциальная литниковая система, данный тип питания
способствует исключению лобового удара струи расплава о рабочие поверхности
формы и уменьшает негативное влияние на стержень. Данная литниковая система так
же способствует последовательному вытеснению воздуха из формы, что благоприятно
отразиться на качестве отливки. Отливка будет питаться одновременно от двух питателей,
питатели распологаются так что бы не происходило лобовое столкновение потоков
расплава, во избежание дефектов [4].
Расчёт сводится к определению площади наименьшего сечения
стояка и питателей литниково-питающая системы с последующим определением соотношения
площадей сечения остальных элементов системы [9].
Сечение питателя находим по формуле:
Где G - масса жидкого металла на форму, кг;

- коэффициент расхода, зависящий от внутреннего сопротивления
формы, 
=0,5;

- оптимальная продолжительность заливки формы, с;
Hр -
расчетный металлостатический напор, см.
Масса жидкого металла на отливку определяется:
где Go - черновой вес отливки;
?? - коэффициент использования металла, ?? =0,7
Оптимальная продолжительность заливки следующим образом для
отливок массой до 500 кг:
Где S - эмпирический коэффициент, зависящий от
толщины стенки отливки;
S=1,3, т.к. средняя толщина стенки отливки составляет 13 мм.
Расчетный металлостатический напор зависит от размера отливки и
его определяют из соотношения:
Где Но - полный напор, см;
С - общая высота отливки, см;
Р - высота отливки в верхней полуформе, см.
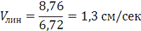
Правильность расчета оптимального времени заливки необходимо
проверить по значению минимально допустимой линейной скорости заливки:
Минимально допустимое 
для отливок с толщиной стенок 10-40мм: 10…20 мм/сек [9]
Соотношение сечений элементов литниковой системы для мелких
отливок: Fпит : Fшл : Fст = 1,0: 1,05: 1,1
Площадь шлакоуловителей:
Площадь стояка:
Диаметр верхнего сечения стояка:
Расчет чаши произведем по формуле:
Где Dв - верхний диаметр чаши,
см;
Hв - высота чаши, см.
Рисунок 8 - Эскиз литниково-питающей системы
Глава 8.
Расчет продолжительности затвердевания отливки
При анализе процесса формирования отливок в форме различают
несколько стадий, характеризующих изменение состояния металла:
Во время заполнение формы расплавом происходит его частичное
охлаждение в результате теплообмена с формой. Далее осуществляется процесс
охлаждения расплава после заполнения формы из-за отвода от неё тепла [9].
Процесс затвердевания расплава, который начинается при
температуре ликвидуса и заканчивается при температуре солидуса. Во время
затвердевания расплава происходит постепенное нарастание корки отливки. При
этом фронт кристаллизации перемещается от наружной затвердевшей корки внутрь
отливки, содержащей расплав [4].
Последним этапом является процесс охлаждения в форме
полностью затвердевшей отливки. При этом в ней идут структурные превращения.
Последние, в зависимости от характера отливок (вида сплава, конфигурации
отливки) могут сопровождаться и перераспределением термических напряжений,
следствием которых являются холодные трещины [9].
Расчет будет вестись для сырой песчано-глинистой формы:
Удельная теплота течения определяется по формуле:
Где b2 - коэффициент аккумуляции тепла материалом фор

- разность
между температурой заливки и температурой кипения воды;
R - половина
толщины стенки, м;
ρ - плотность жидкого металла; для чугуна ρ =7200
кг/м3;
n - показатель степени параболы, n=2,9;
- время
течения, с;
A - параметр, определяемый по формуле:
Где U1 - влажность на границе сухой - влажный участок формы, в сотых
долях.
С2 - удельная теплоемкость сухой формы, С2=1250
Дж/кг
град;
Ru - удельная теплота испарения влаги, Ru=2,24
106
;

- разность температур на границах сухой - влажной зоны.
Время отвода теплоты перегрева можно
рассчитать по упращёной формуле:
где
- плотность жидкого металла, 
;


Полное время затвердевания отливки определяется по формуле:
Где r1 - удельная теплота кристаллизации с учетом понижения температуры;
= 250
103 
;
С1=755 
;

=1050
;

=1200

.
Общее время кристаллизации:
Глава 9. Проверка
правильности расчета продолжительности заливки и затвердевания с использованием
программы LVM FLOW
Компьютерное моделирование становится неотъемлемой частью
процессов конструирования новых деталей и проектирования технологических
процессов их изготовления. Оно приобретает статус важного, а зачастую решающего
конкурентного преимущества. Все чаще заказчики на литейную продукцию в списке
требований к производителю этой продукции выдвигают требование об обязательном
использовании компьютерного моделирования.
Преимущества, предоставляемые системам автоматизированного
моделирования литейных процессов очевидны. В первую очередь, это возможность
отработки нюансов литейной технологии на виртуальном прототипе изготавливаемой
отливки, что уменьшает или полностью исключает необходимость в изготовлении
пробных отливок, сокращает процесс проектирования технологии и снижает
себестоимость отливки. Визуализация физических процессов литейной технологии,
таких как заполнение расплавом полости литейной формы, охлаждение и
затвердевание металла, его коробление под действием термических напряжений
позволяет лучше понять особенности этих процессов, а следовательно, более
эффективно управлять ими с целью снижения брака отливок и повышения выхода
годного.
Моделирование процесса получения отливки "Шкив
525-326-0000-3/02" будем осуществлять при помощи программы LvmFlow. Система LVMFlow удобна
и достаточно проста в эксплуатации. Ее интерфейс полностью лежит в рамках
стандарта интерфейса Windows.
Терминология меню и диалогов привычна и понятна для
специалиста, работающего в литейном производстве. Меню системы продублировано
панелью инструментов с иконками, довольно точно отражающими суть инструмента и
позволяющими сократить число операций при работе с системой. При возникновении
затруднений всегда можно воспользоваться справочной системой.
Для начала моделирования необходимо создать трёхмерную
геометрическую модель отливки с литниково-питающей системой, для этого
воспользуемся программным комплексом геометрического проектирования SolidWorks. Далее импортируем
готовую модель непосредственно в пакет LwmFlow, задаем начальные и
граничные условия и начинаем процесс моделирования.
В модуле "Заливка" моделируется заполнение формы
расплавом, которое рассматривается, как течение вязкой жидкости с учетом
процессов теплопередачи. При моделировании время заливки составило 7,26 секунд,
расчётное время 6,72 секунды, разбежка связана с погрешностью в расчётах, так
как они не учитывают условия заливки формы.
Рисунок 9 - Температуры жидкого металла в конце
заливки
Как видно из рисунка 9 температура в районе подачи металла
выше, чем в отливке, это связанно с постоянным питанием расплавом из ковша, и
как следствие местный перегрев формы, из-за чего в этой области уменьшается
скорость отвода тепла.
Рисунок 10 - Давления действующее на стенки формы
со стороны расплава
На рисунке 10 представлены силы давления расплава действующие
на стенки формы, из показаний видно что давление не превышает 17 кПа, этого
давления недостаточно что бы разрушить форму. Критические давления для
песчано-глинистой формы составляют 60-120 кПа
Рисунок 11 - Количество жидкой фазы в отливке
спустя 00: 01: 36 с момента начала затвердевания
Спустя 1 минуту 36 секунд с момента начала затвердевания
количество жидкой фазы составляет 66%. Исходя из рисунка 11 видно что
соблюдается принцип направленного затвердевания, наиболее узкие сечения
затвердевают в первую очередь, в области стояка температура всё ещё высокая,
образование твёрдой фазы на поверхности связанно с интенсивным теплообменом
расплава с воздухом.
Рисунок 12 - Температура отливки при полном
затвердевании 00: 10: 56
Полное затвердевание отливки составило 10 минут 56 секунд,
расчётное время 10 минут три секунды. Погрешность связана с неточностью
расчётного метода, так как он не учитывает воздействие окружающей среды на
процессы затвердевание и не в полной мере учитывает распределение температур и
неравномерность отвода тепла из формы.
Из рисунка 12 видно что температура по всему объёму отливки
выровнялась и составляет в среднем 1130 
, но в некоторых участках литниковой системы составляет 700 
.
Равномерность температуры по объёму благоприятно влияет на
качество отливки, так как не возникает внутренних напряжений связанных с
неравномерным остыванием отливки, а следовательно уменьшается вероятность
образования горячих раковин.
Рисунок 13 - Усадочные раковины в отливке
Программа LvmFlow позволяет прогнозировать возможность проявления
дефектов в отливке. Из рисунка 13 видно, что усадочная раковина будет
сконцентрирована в чаше. Усадочных дефектов на поверхности отливки не
наблюдается, это говорит о том, что выбор типа и расчёт литниковой системы, а
так же выбор места подвода металла произведён правильно.
Рисунок 14 - Микропористость в отливке
Прогноз микропористости ведется на основе критерия Нийяма и
требует адаптации результатов в соответствии с особенностями технологии
производства. Результат не показал наличие "опасных" участков, как на
поверхности, так и по сечению отливки (рисунок 14).
Рисунок 15 - Горячие трещины в отливке
Как уже отмечалось выше, благодаря равномерному распределению
температурного поля по объёму отливки, вероятность появление горячих раковин
крайне мала, что и отмечается на рисунке 15.
Исходя из результатов моделирования можно сделать вывод, что
технология получения отливки "Шкив 525-326-0000-3/02" была
разработана правильно, она позволяет получить отливку высокого качества, без
дефектов.
Благодаря компьютерному моделированию, отпадает необходимость
в создании опытных образцов, что снижает затраты на производство, и ускоряет
процесс разработки технологии.
Заключение
В ходе выполнения курсовой работы был проведён тщательный
анализ технологичности детали "Шкив 525-326-0000-3/02" и
характеристики сплава отливки.
Следующим этапом была разработка технологических мероприятий
для изготовления отливки, была выбрана плоскость разъёма, назначены припуски на
механическую обработку и формовочные уклоны, выбран тип литниково-питающей
системы.
Далее был произведён подбор формовочного оборудования, для
изготовления форм это безопочная формовочная автоматическая линия HWS FBO IV, для изготовления
стержней стержневая машина Laempe LL10 работающая по Cold-Box-Amin процессу. Также были
определены составы формовочных и стержневых смесей.
Был проведён расчёт элементов литниково-питающей системы,
усилия действующее на верхнюю полуформу и продолжительность затвердевания
отливки. После чего было проведено компьютерное моделирование процесса заливки
и кристаллизации. Результатом моделирования стала визуализированная модель
процесса, на которой можно было пронаблюдать распределение температур при
затвердевании, а так же возможные дефекты.
По итогам моделирования было определенно, что технология
получения отливки была разработана правильно, данный технологический процесс
позволяет получить высококачественные отливки без наличия в них объёмных и
поверхностных дефектов.
Список
используемой литературы
1. ГОСТ
3.1125-88 "Правила графического выполнения элементов литейных форм и
отливок".
2. ГОСТ
26645-85 "Отливки из металлов и сплавов. Допуски размеров, массы и
припуски на механическую обработку".
. ГОСТ
3212-92 "Комплекты модельные. Уклоны формовочные. Стержневые знаки.
Допуски размеров".
. Кечин
В.А., Селихов Г.Ф., Афонин А.Н. "Проектирование производство литых
заготовок": Учеб. пособие / Владим. гос. ун-т. Владимир, 2002
. Кукуй
Д.М., Скворцов В.А., Эктова В.Н. "Теория и технология литейного производства".
― Мн.: Дизайн ПРО, 2000
. Трухов
А.П., Маляров А.И. "Литейные сплавы и плавка": - М.: Издательский
центр "Академия", 2004
. Проспект корпораций "Heinrich Wagner Sinto" "Kastenlose
formanlagen FBO", 2011
8. Проспект корпораций " Laempe" " Die Flexiblen: Kernschießautomaten der Serie L", 2009
9. Воронина
Л.К., "Технология, оборудование и автоматизация литейного
производства" под редакцией Л.К. Ворониной: практическое руководство. -
Гомель: ГГТУ им.П.О. Сухого, 2001