Разработка ножниц с нижним резом и гидравлическим устройством

  • Вид работы:
    Дипломная (ВКР)
  • Предмет:
    Другое
  • Язык:
    Русский
    ,
    Формат файла:
    MS Word
    2,35 Мб
  • Опубликовано:
    2015-02-06
Вы можете узнать стоимость помощи в написании студенческой работы.
Помощь в написании работы, которую точно примут!

Разработка ножниц с нижним резом и гидравлическим устройством

ВВЕДЕНИЕ

Значительные подвижные массы требуют существенных усилий и больше времени на разгон и торможение в переходных режимах, так как они стремятся по инерции сохранить скорость движения, что увеличивает динамические нагрузки, а значит и ухудшает динамические характеристики машины в целом.

Кроме того, за счет динамических нагрузок ухудшается энергобаланс машины, надежность элементов конструкции подверженных динамическим нагрузкам.

С целью увеличения быстродействия и динамических характеристик ножниц, с учетом реверса хорошо себя проявило гидравлическое уравновешивание верхнего ползуна.

1. ТЕХНОЛОГИЯ И ОБОРУДОВАНИЕ ДЛЯ ЗАГОТОВОК В ПРОКАТНОМ ПЕРЕДЕЛЕ

Технологический процесс получения готовой прокатной продукции - завершающая стадия металлургического производства. В прокатные цехи металлургического завода поступает большая часть всей стали (свыше 80%), выплавляемой в сталеплавильных цехах и превращаемой в непрерывные заготовки (на машинах непрерывного литья) или в слитках. Для производства проката построены прокатные и трубные цехи различного назначения, в которых установлены многочисленные типы станов.

Прокатный стан- это комплекс машин и агрегатов, предназначенный для осуществления пластической деформации металла в валках (собственно прокатки) и его дальнейшей обработки: резки, правки, упаковки и т.д.

Прокатную продукцию, в зависимости от формы поперечного сечения, можно разделить на четыре основные группы: листовой прокат, сортовой прокат, трубы, специальный профиль (точные заготовки для машиностроения, гнутые профили и др.)

Основным органом прокатного стана является рабочая клеть, в которой осуществляется собственно прокатка металла. В зависимости от конструкции и расположения валков рабочей клети прокатных станов можно разделить на несколько групп: двухвалковые, трехвалковые, четырехвалковые, многовалковые, универсальные, и клети специальной конструкции.

Помимо самой прокатной клети в прокатном производстве очень много машин и агрегатов поточных технологических линий. Они не входят в главные линии станов, предназначены для подачи металла от печи или нагревательного колодца к приемному рольгангу стана (слитковозы), поворота слитка на рольганге (поворотные устройства), транспортирования металла в соответствии с технологическим процессом (рольганги или транспортеры), передвижения металла вдоль бочки валка для задачи его в соответствующий калибр (манипуляторы), поворота металла относительно его продольной оси (кантователи), охлаждения металла (холодильники), травления металла (травильные устройства), разматывание рулонов (разматыватели), сматывание полосы в рулон или проволоки в бунт (моталки), резки металла (ножницы и пилы), для отделки металла (правки и дрессировки, укладки, промасливания, упаковки и других процессов).

Эти машины и агрегаты весьма разнообразны; общая масса их значительно превышает массу машин и агрегатов, входящих в главную линию стана.

. МЕСТО (НАЗНАЧЕНИЕ) НОЖНИЦ В ТЕХНОЛОГИЧЕСКОЙ ЛИНИИ ПРОИЗВОДСТВА ЗАГОТОВОК

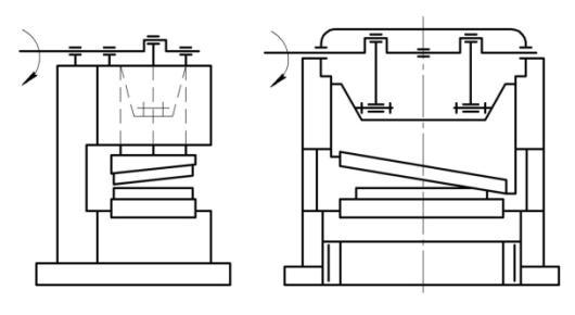
Ножницы предназначены для порезки готового проката на мерные длины и обрезки концов. В металлургических цехах применяют следующие виды ножниц: с параллельными ножами, с наклонным ножом (гильотинные), летучие и дисковые. Ножницы бывают как для горячей так и для холодной резки металла. Ножницы с параллельными ножами предназначены для поперечной резке горячего и холодного металла. Эти ножницы выполняются с нижним или верхним резом (рис. 1).

Рис. 1. Схема ножницы с параллельными ножами. а- ножницы с верхним резом, б- ножницы с нижним резом

Гильотинные ножницы бывают открытого и закрытого типа (рис. 2).

Ножницы закрытого типа применяют главным образом для резки сутунки и сортового металла в холодном состоянии. Ножницы открытого типа применяют для поперечной резки широкой полосы и листов в холодном виде, подстуженном или горячем состоянии.

а                                                    б

Рис. 2. Схемы гильотинных ножниц открытого (а) и закрытого (б) типов

Летучие ножницы предназначены для реза на ходу (на лету) при движении металла с большой скоростью. Эти ножницы бывают следующих типов: барабанные (рис. 3), рычажно-кривошипные, с плавающим кривошипом, планетарные и маятниковые.

Рис. 3. Схема барабанных летучих ножниц. 1- подающий рольганг, 2- барабан, 3- ножи, 4- рольганг отводящий

Дисковые ножницы применяют для обрезки кромок у широких полос и резку этих полос, вдоль на несколько более узких полос (роспуска).

Рис. 4. Схема дисковых ножниц

. БАЗОВАЯ КОНСТРУКЦИЯ НОЖНИЦ ДЛЯ ДЕЛЕНИЯ ЗАГОТОВОК. ДОСТОИНСТВА И НЕДОСТАТКИ ТИПОВЫХ КОНСТРУКЦИЙ

По конструкции ножницы поперечной резки с параллельными ножами можно разделить на две основные группы: а) ножницы с верхним подвижным ножом (верхним резом); б) ножницы с нижним подвижным ножом (нижним резом).

Ножницы с верхним резом отличаются простотой конструкции (рис. 5,а). Нижний нож установлен неподвижно в станине ножниц; верхний нож укреплен в суппорте (ползуне) и при помощи кривошипного или гидравлического привода движется вниз и разрезает металл. Этим ножницам свойственны два существенных недостатка: 1) после разрезки металла на нижней грани сляба (блюма, заготовки) образуется заусенец, который мешает при дальнейшем продвижении металла по рольгангу; 2) резку можно осуществлять только при наличии качающегося стола за ножницами, что усложняет конструкцию.

Ножницы с нижним резом не имеют этих недостатков и поэтому получили более широкое применение (рис. 5,б). Нижний нож смонтирован в суппорте (ползуне), который может подниматься вверх от кривошипного или гидравлического привода; верхний нож установлен в верхнем суппорте (ползуне) и тоже может перемещаться по вертикали. Перед началом резания ножи раскрыты и металл проходит между ними по рольгангу; нижний нож при этом находится ниже уровня поверхности (образующей) роликов рольганга и не мешает движению металла. Затем металл останавливается в необходимом положении (при помощи передвижного упора), и суппорт верхнего ножа опускается до соприкосновения с металлом; дальнейшее продвижение верхнего суппорта прекращается и начинается движение суппорта нижнего ножа; при этом происходит резание металла.

Рис. 5. Схемы резания металла на ножницах с верхним (а) и с нижним (б) резом: 1-прижим, 2-верхний суппорт, 3-нижний суппорт, 4-задний подъемно-качающийся рольганг с грузовым уравновешиванием

. АЛГОРИТМ ВЫБОРА ТЕХНИЧЕСКИХ ХАРАКТЕРИСТИК НОЖНИЦ С НИЖНИМ РЕЗОМ

Для поперечной резки горячего металла квадратного, прямоугольного и круглого сечения, после прокатки его на блюмингах, слябингах, заготовочных и сортовых станах применяют ножницы с параллельными ножами. Эти ножницы применяют также и для порезки холодного металла - в этом случае профиль ножа соответствует форме поперечного сечения разрезаемого металла.

В процессе резания на ножницах с параллельными ножами плоскостью, в которой движется нож (плоскость резания), является неизменной (рис 6). Температура металла, поступающего на ножницы, обычно 800-1000С. Для углеродистых сталей с пределом прочности в холодном состоянии  при указанных температурах предел прочности металла равен 1; для легированных сталей с пределом прочности в холодном состоянии до 1000 МПа при указанных температурах

Рис 6. Схема резания металла на ножницах с параллельными ножами: 1-прижим, 2-верхний суппорт с ножом, 3-передвижной упор, 4-нижний суппорт с ножом

Основными параметрами ножниц является: максимальное усилие резания Р, ход ножниц H, длина ножей L и число ходов (резов) в минуту (производительность ножниц).

Размеры поперечного сечения металла, допускаемого для резки на ножницах данного типа, определяются максимальным усилием резания, на которое рассчитаны ножницы.

Ход ножей выбирают с учетом возможности безпрепятственного прохода металла максимального сечения под лапой механического прижима и перекрытия ножей в конце резания ().

Форму ножей принимают в виде симметричного прямоугольника, чтобы можно было при резании использовать все четыре угла. Угол заострения делают равным 90. Ножи изготавливают из стали марки 6ХНМ или из углеродистой стали марки Ст 6 с твердостью после термообработки до HB=40 МПа. Для увеличения срока службы ножей применяют наплавку режущих кромок твердыми сплавами (типа сормайта).

заготовка эксцентриковый вал шатун

5. АНАЛИЗ НЕДОСТАТКОВ НОЖНИЦ КОНСТРУКЦИИ НКМЗ С НИЖНИМ РЕЗОМ

В данной выпускной квалификационной работе рассмотрены ножницы с параллельными ножами, усилием резания 12,5 МН для поперечной резки горячего металла, блюмов, слябов с максимальным сечением 200х1000 мм. Ножницы этого типа имеют нижний подвижный нож (нижний рез), механический прижим и грузовое уравновешивание. Ножницы конструкции НКМЗ также имеют специальный механизм для «предподъема» нижнего ползуна выше уровня роликов рольганга, таким образом нижний ползун воспринимает усилие прижима и вес заготовки на себя а не на рольганг.

Одним из недостатком этих ножниц является система уравновешивания. Грузовое уравновешивание в наше время уже устарело и имеет сложную механическую часть. Также при разрезании металла в кинематических парах ножниц возникают динамические нагрузки, переменные по величине и направлению, которые вызывают различного рода вибрации, удары, что ухудшает условия работы. Необходимо также учесть сложность установки грузов, так как они имеют большие габариты и массу.

В работе предложено заменить грузовое устройство уравновешивания гидравлическим. По сравнению с грузовым устройством уравновешивания гидравлическое имеет ряд преимуществ. Во первых - это возможность регулировать усилие на штанге уравновешивания. Во вторых - простота установки, и небольшие динамические нагрузки. И в третьих - компактность устройства. Все выше перечисленные преимущества подтверждают эффективность предложенного решения.

. РАЗРАБОТКА ПРЕДЛОЖЕНИЙ ПО РЕКОНСТРУКЦИИ. РАСЧЕТ ПАРАМЕТРОВ ГИДРОПРИВОДА И ГИДРОСТАНЦИИ

Для того чтобы заменить грузовое уравновешивание гидравлическим необходимо для начала определить усилие прижима и вес всей подвижной системы ножниц (верхнего и нижнего ползунов с валами и шатунов).

Рис 7. Схема резания металла без прижима

Во избежание искривления сляба и плоскости резания моментом от сил Р (см. рис. 7) необходимо в процессе резания сляб прижимать к нижнему ножу (ползуну) с усилием Q. Это усилие определим из условия, что создаваемый им момент относительно плоскости резания должен быть равен (или больше) моменту пластического изгиба сляба

 

Принимая среднее значение  [1] для сляба 200х1000 мм при температуре около  С, получим усилие на лапе прижима (включая вес лапы прижима и рычагов).

В неусовершенствованной конструкции для создания усилия прижима применено рычажное уравновешивание подвижной системы при помощи контргруза (рис.8), которое после расчета массы всей подвижной системы будет заменяться на гидравлическое уравновешивание.

Рис 8. Схема ножниц с грузовым устройством уравновешивания

Рассматривая верхний рычаг 6-7 прижима как двухопорную балку, заключаем, что для создания в опоре 6 реакции (Q-Gп) (где Gп вес прижима) к средней опоре 5 необходимо приложить усилие Q5 =2 (Q-Gп). С другой стороны, это усилие, перенесенное в шарнир 2, из условия равновесия этого шарнира должно быть равно

5 = Q2= Gc + Q - Gу

где Gc - вес всей подвижной системы собственно ножниц (верхнего и нижнего ползунов с валами и шатунов)

Gу - усилие на вертикальной штанге уравновешивания.

Решая совместно эти два уравнения, получаем

у=Gс+2Gп-Q

В нашем случае Gс=1000 кН (100 Т), Gп=60 кН (60 Т), поэтому получиму = 1000 + 2· 60 - 400 = 720 кН (72 Т).

После того как рассчитано усилие на вертикальной штанге уравновешивания можно подобрать по известному усилию гидроцилиндры и насосную установку. В новой конструкции устройства уравновешивания будет установлено два гидроцилиндра с усилием на штоке F=720/2=360 кН (36 Т).

При выборе гидроцилиндров диаметры поршня и штока принимаются из силовых и конструкционных соображений, при этом ход s ограничен условиями продольной устойчивости сжимаемого штока. Минимально допустимое расстояние L между опорами цилиндра можно рассчитать по формуле [5]

 

где D,d- диаметры поршня и штока в мм; p-рабочее давление, МПа; n-запас прочности (обычно 3,5…4); к3- коэффициент закрепления.

Рабочее давление в цилиндре найдем по формуле [5]:

 

где F- усилие действующее на шток, S- площадь поршня (предварительно принимаем диаметр поршня 160 мм), ктр- коэффициент трения.



Рис 9. Схемы закрепления гидроцилиндров

 

По каталогу подбираем гидроцилиндр изготовитель «Hydravlika 96», модель- ЦБС-25 . Pном=32 МПа, D/d=160/110 мм, ход s=320 мм. [5]

Также необходимо рассчитать на срез крепежные пальцы гидроцилиндра по формуле

 

 

После того как подобран гидроцилиндр, из каталога выбираем насосную установку. Как правило, насосные установки комплектуются гидроаппаратурой, манометрами и кондиционерами рабочей среды. В некоторых исполнениях применяются гидропневмоаккумуляторы. Выбираем установку с гидропневмоаккумулятором. Вместительность и конструкция насосной установки существенно влияют на тепловой режим гидропривода. При выборе вместительности резервуара следует учитывать количество рабочей жидкости поступающей в гидросистему, во избежание чрезмерного падения уровня при заполнении цилиндров, аккумуляторов и т.д.

Из каталога выбираем установку марки- Г48-1, изготовитель- ЕЗГ, вместимость- 50 л, мощность- 4 кВт. [5]

. ОПРЕДЕЛЕНИЕ УСИЛИЯ РЕЗАНИЯ

Процесс резания состоит из трех периодов (рис. 10):

)        Вмятие ножей в металл (рис. 10, а, в); при этом усилие на ножи постепенно увеличивается до максимального значения Pmax; длительность этого периода характеризуется коэффициентом , равным отношению глубины внедрения ножей в металл при вмятии к исходной высоте сечения металла, т. е. ;

)        Собственно резание (сдвига металла по плоскости резания); при этом усилие резания уменьшается по мере уменьшения высоты (площади) сечения металла;

)        Скалывания (отрыва) оставшейся неразрезанной части сечения. Момент окончания собственно резания и начала отрыва (скалывания) характеризуется коэффициентом надреза , равным отношению глубины внедрения ножей в конце резания zн (начало отрыва) к исходной высоте сечения металла, т.е. .

Рис. 10. Схема резания металла на ножницах с параллельными ножами без прижима (а) и с прижимом (б); изменение усилия на ножи при резании (в) в зависимости от глубины внедрения ножей; А- экспериментальная кривая; В- прямая на участке собственно резания

Максимальное усилие в конце периода вмятия равно усилию в момент начала резания (сдвига) металла по плоскости резания, поэтому можно написать, что

 

где - максимальное касательное сопротивление при резании (сдвиге) металла; Fрез- сечение металла в момент начала собственно резания (сдвига) металла; - коэффициент, равный отношению максимального сопротивления срезу к пределу прочности.

В справочной литературе приведены данные по механическим свойствам металлов (пределу прочности, пределу текучести, относительному удлинению), полученные при испытании стандартных образцов на растяжение. Из курса сопротивления материалов известно, что между пределом прочности на растяжение  и максимальным касательным напряжением имеется следующая зависимость: . Исследования показывают, что максимальное касательное напряжение несколько выше его теоретического значения (ввиду неоднородности свойств металла по сечению)  (соответственно для мягких и твердых металлов).

В формулу (6) введем также следующие практические коэффициенты: k2=1.1-1.15- для учета влияния затупления ножей при резании; k3=1.1- 1.25 - для учета влияния увеличения зазора между ножами при резании [1].

Для дальнейших расчетов можно принять следующие усредненные значения:

При горячем резании k=k1k2k31.0- 1.1 и расчетная формула имеет вид

 

В момент окончания вмятия ножей (начало собственно резания) высота сечения металла равна , поэтому площадь сечения, испытывающего напряжение среза, , где b- ширина разрезаемого сечения.

Таблица 1. Экспериментальные данные коэффициентов вмятия  и надреза

Металл

Горячее резание

Холодное резание


Сталь 10 - 20 - 50 - 50С2 - 1Х18Н9Т - ШХ10 Медь Цинк Дюралюминий

0,32-0,40 0,30-0,35 0,25-0,3 0,23-0,28 0,25-0,30 0,20-0,25 0,35 0,30 0,25

0,75-1,0 0,75-0,95 0,70-0,95 0,65-0,90 0,70-0,80 0,65-0,70 0,95 0,70 0,50

0,20 0,20 0,15 0,10 0,20 0,10 0,20 0,20 0,15

0,5 0,35-0,45 0,30-0,40 0,25-0,30 0,45 0,30 0,45 0,40 0,25


.

По формуле (8) определяем максимальное усилие резания, принимая ; ; ; :

 МН (1250 Т).

При резании металла непрямоугольного сечения (например, круга) это сечение необходимо привести к равновеликому по площади прямоугольному сечению, т.е. принять Fсеч=bh.

В табл. 1 приведены максимальные значения коэффициентов вмятия  и надреза , полученные экспериментальным путем при резании различных металлов. Эти данные следует считать ориентировочными, так как они получены с различной степенью точности и в некоторых случаях при резании образцов небольшого сечения (25х25 мм).

При вмятии ножей полоса (заготовка, блюм) будет стремиться повернуться вправо под действием момента, равного Ра (рис. 10, а). при этом со стороны кромок ножей будут возникать горизонтальные усилия Т, создающие момент Тса , Ввиду того, что величины плеч а и с неизвестны, точно определить значение силы Т не представляется возможным. На основании экспериментальных данных можно принимать, что Т=0,15- 0,25 Р. Для уменьшения боковых распирающих горизонтальных усилий на ножи Т на ножницах применяют механические или гидравлические устройства для прижима металла с усилием Q.

. РАСЧЕТ КРИВОШИПНО-ШАТУННОГО МЕХАНИЗМА

При вращении кривошипа радиусом r вокруг центра O верхняя головка шатуна (центр кривошипа) последовательно занимает на окружности положения A (нижняя мертвая точка), В, С, D, Е, F и G (верхняя мертвая точка) (рис. 11, а). При этом нижняя головка шатуна (ползун, точка А') совершает возвратно-поступательные движения по вертикали.

Определяем путь sy перемещения ползуна при повороте кривошипа на угол αi; (угол α отсчитывая от вертикали AG по часовой стрелке).

Очевидно, что , откуда угол наклона шатуна

 

где,  - коэффициент шатуна; обычно в кривошипных ножницах

λ=0,075- 0,15.

При α=900 угол β максимальный и, например, для указанных значений λ, он составляет 4-8.

Ход ползуна А

 

.

При λ<0,075 , поэтому формула (10) примет следующий вид (с погрешностью до 10% при α=900)

. (11)

Определим плечо крутящего момента на валу кривошипа

 

;

 

При  , поэтому можно принимать

 

На рис. 11, б представлены кривые  и  построенные по формулам и при λ0,1

Примем, что на нижний ползун действует сила Р = const, а на шатун - усилие N =P/cosβ

Рис. 11. К расчету шатунно-кривошипного механизма: а- схема механизма; б- кривые  и  в функции поворота вала кривошипа при

Статический момент резания на валу кривошипа

Мрез = Na.

При указанных выше допущенных можно принимать


Кроме того, необходимо также учесть потери на трение в подшипниках вала кривошипа, головках шатуна и в направляющих нижнего ползуна.

Тогда суммарный статический момент на валу кривошипа будет равен

 

При использовании приведенных выше формул надо иметь в виду, что при α>90° cos α будет отрицательным. Принимая =α-90°, заменяя ;  и  получим

 

 

 

9. КИНЕМАТИЧЕСКИЙ И ЭНЕРГОСИЛОВОЙ РАСЧЕТ

Ножницы с нижним резом и механическим прижимом предназначены для горячей резки блюмов и слябов на мерные длины. Максимальное сечение сляба bh = =200х1000= 200000 мм2 = 0,2 м2; минимальная температура металла при резании 950С; при этой температуре для легированной стали  МН/мм2 (7,5 кг/мм2) [1].

Рис. 12. Конструктивная схема эксцентриковых (кривошипных) ножниц усилием 12,5 Мн (1250 Т) с плавающим валом и с механическим прижимом

.        Кинематика ножниц. Относительно оси 1 вала верхнего ползуна 2 ножниц расположены два эксцентрика: шатунный 3 с эксцентриситетом r=250 мм и рычага прижима 4 с радиусом, равным 125 мм (рис. 12). Оси верхнего и нижнего 8 ползунов соединены боковыми шатунами 5 длиной 3050 мм. Ход ножей s = 2 r = 500 мм; перекрытие ножей 6, 7 в конце резания Δ= 15 мм; просвет между ножами 485 мм. Существенным преимуществом ножниц является наличие механического прижима 9, работающего автоматически от приводного вала ножниц; при этом обеспечивается перпендикулярность плоскости резания, снижение распорного (бокового) усилия на ноже и исключение удара заднего конца проката о ролики рольганга после резания. Верхний и нижний ползуны перемещаются по направляющим, благодаря чему они могут двигаться только по вертикали.

Рис. 13. Последовательность положений кинематических звеньев ножниц при рабочем ходе (при повороте вала кривошипа на 180)

Если заменить эксцентрики одного вала их эксцентриситетами от оси этого вала, то кинематически эксцентриковые ножницы можно рассматривать как шатунно-кривошипный механизм. Рассмотрим работу ножниц и отметим особенности их кинематики (рис. 13).

Первое положение (рис. 13, а). Перед пуском ножниц эксцентрики и оси головок шатуна лежат в одной вертикальной плоскости, совпадающей с плоскостью резания (ось шатуна 3-4 условно показала изогнутой, чтобы плоскость резания была видимой рис. 13, а, д).

Второе положение (рис. 13, б). После пуска ножниц и вращения приводного вала кривошип 3 будет отклоняться по дуге, равной длине шатуна 3-4 (так как нижний ползун неподвижен и вес всей подвижной системы передается на стул станины). При этом точки 1,2 и 4 (см. также рис. 12, цифры в кружках) будут совершать плоское движение вокруг точки 3 кривошипа, т. е. верхний ползун (точка 1) и прижим (точки 2 и 5) будут перемещаться вниз. Это перемещение будет продолжаться до тех пор, пока прижим не упрется в металл.

Лапа прижима перед пуском ножниц приподнята над рольгангом на высоту 438 мм, что обеспечивает свободный проход блюма сечением 400х 400 мм. При резании сляба высотой 200 мм лапа прижима опустится на 238 мм; на эту же величину опустится точка 1 и верхний ползун, так как отношение радиусов 1-2 и 1-3 равно отношению плеч рычага прижима (725 и 1450 мм), (см. рис. 12,а).

При  по формулам (9), (10) и (11) или по графику (на рис. 11, б), для  находим угол поворота кривошипа 3 вокруг точки 1: α=87°45'.

Третье положение (рис. 13, в). Лапа прижима упирается в металл, поэтому точки 6, 5 и 2 становятся неподвижными, при вращении приводного вала точки 1 и 3 будут вращаться вокруг точки 2 с одинаковыми радиусами поворота, равными,  мм. При этом точка 1 (верхний ползун) будет опускаться, а точки 3-4 (нижний ползун) подниматься. Однако точки 3-4 могут подняться только на 6 мм (это расстояние предусмотрено для свободного прохода металла над нижним ножом по роликам рольганга). Суммарное сближение ножей при этом будет равно 12 мм, а общий ход ножей в конце этого периода  мм. Согласно формуле (11) или (рис. 11, б), при  угол поворота кривошипа составит 90° (так как cos α=О), а приращение угла равно 2°15'.

Четвертое положение (рис. 13,г). с момента, когда металл оказывается зажатым между нижним ползуном и лапой прижима, верхний ползун останавливается, так как все звенья на пути прижим - шарниры 6-5-2-3-4 будут замкнуты; центр вращения вала переходит из точки 2 в точку 1, т. е. эксцентрик шатуна (кривошип 3) будет поворачиваться вокруг оси вала 1 как в обычном кривошипном механизме, при этом нижний ползун будет подниматься, а верхний будет неподвижным. Для того чтобы в положениях, показанных на рис. 13, а, б, гарантировать прижатие металла лапой прижима, между его основанием и плоскостью верхнего ножа конструктивно предусмотрено расстояние 41 мм. В положении, изображенном на рис. 13, в, это расстояние уменьшилось на 6 мм и составляет 35 мм. При подъеме нижнего ползуна будет подниматься и прижим, поэтому сначала металл будет прижат к верхнему ножу; при этом общий ход ножей составит 250+35=285 мм и угол поворота кривошипа при этом увеличится, согласно формуле (11) и рис. 11, б, до 98°, т. е. на 8°.

При дальнейшем движении нижнего ножа будет происходить собственно резание металла «на весу» (нижний рез, металл не касается рольганга). Путь ножей (при ) увеличится на 200 мм (толщина сляба) и составит 485 мм, чему соответствует угол поворота кривошипа [согласно формуле (11a) и рис. 11,б при ], равный 169°, т. е. увеличится на 71°.

Пятое положение (рис. 13, д). По окончании резания отрезанный кусок металла с небольшой высоты (35 мм) падает на задний (отводящий) рольганг и транспортируется им к уборочным устройствам или в линию прокатки.

При дальнейшем вращении вала на 11° нижний нож вместе с прижимом и зажатым между ними металлом поднимается вверх на 15 мм (предусмотренное перекрытие ножей в конце резания). Таким образом, рабочий ход (поворот вала на 180°) закончен. При этом собственно процесс резания совершался на участке, соответствующем углу 70°57' (верхняя часть полуокружности).

При последующем вращении вала от α=180° до α=0° (360°) ножницы занимают положения, приведенные на рис. 13, д, г, в, б, а (т.е. в обратном порядке). В положении, изображенном на рис. 13, а, ножницы останавливаются автоматически (командоаппаратом).

.        Определим статический момент на приводном валу от усилия резания. Процесс резания сопровождается вмятием ножей в металл и сдвигом металла по плоскости резания. Касательное напряжение (сопротивление сдвигу) в процессе резания возрастает от нуля (момент начала вмятия) до максимума (конец вмятия, начало сдвига), равного  . Соответственно с ним в этот период возрастает также общее усилие резания Р, которое достигает максимума (в данном случае при резании сляба 200х1000 мм Рmax= 12.5 МН (1250 Т).

Характер изменения напряжения  и усилия Р теоретически определить не представляется возможным. Экспериментальные исследования показывают, что при горячем резании стали (950-1050° С)  и Р достигают максимума при внедрении ножей приблизительно на 1/3-2/5 толщины разрезаемого металла. Затем начинается сдвиг металла; площадь сечения, испытывающего максимальные напряжения среза, уменьшается, соответственно уменьшается и общее усилие резания. Согласно рис. 10 в строим график изменения усилия резания при уменьшении высоты надрезанного сечения, т. е. при увеличении угла поворота вала ножниц от 98 до 169° (угол собственно резания), рис. 14,а.

Определим плечо момента, соответствующего усилию резания Рmax (при , см.).

К началу резания (четвертое положение, рас. 13, г) расстояние между ножами равно 285 мм. При внедрении ножей на величину  мм это расстояние составит 285+60=345 мм, чему соответствуют формула (11), угол  и угол α= 113°.

По формуле (11a) находим плечо момента, соответствующего усилию Рmax мм =0,223 м. (аналогичный результат получим по кривой на рис. 11,б).

Статический момент резания при Рmax рассчитаю по формуле

 МНм (278 Тм).

Определим потери на трение, полагая, что радиусы трения () в подшипниках приводного вала и в головках шатунов увеличивают плечо  на величину , равную (при ,  в подшипниках скольжения при хорошем смазке, см. рис. 12)

;

 МН.

Таким образом, момент трения в подшипниках (без учета трения в направляющих ползунов) составляет около 23% от момента усилия резания.

Суммарный максимальный статический момент, соответствующий Рmax:

 МН (355 Тм).

В соответствии с изменением усилия резания Р и плеча момента (см. рис. 11, б) строим кривые изменения МРез, Мтр и Мст по толщине разрезаемого металла (углу поворота вала кривошипа на участке резания, рис. 14, а). Момент холостого хода на остальных участках принят равным , Мcт=0,17 МНм (17 Т·м). Средний эквивалентный статический момент (средняя ордината) равен 2,27 МН·м (227 Тм)

Рис 14. Диаграмма статических моментов на приводном валу ножниц с усилием резания 12,5 Мн (1250 Т) (а) и нагрузочная диаграмма электродвигателей привода ножниц в функции угла поворота эксцентрикового (кривошипного) вала ножниц (б).

.        Мощность резания и выбор электродвигателя выполняется из условия обеспечения заданного максимального усилия резания, при прокатке слябов максимального сечения 200х1000 мм. Ножницы при резании этих слябов на мерные длины должны обеспечить шесть резов в минуту. Цикл резания, равный 10 сек, состоит из времени одного оборота ножниц и времени паузы между двумя последовательными резами (необходимой для продвижения металла по рольгангу). По практическим данным время паузы составляет 50-60% времени цикла (5-6 сек), а время резания 40-50% времени цикла (4-5 сек). Таким образом, для обеспечения заданной производительности (6 резов в минуту) ножницы должны иметь, при резании среднюю угловую скорость, равную =15 об/мин соответствующую 15 резам в минуту при непрерывной работе без пауз).

т. е.  1/сек.

Средний эквивалентный статический момент резания на приводном валу ножниц равен 2,27 МНм= 2270 кН·м (227 Т·м) (см рис. 14).

Максимальная мощность резания по этому моменту будет равна

 кВт.

Для привода ножниц предварительно по каталогу подбираем подходящий электродвигатель. С целью уменьшения инерции привода (махового момента якоря) подбираются два электродвигателя постоянного тока типа МП марки АК4-45ОУ-8У3 мощностью по 630 кВт каждый с номинальной скоростью n=525 об/мин [4]

 1/сек.

Номинальный крутящий момент двух электродвигателей

кН

Электродвигатели специального металлургического исполнения допускают кратковременную трехкратную перегрузку по мощности и моменту при номинальной скорости, т. е.

 

 

Между электродвигателями и ножницами устанавливается редуктор с передаточным числом  При КПД редуктора  = 0,95 на его выходном валу крутящий момент будет равен

 

 

что соответствует среднему эквивалентному статическому моменту резания [2270 кН·м (227 Т·м)].

Кроме проверки привода на допустимый, кратковременный коэффициент перегрузки электродвигателей, необходимо выполнить проверку их на нагрев по среднеквадратичному моменту при резании всего сортамента блюмов и слябов. В данном случае в качестве примера ограничимся определением среднеквадратичного момента при резании сляба 200х1000 мм, хотя при резании более мелких сечений двигатели, возможно, будут находиться в более тяжелых условиях (при большем числе включений их в минуту).

Приведенные к валу электродвигателя маховые моменты масс, (кг·м2): якорей электродвигателей 2·395=790 (по каталогу), моторных муфт 2·85=170 (по каталогу); тормозных шкивов 2·70=140 (по каталогу); механизмов ножниц (шпиндель, эксцентриковый вал, ползуны и шатуны) и редуктора 1500 (переменный маховой момент кривошипно-шатунного механизма ножниц при подсчете принят постоянным). Суммарный маховой момент масс на валу электродвигателя  момент инерции всех масс

 

При пуске двигателей и разгоне ножниц с ускорением до номинальной скорости (принимая момент пуска и разгона Mпн и момент холостого хода  МН) определяем время разгона (ускорения):

 

 

 

 

При разгоне ножниц до угловой скорости резания , соответствующей номинальной скорости ножниц, средняя угловая скорость вала ножниц будет равна  и вал совершит с ускорением угловой путь

 

или в градусах

 

Выше было показано, что резание сляба толщиной 200 мм начнется после поворота вала кривошипа на  (четвертое положение, риc. 13). Таким образом, разгон ножниц закончится раньше, чем начнется резание металла (, что является необходимым условием, так как вся мощность двигателей будет расходоваться при резании только на преодоление статического момента резания; динамический момент разгона системы будет равен нулю). Остальную часть пути до момента резания  вал ножниц будет совершать без ускорения при нагрузке, равной .


 

откуда находим время после окончания разгона и до начала резания

 

Считаем, что резание сляба на пути в 71° совершается при постоянных угловых скоростях вала ножниц  и , тогда время резания составит

 

Ножницы должны быть остановлены при крайнем нижнем положении кривошипа, т. е. когда вал совершит полный оборот (360°). Тормоза на валу электродвигателей должны быть включены за некоторое время до останова ножниц (при Мтн и )

 

и путь ножниц при равнозамедленном торможении будет равен ( )

 

Остальной путь, считая от момента окончания резания (169°) до момента начала торможения, равный 360-(169+65) = 126°, вал ножниц совершает при нагрузке, равной Мх.х=0,1МН, за время

 

Таким образом, время одного рабочего хода ножниц (при повороте вала на) составит сек,

что несколько больше принятого ранее (5 сек). Для обеспечения заданной производительности ножниц (шесть реза в минуту, или время цикла резания 10 сек) длительность паузы между резами должна быть не более tпауз=5 сек.

Определяем среднеквадратичный момент электродвигателей согласно нагрузочной диаграмме на рис. 14, б

 

 

Таким образом, , и двигатели не будут перегреваться при работе с частыми запусками.

С целью увеличения производительности ножниц иногда применяют так называемый качательный режим их работы при резании проката небольшой толщины (например, слябов). Из рис. 14 следует, что собственно участок резания () составляет менее 1/5 угла полного поворота приводного вала (). Поэтому при качатeльном режиме при помощи командоаппаратов ножницы настраивают таким образом, что перед пуском они находятся в положении, близком к указанному на рис. 13, д (но при обеспечении свободного прохода сляба под лапой прижима) , а по окончании резания ножи останавливаются в положении кривошипа вблизи точки , т.е. рабочий цикл резания совершается только в верхней половине окружности кривошипа (см. рис. 11). Таким образом, рабочий цикл ножниц уменьшается почти в два раза. Следующее резание осуществляется после реверсивного вращения двигателя, т.е. процесс резания совершается как бы при «качании» кривошипа 1 относительно верхней мертвой точки.

Качательный режим требует короткого времени разгона и торможения привода, т.е. применения больших моментов при разгоне и торможении, что влечет за собой повышение среднеквадратичного момента, а значит, и номинального момента электродвигателей. Эти обстоятельства надо иметь в виду при переходе с кругового режима работы ножниц на качательный. Кроме того, требуется более точная автоматическая система настройки положения ножей.

. РАСЧЕТ ЭКСЦЕНТРИКОВОГО ВАЛА И ШАТУНА НА ПРОЧНОСТЬ

Расчет шатуна на прочность.

Боковые шатуны, соединяющие верхний и нижний ползуны, являются самыми ответственными деталями ножниц; они полностью воспринимают усилие резания и замыкают его в подвижной системе (не передавая на станину).

Максимальное усилие, действующее на один шатун, равно

 

Напряжения в верхней головке

а) смятия по d=2r=1250 мм и b=400 мм

 

б) растяжения в сечении по горизонтальному диаметру

 

в) в проушине по формуле Ляме при rн=850 мм и rв=625 мм

 

Напряжения в нижней головке находим аналогично:

 

 

 

Напряжение в сечении посередине длины шатуна

 

(без учета возможного изгиба от внецентренного приложения усилия).

Шатуны изготовлены из кованой стали марки 40ХН, имеющей предел текучести  н/мм2 (50 кГ/мм2) [3]; таким образом обеспечивается 7-кратный запас прочности.

Расчет эксцентрикового вала на прочность.

На статическую прочность вал рассчитаем по наибольшей возможной кратковременной нагрузке повторяемость которой мала и не может вызвать усталостного разрушения.

Рис. 15. Эпюра изгибающих и крутящих моментов Р=12,5 МН, Т=3,55 МН*м

;

МН;

=6.25+6.25--6.25=6.25 МН;

 

где - наибольшее напряжение при изгибе моментом Ми; - наибольшее напряжение при кручении моментом Мк

 

 

и и Wк- соответственно осевой и полярный моменты сопротивления сечения вала

 

Для валов круглого сплошного сечения Wк=2Wи , в этом случае

 

где D- диаметр вала.

Запас прочности по пределу текучести

 

Опасное сечение, в котором следует найти запас прочности, определяется значениями моментов и размерами сечений. Это значение получено после построения эпюр изгибающих и крутящих моментов.

11. ОБЩИЙ ВИД КОНСТРУКЦИИ НОЖНИЦ С НИЖНИМ РЕЗОМ И ГИДРАВЛИЧЕСКИМ УСТРОЙСТВОМ УРАВНОВЕШИВАНИЯ

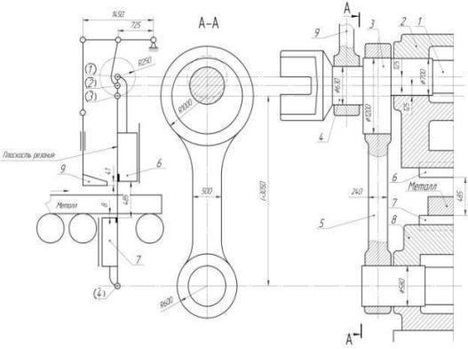
На рис. 16 дан общий вид ножниц с верхним плавающим эксцентриковым валом 2, с усилием резания 12,5 МН (1250 Т). Ножницы предназначены для резки блюмов сечением 400х400 мм и слябов сечением 200х1000 мм и состоят из следующих элементов: станины 8 и крышки 3, суппортов с ножами 1, нижней оси 7, продольных тяг (шатунов) 12 и амортизатора 14. Ножницы имеют механический прижим вал прижима 10 установлен на двух подшипниках 9 наверху станины. На валу на шпонке закреплен рычаг 5, на конце которого шарнирно подвешена лапа прижима 6.

Привод вала 10 прижима осуществляется шатунами 11 и рычагом 4. Верхний суппорт уравновешивается штангами 13, соединенными с гидроцилиндрами 15.

Ножницы оборудованы сталкивателем заднего короткого обрезка, передвижным упором, устанавливаемым на требуемое расстояние от ножниц для резки блюмов и слябов мерной длины, и транспортером для уборки переднего и заднего обрезка.

Рис 16. Общий вид ножниц с усилием резания 12,5 Мн (1250 Т) с механическим прижимом и гидравлическим уравновешиванием ползунов

СПИСОК ЛИТЕРАТУРЫ

1.   А.А. Королев. Конструкция и расчет машин и механизмов прокатных цехов. Металлургия 1985г. Стр. 212.

2.      А.И. Целиков. Машины и агрегаты металлургических заводов. Том 3. Металлургия 1988г. Стр. 386.

.        В. И. Анурьев. Справочник конструктора-машиностроителя. 2006 г.

4.      Каталог. Двигатели асинхронные крановые и металлургические серии MTF, MTKF, MTN. 2006г.

5.      В.К. Свешников. Гидрооборудование. Вспомогательные элементы гидропривода. 2003г.

Похожие работы на - Разработка ножниц с нижним резом и гидравлическим устройством

 

Не нашли материал для своей работы?
Поможем написать уникальную работу
Без плагиата!
Без нейросетей!