Разработка АСР давления пара в барабане котла ДКВр 20/13
Федеральное
агентство по образованию
Государственное
образовательное учреждение высшего профессионального образования
Санкт-Петербургский
государственный технологический
университет
растительных полимеров
Факультет
АСУТП
Кафедра
АТПиП
Курсовой
проект
на
тему:
«Разработка
АСР давления пара в барабане котла ДКВр 20/13»
Проверил
Попов В.Б.
Санкт-Петербург
г
Содержание пояснительной записки
Анализ
технологического процесса как объекта управления
Анализ
существующей САУ
Назначение
САУ и требования к разрабатываемой САУ
Технико-экономическое
обоснование разрабатываемой САУ
Обоснование
и выбор способа управления
Структура
модели объекта управления и определение свойств объекта (передаточных функций)
Алгоритмическая
структурная схема предлагаемой САУ
Выбор
технических средств для реализации САУ
Моделирование
и анализ предлагаемой САУ
Выводы
и рекомендации
Литература
Графическая
часть
автоматическое управление пар давление
Анализ технологического процесса как объекта
управления
Краткая характеристика котла ДКВР 20/13
Котел ДКВР 20/13 - двухбарабанный,
вертикально-водотрубный, реконструированный с экранированной топочной камерой и
развитым кипятильным пучком из гнутых труб, с естественной циркуляцией,
конструкции ЦКТИ им. Ползунова и Бийского котельного завода. Топочная камера
состоит из фронтового, боковых и заднего экранов. Конвективный (кипятильный)
пучек котла пролетного типа. Обе части конвективного пучка имеют коридорное
расположение. Для улучшения омывания первой части пучка за шестым рядом труб
установлены дефлекторы из шамота, перекрывающие боковые коридоры. Выход газов
из котла симметричный задней стенке.
Барабаны котла выполнены из стали 16ГС и имеют
внутренний диаметр 1000 мм при толщине стенки 13 мм. Для осмотра барабанов на
задних днищах имеются лазы.
В верхнем барабане расположены:
две питательные трубы;
сепарационные устройства, состоящие из
пластинчатых сепараторов и дырчатого листа;
отбойные щитки;
штуцер для пробоотборника чистого отсека;
штуцера для КИП и А.
В нижнем барабане расположены:
труба для периодической продувки;
устройство для прогрева барабана при растопке;
штуцер для спуска воды.
Котел имеет семь контуров циркуляции. Четыре
боковых, фронтовой, задний и конвективный пучок (кипятильный).
Схема испарения котла двухступенчатая.
Техническая характеристика котла
Паропроизводительность -
20 т/ч
Рабочее
разрешенное давление - 10 кгс/см2
Поверхность
нагрева экрана - 73,5 м2
Поверхность
нагрева пучка - 317 м2
Общая
поверхность нагрева - 390,5 м2
Водяной
объем котла - 10,6 м3
Паровой
объем котла - 1,84 м3
Расчетный
КПД котла на газе: - 90,6 %
на
мазуте: -
90%
Расчетный
расход топлива газа: - 2030 м3/ч
мазута: -
1890 м3/ч
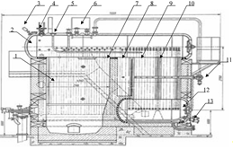
Рис. 1 Котел марки дквр 20/13
- экранные трубы; 2- верхний барабан; 3-
манометр; 4- предохранительные клапаны; 5- трубы питательной воды; 6- сепаратор
пара; 7- предохранительная пробка; 8- камера догорания; 9- перегородки; 10-
конвективные трубки; 11- обдувочное устройство; 12- нижний барабан; 13-
продувочный трубопровод.
Задачи контроля и регулирования
Система автоматизации и контроля параметров
котлов включает в себя подсистемы:
Защит, блокировок и сигнализации;
Поддержания основных технологических параметров
котельной установки на заданном значении (автоматическое регулирование);
Контроля параметров оперативного назначения и
«по месту».
Предусмотрено поддержание на заданном значении
следующих параметров:
Разряжения в топке котла;
Уровня воды в барабане котла;
Давления пара в барабане котла;
Соотношения расходов воздуха и топлива (только
при работе на газе).
Анализ существующей САУ
Проанализируем работу системы управления
давления пара с помощью полученных на предприятии трендов - переходных
характеристик работы системы.
Математическое ожидание - это некоторое среднее
значение всей совокупности значений показаний давления, относительно которого
группируются все остальные значения этой совокупности.
W = 0,45 кгс/см2;
Дисперсия характеризует степень разброса всех
значений от среднего значения.
s2W = 6,33,%2;
Среднеквадратическое отклонение - это разброс
всех значений давления относительно математического ожидания.
sW = 2,52%;
Вывод: Проанализировав тренд можно сделать вывод
о том, что значение давления пара находится в пределах нормы. Это говорит о
том, что оператор, исходя из этого, выставляет задание давления вручную.
Рис. 2.1. Линия тренда
Назначение САУ и требования к разрабатываемой
САУ
Назначение АСУ ТП заключается в целенаправленном
ведении ТП и обеспечении информацией смежных и вышестоящих органов и систем
управления.
Цель управления математически формулируется
обычно в виде критерия управления и часто сводится к получению максимального
экономического эффекта с учетом плановых, экономических и технических
ограничений. В частном случае это может быть максимальная производительность,
минимальная стоимость, минимальный расход дорогого сырья и т. д.
Практически цель управления реализуется путем
стабилизации параметров процесса на входе и заданных параметров готовой
продукции, оптимизации и согласования режимов работы агрегатов, обеспечения
безопасности функционирования ТП.
Функции АСУ ТП направлены на выполнение
поставленных частных целей управления и выполняются комплексом технических
средств (КТС) и персоналом.
Информационные функции обеспечивают контроль
основных параметров процесса и сигнализацию об отклонении от этих параметров;
измерение и регистрацию по вызову; запросы оператора; вычисление ТЭП,
показателей качества продукции и процесса; периодическую регистрацию и др.
Совокупность информационных функций составляет информационную подсистему АСУ
ТП.
Управляющие функции обеспечивают выработку и
реализацию управляющих воздействий на объект управления, стабилизацию
параметров, программное изменение режима, защиту, формирование и реализацию
оптимальных управляющих воздействий, распределение нагрузок между агрегатами,
управление пусками и остановами агрегатов и т. д. Совокупность управляющих
функций составляет управляющую подсистему АСУ ТП. Кроме вышеперечисленных
основных (внешних) функций имеются служебные (внутренние) функции АСУ ТП:
контроль за правильностью функционирования, связь с АСУ более высокого уровня,
слежение за астрономическим временем и отсчет временных интервалов.
В системе управления котлом предусмотрены
следующие регуляторы:
разрежения в топке
соотношения топливо/воздух
давления пара
уровня воды в барабане
солесодержания котловой воды - 2 шт.
температуры перегретого пара
Все системы автоматического регулирования
работают посредством сравнения значения измеренного регулируемого параметра с
заданным значением для нахождения сигнала рассогласования и выдачи
соответствующего управляющего воздействия.
Регулятор давления пара включается в
автоматическом режиме в состоянии котла “Рабочий режим”. Для поддержания
установленного оператором значения давления пара от котла регулятор
воздействует на регулирующий клапан на газе или на мазуте (в зависимости от
используемого топлива) по PID-закону.
Регулятор автоматически выключается при останове
котла при отсутствии факела в топке. При выключении регулятора в автоматическом
режиме регулирующий клапан на топливе закрывается, если не включен регулятор
пускового давления топлива.
Обоснование и выбор способа управления
Комплекс технических средств, на базе которого
реализована система регулирования, является морально устаревшим и имеет следующие
недостатки:
низкая надежность;
низкая помехозащищенность входных цепей
сигнализации;
устаревшая элементная база, часть которой уже не
выпускается отечественной промышленностью;
аппаратура контроля давно уже отработала свой
срок эксплуатации;
В связи с этим, в настоящее время поддержание
системы регулирования котла ДКВР в работоспособном состоянии является весьма
сложной задачей и требует значительных временных и материальных затрат. Моя
цель- реализовать новую систему автоматического управления давлением пара
котла.
Требования, предъявляемые к новой системе
управления:
надежность;
производительность;
точность;
безопасность;
мониторинг и регистрация;
сигнализирование.
Структура модели объекта управления и
определение свойств объекта (передаточных функций)
Управляющим воздействием для корректировки
давления пара в барабане котла является расход топлива. Также влияние на
изменение давления оказывают расход отбираемого к потребителю пара и расход
питательной воды, поступающей в котел, хотя эти показатели технологического
процесса вносят незначительные коррективы в работу САУ.
Структурная схема математической модели системы
управления давлением пара в барабане котла представлена на рис 6.1.
Рис. 6.1. Структурная схема математической
модели САУ давлением пара в барабане котла
На данном рисунке даны следующие обозначения:т
(Р) - расход топлива;п (Р) - расход пара;пв (Р) - расход питательной воды;
Рп (Р) - давление пара в барабане котла;об1 (Р)
- передаточная функция объекта по каналу: расход топлива - давление пара в
барабане котлаоб2 (Р) - передаточная функция объекта по каналу: расход пара -
давление пара в барабане котлаоб3 (Р) - передаточная функция объекта по каналу:
расход питательной воды - давление пара в барабане котла
С целью получения модели исследуемого объекта
управления, с дальнейшим ее использованием при синтезе системы управления, а
также при ее расчете, был использован активный экспериментальный метод
моделирования. То есть на вход исследуемого объекта подавались сигналы
определенного вида (ступенчатые воздействия), и фиксировались изменения
выходных переменных. Также была проведена аппроксимация экспериментальных
кривых, и были получены следующие модели объектов.
Модель объекта по каналу управления: расход
топлива (природный газ) в топку котла Fт (%) - давление пара в барабане котла
Рп (кгс/см2)
Входным сигналом для объекта управления в данном
случае является ступенчатое изменение расхода топлива, поступающего на горение.
Характер данного процесса изображен на рис. 6.2. Разгонная характеристики
представлена на рис. 6.3.
Рис. 6.2. График расхода топлива (степень
открытия клапана топливоподачи)
Рис. 6.3. Разгонная характеристика по каналу
расход топлива - давление пара в барабане котла
Параметры входного воздействия (положение
регулирующего органа):
значение входного воздействия до эксперимента -
30%;
значение входного воздействия после эксперимента
- 60%;
среднее значение выходного сигнала до опыта -
6,1 кгс/ см2;
установившееся среднее значение выходного
сигнала после опыта - 6,5 кгс/ см2;
шаг дискретности по времени - 2 сек
Модель объекта управления была получена в виде
звена второго порядка с запаздыванием и разными постоянными времени.
Оптимальная передаточная функция объекта с
наименьшей дисперсией адекватности:
Параметры объекта для данной модели
составляют:
коэффициент передачи К=0,013
кгс/см2/%
постоянная времени Т1=10,240 сек.
постоянная времени Т2=1,846 сек.
запаздывание τ=6,396 сек.
Дисперсия адекватности в данном
случае = 0,0041753

Модель объекта по каналу возмущения: расход пара
Fп (%) - давление пара в барабане котла Рп (кгс/см2).
Входным сигналом для объекта управления в данном
случае является ступенчатое изменение расхода пара. Характер данного процесса
изображен на рис. 6.5. Разгонная характеристика представлена на рис. 6.6
Рис. 6.5. График расхода пара (степень открытия
главной паровой задвижки)
Рис. 6.6. Разгонная характеристика по каналу
расход пара - давление пара в барабане котла
Параметры входного воздействия (положение
регулирующего органа):
значение входного воздействия до эксперимента -
30%;
значение входного воздействия после эксперимента
- 60%;
среднее значение выходного сигнала до опыта -
6,5 кгс/ см2;
установившееся среднее значение выходного
сигнала после опыта - 5,9 кгс/ см2;
шаг дискретности по времени - 2 сек.
Модель объекта управления была получена в виде
звена первого порядка с запаздыванием и постоянной времени.
Оптимальная передаточная функция объекта с
наименьшей дисперсией адекватности:
Параметры объекта для данной модели
составляют:
коэффициент передачи К=-0,018
кгс/см2/%
постоянная времени Т=7,810 сек.
запаздывание τ=7,708 сек.
Дисперсия адекватности в данном
случае = 0,0037033
Рис. 6.7. Кривые разгона объекта и оптимальной
модели по каналу возмущения
Алгоритмическая структурная схема предлагаемой
САУ
Алгоритмическая структура одноконтурной САУ
давлением пара в барабане котла, с корректировкой по расходу пара и расходу
питательной воды, представлена в приложении. В ней рассмотрена цифровая система
автоматического управления по каналу: расход топлива - давление пара в барабане
котла.
На данной структуре даны следующие
обозначения:об(P) - передаточная функция объекта управления;Д(Р) - передаточная
функция датчика;РЕГ(Z) - передаточная функция регулятора;Ф(Р) - передаточная
функция фиксатора;ИМ(Р) - передаточная функция исполнительного механизма;РО(Р)
- передаточная функция регулирующего органа;(P) - передаточная функция по
каналу возмущения 1 (расход пит. воды);(P) - передаточная функция по каналу
возмущения 2 (расход пара);(Z) - сигнал рассогласования;(Z), U(Р) - управляющее
воздействие регулятора;(P) - степень открытия клапана на линии топливоподачи;т(Р),
Fп(Р), Fпв(Р) - расход топлива, расход пара, расход питательной воды;
Рп(Р), Рп зд(Р) - значение давления пара
действительное и заданное;
Рп (Z), Рп зд(Z) - значение давления пара
действительное и заданное после АЦП.
Выбор технических средств для реализации САУ
Регулятор Минитерм 400
Регуляторы микропроцессорные Минитерм 400
предназначены для регулирования, в том числе программного, различных
технологических параметров, например, температуры, давления, разрежения,
расхода, уровня жидкости и т.п.
Применяются для автоматизации печей и сушильных
камер, котлоагрегатов, систем теплоснабжения, водоподогревателей и установок
приточной вентиляции, климатических камер и кондиционеров, термостатов и
стерилизаторов, а также многих других процессов и установок.
Функциональные возможности
ПИД, ПИ, ПД, П - регулирование с импульсным или
аналоговым выходным сигналом, а также двухпозиционное регулирование.
Возможность формирования программного задания в
виде произвольной кусочно-линейной функции времени с участками произвольного
наклона (имеются специализированные исполнения с различным количеством
участков).
Логическое управление программным задатчиком
(стоп, пуск, сброс).
Возможность настраиваться автоматически на
оптимальную динамику процессов регулирования перед включением в работу.
В импульсном регуляторе - возможность
использования аналогового выхода в качестве сигнала, линейно зависящего от
регулируемого параметра (например, для вывода на самописец).
Защита от обрыва цепи датчика.
Сигнализация верхнего и нижнего предельных
отклонений регулируемого параметра от заданного значения.
Цифровая индикация параметров в натуральных
физических единицах или в процентах.
Диагностика отказов регулятора.
Энергонезависимая память.
Связь кольца, содержащего до 16 регуляторов, с
верхним уровнем управления (ПК, контроллер МС8) по протоколу RS232C для
передачи информации о входах, параметрах настройки регуляторов, а также
изменение задания и других параметров по камандам с верхнего уровня.
Моделирование и анализ предлагаемой САУ
Рассматривается линейная одноконтурная система с
амплитудно-импульсной модуляцией.
Ранее были получены передаточные функции для
рассматриваемого объекта по каналам: расход топлива - давление пара в барабане
котла и расход пара - давление пара в барабане котла. Вследствие преобразований
формула
приобретает вид:
Где B1 = T1 + T2 =
12,086 сек.
B2 = T1
× T2 =
18,903 сек.
К = 0,013 кгс/см2/%
τ = 6,396 сек.
Передаточная функция измерительного
преобразователя (датчика) давления пара. В качестве датчика использован
манометр Метран-100 с пределами измерения от 0 до 16 кгс/см2. выходной сигнал:
0-5 мА.
Wд(р) = Кд =
(16-0)/(5-0) = 3,2 кгс/см2/мА
Для исполнительного механизма и
регулирующего органа объединим передаточные функции Wим (р )и Wро(р) в одну
передаточную функцию Wим+ро:
Регулятор совместно с ИУ реализует
ПИ-закон регулирования, поэтому Киу=1:
Wим+ро(р) = Киу = 1 град. угла/%
Для синтеза системы выбираем
ПИ-регулятор. ПИ-закон регулирования позволяет увеличить точность
регулирования, уменьшить время отработки задающего воздействия, свести
статическую ошибку к нулю.
Где К1 и К2 - коэффициенты
настройки регулятора.
Для ПИ-закона регулирования в
операторной форме:
U(P)=КрЕ(Р)+Кр/Ти*(Е(Р)/Р)
Где К1 соответствует Кр, а К2 -
Кр/Ти.
После внесения численных значений
передаточных функций в систему, получаем область устойчивости в плоскости К1 и
К2, которая определяется следующим образом:
апериодическая граница задаётся в
виде неравенства К1 > К2;
колебательная граница задаётся в
виде таблицы значений К1 и К2.
Степень колебательности М=0,90.

Рис. 9.2. Линия равного запаса
устойчивости
С помощью программы АSIM LIN строим
переходные процессы по задающему и возмущающему воздействиям. Рекомендуемые
параметры настройки регулятора при ПИ-законе управления: К1 = 71,6727, К2 =
60,0961. Данные настройки обеспечивают минимальное перерегулирование 14% и
минимальное время обработки сигнала.
Рис. 9.3. График переходного процесса по
задающему воздействию
Для настроек К1 и К2 строим переходный процесс
по возмущающему воздействию.
Рис. 3.12 График переходного процесса по
возмущающему воздействию
Вывод: При расчете одноконтурной системы
автоматического регулирования были получены следующие настройки регулятора: К1
= 71,6727, К2 = 60,0961. Предлагаемая система автоматического регулирования
имеет величину перерегулирования меньше 20%, статическая ошибка равна 0.
Выводы и рекомендации
В этой работе было произведено исследование
котлоагрегата ДКВР 20/13 ГУП «ТЭК СПБ», анализ процесса давление в барабане
котла и существующей системы автоматизации на данном котле. Наибольшее внимание
было уделено АСР давление пара. Был произведен ее анализ, в результате которого
выявлены ее достоинства и недостатки.
Были представлены краткое описание котлоагрегата
ДКВР 20/13, его техническая характеристика, состав и характеристика основного
оборудования.
Был произведен анализ котла, как объекта
регулирования давление пара и приведены графики статических характеристик
котла.
Расчет цифровой системы автоматического
регулирования был произведен не полностью. Однако некоторые расчеты были
проведены.
Литература
М.И.
Резников, Ю.М. Липов «Паровые котлы тепловых электростанций»
Н.А.
Киселев «Промышленные котельные установки»
«Эксплуатация
паровых котлов и паротрубопроводов» под ред. Божко
Н.И
Еремин, А.Н Наумчик, В.Г Казаков «Процессы и аппараты глиноземного
производства»
Н.А.
Киселев «Устройство и эксплуатация котлов»
В.М.
Максимов «Котельные агрегаты большой паропроизводительности»
В.Г.
Александров «Паровые котлы средней и малой мощности»
Н.Н.Лариков
«Теплотехника»
«Справочник
эксплуатационника газовых котельных»
Графическая часть
1. Алгоритмическая структурная схема
предлагаемой САУ
. Техническая структура предлагаемой САУ