Проектування складально-зварювальної оснастки
Міністерство
освіти і науки України
Національний
технічний університет України
«Київський
політехнічний інститут»
Зварювальний
факультет
Кафедра
зварювального виробництва
КУРСОВИЙ
ПРОЕКТ
з
навчальної дисципліни «Проектування складально-зварювальної оснастки»
Варіант
№8
Виконав:
студент
5 курсу
групи
ЗВ-32с
Бухта
О.М.
Перевірив:
Перепічай
А.О.
Київ
2014
ЗМІСТ
Вступ
.Вихідні дані для проектування
складально-зварювальної оснастки.
1.1 Характеристика
конструкції зварного виробу та ТУ на виготовлення.
1.2 Технологічний процес
складання - зварювання виробу.
1.3 Вибір технологічних
баз та базування заготовок.
1.4 Способи та режими
зварювання.
.5 Зварювальне
устаткування.
1.6 Обґрунтування
доцільності розробки складально-зварювальної оснастки.
2. Технічне завдання на
проектування складально-зварювальної оснастки.
2.1 Найменування
складально-зварювальної оснастки.
2.2 Призначення
складально-зварювальної оснастки.
2.3 Технічні вимоги до
розроблюваного пристрою.
.4. Технологічний процес
складання-зварювання виробу в пристрої.
.4 Схема базування та
закріплення заготовок виробу в пристрої.
.6 Зварювальне та допоміжне
устаткування.
.7 Режими роботи (кількість
змін). Кількість пристроїв.
3. Розроблення
складально-зварювальної оснастки.
3.1 Розрахунок сил для
закріплення заготовок виробу в пристрої.
.2 Обґрунтування вибору та
розрахунок несучих конструкцій, упорів, опор та притискачів розроблюваної
складально-зварювальної оснастки.
.3 Технологічність і точність
пристрою
.4 Опис та компонування
конструкції та роботи складально -зварювального пристрою.
. Висновки
. Література.
. Додатки.
ВСТУП
На сьогоднішній день машинобудування
належить до найпотужніших галузей народного господарства, забезпечує високу
якість і точність виробів взагалі та оброблюваних поверхонь деталей машин
зокрема. Його ефективність досягається збільшенням питомої ваги
автоматизованого устаткування, роботизованих систем, споряджених
мікропроцесорною чи обчислювальною технікою, гнучких автоматизованих комплексів
і гнучких виробничих систем.
Ефективне використання зазначеного
устаткування неможливе без створення сучасного інструментального спорядження
підвищеної надійності, яке би забезпечувало економічне використання дорогої
прогресивної техніки. Ця обставина зумовлює підвищені вимоги до металорізальних
інструментів, їх якості, ефективності. Тому майбутні фахівці в галузі
металооброблювання повинні вміти проектувати різні види інструментів а також
вдосконалювати їх для верстатів-автоматів, автоматичних ліній, верстатів з ЧПК,
швидко переналагоджувальних технологічних систем з урахуванням вимог до
оброблюваних деталей, особливостей устаткування.
Кронштейни набули широкого поширення
як елементи кріплення, використовувані в сучасних інженерних конструкціях
приладобудування, машинобудування, в промисловому та цивільному будівництві. В
процесі своєї експлуатації вони несуть суттєве навантаження, тому їх
конструкція повинна забеспечувати гарантовані умови експлуатації і в більшості
випадків не бути металоємкісною.
Відповідно, для їх виконання
необхідно проводити розрахунок напружено-деформованого стану цього виду деталей
ще на стадії проектування, зокрема з використанням комп'ютерної техніки.
1. Вихідні
дані для проектування складально-зварювальної оснастки
.1
Характеристика конструкції зварного виробу та ТУ на виготовлення
Завданням курсового проекту є
проектування складально-зварювальної оснастки на конструкцію, яку ми назвимо
кронштейн.
Оскільки, кронштейн-це консольна
опорна деталь, або конструкція, що служить для кріплення на вертикальній площині
(стіни чи колони) виступаючих або висунутих в горизонтальному напрямку частин
машин або споруд.
Конструктивно кронштейн може
виконуватися у вигляді самостійної деталі або багато детальної конструкції з
розкосами, а також у вигляді значного потовщення в базовій конструкції деталі.
Механічний принцип дії - опір
матеріалу на відкол і руйнування.
Отож вигляд кронштейна має вигляд:
(рис 1.1)
Рис 1.1.1 Кронштейн
Даний кронштейн призначений, у
вигляді полиці, з привареним до нього розкоса, який служить для підтримання
виробів зі значною вагою, або пристроїв що працюють на певній висоті.
зобразимо ескіз нашого кронштейна та
покажемо основні елементи, що конструюють даний виріб (рис 1.1.2)
Рис 1.1.2 ескіз та розчленування на
основні елементи
Кронштейн складається зі:
-закріплюючого елементу, особливість
якого є, те що по краях цієї пластини симетрично розташовані 4 отвори з
діаметрам 10 мм, які служать для з'єднання з колоною на якій буде розташований
виріб, габарити даного елементу: 500х200х10 мм.
- полиця поперечна, яка служить для
підтримання виробу, ширина цієї пластини 200мм, довжина 10мм, висота 280 мм, а
товщина 10 мм;
- косинка, яка діє, як ребро
жорсткості та підтримує основний елемент з поперечною опорою, тим самим
забезпечуючи міцність між полицею та закріплюючого елементу, габарити якої
350х10х 10мм .
Даний кронштейн виготовлений зі
конструкційної вуглецевої сталі ВСт3сп, яка нормується за ГОСТ 380-71. Наведемо
хімічні (таблиця 1.1.1), механічні(таблиця 1.1.2) температури критичних точок
(таблиця 1.1.3) та технологічні властивості даного матеріалу (таблиця 1.1.4):
Таблиця 1.1.1
Хімічний склад в % сталі сталі
ВСт3сп
|
C
|
Si
|
Mn
|
Ni
|
S
|
P
|
Cr
|
Cu
|
As
|
|
0.14 - 0.22
|
0.12 - 0.3
|
0.4 - 0.65
|
0.3
|
0.05
|
0.04
|
0.3
|
до 0.3
|
до 0.08
|
Таблиця 1.1.2
Механічні властивості при Т=20oС
сталі ВСт3сп .
|
Сортамент
|
Размер
|
Напр.
|
в
|
T
|
5
|
|
KCU
|
Термообр.
|
|
-
|
мм
|
-
|
МПа
|
МПа
|
%
|
%
|
кДж / м2
|
-
|
|
Поковки
|
до 100
|
|
353
|
175
|
28
|
55
|
640
|
Нормализация
|
|
Поковки
|
100 - 300
|
|
353
|
175
|
24
|
50
|
590
|
Нормализация
|
|
Прокат горячекатан.
|
до 20
|
|
370-480
|
245
|
26
|
|
|
Состояние поставки
|
Таблиця 1.1.3
Температура критических точек
материала ВСт3сп.
|
Ac1 = 735 , Ac3(Acm)
= 850 , Ar3(Arcm) = 835 , Ar1 = 680
|
Таблиця 1.1.4
Технологічніе властивості сталі
ВСт3сп .
|
Свариваемость:
|
без ограничений.
|
|
Флокеночувствительность:
|
не чувствительна.
|
|
Склонность к отпускной хрупкости:
|
не склонна.
|
Зварюваністю називають комплексну
технологічну характеристику сталі, яка відображає її реакцію на тепловий і
металургійний вплив процесу зварювання і визначає відносну природність цієї
сталі для утворення (отримання) зварного з’єднання з заданими властивостями при
застосуванні технологічно відпрацьованих на даний час способів зварювання і
зварювальних матеріалів.
Головні показники зварюваності -
можливість і умови отримання експлуатаційно-надійних зварних з’єднань
(уникнення гарячих і холодних тріщин, отримання заданих механічних властивостей
або певного хімічного складу, фізичних властивостей).
Чим менше обмежуючих умов необхідно
виконати для отримання зварних з’єднань заданих властивостей, тим вище оцінка
зварюваності (група зварюваності).
Попередню оцінку зварюваності можна
дати по хімічному складу сталі.
Гарячі тріщини, звичайно,
утворюються в однофазних аустенітних стальних швах і в швах при зварюванні
сплавів на нікелевій основі, рідше вони спостерігаються в феритно-мартенситних
і феритних швах, а також в швах, які отримуються при зварюванні вуглецевих і
низьколегованих конструкційних сталей.
Утворення гарячих тріщин зумовлено низькою
деформаційною здатністю (пластичністю) і міжкристалітною міцністю метала шва
(або околошовної зони), при високих температурах і виникненням, і розвитком
розтягуючих напружень в зварному з’єднанні в момент мінімальної міцності і
пластичності. Основними хімічними елементами, які можуть викликати гарячі
тріщини це: вуглець, сірка, фосфор та шкідливі домішки.
Схильність до утворення гарячих
тріщин можна оцінити за формулою:
Якщо HCS >4, то утворення
гарячих тріщин можливе.
Дана сталь схильна до
утворення гарячих тріщин, оскільки 9,46 ˃4
Холодні тріщини виникають при
температурах нижче +200°С,
коли метал має високу твердість. По характеру розповсюдження, в металі холодні
тріщини являються, в основному, транскристалітним руйнуванням металу.
Зароджуючись на границях зерен (найчастіше на стику трьох зерен), холодні
тріщини розповсюджуються потім як по границях, так і по тілу зерен. Вони,
звичайно утворюються в зварних швах, які закалюються і околошовній зоні
основного металу, схильного до закалки. Найбільш часто, холодні тріщини
виявляються в швах і околошовній зоні з’єднань середньолегованих і
високолегованих сталей перлітного і мартенситного класів, які зварюються дротом
або електродами ідентичного класу. Рідше вони зустрічаються в аустенітних
зварних швах.
Схильність до утворення
холодних тріщин можна оцінити за допомогою формули:
Якщо Секв>0.45, сталь
схильна до утворення холодних тріщин.
Отже, сталь не схильна до утворення
холодних тріщин, враховуючи, що розрахунок вівся для найнесприятливішої
комбінації хімічних елементів.
.2 Технологічний
процес складання - зварювання виробу
Більшість складально-зварювальних
пристроїв, що використовуються у зварювальному виробництві, створені як
оригінальні і призначені для виготовлення конкретних виробів в умовах масового
виробництва.
Оскільки тип виробництва кронштейна
- масове, враховуючи, що конструкція є відповідальною, габаритною, має значну
довжину швів, тому доцільно як умога більше механізувати та автоматизувати
виготовлення даного кронштейна.
Нагадаємо, що даний кронштейн
складається з 3-х основних елементів:
елемент - закріплююча (основна)
частина;
елемент - поперечна полиця (стояк);
елемент - косинка;
Технологія складання та зварювання
елементів кронштейну здійснюється в наступній послідовності(з врахуванням
виконаних заготівельних операцій) в таблиці 1.2.2:
Таблиця 1.1.2
Операція складання та зварювання
кронштейну
|
№ переходу
|
Зміст переходу, з показом послідовності
способу встановлення та закріпленням
|
|
1
|
Елемент 1 встановити на
складально-зварювальний стенд та закріплюють притискачами
|
|
2
|
Встановити елемент 2 до елементу 1 згідно
креслення та закріпити оснасткою
|
|
3
|
Виконати зварювання вузла 1по контору
механізованим способом зварювання
|
|
4
|
Встановити елемент 3 до вузла 1 згідно
креслення та закріпити оснасткою
|
|
5
|
Виконати зварювання вузла 2 по контору
механізованим способом зварювання
|
.3 Вибір
технологічних баз та базування заготовок
В процесі складання зварного виробу
виникає задача з'єднання з необхідною точністю двох або більше кількості
деталей. Розміщення деталей, які складаються в пристроях здійснюється за
правилам базування.
Складання починають з базової
деталі, в нашому випадку це елемент 1, вона слугуватиме установочним елементом
для взаємного сполучення наступних заготовок. Базову деталь позбавляємо
ступенів свободи. Після чого, згідно креслення, встановлюємо елемент деталі 2,
закріплюємо притискачем, тим самим лишаючи полицю свободи та виконати
зварювання по контуру. Аналогічно, встановлюємо згідно креслення елемент деталі
3, закріплюємо притискачем і також виконуємо зварювання по контуру.
Тим самим ми забезпечили фіксацію
елементів конструкції, аби запобігти деформаціями, відхиленням за геометричними
розмірами, точності та доступності до зварювання.
Схему базування кронштейну показано
на рисунку 1.3.1 по упорам, прижимам, а також застосовуючи для деяких елементів
притискачі.
Рисунок 1.3.1 Схема базування
кронштейну.
1.4 Способи
та режими зварювання
В попередньому розділі був виконаний
конструктивно-технологічний аналіз кронштейна, який підготував вихідні дані для
даного етапу проектування технології зварювання - вибору способу зварювання
плавленням.
Було встановлено, що матеріал для
кронштейна - сталь ВСт3сп (ГОСТ 380-71) відноситься до групи низьковуглецевих,
низьколегованих. Для цієї групи сталей, згідно рекомендацій, пропонуються
типові способи зварювання, які вказані в таблиці 1.4.1.
Таблиця 1.4.1
Типові способи зварювання сталі
ВСт3сп
|
Матеріал
|
Э
|
УП
|
ИП
|
АФ
|
ШЭ
|
Г
|
ИН
|
П
|
ЭЛ
|
Л
|
|
ВСт3сп
|
++
|
++
|
++
|
++
|
++
|
+
|
+
|
(+)
|
(+)
|
(+)
|
Примітка: “++” - рекомендується
переважно; “+” - рекомендується; “(+)” - рекомендується обмежено; “-” - не
рекомендується.
Так як сталь ВСт3сп не містить
легуючих елементів Ti, Al та інші з високою хімічною активністю, то із
подальшого аналізу виключаємо способи дугового зварювання плавким (ИП) і не
плавким (ИН) електродами в дорогих інертних газах але зварювання плавким
електродом в сумішах аргону і вуглекислого газу (ИП) є доцільним з точки зору
зменшення розбризкування і покрашення якості зварного шва. Сталь ВСт3сп не
відноситься до тугоплавких матеріалів і тому нема необхідності в застосуванні
способів зварювання з дорогим обладнанням і з високою щільністю енергії:
плазмового (П), електронно-променевого (ЭЛ), і лазерного (Л).
Таким чином для подальшого аналізу
залишаються способи ручного дугового зварювання (Э), в вуглекислому газі (УП),
в сумішах аргону і вуглекислого газу (ИП), під флюсом (АФ), електрошлакове (ШЭ)
і газове (Г). Оцінимо їх застосування при зварюванні сталі товщиною 4мм.
Очевидно, що при такій товщині
нераціональне застосування низькопродуктивного газового (Г) зварювання (багато
прохідне зварювання з присадкою). Електрошлакове зварювання (ШЭ) дає можливість
зварювати метал товщиною від 16 мм і тому в даному випадку він нас не
влаштовує. Із способів які залишились автоматичне зварювання під флюсом (АФ)
дозволяє виконати зварювання металу товщиною 4 мм за 1 прохід, в вуглекислому
газі (УП) - 1 прохід, в газових сумішах (ИП) - 1 прохід, ручне дугове
зварювання (Э) - 1 прохід. Оцінка кількості проходів дає представлення також
про продуктивність способів зварювання: чим менша кількість проходів, тим вища
продуктивність.
Продовжуємо аналіз і враховуємо
наступний фактор - положення при зварюванні. Всі зварні з’єднання пропонується
виконувати в нижньому положенні в заводських умовах. Тобто нас влаштовує
автоматичне зварювання під флюсом (АФ), в вуглекислому газі (УП), в газових
сумішах (ИП), ручне дугове зварювання (Э).
Автоматичне зварювання під флюсом
(АФ) доцільно застосовувати для більшої товщини металу та більшої довжини шва,
крім того необхідно стежити за вологістю флюсу і періодично його прокалювати..
Для зварювання коротких швів
доцільно використовувати механізоване зварювання у вуглекислому газі (УП) в
порівнянні з ручним дуговим зварюванням (Э) так як це дає ряд переваг, а саме:
підвищує продуктивність
процесу;
покращує гігієнічні умови
роботи зварників;
потребує меншої
кваліфікації зварників;
після зварювання не обхідно
відбивати шлак;
не потрібно змінювати
електроди.
Розрахунок режимів зварювання
Оскільки з'єднання є тавровим, то
враховуючи товщину металу 10 мм то покажемо підготовку кромок до та після
зварювання ГОСТ 14771-76 (рисунок 1.4.1)
Рис.1.4.1 Ескіз шва №1
Вихідні дані:
основний метал - сталь
ВСт3сп;
зварювання - механізоване
на постійному струмі;
товщина металу S=10 мм;
тип з’єднання - таврове Т3;
положення шва при зварювані
- нижнє;
катет шва - К=6 мм.
По катету шва К=6 мм і положенню шва
- нижнє, встановлюємо, що шов однопрохідний
Розрахунок режимів зварювання
Визначаємо площу наплавленого металу
по кресленню.
Діаметр електродного дроту
розраховуємо по формулі:
Коефіцієнт
вибраний
для автоматичного зварювання в нижньому положенні
Округляємо розрахунковий
до
стандартних значень і обмежуємо діапазон допустимих діаметрів: 1,0; 1,2; 1,4;
1,6; 2,0 мм. Приймаємо
.
Швидкість зварювання
визначаємо по площі наплавленого металу і розрахованого раніше
.
При зварюванні в нижньому положенні, мм/с:
Приймаємо
см/с
Швидкість подачі
електродного дроту
однозначно
визначають при відомих
,
і
,
мм/с:
Зварювальний струм
визначають по формулі, отриманій шляхом рішення виразу для
відносно
,
А:
Приймаємо
Напруга зварювання, В:
Витрати захисного газу,
л/с:
Виліт електродного дроту,
мм:
Визначення розпірних сил:
1. Визначаємо теплову потужність зварювальної дуги:
де
. Визначаємо зони витрати пружних
властивостей сталі:
товщина металу,
см;
. Визначаємо ширину в якій
температура досягла кімнатних значень:
товщина металу,
см;
3
. Визначаємо температурне подовження
стикового з'єднання при не рівномірному нагріванні:
-12
;
. Визначаємо величину розпірої сили
при зварюванні в защемленні:
При цьому враховуємо, що при
установці заготовок в пристроях по упорам між заготовкою.
Приймемо
Площа поздовжнього перерізу зварного
з'єднання:
2
Величина розпірної сили:
Визначення стягуючих сил:
1. Визначаємо теплову потужність зварювальної дуги:
. Погонна енергія зварювання при механізованому
зварюванні складає`зв=0,25 см/с
Поперечна усадка замикаючих зварних
швів при конструктивно - технологічному коефіцієнті k=1,4
. Реальне скорочення зварного виробу
з урахуванням зазару між упором та заготовкою
. Величина стягуючої сили, якщо
площа поперечного перерізу для заготовок:
Вибір зварювальних матеріаів
Вибір зварювального дроту
Для зварювання низьколегованої сталі
ВСт3сп необхідно перш за все шукати зварювальний дріт в аналогічній групі (
класі ) із низьколегованої сталі.
Так як сталь ВСт3сп не має
схильності до утворення гарячих тріщин, то зварювальний дріт може бути
однорідний і близький по складу до основного металу.
Механізоване зварювання у
вуглекислому газі не легує метал шва, тому дріт повинен містити необхідну
кількість легуючих і розкислюючи елементів. В каталозі зварювальних матеріалів
вибираємо зварювальний дріт Св-08Г2С ( ГОСТ 2246-70 ) хімічний склад якого
приведений в таблиці 1.4.2.
Таблиця 1.4.2
Хімічний склад дроту Св-08Г2С по
ГОСТ 2246-70
|
Марка дроту
|
Вміст, %
|
|
C
|
Mn
|
Si
|
Cr
|
Ni
|
S, не більше
|
P, не більше
|
|
Св-08Г2С
|
0,05-0,11
|
1,80-2,10
|
0,70-0,95
|
≤0,20
|
≤0,25
|
0,025
|
0,030
|
Для того щоб зменшити втрати часу на
чистку каналу по якому подається зварювальний дріт і уникнути його атмосферну
корозію (ржавіння) доцільно використовувати дріт з обмідненою поверхнею.
Зварювальне устаткування.
Для вибору зварювального
устаткування необхідно провести аналіз попередніх пунктів, а саме врахувати
вибрані раніше способи зварювання, розраховані режими зварювання, вибрані
зварювальні матеріали. Обладнання повинно забезпечувати надійну роботу в даних
умовах виробництва і відповідати світовим нормам.
Зварювання кронштейну виконується
механізованим способом у вуглекислому газі, тому необхідно вибрати механізм
подачі і джерело живлення які б могли нормально працювати в умовах масового
виробництва. Основними критеріями при виборі зварювального обладнання є діаметр
електродного дроту
, швидкість подачі
електродного дроту
, сила
зварювального струму
і напруга
зварювання
. Всі шви які
виконуються механізованим зварюванням мають такі показники :
=2
мм;
=500
А;
.=38
В. З каталогу фірми “Селма” вибираємо обладнання яке може задовольнити наші
вимоги, а саме подаючий механізм ПДГО-510 і випрямляч ВДУ-511.
Подаючий механізм ПДГО-510 призначений
для механізованого зварювання суцільним і порошковим дротом на постійному
струмі в середовищі захисних газів в комплекті з джерелами для МІГ/МАГ
зварювання ( рис.1.5.1 )
Рис.1.5.1 Загальний вигляд подаючого
механізму ПДГО-510
Технічні характеристики:
Напруга мережі живлення, В, ( f=50Гц
) 27
Номінальний зварювальний струм, А 500
Кількість роликів, шт. 4
Діаметр електродного дроту, мм 1,0-1,6
Швидкість подачі електродного дроту,
м/год 120-1100
Межі регулювання часу попередньої
продувки газу, сек, ( тільки в режимі “Довгі шви”) 0,2
Межі регулювання часу продувки газу
після зварювання ( захист зварної вани ), сек, ( тільки в режимі “Довгі шви”) 0,2
Межі регулювання часу затримки
відключення випрямляча ( виліт дроту ), сек 0,1-0,5
Межі регулювання часу нарощування
швидкості подачі електродного дроту від мінімального до встановленого значення
( м’який старт ), сек0,5-4,0
Потужність електродвигуна подаючого
механізму, Вт 145
Тип роз’єму зварювального пальника євророз’єм
Місткість зварювальної касети, кг 15
Маса, кг 18
Габарити, мм
630
252
420
Випрямляч ВДУ-511 (рис.1.5.2)
призначений для комплектації подаючих механізмів. В комплекті з подаючим
механізмом призначений для механізованого зварювання плавким електродним дротом
на постійному струмі в середовищі захисних газів (
,
Ar, суміші ) ( режим МІГ/МАГ-DC), для ручного дугового зварювання покритим
електродом на постійному струмі ( режим ММА-DC ), для аргонодугового зварювання
не плавким електродом на постійному струмі ( режим ТІГ-DC ).
В режимі МІГ/МАГ- DC випрямляч
забезпечує жорсткі вольт амперні характеристики з регульованою індуктивністю
для механізованого зварювання в середовищі захисних газів стальними і
порошковими дротами.
Рис.1.5.2 Загальний вигляд
випрямляча ВДУ-511
Технічні характеристики:
Напруга мережі живлення, В 3×380
Частота мережі живлення, Гц 50
Номінальний зварювальний струм, А
(при ПВ, %) 500(60%)
(100%)
Межі регулювання зварювального
струму, А 50-500
(30-400)
Межі регулювання робочої напруги, В 16,5-39
Напруга холостого ходу,В не більше 55
не більше, кВа 29(23)
Маса, не більше, кг 240
Габарити (довжина ×
ширина
×
висота),
мм,
не більше
845×520×795
1.6
Обґрунтування доцільності розробки складально-зварювальної оснастки
Доцільність використання
складально-зварювальної оснастки визначається кількісними та якісними змінами в
технологічному процесі складання та зварювання виробу, що обумовлюють
підвищення його економічності.
Необхідність розробки
складально-зварювальної оснастки обґрунтовується метою її використання. Метою
використання складально-зварювальної оснастки є збереження з необхідною
точністю габаритів, геометричної форми та взаємного розміщення деталей і
вузлів, зменшення обсягу ручних робіт, підвищення продуктивності праці, зменшення
трудомісткості складальних операцій, скорочення тривалості виробничого циклу,
використання менш кваліфікованої робочої сили, зменшення вартості
виготовлюваних зварних конструкцій, підвищення якості зварних виробів та
забезпечення їх взаємозамінності, підвищення рівня комплексної механізації та
автоматизації виробництва зварних конструкцій.
2. Технічне
завдання на проектування складально-зварювальної оснастки
.1
Найменування складально-зварювальної оснастки
Складальні пристрої призначенні для
фіксації та закріплення заготовок зварювального виробу або його вузлів та
забезпечення регламентованої точності і якості зварювальних виробів.
Обов'язковими елементами усіх
складальних пристроїв є несучі конструкції, фіксатори, притискачі, силові
приводи притискачів та механізми повороту і переміщення.
До типових складальних пристроїв
відносять:
- фіксуючі та закріплюючі елементи -
упори, фіксатори, опори, пальці, гнізда, призми, притискачі і затискачі.
- звичайні переносні складальні
пристрої - струбцини, домкрати, стяжки, розпірки, клинові скоби, клинові
притискачі, прихвати.
- неповоротні пристрої - стелажі,
плити та столи
- універсально - складальні пристрої
в комплект яких входять базові та корпусні деталі, фіксуючі та притискні
елементи.
- неповоротні складальні стенди і
кондуктори.
-неповоротні складально -
зварювальні стенди і кондуктори
- поворотні складально - зварювальні
кондуктори.
- складально-зварювальні комбайни
До типових пристроїв для повороту і
переміщення зварювальних виробів призначені не лише для оперативних поворотів
при обробці контролі та випробуванні. Сюди відносять: кантувачі, позиціонери,
обертачі, маніпулятори, роликові стенди, поворотні столи.
Пристрої для становлення і
переміщення зварювальних апаратів, які призначені для закріплення та
переміщування зварювальних апаратів з маршовою або зварювальною швидкостями.
До пристроїв для становлення і
переміщення зварювальних апаратів відносять:
несучі підйомно-поворотні колони,
зварювальні візки, спеціальні пристрої для переміщення зварювальної головки,
площадки для зварників.
Для нашого виробу, оскільки він не
дуже габаритний, але відповідальний, необхідно обрати оснастку для складання та
зварювання, таку яка б
по-перше, забезпечила необхідні
зусилля для фіксації елементів конструкції,для уникнення деформацій;
по-друге, вільний доступ до зварних
швів;
.2 Призначення
складально-зварювальної оснастки
Призначення складально-зварювальної
оснастки зводиться до наступного:
- збереження з необхідною точністю
габаритів, геометричної форми та взаємного розміщення деталей і вузлів
виготовлюваних зварних конструкцій
- зменшення обсягу ручних робіт при
складанні та зварюванні виробів;
- підвищення продуктивності праці;
- зменшення трудомісткості робіт;
- скорочення тривалості виробничого
циклу;
- полегшення умов праці за рахунок
механізації ручних робіт;
- використання менш кваліфікованої
робочої сили;
- зменшення вартості виготовлюваних
зварних конструкцій;
- розширення технологічних
можливостей зварювального устаткування;
- підвищення якості зварних виробів
та забезпечення їх взаємозамінності;
- підвищення рівня комплексної
механізації та автоматизації виробництва зварних конструкцій;
Отже, для нашого кронштейну ми
повинні призначити оснастку, яка відповідатиме вище сказаним умовам, тим самим
вона (оснастка) є доцільною та доречною для складання під зварювання нашої
зварної конструкції.
.3.
Технічні вимоги до розроблюваного пристрою
Складально - зварювальна оснастка
повинна забезпечувати:
установлення деталей в зварному
вузлі без приганяльних операцій;
точність складання в межах
установлених кресленнями допусками;
найбільш вигідний порядок складання
та послідовність виконання зварних швів;
надійне закріплення зварювального
виробу притискачами;
можливість зварювання в нижньому
положенні;
швидке відведення тепла від місця
інтенсивного нагрівання;
зниження зварювальних деформацій і
напружень у вузлі;
захист всіх базових та установочних
поверхонь;
необхідну міцність та жорсткість
елементів пристрою;
виключення можливості заклинювання
затискних механізмів під дією зварювальних деформацій;
вільне знімання (витягування)
складеного або звареного виробу пристрою;
ремонтоспроможність (можливість
зміни швидкозношуваних деталей та відновлення необхідної точності пристрою);
технологічність пристрою;
безпека експлуатації (наявність
самогальмівних пристроїв та ін.);
широке використання типових
уніфікованих, нормалізованих та стандартних деталей, вузлів і механізмів, що
сприяє зменшенню їх собівартості, строків проектування;
.4 Технологічний процес
складання-зварювання виробу в пристрої
Покажемо технологічний процес
складання-зварювання виробу в пристроях в таблиці 2.4.1
|
№
|
Найменування складально-зварювальної операції
|
|
1
|
Підготовити складально-зварювальний стіл до
виконання подальших робіт.
|
|
2
|
Подати на стіл та зафіксувати закріплюючий
елемент 1 двома пальцями згідно креслення.
|
|
3
|
Подати та розмістити на стіл основний
закріплюючий елемент 1 поперечну полицю 2 згідно креслення.
|
|
4
|
Подати та розмістити на столі косинку 3 згідно
креслення.
|
|
5
|
Виконати притиск поперечної полиці 2 згідно
креслення спеціальним затискачем.
|
|
6
|
Встановити струбцину (1) в стіл згідно
креслення та зробити притиск та фіксування поперечної полиці 2.
|
|
7
|
Встановити струбцину (2) в стіл згідно
креслення та зробити притиск та фіксування косинки 3.
|
|
8
|
Перевірити доступ до зварних швів, сил
притиску, точність складання.
|
|
9
|
Виконати механізоване зварювання в середовищі
вуглекислого газу по контуру згідно креслення.
|
|
10
|
Після зварювання звільнити вертикальний
притиск, який був заданий струбцинами
|
|
11
|
Звільнити від горизонтального притиску
зварювальні елементи.
|
|
12
|
Зняти пальці з отворів. Подати кронштейн у
ВТК.
|
|
13
|
Транспортувати кронштейн на місце складування.
|
2.5 Схема
базування та закріплення заготовок виробу в пристрої
Перед зварюванням кронштейну
необхідно складальні елементи лишити всіх степенів вільності, для надійного
фіксування елементів конструкції.
Нагадаємо (як і в п 1.3) та покажемо
схему базування елементів конструкції.
Рисунок 2.5.1 схема базування виробу
та зварювальних елементів
Умовно покажемо як ми будемо,
використовуючи засоби оснащення, закріплення елементів на рисунку 2.5.2
Рисунок 2.5.2 Ескіз розташування
оснастки відносно кронштейна
На рисунку 2.5.2 покажемо основні
елементи оснастки:
складально-зварювальний стіл;
- палець (шт);
- кутник 120х120х40мм;
- струбцини (2шт);
- кутник;
- горизонтальні притискачі (2 шт.);
2.6. Зварювальне та допоміжне
устаткування.
Режими роботи (кількість змін).
Кількість пристроїв.
Отож, як висновок даного розділу
нагадаємо всі види оснастки та допоміжного складально - зварювального
устаткування які будуть використовуватися:
- спец. складально-зварювальний
стіл, розміри якого 1000 х 500, висотою 1200 мм, з отворами для фіксування.
Даний стіл покажемо на рисунку 2.6.1.
Рис.2.6.1Складально-зварювальний
стіл
-спец. горизонтальний стенд
притискач (2шт), який призначений для притиску поперечної полиці до косинки
кронштейна. Даний пристрій буде спеціально з конструйований для масового
виробництва даних виробів, з спеціально підібраними габаритами та вільним
доступом до закріплення та від'єднання. Даний притискач - прижим покажемо на
рисунку 2.6.2
Рис.2.6.2 Спеціальний горизонтальний
притискач
- спеціальні пальці, які призначенні
для закріплення кронштейну на зварювальному столі, їхнє застосування враховуємо
з однієї причини, що в кронштейні та столі розташовані отвори, діаметрами
допустимими до їхнього застосування (діаметром-10мм та 12мм). Кількість робочих
пальців, що найменше 2 шт. Дані елементи покажемо на рисунку 2.6.3
Рис.2.6.3 Складальний палець
- струбцини (2 шт.), які призначені
для вертикального притиску поперечної полиці та косинки. Дані струбцини
складаються з вертикальної направляючої яка має висоту 350 мм та притискної
частини, яка також має горизонтальну направляючу, пружинний елемент і саму
притискну поверхню. Ці струбцини розташовуються та закріплюються в столі між
рамами-пазами, у випадку зняття горизонтальна частина може вільно повертатися
на 360град, що значно полегшує як і закріплення так і їх зняття. Даний вид
струбцини покажемо на рисунку 2.6.4
Рис.2.6.4 Струбцина
-направляючий кутник (застосування
лише при складанні для вирівнювання та упору косинки та закріплюючого елементу
з поперечною полицею). Даний кутник закріплюється в столі болтовим з'єднанням в
певному положенні. Покажемо даний кутник на рисунку 2.6.5.
Рис.2.6.5 Кутник направляючий
-Підкладка під кутник, дана
підкладка застосовується для підтримання кутника 120х120х20 мм для підтримання
косинки. Покажемо дану підкладку, яка дорівнює товщині металу основної
закріплюючої частини на рисунку 2.6.6.
Рис.2.6.6 Підкладка під кутник
-Кутник 120х120х20 мм, слугує як
упор для косинки. Даний кутник має 3 отвори діаметром 20 мм. Покажемо даний
кутник на рисунку 2.6.7.
Рис.2.6.7 Кутник 120х120х40
Загальний вигляд кронштейна в
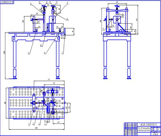
остнастці перед зварюванням Показана на рисунку 2.6.6

Рис 2.6.6 Загальний вигляд
кронштейна в оснастці
Зварювання виконується в оснастці,
механізованим зварюванням в середовищі захисних газів. Зварювання виконується
по контуру. При необхідності використовується болтові з'єднання. Враховуючи, що
виробництво масове , то дану роботу буде виконувати 1 робітник-зварник, з
кількістю змін - 2
3.
Розроблення складально-зварювальної оснастки
.1 Розрахунок
сил для закріплення заготовок виробу в пристрої
Розрахуємо обидва притискачі та
визначимо геометричні параметри, які необхідно для закріплення.
Знайдемо усадочну силу для двох
струбцин:
Притискач №1 (для закріплення
косинки):
Розрахуємо зосереджені сили притиску
Q1:
Р - усадочна сила, Н;
е - ексцентреситет на даній
полиці,(9.2 мм);- довжина косинки, (350 мм)
Визначаємо внутрішній діаметр
гвинта, що враховує крутильний момент:
=
=0,0183 м =18,32 мм
Вибираємо зі стандарту ГОСТ 9150-59 гвинт М22,
внутрішній діаметр складає dвнт=19,294 мм а зовнішній dзов=20,376
мм.
Момент затяжки гвинта з плоским торцем:
=0,8d;
- cередній
крок різьби (r=0,45dзов)
Визначаємо довжину рукоятки, при зусиллі
робітника Р'=100 Н
Приймаємо: l=210мм
Діаметр рукоятки гвинта визначаємо з умови
міцності:
Приймаємо: діаметр рукоятки 10 мм
Визначаємо кількість витків різьби на гайці:
Приймаємо:
Визначаємо висоту гайки при кількості заходів
різьби (m=2):
різьби; для нашого гвинта S=3
Визначаємо розміри поперечного перерізу корпусу
притискача b*
, В=115 мм
Притискач №2 (для закріплення поперечної
полиці):
Розрахуємо зосереджені сили притиску Q2:
Р - усадочна сила, Н;
е - ексцентреситет на даній полиці,(9,4 мм);-
довжина косинки, (200 мм)
Визначаємо внутрішній діаметр гвинта, що
враховує крутильний момент:
=
=0,024 м =24 мм
Вибираємо зі стандарту ГОСТ 9150-59 гвинт М30,
внутрішній діаметр складає dвнт=26,211 мм а зовнішній dзов=27,727
мм.
Момент затяжки гвинта з плоским торцем:
=0,8d;
- cередній
крок різьби (r=0,45dзов)
Визначаємо довжину рукоятки, при зусиллі
робітника Р'=100 Н
Приймаємо: l=380 мм
Діаметр рукоятки гвинта визначаємо з умови
міцності:
Приймаємо: діаметр рукоятки 12 мм
Визначаємо кількість витків різьби на гайці:
Приймаємо:
Визначаємо висоту гайки при кількості заходів
різьби (m=1):
різьби; для нашого гвинта S=3
Визначаємо розміри поперечного перерізу корпусу
притискача b*
.2 Обґрунтування
вибору та розрахунок несучих конструкцій, упорів, опор та притискачів
розроблюваної складально-зварювальної оснастки
Під час проектування скадально-зварювальних
пристоїв необхідно розглядати декілька варіантів вирішення однієї і тієї ж
задачі з метою її оптимізації та функціональними ознаками. До таких показників
відносять:
точність виготовлення конструкції;
взаємозамінність зварних вузлів;
надійність;
висока якість зварних з'єднань;
продуктивність;
безпека експлуатації;
технологічність;
ремонтну спроможність;
У загальному випадку конструкція
складально-зварювального пристрою включає несучі елементи (корпус, каркас,
рама, опорна балка, плита); установочні елементи (опори, упори,установочні
пальці, оправки, призми, знімні шаблони), притискачі, поворотні механізми та
допоміжні деталі та вузли.
Несучі елементи являють собою опорні конструкції
оснастки, які призначені для сприйняття ваги виробу та сил, які виникають в
процесі складання та зварювання. Опорні конструкції оснастки повинні мати
достатню міцність та жорсткість, а також повинні бути компактні та незначної
ваги. Вибір конструкції несучого елементу пристрою залежить від геометричної
форми та ваги виробу.
В якості несучих елементів, ми обираємо
складально-зварювальний стіл, на якому буде розташований наш кронштейн під час
складання вузлів, додаванням спеціальної оснастки та зварювання. Сам стіл
складається з 4-х опорних ніжок та лист металу з спеціальними отворами. Сам
лист кріпиться до ніжок. Отвори, які знаходяться в листі розташовані синхронно
та рівномірно на одній і тій ж відстані тим самим полегшуючи кріплення виробу
до листа та в цілому до столу.
Установочні елементи (фіксатори) - це опорні
елементи, що утворюють базові поверхні пристрою та забезпечують фіксування
необхідного положення заготовки в пристрої при складанні вузла у відповідності
з правилом 6ти опорних точок. Вибір конструкції установочних елементів
виконується з урахуванням забезпечення необхідної точності, зручності
установлення заготовок, вільного доступу до прихваток та зварювання,вивільнення
звареного виробу та достатньої міцності та жорсткості.
В якості установочних елементів, ми обираємо (як
мінімум) 2 пальці та кутник. Пальці встановлюється в отвори виробу і столу, тим
самим утворюють прижим виробу до столу та його, аби деталь не утворювала крутні
моменти. Кутник (30х15) слугує як опора виробу та вирівнюючим елементом для
основної частини та косинки, аби була рівномірність по всій довжині виробу.
Притискачі призначені для надійного закріплення
установлених в пристроях заготовок. Вибір конструкції притискачів здійснюється
з урахуванням наступних вимог:
забезпечення необхідного напрямку дії сили
притиску заготовок;
забезпечення розрахункової сили притиску
заготовки протягом процесу складання та зварювання;
швидкодія притискних механізмів;
вільний доступ до місць постановки прихваток
зварювання швів;
зручний доступ для притискачів для приведення їх
в дію;
зручність та безпека експлуатації;
можливість вивільнення звареного виробу з
пристрою;
В якості притискачів, ми обираємо спеціальний
горизонтальний притискач упор та 2 струбцини. Горизонтальний притискач - упор
слугує для вирівнювання поперечної полиці та рівномірного притиску її до
косинки для точності контакту. Струбцини (гвинтові притискачі)- слугують для
притискання косинки та поперечної полиці зверху до основної частини, аби не
утворився прогин та зменшення зварювальних деформацій.
3.3 Технологічність та
точність пристроїв
зварювання кронштейн конструкція
заготовка
Основою технологічності конструкції пристрою є
простота конструктивних форм її деталей, компактність конструктивних форм її
деталей, компактність конструкції в цілому та максимальна її нормалізація.
Компактність пристрою визначається його габаритами, що впливає на витрати
матеріалу та на обсяги обробки. Тому при розробці пристрою необхідно прагнути
до зменшення кількості деталей та габаритів пристрою. При конструюванні деталей
необхідно надавати їм такі форми, які при виготовленні деталей необхідно
надавати їм такі форми, які при виготовленні не потребували б складних
технологічних процесів. В центрі уваги повинно стояти завдання раціонального
використання та економії матеріалів. Важливим технологічним фактором, який
впливає на собівартість пристрою, є точність та чистоти обробки його деталей.
Рекомендовано уникати високої точності та чистоти обробки поверхонь деталей там
де це не обумовлено умовами роботи або виготовлення. Механічну обробку
фіксаторів та притискачів виконують по 3 та 4 класам точності.
Точність виготовлення пристроїв залежить від їх
призначення та точності виготовлення зварного виробу. На відхилення розмірів
зварних виробів впливає точність виготовлення конструктивних деталей, їх
деформації при складанні та зварюванні, похибки при виготовленні конструктивних
елементів та їх монтажі.
По точності виготовлення розрізняють наступні
групи конструктивних елементів пристосувань:
несучі елементи для закріплення на них
фіксаторів та притискачів;
фіксуючі елементи;
притискні елементи;
Несучі конструкції оснастки повинні бути
достатньої жорсткості. Допустимий прогин опорної балки кондуктора визначається
в залежності від допусків на залишковий прогин виробу і повинен бути меншим від
цієї величини.
При фіксуванні двома отворами заготовка одним
отвором установлюється на циліндричний палець, а іншим на ромбовидний.
Бокове зміщення циліндричного пальця в отворі приймають
рівним половинні максимального зазору між циліндричним пальцем та отвором.
Максимальний зазор включає гарантований зазор та допуски на циліндричний палець
і діаметр отвору.
Притискачі потрібно розміщувати навпроти упорів
або поблизу них. Конструкції притискачів та упорів повинні відповідати умовам
міцності та жорсткості. В одному пристосуванні повинно бути не більше двох
типів притискачів.
Отож, щодо обрання технологічності та точності
пристроїв, то ми відштовхуємося від типу масового виробництва, від вільного
доступу до зварних з'єднань, раціонального закріплення всіх елементів
конструкції їх геометричного положення. З цим ми спробували з мінімізувати
кількість оснастки для виготовлення кронштейну, тим самим забезпечивши вільний
доступ, точність розмірів та необхідні механічні зусилля, які під час
встановлення і експлуатації зберегли необхідну нам точність та не сприяли
утворенню деформацій та напружень. Використання пальців, струбцин, кутника і
горизонтального притискача повністю задовольняє нашим вимогам для зварювання в
оснастці нашого кронштейна. З вибором даних пристроїв та простотою їх
використання є можливість використовувати менш кваліфікований персонал з
високими якісними характеристиками та ще враховуючи при масовому виробництві.
Розроблена схема базування виробу
використовується для компонування складального або складально-зварювального
пристрою у вигляді креслення.
3.4 Опис та
компонування конструкції та роботи складально-зварювального пристрою
В якості опису та компонування конструкції і
роботи складально - зварювального пристрою, користуючись загальним описом всіх
елементів оснастки необхідно врахувати наступні положення:
-вільний доступ до зварних з'єднань та
універсальність оснастки;
-врахування розташування виробу та вільний
доступ розміщення до нього складально-зварювального пристрою
-точність розташування оснастки відносно виробу
та необхідні зусилля для здійснення прижимів, тощо;
Враховуючи, ці положення покажемо один з
варіантів розташування оснастки відносно кронштейну на рисунку 3.4.1
Рис.3.4.1 Розташування оснастки відносно
кронштейну
Як ми бачимо відстань між оснасткою відносно
одна одної та виробу є раціональна та доступна для встановлення, складання,
експлуатації, переміщення та швидкого вивільнення пристроїв з виробу та столу.
Покажемо варіант розміщення оснастки на певній
відстані одна відносно іншої (без кронштейну) з урахуванням розмірів та
технічні характеристики оснастки на рис.3.4.2
Рис 3.4.2 Розташування та технічні х-ки оснасти
з розмірами
Зробимо короткий опис роботи
складально-зварювальних пристроїв (вся послідовність дій виконується згідно
розташуванням на кресленні та технологічним процесом):
Після встановлення столу, спочатку ставимо кутник
і закріплюємо його зі столом. Потім розташовуємо елементи кронштейну та робимо
притиск горизонтальним притискачем полицю та косинку. Після цього в отвори
встановлюємо пальці. Далі встановлюємо з обох боків виробу струбцини і
закріпивши в столі за допомогою рукоятки робимо повороти за годинниковою
стрілкою тим самим роблячи прижим елементів конструкції. Всі трудомісткі дії,
які пов'язані з оснасткою необхідно виконувати вручну і намагатися повністю і
точно задати достатню сили притиску всіх елементів кронштейну.
Висновок
В даному курсовому проекті, Я виконав
проектування складально-зварювальної оснастки для кронштейну. Провів
конструктивно-технологічний аналіз виробу, основного металу, обгрунтував спосіб
зварювання, розрахував режими зварювання стягуючі та розпірні зусилля та обрав
устаткування для зварювання при цьому враховуючи тип масового виробництва.
Після цього привів приклади оснастки, її вимоги,
особливості і довів її доцільність при використанні та виготовленні виробу.
Провів схему базування всіх елементів виробу та показав, обгрунтувавши,
оснастку яку як варіант доцільно використовувати для нашого виробу та по
елементарно описав принцип дії кожного з пристроїв навів схему технологічного
процесу послідовно показавши всі операції з використанням оснастки.
Провів теоретичний розрахунок елементів оснастки
(струбцин) та виконав перевірку та доцільність їх використання. Показав
технологічність виготовлення виробу та вимоги і умови експлуатації вибраних
пристроїв. Виконав комп'ютерне проектування оснастки за допомогою програм Solid
Works 2014 та АСКОН Компас тим самим візуально показавши сам проект
складально-зварювальної оснастки відносно кронштейну.
Список літератури
1
Карпенко А.С. Технологічна оснастка у зварювальному виробництві: Навч.посібник.-К.:Арістей,2005.-268с.
Карпенко
А.С. Технологічна оснастка у зварювальному виробництві: 2-ге видання, переробл.
та доповн. Навч.посібник.-К.:Арістей,2006.-272с.
Гитлевич
А.Д., Этингоф Л.А., Механизация и автоматизация сварочного производства.-М:
Машиностроение1979.-280с
Карпенко
А.С. Методичні рекомендації для виконання курсового проекту з дисципліни
''Проектування складально-зварювальної оснастки'' Основа:.2006-66с.
Сварка
в машиностроении: Справочник; В 4т,- М: Машиностроение, 1979-Т1.-502с, Т2-462с,
Т3-568с, Т4-512с.
Таубер
Б.А, Сборочно-сварочные приспособления и механизмы. М. :
Машиностроение,1951.416с.
Інтернет
сайти : www/strongtools/com
Інтернет
сайти www/buildPro/com
Інтернет
сайти www/k97/ru
ДОДАТКИ