Проектирование в условиях г. Владикавказа отделения обжига гранулированного молибденитового концентрата производительностью 6800 т/год
МИНИСТЕРСТВО ОБРАЗОВАНИЯ И НАУКИ
РОССИЙСКОЙ ФЕДЕРАЦИИ
ФБГОУ ВПО «СЕВЕРО-КАВКАЗСКИЙ
ГОРНО-МЕТАЛЛУРГИЧЕСКИЙ
ИНСТИТУТ (ГОСУДАРСТВЕННЫЙ
ТЕХНОЛОГИЧЕСКИЙ УНИВЕРСИТЕТ)»
Факультет Заочный
Кафедра Металлургии цветных металлов
Специальность Металлургия цветных
металлов
ПОЯСНИТЕЛЬНАЯ ЗАПИСКА
к курсовому проекту
на тему: Проектирование в условиях г.
Владикавказа отделения обжига гранулированного молибденитового концентрата
производительностью 6800 т/год
Студент гр. МЦз-09 Бабаев Казбек Геннадьевич
Руководитель
проекта доц. АЛКАЦЕВА Виктория Мечиславовна
г. ВЛАДИКАВКАЗ
Содержание
Введение
Выбор и обоснование технологической схемы
.1. Основные способы вскрытия концентрата
.1.1 Окислительный обжиг
.1.2 Разложение азотной кислотой
.1.3 Окисление кислородом в кислых средах
.1.4 Окисление кислородом в щелочных средах
.1.5 Окисление растворами гипохлорита натрия
.2 Обоснование выбора способа разложения концентрата
.2 Обоснование выбора окислительного обжига в качестве
способа разложения концентрата
. Технологические расчеты
.1 Расчет обжига гранулированного молибденитового концентрата
.2 Расчет рационального состава концентрата
.3 Расчет состава и выхода огарка и пыли из 100 кг
концентрата
. Выбор и расчет основного оборудования
.1 Выбор и расчет основного оборудования
.2 Расчет на ЭВМ
Расчет или подбор (по каталогам) вспомогательного
оборудования
.1 Расчет бункеров
.2 Расчет дробилки для размола некондиционных гранул (+2 мм)
.3 Гранулятор чашевый
.4 Воздуходувка
.5 Расчет воздухораспределительной решетки
.6 Расчет загрузочной трубы
.7 Грохот
.8 Питатель (дисковый)
.9 Ленточный транспортер
.10 Смеситель
.11 Ленточные питатели
.12 Винтовой конвейер (шнек)
.13 Расчет насосов для орошения скруббера
Мероприятие по охране окружающей среды
.1 Описание системы пылеулавливания
Заключение
Список использованной литературы
Введение
молибденитовый концентрат
обжиг
Молибден относится к тугоплавким металлам, ковкий и пластичный металл.
Механические свойства, определяются чистотой металла и предшествующей
механической и термической обработкой (чем чище металл, тем он мягче). Наличие
примесей увеличивает твердость и хрупкость металла. Обладает крайне низким
коэффициентом теплового расширения.
Молибден кристаллизуется в кубической объемноцентрированной решетке. На
воздухе при обычной температуре молибден устойчив. Начало окисления (цвета
побежалости) наблюдается при 400 °С. Начиная с 600 °С металл быстро окисляется
с образованием МоО3. Пары воды при температурах выше 700 °С интенсивно окисляют
молибден до МоО2. С водородом молибден химически не реагирует вплоть до
плавления. Фтор действует на молибден при обычной температуре, хлор при 250 °С,
образуя MoF6 и МоСl6. При действии паров серы и сероводорода соответственно
выше 440 и 800 °С образуется дисульфид MoS2. С азотом молибден выше 1500 °С
образует нитрид. Твердый углерод и углеводороды, а также оксид углерода (II)
при 1100-1200 °С взаимодействуют с металлом с образованием карбида Мо2С
(плавится с разложением при 2400 °С). Выше 1200 °С Молибден реагирует с
кремнием, образуя силицид MoSi2, обладающий высокой устойчивостью на воздухе
вплоть до 1500-1600 °С.
В соляной и серной кислотах молибден несколько растворим лишь при 80-100
°С. Азотная кислота, царская водка и пероксид водорода медленно растворяют
металл на холоду, быстро - при нагревании. Хорошим растворителем молибдена
служит смесь азотной и серной кислот.
Молибден образует два устойчивых оксида - МоО3 (белые кристаллы с
зеленоватым оттенком) и МоО2 (темно-коричневого цвета). Кроме того, известны
промежуточные оксиды, соответствующие по составу гомологическому ряду МоnO3n-1
(Мо9О26, Мо8О23, Мо4О11); все они термически неустойчивы и выше 700 °С
разлагаются с образованием МоО3 и МоО2.
Достоверно установлено существование трех сульфидов молибдена - МоS3,
MoS2 и Mo2S3. Практическое значение имеют первые два. Дисульфид MoS2
встречается в природе в виде минерала молибденита; может быть получен действием
серы на молибден или при сплавлении МоО3 с содой и серой. Дисульфид практически
нерастворим в воде, НCl, разбавленной H2SO4. Распадается выше 1200 °С с
образованием Mo2S3. При пропускании сероводорода в нагретые подкисленные
растворы молибдатов осаждается MoS3.
Основным сырьем для производства молибдена, его сплавов и соединений
служат стандартные молибденитовые концентраты, содержащие 47-50 % Мо, 28-32 %
S, 1-9 % SiO2 и примеси других элементов. Концентрат подвергают окислительному
обжигу при 570-600 °С в многоподовых печах или печах кипящего слоя. Продукт
обжига - огарок содержит МоО3, загрязненную примесями. Чистую МоО3, необходимую
для производства металлического молибдена, получают из огарка двумя путями: 1)
возгонкой пpи 950-1100 °С; 2) химическим методом, который состоит в следующем:
огарок выщелачивают аммиачной водой, переводя молибден в раствор; из раствора
молибдата аммония (после очистки его от примесей Cu, Fe) выделяют полимолибдаты
аммония (главным образом парамолибдат 3(NH4)2O·7МоО3·nН2О) методом
нейтрализации или выпарки с последующей кристаллизацией; прокаливанием
парамолибдата при 450-500 °С получают чистую МоО3, содержащую не более 0,05 %
примесей.
Около 70-80 % добываемого молибдена идет на производство легированных
сталей. Остальное количество применяется в форме чистого металла и сплавов на
его основе, сплавов с цветными и редкими металлами. Металлический молибден -
важнейший конструкционный материал в производстве электроосветительных ламп и
электровакуумных приборов (радиолампы, генераторные лампы, рентгеновские трубки
и других); из молибдена изготовляют аноды, сетки, катоды, держатели нити накала
в электролампах.
После освоения производства крупных заготовок молибден стали применять (в
чистом виде или с легирующими добавками других металлов) в тех случаях, когда
необходимо сохранение прочности при высоких температурах, например, для
изготовления деталей ракет и других летательных аппаратов. Для предохранения
молибдена от окисления при высоких температурах используют покрытия деталей
силицидом молибдена, жаростойкими эмалями и другие способы защиты. Важную роль
молибден играет в составе жаропрочных и кислотоустойчивых сплавов, где он
сочетается главным образом с Ni, Co и Cr.
Молибден и его сплавы характеризуются высоким модулем упругости, малым
температурным коэффициентом расширения, хорошей термостойкостью, малым сечением
захвата тепловых нейтронов. Электропроводность молибдена выше, чем у железа, но
ниже, чем у меди. Молибден более пластичен, чем вольфрам.
Молибден - хороший проводник электричества, он в этом отношении уступает
серебру всего в 3 раза. Электропроводность молибдена больше, чем у платины,
никеля, ртути, железа и многих других металлов.
1 Выбор и обоснование технологической схемы
.1 Основные способы вскрытия концентрата
Молибденитовые концентраты служат исходным сырьем для производства
ферромолибдена и химических соединений различной степени чистоты: триоксида
молибдена, парамолибдата аммония, молибдата натрия, молибдата кальция.
Основной, широко применяемый в промышленной практике способ разложения
молибденитовых концентратов - окислительный обжиг. Продукт обжига - огарок,
содержащий триоксид молибдена и примеси других соединений, поступает на
выплавку ферромолибдена и служит исходным продуктом для производства химических
соединений, важнейшее из которых триоксид молибдена. Для его получения
применяют способ возгонки триоксида из огарков или гидрометаллургические схемы
переработки огарка.
Разработаны гидрометаллургические способы окисления молибденита,
исключающие окислительный обжиг. К ним относятся разложение азотной кислотой,
окисление кислородом под давлением в щелочных и кислых средах, обработка
концентрата растворами гипохлорита натрия. Представляют интерес хлорные способы
переработки молибденовых огарков или непосредственно молибденитовых
концентратов.
Перед химической переработкой молибденсодержащую руду нужно обогатить.
Основным методом обогащения молибденитовых руд является флотация - способ
разделения мелких частиц различных веществ, основанный на различной их
смачиваемости и накоплении на поверхности раздела фаз. Сначала молибденитовая
руда предварительно измельчается в дробилках, затем в шаровых мельницах, а
потом поступает на коллективную сульфидную флотацию. С помощью этого процесса
удается получить концентрат, содержащий до 10 % молибдена. Полученный
молибденовый концентрат поступает далее на селективную флотацию с применением
специальных реагентов, в процессе которой (при заданном значении рН) происходит
селективное отделение MoS2 от других сульфидов (халькопирита и пр.). Повторяя
этот процесс 5-6 раз (с промежуточным измельчением), получают, в зависимости от
технологии и первоначального минералогического состава, качественный
молибденовый концентрат с содержанием Mo 48-58,6 %, Сu 0,01-2,2 %. Следует
отметить высокую степень извлечения молибденита в процессе флотации,
составляющую 90-95 % и выше.
.1.1 Окислительный обжиг
Первой и важнейшей стадией в процессе химической переработки
молибденитового концентрата является обжиг, который позволяет избавиться от
нежелательных примесей: серы, воды и остатков флотореагентов. В результате
обжига происходит целевая реакция окисления дисульфида молибдена до триоксида и
множество других побочных реакций, заметно влияющих на последующее извлечение
молибдена:
MoS2 + 3 ½ O2 =
MoO3 + 2 SO2,
(1.1)
CuFeS2 + 19O2 = 2Fe3O4 + 6CuO + 12SO2, (1.2)+ CaCO3 = CaMoO4
+ CO2, (1.3)+ CuO = CuMoO4, (1.4)3 + PbO = PbMoO4. (1.5)
Температурный режим и эффективность обжига зависят от многих факторов,
прежде всего от степени измельчения концентрата.
Огарок, содержащий молибденовый ангидрид, переводят либо в парамолибдат
аммония или чистый MoO3, либо в молибдат кальция. Из двух первых можно в
дальнейшем получить любые соединения молибдена, в том числе высокочистые.
Наибольшее распространение при извлечении молибдена из огарков
высококачественных концентратов получил аммиачный метод, так как в 8-10 %-ном
водном аммиаке растворяется молибденовый ангидрид и не растворяется большинство
примесей, сопутствующих ему в огарке. В зависимости от состава концентрата и
условий обжига удается извлечь 80-95 % молибдена. Не извлеченный MoO3
перерабатывается по дополнительной схеме. Из аммиачного раствора молибдата
аммония молибден можно извлекать в виде парамолибдата аммония
(NH4)6Mo7O24·4H2O, молибденовой кислоты H2MoO4 или молибдата кальция CaMoO4.
В заводской практике обжиг молибденитовых концентратов проводят в
многоподовых печах с механическим перегребанием и в печах кипящего слоя. Иногда
обжиг ведут в барабанных печах, которые, однако, малопригодны для обжига
молибденитовых концентратов. В печах этого типа трудно обеспечить необходимую
температуру обжига. Перегревы ведут к спеканию материала и неполному его
окислению.
Обжиг в многоподовых печах. Печи этого типа давно используются для обжига
пиритных, а также медных и цинковых сульфидных концентратов. Хорошее
перемешивание, осуществление противотока материала и газов и интенсивное
окисление во взвешенном состоянии в моменты пересыпания материала с пода на под
обеспечивают возможность ведения процесса за счет теплоты реакции.
Обжиг ведут в печах с 8; 10; 12 и 16 подами. Конструктивно многоподовые
печи не отличаются от обычных, используемых в цветной металлургии. Некоторые
изменения связаны с необходимостью строгого поддержания температуры вследствие
особенностей обжига молибденитовых концентратов. Температуру регулируют подачей
воздуха отдельно на каждый под. Газы отводятся с каждого пода в общий газоход.
Это позволяет поддерживать необходимую температуру на каждом поду. Можно
эффективно регулировать температуру впрыскиванием на каждый под вместе с
воздухом некоторого количества воды. Это обеспечивает повышение содержания SO2
в отходящих газах с 1,5 до 3 %. Такие газы можно направлять на получение серной
кислоты контактным способом.
Пылевынос при обжиге в многоподовых печах составляет примерно (10÷15)
%. Система
пылеулавливания обычно состоит из циклонов и электрофильтров. Пыль неполно
окислена и возвращается на дообжиг. Производительность многоподовых печей по
концентрату (60÷80) кг на 1 м2 пода в сутки в зависимости
от принятого режима.
Обжиг молибденитовых концентратов в многоподовых печах проводят только на
ферросплавных предприятиях, где необходимо обеспечить получение огарков с
низким содержанием общей серы (< 0,2 %), что трудно достигнуть при обжиге в
кипящем слое.
Обжиг в кипящем слое (КС). В химической и металлургической промышленности
для обжига сульфидных концентратов широкое распространение получили процессы, в
которых частицы материала находятся в восходящем потоке газа в кипящем или
псевдожидком состоянии. В такое состояние зернистый материал переходит при
определенных скоростях газового потока. При малой скорости газа слой частиц
остается неподвижным.
Для запуска печи первоначально создают в ней кипящий слой из огарка,
который разогревают горелками или подогретым воздухом до температуры зажигания
концентрата 500÷510 °С. Затем включают систему питания
печи концентратом. Попадая в слой, концентрат возгорается, температура в слое
начинает повышаться и за 15÷30 минут достигает оптимальной
температуры обжига 560÷570 °С.
Вследствие близости температур возгорания молибденитового концентрата в
КС (500÷510)
°С и начала спекания
огарков (580÷590) °С обжиг концентрата можно проводить лишь при относительно
низкой температуре в слое, поддерживаемой в пределах (560÷570)
° С. При более высокой
температуре обжига на стенках печи в надслоевой зоне образуются плотные наросты
(результат окисления уносимых тонких частиц концентрата, приводящего к
повышению температуры в этой зоне до (650÷700) °С). Куски наростов падают в слой,
постепенно накапливаются на подине, что приводит к нарушению процесса [1].
Обжиг в кипящем слое имеет следующие преимущества:
. Благодаря хорошему контакту частиц с газом химические реакции в
кипящем слое протекают быстро.
2. Подвижность слоя, подобная подвижности жидкости, позволяет легко
осуществить непрерывную самопроизвольную выгрузку, «вытекание» материала из
печи через разгрузочную трубу.
. Кипящий слой частиц обладает высокими теплопроводностью и
коэффициентами теплопередачи. Это дает возможность поддерживать во всей массе
слоя нужную температуру даже при реакциях со значительным тепловым эффектом.
Избыточное тепло из слоя легко отнимается с помощью холодильников. ( труб
вмонтированных в слой и охлаждаемых водой).
Недостаток обжига в КС - высокое содержание серы в огарках ((2÷2,5)
%, из которых (1,5÷2)
% сульфатная сера). Это
объясняется тем, что при обжиге в КС подавляющая часть примеси кальцита (СаСO3)
реагирует с SO3, образуя CaSO4, тогда как при обжиге в подовых печах кальцит,
находящийся в контакте с МоO3, переходит в СаМоO4. Вследствие высокого
содержания серы огарки после обжига в КС непригодны для выплавки
ферромолибдена. Поэтому на ферросплавных заводах обжиг ведут в многоподовых
печах.
До настоящего времени серосодержащие газы обжиговых печей выбрасывали
через трубу в атмосферу. Вследствие относительно малых масштабов экономически
невыгодно строить сернокислотные цеха для утилизации газов. Однако на крупных
предприятиях, где обжигают (6÷8) тыс.тонн концентрата в год,
необходимо строительство сернокислотных цехов. Для предприятий меньшего
масштаба разрабатывают другие варианты обезвреживания газов (ионообменную
сорбцию SO2 и другие способы улавливания) [5].
1.1.2 Разложение азотной кислотой
Азотная кислота (20÷50) %-ой концентрации при нагревании
активно окисляет молибденит. Взаимодействие в основном описывается реакцией:
MoS2 +
6HNO3 = H2MoO4 + 2H2SO4 + 6NO.
(1.6)
При температуре разложения (80÷90) °С и концентрации кислоты выше 20 % в
начальный период весь окислившийся молибден находится в растворе, однако затем
быстро выделяется молибденовая кислота и резко снижается концентрация молибдена
в растворе. С увеличением концентрации азотной кислоты и температуры скорость
окисления молибденита возрастает. После разложения (27÷30)
%-ной азотной кислоты
при 90 °С кислые маточные растворы содержат (12÷15) г/л молибдена, а после разложения 54
%-ной кислотой (2,5÷3) г/л молибдена.
При проведении процесса в системе, включающей регенерацию азотной кислоты
из выделяющихся оксидов азота, общий расход кислоты близок к
стехиометрическому.
Регенерация азотной кислоты включает следующие стадии:
окисление NO кислородом:
+ O2 = 2NO2; (1.7)
абсорбцию NO2 в воде:
NO2 + H2O = HNO2 + HNO3; (1.8)
диспропорционирование HNO2 :
= 1/3HNO3 + 2/3NO + 1/3H2O; (1.9)
- результирующая реакция абсорбции NO2:
+ H2O = 2HNO3 + NO. (1.10)
Разложение проводят в аппаратуре из нержавеющей стали. При периодическом
режиме целесообразно проводить двустадийное разложение по принципу противотока.
Пульпа, состоящая из смеси концентрата и (30÷35)
%-ной азотной кислоты,
проходит последовательно через батарею цилиндрических аппаратов. В каждый
аппарат подаются острый пар и воздух. Циркуляция пульпы внутри аппарата
обеспечивает участие кислорода в регенерации азотной кислоты. Процесс проводят
при температуре (90÷100) °С.
Примерно 80 % молибдена (от исходного в пульпе) находится в осадках в
составе молибденовой кислоты. Осадки выщелачивают аммиачной водой, растворы
молибдата аммония перерабатывают по обычной схеме.
Недостатком этого способа является трудность полной утилизации оксидов
азота из разбавленных газов.
Достоинства этого способа является то, что расход азотной кислоты можно существенно
снизить, используя циркуляцию газов с одновременным введением в систему
кислорода. В этом случая NO2 ,
образующаяся в результате окисления NO кислородом, поступает в раствор и вступает в реакцию с молибденитом.
Участие кислорода в процессе позволяет полностью разлагать концентрат при
затрате кислоты меньше теоретически необходимого количества.
.1.3 Окисление кислородом в кислых средах
Среди различных описанных в литературе вариантов автоклавного окисления
кислородом в кислых средах наиболее перспективен Симоли-процесс, при котором в
качестве катализатора в водную пульпу вводят некоторое количество азотной
кислоты. Окисление протекает за счет кислорода, однако непосредственно
реагирует с молибденитом азотная кислота, которая постоянно возобновляется
вследствие взаимодействия кислорода с монооксидом азота.
Разложение молибденитового концентрата проводят в автоклаве. В автоклав
загружается водная пульпа концентрата Ж:Т = 4:1, которая после добавления воды
и азотной кислоты разбавляется до Ж:Т = 5:1. Процесс ведут при 150÷160
°С и давлении кислорода
0,65 МПа в течение 1,5 ч. Степень разложения концентрата достигает 97÷99
%.
Примерно 75÷80 % молибдена от исходного количества
содержится в твердой фазе в составе молибденовой кислоты. Кек с фильтра обрабатывают
аммиачной водой, из аммиачного раствора путем выпаривания досуха и прокалки
осадка получают технический триоксид молибдена.
В кислых растворах содержится 20÷25 % молибдена от исходного количества,
практически весь рений, сульфаты меди и железа.
Основным недостатком Симоли-процесса является низкое прямое извлечение
молибдена в технический триоксид.
Среди различных описанных в литературе вариантов автоклавного окисления
кислородом в кислых средах наиболее перспективен («симоли-процесс»- Норанда),
при котором в качестве катализатора в водную пульпу вводят некоторое количество
азотной кислоты [2,3]. Окисление протекает за счет кислорода, однако
непосредственно реагирует с молибденитом азотная кислота, которая постоянно
возобновляется вследствие взаимодействия кислорода с монооксидом азота. Таким
образом, в процессе протекают реакции (6)-(8).
Разложение молибденитового концентрата проводят в автоклаве. В автоклав
загружается водная пульпа концентрата (Т:Ж = 1:4), которая после добавления
воды и азотной кислоты разбавляется до (Т:Ж = 1:5). Процесс ведут при 150-160
°С и давлении кислорода 0,65 МПа (6,5 ат) в течение 1,5 ч. Степень разложения
концентрата достигает 97-99 %.
Поскольку все протекающие реакции экзотермические, предусмотрено
охлаждение нижней зоны автоклава (где происходит окисление молибденита), и
верхней зоны (где протекают процессы окисления NO кислородом). Газы
засасываются в пульпу турбинкой через отверстия в диффузоре.
Выпускаемая из автоклава пульпа, содержащая продукты разложения, плохо
отстаивается и трудно фильтруется. После добавления флокулянта ее фильтруют и
промывают на фильтр-прессе.
Примерно 75-80 % молибдена от исходного количества содержится в твердой
фазе в составе молибденовой кислоты. Кек с фильтра обрабатывают аммиачной
водой, из аммиачного раствора путем выпаривания досуха и прокалки осадка
получают технический триоксид молибдена. Аммиачная вода, получаемая в
результате улавливания аммиака, возвращается на выщелачивание.
В кислых растворах содержатся 20-25 % молибдена от исходного количества,
практически весь рений, сульфаты меди и железа.
Недостатки («симоли-процесса»- Норанда) - низкое прямое извлечение
молибдена в технический триоксид (75-80 %) и трудность утилизации серной
кислоты из-за низкой ее концентрации. Кроме того, происходит значительная
коррозия нержавеющих сталей в условиях симоли-процесса (более 5´10-4
мм/год). Меньше скорость
коррозии титана (5-7)´10-5 мм/год. Усовершенствованный вариант
технологии разработан в Канаде фирмой «Норанда». Исходная пульпа (Т:Ж = 1:10) содержит
25-40 кг/м3 азотной кислоты и 400 г/л серной кислоты. Процесс ведут в автоклаве
при 120-160 °С и давлении кислорода 0,1-0,14 МПа (10-14 ат). Отличительная
особенность способа - циркуляция раствора в системе. Это позволяет увеличить
концентрацию серной кислоты до 75 %, довести прямое извлечение молибдена в
триоксид до 90 %, а также повысить концентрацию рения в циркулирующем растворе.
Выводимые из процесса сернокислые растворы (после каждой операции разложения
концентрата выводится примерно 10 % от общего объема циркулирующего раствора)
направляются на экстракционное извлечение молибдена и рения.
Основные преимущества азотнокислотного автоклавного разложения
заключаются в следующем:
вместе с молибденом более полно извлекается рений;
можно перерабатывать некондиционные концентраты с повышенным содержанием
меди;
более низкий расход азотной кислоты и практически исключаются выбросы
оксидов азота в атмосферу;
исключается образование вредных сбросов, поскольку из азотно-сернокислых
маточных растворов можно получать удобрения.
1.1.4 Окисление кислородом в щелочных средах
Окисление молибденита кислородом в щелочных растворах изучали советские и
зарубежные исследователи [14,15].
Процесс описывается следующей суммарной реакцией (10):
(11)
Реакция протекает через стадию образования тиосульфата, обнаруживаемого в
растворе при неполном окислении минерала. Концентрация тиосульфата выше в
начальной стадии процесса и снижается во времени.
В работе [14] были сопоставлены скорости окисления кислородом молибденита
в растворах аммиака, соды и щелочи. При прочих равных условиях скорость
процесса возрастает в ряду аммиак-сода-каустическая щелочь, что связано с
соответствующим повышением концентрации ионов ОН- .
Рекомендовано проводить окислительное выщелачивание концентрата в
растворах едкого натра. Опыты показали, что при выщелачивании в растворах
аммиака или соды для достижения приемлемой скорости процесса его необходимо
проводить при температуре не ниже 200 ºС и парциальном давлении кислорода
10-15 ат, тогда как при выщелачивании в растворах едкого натра можно снизить
температуру до 130-140 ºС и давление кислорода до 1-2 ат. Это
позволяет при работе с растворами едкого натра заменить кислород сжатым
воздухом, поскольку общее давление в автоклаве будет не выше 8-10 ат. Кроме
того, при применении растворов едкого натра происходит хорошее разделение меди
и молибдена уже в процессе выщелачивания, тогда как применение аммиака для
выщелачивания приведет к переходу меди вместе с молибденом в раствор. Помимо
указанного, существенный недостаток растворов аммиака - взрывоопасность смесей
в системе аммиак-кислород-водяной пар при высоких температурах и давлениях
кислорода.
Для окислительного выщелачивания молибденового промпродукта могут быть
использованы автоклавы с механическим перемешиванием. Перемешивающее устройство
должно обеспечивать хорошее диспергирование кислорода (воздуха) и засасывание
его из газовой фазы в раствор.
В результате окислительного выщелачивания в автоклаве в раствор полностью
переходят молибден, рений, сера в форме натриевых солей, молибденовой, рениевой
и серной кислот, растворы также содержат примеси соединений меди, вольфрама,
кремния, мышьяка, сурьмы и фосфора. Из маточного раствора после очистки и
осаждения двуокиси молибдена извлекают рений ионито-адсорбционным методом.
Достоинства этого процесса, технологическая схема обеспечивает извлечение
в готовый продукт молибдена и рения 96 % и 89-90 % соответственно.
1.1.5 Окисление растворами гипохлорита натрия
Гипохлорит натрия в щелочном растворе окисляет все сульфидные минералы, в
частности молибденит:
MoS2 + 9ClO- + 6OH- = MoO42- + 3H2O + 9Cl- + 2SO42-. (1.12)
Окисление растворами гипохлорита натрия представляет интерес
преимущественно для бедных молибденовых руд и концентратов, хвостов обогащения,
содержащих сульфиды железа и меди. Концентраты обрабатывают растворами
гипохлорита натрия при температурах не выше 40 °С. Скорость реакции линейно
возрастает с увеличением концентрации гипохлорита и мало зависит от
концентрации щелочи.
Высокое извлечение молибдена при окислительном выщелачивании растворами
гипохлорита натрия достигается даже при обработке бедных руд, содержащих 0,015
% молибдена (~ 93 %), если процесс ведут методом перколяции.
Преимущества применения гипохлорита натрия для извлечения молибдена из
руд и бедных концентратов состоят в избирательной способности реагента к
окислению молибденита и высоком извлечении молибдена в раствор при низких
температурах обработки. Недостаток способа - большой расход гипохлорита. Практический
расход в (1,5÷2) раза выше. Между тем стоимость гипохлорита относительно
высокая.
.2 Обоснование выбора способа разложения концентрата
Анализируя достоинства и недостатки способов переработки молибденитового
концентрата выбираем окислительный обжиг в печах КС. Основным достоинством
этого способа является высокое качество получаемого огарка.
Окислительный обжиг применительно к стандартным концентратам
характеризуется высокими технико-экономическими показателями. Получаемые огарки
непосредственно направляют на получение чистых соединений.
Обжиг в печах КС имеет ряд преимуществ:
) производительность печи в 15-20 раз выше, чем у многоподовой;
) процесс легко поддается автоматизации;
) наличие псевдоожиженного слоя позволяет создать аппарат непрерывного
действия, обеспечивающий непрерывный вывод материала из него;
) улучшенный массо- и теплообмен, что ведет к увеличению скорости
реакции, постоянству температуры в реакционной зоне и позволяет проще отводить
избыточное тепло.
Для получения огарков с высоким содержанием выщелачиваемого молибдена
(т.е. в виде МоO3) необходимо проводить обжиг при фиксированной температуре, не
допуская спекания материала, и при минимальном контакте частиц между собой для
предотвращения образования молибдатов. Данные условия лучше всего достигаются
при обжиге в печах КС. Извлечение молибдена в раствор аммиака после обжига
молибденита в печах КС составляет (90÷93) % [ ].
Молибденитовый концентрат вместе с оборотной пылью, бетонитом и водой
поступает на грануляцию. Полученные гранулы отправляют на окислительный обжиг в
печах КС.
В печи создают кипящий слой из огарка, который разогревают горелками,
затем включают систему питания печи.
Более целесообразно проводить предварительную грануляцию концентрата,
позволяющую возвращать неполно окисленную пыль в шихту грануляции, а также
обжигать в кипящем, слое высокодисперсные концентраты, при обжиге которых
пылевынос достигает 60-70 %. Обжиг гранулированных концентратов успешно
осуществляется на Скопинском заводе, где печи питают гранулированным материалом
с размерами гранул от 0,2 до 3 мм.
Практика показала, что при обжиге гранул рабочая температура в слое может
быть повышена до 580-590 °С; соответственно этому возрастает также
производительность печи. Учитывая сказанное, можно считать, что при обжиге
гранул производительность печей КС можно увеличить в 2-2,5 раза по сравнению с
обжигом негранулированного концентрата.
2.
Технологические расчеты
2.1 Расчет
обжига гранулированного молибденитового концентрат
Состав молибденитового концентрата марки КМФ-2,%: 52,8 Мо; 0,06 Rе; 0,3 W; 1,5 Fe;
0,65 Cu; 0,05 As; 0,02 Р; 0,03 Sn;
0,8 СаО; 3,20 SiO2; 0,25 флотореагенты; 2,00 влаги;
остальное - прочие.
Состав шихты грануляции:
§ бентонит (связующее) 5,5 %,
§ вода 14,0 %,
§ остальное- концентрат и оборотная пыль, т.е. 80,5 %.
Состав бентонита, %: 46,0,Si02;
0,5 СаО; 37,5 А12О3; 0,3 MgO;
15,5 Н2О, прочие - 0,2.
Пылевынос 38 % от суммы масс огарка и пыли.
Степени улавливания пыли:
§ в циклонах 60 %,
§ в сухом электрофильтре 98 %,
§ в скруббере 90 %,
§ в мокром электрофильтре 99 %.
Степени окисления, продуктов обжига:
§ огарка 98 %,
§ циклонной пыли 90 %,
§ пыли (и шламов) электрофильтров и скруббера 99 %.
Концентрат и циклонная пыль гранулируется в чашевом грануляторе, после
чего гранулированная шихта обжигается в печах КС.
Степень возгонки рения более 90 % (примем 95 %), в том числе 50 %
осаждается в сухом электрофильтре, 40 % - в скруббере и мокром электрофильтре,
остальное (т.е. 95-50-40=5 %) - теряется со сбросными газами. Невозогнанный
рений (т.е. 100-95=5 %) находится в огарке в виде перрената кальция,
образующегося по реакции:
Rе2O7 + СаСО3 = Са(RеO4)2 + СО2. (2.1)
На 100 кг концентрата масса невозогнанного рения составит:
Масса Re2O7 в составе перрената кальция:

,
а
масса кальцита, реагирующего с Re2О7:
масса образующегося при этом углекислого газа:
При точности расчета до тысячных долей килограмма масса реагирующего с Re2O7 кальцита и масса образующегося при этом углекислого газа
обращаются в нуль.
2.2 Расчет
рационального состава концентрата
Выполним расчет на 100 кг влажного концентрата. По данным
минералогического исследования, в состав концентрата входят следующие минералы:
молибденит (MoS2), пирит (FeS2). ковеллин (CuS), шеелит (СaW04), кварц (SiO2), кальцит
(СаСО3), апатит (Ca3(P04)2), аурипигмент (As2S3), сульфид рения (ReS2), касситерит (Sn02).
Молибденит
Пирит

.
Ковеллин:
Аурипигмент:
Сульфид рения:
Всего серы в сульфидах:
что соответствует анализу (в дальнейших расчетах используем уточненное
значение, полученное расчетом).
Шеелит:
Апатит:
Израсходовано СаО:
Остаток
СаО = 0,8 - 
= 0,654
кг связан в кальцит:
Таблица 2
Рациональный состав концентрата (на 100 кг влажного)
|
Компонент
|
Mo
|
Fe
|
Cu
|
As
|
Re
|
S
|
CaO
|
WO3
|
CO2
|
P2O5
|
SnO2
|
SiO2
|
H2O
|
Флото реаг.
|
Прочие
|
Итого
|
Плот ность
|
Объем
|
|
MoS2
|
52,800
|
|
|
|
|
35,288
|
|
|
|
|
|
|
|
|
|
88,088
|
4,8
|
17,935
|
|
FeS2
|
|
1,500
|
|
|
|
1,722
|
|
|
|
|
|
|
|
|
|
3,222
|
5
|
0,859
|
|
CuS
|
|
|
0,650
|
|
|
0,328
|
|
|
|
|
|
|
|
|
|
0,978
|
4,6
|
0,196
|
|
As2S3
|
|
|
|
0,050
|
|
0,032
|
|
|
|
|
|
|
|
|
|
0,082
|
3,43
|
0,024
|
|
ReS2
|
|
|
|
|
0,060
|
0,021
|
|
|
|
|
|
|
|
|
|
0,081
|
7,5
|
0,007
|
|
CaWO4
|
|
|
|
|
|
|
0,092
|
0,378
|
|
|
|
|
|
|
|
0,470
|
6,06
|
0,039
|
|
Ca3(PO4)2
|
|
|
|
|
|
0,054
|
|
|
0,046
|
|
|
|
|
|
0,100
|
3,14
|
0,048
|
|
CaCO3
|
|
|
|
|
|
|
0,654
|
|
0,513
|
|
|
|
|
|
|
1,167
|
2,7
|
0,775
|
|
SnO2
|
|
|
|
|
|
|
|
|
|
|
0,038
|
|
|
|
|
0,038
|
6,95
|
0,005
|
|
SiO2
|
|
|
|
|
|
|
|
|
|
|
|
3,200
|
|
|
|
3,200
|
2,65
|
1,208
|
|
H2O
|
|
|
|
|
|
|
|
|
|
|
|
|
2,000
|
|
|
2,000
|
1
|
2,000
|
|
флотореаг.
|
|
|
|
|
|
|
|
|
|
|
|
|
|
0,250
|
|
0,250
|
1
|
0,300
|
|
Прочие
|
|
|
|
|
|
|
|
|
|
|
|
|
|
|
0,324
|
0,324
|
2,65
|
0,212
|
|
Итого
|
52,800
|
1,500
|
0,650
|
0,050
|
0,060
|
37,391
|
0,800
|
0,378
|
0,513
|
0,046
|
0,038
|
3,200
|
2,000
|
0,250
|
0,324
|
100,000
|
4,236
|
23,608
|
Касситерит:
Кварц: 3,20 кг.
В
нем 
Всего связанного кислорода в сухом концентрате:

+ 0,041
+ 
+ 0,008
+ 1,704 = 2,417 кг.
Составляем таблицу рационального состава концентрата (табл. 2.1).
.3 Расчет
состава и выхода огарка и пыли из 100 кг концентрата
Образованием MоO2 при обжиге в кипящим слое
пренебрегаем. Принимаем, что весь мышьяк (в виде Аs2S3) окисляется до
нелетучего As2O5 (хотя на практике часть мышьяка отгоняется в виде As2O3, мы этим пренебрежем ввиду малого содержания мышьяка в
концентрате).
"Прочие" компоненты при обжиге не изменяются.
Вода испаряется и переходит в газы.
Основные реакции при обжиге молибденитового концентрата:
MoS2 +
3,5О2 = МоО3 + 2SО2; (2.2)
FeS2 +
11О2 =2FeO + 8SО2; (2.3)
4FeS2 + 11О2 =
FeO + 2SО2; (2.4)+ 1,5O2 = CuO +
S02; (2.5)
As2S3 + 11O2 = As2O3 + 2S02; (2.6)
ReS2 + 15O2 = Re2O7 + 2S02; (2.7)
Припишем, что фотореагенты представлены керосином, который сгорает по
реакции:
CI0H22 + I5,5О2 = 10CO2 +
11H2O; (2.8)
Побочные реакции при обжиге - образование сульфатов и молибдатов тяжелых
металлов и кальция, перрената кальция:
2SO2 + O2 = 2SO3; (2.9)
FeO + SО3 = FeSO4; (2.10)+ SO3 =
CuSO4; (2.11)+ SO3 = CaSO4 + CO2; (2.12)
FeO + MoO3 = FeMoO4; (2.13)+ MoO3 = CuMoO4; (2.14)О3 + MoO3 = CaMoO4 + CО2; (2.15)О7 + CaCO3 = Ca(ReO4)2 + CO2 (2.16)
По данным А.Н. Зеликмана, СаО кальцита на 10 % переходит при обжиге в
СаМоО4 и на 90% в СаSО4 10%; Сu образует СuМоО4, 30% Сu
образует CuSO4, остальная медь связана в СuО; 8% Fе образует FeSO4,
остальное железо связано в Fe2O3; вся сульфидная сера в огарке (и
пылях) связана с молибденом; MgO, SiО2, CaWO4, Са3(PO4)2,
CaMoO4, Al2O3 переходят в
огарок и пыль, без изменения.
Для определения количеств твердых продуктов обжига (огарка, циклонной
пыли, пыли электрофильтров и скруббера) сначала определим состав и количество
побочных продуктов обжига на 100 кг концентрата.
Молибдат кальция:
Сульфат кальция:
Молибдат меди:
Сульфат меди:
Оксид меди:
Молибдат железа:
Сульфат железа:
Оксид железа:
Пентаоксид мышьяка:
Семиокись рения:

,
из
них 5%, т.е. 
кг
(0,003 кг рения), останется в огарке; 50 + 40 = 90% осаждается и улавливается в
электрофильтрах и скруббере, т.е. это 
кг
(0,054 кг рения); остальное, т.е. 
кг Re2O7
(0,06 - 0,003 - 0,054 = 0,003 кг рения), теряется со сбросными газами.
Горение фотореагентов по реакции (2.8):
Количество углекислого газа, выделяющегося по реакциям (2.12), (2.15) и
(2.16), составляет 0,513 кг (из рационального состава концентрата).
В нем кислорода:
Общее количество побочных продуктов обжига из 100 кг концентрата
представлено в таблице 2.2.
Таблица 2.2
Общее количество продуктов обжига из 100 кг концентрата
|
№
|
Компоненты
|
Масса, кг
|
В том числе, кг
|
|
|
|
Mo
|
SSO4
|
Кислород
|
|
1
|
CaMoO4
|
 ,2320,111
0,074
|
|
|
|
|
2
|
CuMoO4
|
0,228
|
0,098
|
|
0,065
|
|
3
|
FeMoO4
|
0,464
|
0,206
|
|
0,138
|
|
4
|
CaSO4
|
1,430
|
|
0,337
|
0,672
|
|
5
|
CuSO4
|
0,489
|
|
0,098
|
0,196
|
|
6
|
FeSO4
|
0,408
|
|
0,086
|
0,172
|
|
7
|
CuO
|
0,488
|
|
|
0,098
|
|
8
|
Fe2O3
|
1,759
|
|
|
0,529
|
|
9
|
As2O5
|
0,077
|
|
|
0,027
|
|
10
|
SiO2
|
3,2
|
|
|
1,704
|
|
11
|
SnO2
|
0,038
|
|
|
0,008
|
|
12
|
CaWO4
|
0,470
|
|
|
0,104
|
|
13
|
Ca3(PO4)2
|
0,100
|
|
|
0,041
|
|
14
|
Прочие
|
0,324
|
|
|
-
|
|
Итого:
|
9,707
|
0,415
|
0,521
|
3,828
|
Расчет выхода твердых продуктов обжига из 100 кг концентрата для разных
степеней окисления
Выход твердого продукта обжига со степенью окисления, соответствующей
огарку, т.е. 98 %
В 100 кг концентрата находится 52,8 кг молибдена. В продукте обжига будет
Мо в виде Мо03:
Масса триоксида молибдена:
Суммарная масса твердого продукта обжига, соответствующего по степени
окисления огарку:
m = m(Мо03)
+ m (MoS2) + m(ост.) = 
+ 
+ 9,707=
88,489 кг,
(Re2O7
будет учтен позже),
m(ост.) - масса
побочных продуктов обжига.
Выход твердого продукта обжига со степенью окисления, соответствующей
циклонной пыли, т.е. 90 %:
Суммарная масса твердого продукта обжига, соответствующего по степени
окисления циклонной пыли:
m = 
+ 
+ 9,707=
89,093 кг
Выход твердого продукта обжига со степенью окисления, соответствующей
пыли электрофильтров и скруббера, т.е. 99 %
Суммарная масса твердого продукта обжига, соответствующего по степени
окисления пыли электрофильтров и скруббера:
m = 
+ 
+ 9,707 =
88,395 кг
(Re2O7
будет учтен позже).
Расчет одновременного выхода твердых продуктов обжига из 100 кг
концентрата
х - доля концентрата, из которой формируется огарок, доли ед.;
у - доля концентрата, из которой формируется циклонная пыль, доли ед.;
z -
доля концентрата, из которой формируется пыль электрофильтров и скруббера, доли
ед.
Составим балансовые уравнения:
где 0,0044 - масса перрената кальция:
Из (2.19): y = 1,48824823z.
Из (2.18): x = 4,0941766z - 0,00004972.
Подставив эти выражения x и y через z в (2.17), получим уравнение относительно z, решением которого является:
z =
0,1519273.
Тогда: y = 0,2261055 и x = 0,6219675.
Масса огарка:
Масса циклонной пыли:
Масса пыли и шламов электрофильтров и скруббера:

,
в
том числе будет уловлено пыли в сухом электрофильтре с учетом конденсации Re2O7:
где
0,052
0,50 -
масса Re2O7;
будет
уловлено в скруббере:
будет
уловлено в мокром электрофильтре:

;
потери
с газами (пыль и Re2O7):
где
0,0039 - несконденсировавшийся Re2O7 (потери).
При
принятой точности расчета потери пыли с газами обращаются в нуль.
Массы
побочных продуктов обжига:
§ в огарке 
§ в циклонной пыли 
§ в пыли электрофильтров и скруббера
Расчет выхода продуктов обжига в установившемся режиме с оборотом
циклонной пыли
Обжиг циклонной пыли (без учета бентонита)
Побочные
продукты обжига распределяются между твердыми продуктами обжига циклонной пыли
в том же соотношении, как при обжиге концентрата, а сумма масс побочных
продуктов обжига циклонной пыли (в огарке, циклонной пыли и пыли
электрофильтров и скруббера) равна массе их в обжигаемой циклонной пыли, т.е. 
кг.
Массы
побочных продуктов обжига в твердых продуктах обжига 20,144 кг циклонной пыли:
§ в огарке 
§ в циклонной пыли 
§ в пыли электрофильтров и скруббера
Массы твердых продуктов обжига 20,144 кг циклонной пыли:
§ огарок
§ циклонная пыль
§ пыль электрофильтров и скруббера
Итого
масса твердых продуктов обжига 20,144 кг циклонной пыли
,
Или
выход в %: 20,037/20,144
100 =
99,469 %.
Выход
циклонной пыли при обжиге циклонной пыли, доли ед.:
,552/20,144
= 0,2259730.
Предел,
к которому стремится масса оборотной пыли в установившемся режиме обжига (без
учета бентонита):

Продукты
обжига бентонита
В
100 кг бентонита, согласно исходным данным, содержится, кг:
SiO2 46,000
СаО
0,500
А12О3
37,500
MgO
0,300
H2O 15,500
Проч. 0,200
Итого 100,000 кг
В том числе содержится кислорода, кг
О(SiO2)
= 
О(СаO) = 
;
О(А12O3)= 
О(МgO) =

О(H2O) = 
Всего кислорода 56,175 кг.
В процессе обжига из состава бентонита претерпевает изменения только СаО,
который, переходит на 10 % в СаМоО4 (причем МоО3 берется из свободного в
соответствующем твердом продукте обжига):
СаО(СаМоO4) =

Мо(СаМоO4) =


О(СаМоO4) =

СаМоО4
= 
МоO3(СаМоO4) =

О(МоО3)
= 0,128 - 0,085 = 0,043 кг.
Предварительно
условно будем считать, что в составе побочных продуктов обжига бентонита 10 %
СаО находится в свободном состоянии, а потом в каждом твердом продукте обжига
учтем, сколько МоО3 перейдет из свободного состояния в СаМоО4.
Масса
кислорода в 10 % СаО:
,143
0,10 =
0,014 кг.
СаО
бентонита при обжиге переходит на 90 % в СaSO4 (SO3 -
из газовой фазы): СаО(CaSO4) = 0,50 - 0,050 = 0,450 кг;
CaSO4= (136,14/56,08)x0,450 = 1,092 кг;(CaSO4
) = (4x16/56,08)x0,450 = 0,514 кг;4(CaSO4)
= (32,06/56,08)x0,450 = 0,257 кг.
Масса
побочных продуктов обжига 100 кг бентонита, кг (без учета MоO3 в
составе СаМоO4):
СаO(СаМоO4) +
СaSO4 + SiO2 + Al2O3 +MgO + Прочие = 0,05 + 1,092 +
46,0 + 37,5 + 0,3 + 0,2 = 85,142 кг
Масса
кислорода в побочных продуктах обжига 100 кг бентонита, кг (без учета-кислорода
M0O3 в составе СаМоО4):
O(СаО
в СаМоO4) + О(CaSO4) + O(SiO2) +O(Al2O3) + O(MgO) =
= 0,014 + 0,514 + 24,497 + 17,654 + 0,119 = 42,798 кг.
С учетом перераспределения МoО3 между твердым продуктом обжига концентрата и побочными продуктами
обжига бентонита массы побочных продуктов обжига бентонита и кислорода в них
соответственно составляют на 100 кг бентонита:
,142 + 0,128 = 85,270 кг,
О = 42,798 + 0,043 = 42,841 кт,
где 0,128 - масса МoО3,
переходящего в СаМoO4 побочных
продуктов обжига 100 кг бентонита;
,043 - масса кислорода в Мо03, переходящем в СаМо04 побочных продуктов
обжига 100 кг бентонита.
Выход побочных продуктов обжига бентонита от массы бентонита (без учета МоО3
в составе СаМо04), доли ед.:
85,142/100 = 0,85142.
Определим
массы побочных продуктов обжига бентонита в твердых продуктах обжига, учитывая,
что выход побочных продуктов обжига бентонита 0,85142 (без учета Мо03),
содержание бентонита в гранулах 5,5 %, концентрата и оборотной пыли в гранулах
100-5,5-14=80,5 %, а побочные продукты, обжига бентонита в установившемся
режиме распределяются между огарком и пылью электрофильтров и скруббера (т.к.
состав и масса циклонной пыли при этом постоянны); побочные продукты обжига
бентонита распределяются между твердыми продуктами обжига концентрата
пропорционально массам побочных продуктов обжига в них (т.е. в огарке,
циклонной пыли и пыли электрофильтров и скруббера соответственно 
; 2,195 и

кг).
Обозначим
через "X" массу побочных продуктов обжига бентонита в циклонной пыли
в установившемся режиме.
Тогда
масса циклонной пыли 
+ X, кг;
масса побочных продуктов обжига в циклонной пыли 2,195, кг; масса бентонита в
гранулах:
Суммарная
масса побочных продуктов обжига в огарке и пыли электрофильтров и скруббера
(без учета бентонита):

+ 
= 7,512
кг.
Тогда
масса побочных продуктов, обжига бентонита в циклонной пыли в установившемся
режиме определится из соотношения:
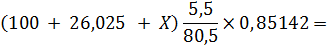
2.3.4.3. Грануляция шихты
Дозировка бентонита на грануляцию:
Масса побочных продуктов обжига бентонита
,759*0,85142 = 7,458 кг,
из них переходит:
· в огарок
· в пыль электрофильтров и скруббера:
Дозировка воды на грануляцию:

г
Материальный
баланс грануляции концентрата и оборотной пыли представлен в таблице 2.3.
Таблица
2.3
Материальный
баланс грануляции концентрата и оборотной пыли
|
№ пп
|
П о с т у п а е т
|
Масса, кг
|
№ пп
|
В ы х о д и т
|
Масса, кг
|
|
1 2 3 4
|
Концентрат Оборотная
циклонная пыль Бентонит Вода
|
100 28,204 8,759 22,296
|
1
|
Гранулированная шихта
|
159,259
|
|
И т о г о
|
159,259
|
|
И т о г о
|
159,259
|
Примечание. Масса оборотной пыли слагается из массы ее, определенной без
учета бентонита, и массы побочных продуктов обжига бентонита в ней.
Массы
побочных продуктов обжига 
кг
циклонной пыли (без продуктов обжига бентонита)
Побочные
продукты обжига 
кг
циклонной пыли распределяются между твердыми продуктами обжига следующим
образом:
· в огарок
(26,025

1,365)/20,144
= 1,764 кг;
· в циклонную пыль
(26,025

0, 496)/
20,144 = 0,641 кг;
· в пыли электрофильтров и скруббера
(26,025

0,334)/
20,144 =0,432 кг,
где
1,365; 0, 496 и 0,334- массы побочных продуктов обжига 20,144 кг циклонной
пыли, переходящие соответственно в огарок, циклонную пыль, пыля электрофильтров
и скруббера (из п.2.3.4.1).
2.3.4.5. Массы и состав твердых продуктов обжига в установившемся режиме
(с учетом бентонита)
· масса огарка


в том числе:

С
этим количествам СаО связано МоО3 (из свободного):
в
нем 
Тогда
масса свободного МоO3 в огарке составит:
Масса
же твердых продуктов обжига бентонита:
· масса циклонной пыли
в том числе:
С этим количеством СаО связано MoO3 (из свободного):
в
нем 
Тогда
масса свободного Мо03 в циклонной пыли составит:
Масса
же твердых продуктов обжига бентонита в циклонной пыли:
· масса пыли электрофильтров и скруббера;


в том числе:

С
этим количеством СаО связано MoO3 (из свободного):

(СаМо
)
в
нем 
Тогда
масса свободного Мо03 в пыли электрофильтров и скруббера составит:
Масса
же твердых продуктов обжига бентонита в циклонной пыли:
Состав побочных продуктов обжига в установившемся режиме
Состав побочных продуктов обжига гранулированной шихты в каждом из
твердых продуктов обжига определяется по их массе (m(ост)) пропорционально данным табл. 2.2, а состав побочных
продуктов обжига бентонита в каждом из твердых продуктов обжига (m(ост.бент.)) и содержание каждого
компонента - по данным п.2.3.4.3.
В побочных продуктах обжига содержатся (с учетом МоО3 в продуктах обжига
бентонита):
· в огарке:
· в циклонной пыли:
· в пыли электрофильтров и скруббера:
Определение расхода дутья
Масса серы в твердых продуктах обжига:
· в огарке
· в циклонной пыли
· в пыли электрофильтров и скруббера
Суммарная масса серы в продуктах обжига:
Масса серы в шихте обжига:
Sш = Sконц. + Sц.п. = 37,391 + 1,251 = 38,642 кг.
Масса кислорода в твердых продуктах обжига:
· в огарке
Оог. = (61,802 - 41,193) + (0,0039 - 0,003) + 6,092 = 20,609 +
+ 0,0009 + 6,092 = 26,7019 кг,
· в циклонной пыли
Оц.п. = (20,459 - 13,665) + 2,215 = 6,794 +2,215= 9,009 кг,
· в пыли электрофильтров и скруббера
Оп.э.ф. = (15,250 - 10,165) + (0,0702 - 0,054) + 1,489 = 5,085+ 0,016 +
+ 1,489 = 6,590 кг.
Масса кислорода в гранулированной шихте:


Масса выгоревшей серы:
При этом в SO2 перешло 80 % и
в SO3 - 20 % этой серы:
Масса связанного кислорода в продуктах обжига:

Масса кислорода воздуха:
- при стехиометрическом расходе дутья
- при практическом расходе дутья (коэффициент избытка дутья при обжиге
гранулированной шихты определяется в отдельном расчете; в дачном случае он
равен α
= ):
Масса азота в дутье:
Суммарная масса дутьевого воздуха:

.
Масса свободного кислорода в отходящих газах:
Таблица 2.4
Материальный баланс обжига гранулированной шихты (на 100 кг концентрата)
|
№
|
Поступает
|
Всего, кг
|
В том числе
|
№
|
Выходит
|
Всего
|
В том числе
|
|
|
|
Мо
|
Re
|
|
|
кг
|
%
|
Мо
|
Re
|
О
|
S
|
|
1
|
Гранул. шихта
|
159,259
|
67,194
|
0,04
|
1
|
Огарок,
|
77,1229
|
100,00
|
41,408
|
0,002
|
26,7019
|
1,265
|
|
2
|
Воздух,
|
744,339
|
|
|
|
в том числе:
|
|
|
|
|
|
|
|
|
в том числе
|
|
|
|
|
МоО3
|
60,125
|
77,959
|
40,081
|
|
20,044
|
|
|
|
О2
|
171,198
|
|
|
|
МоS2
|
1,500
|
1,944
|
0,987
|
|
|
0,513
|
|
|
N2
|
573,141
|
|
|
|
Ca(ReO4)2
|
0,0039
|
0,005
|
|
0,003
|
0,0009
|
|
|
|
|
|
|
|
"остальные"
|
15,494
|
20,107
|
0,340
|
|
6,092
|
0,437
|
|
|
|
|
|
|
2
|
Пыль циклонная,
|
28,204
|
100,00
|
15,427
|
|
9,009
|
1,251
|
|
|
|
|
|
|
|
в том числе:
|
|
|
|
|
|
|
|
|
|
|
|
|
|
МоО3
|
20,459
|
72,539
|
13,665
|
|
6,794
|
|
|
|
|
|
|
|
|
МоS2
|
2,727
|
9,668
|
1,635
|
|
|
1,092
|
|
|
|
|
|
|
|
"остальные"
|
5,018
|
19,916
|
0,127
|
|
2,215
|
0,159
|
|
|
|
|
|
|
3
|
Пыль и шламы эл. фильтров и
скрубб.,
|
18,867
|
100,00
|
10,359
|
0,054
|
6,590
|
0,180
|
|
|
|
|
|
|
|
в том числе:
|
|
|
|
|
|
|
|
|
|
|
|
|
|
МоО3
|
15,252
|
80,839
|
10,166
|
|
5,086
|
|
|
|
|
|
|
|
|
МоS2
|
0,183
|
0,969
|
0,110
|
|
|
0,073
|
|
|
|
|
|
|
|
Re2O7
|
0,070
|
0,371
|
|
0,054
|
0,016
|
|
|
|
|
|
|
|
|
"остальные"
|
3,362
|
20,071
|
0,083
|
|
1,489
|
0,107
|
|
|
|
|
|
|
4
|
Газы,
|
325,952
|
100,00
|
|
0,003
|
63,8576
|
36,173
|
|
|
|
|
|
|
|
в том числе:
|
|
|
|
|
|
|
|
|
|
|
|
|
|
SO2
|
57,822
|
17,473
|
|
|
28,884
|
28,938
|
|
|
|
|
|
|
|
SO3
|
18,067
|
5,459
|
|
|
10,832
|
7,235
|
|
|
|
|
|
|
|
H2O
|
25,655
|
7,775
|
|
|
23,393
|
|
|
|
|
|
|
|
|
CO2
|
1,286
|
0,567
|
|
|
1,344
|
|
|
|
|
|
|
|
|
N2
|
573,141
|
68,724
|
|
|
|
|
|
|
|
|
|
|
|
O2
|
171,198
|
0,000
|
|
|
68,120
|
|
|
|
|
|
|
|
|
Re2O7(потери)
|
0,0039
|
0,001
|
|
0,003
|
0,0009
|
|
|
|
Итого
|
450,372
|
67,194
|
0,04
|
|
Итого
|
450,372
|
|
67,194
|
0,059
|
106,3635
|
38,642
|
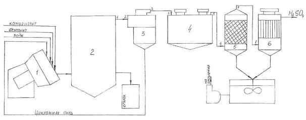
3. ВЫБОР И
РАСЧЕТ ОСНОВНОГО ОБОРУДОВАНИЯ.
.1 Выбор и расчет основного оборудования
Тепловой баланс печи кипящего слоя для обжига молибденитового
концентрата.
Тепло химических реакций


Qp = 1104,743 
+
2,75О2 = 0,5Fe2O3 + 2SО2

Qp = 827,48 
+
2,5О2 = FeO + 2SО2

=
681,25 
+
1,5О2 = CuO + SО2

=
405,76 
S3
+ 5,5О2 = As2O5 + 3SО2

=
- ∆Hp = 1653,028 
+
3,75О2 = 0,5Re2O7 + 2SО2

=
- ∆Hp = 1046,718 
H22
+ I5,5О2 = 10CO2 + 11H2O
Данные
о ∆HCI0H22 отсутствуют.
SO2 +
0,5O2 = SO3

=
- ∆Hp = 98.95 
FeO + SО3 = FeSO4
Qp = - ∆Hp = 266,89 
CuO + SO3 = CuS04
Qp = - ∆Hp = 213,05 
CaCO3 + SО3 =
CaSO4 + CО2
Qp = - ∆Hp = 227,11 
FeO + MoO3 = FeMoO4
Qp = - ∆Hp = 57,739 
CuO + MoO3 = CuMoO4
Qp = - ∆Hp = 12,054 
CaCО3 + MoO3 = CaMoO4 + CО2
Qp = - ∆Hp = -12,921 
О7 + CaCO3 = Ca(ReO4)2 + CO2
Данные
о 
отсутствуют.
Суммарный
тепловой эффект химических реакций приводится в таблице 3.1.
Таблица
3.1
Суммарный
тепловой эффект химических реакций
|
№
|
Реагирует или образуется
|
Тепловой эффект, кДж/моль
|
Всего, кДж
|
|
Вещество
|
кг
|
г-моль
|
|
|
|
1
|
MoO3
|
75,377
|
523,670
|
1104,743
|
578520,767
|
|
2
|
FeS2 (82%)
|
2,642
|
22,020
|
18221,11
|
|
3
|
FeS2 (18%)
|
0,580
|
4,834
|
681,25
|
3293,1625
|
|
4
|
CuS
|
0,978
|
10,229
|
405,76
|
4150,519
|
|
5
|
As2S3
|
0,082
|
0,333
|
1653,028
|
550,458
|
|
6
|
ReS2
|
0,081
|
0,324
|
1046,718
|
339,1366
|
|
7
|
SO3 (табл. 2.4)
|
18,067
|
225,660
|
98,95
|
22329,057
|
|
|
SSO4 (табл. 2.2)
|
0,521
|
16,248
|
98,95
|
1607,740
|
|
8
|
Флотореагенты
|
0,25
|
|
41860 кДж/кг
|
10465
|
|
9
|
FeSO4
|
0,408
|
2,686
|
266,89
|
716,8665
|
|
10
|
CuSО4
|
0,489
|
3,064
|
213,05
|
652,785
|
|
11
|
CaSO4
|
1,430
|
10,427
|
227,11
|
2368,076
|
|
12
|
FeMoO4
|
0,464
|
2,150
|
57,739
|
124,139
|
|
13
|
CuMoO4
|
0,228
|
1,020
|
12,054
|
12,295
|
|
14
|
CaMoO4
|
0,232
|
1,160
|
-12,921
|
- 14,258
|
|
15
|
Ca(ReO4)2
|
0,0044
|
0,008
|
|
|
|
|
Итого
|
101,8334
|
823,833
|
780,9069
|
643336,854
|
Приход тепла за 1 час составит:

Таблица
3.2
Физическое
тепло концентрата при 25 0С
|
№
|
Компоненты
|
Количество
|
Теплоемкость С0р,
Дж/(моль*град)
|
Приход тепла, кДж
|
|
|
кг
|
моль
|
|
|
|
1
|
MoS2
|
88,088
|
550,302
|
63,55
|
874,292
|
|
2
|
FeS2
|
3,222
|
20,128
|
62,17
|
31,285
|
|
3
|
CuS
|
0,978
|
10,194
|
47,82
|
12,187
|
|
4
|
As2S3
|
0,082
|
0,333
|
120,49
|
1,003
|
|
5
|
ReS2
|
0,081
|
0,324
|
71,54
|
0,579
|
|
6
|
CaWO4
|
0,470
|
1,632
|
124,45
|
5,079
|
|
7
|
Ca3(PO4)2
|
0,100
|
0,322
|
227,75
|
1,836
|
|
8
|
CaCO3
|
1,167
|
11,660
|
83,47
|
24,331
|
|
9
|
SnO2
|
0,038
|
0,252
|
52,59
|
0,332
|
|
10
|
SiO2
|
3,200
|
53,259
|
44,60
|
59,384
|
|
11
|
H2O и флотореагенты
|
2,250
|
68,169
|
75,30
|
128,329
|
|
12
|
Прочие
|
0,324
|
5,392
|
44,60
|
6,013
|
|
|
Итого
|
100
|
775,576
|
1018,33
|
1144,65
|
Таблица 3.3
Физическое тепло бентонита при 25 0С
|
№
|
Компоненты
|
Количество
|
Теплоемкость С0р,
Дж/(моль*град)
|
Приход тепла, кДж
|
|
|
кг
|
моль
|
|
|
|
1
|
SiO2
|
4,029
|
67,056
|
44,60
|
74,768
|
|
2
|
CaO
|
0,044
|
0,784
|
42,05
|
0,825
|
|
3
|
Al2O3
|
3,285
|
32,791
|
79,04
|
64,794
|
|
4
|
MgO
|
0,026
|
0,645
|
37,20
|
0,599
|
|
5
|
H2O
|
1,358
|
41,144
|
75,30
|
77,454
|
|
6
|
Прочие
|
0,017
|
0,292
|
44,60
|
0,325
|
|
|
Итого
|
8,759
|
177,010
|
322,602
|
218,765
|
Таблица 3.4
Физическое тепло циклонной пыли при 25 0С
|
№
|
Компоненты
|
Количество
|
Теплоемкость С0р,
Дж/(моль*град)
|
Приход тепла, кДж
|
|
|
кг
|
моль
|
|
|
|
1
|
МоО3
|
20,462
|
142,159
|
73,99
|
262,959
|
|
2
|
MoS2
|
2,727
|
17,036
|
63,55
|
27,066
|
|
3
|
CаMoO4
|
0,071
|
0,355
|
93,32
|
0,828
|
|
4
|
CuMoO4
|
0,067
|
0,300
|
93,32
|
0,699
|
|
5
|
FeMoO4
|
0,136
|
0,630
|
93,32
|
1,470
|
|
6
|
CaSO4
|
0,466
|
3,398
|
99,66
|
8,466
|
|
7
|
CuSO4
|
0,143
|
0,896
|
98,87
|
2,215
|
|
8
|
FeSO4
|
0,119
|
0,783
|
100,58
|
1,970
|
|
9
|
CuO
|
0,143
|
1,798
|
42,30
|
1,901
|
|
10
|
Fe2O3
|
0,514
|
4,950
|
103,76
|
12,839
|
|
11
|
As2O5
|
0,022
|
0,096
|
110,52
|
0,264
|
|
12
|
SiO2
|
2,112
|
35,151
|
44,60
|
39,193
|
|
13
|
SnO2
|
0,011
|
0,073
|
52,59
|
0,096
|
|
14
|
CaWO4
|
0,137
|
0,476
|
124,45
|
1,480
|
|
15
|
Ca3(PO4)2
|
0,029
|
0,093
|
227,75
|
0,532
|
|
16
|
Прочие
|
0,100
|
1,664
|
44,60
|
1,856
|
|
17
|
Al2O3
|
0,960
|
9,583
|
79,04
|
18,953
|
|
18
|
MgO
|
0,008
|
0,198
|
37,20
|
0,185
|
|
|
Итого
|
219,209
|
1605,117
|
381,002
|
Физическое тепло воды:
Расчет средней теплоемкости гранулированной шихты

3.2 Расчет на
ЭВМ
Исходные данные
1. Масса гранулированной шихты, кг 159,259
2. Масса молибденита в 100 кг концентрата, кг 88,088
. Масса влаги концентрата, влаги бентонита, добавляемой воды, и
влаги от горения флотореагентов, кг 25,655
4. Масса огарка, кг 77,1229
. Суммарная масса пыли, кг 47,071
6. Содержание сульфидной серы в огарке ,% 0,665
. Часть концентрата из которой формируется огарок, доли ед. 0,6220
. Часть концентрата из которой формируется пыль электрофильтров и
скруббера, доли ед. 0,1519
. Степень окисления пыли электрофильтров и скруббера, % 99
. Стехиометрически необходимое количество кислорода, кг 68,120
. Масса сернистого ангидрида в отходящих газах, кг 57,822
. Масса серного ангидрида в отходящих газах, кг 18,067
. Масса углекислого газа в отходящих газах, кг 1,286
14. Средняя
теплоемкость гранулированной шихты, 
1,02389
. Суммарный
тепловой эффект химических реакций, кДж 643336,854
. Средняя
температура в слое, град 575
17. Температура гранул, град 20
. Температура дутьевого воздуха, град 20
19. Влагосодержание
дутья, г/кг сухого 5,31
20. Коэффициент использования рабочего времени 0,93
. Температура отходящих газов, град 500
. Температура впрыскиваемой воды, град 20
Результаты расчета
1. Коэффициент избытка дутья 2,5586
2. Масса компонентов дутья:
· кислорода 173,079
· азота 579,439
· влаги 3,996
3. Удельный объем дутья, нм3 /100 кг концентрата в составе гранул
586,964
4. Масса отходящих газов, (на 100 кг концентрата), кг 791,222
. Объем отходящих газов (на 100 кг концентрата)::
· при н.у., нм3 599,489
· при температуре выхода из печи, м3 1866,104
6. Плотность отходящих газов:
· при н.у., кг/нм3 1,3198
· при температуре выхода из печи, кг/м3 0,4661
. Рабочая скорость газового потока, м/с 0,9538
8. Производительность печи по концентрату, кг/ч 834,6835
9. Площадь пода печи, м2 4,5364
. Диаметр печи, м 2,403
. Высота кипящего слоя, м 2,3
. Высота надслоевой зоны, м 6,9
Таблица 3.5
Тепловой баланс КС
|
№
|
Приход
|
кДж/ч
|
№
|
Расход
|
кДж/ч
|
|
Зона кипящего слоя
|
|
1.
|
Тепло химических реакций
|
5043670,5
|
1.
|
Тепло уносимое огарком
|
294669,5
|
|
2.
|
Физическое тепло гранул
|
27221,3
|
2.
|
Тепло уносимое пылью
|
181492,5
|
|
3.
|
Физическое тепло дутья:
|
131109,5
|
3.
|
Тепло уносимое газами
|
4126479,5
|
|
|
сухого
|
129896,4
|
4.
|
Тепло теряемое через стены
|
44396,8
|
|
|
влаги
|
1213,1
|
5.
|
Тепло на нагрев и испарение
воды
|
554966,4
|
|
|
|
|
6.
|
Невязка баланса
|
-3,0
|
|
|
Итого
|
5202001,5
|
|
Итого
|
5202001,5
|
|
Надслоевая зона
|
|
1.
|
Тепло экзотермических
реакций
|
326156,1
|
1.
|
Тепло уносимое отходящими
газами
|
3543332,8
|
|
2.
|
Тепло вносимое газами из
зоны КС
|
4126479,5
|
2.
|
Тепло уносимое пылью
|
155182,3
|
|
3.
|
Тепло вносимое пылью из
зоны КС
|
181492,5
|
3.
|
Потери тепла через стенки
|
161397,2
|
|
|
|
|
4.
|
Потери тепла через свод
|
1441,9
|
|
|
|
|
5.
|
Избыток тепла в зоне
|
772773,8
|
|
|
Итого
|
4634128,0
|
|
Итого
|
4634128,0
|
Количество воды, впрыскиваемой в надслоевую зону для отвода избытка
тепла, кг/ч: 227,461
4 Расчет или
подбор (по каталогам) вспомогательного оборудования.
.1 Расчет
бункеров
В цехе необходимы бункеры для концентрата, бентонита, оборотной циклонной
пыли, негранулированной и гранулированной шихты. Бункеры рассчитываются из
расчета на суточную производительность печи.
Вода подается сразу на грануляцию.
Бункер для концентрата
Насыпная масса концентрата
Часовая производительность по концентрату 834,6835 кг/ч.
Объем бункера составит (с суточным запасом):
Бункер для бентонита
Принимаем плотность бентонита 2500 кг/м3.
Насыпная масса бентонита:
Часовая производительность печи по бентониту:
Объем бункера составит (с суточным запасом):
Бункер для оборотной циклонной пыли
Плотность пыли при плотностях MoO3= 4600 кг/м3, MoS2 =
4800 кг/м3, прочих = 3000 кг/м3 составит:
Насыпная масса оборотной циклонной пыли:
Часовая производительность по оборотной циклонной пыли:

/ч
Объем
бункера оборотной циклонной пыли составит (с суточным запасом):
Бункер
для негранулированной шихты
На
шихтовку поступают концентрат, бентонит, оборотная циклонная пыль.
Насыпная
масса смеси:
Объем
бункера негранулированной шихты составит (с суточным запасом):
Бункер
для гранулированной шихты
Количество
подаваемой на грануляцию воды 227,461 кг/ч (из компьютерного расчета теплового
баланса печи КС).
Плотность
гранулированной шихты:
Пористость
гранул составляет 60%, тогда плотность гранул будет равна:
Насыпная
масса гранул:
Объем
бункера составит (на 2 часа работы):
Принимаем,
что диаметр бункера равен высоте, тогда 
;
С учетом того, что при перемешивании образуется воронка, возьмем высоту
1,694+1=2,694 м.
.2 Расчет
дробилки для размола некондиционных гранул (+2 мм)
Выход фракции гранул крупностью +2 мм равен 10%. Ее возвращают на
валковую дробилку для размола. Часовая производительность по годным гранулам:


Выбираем
дробилку:
Двухвалковая
дробилка ДГ41×25
Диаметр
валка, мм 400
Длина
валка, мм 250
Наибольший
размер загружаемых кусков, мм 20
Пределы
регулирования щели между валками, мм 2-12
Производительность
дробилки, м3/ч при:
наименьшей
щели 2,7
наибольшей
щели 16,2
Частота
вращения валков, об./мин. 200
Давление
на 1 см длины валка, тс 0,6-1,2
Электродвигатель:
мощность,
кВт 2×4,5
частота
вращения, об./мин. 730
Масса
дробилки без электродвигателей, т 2,02
Габаритные
размеры, мм:
длина
2386
ширина
1430
высота
865
.3 Гранулятор
чашевый
Принимаем гранулятор с диаметром чаши 1000 мм и высотой борта 100 мм.
Производительность 300 кг/ч. Необходимое число грануляторов:
Принимаем количество грануляторов n=4 штуки.
.4
Воздуходувка
Плотность огарка гранул при пористости гранул 60% составит:
Гидравлическое сопротивление кипящего слоя:
Давление воздуха на воздуходувке:
Принимаем
сопротивление подины 
Объем
нагнетаемого воздуха:
где 586,964 - удельный объем дутья, нм3 /100 кг концентрата в составе
гранул; 834,6835 - производительность печи по концентрату, кг/ч.
Принимаем воздуходувку с запасом 100%. Расход воздуха, вдуваемого в печь
с запасом:
Принимаем вентилятор ВД-12:
Производительность 25000 м3/ч
Полное давление 2180 мм рт.ст.
Скорость вращения 730 об./мин.
Мощность электродвигателя 17,5 кВт.
4.5 Расчет
воздухораспределительной решетки
Живое сечение воздухораспределительной решетки f = 3% при площади пода 3,8689 м2:
4,5364×0,03=0,136 м2
При диаметре отверстий в колпачке 8 мм потребуется отверстий:

.
Принимаем

.
При
6 отверстиях в колпачке потребуется колпачков:
.6 Расчет загрузочной
трубы
Минимальный диаметр трубы определяется по объему загружаемых гранул и
пропускной способности трубы, которая для сыпучих тел составляет 15÷20
кг/(см2∙ч) (примем
15 кг/(см2∙ч)):
Принимаем трубу диаметром 1100 мм.
.7 Грохот
Производительность грохота не менее 1329,309 + 127,130 = 1456,439 кг/ч =
1,456 т/ч.
Принимаем ГСМ-31(186-Гр)
Просеивающая способность:
ширина, мм 1250
длина, мм 4000
Площадь сита, м3 5
Число сит 1
Отверстия сит, мм
верхнего до 2
нижнего -
Наибольший размер кусков, мм 50
Угол наклона короба, град 0-5
Амплитуда колебаний, мм 4
Частота вращения вибратора , об.мин. 960
Масса (без двигателя), т 2,4
Производительность, т/ч 16
Габаритные размеры:
длина 4200
ширина 2000
высота 1250
.8 Питатель
(дисковый)
Объем поступающей в печь КС шихты с насыпной массой гранул 718,247 кг/м3:
Принимаем дисковый тарельчатый питатель ДЛ-10:
Диаметр диска, мм 1000
Частота вращения диска, об./мин 7-11
Наибольший размер кусков транспортируемого материала, мм 50
Производительность, м3/час, не менее 18
Мощность двигателя, кВт 2,2
Масса питателя без электрооборудования, т 1,12
.9 Ленточный
транспортер
Ширина ленты рассчитывается по формуле:
где Q - производительность конвейера,
f -
коэффициент угла относа материала,
v-
скорость движения ленты.
Ширина ленты равна:
Диаметр барабана при ширине 0,3 м составит 50 мм, длина барабана составит
0,5 м. Обозначения ленты с двусторонней резиновой обкладкой и резиновым бортом
2Т, класс прочности резины обкладок Б. Температура транспортируемого материала
45 - 600С. Ширина секции рам конвейера 760 мм, длина конвейера 6000 мм, высота
конвейера 750 мм, мощность электродвигателя 2,8 кВт.
.10 Смеситель
Примем лопастной (шнековый) смеситель.
Производительность 50-60
Размеры шнеков, мм:
диаметр 800
длина 5000
Частота вращения шнека, об.мин 36
Мощность электродвигателя, кВт 55
Масса смесителя, т -
.11 Ленточные
питатели
Ленточные питатели применяются для подачи в смеситель из бункеров
концентрата, бентонита, оборотной циклонной пыли. Также ленточные питатели
применяются для подачи шихты из бункера в грануляторы.
Принимаем ленточные питатели марки ПЛ-1. Необходимо 3 питателя для
концентрата, бентонита и цинковой пыли и 4 питателя для подачи шихты на
грануляторы.
Питатель ПЛ-1:
Ширина ленты, 400
Расстояние между барабанами, мм 865
Диаметр барабана, мм 30
Скорость ленты, м/с 0,05-0,043
Производительность, м3/ч 5,4-46,5
Мощность, кВт 1,8
Масса, кг 327
.12 Винтовой
конвейер (шнек)
Винтовой конвейер используется для подачи шихты из смесителя в бункер
негранулированной шихты. Примем винтовой конвейер с диаметром шнека равным 300
мм.
Шаг винта, мм 204
Частота вращения винта, об./мин 80
Производительность, т/ч 30
Коэффициент заполнения желоба 0,3
Длинна секции желоба, мм 2000-4000
винта, мм 2000-2500
Длина шнека, мм до 24-32
Масса ум длины шнека, кг 125
.13 Расчет
насосов для орошения скруббера
Требуемая производительность для орошения скруббера:

л/с
Принимаем
для орошения скруббера центробежные насосы типа ПБ с подачей 6,95 л/с.
Напор,
м 20
К.п.д.,
%, не менее 45
Допускаемый
кавитационный запас, м, не более 2,5
Мощность
насоса, кВт, не более 3
Проходное
сечение проточного тракта, мм, не менее 12
Масса
насоса, кг, не более -
Приходное
сечение проточного тракта, мм, не менее 12
5
Мероприятие по охране окружающей среды.
.1
Описание системы пылеулавливания
Расчет
системы очистки газов производится по участкам, начиная от источника газов.
Участками являются отрезки газоходного тракта и аппараты пылеулавливания.
Система
пылеулавливания состоит из: циклона (3); сухого электрофильтра (4); скруббера
(5); мокрого электрофильтра (6); для очистки газов от SО2 используют
скруббер, орошаемый основным сульфатом алюминия. Для создания разряжения под
сводом печи и отсоса газов используют вентилятор (8),а для выброса в атмосферу
трубу (9).
Циклонная
пыль направляется на грануляцию в гранулятор (1),туда так же подаются
концентрат, вода, бентонит. Пыль электрофильтров и скруббера направляется на
выщелачивание вместе с огарком.
После
грануляции шихта поступает в печь КС (2). Огарок, выходящий из печи, идет на
выщелачивание, а газы на очистку.
Принимаем
подсос воздуха 5 % на каждом участке газоходного тракта. В аппаратах
пылеулавливания подсос отсутствует.
Аппаратурно
- технологическая схема газоходной системы и аппаратов пылеулавливания и обжига
гранулированной шихты представлена на рис. 5.1.
Таблица
5.1
Состав
отходящих газов из печи КС
|
Компоненты
|
Масса, кг
|
Плотность, кг/нм3
|
Объем, НМГ
|
% (об)
|
|
1
|
SO2
|
57,822
|
2,860
|
20,217
|
3,178
|
|
2
|
SO3
|
18,067
|
3,574
|
5,055
|
0,795
|
|
3
|
H2O
|
25,655
|
0,804
|
31,909
|
5,016
|
|
4
|
CO2
|
1,286
|
1,965
|
0,655
|
|
5
|
N2
|
573,141
|
1,25
|
458,513
|
72,076
|
|
6
|
O2
|
171,198
|
1,429
|
119,802
|
18,832
|
|
7
|
Re2O7
|
0,0039
|
21,629
|
0
|
0
|
|
Итого
|
847,173
|
1,323
|
636,151
|
100
|
Так как на каждом участке газоходного тракта (участков 4) подсосы воздуха
составляют по данным практики 5 %,то объем газов на выходе из скруббера 6
составит:
,151*(1+0,05+0,052+0,053 +0,054 ) = 636,151*1,05263 = 669,632 нм3,
т.е. газы разбавляют воздухом в 1,05263 раза. Тогда содержание SO2 в газах с учетом подсосов составит
3,178/1,05263 = 3,019 % об., что > 3% об., следовательно, газы могут быть
направлены на производство серной кислоты.
Рис. 5.1. Аппаратурно-технологическая схема обжига
гранулированной шихты и пылеулавливания
Заключение
В данном курсовом проекте, требовалось спроектировать в условиях г.
Владикавказ отделение обжига гранулированного молибденитового концентрата
производительностью 6800т/год. Проект состоит из 5 разделов.
В первом разделе « Обоснование способа вскрытия концентрата» был
произведен обзор способов переработки молибденитового концентрата, при этом
были рассмотрены все достоинства и недостатки каждого из них. Наиболее разумным
следует считать применение окислительного обжига в печи кипящего слоя.
Во втором разделе « Технологические расчеты» требовалось:
расчет рационального состава концентрата, расчет выполнен на 100 кг.
влажного концентрата.-88,088-3,222S -0,978
Данные расчета представлены в таблице 2.1.
Расчет состава и выхода огарка и пыли из 100 кг концентрата. Получили
таблицу 2.2. (Общее количество продуктов обжига из 100 кг концентрата)
Масса общая - 9,707 кг. В ней Mo - 0,415. В ней SSO4 - 0,521.
В ней кислород - 3,828 ( более подробно все представлено в таблице 2.2.)
Расчет обжига гранулированного молибденитового концентрата, в котором был
составлен материальный баланс обжига гранулированной шихты (на 100кг.
концентрата) Все данные предоставлены в таблице 2.4.
В третьем разделе « Выбор и расчет основного оборудования» был произведен
расчет теплового баланса печи кипящего слоя (расчет на ЭВМ). При этом была
рассчитана производительность печи по концентрату равная 834,6835 кг/ч,
диаметре печи равен 2,403 м, высота надслоевой зоны равная 6,9 м, высота
кипящего слоя 2,3 м.
В четвертом разделе «Расчет или подбор (по каталогам) вспомогательного
оборудования» требовалось рассчитать и выбрать следующее оборудование:
бункеры;
дробилка для разлома некондиционных гранул;
гранулятор;
воздуходувка;
расчет загрузочной трубы;
грохот;
дисковый питатель;
смеситель;
ленточный транспортер;
винтовой конвейер.
В пятом разделе «Мероприятие по охране окружающей среды» для отчистки от
печных газов от SO2 был принят
способ очистки, при котором газы в скруббере орошают раствором сульфата
алюминия. Следовательно содержание SO2 в газах с учетом подсосов составит 3,019% от газы, могут быть
направлены на производство серной кислоты.
Список использованной литературы
1. Зеликман
А.Н. Металлургия тугоплавких редких металлов. М.: Металлургия, 1986. 440с.
2. Зеликман
А.Н. Молибден. М.: Металлургия, 1970. 440с.
3. Алкацева
В.М. Расчет обжига сульфидного сырья (на примере молибденитовых концентратов).
Методическое пособие для курсового и дипломного проектирования. Владикавказ:
Терек, 1993. 42с.
. Алкацева
В.М. Алгоритм расчета теплового баланса печи кипящего слоя для обжига
гранулированного молибденитового концентрата // Цв. Метталургия . 1997. № 10. С. 16-21
5. Романов
А.С. Разработка вопросов охраны окружающей среды в дипломных проектах по
металлургии редких металлов. Методическое пособие. Орджоникидзе, 1982. 36 с.
6. Интерент источник http://www.materialscience.ru/subjects/materialovedenie/knigi/metallurgiya_redkih_metallov__zelikman_an_korshunov_bg__m_metallurgiya_1991__432_s_24_01_2010/ (Металлургия редких
металлов / Зеликман А.Н., Коршунов Б.Г. - М.: Металлургия, 1991. - 432 с.)