Проект реконструкции участка цеха с целью производства мебели для гостиной ОАО ХК 'Мебель Черноземья', г. Воронеж
Министерство образования и науки
Российской Федерации
Федеральное государственное бюджетное
образовательное учреждение
Высшего профессионального образования
"Воронежская государственная
лесотехническая академия"
Кафедра механической технологии
древесины
Выпускная квалификационная работа
Проект реконструкции участка цеха с
целью производства мебели для гостиной ОАО ХК "Мебель Черноземья", г.
Воронеж
Студент Бирюкова М.Н.
Руководитель, к. т. н., доцент
Пономаренко Л.В.
Воронеж 2012
Реферат
Пояснительная записка _______ с., 1 рис., 53 табл., 22
источника.
Ключевые слова: план цеха, листовые материалы, стенка, полка,
дверь, ящик, крышка, раскрой, калибрование, фрезерование, облицовывание,
присадка, сборка, фурнитура, расход, оборудование, производительность,
технологический процесс.
Объектом работы является сборочно-заготовительный цех
предприятия ОАО ХК "Мебель Черноземья”.
Целью работы является проект цеха по производству мебели для
гостиной комнаты, разработка конструкции изделия - шкафа для гостиной,
составление технологического процесса и выбор количества необходимого
оборудования.
В результате изменён ассортимент выпускаемой продукции,
освоен новый технологический процесс, увеличено количество потенциальных
клиентов, что ведёт к увеличению прибыли.
Перечень чертежей
. Генеральный план - 1 лист.
. План существующего расположения оборудования - 1 лист.
. Эскизный проект набора мебели - 1 лист.
. Эскизный проект фрагмента интерьера - 1 лист.
. Чертеж изделия - набора бытового назначения - 1 лист.
. Деталировка изделия - 1 лист.
. План предлагаемой расстановки оборудования - 1 лист.
. Пневмотранспортная установка - 1 лист.
. Технико-экономические показатели - 1 лист.
. САПР мебели
. Схема техпроцесса
Содержание
Реферат
Введение
1. Характеристика проектируемых изделий
1.1 Функциональная основа проектирования мебели
1.2 Техническое описание проектируемой мебели и обоснование
принятых конструктивных решений
1.3 Оценка комфортабельности изделия мебели и уровня унификации
1.4 Оценка технологичности разрабатываемых конструкций
1.5 Выводы о целесообразности постановки продукции на производство
2. Характеристика строящегося или реконструируемого объекта
2.1 Расположение предприятия и его состав
2.2 Источники снабжения
2.3 Характеристика здания реконструируемого или строящегося объекта
2.4 Описание существующих технологических процессов и их анализ
2.5 Анализ существующих технико-экономических показателей
2.6 Анализ состояния безопасности и жизнедеятельности
2.6.1 Безопасность жизнедеятельности в процессе производства
2.6.1.1 Характеристика и анализ состояния производственного
травматизма и профессиональных заболеваний на предприятии
2.6.1.2 Выполнение планируемых мероприятий по охране труда
2.6.1.3 Анализ производственных опасностей и вредностей
2.6.1.4 Организация надзора по охране труда
2.6.2 Охрана окружающей среды
2.6.2.1 Характеристика вредных пыле - и газовых выбросов в
атмосферу при действующем на предприятии технологическом процессе
2.6.2.2 Характеристика схем водоснабжения предприятия, очистных сооружений
2.6.2.3 Характеристика твёрдых отходов предприятия
2.6.3 Готовность к защите работающих и материальных ценностей в
чрезвычайных ситуациях
2.6.3.1 Анализ состояния пожарной безопасности предприятия
2.6.3.2 Анализ планов предприятия на мирное и военное время по
подготовке к действиям в условиях чрезвычайных ситуаций
3. Экономическое обоснование необходимости освоения новой продукции
3.1 Расчёт мощностей производственных участков и выявление
"узких мест"
3.2 Выводы о целесообразности освоения новой продукции и постановка
задач
3.3 Основные проектные решения и их обоснования
4. Технологическая часть
4.1 Применяемые материалы и их характеристика
4.2 Расчет норм расхода сырья и материалов на единицу продукции
4.2.1 Расчет поверхностей, на которые наносится клей и норм расхода
клеевых материалов
4.2.2 Расчёт норм расхода фурнитуры и других покупных комплектующих
деталей и узлов
4.2.3 Сводные нормы расхода сырья и материалов
4.3 Разработка карт раскроя листовых и плитных материалов
4.4 Установление календарного режима работы участка
4.5 Разработка технологии, маршрутных схем, выбор технологического
оборудования и транспортных средств, расчет его необходимого количества на план
производства
4.5.1 Расчёт производительности оборудования и норм времени
4.5.2 Расчет потребности в оборудовании и его загрузки
4.6 Расчет потребности в транспортных средствах
4.7 Расчет площади промежуточных складов для хранения сырья и
полуфабрикатов, а также мест технологической выдержки. Общий расчет необходимых
площадей для организации производственного процесса
4.8 Расчет потребности в инструменте и оборудовании для заточки
инструмента
4.9 Расчет пневмотранспортных систем
4.10 Выбор систем отопления и их расчет
4.11 Расчет общей потребности в электроэнергии. Выбор
трансформаторов и компенсаторов реактивной мощности
4.12 Расчет расхода сжатого воздуха. Выбор компрессоров и
воздухосборников
4.13 Расчет расхода горячей воды на технологические нужды
4.14 Организация технического контроля
5. Безопасность жизнедеятельности
5.1 Мероприятия по улучшению условий труда и повышению безопасности
жизнедеятельности
5.2 Проектный расчет по безопасности жизнедеятельности
5.2.1 Расчет общего искусственного освещения
5.2.2 Расчет сопротивления заземляющего устройства в однородном
грунте для электроустановок напряжением до 1000 В.
5.2.3 Расчет необходимого количества первичных средств
пожаротушения и запаса воды для тушения пожара
6. Использование САПР БАЗИС для проектирования изделия "Шкаф
для гостиной"
6.1 Техническое задание на "Шкаф для гостиной"
6.2 Проектирование наиболее простых с точки зрения геометрии и
структуры корпусов с помощью модуля универсального проектирования БАЗИС - Шкаф
Заключение
Библиографический список
Введение
Задача данного проекта состоит в разработке дизайна,
конструкции и технологии производства мебели для гостиной комнаты с учётом
индивидуальности интерьера конкретного жилого пространства семьи среднего
достатка.
Домашняя гостиная должна рассматриваться как общая сфера всех
членов семьи. При этом необходимо принять во внимание следующее: центральное
место в гостиной занимает зона активного отдыха с обеденной группой и местом
расположения теле-видео-аудиоаппаратуры, где собирается вся семья вечером, а в
выходные и праздничные дни - вместе с близкими и друзьями. В набор, кроме
обеденной группы, должен входить максимум необходимых изделий, но, вместе с
тем, чтобы оставалось больше свободного места, света и воздуха: мягкий уголок
для отдыха, сервант для дорогой праздничной посуды и шкаф общего назначения для
хранения столовых принадлежностей, книг, аппаратуры и других вещей домашнего
обихода. Поэтому такое помещение занимает центральное место в доме, под него
отводится самая большая площадь, его обустройству отводится больше всего
внимания и средств, т.к. удачный интерьер гостиной способствует не только
сплочению членов семьи и их близких, но и наглядно демонстрирует индивидуальный
вкус и предпочтения, которые в первую очередь заключаются в цветовом и
стилистическом решении, а также достаток дома. Кроме своего основного назначения
гостиная, как правило, является местом семейного общения, воспитания детей,
передачи им лучших семейных традиций и привитию вкуса и манер. Естественное
освещение, наравне с искусственным, должно обеспечивать хорошую равномерную
освещенность столов и рабочих поверхностей.
В настоящее время важнейшей функцией жилища становится
обеспечение такой жизненной среды, которая была бы адекватна потребностям всех
её обитателей и способствовала достижению внутреннего домашнего равновесия,
подавляя негативное внешнее воздействие. Важно чтобы интерьер оказывал на людей
эмоциональное воздействие, вызывая хорошее настроение, снимая утомление. В
организации интерьера большое значение имеет мебель. На данном этапе развития
общества постоянно возрастают требования к её качеству и эстетичности.
Очень важно при создании мебели учитывать особенности и
привычки семьи, соблюдать соответствие изделий санитарным требованиям и
эргономическим характеристикам.
В течение десятилетий мебель для домашних гостиных в нашей
стране выпускалась в ограниченном количестве, считаясь буржуазным пережитком.
Невелика и практика её проектирования. В настоящее время с появлением
устойчивого спроса на создание индивидуализированного домашнего интерьера
долговременного пользования существует тенденция освоения новых видов изделий,
внедрение нового высокопроизводительного оборудования, новых эффективных
материалов. Наиболее важной и ответственной является подготовка к запуску в
производство нового вида изделия. Основными задачами подготовки производства являются:
разработка и создание конструкции изделий повышенного качества при рациональном
использовании материальных и трудовых затрат и эффективном использовании
производственных мощностей, а также обеспечение комплексной разработки
технологии изготовления на основе применения прогрессивных технологических
процессов.
Особенность гостиной в том, что в одной комнате, часто
небольшого метража, необходимо оборудовать несколько функциональных зон:
активного и пассивного отдыха, учебную, игровую, гардеробную. Декоративность
интерьера комнаты для гостиной, ее пространственное и цветовое решение являются
исключением по сравнению со всеми остальными помещениями в доме. Общеизвестно
влечение человека ко всему яркому и броскому - исходный момент в оформлении
гостиной комнаты, в подборе цвета стен, мебели, тканей, сочетания их с яркими
плакатами, книгами. Гостиный интерьер, в первую очередь, должен быть интересным
и занимательным, он должен вызывать ассоциации, развивать воображение.
Первейшая задача дизайнера - правильно выбрать мебель и
тщательно продумать схему ее расстановки, так, чтобы пространство не выглядело
чересчур загруженным. Свободное пространство посредине комнаты для гостиной -
одно из условий организации ее интерьера. В поиске вариантов размещения мебели
не стоит увлекаться четким зонированием. Поэтому непременным условием является
максимум свободного пространства. Мебель, расставленная у стен, обеспечит место
для отдыха и развлечений.
Особенно актуальна, сегодня модульная гостиная мебель - когда
из отдельных элементов можно собрать целую комнату. Какие-то новые элементы
всегда можно докупить отдельно. Конструктивные решения современных модульных
вариантов весьма практичны: мебель можно легко перестроить в соответствии с
необходимостью.
Второй вариант мебели для гостиных - моноблоки, они также
особенно удобны для малогабаритных квартир. Кровать, стол и шкаф занимают в
этом случае площадь 1,6 кв. м. В некоторых моделях моноблоков предусмотрены
трансформации: можно, например, выдвинуть и задвинуть стол, поставить вместо
стола кресло.
Очень важно при создании мебели учитывать особенности и
интересы потребителя, соблюдать соответствие изделий санитарным требованиям и
эргономическим характеристикам. Для жилья, экологически чистой считается мебель
из МДФ (материал из мельчайшей древесной пыли, полученной горячим прессованием
без использования токсичных связующих). Применение ДСП допустимо лишь в
случаях, когда вся поверхность плиты покрыта защитным слоем (шпоном, ламинатом
или меланином). Все материалы и изделия должны быть сертифицированы.
В настоящее время с появлением устойчивого спроса на создание
индивидуального жилого интерьера существует тенденция освоения новых видов
изделий, внедрение нового высокопроизводительного оборудования, новых
эффективных и экологически чистых материалов. Наиболее важной и ответственной
является подготовка к запуску в производство нового вида изделия. Основными
задачами подготовки производства являются: разработка и создание конструкции
изделий повышенного качества при рациональном использовании материальных и
трудовых затрат и эффективном использовании производственных мощностей, а также
обеспечение комплексной разработки технологии изготовления на основе применения
прогрессивных технологических процессов.
реконструкция цех шкаф конструкция
1.
Характеристика проектируемых изделий
1.1
Функциональная основа проектирования мебели
Любая семья стремится выделить свой собственный уголок или
целое помещение, где бы она могла бы проводить время совместно, по-своему, со
своими привычками и увлечениями, ведь именно в этом месте близкие проводят
лучшее время, здесь окончательно формируется характер и складываются жизненные
принципы, вкусы и светские манеры детей. Обстановка и атмосфера дома влияют не
только на настроение и трудоспособность, но и в значительной мере на здоровье
человека, проживающего на данной площади. Поэтому мебель в проектируемом
помещении должна соответствовать замыслу совместного неторопливого
времяпрепровождения за общим столом, быть по самой сути, по замыслу комнатой, в
которой комфортно активно проводить время, принимать гостей, собираться семьёй,
беседовать, мечтать и отдыхать.
Мебель для гостиной должна быть прочной, долговечной, не
будучи, однако, чересчур громоздкой и напоказ массивной. Оригинальность
внешнего вида и конструкции мебели - показатели, оцениваемые по совокупности
художественных качеств, выраженных во внешних очертаниях, цвете и в их отличии
от существующих аналогов. Предпочтительно использование натуральной массивной
древесины, хотя из-за своей дороговизны массив, особенно лиственных пород,
используется намного реже, чем плитные искусственные материалы. Цветовая
композиция в комнате должна соответствовать вкусу и в то же время расположению
относительно солнца. Эту гамму составляют и стены с их окраской, и мебель, и
шторы, и напольное покрытие, а главное - цветовые акценты из интересных
декоративных предметов. Поэтому в выборе цвета было отдано предпочтение мебели
классических древесных оттенков коричневого тона. Психофизическими
исследованиями доказано, что этот цвет на генетическом уровне не раздражает, не
вызывает агрессивных эмоций, в тоже время придаёт уют и комфорт данному
помещению. Цветовое решение экстерьера для гостиной необходимо строить на
нюансных гармониях.
Гостиная комната самая интересная с точки зрения дизайна.
Интерьер комнаты накладывает неизгладимый отпечаток на всю последующую жизнь
человека, оказывает влияние на становление характера и развитие личности.
Немаловажно и то, как сочетается гостиная с остальной территорией квартиры или
дома. Желательно, чтобы любой член семьи мог свободно оказаться вместе с
остальными, приоткрыв дверь своей комнаты, или, наоборот, остаться в
одиночестве. Самый глухой угол квартиры или дома - не место для гостиной.
Пространство комнаты должно быть очень светлым. Но и в этом вопросе важно не
переусердствовать. Шторы - самый испытанный способ затенить комнату, если в
этом есть необходимость. Они спасают от излишнего солнечного света и
иллюминации ночного города. Планируя интерьер комнаты для гостей, не стоит
увлекаться архитектурными изысками. Многоуровневые потолки, лепнина, арочные
проемы, ступени и подиумы, скорее, подойдут к каминной, спальне, кабинету. Пол
должен быть не только теплым, но и выдерживать удары и загрязнение красками.
Идеальным покрытием считается ламинированный паркет, паркетная доска или
экологичные пробковые полы. В игровой зоне лучше всего постелить ковер или
ковролин с мелким ворсом.
Очень важно подобрать верный оттенок цвета. Часто для комнаты
"гостей-женщин" подбирают теплую цветовую гамму, в розоватых тонах,
для комнаты "гостей-мужчин" - более "прохладные" цветовые
сочетания, оттенки голубого. Однако специалисты не считают эти цветовые
предпочтения обязательным правилом. Они только рекомендуют учитывать
воздействие цветов и оттенков на эмоциональное, психологическое, а порой и
физическое состояние человека. Психологи рекомендуют решать интерьер комнаты в
нежных и чистых тонах: розоватых, зеленовато-желтоватых, светло-голубых,
светло-зеленых. Пастельные тона создают гармонию, они помогают даже темную
комнату сделать веселей и уютней, создать в ней оживленную атмосферу, сильно
отличающуюся от размеренности помещений пассивного время препровождения.
Некоторые специалисты утверждают, что очень светлый оттенок фиолетового хорошо
подходит для гостевой комнаты, ибо дает положительный творческий импульс и
стимулирует умственную деятельность Важное значение при выборе основного цвета
для имеет и темперамент хозяина, который в ней принимает гостей. Например, в
оформлении комнаты для флегматика или меланхолика можно использовать отдельные,
но небольшие, предметы ярко-красного цвета, выделяющиеся цветными
"пятнами", или оклеить стены обоями нежно-розового цвета. Нежный
сине-голубой фон будет уместен в комнате непоседливого жильца - холерика или
чересчур возбудимого сангвиника со "взрывным" темпераментом.
Считается также, что все оттенки синего обладают способностью укреплять
организм человека и стимулировать его развитие. А вот в гостиной с оранжевыми
стенами, занавесками и массой разноцветных игрушек такому активному жильцу,
наоборот, будет очень трудно стать спокойным, поскольку обилие ярких оранжевых
тонов возбуждающе действует на психику.
Обилие красного цвета негативно влияет на психику человека:
возбуждает ее, при этом, как правило, повышается кровяное давление и повышается
риск возникновения головных болей, а также ночных кошмаров.
Действие синего цвета положительное. Несмотря на угнетающее
воздействие на нервную систему, негативное влияние на пульс, он снимает
мускульное напряжение и притупляет болевые ощущения. Однако случается так, что,
находясь в комнате, в которой доминирует синий цвет, возникает ощущение
усталости и депрессии. В гостиной комнате допустимо присутствие синего цвета в
небольших количествах.
Положительно сказывается на всех аспектах жизни человека
желтый. Это прекрасный цвет для оформления комнаты на северной стороне. Он
активизирует деятельность мозга, повышает настроение, увеличивает скорость
восприятия, остроту зрения. Зеленый цвет увеличивает остроту зрения. Помимо
этого, он способствует нормализации кровяного и глазного давления,
стабилизирует пульс и дыхание, а также помогает концентрации внимания, хорошему
настроению, благотворно влияет при бессоннице. Именно поэтому в прошлом рабочие
(письменные) столы затягивались, как правило, сукном зеленого цвета, а
настольная лампа имела зеленый абажур. Рисунки, игрушки и переплеты книг в
зеленых тонах - это именно то, что необходимо в интерьере. Благотворно влияет
на пищеварительные органы, усиливает аппетит оранжевый цвет, но его изобилие в гостиной
комнате вызывает у жильцов и гостей переутомление и порой даже головокружение.
Основной принцип гостиной комнаты - многофункциональность и
вариативность. Предметы обстановки должны будить воображение, создавать
возможности для различных занятий. Для того чтобы гостиная обладала всеми этими
качествами, дизайнеры применяют метод зонирования. Как правило, данное
помещение делится на зону активного времяпрепровождения, а также зону отдыха.
В гостиной от общего центрального освещения отказываться
нельзя, как и от зонированного освещения, что вместе будет более выгодно и
функционально. Освещение необходимо в зонах: непосредственно над обеденным
столом (центральная люстра); над мягким уголком для отдыха (торшер) и настенные
бра для вечернего подчеркивания уюта комнаты.
Освещение гостиной комнаты играет очень важную роль. Свет
характеризуется преимущественно верхним и точечным расположением, а также
ночной подсветкой. Необходимо предусмотреть возможность настольного и
дополнительного освещения рабочего стола, некоторых деталей интерьера,
подсветку картинок, пассивного отдыха. Освещенность должна учитывать возрастные
нагрузки на глаза жильцов и гостей, принятые в социальной медицине, и строго их
придерживаться. Кроме того, световые приборы в гостиной должны поддаваться
быстрой и удобной уборке.
К гостиной мебели предъявляются жесткие требования. Мебель,
как правило, изготовляется из экологически чистых материалов. В процессе
эксплуатации стол, стул, шкаф не должны выделять никаких вредных веществ,
поэтому, приобретая такую мебель, внимательно ознакомьтесь с сертификатом на
продукцию. Ее изготавливают из легко моющихся прочных и долговечных материалов,
как правило, ДСП или МДФ. Древесностружечные панели должны быть со всех сторон
покрыты защитной пленкой. Стеклянные детали в мебели для гостиной должны быть
сглажены. Разумеется, у мебели не должно быть острых углов, зазубрин, обилия
мелких деталей. Шкаф для хранения вещей и шкаф для аппаратуры содержат
различные выдвижные ящики и контейнеры. Шкаф для хранения предметов домашнего
обихода отличается не только высоким качеством и экологичностью всех составных
деталей, но и большой вместимостью.
В домашней гостиной большую часть времени, находясь в
комнате, пользователи проводят за столом, остальная часть времени занята пассивным
или активным отдыхом. Этим обоснован выбор изделий, входящих в состав набора
мебели для столовой, и полностью обеспечивающих полноценное и комфортное
времяпрепровождение данной группы людей. Разрабатываемый набор мебели для
гостиной - это группа изделий, связанных между собой общей архитектурно -
художественной задачей обстановки комнаты, с узкой вариабельностью по составу и
назначению.
По эксплуатационному назначению набор относится к мебели
бытовой группового пользования, комплектность, размеры, форма и конструкция
которого соответствуют возрастным особенностям и ростовым характеристикам
потребителей.
По функциональному назначению изделия, необходимые для
гостиной, относятся к следующим видам:
мебель для хранения, основное назначение которой хранение и
размещение различных предметов, она включает в себя следующие изделия: шкаф
общего назначения и пользования и стол-тумба для аппаратуры - изделия со
стеклянными и глухими дверями, для хранения и размещения предметов различного
функционального назначения и посуды;
мебель для кратковременного отдыха предназначена для
размещения человека в положении сидя, к ней относятся следующие предметы:
угловой диван и (или) кресла в гарнитуре с журнальным столом;
мебель для сидения, к которой относится стул - изделие со
спинкой, с высотой сиденья, функционально удобной при соотношении его с высотой
стола, предназначенное для сидения одного человека;
мебель для приёма пищи - изделие в гарнитуре с комплектом
стульев, предназначенное для совместного времяпрепровождения: стол обеденный
гостиный [12].
Разрабатываемый набор мебели обладает некоторыми чертами,
схожими с существующими аналогами, однако он отличается простотой и
безопасностью конструкции, которая обеспечит его работоспособность в течение
заданного срока службы, рациональным выбором материалов, назначением размеров
элементов в соответствии с действующими нагрузками на них и условиями
эксплуатации. Набор мебели обладает информационной выразительностью,
рациональностью формы, целостностью композиции, совершенством производственного
исполнения, стабильностью товарного вида и авторским стилем. Мебель является
органичной частью окружающей среды, подчиняется единому
архитектурно-художественному стилю "классицизм". Набор имеет
модульный характер, в него могут легко встраиваться новые изделия, как и сам
набор легко комбинируется в новом помещении, продолжая смотреться неповторимо и
эстетично. Практически неограниченные возможности комбинирования модулей
позволяют структурировать пространство и разделять его на функциональные зоны.
Разрабатываемый набор мебели обладает некоторыми чертами,
схожими с существующими аналогами, однако он отличается простотой конструкции,
которая обеспечит его работоспособность в течение заданного срока службы,
рациональным выбором материалов, назначением размеров элементов в соответствии
с действующими нагрузками на них и условиями эксплуатации. Набор мебели
обладает информационной выразительностью, рациональностью формы, целостностью
композиции, совершенством производственного исполнения, стабильностью товарного
вида и авторским стилем. Мебель является органичной частью окружающей среды,
подчиняется единому архитектурно-художественному решению. Набор имеет модульный
характер, в него могут легко встраиваться новые изделия, как и сам набор легко комбинируется
в новом помещении, продолжая смотреться неповторимо и эстетично. Практически
неограниченные возможности комбинирования модулей позволяют структурировать
пространство и разделять его на функциональные зоны.
1.2
Техническое описание проектируемой мебели и обоснование принятых конструктивных
решений
Набор мебели предназначен для оборудования гостиной комнаты в
трех комнатной квартире.
Шкаф для гостиной изготовлен в едином
архитектурно-художественном и конструктивном решении. Изготавливается из унифицированных
и стандартизированных щитовых элементов. Шкаф состоит из одной секции,
устанавливаемой по месту проведения монтажных работ. Секция разделяется
вертикальной перегородкой на левую большую и правую меньшую части.
Левая часть разделяется горизонтальной стенкой на два проема:
верхний открытый - разделен двумя полками; нижний, закрытый двумя глухими
распашными дверками - разделен перегородкой на два проема, которые в свою
очередь разделены одной полкой.
Правая часть разделена горизонтальной стеной на два проема:
верхний большой полуоткрытый и нижний меньший закрытый. Верхняя часть имеет
проем закрытый откидной дверью и пустой открытый. В нижней части расположены
два ящика и проем закрытый откидной дверью. Задняя стенка накладная. Плинтусная
панель вкладная.
Шкаф собирается на угловых накладных стяжках и мебельных
винтах с заглушкой на лицевых поверхностях и без заглушки на невидимых
поверхностях. Заглушки по цвету выбирают нюансные. Монтаж секции осуществляется
по месту эксплуатации на круглых вставных шипах с клеем. Накладные распашные
двери навешиваются на четырех - шарнирных фиксирующих петлях одного
типоразмера. Откидные двери фиксируются с использованием механизма удерживания
- газонаполненного кронштейна. Полки устанавливаются на полкодержателях. Ящики
перемещаются по роликовым направляющим с постановом. Плинтусная вкладка и
опорные стенки имеют наконечники - подпятники. Корпус изготовлен из ЛДСтП,
фасад из МДФ, облицованный глянцевой термореактивной пленкой. Коробка ящика
выполнена также из ЛДСтП. Задняя стенка - ДВП толщиной 3 мм. Фурнитура должна
соответствовать требованиям ОСТ 13-40 2005. Полимерные материалы, применяемые в
изделиях, имеют разрешение Минздрава РФ.
Перечень элементов представлен в форме таблицы 1.
Таблица 1 - Перечень элементов изделия
|
№ п/п
|
Наименование
деталей
|
Кол-во
|
Размеры деталей
в чистоте
|
|
|
|
длина, мм
|
ширина, мм
|
толщина, мм
|
|
1
|
Стенка боковая
|
2
|
1248
|
416
|
16
|
|
2
|
Стенка
горизонтальная
|
2
|
1652
|
416
|
16
|
|
3
|
Стенка
вертикальная
|
1
|
1116
|
416
|
16
|
|
4
|
Стенка
горизонтальная внутренняя
|
1
|
1090
|
416
|
16
|
|
5
|
Стенка
горизонтальная внутренняя малая
|
2
|
546
|
416
|
16
|
|
6
|
Перегородка
|
1
|
540
|
416
|
16
|
|
7
|
Полка большая
|
2
|
1086
|
400
|
16
|
|
8
|
Полка малая
|
2
|
533
|
400
|
16
|
|
9
|
Дверь
|
2
|
572
|
560
|
16
|
|
10
|
Дверь средняя
|
1
|
328
|
560
|
16
|
|
11
|
Дверь малая
|
1
|
287
|
560
|
16
|
|
12
|
Ящик
|
2
|
|
|
|
|
12.1
|
Стенка ящика
накладная
|
2
|
120
|
560
|
16
|
|
12.2
|
Боковина ящика
|
4
|
сталь
|
|
|
|
12.3
|
Задняя стенка
ящика
|
2
|
алюминий
|
|
|
|
12.4
|
Дно ящика
|
2
|
ПВХ
|
|
|
|
13
|
Стенка задняя
|
1
|
1142
|
1678
|
3
|
|
14
|
Плинтусная
вкладка
|
1
|
1652
|
92
|
16
|
Тип корпуса III, на проходных опорных вертикальных стеках. Порядковый
номер корпуса Ж-26. Габаритные размеры: размер корпуса по высоте H=1248 мм,
размер проема по высоте h=1116 мм, размер дверей по ширине 560 мм (3 шт.),
размер корпуса по ширине B=1684 мм, размер проема по ширине b = 1652 мм и
глубина корпуса S=416 мм.
Варианты отделки приведены в таблице 2.
Таблица 2 - Защитно-декоративные покрытия поверхностей
изделия: шкаф для игрушек из набора мебели для гостиной комнаты
|
Наименование
поверхности
|
Материал
|
Обозначение
покрытия
|
|
Фасадные и
лицевые
|
Термореактивная
пленка
|
ТР. А1. Г.9
|
|
Внутренние и
рабочие
|
ЛДСтП
|
-
|
|
Невидимые
|
ЛДСтП
|
-
|
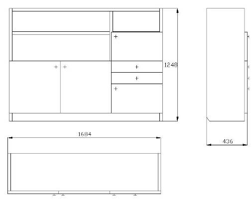
Габаритный чертеж изделия представлен на рисунке 1.
Рисунок 1 - Габаритный чертёж изделия: шкаф для гостиной
1.3 Оценка
комфортабельности изделия мебели и уровня унификации
Показатели комфортабельности характеризуют удобство
эксплуатации и ухода за изделием, а также удобство его размещения в помещении.
По этому показателю изделия оценивают путем сравнения их функциональных
размеров с размерами, предусмотренными стандартами, а также в баллах в
соответствии с показателями комфортабельности. Сопоставление оценки каждого из показателей
и их суммы позволяет оценивать комфортабельность изделий. Эстетические
показатели характеризуют соответствие формы и внешнего вида мебельных изделий
современным требованиям. Оценка проводится в баллах в соответствии со шкалой.
Все оценки аттестуемого изделия должны находиться в пределах
одной категории. Если же один из показателей получил оценку ниже указанной для
данной категории, то изделие переводят в другую категорию. Показатели
надежности, стандартизации, унификации для каждого вида изделий должны
соответствовать требованиям действующей нормативно-технической документации.
Таблица 3 - Показатели и оценки аттестуемого изделия
|
Наименование
показателей
|
Оценка по
категориям качества, баллы
|
|
высшая
|
первая
|
|
1.
Комфортабельность
|
30-27
|
24-15
|
|
Соответствие
требованиям функц-х размеров ГОСТ
|
Да
|
Да
|
|
Удобство
пользования изделием
|
18-17
|
16-9
|
|
Удобство ухода
за изделием
|
6-5
|
4-3
|
|
Удобство
размещения в помещении
|
6-5
|
4-3
|
|
2. Эстетические
показатели
|
30-27
|
24-15
|
|
Форма
|
15-14
|
13-7
|
|
Цвет, фактура и
рисунок лицевых поверхностей
|
9-8
|
7-5
|
|
Гармоничность
фурнитуры в изделии
|
6-5
|
4-3
|
Мебель удобна и безопасна в эксплуатации: кромки, углы и
грани смягчены и заовалены, конструкция надёжна и устойчива к опрокидыванию.
Изделия из набора можно блокировать в функциональные группы по назначению: для
хранения, для отдыха и работы в положении сидя, для отдыха в положении лежа.
Функциональные требования к мебели - это условия, которые
определяют соответствие её целевому назначению. К ним относятся:
соответствие конструкции изделия и отдельных его элементов
назначению окружающего экстерьера;
необходимость функционального разделения изделия по
параметрам в соответствии с требованиями потребителей определённых возрастных
групп;
соответствие коэффициента запаса ёмкостей размещаемым в них
для хранения предметам;
рациональность, компактность и мобильность.
Унификация - рациональное сокращение числа одинаковых
объектов по функциональному назначению, приведение различных видов продукции к
наименьшему числу типоразмеров, марок, свойств, форм и т.д.
Сведение количества типоразмеров конструктивных элементов к
рационально оправданному минимуму обуславливается интересами производства. При
выполнении этого условия легче осваивать новую продукцию. Внедрение системы
унификации позволяет сохранить время на переналадку оборудования и сократить
общее количество переналадок, повысит количественный выход заготовок, улучшить
организацию труда, повысить технологическую дисциплину и перейти от предметной
специализации производства к технологической.
Объектами унификации могут быть детали, сборочные единицы и
процессы переработки. Уровень унификации отражает степень насыщенности изделия
унифицированными элементами. Коэффициент унификации выражает рациональность
конструкции. Унификацию обычно характеризуют в процентах.
В настоящее время численные методы уровня унификации уступили
место аналитическим и описательным. Это связано с тем, что требования к изделию
со стороны потребителя зачастую вступают в противоречие с
конструктивно-технологическими требованиями со стороны производителя продукции.
Поэтому конструктор и технолог стремятся по-возможности максимально увеличить
коэффициент унификации, не делая это самоцелью, а лишь увязывая требования и
пожелания со стороны потребителя с возможностями производства.
В данном проекте функциональные размеры изделия и его
конструктивных элементов приближены к нормативной документации по ГОСТ Р.
1.4 Оценка
технологичности разрабатываемых конструкций
Технологичность - комплексная характеристика изделия,
выявляемая в затратах труда (трудоёмкость, норма/час), материалов
(материалоёмкости, руб.) и рациональности конструктивного решения,
предопределяемая уже на стадии конструктивной разработки изделия.
Конструкция изделия или составляющих его элементов
технологична, если она обеспечивает заданные эксплуатационные и эстетические
качества с наименьшими затратами труда и материалов при его производстве. Такая
конструкция характеризуется простотой и совершенством формы, обеспечивает
удобство эксплуатации и минимальную трудозатратность в процессе изготовления и
сборки изделия. К технологическим показателям относятся также точность
обработки, степень нормализации и унификации, вид и категория отделки.
К настоящему времени численные методы уровня технологичности
также уступили место описательным критериям, за которые принимают экономическую
целесообразность выпуска изделия при заданном качестве, условиях эксплуатации,
принятых условиях производства и сложившемся уровне цен на аналогичные изделия.
Сказанное в особенной мере относится к переработке массивной древесины, т.к.
все изделия из натуральной древесины по определению крайне нетехнологичны по
сравнению с изделиями из плитных искусственных материалов.
Оценка технологичности конструкции может быть качественной и
количественной. Качественная оценка характеризует технологичность на основе
опыта дизайнера, конструктора и экономиста, ведущих разработку проекта. С
помощью такой оценки осуществляется выбор лучших конструктивных решений без
анализа количественных оценок. Количественный критерий позволяет более
конкретно определить технологические свойства изделий и наметить пути их
оптимизации. последний показатель применяется при массовом выпуске и, как было
сказано выше, применяется нечасто.
При разработке изделия и проверке его на технологичность
необходимо соблюдать следующие принципы и положения:
дизайн и конструкцию изделия необходимо проектировать с
учётом технологических возможностей установленного оборудования из стандартных
и унифицированных деталей и сборочных единиц, избегать чересчур сложных форм,
многообразия типоразмеров и т.п.;
форма деталей должна позволять обрабатывать их с минимальной
трудоёмкостью по рациональной технологии и на высокопроизводительном
оборудовании. Размеры и поверхность деталей должна иметь конструктивно обоснованную
точность и шероховатость; материалоёмкость должна быть минимальна;
технология сборки и монтажа должна быть простой,
легкодоступной для механизации и контроля за качеством, а конструкция изделия
должна обеспечивать удобство упаковки, транспортировки и хранения, а также
процесс эксплуатации и ремонта.
1.5 Выводы о
целесообразности постановки продукции на производство
Проектируемая мебель отвечает современным тенденциям
формообразования мебели длительного пользования. Она обладает привлекательным
внешним видом, свободно впишется практически в любой интерьер комнаты. Удобна и
безопасна в эксплуатации, устойчива к переворачиванию и опрокидыванию, имеет
сглаженные формы, не является громоздкой и не утяжеляет пространство.
Удовлетворяет всем потребностям потребителя в ёмкостях для хранения. Мебель
соответствует санитарным требованиям, проста в уборке, обслуживании и
эксплуатации. Обладает стабильностью товарного вида. Разработанный набор мебели
для гостиной комнаты способен удовлетворить вкусам самых притязательных
потребителей. При высоком уровне качества и внешней оригинальности изделие
обладает простой конструкцией. Для уменьшения себестоимости используются
унифицированные элементы. Из сказанного можно сделать вывод о сбалансированном
критерии цена - качество, что предполагает устойчивый спрос на стильные изделия
авторской мебели среднего ценового диапазона при их выпуске малыми сериями.
2.
Характеристика строящегося или реконструируемого объекта
2.1
Расположение предприятия и его состав
ОАО ХК "Мебель Черноземья" расположена в г.
Воронеже, в железнодорожном районе, в жилой зоне по ул.Б. Хмельницкого, 51а.
Основная площадка граничит:
на севере - с территорией завода им. Тельмана;
на востоке - с железной дорогой;
на юге - с гаражным кооперативом;
на западе - с городской застройкой.
На основной площадке размещены:
административно-бытовой корпус;
сборочно-отделочный корпус производства по изготовлению
мебельного щита и корпусной мебели;
сборочно-отделочный корпус производства мебели из натуральной
древесины;
сушильно-заготовительный корпус;
сушилки;
склад черновой мебельной заготовки;
ремонтно-механический цех;
цех мягкой мебели;
котельная;
мазутонасосная;
столярный цех;
дробилка;
гаражи;
склады;
трансформаторная подстанция;
венткамеры;
компрессорная;
насосная;
цех изготовления мебельного щита;
склад готовой продукции;
склад лакокрасочных материалов.
Размер санитарно-защитной зоны для предприятия принимается в
соответствии с СанПиН 2.2.1/2.1.1.1031-01 "Санитарно-защитные зоны и
санитарная классификация предприятий, сооружений и иных объектов"
санитарно-защитная зона предприятия составляет 100 метров и уточнения не
требуется.
Участки по переработке, обезвреживанию и регенерации отходов
производства на промплощадке отсутствуют. Собственного полигона для захоронения
отходов предприятия не имеет. Городских полигонов промышленных и бытовых
отходов вблизи площадки предприятия нет.
2.2 Источники
снабжения
Предприятие ХК "Мебель Черноземья" производит
мебель, как из натуральной древесины, так и из плитных материалов. Для этого
черновые мебельные заготовки древесины поставляются из Белгорода и Краснодара.
Доставка осуществляется автомобильным транспортом. Плитные материалы, такие как
ДСтП, ДВП, МДФ, ламинаты постформинг доставляются железнодорожным транспортом.
Поставки растворителей (ацетон, бутилацетат) осуществляются
автомобильным транспортом из г. Дзержинска. Среди лакокрасочных материалов
отечественного производства применяют некоторые виды полиуретановых лаков и
нитроцеллюлозные материалы. Для отделки изделий из натуральной древесины
используют лаки и бейц фирмы VOTTELER (Германия), а также патину Лютофен
(Германия). Все материалы поставляются автотранспортом.
Фурнитуру, используемую при сборке, закупают в г. Москва, а
также поставляют из Италии и Германии. Поставки производят автотранспортом.
Вода из городского водопровода идет на выработку пара, мытья
машин, нужды рабочих и на подпитку систем водоснабжения водой. Также на
территории предприятия имеется собственная артезианская скважина глубиной 80м,
которая вырабатывает 7м3 воды в час. Пар, вырабатываемый на предприятии котлами
ДКРЛ 1013, идет на технологические цели в первый цех изготовления мебельного
щита и на сушильные камеры в сушильно-заготовительный цех.
Электроэнергия поступает с завода алюминиевых конструкций
через трансформатор. Силовая электроэнергия обеспечивает работу
электродвигателей в цехах, котельной, компрессорной и т.д. Осветительная
энергия используется для освещения производственных площадей.
Сжатый воздух вырабатывается в компрессорной станции, компрессорами
марки ВП 20-9, и подается во все цеха предприятия для обеспечения работы
оборудования.
2.3
Характеристика здания реконструируемого или строящегося объекта
Предприятие расположено на естественном основании, т.е. на
грунте, который в условиях природного залегания обладает достаточной несущей
способностью, чтобы выдержать нагрузку от здания. Он не требует дополнительных
инженерных мероприятий по упрочнению грунта.
Фундамент предприятия является ленточным. Под железобетонные
колоны применяют фундаменты стаканного типа. Размеры стакана в плане больше
сечения колонн сверху на 150 и снизу на 100 мм. Дно стакана на 50 мм ниже
проектной отметки низа колонн, чтобы иметь возможность компенсировать в
размерах и заложении фундамента. Зазоры между стенками стакана и поверхностью
колонн, а также низом колонн и дном стакана заполнены бетоном на мелком гравии.
Ленточный фундамент предприятия сборный из бетонных и
железобетонных блоков. Основные стеновые фундаментные блоки имеют типовые
единые размеры: длину 2400 мм, высоту 600 мм и ширину 300.600 мм. Кроме
основных блоков применяют доборные длиной 800 мм. Их используют для обеспечения
перевозки вертикальных швов фундамента. Поскольку блоки работают только на
сжатие, то они изготовлены без арматуры.
Предприятие сооружено по схеме с жесткими узлами. Каркас
состоит из колонн, соединенных жестко с балками междуэтажных перекрытий и
покрытий. В совокупности они образуют поперечную многоярусную раму, жестко
заземленную в фундаментах. В продольном направлении поперечные рамы связывают
настилом перекрытий, образующих жесткие диафрагмы. Колонны устанавливают в
стаканы фундаментов, верх которых располагается на отметке минус 0,15 м.
Цокольные стеновые панели опираются на фундаментные балки, уложенные на
бетонные столбики фундаментов. Для оборудования здания приняты типовые
железобетонные колонны. Сечение железобетонных колонн прямоугольное 400х400 мм.
Стык колонн закреплен при помощи электросварки стыковых накладок из арматурной
стали с последующей зачеканнкой его раствором.
Для пролета 18м использованы стропильные балки прямоугольного
сечения. Плиты перекрытия установлены с пустотами. Плиты имеют ширину 3 м.
Высота плит 220 мм. Изготовлены плиты из бетона марок 200-500 с арматурой.
Настилы покрытий устроены из ребристых железобетонных плит, которые уложены на
верхний пояс строительных конструкций и приварены к нему. Стыки между плитами
заколочены цементным раствором или бетоном. Настил работает как единая жесткая
диафрагма, воспринимающая горизонтальные и вертикальные нагрузки.
Стены ХК "Мебель Черноземья" являются навесными.
Они выполняют в основном ограждающие функции: масса их полностью передается на
колонны каркаса за исключение нижнего поддонного яруса, опирающегося на
фундаментные балки. Вид стен соответствует современным
архитектурно-строительным требования. Стены выполнены из утепленных панелей.
Покрытие производственного здания выполнено бесчердачным. Оно
состоит из несущих и ограждающих конструкций. Несущие конструкции покрытия
устроены в виде балок, которые поддерживают ограждающую часть, предавая ей
уклон, соответствующий материалу кровли. Ограждающая часть покрытий защищает
помещение от атмосферных воздействий и вместе с несущими конструкциями
обеспечивает зданию пространственную жесткость. В состав ограждающей части
покрытия входят плиты настилы, паро - и теплоизоляция, выравнивающий и
гидроизоляционных слой. Для устройства пароизоляции использованы рулонные
гидроизоляционные материалы: рубироид, гидроизол, толь. Теплоизоляционный слой
выполняют из пористых материалов плотностью 50-500 кг/м3; пена и газобетона,
керамзитобетона, газо- и пеносиликата, пеностекла, пенополистирола.
Выравнивающий слой или стяжка служат основание под рулонную кровлю. Она сделана
из цементного раствора марок 50-100. Цементные стяжки покрыты холодной битумной
грунтовкой для прочности и лучшего сцепления с наклеиваемым рулонным ковром.
Кровля здания устроена из рулонного материала, склеенного в единый ковер.
Основными конструктивными элементами пола являются покрытие,
подстилающий слой, прослойка, стяжка, гидроизоляция и теплоизоляция. Покрытие -
это верхний элемент пола, непосредственно воспринимающий все эксплуатационные
воздействия. Толщина покрытия пола назначена с учетом характера воздействия и
величины нагрузок на пол, применяемых материалов и свойств грунта основания.
Подстилающий слой служит для распределения нагрузки на основание. Прослойка -
промежуточный слой, связывающий покрытие с нижележащим элементом. В качестве
прослойки использованы цементно-песчаный раствор (толщина слоя 10-15 мм, жидкое
стекло 10-25 мм, связующие мастики 1-3 мм и песок 10-15 мм). Гидроизоляция -
устраиваемая по подстилающему слою, состоит из ковра рулонного материала в 2-5
слоев с обмазкой соответствующей мастикой.
Звукоизоляционные слои укладывают по плитам междуэтажных
перекрытий из минераловатных и стекловолокнистых матов. Так как слой
звукоизоляции имеет небольшую прочность, поверх его сделана прочная стяжка из
цементного раствора толщиной 40 мм.
Размеры проездов и проходов в здании комбината определены для
обеспечения удобного обслуживания оборудования и транспортирования сырья и
готовой продукции. Основным требованием к расположению проходов и их размерам
является возможность быстрой и безопасной эвакуации работающих при
возникновении пожара или других аварийных ситуаций. Ширина и высота проездов
обеспечивают беспрепятственное движение внутрицеховых транспортных средств с
учетом их габаритов и проходов людей.
Лестницы в здании размещены так, что обеспечивают более
короткие и удобные переходы между этажами и организованную эвакуацию людей во
время пожара. Лестницы смонтированы из типовых железобетонных цельных
лестничных маршей и площадок, пожарные лестницы установлены открытыми снаружи
здания.
Внутренние стены здания отгораживают те помещения, в которых
происходят иные технологические процессы, чем в основном производстве. Такие
стены выложены из кирпича. Они располагаются по координационным осям, что
упрощает их увязку с каркасом здания. Толщина внутренних кирпичных стен принята
в полтора кирпича.
2.4 Описание
существующих технологических процессов и их анализ
ОАО ХК "Мебель Черноземья" специализируется на
производстве корпусной и мягкой мебели и имеет следующие производства:
производство мебельного щита и корпусной мебели;
производство мебели из натуральной древесины;
производство мягкой мебели;
ремонтно-механический цех;
транспортный цех;
паросиловое хозяйство.
Производство мебельного щита и корпусной мебели включает в
себя:
цех по изготовлению мебельного щита, состоящий из участков
раскроя и колибрования мебельных деталей; набора и раскроя облицовок из
рулонных плёнок и натурального шпона; облицовывание пластей мебельных деталей;
повторной механической обработки;
сборочно-отделочный цех, состоящий из участка сборки
корпусной мебели и участка отделки.
Производство мебели из натуральной древесины состоит из
следующих цехов:
сушильно-заготовительный;
сборочно-отделочный;
участок изготовления кухни;
участок раскроя гофрокартона.
Сушильно-заготовительный цех состоит из участков:
изготовления мебельного щита, раскроя, склейки, изготовления обеденной группы,
изготовления фасадов.
На участке изготовления мебельного щита производится раскрой
ДСП, МДФ облицованных пленкой, обработка кромок, присадка.
Готовые детали подаются на участок изготовления кухни, где
производится комплектация изделий и упаковка в пакеты из гофрокартона в
разобранном виде.
На участке раскроя, склейки, изготовления фасадов предусмотрен
раскрой, механическая обработка, шлифование брусковых деталей, фасадов
корпусной мебели и производство фасадов, облицованных ПВХ.
На участке раскроя гофрокартона производится раскрой
гофрокартона на заготовки для изготовления упаковки.
2.5 Анализ
существующих технико-экономических показателей
Предприятие "Мебель Черноземья" предлагает широкий
выбор корпусной мебели для общей комнаты (Наполи, Новелла, Луиза, Сильвер,
Натурель). Особое внимание уделяется качеству и надежности каждой детали. Все
материалы проходят тщательную проверку и имеют гигиенические сертификаты, а
фурнитуру закупают у ведущих мировых производителей. Большая часть работ
выполняется в ручную, что делает каждую модель великолепным образцом мебельного
искусства. Многие из представленных изделий являются обладателями престижных
наград и дипломов крупных российских и международных выставок.
Представлена широкая палитра стилевых решений кухонь: от
классики до модерна. Используемые в производстве материала отличаются высоким
качеством и повышенной устойчивостью к механическому и тепловому воздействию.
Фурнитуру закупают у зарубежных производителей (Италия, Германия), более 400
различных моделей и 15 видов отделочных материалов, различных по цвету и
фактуре. Кухонные уголки (Алекс) изготовляют из массива дуба, бука, МДФ,
облицованных пленкой цвета "Пегас".
Также выпускается широкий выбор спален (Новелла, Камелия,
Лаура, Наполи, Орхидея, Сильвер, Люксор) и столовых наборов.
Холдинговая компания "Мебель Черноземья" - активный
участник и дипломант всех наиболее престижных мебельных выставок международного
класса. Высокое качество продукции, оригинальные дизайнерские решения принесли
компании более 50 престижных наград.
В перспективах: расширение торговой сети в других регионах
России, выход на рынки стран СНГ, дальнейшее обновление ассортимента
выпускаемой продукции, модернизация производства мягкой мебели.
2.6 Анализ
состояния безопасности и жизнедеятельности
2.6.1
Безопасность жизнедеятельности в процессе производства
2.6.1.1
Характеристика и анализ состояния производственного травматизма и
профессиональных заболеваний на предприятии
Оценивая состояние охраны труда необходимо использовать
следующие относительные показатели производственного травматизма:
Показатель частоты травматизма
(1)
где H - число несчастных случаев за период,- среднесписочное число
работающих.
Показатель тяжести травматизма
(2)
где Д - общее число дней нетрудоспособности по всем несчастным случаям.
Показатель нетрудоспособности
(3)
Таблица 4 - Анализ состояния производственного травматизма
|
Наименование
показателей
|
2006г.
|
2007г.
|
2008 г.
|
2009г.
|
2010 г.
|
|
Среднегодовое
число работающих, чел.
|
1672
|
1681
|
1686
|
1678
|
1685
|
|
Число
несчастных случаев
|
5
|
6
|
4
|
5
|
4
|
|
Число дней
нетрудоспособности
|
104
|
140
|
266
|
120
|
105
|
|
Показатель
частоты травматизма
|
2,9
|
3,6
|
2,4
|
2,9
|
2,37
|
|
Показатель
тяжести травматизма
|
20,8
|
23,3
|
66,5
|
24
|
75,25
|
|
Показатель
нетрудоспособности
|
62,2
|
83,3
|
157,8
|
71,5
|
3,01
|
|
Сумма выплат по
больничным листам, тыс. руб.
|
44,4
|
80,6
|
82,8
|
74,3
|
55,1
|
Исходя из полученных показателей производственного
травматизма, можно сделать вывод о том, что на предприятии не наблюдается
тенденция снижения травматизма в процессе производства и в целом поддерживается
на усредненном уровне. Это означает, что проведение запланированных мероприятий
по улучшению условий труда, санитарно-бытовому обслуживанию рабочих, а также
проведение инструктажей по охране труда дают незначительный эффект для
минимального снижения травматизма.
Анализ производственного травматизма показывает, что основной
причиной несчастных случаев является нарушение пострадавшими инструкций по
охране труда - около 55%, слабый контроль за безопасным производством со стороны
непосредственных руководителей работ - около 35%, неприменение или отсутствие
приспособлений (шаблоны), обеспечивающих безопасность технологических операций
- 10%, также всеобъемлющим фактором является невнимательность.
Профзаболеваний среди работников коллектива не было.
2.6.1.2
Выполнение планируемых мероприятий по охране труда
Мероприятия разрабатываются с учётом произведённой аттестации
рабочих мест по условиям труда, а также предписаний органов Государственного
надзора и данных лабораторных замеров уровней запылённости, загазованности,
шума, освещённости, температуры и т.д. Мероприятия по улучшению условий труда
работающих включают в себя работы по реконструкции вентиляционных систем,
освещения, модернизации оборудования, механизации погрузочно-разгрузочных
работ. Все работающие обязательно обеспечиваются средствами индивидуальной
защиты: спецодеждой, спецобувью, респираторами, противошумовыми наушниками,
перчатками, кремами для рук и т.п.
Также проводятся все виды инструктажей, которые регистрируются
в журналах, имеющихся в каждом подразделении. Ежегодно проводится обучение по
охране труда по 10-ти часовой программе с работниками согласно перечня работ,
утверждённого генеральным директором.
Широко используются на предприятии для стимулирования работы
по охране труда меры дисциплинарного воздействия. Итоги работы по охране труда
в подразделениях подводятся один раз в месяц, с выставлением оценок в
соответствии с утверждёнными по охране труда и культуре производства.
Служба охраны труда на ОАО ХК "Мебель Черноземья"
представлена инженером по охране труда и охране окружающей среды, который
подчиняется главному инженеру.
Оздоровительные мероприятия ОАО ХК "Мебель
Черноземья" представлены в таблице.
Таблица 5 - Оздоровительные мероприятия
|
Наименование
мероприятия
|
Срок исполнения
|
|
Проверка цехов
на санитарное состояние
|
1 раз в месяц
|
|
Медицинские
осмотры рабочих, занятых на работах с вредными условиями
|
1 раз в год
|
|
Флюорографическое
обследование работающих
|
1 раз в год
|
2.6.1.3
Анализ производственных опасностей и вредностей
Менее опасными являются станки и линии, работающие в
автоматическом режиме, т.к. основной функцией рабочего здесь является
управление процессом и своевременное обеспечение подачи заготовок. Но полностью
безопасным это оборудование считать нельзя, т.к. оно является сложным по
конструкции. Задачей оператора является слежение за выполнением заданных
режимов работы. В случае нарушения режима необходимо немедленно прекратить
работу. Кроме обрабатывающего оборудования в цехе есть рельсовый путь, по
которому осуществляется перемещение заготовок на рельсовых тележках, а также
роликовые конвейеры. Причиной травмы может стать невнимательное отношение при
перемещении по цеху, или завал стопы щитов при сдвиге.
Также на организм человека воздействует ряд вредных факторов:
повышенная запылённость воздушной среды, в особенности на участке шлифования
деталей: шум, преимущественно от фрезерного оборудования на участке
механической обработки деталей, а также опасность поражения электрическим
током. Поэтому необходимо исключить влияние всех факторов на здоровье
работающих.
Пыль, образующаяся при обрезке, фрезеровании заготовок
является фактором возникновения возможных профессиональных заболеваний. Поэтому
необходимо не только обязательное наличие ПТУ на местах выделения пыли, но и
индивидуальные защитные средства у рабочих, такие как респираторы.
Оборудование цеха является источником повышенного шумового
фона, что может привести к возникновению такого заболевания, как глухота.
Защитными средствами являются специальные наушники, снижающие уровень шума.
Такие факторы, как освещённость, температура, влажность
воздуха соответствуют предельно допустимым нормам.
За последние годы большое внимание уделяется механизации и
автоматизации производственных процессов, которые осуществляются в соответствии
с планами организационно-технических мероприятий.
Обновление производственного оборудования, внедрение
прогрессивной технологии и материалов позволяют не только повысить
конкурентоспособность продукции, качества, а также облегчить труд работающих,
сделать его более привлекательным. За 2006-2010 год обновлено более 65 %
оборудования, уровень механизации и автоматизации составляет 81,5%.
На эксплуатационном оборудовании установлены оградительные,
заземляющие, блокировочные, тормозные устройства, обеспечивающие безопасность
работ. Кроме того, при обработке определённых деталей применяются шаблоны,
толкатели и другие приспособления, исключающие травмирование работников. Также
все работающие обеспечиваются средствами индивидуальной защиты. Для полноты
производственного процесса и комфортности работающих предприятие оснащено
системами вентиляции, отопления, водоснабжения, освещения, канализации, а также
вытяжными системами, которые полностью соответствуют санитарным требованиям.
2.6.1.4
Организация надзора по охране труда
Служба охраны труда на ОАО ХК "Мебель Черноземья"
представлена инженером по охране труда и охране окружающей среды, который
подчиняется главному инженеру.
В административном корпусе имеется рабочий кабинет охраны
труда, который по площади не позволяет разместить в нём необходимое
оборудование, наглядные пособия средства обучения и т.п. в кабинете проводится
вводный инструктаж со всеми вновь поступившими работниками по утверждённой
программе. Первичный инструктаж проводится уже, непосредственно, на рабочем
месте руководителем работ. Также ежеквартально проводится повторно инструктаж
со всеми работниками подразделений. Предусмотрены внеплановый и целевой
инструктажи. Руководители, главные специалисты, ИТР проходят обучение и
аттестацию 1 раз в три года.
2.6.2 Охрана
окружающей среды
2.6.2.1
Характеристика вредных пыле - и газовых выбросов в атмосферу при действующем на
предприятии технологическом процессе
Согласно СаНПиН 2.21. /2.1.1.1200-03 по санитарной классификации
ХК "Мебель Черноземья" относится к 5 классу предприятий по обработке
древесины с нормативной границей санитарно-защитной зоны. До ближайшего жилья
90-100 м. промплощадка граничит на востоке - с железной дорогой, на юге - с
гаражным кооперативом, на западе - с городскими застройками, на севере - с
территорией завода им. Тельмана.
На предприятии ежегодно проводится обследование видов
отходов, образующихся на предприятии, его структурных подразделениях,
источников отходов, рассчитываются нормативы образования отходов, проводится
оценка воздействия на окружающую среду, определяются мероприятия, направленные
на снижение количества образования отходов и степени их опасности.
Сравнения количества выбросов вредных веществ в атмосферу на
ОАО ХК "Мебель Черноземья" было проведено в 2011 году. Отмечена
динамика выбросов, общее количество выбросов уменьшилось за счёт снижения
выбросов диоксида азота, диоксида серы, бутилового спирта, бензина, древесной
пыли, ксилола, стирола, этилацетата, но увеличилось количество выбросов оксида
железа, марганца, свинца, аммиака, оксида азота, серной кислоты, сажи, оксида
углерода, фторидов газообразных, толуола, этилцеллозольва, бутилацетата,
винилацетата, формадегида, ацетона, керосина, минеральных масел, эмульсона,
взвешенных веществ, абразивной пыли, металлической пыли.
Таблица 6 - Предельно допустимые выбросы предприятия
|
Вещество
|
Источники
|
ПДВ по
предприятию, г/сек
|
ПДВ по
предприятию, т/год
|
Год ПДВ
|
|
1
|
2
|
3
|
4
|
5
|
|
Оксид железа
|
Ремонтно-механич.
цех
|
0,0071420
|
0,0033486
|
2001
|
|
Марганец и его
соединения
|
РМЦ
|
0,0005003
|
0,0012172
|
2001
|
|
Свинец и его
соединения
|
Гараж, открытая
стоянка автотранспорта
|
0,0001155
|
0,0001142
|
2001
|
|
Диоксид азота
|
РМЦ, котельная,
гараж, открытая стоянка автотранспорта
|
0,4723001
|
3,04839054
|
2001
|
|
Аммиак
|
Цех №1 (раскрой
листовых материалов), сушильно-заготовительный цех
|
0,0249080
|
0,264918
|
2001
|
|
Оксид азота
|
Котельная,
открытая стоянка автотр. гараж
|
0,0766427
|
0,566096
|
2001
|
|
Серная кислота
|
СЗЦ
|
0,0000570
|
0,0000143
|
2001
|
|
Сажа
|
Гараж, открытая
стоянка автотранспорта, РМЦ
|
0,0038341
|
0,0011547
|
2001
|
|
Диоксид серы
|
Гараж, открытая
стоянка автотраспорта
|
0,0013030
|
0,0012650
|
2001
|
|
Оксид углерода
|
Гараж, открытая
стоянка автотран. РМЦ котельная
|
2,01234338
|
13,6131438
|
2001
|
|
Фториды
газообразные
|
РМЦ
|
0,0001108
|
0,00280
|
2001
|
|
Толуол
|
Сборочно-отделочный
цех, цех корпусной мебели
|
33,0798194
|
13,4229530
|
2002
|
|
Бутиловый спирт
|
СОЦ, цех
корпусной мебели
|
0,6351320
|
3,9828443
|
2002
|
|
Этиловый спирт
|
СОЦ, цех
корпусной мебели
|
0,4646254
|
2,0655235
|
2002
|
|
Бутилацетат
|
СОЦ, цех
корпусной мебели
|
2,1544635
|
18,6423250
|
2002
|
|
Винилацетат
|
Цех №1, цех
корпусной мебели, СЗЦ
|
0,0276445
|
0,1630000
|
2001
|
|
Формальдегид
|
Цех №1, СЗЦ
|
0,0529972
|
0,5423993
|
2001
|
|
Ацетон
|
СОЦ, цех
корпусной мебели
|
5,0633596
|
10,8993225
|
2002
|
|
Бензин
|
Открытая
стоянка автотранспорта, гараж
|
0,0531995
|
0,0434170
|
2001
|
|
Масло
минеральное нефтяное
|
РМЦ, гараж
|
0,0027797
|
0,0002516
|
2001
|
|
Эмульсон
|
РМЦ
|
0,0001552
|
0,0002506
|
2001
|
|
Взвешенные
вещества
|
СОЦ, цех
корпусной мебели, СЗЦ
|
0,0406459
|
0,4039613
|
2001
|
|
Абразивная пыль
|
СЗЦ, РМЦ,
ремонтно-строительный цех
|
0,0289610
|
0,0581300
|
2002
|
|
Металлическая
пыль
|
СЗЦ, РМЦ, РСЦ
|
0,0398946
|
0,0550228
|
2002
|
|
Древесная пыль
|
СОЦ, цех
корпусной мебели, РМЦ, СЗЦ
|
0,6256077
|
4,9888292
|
2001
|
|
Всего веществ В
т. ч. Твёрдых Жидких и газообразных
|
15,3340482
0,7429377 14,5911105
|
76,9946453
5,5512229 71,4434224
|
|
Таблица 7 - Мероприятия для достижения уровня ПДВ
|
Мероприятия
|
Цех
|
Вещества
|
|
Установка
рукавных фильтров
|
Цех корпусной
мебели, СЗЦ, РСЦ
|
Древесная пыль,
винилацетат, толуол, формальдегид, аммиак, взвешенные вещества, металлическая
пыль, абразивная пыль.
|
|
Установка
местного пылеуловителя ЗИЛ
|
РМЦ
|
Металлическая
пыль, абразивная пыль, эмульсон, оксид железа, марганец и его соединения,
фториды газообразные.
|
|
Организация
источников выбросов
|
РСЦ
|
Древесная пыль.
|
|
Увеличение
высоты организованного фанельного выброса
|
СОЦ, цех
корпусной мебели
|
Бутилацетат,
ацетон, толуол, бутиловый спирт, этиловый спирт.
|
|
Газовая обвязка
|
Временное
хранение отходов
|
Ацетат,
бутилацетат, бутиловый спирт, толуол, этиловый спирт.
|
2.6.2.2
Характеристика схем водоснабжения предприятия, очистных сооружений
На предприятии "Мебель Черноземья" прямоточная
система водоснабжения, забор воды идёт непосредственно из городской сети. Также
на территории предприятия имеется собственная артезианская скважина глубиной 80
м, которая вырабатывает 7 м³ воды в час. Вода
используется на хозяйственно-питьевые потребности рабочих, на производственные
и технологические нужды, на пожаротушения и благоустройство предприятия.
Канализация на предприятии существует только в бытовых
помещениях, при этом в системе имеются очистные сооружения, эффективность
которых составляет 90%.
Характеристика сточных вод, анализ содержания в них вредных
веществ, а также мероприятия по их очистке и применяемых очистных сооружениях
представлены виде таблицы 8.
Таблица 8 - Анализ очистных сооружений и методов очистки
|
Наименов.
сооружений
|
Мощность
выброса, м³/год,
т/год
|
Проектируемая
эффективность очистных сооружений, %
|
Периодичность
замены (промывки фильтров)
|
Метод очистки
|
Характеристика
образующихся отходов
|
Возможность
утилизации
|
Метод
утилизации
|
Место вывоза
|
|
|
|
|
|
Наименование
|
Количество тонн
|
Физико-химический
состав
|
Класс опасности
|
|
|
|
|
Гидро-фильтр
|
33,321
|
90
|
Очистка 1 раз в
месяц
|
Мокрый,
физический
|
Шлам гидро-
фильтров
|
33,32
|
Бутил ацетат,
этил ацетат
|
3
|
-
|
Хранение на
территории предприятия до решения вопроса об утилизации.
|
|
|
Рукавные
фильтры
|
1,082
|
99,9
|
Замена 230
рукавов в год
|
Сухой,
физический
|
Обработанные
полотна камерно-рукавных фильтров
|
1,082
|
Фильтро-вальная
ткань
|
4
|
Захоронение
|
Захоронение
|
Полигон ТБО
|
2.6.2.3
Характеристика твёрдых отходов предприятия
Основную часть отходов предприятия составляют твёрдые отходы,
характеристика и способы утилизации которых отражены в таблице 9.
Таблица 9 - Анализ переработки твёрдых отходов предприятия
|
Наименование и
характеристика отходов
|
Класс опас
ности
|
Источники
|
Место хранения
|
Место вывоза
|
|
1
|
2
|
3
|
4
|
5
|
|
Обрезки ДВП,
ДСтП, фанеры
|
4
|
Сборочно-отделочный
цех, цех корпусной мебели
|
Металлические
контейнеры для временного хранения
|
Полигон ТБО
|
|
Кусковые отходы
синтетических облицовочных материалов
|
4
|
Участок раскроя
листовых материалов, сушильно-заготовительный цех
|
Металлические
контейнеры для временного хранения
|
Полигон ТБО
|
|
Опилки, стружка
|
5
|
СЗЦ, СОЦ
|
Циклоны ОЭКМД
№24 УЦ
|
Полигон ТБО,
колхозы, совхозы
|
|
Обрезки
гофронаргона
|
5
|
Участок
изготовления кухни
|
Металлические
контейнеры для временного хранения
|
ОАО
"Воронеж вторма"
|
|
Отходы стекла и
зерна
|
СОЦ
|
Металлические
контейнеры для временного хранения
|
ОАО
"Воронеж вторма"
|
|
Абразивно-металлическая
пыль, метал. стружка
|
5
|
РМЦ
|
Металлические
контейнеры для временного хранения
|
Полигон ТБО
|
|
Отходы смолы
КФЖ
|
3
|
Участок
облицовывания щита
|
Отстойники
|
Металлические
ёмкости на площадках для временного хранения
|
|
Шлам
гидрофильтров
|
3
|
СОЦ
|
Специальные
бочки
|
Хранится на
территории предприятия
|
|
Тара от
лакокрасочных материалов
|
3
|
СОЦ
|
Временное
хранение на территории предприятия
|
Возврат
поставщику
|
|
Опилки,
загрязнённые нефтепродуктами
|
3
|
Территория
всего предприятия
|
Металлические
контейнеры на территории предприятия
|
МУП
"Производст венное объединение по обращению с отходами"
|
|
Промасленные
фильтры
|
3
|
Гараж
|
Металлическая
ёмкость с крышкой на асфальтирован ной площадке
|
МУП
"Производст венное объединение по обращению с отходами"
|
|
Отработанные
масла
|
3
|
Гараж,
производственные цеха
|
Металлическая
ёмкость с крышкой на асфальтирован ной площадке
|
Воронежская
нефтебаза
|
|
Ветошь,
пропитанная красителями
|
3
|
СОЦ
|
Место на
площадке хранения отходов
|
МУП
"Производст венное объединение по обращению с отходами"
|
|
Промасленная
ветошь
|
3
|
Гараж,
прозводственные цеха
|
Металлическая
тара в гаражных боксах
|
МУП
"Производст венное объединение по обращению с отходами"
|
|
Люминисцентные
лампы
|
1
|
Территория
всего предприятия
|
Металлические
контейнеры в отдельном помещении
|
ООО
"ЭВО"
|
|
Отходы
спецодежды и спецобуви
|
5
|
Территория
всего предприятия
|
Используется
как ветошь
|
-
|
|
Промышленный
смет
|
4
|
Территория
всего предприятия
|
Металлический
контейнер
|
Полигон ТБО
|
|
Бытовой мусор
|
4
|
Служебные и
бытовые помещения
|
Металлический
контейнер
|
Полигон ТБО
|
На территории предприятия предусмотрена площадка для временного
хранения токсичных отходов. Она расположена за сборочно-отделочным цехом, и
имеет размеры 9х12 м. Над площадкой предусматривается навес тех же размеров,
высота до низа конструкций покрытия 3м. Фундаменты навеса - монолитные,
бетонные; стойки карниза - стальные из прокатных профилей; стеновое ограждение
- арматурная сетка из стержней диаметром 20 мм; кровля - волнистые
асбестоцементные листы; полы - асфальтобетонные с уклоном. По периметру
площадки - бордюр для предотвращения поверхностного стока с площадки в общий
ливнесток.
Осадки смолы и лака собираются на рабочих местах в
металлические бочки с крышками и транспортируются на эту площадку, где
складываются на стеллажах. Каждая бочка должна иметь бирки с наименованием
отходов.
На предприятии ежегодно проводится обследование видов
отходов, образующихся на предприятии, его структурных подразделениях,
источников отходов, рассчитываются нормативы образования отходов, проводится
оценка воздействия на окружающую среду, определяются мероприятия, направленные
на снижение количества образования отходов и степени их опасности.
2.6.3
Готовность к защите работающих и материальных ценностей в чрезвычайных
ситуациях
На самом предприятии и в районе его расположения чрезвычайных
ситуаций не было.
2.6.3.1
Анализ состояния пожарной безопасности предприятия
Крупных пожаров с тяжёлыми последствиями для материальных
ценностей и людей ХК "Мебель Черноземья" не возникало. Были
зафиксированы незначительные возгорания мусорных контейнеров в летнее время.
Все производственные помещения соответствуют требованиям пожарной безопасности.
На каждом участке в наличии имеются пожарные краны, огнетушители ОП, ОВП, ОУ,
пожарные рукава. В цехах установлена сплинкерная система пожаротушения.
ХК "Мебель Черноземья" - это комплекс зданий и сооружений,
относящихся к разным классам по пожарной опасности. Реконструируемый участок
цеха повторной механической обработки согласно СНиП - 2.01.02-85* относится к
классу пожароопасности П-II, категория-В.
2.6.3.2
Анализ планов предприятия на мирное и военное время по подготовке к действиям в
условиях чрезвычайных ситуаций
В случае возникновения чрезвычайной ситуации предприятие
располагает защитным сооружением вместимостью 600 человек. По прочности оно
относится к сооружениям II. Данное убежище обеспечено подстанцией мощностью 55
кВТ, и может работать в автономном режиме. Там имеется запас питьевой воды на
5-7 суток и воды для пожаротушения ёмкостью 4м³. вход в убежище имеет
вид шахтного колодца и закрывается двумя бронированными дверями. Внутри имеются
следующие средства: огнетушители, пожарные краны, противогазы ГП-5,
химически-защитный комплект, респираторы Р-2, индивидуальный противохимический
пакет ИПП-8, индивидуальная аптечка А4-2.
На предприятии существуют формирование гражданской обороны,
которые в случае чрезвычайной ситуации обеспечат своевременное оповещение,
связь и управление, что может значительно снизить человеческие жертвы.
При возникновении чрезвычайной ситуации работники ХК
"Мебель Черноземья" эвакуируются по заранее установленному маршруту.
Оповещение об эвакуации производится по громкоговорящей
связи, телефону; вне работы - по телевидению, радио, телефону и т.д.
Пешим порядком эвакуируются работники комбината и их семьи -
70%. Через 7 часов после объявления об эвакуации они самостоятельно прибывают
во двор комбината, регистрируются и через 8 ч 15 мин. Общей колонной
отправляются к месту эвакуации. С ж/д транспортом отправляются 30 % работников.
Через 12 часов после объявления об эвакуации они самостоятельно пребывают во
двор комбината, регистрируются и через 13 ч 30 мин. Садятся в эшелон и
отправляются до станции Верхняя-Хава. Местом эвакуации предусмотрена деревня
Марьевка Верхне-Хавского района.
3.
Экономическое обоснование необходимости освоения новой продукции
3.1 Расчёт
мощностей производственных участков и выявление "узких мест"
Производительность станков (заготовок/час) проходного и
полупроходного типов может быть определена по формуле
, (4)
где U - скорость подачи, м/мин. Принимается по паспортным
данным станка с учётом требуемого качества обработки и усилий резания. Скорость
ручной подачи, как правило, не превышает 8-10 м/мин;
Км - коэффициент использования машинного времени;
Кс - коэффициент скольжения заготовок при вальцевой
подаче
Кс = 0,9-0,92;
п - число одновременно обрабатываемых заготовок, т.е.
количество деталей в закладке, или кратность. Принимается из технологических
соображений с учётом технологических возможностей станка;
l - величина перемещения заготовки или закладки
непосредственно при обработке, м. При сквозной проходной обработке l принимается
равной длине заготовки или детали. При криволинейном или несквозном
фрезеровании или пилении l принимается равной длине участка фрезерования
или пропила. Для станков с кареткой или подвижным столом типа универсальных
круглопильных, фрезерно-шипорезных, ящичных шипорезных l принимается
равной длине хода каретки или стола. При подаче цепями с упорами для станков
типа рамных шипорезных, концеравнительных величина l принимается равной
расстоянию между упорами цепи;
m - среднее число проходов;
К - коэффициент использования рабочего времени
, (5)
где Тсм - время смены, Тсм =480 мин.;
Т рег -
регламентированные затраты времени (мин) на отдых, переналадку, подготовку к
работе, уборку [21].
Участок вторичной обработки.
Калибровально-шлифовальный станок Optimat STO 111/C:
Многооперационный центр Rover 22:
Кромкооблицовочный станок IMA Novimat:
"Узкими местами" в данном цехе являются, участок
калибрования, фрезерования и кромкооблицовывания деталей.
3.2 Выводы о
целесообразности освоения новой продукции и постановка задач
Из приведенных ранее расчётов, их анализа и данных о
предприятии можно сделать вывод, что при существующих уровнях строительных
конструкций и сооружений, обеспеченности энергоносителями, основными и
вспомогательными материалами, рабочей силой, при непрерывном росте и развитии
предприятия, для обеспечения массового выпуска мебельных изделий, которые будут
соответствовать требованиям ГОСТ, являться конкурентоспособными и пользоваться
спросом, предприятие нуждается в новой планировке цеха по изготовлению наборов
гостиной мебели.
Задача состоит в расширении ассортимента продукции, с целью
предоставления клиентам, покупающим квартиры, более широкого спектра услуг,
таких как сдача квартир под ключ, обставленных высококачественной мебелью.
Имеющееся деревообрабатывающее оборудование не устарело, однако требуется
замена некоторых станков. Возникает ещё одна задача - выбор
узкоспециализированного высокопроизводительного технологического оборудования
для производства качественной мебели. Также, задачами, возникающими при
разработке проекта реконструкции цеха, являются расчёт систем пневмотранспорта
и экономическое обоснование предлагаемых проектных решений.
3.3 Основные
проектные решения и их обоснования
С целью расширения ассортимента продукции предлагается к
выпуску набор мебели для гостиной. Для этого предлагается вариант конструкций,
разработаны чертежи общего вида и деталей изделия. И разработан вариант
интерьера, реально существующей комнаты под гостиную, который представлен в
виде фронтальной перспективы выполненной в цвете. Предлагаемое изделие
соответствует по уровню качества квартирам, в которые предполагается их
поставка. Для решения задач, возникающих при разработке планировки цеха по
изготовлению мебели для гостиной, необходимо сделать следующее:
обеспечить цех системой удаления отходов;
приобрести современное узкоспециализированное оборудование
для производства мебели;
разработать чётко выделенный технологический процесс,
рассчитать количество необходимого оборудования на программу и его
производительность;
рассчитать потребное количество и типоразмеры режущего
инструмент, и оборудование для его заточки;
разработать и обеспечить соблюдение основных положений
безопасности жизнедеятельности.
4.
Технологическая часть
4.1
Применяемые материалы и их характеристика
В качестве исходного сырья в производстве используются:
ламинированная древесностружечная плита ЛДСтП по ТУ
5534-005-44779728-2002. Толщина 16 мм, формат 3500×1750 мм. Марка П-А.
Поверхность: гладкая или с тиснением. Тиснение: шагрень или поры дерева;
плита древесноволокнистая средней плотности МДФ по ТУ
5536-026-00273643-98. Толщина 16 мм, формат 2440х1830 мм. Класс Е 1;
плита древесноволокнистая по ГОСТ 4598 "Плиты
древесноволокнистые. Технические условия". Размеры 2800х2090 мм;
клей-расплав марки НD-6880 концерна Forbo.
Высокотемпературный наполненный клей-расплав, специально разработанный для
автоматических кромкооблицовочных станков. Характеризуется высоким уровнем
адгезии и схватываемостью при низких температурах. Свойства: основа - EVA;
плотность - 1,29 г/см3; цвет - слоновая кость; вид - твердые мелкие
гранулы; температура размягчения - 100-112 0C; время нахождения на
воздухе - средне-короткое.
Эксплуатационные характеристики:
Температура кромочного и несущего материалов 17-20 0C
Скорость подачи заготовки 10-30 м/мин
Рабочая температура 190-210 0C
Температура клеенаносящего валика 195-220 0C
Расход (в зависимости от типа материала) 180-280 г/м2
материал кромочный ПВХ компании REHAU толщиной 0,3 ширина 22
мм;
пленка на основе бумаги, пропитанная меламиноформальдегидной
смолой. Марка ТР. А1. Г.9. Поверхность без дефектов, глянцевая, с высокими
защитными свойствами;
смола КФЖ марки Йоват 950.50 фирмы Jowat (ГОСТ 14231-88).
Малосодержащий формальдегид порошкообразный клей с введенным отвердителем и
точно дозированными органическими загустителями. Свойства: внешний вид -
однородная непрозрачная суспензия от белого до светло-желтого цвета, без
посторонних примесей; массовая доля сухого остатка, - 67 ± 2%; массовая доля
свободного формальдегида, - не более 0,9 %; вязкость условная по В3-246 при (20
± 0,5оС), сопло 6 мм, - 35 - 50 с; концентрация водородных ионов
(рН) 7,5 - 8,7; время желатинизации при 100оС с 1% хлористого
аммония, - 40 - 65с.
4.2 Расчет
норм расхода сырья и материалов на единицу продукции
Основной задачей нормирования расхода лесных, клеевых,
тканевых и других материалов является разработка и внедрение
научно-обоснованных норм расхода в целях наиболее рационального и эффективного
использования материалов.
Расчёт индивидуальных норм расхода материалов выполняют на
основании следующей технической документации:
конструкторских чертежей;
технических описаний мебельной продукции;
ГОСТов, ОСТов, ТУ на сырьё и материалы;
утверждённых технических режимов и технологических процессов;
утверждённых нормативов удельных норм показателей
использования сырья и материалов.
Перечень деталей и сборочных единиц представлен в таблице 10.
Таблица 10 - Перечень деталей и сборочных единиц
|
№ п/п
|
Наименование
деталей
|
Кол-во
|
Размеры деталей
в чистоте
|
|
|
|
длина, мм
|
ширина, мм
|
толщина, мм
|
|
1
|
Стенка боковая
|
2
|
1248
|
416
|
16
|
|
2
|
Стенка
горизонтальная
|
2
|
1652
|
416
|
16
|
|
3
|
Стенка
вертикальная
|
1
|
1116
|
416
|
16
|
|
4
|
Стенка
горизонтальная внутренняя
|
1
|
1090
|
416
|
16
|
|
5
|
Стенка
горизонтальная внутренняя малая
|
2
|
546
|
416
|
16
|
|
6
|
Перегородка
|
1
|
540
|
416
|
16
|
|
7
|
Полка большая
|
2
|
1086
|
400
|
16
|
|
8
|
Полка малая
|
2
|
533
|
400
|
16
|
|
9
|
Дверь
|
2
|
572
|
560
|
16
|
|
10
|
Дверь средняя
|
1
|
328
|
560
|
16
|
|
11
|
Дверь малая
|
1
|
287
|
560
|
16
|
|
12
|
Ящик
|
2
|
|
|
|
|
12.1
|
Стенка ящика
накладная
|
2
|
120
|
560
|
16
|
|
12.2
|
Боковина ящика
|
4
|
сталь
|
|
|
|
12.3
|
Задняя стенка
ящика
|
2
|
алюминий
|
|
|
|
12.4
|
Дно ящика
|
2
|
ПВХ
|
|
|
|
13
|
Стенка задняя
|
1
|
1142
|
1678
|
3
|
|
14
|
Плинтусная
вкладка
|
1
|
1652
|
92
|
16
|
Нормы расхода лесоматериалов на плановую единицу мебельной
продукции устанавливают в следующих единицах измерения:
пиломатериалы, стандартные заготовки, столярные плиты,
фанера, шпон лущеный, древесностружечные плиты в кубических метрах выполняются
с точностью до пятого знака;
древесностружечные плиты, древесноволокнистые плиты, МДФ,
шпон строганный и синтетический шпон в квадратных метрах выполняются с точностью
до третьего знака;
рулонный кромочный материал в погонных метрах выполняются с
точностью до второго знака.
При установлении размеров кратных заготовок ширину пропила
принимают равным 4 мм.
Размеры деталей из плитных материалов, используемые без
облицовывания, выпиливаются без припусков на обработку.
Размеры заготовки облицовки кромки по длине определяют, как
сумму длины основы и припуска на механическую обработку 80 мм. Размер заготовки
облицовки кромки по ширине определяют, как сумму ширины основы и припуска на
механическую обработку 80 мм.
Коэффициент, учитывающий процент технологических отходов в
производстве мебели, определяют по формуле:
К
=
, (6)
где П
- утверждённый процент технологических
отходов заготовок, который определяется по справочным данным (таблицы 2.15 -
2.17 [21]); П
= 2% для ЛДСтП, П
= 5% для материала кромочного, П
= 2% для ДВП.
К
= 100/ (100-2.) =1,02;
К
= 100/ (100-5.) =1,05.
Коэффициент, учитывающий утверждённый процент полезного выхода
заготовок из определённых пиломатериалов в производстве мебели, определяется по
формуле:
К
=
, (7)
где П - процент полезного выхода заготовок определяется по
справочным данным и по картам раскроя; (таблицы 2.15 - 2.17 [21]); П = 92 % для
ЛДСтП; П = 85% для материала кромочного; П=90% для МДФ; П=77% для термопленки; П
= 90 % для ДВП.
К
=100/П = 100/85 = 1,18;
К
=100/П = 100/92= 1,09;
К
=100/П = 100/90= 1,11;
К
=100/П = 100/77= 1,30;
К
=100/П = 100/90= 1,11.
Расчёт норм расхода лесоматериалов выполняется в виде таблицы 11.
Всего количество используемого материала:
ламинированная древесностружечная плита, толщина 16 мм - 6,595 м
;
плита древесноволокнистая средней плотности, толщ 16 мм - 1,269 м
;
материал кромочный, ширина 22 мм - 33,54 м/пог;
термореактивная пленка, толщина 0,6 мм - 3,413 м
;
ДВП ламинированная - 2,188 м
.
Таблица 11 - Расчет норм расхода материалов на изготовление
шкафа
|
№ п/п
|
Наименование
детали
|
Количество
|
Материал
|
Размер детали в
чистоте, мм
|
Объем, площадь,
погонаж комплекта одноименных деталей м3, м2, м. пог.
|
Размер
заготовок, мм
|
Стандартный
размер заготовок, мм
|
Объем, площадь,
погонаж комплекта одноименных заготовок м3, м2, м. пог.
|
Коэф. учит-ий
процент технологических отходов КТ.о.
|
Объем, площадь,
погонаж с учетом КТ.о. м3, м2, м. пог
|
Коэф. учит-ий
процент полезного выхода Кп. в.
|
Норма расхода
материала на комплект одноименных деталей м3, м2, м. пог
|
|
|
|
|
Длина
|
Ширина
|
Толщина
|
|
Длина
|
Ширина
|
Толщина
|
|
|
|
|
|
|
|
1
|
2
|
3
|
4
|
5
|
6
|
7
|
8
|
9
|
10
|
11
|
12
|
13
|
14
|
15
|
16
|
17
|
|
1
|
Ст. боковая
|
2
|
сбор. ед.
|
1248
|
416
|
16
|
|
|
|
|
|
|
|
|
|
|
|
-
|
основа
|
2
|
ЛДСтП
|
1248
|
416
|
16
|
1,038
|
1248
|
416
|
16
|
16
|
1,038
|
1,02
|
1,059
|
1,09
|
1,154
|
|
-
|
облиц. кромок
по длине
|
2
|
мат. кром
|
1248
|
16
|
0,3
|
2,50
|
1328
|
22
|
0,3
|
0,3
|
2,66
|
1,05
|
2,79
|
1,18
|
3,29
|
|
-
|
облиц. кромок
по ширине
|
4
|
мат. кром
|
416
|
16
|
1,66
|
496
|
22
|
0,3
|
0,3
|
1,98
|
1,05
|
2,08
|
1,18
|
2,45
|
|
2
|
Ст.
горизонтальная
|
2
|
сбор. ед.
|
1652
|
416
|
16
|
|
|
|
|
|
|
|
|
|
|
|
-
|
основа
|
2
|
ЛДСтП
|
1652
|
416
|
16
|
1,374
|
1652
|
416
|
16
|
16
|
1,374
|
1,02
|
1,401
|
1,09
|
1,527
|
|
-
|
облиц. кромок
по длине
|
2
|
мат. кром
|
1652
|
16
|
0,3
|
3,30
|
1732
|
22
|
0,3
|
0,3
|
3,46
|
1,05
|
3,63
|
1,18
|
4,28
|
|
3
|
Ст.
вертикальная
|
1
|
сбор. ед.
|
1116
|
416
|
16
|
|
|
|
|
|
|
|
|
|
|
|
-
|
основа
|
1
|
ЛДСтП
|
1116
|
416
|
16
|
0,464
|
1116
|
416
|
16
|
16
|
0,464
|
1,02
|
0,473
|
1,09
|
0,516
|
|
-
|
облиц. кромок
по длине
|
1
|
мат. кром
|
1116
|
16
|
0,3
|
1,12
|
1196
|
22
|
0,3
|
0,3
|
1, 20
|
1,05
|
1,26
|
1,18
|
1,49
|
|
4
|
Ст. горизон.
внутр.
|
1
|
сбор. ед.
|
1090
|
416
|
16
|
|
|
|
|
|
|
|
|
|
|
|
-
|
основа
|
|
ЛДСтП
|
1090
|
416
|
16
|
0,453
|
1090
|
416
|
16
|
16
|
0,453
|
1,02
|
0,462
|
1,09
|
0,504
|
|
-
|
облиц. кромок
по длине
|
|
мат. кром
|
1090
|
16
|
0,3
|
1,09
|
1170
|
22
|
0,3
|
0,3
|
1,17
|
1,05
|
1,23
|
1,18
|
1,45
|
|
5
|
Ст. гор. внут.
малая
|
2
|
сбор. ед.
|
1248
|
416
|
16
|
|
|
|
|
|
|
|
|
|
|
|
-
|
основа
|
2
|
ЛДСтП
|
1248
|
416
|
16
|
1,038
|
1248
|
416
|
16
|
16
|
1,038
|
1,02
|
1,059
|
1,09
|
1,154
|
|
-
|
облиц. кромок
по длине
|
2
|
мат. кром
|
1248
|
16
|
0,3
|
2,50
|
1328
|
22
|
0,3
|
0,3
|
2,66
|
1,05
|
2,79
|
1,18
|
3,29
|
|
6
|
Перегородка
|
1
|
сбор. ед.
|
540
|
416
|
16
|
|
|
|
|
|
|
|
|
|
|
|
-
|
основа
|
1
|
ЛДСтП
|
540
|
416
|
16
|
0,225
|
540
|
416
|
16
|
16
|
0,225
|
1,02
|
0,230
|
1,09
|
0,251
|
|
-
|
облиц. кромок
по длине
|
1
|
Мат. кром
|
540
|
16
|
0,3
|
0,54
|
620
|
22
|
0,3
|
0,3
|
0,62
|
1,05
|
0,65
|
1,18
|
0,77
|
|
7
|
Полка большая
|
2
|
сбор. ед.
|
1086
|
400
|
16
|
|
|
|
|
|
|
|
|
|
|
|
-
|
основа
|
2
|
ЛДСтП
|
1086
|
400
|
16
|
0,869
|
1086
|
400
|
16
|
16
|
0,869
|
1,02
|
0,886
|
1,09
|
0,966
|
|
-
|
облиц. кромок
по длине
|
4
|
мат. кром
|
1086
|
16
|
0,3
|
4,34
|
1166
|
22
|
0,3
|
0,3
|
4,66
|
1,05
|
4,89
|
1,18
|
5,77
|
|
-
|
облиц. кромок
по ширине
|
4
|
мат. кром
|
400
|
16
|
0,3
|
1,60
|
480
|
22
|
0,3
|
0,3
|
1,92
|
1,05
|
2,02
|
1,18
|
2,38
|
|
8
|
Полка малая.
|
2
|
сбор. ед.
|
533
|
400
|
16
|
|
|
|
|
|
|
|
|
|
|
|
-
|
основа
|
2
|
ЛДСтП
|
533
|
400
|
16
|
0,426
|
533
|
400
|
16
|
16
|
0,426
|
1,02
|
0,435
|
1,09
|
0,474
|
|
-
|
облиц. кромок
по длине
|
4
|
мат. кром
|
533
|
16
|
0,3
|
2,13
|
613
|
22
|
0,3
|
0,3
|
2,45
|
1,05
|
2,57
|
1,18
|
3,03
|
|
-
|
облиц. кромок
по ширине
|
4
|
мат. кром
|
400
|
16
|
0,3
|
1,60
|
480
|
22
|
0,3
|
0,3
|
1,92
|
1,05
|
2,02
|
1,18
|
2,38
|
|
9
|
Дверь
|
2
|
сбор. ед
|
572
|
560
|
16
|
|
|
|
|
|
|
|
|
|
|
|
-
|
основа
|
2
|
МДФ
|
572
|
560
|
16
|
0,641
|
572
|
560
|
16
|
16
|
0,641
|
1,02
|
1,11
|
0,726
|
|
-
|
облиц. пласти
|
2
|
термо-пленка
|
572
|
560
|
0,6
|
0,641
|
772
|
760
|
0,6
|
0,6
|
1,173
|
1,08
|
1,267
|
1,30
|
1,647
|
|
10
|
Дверь средняя
|
1
|
сбор. ед.
|
328
|
560
|
16
|
|
|
|
|
|
|
|
|
|
|
|
-
|
основа
|
1
|
МДФ
|
328
|
560
|
16
|
0,184
|
328
|
560
|
16
|
16
|
0,184
|
1,02
|
0,188
|
1,11
|
0, 209
|
|
-
|
облиц. пласти
|
1
|
термо-пленка
|
328
|
560
|
0,6
|
0,184
|
528
|
760
|
0,6
|
0,6
|
0,401
|
1,08
|
0,433
|
1,30
|
0,563
|
|
11
|
Дверь малая
|
1
|
сбор. ед.
|
287
|
560
|
16
|
|
|
|
|
|
|
|
|
|
|
|
-
|
основа
|
1
|
МДФ
|
287
|
560
|
16
|
0,161
|
287
|
560
|
16
|
16
|
0,161
|
1,02
|
0,164
|
1,11
|
0,182
|
|
-
|
облиц. пласти
|
1
|
термо-пленка
|
287
|
560
|
0,6
|
0,161
|
487
|
760
|
0,6
|
0,6
|
0,370
|
1,08
|
0,400
|
1,30
|
0,520
|
|
12
|
Ст. ящика
накладная
|
2
|
сбор. ед.
|
120
|
560
|
16
|
|
|
|
|
|
|
|
|
|
|
|
-
|
основа
|
2
|
МДФ
|
120
|
560
|
16
|
0,134
|
120
|
560
|
16
|
16
|
0,134
|
1,02
|
0,137
|
1,11
|
0,152
|
|
-
|
облиц. пласти
|
2
|
термо-пленка
|
120
|
560
|
0,6
|
0,134
|
320
|
760
|
0,6
|
0,6
|
0,486
|
1,08
|
0,525
|
1,30
|
0,683
|
|
14
|
Плинтусная
вкладка
|
1
|
сбор. ед
|
1652
|
380
|
16
|
|
|
|
|
|
|
|
|
|
|
|
-
|
основа (4-х
кратная)
|
1
|
ЛДСтП
|
1652
|
380
|
16
|
0,628
|
1652
|
380
|
16
|
16
|
0,628
|
1,02
|
0,640
|
1,09
|
0,698
|
|
-
|
облиц. кромок
по длине
|
2
|
мат. кром
|
1652
|
16
|
0,3
|
3,30
|
1732
|
22
|
0,3
|
0,3
|
3,46
|
1,05
|
3,63
|
1,18
|
4,28
|
|
-
|
облиц. кромок
по ширине
|
2
|
мат. кром
|
92
|
16
|
0,3
|
0,18
|
172
|
22
|
0,3
|
0,3
|
0,34
|
1,05
|
0,36
|
1,18
|
0,42
|
|
13
|
Стенка задняя
|
1
|
ДВП
|
1142
|
1678
|
3
|
1,916
|
1142
|
1678
|
3
|
3
|
1,916
|
1,02
|
1,954
|
1,12
|
2,188
|
Таблица 12 - Расчет поверхностей, на которые наносится клей
на шкаф
|
Наименование
клеевого материала, ГОСТ, ТУ, марка
|
Способ
склеивания
|
Способ
нанесения клея
|
Наименование
облицовываемых и склеиваемых заготовок
|
Наименование
материала, на который наносится клей
|
Количество
деталей в изделии, шт
|
Количество
склеиваемых поверхностей в детали, шт
|
Размеры
поверхностей заготовок, на которые наносится клей, мм
|
Площадь
поверхностей заготовок, на которые наносится клей, м
|
|
|
|
|
|
|
|
|
Всего на
изделие
|
в том числе по
группам сложности
|
|
|
|
|
|
|
|
длина
|
ширина
|
|
I
|
II
|
III
|
|
1
|
2
|
3
|
4
|
5
|
6
|
7
|
8
|
9
|
10
|
11
|
12
|
13
|
|
клей-расплав
марки НD6880
|
горячий
|
станочный
|
Стенка боковая
|
ДСтП
|
2
|
2
|
1248
|
16
|
0,080
|
-
|
0,080
|
-
|
|
|
|
|
|
2
|
2
|
416
|
16
|
0,027
|
-
|
0,027
|
-
|
|
|
|
Ст. гориз.
|
ДСтП
|
2
|
2
|
1652
|
16
|
0,106
|
-
|
0,106
|
-
|
|
|
|
Ст. вертик
|
ДСтП
|
1
|
2
|
1116
|
16
|
0,036
|
-
|
0,036
|
-
|
|
|
|
Ст. гориз.
|
ДСтП
|
1
|
2
|
1090
|
16
|
0,035
|
-
|
0,035
|
-
|
|
|
|
Ст. гориз.
внут. мал.
|
ДСтП
|
2
|
2
|
546
|
16
|
0,035
|
-
|
0,035
|
-
|
|
|
|
Перегородка
|
ДСтП
|
1
|
2
|
540
|
16
|
0,017
|
-
|
0,017
|
-
|
|
|
|
Полка большая
|
ДСтП
|
2
|
2
|
1086
|
16
|
0,070
|
-
|
0,070
|
-
|
|
|
|
|
|
2
|
2
|
400
|
16
|
0,026
|
-
|
0,026
|
-
|
|
|
|
Полка малая
|
ДСтП
|
2
|
2
|
533
|
16
|
0,034
|
-
|
0,034
|
-
|
|
|
|
|
|
2
|
2
|
400
|
16
|
-
|
0,026
|
-
|
|
|
|
Плинтусная
вкладка
|
ДСтП
|
1
|
2
|
1652
|
16
|
0,053
|
-
|
0,053
|
-
|
|
|
|
|
|
1
|
2
|
380
|
16
|
0,012
|
-
|
0,012
|
-
|
|
Смола КФЖ
(ГОСТ 14231-88)
|
горячий
|
вручную
|
Дверь
|
МДФ
|
2
|
2
|
572
|
560
|
1,281
|
1,281
|
-
|
-
|
|
|
|
Дверь средняя
|
МДФ
|
1
|
2
|
328
|
560
|
0,367
|
0,367
|
-
|
-
|
|
|
|
Дверь малая
|
МДФ
|
1
|
2
|
287
|
560
|
0,321
|
0,321
|
-
|
-
|
|
|
|
Стенка ящика
накладная
|
МДФ
|
2
|
2
|
120
|
560
|
0,269
|
0,269
|
-
|
-
|
|
Итого:
|
2,238
|
0,557
|
|
4.2.1 Расчет
поверхностей, на которые наносится клей и норм расхода клеевых материалов
Расчёту норм расхода клеевых материалов предшествует расчёт
размеров площадей поверхностей деталей на которые будет нанесён клей. Расчёт
площадей выполнен в таблице 12.
После нахождения площадей поверхностей, на которые будут
наносить клей, рассчитываем расход клеевых материалов. Расчёт будем вести по
таблице 13.
Таблица 13 - Расчет норм расхода клеевых материалов
|
Наименование
клеевых материалов, ГОСТ, ТУ, марка
|
Способ
склеивания
|
Способ
нанесения клея
|
Группа
сложности поверхности
|
Площадь
склеивания, м2
|
Норма расхода
рабочего раствора клея, кг/м2
|
Норма расхода
клея на изделие, кг
|
|
1
|
2
|
3
|
4
|
5
|
6
|
7
|
|
Клей-расплав
марки НD-6880 Forbo
|
горячий
|
станочный
|
II
|
0,557
|
0,350
|
0, 195
|
|
Смола КФЖ (ГОСТ
14231-88)
|
горячий
|
вручную
|
I
|
2,238
|
0,220
|
0,492
|
4.2.2 Расчёт
норм расхода фурнитуры и других покупных комплектующих деталей и узлов
Сводные нормы расхода записываются с итоговых результатов
индивидуальных специфицированных норм расхода по всем видам сырья, материалов и
покупных изделий. Сводные нормы составлены в виде таблицы 14.
Таблица 14 - Расчет нормы расхода фурнитуры и других покупных
деталей и узлов на шкаф
|
Наименование
фурнитуры и других покупных деталей и узлов
|
Коли-чество на
изде-лие
|
Материал
покупных деталей
|
ГОСТ, ТУ, марка
покуп-ных дета-лей
|
Габаритные
размеры, мм
|
Коэф., учитыв.
технолог. потери, КТ.о.
|
Норма расхода
на изделие, шт (м )
|
|
|
|
|
длина
|
ширина
|
толщина
|
|
|
|
Стяжка-шуруп
|
8
|
сталь
|
Hettich Direkta
2
|
50
|
-
|
6.3
|
1
|
8
|
|
Заглушка
|
8
|
пласт-масса
|
Hettich Direkta
2 Артикул 900 837 7
|
-
|
6,5
|
-
|
1
|
8
|
|
Полкодержатель
|
12
|
сталь,
пласт-масса
|
Hettich Safety
2 101 551 0
|
20
|
20
|
5
|
1
|
12
|
|
Петля 4-х
шарная
|
8
|
сталь
|
Hettich Ecomat
107 295 6
|
105
|
64
|
-
|
1
|
8
|
|
Заглушка для
петли Ecomat
|
8
|
сталь
|
Hettich Ecomat
107 853 0
|
50
|
16
|
-
|
1
|
8
|
|
Кронштейн
выдвижной с тормозом
|
2
|
сталь
|
Hettich 000 395
|
250
|
-
|
-
|
1
|
2
|
|
Направляющая
для ящика (базовый комплект)
|
2
|
сталь
|
Hettich 108 332
100
|
400
|
32
|
28,5
|
1
|
2
|
|
Ручка-рейлинг
|
6
|
сталь
|
Edson, 8925
|
160
|
35
|
12
|
1
|
6
|
|
Подпятник
|
4
|
Пласт-масса
|
Артикул 1762
|
37
|
20
|
5
|
1
|
4
|
|
Шуруп
|
25
|
сталь
|
ГОСТ 1145,
А2.5х20
|
20
|
-
|
2,5
|
1
|
25
|
|
Скоба мебельная
|
8
|
сталь
|
FIT IT для
степлера 32135/32145
|
10
|
8
|
0,7
|
1
|
8
|
4.2.3 Сводные
нормы расхода сырья и материалов
Сводные нормы расхода сведены в таблицу 15.
Таблица 15 - Сводные нормы расхода сырья и материалов на шкаф
|
Наименование
материала
|
Единицы
измерения
|
ГОСТ, ТУ или
марка
|
Нормы расхода
на изделие
|
|
1
|
2
|
3
|
4
|
|
Ламинированная
древесностружечная плита, толщина 16 мм
|
м ТУ 5534-005-44779728-20026,595
|
|
|
|
Древесноволокнистая
плита средней плотности
|
м ТУ 5536-026-00273643-981,269
|
|
|
|
Термореактивная
пленка
|
м ТР. А1. Г.9. 3,413
|
|
|
|
Древесноволокнистая
плита ламинированная
|
м ГОСТ 45982,188
|
|
|
|
Материал
кромочный, ширина 22 мм
|
м/п
|
REHAU
|
33,54
|
|
Клей-расплав
|
кг
|
Forbo НD6880
|
0, 195
|
|
Смола КФЖ
|
кг
|
ГОСТ 14231-88
|
0,492
|
|
Стяжка-шуруп
|
шт.
|
Hettich Direkta
2
|
8
|
|
Заглушка
|
шт.
|
Hettich Direkta
2 Артикул 900 837 7
|
8
|
|
Полкодержатель
|
шт.
|
Hettich, Safety
2, 101 551 0
|
12
|
|
Петля 4-хшарная
|
шт.
|
Hettich Ecomat,
107 295 6
|
8
|
|
Заглушка для
петли Ecomat
|
шт.
|
Hettich Ecomat,
107 853 0
|
8
|
|
Кронштейн
выдвижной с тормозом
|
шт.
|
Hettich000 395
|
2
|
|
Направляющая
для ящика (базовый комплект)
|
шт.
|
Hettich, 108
332 100
|
2
|
|
Ручка-рейлинг
|
шт.
|
Edson, 8925
|
6
|
|
Подпятник
|
шт.
|
Артикул 1762
|
4
|
|
Шуруп
|
шт.
|
ГОСТ 1145, А2,5×20
|
25
|
|
Скоба мебельная
|
шт.
|
FIT IT для
степлера 32135/32145
|
8
|
4.3
Разработка карт раскроя листовых и плитных материалов
Рациональный раскрой плитных материалов является важнейшим
фактором экономии материалов. На производстве заготовки из плитных и листовых
материалов раскраиваются по картам раскроя. Составление карты раскроя состоит в
выкраивании из исходной плиты наибольшего количества заготовок с учетом
особенностей работы форматного станка.
При разработке карт раскроя необходимо выполнять следующие
требования:
получать максимальный выход деталей;
обеспечивать комплектность деталей разных размеров и
назначения в соответствии с объемом производства;
устанавливать минимальное количество типоразмеров деталей при
раскрое одной плиты;
стремиться к минимальному повторению одних и тех же деталей в
разных картах раскроя.
При составлении карт раскроя необходимо учитывать величину
чистовой базы плиты, то есть припуск по формату плиты должен быть 16…20 мм.
При размещении заготовок на исходной плите следует учитывать
ширину пропила, которая составляет 4…5 мм.
Составление карт раскроя рекомендуется начинать с главных
деталей - наиболее крупных и многочисленных. Причем величина мебельных
заготовок принимается с учетом припусков на последующую механическую обработку
по ширине и длине.
При раскрое плитных и листовых материалов необходимо
учитывать особенности работы форматных станков на мебельных и
деревообрабатывающих предприятиях. Главная особенность в том, что реализуется
схема поэтапного раскроя. Это значит, что первый пропил должен быть сквозным и
осуществлять раскрой плиты по длине на полосы. Последующие пропилы
осуществляются перпендикулярно к первым и могут бать несквозными за счет
смещения или раздельного распиливания полученных на первом проходе полос. То
есть на этом этапе осуществляется раскрой полученных полос на заготовки.
В соответствии со схемой поэтапного раскроя осуществляется
схема поэтапного формирования карт раскроя.
Качество раскройной карты оценивается процентом полезного
выхода заготовок, равным отношению суммарной площади всех заготовок к площади
исходной плиты и определяемым по формуле [21]:
П =
, (8)
где П - процент полезного выхода;
, S
, …, S
- площадь заготовок по спецификации, м
;
- площадь плиты, м
.
В крупносерийном производстве процент полезного выхода достигает
92…94%. В мелко - и среднесерийном производстве процент полезного выхода
достигает 85…86%. В единичном производстве минимальный процент полезного выхода
может быть установлен не менее 70%.
Для составления карт раскроя плитных материалов мы воспользовались
специальной программой раскроя "Базис мебельщика", в алгоритме
которой заложен механизм наличия прямых сквозных резов. Карта раскроя и процент
полезного выхода представлены в Приложении А.
4.4
Установление календарного режима работы участка
Календарное число дней в году - 365;
Количество рабочих дней в году - 249;
Количество нерабочих дней в году, включая выходные и
праздничные дни - 116;
Продолжительность смены - 8,2 ч.
Эффективный фонд времени работы оборудования Т, станко-час
[21]:
Т = (Т
- m) *t*C*
, (9)
где Т
- календарное число дней в году;-
количество нерабочих рабочих дней в году;
С - количество смен;- продолжительность смены в часах, t = 8,2 ч;
- коэффициент, учитывающий простои оборудования при
планово-предупредительных ремонтах; для сложных станков
= 0,93, для простых станков
= 0,95.
При работе в 2 смены:
Т = (365-116) *8,2*2*0,93 = 3797,7 станко-час;
Т = (365-116) *8,2*2*0,95 = 3879,4 станко-час.
4.5
Разработка технологии, маршрутных схем, выбор технологического оборудования и
транспортных средств, расчет его необходимого количества на план производства
Плитные материалы (ЛДСтП, ДВП, МДФ) с помощью автопогрузчика
подаются к автоматической линии с программным управлением для раскроя листовых
и плитных материалов SELCO EBТ 120 с автоматической загрузкой с
электромеханического подъемного стола, где они раскраиваются по заранее
составленным картам раскроя.
Максимальная длина пропила - 4400 мм.
Максимальный выход пилы - 122 мм.
Максимальное раскрытие захватов - 103 мм.
Подъемный стол с прямой загрузкой - 4400x2200 мм.
Высота стопы панелей - 520 мм.
Минимальный размер панелей на подъемном столе - 1830x915 мм.
Минимальная толщина стопы на подъемном столе - 10 мм.
Максимальная ширина выравниваемых панелей - 2200 мм.
Скорость бесщеточного мотора с инвертером привода каретки - 1
- 130 м/мин.
Скорость бесщеточного мотора с инвертером привода толкателя -
80 м/мин.
На центре может одновременно раскраиваться до 7 плит толщиной
16 мм и до 4 плит толщиной 28 мм. Наименьшие размеры получаемых заготовок 300×160 мм. Для обеспечения чистоты реза и предотвращения сколов
облицовочного материала на выходе зубьев пилы из плиты в центре предусмотрена
установка подрезной пилы. В конце каждого цикла все раскроенные полосы и панели
автоматически выгружаются в переднюю часть центра, т.е. снимаются с линии
распила. Стол основания станка покрыт обработанным и откалиброванным ламинатом
высокого давления, что позволяет облегчить перемещение раскраиваемых
материалов. Рабочий стол раскроя снабжен независимыми бесприводными роликами,
что позволяет избежать трения с поверхностями панелей. Передняя часть станка
снабжена столами с воздушной подушкой с закругленным профилем (с крышками),
которые облегчают перемещение панелей.
Со склада заготовки из ЛДСтП с помощью вагонетки подаются к
станку для одностороннего облицовывания кромок на автоматический
кромкооблицовочный станок IMA Novimat, где облицовывают кромки. Станок
предназначен для облицовывания прямолинейных кромок плитных материалов
рулонными кромками и полосовым кромочным материалом толщиной до 3 мм.
Толщина кромки для наклейки - 0,3 ÷ 3 мм.
Размеры обрабатываемой панели, мм:
толщина при снятии свесов - 10÷50;
ширина минимальная - 80;
длина минимальная (без предварительной фрезеровки) - 160
(PVC);
длина минимальная (с предварительной фрезеровкой) - 380.
Мощность электродвигателей клеевого вала - 0,75 кВт.
Мощность электродвигателей подачи заготовки - 1,5 кВт.
Максимальная скорость подачи заготовки - 15,5 м/мин.
Мощность двигателя узла предварительной фрезеровки - 2х1,8 шт
х кВт.
Торцовочный узел:
частота вращения - 12000 об/мин;
мощность электродвигателей - 2 х 0,37 кВт.
Узел предварительной фрезеровки
частота вращения - 12000 об/мин;
мощность электродвигателей - 2 х 0,5 кВт.
Полировальный узел:
количество электродвигателей - 2 шт.;
количество дисков - 2 шт.;
частота вращения - 1400 об/мин;
мощность электродвигателей - 2 x 0,18 кВт.
Емкость клеевого бачка - 3,2 л.
Потребляемая мощность при разогреве клея - 2,3 кВт.
Мощность дополнительного нагревателя - 0,12 кВт.
Давление воздуха - 7 атм.
Заготовки с помощью роликового приемного конвейера
перемещаются на вагонетку, где их укладывают в стопы и отправляют на
промежуточный склад. Кратные заготовки поступают на станок универсальный
круглопильный Ц6-2 для раскроя.
Скорость подачи (ручная) - 8-10 м/мин.
Ширина обрабатываемой детали - до 400 мм.
Диаметр пилы - 400 мм.
Диаметр подрезной пилы - 250 мм.
Частота вращения пилы - 2500 об/мин.
Мощность - 4,0 кВт.
Габариты станка - 1610x1505x1850 мм.
Далее раскроенные кратные заготовки с помощью вагонетки
подаются к IMA Novimat, где облицовывают кромки.
С помощью тележки детали подают на многошпиндельный
сверлильно - присадочный станок Scipper 100, где сверлят отверстия по кромкам и
пласти. Вертикальный сверлильный блок состоит из 2-х отдельных блоков, каждый
из которых может вращаться на 0-90°.
Количество шпинделей - 78 шт.
Количество сверлильных блоков - 2 горизонтальных и 4
вертикальных.
Расстояние между шпинделями - 32 мм.
Длина детали - 90 - 3.000 мм.
Ширина детали - 70 - 1.000 мм.
Толщина детали - 8 - 60 мм.
Скорость подачи - 57 м/мин.
Мощность - 0.75кВт.
Габаритные размеры - 850x850x830 мм.
Выборка отверстий в кромках и пластях малых деталей
производится на станке присадочном П-700. Обработка деталей ведется двумя
силовыми головками, оснащенными одно - или пятишпиндельными коробками. Для
обработки кромок щитов станок оснащен суппортом, несущим силовую траверсу. В
траверсе установлено 27 шпинделей с шагом 32 мм. Суппорт может быть
переустановлен из горизонтального положения в вертикальное, что дает
возможность обрабатывать щиты со стороны нижней пласти.
Размеры обрабатываемых деталей, мм:
Длина (при ширине более 700 мм) - 1700;
Длина (при ширине менее 700 мм) - 2500;
Ширина не более - 1000;
Толщина - 5-40.
Максимальный диаметр зенковки (сверла) - 35 (14) мм.
Установленная мощность - 3,7 кВт.
После раскроя заготовки из МДФ подаются на
калибровально-шлифовальный стонок марки Optimat STO 111/C. Станок предназначен
для калибрования (стальной вал) и чистового шлифования (сегментный башмачок)
заготовок из массива древесины и МДФ, шлифование рам, шлифование заготовок
облицованных шпоном, а также промежуточное шлифование лакированных
поверхностей.
Шлифовальные агрегаты. Агрегат 1 комбинированный блок с:
автоматической подачей стального профилированнного
контактного вала с компенсацией зернистости для точного калибрования;
элекронно управляемый сегментный башмачок для чистового
шлифования, ширина сегментов 35 мм;
скорость вращения абразивной ленты 18 м/сек;
бесступенчато, регулируемая скорость подачи заготовки 2,5-13
м/мин.
Технические характеристики:
рабочая ширина 1.110 мм;
ширина шлифовальной ленты 1.120 мм;
длина шлифовальной ленты 1.900 мм;
мощность привода подающего конвейера 0,75 кВт;
мощность привода шлифагрегата 15,0 кВт, рабочее напряжение
400 Вольт, 50 Гц, 3 фазы;
рабочее давление сжатого воздуха не менее 6 бар, расход
сжатого воздуха 10 л/мин;
скорость воздуха в системе аспирации 20 м/сек, диам. патрубка
200 мм, производительность 1.830 м3/час;
габариты станка 1.335х 1.750х1.890 мм, вес станка 1.800 кг.
Затем заготовки подаются на ROVER 22 для фрезерования по
периметру.
Техническая характеристика:
Фрезерный узел
Скорость вращения фрезерного узла, об/мин. - 24000;
Мощность двигателя фрезерного узла, кВт - 7,5;
Диаметр хвостовика инструмента, мм - 6-25;
Габаритные размеры, см - 510х220х240.
На рабочих столах заготовки шлифуются вручную и с помощью
роликового приемного конвейера перемещаются на вагонетку, где их укладывают в
стопы и отправляют на участок облицовки.
Пласти МДФ облицовывают термореактивной пленкой на прессе
ORMA. Он предназначен для "облагораживания" внешнего вида изделий
облицовыванием мебельных фасадов, филенок или дверей, изготовленных из ДСП или
МДФ, а также декоративных элементов мебели нанесением на них пленки ПВХ, АБС,
для которого эффективно применение мембранных вакуумных горячих прессов.
Применяют клей следующего состава - 100 м. ч. КФЖ и 0,5 - 1,5 м. ч. хлористого
аммония, и 3 - 5 м. ч. пропина. Клей наносится в специальной распылительной
кабине вручную.
Техническая характеристика пресса:
Размер плит пресса, мм - 2500х1300;
Максимальный размер обрабатываемой панели, мм - 2240х1200;
Максимальное удельное давление, кг/см2 - 5;
Общее усилие, т - 180;
Количество цилиндров,/диаметр цилиндров, шт/мм - 4/140;
Нагрев рабочей поверхности, кВт - 15;
Общая установленная мощность, кВт-22;
Расход воздуха на цикл (давление 6 бар), л - 600;
Вес, кг - 7200;
Габаритные размеры, мм: 2190х5614х2100;
Электропитание трехфазное, кВ/Гц - 380/50.
Затем проводят обработку на рабочем месте, укладывают
заготовки в стопы и отправляют на присадку.
Выборка отверстий под чашку петли осуществляется на
сверлильном станке марки DВ-150 [1].
Наибольшие размеры обрабатываемых деталей, мм
длина - 1180;
ширина - 800;
толщина - 32;
Скорость подачи (ручная) - 8-10 м/мин;
Частота вращения шпинделя - 18000 об/мин;
Диаметр сверления - 35 мм.
Установленная мощность - 1,5 кВт.
Готовые детали с помощью вагонетки перемещают на склад
готовой продукции, где упаковываются.
4.5.1 Расчёт
производительности оборудования и норм времени
Производительность станков проходного и полупроходного типов
определяется по формуле [21]:
А
=
, заг/час (10)
где U - скорость подачи, м/мин. Принимается по паспортным данным
станка, скорость ручной подачи 8-10 м/мин;
К
- коэффициент использования машинного
времени. Принимается по приложению 8 [21];
К
- коэффициент скольжения заготовок при
вальцовой подаче, К
= 0,9÷0,92;- величина перемещения заготовки или
закладки непосредственно при обработке, м;- среднее число проходов;- число
одновременно обрабатываемых заготовок, то есть количество деталей в закладке,
или кратность;
К - коэффициент использования рабочего времени:
К=
, (11)
где Т
- время смены, Т
= 480 мин;
Т
- регламентированные затраты времени на отдых, переналадку,
подготовку к работе, уборку. Принимается по приложению 8 [21].
Производительность позиционного оборудования, а так же
автоматических линий и конвейеров, работающих в определённом ритме,
определяется по формуле [21]:
А =
, шт/час, (12)
где t
- продолжительность цикла (ритма)
обработки закладки в минутах.
Для линий непрерывного проходного типа [21]:
=
, мин (13)
где l - длина заготовки, м;
- средняя длина разрывов между заготовками, м;- скорость подачи,
м/мин.
Нормы времени на операции могут быть определены исходя из
расчётной производительности оборудования [21]:
Н
=
, станко-час на изделие, (14)
где а - число данных деталей в изделии;
А - производительность станка, шт/час.
Для позиционного оборудования нормы времени на операцию удобно
определять по формуле [21]:
Н
= t
(1+
)
, станко-час на изделие, (15)
где t
- оперативное время в чел. - часах на
одну заготовок или деталь. Принимается по нормативным данным по приложению 9
[21];- количественный состав звена исполнительный;- коэффициент
регламентированных затрат в % к оперативному времени. Принимается по
нормативным данным по приложению 8 [21];- число деталей в изделии.
Раскрой листовых и плитных материалов на автоматической линии с
программным управлением SELCO EBТ 120. Этот станок позиционный, поэтому расчет
норм времени ведем по формуле (15). Z = 2 чел., K = 23%. (прил.8, прил.9
табл.17. [21]) Расчет выполнен в форме таблицы 16.
Калибрование заготовок МДФ на станке Optimat STO 111/C. Этот
станок проходного типа, расчет норм времени ведем по формулам (10), (11). Из
технической U = до 13 м/мин, К
= 0,9, К
= 0,91,
мин, К = (480-130) /480 = 0,729 (прил.8 [21]). Расчет выполнен в
форме таблицы 17.
Фрезерование МДФ по периметру выполняем на центре ROVER 22. Расчет
ведем по формулам (10), (11). U = 8-10 м/мин, К
= 0,9, К
= 0,91, Т
= 100 мин, К = (480-100) /480 = 0,88 (прил.8. [21]). Расчет
выполнен в форме таблицы 18.
Облицовывание пласти МДФ на прессе ORMA. Расчет ведем по формуле
(12), так как пресс работает в определенном ритме. K=0,75; t
=5мин (прил.8. [21]). Расчет выполнен в
форме таблицы 19.
Облицовывание кромок на автоматическом кромкооблицовочном станке
одностороннего облицовывания кромок IMA. Этот станок проходной, поэтому расчет
ведем по формулам (10), (11). Из технической характеристики U = до 21 м/мин, К
= 0,9, К
= 0,75,
мин, К = (480-155) /480 = 0,678 (прил.8
[21]). Расчет выполнен в форме таблицы 20.
Раскрой кратных на станке универсальном круглопильном Ц6-2. Этот
станок позиционный, поэтому расчет норм времени ведем по формуле (15). Z = 2
чел., K = 15%. (прил.8, прил.9 табл.12 [21]). Расчет выполнен в форме таблицы
21.
Облицовывание кромок кратных деталей на автоматическом
кромкооблицовочном станке одностороннего облицовывания кромок IMA. Этот станок
проходной, поэтому расчет ведем по формулам (10), (11).). Из технической
характеристики U = до 21 м/мин, К
= 0,9, К
= 0,75,
мин, К = (480-155) /480 = 0,678 (прил.8 [21]). Расчет выполнен в
форме таблицы 20.
Присадка по пласти и кромке на многошпиндельном станке Scipper100.
Станок рассчитывается по формуле (15). Z = 2 чел., K = 24%. (прил.8, прил.9
табл.6. [21]) Расчет выполнен в форме таблицы 22.
Выборка отверстий под чашку петли на станке DB-150. Станок
рассчитывается по формуле (15). Z = 1 чел., K = 20% (прил.8. прил.9 табл.13
[21]). Площадь фрезерования 10 см
. Расчет выполнен в форме таблицы 23.
Выборка отверстий в кромках и пластях малых деталей на станке присадочном
П-700. Станок рассчитывается по формуле (15). Z = 1 чел., K = 17%. (прил.8,
прил.9 табл.6 [21]). Расчет выполнен в форме таблицы 24.
Таблица 16 - Расчет раскроя листовых и плитных материалов на
станке SELCO EBТ 120
|
№
|
Наименование
детали
|
Материал
|
Количество
|
Размер
заготовки, мм
|
Площадь, м.
кв.
|
z
|
Кр
|
Операционное
время tоп, чел-час
|
Норма времени
Нвр, ст-час/ изделие
|
|
|
|
|
длина
|
ширина
|
толщина
|
|
|
|
|
|
|
1
|
2
|
3
|
4
|
5
|
6
|
7
|
8
|
9
|
10
|
11
|
12
|
|
1
|
Стенка боковая
|
Сб. ед
|
2
|
1248
|
416
|
16
|
|
|
|
|
|
|
-
|
основа
|
ЛДСтП
|
2
|
1248
|
416
|
16
|
0,519
|
2
|
23
|
0,00528
|
0,00649
|
|
2
|
Стенка
горизонт.
|
Сб. ед
|
2
|
1652
|
416
|
16
|
|
|
|
|
|
|
-
|
основа
|
ЛДСтП
|
2
|
1652
|
416
|
16
|
0,687
|
2
|
23
|
0,00632
|
0,00777
|
|
3
|
Стенка вертик.
|
Сб. ед
|
1
|
1116
|
416
|
16
|
|
|
|
|
|
|
-
|
основа
|
ЛДСтП
|
1
|
1116
|
416
|
16
|
0,464
|
2
|
23
|
0,00224
|
0,00276
|
|
4
|
Стенка
горизонт.
|
Сб. ед
|
1
|
1090
|
416
|
16
|
|
|
|
|
|
|
-
|
основа
|
ЛДСтП
|
1
|
1090
|
416
|
16
|
0,453
|
2
|
23
|
0,00224
|
0,00275
|
|
5
|
Ст. гориз.
внут. мал.
|
Сб. ед
|
2
|
546
|
416
|
16
|
|
|
|
|
|
|
-
|
основа
|
ЛДСтП
|
2
|
546
|
416
|
16
|
0,227
|
2
|
23
|
0,00336
|
0,00413
|
|
6
|
Перегородка
|
Сб. ед
|
1
|
540
|
416
|
16
|
|
|
|
|
|
|
-
|
основа
|
ЛДСтП
|
1
|
540
|
416
|
16
|
0,225
|
2
|
23
|
0,00168
|
0,00207
|
|
7
|
Полка большая
|
Сб. ед
|
2
|
1086
|
400
|
16
|
|
|
|
|
|
|
-
|
основа
|
ЛДСтП
|
2
|
1086
|
400
|
16
|
0,434
|
2
|
23
|
0,00448
|
0,00551
|
|
8
|
Полка малая
|
Сб. ед
|
2
|
533
|
400
|
16
|
|
|
|
|
|
|
-
|
основа
|
ЛДСтП
|
2
|
533
|
400
|
16
|
0,213
|
2
|
23
|
0,00336
|
0,00413
|
|
9
|
Дверь
|
Сб. ед
|
2
|
572
|
560
|
16
|
|
|
|
|
|
|
-
|
основа
|
МДФ
|
2
|
572
|
560
|
16
|
0,320
|
2
|
23
|
0,00384
|
0,00472
|
|
10
|
Дверь средняя
|
Сб. ед
|
1
|
328
|
560
|
16
|
|
|
|
|
|
|
-
|
основа
|
МДФ
|
1
|
328
|
560
|
16
|
0,184
|
2
|
23
|
0,00144
|
0,00177
|
|
11
|
Дверь малая
|
Сб. ед
|
1
|
574/2
|
560
|
16
|
|
|
|
|
|
|
-
|
основа
|
МДФ
|
1
|
574/2
|
560
|
16
|
0,321
|
2
|
23
|
0,00236
|
0,00236
|
|
12
|
Ст. ящика
наклад.
|
Сб. ед
|
2
|
480/4
|
560
|
16
|
|
|
|
|
|
|
-
|
основа
|
2
|
480/4
|
560
|
16
|
0,269
|
2
|
23
|
0,00336
|
0,00413
|
|
13
|
Плинтусная
вкладка
|
Сб. ед
|
1
|
1652
|
380
|
16
|
|
|
|
|
|
|
-
|
основа
|
ЛДСтП
|
1
|
1652
|
380
|
16
|
0,628
|
2
|
23
|
0,00264
|
0,00325
|
|
14
|
Стенка задняя
|
ДВП
|
1
|
1142
|
1678
|
3
|
1,916
|
2
|
23
|
0,00444
|
0,00546
|
|
Итого:
|
0,05730
|
|
|
|
|
|
|
|
|
|
|
Таблица 17 - Расчет времени на калибрование на станке Optimat
STO 111/C
|
№
|
Наименование
детали
|
Материал
|
Количество
|
Размер
заготовки, мм
|
Скорость подачи
u, м/мин
|
Км
|
Кс
|
К
|
L
|
m
|
N
|
Производи-тельность,
Апр, заг/час
|
Норма времени
Нвр, ст-час/ изделие
|
|
|
|
|
длина
|
ширина
|
толщина
|
|
|
|
|
|
|
|
|
|
|
1
|
2
|
3
|
4
|
5
|
6
|
7
|
8
|
9
|
10
|
11
|
12
|
13
|
14
|
15
|
16
|
|
1
|
Дверь
|
сб. ед
|
2
|
572
|
560
|
16
|
13
|
0,9
|
0,91
|
0,729
|
0,772
|
2
|
1
|
369,45
|
0,00541
|
|
2
|
Дверь средняя
|
сб. ед
|
1
|
328
|
560
|
16
|
13
|
0,9
|
0,91
|
0,729
|
0,528
|
2
|
1
|
540,18
|
0,00185
|
|
3
|
Дверь малая
|
сб. ед
|
1
|
574/2
|
560
|
16
|
13
|
0,9
|
0,91
|
0,729
|
0,774
|
2
|
1
|
368,49
|
0,00274
|
|
4
|
Стенка ящика
накладная
|
сб. ед
|
2
|
480/4
|
560
|
16
|
13
|
0,9
|
0,91
|
0,729
|
0,680
|
2
|
1
|
419,43
|
0,00477
|
|
Итого:
|
0,01477
|
Таблица 18 - Расчет времени на фрезерование по периметру на
станке Rover 22
|
№
|
Наименование
детали
|
Материал
|
Количество
|
Размер
заготовки, мм
|
Скорость подачи
u, м/мин
|
Км
|
Кс
|
К
|
L
|
m
|
N
|
Производи-тельность,
Апр, заг/час
|
Норма времени
Нвр, ст-час/ изделие
|
|
|
|
|
длина
|
ширина
|
толщина
|
|
|
|
|
|
|
|
|
|
|
1
|
2
|
3
|
4
|
5
|
6
|
7
|
8
|
9
|
10
|
11
|
12
|
13
|
14
|
15
|
16
|
|
1
|
Дверь
|
сб. ед
|
2
|
572
|
560
|
16
|
10
|
0,9
|
0,91
|
0,8
|
3,064
|
1
|
1
|
128,30
|
0,01559
|
|
2
|
Дверь средняя
|
сб. ед
|
1
|
328
|
560
|
16
|
10
|
0,9
|
0,91
|
0,8
|
2,576
|
1
|
1
|
152,61
|
0,00655
|
|
3
|
Дверь малая
|
сб. ед
|
1
|
574/2
|
560
|
16
|
10
|
0,9
|
0,91
|
0,8
|
2,494
|
1
|
1
|
157,63
|
0,00634
|
|
4
|
Стенка ящика
накладная
|
сб. ед
|
2
|
480/4
|
560
|
16
|
10
|
0,9
|
0,91
|
0,8
|
2,160
|
1
|
1
|
182
|
0,01099
|
|
Итого:
|
0,03947
|
Таблица 19 - Расчет облицовывания пласти на прессе ORMA
|
№
|
Наименование
детали
|
Материал
|
Количество
|
Размер
заготовки, мм
|
К
|
n
|
tц
|
Производи-тельность,
Апр, заг/час
|
Норма времени
Нвр, ст-час/ изделие
|
|
|
|
|
длина
|
ширина
|
толщина
|
|
|
|
|
|
|
1
|
2
|
3
|
4
|
5
|
6
|
7
|
11
|
13
|
14
|
15
|
16
|
|
1
|
Дверь
|
сб. ед
|
2
|
572
|
560
|
0,6
|
0,75
|
8
|
5
|
72
|
0,02778
|
|
2
|
Дверь средняя
|
сб. ед
|
1
|
328
|
560
|
0,6
|
0,75
|
14
|
5
|
126
|
0,00794
|
|
3
|
Дверь малая
|
сб. ед
|
1
|
574/2
|
560
|
0,6
|
0,75
|
16
|
5
|
144
|
0,00694
|
|
4
|
Стенка ящика
накладная
|
сб. ед
|
2
|
480/4
|
560
|
0,6
|
0,75
|
40
|
5
|
360
|
0,00556
|
|
Итого:
|
0,04822
|
Таблица 20 - Расчет облицовывания кромок на станке IMA
Novimat
|
№
|
Наименование
детали
|
Материал
|
Количество
|
Размер
заготовки, мм
|
Скорость подачи
u, м/мин
|
Км
|
Кс
|
К
|
L
|
m
|
N
|
Производи-тельность,
Апр, заг/час
|
Норма времени
Нвр, ст-час/ изделие
|
|
|
|
|
длина
|
ширина
|
толщина
|
|
|
|
|
|
|
|
|
|
|
1
|
2
|
3
|
4
|
5
|
6
|
7
|
8
|
9
|
10
|
11
|
12
|
13
|
14
|
16
|
|
1
|
Стенка боковая
|
Сб. ед
|
2
|
1248
|
416
|
16
|
21
|
0,75
|
0,9
|
0,678
|
2,680
|
1
|
1
|
215,16
|
0,00930
|
|
2
|
Стенка
горизонт.
|
Сб. ед
|
2
|
1652
|
416
|
16
|
21
|
0,75
|
0,9
|
0,678
|
1,852
|
1
|
1
|
311,36
|
0,00642
|
|
3
|
Стенка вертик.
|
Сб. ед
|
1
|
1116
|
416
|
16
|
21
|
0,75
|
0,9
|
0,678
|
1,316
|
1
|
1
|
438,18
|
0,00228
|
|
4
|
Стенка
горизонт.
|
Сб. ед
|
1
|
1090
|
416
|
16
|
21
|
0,75
|
0,9
|
0,678
|
1,290
|
1
|
1
|
447,01
|
0,00224
|
|
5
|
Ст. гориз.
внут. мал.
|
Сб. ед
|
2
|
546
|
416
|
16
|
21
|
0,75
|
0,9
|
0,678
|
0,746
|
1
|
1
|
772,98
|
0,00259
|
|
6
|
Перегородка
|
Сб. ед
|
1
|
540
|
416
|
16
|
21
|
0,75
|
0,9
|
0,678
|
0,740
|
1
|
1
|
779,24
|
0,00128
|
|
7
|
Полка большая
|
Сб. ед
|
2
|
1086
|
400
|
16
|
21
|
0,75
|
0,9
|
0,678
|
3,772
|
1
|
1
|
152,87
|
0,01308
|
|
8
|
Полка малая
|
Сб. ед
|
2
|
533
|
400
|
16
|
21
|
0,75
|
0,9
|
0,678
|
1,733
|
1
|
1
|
216,29
|
0,00925
|
|
9
|
Плинтусная
вкладка
|
Сб. ед
|
1
|
1652
|
380
|
16
|
21
|
0,75
|
0,9
|
0,678
|
4,288
|
1
|
1
|
134,48
|
0,00744
|
|
Итого:
|
0,05388
|
Таблица 21 - Расчет раскроя кратных деталей на станке Ц6-2
|
№
|
Наименование
детали
|
Материал
|
Количество
|
Размер
заготовки, мм
|
Площадь, м.
кв.
|
z
|
Кр
|
Операционное
время tоп, чел-час
|
Норма времени
Нвр, ст-час/ изделие
|
|
|
|
|
длина
|
ширина
|
толщина
|
|
|
|
|
|
|
1
|
2
|
3
|
4
|
5
|
6
|
7
|
8
|
9
|
10
|
11
|
12
|
|
1
|
Дверь малая
|
Сб. ед
|
2
|
574
|
560
|
16
|
|
|
|
|
|
|
-
|
основа
|
МДФ
|
2
|
574
|
560
|
16
|
0,321
|
2
|
15
|
0,00251
|
0,00289
|
|
2
|
Ст. ящика
наклад.
|
Сб. ед
|
2
|
480
|
560
|
16
|
|
|
|
|
|
|
-
|
основа
|
МДФ
|
2
|
480
|
560
|
16
|
0,269
|
2
|
15
|
0,00502
|
0,00577
|
|
3
|
Плинтусная
вкладка
|
Сб. ед
|
1
|
1652
|
380
|
16
|
|
|
|
|
|
|
-
|
основа
|
ЛДСтП
|
1
|
1652
|
380
|
16
|
0,628
|
2
|
15
|
0,00824
|
0,00948
|
|
Итого:
|
0,01814
|
Таблица 22 - Расчет присадки по пласти и кромке на
многошпиндельном станке Scipper100
|
№
|
Наименование
детали
|
Материал
|
Количество
|
Размер
заготовки, мм
|
Площадь, м.
кв.
|
z
|
Кр
|
Операционное
время tоп, чел-час
|
Норма времени
Нвр, ст-час/ изделие
|
|
|
|
|
длина
|
ширина
|
толщина
|
|
|
|
|
|
|
1
|
2
|
3
|
4
|
5
|
6
|
7
|
8
|
9
|
10
|
11
|
12
|
|
1
|
Стенка боковая
|
Сб. ед
|
2
|
1248
|
416
|
16
|
0,519
|
2
|
24
|
0,00639
|
0,00792
|
|
2
|
Стенка
горизонт.
|
Сб. ед
|
2
|
1652
|
416
|
16
|
0,678
|
2
|
24
|
0,00678
|
0,00841
|
|
3
|
Стенка вертик.
|
Сб. ед
|
1
|
1116
|
416
|
16
|
0,464
|
2
|
24
|
0,00302
|
0,00374
|
|
4
|
Стенка горизонт.
|
Сб. ед
|
1
|
1090
|
416
|
16
|
0,453
|
2
|
24
|
0,00302
|
0,00374
|
|
5
|
Ст. гориз.
внут. мал.
|
Сб. ед
|
2
|
546
|
416
|
16
|
0,227
|
2
|
24
|
0,00454
|
0,00563
|
|
6
|
Перегородка
|
Сб. ед
|
1
|
540
|
416
|
16
|
0,225
|
2
|
24
|
0,00227
|
0,00281
|
|
7
|
Полка большая
|
Сб. ед
|
2
|
1086
|
400
|
16
|
0,434
|
2
|
24
|
0,00565
|
0,00701
|
|
8
|
Полка малая
|
Сб. ед
|
2
|
533
|
400
|
16
|
0,213
|
24
|
0,00454
|
0,00563
|
|
Итого:
|
0,04489
|
Таблица 23 - Расчет присадки под чашку петли на станке DB-150
|
№
|
Наименование
детали
|
Материал
|
Количество
|
Размер
заготовки, мм
|
Площадь, м.
кв.
|
z
|
Кр
|
Операционное
время tоп, чел-час
|
Норма времени
Нвр, ст-час/ изд
|
|
|
|
|
длина
|
ширина
|
толщина
|
|
|
|
|
|
|
1
|
2
|
3
|
4
|
5
|
6
|
7
|
8
|
9
|
10
|
11
|
12
|
|
1
|
Дверь
|
Сб. ед
|
2
|
572
|
560
|
16
|
0,320
|
1
|
20
|
0,01472
|
0,01766
|
|
2
|
Дверь средняя
|
Сб. ед
|
1
|
328
|
560
|
16
|
0,184
|
1
|
20
|
0,00736
|
0,00883
|
|
3
|
Дверь малая
|
Сб. ед
|
1
|
287
|
560
|
16
|
0,321
|
1
|
20
|
0,00736
|
0,00883
|
|
Итого:
|
0,03532
|
Таблица 24 - Расчет присадки на станке П-700
|
№
|
Наименование
детали
|
Материал
|
Количество
|
Размер
заготовки, мм
|
Площадь, м.
кв.
|
z
|
Кр
|
Операционное
время tоп, чел-час
|
Норма времени
Нвр, ст-час/ изд
|
|
|
|
|
длина
|
ширина
|
толщ-на
|
|
|
|
|
|
|
1
|
2
|
3
|
4
|
5
|
6
|
7
|
8
|
9
|
10
|
11
|
12
|
|
1
|
Ст. ящика
наклад.
|
Сб. ед
|
2
|
120
|
560
|
16
|
0,067
|
1
|
17
|
0,00908
|
0,01062
|
|
2
|
Плинтусная
вкладка
|
Сб. ед
|
1
|
1652
|
92
|
16
|
0,150
|
1
|
17
|
0,00454
|
0,00531
|
|
Итого:
|
0,01593
|
4.5.2 Расчет
потребности в оборудовании и его загрузки
Годовая потребность в оборудовании определяется отношением
годового объёма работ, устанавливаемого суммой затрат времени по операциям на
изделие в целом, к годовому фонду рабочего времени.
Для каждой детали составляется перечень операций, отмеченных
кружками и расположенных в порядке их выполнения. Суммируя нормы времени по
вертикали, получают затраты времени на изделие по каждой операции.
Полученные значения умножают на годовую программу и получают
затраты времени, необходимые для выполнения годовой программы выпуска, по
каждой операции.
Расчётное количество станков или рабочих мест определяется
путём деления затрат времени, потребного на годовую программу, на располагаемый
фонд времени работы оборудования.
Принятое количество станков получают, округляя расчётное до
целого числа. При этом следует учитывать, что загрузка не должна превышать
115%.
Процент загрузки получается путём деления расчётного
количества станков на принятое и умножив на 100. Средний процент загрузки Р, %
определяется по формуле [21]:
, (16)
где n
, n
,…, n
- количество станков данного типа;
, P
,…, P
- процент загрузки станка, %.
Р = (106*1+28*1+73*1+89*1+99*1+34*1+83*1+64*1+30*1) /9 = 72%
Принимаем программу П = 70000 изделий в год. Данное количество
изделий вполне отвечает потребностям рынка мебельной продукции, поэтому
программа в корректировке не нуждается.
Схема технологического производства мебели для гостиной и расчет
потребного количества оборудования представлены в таблице 25.
Таблица 25 - Схема технологического процесса и расчет
количества потребного оборудования
|
№
|
Наименование
детали
|
Материал
|
Количество
|
Размер детали
в чистоте, мм
|
оборудование
|
|
|
|
|
|
Selso EBT 120L
|
Optimat STO
111/C
|
Rover22
|
ORMA
|
рабоч. место
|
IMA Novimat
|
Ц 6-2
|
IMA Novimat
|
Scipper 100
|
DB-150
|
П-700
|
|
|
|
|
длина
|
ширина
|
толщина
|
операции
|
|
|
|
|
|
|
|
Раскрой
листовых и плитных матов
|
калибрование
|
фрезерование по
периметру
|
Облицовывание
пластин
|
Обработка на
рабочем месте
|
облицовывание
кромки
|
Раскрой кратных
деталей
|
облицовывание
кромки кратных деталей
|
присадка по
пластин и кромке
|
присадка под
чашку петли
|
присадка по
пластин и кр. в малых деталях
|
|
1
|
2
|
3
|
4
|
5
|
6
|
7
|
8
|
9
|
10
|
11
|
12
|
13
|
14
|
15
|
16
|
17
|
18
|
|
1
|
Ст. боковая
|
Сб. ед
|
2
|
1248
|
416
|
16
|
|
|
|
|
|
|
|
|
|
|
|
|
-
|
основа
|
ЛДСтП
|
2
|
1248
|
416
|
16
|
0,00649
|
|
|
|
|
0,00930
|
|
|
0,00792
|
|
|
|
-
|
облиц. кром. по
длине
|
кром. мат-л
|
2
|
1248
|
16
|
0,3
|
|
|
|
|
|
|
|
|
|
|
|
|
-
|
облиц. кром. по
ширине
|
кром. мат-л
|
4
|
416
|
16
|
0,3
|
|
|
|
|
|
|
|
|
|
|
|
|
2
|
Ст. горизонт.
|
Сб. ед
|
2
|
1652
|
416
|
16
|
|
|
|
|
|
|
|
|
|
|
|
|
-
|
основа
|
ЛДСтП
|
2
|
1652
|
416
|
16
|
0,00777
|
|
|
|
|
0,00642
|
|
|
0,00841
|
|
|
|
-
|
облиц. кром. по
длине
|
кром. мат-л
|
2
|
1652
|
16
|
0,3
|
|
|
|
|
|
|
|
|
|
|
|
|
3
|
Ст. вертик.
|
Сб. ед
|
1
|
1116
|
416
|
16
|
|
|
|
|
|
|
|
|
|
|
|
|
-
|
основа
|
ЛДСтП
|
1
|
1116
|
416
|
16
|
0,00276
|
|
|
|
|
0,00228
|
|
|
0,00374
|
|
|
|
-
|
облиц. кром. по
длине
|
кром. мат-л
|
1
|
1116
|
16
|
0,3
|
|
|
|
|
|
|
|
|
|
|
|
|
4
|
Ст. горизонт.
|
Сб. ед
|
1
|
1090
|
416
|
16
|
|
|
|
|
|
|
|
|
|
|
|
|
-
|
основа
|
ЛДСтП
|
1
|
1090
|
416
|
16
|
0,00275
|
|
|
|
|
0,00224
|
|
|
0,00374
|
|
|
|
-
|
облиц. кром. по
длине
|
кром. мат-л
|
1
|
1090
|
16
|
0,3
|
|
|
|
|
|
|
|
|
|
|
|
|
5
|
Ст. гор. вн.
мал
|
Сб. ед
|
2
|
546
|
416
|
16
|
|
|
|
|
|
|
|
|
|
|
|
|
-
|
основа
|
ЛДСтП
|
2
|
546
|
416
|
16
|
0,00413
|
|
|
|
|
0,00259
|
|
|
0,00563
|
|
|
|
-
|
облиц. кром. по
длине
|
кром. мат-л
|
2
|
546
|
16
|
0,3
|
|
|
|
|
|
|
|
|
|
|
|
|
6
|
Перегородка
|
Сб. ед
|
1
|
540
|
416
|
16
|
|
|
|
|
|
|
|
|
|
|
|
|
-
|
основа
|
ЛДСтП
|
1
|
540
|
416
|
16
|
0,00207
|
|
|
|
|
0,00128
|
|
|
0,00281
|
|
|
|
-
|
облиц. кром. по
длине
|
кром. мат-л
|
1
|
540
|
16
|
0,3
|
|
|
|
|
|
|
|
|
|
|
|
|
7
|
Полка большая
|
Сб. ед
|
2
|
1086
|
400
|
16
|
|
|
|
|
|
|
|
|
|
|
|
|
-
|
основа
|
ЛДСтП
|
2
|
1086
|
400
|
16
|
0,00551
|
|
|
|
|
0,01308
|
|
|
|
-
|
облиц. кром. по
длине
|
кром. мат-л
|
4
|
1086
|
16
|
0,3
|
|
|
|
|
|
|
|
|
|
|
|
|
-
|
облиц. кром. по
ширине
|
кром. мат-л
|
4
|
400
|
16
|
0,3
|
|
|
|
|
|
|
|
|
|
|
|
|
8
|
Полка малая
|
Сб. ед
|
2
|
533
|
400
|
16
|
|
|
|
|
|
|
|
|
|
|
|
|
-
|
основа
|
ЛДСтП
|
2
|
533
|
400
|
16
|
0,00413
|
|
|
|
|
0,00925
|
0,00289
|
|
0,00563
|
|
|
|
-
|
облиц. кром. по
длине
|
кром. мат-л
|
4
|
533
|
16
|
0,3
|
|
|
|
|
|
|
|
|
|
|
|
|
-
|
облиц. кром. по
ширине
|
кром. мат-л
|
4
|
400
|
16
|
0,3
|
|
|
|
|
|
|
|
|
|
|
|
|
9
|
Дверь
|
Сб. ед
|
2
|
572
|
560
|
16
|
|
|
|
|
|
|
|
|
|
|
|
|
-
|
основа
|
МДФ
|
2
|
572
|
560
|
16
|
0,00472
|
0,00541
|
0,01559
|
|
|
|
|
|
|
0,01766
|
|
|
-
|
облиц. пласти
|
термо-пленка
|
2
|
572
|
560
|
0,6
|
|
|
|
0,02778
|
|
|
|
|
|
|
|
|
10
|
Дверь средняя
|
Сб. ед
|
1
|
328
|
560
|
16
|
|
|
|
|
|
|
|
|
|
|
|
|
-
|
основа
|
МДФ
|
1
|
328
|
560
|
16
|
0,00177
|
0,00185
|
0,00655
|
|
|
|
|
|
|
0,00883
|
|
|
-
|
облиц. пласти
|
термо-пленка
|
1
|
328
|
560
|
0,6
|
|
|
|
0,00794
|
|
|
|
|
|
|
|
|
11
|
Дверь малая
|
Сб. ед
|
1
|
287
|
560
|
16
|
|
|
|
|
|
|
|
|
|
|
|
|
-
|
основа (2-х
кратная)
|
МДФ
|
1
|
574
|
560
|
16
|
0,00236
|
0,00274
|
0,00634
|
|
|
|
|
|
|
0,00883
|
|
|
|
|
|
|
|
|
|
|
|
|
|
|
|
|
|
|
|
|
1
|
2
|
3
|
4
|
5
|
6
|
7
|
8
|
9
|
10
|
11
|
12
|
13
|
14
|
15
|
16
|
17
|
18
|
|
-
|
облиц. пласти
|
термо-пленка
|
1
|
287
|
560
|
0,6
|
|
|
|
0,00694
|
|
|
|
|
|
|
|
|
12
|
Ст. ящ. накл.
|
Сб. ед
|
2
|
120
|
560
|
16
|
|
|
|
|
|
|
|
|
|
|
|
|
-
|
основа (4-х
кратная)
|
МДФ
|
2
|
480
|
560
|
16
|
0,00413
|
0,00477
|
0,01099
|
|
|
|
0,00577
|
|
|
|
0,01062
|
|
-
|
облиц. пласти
|
термо-пленка
|
2
|
120
|
560
|
0,6
|
|
|
|
0,00556
|
|
|
|
|
|
|
|
|
13
|
Плинт вклад.
|
Сб. ед
|
1
|
1652
|
92
|
16
|
|
|
|
|
|
|
|
|
|
|
|
|
-
|
основа (4-х
кратная)
|
ЛДСтП
|
1
|
1652
|
380
|
16
|
0,00325
|
|
|
|
|
|
0,00948
|
0,00744
|
|
|
0,00531
|
|
-
|
облиц. кром. по
длине
|
кром. мат-л
|
2
|
1652
|
16
|
0,3
|
|
|
|
|
|
|
|
|
|
|
|
|
-
|
облиц. кром. по
ширине
|
кром. мат-л
|
2
|
380
|
16
|
0,3
|
|
|
|
|
|
|
|
|
|
|
|
|
14
|
Стенка задняя
|
ДВП
|
1
|
1142
|
1678
|
3
|
0,00546
|
|
|
|
|
|
|
|
|
|
|
|
Итого:
потребное количество станко-часов на изделие
|
0,05730
|
0,01477
|
0,03947
|
0,04822
|
|
0,05388
|
0,01814
|
См.13
|
0,04489
|
0,03532
|
0,01593
|
|
Потребное
кол-во ст-часов на программу 70000 шт/г
|
4011
|
1033,9
|
2762,9
|
3375,4
|
|
3771,6
|
1269,8
|
|
3142,3
|
2472,4
|
1115,1
|
|
Располагаемый
фонд времени работы оборуд-я, ст-час
|
3797,7
|
3797,7
|
3797,7
|
3797,7
|
|
3797,7
|
3879,4
|
|
3797,7
|
3879,4
|
3797,7
|
|
Расчетное
количество станков
|
1,06
|
0,28
|
0,73
|
0,89
|
|
0,99
|
0,34
|
|
0,83
|
0,64
|
0,30
|
|
Принятое
количество станков
|
1
|
1
|
1
|
1
|
|
1
|
1
|
|
1
|
1
|
1
|
|
Процент
загрузки оборудования
|
106
|
28
|
73
|
89
|
|
99
|
34
|
|
83
|
64
|
30
|
4.6 Расчет
потребности в транспортных средствах
Расчет производительности погрузчика А, м3 в смену
производится по формуле [11]:
А=K* (T/t) *q, (17)
где К - коэффициент использования погрузчика;
Т - продолжительность смены, мин;- продолжительность одного
цикла работы, мин;- объем перевозимого груза, м3.
= Kc (tз + tпод + tпер
+ tоп+ tразгр), (18)
где Kc - коэффициент совмещения операций;c
=0,9з - время автоматического захвата груза, мин;з =0,1под,tоп
- соответственно время подъема и опускания груза;
под =0,1, tоп =0,1
пер - время перемещения погрузчика, мин;пер
=30разгр - время разгрузки, мин;разгр =45
под= tоп=hr/Vr,
где hr - высота подъема груза, м;r -
средняя скорость подъема или опускания груза, м/мин;
пер = 2 Ln/Vn,
где Ln - расстояние перемещения погрузчика, м;n
- средняя скорость перемещения погрузчика, м/мин;
под = tоп=0,5/5=0,1 минпер =
2*150/10=30 мин
загр= tразгр=45 мин
=0,9 (0,1+0,1+30+45+45) =108,18 м/мин
А= 480*0,97/108,18*3=13м3/см
Потребное количество подъемно-транспортного оборудования:
=Q*η/A, (19)
где Q - сменное количество перевозимых или перегружаемых
материалов;
А - сменная производительность подъемно-транспортного
оборудования, т/см;
η - коэффициент,
учитывающий простои оборудования при планово-предупредительном ремонте.
= 690*13=8,97т=8,97/13*0,95=0,656
Принимаем один электропогрузчик ЭП-205.
Грузоподъемность оборудования электорпогрузчика, кг 2000
Высота подъема складского оборудования, мм 3300
Скорость передвижения с грузом, км/ч 1,5
Ширина погрузчика, мм1000
Тяговая аккумуляторная батарея, вольт 48
4.7 Расчет
площади промежуточных складов для хранения сырья и полуфабрикатов, а также мест
технологической выдержки. Общий расчет необходимых площадей для организации
производственного процесса
В состав общей площади цеха входят производственная и
вспомогательная площади. Производительная площадь включает:
площадь занятую рабочими местами;
площадь занятую межоперационными запасами;
площадь занятую проходами и проездами.
К вспомогательным площадям относятся площади помещений
мастерских, кладовых, бытовых и конторских помещений, заточных, расположенных
на площади цеха.
Если учесть, что площадь проходов и проездов составляет около
40% от всей производственной площади, а вспомогательные помещения - 20%.
Расчет площади рабочих мест удобно вести в форме таблицы 26.
Таблица 26 - Расчет площади рабочих мест
|
№
|
Наименование
оборудования и рабочих мест
|
Марка
оборудования
|
Количество
единиц
|
Площадь на
единицу, м2
|
Потребная
площадь, м2
|
|
1
|
2
|
3
|
4
|
5
|
6
|
|
1
|
Раскроечный
центр с ЧПУ
|
SELCO EBТ 120L
|
1
|
100
|
100
|
|
2
|
Калибровально-шлифовальный
станок
|
Optimat STO
111/C
|
1
|
25
|
25
|
|
3
|
Многооперационный
обрабатывающий центр
|
Rover 22
|
1
|
60
|
60
|
|
4
|
Автоматический
мембранно-вакуумный пресс
|
ORMA
|
1
|
144
|
144
|
|
5
|
Рабочее место
|
|
1
|
16
|
16
|
|
6
|
Автоматический
кромкооблицовочный станок
|
IMA Novimat
|
80
|
80
|
|
7
|
Станок
круглопильный универсальный
|
Ц6-2
|
1
|
16
|
16
|
|
8
|
Многошпиндельный
автоматический станок
|
Scipper 100
|
1
|
60
|
60
|
|
9
|
Сверлильный
станок
|
DB-150
|
1
|
20
|
20
|
|
10
|
Станок
присадочный
|
П-700
|
1
|
20
|
20
|
|
Итого:
|
541
|
|
|
|
|
|
|
|
Площадь промежуточного склада определяем по формуле
(20)
где
- площадь промежуточного склада, м2,
- производительность участка, м3/ч,
- продолжительность хранения, ч,
- длина, ширина, толщина соответственно заготовки, имеющей
наибольший формат, м,
- высота стопы, м табл.3.4, [20]),
- коэффициент заполнения стопы (табл.3.4, [21]),
- коэффициент заполнения склада (табл.3.4, [21]).
Расчет площади промежуточного склада представлен в таблице 27.
Таблица 27 - Расчет площади промежуточного склада
|
Оборудование
|
Длина, а, мм
|
Ширина, b, мм
|
Толщина, h, мм
|
Норма времени
|
Производительность
участка, А, м3/час
|
Срок хранения,
Тсхр, ч
|
Высота стопы,
h, м
|
Коэффициент
заполнения стопы, β1
|
Коэффициент
заполнения склада, β2
|
Площадь
промежуточного склада, Sскл, м2
|
|
SELCO EBТ 120L
|
1652
|
416
|
16
|
0,00777
|
128,7
|
8
|
1,8
|
0,81
|
0,5
|
15,5
|
|
|
Optimat STO
111/C
|
572
|
560
|
16
|
0,000541
|
369,45
|
8
|
1,8
|
0,81
|
0,5
|
20,8
|
|
|
ORMA
|
572
|
560
|
16
|
0,00833
|
240
|
8
|
1,8
|
0,81
|
0,5
|
4
|
|
|
IMA Novimat
|
1652
|
416
|
16
|
0,00642
|
155,76
|
8
|
1,8
|
0,81
|
0,5
|
18,8
|
|
|
Scipper 100
|
1652
|
416
|
16
|
0,00841
|
119
|
8
|
1,8
|
0,81
|
0,5
|
14,4
|
|
|
73,5
|
|
|
|
|
|
|
|
|
|
|
|
|
|
|
|
|
|
|
|
|
Расчетная площадь цеха определяется по формуле
(21)
где
- расчетная площадь цеха, м2,
- площадь всех складов, м2.
Подставив
значения в формулу, получим
=1082+73,5=1155,5 м2
Площадь реконструируемого участка цеха равна 2160 м2, а
расчетную площадь цеха получили - 1155,5 м2, следовательно площадь
участка цеха предназначенного для реконструкции достаточна.
4.8 Расчет
потребности в инструменте и оборудовании для заточки инструмента
Инструментальное хозяйство предприятия представляет собой
совокупность отделов и цехов, занятых проектированием, приобретением,
изготовлением и ремонтом технической оснастки, а также ее учетом, хранением и
выдачей в цехе и на рабочие места. От правильной организации инструментального
хозяйства зависит успех работы всего предприятия, качество продукции, объем
продукции и рентабельность работы.
Основные задачи инструментального хозяйства:
своевременное и бесперебойное обеспечение цехов и рабочих
мест качественной технологической оснасткой инструментов;
повышение качества оснастки и организация рациональной
эксплуатации;
снижение затрат на изготовление, приобретение, хранение и
эксплуатацию оснастки;
организация заточки и восстановления инструмента, ремонта
оснастки и мерительного инструмента.
Инструментальные хозяйства включают раздаточные кладовые и
заточные мастерские. В штат хозяйства должны входить: инженер по инструменту,
начальник заточной мастерской, сменные мастера, пилоточи, ножеточи, установщики
и наладчики.
Для нормальной и бесперебойной работы предприятие должно
иметь соответствующий запас инструмента. [21]
На основании технологической карты составлена ведомость
оборудования, представленная в таблице 28.
Таблица 28 - Ведомость оборудования
|
№
|
Наименование
оборудования
|
Марка станка
|
Кол-во станков
|
Наименование
инструмента
|
Число
одинаковых инструментов в комплекте
|
Всего
инструмен-тов
|
|
1
|
Раскроечный
центр с ЧПУ
|
SELCO EBТ 120L
|
1
|
пила дисковая
|
1
|
1
|
|
|
|
|
пила подрезн.
|
1
|
1
|
|
2
|
Многопера-ционный
обрабатываю-щий центр
|
Rover 22
|
1
|
шпиндели
|
70
|
70
|
|
3
|
Станок
круглопильный универсальный
|
Ц6-2
|
1
|
пила круглая
|
1
|
1
|
|
|
|
|
пила пдрезная
|
1
|
1
|
|
4
|
Многошпин -
дельный автоматический станок
|
Scipper 100
|
1
|
шпиндели
|
78
|
78
|
|
5
|
Сверлильный
станок
|
DB-150
|
1
|
сверла чашечные
|
2
|
2
|
|
6
|
Станок
присадочный
|
П-700
|
1
|
Сверла
спиральные
|
4
|
4
|
Годовой расход инструмента определяется по формуле
, (22)
где P - годовой расход инструмента данного типа, шт/год,
T - продолжительность
работы инструмента в году, ч,- число одновременно работающих
одинаковых инструментов комплекте,
а - величина
допускаемого стачивания инструмента, мм,
b - величина
уменьшения рабочей за одну переточку, мм,
t - продолжительность
работы инструмента без переточки, ч, - процент на поломку и непредвиденные
расходы.
Значения величин а, b, t, q находят из таблицы 3.9 [21].
Определение годового расхода инструмента данного типа представлено
в таблице 29.
Таблица
29 - Расчет годового расхода инструмента
|
Наименование
оборудования
|
Инструмент
|
Т, ч
|
N
|
а, мм
|
b, мм
|
t, мин
|
q
|
Р, шт/год
|
|
SELCO EBТ 120L
|
пила дисковая
|
3818,5
|
1
|
7
|
0,3
|
130
|
25
|
2
|
|
пила дисковая
|
3818,5
|
1
|
7
|
0,3
|
130
|
25
|
2
|
|
Ц6-2
|
пила дисковая
|
1269,8
|
1
|
7
|
0,3
|
130
|
25
|
1
|
|
Rover 22
|
фреза
|
2762,9
|
2
|
2
|
0,2
|
30
|
25
|
25
|
|
DB-150
|
сверло чашечное
|
2472,4
|
2
|
6
|
0,3
|
20
|
10
|
14
|
|
Scipper 100
|
сверло
спиральное
|
3142,3
|
4
|
4
|
0,25
|
30
|
15
|
31
|
|
П-700
|
сверло
спиральное
|
1115,1
|
4
|
4
|
0,25
|
30
|
15
|
11
|
Составлена спецификация инструментов в форме таблицы 30.
Таблица 30 - Спецификация инструмента
|
№
|
Наименование
инструмента
|
Размер
инструмента, мм
|
Годовая
потребность, шт
|
|
|
длина
|
ширина
|
толщина
|
диаметр
|
|
|
1
|
Пила дисковая
|
-
|
-
|
2,2
|
400
|
2
|
|
2
|
Пила подрезная
|
-
|
-
|
2,2
|
200
|
2
|
|
3
|
Фреза
|
-
|
-
|
-
|
10
|
25
|
|
4
|
Пила круглая
|
-
|
-
|
2,2
|
400
|
1
|
|
5
|
Пила подрезная
|
-
|
-
|
2,2
|
200
|
1
|
|
6
|
Сверло
спиральное
|
|
|
|
8
|
31
|
|
7
|
Сверло чашечное
|
-
|
-
|
-
|
35
|
14
|
|
8
|
Сверло
спиральное
|
|
|
|
8
|
11
|
Потребное количество заточных станков определяется по формуле
, (23)
где tз - продолжительность заточки,
мин (таблица 3.10 [21]),
n -
количество станков данного типа,
N - число
инструментов в комплекте,
t -
продолжительность работы без переточки, мин,
K -
коэффициент использования станка.
Для пилоточных автоматов К=0,8; для ножеточных К=0,6; для прочих
К=0,7.
Расчет потребности в заточных станках сведен в таблицу 31.
Таблица 31 - Расчет потребного количества заточных станков
|
Оборудование
|
Кол-во
|
Наименование
инструмента
|
Кол-во в
комплекте
|
Всего инст-тов
|
t3,
мин
|
t мин
|
K
|
Zшт
|
|
SELCO EBТ 120L
|
1
|
пила дисковая
|
2
|
2
|
90
|
130
|
0,8
|
2
|
|
Ц6-2
|
1
|
пила дисковая
|
1
|
90
|
130
|
0,8
|
1
|
|
Rover 22
|
1
|
фреза
|
2
|
2
|
4
|
30
|
0,7
|
1
|
|
DB-150
|
1
|
сверло чашечное
|
2
|
2
|
1,0
|
20
|
0,7
|
1
|
|
Scipper 100
|
1
|
сверло
спиральное
|
4
|
4
|
1
|
30
|
0,7
|
1
|
|
П-700
|
1
|
сверло
спиральное
|
4
|
4
|
1
|
30
|
0,7
|
1
|
|
∑ для пил
|
3
|
|
∑ для
фрез
|
1
|
|
∑ для
сверла чашечного
|
1
|
|
∑ для
сверла спирального
|
1
|
Приминается для пил 3 заточных станка, для фрез 1 заточный
станок, для сверла чашечного - 1, для сверла спирального - 1. Общее количество
заточных станков - 6 шт.
4.9 Расчет
пневмотранспортных систем
Для эффективного удаления получаемых при обработке ЛДСтП
отходов от сверлильно-присадочных станков Scipper 100 и П-700 используем
цеховую пневмотранспортную установку обычного типа (с магистралью переменного
сечения).
Для расчета пневмотранспортной установки (ПТУ) данного вида
уточняются следующие данные:
размеры участка: L=90 м, B=18 м, H=4,8 м;
марки станков: Scipper 100 и П-700;
расходная концентрация аэросмеси: μ=0,15;
влажность отходов обрабатываемой древесины: W=8 %;
разветвленный трубопровод имеет верхнюю разводку;
центробежный вентилятор установлен на фундаменте в отдельном
помещении;
циклон с повышенной степенью очистки типа Ц расположен вблизи
цеха на металлической ферме, под циклоном находится сборный герметический
бункер.
Нормативные данные из технической характеристики станков,
которые обслуживаются проектируемой ПТУ представлены в таблице 32.
Таблица 32 - Нормативные данные обслуживаемых цеховой ПТУ
станков
|
Марка станка
|
Scipper 100
|
П-700
|
|
Число
приемников станка, n, шт
|
1
|
1
|
|
Расположение
приемников
|
В
|
Б
|
|
Расход воздуха
приемником, Q, м3/ч
|
950
|
513
|
|
Минимальная
скорость воздуха в трубопроводе, Vmin, м/с
|
18
|
18
|
|
Минимальный
диаметр отсасывающей трубы, dmin, мм
|
100
|
100
|
|
Коэффициент
местного сопротивления приемника, ξпр
|
1
|
1
|
Магистральный трубопровод размещается под потолком цеха таким
образом, чтобы его осевая линия находилась ниже потолка на 0,2-0,3 м. Длина
стояка к верхнему приемнику рассчитывается по формуле
(24)
где
- длина стояка к верхнему приемнику, м,
- высота цеха, м,
- высота станка, м.
Длина стояка к боковому приемнику больше, чем к верхнему.
(25)
Высота магистрального стояка принята с учетом того, что вентилятор
устанавливается на фундамент.
Высоту магистрального стояка рекомендуется определять по формул
(26)
где
- длина магистрального стояка, м.
Секундный расход воздуха в ответвлении определяется по формуле
, (27)
где Q - расход воздуха, м3/с,
Qmin - минимальный расход воздуха, м3/с.
Расчетный диаметра ответвлений рассчитывается по формуле
, (28)
где dрасч - расчетный диаметр ответвлений, м,
Vmin - минимальная скорость воздуха в трубопроводе, м/с.
Фактическая скорость воздуха находится по формуле
, (29)
где
Vф
- фактическая скорость воздуха, м/с,
dприн - принятый диаметр ответвлений, м.
Динамическое давление рассчитывается по формуле
, (30)
где Рд - динамическое давление, Па,
ρ - плотность воздуха кг/м2, ρ=1,2, кг/м2,Vф
- фактическая скорость воздуха, м/с.
Потери давления определяются по формуле
, (31)
где ΔР - потери давления, Па,
- отношение, принимаемое по П2 [6] в зависимости от диаметра
трубы и скорости в ней,
l - длина
участка, м,
∑ξ - суммарный коэффициент местного сопротивления.
Суммарный коэффициент местного сопротивления рассчитывается по
формуле
(32)
где
ξпр - коэффициент местного сопротивления приемника;
nk - число
колен на участке,
,15 - коэффициент местного сопротивления.
По формулам (27) - (32) произведем расчет для первого и второго
участка
Расчет ответвления к первому станку Scipper 100.
м.
Ближайший стандартный размер - 130 мм. Принимаем d1=130 мм
(0,13м).
Необходимо, чтобы фактическая скорость воздуха в трубе была не
ниже нормативной, а диаметр ответвления - не менее минимального нормативного:
;
.
Па,
м,
Па.
Расчет ответвления ко второму станку П-700.
м.
Расчетный диаметр соответствует стандартному поэтому уточнение
скорости не требуется.
Па,
м,
Па.
Расхождения между потерями давления на параллельных участках
определяется из следующего соотношения
, (33)
где
- расхождения между потерями давления на
параллельных участках, %
Р1 - потери давления на первом участке, Па,
Р2 - потери давления на первом участке, Па.
,
Расхождения между потерями давления на параллельных участках
получились больше 5%.
Увеличим расход воздуха на втором участке. Примем Q2=0,165
, тогда скорость составит
Давление на втором участке
Па.
Потери на втором участке
Па.
Расхождения между потерями давления на параллельных участках
меньше 5%.
Расчет сборной трубы:
Суммарный расход воздуха через сборную трубу определяется по
формуле
(34)
где
Qс
- суммарный расход воздуха через сборную трубу,
,
Q1
- расход воздуха через трубу на первом участке,
,
Q2
- расход воздуха через трубу на втором участке,
.

.
Скорость воздуха в сборной трубе назначим для надежного
транпортирования аэросмеси 18 м/с. Диаметр сборной трубы рассчитывается по
формуле
, (35)
где dс - диаметр сборной трубы, м;
Qс
- суммарный расход воздуха через сборную трубу, м3/с;
Vс
- скорость воздуха в сборной трубе. м/с.
Рассчитанный диаметр соответствует стандартному, следовательно
уточнение скорости не требуется.
Динамическое давление, соответствующе этой скорости определяется
по формуле
, (36)
где Рд - динамическое давление, Па,
ρ - плотность воздуха кг/м2, ρ=1, 206, кг/м2,V
- фактическая скорость воздуха в сборной
трубе, м/с.
, Па.
Потери давления в сборной трубе определяются по формуле
, (37)
где
ΔРс - потери давления в сборной трубе, Па,
- отношение, принимаемое по П2 [6] в зависимости от диаметра
трубы и скорости в ней,
Lс - длина участка сборной трубы м,
∑ξс - суммарный коэффициент местного сопротивления.
Длина сборной трубы
м.
Коэффициент местных сопротивлений в сборной трубе
.
Потери давления в сборной трубе
, Па.
Общие потери в установке, исключая циклон, рассчитываются по
формуле
(38)
где ΔРПТУ - общие потери в установке, исключая
циклон, Па,
ΔРс - потери давления в сборной трубе, Па,
ΔРд - средняя величина потерь давления в
ответвлениях к станкам, Па.
Па.
Потери давления при работе на аэросмеси находятся по формуле
, (39)
где ΔРс
- потери давления на
рабочем режиме, Па,
ΔРПТУ - общие потери в установке, исключая циклон,
Па,
К - опытный
коэффициент, К=1,9 (стр.129, [6]),
μ - расходная концентрация аэросмеси.
Па.
Количество подаваемого вентилятором воздуха рассчитывается по
формуле
, (40)
Где
Q - требуемый
расход воздуха, м3/с,
Qс
- суммарный расход воздуха через сборную трубу, м3/с.
.
Выбираем циклон типа Ц-450 (табл. 19 [6]), рассчитанный на расход
воздуха 1,5-2,2
. Размеры входного патрубка а=225
мм, в=115 мм; соответственно с площадью входного патрубка S
=0,025875 м2.
Скорость аэросмеси во входном патрубке циклона рассчитывается по
формуле
, (41)
где
- скорость воздуха во входном патрубке
циклона, м/с,
Qвх - требуемый расход воздуха, м3/с,
S
- площадь входного патрубка циклона.
, м/с.
Коэффициент местного сопротивления циклона типа Ц ξц=5,0. Потери динамического давления в циклоне определяются
по формуле
, (42)
где
- потери давления в циклоне, Па;
ξц - коэффициент местных сопротивлений циклона;
ρ - плотность воздуха кг/м2, ρ=1,2 кг/м2;
- скорость воздуха во входном патрубке циклона, м/с.
, Па.
Потери давления в циклоне рассчитываются при работе на чистом
воздухе.
Суммарные потери давления в ПТУ находятся по формуле
, (43)
где
- суммарные потери давления в ПТУ, Па,
ΔРсм - потери давления на рабочем режиме, Па,
- потери давления в циклоне, Па.
Па.
Требуемый напор вентилятора определяется по формуле
, (44)
где Н - требуемый напор вентилятора, Па,
- суммарные потери давления в ПТУ, Па.
Па.
По аэродинамической характеристики (рис.28 [6]) подобран
вентилятор ЦП 7-40 №5, имеющий при Q=1692м3/ч и Н=2585,7Па
ηа=0,40 и частоту вращения лопастного колеса
nв=2250 мин-1.
Потребная мощность на привод вентилятора определяется по формуле
, (45)
где N - потребная мощность на привод вентилятора, кВт,
Кпуск - коэффициент запаса мощности на пуск, Кпуск =1,1
[6],
Кпр. аэ - коэффициент запаса мощности на прохождение аэросмеси, Кпр.
аэ =1,2 [4],
Q -
требуемый расход воздуха, м3/ч,
Н -
требуемый напор вентилятора, Па,
ηа - КПД привода,
ηпр=0,95 при использовании клиноременной передачи (стр.100
[6]).
кВт.
По П3 [6] выбираем электродвигатель 4А100S2У3, имеющий Nдв=4
кВт и nдв=2880 мин-1. Передаточное отношение
клиноременной передачи:
, (46)
где
- передаточное отношение клиноременной
передачи;
nдв - частота вращения двигателя, мин-1;
nв - частота
вращения лопастного колеса, мин-1.
Часовую производительность ПТУ по отходам вычисляется по формуле
, (47)
где Пр - производительность ПТУ по отходам, т/ч,
μ - расходная концентрация аэросмеси,
Q -
требуемый расход воздуха, м3/ч.
т/ч.
Энергоемкость процесса удаления отходов определяется по формуле
, (48)
где Э - энергоемкость процесса удаления отходов, кВт·ч/т;
Nрасч - потребная мощность на привод вентилятора, кВт,
Пр -
производительность ПТУ по отходам, т/ч.
кВт·ч/т.
Расчет цеховой ПТУ обычного типа представлен в таблице 33.
Таблица 33 - Расчет цеховой ПТУ обычного типа
|
№ участка
|
Q, м3/с
|
d, м
|
V, м/с
|
l, м
|
∑ξ
|
Рд, Па
|
ΔP, Па
|
∑ΔР,
Па
|
Δ, %
|
|
1
|
0.264
|
0.130
|
18
|
13,8
|
1.15
|
194.4
|
647,4
|
647,4
|
-
|
|
2
|
0.165
|
0.100
|
21
|
4.8
|
1.3
|
264,6
|
620,9
|
620,9
|
4,1
|
|
С
|
0.429
|
0.170
|
18
|
17,6
|
0.45
|
194.4
|
474,1
|
1121,5
|
-
|
4.10 Выбор
систем отопления и их расчет
Система отопления служит для поддержания требуемой
температуры в помещениях и компенсации теплопотерь через ограждения. Система
отопления состоит из генератора тепловой энергии, нагревательных приборов и
трубопроводов или каналов, соединяющих генератор с нагревательными приборами.
Для данного проекта принято паровое отопление с температурой
до 1700. Для производственных помещений деревообрабатывающих
предприятий предельная температура поверхности нагревательных приборов не
должна превышать 110-1300, для бытовых помещений - 1500.
Место расположения предприятия - г. Воронеж.
Наименование участка - цех по производству корпусной мебели.
Мощность цеха - 70000 изделий.
Строительный объем здания - 6480м3.
Тепловой баланс определяется по формуле
(49)
где Qобщ - общий расход тепла, кДж/ч,
Qогр - потери тепла через ограждения, кДж/ч,
Qвен - расход тепла на нагрев воздуха, удаляемого из помещения, кДж/ч,
Qн. м - расход тепла на нагрев поступающих в цех материалов, кДж/ч,
Qт. в. - сумма
всех тепловыделений в помещении, кДж/ч.
Потери тепла через ограждения определяются по формуле
, (50)
где q0 - тепловая характеристика здания, Вт/м3
град,
V3д
- строительный объем здания по наружному обмеру, м3,tв
- температура воздуха в помещении, 0С,
tн. в. - расчетная
температура наружного воздуха, 0С.
Из таблицы 1 [10] для строительного объема здания 6480 м3
определяем его тепловую характеристику q0 =0,52 Вт/м3град.
Температуру воздуха в помещении в соответствии с приложением Е
[20] принимаем равной tв=180С. Расчетную
температуру наружного воздуха принимаем по приложению А [10] tнв=-260С.
Потери тепла через ограждения составят
кДж/ч.
Потери тепла на нагрев воздуха, удаляемого из помещения
рассчитываются по формуле
, (51)
где G - количество удаляемого воздуха, кг/ч.
Объем воздуха, удаляемого пневмотранспортными установками и
принимаемый по техническим характеристикам оборудования, принят равным SELCO
EBТ 120L - 1625 м3/ч; ROVER 22 - 1700 м3/ч; Optimat STO
111/C - 1830 м3/ч; IMA - 39720 м3/ч; DB-150 - 480м3/ч;
Scipper 100 - 3000м3/ч; Ц6-2 - 840 м3/ч; П-700 - 400 м3/ч.
Суммарный объем воздуха, удаляемого из помещения, определяем по
формуле
, (52)
где V - объем удаляемого из помещения воздуха, м3/ч,
- суммарное количество воздуха, удаляемого через местные отсосы,
включая пневмотранспортные установки, м3/ч,
кг/ч
В весовом выражении объем удаляемого воздуха находится по формуле
м3 /ч.
Потери тепла на нагрев воздуха, удаляемого из помещения, составят
кДж/ч.
Расход тепла на нагрев поступающих в цех материалов определяем по
формуле
, (53)
где Gм. i. - масса i-го материала, кг/ч,
См
- теплоемкость материала, кДж/кг ∙град,
tм - температура поступающего в цех материала, 0С,
В -
коэффициент интенсивности поглощения тепла материалом,
К -
количество наименований материалов, поступающих в цех (в расчет принимаются
лишь основные материалы, составляющие основу конструкции изделия).
Основу конструкции изделия мебели составляют щиты из ЛДСтП и МДФ.
Определяем массу материалов, поступающих в цех по формуле
, (54)
где Pi - расход i-го материала на единицу
продукции, выраженный в кг,
П - годовой
выпуск продукции,
Тэф
- годовой эффективный фонд времени работы цеха, ч,
N - число
дней отопительного периода,
n - число
календарных дней в году.
кг/ч,
кг/ч,
кг/ч.
В приведенных расчетах значения 6,595 1,269 и 2,188 соответствуют
расходу ЛДСтП, МДФ и ДВП на один набор в м3, определенному в
соответствующем разделе дипломного проекта, 700 - плотность ЛДСтП и МДФ, 900 -
ДВП.
Расход тепла на нагрев материала составит
кДж/ч.
В данном расчете удельная теплоемкость ЛДСтП принята в
соответствии с таблицей 3, значение коэффициента В из таблицы 4
методических указаний [20].
Температура поступающих в цех материалов принята на 100С
выше расчетной температуры наружного воздуха (-26 0С).
Общее количество тепла, выделяемого в цехе, определяется по
формуле
тв=qто+qэд+qм+qэн+qл,
(55)
где Qтв - общее количество тепла,
выделяемого в цехе, кДж/ч,
qто - тепловыделения от технологического
оборудования, кДж/ч,
qэд - тепловыделения от электродвигателей,
кДж/ч,
qм - тепловыделения при охлаждении нагретых
материалов, кДж/ч,
qэн - количество тепла, выделяемое при работе
электронагревателей, кДж/ч,
qл - тепловыделения от людей, кДж/ч.
Тепловыделения от электродвигателей рассчитываются по формуле
, (56)
где
- коэффициент, характеризующий отношение
средней фактически расходуемой мощности к установленной (
=0,2-0,25) [10],
- суммарная установленная мощностей электродвигателей, кВт.
кДж/ч.
В цехе нет оборудования от которого происходят тепловыделения,
нагретых материалов и электронагревателей, поэтому qто, qм,
qэн не рассчитываются.
Тепловыделения от людей также не учитываются, так как объем
помещения, приходящийся на одного работающего более 50 м3.
Таким образом, общее количество тепла, выделяемого в цехе,
составит
Qтв=19085,4 кДж/ч.
Тепловой баланс определим по формуле (24)
кДж/ч.
Годовой расход тепла в рабочее время определяется по формуле
, (57)
где Qгр - годовой расход тепла в рабочее время,
кДж/год,
К -
коэффициент, учитывающий число рабочих дней в отопительный период. При
пятидневной К=0,714 [10],
n - число
календарных дней отопительного периода,
m - число
часов работы цеха в сутки,
tср
- средняя наружная температура за отопительный сезон, 0С,
tно
- расчетная температура наружного воздуха для холодного периода, 0С.
кДж/год.
Годовой
расход тепла в нерабочее время определяется по формуле
, (58)
где
- годовой расход тепла в нерабочее время,
кДж/год,
Qогр - потери тепла через ограждения, кДж/ч,
tд
- температура воздуха в цехе в нерабочее время (принимается равной 50С).
кДж/год.
Годовой расход тепла на отопление цеха определяется по формуле
, (59)
где Qгод - годовой расход тепла, кДж/год.
кДж/год.
4.11 Расчет
общей потребности в электроэнергии. Выбор трансформаторов и компенсаторов
реактивной мощности
Потребители электроэнергии по характеру нагрузки разделяются
на силовые и осветительные.
Энергия, передаваемая за единицу времени, называется
реактивной мощностью (нагрузкой).
Геометрическая сумма активной и реактивной мощности
называется полной мощностью.
Потребляемая активная мощность для силовой и осветительной
определяется из следующих формул соответственно
(60)
(61)
где
,
- потребляемая активная мощность для силовой и осветительной
соответственно, кВт,
,
- установленная мощность потребителей
силовой энергии и осветительной, кВт,
- коэффициент спроса для силовой нагрузки, учитывающий потери
мощности в двигателе, в сети, а также одновременность работы и загрузку
двигателей, (табл.4.1),
- коэффициент спроса для осветительной нагрузки, учитывающий
потери мощности в сети и одновременность использования приборов освещения.
Коэффициент спроса для осветительной нагрузки находится по формуле
(62)
где
- коэффициент одновременности,
- коэффициент, учитывающий потери в сети,
=1,06-1,07.
Годовое потребление электроэнергии для силовой и осветительной нагрузки
определяется по формулам соответственно
(63),
(64)
где
,
- годовое потребление электроэнергии для силовой и осветительной
нагрузки соответственно, кВт,
Т - число
часов работы в году, ч,
ТГ - число часов горения в году, ч.
Расчет количества электроэнергии, потребляемой силовой и
осветительной нагрузкой представлен в таблице 34 и 35 соответственно.
Таблица 34 - Расчет количества электроэнергии, потребляемой
силовой нагрузкой
№ Наименование потребителя Число
потребите-лей Общая установленная мощность Руст, кВт Коэффици-ент
спроса Кс Коэффициент мощности, cos
Потребляемая
активная
мощность
Рсил, кВтЧисло часов работы в году, Т, чГодовое потреб-ление
электроэнергии,
|
Асил, кВт/ч
|
|
|
|
|
|
1
|
2
|
3
|
4
|
5
|
6
|
7
|
8
|
9
|
|
1
|
Раскроечный
центр с ЧПУ
|
1
|
24
|
0,6
|
0,70
|
14,4
|
3818,5
|
54986,4
|
|
2
|
Калибровально-шлифовальный
станок
|
1
|
15,0
|
0,6
|
0,7
|
9
|
1033,9
|
9305,1
|
|
3
|
Станок
круглопильный
|
1
|
4,0
|
0,4
|
0,55
|
1,6
|
1269,8
|
2031,68
|
|
4
|
Обрабатывающий
центр
|
1
|
7,5
|
0,3
|
0,50
|
2,3
|
2762,9
|
6354,67
|
|
5
|
Мембранно-вакуумный
пресс
|
1
|
22
|
0,3
|
0,6
|
6,6
|
3375,4
|
22277,64
|
|
6
|
Кромкооблицовочный
станок
|
1
|
20
|
0,6
|
0,7
|
12
|
3771,6
|
45259,2
|
|
7
|
Многошпиндельный
станок
|
1
|
15
|
0,3
|
0,50
|
4,5
|
3142,3
|
14140,35
|
|
8
|
Сверлильный
станок
|
1
|
1,5
|
0,3
|
0,50
|
0,45
|
2472,4
|
1112,58
|
|
9
|
Станок
присадочный
|
1
|
3,7
|
0,3
|
0,50
|
1,11
|
1115,1
|
1237,76
|
|
Итого:
|
|
112,7
|
|
|
51,96
|
|
156705,38
|
Таблица 35 - Расчет количества электроэнергии, потребляемой осветительной
нагрузкой
|
Наименование
потребителей
|
Площадь пола F,
м2
|
Удельный расход
элктроэнер-гии, q, Вт/м2
|
Установленная
мощность Руст. осв= =q*F, кВт
|
Коэффици-ент
одновременности, Кодн
|
Потери в сети,
Кпот
|
Потребляемая
активная мощность, Росв, кВт
|
Число часов
горения в году, Тг, ч
|
Годовое
потребление элктроэнергии, Аосв, кВт/ч
|
|
Участок
механической обработки
|
1620
|
20
|
32,4
|
1
|
1,06
|
34,34
|
2200
|
75548
|
|
Итого:
|
|
|
|
|
|
34,34
|
|
75548
|
Реактивная мощность определяется по формуле
, (65)
где Q - реактивная мощность, квар,
- суммарная потребляемая активная мощность, кВт,
- средневзвешенное значение коэффициента мощности.
Полная мощность рассчитывается по формуле
, (66)
где S - полная мощность, ква.
Средневзвешенное значение коэффициента мощности определяется по
формуле
, (67)
где
,
,…,
- коэффициент мощности потребителя,
,
,…,
- количество потребителей.
Подставив, соответствующие значения в формулы (40), (41), получим
квар.
ква.
Реактивная мощность конденсатора определяется по формуле
, (68)
где
- тангенс угла, соответствующий
существующему средневзвешенному
,
- тангенс угла, соответствующий существующему
,
=0,92-0,95.
Тангенс угла, соответствующий существующему средневзвешенному
находится по формуле
, (69)
.
квар.
По полученному
из таблицы 4.6 [21] выбран конденсатор - тип Км 0,40-36-3; число
фаз - 3; напряжение - 400 В; мощность - 36 квар; емкость 726 мкф.
Необходимая мощность трансформаторной подстанции определяется по
формуле
, (70)
где Ртр - необходимая мощность трансформаторной
подстанции, кВт,
- суммарная потребляемая активная мощность для осветительной
нагрузки, кВт,
- коэффициент максимума нагрузки,
=1,55-2,3.
кВт.
4.12 Расчет
расхода сжатого воздуха. Выбор компрессоров и воздухосборников
Сжатый воздух расходуется в пневмоприводах и зажимных
устройствах. Расчет расхода сжатого воздуха сведен в таблицу 36
Таблица 36 - Расчет расхода сжатого воздуха
|
№
|
Наименование
потребителя
|
Кол-во потреб.
|
Средний расход
воздуха, м3/мин
|
|
|
|
на единицу
|
всего
|
|
1
|
Раскроечный
центр с ЧПУ SELCO EBТ 120L
|
1
|
0,15
|
0,15
|
|
2
|
Обрабатывающий
центр Rover22
|
1
|
1,15
|
1,15
|
|
Итого:
|
|
1,3
|
1,3
|
По суммарному среднему расходу определяется расчетный расход
сжатого воздуха
, (71)
где Qрасч - расчетный расход сжатого воздуха, м3/мин,
Кр
- поправочный коэффициент на неучтенные потребители,
Кп
- коэффициент, учитывающий потери,
Км
- коэффициент, учитывающий максимальный расход.
м3/мин.
Выбран компрессор марки ВУ-3/4, объем воздухосборника - 2,0 м3.
4.13 Расчет
расхода горячей воды на технологические нужды
Горячая вода используется в основном для промывки
оборудования, тары, а также для подогрева емкостей со смолой. Годовой расход
определяется на основании расчетных данных о производственном потреблении
горячей воды (таблица 37).
Таблица 37 - Расчет расхода горячей воды
|
№
|
Наименование
потребителя
|
Режим
водопотребления
|
Расход горячей
воды, м3/год
|
|
1
|
Емкость для
хранения смолы V=25 м3
|
Промывка 1 раз
в месяц
|
96
|
|
2
|
Мерник для
смолы ВР-6/0,250
|
Промывка 1 раз
в смену
|
9,0
|
|
3
|
Ванна для мытья
|
Периодическое
наполнение 1 раз в смену
|
104
|
|
4
|
Трубопроводы
|
Промывка 1 раз
в сутки
|
104
|
|
5
|
Кабина для
нанесения клея
|
Промывка 1 раз
в смену
|
10,4
|
4.14
Организация технического контроля
Отдел технического контроля (ОТК) - самостоятельный
структурный отдел предприятия. В своей деятельности отдел технического контроля
руководствуется ГОСТами, ОСТами и другой нормативно-технической документацией.
Отдел технического контроля подчиняется непосредственно директору предприятия и
в своей работе независим от других подразделений и служб. Начальник ОТК
назначается и освобождается от должности вышестоящей организацией по
представлению директора предприятия.
В обязанности ОТК входит не только регистрация, учет,
фиксирование качества выпускаемых изделий, но также анализ и воздействие на ход
производства. ОТК призван обеспечивать выпуск продукции со строго
регламентированными показателями при минимальных потерях в производстве, а
также своевременно предотвращать возможные нарушения запроектированного
технического процесса.
В деятельности службы контроля можно выделить два основных
направления: борьбу за повышение качества выпускаемой продукции и борьбу с
браком, сокращение или ликвидацию связанных с ним потерь.
Технический контроль на предприятиях выполняется на базе
документов. Для качественного выполнения контрольных и испытательных операций
разрабатывают технологию и методы контроля и технологические инструкции на
контрольные испытания. От уровня технологии контроля и испытаний в значительной
мере зависит эффективность деятельности контролеров. Технология определяет
метод, вид и средства контроля, которые обеспечивают получение продукции заданного
качества при наименьших затратах на выполнение контрольных операций.
Для дальнейшего повышения эффективности контроля производят
типизацию его операций, которая сокращает их количество. Большое значение в
технологии контроля имеет его вид, который выбирают в зависимости от
особенностей и характера производства. Ответственное место в системе контроля
занимает входной, или предварительный, контроль. Цель входного контроля - не
допустить на предприятие недоброкачественное сырье, материалы, полуфабрикаты, комплектующие
изделия.
Приемочный, или окончательный, контроль выполняют при
заключительной приемке изделий, выпускаемых цехом или предприятием. Он
ограждает потребителя от брака, влияет на дальнейшее совершенствование
производства. По месту проведения контроль бывает стационарный и подвижный,
выполняемый непосредственно на рабочем месте исполнителя технологической
операции. Различают также контроль сплошной и выборочный. Сплошному контролю
подлежат все объекты, изготовленные на данном рабочем месте. Сплошной контроль
изделий в условиях крупносерийного и массового производства трудоемок и дорог.
В этих условиях достаточно проверить часть объектов партии. При установлении
процента выборки учитывают сложность и роль детали в изделии, стабильность
технологии, применяемые средства контроля и т.п. Если при выборочном контроле в
проверяемой партии выявляют дефектные экземпляры, всю партию бракуют. Таким
образом предупреждают попадание брака на следующие операции.
Выборочный контроль значительно повышает оперативность и
достоверность, снижает объем и трудоемкость контрольных операций, содействует
росту культуры производства. Однако при выпуске особо ответственных изделий
статистический контроль, как правило, не применяется, так как требуется
сплошной контроль.
По назначению контроль бывает предупредительный, призванный
предотвратить появление брака. Для этого под контроль берут первые детали,
наладку оборудования. Этот контроль дает возможность оперативно применять
необходимые меры для обеспечивания эффективного хода производства. Очень важен
в системе технологического контроля самоконтроль оператора. Летучий контроль
применяют для малоответственных изделий и технологических процессов. Он может
быть только выборочным.
При высокой производительности современного деревообрабатывающего
оборудования самоконтроль оператора в деревообрабатывающем производстве
приобретает исключительно важное значение. Операции самоконтроля - неотъемлемая
часть технологического процесса. Следовательно, они должны быть предусмотрены
технологическим процессом.
Самоконтроль на предприятиях позволяет значительно сократить
штат контролеров ОТК. При соблюдении операторами самоконтроля можно допускать
выборочную приемку ОТК от 2 до 5% изделий из каждой партии, что резко сократит
объем работы контролеров ОТК. Для стимулирования перехода на самоконтроль
следует материально заинтересовать рабочих, выполняющих дополнительные
контрольные функции. [8]
5.
Безопасность жизнедеятельности
5.1
Мероприятия по улучшению условий труда и повышению безопасности жизнедеятельности
При проведении реконструкции цеха с целью производства
корпусной мебели изменился технологический процесс, который требует обеспечения
оптимальных условий труда, увеличения эффективности работы и снижения
травматизма.
Предлагается провести следующие мероприятия
организационно-технического характера:
в связи с введением нового оборудования произвести
пусконаладочные работы, обучение безопасному обслуживанию станков;
организовать новые рабочие места соответственно требованиям
эргономики для рабочих мест при выполнении работ стоя ГОСТ 12.2.032;
провести меры для повышения электробезопасности
нововведенного оборудования, что достигается применением систем защитного
заземления;
установить на рабочих местах искусственное освещение;
усовершенствовать систему пневмотранспортных установок;
провести выбор рационального режима труда и отдыха,
лечебно-профилактические мероприятия.
В связи с внедрением нового оборудования, приводим расчеты
общего искусственного освещения, заземления, необходимого количества первичных
средств пожаротушения и запаса воды для тушения пожара [17].
5.2 Проектный
расчет по безопасности жизнедеятельности
5.2.1 Расчет
общего искусственного освещения
Таблица 38 - Исходные данные
|
Размеры
помещения
|
Высота подвеса
светильника над рабочей поверхностью, hсв, м
|
Запыленность
воздуха, мг/м³
|
|
длина (А), м
|
ширина (В), м
|
высота (Н), м
|
|
|
|
90
|
18
|
4,8
|
3
|
5-10
|
. По условиям окружающей среды выбираем необходимый тип
светильника
Тип светильника: ОДР - с люминесцентными лампами.
. По расстоянию объекта глаз работающего уточняем необходимую
минимальную освещенность - Еmin - 150 лк
. По характеру выполняемой работы и размерам различаемых
объектов, фону и контрасту определяем разряд и под разряд работы - Разряд - IY;
Под разряд - Б
. По запыленности и задымленности определяем необходимый
коэффициент запаса К и периодичность чистки светильников
К=1,4. Чистка - 1 раз в месяц.
. По типу светильника определяем отношение расстояние между
светильниками к высоте подвеса светильника
(72)
γ = 1,4
. По отношению γ определяем расстояние между светильниками (м)
(73)св = 1,4х3 = 4,2
. По наличию у стен рабочих мест определяем расстояние от стены до
первого ряда светильников (м)
(74)
. Определяем расстояние между крайними рядами светильников по
ширине помещения (м)
(75)
. Определяем число рядов, которое можно будет расположить между
крайними рядами по ширине помещения (шт)
(76)
. Определяем общее число рядов светильников по ширине
. Определяем расстояние между крайними рядами светильников по
длине помещения (м)
(78)
. Определяем число рядов светильников, которое можно будет
расположить между крайними рядами по длине помещения
(79)
. Определяем общее число рядов светильников по длине
(80)
. Определяем число светильников, которое необходимо установить по
длине и ширине (шт.)
(81)
. Определяем показатель помещения
(82)
. Определяем коэффициенты отражения от стен, пола, потолка
ρст = 0,41
ρпол = 0,53
ρпотол = 0,79
. Определяем коэффициент использования светового потока
ηи = 0,65
. Определяем значение коэффициента, учитывающего неравномерность
освещения= 1,11
. Определяем площадь пола помещения (м2)
= AxB = 90x18 = 1620
. Определяем потребный световой поток одной лампы (лм)
(83)
Отклонение потока Фл таб. от расчетного попадает в
предел - 10 и +20 % Фл таб. =3570 лм
. По напряжению в сети и световому потоку одной лампы определяется
необходимая мощность электролампы (Вт)л = 65
. По принятой мощности и световому потоку определяем
действительную освещенность (лк)
(84)
. Определяем мощность осветительной установки (Вт)
о. у. =NхWлхm (85)о. у. = 84х65х2=10920
. По мощности осветительной установки общего освещения определяем
силу тока (А). Силу тока с учетом запаса 20% можно определить по формуле
(86)
5.2.2 Расчет
сопротивления заземляющего устройства в однородном грунте для электроустановок
напряжением до 1000 В.
Таблица 39 - Исходные данные
|
Мощность
электроуста-новок, кВхА
|
Вид грунта
|
Тип заземлителя
и его размеры
|
Климатическая
зона
|
Состояние земли
по влаж-ности
|
|
|
Стержневой
круглого сечения
|
Длина, м
|
Диаметр, м
|
Ширина полосы,
м
|
|
|
|
24
|
Суглинок
|
|
1,5
|
0,05
|
0,05
|
II
|
повыш.
|
Устанавливается наибольшее допустимое сопротивление
растеканию тока в зависимости от мощности электроустановки (Ом)д =
10
Устанавливается удельное сопротивление грунта (Ом∙м)
ρ = 100
Определяем коэффициенты сезонности для вертикального и
горизонтального электродов, учитывающие изменение сопротивления грунта в
различное время года:
Ксв = 1,7
Ксг = 5,9
Определяем расчетное сопротивление грунта с учетом
коэффициента сезонности:
ρсв = ρ х Ксв = 100х1,7 = 170 Ом۰ì
ρсг = ρ х Ксг = 100х5,9 = 590 Ом۰ì
Определяем расстояние от поверхности земли до середины
вертикального заземлителя (м)
(87)
где в - длина одиночного заземлителя, м
t0
- глубина заложения заземлителя от поверхности грунта, м
Определяем сопротивление растеканию тока одиночного вертикального
заземлителя (Ом)
(88)
Определяем число одиночных вертикальных заземлителей без учета
коэффициента использования ηив (шт)
(89)
Определяем расстояние между стержнями (м)
=c۰lв (90)с = 1 ۰ 1,5 = 1,5
Определяем коэффициент использования вертикальных стержневых
заземлителей
ηив = 0,59
Определяем число одиночных вертикальных заземлителей с учетом
коэффициента использования ηив (шт)
(91)
Определяем длину соединительной полосы (м)
(92)
Определяем сопротивление растеканию тока одиночного
горизонтального заземлителя (Ом)
(93)
Определяем коэффициент использования для соединяющего
горизонтального электрода
ηиг = 0,52
Определяем общее расчетное сопротивление растеканию тока в
вертикальных и горизонтальных заземлителях (Ом)
(94)
Вывод: Rобщ = 9,04 ≤ Rд=10 Ом,
заземляющее устройство соответствует требованиям безопасности ПУЭ.
5.2.3 Ðàñ÷åò
íåîáõîäèìîãî
êîëè÷åñòâà ïåðâè÷íûõ
ñðåäñòâ ïîæàðîòóøåíèÿ
è çàïàñà âîäû
äëÿ òóøåíèÿ ïîæàðà
1. Îïðåäåëÿåì
âèä è íåîáõîäèìîå
êîëè÷åñòâî ïåðâè÷íûõ
ñðåäñòâ ïîæàðîòóøåíèÿ.
Ïî ðåçóëüòàòàì
ðàñ÷åòîâ íà öåõ
ïëîùàäüþ 1620 ì2
íåîáõîäèìî 8 óãëåêèñëîòíûõ
ðó÷íûõ îãíåòóøèòåëåé
ìàðêè ÎÓ - 5, 16 âîçäóøíî-ïåííûõ
îãíåòóøèòåëåé
ìàðêè ÎÂÏ - 10,8 ÿùèêîâ
ñ ïåñêîì åìêîñòüþ
1 ì3, ëîïàòà.
. Îïðåäåëÿåì
êàòåãîðèþ ïîìåùåíèÿ
ïî âçðûâîïîæàðíîé
è ïîæàðíîé îïàñíîñòè.
Ïî âçðûâîïîæàðíîé
è ïîæàðíîé îïàñíîñòè
äàííîå ïîìåùåíèå
îòíîñèòñÿ ê êàòåãîðèè
Â.
. Îïðåäåëÿåì
îáúåì ïðîèçâîäñòâåííîãî
ïîìåùåíèÿ (ì3)
(95)
. Îïðåäåëÿåì
ñåêóíäíûé ðàñõîä
âîäû (q), ë/ñ íà òóøåíèå
íàðóæíîãî ïîæàðà.
Ñ ó÷åòîì îáúåìà
çäàíèÿ, êàòåãîðèè
ïîìåùåíèÿ ïî
âçðûâîïîæàðíîé
è ïîæàðíîé îïàñíîñòè
è ñòåïåíè îãíåñòîéêîñòè
çäàíèÿ ïðèíèìàåì
q = 15.
. Îïðåäåëÿåì
êîëè÷åñòâî ïîæàðîâ,
ïîäëåæàùèõ îäíîâðåìåííîìó
òóøåíèþ.
Èñõîäÿ èç òîãî,
÷òî ïëîùàäü ïðåäïðèÿòèÿ
äî 150 ãà, òî êîëè÷åñòâî
ïîæàðîâ ðàâíî
1.
. Îïðåäåëÿåì
îáùèé ðàñõîä
âîäû äëÿ íàðóæíîãî
ïîæàðîòóøåíèÿ
(ì3)
(96)
6. Èñïîëüçîâàíèå
ÑÀÏÐ ÁÀÇÈÑ äëÿ
ïðîåêòèðîâàíèÿ
èçäåëèÿ "Øêàô
äëÿ ãîñòèíîé"
Íà ïðåäïðèÿòèÿõ
ëþáîé îòðàñëè
ïðîìûøëåííîñòè,
â òîì ÷èñëå è ìåáåëüíîé,
øèðîêî èñïîëüçóþòñÿ
ðàçëè÷íûå àâòîìàòèçèðîâàííûå
ñèñòåìû. Èìååòñÿ
ðÿä òðóäîåìêèõ,
ðóòèííûõ çàäà÷
ïðîåêòèðîâàíèÿ
äëÿ ðåøåíèÿ, êîòîðûõ
öåëåñîîáðàçíî
èñïîëüçîâàòü
ÑÀÏÐ.
Ïîëîæèòåëüíûå
êà÷åñòâà ÑÀÏÐ:
îáëåã÷àåò
êîíñòðóêòîðñêèå
è òåõíîëîãè÷åñêèå
ðàáîòû;
ñîêðàùàåò
ñðîêè ðàçðàáîòêè
èçäåëèé, óìåíüøàåò
èõ ìàòåðèàëîåìêîñòü,
èñêëþ÷àåò õèùåíèÿ
ìàòåðèàëîâ è
êîìïëåêòóþùèõ
è ò.ä.;
ñîêðàùàåò
ñðîêè èñïîëíåíèÿ
è ïîäãîòîâêè
êîíñòðóêòîðñêîé
è òåõíè÷åñêîé
äîêóìåíòàöèè,
ïðè ýòîì óëó÷øàåò
èõ êà÷åñòâî;
ïîçâîëÿþò
ïîëíîñòüþ èñêëþ÷èòü
ïîâòîðåíèå îäíèõ
è òåõ æå äåéñòâèé;
ñîñòàâëÿåò
ïðîãðàììû äëÿ
îáîðóäîâàíèÿ
ñ ÷èñëîâûì ïðîãðàììíûì
îáåñïå÷åíèåì
(×ÏÓ).
 íàñòîÿùåå
âðåìÿ ñóùåñòâóåò
ìíîæåñòâî ñèñòåì
ÑÀÏÐ, òàêèå êàê:
ÁÀÇÈÑ;
D-Constructor;Ìåáåëü;
"Àñòðà Êîíñòðóêòîð
Ìåáåëè";
"Ê3-Ìåáåëü-ÏÊÌ";
Ñðåäè ïåðå÷èñëåííûõ
ÑÀÏÐ øèðîêîå ðàñïðîñòðàíåíèå
ïîëó÷èëà ÁÀÇÈÑ.
 íàñòîÿùåå âðåìÿ
îíà àêòèâíî ýêñïëóàòèðóåòñÿ
íà ñîòíÿõ êðóïíûõ,
ñðåäíèõ è ìåëêèõ
ìåáåëüíûõ ïðåäïðèÿòèÿõ,
âûïóñêàþùèõ
ìåáåëü ñåðèéíî
è ïî èíäèâèäóàëüíûì
çàêàçàì. Ñðîê
îêóïàåìîñòè
ñèñòåìû íà áîëüøèíñòâå
ïðåäïðèÿòèé ñîñòàâëÿåò
îò òðåõ äî äåâÿòè
ìåñÿöåâ.
Ñèñòåìà ÁÀÇÈÑ
- óíèâåðñàëüíàÿ,
îíà ïîçâîëÿåò
ðàáîòàòü ñ ëþáîé
êîðïóñíîé ìåáåëüþ
íåçàâèñèìî îò
åå ñëîæíîñòè:
êóõîííîé, îôèñíîé,
ìåáåëüþ äëÿ æèëûõ
êîìíàò, ãîñòèíèö
è ïàíñèîíàòîâ
è ò.ä. Ïðè ýòîì êàæäîå
ñïðîåêòèðîâàííîå
èçäåëèå ìîæåò
ñëóæèòü ïðîòîòèïîì
äëÿ íîâûõ èçäåëèé.
Äëÿ ýòîãî â ñèñòåìå
ðàçðàáîòàí ñïåöèàëüíûé
àïïàðàò ðåäàêòèðîâàíèÿ
èçäåëèé.
ÁÀÇÈÑ ëåãêî
ñîïðÿãàåòñÿ ñ
äðóãèìè ïðîãðàììàìè.
 íåì ïðåäóñìîòðåíû
âîçìîæíîñòè
ýêñïîðòà èíôîðìàöèè
â íàèáîëåå ïîïóëÿðíûå
ôîðìàòû îáìåíà
äàííûìè è èìååò
èíòóèòèâíî ïîíÿòíûé
èíòåðôåéñ.
Îòëè÷èòåëüíàÿ
îñîáåííîñòü
ñèñòåìû ÁÀÇÈÑ
- íàëè÷èå ó íåãî
ñïåöèàëüíîé ïðîãðàììû
"Áèáëèîòåêàðü
÷åðòåæåé”, ðàáîòàþùåé
ñ èåðàðõè÷åñêè
îðãàíèçîâàííûìè
(äðåâîâèäíûìè)
áèáëèîòåêàìè
èçäåëèé. "Áèáëèîòåêàðü
÷åðòåæåé” îáåñïå÷èâàåò
âûïîëíåíèå îïåðàöèé
ñëåäóþùèõ òðåõ
îñíîâíûõ òèïîâ:
) îïåðàöèé ïî
îáðàùåíèþ ê áèáëèîòåêå
â öåëîì (ñîçäàòü/îòêðûòü
ôàéë, ñîçäàòü/îòêðûòü
ñïèñîê áèáëèîòåê);
) îïåðàöèé ïî
îáðàùåíèþ ê êàæäîìó
êîìïîíåíòó áèáëèîòåêè
â îòäåëüíîñòè
(äîáàâèòü ëèñò/ôðàãìåíò,
çàìåíèòü òåêóùèé
ëèñò/ôðàãìåíò,
äîáàâèòü èç ôàéëà,
ñêîïèðîâàòü â
ôàéë);
) ñåðâèñíûõ
îïåðàöèé (ðàçâåðíóòü/ñâåðíóòü
äåðåâî).
ÁÀÇÈÑ èìååò
ìîäóëü ÁÀÇÈÑ-ØÊÀÔ
- ýòî ìîäóëü ïàðàìåòðè÷åñêîãî
ïðîåêòèðîâàíèÿ
øèðîêîãî êëàññà
èçäåëèé êîðïóñíîé
ìåáåëè ñî ñðåäñòâàìè
àâòîìàòè÷åñêîãî
ñîçäàíèÿ êîíñòðóêòîðñêîé
äîêóìåíòàöèè.
Ðàáîòà ñ ïàðàìåòðè÷åñêîé
ìîäåëüþ â èíòåðàêòèâíîì
ðåæèìå, íàëè÷èå
áîëüøîãî êîëè÷åñòâà
àâòîìàòè÷åñêè
âûïîëíÿåìûõ ôóíêöèé
êîíñòðóèðîâàíèÿ
è êîíòðîëÿ ñîêðàùàåò
äî ìèíèìóìà âðåìÿ
ðàçðàáîòêè íîâûõ
èçäåëèé. Ìîùíûé
àïïàðàò ðåäàêòèðîâàíèÿ
ïîçâîëÿåò èçìåíÿòü
ëþáûå ïàðàìåòðû
èçäåëèÿ, ñîõðàíÿÿ
ïðè ýòîì îáùóþ
ñòðóêòóðó è âçàèìîñâÿçü
ìåæäó ñîñòàâíûìè
÷àñòÿìè.
Òàêèì îáðàçîì,
ÑÀÏÐ ÁÀÇÈÑ ìîæåò
ñëóæèòü õîðîøåé
îñíîâîé ðåàëüíîé
àâòîìàòèçàöèè
ìåáåëüíûõ ïðåäïðèÿòèé.
6.1 Òåõíè÷åñêîå
çàäàíèå íà "Øêàô
äëÿ ãîñòèíîé"
Òðåáóåòñÿ
ðàçðàáîòàòü
øêàô äëÿ ãîñòèíîé.
Îí äîëæåí ñîîòâåòñòâîâàòü
òðåáîâàíèÿì
ÃÎÑÒ 16371-93. Òèï êîðïóñà
III, íà ïðîõîäíûõ
îïîðíûõ âåðòèêàëüíûõ
ñòåíêàõ. Ïîðÿäêîâûé
íîìåð êîðïóñà
Æ-26. Ãàáàðèòíûå
ðàçìåðû: ðàçìåð
êîðïóñà ïî âûñîòå
H=1248 ìì, ðàçìåð ïðîåìà
ïî âûñîòå h=1116 ìì,
ðàçìåð äâåðåé
ïî øèðèíå 560 ìì
(3 øò.), ðàçìåð êîðïóñà
ïî øèðèíå B=1684 ìì,
ðàçìåð ïðîåìà
ïî øèðèíå b = 1652 ìì
è ãëóáèíà êîðïóñà
S=416 ìì. Êîðïóñ èçãîòîâëåí
èç ËÄÑòÏ, ôàñàä
èç ÌÄÔ, îáëèöîâàííûé
ãëÿíöåâîé òåðìîðåàêòèâíîé
ïëåíêîé. Êîðîáêà
ÿùèêà âûïîëíåíà
òàêæå èç ËÄÑòÏ.
Çàäíÿÿ ñòåíêà
- ÄÂÏ òîëùèíîé
3 ìì. Ôóðíèòóðà
äîëæíà ñîîòâåòñòâîâàòü
òðåáîâàíèÿì
ÎÑÒ 13-40 2005.
Ýñêèç èçäåëèÿ,
ïðîåêòíàÿ äîêóìåíòàöèÿ
ïðåäñòàâëåíû
â ïðèëîæåíèè Á.
Èç-çà îãðàíè÷åíèÿ
â îáúåìå äèïëîìíîãî
ïðîåêòà, ÷åðòåæè
äåòàëåé ïðåäñòàâëåíû
íå ïîëíîñòüþ.
6.2 Ïðîåêòèðîâàíèå
íàèáîëåå ïðîñòûõ
ñ òî÷êè çðåíèÿ
ãåîìåòðèè è ñòðóêòóðû
êîðïóñîâ ñ ïîìîùüþ
ìîäóëÿ óíèâåðñàëüíîãî
ïðîåêòèðîâàíèÿ
ÁÀÇÈÑ - Øêàô
Óêðóïíåííûé
àëãîðèòì ðàçðàáîòêè
ìîäåëè âûãëÿäèò
ñëåäóþùèì îáðàçîì:
. Ïðîåêòèðîâàíèå
îáúåêòà:
à) ïðîèçâîäèòñÿ
îáìåð ïîìåùåíèÿ,
ðàñïîëîæåíèÿ
îêîí, äâåðíûõ
ïðî¸ìîâ, óðîâíåé
âûêëþ÷àòåëåé,
ðîçåòîê è îðèåíòèðîâàíèå
ïî ñòîðîíàì ñâåòà.
á) îïðåäåëÿåòñÿ
öâåòîâîå ðåøåíèå
ñòåí, íàïîëüíîãî
ïîêðûòèÿ, ïîòîëêà
è èçäåëèÿ â íþàíñíîé
èëè êîíòðàñòíîé
ãàðìîíèè.
â) îïðåäåëÿåòñÿ
òèï íåñóùåãî
êîðïóñà, âçàèìîðàñïîëîæåíèå
ïðîõîäíûõ è íåïðîõîäíûõ
ñòåíîê, ôàñàäîâ
è ãëóáèí.
ã) âû÷åð÷èâàåòñÿ
(ìîæíî áåç ìàñøòàáà)
ãàáàðèòíûé ÷åðò¸æ
èçäåëèÿ.
ä) âû÷åð÷èâàåòñÿ
â ìàñøòàáå ïëàí
ïîìåùåíèÿ è ðàñïîëîæåíèÿ
â í¸ì ïðîåêòèðóåìîãî
îáúåêòà èçäåëèÿ
ìåáåëè.
å) Ðàçðàáàòûâàåòñÿ
ýñêèçíûé ïðîåêò
ôðàãìåíòà èíòåðüåðà
â óãëîâîé è ôðîíòàëüíîé
ïåðñïåêòèâå ïî
íåñêîëüêèì âàðèàíòàì.
¸) âû÷åð÷èâàåòñÿ
îáùèé âèä èçäåëèÿ
(ÂÎ); ñáîðî÷íûé
÷åðò¸æ èçäåëèÿ
è îòäåëüíûõ êîíñòðóêòèâíûõ
ýëåìåíòîâ (ÑÁ)
æ) âû÷åð÷èâàþòñÿ
óïàêîâî÷íûé
÷åðò¸æ (Ó×); ìîíòàæíûé
÷åðò¸æ (Ì×); âûïîëíÿåòñÿ
ñîïðîâîäèòåëüíàÿ
äîêóìåíòàöèÿ
- âåäîìîñòü ïîêóïíûõ
èçäåëèé (ÂÏ) è òåõíè÷åñêîå
îïèñàíèå (ÒÎ).
. Ôîðìèðîâàíèå
êîðïóñà:
à) âûáîð ìàòåðèàëà;
á) âûáîð ðàñïîëîæåíèÿ
è óñòàíîâêà ôîðìû
êðûøêè;
â) âûáîð ðàñïîëîæåíèÿ
è óñòàíîâêè áîêîâûõ
ñòåíîê;
ã) âûáîð ðàñïîëîæåíèÿ
è óñòàíîâêè çàäíåé
ñòåíêè;
ä) âûáîð ðàñïîëîæåíèÿ
è óñòàíîâêè äíà;
. Âíóòðåííåå
çàïîëíåíèå:
à) ðàçìåùåíèå
ïåðåãîðîäîê;
á) ðàçìåùåíèå
ïîëîê;
â) ðàçìåùåíèå
ÿùèêîâ;
ã) ïðîåêòèðîâàíèå
äâåðåé, âûáîð åå
êîíñòðóêöèè
è ïàðàìåòðîâ;
. Ðàññòàíîâêà
êðåïåæà:
à) âûáîð, óòî÷íåíèå
âèäà, ðàçìåðîâ
è ìåñòîïîëîæåíèÿ
ôóðíèòóðû è êðåïåæà;
. Ñîçäàíèå
ïðîåêòíîé äîêóìåíòàöèè:
à) ñîçäàíèå
ðàáî÷èõ ÷åðòåæåé;
á) ñîçäàíèå
êàðò ðàñêðîÿ;
â) ñîçäàíèå
áèáëèîòåêè ÷åðòåæåé
è çàíåñåíèå â
íåå ïðîåêòíîé
äîêóìåíòàöèè.
Çàêëþ÷åíèå
 ðåçóëüòàòå
ïðåäëàãàåìûõ
ïðîåêòíûõ ìåðîïðèÿòèé
ÎÀÎ ÕÊ "Ìåáåëü
×åðíîçåìüÿ” ã.
Âîðîíåæà ïî èçãîòîâëåíèþ
ìåáåëè äëÿ ãîñòèíîé,
ïðîèçâåäåí ðàñ÷åò
ðàñõîäà ñûðüÿ
è ìàòåðèàëîâ.
Ïîëó÷åíà ãîäîâàÿ
ïðîãðàììà ïðîèçâîäñòâà
- 70 000 øò. /ãîä. Ðàññ÷èòàíà
ïðîèçâîäèòåëüíîñòü
îáîðóäîâàíèÿ
è íîðìû âðåìåíè
íà òåõíîëîãè÷åñêèå
îïåðàöèè, íà îñíîâàíèè
÷åãî îáîñíîâàí
âûáîð óçêîñïåöèàëèçèðîâàííîãî,
âûñîêîïðîèçâîäèòåëüíîãî
è âûñîêîòî÷íîãî
îáîðóäîâàíèÿ.
Óñîâåðøåíñòâîâàí
òåõíîëîãè÷åñêèé
ïðîöåññ, áûëè óñòðàíåíû
òåõíîëîãè÷åñêèå
ïåòëè è ðàññ÷èòàíû
"óçêèå ìåñòà".
Ïðîâåäåí àíàëèç
îõðàíû òðóäà
è áåçîïàñíîñòè
æèçíåäåÿòåëüíîñòè.
Ðàññ÷èòàíà öåõîâàÿ
ïíåâìîòðàíñïîðòíàÿ
êîëëåêòîðíàÿ
óñòàíîâêà, âûáðàí
öèêëîí ìàðêè
Ö-350 è öåíòðîáåæíûé
âåíòèëÿòîð ìàðêè
ÖÏ7-40 ¹5.
Ýêîíîìè÷åñêîå
ïîäòâåðæäåíèå
ïðåäëîæåííûõ
ìåðîïðèÿòèé: ïðè
äîïîëíèòåëüíûõ
èíâåñòèöèÿõ
ðàâíûõ 23 ìëí. ðóá.
äëÿ èçãîòîâëåíèÿ
70 000 øò/ãîä èçäåëèé
ïî îòïóñêíîé
öåíå 16128,5 ðóá, ñðîê
îêóïàåìîñòè
ðàâåí 0,7 ãîäà, à
ïðèáûëü 217114 òûñ. ðóá.
Ãîäîâîé ýêîíîìè÷åñêèé
ýôôåêò 31130 òûñ. ðóá.
Áèáëèîãðàôè÷åñêèé
ñïèñîê
1.
Àìàëèöêèé, Â.Â.
Ñòàíêè è èíñòðóìåíòû
ëåñîïèëüíîãî
è äåðåâîîáðàáàòûâàþùåãî
ïðîèçâîäñòâà
[Òåêñò] / Â.Â. Àìàëèöêèé.
- Ì.: Ëåñí. ïðîì-ñòü,
1985. - 288 ñ.
.
Áàðòàøåâè÷, À.À.
Êîíñòðóèðîâàíèå
ìåáåëè [Òåêñò]
/ À.À. Áàðòàøåâè÷,
Â.Ä. Áîãóø. - Ìí.: Âûø.
øê., 1998. - 343 ñ. + 12 ñ. öâ. âêë.
.
Áîëäûðåâ, Â.Ñ. Îñíîâû
ïðîåêòèðîâàíèÿ
ïðåäïðèÿòèé [Òåêñò]:
ìåòîä. óêàçàíèÿ
ïî ðàçðàáîòêå
è ãðàôè÷åñêîìó
îôîðìëåíèþ ãåíåðàëüíûõ
ïëàíîâ äåðåâîîáðàáàòûâàþùèõ
ïðåäïðèÿòèé / Â.Ñ.
Áîëäûðåâ, À.À. Ôèëîíîâ.
- Âîðîíåæ: Âîðîíåæ.
ãîñ. ëåñîòåõí.
àêàä., 2001. - 40 ñ.
.
Áîëäûðåâ, Â.Ñ. Îñíîâû
ïðîåêòèðîâàíèÿ
ïðåäïðèÿòèé [Òåêñò]:
ó÷åá. ïîñîáèå
/ Â.Ñ. Áîëäûðåâ. - Âîðîíåæ:
Âîðîíåæ. ãîñ. ëåñîòåõí.
àêàäåì., 2003. - 312 ñ.
.
Áûâøèõ, Ì.Ä. Ïíåâìîòðàíñïîðòíûå
óñòàíîâêè [Òåêñò]:
ó÷åá. ïîñîáèå
/ Ì.Ä. Áûâøèõ. - Âîðîíåæ:
Èçä-âî ÂÃÓ, 1977. - 80 ñ.
.
Áûêîâ, Â.Ñ. Ïíåâìîòðàíñïîðòíûå
óñòàíîâêè [Òåêñò]:
ó÷åá. ïîñîáèå
/ Â.Ñ. Áûêîâ, À.Ê. Ñêâîðöîâ.
- Âîðîíåæ: Âîðîíåæ.
ãîñ. ëåñîòåõí.
àêàä., 2002. - 164 ñ.
.
Âîðîíèíà, Â.Ô. Ýêîíîìè÷åñêèå
âîïðîñû â äèïëîìíûõ
ïðîåêòàõ [Òåêñò]:
ìåòîä. óêàçàíèÿ
äëÿ ñòóäåíòîâ
ôàêóëüòåòà òåõíîëîãèè
äåðåâîîáðàáîòêè
ñïåöèàëüíîñòè
260200/Â.Ô. Âîðîíèíà,
Ç.Ì. Ñèíèöûíà,
Î.È. ×èíàðåâà. -
Âîðîíåæ: Âîðîíåæ.
ãîñ. ëåñîòåõí.
àêàä., 2002. - 40 ñ.
.
Ãàðèí, Â.À. Ìàòåðèàëû
ìåáåëüíîãî ïðîèçâîäñòâà
[Òåêñò]: ó÷åá. ïîñîáèå
/ Â.À. Ãàðèí, À.Í. ×åðíûøåâ.
- Âîðîíåæ: Âîðîíåæ.
ãîñ. ëåñîòåõí.
àêàä., 1997. - 187 ñ.
.
Ãàðèí, Â.À. Òåõíîëîãèÿ
èçäåëèé èç äðåâåñèíû
[Òåêñò]: ó÷åá. ïîñîáèå
/ Â.À. Ãàðèí, Í.À. Ìèõàéëîâ.
- Âîðîíåæ: Èçä-âî
ÂÃÓ, 1985. - 224 ñ.
.
Ãàðèí, Â.À. Òåõíîëîãèÿ
èçäåëèé èç äðåâåñèíû
[Òåêñò]: ó÷åá. ïîñîáèå
/ Â.À. Ãàðèí, À.À. Ôèëîíîâ,
À.Í. ×åðíûøåâ. - Âîðîíåæ:
Èçä-âî ÂÃÓ, 1993-216 ñ.
.
Ãàðèí, Â.À. Òåõíîëîãèÿ
èçäåëèé èç äðåâåñèíû
[Òåêñò]: ïðàêòèêóì
/ Â.À. Ãàðèí, À.Í. ×åðíûøåâ.
- Âîðîíåæ: Âîðîíåæ.
ãîñ. ëåñîòåõí.
àêàä., 2000. - 116 ñ.
.
Ãàðèí, Â.À. Òåõíîëîãèÿ
èçäåëèé èç äðåâåñèíû
[Òåêñò]: ìåòîä.
óêàçàíèÿ ê I ðàçäåëó
îáùåé ïîÿñíèòåëüíîé
çàïèñêè äèïëîìíîãî
ïðîåêòà äëÿ ñòóäåíòîâ
ñïåöèàëüíîñòè
260200 - Òåõíîëîãèÿ
äåðåâîîáðàáîòêè,
ñïåöèàëüíîñòè
260204 - Äèçàéí è ïðîåêòèðîâàíèå
èçäåëèé èç äðåâåñèíû
/ Â.À. Ãàðèí, Â.Ô. Âîðîíèíà,
Ë.Â. Ïîíîìàðåíêî,
À.Í. ×åðíûøåâ. - Âîðîíåæ:
Âîðîíåæ. ãîñ. ëåñîòåõí.
àêàä., 2002. - 23 ñ.
.
Ãîí÷àðîâ, Í.À. Òåõíîëîãèÿ
èçäåëèé èç äðåâåñèíû
[Òåêñò] / Í.À. Ãîí÷àðîâ,
Â.Þ. Áàøèíñêèé,
Á.Ì. Áóãëàé. - Ì.:
Ëåñí. ïðîì-ñòü,
1990. - 528 ñ.
.
Ãðóáå, À.Ý. Äåðåâîðåæóùèå
èíñòðóìåíòû
[Òåêñò] / À.Ý. Ãðóáåå.
- Ì.: Ëåñí. ïðîì-ñòü,
1971. - 344 ñ.
.
Êóðüÿíîâà, Ò.Ê.
Ãèäðîòåðìè÷åñêàÿ
îáðàáîòêà è êîíñåðâèðîâàíèå
äðåâåñèíû [Òåêñò]:
ó÷åá. ïîñîáèå
ïî êóðñîâîìó
è äèïëîìíîìó
ïðîåêòèðîâàíèþ
äëÿ ñòóäåíòîâ
ñïåöèàëüíîñòè
260200/Ò.Ê. Êóðüÿíîâà,
À.Ä. Ïëàòîíîâ. - Âîðîíåæ:
Âîðîíåæ. ãîñ. ëåñîòåõí.
àêàä., 2000. - 148 ñ.
.
Ìóðçèí, Â.Ñ. Êëåè
è ïðîöåññ ñêëåèâàíèÿ
äðåâåñèíû [Òåêñò]:
ó÷åá. ïîñîáèå
/ Â.Ñ. Ìóðçèí. - Âîðîíåæ:
Âîðîíåæ. ëåñîòåõí.
èí-ò., 1993. - 89 ñ.
.
Ðåïðûíöåâ, À.È. Áåçîïàñíîñòü
æèçíåäåÿòåëüíîñòè
[Òåêñò]: ìåòîä.
óêàçàíèÿ ê äèïëîìíîìó
ïðîåêòèðîâàíèþ
äëÿ ñòóäåíòîâ
ñïåöèàëüíîñòè
26.02. - Òåõíîëîãèÿ
äåðåâîîáðàáîòêè
/ Ä.Ä. Ðåïðûíöåâ, À.È.
Ëåâîâ, À.Ä. Êóðüÿíîâà.
- Âîðîíåæ, 1992. - 58 ñ.
.
Óãîëåâ, Á.Í. Äðåâåñèíîâåäåíèå
ñ îñíîâàìè ëåñíîãî
òîâàðîâåäåíèÿ
[Òåêñò] / Á.Í. Óãîëåâ.
- Ì.: ÌÃÓË, 2001. - 340 ñ.
.
Ôèëîíîâ, À.À. Îñíîâû
ïðîåêòèðîâàíèÿ
äåðåâîîáðàáàòûâàþùèõ
ïðîèçâîäñòâ [Òåêñò]
/ À.À. Ôèëîíîâ. - Âîðîíåæ:
Èçä-âî ÂÃÓ, 1988. - 296 ñ.
.
Ôèëîíîâ, À.À. [Òåêñò]:
ìåòîä. óêàçàíèÿ
ïî îôîðìëåíèþ
äèïëîìíûõ ïðîåêòîâ
äëÿ ñòóäåíòîâ
ñïåöèàëüíîñòè
260200 (250303) - Òåõíîëîãèÿ
äåðåâîîáðàáîòêè/
À.À. Ôèëîíîâ, À.Í.
×åðíûøåâ, Â.È. Ïîñìåòüåâ;
Ôåä. àãåíòñòâî
ïî îáðàçîâàíèþ,
ÃÎÓ ÂÏÎ "ÂÃËÒÀ".
- Âîðîíåæ, 2007. - 27 ñ.
.
Ôèëîíîâ, À.À. Òåõíîëîãèÿ
èçäåëèé èç äðåâåñèíû
[Òåêñò]: ó÷åá. ïîñîáèå
/ À.À. Ôèëîíîâ, Â.À.
Ãàðèí. - Âîðîíåæ:
Âîðîíåæ. ãîñ. ëåñîòåõí.
àêàä., 2001. - 164 ñ.
.
ßñèíñêèé, Â.Ñ.
Îñíîâû ïðîåêòèðîâàíèÿ
äåðåâîîáðàáàòûâàþùèõ
ïðåäïðèÿòèé [Òåêñò]
/ Â.Ñ. ßñèíñêèé,
À.Ñ. Ùåðáàêîâ, Þ.È.
Þðüåâ. - Ì.: Ýêîëîãèÿ,
1991 - 3
Ðàçìåùåíî
íà Allbest.ru