Обґрунтування раціональної технологічної схеми гірничотехнічної рекультивації залишкових вироблених просторів кар’єру з урахуванням екологічних проблем регіону

  • Вид работы:
    Дипломная (ВКР)
  • Предмет:
    Другое
  • Язык:
    Украинский
    ,
    Формат файла:
    MS Word
    272,48 Кб
  • Опубликовано:
    2015-02-09
Вы можете узнать стоимость помощи в написании студенческой работы.
Помощь в написании работы, которую точно примут!

Обґрунтування раціональної технологічної схеми гірничотехнічної рекультивації залишкових вироблених просторів кар’єру з урахуванням екологічних проблем регіону

РЕФЕРАТ

Пояснювальна записка: 87 сторінок, 25 малюнків, 16 таблиць, 22 формули, 15 джерел літератури.

Об’єкт дослідження: геотехнічна система кар'єр і навколишнє природне середовище.

Предмет дослідження: технологічний процес проведення гірничотехнічної рекультивації земель, порушених відкритими гірничими роботами.

Мета магістерської роботи обґрунтування можливості рекультивації залишених вироблених просторів обводнених кар’єрів, шляхом використання твердих будівельних відходів для відновлення земель порушених відкритою розробкою родовищ будівельних матеріалів.

Методи дослідження: аналітичний, графоаналітичний, метод техніко-економічного аналізу, наукового узагальнення та систематизація.

Наукова новизна: Встановлені залежності об’єму порід (необхідного для засипки залишеного виробленого простору до рівня ґрунтових вод) від параметрів кар’єрного поля в умовах обводненості за рахунок чого, досягається збільшення площі відновлених земель.

Галузь використання: гірничовидобувна і природоохоронна.

Практичне значення: полягає у розробці технології гірничотехнічної рекультивації обводненого залишкового виробленого простору кар’єру для створення техногенного ландшафту придатного для подальшого використання у господарській діяльності та зниженню кількості полігонів твердих будівельних відходів.

Залишковий вироблений простір кар’єру, техногенний ландшафт, реабілітація території, будівельні відходи, полігони поховання відходів.

ЗМІСТ

ВСТУП

РОЗДІЛ 1. СУЧАСНИЙ СТАН І ПЕРСПЕКТИВИ РОЗВИТКУ ТЕХНОЛОГІЇ ГІРНИЧОТЕХНІЧНОЇ РЕКУЛЬТИВАЦІЇ ЗЕМЕЛЬ, ПОРУШЕНИХ ВІДКРИТИМИ ГІРНИЧИМИ РОБОТАМИ

.1 Аналіз сучасного стану порушень і відновлення земель відкритими гірничими роботами та стану сучасної екологічної обстановка на полігонах твердих будівельних відходів

1.2 Аналіз науково-технічної літератури по темі магістерської роботи

1.3 Мета, задачі і методи дослідження

РОЗДІЛ 2. ОБҐРУНТУВАННЯ І РОЗРОБКА МЕТОДИЧНИХ ПОЛОЖЕНЬ ЩОДО ВДОСКОНАЛЕННЯ ТЕХНОЛОГІЙ ГІРНИЧОТЕХНІЧНОЇ РЕКУЛЬТИВАЦІЇ ОБВОДНЕНИХ ЗАЛИШКОВИХ ВИРОБЛЕНИХ ПРОСТОРІВ КАР’ЄРІВ

.1 Види гірничотехнічної рекультивації

.2 Обґрунтування методичних положень при гірничотехнічній рекультивації обводнених залишкових вироблених просторів кар’єру

.3 Пошук альтернативного заповнювача обводнених просторів кар’єрів

2.4 Розробка класифікації полігонів складування відходів та основні вимоги щодо їх розміщення в обводнених залишкових вироблених просторів кар’єрів

Висновки

РОЗДІЛ 3. РОЗРОБКА ТЕХНОЛОГІЧНИХ СХЕМ ГІРНИЧОТЕХНІЧНОЇ РЕКУЛЬТИВАЦІЇ ОБВОДНЕНИХ ЗАЛИШКОВИХ ВИРОБЛЕНИХ ПРОСТОРІВ КАР’ЄРУ ВІДХОДАМИ БУДІВЕЛЬНИХ МАТЕРІАЛІВ

.1 Розробка технології гірничотехнічної рекультивації при складування будівельних відходів в залишковий простір в умовах обводнення кар’єру

.2 Розробка методики встановлення параметрів технології гірничотехнічної рекультивації обводненого залишеного виробленого простору кар’єру

3.2.1 Підготовки вихідних даних для визначення параметрів обводненого залишкового виробленого простору кар’єру

3.2.2 Розробка методики визначення необхідного об’єму заповнювача для засипки обводненої та звичайної частин залишеного виробленого простору кар’єру

3.3 Розробка методики визначення площ земель, що відновлюються для сільського господарства

Висновки

РОЗДІЛ 4. ВИЗНАЧЕННЯ ТЕХНІКО-ЕКОНОМІЧНОЇ ЕФЕКТИВНОСТІ ВИКОРИСТАННЯ РОЗРОБЛЕНОЇ ТЕХНОЛОГІЇ ГІРНИЧОТЕХНІЧНОЇ РЕКУЛЬТИВАЦІЇ ОБВОДНЕНОГО ЗАЛИШКОВОГО ВИРОБЛЕНОГО ПРОСТОРУ ЧАПЛИНСЬКОГО КАР’ЄРУ ГРАНІТІВ

.1 Гірничотехнічна характеристика гірничого підприємства

4.2 Визначення основних параметрів технології гірничотехнічної рекультивації залишкового виробленого простору на Чаплинському родовищі гранітів

4.2.1 Розрахунок необхідного об’єму породи для виконання захисного бар’єру у обводненому середовищі

4.2.2 Розрахунок об’єму залишкових вироблених просторів на Чаплинському кар’єрі

4.2.3 Розрахунок площі відновленої території на Чаплинському кар’єрі

4.2.4 Розрахунок термінів заповнення залишкового виробленого простору на Чаплинському родовищі кар’єрі

4.3 Охорона праці

.3.1 Заходи по забезпеченню безпечного виконання гірничих робіт

4.3.2 Безпека при гірничотехнічній рекультивації

4.3.3 Протипожежні заходи

4.3.4 Аерологія кар’єру

4.4 Економічна частина

.4.1 Техніко-економічні показники гірничотехнічної рекультивації кар’єру «Чаплинський»

.4.2 Розрахунок фонду основної заробітної плати при виконанні рекультиваційних робіт

4.4.3 Розрахунок амортизаційних відрахувань

4.4.4 Розрахунок витрат на матеріали

4.4.5 Відрахування із Фонду заробітної платні на соціальне страхування

4.4.6 Розрахунок загальних витрат на проведення рекультиваційних робіт

ВИСНОВКИ

ВИСНОВОК

ЗМІСТ ВИКОРИСТАНИХ ДЖЕРЕЛ

ВСТУП

Проблема рекультивації та раціонального використання земель у наш час надзвичайно актуальна, як у нашій країні, так і в усьому світі. При видобуванні корисних копалин, особливо відкритим способом, неминуче руйнується поверхня землі. Природний ґрунтовий покрив змінюється або навіть знищується. В наслідок цього, зникає природна і культурна рослинність, безплідні ділянки змінюють ліси і поля. Знижується дебіт наземних та підземних вод і, в цілому, погіршується водний режим територій. Незакріплені рослинністю і висушені площі, складені глибинними, розпушеними в процесі розкривних робіт породами, стають осередком водної та вітрової ерозії.

Дослідження промислового порушення земель показали, що їх географічне положення і фактори, які викликають на ці порушення, надзвичайно різноманітні. У результаті відкритих розробок родовищ, порушується поверхня землі, утворюються відвали, кар'єри, шламонагромаджувачі і хвостосховища тощо, до відвальних комплексів належать також терикони, що виникають при добуванні корисних копалин підземним способом.

Гірничопромисловий комплекс, як один із видів економічної діяльності, виступає серйозним забруднювачем навколишнього природного середовища, що проявляється в трьох основних напрямках; порушення земної поверхні, викиди в атмосферне повітр’я газових та пилових шкідливих речовин, забруднення підземних та ґрунтових вод.

Найбільшим фактором негативного впливу на довкілля є порушення земної поверхні при розробці родовищ корисних копалин, що призводить до зміни структури i погіршення якості, або взагалі зникнення родючого шару, а також до зміни форм рельєфу, ландшафтних порушень. Це викликає, в свою чергу, загибель або деградацію рослинного та тваринного світу

Значні порушення земної поверхні припадають на проведення будівництва кар’єру i видобуванні корисних копалин.

Випереджуючим процесом при цьому є селективне (роздільне, розмежоване) зняття ґрунтового шару, перед яким проводяться підготовчі роботи: вирубка лісу, корчування пнів, збирання i видалення валунів, вирізання чагарників тощо. Вiдкритi розробки родовищ корисних копалин характеризуються значними ландшафтними порушеннями та несуть в собі екологічну та техногенну небезпеку.

На сьогодні гостро постає питання щодо екологічної безпеки захоронення експлуатації та зведення нових звалищ побутових відходів, які займають великі площі територій України. За останні 5 років відходами зайнято більше 160 тисяч га земель. Щорічно їх об'єм зростає в середньому на 20 відсотків, а переробних заводів сміття і полігонів в Україні не вистачає [1].

В умовах структурної перебудови економіки України, впровадження нових способів, методів та форм господарювання призведе до зростання кількості сучасних промислових та продовольчих товарів для населення і, відповідно, до зростання утворення твердих побутових відходів (ТПВ). Проблема впливу ТПВ, які формуються у містах і селищах, є доволі складною у більшості регіонів України.

Звалища побутових відходів утворюють високий ступінь ризику для здоров'я населення, що мешкає поблизу цих звалищ, адже вони є місцями розмноження комах, гризунів, бродячих тварин, що переносять збудників інфекцій.

За даними експертів Всесвітньої організації охорони здоров’я (ВООЗ), незадовільний стан цієї галузі комунальної гігієни призводить до захворюваності на інфекційні та інвазійні хвороби, а фінансові витрати за 2-3 роки дорівнюють загальній сумі витрат, потрібних на капітальні заходи щодо організації раціонального очищення населених пунктів.

Актуальність теми:

Гірничодобувна промисловість відноситься до найголовнішого виду діяльності людства. Видобуток сировини із надр землі для власних потреб, застосовуючи новітні, ефективні, і екологічно-безпечні технології і техніку - це основна і головна задача гірничої промисловості. Видобування твердих, рідинних, або газоподібних корисних копалин - є основою практично всіх галузей промисловості.

В результаті діяльності гірничої промисловості, а саме видобування корисних копалин, відкриті гірничі роботи несуть негативний вплив в техногенному та екологічному аспекті на навколишнє середовище.

Порушення земної поверхні, зумовлених відкритими гірничими роботами, значні площі земельних ділянок займаються відвали, а також «хвости» збагачення i хвостосховища. Результатом таких розробок є появи западин та виїмок на земній поверхні, що призводить до зміни водного режиму i, як наслідок, заболочування мiсцевостi, а залишені без рослинного покриву породи - до інтенсивної водної та вітрової ерозії. Також існує проблема обводнення гірничих виробок.

Відводи земель під гірниче виробництво пов'язані з вилученням більшої чи меншої земельної ділянки у землекористувачів на певний період часу, i, вiдповiдно, скороченням земельних ресурсів країни. Характерно те, що вилучені у інших землекористувачів i порушені землі стають малопридатними для продуктивного використання в сільському i лісовому господарстві, та для інших цілей. При цьому процеси природного відновлення рослинних покривів, ґрунтів i рельєфів порушених земель протікають повільно або взагалі не відбуваються. Самі ж порушення земної поверхні, як правило, не зникають i стають сталими техногенними формуваннями, тому такі землі підлягають штучному відновленню. Для вирішення проблеми техногенних порушень ландшафтів використовують різні способи і методи рекультивації земель.

Паралельно з проблемою порушених відкритими гірничими роботами земель за останні десятки років створилась проблема збільшення кількості побутових і промислових відходів, в результаті зростання чисельності населення в містах і розвитку промисловості.

Вони утворюються, при неправильному зборі, невчасному видаленні і незадовільному знешкодженні та погіршують екологічне становище і збитку навколишньому середовищу, викликаючи забруднення атмосферного повітря, ґрунту, поверхневих і підземних вод. Санітарне очищення міст від відходів виробництва і споживання є одним з основних елементів життєзабезпечення, що потребує залучення великих територій для розташування полігонів і сміттєзвалищ. Згідно з даними Мінжекомунального господарства Дніпропетровщини, щорічно утворюються до 50 млн. м куб. твердих побутових відходів, які складують у полігонах. Саме тому у даній магістерській роботі пропонується розглянути можливість використання будівельних відходів в якості закладного матеріалу залишкового виробленого простору в умовах обводнення дна кар’єрів в процесі гірничотехнічної рекультивації. При цьому з’являється можливість вирішення актуальних питань: підготовка гірничих виробок для складування відходів (осушення дна кар’єру), безпечне розміщення будівельних відходів, формування техногенного ландшафту для проведення подальшої рекультивації.

Оскільки об'єм гірничих виробок за звичай великий і рекультивувати його за рахунок порід розкриву не завжди економічно недоцільно, то подібні відходи будівельних матеріалів, можуть стати важливим матеріальним ресурсом для оновлення рельєфу поверхні землі.

Мета роботи обґрунтування можливості рекультивації залишкових вироблених просторів обводнених кар’єрів, шляхом використання твердих будівельних відходів для відновлення земель порушених відкритою розробкою родовищ будівельних матеріалів.

В роботі вирішувалися наступні задачі:

1. Аналіз і дослідження питання щодо кількості і стану порушених відкритими гірничими роботами територій та технологічних рішень з підвищенням якості рекультивації земель.

2.      Дослідження технології гірничотехнічної рекультивації й обґрунтування раціонального способу рекультивації залишкового виробленого простору в умовах обводнення кар’єру.

.        Технологічно обґрунтувати і розробити раціональні схеми гірничотехнічної рекультивації обводненого залишкового виробленого простору кар’єру будівельними відходами.

.        Встановити ефективність застосованої технології гірничотехнічної рекультивації обводненого залишкового виробленого просторів кар’єрів.

.        Обґрунтувати доцільність застосування розроблених технологічних схем та визначити основні параметри рекультивації способом складування будівельних відходів в залишковий вироблений простір в умовах Чаплинського кар’єру гранітів.

Об’єкт дослідження: геотехнічна система кар'єр і природне навколишнє середовище.

Предмет дослідження: технологічний процес проведення гірничотехнічної рекультивації земель, порушених відкритими гірничими роботами.

Методи досліджень:

. Наукового узагальнення та систематизації, при аналізі сучасного стану територій гірничодобувних підприємств України та Дніпропетровської області про кількість відходів на даних територіях, а також при перегляді гірничої літератури і обґрунтування можливості використання будівельних відходів як сировину для оновлення територій порушених відкритими гірничими роботами.

. Аналітичний і графоаналітичний метод - для визначення залежності необхідного об’єму відходів для оновлення рельєфу порушених відкритими гірничими роботами, від параметрів залишкового виробленого простору кар’єру.

. Техніко-економічного аналізу - для визначення економічного ефекту від реабілітації порушених територій.

Наукова новизна отриманих результаті:

Встановлені залежності об’єму порід необхідного для засипки залишеного виробленого простору до рівня ґрунтових вод від параметрів кар’єрного поля в умовах обводненості, використання, яких забезпечую збільшення площі відновлених земель.

Практичне значення отриманих результаті:

Полягає у розробці технології гірничотехнічної рекультивація обводненого залишкового виробленого простору кар’єру для створення техногенного ландшафту придатного для подальшого використання у господарській діяльності та зниженню кількості полігонів твердих будівельних відходів.

1. СУЧАСНИЙ СТАН І ПЕРСПЕКТИВИ РОЗВИТКУ ТЕХНОЛОГІЇ ГІРНИЧОТЕХНІЧНОЇ РЕКУЛЬТИВАЦІЇ ЗЕМЕЛЬ ПОРУШЕНИХ ВІДКРИТИМИ ГІРНИЧИМИ РОБОТАМИ

1.1 Аналіз сучасного стану порушень і відновлення земель відкритими гірничими роботами та стану сучасної екологічної обстановка на полігонах твердих будівельних відходів

В умовах ринкової економіки Україна повинна мати ефективну політику щодо управління своїми національними багатствами. До одних з таких багатств відносяться земельні ресурси. Діюча державна система управління земельними ресурсами України на міжнародному, національному, регіональному рівнях потребує удосконалення. Недбале ставлення до земельних ресурсів, як до об’єкту формування капіталу, знаряддя праці та засобу виробництва, призводить до зменшення майбутнього доходу держави та економічних, соціальних, екологічних благ населення країни.

Головним питанням сьогодення залишається питання відновлення відпрацьованих земель гірничодобувними підприємствами області, тобто доведення їх до стану придатного до подальшого використання.

Землі, що підлягають експлуатації, втрачають первісну вартість майже на кожному технологічному етапі розробки корисних копалин. Первісна та остаточна вартість земельної ділянки не відповідає за основними показниками стану реальній ринковій вартості, і в залежності від комплексу факторів є завищеною, або навпаки - нижче реальної вартості.

На території Донецької області державний баланс нараховує 939 родовищ копалин загальнодержавного і місцевого значення за 32 видами мінеральної сировини. На період 01.01.09 р. на території області експлуатується 412 родовищ корисних копалин за 22 видами мінеральної сировини. Мінерально-сировинна база складається з 52,2% паливних корисних копалин (кам’яне вугілля, метан вугільних родовищ), 22% з нерудних родовищ корисних копалин (будівельні матеріали), 14,8% з питних, технічних і мінеральних підземних вод, останнє (близько11%) - гірничо-хімічна сировина і руди рідкоземельних металів. Питома вага природно-ресурсного потенціалу Донецької області має наступний вигляд: 72,77% - мінеральні ресурси, 16,80% - земельні, 5,03% - рекреаційні, 4,84% - водні, 0,44% - лісові, 0,12% - фауністичні. Земля, як один з головних компонентів ресурсного потенціалу, займає першочергове місце у 19 областях України та Автономній Республіці Крим, другорядне - у Дніпропетровській, Донецькій, Івано-Франківській, Луганській областях і лише у Закарпатській області - третє місце.

Відкритий видобуток корисних копалин є одним з видів негативного антропогенного впливу на стан навколишнього природного середовища. Саме ця діяльність пов’язана з тривалим навантаженням на земельно-ресурсний потенціал областей на техніко-економічний аналіз.

Протягом останніх 5 років видобувні підприємства України вели видобуток за 18 видами корисних копалин на 72 родовищах. За цей період в Україні спостерігається збільшення обсягів видобутку корисних копалин за основними видами сировини. Наприклад, видобуток вогнетривких і тугоплавких глин збільшився в 2008 р. з 3,6 млн. тон до 5,4 млн. тон. Майже 90,6% (249 432,2 тис. т) сумарного балансу запасів родовищ вогнетривких глин України, що розробляються, розташовані в Донецькій області, 6,06%, Запорізькій 3,34% та (1191,4 тис. т) в Дніпропетровській областях. [1]. У 2009 році в Донецькій області видобуток вогнетривкої глини склав 5450,5 тис. т, порівняно з загальним обсягом у державі 5678,7 тис. т, а саме Донецька область забезпечила видобуток на 95,98%. [1]. На 01.01.2010 р [1] державним балансом запасів корисних копалин України нараховується 22 об’єкти обліку родовищ глини. До Державного Фонду родовищ входить 22 родовища, чотирнадцять з них розробляються, решта 8 - не розробляються. До родовищ, що розробляються, в Донецькій області відносяться: Андріївське, Дослідне, Західно-донське, Кучерів’ярське, Новоолексіївське (Веселівське), Новорайське, Ново-Швейцарське, Октябрське, Отрадівське, Південно-Октябрське, Торецьке, Часівоярське. Сумарні балансові запаси родовищ вогнетривкої глини України, що не розробляються, складають 225116,4 тис. т, з них 102769,4 тис. т (45,7%) розташовані в Донецькій області (Видне і Затишанське родовища). Виходячи з цих даних можна спостерігати що відновлення земель майже не виконується.

За даними на період 2010 року у Дніпропетровській області нараховувалося відпрацьованих земель площею майже 77Га, а рекультивованих майже 114 га (рис 1.1.)

Рис.1.1 Діаграма стану земель порушених і рекультивованих у Дніпропетровській області на період з 2007 по 2010 роки

За даною діаграмою стану порушених і рекультивованих земель динаміка росту відпрацьованих земель з періоду 2007 по 2008 зросла на 36,6%, а рекультивованих земель зросла лише на 14%, в період з 2008 по 2009 рік ріст відпрацьованих земель порівняно з 2008 року знизився на 40%, а також на цей період знижується площі рекультивованої землі з 2009 році порівняно з 2008 роком на 36%, на період з 2009 по 2010 площі відпрацьованих земель порівняно з 2009 роком знизились на 11%, а площі рекультивованих земель майже 50%.

Ці дані вказують на не достатній рівень виконання робіт з рекультивації і відновлення площ порушених земель після закінчення експлуатаційного періоду кар’єру. За даними Міністерства екології, на сьогодні в Україні знаходяться приблизно 35 млрд. тонн відходів. Близько 7% з них - токсичні. Майже 4% території України заняті побутовими та будівельними відходами. У державі існує приблизно 800 офіційних звалищ, де зберігається 350 млн. кубометрів відходів, що становить майже 50 тис. тонн на 1 квадратний кілометр і це є високим показником у світі. Відходами на сьогоднішній день зайнято близько 160 тис. га земель.

Щорічно їх об'єм зростає на 15-20%, а звалищ, заводів з переробки в Україні не вистачає. Більшість офіційних звалищ в Україні переповненні. І нові стихійні звалища зростають - в лісосмугах на полях, та навіть в містах у спальних районах міст. За останні роки відходи в Україні практично не перероблювалися, а накопичувалися на всій території країни.

Щорічно середньостатистичний українець викидає на смітник приблизно 250 кг побутових відходів. З цих 250кг мінімум 50кг можна відправити не на звалище, а на пункт прийому вторинної сировини. Якщо б так вчиняв кожен українець, то кількість твердих побутових відходів скоротилася б на 10 млн. кубометрів. Екологічну ситуацію в Україні слід визнати катастрофічної.

Вся собівартість комплексного застосування в Україні нових технологій збору твердих побутових відходів, будівництво об’єктів з сортування і утилізації, а також нових регіональних полігонів оцінюється спеціалістами в 16 млрд. USD.

В Україні, немає ні одного успішного цілісного проекту, що стосується міських звалищ, який дозволив би з високою ефективністю здійснювати управління міськими відходами.

В деяких великих містах України існує ідентичні проекти розвитку направлення у сфері поведінки з твердими побутовими відходами, але вони поки що мало ефективні.

На Дніпропетровщині, питання щодо збору, складування і утилізації відходів за останні десятки років набуває катастрофічного стану. За останні 4 роки щорічно 20% з 400 тисяч тонн побутового і будівельного сміття не потрапляють на полігони Дніпропетровська, а викидалися серед лісосмуг та за територію жилих масивів, що створили стихійній звалища, що в результаті займають в середньому десятки гектарів земель відведених під сільськогосподарське використання і цивільне будівництво.

Зображення місць знаходження в Україні 22 найбільших полігону твердих побутових та будівельних відходів (рис. 1.2). [2]

Рис 1.2. Карта України. Розташування найбільших полігоні по регіонам.

Київ: 1-.Полігон на Жуковому острові; 2 - Полігон в Горбачиха і у водозахисній дамбі; 3 - Полігон твердих побутових відходів №5 в с. Подгорци Обухівського району; 4 - Звалище на Сирці.

Харьків: 5 - Деграчівський полігон ТБО; 6 - Звалище біля Української Академії Державного управління; 7 - Звалище в кар’єрі біля с.Кулиничі; 8 - Звалище біля Журавлевського гідропарку; 9 - Полігон біля Донецького городища.

Днепропетровськ:10 - Полігон твердих побутових відходів у с. Кулебівка; 11 - Звалище у центрі міста ( район Мост-Сити Центр). 12 - Свалка твердих побутових відходів в районі Павлограда.

Донецьк: 13 - Ларинський полігон твердих побутових відходів селище (Ларіно); 14 - Свалки в лісопарковій зоні Донецька (Ворошиловський р-н); 15 - Радіоктивних звалищ біля м. Константиновка.

Одеса:16 - Міське звалище Одеси; 17 - Смітник на пляжі «Отрада».

Крим: 18 - Міське звалище Ялти; 19 - Полігон твердих побутових відходів в Сакскому районі.

Миколаїв: 20 - Миколаївський полігон твердих побутових відходів (с. Велика Корениха).

Тернопіль: 21 - Міське звалище (с. Малишівка Зборовського р-на).

Львів: 22. Міське звалище(селище Грибовичі).

На даних звалищах вже накопилося майже 30 млрд. тонн відходів, які займають близько 200 тисяч гектарів, що свідчить про погрозу екологічній ситуації в країні.

На даний час перед Україною постала важлива національна задача - створення інфраструктури утилізації і рециклінга відходів. Із-за ситуації, яка склалася в України, не варто сподіватися на інвестицій від іноземних компаній, а за підрахунками Мінрегіонбуд країні необхідно 160 млрд. грн. для першочергового фінансування і вирішення екологічної проблеми для створення і налагодження інфраструктури утилізації відходів.

В продовж трьох років владою України об’єми фінансування для рішення проблеми накопичення відходів збільшилися, тим самим з питання утилізації відходів почергово приймаються міри, хоча з значним відставанням.

В містах України за попереднім розділом аналізу існує велика кількість діючих і відпрацьованих кар’єрів, в яких можна розмістити накопичені об’єми відходів. Використовуючи певні технологічні схеми гірничотехнічної рекультивації кар’єрів, існуючи проекти утилізації відходів та будівництва полігонів, на Дніпропетровській області та України, дає можливість комплексно вирішити екологічні проблеми шляхом використання будівельних відходів як закладний матеріал для рекультивації залишеного виробленого простору кар’єру.

1.2 Аналіз науково-технічної літератури по темі магістерської роботи

Питання підвищення якості рекультиваційних робіт земель, які порушені безпосередньо відкритою розробкою родовища корисних копалин, є на сьогоднішній день пріоритетним і потребує детального розгляду результатів відомих науково дослідних робіт для пошуку нових методів і технологій рекультивації.

Одною із робіт в галузі відновлення земель порушених відкритими гірничими роботами є робота В.Д. Горлов [3] в якості основних заходів при виробництві гірничих робіт на зменшення порушеного ландшафту приводить рішення питань розкриву, системи розробки, схеми відвалоутворення з урахуванням рекультиваційних робіт, засипку розкривними породами гірничих виробок в процесі їх формування, селективне формування відвалів розкривних порід ведення гірничих робіт з урахуванням мінімального порушення природного середовища. В якості одного із основних способів зменшення площі порушених земель гірничими роботами автор рекомендує при будуванні кар’єру виконувати укладку розкривних порід до тимчасового відвалу, а після відпрацювання кар’єру пусті породу переміщувати в залишений вироблений простір розрізної траншеї, що дозволяє зменшити площу порушених земель.

Недоліком даного способу будівництво кар’єру є те, що тимчасовий відвал пропонується формувати на дільниці земельного відводу, де гірничі роботи будуть проводитись через 20-30 років, що призведе до складностей застосування цього способу, так як під час будівництва кар’єру ця територія може знаходитись в інтенсивному господарському користуванні. Другим недоліком є - це переекскавація всього об’єму породи у вироблений простір.

Автори роботи (Авторське свідоцтво СРСР№1245705, кл. С41/02, 1986) [6] рекультивації залишеного виробленого простору, що передбачає засипку залишеного виробленого простору спрямованим вибухом гірничих порід, залишених у бортах кар’єру з наступною закладкою виробленого простору кар’єру екскаваторами паралельними заходками від протилежних бортів

У відомому способі засипки є значний недолік, який полягає у тому, що брак розкривних порід у бортах кар’єру не дозволяє заповнювати увесь його вироблений простір, тому він може забезпечити лише для часткову рекультивацію порушеної поверхні землі гірничого відводу.

Автором роботи (Авторське свідоцтво Україна №70030, кл. Е 21F 15/08, 2007) [7] технічним рішенням проблеми є спосіб рекультивації вироблених просторів кар’єрів який передбачає його заповнення брикетованими твердими побутовими відходами з попереднім подрібненням і поярусною засипкою. Після складування відходи покриваються ізолюючим шаром глини, поверх якої укладають родючий шар ґрунту.

Недоліками цього способу є значні витрати, пов’язані з попереднім подрібненням твердих побутових відходів і виготовленням з них брикетів складною геометричної форми для забезпечення ізоляції від ґрунтових вод, а також процес додаткового транспортування їх на брикетну станцію звідкіля вони направляються у вироблений простір кар’єру.

Аналіз результатів досліджень виконаних авторами, а також сучасного стану і перспектив рекультивації земель порушених відкритими гірничими роботами, дозволяє обґрунтувати об’єкт і предмет дослідження сформувати ціль роботи, поставити наукову задачу і вирішити наступні задачі дослідження.

1.3 Мета, задачі і методи дослідження

Аналіз стану земель порушених відкритими гірничими роботами в Україні, показав, що переважно 60% земель порушені, з яких близько 10% земель частково рекультивуються типовими способами рекультивації та 5% майже не рекультивуються, а залишають за собою покинуті вироблені простори, що несуть в собі як біологічну, екологічну небезпеку для навколишнього середовища.

Огляд гірничотехнічної літератури і аналіз проведений наукових досліджень дозволяє встановити, що наявні робити присвячені, проблемі рекультивації залишених вироблених просторів кар’єру шляхом використання твердих побутових відходів, як сировини для закладки залишених виробок.

В проведених роботах недостатньо досліджені питання, щодо розробки технологічних параметрів підготовки залишеного виробленого простору до складування і використання, як полігон захоронення відходів у вироблений простір кар’єру, розробки методики способу сортування, вибору, класифікації відходів, розробка технологічних рішень, щодо створення ізолюючих шарів.

Недостатньо розробленість таких питань в теоретичному і методичному аспектах, визначили вибір теми дипломної роботи і дозволили сформулювати її основні задачі:

Мета роботи - обґрунтування можливості рекультивації залишених вироблених просторів обводнених кар’єрів, шляхом використання твердих будівельних відходів для відновлення земель порушених відкритою розробкою родовищ будівельних матеріалів.

Для досягнення вказаної мети були поставлені і вирішені наступні теоретичні та практичні задачі:

.   Аналіз і дослідження питання щодо кількості і стану порушених територій відкритими гірничими роботами та технологічних рішення з підвищенням якості рекультивації земель.

2.      Дослідження технологічних схем гірничотехнічної рекультивації й обґрунтування раціонального способу рекультивації залишкового виробленого простору в умовах обводнення кар’єру.

.        Технологічно обґрунтувати і розробити раціональні технологічні схеми гірничотехнічної рекультивації залишеного виробленого простору кар’єра будівельних відходів і гірничими породами

.        Встановити ефективність застосованих технологічних схем рекультивації залишеного виробленого просторів кар’єрів.

.        Обґрунтувати доцільність застосування розроблених технологічних схем рекультивації способом складування будівельних відходів в залишений вироблений простір в умовах Чаплинського кар’єру гранітів.

При вирішені поставлених задач застосовувалися методи:

. Наукового узагальнення та систематизації, при аналізі сучасного стану територій гірничодобувних підприємств України та Дніпропетровської області про кількість відходів на даних територіях, а також при перегляді гірничої літератури і обґрунтування можливості використання будівельних відходів як сировину для оновлення територій порушених відкритими гірничими роботами.

. Аналітичний і графоаналітичний метод - для визначення залежності необхідного об’єму відходів для оновлення рельєфу порушених відкритими гірничими роботами, від параметрів залишкового виробленого простору кар’єру.

. Техніко-економічного аналізу - для визначення економічного ефекту від реабілітації порушених територій.

Для встановлення взаємодії основних кваліфікаційних показників дипломної роботи була сформульована структурно логічна схема досліджень (рис. 1.3).

Рис. 1.3 Структура основних логічних складових дипломної роботи

2. ОБҐРУНТУВАННЯ І РОЗРОБКА МЕТОДИЧНИХ ПОЛОЖЕНЬ ЩО ДО ВДОСКОНАЛЕННЯ СХЕМ ГІРНИЧОТЕХНІЧНОЇ РЕКУЛЬТИВАЦІЇ ОБВОДНЕНИХ ЗАЛИШКОВИХ ВИРОБЛЕНИХ ПРОСТОРІВ КАР’ЄРІВ

2.1 Види гірничотехнічної рекультивації

Як відомо, щоб повернути землі, порушенні відкритими гірничими роботами, необхідно провести певний комплекс робіт під назвою - рекультивація. Ціль таких робіт є повернення порушених земель до спожитку, покращення оточуючого середовища, а також відновлення продуктивності порушених земель.

Згідно з подальшим використанням земель існують наступні напрямки рекультивації:

.   сільськогосподарське (використання відновлених земель під сільськогосподарське угіддя)

2.      водогосподарське (створення водоймищ різноманітного призначення)

.        рекреаційне (створення місць під культурно-оздоровчі заходи)

.        будівельне (забудова земель жилими та промисловими будівлями).

Так як рекультивація - є трудомістким та економічно затратним процесом, то вона поділяється на два абсолютно різні, але тісно пов’язанні між собою етапи. Це такі етапи рекультивації, як: гірничотехнічна і біологічна.

Першим і по суті, дуже важливим процесом являється гірничотехнічна рекультивація так, як вона представляє собою підготовку землі до подальшого відновлення родючості (біологічна рекультивація).

Гірничотехнічна рекультивація - це комплекс гірничотехнічних робіт по відновленню природного ландшафту, зміненого в результаті відкритої розробки родовища корисних копали. Завдяки цьому гірничотехнічна рекультивація в СССР щорічно повертала для народногосподарського вжитку близько 20 тис. га земель.

Основні об’єкти гірничотехнічної рекультивації представленні відвалами розкривних порід, як відпрацьованих, так і діючих кар’єрів. Об'єм рекультивації напряму залежить від прийнятої системи розробки даного родовища.

Гірничотехнічна рекультивація включає: зняття і складування родючого шару ґрунту, селективну розробку та укладку у відвал розкривні породи з різноманітними агрохімічними властивостями, побудова дренажної мережі для запобігання заболочування встановленої території, будівництво виїздів і доріг на відвалі, повне чи часткове планування поверхні відвалів, стабілізацію укосів, створення лож та берегів водоймищ, покриття поверхні родючим шаром ґрунту. Саме тому на гірничотехнічну рекультивацію доводиться майже 80-90% загальних витрат, які виділено для формування ландшафту. Але якщо, рекультивація була об’єднана з основними технологічними процесами, а саме з розкривними і відвальними роботами, то її вартість миттєво знижується майже в два рази.

Так як на сьогоднішній день цілком актуальною задачею є рекультивація земель порушених відкритими гірничими роботами, а саме, залишкових вироблених просторів, то можна виділити декілька варіантів гірничотехнічної рекультивації:

.   Заповнення залишкових вироблених просторів розкривними породами (внутрішніми та зовнішніми відвалами).

2.      Затоплення залишкових вироблених просторів(створення водоймищ)

.        Складування будівельних відходів в залишковому виробленому просторі.

2.2 Обґрунтування методичних положень при гірничотехнічній рекультивації обводнених залишкових вироблених просторів кар’єру

Проведенні вище дослідження дозволяють перейти безпосередньо до обґрунтування методики розробки раціональних технологічних схем для максимального ефективного використання залишеного виробленого простору кар’єрів.

З попередніх робіт автора наукових видання [11] за видами кар’єрних полів кар’єри поділяються на 1 - дуже малі; 2 - малі; 3 - середнього розміру; 4- великі; 5 - дуже великі табл. 1.1

Таблиця 1.1

Види кар’єрних полів [11]

Розміри кар’єрних полів

Вид відкритих виробок

Площа кар’єру у плані, км2

Гранична глибина кар’єру, м

Загал. об'єм гірничої маси, млн.м3

Термін існування кар’єру, роки.

Дуже малі

Поверхневий нагірний

До 0,4 До 0,3

До 20 До 40

До 10

До 10

Малі

Поверхневий Нагірний і глибинний

0,4-2,0 0,3-1,5

До 40 40-100

10-100

10-25

Середнього розміру

Поверхневий Нагірний і глибинний

2,5-6,0 1,5-5,0

До 60 100-200

До 60 100-200

25-30

Великі

Поверхневий Нагірний і глибинний

4-20 4-12

До 80 100-250

500-2000

30-60

Дуже великі

Поверхневий і глибинний

10-40 10-30

До 120 200-800

2000-10000

60-100


Так як всі будівельні кар’єри глибиною не більше 100м і площею до 2 км2, то їх можна віднести до двох видів: «дуже малі» і « малі».

2.3 Пошук альтернативного заповнювача обводнених просторів кар’єрів

З урахуванням того, що зазвичай при гірничотехнічній рекультивації залишених вироблених просторів існує проблема браку пустих порід, то саме складування відходів буде альтернативним і ефективним варіантом рішення даної проблеми. При чому при використанні будівельних матеріалів в якості матеріалу закладки, вирішується два головних питання:відновлення порушених земель і зниження кількості накопичення будівельних відходів.

Питання щодо, яких різновидностей будівельних відходів і взагалі відходів, при яких умовах можна використовувати в якості заповнюваного матеріалу буде розглянуто далі в роботі.

Але перед тим, як розглядати питання про відходи, необхідно зрозуміти, що це таке і які різновиди їх бувають.

Сьогодні важливою проблемою є не тільки порушення ландшафту земної поверхні відкритими гірничими роботами, але й колосальне накопичення різних видів відходів пов’язаних як з промисловістю, так і споживчим фактором.

Щорічно по всьому світу мільярди тонн твердих відходів, надходить в біосферу, наносивши тим самим непоправний шкоди, як живої так і не живої природи. В глобальних масштабах змінюється кругообіг води газовий баланс в атмосфері. Велика кількість видів живих істот схильні до дій небезпечних речовин, в тому числі на генетичному рівні, звідси виникають ураження цілого ряду поколінь організмів. [2]

В побуті відходи називають побічний продукт діяльності людини, втративши повністю або частково свої властивості, але які потенційно чи реально можуть бути використані як сировину в інших галузях шляхом переробки.

Відходи виробництва і споживання - є джерелом антропогенного забруднення навколишнього середовища в глобальному масштабі, виникають як неминучий результат споживчих відносин і неприпустимо низького коефіцієнту використання ресурсів.

Вони забруднюють і захаращують оточуючий наш природній ландшафт. Крім цього, являються джерелом надходження шкідливих хімічних біологічних і біохімічних препаратів в навколишнє природнє середовище. Це створює певну загрозу здоров’ю і життю населення селищ, міст, областей і цілим районам, тобто, порушують екологічне середовище.

Щоб детальніше ознайомитись з різновидами і ступенем небезпеки відходів пропоную розглянути їх класифікацію (рис 1.4) [1].

Всі відходи класифікується:

Рис. 1.4 Класифікація відходів за походженням

відходи промисловості - залишки мінеральної сировини, матеріалів чи полу фабрикатів, сформованих в результаті головного технологічного процесу, а також є побічним ефектом підприємства;

відходи споживання - залишки виробів чи матеріалів, втративши свої споживчі властивості в результаті фізичного або морального зносу, а також до цього класу відносяться відходи сформовані в результаті життєдіяльності людини - тверді побутові відходи

Також відході розділяються на два типи:

) утилізовані;

) не утилізовані;

Утилізовані - це відходи, які мають можливість бути утилізованими або переробленими для використання в іншій галузі, вони не можуть бути винищені.

Не утилізовані - це відході, які не мають можливості бути утилізованими, так як на даному етапи розвитку не існує певних технологій для їх переробки.

Відходи виробництва і спожитку діляться на декілька видів:

·  Тверді побутові відходи (ТПВ);

·        Будівельні відходи (БВ);

·        Небезпечні відходи;

·        Харчові відходи.

Так як метою даної роботи є обґрунтування можливості рекультивації залишених вироблених просторів обводнених кар’єрів, шляхом використання твердих будівельних відходів для відновлення земель порушених відкритою розробкою родовищ будівельних матеріалів, то пропонуємо розглянути більш детальніше цей вид відходів. Аналіз будівельних відходів показує, що вони, в основному, представленні сумішшю: бою цегляної кладки -30%; ґрунту -10% лому залізобетону, бетону, 40% - штукатурки деревина-10% інші - 10% (рис 1.5) [1].

Рис. 1.5 Склад твердих будівельних відходів

Будівельні відходи формуються при:

- Знесені чи реконструкції будівель та споруд;

- Виробництві будівельних матеріалів, деталей і конструкцій;

- Очищення територій промислових і адміністративно-побутових приміщень.

За останній час інфраструктура міст інтенсивно росте, таким чином ми можемо спостерігати значне збільшення зносу старих будівель і побудову нових, що і є джерелом виробництва і накопичення таких видів відходів.

Класи небезпечності: існують 4 класи відходів, із-за чого залежать витрати на їх переробку чи утилізацію. Це такі класи як:

1. Надзвичайно небезпечні: Відходи, до складу яких входить ртуть та її сполучення в тому числі сулему (Hg, хромовокислий і ціаністий калій, сполучення сурми, в тому числі (Sb) - трьохлорну сурму, бензопирен та інші.

2.      Високо небезпечні: Відходи, до складу яких входять,хлориста мідь, сульфат міді, щавлевокислу мідь, троьхокисну сурму, сполучення свинцю.

.        Помірно небезпечні: Відходи до складу яких входить оксиди свинцю (PbO, Pb), хлорид нікелю, чотирьохлористий вуглець.

4.      Мало небезпечні: Відходи, до складу яких входить сульфат магнію, фосфати,сполучення цинку, відходи збагачення корисних копалин флотаційним способом з використанням амінів.

Фактори, які впливають на вибір виду відходів для гірничотехнічної рекультивації залишкового виробленого простору кар’єру.

У зв’язку з тим, що відходи несуть в собі існуючу потенціальну екологічну загрозу, їх використання в якості матеріалу для заповнення залишеного виробленого простору при гірничотехнічній рекультивація кар’єру потребує виконання особливих умов при їх розміщені в навколишньому середовищі. Це такі умови як:

забезпечити високий рівень інженерного захисту геологічного середовища від проникнення забруднюючих речовин;

використання технологій попередньої підготовки перед розміщенням;

використовувати сучасні методи складування і впливу на масу відходів з ціллю їх скорішого біологічного розкладання.

Виходячи з цього, при розміщенні відходів в вироблений простір кар’єру потрібно враховувати ряд факторів і вимог до властивостей ( фізичних, компресійних, абразивні та корозійні, санітарно-бактеріологічні та ін.) відходи і параметри виробленого простору кар’єрів, а також вид корисної копалини, розробленого кар’єром.

При виборі відходів для заповнення залишкового виробленого простору необхідно врахувати наступні фактори:

еколого-гігієнічні - допускається з точки зору безпеки для людей і навколишнє середовище;

ресурсній - наявності достатньої для заповнення кар’єру кількості відходів;

реакційну здатність - хімічні індиферентність компонентів відходів;

інженерно-геологічні - схожість відходів з природніми матеріалами кар’єру.

Кожний із факторів враховує певні властивості і характеристики відходів. В результаті проведеного аналізу фізико-механічних, хімічних і гранулометричних властивостей полігонів захоронення відходів, нами було встановлено, що найбільш оптимальним видом відходів для заповнення гірничих виробок є будівельні відходи

Це можна пояснити схожістю структури і гранулометричного аналізу складу будівельного сміття з породами родовища будівельних матеріалів, відсутність токсичних і шкідливих речовин у складі, що дозволяє знизити затрати на створення гідроізолюючих і захисних шарів.

Аналіз накопичення відходів в Україні та в регіоні показав, що для рішення проблеми накопичення відходів необхідно виконати наступні задачі:

. Класифікувати полігони захоронення відходів і розробити загальні вимоги їх розміщення.

. Обґрунтувати і розробити технологічні вимоги створення полігонів захоронення відходів у залишковому виробленому просторі в умовах обводнення дна кар’єру.

. Технологічно обґрунтувати і розробити раціональні схеми складування будівельних відходів в вироблений простір кар’єру

. Встановити необхідний об'єм відходів для заповнення залишкового виробленого простору в залежності від його параметрів.

. Визначити площі земель, які можуть бути повернуті в сільськогосподарське використання.

. Розробити конкретні рекомендації по створенню техногенного ландшафту використовуючи будівельні відходи в залишеному виробленому Чаплинського кар’єру України.

. Визначити економічний ефект від заходів розроблених технологічних схем гірничотехнічної рекультивації з використанням будівельних відходів на Чаплинському кар’єрі.

2.4 Розробка класифікації полігонів складування відходів та основні вимоги щодо їх розміщення в обводнених залишкових вироблених просторів кар’єру

При довготривалому складуванні відходів на спеціально призначеній ділянці формується спорудження - називається полігоном від складованих відходів. Але, якщо відходи складуються на закритій ділянці або дільниці, яка згодом буде ізольована від зовнішньої дії, тоді такі споруди називають полігони захоронення відходів.

Полігони захоронення відходів(ПЗВ) - це інженерне спеціалізоване спорудження, призначене для захоронення відходів. Різниця від «диких» смітникових звалищ (ПЗВ) повинні мати структурно-технічну побудову для забезпечення санітарно-епідеміологічного благоустрою населення. Мета даного захоронення - гарантувати екологічну безпеку навколишнього середовища, перешкоджати розвитку небезпечних геологічних процесів і явищ.

Полігони захоронення відходів - є природоохоронним об’єктом, а складування відходів здійснюється таким чином, щоб перешкоджати забрудненню атмосфери, ґрунту поверхневих і ґрунтових вод, ближчі водостоки.

Розміри і потужності (ПЗВ) визначає потрібність в складуванні відходів з урахуванням екологічних вимог і санітарних норм.

Прийманню на ПЗВ не придатні відходи, які можуть бути вторинною сировиною ( при можливості утилізації) чи до складу яких входять токсичні, отруйні і агресивні речовини.

Використання не порушених земель під створення полігонів захоронення чи складування відходів не є доцільним ні з екологічної, ні з соціальної точки зору.

Саме тому розміщення відходів в вироблений простір кар’єру при гірничотехнічній рекультивації є актуальною задачею і альтернативним направленням в рекультивації порушених земель відкритими гірничими роботами.

При цьому вирішується дві задачі:

. Відновлення ландшафту,

. Безпечне розміщення відходів.

Як правило об'єм таких виробок великий, тому деякі види відходів будуть цінними ресурсами для їх заповнення.

На основі аналізу українських джерел науково-технічної літератури, а також за класом небезпечності відходів пропонується наступна класифікація полігонів захоронення відходів (табл. 2.2) [2].

Виходячи з цього, у випадку складування будівельних відходів полігону захоронення відходів буде відноситись до мало небезпечним, що робить даний вид полігону захоронення відходів менш небезпечним, як для людини, так і для екосистеми.

Таблиця 2.2

Класифікація полігонів захоронення відходів (ПЗВ) в залежності від впливу на екосистему [2]

Найменування

Степінь шкідливості дії пзв на навколишнє середовище

критерії впливу пзв на екосистему.

надзвичайно небезпечні

дуже висока

екологічна система порушена. період встановлення відсутній

високонебезпечні

висока

екосистема сильно порушена. період встановлення не менше 30 років після повного знешкодження джерела.

Помірно небезпечні

середня

екологічна система порушена. період встановлення не менше 10 років після зниження шкідливої дії від існуючого джерела

мало небезпечні

низька

екологічна система порушення період відновлення не менше 3-х років

практично безпечна

дуже низька

екологічна система практично не порушена.


На основі попереднього аналізу законодавчої бази України, а також огляду літератури, нами розроблені вимоги до розміщення ПЗВ в вироблених просторах кар’єрів і дана оцінка умов для їх розміщення. [4]

Згідно з розробленими нами потребами в умовах обводнення дна виробленого простору кар’єру ПЗВ розміщують:

) на дільницях, де є можливість існування заходів і втілення інженерських рішень, виключаючи забруднення навколишнього середовища;

) на дільниці заповненою водою утилізація і осушення водоймище відбувається шляхом засипки породами з відвалу або створення внутрішнього відвалу в процесі доробки кар’єру до рівня висоти відсипки 2-3 метри більше рівня підземних вод чи рівня водоймища [4]

) на дільницях, прилеглих до міських територій, якщо вони не включені до жилої забудови згідно з генеральним планом розвитку міста на ближчі 25 років.

) на дільницях характерних природною захищеністю підземних вод від забруднення (природні ізоляційні шари глини піску граніту та ін.)

) за граничною санітарно-захисною зоною з урахуванням розі вітрів відносно жилою забудови, зон відпочинку і інших місць масового перебування населення;

) за межами зон можливого впливу на водозбірники поверхневих вод та ін.;

) за межами населених пунктів;

) на відстані не менше 15км від аеропортів, 3 км від кордонів курортних міст відкритих водоймищ, заповідників, 1км від кордону населених пунктів. 0,5 км від житловою і загальної забудови (санітарно-захисної зони); 0,2 км від сільськогосподарських угідь і від автомобільних та залізничних колій загальної мережі.

Відстань від вказаних вище об’єктів можуть корегуватися за даними моделювання і розрахунків впливу ПЗВ на навколишнє середовище, з обов’язковим дозволом з місцевими органами екологічного контролю і закладів державної санітарно-епідеміологічної служби.

Розміщення ПЗВ не допускається:

) на площах залягання корисних копалин і території з гірничими виробками, без згоди з органами державного гірничого надзору.

) в небезпечних зонах відвалів породи чи збагачувальних фабрик;

) в зонах активного карсту;

) в зонах розвитку, тектонічних розломів, пливунів снігових лавин,підтоплення та інших небезпечних геологічних процесів, а також на території сезонного підтоплення без утилізації та усунення процесів шляхом інженерських втілень.

) в заболочених місцях;

) в зонах поповнення і виходу на поверхню підземних вод;

) в зонах формування і використання мінеральних вод;

)в охоронних зонах водоймищ;

) на землях, зайнятих або призначені для створення лісів лісопаркової зони і інших зелених насаджень.

Розміщення ПЗВ в вироблених просторах кар’єрів допускається тільки з дозволу органів державного гірничого нагляду.

При розміщенні полігону захоронення відходів в залишений вироблений простір кар’єрів необхідно виконувати певні умови, норми і правила, так як всі відходи мають потенціальну екологічну небезпеку.

Згідно з положенням 2-2.4 документу «Державні будівельні норми України Проектування полігонів твердих побутових відходів основні положення проектування» ДБН В.2.4-2-2005 [4].

Пропонуємо враховувати наступні вимоги:

Ділянку для розміщення полігону ТПВ має вибиратися за територіальним принципом відповідно до схеми санітарної очистки міста або регіону, проекту районного планування або генерального плану населеного пункту.

Полігони ТПВ розміщують:

. На землях не сільськогосподарського призначення, непридатних для сільського господарства, погіршеної якості, не зайнятих зеленими насадженнями (особливо лісами 1-ї групи).

. На ділянках, де є можливість здійснення заходів і впровадження інженерних рішень,виключають забруднення навколишнього природного середовища, розвиток небезпечних геологічних процесів або інших негативних процесів і явищ.

. На ділянках, прилеглих до міських територіях, якщо вони не включені в житлову забудову,згідно з генеральним планом розвитку міста на найближчі 25 років, а також під перспективну забудову.

. На ділянках, що характеризуються природною захищеністю підземних вод від забруднення.

. За межами зон можливого впливу на водозабори, поверхневі води, заповідники, курорти і т.д.

З урахуванням рози вітрів щодо житлової забудови, зон відпочинку та інших місць масового перебування населення за межами санітарно-захисної зони;

) За межами міст; на відстані, не менше: 15 км від аеропортів.

) 3 км від кордону курортного міста, відкритих водойм господарського призначення, об'єктів, використовуються в культурно-оздоровчих цілях, заповідників, місць відпочинку перелітних птахів, морського узбережжя.

) 1 км від кордону міст.

) 0,5 км від житлової та громадської забудови (санітарно-захисна зона).

) 0,2 км від сільськогосподарських угідь і від автомобільних та залізничних шляхів загальної мережі.

) 0,05 км від межі лісу і лісосмуг, не призначених для використання з рекреаційною метою.

Відстані від зазначених вище об'єктів можуть коригуватися за даними моделювання або розрахунків впливу полігону ТПВ на навколишнє середовище, з обов'язковим погодженням з місцевими органами екологічного контролю та установами державної санітарно-епідеміологічної служби.

Розміщення полігонів ТПВ не допускається:

. На площах залягання корисних копалин і територіях з гірничими виробками без погодження з органами державного гірничого нагляду.

. У небезпечних зонах відвалів породи різних шахт або збагачувальних фабрик;

. У зонах активного карсту.

. В зонах розвитку тектонічних розломів, зсувів, селевих потоків, снігових лавин, підтоплення та інших небезпечних геологічних процесів, а також на територіях сезонного затоплення.

. У заболочених місцях.

. У зонах поповнення і виходу на поверхню підземних вод.

. У зонах формування та використання мінеральних вод.

. В охоронних зонах водойм.

. У зонах санітарної охорони курортів та заповідників.

на землях, зайнятих або призначених під заняття лісами, лісопарками, іншими зеленими насадженнями, які виконують захисні функції і є місцями масового відпочинку населення.

Розміщення полігонів ТПВ допускається:

. На ґрунтах просідають за умови повного усунення просадних властивостей ґрунтів.

. На потенційно підтоплених територіях за умови спорудження дренажу шляхом пристрою протифільтраційного екрана відповідно до п. 2.6 на підставі і на схилах полігону і знезаражування вод в разі аварійної ситуації.

. У зоні III поясу санітарної охорони водозаборів при наявності у них природної захищеності (присутність у літологічний розрізі достатньо потужних і витриманих водотривких порід) пристроєм в чаші полігону надійного протифільтраційного екрана (коефіцієнт фільтрації води не більше 10-9 м/с).

. В сейсмічних районах при дотриманні відповідних вимог СНіП ІІ-7.

. На ділянках, віддалених від тектонічних розломів і активних зон геодинамічної напруженості, які виявляються за допомогою інженерних вишукувань.

. Ґрунтові води на ділянці розміщення полігонів ТПВ повинні знаходитися на глибині не менше2 м від його заснування.

. Протифільтраційним екраном полігонів ТПВ вважається екран, який має у відповідності з європейськими стандартами коефіцієнт фільтрації води не більше 10-9 м/с.

Полігони ТПВ в залежності від особливостей розташування в рельєфі поділяються на:

. Рівнинні (розташовані на відносно рівній поверхні з ухилом рельєфу до 5%).

. Схилові (розташовані на схилах рельєфу з ухилом місцевості більше 5%).

. Вододільні (розташовані на вододільних просторах).

. Яружно-балкові (розташовані в природних пониженнях рельєфу, балках та ярах).

. Котловані кар'єрні (розташовані в штучних виїмках або кар'єрах після видобутку будівельних матеріалів або корисних копалин).

. Гірські (розташовані в гірській місцевості).

. Змішані (наприклад, кар'єрно-схилові та ін.).

Залежно від особливостей розміщення полігонів ТПВ в рельєфі виконують: комплекс інженерних, екологічних і санітарно-гігієнічних досліджень, оцінку впливу на навколишнє середовище, включаючи середовище життєдіяльності людини, розробку конструктивних і технологічних проектних рішень, обґрунтування заходів щодо зменшення або ліквідації негативного впливу на навколишнє середовище і розвиток небезпечних геологічних процесів і явищ, а також забезпечення експлуатаційної надійності полігонів ТПВ.

За типом зволоження території, що визначається як відношення суми річних опадів до вологи,яка випаровується з поверхні суші (Кув), і показаних у додатку В, полігони ТПВ відносять до зони:- надлишкового зволоження, Кув > 1,2;- достатнього зволоження, Кув 1,0...1,2;- нестійкого зволоження, Кув 0,75...1,2;- недостатнього зволоження, Кув0,5...0,75;- посушливій, Кув < 0,5.

В залежності від типу зволоження території, на якій розміщуються полігони ТПВ,розраховується обсяг утворення фільтрату, визначаються методи боротьби з його накопиченням, розмір секцій накопичувачів фільтрату, тривалість їх наповнення і особливості складу робіт, зазначених в 2.8. [4].

Відведення земельної ділянки під розміщення полігонів ТПВ, складання акта вибору і відведення здійснюються згідно з чинним законодавством і відповідними нормативними документами.

А також:

- Забезпечити високий ступінь захисту геологічного середовища, в якому знаходяться відходи, від проникнення в неї отруйних речовин.

Організувати підготовку площі перед розміщенням відходів;

Використання певних методів і схем складування відходів для їх подальшого і прискореного біохімічного розкладу.

Управління процесом захоронення включає в себе підготовку основи при розміщенні відходів, тим самим необхідно створити захист поверхні дна і бортів залишеного виробленого простору кар’єру;

Щоб уникнути такої дії, для захоронення відходів необхідно використовувати «бар’єрний підхід». Тут мається на увазі,що повинно бути декілька бар’єрів незалежні один від одного,щоб уникнути негативного впливу на навколишнє природнє середовище, із-за можливих пошкоджень.

Пропонуються розглянути декілька варіантів бар’єрів:

Перший бар’єр.

Перший бар’єр вважається внутрішньою безпекою полігону. Представлений біологічно чистим, очищений від отруйних домішок матеріалу.

Другий бар’єр.

Другий бар’єр - зовнішня безпека полігону. Вибрана дільниця повинна бути придатною по всій геології і гідрогеології, а саме мати непроникаючий шар.

Третій бар’єр

Третій бар’єр - захищає полігон від хімічного, біологічного, і фізичного процесу. Полігон повинен бути стабільним і збудованим так, щоб вода не могла проникнути, а утворений газ вийти.

Четвертий бар’єр

Четвертий бар’єр - для перешкоджання попадання забруднення в ґрунтові води.

П’ятий бар’єр

Поверхневе зміцнення для перешкоджання потрапляння дощової води і не контрольованого виходу газу.

Полігон захоронення відходів повинен контролюватися на протязі 50-100 років, а саме виконуватися необхідний нагляд ремонт. Всі системи повинні бути сконцентровані таким чином, щоб у випадку чого могли відновлюватися.

Враховуючи такі вимоги, цілісно було б розглянути варіанти залишених вироблених просторів з природнім геологічним бар’єром. Такі вироблені простори утворюються в наслідок виробки будівельних кар’єрів, так як в основному в подібних кар’єрах видобувається глина вапняк чи граніт, а як відомо таки виді корисних копалин мають погану пропускну здатність, тим самим знижується ризик потрапляння шкідливих речовин в навколишнє природне середовище.

Висновок

За попереднім аналізом стану земель та перспективи розвитку гірничотехнічної рекультивації порушених земель були зроблені методичні положення щодо вдосконалення технології гірничотехнічної рекультивації обводнених залишкових вироблених просторів кар’єрів.

. Рекультивації поділяється на два абсолютно різні, але тісно пов’язанні між собою етапи:

Гірничотехнічна рекультивація - це комплекс гірничотехнічних робіт по відновленню природного ландшафту, зміненого в результаті відкритої розробки родовища корисних копалин.

Біологічна рекультивація - процес відновлення родючості землі після гірничотехнічної рекультивації. Сформовано декілька варіантів рекультивації:заповнення залишкових вироблених просторів: розкривними породами, затоплення(створення водоймищ) та складування будівельних відходів.

. Було створено загальну класифікаційну таблицю видів кар’єрних полів згідно за параметрами типових кар’єрів, що дає змогу використовувати її для характеристики родовищ.

. За аналізом будівельних відходів було представлено склад будівельних відходів, та за рахунок проведеного аналізу було створено класифікацію з 4 класів небезпечності відходів. Так як нас цікавили саме будівельні відходи, то за цією класифікацією я відніс їх до 4 класу небезпечності, так як вони не містять в собі високотоксичних речовин і матеріалів, що роблять їх більш сприятливим матеріалом для заповнення залишкового виробленого простору.

. Сформульовані заходи згідно з положенням документу «Державні будівельні норми України Проектування полігонів твердих побутових відходів основні положення проектування» ДБН В.2.4-2-2005[4], для забезпечення безпечної штучним матеріалом.

3. На основі аналізу існуючих полігонів та складу будівельних відходів було створено класифікацію полігонів для складування відходів та вимоги щодо їх розміщення у обводненому залишеному просторі кар’єру на основі положенням документу «Державні будівельні норми України Проектування полігонів твердих побутових відходів основні положення проектування» ДБН В.2.4-2-2005 [4].

гірничотехнічний рекультивація обводнений кар’єр

3. РОЗРОБКА ТИПОВИХ ТЕХНОЛОГІЧНИХ СХЕМ ГІРНИЧОТЕХНІЧНОЇ РЕКУЛЬТИВАЦІЇ ОБВОДНЕНИХ ЗАЛИШКОВИХ ВИРОБЛЕНИХ ПРОСТОРІВ КАР’ЄРУ ВІДХОДАМИ ІНШИХ ГАЛУЗЕЙ ПРОМИСЛОВОСТІ

3.1 Розробка технології гірничотехнічної рекультивації при складування будівельних відходів в залишковий простір в умовах обводнення кар’єру

Метою магістерської роботи є обґрунтування можливості рекультивації залишених вироблених просторів обводнених кар’єрів, шляхом використання твердих будівельних відходів для відновлення земель порушених відкритою розробкою родовищ будівельних матеріалів.

Виходячи з даних табл. 2.2 можливі наступні схеми складування відходів: майданчикова і висотна.

Майданчикова схема приймається на неглибоких кар’єрах глибиною 20-40 м і малих об’ємах залишених вироблених просторів (рис. 3.4).

Дана схема передбачає селективну відсипку відходів у вироблений простір. Такий спосіб складування дозволяє здійснювати захоронення декілька видів будівельних відходів. Після підготовки на сортувальному пункті відходи транспортують в залишений вироблений простір і селективно складують в тимчасовий відвал, звідки селективно відсипають в сміттєвий навал за допомогою грейдера. Після цього з відвалу породи насипають зверху породну подушку із зовнішнього відвалу розкривних порід, створюючи основу для подальшої рекультивації.

Пропоную розглянути етапи селективного складування відходів в залишений вироблений простір кар’єру за даною схемою.

Примітка: при складуванні двох видів відходів зберігається така ж послідовність етапів.

Рис. 3.6 - Майданчикова технологічна схема складування відходів у залишковий вироблений простір кар’єру

- розподільчий пункт прийому відходів, 2- тимчасові навали, 3 - грейфер, 4- драглайн, 5 - висота відходів, 6 - відвал розкривних порід, 7 - транспортні шляхи, Hу - висота уступу ( висота ЗВП) м; Шд - ширина дна ЗВП, м; hп - висота відвалу породи, м; ho - висота відвалу відходів (тимчасовий відвал, м); z - безпечна відстань від драглайну до краю бровки, м; а - безпечна відстань від робочого грейфера до відвалу відходів, м; y - кут укосу природнього відвалу розкривних порід, град; β - кут природнього укосу відвалу відходів, град.; ɸ - кут укосу борта кар’єру, град.

Для подальшого розробки технології гірничотехнічної рекультивації обводненого залишкового виробленого простору обираємо висотну схему.

Висотна схема в умовах обводнення кар’єрного дна залишкового виробленого простору кар’єру.

Етап

Висотна схема складування відходів, передбачена для великих кар’єрів глибиною 40-100м і при великих об’ємах залишкового виробленого простору (рис. 3.7).

Рис. 3.7 Висотна технологічна схема підготовки і створення ізоляційного шару виробленого простору кар’єру та осушення обводненого дна кар’єру для подальшого складування будівельних відходів

. Водоймище; 2 насип глини на дні кар’єру; 3. відвал будівельних відходів і розкривних порід; 4 відвал глини, 5 грейфер; 6 автосамоскид. Нк - глибина кар’єру, м; Нг - висота гірничої маси, м; А - довжина насипу глини, м; Шд - ширина дна кар’єру, м; ѱ- кут укосу бортів, град; в - ширина заходки грейфера, м; Z - безпечна відстань від грейфера до верхньої брівки уступу.

За даною схемою, перед тим як складувати відходи у залишковий вироблений простір кар’єру в умовах обводнення дна кар’єру водоймищем чи ґрунтовими водами, необхідно для безпечного захоронення відходів осушити дно кар’єру та створити ізоляційний шар на дні та на бортах виробленого простору - протифільтраційний екран полігону будівельних відходів, екран, який вважається і має відповідність з європейськими стандартами, коефіцієнт фільтрації води не більше 10-9 м/с. Потік глини направлений в вироблений простір кар’єру за допомогою автомобільного та залізничного транспорту. Глину (4) вкладають грейфером (5) з вищого уступу де розташовується тимчасовий навал глини (4), яку відвантажують автосамоскиди (6); утворюється навал, висота якого буде становити не менше 2 метри вище рівня ґрунтових вод та рівня води в водоймищ, згідно з документу «Основні положення проектування полігонів твердих побутових відходів ДБН В.2.4-2-2005.Офіційне видання.». Таким чином заповнюється вироблений простір та ізолюється дно кар’єру для подальшої по етапної рекультивації залишеного простору кар’єру.

. Етап

Висотна технологічна схема підготовки і створення ізоляційного шару на бортах залишкового виробленого простору кар’єру. (рис. 3.8).

Рис. 3.8 Висотна технологічна схема підготовки і створення ізоляційного шару на бортах залишкового виробленого простору кар’єру

- осушена ділянка дна кар’єру глиною і розкривних порід; 2 - ізоляційний шар глини висотою 1-2 м.; 3 - навал глини для ізоляція залишеного виробленого простору кар’єру. 4; 5 - бульдозери; 6 - автосамоскид; 7 - рівень ґрунтових вод; 8 - навал будівельних відходів; 9 - навантажувач.

За даною схемою, підготовка бортів залишеного виробленого простору кар’єру, відбувається наступним чином, ізолюємо борти шаром глини висотою 1-2 м (згідно вимогами документу «Основні положення проектування полігонів твердих побутових відходів ДБН В.2.4-2-2005.Офіційне видання.» за допомогою бульдозерів (4) і (5), автосамоскид(6) доставляє глину на уступ вищий за уступ який ізолюється і відвантажує глину на нижче лежачий уступ, попередньо автосамоскид(6) завантажується глиною на поверхні навантажувачем (9). Бульдозер(4) вирівнює дану ділянку транспортуючи глину на нижче лежачий під уступ, який є дном кар’єру і майбутнім дном полігону, на якому, бульдозер утрамбовує глину і паралельно формує ізоляційний шар на неробочому борту виробленого простору кар’єру.

Етап

Складування будівельних відходів, у вироблений простір кар’єру (рис.3.9)

Рис. 3.9 Висотна технологічна схема складування відходів у залишковий вироблений простір

- ізоляційний шар 1-2 м; 2 - ізолюванні борти; 3 - навал глини на поверхні для створення ізолюючого шару у виробленому просторі кар’єру; 4 - навал будівельних відходів на поверхні для закладки у вироблений простір кар’єру; 5 - бульдозери, для утрамбування та транспортування глини та відходів у залишений вироблений простір кар’єру; 6 - автосамоскид; 7 - навантажувач Нк - глибина кар’єру, м; Ну - висота уступу, м; β - кут укосу навалу будівельних відходів, град; А - ширина заходки навалу будівельних відходів; ѱ- кут укосу бортів кар’єру. Няр - висота ярусу складування, за умов (ДБН В.2.4-2-2005.) складає 2 -3 м;

За даною схемою, засипка залишкового виробленого простору відбувається наступним чином, перед тим, як відвантажити будівельні відходи у вироблений простір, навантажувач (7), який знаходиться на поверхні кар’єру, відвалом відвантажує будівельні відходи в автосамоскид (6). Після чого автосамоскид транспортує будівельні відходи до залишеного виробленого простору кар’єру, розвантажує у місці складування відходів. Після чого бульдозер (5) який знаходиться на дільниці складування, поярусно складує у залишений вироблений простір відходи висотою 2-2.5м за положенням ( Проектування полігонів та складування відході ДБН В.2.4-2-2005.) і утрамбовує відходи для подальшого складування наступних ярусів.

Етап

Схема завершення гірничотехнічної рекультивація шляхом використання будівельний відходів, як матеріалу закладки залишкового виробленого простору кар’єру та відновлення земель і можливість використання рекультивованого простору для сільськогосподарських та промислово-цивільного будівництва (рис. 3.10).

За даною схемою, поярусно висотою ярусу 2-2,5 метрів, продовжуємо засипати залишений вироблений простір використовуючи будівельні відходи як матеріал закладки гірничих виробок до самої поверхні кар’єру, після чого вкладаємо ізолюючий шар глини поверх відходів з протифільтраційним коефіцієнтом не менше 9-10м/с, для безпечного експлуатації полігону (з положення про проектування полігонів і складування відходів ДБН В.2.4-2-2005) та шару ґрунту потужністю 0,6-0,8 м.

Рис. 3.10 Схема завершення гірничотехнічної рекультивації з використання будівельних відходів, як матеріал для закладки залишкового виробленого простору кар’єру

- осушена ділянка водоймища; 2 ізолюючий шар глини потужність шару 2м.; 3 - шару ґрунту 0,6 - 0,8м; 4 - навал будівельних відходів; 5 - бульдозер; 6- автосамоскид; 7 - навантажувач; Нг - висота шару ґрунту, м; Няр - висота ярусу відходів, 2-2.5 м; Нк - глибина кар’єру,м; Ну - висота уступу,м;β - кут укосу ізолюючого шару, град; ѱ - кут укосу борта кар’єру, град.

Поярусне складування твердих будівельних відходів та селективне вкладання ізоляційних шарів, як було представлено на майданчиковій схемі в умовах обводнення дна кар’єру, дозволяє знизити приток підземних вод та при правильному осушенні дна кар’єру при дотриманні нормативних умов з положення проектування полігонів ДБН В.2.4-2-2005, що дає змогу безпечно складувати відходів, у залишковий вироблений простір кар’єру, а також знизити накопичення та вплив шкідливих газів СО на природне середовище, за рахунок параметрів протифільтраційної ізоляційних шарів на поверхні рекультивованої площі землі.

3.2 Розробка методики встановлення параметрів технологічної схеми гірничотехнічної рекультивації обводненого залишеного виробленого простору кар’єру

.2.1 Підготовки вихідних даних для визначення параметрів обводненого залишкового виробленого простору кар’єру

Основними параметрів кар’єру є - ширина та довжина кар’єрного поля, ширина та довжина кар’єру поверху та понизу, глибина кар’єру, кут укосу бортів, ширина уступу Від цих параметрі залежать отримання результати розрахунку об’єму залишеного виробленого простору, об'єм відходів необхідний для засипки виробленого простору площі відновлених земель.

Згідно за попереднього аналізу за табл. 1.2 класифікацією типів кар’єрів, візьмемо данні для розрахунку об’ємів, та площ та для визначення залежності.

.2.2 Розробка методики визначення необхідного об’єму заповнювача для засипки обводненої та звичайної частин залишкового виробленого простору кар’єру

При застосуванні розробленої технологічної схеми гірничотехнічної рекультивації на відпрацьованих або діючих будівельних кар’єрів слід мати уяву про об'єм залишеного виробленого простору, і як наслідок встановити необхідний об'єм відходів, який можна там розмістити.

Але перед тим як розрахувати об'єм відходів слід, розглянути види кар’єрних полів, що в результаті дасть більш чітку інформацію про розміри залишених вироблених просторах, а також, з’ясувати, до якого виду можна віднести будівельні кар’єри.

Для визначення об’ємів залишкового виробленого простору кар’єрів, пропоную взяти найбільш типову форму відпрацювання кар’єрів з внутрішнім відвалоутворенням (рис. 3.10), а також побудова графіків залежності зміни об’єму відходів від глибини залишкового виробленого простору для будівельних кар’єрів (Рис. 3.11, 3.12)

Об'єм залишеного виробленого простору кар’єру дорівнює

, (3.1)

де: : - середня ширина залишкового виробленого простору, м.

 - середня довжина залишкового виробленого простору, м

Нк - глибина кар’єр,м.

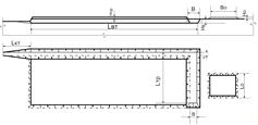
Необхідний об'єм породи для заповнення обводненого дна виробленого простору кар’єру визначається за формулою (рис. 3.11)

Рис. 3.11 Розрахункова схема необхідного об’єму заповнення залишкового виробленого простору кар’єру

Lк - довжина кар’єру поверху, м

Lк.ср.- середня довжина кар’єру, м

Lк.п. - довжина кар’єру понизу, м

Вк - ширина кар’єру поверху,м

Вк.ср. - середня ширина кар’єру, м

Вк.п. - ширина кар’єру понизу,м

Нк. - глибина кар’єру,м

Нобв. - висота обводненого залишкового виробленого простору

 (3.2)

де:  - середня ширина обводненої території,м

 - середня довжина обводненої території,м

Н обв - глибина обводненого залишкового виробленого простору

Н обв.= Ноб.уст.+2, м. (3.2.1)

де: Нобв.уст - висота обводненого уступу,

- згідно нормативним положення документа[4] висота засипаної обводненої території повинна бути на 2 метри вища рівня ґрунтових вод і водоймищ.

 (3.2.2)

де: -ширина кар’єрного,м

 -довжина кар’єрного,м

 -глибина кар’єру, м

Рис. 3.12 Розрахункова схема для визначення параметрів залишеного виробленого простору (типового кар’єру з внутрішнім відвалоутворенням)

Згідно формулі (3.2) встановлюємо залежність необхідного об’єму відходів від кутів укосу первісної виїзної траншей табл. 3.3

Таблиця 3.3

Розрахунок необхідного об'єм у відходів в залежності від параметрів, кутів укосу первісної і виїзної траншеї при глибині кар’єру 40 м

Кут укосу борта виїзної та первісної траншеї,град

Значення кутів tg

Значення кутів ctg

Глибина кар'єру, м

Об'єм виїзної траншеї, м3

Об'єм первісної траншеї, м3

Об'єм залишеного виробленого простору

40

0,83

1,19175

40

376020

255013,7

631033,656

45

1

1

40

330000

223831,4

553831,418

50

1,91

0,8391

40

291384

196919,1

488303,136

55

1,42

0,70021

40

2580504

175139,7

433190,146

60

1,73

0,57735

40

228564

155172,7

383736,713

65

2,144

0,46631

40

201914,4

137132,6

339047,017

70

2,74

0,36397

40

177352,8

120509,4

297862,24

75

3,73

0,26795

40

154308

104908,7

259216,712

80

5,67

0,17633

40

132319,2

90024,58

222343,781


Таблиця 3.4

Розрахунок необхідного об'єму відходів в залежності від кутів укосу первісної і виїзної траншеї при глибині кар’єру 80 м

Кут укосу борта виїзної траншеї, град

Значення кутів tg

Значення кутів ctg

Глибина кар'єру, м

Необхідний об'єм відходів, м3

Необхідний об'єм відходів, м3

Об'єм залишеного виробленого простору

40

0,83

1,19175

80

1324080

1141518

2465598

45

1

1

80

1140000

983129

2123129

50

1,91

0,8391

80

985536

797181

1782717

55

1,42

0,70021

80

852202

739755

1591956

60

1,73

0,57735

80

734256

639148

1373404

65

2,144

0,46631

80

627658

548645

1176302

70

2,74

0,36397

80

529411

465479

994890

75

3,73

0,26795

80

437232

387157

824389

80

5,67

0,17633

80

349277

312545

661822


Приймаємо ширину виїзної і капітальної траншеї понизу b - 15 м; довжини Lтр -150; глибину кар’єру приймаємо за таблиці№1.2.

Виходячи з результатів розрахунку за формулою (3.2) будуємо графік залежності необхідного об’єму відходів в залежності кута укосу первісної і виїзної траншеї (рис. 3.11)

Рис. 3.13 Графік залежності необхідного об'єм відходів в залежності від кутів укосу траншей малих та дуже малих за глибиною кар’єрів

Значення ліній 1 - показник необхідного об’єму відходів при глибині кар’єру 40 м в залежності від кутів укосу бортів.

2 - показник необхідного об’єму відходів при глибині кар’єру 80м в залежності від кутів укосу бортів.

За даним графіком видно, що при збільшенні кута укосу, зменшується об’єм виробленого простору кар’єру, тим самим зменшується об’єм відходів який можна було розмістити у вироблений простір кар’єру.

Отримана залежність має практичну цінність тому що, може використовуватися, як на кинутих кар’єрах з явними параметрами залишеного виробленого простору так і на діючих підприємствах, які ведуть видобувні роботи.

3.3 Розробка методики визначення площ земель,відновлених для сільського господарства визначається за формулою

З урахуванням застосування розроблених технологічних схем, з відновлення порушених земель використовуючи будівельні відході в якості закладного матеріалу, слід визначити, яка площа земель буде повернена в господарське використання

В загальному випадку для визначення площ при гірничотехнічній рекультивації кар’єрного поля типових форм (рис.3.12.) використовуємо формулу:

 (3.3)

де:  - ширина кар’єрного поля, м;

 - довжина кар’єрного поля, м;

Згідно з формулами (3.3) розрахуємо площі відновленої території, а також побудуємо графік (рис.3.12.) залежності площі відновленої землі від кута нахилу бортів кар’єрів

Таблиця 3.5

Дані кутів укосів бортів та їх числове значення

Кут укосу борта виїзної траншеї, град

Значення кутів tg

Значення кутів ctg

40

0,83

1,19175

45

1

1

50

1,91

0,8391

55

1,42

0,70021

60

1,73

0,57735

65

2,144

0,46631

70

2,74

0,36397

75

3,73

0,26795

80

5,67

0,17633


Таблиця 3.6

Розрахунок площі відновленої території в залежності від кута укосу бортів при глибині кар’єру 40 м

Кут укосу борта виїзної траншеї, град

Значення кутів tg

Значення кутів ctg

Глибина кар'єру, м

Площа м2

40

0,83

1,19175

40

170798

45

1

1

40

147360

50

1,91

0,8391

40

127330

55

1,42

0,70021

40

109773

60

1,73

0,57735

40

65

2,144

0,46631

40

79648

70

2,74

0,36397

40

66247

75

3,73

0,26795

40

53551

80

5,67

0,17633

40

41328


Таблиця 3.7

Розрахунок площі відновленої території в залежності від кута укосу бортів при глибині кар’єру 80м

Кут укосу борта виїзної траншеї, град

Значення кутів tg

Значення кутів ctg

Глибина кар'єру, м

Площа м2

40

0,83

1,19175

80

305917

45

1

1

80

264420

50

1,91

0,8391

80

228147

55

1,42

0,70021

80

195770

60

1,73

0,57735

80

166306

65

2,144

0,46631

80

139012

70

2,74

0,36397

80

113298

75

3,73

0,26795

80

88684


За графіком, можна спостерігати, зі зміною куту укосу бортів, змінюється площа відновлених земель, тому чим менший кут укосу, тим більше площа відновленої землі під в господарське використання

Отримана залежність має практичну цінність тому що, може використовуватися, для розрахунку для вибору оптимального куту укосу при гірничотехнічній рекультивації

Рис. 3.14 Графік залежності площі відновленої землі від кута нахилу бортів кар’єрів: 1 - при глибини кар’єру Нк=80м; 2 - при глибині Нк=40м.

Висновок

1. Розроблена методика розрахунку параметрів технології гірничотехнічної рекультивації залишкового виробленого простору в умовах обводнення кар’єру дозволяє визначити об’єми залишкових вироблених просторів, необхідного об'єм заповнювача, та об'єм глини для створення захисного протифільтраційного шару.

. Зі зменшенням куту відкосу бортів залишкового виробленого простору кар’єру при гірничотехнічній рекультивації, забезпечую змінення об’єму приймальної здатності залишкового виробленого простору та змінення площі рекультивованих та відновлених земель в середньому в 4 рази.

. Встановлено лінійну залежності зміни об’єму залишкового виробленого простору та площі відновлених земель за рахунок зміни глибини кар’єру 40 -80м та кута укосу бортів виробленого простору кар’єру від 400 до 850 градусів. При цих даних, зміна об’єму виробленого простору становить від 661822 м3 до 2465598 м3. А площа відновлених земель становить від 64757 м2 до 305917 м2.

4. ВИЗНАЧЕННЯ ТЕХНІКО-ЕКОНОМІЧНОЇ ЕФЕКТИВНОСТІ ВИКОРИСТАННЯ РОЗРОБЛЕНОЇ СХЕМИ ГІРНИЧОТЕХНІЧНОЇ РЕКУЛЬТИВАЦІЇ ОБВОДНЕНОГО ЗАЛИШКОВОГО ВИРОБЛЕНОГО ПРОСТОРУ ЧАПЛИНСЬКОГО КАР’ЄРУ ГРАНІТІВ

4.1 Гірничотехнічна характеристика гірничого підприємства

Чаплинське родовище гранітів Україні знаходиться на території України у Дніпропетровській області в місті Дніпропетровськ.

Координати родовища - 480 23’52.3” N 35009’32.2”E (рис. 4.15.) [2][5]

Рис. 4.15 Ситуаційний план Чаплинського родовища гранітів України

Геологічна розвідка Чаплинського родовище показує, що дільниця складає докембрійські і четвертинні породи. Корисною копалиною на родовищі є кристалічні породи, представлені гранітами, гранітодіоритами, мігматитами, що сформувалися в результаті неодноразовій ін’єкції гранітної магмі в амфіболітові гнейси, які збереглися у вигляді тонких проміжків ксенолітів.

Потужність кристалічних порід, розкривних виробок, змінюється в межах від 9,4м до 52,7 м. Із них потужність ерозійних порід від 2 до 29 м, свіжих від 5,3 до27 м.

Четвертинні відкладення перекриваючи кристалічні породи представлені суглинками пісками і глинами, потужність цих відкладень 1 -17 м. потужність розкривних порід, включаючи і руйнівну зону не постійна від 4 до 37 м

Встановлений рівень водоносних горизонтів знаходиться на відмітці 50.0 м. Гідрологічні умови розробки родовища сприятливі. При розробці третього уступу гор. +12,0 використовується насосна установка з насосом 5 ГР - 8 продуктивність якої 70 м3/год.

Розміри родовища: ширина смуги до 355 м, довжина 840 м - смуга витягнута на схід. Корисна копалина (розробляються ерозійні та свіжі граніти) представлені собою частина кристалічного масиву з нерівною поверхнею, в західній частині родовища кристалічні породи розкриті кар’єром до гор. +12 м, а інші частини родовища вкриті товщею четвертинними породами. Найбільш високими заляганнями гранітів характеризується північно-східна частина родовища. Зараз родовище розробляється діючим кар’єром в західній частині (Кат А табл. 4.8)

Фактичні відмітки дна кар’єру +24.0м; +12,0м

Розробка кар’єру ведеться одним видобувним уступом.

Втрати корисної копалини наступні:

в верхній крівлі ( до 0,05%);

в підошві кар’єрів (не передбачені);

при погашені робіт (в бортах кар’єрів ) - згідно проекту розробки - 14,2%

З урахуванням залишених масивів породи під охороні зони ЛЕП -35 кв, а також враховуючи масив корисної копалини під відвалом Любимівського кар’єру, додаткові втрати становлять 2328700 м3.В цілому загальні втрати складають 4530487 м3.

Таблиця 4.8

Стан промислових запасів за ступенем підготовленості [5]

Категорія

Розкривні

Підготовлені

Готові до виїмки.

А

294

164

130

В

-

-

-

С1

-

-

-

А+В+С1

294

164

130


Таблиця 4.9

Коротка технологічна характеристики Чаплинського кар’єру [5]

Технологічні параметри

Значення

Річна продуктивність кар’єру м3/рік - гірничої маси м3/рік; - розкривних порід м3/рік;



203000


140000

Висота уступу, м

12-15м

Геометричні розміри кар’єру


- Довжина, м - Ширина,м - Глибина,м

840


355


72

Кут укосу уступа,град

600

Кут укосу робочого уступу,град

800


Таблиця 4.10

Геологічній розріз родовища

№ пп.

Назва породи

Потужність,м



0

До

Середня

1

Насипний ґрунт

0

5,5

2,75

2

Рослинний покрив

0

1,5

0,75

3

Суглинками пісками і глинами

0

1.7

0.85

4

Гранітами, гранітодіоритами, мігматитами

0

52,7

26.3


На кар’єрі використовується транспортна система розробки, з зовнішнім відвалоутворенням. Виймально-навантажувальні роботи здійснюються механічною лопатою HYNDAI R500. Транспортування гірничої маси на зовнішні відвали і сортувальний пункт здійснюється автосамоскидами автосамоскидом VOLVO FM-480.

Виходячи з характеристик гірничого підприємства поперечний розріз Чаплинського родовища представлений на (рис. 4.16)

Рис. 4.16 Поперечний розріз Чаплинського родовища гранітів

У кар’єрі проводиться 4 виїзних траншей на горизонти. Видобувні роботи ведуться на горизонті +12.0. та на дні кар’єру, де видобутий граніт проходить чотири стадії подрібнення та сортування на готову продукцію (рис. 4.17)

Рис. 4.17 Поперечний розріз Чаплинського кар’єру (у відпрацьованому вигляді)

.2 Визначення основних параметрів технології гірничотехнічної рекультивації залишкового виробленого простору на Чаплинському родовищі гранітів

Розглядаючи можливість застосування залишеного виробленого простору кар’єру Чаплинського родовища під розміщення у ньому полігон будівельних відходів можна відмітити, що в першу чергу в його будові існує (1) бар’єри, які представлені гранітним шаром. Бар’єри (2), (3), (4), відсутні, що свідчить про створення цих бар’єрів. Так як бар’єр 3 і 4 виконують однакову функцію, їх можна об’єднати в один і представити у вигляді глини, яка буде виконувати всі необхідні функції. П’ятий бар’єр буде виконаний із шарів глини і чорнозему на самій поверхні полігону.

З урахування того що Чаплинський кар’єр є достатньо глибоким (до 80м) із великим об’ємом залишеного простору кар’єру, то застосуємо висотну схему складування, так як майданчикова схема призначена для кар’єрів малою глибиною до 40 м невеликим об’ємом залишеного виробленого простору кар’єру.

Застосування розробленої висотної схеми на кар’єрі при гірничотехнічній рекультивації залишеного простору кар’єру повинна починатися при умовах обводнення дна кар’єру з осушення дна та створення захисного бар’єру на дні та на бортах кар’єру. Так як, (1) бар’єр представлений гранітом, а (2),(3),(4), необхідно створювати.

Першим етапом гірничотехнічної рекультивації, пропоную осушення обводненого дна кар’єру за технологічними вимогами «Проектування полігонів твердих побутових відходів основні положення проектування ДБН В.2.4-2-2005» [4]

Що до вирішення, задачі осушення дна кар’єру пропоную використовувати глину протифільтраційним коефіцієнтом не більше 10-9 м/с та породами розкриву, згідно з документу про «Проектування полігонів твердих побутових відходів основні положення проектування ДБН В.2.4-2-2005» [4] (рис. 4.18)

етап - осушуємо обводнене дно протифільтраційним екраном породам та глиною коефіцієнтом фільтрації 10-9 м/с, шляхом засипка грейдером «1», автосамоскидом «2» після чого бульдозером «3» розрівнює по всій ділянці дна кар’єру. Висота шару згідно умов «ДБН В.2.4-2-2005»[4] повинна бути на 2-2,5 м вища рівня водоносного горизонту.

Рис. 4.18 Схема 1 етапу гірничотехнічної рекультивації осушення обводненого дна Чаплинського кар’єру

- Грейдер; 2 - автосамоскид; 3 - бульдозер; (1) - перший захисний бар’єр представлений гранітом; (2) - другий захисний бар’єр осушена ділянка водоймища представлена глиною та розкривними породами; Нк - глибина кар’єру ( становить 72м); Ну - висота робочого уступу(становить 15м); Вк - ширина кар’єру (становить 355м); А- безпечна відстань від осі грейдера (становить 6м) [4]; Кути β робочого борту 650, неробочого борту 800.

етап - захист бортів кар’єру виконується глиною з відвалів розкривних порід. Автосамоскидами маса транспортується на верхні уступи бортів кар’єру де потім її вивантажують безпосередньо у залишений вироблений простір (рис. 4.16)

4.2.1 Розрахунок необхідного об’єму породи для виконання захисного бар’єру у обводненому середовищі

Для осушення дня кар’єру та створення захисного шару із глини необхідно підрахувати потрібний нам об'єм глиняної маси. Розрахунок виконується згідно для борті кар’єру за наступною схемою (рис. 4.19)

Рис. 4.19 Схема для визначення об’єму глини для створення захисного бар’єру бортів кар’єру

Необхідний об'єм глини для створення протифільтраційного шару на бортах та на поверхні залишкового виробленого простору кар’єру.

(4.6)


де:  - необхідний об'єм глини для борті кар’єру,

 - необхідний об'єм глини на поверхні залишкового виробленого простору кар’єру, .

Необхідний об'єм глини для борті кар’єру визначаємо за формулою:

 (4.7)


де:  - ширина закладки глини не менше 3 м. згідно положення про безпечне складування відходів на полігоні. [4].

 -глибина залишкового виробленого простору кар’єру.

Р - периметр кар’єрного поля, м

Р = ( Вкср +Lкср) *2,м (4.8)

Р = (660+308)*2 = м

Необхідний об'єм глини для ізолюючого шару на поверхні залишкового простору кар’єру.

м3 (4.9)

де:  - ширина кар’єрного поля, м;

 - довжина кар’єрного поля, м;

 - товщина глиняного шару (1-2.5) м.

Заповнювати залишений вироблений простір кар’єру відходами починати слід з лівого борту кар’єру на горизонті +12.0, рухаючись до протилежного борту кар’єру, відбувається масове складування відходів автосамоскидами, а формування горизонтальної ділянки виконує бульдозер (рис. 4.20)

Рис. 4.20 Схема формування 1 рівня відходів в залишену вироблену просторі кар’єру: 1 - автосамоскид; 2 - бульдозер; (2) - захисний протифільтраційний шар

Для простоти заповнення залишеного виробленого простору пропоную виконувати роботи в два етапи формування 1 і 2 рівні (рис. 4.21)

Складування відходів продовжується до повного заповнення першого рівня (горизонт +12,0; +27,0), від лівого до правого борту.

Рис. 4.21 Схема формування 2 рівня відходів в залишену вироблену просторі кар’єру

Відсипка подальших рівнів відбувається таким же способом як 1 і 2 рівень поетапно вкладаючи захисний протифільтраційний шар глини на бортах засипки певних рівнів, аж до поверхні залишеного виробленого простору кар’єру піл кутом 60град. від горизонту (рис. 4.22). Роботи по складуванню та транспортуванню відбуваються бульдозером 2 и автосамоскидом 1.

Рис. 4.22 Схема завершення закладки відходів в залишковому вироблену просторі кар’єру

Після заповнення відходами залишеного виробленого простору до поверхні кар’єру, вкладаємо протифільтраційний шар глини 2 м та шару ґрунту під кутом 60 потужністю 0,8 - 0,9м. Роботи вкладання шарів та створення ре культиваційного ландшафту відбувається автосамоскидом 1 та бульдозером 2.

4.2.2 Розрахунок об’єму залишеного виробленого простору кар’єру на Чаплинському родовищі

Згідно зі різнорідності кар’єрних полів табл. 2.2 Чаплинський кар’єру потрапляє під тип «малі кар’єри», вид розробки глибинний з площею 0.34 км2 максимальною глибиною 85-90 м і з загальним об’ємом 100млн м 3 (рис. 4.23)

Рис. 4.23 Спрощена розрахункова схема Чаплинського родовища гранітів для визначення об’єму залишеного виробленого простору

Для умов Чаплинського родовища розраховуємо об'єм залишкового виробленого простору кар’єру за формулою (3.1).

273*535*74=10,8 млн. м3 (4.10)

де: число 273 м - середня ширина кар’єру; 535 м - середня довжина кар’єру; 74 м - глибина кар’єру.

Для умов Чаплинського родовища розраховуємо необхідній об'єм заповнювача представлений розкривними порадами суглинками пісками глинами)[5] для створення захисного бар’єру за формулою (3.2).

270*227*29=1.7 млн. м3; (4.11)

де: число 227м - середня ширина кар’єру; 270м - середня довжина кар’єру; 29 м - глибина кар’єру.

Висота виробленого обводненого простору, за технологічними параметрами та правилами експлуатації і рекультивації обводнених кар’єрів, висота складованих порід повинна бути на 2 метри вище обводненого горизонту [4].

Для умов Чаплинського родовища розраховуємо необхідний об'єм відходів для заповнення залишкового виробленого простору кар’єру.

Vв= Vзвп -Vобв, м3 (4.12)

Vв =10,8 - 1,7= 9,1млн м3

де: Vв - необхідний об'єм відходів, м3

Vзвп - об'єм залишковий вироблений простір кар’єру,м3

Vобв. - необхідний об'єм заповнювача обводненої части залишкового виробленого простору кар’єру, м3.

Виходячи з результатів розрахунку за формулою (3.2) табл. 4.10, будуємо графік(рис. 4.24) залежності необхідного об’єму відходів від кута укосу бортів для Чаплинського родовища.

Таблиця 4.10

Розрахунок об’єму залишкового виробленого простору для Чаплинського кар’єру

Кут укосу борта виїзної траншеї, град

Числове значення кутів tg

Числове значення кутів ctg

Глибина кар'єру, м

Необхідний об'єм відходів, м3

Необхідний об'єм відходів, м3

Необхідний об'єм залишкового виробленого простору.м3

40

0,83

1,19175

72

1088704,8

1095401,933

2184107

45

1

1

72

939600

945393,1034

1884993

50

1,91

0,8391

72

814484,16

818174,3568

1632659

55

1,42

0,70021

72

706483,296

710970,9113

1417454

60

1,73

0,57735

72

610947,36

614877,9958

1225825

65

2,144

0,46631

72

524602,656

528040,6385

1052643

70

2,74

0,36397

72

445023,072

448013,2557

893036,3

75

3,73

0,26795

72

370357,92

372920,5529

743278,5

80

5,67

0,17633

72

299114,208

301271,9651

600386,2


Рис. 4.24 Графік залежності необхідного об'єм відходів в залежності від кутів укосу траншей малих та дуже малих за глибиною кар’єрів: 1 - показник необхідного об’єму відходів при глибині кар’єру 72 м (в умовах Чаплинського кар’єру) в залежності від кутів укосу бортів.

.2.3 Розрахунок площі відновленої території на Чаплинському кар’єрі

Розрахунок площі земель, які повертаються в сільськогосподарське використання формула (3.3)

Виходячи з результатів розрахунку за формулою (3.3) табл.4.11, будуємо графік (рис.4.25.) залежності площь відновлених земель від кута укосу первісної і виїзної траншеї для Чаплинського родовища. (продовження на ст. 70)

Таблиця 4.11

Розрахунок площі земель, які повертаються в сільськогосподарське використання

Кут укосу борта виїзної траншеї, град

Значення кутів tg

Значення кутів ctg

Глибина кар'єру, м

Площа м2

40

0,83

1,19175

72

280347

45

1

1

72

242032

50

1,91

0,8391

72

208704

55

1,42

0,70021

72

179072

60

1,73

0,57735

72

152193

65

2,144

0,46631

72

127362

70

2,74

0,36397

72

104023

75

0,26795

72

81731

80

5,67

0,17633

72

60103


Рис. 4.25 Графік залежності площі відновленої землі від кута нахилу бортів кар’єрів: 1 -при глибині Нк =72 м для умов Чаплинського кар’єру

.2.4 Розрахунок термінів сроку служби полігону залишеного виробленого простору на Чаплинському родовищі

 (4.13)

де:  - Об'єм ЗВП Чаплинського родовища Vзвп =10808070

 - кількість відходів утворюються за рік = 450тис.т

 - густина будівельних матеріалів,  = 0,8-1,5т/;

4.2.4 Розрахунок площі відновленої території Чаплинського кар’єру

Розрахунок площі відновленої території Чаплинського кар’єру за формулою:

 (4.14)

де: - ширина кар’єрного поля, м

 - довжина кар’єрного поля, м

Отже,при застосуванні розроблених технологічних схем гірничотехнічної рекультивації на Чаплинському кар’єрі до господарського використання повернеться близько 298200 м2(30га) відновленої землі.

4.3 Охорона праці

4.3.1 Загальні положення

Для створення безпечних умов виробництва робіт необхідно виконувати наступні основні заходи:

1. Всі працівника кар’єру повинні отримувати інструктаж з техніки безпеки не рідше двох разів на рік з регістра цією в спеціальній книзі і періодично проходити медогляд.

. В нарядній і на робочих місцях повинно бути передбаченні попереджувальні надписи і плакати з техніки безпеки.

. Кути укосі відвальних уступів їх висота, розміри робочих майданчиків і параметри кар’єрних доріг повинні відповідати їх проектним значенням.

. Відсипка орієнтуючого земельного валу на транспортних бермах, встановлення дорожніх знаків і освітлення автодороги виконується відповідно до вимог СниП 2.05.07-91. Рух автотранспорту по кар’єрним шляхам виконується без обгону.

. Для руху робітників обладнуються пішохідні доріжки, а уздовж конвеєру при нестійкій підошві вкладаються трапи.

. Гірничотранспортне обладнання повинно розміщуватися на робочих майданчиках відвальних уступів поза призми можливого обрушення.

. Гірничі і транспорті машини повинні знаходитись в справному стані і мати контрольно-вимірювальну апаратуру, інструменти, засоби пожежогасіння, сигналізацію і керуватися машиністами, маючи на це відповідне свідоцтво.

. Всі гірничі виробки проходи, проїзди, робочі місця в темний час доби повинні бути освітлені згідно з діючими нормами.

.3.2 Безпека при гірничотехнічній рекультивації

При відкритих гірничих роботах рекультивації підлягають внутрішні та зовнішні відвали, кар'єрні виїмки і території, порушені гірської діяльністю.

При рекультивації відвалів і кар'єрних виїмок повинні виконуватися наступні вимоги

. Попереднє зняття та складування родючого шару ґрунту у відповідності з вимогами ГОСТ 17.4.3.02, селективна розробка потенційно родючих розкривних порід в обсягах, для створення рекультивованого шару відповідних параметрів;

. Створення відвалів і кар'єрних виїмок з урахуванням їх рекультивації і прискореного повернення відновлених площ для використання в народному господарстві; формування відвалів і кар'єрних виїмок, стійких до зсувів і осипам, захищені від водної та вітрової ерозії, залуження та обробки спеціальними хімічними та іншими матеріалами; забезпечення боротьби з ерозією на відвалах повинно проводитися на основі зональних вимог до протиерозійного організації території відвалів;

. Проведення заходів з організації концентрованого стоку зливових і технічних вод пристрою гідротехнічних споруд;очищення або нешкідливе видалення дренованим з відвалів води, що містить токсичні речовини; забезпечення заходів по регулюванню водного режиму в рекультивованих шарі з порід, що володіють несприятливими водно-фізичними властивостями;

. Створення екрана з екранізованих або нейтралізуючих матеріалів (пісок, гравій, плівка тощо) при наявності на підставі рекультивованого шару токсичних порід;

. Формування відвалів із порід, що піддаються горінню, технологічних схем, що виключає їх самозаймання. Мінімальні поверхні внутрішніх відвалів повинні бути вище прогнозованого рівня ґрунтових вод. Якщо внутрішніх відвалів будуть нижче очікуваного рівня ґрунтових вод, повинні бути передбачені заходи, що виключають заболочування рекультивованої поверхні.

4.3.3 Протипожежні заходи

Кожна гірнича і транспортна машина обладнана заходами пожежогасіння: Вогнегасник пінний типу ОХП-10, та вогнегасником вуглекислим ОУ-2ММ, порошковим типу ОПС-6, а також ящиками з піском.

Для гасіння можливих пожеж від спалахування паливо мастильних матеріалів, електрокабелів, масла в трансформаторі, та інших електричних установках, приймається сухий пісок і вуглекислі вогнегасники ОУ-2ММ ОУ-5ММ.

У випадку загорання гірничої машини машиніст по радіозв’язку сповіщає диспетчеру кар’єру про пожежу та джерело пожежі для виклику пожежної частини і негайно приступати до ліквідації загорання, при цьому дотримуватись правил безпеки. Пожежна безпека в кар’єрі відповідає вимогам ГОСТ 12.1.004 85. «Пожежної безпеки»

.3.4 Аерологія кар’єру

Нормалізація атмосфери в зоні роботи екскаватора і на робочому місці машиніста досягається пило гасіння за допомогою зрошування

Для запобігання пилоутворення на кар’єрних автодорогах приймаються удосконалені покриття, періодичні зрошування і в’яжучими емульсіями знижує ступінь забруднення повітр’я.

Зрошування відбувається за допомогою гідромоніторів змонтованих на автомобільному ході, а також за допомогою пристрою змонтованого на екскаваторі.

Заходи по зниженню загазованості кар’єрного повітр’я від автомобільного ведеться до застосуванню обладнання з викидом СО та інших шкідливих не перевищує ПДК, а також проводиться природна вентиляція.

Необхідність створення системи провітрювання на кар’єрах відсутня, так як ПДК шкідливих викидів не перевищую встановлені норми.

Чаплинський кар'єр має приблизну форму до округлої. При розробці нижніх горизонтів кар’єру і просування фронту робіт до проектного контуру кар’єру можливо збільшення застійних зон і необхідність застосування штучного провітрювання цих зон.

Рециркуляція схема провітрювання виникає при швидкості вітру на поверхні більше 1м/сі на кутах відкосу борта а1>150.

4.4 Економічна частина

4.4.1 Техніко-економічні показники гірничотехнічної рекультивації кар’єру «Чаплинський»

В даному розділі приведений розрахунок витрат на виконання гірничотехнічної рекультивації Чаплинського кар’єру (складування будівельних відходів в ОВП, з урахуванням виконання рекультивації зовнішнього відвалу), а також визначення економічного ефекту від втілення гірничотехнічної рекультивації.

По закінченню доробки Чаплинського кар’єру, планом рекультиваційних робіт даного підприємств передбачена рекультивація зовнішнього відвалу і використання залишеного виробленого простору під водоймище(затоплення). Але використовувати території, як водоймище менш ефективно, чим під сільськогосподарську діяльність,тому що прибуток з 1 га землі, рекультивованою водоймищем дорівнює 400 грн.,відрізняється від сільськогосподарських цілей, що приносить прибуток в 8100грн/га.

Рекультивація буде виконуватися в одну зміну по 8 годи 260 днів, и буде включати в себе нанесення чорноземного шару на зовнішні відвали. Доставка чорнозему буде виконуватися скреперами МАЗ-6014, а планування - бульдозерами KOMATSUWA500.

Запропонований варіант

Запропонований варіант включає в себе рекультивацію зовнішнього відвалу і використання залишеного виробленого простору під розміщення полігону захоронення будівельних відходів. Після заповнення залишеного виробленого простору будівельними відходами заповнена частина буде потребувати рекультивації,тобто нанесення 1-2мшару глини і суглинків та 0,5 - 0,8м чорнозему

Для виконання запропонованих рекультиваційних робіт буде використана така ж техніка, що використовується зараз на підприємстві. При підрахунку економічного ефекту запропонованого варіанту необхідно врахувати, що зникає необхідність оплаті за оренду території під полігони складування відходів, а це приблизно 10000грн/га в рік.

.4.2 Розрахунок фонду основної заробітної плати при виконанні рекультиваційних робіт

У машиністів скреперу МоАЗ-6014, так як і у машиністів бульдозеру KOMATSUWA500. 8-и годинний робочий день по одній зміні 260 днів в році. Також на дільниці присутні гірничий майстер слюсар і начальник дільниці.

Розрахунок фонду заробітної платні робітників за місяць формується на основі посадових окладів з урахуванні преміальних виплат, фонду заробітної платні виконується за формулою:

Зміс = О + Фд, грн., (4.15)

де Фд - місячний фонд додаткової заробітної платні, грн..

Фддитр п, грн.(4.16)

де: Дн.-доплати за роботи в ніч, грн.

Питр - премії ІТР і службовців, Пітр=30-40%,

О - величина місячного посадового оклад, грн.

Дп - доплата іншого, грн.

Загальний місячний заробіток розраховується за формулою:

Зміспз/п+Фд, грн. (4.17)

де: Фпз/п - місячний фонд прямої з/п,грн.

Фпз/пгод+Nм+Nр,грн.; (4.18)

де: Тгод -годинна тарифна ставка, грн. / час

Nм - кількість годин роботи за місяць;

Nр к - кількість робочих днів.

Розрахунок фонду заробітної платні на штат робітників виконуючи рекультивацію по двом варіантам приведено в таблиці 14. З урахуванням того що даний вид робіт виконується єдиним штатом, то фонд прямої заробітної плати в двох варіантів буде однаковим.

.4.3 Розрахунок амортизаційних відрахувань

Розрахунок амортизаційних відрахувань на обладнання, яке використовується на кар’єрі виконується за формулою:

Аотч.гобамор. Тис.грн. (4.19)

де: Аотч.г - балансова вартість обладнення, тис.грн

Намор - річна норма амортизаційних відрахування (7%)

Розрахунок амортизаційних відрахувань на нове обладнання виконується за формулою

ΣАобор. =(Сначтрск.ям) тис. грн. (4.20)

де: Аобор -загальна вартість всього обладнання, тис грн.

Снач - начальна вартість обладнання, тис грн..

Зтр - витрати на транспортування, тис грн. (5.5% від вартості початкової)

Зск.я - складські витрати тис грн. (2.5 від початкової ціни)

Зм - витрати на монтаж обладнання, тис грн. (10% від початкової вартості)

Амортизаційні відрахування на використання обладнання на Чаплинському кар’єрі приведені в таблиці 13

.4.4 Розрахунок витрат на матеріали

Витрати на допоміжні матеріали визначається виходячи з кількості гірничого обладнання, норм витрат і ціну за одиницю. Норми витрат матеріалів і ціна на них приймаємо згідно з даними підприємства[11].

Витрати на і-тий матеріал визначається за формулою.

Сі=Ці*Q*Ці*Nі, грн. (4.21)

де: Ці -ціна і того матеріалу, [8].

Q - об'єм породи, Q= 716 м3

Nі - норма витрати і-тий матеріал [11]

Затрати на допоміжні матеріали за двома варіантами приведена в таблиці 11

.4.5 Відрахування із Фонду заробітної платні на соціальне страхування

Всоц.стр= ΣФЗП 0,37, тис грн. (4.22)

де: Всоц.стр - відрахування на соціальне страхування(складається з відрахувань в пенсійний фонд, страхування на випадок безробіття), тис грн..( Всоц.стр = 37%)

ΣФЗП - сумарний ФЗП на робітників, які обслуговують всі одиниці обладнання, тис грн..

.4.6 Розрахунок загальних витрат на проведення рекультиваційних робіт табл. 4.15.

Собівартість переміщення 1 м3 рекультивації робіт за існуючим і запропонованому варіанту табл. 4.12 розрахований на основі запропонованих вище вказаних витрат на заробітну платню табл. 4.13, амортизація табл. 4.14, матеріалам шляхом суми цих відрахувань підприємства, табл. 4.15. Технічно економічний результату гірничотехнічної рекультивації Чаплинського родовища гранітів. Техніко-економічна ефективність від розробки технології гірничотехнічної рекультивації залишкового виробленого простору на Чаплинському родовищі гранітів табл. 4.16.

Таблиця 4.12

Розрахунок фонду основної заробітної платні

Професія робітників

Розряд

За списком

Оклад тариф. ставки, грн./год.

Число годин роботи в міс.

Місячний фонд прямої з/п

Доплати

Месячний фонд основної з/п. грн.







за роботу вночі

Премії %.

грн

Інше

Фонд доплат


Гірничий майстер


1

13,65

164

2238,6


40

895,44

223,86

1119,3

3357,9

Машиніст бульдозера KOMATSU WA 500


2

11,77

180

4237,2


30

1271,16

423,72

1694,88

5932,1

Машиніст скреперу МоАЗ-6014

6

2

11,77

180

4237,2


30

1271,16

423,72

1694,88

5932,1

Машиніст мехлопати HYNDAI R500.


2

11,77

180

4237,2


30

1271,16

423,72

1694,88

5932,1

Машиніст автосамоскиду


2

11,77

180

4237,2


30

1271,16

423,72

1694,88

5932,1

Начальник рекультиваційної дільниці

5

1

10,66

180

1918,8


30

575,64

191,88

767,52

2686,3

Слюсар

4

3

10,52

164

5175,8


30

1552,752

517,584

2070,336

7246,2

Всього


13



26282,0



8108,472

2628,204

10736,676

37018,7

ФЗПрік = ФЗПміс *12











444224,6

План.ФЗПрік = ФЗП*1.1











488647,1




Таблиця 4.13

Балансова вартість обладнання і амортизаційні відрахування

Найменування обладнання

Кількість

Ціна одиниці тис. грн

Загальна балансова вартість тис. грн

Річна норма амортизації

Сума амортизаційних відрахувань тис. грн

Бульдозер KOMATSUWA 500

1

1000

1000

7

70

СкреперМоАЗ-6014

2

300

600

7

42

Автосамоскид VOLVO HL780-7A

2

600

1200

7

84

Механічна лопата HYUNDAI R500

1

1650

1650

7

116

Всього

6

3550

4450

7

312

Невраховане обладнання (5% від врахованого)



223


16

Сума



4673


327


Таблиця 4.14

Затрати на допоміжні матеріали

Види матеріалу

Одинц. вим.

Об'єм робіт тис. т

Норм расхода на 1000 т

Заплановані витрати грн.

Ціна один грн/кг

Загална вартість грн

Масло індустріальне

кг

3187,2

3,8

12111

16,2

196204

Графітна смазка

кг

3187,2

0,54

1721

12,4

21341

Масло циліндричне

кг

3187,2

3,08

9817

11,51

112989

Масло компресорне

кг

3187,2

1,85

5896

16,62

97997

Матеріал для обтирання

кг

3187,2

1,2

3825

3

11474

ДЗ паливо

кг

3187,2

52

165734

14,4

2386575

Керосін

кг

3187,2

21

66931

15,2

1017354

Автотракторне масло

кг

3187,2

0,98

3123

14,4

44978

Всього






3888912

Інші матеріали 1,5%






58334

Матеріали багаторазового користування 5%






194446

Невраховані матеріали 2,5%






97223

Всього






4238915

Загальний об'єм гірничотехнічної реультивації становить т.(щільність породи 1,5 т/м.куб)

Об'єм запов. (пісок, глина, суглини) м. куб

Об'єм глина для ізоляції бортів карьєру, м. куб.

Об'єм глини для ізоляції поверхні ЗПВ, м. куб.

Загальний об'єм, м. куб



3187020

1777410

291360

745500

2814270




Таблиця 4.15

Техніко-економічний результату гірничотехнічної рекультивації Чаплинського родовища гранітів

№п/п

Найменування

Загальна сума витрат на гірничотехнічну рекультивацію грн

1

Запланований фонд річної з/п,грн

488647,0

2.

Загальна балансова вартість, грн

4673000

3

Сума амортизації від відрахувань тис. грн річна;

327000

4

Витрати на допоміжні матеріали тис грн. в рік

5

Всього

5753479

6.

Собівартість переміщення 1м.куб.грн

2,04

Таблиця 4.16

Техніко-економічна ефективність від розробки технології гірничотехнічної рекультивації залишкового виробленого простору на Чаплинському родовищі гранітів

Вартість 1 га землі відведенний під полігон. грн [14]

Вартість експлуатації відновленої землі 1га/грн [14]

Вартість розміщення 1 м. куб. відходів на полігоні, грн [13]

Об'єм полігону м. куб

Площа відновленої землі, га

Площа збереженої землі під полігон, га


ПРИБУТОК


Всього грн.







Прибуток від збереження 29,8 га землі, які б були виділені під новий полігон, грн.

Прибуток від експлуатації 29,8 га рекультивова-ної землі, грн.

Прибуток за розміщення в кар'єрі 9.1 млн. м. куб, грн.


300

600

3,7

9100000

29,8

29,8

17880

8940

33670000

33696820




ВИСНОВКИ

Аналіз гірничотехнічної характеристики гірничого підприємств показав, що умови Чаплинського кар’єру гранітів України - є сприятливі для застосування розробленої технології гірничотехнічної рекультивації обводненого залишкового виробленого простору кар’єру,

Розрахунок об’єму залишкового виробленого простору кар’єру при дійсних параметрах сучасного кар’єру становить 10,8 млн. м3

Розрахунок необхідного об’єму заповнювача для засипки обводненої частини залишкового виробленого простору за даною методикою розрахунку становить 1,7 млн.м3.

Розрахунок необхідного об’єму глина для створення захисного бар’єру на бортах кар’єру на поверхні засипаного виробленого простору становить 1,1 млн. м3

Виходячи з результатів розрахунку при розробленій технології підготовці залишкового обводненого виробленого простору кар’єру його приймальна спроможність становить 9,1 млн.м3 виробленого захищеного протифільтраційним шаром простору для складування будівельних відходів.

При розробленій технології гірничотехнічній рекультивації та методу розрахунку площі відновлених земель для сільськогосподарського використання становить 29 га рекультивованої відновленої землі.

Техніко-економічний ефект від реалізації розробленої технологічної схеми є позитивним завдяки попередній підготовці обводненої частини залишеного простору кар’єру до засипки загальні затрати на гірничотехнічну рекультивацію при розробленої технології при об’ємі залишкового виробленого просторі Чаплинського кар’єру становить 5753479 грн. А прибуток від використання виробленого простору кар’єру для складування відходів, від відновленої площі земель під сільськогосподарське використання та від збереження території земель, які були виділені під полігони становить близько 33696820 грн.

ВИСНОВОК

. Виконано аналіз площ порушених територій відкритими гірничими роботами в Україні, які становлять близько 600 тис га землі. Динаміка росту порушень земель знизились за останні 5 років в середньому на 11%, а обсяги робіт з рекультивації порушених земель скоротилося на 50%.

. Обґрунтовано та розроблено ефективну технологію гірничотехнічної рекультивації обводненого залишкового виробленого простору кар’єру за рахунок попередньої підготовки його обводненої частини породами розкриву, що дозволило розмістити тверді будівельні відходи у верхній частині виробленого простору.

. Розроблена методика розрахунку параметрів технологічної схеми гірничотехнічної рекультивації обводненого залишкового виробленого простору, яка дозволила встановити залежність необхідного об’єму розкривних порід і будівельних відходів для заповнення залишкового виробленого простору в залежності від параметрів кар’єру.

. Техніко-економічний ефект від впровадження розробленої технології рекультивації досягається за рахунок використання виробленого простору як полігону об’ємом 9,1 млн. м3, додаткової рекультивованої площі землі у розмірі 29,8 га, збереження земель від розташування полігонів становить 33,3 га і складає в умовах Чаплинського кар'єру 27,9 млн.

ЗМІСТ ВИКОРИСТАНИХ ДЖЕРЕЛ

1. Рекультивація земель [Електронний ресурс]

2. Проблема відходів в Україні [ Електронний ресурс]

. Горлов В.Д. Рекультивація земель на кар’єрах. М. Недра,1981. 260с.

. Основные положения проектирования ДБН В.2.4-2-2005. Официальное издание Государственный комитет Украины по строительству и архитектуре Киев. 2005 г.

. Пояснительная записка к плану работ по Чаплинскому гранитному карьеру.

. М.Г Новожилов. В.С. Эскин, Г.Я. Корсунский Теория и практика открытых горизонтальных месторождений. М., «Недра», 1978. 328с

. Гвоздевич О.В. Павлюк М.І. Опис до деклараційного патенту на винахід. Спосіб рекультивації відпрацьованого кар’єру. №700300 7В09В1/00, В09В3/00, Е21F15/08/

Ложников О.В. Обоснование и разработка технологии формирования отвалов при горизонтальных месторождениях [Текст]: дис., к.т.н. - Д, 2012. - 165 с.

. М.И. Барсуков. Охрана земель при открытой разработки месторождения - К. Техника - 1987 -150с.

. А.К. Полищук, А.М. Михайлов, И.И.Заудальский. Техника и технология рекультивации на открытых разработках. М. «Недра» 1997. 214с;

. Завсегдашний В.А. К вопросу обоснования возможности размещения твердых битовых отходов на внутрикарьерного полигона [Текст] В.А. Завсегдашний, I.E. Григорьев, Д.В. Коленкин // Розробка рудных месторождений. - 2004.-№85. -С.131-134.

. Відходи України [Електронний ресурс]

. Вартість 1 га відновленої землі. [Електронний ресурс]

. Фірма утилізація будівельних відходів [Електронний ресурс ]

Похожие работы на - Обґрунтування раціональної технологічної схеми гірничотехнічної рекультивації залишкових вироблених просторів кар’єру з урахуванням екологічних проблем регіону

 

Не нашли материал для своей работы?
Поможем написать уникальную работу
Без плагиата!
Без нейросетей!