Изготовление согласующего редуктора
Содержание
Введение
. Назначение изделия, описание
конструкции, определение программы выпуска
. Выбор типа и метода производства,
расчет темпа выпуска
. Разработка маршрута сборки изделия
. Выбор методов сборки
. Анализ технологичности конструкции
изделия
. Разработка операционной технологии
сборки.
. Разработка конструкций специальных
приспособлений и механизмов сборочного оборудования
Рекомендуемая литература
Введение
В автомобильном и тракторном производстве, в
зависимости от характера технологических процессов, различают три стадии:
заготовительную, механообрабатывающую и сборочную.
Сборка - это завершающий
этап производства, обеспечивающий получение конечной продукции с заданными
техническими качествами.
Сравнивая три стадии производства между собой,
на первый взгляд представляется, что сборка значительно проще. Здесь не
требуется оборудование, реализующее большие усилия и температуры, характерные
для процессов заготовительного производства, большие мощности и широкая
номенклатура типов оборудования и инструментов механообработки.
Сборочные процессы можно реализовать за счет
простых технических средств и, соответственно, большого количества рабочих. При
этом качество выпускаемой продукции и экономические показатели работы
предприятия ухудшаются.
Создание высокоэффективного сборочного
производства особенно остро зависит от технологичности конструкции сборочных
единиц автомобилей. Именно сборка является основным критерием, определяющим
качество конструкторских разработок для условий конкретного производства.
Взяв в качестве темы курсового проекта
разработку технологического процесса сборки узла или механизма, имеется
возможность получить изделие, соответствующее эксплуатационным и
производственным требованиям.
1. Назначение изделия, описание конструкции,
определение программы выпуска
Разработка технологического процесса сборки
начинается с анализа конструкции изделия и определения требуемой программы
выпуска. Охарактеризуйте назначение узла или механизма, технологический процесс
его сборки. Укажите технические параметры и основные требования, предъявляемые
к этой конструкции. Укажите массу изделия, его габаритные размеры, количество
деталей и сборочных единиц. Опишите конструктивные особенности и принцип работы
изделия. Для этой цели поместите в текст п. 1 рисунок сборочного чертежа (см.
пример на рис. 1.). Пользуясь номерами позиций спецификации, указанными на
рисунке, опишите работу сборочной единицы.
Определите потребность в изделиях этого типа с
учетом возможности продажи на международном рынке. Выразите эту потребность в
виде годовой программы выпуска.
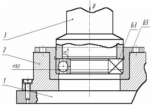
На рис. 1., в качестве примера, приводится
конструкция согласующего редуктора, служащего для «согласования» параметров
двигателя с характеристиками комплексной гидромеханической передачи, а также
для передачи крутящего момента на вал гидрообъемной передачи механизма поворота
и на вал отбора мощности.
Приведем только некоторые данные. Общее
количество деталей и сборочных единиц, входящих в конструкцию согласующего
редуктора, составляет 65 штук. Годовая программа выпуска с учетом необходимого
запаса для производства и для ремонтных работ определена в 50000 шт./год.
Рис. 1. Согласующий редуктор.
. Выбор типа и метода производства, расчет темпа
выпуска
Тип производства (единичное, серийное и
массовое) и метод производства (непоточное и поточное) определяют характер
оборудования и способ организации работ.
Тип производства определяется на основе
коэффициента закрепления операций Кзо, рассчитываемого по формуле (2.1):

(2.1)
где, no
-
общее количество сборочных переходов (применительно к технологическому
процессу, ориентировочно, может быть принято равным количеству деталей и
сборочных единиц, входящих в изделие); Sпр
-
принятое количество рабочих мест (верстаков, стендов, позиций или единиц
сборочного оборудования).
Количество деталей и сборочных единиц no,
можно подсчитать на сборочном чертеже изделия или пользуясь спецификацией.
Количество рабочих мест Sпр,
зависит от нескольких факторов: требуемого темпа выпуска изделий; общего
количества сборочных переходов и времени их выполнения; количества переходов,
выполняемых автоматически; количество переходов, выполняемых одновременно
(концентрация операций). Значения всех этих факторов определяются на разных
этапах проектирования с различной точностью. Здесь, на самом предварительном
этапе проектирования технологического процесса, расчетное количество рабочих
мест Sр можно приближенно
рассчитать по формуле (2.2):
(2.2)
где, Sр
-
расчетное количество рабочих мест, шт.; tср -
среднее время на выполнение одного сборочного перехода, т.е. на установку одной
детали или сборочной единицы, мин./шт.; t -
темп выпуска, мин./шт.
Среднее время на выполнение одного сборочного
перехода, tср, можно
определить одним из следующих способов:
. На основе нормативов. Для этой цели,
применительно к каждому сборочному переходу, составляется перечень необходимых
приемов. Далее, на основе нормативов, определяются времена на их выполнение, tпр.
В результате суммирования рассчитывается время на выполнение каждого перехода и
общее время на сборку изделия.
Разделив это время на число переходов,
определяем искомую величину, tср.
(2.3)
здесь: l
- количество приемов в j-ом
переходе.
. На основе хронометража рабочего места (только
для действующего производства). Для этой цели, с помощью секундомера,
определяется время на сборку изделия. Разделив это время на число переходов,
определяем искомую величину, tср.
. Совсем приближенно, применительно для
автомобильных и тракторных производств, значение tср
можно взять в диапазоне от 0,1 до 0,5 мин./шт., (меньшее значение для простых
по конструкции изделий небольшого размера).
В формуле расчета, Sр,
t
- это темп выпуска, т. е. промежуток времени, через который необходимо
изготавливать изделие для обеспечения заданной программы выпуска. Расчет темпа
выпуска,t,
выполняется по формуле (2.4):
(2.4)
где, Фдо - годовой
действительный фонд времени работы оборудования, при двухсменной работе Фдо »
4000 час./год; N
-
заданная программа выпуска, шт./год.
Принятое количество рабочих мест Sпр,
получается округлением Sр
в большую сторону до целого значения. На более поздних этапах проектирования
технологического процесса сборки изделия величину Кзо можно уточнить.
Ориентировочно тип сборочного производства можно
определить с помощью табл. 1.
Зависимость типа производства от Кзо
Таблица 1.
|
Кзо
|
Тип
производства
|
|
0
< Кзо £ 10
|
Массовое
|
|
10
< Кзо £ 20
|
Крупносерийное
|
|
20
< Кзо £ 30
|
Среднесерийное
|
|
30
< Кзо £ 40
|
Мелкосерийное
|
Рассмотрим задачу выбора типа производства на
примере согласующего редуктора (рис. 1.).
Темп выпуска согласующего редуктора при программе
N = 50000 шт./год (см. п. 1) и двухсменной работе равен:
Принимая tср = 0,25 мин./шт. (согласующий
редуктор - изделие средней сложности, среднего размера),
рассчитываем количество рабочих мест, Sр:
Отсюда, принятое количество рабочих мест Sпр = 4
шт. и коэффициент закрепления операций равен:
.
По табл. 1, для полученного значения Кзо,
определяем тип производства - крупносерийное. Для этого типа
производства при нескольких рабочих местах (здесь их четыре) необходимо
применить поточный метод.
Итак,
тип производства -
крупносерийное;
метод производства -
поточный;
темп выпуска -
4,8 мин./шт.
. Разработка маршрута сборки изделия
Маршрут - это та последовательность, в которой
детали и сборочные единицы более низкого уровня соединяются при сборке изделия.
Маршрут сборки оказывает большое влияние на
компоновку сборочного оборудования, на возможность автоматизации отдельных
переходов, на осуществление необходимого контроля точности соединений и, таким
образом, на эффективность процесса в целом.
Первая деталь или сборочная единица, с которой
начинается процесс сборки, называется базовой. В качестве базовых деталей
обычно принимаются изделия, которые позволяют выполнить относительно большое
количество сборочных соединений без их переустановки.
В качестве таких изделий могут использоваться
корпусные детали, валы, диски и т. д. Однако, в тех случаях, когда явно базовая
деталь в сборочной единице отсутствует, необходимо составить несколько
маршрутов сборки и дальнейшее проектирование вести для каждого варианта.
Выбор оптимального варианта маршрута сборки
является сложной задачей, т.к. правильность ее решения определяется только на
заключительных этапах проектирования, в результате затрат большого труда на
проработку каждого варианта. Число вариантов, взятых для проработки, можно
сократить, если руководствоваться следующими двумя признаками выбора
оптимального маршрута сборки:
·
лучшим
является тот маршрут сборки, который обеспечивает минимальное количество
перебазировок изделия;
·
маршрут
должен обеспечивать удобство установки деталей и возможность контроля качества
выполненных сборочных соединений.
В конструкции согласующего редуктора (рис. 1.)
имеются три корпусные детали 1, 18 и 36, которые удобно использовать в качестве
базовых, разбивая общий процесс сборки на несколько этапов.
При разработке маршрута сборки, а также для
лучшего его представления, удобно пользоваться графической схемой, в которой
дается необходимая информация о деталях и последовательности их установки в
изделии. Деталь в схеме условно изображается в виде прямоугольника, в
произвольном масштабе, в котором указывается ее наименование, номер по чертежу
и количество.
|
Наименование
детали или сборочной единицы.
|
|
Код
по схеме.
|
Количество.
|
Иногда дается более подробная информация,
включающая материал детали, ее массу, размеры и т. д. Взаимосвязь этих
элементов и образуют графическую схему.
Разработка маршрута начинается с анализа
конструкции изделия. Для этой цели вычерчивается схема с эскизами деталей
изделия в последовательности их установки (рис. 2).
Стороны согласующего редуктора, относительно
которых производится установка деталей, обозначены на схеме прописными буквами
русского алфавита: А, Б, В, Г и т. д. Нумерация деталей с каждой стороны
направления сборки начинается с единицы. Так, применительно к рассматриваемой
здесь конструкции согласующего редуктора, со стороны «А» устанавливается 32
штуки деталей и сборочных единиц с номерами А1-А32, со стороны Б -
17 штук, с номерами Б1-Б17, со стороны В - 10 штук и со стороны Г-
шесть.
Пользуясь этой кодировкой, составляется таблица,
в которой указываются направления сторон, номера деталей и сборочных единиц и
наименования сборочных переходов, необходимых при сборке деталей (табл. 2).
В учебном пособии, в табл. 2, приводится только
часть деталей и сборочных единиц согласующего редуктора. Полный перечень,
который необходимо выполнить в дипломном проекте, требует изображения 32
столбцов (наибольшее количество со стороны А по схеме сборки на рис. 2).
В таблице 2 пересечение строк А, Б и т.д. со
столбцами 1, 2 и т. д. дают ячейку, с номером кода соответствующей детали или
сборочной единицы по схеме. В самой ячейке указываются сборочные переходы
(например, а, б), которые надо выполнить для данной детали.
Рис. 2. Схема сборки согласующего редуктора.
Рис. 3. Графическая
схема маршрута сборки согласующего редуктора.
Технологические переходы сборки согласующего
редуктора (фрагмент)
Таблица 2.
|
Направление
сборки
|
Переход
|
Номера
позиций на схеме сборки
|
|
|
1
|
2
|
3
|
4
|
5
|
|
А
|
а
|
Установить
|
Смазать
|
Установить
|
Смазать
|
Установить
|
|
б
|
|
Запрессовать
|
|
Запрессовать
|
|
|
Б
|
а
|
Смазать
|
Установить
|
Установить
|
Завернуть
|
Завернуть
|
|
б
|
Установить
|
|
|
|
|
|
В
|
а
|
Установить
|
Установить
|
Установить
|
Установить
|
Установить
|
|
Г
|
а
|
Смазать
|
|
|
|
|
|
б
|
Запрессовать
|
Запрессовать
|
Запрессовать
|
Установить
|
Установить
|
Далее составляется графическая схема маршрута
сборки, пример которой приводится на рис. 3.
Представленные на рис. 2 схема сборки изделия,
табл. 2 технологических сборочных переходов и графическая схема маршрута сборки
(рис. 3) могут быть оформлены на листе формата А1. В приложениях 1 «а» и 1 «б»
приводятся макеты такого чертежа. Название чертежа в штампе: «Схема и маршрут
сборки изделия (укажите название сборочной единицы)».
4. Выбор методов сборки
Важнейшим параметром качества сборочного
соединения является точность. Точность соединения обеспечивается как
конструктором, который задает требуемые значения размеров сопрягаемых деталей,
так и технологом, осуществляющим необходимый метод сборки.
В зависимости от соотношения требуемой точности
соединения и точности соответствующих параметров деталей применяются различные
методы сборки:
·
полная
взаимозаменяемость;
·
неполная
взаимозаменяемость;
·
групповая
взаимозаменяемость;
·
компенсация
и пригонка.
В общем случае, при выполнении соединений при
сборке конкретного изделия, могут использоваться различные сочетания методов.
Сборка изделий методом полной взаимозаменяемости
осуществляется без предварительного контроля размеров деталей, их подбора или
специальной подготовки. Особенностью метода является то обстоятельство, что
полученное соединение обязательно соответствует заданным параметрам точности и,
следовательно, не требует контроля. С точки зрения организации сборочного
производства метод полной взаимозаменяемости наиболее простой и эффективный,
особенно в условиях автоматизированного производства. Сборка по методу полной
взаимозаменяемости упрощает и эксплуатационные расходы, связанные с ремонтом
изделий. В то же время этот метод требует наиболее высокой точности размеров
деталей.
Таким образом, можно сказать, что рекомендуемая
область применения метода полной взаимозаменяемости -
это соединения, не требующие точности размеров сопрягаемых размеров деталей
выше седьмого квалитета и соединения, точность которых трудно или вообще
невозможно проконтролировать.
Сборка изделий по принципу неполной
взаимозаменяемости, так же, как сборка методом полной взаимозаменяемости,
осуществляется без предварительного контроля размеров деталей, их подбора или
специальной подготовки. Отличие состоит в том, что сборка по принципу неполной
взаимозаменяемости позволяет получить требуемую точность соединения при меньшей
точности размеров деталей. Это достигается за счет того, что при сборке заранее
обусловленная часть продукции не будет соответствовать заданным значениям
точности и, следовательно, необходим контроль всех соединений с целью изъятия
бракованных. Выявленные бракованные изделия разбираются, и их детали без дополнительной
доработки снова направляются на сборку.
Для того чтобы в этих условиях производство
обеспечивало требуемую программу выпуска N,
технологический процесс разрабатывается для расчетной программы выпуска
изделий, Nрасч.
Nрасч = N
+ Nбр
Неполная взаимозаменяемость, снижая затраты на
механическую обработку, усложняет организацию сборочного производства, хотя сам
сборочный процесс осуществляется аналогично методу полной взаимозаменяемости.
Область применения метода неполной взаимозаменяемости: точность соединений в
пределах 5-9 квалитетов; обязательная техническая возможность контроля точности
соединения; относительно большая программа выпуска.
Метод групповой взаимозаменяемости (селективная
сборка) позволяет получить очень высокую точность соединения при небольшой
точности размеров деталей. Кроме этого, отсутствует необходимость в контроле
сборочного соединения. Однако организация сборочного производства в этом случае
значительно усложняется.
При селективной сборке детали изделия обрабатываются
по расширенным, а также по экономически достижимым производственным допускам и
сортируются по их действительным размерам на группы с таким расчетом, чтобы при
соединении деталей, входящих в одну группу, было обеспечено достижение
установленного конструктором допуска замыкающего звена и гарантирована
требуемая точность сборочного соединения.
Достоинство способа групповой сборки - снижение
требований к качеству механической обработки, недостаток - дополнительные
затраты на сортировку деталей, усложнение сборки, увеличение незавершенного
производства и сложность подбора запчастей при ремонте.
Метод компенсации (регулировки) основан на том,
что требуемая точность соединения достигается за счет применения специальных
регулировочных механизмов (например, винт - гайка, пружина
и т. п.), регулировочных прокладок или изменением размера специально
оговоренной для этой цели поверхности детали.
Метод компенсации применяется вне зависимости от
вида производства для механизмов, требующих в процессе эксплуатации
дополнительных регулировок. Расчет диапазона регулирования, количества и
размеров прокладок производится на основе расчета размерных цепей.
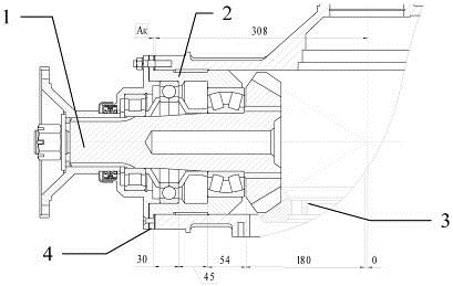
Рассмотрим пример расчета размеров и количества
прокладок для регулировки осевого положения ведущего вала-шестерни редуктора
моста, (рис. 4). На рис. 4 проставлены номинальные осевые размеры, влияющие на
результаты решаемой задачи.
Рис. 4. Фрагмент чертежа редуктора ведущего
моста. 1 - ведущий вал-шестерня, 2 - стакан, 3 - ведомая шестерня, 4 -
регулировочные прокладки.
В данной конструкции редуктора моста ведущий
вал-шестерня 1 находится в стакане 2. Регулировка зацепления с ведомой
шестернею 3 осуществляется с помощью прокладок 4. Требуется определить
количество и размеры прокладок.
Расчет проводим, пользуясь двумя методами:
«максимума -
минимума» и теоретико-вероятностным.
На основе рис. 4 составляем схему размерной
цепи, рис. 5.
Рис. 5. Схема размерной цепи.
Схема размерной цепи представляет собой две
линии, параллельные оси ведущего вала шестерни редуктора. Замыкающее звено, АD,
следует расположить на нижней линии. Индексы А1, А2 и т.д. назначаются при
последовательном обходе звеньев по направлению часовой стрелки, начиная с
замыкающего звена. Последнее звено цепи должно примыкать к замыкающему с правой
стороны. Звенья на схеме, за исключением замыкающего, имеют вид векторов.
Увеличивающие звенья имеют направление вектора слева направо. Уменьшающие
звенья - в противоположную сторону.
Сохраняя терминологию и обозначения, принятые в
РД 50-635-87 (6), составим таблицу идентификаторов для дальнейших расчетов.
Обозначения и размеры звеньев
Таблица 3.
|
Обозначение
звена
|
x
|
Номинальный
размер, мм
|
Допуск,
TAi,
мкм
|
Отклонения,
мм
|
|
|
|
|
Es(Аi)
|
Ei(Аi)
|
Ec(Аi)
|
|
А1
|
1
|
30
|
52
|
0
|
-0,052
|
-0,026
|
|
А2
|
1
|
45
|
62
|
0,031
|
-0,031
|
0
|
|
А3
|
1
|
54
|
50
|
0
|
-0,05
|
-0,025
|
|
А4
|
1
|
180
|
100
|
0,05
|
-0,05
|
0
|
|
А5
= АD
|
1
|
0
|
100
|
0,1
|
0
|
0,05
|
|
А6
|
-1
|
308
|
130
|
0,065
|
-0,065
|
0
|
В таблице 3 номинальные размеры звеньев взяты со
сборочного чертежа редуктора. Точность размеров звеньев, за исключением А3 и АD,
принята равной девятому квалитету. Соответствующие этому квалитету допуски
приводятся в столбце TAi.
Допуск на размер подшипника взят из соответствующего стандарта. Допуск на
размер АD
определяется точностью конических передач по параметру совпадения вершины
делительного конуса шестерни с осью вращения колеса и регламентируется СТ СЭВ
186-75. При расчете была принята шестая степень точности. Таким образом, при
регулировке необходимо обеспечить смещение делительного конуса конической
шестерни в пределах 0-100 мкм.
В таблице 3 приняты следующие обозначения:
Es(Аi)
- верхнее предельное отклонение допуска звена Аi,
(4.1)
Ei(Аi)
- нижнее предельное отклонение допуска звена Аi,
(4.2)
Ec(Аi)
- координата середины поля допуска звена Аi,
На рис. 6 показана схема, позволяющая определить
координату середины поля допуска, Ec(Аi).
Рис. 6. Схема определения координаты середины
поля допуска, Ec(Аi).
Расчет методом «максимума - минимума»
1. Номинальный размер замыкающего звена
(компенсатора):
= 30 + 45 + 54 + 180 + 0 - 308 = 1 мм.
2. Поле компенсации:
= 0,052 + 0,062 + 0,05 + 0,1 + 0,13
- 0,1 = 0,394
мм » 0,4 мм.
. Координата середины поля
компенсации:
= -0,026 + 0 -
0,025 + 0 + 0,05 » 0 мм.
4. Предельные размеры компенсатора:
= 1 + 0 + 0,2 = 1,2 мм,
= 1 + 0 - 0,2 = 0,8 мм.
5. Число прокладок одинаковой толщины:
шт.
6. Толщина прокладки:
мм.
Расчет теоретико-вероятностным методом
1. Поле компенсации.
Полагаем, что погрешности всех размеров цепи
подчиняются закону нормального распределения (l = 1/3), а
границы их рассеяния совпадают с границами полей допусков. При этом у 0,27%
деталей размеры могут выходить за пределы поля допуска (t
= 3). В этом случае уравнение (4.1) можно преобразовать для расчета поля
компенсации в выражение:
0,089 мм
2. Координата середины поля компенсации и
номинальный размер компенсатора аналогичны расчету методом «максимум -
минимум».
3. Предельные размеры компенсатора:
= 1 + 0 + 0,045 = 1,045 мм,
= 1 + 0 - 0,045 = 0,955 мм.
4. Число прокладок одинаковой толщины:
шт.
5. Толщина прокладки:
мм,
= 1,06 / 11 = 0,096 мм.
Теоретико-вероятностный метод позволяет получить
меньшее поле компенсации и, следовательно, меньшее число компенсирующих
прокладок. Однако, учитывая небольшую разницу в количестве прокладок, в данном
случае целесообразно выбрать результат расчета методом «максимума - минимума».
Применение регулировочных прокладок в количестве и с размерами, рассчитанными
этим методом, позволяет не контролировать размер АD
после сборки.
Более точно методы сборки выбираются на основе
технико-экономических расчетов, в которых сравниваются затраты на механическую
обработку деталей и сборку изделий.
Если в курсовом проекте для одного или
нескольких соединений производится выбор метода сборки, то эта часть работы
может найти отражение в пояснительной записке и на чертеже формата А1.
В записке дается обоснование решаемой задачи,
цель расчета и возможные методы сборки, обеспечивающие точность данного
соединения. Далее, приводится схема размерной цепи и несколько (не менее двух)
способов расчета, соответствующих определенным методам сборки. Делается анализ
полученных результатов, и даются рекомендации по применению выбранного метода
сборки.
На листе, в верхнем левом углу, дается чертеж
сборочной единицы или механизма, в состав которого входит рассматриваемое
сборочное соединение. На этом чертеже указываются размеры и требования к
точности исходного звена и номинальные размеры составляющих звеньев. Снизу или
справа, в зависимости от конструкции механизма, дается размерная цепь с
условными обозначениями звеньев. Остальное поле чертежа используется для
представления результатов расчетов размерной цепи различными способами («min
- max»,
вероятностный и т. д.), соответствующих разным методам сборки. Следует указать
наименования способов расчета, формулы и таблицы с результатами.
В случае необходимости в конструкцию изделия
вносятся изменения, улучшающие его собираемость.
5. Анализ технологичности конструкции изделия
Согласно ГОСТ 14.205-83 под технологичностью
следует понимать совокупность свойств конструкции изделия, определяющую ее
приспособленность к достижению оптимальных затрат при производстве,
эксплуатации и ремонте при заданных показателях качества, объеме выпуска и условиях
выполнения работ. Применительно к нашей задаче проектирования процесса сборки,
под технологичностью конструкции понимается приспособленность изделия к
условиям производства. Для различных типов и методов производства требования к
технологичности конструкции разные.
Технологичность конструкции изделия определяется
по двум группам оценок, имеющим качественный и количественный характер.
Качественные оценки технологичности конструкции:
·
наличие
базовой детали (см. п. 3);
·
наличие
надежных установочных поверхностей;
·
удобство
выполнения сборочных соединений и контроля сборочных операций;
·
наличие
в изделии сборочных единиц;
·
возможность
применения простых технических средств механизации и автоматизации сборки;
·
необходимость
перебазировки изделия в процессе сборки.
Качественные оценки технологичности конструкции
изделия очень важны, но в то же время, в значительной степени, субъективны.
Количественно, технологичность конструкции
изделия, применительно к разным условиям производства, можно оценить с помощью
обобщенного коэффициента технологичности Ко.
согласующий редуктор сборка
технологичность
(5.1)
где, Кi
-
значение i-го коэффициента
технологичности, li
-
уровень значимости i-го
коэффициента технологичности.
Значения Кi
и li
для условий трех типов производств даны в табл. 4.
Коэффициенты технологичности сборочной единицы
Таблица 4.
|
Наименование
коэффициента, Кi
|
Обозначение
и расчетные формулы
|
Параметры
формул
|
li
|
|
|
|
Единичное
|
Серийное
|
Массовое
|
|
Коэффициент
числа деталей
|
no - общее
количество деталей и сборочных единиц в изделии.0,250,150,1
|
|
|
|
|
|
Коэффициент
повторяемости
|
Q - число
наименований деталей и сборочных единиц в изделии.0,20,10,05
|
|
|
|
|
|
Коэффициент
механизации
|
nмех -
число деталей, которые можно установить с применением средств
механизации.0,10,30,35
|
|
|
|
|
|
Коэффициент
взаимозаменяемости
|
nвз - число
соединений, выполняемых по методу полной взаимозаменяемости.0,150,20,25
|
|
|
|
|
|
Коэффициент
унификации и стандартизации
|
nу - число
стандартных и унифицированных деталей.0,10,150,2
|
|
|
|
|
|
Коэффициент
числа направлений
|
Vi - число
направлений (сторон) сборочных движений .0,20,10,05
|
|
|
|
|
На основе расчета коэффициента КО делается
количественная оценка технологичности конструкции изделия (табл. 5).
Количественная оценка технологичности
конструкции изделия
Таблица 5.
|
Значение
коэффициента Ко
|
Оценка
конструкции
|
|
от
1 до 0,7
|
Высокотехнологичная
|
|
от
0,69 до 0,2
|
Технологичная
|
|
от
0,19 до 0
|
Нетехнологичная
|
Общая оценка технологичности конструкции изделия
делается с учетом двух групп факторов - качественных и количественных.
В качестве примера оценим технологичность
конструкции согласующего редуктора, приведенного на рис. 1.
Оценка качественных параметров технологичности
·
Наличие
базовой детали и надежных установочных поверхностей.
Базовой деталью согласующего редуктора является
корпус 1, который объединяет все детали и сборочные единицы этого изделия.
Основное количество деталей и сборочных единиц устанавливается со стороны «Б».
В этом случае согласующий редуктор устанавливается в вертикальном положении на
наружный буртик торцевой поверхности, что обеспечивает его надежное и
устойчивое положение. При последующей установке крышки 36 (на рис. 2 -
это деталь с кодовым номером А31) корпус 1 опирается на обработанную торцевую
поверхность, обеспечивая еще более надежное базирование.
Наличие только одной базовой детали и двух
надежных установочных поверхностей облегчают процесс сборки.
·
Удобство
установки деталей и контроля выполнения сборочных операций.
Базирование согласующего редуктора по двум
торцевым поверхностям позволяет вести сборку в направлении «сверху -
вниз». При этом естественная сила тяжести помогает удерживать сопрягаемые
детали на месте в момент их первоначального касания. Большинство деталей и
сборочных единиц редуктора устанавливаются без специального контроля. Требуемое
качество соединения определяется визуально или путем перемещения сопрягаемых
деталей или сборочных единиц, вручную, относительно друг друга. Все эти факторы
благоприятны с точки зрения организации процесса сборки согласующего редуктора.
·
Наличие
сборочных единиц.
В конструкции согласующего редуктора имеется
несколько сборочных единиц. Это дает возможность разделить процесс сборки на
несколько этапов и подавать на общую сборку согласующего редуктора меньшее
число комплектующих изделий, что упрощает процесс сборки. В то же время это
условие дает возможность повысить качество выполнения сборочных соединений.
·
Возможность
применения простых технических средств механизации и автоматизации сборки.
При сборке согласующего редуктора необходимо
выполнить несколько резьбовых и прессовых соединений. Для этой цели можно
использовать стандартные «гайковерты» и прессы.
·
Необходимость
перебазировки изделия в процессе сборки.
В процессе сборки согласующего редуктора надо
выполнить только одну перебазировку.
Проведенный анализ качественных параметров
технологичности согласующего редуктора применительно к установленным типу и
методу производства определяет его конструкцию как достаточно технологичную.
Количественные параметры технологичности
конструкции согласующего редуктора
Расчет коэффициентов технологичности конструкции
согласующего редуктора, выполненный по формулам табл. 4, приводится в табл. 6.
Коэффициенты технологичности конструкции согласующего
редуктора
Таблица 6.
|
Наименование
коэффициента, Кi
|
Параметры
формул табл. 2
|
Значение,
Кi
|
li
|
li Кi
|
|
Коэффициент
числа деталей
|
no = 65
|
0,68
|
0,15
|
0,1
|
|
Коэффициент
повторяемости
|
Q
= 17
|
0,74
|
0,1
|
0,07
|
|
Коэффициент
механизации
|
nмех = 23
|
0,35
|
0,3
|
0,1
|
nвз = 61
|
0,94
|
0,2
|
0,19
|
|
Коэффициент
унификации и стандартизации
|
nу = 38
|
0,58
|
0,15
|
0,08
|
|
Коэффициент
числа направлений
|
Vi
= 4
|
0,94
|
0,1
|
0,09
|
КО = 0,63
По табл. 5, для полученного значения КО = 0,63,
и с учетом выше приведенной качественной оценки, делаем заключение, что
конструкция согласующего редуктора технологична.
6. Разработка операционной технологии сборки
На этом этапе проектирования технологического
процесса производится распределение всего объема работ по сборке изделия между
отдельными позициями оборудования или рабочими местами (стендами). Это дает
возможность для многопозиционного оборудования определить общее количество
позиций с их дифференциацией на автоматические и ручные. Для однопозиционного оборудования
определяется количество стендов.
Исходными данными для разработки операционной
технологии сборки являются: темп выпуска изделий, маршрут сборки, таблица
сборочных переходов, уровень автоматизации процесса, выбранный тип сборочного
оборудования и нормы времени на выполнение всех переходов сборки.
Как было показано выше, технологический процесс
сборки можно представить в виде совокупности последовательно сопрягаемых
деталей. Установка одной детали или сборочной единицы в процессе сборки изделия
называется переходом. Время выполнения одного перехода складывается из двух
частей: to и tв,
to -
время на непосредственное сопряжение деталей (например, запрессовка,
завертывание, установка и т. д.). tв
- время на вспомогательные действия (на установку и закрепление базовой детали
или сборочной единицы, на подачу и ориентацию сопрягаемой детали или сборочной
единицы в зону сборки, на съем собранного изделия и т. д.).
Таким образом, время выполнения одного перехода tпер
можно рассчитать по формуле:
(6.1)
где, кроме уже принятых в тексте обозначений, l
-
количество вспомогательных действий (движений, приемов) при выполнении
перехода.
Для расчета tпер.,
для каждой устанавливаемой детали необходимо составить перечень всех действий,
определить какими конкретно средствами (техническими или вручную, см. табл. 8)
они будут выполняться и рассчитать время выполнения каждого действия. В учебном
процессе такой расчет можно сделать, используя метод моделирования.
Для этой цели составьте перечень всех действий,
которые необходимо выполнить при выполнении конкретного сборочного перехода.
Например, взять из тары деталь i,
поднести к базовому изделию, выполнить необходимую ориентацию, совместить
посадочные фаски, запрессовать и т. д.
Далее, используя вместо детали i
условное изделие (книгу, ручку и т. п.), засеките время и выполните все
перечисленные действия в режимах, которые на Ваш взгляд являются наиболее
целесообразными. Суммарное время выполнения всех действий используйте как время
i-го перехода.
Определив время каждого перехода, можно перейти к разработке операционной
технологии сборки. При этом надо выполнить следующие условия.
·
На
одной позиции или стенде можно объединить несколько последовательных переходов,
при выполнении которых применяется ручной труд.
·
Количество
объединяемых переходов k
определяется соотношением:
(6.2)
Меньшее значение (0,7) для автоматизированного
оборудования, большее до 0,85 - для стендовой сборки.
·
Недопустимо
на одной позиции совмещать выполнение ручных и автоматических переходов.
·
Не
рекомендуется на одной позиции объединять выполнение автоматических переходов с
разными методами сборки.
·
Возможно
совмещение одновременно выполняемых, нескольких однотипных автоматических
переходов. Например, одновременная запрессовка нескольких заглушек,
одновременное завертывание нескольких гаек и т. д.
Рассмотрим решение задач на конкретном примере,
рис. 7.
Рис. 7. Пример расчета количества позиций
(стендов) сборочного оборудования.
На рис. 7 приводится маршрут сборки условного
изделия, включающего m
переходов. Сверху, над номером перехода, указан способ выполнения: р -
ручной, а - автоматический. 4ый и 5ый переходы требуют
разных методов сборки, например, запрессовки и завертывания. Внизу, под
номерами переходов, приводятся числовые значения времени их выполнения.
Оборудование - автоматизированная линия сборки со спутниками.
Темп выпуска изделий t = 1 мин./шт.
Так как сборка осуществляется на одной единице
оборудования, следовательно, имеем одну технологическую операцию с номером 10.
(Номера операций принимаются кратными 10, т. е. 10, 20 и т. д.).
Проведем расчет количества позиций сборочного
оборудования для выполнения первых пяти переходов.
Первые три перехода выполняются с применением
ручных действий и, следовательно, могут выполняться на одной позиции. Проводим
проверку на соответствие требуемой величине t.
(6.3)
Таким образом, на первой позиции будут
выполняться три перехода. Вторая и третья позиции автоматические.
Определим время работы позиции. При укрупненном
проектировании это время равно:
(6.4)
В нашем примере:
;
;
Результаты этой работы оформляются в
виде табл. 7 указанной формы.
Операционный технологический процесс сборки
изделия (дается наименование сборочной единицы)
Таблица 7.
|
№
операции
|
№
позиции
|
№
перехода
|
Наименование
перехода
|
tпер. мин./шт.
|
tпоз. мин./шт.
|
|
10
|
1
|
1
|
Установить
деталь (указывается наименование детали и код по схеме сборки) в
приспособление - спутник,
закрепить
|
0,12
|
0,67
|
|
|
2
|
|
0,3
|
|
|
|
3
|
|
0,14
|
|
|
2
|
4
|
|
0,11
|
0,13
|
|
3
|
5
|
|
0,27
|
0,32
|
|
|
|
|
|
|
|
|
m
|
|
0,38
|
|
Распределив общий объем сборочных работ между
отдельными позициями или стендами сборочного оборудования, производится расчет
количества рабочих. Как правило, количество производственных рабочих для одной
рабочей смены принимается равным количеству позиций или стендов с ручными
способами выполнения работ. Количество вспомогательных рабочих (наладчиков)
принимается из соотношения один наладчик на шесть -
восемь автоматических позиций.
При проектировании технологических процессов
изготовления изделий основным параметром, по которому производится расчет
производительности работы оборудования, его количество и коэффициент загрузки,
является штучное время tшт.
Для многопозиционного оборудования расчет
штучного времени производится по наиболее длительной позиции по формуле:
. (6.5)
Для однопозиционного сборочного оборудования
штучное время можно рассчитать по формуле:
. (6.6)
Производительность работы оборудования, Q
определяется из выражения:
. (6.7)
Коэффициент загрузки оборудования по формуле:
. (6.8)
В случаях, когда штучное время превышает темп
выпуска, производится расчет количества параллельно работающего оборудования. В
этом случае определяется расчетное количество единиц оборудования Sрасч.
и округляется до целого числа в большую сторону. Полученное значение
характеризует принятое количество единиц оборудования, Sпр..
(6.9)
Фрагменты операционной технологии сборки изделия
могут быть представлены на листе формата А1 в виде эскизов наладок на
выполнение отдельных сборочных переходов.
В мелкосерийных производствах применение
многопозиционного оборудования нецелесообразно из-за низкой его загрузки и
относительно высокой стоимости. В этих условиях находят применение специализированные
стенды, на которых с помощью простейших технических средств осуществляется
сборка изделий определенного типа. Специализация стендов достигается тем, что
каждая деталь или сборочная единица собираемого изделия помещается в конкретной
таре, на рабочей поверхности стенда размещаются специализированные установочные
приспособления, стенд снабжается комплектом необходимого инструмента и т. д.
Применение сборочных стендов повышает качество
изделий и увеличивает производительность работы рабочего.
Пример сборочного стенда приводится на рис. 8.
Рис. 8. Стенд для сборки. 1 - стол, 2 -
специализированное приспособление, 3 - стеллаж, 4 - пресс.
В графической части курсового проекта можно дать
компоновку применяемого сборочного оборудования.
Наладка - это рисунок,
дающий наглядное представление о способе выполнения сборочного перехода. На
эскизе наладки тонкими условными линиями показывается базовая деталь или
сборочная единица в положении, соответствующем выполняемому сборочному
переходу. Приспособление показывается линиями нормальной обводки. (Допускается
показывать только часть установочного приспособления.)
Устанавливаемая на данном переходе деталь
изображается в конечном положении линиями нормальной обводки. Указываются
размеры посадочных поверхностей и размеры, контролирующие правильность
выполненного соединения.
Приспособления и инструменты, применяемые в
данном переходе сборки, изображаются линиями нормальной обводки. Пример
выполнения наладки приводится на рис. 9.
Операция 10. Позиция 7. Переход 23.
Запрессовать подшипник Б3 в стакан Б5.
Приспособления и инструменты:
- плита спутника; 2 -
установочное приспособление; 3 - оправка пресса.
tпер.= 0,17 мин/шт.;
tпоз.= 0,2 мин/шт.; tшт.=
1,03 мин/шт.
Рис. 9. Эскиз наладки прессового сборочного
соединения.
В графической части курсового проекта этот
раздел изображается в виде нескольких наладок (от двух до шести),
характеризующих использование разных методов сборки изделия: установка,
завертывание, запрессовка и т. д. Название листа в штампе: «Наладки на сборку
изделия (указывается название сборочной единицы)».
Сам технологический процесс более подробно, чем
в табл. 7, оформляется в технологических картах в пояснительной записке к
курсовому проекту по ГОСТ 3.1118-82 (7).
. Разработка конструкций специальных
приспособлений и механизмов сборочного оборудования
Одним из листов технологической части проекта
может быть сборочный чертеж специального приспособления, или устройства для
выполнения сборочного перехода, или средств механизации, используемых в
компоновке оборудования.
Такими устройствами могут быть: специальные
приспособления для установки базовой детали или сборочной единицы,
специализированные прессы или многошпиндельные гайковерты, приспособления для
контроля сборочного соединения, специализированные средства механизации и
автоматизации и т. д.
В этом случае, в пояснительной записке дается
обоснование необходимости применения данного устройства, описание его
конструкции со ссылками на позиции спецификации и необходимые расчеты.
Например, для специализированного пресса в качестве исходных данных
рассчитываются требуемое усилие и длина запрессовки. Далее, в зависимости от
принятой конструкции, рассчитываются соотношения плеч рычагов, ход штока и
диаметр поршня пневмо- или гидроцилиндра и т. д.
Прессовым называется неподвижное, неразъемное
сборочное соединение, прочность которого определяется упругими и частично
пластическими деформациями в зоне контакта.
Рассмотрим особенности такого рода соединения на
конкретном примере, показанном на рис. 10. Здесь, втулка 1 запрессована в
кольцо 2.
Рис. 10. Пример прессового соединения.
Запрессовка происходит по
поверхности d1, при
необходимом условии
. Где,
- наружный диаметр детали 1,
- внутренний диаметр детали 2.
Наибольшее усилие запрессовки, Pзапр,
развиваемое в конце операции, определяется по формуле:
запр = plp
d1f
(7.1)
В этой формуле: p
-
удельное давление на поверхности контакта, кг/мм2; l
-
длина контакта, мм; d1 -
диаметр поверхности контакта, мм; f
-
коэффициент трения.
Произведение lpd1
определяет площадь контакта, в мм2. Умножив площадь на величину удельного
давления p, получаем
нормальное давление N. Умножив
величину нормального давления на коэффициент трения f,
переходим к классической схеме механики, в которой Pзапр
= Nf.
Удельное давление, возникающее на поверхности
контакта, рассчитывается с помощью выражения:
(7.2)
В котором: D - натяг, величина которого
равна:
,
и
- шероховатость сопрягаемых
поверхностей; E1, 2 -
модули упругости материалов деталей 1 и 2, кг/мм2; 1, 2 -
коэффициенты Пуассона, материалов соответствующих деталей;
- соотношение диаметров
наружной детали;
- соотношение диаметров
внутренней детали.
Значения модулей упругости, коэффициентов
Пуассона и трения для некоторых машиностроительных материалов приводятся в
табл. 8 и 9.
Модули упругости и коэффициенты Пуассона
Таблица 8.
|
Материал
|
E·104,
кг/мм2
|
|
|
Сталь
|
1,9
- 2,2
|
0,25
- 0,35
|
|
Чугун
|
0,8
- 1,2
|
0,18
- 0,25
|
|
Алюминий
|
0,65
- 0,8
|
0,33
|
|
Медные
сплавы
|
0,9
- 1,2
|
0,32
0,36
|
Коэффициенты трения
Таблица 9.
|
Материалы
|
Коэффиц.
трения, f
|
|
Сталь
- сталь
|
0,06
- 0,22
|
|
Сталь
- чугун
|
0,06
- 0,14
|
|
Сталь
- алюминий
|
0,02
- 0,08
|
Рассмотрим расчет пресса на конкретном примере.
Пресс для выполнения операции запрессовки
подшипника в корпус амортизатора (рис. 11) дает возможность облегчить условия
труда сборщика, увеличить производительность труда и улучшить качество
сборочного соединения.
Применяемый пресс рычажного типа состоит из
станины 1, пневмоцилиндра 6, шарнирно соединенного со станиной и с коромыслом
8. Работа пневмоцилиндра осуществляется через кран управления 5 от
пневмосистемы цеха.
Шток 7 пневмоцилиндра 6 соединен через систему
рычагов 8 с рабочим штоком 3, при помощи которого происходит запрессовка
деталей.
Работает пресс следующим образом. Рабочий
устанавливает в приспособление 2 корпус амортизатора, устанавливает подшипник в
исходное положение по фаскам сопрягаемых поверхностей, одевает оправку 4 на
шток 3 и поворачивает кран 5. Воздух из пневмосистемы цеха попадает в нижнюю
полость (под поршень) цилиндра. Под давлением воздуха поршень поднимается
вверх, и, действуя через рычаг 8, опускает вниз шток 3, выполняя запрессовку
подшипника. После того как произойдет запрессовка подшипника, рабочий
поворачивает ручку крана 5 в другую сторону. В этом случае, клапан в кране
управления соединяет верхнюю полость пневмоцилиндра с пневмосистемой цеха,
одновременно соединяя с атмосферой нижнюю полость цилиндра. Поршень
перемещается вниз, поднимая шток 3.
Рис. 11. Пневматический рычажный пресс.
Расчет усилий, необходимых для запрессовки
подшипника на шестерню, и определение диаметра поршня пневмоцилиндра
производятся в следующей последовательности.
1. Определим удельное давление при
натяге в пределах упругих деформаций. Исходя из конструктивных параметров
соединения, имеем: D = 0,03 мм,
натяг в соединении; d1 = 60 мм - диаметр проушины; Е1 = Е2 = 2,1
105 Н/мм2
(2,1
104 кг/мм2)
- модуль продольной упругости; коэффициент Пуассона. В результате расчета имеем
удельное давление p = 11,54 Н/мм2 (1,15 кг/мм2).
. Определим усилие запрессовки.
Дополнительные данные: коэффициент трения f = 0,18; глубина запрессовки (высота
подшипника минус размеры фасок) l = 22 мм. Получаем: Pзапр = 1,15
22
3,14
60
0,1 = 477
кг (4770 Н).
. Необходимое усилие на рабочем штоке
3 равно: Р = Pзапр Кзап. =
4770
(1,5 ¸ 2) = 7155
Н. Принимаем Р = 7200 Н.
. Определим усилие на штоке
пневмоцилиндра. Длина коромысла рычага: 540 мм; левое плечо l1 = 340 мм; правое
плечо l2 = 200 мм. Передаточное число i = l1 / l2 = 340/200
= 1,7 Усилие на штоке пневмоцилиндра равно: Pцил. = P/i = 7200/1,7
= 4235 Н.
. Определим диаметр поршня
пневмоцилиндра при условии давления воздуха в пневмосети цеха, р0 = 40 Н/см2.
,
принимаем диаметр пневмоцилиндра d =
120 мм.
. Определим ход поршня. Минимальный
ход поршня Lпорш = l
(l1 / l2) =
22
1,7 = 37,4
мм. Выбираем пневмоцилиндр с поршнем диаметром 120 мм и диапазоном
регулируемого хода от 30 до 50 мм.
Расчет усилия затяжки и выбор
«резьбозавинчивающего устройства»
Резьбовые соединения являются
наиболее распространенными. Например, в двигателе имеется несколько тысяч
резьбовых деталей. К резьбовым парам относятся сборочные элементы, имеющие
резьбовые участки для их соединения между собой. В резьбовом сочленении по
среднему диаметру резьбы может быть создан радиальный зазор либо натяг.
Прикладываемый к гайке Мкр и Ρзат в болте
(шпильке) связаны между собой следующей зависимостью:
(7.3)
где D
- диаметр опорной поверхности гайки; do
- диаметр отверстия под болт; dcp
- средний диаметр резьбы; S
- шаг резьбы; f - коэффициент
трения на опорной поверхности гайки; f1
- приведенный коэффициент трения в резьбе.
Угол поворота гайки аг после контакта с деталью
и соответствующее ему Рзат связаны между собой следующей формулой:
(7.4)
где Lб.р.,
Lд. - соответственно
нагружаемая (рабочая) длина болта и толщина стягиваемых фланцев; Еб., Lд
- соответственно модули упругости материала болта и стягиваемых деталей; Fб
- площадь сечения болта; Fд
- площадь конуса давления, создаваемого в стягиваемых фланцах.
Fб = πdб2/4,
где dб - диаметр болта.
Резьбозавинчивающий инструмент
Гайковерты могут быть электрическими и
пневматическими. В связи с тем, что частота вращения ротора электродвигателя
или воздушной турбины составляет несколько тысяч оборотов в минуту, между ними
и рабочей головкой помещают редукторы (иногда планетарные), которые понижают
обороты рабочей головки ключа до нескольких сотен оборотов в минуту. Предельные
устройства, отсоединяющие головку ключа от ротора привода при достижении
заданного Mкр,
выполняют
в виде муфт (кулачковых, ударных и др.).
Рис. 12. Пневматический гайковерт.
На рис. 12 в качестве примера показано
устройство пневматического гайковерта пистолетного типа. При нажатии на
пусковое устройство 7 сжатый воздух из магистрали через гибкий шланг и отверстия
рукоятки подается на лопатки ротора воздушной турбины 5 и приводит его во
вращение. Дальше вращение от ротора через зубчатое колесо 4 передается на
планетарный редуктор 3, от вала редуктора S
- на ударную муфту 2 (муфта и вал 8 соединяются при помощи двух шариков,
расположенных в канавках вала, они на рисунке не показаны), от муфты через
кулачки, имеющиеся на торце муфты и шпинделя 10, - на шпиндель, а от него на
сменную рабочую головку 1. Муфта может перемещаться вдоль оси. Муфта и пружина
9 образуют предельный механизм, который срабатывает при достижении
определенного Мкр. При этом шпиндель выходит из зацепления с муфтой в связи со
сжатием пружины и осевым перемещением муфты. Рабочий механизм пневматического
гайковерта расположен в корпусе 11, закрытом крышкой 6.
Шпильковерты служат для ввинчивания шпилек с
натягом в резьбовые отверстия деталей. Основными трудностями при создании
шпильковертов являются обеспечение их надежного закрепления на шпильке перед
сборкой и проведение легкого и быстрого снятия с поставленных шпилек. Так как
шпилька представляет собой круглую цилиндрическую деталь, имеющую резьбу с двух
ее концов (со стороны детали - тугую, а со стороны гайки - метрическую) либо по
всей длине, в качестве элемента для соединения с инструментом служит
метрическая резьба.
Рис. 13. Губочная головка шпильковерта. Рис.
14. Принципиальная схема электрического шпильковерта.
На рис. 13 показан пример губочной головки
шпильковерта с закреплением и откреплением шпильки осевой силой, создаваемой
сборщиком. Губки 7 для крепления шпилек соединяют с подвижной кареткой 4 при
помощи осей 5. При ввинчивании шпильки в резьбу губок ее торец упирается во
вкладыш 1, а после приложения на нее осевой силы происходит перемещение губок
внутрь корпуса 2 головки. В связи с тем, что губки и корпус имеют между собой
коническое сопряжение, это приводит при перемещении губок к их повороту
относительно осей и созданию натяга по резьбе. Одновременно с креплением
шпильки к головке происходит зацепление подвижной каретки с хвостовиком головки
при помощи торцовых шлиц. Хвостовик соединяется с механизированным приводом и
приводит во вращение губки и шпильку. После ввинчивания шпильки при помощи
осевой силы, направленной от шпильки, происходит расцепление деталей и
последующее выталкивание каретки вниз пружиной 3 и раздвигание губок пружиной
6. Освобождение шпильки от Губок позволяет ее свободно снять.
Головки механизированных шпильковертов,
снимаемых со шпилек свинчиванием, требуют реверсивных приводов. В головках
механизированных шпильковертов (и в некоторых ручных) располагают предельные
устройства, которые производят их отсоединение от привода и иногда полное
освобождение шпильки от натяга и от сопряжения с головкой. На рис. 14 показана
принципиальная схема электрического шпильковерта. Вращение от электродвигателя
1 передается через шпиндель 4 на рабочую головку 5. Для уменьшения частоты
вращения шпинделя служит редуктор 2. В трансмиссию введены две кулачковые муфты
3 и 4 для создания реверсивного вращения головки. При ввинчивании шпильки
прикладывается осевая сила, направленная оправа налево, в результате чего
включается муфта 3, приводящая к вращению головки. Когда шпилька ввернута до
конца, происходит отключение головки от привода вследствие рассоединения муфты
3 из-за наличия на кулачках скосов и под действием определенного Мкр.
Последующее
оттягивание шпильки «на себя» приведет к включению муфты 4, и головка с
повышенной скоростью начнет свинчиваться со шпильки или к размыканию губок и
свободному снятию шпильковерта со шпильки.
Для удаления шпилек могут применяться
специальные ключи. Так как удаляемые шпильки повторно в резьбовое отверстие не
ставят (их бракуют), для вывинчивания шпилек используют эксцентриковые и
роликовые ключи, осуществляющие захват за ее ненарезанную часть.
Пример расчета.
Вид резьбового соединения: затяжка гайки.
Исходные данные:
Момент затяжки, который должен быть обеспечен
при сборке:
Максимальный M3
= 4,9 Нм,
Минимальный M3
= 3,43 Нм.
Резьба: M6.
Средний диаметр резьбы:
d2 = 0,9
6 = 5,4 мм.
Коэффициент трения в резьбе fтр = 0,15.
Коэффициент трения на опорной
поверхности болта fT = 0,2.
Внешние воздействующие на резьбовое
соединение силы P = 0.
Внешний диаметр опорной кольцевой
поверхности D = 10 мм.
Внутренний диаметр опорной кольцевой
поверхности d0 = 7 мм.
Рассчитать усилие затяжки.
1. Приведенный диаметр сил трения на опорной
поверхности болта:
мм.
. Наибольшая сила затяжки:
.
. Наименьшая сила затяжки:
.
. Проверка условия прочности:
< σ0F0.
где σ0
= [σ] = 750 мПa
- допускаемое напряжение при растяжении;
F0 - поперечное
сечение стержня.
σ0F0 =
Условие прочности выполнено.
. Проверяем время завертывания резьбового
соединения:
.
. L - величина перемещения завертываемого
элемента [мм],
S - шаг резьбы
[мм], S = 1,5 мм,
n
-
частота вращения шпинделя, с-1; n
= 2,92 с-1.
7. Расход воздуха приводов гайковерта:
Vk = 0,02
2 = 0,04
м3/с,
V - расход
воздуха [m3/c];
V = 0,02 m3/c,
k - число
шпинделей; k = 2.
По найденным параметрам подбираем пневматический
гайковерт для выполнения нашей операции.
Рекомендуемая литература
1. Гусев
А.А., Павлов В.В., Андреев А.Г. Под ред. Соломенцева Ю.М. «Технология сборки в
машиностроении». Энциклопедия в 40 тт. Раздел III Технология
производства машин. Т III-5. - М., «Машиностроение» 2011.
. Дащенко
А.И. и др. «Технология автомобиле- и тракторостроения» Учебник для студентов
вузов. - М., Машиностроение, 2005.
. Жолобов
А.А., Лукашенко В.А., Сазонов И.С. «Проектирование технологических процессов
сборки машин». Учебник для студентов вузов. 2005.
. Ламин
И.И. Предпроектный расчет и оптимизация параметров сборочных
производственно-технологических комплексов автомобильного производства. Учебное
пособие. - М., МГТУ «МАМИ», 2007 г.
. Оборудование
сборочного производства: методические указания / В.М.Аббясов, И.В.Бухтеева,
П.Е.Елхов - М.: МГТУ «МАМИ», 2010. - 46с.
. РД
50-635-87; 8-86 Цепи размерные. Основные положения. Термины, обозначения и
определения. Расчет плоских цепей.
. ГОСТ
3.1118 - 82. ЕСТД Формы и правила оформления маршрутных карт.