Разработка планировочного решения четырехкомнатной квартиры
БПОУ ОО СПО
Сибирский
профессиональный колледж
Специальность
072501 «Дизайн» (по отраслям)
Курсовой
проект
по МДК 01.01
«Дизайн-проектирование»
Тема:
Разработка
планировочного решения четырехкомнатной квартиры
Выполнила
студентка группы Д-422 4 курса
Колпащикова
Анастасия Романовна
Руководитель
курсового проекта
Сашкина
Ольга Владиславовна
Омск - 2014
г.
СОДЕРЖАНИЕ
ВВЕДЕНИЕ
.
ПРЕДПРОЕКТНЫЙ АНАЛИЗ
.1
Анализ объекта проектирования
.2
Анализ предпочтений заказчика
.3
Возможности и преимущества перепланировки
.4
Современные тенденции интерьера
.5
Аналоги
.5.1
Аналоги вариантов перепланировки
.5.2
Аналоги вариантов стилевого решения
.
РАЗРАБОТКА КОНЦЕПТУАЛЬНОГО ПРОЕКТА
.1
Варианты планировочного решения
.2
Выбор стилевого направления
.
ЭКОНОМИЧЕСКОЕ РЕШЕНИЕ
ЗАКЛЮЧЕНИЕ
ЛИТЕРАТУРА
ПРИЛОЖЕНИЯ
ВВЕДЕНИЕ
Большая часть жизни современного человека
проходит в разнообразных помещениях, будь то общественное помещение, жилое,
производственное или же торговое. В любом случае окружающему интерьеру необходимо
уделять особое внимание.
Интерьер жилища это именно то место, где человек
хочет забыться, спрятаться от насущных проблем, или же окунуться в свой
собственный мир, интерьер, отвечающий всем требованиям и пожеланиям, крикам и
шёпоту собственной души., он как отображение душевного состояния, выражение
индивидуальности и раскрытие своего «Я», поэтому интерьер должен непременно
соответствовать человеку, живущего в нём, иначе, жить в неподходящем интерьере,
это как жить в несогласии с собой, со своим «Я», чего допускать никак нельзя.
Актуальность заявленной темы проекта обусловлена
реальным заказом.
Цель курсового проекта - разработка
планировочного решения четырехкомнатной квартиры для семейной пары с двумя
детьми.
Для достижения цели необходимо реализовать
следующие задачи:
Проведение предпроектного исследования, в
которое входит: анализ объекта проектирования, анализ предпочтений заказчика,
анализ аналогов
Разработка вариантов планировочного решения
Выполнение клаузуры
Выполнение проектной документации
Расчёт стоимости затрат на материалы
1. ПРЕДПРОЕКТНОЕ ИССЛЕДОВАНИЕ
.1 Анализ объекта проектирования
Объектом проектирования, который необходимо
разработать, является частный интерьер, расположенный по адресу ул.
Масленникова 9а, кв. 17 и 18, в которой проживают 4 человека - это семейная
пара с двумя детьми. Данный объект является двумя соседними квартирами, которые
некогда объединили хозяева, сделав проход в несущей стене, которая их
разделяла. Теперь, заказчики хотят создать целостный интерьер для своего дома и
заполнить его уютом.
Вход в помещение осуществляется через дверь
квартиры №17. Общая площадь квартиры занимает 75,2 кв.м. Помещение хорошо
освещаемое, теплое, в квартире 5 пластиковых окон, 3 из которых располагаются
на востоке, а 2 на западе. Каждое утро лучи солнца заливают спальные комнаты
теплом и светом, а вечерами лучи заката освещают гостиную комнату и кухню, где
вся семья собирается за ужином, получается, что квартира проживает каждодневный
цикл со своими хозяевами. Внутри квартиры несущая стена (в которой и был
проделан проход), отделяющая гостиную/обеденную зоны от спальных.
Смежные комнаты спален это естественный минус
помещения, что является нарушением личного пространства каждого из жильцов,
ведь чтобы попасть в санузел или гладильную комнату нужно пройти через спальню
родителей и детскую. Кстати, в квартире два разделенных санузла: один, как
упоминалось выше находится после прохождения спален и детской, другой,
находится практически у входа. Потолки невысокие- 2,5 м (одной из задач будет
визуальное поднятие потолков).
Существующий интерьер никак не отнести ни к
одному из существующих стилей, типичная «хрущевка» с соответствующим тому
времени интерьером: не закрытый деревянный балкон, бежево-коричневые обои во
всем помещении, пол ДВП с ковровым покрытием, белая потолочная плитка, белая
настенная плитка в санузле, старая сантехника. Интерьер, не объединенный ни
идеей, ни стилистикой, ни цветовой гаммой. (Приложение А)
Помещение требует капитального ремонта, это и
перепланировка с решением зонирования, и заполнение функционирующих зон, а
также необходима концептуальная проработка не только стилевого решения, а
вплоть до внедрения декоративных элементов.
Но наша цель, на данном этапе, вывести заказчика
на гармоничное планировочное решение.
1.2 Анализ предпочтений заказчика
Проведя беседу с хозяйкой апартаментов, были
выявлены следующие предпочтения и предположения по перепланировке квартиры и
стилистических направлений: входная-гостиная зона должна освободиться от
санузла и соответствующих перегородок, благодаря чему появится возможность
увеличения входной и кухонной зон, что, к тому же позволит преобразовать
кухонную зону в кухню-студию, такое решение было принято в связи с немаленьким
количеством проживающих, которым не придется больше ютиться на маленькой
кухонке. Гостиная зона будет предполагать не только зону отдыха, но и рабочую.
В зоне отдыха расположится телевизор или домашний кинотеатр, где, как
выяснилось, с большим удовольствием будет проводить время глава семьи после
тяжелого рабочего дня, в окружении любящей семьи. Далее, из гостиной комнаты
хозяйка предполагает попадание в проходной коридор, через который можно
попасть:
) Комната родителей. Предпочтительна родственная
гармония цветов, спокойные пастельные тона. Комната будет снабжена кроватью,
прикроватными тумбами, а так же хозяева изъявили желание вместо корпусной
мебели выделить место под гардеробное пространство.
) Детская комната. В комнате будут проживать
двое детей семи и семнадцати лет. Так как разница в возрасте довольно- таки
большая, нужно предположить условное разделение комнаты на 2 зоны, но комната
небольшая, следовательно, комната предполагает максимальную функциональность.
) Санузел и ванная комната. Обязательное
замечание заказчиков - наличие теплого пола, и отказ от холодных оттенков.
(Приложение Б)
1.3 Возможности и преимущества
перепланировки
При удачной реализации перепланировка может
иметь достаточно много преимуществ. Во-первых, практически неограниченные
возможности возведения и сноса перегородок, создания арок и т.д. Во-вторых,
подобрать планировку подходящую индивидуальным представлениям о комфортной
квартире. В-третьих, это увеличение желаемого функционирующего пространства.
Хотя при этом надо помнить, что действуют
нормативы, что для обычной перепланировки типовой квартиры, при объединении
квартир невозможно менять функциональное назначение помещений, такие как -
перенести кухню в жилую комнату.
Планируя объединение квартир, следует заранее
учитывать, что строительные нормы запрещают проводить демонтаж несущей стены,
поскольку это приведет к аварийной ситуации. Поэтому максимум, что возможно при
объединении двух квартир - устройство проема в ней. Местоположение этого проема
определят специалисты организации, разрабатывающей техническое заключение о состоянии
конструкций и возможности перепланировки.
1.4 Современные тенденции в интерьер
Дизайн-проект интерьера это полет мысли и идей,
воплощенный и оформленный умелой рукой специалиста в реальный документ.
Термин «дизайн интерьера» возник примерно в середине
двадцатого века, но первые концепции обустройства помещений были разработаны
еще в древние века и использовались для создания внутреннего убранства дворцов,
храмов и домов местной знати, а с ростом благосостояния населения они получили
широкое распространение. С момента возникновения дизайн интерьера предполагал
работу не только над убранством помещения, но и над его эргономикой. С
появлением конвейерной сборки и промышленного производства дизайн интерьера
получил широчайшее распространение. В первую очередь не следует комнату
перегружать комнату ненужными вещами, все должно выглядеть умеренно. Не нужно
наваливать в одну комнату тысячу деталей - это будет выглядеть безвкусно.
Конечно же, без разных декоративных деталей не обойдешься, но нужно знать меру.
Стили дизайна интерьеров начали зарождаться
давным-давно, они считаются историческими стилями, есть и новые, современные
стили, которые изобрели, придумали не так уж давно. Практически каждая страна
имеет свой стиль интерьера. К примеру, английский стиль, скандинавский,
египетский, итальянский или же средиземноморский, индийский, африканский стиль,
японский и китайский стили. Есть и другие, которые возникли в конкретных
странах, вот только они не получили такого же названия как и страна. Это стиль
барокко, модернизм, кантри, прованс, классицизм, минимализм, техно. У каждого
из стилей есть свои требования, характеристики, которые нужно соблюдать, иначе
вы не получите того результата, которого бы вам хотелось. В некоторых стилях
приемлемо большое количество аксессуаров, декоративных предметов, в других же
их берут по минимуму или же вовсе не используют.
При создании дизайна своей жилой комнаты, нужно
внести свою особую изюминку, чтобы вы ощущали комфорт, находясь в этой комнате.
Не нужно завешивать стены всеми картинами и фотографиями, которые есть у вас в
доме, выберите пару штук, которые вам больше всего нравятся, и тогда все будет
смотреться гармонично. На протяжении многих веков предметно-пространственная
среда человека была рукотворной, все предметы, окружавшие его, были результатом
кропотливого и длительного труда мастеров - ремесленников.
Всё изменилось к началу XIX
в. - начали появляться предметы массового потребления, изготовленные
промышленным способом. Предметно-пространственная среда перестала быть
рукотворной, изготовление многих предметов быта стало возможным машинным
способом. Машинный труд по производительности во много раз превосходит труд
ремесленника, но, вместе с тем, появилась новая проблема - исчезла
индивидуальность и эксклюзивность изготавливаемых предметов.
Промышленный подъем привел к нарушению
неторопливого многовекового ритма в развитии предметно-пространственного
окружения человека. Возникли новые предметы, еще не укоренившиеся в культуре,
что породило проблему их адаптации к вкусам потребителей, возник интерес к
психологии покупателя. Кроме этого, быстрые изменения в
предметно-пространственном окружении привели к тому, что становится
необходимостью не только адаптация к вкусам потребителя, но и к прогнозированию
вкусов. Осознание этих проблем, вызванных с переходом от ремесленного к
промышленному производству, привело к появлению неизвестной профессии
дизайнера. Каждый специалист по дизайну имеет свой индивидуальный подход к
художественному проектированию - метод, по которому дизайнер получает
необходимую информацию для создания дизайнерского объекта.
Современные тенденции стилей интерьеров отвечают
всем желаниям и требованиям современных людей, начиная от простых и лаконичных
интерьеров до роскошных и парадных.
Тенденция 1: Скандинавский стиль
Объединённые общим названием «скандинавский
стиль», особенности интерьера домов Норвегии, Швеции и Финляндии достаточно
крепко приживаются в и наших восточнославянских широтах. В чём-то суровый, но
чаще уютный и утилитарный, скандинавский стиль - идеальное воплощение понятий
простоты, индивидуальности и экологичности. Он подразумевает однотонные стены
чуть видимых пастельных оттенков, минимальный декор окон, обилие светлого
дерева и других природных материалов, много мест для хранения - закрытых
шкафчиков и ниш, а также отрытых полок, небольшое количество ярких аксессуаров.
Для этой тенденции интерьера 2015 также характерно наличие мягкой мебели -
только самой удобной и анатомической, в идеале - бескаркасной. При всей своей
сдержанности, это живой стиль, который можно дополнять и развивать бесконечно.
(Приложение В рис. В-1)
Тенденция 2: Лофт в стиле индастриал
Этот стиль пришёл к нам из Америки 90 - х годов
ХХ века, и с тех пор его популярность только возрастает. Дух индастриала
тяготеет к просторным помещениям, высоким потолкам и большим окнам. В квартире
и в жилом доме можно воссоздать его искусственный вариант, общую стилистику. В
вашем арсенале: декоративный кирпич, состаренное или грубо отделанное дерево,
тусклый метал с налётом ржавчины, фотообои или другие покрытия, имитирующие
бетон. Коммуникации и другие «внутренности» дома можно не прятать. А вот с
декором важно не перебрать, поскольку стиль индастриал во многом связан с
минимализмом. Несколько монохромных фотографий, старая рекламная вывеска,
граффити на стене, парочка «утилитарных» железяк - в небольшом помещении этого
будет достаточно. А главное - это свободный стиль, не требующих больших
финансовых вливаний. (Приложение В рис. В-2)
Тенденция 3: Экодизайн
Тенденция 4: Минимализм
Если убрать с комнаты лишний декор, то тогда вы
сосредоточитесь на функциональном и самом нужном. Стиль прекрасно подойдет для
человека, ценящего свое время. Спокойную атмосферу поможет создать свободное
пространство. Солнечный свет будет проникать через габаритные окна, отсутствие
перегородок способствует ощущению полноценной свободы. Цветовая палитра обычно
наполнена белым и черным цветом, их оттенки шикарно смотрятся с цветом
древесины, стекла и камня. Использование белого цвета позволяет зрительно
увеличить пространство. Для отделки берутся натуральные материалы, потому стиль
считается экологически чистым. Основа минимализма - это простота. Стиль
отличается наличием прямоугольных форм. Тут нет плавных очертаний и изгибов.
Минимализм не допускает применения разных аксессуаров. Тут шикарно смотрится
одна картина на стене в тонкой рамке. Составляющая стиля - это чувство меры.
(Приложение В рис. В-4)
Тенденция 5: Хай-тек
Металл и стекло, немного пластика, прямизна
линий, простота и строгость конструкции, никаких обоев в цветочек, сложной
отделки и дерева. Вот основные принципы правильного интерьера в стиле хай-тек.
Столы должны быть с круглыми или строго прямоугольными стеклянными столешницами.
У стульев должны быть металлические спинки и ножки, журнальные столики - на
колесиках, стеллажи должны быть незамысловатых форм, со стеклянными полками.
Стиль хай-тек будет хорошо смотреться в больших
помещениях, разделенных при помощи дверей из небьющегося стекла и перегородок
на функциональные зоны. Подобные прозрачные двери в алюминиевой раме позволяют
значительно экономить пространство. (Приложение В рис. В-5)
1.5 Аналоги
.5.1 Аналоги вариантов
перепланировок
Первое и самое важное правило хорошего интерьера
- правильно сформированное функциональное зонирование помещения.
Превращение типовой квартиры в эксклюзивную
предположительно начать с объединения кухни и гостиной, что позволит
максимально открыть пространство, и задать помещению новое концептуальное
раскрытие и осовременить его.
Квартиры-студии сейчас очень
популярны. Объединять кухню, столовую и гостиную в единое пространство
предпочитают и владельцы новостроек со свободной планировкой, и хозяева
малогабаритных квартир, которые сносят перегородки, чтобы расширить площадь. У
такого решения немало преимуществ. Главное из них - ощущение простора и
перспективы. В объединенных кухнях-столовых-гостиных много света и воздуха.
Интерьер студии, оформленный в едином стиле, выглядит гармоничным, цельным и
завершенным. При этом каждый сантиметр площади можно использовать очень
функционально. (Приложение Г рис Г-1)
Для того, чтобы кухня была удобной,
не нужно много места. Достаточно оборудовать кухонную мебель эргономичной
фурнитурой. Она обеспечивает достаточно места для хранения, а до любой вещи
можно добраться с минимумом усилий. Все необходимое будет всегда под рукой и
при этом скрыто от посторонних глаз. Самый распространенный вариант зонирования
студии - с помощью мебели. Она намечает границы между функциональными зонами,
не разрушая при этом единое восприятие пространства. Перепланировка такого
типичного помещения как «Хрущевка» да ещё и с наличием несущих стен -
перегородок ограничивает разнообразие и варианты перепланирования, так как пространство
изначально и бесповоротно уже разделено на зоны, благодаря чему остается только
грамотно их распределить. (Приложение Г рис. Г-2)
Одним из главных, фундаментальных
способов организации и оформления интерьера является деление помещения на зоны,
соответствующие их функциональному назначению, в соответствии с которым
строится их дизайн и дизайн смежных с ними зон. Самый традиционный -
перегородки. Глухие, полные - непрозрачные, с дверью или без нее, с окном в
перегородке или без него - возможны для разделения помещений с двумя и более
окнами.
Перегородки-завесы, перегородки -
«барьеры». (Приложение Г рис. Г-3, Г-4) В качестве «барьеров» могут быть
использованы некоторые предметы мебели, имеющей формы параллелепипедов -
тумбочки, шкафы разной высоты, столы разных конструкций, кушетки и т.п.
«Барьером» может стать и низкая деревянная решетка, и низкая полка,
перпендикулярная стене.
Зоны в интерьере можно отделить одну
от другой стилистически - по-разному оформив их. Это могут быть разные фактуры,
цвета, или же полное изменение стиля. (Приложение Г рис. Г-5, Г-6)
Изменение уровня пола - возвышение
или опускание уровня пола. (Приложение Г рис, Г-7)
Изменение высоты потолка.
(Приложение Г рис. Г-8)
Органичным приемом, помогающим
разделить, пространство на разные зоны, может стать использование особенностей
внутренней архитектуры помещения - расположения лестниц, выступов или,
наоборот, ниш в стенах, поворотов, простенков и т.п. (Приложение Г рис. Г-9)
1.5.2 Аналоги вариантов стилевого
решения
Существует множество вариантов
стилевого оформления интерьера, единственным условием является то, что он
должен быть уместен, гармоничен и вписываться в окружающее пространство, а
также подчеркивать индивидуальность хозяина. Выбор стилевого решения жилого
интерьера - задача, важность которой трудно переоценить, ведь от правильно
выбранного стиля зависят настроение, работоспособность, комфорт и удобство.
При работе с небольшими
пространствами нужно действовать очень грамотно, учитывать каждый сантиметр и
не тратить его попусту. Поэтому при выборе стиля нужно помнить о всех приемах
визуального увеличения пространства, не загромождать его лишней мебелью и
большими контрастными пятнами. Зрительному увеличению комнатного пространства
способствует использование светлых цветов и оттенков, в то время как темные и
слишком яркие краски приводят к противоположному результату, еще больше сжимая
без того маленькое пространство. Выбирая цвет отделочных материалов,
предпочтение следует отдавать пастельным и белым цветам.
Минимальное количество вещей. Это
еще одно правило, которое поможет визуально увеличит малое комнатное
пространство. Причем это относится не только к громоздкой мебели, но и к мелким
аксессуарам.
Обустраивая маленькие пространства
нужно использовать вещи наименьшего размера. В комнате лучше будет смотреться
набор мягкой мебели, состоящий из небольшого диванчика и парочки кресел, нежели
один диван внушительного размера. Всю используемую мебель лучше располагать
вдоль стен и приближать ее к центру помещения только по мере крайней
необходимости.
При разработке интерьера следует
стремиться к созданию цельного большого пространства, поэтому придется
отказаться от использования контрастных переходов. Резкие переходы от одного
цвета к другому визуально разбивают помещение на маленькие пространства
При работе с маленькими
пространствами нужно использовать большое количество зеркал разных размеров. И
это неспроста, так как оно способно отразить не только изображение, но и цвет и
свет. Лучи попадающие на зеркальную поверхность отражаются от нее и наполняют
собой внутреннее помещение, делая его более легким. При помощи большого
количества небольших зеркал или же одного большого настенного зеркала можно
добиться значительного визуального увеличения пространства.
Использование всех этих приемом
хорошо просматриваются в таких стилевых направлениях как - минимализм и
хай-тек. (Приложение Д рис. Д1, Д2, Д3, Д4)
2. РАЗРАБОТКА КОНЦЕПТУАЛЬНОГО
ПРОЕКТА
.1 Варианты планировочного решения
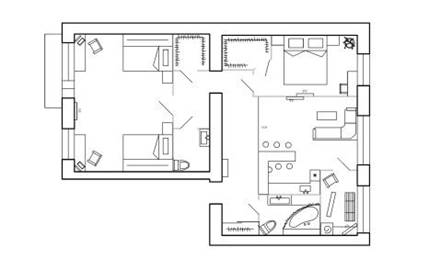
Вариант планировочного решения №1 (Приложение
Е рис. Е1)
Было принято решение сделать главный вход в
квартиру №18. В прихожей зоне располагаются шкаф купе для верхней одежды с
большим зеркалом, а так же тумба для обуви. Из прихожей можно попасть в ванную
комнату , гостиную, которая объединена с кухней, а так же пройти в другие
комнаты по коридору, который обусловлен не перегородками, а за счет изменения
высоты пола. Гостиная представляет собой обеденную зону и зону для отдыха всей
семьей, а так же из кухни - студии можно попасть в гладильную комнату, где
расположены - стиральная машина, доска для сушки, гладильная доска и небольшое
место для складывания или хранения вещей, которые потом перенесут на своё
законное место - гардеробную. В квартире две гардеробные комнаты, одна в
спальне у родителей, оборудованной большой двуспальной кроватью и небольшим
рабочим пространством, другая около детской комнаты. Детская комната рассчитана
на двух детей разного возраста, поэтому для них было организовано визуальное
разделение комнаты на два спальных и на два рабочих места. Так же для каждого
ребенка у кровати свои места для хранения вещей - это прикроватные тумбы и
шкафы с полками и секциями. С детской комнаты есть выход на балкон. Возле
детской комнаты имеется дополнительный санузел.
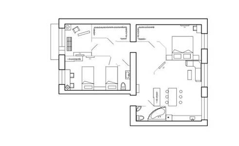
Вариант планировочного решения №2 (Приложение
Е рис. Е2)
Данное планировочное решение основано не только
на прямоугольных формах, но и с использованием ломаной линии. Главный вход в
квартиру №18, откуда можно попасть в прихожую комнату снабженной шкафом купе
для хранения вещей и тумбой для обуви. Шкаф купе играет роль не только места
хранения, но и вспомогательного объекта для зонирования. Далее можно попасть в
просторную, хорошо освещаемую кухню/гостиную, где приятно не только употреблять
пищу, но и готовить её. Если идти из прихожей прямо по коридору, то
осуществляется вход в спальную зону родителей, снабженную открытым гардеробным
пространством с местами для хранения вещей, большой двуспальной кроватью и
небольшим туалетным столиком. Далее - детская спальня, снабженная двумя
кроватями рабочим пространством и шкафом купе для хранения вещей, а напротив
детской большая гардеробная комната, соседствующая с гладильной комнатой, с
соответствующим инвентарем, из которой можно попасть на балкон. Возле детской
комнаты так же имеется дополнительный санузел.
Небольшой минус помещения в не очень удачном
расположении ванной комнаты сразу у входа.
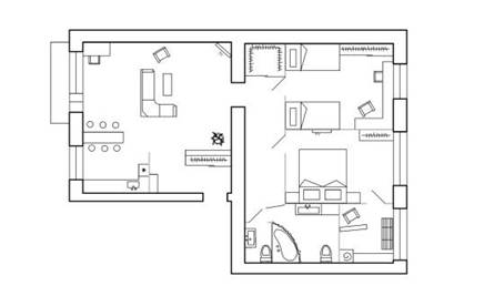
Вариант планировочного решения №3 (Приложение
Е рис. Е3)
Данный вариант планировочного решения это
наиболее близкий образ с небольшим внесением корректировок по первичным
представлениям заказчика о новой квартире. Главный вход организован через
квартиру №17. Прихожая комната изолирована при помощи перегородки и большого
шкафа купе. Из прихожей осуществляется вход в просторную кухонно-гостевую зону
с наличием кухонного гарнитура, обеденного стола и зоны отдыха, а так же у окна
располагается небольшая рабочая зона.
Через гостиную осуществляется проход на балкон.
Далее, выходя из гостиной зоны, следует попадание в закрытый коридор, из
которого можно попасть - в гардеробную комнату; в детскую комнату, с наличием
двух спальных мест, рабочей зоны, и шкафа купе; в комнату родителей, с наличием
двуспальной кровати, шкафа. Из родительской комнаты можно попасть в гладильную
комнату. В конце коридора располагаются ванная комната с санузлом и
соседствующий отдельный санузел.
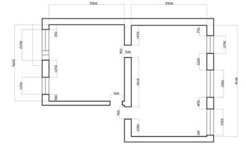
Вариант планировочного решения №4 (Приложение
Е рис. Е4)
Данный вариант перепланировки отличается от
предыдущих за счет использования в конструкциях кривых дугообразных линий.
Главный вход в квартиру №18. В прихожей располагаются шкаф купе для одежды,
тумба для обуви, а так же вход в ванную комнату. Далее идёт просторная
гостиная, совмещенная с кухонной зоной, выделенная небольшим поднятием уровня
пола. Полукруглый диван позволяет сохранить большое пространство за счет
повторения ритмичного движения круглых форм и очертаний, таких же, как и в
спальне родителей. В гостиной комнате у окна имеется небольшая рабочая зона.
Спальня родителей разделена на две зоны - зона отдыха и гладильная зона. Далее
идёт детская комната с наличием таких зон как - рабочая зона, зона отдыха, и
достаточное место для игровой зоны. По соседству с детской находятся отдельный
сан. узел и большая гардеробная.
.2 Выбор стилевого направления
В данной квартире небольшого размера нужно
уместить достаточно много функциональных зон. Осуществить это можно при помощи
приёмов организации пространства, которые были описаны в пп. 1.5.2 Аналоги
вариантов стилевого решения.
Лидерами для организации интерьера небольшого
пространства были выявлены такие стилевые направления как хай-тек и минимализм.
Но нет возможности воспользоваться ими в полной мере из-за особенностей
предоставленного помещения, поэтому, было принято решение взять из этих двух
стилей необходимое, объединить и применить их к объекту проектирования. Данное
частичное использование стилей и смешение их с другими имеет название
«Эклектика»
В классическом строгом понимании эклектика
основывается на одновременном использовании характерных приемов достаточно
близких стилей, имеющих, по крайней мере, хоть какую-то общность, "точки
соприкосновения" современный вариант - минимализм, хай-тек.
Современная эклектика - стиль с большими
возможностями. При грамотном подходе к задаче воплощения его в интерьере, дом
или квартир приобретают эксклюзивный, совершенно уникальный и индивидуальный
характер, при условии одновременного сочетания не более двух-трех
стилистических направлений.
Основные черты:
· Разные стилистические элементы
должны быть объединены фактурой, цветом и общим решением дизайна.
· Комфорт и функциональность,
выраженные сочетанием современных предметов с элементами прошлых эпох.
· Использование на мебели таких
рисунков, как полосы, зигзаги, окружности.
· Узорчатые обои, резная плитка на
стенах, паркет, драпировки на окнах и дверных проемах.
· Вертикальные линии, ниши,
скругленные углы.
· Восточные покрывала и ковры,
декоративные подушки насыщенной гаммы цветов.
· Декоративные детали, объединяющие
собой разные предметы в интерьере.
Квартира заказчиков требует максимальной
функциональности, и минимальной загроможденности мебелью и декора. Основываясь
на этих принципах создана клаузура, отображающая особенности форм и цвета
предполагающего интерьера. (Приложение Ж рис. Ж)
стилевой перепланировка интерьер
квартира
3. ЭКОНОМИЧЕСКОЕ РЕШЕНИЕ
Расчет цены дизайн-проекта
|
Этапы проекта
|
Удельный вес %
|
Цена в рублях
|
|
1
|
Пред. Исследование
|
5%
|
650
|
|
2
|
Разработка вариантов
перепланировки
|
30%
|
3900
|
|
3
|
Согласование
с заказчиком конечного вар-та переплан-ки
|
15%
|
1950
|
|
4
|
50%
|
6500
|
|
13000
|
Материальные затраты (Зм)
|
№
|
Наименование
|
Кол-во
|
Цена за ед. (руб.)
|
Сумма (руб.)
|
Примеч.
|
|
1
|
Бумага
|
1
|
150
|
150
|
|
|
2
|
Карандаш
|
1
|
30
|
30
|
|
|
3
|
Линейка
|
1
|
25
|
25
|
|
|
Итого:
|
205
|
10%
|
|
Транспортные расходы
|
20,5
|
|
|
Итого с учетом транспортных
расходов
|
222,5
|
|
Затраты на оплату труда (Зот)
|
№
|
Наименование
|
Оклад (руб.
мес.)
|
Продолжить
участие в работе (мес.)
|
Сумма (руб.)
|
Примеч.
|
|
1
|
Дизайнер
|
20000
|
0.3
|
6000
|
|
|
Основная заработная плата
|
6000
|
|
|
Дополнительная заработная плата
|
900
|
15%
|
|
Итого:
|
6900
|
|
Отчисления на социальные нужды (Зсн)
|
№
|
Должность
|
Заработная плата за проект (руб.)
|
Фонды
|
Размер взноса (сумма)
|
|
1
|
Дизайнер
|
6000
|
ПФР ФФОМС ФСС
|
1320 306 174
|
|
2
|
Дополнительная заработная плата
|
900
|
ПФР ФФОМС ФСС
|
198 45,9 26,1
|
|
Итого:
|
2070
|
Амортизация основных средств и
нематериальных активов (А)
Виды активов
|
Продолжит-ть (мес.)
|
Амортизационные отчисления (руб.
мес.)
|
Сумма (руб.)
|
|
1
|
ПК Emashines
e525
|
0,1
|
501
|
50,1
|
|
2
|
ПО AutoCad
|
0,05
|
333,6
|
16,68
|
|
3
|
ПО Microsoft
Word
|
0,05
|
208
|
10,4
|
|
Итого:
|
77,2
|
= (1/N)*100%
N- срок полезного
использования объекта, выраженный в месяцах
ПК = 30000 руб. N
= 5 лет = 60 мес.
ПО AutoCad
= 12000 N = 3 года = 36 мес.
ПО Microsoft
Word = 10000 N
= 4 года = 48 мес.
Кпк = (1/60)*100% = 1,67
К(A)
= (1/36)*100% = 2,78
К(M)
= (1/48)*100% = 2,08
Апк = (30000*1,67)/100% = 501 руб
А(А) = (12000*2,78)/100% = 333,6 руб
А(М) = (10000*2,08)/100% = 208 руб
Услуги третьих лиц (Зтл)
|
№
|
Наименование услуг (работ)
|
Стоимость (руб)
|
|
1
|
Типографские услуги
|
100
|
|
Итого:
|
100
|
Расчёт плановой себестоимости
заказа
|
№
|
Наименование статьи расходов
|
Усл. обозн.
|
Сумма (руб.)
|
Примеч.
|
|
1
|
Материальные затраты
|
Зм
|
225,5
|
|
|
2
|
Затраты на оплату труда
|
Зот
|
6900
|
|
|
3
|
Отчисления на соц. нужды
|
Зсн
|
2070
|
|
|
4
|
Амортизация осн. средств и
нематериальных активов
|
А
|
77,2
|
|
|
5
|
Накладные расходы
|
Знр
|
463,635
|
5%
|
|
6
|
Услуги третьих лиц
|
100
|
|
|
Итого:
|
С
|
9836
|
|
Определение ожидаемой прибыли:
Цена: 13 000 руб.
Себестоимость: 9836 руб.
Прибыль = Цена-Себестоимость
Прибыль = 13 000 - 9836 = 3164 руб.
Налог на прибыль:
Объектом налогообложения являются доходы по
ставке 6%
Н.пр.= 3164 * 0,06 = 189,85 руб.
Чистая прибыль:
ЧПР = ПР - Нпр
ЧПР = 3164-189,85 = 2974 руб.
ЗАКЛЮЧЕНИЕ
Подсознательно человек сохраняет желание
окружить себя обстановкой полностью соответствующей своему внутреннему
мироощущению, вещами, словно выходящими изнутри собственного «Я» , иначе, жить
в неподходящем интерьере, это как жить в несогласии с собой, чего нельзя
допускать.
Была поставлена цель: «Разработка планировочного
решения четырехкомнатной квартиры для семейной пары с двумя детьми».
основываясь на предпочтении заказчиков и видении своего дома. А так же учитывая
все правила и приёмы создания гармоничного, стильного и неповторимого
интерьера.
В результате проделанной работы вышли на
наиболее походящие варианты планировочного и стилевого решения, которые были
одобрены заказчиком. Проект принят к
дальнейшей разработке.
ЛИТЕРАТУРА
1. #"805746.files/image001.jpg">
Рис. А-1. Существующая планировка объекта
проектирования
Рис. А-2. Обмерочный чертеж. Планировка после
сноса перегородок
Рис. А-3. Габаритный чертеж №1
Рис. А-4. Габаритный чертеж №2
Рис. А-5. Экспликация №1
Рис. А-6. Экспликация №2



Рис. А-7. Фотографии объекта
ПРИЛОЖЕНИЕ Б
Заявка на заказ услуг
Дизайн интерьера
ФИО (заказчика): Лабузова Наталья Николаевна
Наименование организации (заказчик): частное
лицо
Тип объекта: четырехкомнатная квартира
Адрес объекта: Масленникова 9а, кв. 17-18
Сроки выполнения услуг 1.092014 г. по 31.10 2014
г.
Характеристики объекта:
Общая площадь 75,2 м2. В том числе
вспомогательная 0,7 м2
Срок службы объекта 54 г. Последний ремонт
производился 2008
Тип помещения: этаж
Представляемая документация технический паспорт
помещения
Для дизайна
Обмерочный чертеж помещения
План с указанием мебели и технологического
оборудования
План демонтажа перегородок
План после перепланировки
План расположения сантехники и мебели
Пожелания для выполнения проекта
Стилистические пожелания
Отделочные материалы и колористические решения
Подпись (заказчика)
Дата
Ознакомился (проектировщик)
Дата
ПРИЛОЖЕНИЕ В
Рис. В-1. Скандинавский стиль
Рис. В-2. Стиль лофт
Рис. В-3. Эко-дизайн
Рис. В-4. Минимализм
Рис. В-5. Хай тек
ПРИЛОЖЕНИЕ Г
Рис. Г-1. Планировочное решение с открытой
кухней студией
Рис. Г-2. Планировка помещения и зонирования с
наличием несущих стен-перегородок
Рис. Г-3. Перегородки-завесы
Рис. Г-4. Перегородки-барьеры
Рис. Г-5. Зонирование при помощи фактуры и цвета
Рис. Г-6. Зонирование при помощи фактуры и цвета
Рис. Г-7. Зонирование при помощи изменения
высоты пола
Рис. Г-8. Зонирование при помощи изменения
высоты потолка
Рис. Г-9. Разделение пространства на разные
зоны, использовав особенности внутренней архитектуры помещения
ПРИЛОЖЕНИЕ Д
Рис. Д-1. Интерьер в стиле минимализм
Рис. Д-2. Интерьер в стиле минимализм
Рис. Д-3. Интерьер в стиле Хай тек
Рис. -. Интерьер в стиле Хай тек
ПРИЛОЖЕНИЕ Е
Рис. Е-1. Вариант перепланировки №1
Рис. Е-2. Вариант перепланировки №2
Рис. Е-3. Вариант перепланировки №3
Рис. Е-4. Вариант перепланировки №4
ПРИЛОЖЕНИЕ Ж
Рис. Ж-1. Клаузура. Эклектика хай-тека и
минимализма