Разработка интерьера частного дома и ландшафта прилегающего участка
Содержание
Введение
. Предпроектное исследование
.1 Анализ проектной ситуации
.2 Анализ окружающей предметно-пространственной среды
.3 Анализ требований к проектируемому объекту
.4 Портрет потребителя
.5 Изучение литературы и анализ существующих разработок
. Художественно-конструкторская разработка объекта
.1 Дизайн-концепция
.1.1 Моменты, когда захватывает дух
.1.2 Семейные традиции
.2 Стиль
.2.1 Кантри
.2.2 Прованс
.3 Эскизный поиск
.4 Композиционные особенности интерьера
.5 Анализ вариантов и обоснование принятого решения
. Рабочий проект
.1 Описание этапов проектирования
.2 Образ дома. Палитра настроения
.3 Подбор мебели, декоративных и отделочных материалов.
Подготовка проектной документации
Заключение
Список использованных источников
Приложения
Введение
"…жизнь измеряется не числом
вдохов-выдохов, а моментами, когда захватывает дух!"
Джордж Карлин
Темп жизни современного человека настолько быстр, что поспеть за ним
крайне трудно. Мы все куда-то бежим, спешим, но, сколько бы целей не достигли,
всегда остается что-то, чего не хватает. Желание достичь успеха, подняться по
карьерной лестнице, занять удачное "место под солнцем" зачастую
оказываются в приоритете у большинства людей. Ставя перед собой определенные
цели, некоторые не задумываются о средствах, с помощью которых они достигаются.
В мире с вечной погоней за материальными ценностями, волей неволей
начинаешь чувствовать себя частью системы. Часто бывает так: видишь перед собой
огромный, прекрасный, спешащий куда-то мир, полный невнятных обещаний, и вдруг
мелькает в душе пронзительное чувство, что вот лежит перед тобой жизнь, совсем
не то, которую представлял. И каким же сильным бывает желание вырваться из
этого бессмысленного самообмана и бессмысленных в своей монотонности звуков
этой вечной мировой "шарманки".
Именно в такие моменты человек больше всего прочего тяготеет к уюту и
размеренности деревенской жизни, с ее спокойствием, убаюкивающей тишиной,
невероятной легкостью и свежестью. У многих пробуждается ностальгия по образам
прошлого, по тем старым и добрым временам, когда за окнами не были слышны
привычные звуки шумной городской жизни, когда утреннее пробуждение было связано
с восходом солнца, а не с завыванием сигнализаций.
Жизнь ярка и насыщена красками и все это вызывает в нас огромное количество
эмоций, но как бы там ни было, каждый хочет оставить эту суету с проблемами за
порогом своего дома. Желание возвращаться после тяжелого трудового дня в свой
уютный мир вполне естественно. Поэтому мы стремимся окружить себя вещами,
создающими уют и комфорт. Это могут быть простые льняные занавески в интересном
сочетании с цветом комнаты, любимые фотографии в причудливых рамках, стильные
картины и полотна и просто милые вещицы, которые так дороги нам. Без этих вещей
мы чувствуем себя незащищенными, потерянными, уязвимыми. Как часто бывает велик
человек в намерениях, но не в их исполнении. Представляя в воображении
идеальные картины своего жилища, многие не могут воплотить их в жизнь. То есть,
получается, что теряется возможность существования в гармонии. Уют в доме
напрямую связан с поиском гармонии с самим собой и окружающим миром. В создании
этой гармонии и состоит труд дизайнера. Основная задача дизайнера сформировать
идею помещения и воплотить ее в жизнь. Для этого он должен стать
психоаналитиком. Иными словами, безошибочно определить вкусы и тайные
страстишки заказчика, а затем из мебели, штор, столов и стульев, компьютеров и
стеллажей создать нечто, чтобы "было удобно и комфортно".
Цель: разработать интерьер частного дома, а так же ландшафт прилежащего к
нему участка.
Задачи:
• исследовать объект проектирования и провести анализ аналогов;
• составить портрет потребителя;
• изучить необходимую литературу;
• разработать основную концепцию: определиться с цветовым, стилевым и
композиционным решением;
• организовать все функциональные процессы;
• разработать конструкторско-технологическое решение;
• выполнить дизайн-проект внутреннего пространства и разработать
функциональные зоны ландшафта;
• разработать декоративные элементы для оформления интерьера.
Актуальность разработки данной темы заключается в профессиональном и
творческом воплощении идей и действии по созданию функционального и
гармоничного пространства для комфортного проживания семьи. А так же
обусловлена тем, что такая услуга, как разработка дизайн-проекта интерьера в
настоящее время широко востребована на рынке. Это связано с ростом рынка
недвижимости, ростом благосостояния населения, желанием улучшить свои жилищные
условия с помощью дизайна. Главная часть работы дизайнера - не столько изобретение
неких устройств и технологических цепочек, реализующих поставленную жизненную
задачу, сколько компоновка форм разрабатываемых конструктивно-технических
элементов в единый организм, целостность.
Любое проектирование - это многоступенчатый процесс, который посвящен
созданию (описанию, изображению) модели некоего еще не существующего явления,
объекта, с наперед заданными характеристиками и свойствами. В таком процессе
обосновывается возможность осуществления задачи, описываются принципы ее
реализации и предлагается "рабочая документация", рассказывающая, как
это можно сделать практически. Суть дизайнерского творчества состоит в
предчувствии, предвидении будущего образа и в последовательном приближении к
нему в ходе проектирования.
В пояснительной записке представлены 3 главы.
Первая глава - исследовательский этап проектирования. Работа над данным
проектом начинается с описания ситуации, содержащей информацию о расположение
объекта, его функциях и назначении. Составляется портрет потребителя, который
включает в себя тщательное изучение потребителя, его статус, личностные
характеристики, предпочтения и интересы. Проводится анализ пространства
помещения и определены функциональные зоны. Помимо этого, анализируются
аналоги, благодаря которым можно проследить влияние функционального назначения,
возрастных категорий потребителя на планировку помещения, выбора формы и
цветового решения.
Во второй главе представлена разработка функциональной модели и
художественного образа проектируемого объекта. На основе поставленных задач и
выводов, сделанных во время исследований, формируется основное направление
проектирования, идея. Эта идея определяет организацию пространства и
планировку, использования основных форм и конструкций, цвета, материалов. В
этой главе рассмотрена концепция проекта, показан эскизный поиск, предоставлены
все необходимые чертежи, представлено несколько возможных вариантов решения.
Окончательная визуализация объекта и финальные фото.
В третьей главе сам рабочий проект. В нем представлено описание этапов проектирования
и обоснование дизайнерского решения объекта проектирования по эстетическим,
технологическим и функциональным признакам.
В заключении представлены основные выводы по проделанной работе -
разработке декоративных элементов для данного помещении.
1. Предпроектное
исследование
.1 Анализ проектной ситуации
Владельцы компактного дома - семья, молодые энергичные люди, большие
путешественники и истовые любители красивых вещей - к созданию собственного
дома шли долго. Они мечтали об обстановке в стиле кантри, просторных помещениях
и светлых комнатах, наполненных красивыми вещами.
Планировка дома построена по классическому принципу.
Вход в парадные помещения предваряет просторный прямоугольный холл. Через
широкий дверной проем открывается вид на просторную гостиную. Территория
приусадебного участка имеет форму вытянутого прямоугольника и включает: дом,
баню, гараж, разнообразные зоны отдыха. Площадь всей территории составляет
приблизительно 8,7 соток.
Цель проекта: Создать такое место, которое, не смотря
на свою новизну, было бы пропитано духом времени. Место, где на подсознательном
уровне возникает желание чтить семейные традиции и поддерживать преемственность
поколений. Место, в которое хочется возвращаться снова и снова. Оградить себя
от внешнего мира. Позабыть обо всех проблемах и невзгодах. Будущий интерьер
должен жить вместе с людьми, изменяться, подстраиваться, расти, иметь свои
привычки и находить новые увлечения. Стать маленьким миром, домом-крепостью,
островком счастья.
Рис. 1.1. План участка
Задачи проекта:
Социальные задачи: Создать респектабельный вид помещениям. Создание
эмоциональной атмосферы, позволяющей расслабится и отдохнуть.
Функциональные задачи: Создать пространство, способствующее комфортному процессу
проживания и отдыха. Оборудование территории всем необходимым. Оптимальное
функциональное зонирование.
Эргономические: рассчитать все параметры соответствующие
антропометрическим данным потребителя.
Психофизиологические: удобство и комфорт для проживания и деятельности.
Цикличность нашего настроения и психического состояния зависит от среды,
окружающих предметов.
Санитарно - гигиенические: соблюдение норм гигиены, своевременная уборка,
вентиляция.
Безопасность: сохранение здоровья, ограничение опасных зон.
Конструтивно-технологические:
Мобильность, многофункциональность интерьера.
Применение только надежных конструкций.
Использование только прочных, экологически чистых, хорошо, качественно
сделанных и обработанных, долговечных материалов. Использование новейших
технологий.
Эстетические задачи:
Уникальность, необычность, индивидуальность, проявляемые в интерьере
данного дома.
Неожиданность и новизна, интересное цветовое решение.
Композиционное совершенство.
.2 Анализ окружающей предметно-пространственной среды
Город Шадринск (ранее Шадринский острог (до 1733), Шадринская слобода (до
1781)) - город областного подчинения в Курганской области России, второй по
величине и значению город области после Кургана с 75 тысячами жителей.
Расположен на реке Исеть (приток Тобола), в живописном месте. Является крупным
городом северо-западной части Зауралья, её культурный, образовательный и
промышленный центр. Расстояние по шоссе - 155 км, по железной дороге - 146 км к
северо-западу от Кургана. Область граничит с Челябинской, Свердловской и
Тюменской областями, и является частью Уральского Федерального Округа.
Шадринск, как и вся Курганская область, находится в часовом поясе
Екатеринбургское время. Смещение относительно UTC составляет +6:00.
Относительно Московского времени часовой пояс имеет постоянное смещение +2 часа
и обозначается в России как MSK+2. Климат Курганской области резко
континентальный; средняя температура января: -18 градусов, средняя температура
июля: +19 градусов. Значительное удаление территории области от морей, щит
Уральских гор с запада, с юга прямое соседство с обширными степными районами, а
также рельеф местности и особенности циркуляции воздушных масс определяют
континентальный характер климата (холодная малоснежная зима и теплое сухое
лето). Для весны характерны частые возвраты холодов. Недостаток влаги летом,
периодически повторяющиеся засухи. Самым холодным месяцем бывает январь, а
самым теплым месяцем - июль. Средняя годовая сумма осадков по территории
области изменяется в пределах от 320 мм до 470 мм. Зима в Курганской области
самый продолжительный из всех сезонов года. Период с устойчивым снежным
покровом колеблется от 150 до 160 дней. Высота снежного покрова в среднем
достигает 38 см на севере и 26 см на юге, но она значительно колеблется в
разные годы. Устанавливается снежный покров в конце первой и начале второй
декады ноября. В начале апреля происходит разрушение зимнего покрова, а к концу
второй декады снег окончательно сходит на территории всей области.
Рис. 1.2. Месторасположение на карте города Шадринска.
Адрес дома: город Шадринск, улица Советская.
Рис. 1.3. Расположение дома на карте
Тип дома: мансардный (двухэтажный, один из этажей мансардный)
Участок: 8,7 соток.
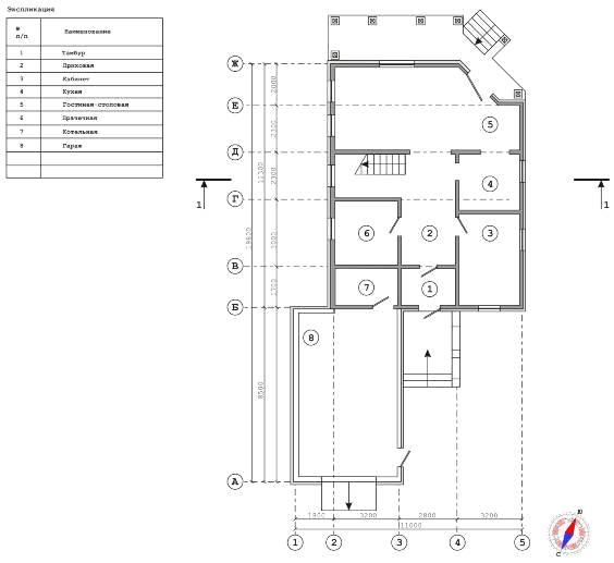
Рис. 1.4. План первого этажа
Рис. 1.5. План мансардного этажа
Фундамент: плитный
Стены: Выложены
из пустотелого керамического кирпича толщиной 120 мм. Стены оштукатурены
изнутри. Снаружи обложены лицевым полнотелым керамическим кирпичом (рис.1-7,
приложение 1).
Перекрытия: деревянные.
Высота потолков 2,8м.
Полы: 1 этаж - система " теплый пол", керамическая плитка, паркетная
доска. Мансардный этаж - паркетная доска, пробка.
Межкомнатные перегородки: кирпичные оштукатуренные, частично ГКЛ.
Окна:
деревянные с тройными стеклопакетами, цвет темный орех.
Двери: входная
сейф-дверь; межкомнатные деревянные с вставками из матового стекла; дверь на
террасу деревянная со стеклопакетом.
Входная группа: прямая
лестница с перилами.
Ворота: гаражные, автоматические с пультовым, дистанционным управлением.
Крыша: двухскатная, из металлочерепицы. Водостоки, водосточные
трубы.
Общая площадь:
Год постройки: 2010-2013.
Рис. 1.6. План в разрезе
Коммуникации
Электричество:
(двухфазное). Кабель по воздуху со специальным защитным покрытием.
Электричество заведено в дом, поставлен счётчик.
Газ:
двухконтурный газовый котел, который служит как для обогрева дома, так и для
производства горячей воды. В нем содержится циркуляционный насос, который
распределяет теплоноситель по дому и расширительный бачок. Для обогрева
используются металлопластиковые трубы, по которым теплоноситель распределяется
по всему дому и 7 стальных импортных батарей - конвекторов. Помимо этого на
всей площади первого этажа установлены теплые полы. Кроме того газовая
магистраль заведена и для использования кухонной газовой плиты.
Вода: Центральное городское водоснабжение. Вода горячая и холодная на кухне, в
прачечной и ванной комнате. Так же подведена к бане.
Канализация:
септик. 2-х секционный 13 колец диаметра 1 метр. Отвод воды осуществляется от
прачечной, ванной комнаты, кухни и бани, отвод канализационных стоков от прачечной
и ванной комнаты.
Охрана: Вневедомственная
охрана. Служба безопасности немедленно реагирует на сигнал. Фирма несёт
материальную ответственность за имущество.
Телефон: на территории проложен телефонный кабель.
Дорога: общая дорога асфальтовая на 2 полосы с освещением.
Централизованный вывоз мусора.
.3 Анализ требований к проектируемому объекту
дизайн интерьер ландшафт комфортный
Специфика дома заключается в многообразии функций этого объекта. Это
жилое здание, что предопределяет особенности формирования интерьеров. Интерьер
(франц. Interieur - внутренний) - ограниченное внутреннее пространство здания
или какого-либо помещение. Убранство (мебель, светильники и т.д.) является
функциональным компонентом интерьера. Архитектурное решение и характер убранство
определяется назначением интерьера для тех или иных процессов человеческой
жизни. Интерьер - это композиция из деталей, подчиненная настроению. Это своего
рода музыкальное произведение. В нем должны быть идея и концепция. Им подчинены
выбранная форма мебели, цветовая гамма, квадратные метры.
Концепция интерьера формируется исходя из выбранного стиля, в котором
человек чувствует себя комфортно. Между тем сейчас вряд ли можно найти
истинного поклонника модернизма или кантри. Как правило, стили смешиваются. И
чем сильнее, тем моднее и более стильно выглядит помещение.
Интерьер - понятие сложное, многоплановое, обладающее огромной
эстетической психофизиологической силой воздействия на человека.
Благоприятные условия жизнедеятельности человека дома обеспечиваются
благодаря созданию комфорта как в самом здании, так и на территории,
прилегающей к нему. Общий комфорт внутреннего пространства является
интегрирующим понятием. Оно включает экологический, функциональный и
эстетический комфорт.
Экологический комфорт создаётся оптимальным для организма человека
сочетанием температуры, влажности, скорости движения воздуха и воздействия
лучистого тепла. Например, в состоянии покоя или при выполнении лёгкой
физической работы температура зимой не должна превышать 18-22, а летом 23 -
25°С; скорость движения воздуха зимой должна составлять 0,15, а летом 0,2-0,4
м/с; относительная влажность - 40-60%.
В помещении, где люди проводят большую часть суток, должен быть всегда
чистый и свежий воздух и нормальный шумовой режим. Опытные риэлторы для того,
чтобы быстро продать квартиру, рекомендуют хозяевам перед приходом
потенциальных покупателей испечь пироги. Они знают, что запахи дома влияют на
нашу психику и настроение. Поэтому квартира должна быть всегда хорошо
проветрена, а свежий воздух сочетаться с каким-нибудь приятным ароматом.
Факторы, определяющие комфорт внутреннего пространства загородного дома.
Функциональный комфорт определяет удобство эксплуатации любого помещения. Он
обеспечивает защиту от окружения, безопасность и осуществление всех
функциональных процессов жизнедеятельности человека: сон, питание, отдых,
личная гигиена, развлечения, деловые контакты и др. Разделение всех процессов
жизнедеятельности человека в помещениях осуществляется приёмами функционального
зонирования как общего пространства дома с выделением функциональных блоков,
так и микрозонированием.
Микрозонирование осуществляется также посредством рационального набора
оборудования и его оптимального размещения в любом интерьере.
Эстетический комфорт предопределяет положительный эмоциональный настрой
человека. Это обеспечивается благодаря средствам и приёмам, с помощью которых
достигается объединение всех элементов интерьера в единое для восприятия целое.
Эстетический комфорт интерьера зависит, в первую очередь, от гармоничности
предметно-пространственного окружения, от того, насколько достигнута
целостность и согласованность его элементов. Эстетическая организация среды,
или достижение красоты интерьера, включает множество разнообразных задач.
Главные из них - это композиция пространства, цветовое решение и отделка
поверхностей, хозяйственная (дизайнерская) форма оборудования и мебели, решение
декоративных деталей, освещение, озеленение и др.
Таким образом, интерьер любого помещения дома должен обладать экологическим,
функциональным и эстетическим комфортом
Экологический комфорт в интерьерах создаётся, в основном, благодаря
вентиляции, кондиционирования воздуха, отопление и др.
Функциональный комфорт в основном обеспечивается оптимальным набором
мебели и оборудования. Мебель является одним из активных компонентов в
формировании интерьеров многих помещений гостиниц.
Проанализировав ситуацию, определяем следующие условия и ограничения:
Стилистическое направление - кантри;
Все стены несущие и в перепланировке не нуждаются;
Экологичность (использовать экологически чистые материалы);
Функциональность (пространство должно быть максимально задействовано,
продумано до мелочей);
Удобство;
Отсутствие характерных для стиля кантри тканей в цветочек;
Уютно и светло;
Окна и двери деревянные цвета темный орех. Межкомнатные двери и дверь на
террасу обязательно с остеклением;
Потолок должен быть ровный, без деления на уровни;
Ничего не должно напоминать о работе;
Мебель, по возможности, должно быть на ножках (для облегчения уборки);
Оба супруга очень любят общение с родными и близкими друзьями. Часто
приезжают в гости родители и сестра с семьей. Поэтому должны быть предусмотрены
дополнительные спальные места для комфортного пребывания;
Состав семьи предполагает значительное количество одежды и обуви для
разных сезонов. Следовательно, необходимо спланировать места для хранения
вещей;
Для работы супругов обязательно необходим кабинет (или рабочая зона);
Наличие элементов декора, которые должны быть гармонично вписаны в
будущий интерьер (настенные часы с акварельной росписью в мелкий цветочек,
выполненные в чертах, характерных стилю Прованс; настенные кованые крючки с
украшением в виде фарфоровых фигурок (валенки, бабочки), которые очень удачно
вписались бы в интерьер скандинавского стиля; картина маслом, изображающая
цветы в глиняном горшке; медный колокольчик, выполняющий роль звонка). Эти
вещицы были привезены из путешествий в страны Европы и потому несут в себе не
столько стилистику, сколько смысловую нагрузку. Ведь они прочно окутаны воспоминаниями.
И, конечно же, хозяева непременно хотели включить все эти детали в интерьер
своего дома.
На участке рядом с домом растет вишневое дерево. Изначально планировка
дома на участке была "привязана" именно к этому дереву. Нужно
учитывать этот факт. Тем более вишневое варенье так любимо владельцами дома.
.4 Портрет потребителя
Семья состоит их четырех человек.
Хозяин - Дмитрий. 32 года. Предприниматель. Работает в сфере торговли.
Сдержанный, сосредоточенный, прагматичный, целеустремленный, решительный.
Щепетилен в мелочах, педантичен, пунктуален. На все имеет свою исключительную
точку зрения. Упрям. Увлекается реставрацией старинных автомобилей и
коллекционирует вина.
Хозяйка - Елена. 29 лет. Врач. На данный момент находится в декретном
отпуске. Мать двух замечательных, милых девочек. Располагающая к общению
утонченная молодая женщина. Претенциозна. Обладает художественным вкусом.
Человек творческий, увлекается кулинарией и вышивкой лентами. Во всем
стремиться к уюту и гармонии. Предпочитает строгий порядок. Но не жалеет
времени на эксперименты как в хобби, так и в повседневной жизни.
Дети:
Екатерина. 4 года. Общительный и любознательный ребенок.
Юлия. 6 месяцев. Маленький человечек, который только начинает познавать
мир.
1.5 Изучение литературы и анализ существующих разработок
Человеческие возможности и фантазия безграничны. В мире существует
бесчисленное множество загородных домом, особняков и вилл, созданных человеком.
Разные стили, разные подходы, разные результаты. Проведем небольшой анализ уже
существующего архитектурного и дизайнерского достояния человечества, но прежде
проанализируем пространство дома и определим функциональные зоны:
1. Прихожая.
Создание первого впечатления. Хранение вещей.
2. Кухня.
Приготовление пищи, хранение пищевых продуктов.
3.
Столовая-гостиная. Прием пищи, общение членов семьи между собой и гостями,
прием гостей, просмотр ТВ.
4. Спальня
супругов. Сон, отдых, личная жизнь супругов.
5. Детская
комната. Сон, отдых, игры, учеба, общение с членами семьи и друзьями. Хранение
вещей. (второй этаж)
6. Прачечная.
Стирка, сушка, глажка белья. Также включает гостевой санузел.
7. Гардеробная.
Хранение одежды и вещей.
8. Ванная комната.
Гигиенические процедуры.
9. Кабинет. Работа
на компьютере, интеллектуальный и творческий труд.
10. Котельная.
Отопление дома.
11. Гараж.
Парковка и обслуживание машин. Хранение запчастей и принадлежностей.
Территория участка включает:
. Дом
. Гараж
. Баня с выходом на беседку с летней кухней и мангалом
. Цветники
. Сад с хозяйскими постройками (теплица, разнообразные зоны отдыха,
цветники, гряды).
. Детская площадка с песочницей
Прихожая.
Прихожая - это то, что видит первым делом, входящий в дом человек.
Пространство, отведенное под прихожую, обычно используется в качестве гардероба
для верхней одежды, а так же место хранения обуви и аксессуаров (зонты, сумки,
шляпы и др.). Здесь располагаются большие шкафы, полки, комоды, зеркала,
пуфики, коврики, часы и другие предметы интерьера.
Рис. 1.7. Образцы прихожей.
Прихожая должна быть достаточно просторной, что бы ни создавать
неудобств, когда к заказчику придет большое количество гостей. Планируется
расположить большой шкаф - купе для верхней одежды, обуви, головных уборов,
аксессуаров (перчатки, сумочки, чемоданы); средний по размерам комод или тумбу;
непременно разместить настенные крючки и большое зеркало. Можно расположить
пару растений, пуфиков, а так же коврик и не большое количество декоративных
изделий. Стилистическое направление ориентировано па Прованс и Скандинавию.
Гостиная.
Гостиная зачастую является самой крупной и просторной комнатой в
помещении. И это не случайно, ведь это место, где должны свободно чувствовать
себя все гости, родственники и друзья, вместе с членами семьи. Кроме того здесь
располагаются технические средства: музыкальная система, домашний кинотеатр,
иногда компьютер… мебельная составляющая: диван, кресла, стулья, столы и
столики, стеллажи и шкафы… элементы декора и прочие предметы интерьера:
зеркала, ковры, драпировки и шторы, подушки и другие элементы, свойственные
гостиной.
Гостиная будет выполнена преимущественно в светлых тонах, свойственных
стилю Прованс. Декоративные балки добавят "изюминку" и внесут
отголосок стиля Шале, так любимого хозяином. Картины в рамах и без - это
здорово. Хозяйка, будучи человеком творческим, сможет повесить в гостиной свои
работы.
Рис. 1.8. Образцы гостиной.
Кухня.
Кухня и столовая. Эти места всегда наполнены теплом и уютом домашнего
очага. Особенно в этой молодой семье, это именно то, чего стоит достичь.
Во-первых, в беседе с ними мы выяснили, что они очень любят собираться с
родными: мамами, папами, сестрами и т.д., что само по себе уже настраивает на семейный
уют. Во-вторых, т.к. семья совсем еще молодая, хочется сохранить и поддержать в
их отношениях очаг тепла, который будет хотеться развивать и развивать в
настоящую большую крепкую семью. Поэтому для кухни и столовой мы выбрали и
остановились на стиле Прованс. Прованс называют гастрономической провинцией
Франции. Местные специи - розмарин, фенхель, тмин, базилик, а также
разнообразные трюфеля - известны далеко за пределами Франции. Прованс - родина
майонеза "Провансаль". Основу французской кухни, особенно ярко
представленной в Провансе, составляют рыба, оливковое масло и фрукты. И все
блюда, конечно же, заправлены прославленными прованскими травами. По-деревенски
уютный стиль. Поэтому именно он удачнее всего оформит пространство.
Рис. 1.9. Образцы кухни.
Кухня в светлых тонах это то, что нужно. Утром в солнечных лучах она
будет смотреться особенно уютно.
Кухня, по сути, несёт в себе не очень большое количество функций и
назначений. Прием пищи, приготовление и хранение продуктов питания - это основа
ее предназначения. Обычно она состоит из кухонного гарнитура, стола и стульев,
сантехнических и бытовых устройств, разнообразной кухонной утвари.
Столовая.
Если представить, что каждая комната в доме занимает определенную иерархическую
ступень, то столовой наверняка будет отведено второе место после гостиной. Но
если гостиная фигурирует в том или ином виде почти в каждом жилом интерьере, то
этого нельзя сказать о столовой. А ведь она многое может поведать о доме,
привычках и вкусах его хозяев, их жизненном укладе и ценностях. Это помещение -
вопрос престижа. В этом случае важнее всего производимый эффект. Для других
столовая отражает жизненную философию. В нашем случае столовая и гостиная
находятся в одном помещении.
Рис. 1.10. Образцы столовой.
Поговорим ещё о тонкостях отдельной столовой. Она представляет собой
стилистически завершённый вариант интерьера. Основой такого помещения будут
служить стол и стулья. Стол может быть круглой, овальной, прямоугольной форм, а
стулья - с низкими или высокими спинками, фигурными вариациями, с мягкими или
жёсткими сиденьем и спинкой. Единство стиля и цвета - вот основное правило.
Однако в настоящее время возможно всё. Для некоторых ценителей нетрадиционных
комбинаций придуманы столовые гарнитуры, где стулья по цвету и текстуре
отличаются от стола, а по форме могут даже отличаться один от другого. Но и
здесь не нужно устраивать архитектурный бедлам - всего должно быть в меру: и с
цветом, и с формой, и с фактурой.
Спальня.
Планируя ремонт спальни, следует учесть прямое назначение комнаты. Ведь
это место, где треть своей жизни проводит человек, где он сбрасывает груз
повседневных хлопот, отдыхает, набирается энергии. Поэтому каждый грамотно
подобранный элемент, начиная с мебели, освещения, цвета, драпировки, заканчивая
аксессуарами - все это будет являться основой удачного дизайна спальни.
Рис. 1.11. Аналог супружеской спальни.
В спальне супругов будет большая кровать, прикроватная банкетка и
тумбочки, столик, телевизор и несколько растений.
Детская комната.
Это царство детей! Конечно, там будут и взрослые - родители. Но в первую
очередь, это детская. Психологи считают, что дизайн детской комнаты для ребенка
должен быть как можно более простым. А еще удобным! На первый взгляд это не
логично: ведь речь идет о нежных и романтичных девочках, вся жизнь которых
должна быть устроена в красоте и очаровании. Но именно этот факт и
предопределяет, подход к созданию особого детского пространства в комнате для
девочек: ребенку нужен простор! В-том числе и для фантазии!
Рис. 1.12. Аналоги детской комнаты.
Итак, мы подошли к самому главному: в каком же стиле должна быть
оформлена детская комната для девочки? Речь здесь идет даже не о моде, а о
современном подходе к организации интерьера с учетом всех технических
достижений и познаний. И выходит, что ближе всего этот стиль лежит к
функционализму. Он максимально прост, удобен и эргономичен - в нем нет
украшений и декоров, ярких и вычурных дизайнерских решений. Главные
"действующие лица" - простор и естественный свет. И того, и другого
побольше... Не будем забывать и общую стилистику всего дома. Добавим немного
элементов от основного заданного стиля. Комнату для девочки стоит выбрать ту,
которая является наиболее проветриваемой. Кровать следует расположить так,
чтобы была видна дверь, для того чтобы девочка смогла видеть желающих войти в
ее комнату людей! Не стоит забывать про шкаф и стол! Начнем прямо со стен: их
лучше оставить светлыми. Так мы сбережем ощущение простора и солнечный свет. Ни
в коем случае не стоит завешивать или загромождать окна: достаточно снабдить их
небольшими римскими шторами приятного цвета. Следует очень внимательно
продумать и искусственное освещение: обязателен светильник над каждой кроватью,
у рабочего стола, у зеркала и даже подсветка в шкафах. Комната для девочки не
обязательно должна быть выполнена в розовых тонах. Если ребенок еще слишком
мал, то стоит присмотреться к нейтральным светлым оттенкам - топленое молоко,
молочный абрикос, бледно-розовый, светло-голубой, бледно-желтый. А яркие
элементы можно добавить без труда! Сделать одну стену яркой - это дизайнерское
решение не просто забавно! Стена будет выделяться, и девочка сможет расположить
здесь свои любимы игрушки.
Прачечная.
Стирка - это очень важное и, к тому же, повседневное занятие. Постирать
белье в современной стиральной машине сейчас может даже ребенок, это очень
просто, а сам процесс не занимает много времени. Но как быть с оборудованием,
где разместить, как эргономично обустроить пространство и не нарушить
стилистические свойства интерьера? Выход, конечно же, есть - обустроить в доме
отдельную комнату, в которой и разместится прачечная. Это удобно и практично, а
вопрос, куда поставить стиральную или сушильную машину уже не будет актуальным.
Безусловно, организация прачечной комнаты - удовольствие затратное, но конечный
результат того стоит. Так как для стирки нужна, в большинстве случаев, только
стиральная машина, то в отдельно отведенной комнате для прачечной остается еще
много места, которое можно использовать с пользой.
Рис. 1.13. Аналоги прачечной.
Навесные шкафы и полочки помогут освободить место на полу для удобного
пуфика, дивана, кресла-качалки или для раковины, которая также необходима в
комнате для стирки. Под раковиной можно поставить удобные корзины, отдельно для
чистого и грязного белья. Не лишней будет в прачечной и стойка для отутюженных
вещей. Гладильную доску, чтобы она не мешала, можно закрепить на стене, и в то
время, когда она не используется, складывать. Идеальным вариантом для прачечной
комнаты станет мини-шкаф со встраиваемой гладильной доской.
Ну и конечно, в прачечной было бы неплохо обустроить место для отдыха,
тогда время в перерывах между домашними хлопотами будет протекать приятнее. На
стену прикрепите телевизор, а на полку поставьте магнитофон, и пока белье
стирается, вы сможете насладиться приятной музыкой или посмотреть любимую
телепередачу. Эта техника вам понадобится не только тогда, когда вы уютно
расположитесь в кресле в прачечной комнате, но и во время глажки белья.
Гардеробная.
Чтобы обустроить и наполнить гардеробную комнату, не стоит придерживаться
определенных правил. В большинстве случаев гардеробные оборудованы фурнитурой,
которая занимает все пространство, поэтому отделка стен не требуется. Но если
гардеробная комната большая, то в ней наверняка найдется место, где стены
пустуют. Их можно оклеить виниловыми или пробковыми обоями, такой выбор отделки
сэкономит средства и сделает дизайн интерьера оригинальным. Для напольного
покрытия подойдет линолеум или паркет, они легко моются и не требуют особого
ухода.
Оборудование для гардеробных комнат функционально. Фурнитура для
гардеробных комнат, такая как полки, секции с вешалками и пантограф - это
неотъемлемая часть дизайна. Также в гардеробной комнате устанавливаются
выдвижные ящики для нижнего белья и аксессуаров, корзины для белья, держатели
для брюк, не лишним будут вешалки для поясов, галстуков и стеллажи для обуви.
Кроме всего, гардеробная комната может быть оборудована туалетным столиком,
трюмо, пуфиками, гладильной доской и подставкой для утюга. Выбор интерьера для
гардеробной комнаты так же важен, как и выбор мебели. Чтобы было комфортно, уютно
и красиво в гардеробной комнате, необходимо тщательно продумать, какое в ней
будет освещение. Встроенные осветительные приборы и подсветка для каждого
отсека с вещами - идеальное решение для гардеробных комнат.
Рис. 1.14. Аналоги гардеробной.
Ванная
Ванные комнаты в стиле Прованс требуют достаточно пространства для своей
"жизнедеятельности". Обилие свободного места как бы наполняет эту
комнату ветром и ароматом прованских трав. Дизайн таких комнат лаконично
совершенен и имеет множество вариаций, индивидуальных особенностей. Глядя на
эти интерьеры кажется, что милая добрая хозяйка этой комнаты очень старалась,
чтобы сделать её красивой и уютной.
Рис. 1.15. Аналоги ванной комнаты.
Материалы для отделки сохраняют общую дизайнерскую идею самобытности
французского дома. Отделка стен в ванной кафельной плиткой практически не
используется. Чаще всего стены просто окрашены поверх кирпичной или каменной
кладки. Иногда применяется оштукатуривание, но не традиционно гладкое, а
шероховато-неровное. Это придает интерьеру неординарность и крестьянскую
основательность. Цвет можно выбрать по своему усмотрению, но обязательно
светлых спокойных оттенков. Иногда стены обшивают деревом в продольном или
поперечном расположении, что выглядит очень богато и добавляет ощущения
натуральной красоты. Доски для этой цели обязательно окрашивают, в отличие от
русской традиции сохранять натуральный цвет. Потолок в ванной также покрывают
краской, а иногда и просто белят. Очень оригинально смотрятся деревянные
потолочные балки или их имитация. Полы тоже покрывают доской, но окрашенной в
более тёмные цвета - от терракотового до коричневого. Керамическая плитка для
пола, безусловно, будет более практична в этом месте.
Мебель для такой ванны должна соответствовать общей идеи основательности
и простоты. Лучшим материалом для нее, конечно, является дерево. Настоящим
украшением станет комод для белья, покрытый воском. Для хранения вещей,
предназначенных для стирки, подойдёт корзина из лозы или изящный короб.
Элегантная ширма с цветочным или тематическим орнаментом придаст ванной
некоторую пикантность. Основное функциональное назначение этого помещения -
забота о чистоте всех частей человеческого тела. Центральное место в нём
принадлежит классической ванной на ножках, высоких и чаще всего изогнутых. Её
линии очень плавные, как бы текучие, дающие комфорт и удобство при её
использовании. Это настоящая белая красавица, на которую приятно смотреть.
Идеальным вариантом станет акриловая ванна. Раковина для умывания может быть на
кованых ножках или монолитной подставке из фаянса. Другой вариант - это
раковина с консолью, выполненной в стиле художественного литья. Под такой
раковиной удобно размещаются изящные металлические полочки для полотенец.
Прованс предлагает широкий выбор возможностей для декора ванной комнаты.
Шторы и занавески из льна или хлопка могут быть украшены вышивкой ручной работы
или традиционным французским кружевом. Создать особый шарм можно и собственными
руками. Нарядная "юбка" для раковины сделает вашу ванну оригинальной
и по-особенному нарядной. Настенное зеркало и люстра в массивной кованой оправе
оригинально впишутся в такую комнату. Нежный букетик из живых или высушенных
цветов как нельзя лучше завершит образ ванной комнаты родом из Прованса.
Сад
Внутренняя часть усадьбы - это обязательно "французский
огородик" и плодовый сад. До сих пор во французских усадьбах сохранились
так называемые "персиковые стены". Эти исторические сооружения строго
охраняются государством. При покупке и переустройстве усадьбы - персиковые
стены остаются достоинством государства. Вот на них то, с помощью шпалер и
закрепляются персиковые деревья со сформированными плоскими кронами. Говоря
современным языком - создавались пальметты. Преимуществом таких садов является
то, что они занимают гораздо меньше площади под крону, имеют очень хорошее
плодоношение, т.к. сама крона разрежена и раннее созревание, обусловленное,
созданием микроклимата вблизи белой стены.
Аристократическая "бедность" - вот что является главной чертой
Прованса. Неотъемлемой частью любого сада Прованс являются герань, плющ,
петуния, лаванда, розмарин и др.
Этот стиль также придерживается экологичности. Здесь используются только
натуральные материалы и аксессуары, выполненные своими руками. Основными
цветами сада Прованс являются голубой, синий и фиолетовый. Они считаются
умиротворяющими и успокаивающими оттенками, которые благоприятно воздействуют
на организм человека. Здесь также можно найти маленькие огородики с пряными травами.
Дорожки в саду должны быть выполнены из камня или состаренного дерева,
предварительно пропитанного защитным составом.
Рис. 1.16. Ландшафт приусадебных участков.
Изучив необходимый материал, проанализировав аналоги, определив
функциональную составляющую и расставив акценты в требованиях, можно смело
переходить непосредственно к проектированию.
2. Художественно-конструкторская разработка объекта
.1 Дизайн-концепция
После проведения анализа ситуации наметились основные проектные цели и, в
соответствии с ними, проектные задачи, которые вместе составили проектную
концепцию.
В основу создания проекта заложена идея вкусного "бабушкиного"
пирога с вишней. Образ, цвет и отдельные элементы этого пирога отлично
передались на проект. Именно пирог диктовал концепцию развития интерьера
объекта. Так, например, во внешнем облике здания прослеживается
"сладкие" оттенки цветов, а облицовочный кирпич схож с кондитерской
шоколадной крошкой. Люди, созерцающие здание такого рода, невольно будут думать
о "сладкой" жизни его обитателей. В интерьере большинство комнат
выполнены в шоколадном, сливочном и кремовом цвете. Каждый день в таком доме
будет наполнен вкусом, но при этом не будет лишён ни разнообразия, ни уюта.
Так же в проект заложена мечта о доме-душе. Он нечто большее, чем крыша
над головой. Дом должен сочетать в себе невероятное число функций - в нем
совмещаются ресторан, детский сад, гостиница, офис, библиотека. Жилище должно
дарить радость, и всем, кто в него входит, предоставлять защиту, покой, тепло.
2.1.1 Моменты, когда захватывает дух
Когда жена Джорджа Карлина умерла, Карлин, известный острослов и сатирик
70-80-ых годов, написал эту невероятно выразительную статью, уместную и
сегодня.
"Парадоксом нашего времени является то, что мы имеем высокие
строения, но низкую терпимость, широкие магистрали, но узкие взгляды. Тратим
больше, но имеем меньше, покупаем больше, но радуемся меньше. Имеем большие
дома, но меньшие семьи, лучшие удобства, но меньше времени. Имеем лучшее образование,
но меньше разума, лучшие знания, но хуже оцениваем ситуацию, имеем больше
экспертов, но и больше проблем, лучшую медицину, но хуже здоровье. Пьем слишком
много, курим слишком много, тратим слишком безответственно, смеемся слишком
мало, ездим слишком быстро, гневаемся слишком легко, спать ложимся слишком
поздно, просыпаемся слишком усталыми, читаем слишком мало, слишком много
смотрим телевидение и молимся слишком редко. Увеличили свои притязания, но
сократили ценности. Говорим слишком много, любим слишком редко и ненавидим
слишком часто. Знаем, как выжить, но не знаем, как жить. Добавляем года к
человеческой жизни, но не добавляем жизни к годам. Достигли Луны и вернулись,
но с трудом переходим улицу и знакомимся с новым соседом. Покоряем космические пространства,
но не душевные. Делаем большие, но не лучшие дела. Очищаем воздух, но
загрязняем душу. Подчинили себе атом, но не свои предрассудки. Пишем больше, но
узнаем меньше. Планируем больше, но добиваемся меньшего. Научились спешить, но
не ждать.
Создаем новые компьютеры, которые хранят больше информации и извергают
потоки копий, чем раньше, но общаемся все меньше. Это время быстрого питания и
плохого пищеварения, больших людей и мелких душ, быстрой прибыли и трудных
взаимоотношений. Время роста семейных доходов и роста числа разводов, красивых
домов и разрушенных домашних очагов. Время коротких расстояний, одноразовых
подгузников, разовой морали, связей на одну ночь; лишнего веса и таблеток,
которые делают все: возбуждают нас, успокаивают нас, убивают наc… Время
заполненных витрин и пустых складов.
Время, когда технологии позволяют этому письму попасть к вам, в то же
время позволяют вам поделиться им или просто нажать "Delete".
Уделяйте больше времени тем, кого любите, потому что они с вами не
навсегда. Скажите добрые слова тем, кто смотрит на вас снизу вверх с
восхищением, потому что это маленькое существо скоро вырастет и его уже не
будет рядом с вами. Горячо прижмите близкого человека к себе, потому что это
единственное сокровище, которое можете отдать от сердца, и оно не стоит ни
копейки. Говорите "люблю тебя" своим любимым, но сначала
действительно почувствуйте. Поцелуй и объятия могут поправить любую
неприятность, когда идут от сердца. Держитесь за руки и цените моменты, когда
вы вместе, потому что однажды этого человека не будет рядом с вами. Найдите
время для любви, найдите время для общения и найдите время для возможности
поделиться всем, что имеете сказать. Потому что жизнь измеряется не числом
вдохов-выдохов, а моментами, когда захватывает дух!"
Джордж Карлин
.1.2 Семейные традиции
Ничто не вечно. Общество меняется постоянно, неизменным остается лишь
одно - стремление человека к созданию семьи, потребность человека в крупице
тепла. И разве этим теплом не могут быть пара рук, смех детей, искренние слова
и родные люди рядом? Каждая семья индивидуальна, различны отношения, порядки,
устои и традиции. Но именно семейные традиции и обычаи являются неотъемлемым
атрибутом семейного счастья и благополучия. Когда-то традиции были обязательной
составляющей сплоченной семьи, отражая нравственную позицию всех ее членов.
Многие традиции переходят из поколения в поколение. Каждый из нас стремится
создать в своей семье уют, атмосферу гостеприимности, неповторимости, чтобы,
находясь вдали от дома, каждый из членов семьи понимал, что его ждут дома,
обязательно выслушают и поймут, окажут поддержку и помощь в трудную минуту. В
каждой семье обязательно должны быть традиции, которые впоследствии переносятся
детьми во взрослую жизнь и свои семьи. Колыбельная песенка перед сном, сказка
на ночь, семейные обеды в выходные.
Часто сразу мы не в состоянии выделить обычаи, которые приняты в нашей
семье, поскольку многие переняли из детства. Для нас они настолько естественны,
что мы даже о них не задумываемся. Традиции и обычаи в семье составляют
духовную ауру дома, включая в себя и уклад жизни, и распорядок дня, и
взаимоотношения членов семьи, и различные ежедневные ритуалы. Дом,
"привыкая" к своим жильцам, улавливает их энергетику, взаимоотношения
и ритм жизни, и как бы подстраивается под него. Не редко соблюдение традиций
помогает нам жить.
Во многих семьях вошло в привычку собираться за общим столом по вечерам и
за чаем обсуждать события уходящего дня, строить планы на будущее. Родители и
дети рассказывают о том, как провели день и делятся своими впечатлениями,
проявляют внимание к проблемам друг друга. В такие моменты особенно значимым
является теплое отношению друг к другу и окружающая обстановка, уют. Все вокруг
преображается и привычный интерьер уже кажется чем-то сказочным. Причудливые
тени абажура скользят по стенам, создавая особую атмосферу, плетеные кресла
кажутся невероятно удобными, а чай, дымящийся завитушками, является, чуть ли не
панацеей от всех бед. Кухня таит в себе огромный простор для фантазии
относительно создания семейной традиции.
А какой чудесной становится традиция ожидания первого снега. Когда все
листья уже скинули свои летние "наряды", но еще не приобрели зимние,
когда земля и лужицы покрыты утром хрустящей холодной корочкой, мороз
"рисует" свои картины на окнах, но снег еще не выпал, весь дом
замирает в ожидании чуда.
Все находится в ожидании зимних чудес. Появляются гирлянды бумажных
снежинок, вырезанных родителями вместе с детьми, диваны "одетые" в
теплые пледы, а камин, потрескивающий поленьями, казалось бы, только и ждет,
как в холодные зимние вечера члены семьи будут собираться около него. И вот, в
утро, когда все вокруг укутано белым пленом. Слышен топот детских ножек,
которые бегут к окнам, а затем веселые возгласы о том, что выпал снег, наступила
зима. В этот день все кажется особенным, сказочным, чудесным. Воздух словно
пронизан тысячей морозных иголочек, свежий и при вдохе немного покалывает. Под
песни Френка Синатры после завтрака все пьют чай с вишневым вареньем, которое
открывается впервые после прогорклой осени в этот же день, оно пахнет летом,
солнцем и приятными воспоминаниями о теплых днях.
В преддверии новогодних праздников в доме все словно начинает танцевать
уже в их предчувствии. Вечером на окнах приветливо сверкают гирлянды, как бы подмигивая
и торопя домой. На вешалках уже привычно обосновались теплые куртки, шапки и
варежки, которые так и манят выбежать на улицу, съехать с ледяной горы с
ветерком. В воздухе царит праздник, кажется, что он вполне осязаем. Дом
наполняется тысячей приятных мелочей, которые напоминают о предстоящем чуде.
Вот уже на камине появляются носочки для подарков, старательно украшенные
каждым членом семьи. И вот в один прекрасный день появляется зеленая красавица,
ароматом которой наполняется каждый уголок. Из чулана достается большая коробка
с украшениями - тут-то и начинается самое веселье. Игрушки, которые мы не
видели целый год, кажутся каждый раз не такими, как были в прошлый раз. Сколько
радости у детей, которые вместе с родителями украшают елку. Они звонко смеются,
выбирают игрушки, предлагают, как красивее "нарядить" новогоднюю
гостью, цепляют на себя мишуру и разбрасывают серпантин. Завершающим этапом
является водружение звезды на елочную макушку, лучше всего, если это делается
всеми членами семьи. И вот дом полностью перерождается, теперь он совсем не
такой, как в обычное время. Вечером на елке загораются разноцветные огоньки,
выключается свет, все сидят в гостиной под теплыми пледами и слушают новогоднюю
сказку. Кажется, что даже вьюга за окном затихает и прислушивается к тихим
волшебным словам. В канун Нового года под елкой появляются подарки в красивых
коробках, которые открываются в праздничное утро. Сколько радости и позитивных
эмоций они вызывают. В разные стороны летит обертка у самых нетерпеливых и вот
он - долгожданный подарок. Все вокруг радуется обновлению.
После долгой зимы наконец-то появляется солнышко. Оно греет сильнее, чем
раньше и уже ощущается грядущая перемена. Постепенно начинает таять снег. Вот
прилетают самые первые птицы. Традицией некоторых семей является приветствие
весны. На окнах появляются маленькие солнышки, нарисованные детьми, которые как
бы приветствуют своего старшего брата - весеннее яркое солнце.
Дом вновь преображается, ведь столько дел было отложено за зимнее время.
Члены семьи устраивают генеральную уборку, совершая которую они прощаются с
зимой до следующего года. Потом вместе мастерят бумажные кораблики и,
облачившись в резиновые сапожки, все дружно идут к звонким ручейкам отпускать
вместе с бумажными фрегатами в "большое плаванье" свои желания.
Существование такой православной традиции, как пасха, воспринимается не
так празднично, но если в нее привнести частичку европейского декора, то она
будет восприниматься более радостно. Дети, видя в доме забавных пасхальных
зайчиков с корзинами наполненными цветными яйцами, которые украшаются всей
семьей, будут воспринимать этот праздник легче и веселее, каждый год, ожидая
его вновь.
Затем этого наступает жаркое лето. Знойное солнце светит так ярко, что
иногда хочется спрятаться в домашней прохладе. В вазах стоят свежие цветы,
легкие занавески колышутся от приятного ветерка.
В качестве семейной традиции может выступать и ежегодный выезд на природу
в первые выходные лета. Большое количество времени мы проводим на улице,
принимая солнечные ванны. Как приятно в теплый летний день полежать в гамаке
или плескаться в бассейне.
Традиция собирать ягоды - самая летняя традиция. Дети часто устраивают
состязание, кто же больше соберет. После этого, объединив усилия все природные
"сокровища" перебираются, и мама делает из них наивкуснейшее варенье,
которое открывается в первый день зимы.
Создавать собственные традиции в семье, которые передаются от детей к
внукам, может каждый из нас. Только при этом необходимо учитывать, чтобы то или
иное событие было ярким и запоминающимся, а главное позитивным, чтобы
повторяющееся событие соблюдалось в обязательном порядке, независимо от
чего-либо, а главное, чтобы в этом традиционном событии было что-то, что влияло
бы на наши чувства и восприятие. Каждый год нам кажется непохожим на прошедший,
но светлые воспоминания от семейных ритуалов вновь и вновь окунают нас в ту
волшебную атмосферу и, возможно, поэтому мы с нетерпением ждем первого снега
или нового года, или весны.
Все эти традиции составляют большую часть нашей жизни. Они наполняют нас
верой в чудеса, приятными воспоминаниями, теплотой, счастьем и любовью. Как
говорил Джордж Карлин: "Жизнь измеряется не числом вдохов-выдохов, а
моментами, когда захватывает дух!"
Отсутствие таких вещей ведет к потери связей между людьми, они не знают о
чем говорить друг с другом, им в тягость часто лицезреть родные лица. Все это
говорит и о функциональном нарушении жизни дома. Такой дом, как и семья, имеет
хрупкие и непрочные связующие нити.
.2 Стиль
Стиль по словарю Даля - это образ, вкус. Стиль в нашем понимании это
единство художественного направления, гармоничная совокупность черт.
Можно определить стиль эпохи, стиль направления в искусстве, архитектуре,
стиль отдельного человека и его дома. И если стиль эпохи или архитектурного
направления определяется историческими, экономическими и социальными условиями,
то образ человека и, тем более его дома, впрямую зависит от его вкуса. Вкус
человека может меняться с возрастом, образом жизни, благосостоянием, стиль дома
зависит от характера и темперамента хозяина. Но для любого человека его дом
это, прежде всего, место, где ему комфортно, где он может расслабиться,
отдохнуть или, наоборот, сосредоточиться для работы. Дом - это место, куда
человеку хочется идти, где он чувствует себя защищенным, где его ждут тепло и
уют.
Избыточное внимание к стилю с самого начала может привести к стилизации.
А это может обернуться вычурностью, надуманностью, китчем. Полностью
пренебрегая стилем, можно совсем уйти в эклектику. Тогда появится опасность
прийти к хаотичному пространству; может "развалиться" композиция и
целостность интерьера. Поэтому мы, не забывая про желания заказчиков,
остановились на таких стилях, которые в принципе можно соединить.
.2.1 Кантри
"Работаю в городе, а живу в деревне", - многим горожанам
хотелось бы иметь возможность говорить так о себе. Конечно, это привлекательная
перспектива: в будни проводить дневное время в городских условиях - работа,
шопинг, достижения современной медицины и т.д., а по вечерам и в выходные дни наслаждаться
свежим деревенским воздухом, красотой нетронутой природы и уютом сельского
дома. Увы, часто об этом остается только мечтать, поэтому столь ценимы
горожанами интерьеры в деревенском стиле. В таких помещениях отдыхаешь душой и
расслабляешься, испытывая чувство безмятежности - как тогда, когда, будучи
ребенком, проводил время в деревенском домике своей бабушки.
"Country" в переводе с английского означает "деревня"
и подразумевает ностальгию по уюту и простому загородному быту, который лишен
вычурности.
Стиль "кантри" родился в США, но уже давно стал международным и
существует во множестве разновидностей. В последнее время расширил свои границы
настолько, что употребляется одинаково по отношению к американскому ранчо,
швейцарскому шале или французскому провансу. Когда говорят о стиле
"кантри", то имеют в виду обобщенный образ сельского дома, без какой
либо национальной конкретики.
Сегодня этот милый и уютный стиль выглядит немного иначе: он простился с
грубоватой и наивной деревенской простотой, стал более утонченным, изысканным и
совершенным, но в то же время сохранил свои главные достоинства - мягкость,
лиричность и близость к природе. Стоит отметить что городская жизнь на
деревенский лад заставляет идти на компромиссы в дизайне. Получается адаптированный
к реальным условиям вариант, предназначенный для современного активного
человека. Старое и новое создают эклектичный, но все-таки очень уютный стиль,
где суета городской жизни замедляет свой темп.
"Кантри" - непритязательный, домашний и очень уютный, символизирует
устойчивость и надежность, призван передавать дух деревенской жизни, где
изысканность смешивается с практичностью семейного уклада.
.2.2 Прованс
Стиль "кантри" многолик, ведь в каждой стране свой особый
сельский колорит. Особый интерес в наши дни вызывают интерьеры во французском
кантри, а именно - в стиле "прованс".
Прованс - это южный регион Франции, ассоциирующийся у многих европейцев с
великолепной природой, ярким солнцем, запахом синего моря и вкуснейшей
деревенской едой. Само же слово "прованс" переводится как
"провинция". Таким образом, прованский стиль интерьера - это стиль
провинциальных домов на юге Франции.
Из всех разновидностей "кантри" стиль прованс в дизайне
интерьеров - один из самых популярных, потому что ассоциируется не просто с
деревней, но еще и с морем, солнцем, запахом цветущих растений, то есть с
великолепным отдыхом на лоне природы. Все это сказалось на эстетике прованса:
выгоревшие на солнце цвета, много живых и засушенных растений, естественность,
простота, незамысловатость линий. Еще одна черта, характерная для кантри в
целом, присуща и стилю прованс - это архаика. Жизнь в деревне размеренна и
нетороплива - изменения происходят очень медленно, а новые веяния приживаются с
большим опозданием.
Дизайнеры, создавая интерьеры в стиле прованс, уделяют очень большое
внимание выбору цвета. Можно даже сказать, что цвет здесь имеет решающее
значение. Для отделки помещений берутся только пастельные тона, чтобы создать
эффект выгоревших на солнце поверхностей.
Стены и потолки в помещениях в прованском стиле чаще всего белые, но это
необязательное условие. Основные цвета прованса: белый, кремовый, бежевый,
бледно-лимонный, терракотовый, выгоревший оранжевый, цвет лепестков подсолнуха,
голубой, бледно-зеленый, цвет морской волны и лаванды. Пастельные оттенки этих
цветов используются для отделки и помещений, и мебели. Наиболее
распространенная отделка стен в стиле прованс - штукатурка, причем нанесенная
топорно, с неровностями и "проплешинами", сквозь которые просвечивает
кладка. В современных интерьерах в стиле прованс можно отделать стены цветной
фактурной штукатуркой.
Еще один довольно распространенный вариант - отделка стен облицовочной
доской и последующая ее окраска. Здесь ярко проявляется различие в кантри той
или иной страны: например, в русском кантри доска сохраняет свой цвет и
фактуру, а во французском - окрашивается, как правило, белой краской.
Стены кухонного помещения можно отделать натуральным камнем,
глазурованным кирпичом или плиткой, в том числе имитирующей кирпич.
Полы. На полах - доска или плитка (чаще терракотовая или
светло-коричневая со срезанными углами). В деревенских домах Прованса можно
обнаружить как необработанную доску, так и крашеную. Конечно, паркет, ламинат,
линолеум и ковролин для помещений в стиле прованс не подходят.
Потолки, как правило, выкрашены светлой краской. Часто потолок украшают
балки - темные для контраста или выбеленные. Для помещений в стиле прованс
нужно выбирать белые двери. Можно взять двери деревянные, выкрасить белой
краской и искусственно состарить поверхность. Белые двери нередко украшены
цветочной росписью. Конечно, идеально было бы в прованс-интерьере установить
французское окно от пола - то есть окно-дверь. Но, зачастую, в связи с
архитектурными особенностями здания, такой возможности нет, зато можно купить
новые окна с переплетами на несколько секций. Рамы окон тоже, как правило,
белые.
Мебель в стиле кантри обязательно деревянная, плетеная или кованая. ДСП,
МДФ, ПВХ и прочие современные материалы в помещениях в стиле прованс будут явно
не на своем месте. Стеклянной, хромированной и никелированной мебели в провансе
нет и быть не должно. Не совсем подходящую по цвету и отделке мебель можно
покрасить и самостоятельно. Это характерно для прованса: даже массивную
деревянную мебель в Провансе окрашивали светлой краской. В прованских
интерьерах нередко присутствует естественно или искусственно состаренная мебель
с потертостями, трещинками, местами облупленной краской, сколами.
Мебель прованс основательная, грубоватая и простоватая, что в целом
типично для кантри. Но в прованских интерьерах мебель менее громоздкая, чем,
например, в традиционном американском, немецком или английском кантри.
Самая распространенная мебель в стиле прованс - это буфеты, комоды,
книжные шкафы, шкафы с антресолями и выдвижными ящиками, скамьи, лавки, столики
и тумбы с выдвижными ящиками, массивные обеденные столы. Шкафы отличаются
небольшой высотой. Цвет мебели - белый, кремовый, светло-зеленый, лавандовый,
коричневый и светлого дерева. Фасады мебели иногда украшаются росписью
цветочными узорами.
Обивка мягкой мебели в стиле прованс редко однотонная светлая, чаще - в
цветочек, клетку или полоску. Как правило, много диванных подушек. Сами диваны
либо простоватые с деревянными подлокотниками, либо изысканные с круглыми подлокотниками
и "юбкой". Кресла часто плетеные, иногда - кожаные либо
соответствующие дивану. Кровати большие, "царские" с деревянными или
коваными спинками и ножками. Интерьер прованс вообще богат на ковку - это и
ножки столов, и полочки, и спинки скамеек.
Из тканей присутствуют грубый хлопок, выбеленный лен, простой ситец.
Наиболее частый узор на тканях - это цветы, реже - полоска и клетка. Из тканей
в цветочек шьют диванные подушки, салфетки, шторы, скатерти. Шторы часто
украшают рюшами, иногда оригинально драпируют их, подвязывают лентами. В
спальнях кровати застилают стегаными покрывалами все в тот же цветочек. Кроме
того, в прованских интерьерах часто можно увидеть кружевные предметы декора -
вязаные крючком салфетки, кружевные чехлы на диванных подушках, такие же
скатерти и т.п.
Люстры обычно кованые, как и бра, настольные светильники, торшеры.
Абажуры светильников зачастую выполнены из ткани в цветочек. Украшают интерьеры
в стиле прованс коваными и плетеными предметами декора - это подсвечники,
вазочки, корзинки, фруктовницы, коробы, кашпо и т.д. Пустоты стен заполняют
натюрмортами и цветочными пейзажами, декоративными керамическими тарелками,
нежными настенными часами с росписью, канделябрами, изящными полочками,
зеркалами в кованых или простых крашеных рамах. В интерьерах в стиле прованс
почти всегда отыщется хоть одна фигурка петуха - символа Франции. Ну и,
конечно, много места отведено растениям - живым в кадках, свежесрезанным
букетам, засушенным композициям, пучкам трав, подвешенных под потолком.
Можно поиграть с морской тематикой, актуальной для стиля прованс:
украсить помещения рыболовной сетью, ракушками, фигурками чаек. В морских
прованских интерьерах используется текстиль в бело-синюю полоску. Морская
тематика особенно актуальна при оформлении ванных комнат в стиле прованс.
Особое внимание хочется уделить кухне как самому теплому и уютному
помещению. Кухни в стиле прованс, как правило, оформлены в светлых цветах.
Мебель в кухне может быть и бежевой, и белой, и зеленой, и синей, и коричневой.
Кухонные столешницы часто выполнены из того же материала, каким отделан фартук
- то есть из камня или его имитации. В современных интерьерах в прованском
стиле можно обнаружить кухонные фасады-решетки, что, в общем-то, тоже отсылает
нас к старому сельскому провансу. В кухне много яркой керамической посуды с
цветочным орнаментом и плетеных элементов - корзин, коробов, вазочек и т.п. На
стульях - тканевые чехлы или подушки на сиденьях. На обеденном столе в зоне
столовой почти всегда - скатерть и салфетки. В центре стола -
"пузатая" ваза со свежими цветами.
Центром кухни в стиле прованс является очаг. Печь облицовывается
глазурованным кирпичом или камнем, украшается коваными элементами. Но печь в
квартире не поставишь, поэтому очагом становится плита, над которой дизайнеры
обычно устанавливают печной вытяжной колпак. И красиво, и дух прованса
передает, и приносит практическую пользу.
Стиль кантри в целом и стиль прованс в частности: в чем отличие?
Каковы отличительные черты прованса, позволяющие безошибочно определить
этот стиль и не спутать его с кантри другой страны? Конечно, во всех
деревенских стилях есть много общего, но прованский стиль в интерьере имеет
свои нюансы:
деревянная мебель в стиле прованс часто выбеленная, декорированная
росписью цветочным узором;
в интерьерах в стиле прованс очень много яркого текстиля в цветочек - ни
в одной другой этнической разновидности стиля кантри нет столько
"цветущих" тканей;
кованые изделия а-ля "провинциальная Франция" более изящные,
ажурные, что, строго говоря, не присуще ни американскому кантри, ни
скандинавской деревне;
жилые комнаты в прованском стиле отличает некий минимализм и даже
"холодность", ведь в регионе Прованс очень жарко и солнечно, поэтому
в домах искусственно создается атмосфера прохлады. Стены обычно белые с
умеренным количеством декора.
в прованских домах зачастую большие окна, что тоже встретишь далеко не во
всех разновидностях кантри из-за климатических различий.
Конечно, многое просто невозможно реализовать в условиях умеренного
климата, но ведь главное - не соблюсти все правила, а создать нужные
ассоциации. А какие ассоциации связаны с Провансом? Лето, солнце, море, аромат
трав, цветущие луга, вкус парного молока, цветки лаванды, запах специй и
сушеных растений, ощущение того, что "здесь жила еще моя бабушка". А
для того чтобы создать такую атмосферу, вовсе не обязательно соблюдать все
нюансы, главное - выбрав стиль прованс, вложить в создание интерьера хотя бы
частичку своей души.
.3 Эскизный поиск
На основе анализа аналогов и выбранного стиля и направления
разрабатываются варианты, эскизы будущего интерьера (рис. 1-3, приложение 2).
.4 Композиционные особенности интерьера
При проектировании интерьера необходимо учитывать неодинаковость
восприятия различных составляющих его композиции, определяемую их масштабом. На
первом уровне воспринимается композиция интерьера в целом; при этом
определяющим элементом ее пространства является, как правило, архитектурная
оболочка, пространственное построение интерьера. Из предметного наполнения на
этом уровне воспринимаются, в основном, крупногабаритное оборудование -
например, промышленное оборудование, масштаб которого задан не размерами
человеческого тела, а требованиями технологии - или элементы, по функциональным
или композиционным соображениям оторванные от остального предметного
направления, например, элементы верхнего освещения.
Второй уровень - восприятие при непосредственном воздействии человека с
элементами предметного наполнения, при котором на первый план выходят
визуальные характеристики этих элементов, их объемное решение, фактура, детали,
цвет, а архитектурная оболочка и ее детали служат этим элементам фоном.
Две основные составляющие композиции интерьерных пространств: это их
архитектурная оболочка - ограждающие поверхности с соответствующими деталями
(проемами и т.д.), полы, потолки; и предметное наполнение. Однако в
формировании композиции интерьера достаточное активное участие принимают также
элементы, не несущие непосредственной функциональной нагрузки - детали
декоративного оформления, символики, а также произведения искусства. В
совокупности все эти элементы составляют объемно-пространственную среду
интерьера.
Однако композиция внутреннего пространства здания не ограничивается
исключительно материалами, объемными элементами. Весьма важную роль в ней
играет решение световой среды интерьера, его колористка.
Световая среда внутренних пространств определяется в первую очередь их
функциональным значением и имеет своей целью создание оптимальной освещенности
для осуществления различных процессов жизнедеятельности в различное время
суток. Освещение при этом может быть функциональным - в рабочих зонах - или
носить декоративный характер - в жилых интерьерах. При этом в создании световой
среды может использоваться как естественное освещение, так и могут применяться
искусственные источники света.
Цветовая среда интерьера в меньшей степени определяется функциональными
требованиями, однако так же зависит от назначения помещения. Так, цветовая
среда жилых и общественных интерьеров может решаться более свободно, в
соответствии со стилевыми предпочтениями архитектора или заказчика.
.5 Анализ вариантов и обоснование принятого решения
При проектировании каждого помещения было разработано несколько
вариантов. Например, прачечная:
Первый вариант был не плох, но он не отвечал критерию рационального
использования пространства. Кроме планировки, так же возник спорный вопрос в
плане стиля и цветового решения. Окончательный вариант оказался в разы лучше
предшественника.
Было разработано два варианта проектирования прихожей.
Первый вариант очень понравился хозяйке дома, но ее супруг был настроен
категорично против изящных изгибов мебели. Поэтому пришлось разрабатывать более
лаконичный вариант, но не упустить нотку изысканной торжественности, создающей
атмосферу помещения.
Зона столовой:
Одобрение получили оба варианта. Но окончательный вариант лучше передает
характер интерьера.
3. Рабочий проект
Проектирование - творческий процесс. Каждый из нас идет к результатам
своим путем. Одни создают целостный образ дома и затем его уточняют и
детализируют. Другие находят точные и яркие детали и от них приходят к целому.
Но для успеха всегда нужно иметь цельное представление о проекте.
Иногда образ интерьера возникает сразу, но в ряде случаев он складывается
постепенно, по частям. Поэтому алгоритм проектирования не может быть прямой линией.
Скорее он напоминает дерево с несколькими параллельными ветвями. Мы описываем
его как последовательность работ. В реальности же проектирование может идти
несколькими параллельными дорожками.
На протяжении поиска планировочного решения почти всегда идет параллельно
работа над композицией и цветовой гаммой. Параллельный поиск, как правило,
подхватывает дополнительные творческие идеи.
.1 Описание этапов проектирования
Объёмно-планировочное решение
Не стоит забывать, что это не отдельные явления, а части единого образа
дома. При достижении композиционной и цветовой гармонии может проявиться
индивидуальный стиль дома, который мы можем осознать и подчеркнуть.
Планировочное решение. Составим функциональную карту дома.
В этом проекте у нас не перепланировка, а проектирование дома и всех его
зон с нуля. Что дает возможность "покрутить" все комнаты абсолютно
по-разному! Т.е. нет привязки к фановым трубам, их еще нет; нет ограничений с
вентиляционными коллекторами и стоками водоснабжения.
Рассмотрим план дома как целое и как совокупность функциональных зон.
Каждый вариант проигрывается расстановкой мебели и оборудования с учетом
эргономических норм. Эти нормы пригодятся и для проектирования новых коридоров,
дверных проемов, гардеробных и т.д.
Нам надо определить:
· Общественные и приватные зоны (О.: кухня, столовая, гостиная, холл. П.:
спальня родителей, комнаты детей, санузлы, рабочие зоны, биллиардная,
гардеробная.);
· Основные маршруты по дому;
· Организация каждой зоны, ее место и соседство с другими
зонами;
Проектируя функциональные зоны, стоит ориентироваться на ту мебель,
оборудование и другие элементы интерьера, которые составят интерьер этого дома.
Выбор оптимального варианта планировки требует учета всех факторов: от
конструктивных особенностей дома до глубины психологии отношений.
Композиционное решение
Планировочное решение разрабатывается одновременно как с
конструктивно-функциональной, так и с композиционной стороны. Каждая
функциональная зона одновременно является композицией. Композиционное решение можно
увидеть в развертке стен, перспективе, планах полов, мебели и потолков.
Проанализировав архитектуру здания, размеры и пропорции помещения,
находим соответствующие им формы и композиционные приемы. Архитектура и форма
пространства всегда подсказывает направление поиска композиции. Одновременно
определяем организацию пространства, его формы, пропорции и ритмы, которые
близки образам и чувствам заказчиков.
Цветовая гармония дома
С начала своей истории человек использует цвет для того, чтобы пометить
территорию и чтобы украсить окружающее пространство. Цвет представляет собой
мощное средство: он может оживить устаревшее пространство какого-либо дома,
может менять настроение человека и поднимать его жизненный тонус. Цвет и
фактура вещей помогают сделать наш мир прекрасным и восхитительным.
Цвет в интерьере представляет собой простой, эффективный и сравнительно
недорогой способ полностью изменить и оживить любое пространство в доме.
В ходе беседы с клиентами, были определены цвета, которые им нравятся,
настроение и ассоциации, которые они хотели бы воссоздать в своем доме. Так в
гостиной появился красный оттенок кирпича. Хотелось чувства некой
торжественности и возбужденности.
В кухне-столовой напротив, хотелось спокойствия. Жара там будет хватать
от приготовления пищи и от эмоций семьи, поэтому там хотелось чего-то
прохладного, свежего. Поэтому мы остановились на светлом оттенке слоновой
кости. При дневном свете, это помещение будет озаряться солнечным теплом, и
дарить ощущение весеннего настроения! А при вечернем освящении на стенах
красиво будут играть тени камина или огни фонарей. Это придаст помещению особую
атмосферу покоя.
Как уже было сказано выше, настроение спальни особенное. Воздушно белое и
интимное красное.
Цвет ванной заказчики сразу сказали, что хотят оранжевый. Но не полностью
залитую этим цветом, а частично. Т.к. много оранжевого слишком давит.
Скомбинируем оранжевый с белым и получим счастливое утреннее настроение.
Зеленый цвет успокаивающе влияет на нервную систему и зрение, уменьшает
боль, снимает раздражительность, усталость, снижает кровяное давление,
ослабляет мигрень. Замечательный цвет для холла на втором этаже для детей. А
аппликации растительности на стенах этот цвет полностью поддержат.
На основании выбора и с учетом построения цветовой гармонии создадим
палитру из цветов и оттенков, которые мы будем использовать.
Гостиная:
Кухня-столовая:
Спальня:
Ванная:
Детский этаж:
Световой дизайн
Большинство из нас обычно не принимают во внимание эффекты освещения.
Однако освещение может стать единственно важным элементом при создании проекта
интерьера. Проживая большую часть жизни при искусственном освещении, мы часто
не помним об эффектах, связанных с его изменением в течение суток, а так же о
том, как на наше восприятие цвета влияет смена сезонов года.
Искусственный свет входит в нашу жизнь как ее неотъемлемая часть. В
помещениях существует обычно три вида освещения. К первому виду относится освещение
целевое - оно представляет собой сильные потоки света, направленные туда, где
люди работают, готовят еду, читают. Ко второму виду относятся рассеянное
освещение, которое в помещении является основным. Зачастую оно бывает слишком
ярким, поэтому стоит выбирать те приборы, в которых можно установить уровень
освещенности, или настенные смягчающие лампы, или соответствующие световые
приборы, используемые для создания атмосферы, и это освещение обычно бывает
мягким, уютным, интимным.
В проекте были разработаны общие, функциональные и другие виды освещения
дома с учетом функциональных зон, композиции и цветовой гаммы интерьера. (В
разделе форпроекта прилагается план освещения квартиры)
Стиль дома
Стиль по словарю Даля - это образ, вкус. Стиль в нашем понимании это
единство художественного направления, гармоничная совокупность черт.
Избыточное внимание к стилю с самого начала может привести к стилизации.
А это может обернуться вычурностью, надуманностью, китчем. Полностью
пренебрегая стилем, можно совсем уйти в эклектику. Тогда появится опасность
прийти к хаотичному пространству; может "развалиться" композиция и
целостность интерьера. Поэтому на первом этаже в почти объединенном
пространстве кухни-столовой и гостиной, мы, не забывая про желания заказчиков,
остановились на таких стилях, которые в принципе можно соединить. В гостиной
хай-тек, но он в нашем случае не так холоден, чтобы не сочетаться с английским
стилем кухни-столовой. Кирпичная кладка может и смотрится немного агрессивно,
но она сочетается с деревом, преобладающим в кухне-столовой. Плюс цветовая
карта хорошо соединяет два пространства.
.2 Образ дома. Палитра настроения
Заказчики рассказывали про свой дом как про какую-то сказку. Каждая
комната и даже зона была чем-то особенным. Создавала определенное настроение. Кухня-столовая
центральное, главное место в доме. Для хозяев важен и комфорт и уют.
Необыкновенная атмосфера именно чувства семьи. Солнечный, радостный, теплый
день.. или греющий жаром "семейный" очаг. Это все можно выразить в
красках, формах, фактуре, каких-то деталях. Что мы и сделали. Есть и очаг - камин,
и солнечный день - цвет стен, цвет и фактура кухонного гарнитура; семейные
фото. За большим круглым столом будет здорово собираться всей семьей, родней,
друзьями! Кованая люстра создает ощущение некой торжественности и объединяет
всех сидящих за столом своим светом. А странички жизни на стене в столовой
радуют глаз яркими моментами. В минуты уединения с самим собой, или с кем-то
еще тет-а-тет, можно приятно провести время за барной стойкой около камина,
радуя себя горячей чашечкой кофе.
Гостиная - второе по значимости место в доме относительно гостей или отдыха. Эта
"мягка" зона, в плане мебели, предназначена для просмотра теле, видео
или просто для общения. Настроение гостиной было молодежным. Как и полагается
молодой семье. Хотелось чего-то яркого, современного, стильного. Что ж, эти
чувства и будут ведущими. Яркость выразим в текстиле, в красках картин, в
бликах металла, добавив немного эпатажа шкурой на полу.
Спальня - место интимное. Тема деликатная. Как рассказывала заказчица, это ее
мечта, где она сможет наслаждаться отдыхом и погружаться в приятные мысли.
Клиентка рассказывала про вуали, окружающие большую круглую кровать. Которая
парит в воздухе и в тоже время находиться вровень с полом. Что бы было много
подушек и было что-то мягкое и пушистое. Воздушное настроение сразу рисует
светлую палитру. Комнату залитую мерцающим прозрачным светом. Возьмем белый
цвет, а северное солнце поможет выполнить работу мерцания воздуха и дымку
наслаждения. Для него мы специально оставили большие окна в спальне. Ощущение
некой сказки из мечт, а так же некоторую нотку богатого убранства, спальне
придадут кованые элементы с текстурой состаренного золота. Которое тоже будет
мерцать на солнце. Ну и конечно не забудем про вуали и что-то мягкое и
пушистое. Пусть это будет мохнатая шкура в виде покрывала.
Супруг же изъявлял желание, что бы это место оставалось не только для сна
и отдыха. Его желание мы учтем, пользуясь приемами колористки. Добавим к
снежно-белому пространству ярко-красный страстный цвет, использовав его лишь в
деталях. К примеру, на подушках..или постельном. А может быть даже в тяжелых
плотных шторах. Во-первых, плотные шторы хорошо будут скрывать яркое солнце
полярных белых ночей. Во-вторых, поддаст жару в пламенную страсть интимных
отношений.
Ванная. Заказчику хотелось взрыва апельсина! Ну или чего-то такого свежего! Что
бы вот зашел в ванну утром и сразу проснулся. Зимы на севере суровые, ночи
зимой длинные и темные. Все время хочется спать. Все время что-то давит. Вот и
хочется яркого солнышка и свежего настроения по утрам. Что бы на работу
радостнее собиралось.
Оба супруга очень любят оранжевый цвет, введем его в цветовую гамму в
ванной, тем самым задавая солнышко и фреш.
Холл на втором этаже. Второй этаж - детский. Значит, устроим малышам сказку. Дети
пока лишь в перспективе, но когда они появятся, чуть подрастут, они будут
бродить про веселому лесу в поисках приключений! Покорять заросли джунглей,
лазить по скалам и прятаться в домике от чего-то невиданного. Эта игра будет
хорошей поддержкой физической формы малышей. А настроение в холле всегда будет
зеленым и веселым, с голубыми и всегда ясными небесами над головой. Так они
меньше будут скучать по теплому лету в длинных зимних вечерах..
3.3 Подбор мебели, декоративных и отделочных материалов.
Подготовка проектной документации
На третьем этапе проектирования подбирается мебель, декор, отделочные
материалы и готовится проектная документация для строителей.
Подбор мебели, декоративных и отделочных материалов.
Именно мебель и отделочные материалы станут материальным воплощением
образа дома. Выбирать стоит все на основании композиции, палитры и стиля дома.
Подготовка проектной документации.
На этом этапе в проект вносятся необходимые уточнения. После выбора
кафельной плитки создаются чертежи ее раскладки в санузлах, кухне, прихожей,
делается ее детальный проект кухонного фартука и т.д. Эту часть работы лучше
выполнить вместе с дизайнерами тех интерьерных салонов, где будут приобретаться
нужные нам вещи.
Приобретаемые образы мебели и оборудования будут постоянно уточнять проект
по размерам, оттенкам и деталям композиции. Возможно, где-то придется внести
изменения.
Далее начнутся строительно-ремонтные работы. Строительная бригада
приступит к работе, только имея на руках все чертежи, то есть полностью
завершенный проект. Уже на начальном этапе ремонта строителям нужны планы
электрики, данные о сантехнике и др.
Так же необходимо постоянно следить за тем, что бы исполнение
соответствовало проекту.
Цветовое решение
Как утверждают ученые, 90% информации о внешнем мире мы получаем через
глаза. Глаз фиксирует форму и объем предметов, а также цвет. Цвет - это одна из
самых важных характеристик всего виденного нами. Каждый цвет вызывает у
человека цепь ассоциаций, которые влияют не только на его психологическое и
эмоциональное состояние, но и на физиологическое. В одном помещении дышится
легко и свободно, а в некоторых других - стены будто сближаются и давят. Не
последнюю роль в таком восприятии играет и цвет. Поэтому подходить к выбору
цветов для интерьера нужно с особым тщанием. Ведь квартира должна быть
максимально комфортной.
Окрашенные в светлые тона помещения легче содержать в чистоте, а
горизонтальные поверхности мебели должны быть темными, что позволяет легко
заметить на них пыль. Обивка мебели и декоративные ткани должны исключать серые
и бурые цвета, которые производят впечатление недостаточной свежести.
Световой дизайн.
Большинство из нас обычно не принимают во внимание эффекты освещения.
Однако освещение может стать единственно важным элементом при создании проекта
интерьера. Проживая большую часть жизни при искусственном освещении, мы часто
не помним об эффектах, связанных с его изменением в течение суток, а так же о
том, как на наше восприятие цвета влияет смена сезонов года.
Искусственный свет входит в нашу жизнь как ее неотъемлемая часть. В
помещениях существует обычно три вида освещения. К первому виду относится
освещение целевое - оно представляет собой сильные потоки света, направленные
туда, где люди работают, готовят еду, читают. Ко второму виду относятся
рассеянное освещение, которое в помещении является основным. Зачастую оно
бывает слишком ярким, поэтому стоит выбирать те приборы, в которых можно
установить уровень освещенности, или настенные смягчающие лампы, или
соответствующие световые приборы, используемые для создания атмосферы, и это
освещение обычно бывает мягким, уютным, интимным.
В проекте были разработаны общие, функциональные и другие виды освещения
дома с учетом функциональных зон, композиции и цветовой гаммы интерьера. (В
приложении прилагается план освещения дома)
Подбор мебели, декоративных и отделочных материалов. Подготовка проектной
документации.
На третьем этапе проектирования подбирается мебель, декор, отделочные
материалы и готовится проектная документация для строителей.
Подбор мебели, декоративных и отделочных материалов.
Именно мебель и отделочные материалы станут материальным воплощением
образа дома. Выбирать стоит все на основании композиции, палитры и стиля дома.
Подготовка проектной документации.
На этом этапе в проект вносятся необходимые уточнения. После выбора
кафельной плитки создаются чертежи ее раскладки в санузлах, кухне, прихожей,
делается ее детальный проект кухонного фартука и т.д. Эту часть работы лучше
выполнить вместе с дизайнерами тех интерьерных салонов, где будут приобретаться
нужные нам вещи.
Приобретаемые образы мебели и оборудования будут постоянно уточнять
проект по размерам, оттенкам и деталям композиции. Возможно, где-то придется
внести изменения.
Далее начнутся строительно-ремонтные работы. Строительная бригада
приступит к работе, только имея на руках все чертежи, то есть полностью
завершенный проект. Уже на начальном этапе ремонта строителям нужны планы
электрики, данные о сантехнике и др.
Так же необходимо постоянно следить за тем, что бы исполнение
соответствовало проекту.
Заключение
Подведем итоги. Нашей целью стояло обеспечение максимального комфорта в
дизайне дома и его интерьера, создание благоприятной
эмоционально-психологической атмосферы, чувства тепла и защищённости,
безопасности, как для супругов, так и для их детей и родственников, друзей.
Эта цель достигнута. В основе каждого проектного решения лежит глубокое
понимание истинных потребностей клиента, стиля жизни и отношений.
С поставленными социальными задачами справиться было легко. Район, в
котором будет располагаться дом, свободной застройки. И дома присутствуют там
различные - от одноэтажных маленьких деревянных домиков, до 3-х этажных
капитальных домов на двух хозяев. Поэтому этот дом вполне вписывается в пейзаж
данного района.
Функциональные задачи так же были выполнены. Созданы пространства,
способствующее комфортному процессу работы и отдыха. Комфортные места для
работы, оборудование рабочих мест всем необходимым. Оптимальное функциональное
зонирование.
Эргономические нормы соблюдены. Рассчитаны все параметры соответствующие
антропометрическим данным потребителя. Обеспечен тепловой, влажностный,
световой, акустический режим и соблюдение санитарных норм. Зона отдыха и кухня,
рассчитанные по вместительности на всех. Создано оптимальное воздушное
пространство.
Соподчинены пространства, массы и светового потока, соразмерность и
согласованность отдельных элементов структуры. Создан художественный образ
домашнего очага.
Проект исполнен из экологически чистых материалов.
Список использованных источников
. Анна Стармер, Цвет. Энциклопедия. Советы по цветовому
оформлению интерьера вашего дома.- М.: АРТ-РОДНИК, издательство на русском
язык,2007. - С. 256.
2. Е.Ю. Крутских, Д.В. Литвинов, Интерьер вашего дома.
Практичесое руководство.- Екатеринбург: У- Фактория, 2008. - С. 272.
. Дизайн Архитектурной среды: учебник для вузов,
Ефимова и др. М.: Архитектура-С, 2007. - С. 504.
. Дизайн дома и квартиры. Психология интерьера,
Кельмович М.Я., - М.: АСТ: ХРАНИТЕЛЬ; СПб.: Астрель-СПб,2008. - С. 192.
. Практическое пособие по созданию стильных
интерьеров. авт.-сост. А.С. Мурзина - Минск: Харвест,2007. - С. 160.
. Основы эргономики. Человек, пространство, интерьер.
Справочник по проектным нормам. Панеро Дж., Зелник М., - М.: Астрель. АСТ,
2006. - С. 320.
7. Ачкасова Л.Ф. Интерьер и дизайн вашего дома: Новейшие
идеи и советы профессионала. Издательство "Книжный клуб "Клуб
семейного досуга". - М., 2008.
8. Беляева С.Е., Розанов Е.А.специальный рисунок и
художественная графика - М., "Академия" 2008
. Беляева, С.Е. Основы изобразительного искусства и
художественного проектирования: учебник для учащихся нач. проф. Учеб. Заведений
/ С.Е. Беляева.-М.; Издательский центр "Академия",2006.
. Богданович А.Л., Петров В.В. Ваш дом, коттедж,
квартира, дача. - Мн.: Харвест, 2007
. Бурдейный М.А. Малогабаритная квартира: Интерьер,
планировка, мебель. - М., "Мир книги", 2008.
. Горбунов В.В. Стильный интерьер, или как сэкономить
на дизайнере. - М., "Феникс", 2009.
. Денисова О.И.,Костюкова Ю.Ф./Основы изобразительной
грамоты: Методические указания к практическим занятиям по курсу
"Рисунок" для студентов/Кострома/КГУ/2006.
. Жданова, Н.С. Перспектива: учеб. Пособие для студ.
Учреждений сред. Проф. Образовании/Н.С. Жданова.-М.: Гумнит. Изд.центр
"ВЛАДОС",2004
. Интерьер. Цветовые гаммы, которые работают: пер. с
англ. / Энни Слоун. -М.: Астрель, 2005
. Кельмович М.Я. Дизайн дома и квартиры. Психология
интерьера - М.: АСТ: ХРАНИТЕЛЬ - Спб, 2008
. Кимбел Черил Книга об оформлении дома; пер. с англ.
С. Величко. -М.: Астрель: АСТ, 2005
. Клифф С. 1000 идей для дома. -
М.,"Кладезь-Букс",2008.
. Куллен П., Уоррендер К. Философия цвета в интерьере.
- М., "Контэнт", 2008.
. Лоусон Д. Лучшие интерьеры. Гостеприимная атмосфера
вашего дома. - М., "Астрель", 2008.
. Претти Р. Интерьерный дизайн. Лучшие идеи. - М.,
"Эксмо", 2008.
. Энциклопедия. Все о дизайне вашего дома. - М.,
"Астрель", 2009.
Используемые ссылки
1. #"805729.files/image025.jpg">
Рис. 1.

Рис. 3
Рис. 4
Рис. 5
Рис. 6
Рис. 7
Приложение 2
Рис. 1
Рис. 2
Рис. 3