Ремонт карданних передач автомобіля КрАЗ-256
ЗМІСТ
ВСТУП
. ЗАГАЛЬНА ЧАСТИНА
.1 Характеристика типового
підприємства
.2 Характеристика зони
поточного ремонту і ДТЗ
.3 Особливості будови карданної
передачі автомобіля
. ТЕХНОЛОГІЧНИЙ РОЗДІЛ
2.1 Розрахунок річної
виробничої програми автомобільного парку підприємства
2.1.1 Вибір і коригування
нормативів
.1.2 Визначення кількості ТО і
КР автомобілів за цикл
.1.3 Розрахунок коефіцієнтів
технічної готовності і використання автомобілів
.1.4 Визначення річного пробігу
автомобілів
.1.5 Розрахунок переходу коефіцієнта
від циклу до року
.1.6 Визначення кількості ТО і
КР автомобілів за рік
2.1.7 Визначення змінної
програми ТО автомобілів
.1.8 Визначення річного обсягу
робіт з ТО і ремонту автомобілів
2.1.9 Визначення обсягу робіт
по самообслуговуванню автомобільного парку підприємства
2.2 Розрахунок об’єкту
проектування
.2.1 Розподіл обсягу робіт для
визначення розрахункових даних
2.2.2 Розрахунок кількості
робітників
.2.3 Організація робіт в зоні
поточного ремонту і схема технологічного процесу
.2.4 Розробка технологічного
процесу карданних передач
2.2.5 Вибір технологічного
устаткування і оснастики
2.2.6 Розрахунок площі
обґрунтування планувальних рішень
.2.7 Організація робіт в
підрозділі і схема технологічного процесу
.2.8 Організація і схема
управління підрозділом (з використанням ЦУВ)
.2.9 Схема технологічного
процесу виробництва авто підприємства
. КОНСТРУКТОРСЬКА ЧАСТИНА
.1 Аналіз вихідних даних і
розробка конструкції пристрою, його робота
. ОХОРОНА ПРАЦІ
.1 Організація роботи з охорони
праці
4.2 Правила пожежної
та електричної безпеки
ВИСНОВКИ
ПЕРЕЛІК ПОСИЛАНЬ
ДОДАТКИ
ВСТУП
Автомобільний транспорт -
сухопутний, маневрений, швидкісний вид транспорту, що перевозить в основному
термінові і малогабаритні вантажі на невеликі і середні відстані, пасажирів до
аеро-, річкових і морських портів, залізниць. Унаслідок рівнинного рельєфу
склалися сприятливі умови для розвитку автомобільного транспорту. Загальна
довжина автодоріг 170 тис.км, у тому числі з твердим покриттям - 164,2 тис. км.
Слід зазначити, що в сучасному світі виконання задач по перевезенню вантажів
автомобільним транспортом забезпечується не тільки кількістю, але і якістю
рухомого складу автотранспортних підприємств та приватних перевізників.
Справний технічний стан це повна відповідність рухомого складу нормам,
обумовленим правилами технічної експлуатації, і характеризує його
працездатність.
Працездатність автомобіля оцінюється
сукупністю експлуатаційно-технічних якостей: динамічністю, стійкістю,
економічністю, надійністю, довговічністю, керованістю і т.д., які для кожного
автомобіля виражаються конкретними показниками. Щоб працездатність автомобіля в
процесі експлуатації знаходилася на необхідному рівні, значення цих показників
тривалий час повинні мало змінитися в порівнянні з їхніми первісними величинами.
Однак технічний стан автомобіля, як
і всякої іншої машини, у процесі тривалої експлуатації не залишається
незмінними. Він погіршується внаслідок зношування деталей і механізмів, поломок
і інших несправностей, що призводить до погіршення експлуатаційно-технічних
якостей автомобіля.
Зміна зазначених
якостей автомобіля в міру збільшення пробігу може відбуватися також у
результаті недотримання правил технічної експлуатації або технічного
обслуговування автомобіля.Основне призначення транспорту - своєчасне, якісне і
повне задоволення потреб народного господарства і населення у перевезеннях.
Автомобільний
транспорт є найбільш мобільним і універсальним засобом комунікації і посідає
важливе місце в транспортному комплексі України. На його частку припадає понад
80% усіх вантажних і близько 80 % пасажирських перевезень, приблизно 70 %
трудових ресурсів, понад 60 % палив нафтового походження, значна частина
капітальних вкладень і основних виробничих фондів, понад 65 % усіх транспортних
витрат.
Основним засобом зменшення
інтенсивності зношування деталей і механізмів є запобігання несправностей
автомобіля, тобто підтримання його в належному технічному стані, це своєчасне і
високоякісне виконання технічного обслуговування.
Основний документ відповідно до
якого робиться ТО і ремонт на автомобілів при мінімальних витратах на
будівництво виробничої бази для ТО і поточного ремонту, є будівництво й
організація баз централізованого обслуговування і ремонту автомобілів. База
централізованого обслуговування забезпечує ТО і ПР кількох автогосподарств, що
не мають власної виробничої бази. Така форма організації дозволяє
сконцентрувати засоби механізації виробничих процесів, підвищити продуктивність
праці і якість робіт.
Висока якість
роботи авторемонтного підприємства опирається, перш за все, на добре технічне
забезпечення, професіоналізм персоналу автотранспортної організації, продумане
планування самої автотранспортної організації і, звичайно ж, достатню кількість
авторемонтних організацій.
Таким чином, у процесі технічної
підготовки автотранспортних засобів до транспортного процесу забезпечується
їхня надійність і передумови ефективної експлуатації.
. ЗАГАЛЬНИЙ РОЗДІЛ
1.1
Характеристика об’єкту проектування і ДТЗ
Габаритні розміри автомобіля
КРАЗ-256 показані на рисунку 1.1
Рисунок 1.1 - Габаритні розміри
автомобіля КРАЗ-256
Технічна характеристика автомобіля
КРАЗ-256 приведена в таблиці 1.1.
Таблиця 1.1 Технічна характеристика
автомобіля КРАЗ-256
|
№ п/п
|
Показник
|
Одиниці виміру
|
Величина
|
|
1
|
2
|
3
|
4
|
|
1
|
Колісна форма
|
6×4
|
|
2
|
Вантажопідйомність
|
кг
|
10000
|
|
3
|
Максимальна швидкість
|
км / год
|
62
|
|
4
|
Контрольна витрата палива на 100 км
|
л
|
45
|
|
5
|
Гальмівний шлях автомобіля з повним
навантаженням зі швидкості 40 км / год до повної зупинки
|
м
|
20
|
|
6
|
Підвіска
|
|
|
7
|
Передня
|
На двох поздовжніх напівеліптичних ресорах з
двома телескопічними гідравлічними амортизаторами. Кінці ресор закріплені в
гумових подушках
|
|
8
|
Задня
|
Балансирного типу, на двох поздовжніх
напівеліптичних ресорах. Штовхаюче зусилля і реактивні моменти передаються
системою з шести реактивних штанг
|
|
9
|
Двигун
|
ЯМЗ-238
|
|
10
|
Тип двигуна
|
V-подібний, з кутом розвалу 90 °
|
|
11
|
Кількість циліндрів
|
8
|
|
12
|
Порядок роботи циліндрів
|
1-5-4-2-6-3-7-8
|
|
13
|
Діаметр циліндрів
|
мм
|
130
|
|
14
|
Хід поршня
|
мм
|
140
|
|
15
|
Робочий об'єм циліндрів
|
л
|
14,86
|
|
16
|
Максимальна потужність
|
л. с.
|
240
|
|
17
|
Число оборотів колінчастого валу при
максимальній потужності
|
Об/хв
|
2100
|
|
18
|
Максимальний крутний момент
|
кГм
|
87
|
|
19
|
Число оборотів колінчастого валу при
максимальному крутному моменті
|
Об/хв
|
Не більше 1500
|
|
20
|
Камера згоряння
|
Нероздільного типу в поршні
|
|
21
|
Число клапанів на циліндр
|
Один впускний і один випускний
|
|
22
|
Зчеплення
|
Дводискове, сухе, з периферійними нажимними
пружинами
|
|
23
|
Коробка передач ЯМЗ-238К
|
Механічна, п'ятиступінчаста з синхронізаторами
на другій, третій, четвертій і п'ятій передачах
|
|
24
|
Передаточні числа коробки передач
|
|
|
25
|
Перша передача
|
6,17
|
|
26
|
Друга передача
|
3,40
|
|
27
|
Третя передача
|
1,79
|
|
28
|
Четверта передача
|
1,00
|
|
29
|
П’ята передача
|
0,78
|
|
30
|
Задній хід
|
6,69
|
|
31
|
Карданна передача
|
Відкрита, з трубчастими карданними валами,на
карданах встановлені голчасті підшипники. У лінії приводу заднього моста
встановлено проміжну опору
|
|
32
|
Роздавальна коробка
|
Механічна, складається з двоступеневої
додаткової коробки і роздавальної коробки з міжосьовим диференціалом в
приводі до задніх мостів. На автомобілі-самоскиді від роздавальної коробки,
через коробку відбору потужності, приводиться в дію масляний насос підйомного
механізму платформи
|
|
Передаточні числа роздавальної коробки
|
|
|
33
|
Вища передача
|
1,07
|
|
34
|
Нижча передача
|
1,13
|
|
35
|
Ведучі мости
|
Головні передачі подвійні з конічними
шестернями зі спіральними зубами
|
|
36
|
Передаточне число головних передач
|
8,21
|
|
37
|
Диференціал
|
Конічний з чотирма сателітами
|
|
38
|
Півосі
|
повністю розвантажені
|
|
39
|
Колісна передача
|
Циліндричні прямозубі шестерні
|
|
40
|
Тип рульового механізму
|
Черв'як з боковим сектором
|
|
41
|
Передаточне число
|
21,5
|
|
42
|
Підсилювач рульового керування
|
Пневматичний
|
|
43
|
Тип гальмівної системи
|
Барабанного типу
|
|
44
|
Привід гальм
|
Пневматичний
|
|
45
|
Стоянкове
|
Барабанного типу з механічним приводом
|
|
|
|
|
|
|
1.2
Особливості будови агрегату, вузла
Карданна передача автомобіля
КРАЗ-256 показана на рисунку 1.2
Рисунок 1.2 - Карданна передача
автомобіля КРАЗ-256:
- ковзаюча вилка; 2 - шліцевий
кінець карданного валу; 3 - труба карданного валу; 4 - вилка; 5 -
прес-маслянка; 6 - ущільнювальне кільце; 7-фланець; 8 - зовнішній сальник; 9 -
внутрішній сальник; 10 - підшипник ; 11 - вал проміжної опори; 12-пробка
заливного отвору оливи проміжної опори; 13 - сапун проміжної опори; 14 - корпус
проміжної опори; 15 - кришка; 16 - пробка зливного отвору масла проміжної
опори; 17 - пробка контрольного отвору рівня масла в проміжній опорі; 18 -
болт; 19 - стопорна пластина; 20-кришка підшипника хрестовини; 21-голчастий
підшипник хрестовини; 22 - сальник підшипника хрестовини; 23 - прес -
маслянка;24 - хрестовина; 25 - сапун хрестовини; 26 - фланець-вилка; 27 -
ковзаюча вилка основного проміжного карданного вала; 28 - шліцевий вал
основного проміжного карданного вала
Загальний вигляд карданної передачі
автомобіля КРАЗ-256 показаний на рисунку 1.3
Рисунок 1.3 - Загальний вигляд
карданної передачі автомобіля КРАЗ-256:
- карданний вал проміжного моста; 2,
7 і 9 - ковзаючі вилки; 3 - карданний вал заднього моста; 4 - кронштейн
проміжної опори; 5 - вал проміжної опори;
- проміжний карданний вал заднього
моста; 8 - основний проміжний карданний вал
. ТЕХНОЛОГІЧНИЙ РОЗДІЛ
автомобіль
ремонт поточний пробіг
2.1
Розрахунок річної виробничої програми автомобільного парку підприємства
Виробнича програма
АТП по ТО і ремонту характеризується числом технічних обслуговувань, які
плануються на добу, рік, цикл. Їхнє виконання у встановленому обсязі забезпечує
високу технічну готовність рухомого складу і зменшує потреби у ремонтах. ТО
виконується як без розбирання і зняття агрегатів і вузлів з автомобіля, так із
розбиранням і зняттям. Окремі вузли знімають з автомобіля для їхнього контролю
на спеціальних стендах і приладах в тому випадку, коли не можна переконатися в
повній їхній справності.
Виробнича програма
є основою для визначення річних обсягів робіт по ТО і ремонту необхідної
кількості виробничого персоналу, вибору методу ТО і ремонту автомобілів і
технологічного устаткування зон і ремонтних дільниць АТП.
ТО рухомого складу
по періодичності, переліку і трудомісткості виконуваних робіт поділяється на:
- щоденне
технічне обслуговування ( ЩО );
- перше
технічне обслуговування ( ТО-1 );
друге
технічне обслуговування ( ТО-2 );
сезонне
обслуговування ( СО );
поточний
ремонт ( ПР );
ЩО автомобілів
призначено для загального контролю, забезпечення безпеки руху, належного
зовнішнього вигляду, заправлення пальним, мастильними матеріалами,
охолоджувальною рідиною, мийних робіт, а для деяких видів рухомого складу й
санітарної обробки кузова. ЩО виконують перед виїздом автомобіля на лінію та
після закінчення роботи й повернення в АТП.
Основним
призначенням ТО-1 і ТО-2 автомобілів є зменшення інтенсивності спрацювання
деталей та вузлів, виявлення і попередження відмов і несправностей шляхом
своєчасного виконання контрольно-діагностичних, кріпильних, регулювальних,
мастильних та інших робіт. ТО має забезпечувати безвідмовну роботу рухомого
складу в межах встановлених періодичностей по пробігах, включеним в
обов’язковий перелік операцій. ТО-1 і ТО-2 виконується
через певний
пробіг.
СО проводиться два
рази на рік і призначене для підготовки рухомого складу до експлуатації в
холодну і теплу пору року і, як правило його виконання суміщається з виконанням
ТО-1 і ТО-2.
ПР виконується за
потребою, число впливів не планується. Оскільки виробнича програма в АТП
розраховується на рік, то в даному курсовому проекті доцільно виробничу
програму розраховувати на цикл. При цьому під циклом розуміють пробіг від
початку експлуатації нового автомобіля до капітального ремонту ( КР ).
Цикловий метод
розрахунку виробничої програми передбачає види і корегування нормативів
періодичності ТО-1, ТО-2, пробігу до КР, розрахунок кількості ТО, ПР, КР за
циклом, визначення коефіцієнту переходу від циклу до року і на його основі
перерахунок кількості ТО і ПР на рік. Кількість ПР визначається із розрахунку
на 1000 км. пробігу.
КР призначений для
відновлення працездатності автомобілів і агрегатів, забезпечення пробігу не
менше 80% від норми пробігу нових автомобілів і агрегатів. За термін служби
автомобіль піддається як правило одному КР, не враховуючи КР вузлів та
агрегатів до і після КР автомобіля. Виробнича програма є основою для визначення
річних обсягів робіт по ТО і ПР автомобілів, необхідної кількості виробничого
персоналу,вибору методу ТО і ПР, вибору устаткування та обладнання для
ремонтної зони та виробничих дільниць АТП.
Вихідні дані для
розрахунку виробничої програми приведені в таблиці 2.1
Таблиця 2.1 Вихідні
дані виробничої програми
|
Марка ДТЗ
|
Аі, авт.
|
Lсд , км
|
Умови експлуатації і режим роботи ДТЗ
|
|
|
|
КУЕ
|
Др., ум
|
Тн., год.
|
|
КРАЗ-256
|
396
|
178
|
3
|
257
|
12
|
При розрахунках приймаємо наступні
позначення:
Аі - спискова
кількість автомобілів;сд - середньодобовий пробіг автомобілів;- пробіг до
ремонту або ТО автомобілів;- число ТО, ПР рухомого складу за цикл або за рік;
Д - число днів
простою одиниці рухомого складу в ТО або ремонті;
Т - трудомісткість
виконання ТО і ремонту;
αТ
- коефіцієнт технічної готовності;
αп
- коефіцієнт випуску автомобілів .
2.1.1
Вибір і корегування нормативів
Згідно «Положення
про ТО і ремонт рухомого складу автомобільного транспорту» періодичність ТО-1 і
ТО-2 для автомобіля КРАЗ-256 становить:
;
де
-
нормативна періодичність до ТО-1;
.
де
-
нормативна періодичність до ТО-2;
Враховуючи трудомісткість
технічних впливів і ПР становить:
( 2.1 )
де
-
трудомісткість виконання 1-го ЩО;
- коефіцієнт механізації робіт ЩО;
, (2.2)
де М - доля механізованих
робіт в ЩО (%);
Приймаємо М = 28,2 %;
ТТО-1 =
2,6(люд·год);
ТТО-2 =
10,5 (люд·год);
ТПР =
1,8 (люд·год).
де ТТО-1
- трудомісткість виконання одного ТО-1;
ТТО-2 -
нормативна трудомісткість виконання одного ТО-2;
ТПР -
питома трудомісткість поточного ремонту;
Сезонне
обслуговування становить 20% від трудомісткості ТО-2:
ТСО =
0,2 ∙ ТТО-2 ,люд·год; (2.3)
ТСО =
0,2 ∙ 10,5 = 2,1 (люд·год/1000 км).
Так, як в
“Положенні 98” не поданий пробіг до КР, то використовуємо нормативи КР ОНТП -
0186, пробіг до КР автомобіля становить:
= 350000 (км)
де
-
нормативний пробіг автомобіля до КР;
Час простою автомобіля в ТО і
ремонті становить:
Д ТО;ПР=0,45 (днів/1000
км);
ДКР =
+
ДД , днів; ( 2.4 )
де Д ТО; ПР - час простою
автомобіля в ТО і ПР;
-
нормативний час простою автомобіля в КР;
ДД - час доставку
автомобіля на АРЗ і в зворотному напрямку;
= 22 (дні);
ДД = 0,2 ∙
,
днів; ( 2.5 )
ДД = 0,2 ∙ 22 = 4,4
(днів);
ДКР = 22
+ 4,4 = 26,4 (днів).
Періодичність ТО може бути зменшена
в залежності від умов експлуатації ДТЗ.
Згідно із завданням КП автомобіль
підприємства, що експлуатується в III категорії умов експлуатації, то
відкореговані нормативи періодичності пробігу до КР становлять:
’ТО-1 = LТО-1 ·
К ,км; ( 2.6 )
де К - коефіцієнт коригування
нормативу в залежності від КУЕ ДТЗ;
К = 0,8;’ТО-1 = 4000 ∙
0,8 = 3200 (км);
’ТО-2 = LТО-2 ·
К ,км; ( 2.7 )
’ТО-2 = 16000 ∙ 0,8
= 12800 (км);
’КР =
·
К ,км; ( 2.8 )
’КР = 350000 ∙ 0,8
= 280000 (км).
Відкориговані величини періодичності
ТО і пробігу до КР перевіряється в кратності середньодобового пробігу (Lсд)
з наступним заокругленням до цілих сотих, при чому кожне допустиме відхилення
±10%, тобто необхідно визначити кратні числа а, b, c.
( 2.9 )
;
Звідси відкоригована
періодичність пробігу до ТО-1 з врахуванням середньодобового пробігу становить:
ТО-1 =
178∙17,98 = 3200,44(км);
Аналогічно визначаємо
відкореговану періодичність до ТО-2 і пробігу до КР;
; ( 2.10 )
;
ТО-2 =LТО-1
·
,км; ( 2.11 )
ТО-2 =3200.44·4.0=12801.76
(км);
; ( 2.12 )
;
( 2.13 )
де
-
відкорегована величина;
12801,76
21,88
= 280102,5 (км).
2.1.2
Визначення кількості ТО і КР за цикл
Визначаємо
кількість ТО за допомогою формул:
( 2.14 )
де
-
відкорегована величина за цикл;КР - періодичність до КР;
,ремонт;
( 2.15 )
( 2.16 )
Кількість ЩО за цикл
визначається з розрахунку того, що прибирально - мийні роботи рекомендується
проводити кожного дня в незмінний час;
( 2.17 )
2.1.3
Розрахунок коефіцієнтів технічної готовності і використання автомобілів
Коефіцієнт технічної готовності
визначаємо за допомогою формули:
( 2.18 )
де
- кількість
днів експлуатації автомобілів за цикл;
- кількість днів простою автомобіля
в ТО і ремонті за цикл;
В розрахунку КП прийнято, що
кількість днів експлуатації автомобілів за цикл дорівнює кількості ЩО за цикл;
( 2.19 )
де
-
коефіцієнт зменшення простою в ТО-2 і ПР за рахунок часткового виконання робіт
в між змінний час;
Приймаємо
= 0,85;
0.92.
Коефіцієнт використання
автомобілів визначаємо за формулою:
; ( 2.20 )
де
- кількість
робочих днів за рік;
- кількість календарних днів;
Приймаємо
=
365 днів;
- коефіцієнт простоїв автомобіля з
експлуатаційних причин;
Приймаємо КЗВ =
0,93…0,95;
.
2.1.4
Визначення річного пробігу автомобілів
( 2.21 )
де
- наявність
автомобілів в АТП;
= 365·0,6·178·396=15436872 (км.).
2.1.5
Розрахунок коефіцієнту переходу від циклу до року
Періодичну програму
в АТП розраховують на рік. Для ТО вона визначається як добуток кількості
впливів даного виду ТО на трудомісткість даного впливу.
Коефіцієнт переходу
від циклу до року визначаємо за формулою:
; ( 2.22)
де ηР -
коефіцієнт переходу від циклу до року.
2.1.6
Визначення кількості ТО і КР автомобілів за рік
Визначаємо
кількість КР за рік:
( 2.23 )
Визначаємо
кількість ТО за рік:
( 2.24 )
( 2.25 )
( 2.26 )
( 2.27 )
= 2 ·396 = 792 (обсл);
2.1.7
Визначення змінної програми ТО автомобілів
Змінну програму з ТО
необхідно розрахувати для визначення методу ТО автомобіля.
Визначаємо змінну програму
ЩО:
( 2.28 )
де
- кількість
днів роботи зони ЩО в році;
с- кількість змін;
(2.29 )
де
− кількість днів роботи зони ТО-1 в році;
(обсл);
( 2.30 )
де
− кількість днів роботи зони ТО-2 в році;
(обсл).
Приймаємо 1 обслуговування
2.1.8
Визначення річного обсягу робіт з ТО і ремонту автомобілів
Визначаємо річний обсяг робіт
з ТО і ремонту ДТЗ:
( 2.31 )
( 2.32 )
( 2.33 )
( 2.34 )
Визначаємо трудомісткість річного
обсягу робіт ПР:
( 2.35 )
Результати
розрахунків зведені в таблиці 2.2
Таблиця 2.2
Результати річного обсягу робіт
|
Вид робіт
|
Позначення
|
Кількість за рік, або річний пробіг автомобіля
|
Трудомісткість робіт (люд·год)
|
Річний обсяг робіт в (люд·год)
|
|
ЩО
|
87240,40,5534896,2
|
|
|
|
|
ТО-1
|
36383,9114224,58
|
|
|
|
|
ТО-2
|
115916,6719320,53
|
|
|
|
|
СО
|
7923,332637,36
|
|
|
|
|
ПР
|
154368729,77150818,2
|
|
|
|
|
Всього
|
--2218996,87
|
|
|
|
2.1.9
Визначення обсягу робіт по самообслуговуванню автомобільного парку підприємства
Крім робіт по
обслуговуванню і ремонту ДТЗ виконуються також допоміжні роботи, обсяг яких
становить 20-30% від загального обсягу робіт

; ( 2.36 )

(люд·год).
Розподіл допоміжних робіт на АТП
поданий в таблиці 2.3
Таблиця 2.3 Розподіл допоміжних робіт
на АТП
|
№ п/п
|
Найменування робіт
|
Трудомісткість
|
|
|
%
|
люд/год
|
|
1
|
Самообслуговування АТП
|
45
|
199709,7
|
|
2
|
Транспортні
|
10
|
44379,94
|
|
3
|
Перегін автомобілів
|
15
|
66569,91
|
|
4
|
Прийом і зберігання видача матеріальних
цінностей
|
10
|
44379,94
|
|
5
|
Прибирання території і приміщення
|
20
|
88759,9
|
|
Всього
|
100
|
443799,4
|
Роботи по
обслуговуванню в АТП проводяться відділом головного механіка.
Розподіл робіт по самообслуговуванню
приведений в таблиці 2.4
Таблиця 2.4 Розподіл робіт по
самообслуговуванню
|
№ п/п
|
Назва робіт
|
Трудомісткість
|
|
|
%
|
люд/год
|
|
1
|
Електротехнічні
|
25
|
49927,4
|
|
2
|
Механічні
|
10
|
19970,9
|
|
3
|
Слюсарні
|
16
|
31953,6
|
|
4
|
Ковальські
|
2
|
3994,2
|
|
5
|
Зварювальні
|
4
|
7988,4
|
|
6
|
Бляхарські
|
4
|
7988,4
|
|
7
|
Мідницькі
|
1
|
1997,1
|
|
8
|
Трубопровідні
|
22
|
43936,1
|
|
9
|
Деревообробні
|
16
|
31953,6
|
|
Всього
|
100
|
199709,7
|
2.2
Розрахунок об’єкту проектування
.2.1
Розподіл обсягу робіт для визначення розрахункових даних
Розподіл обсягу робіт поточного
ремонту поданий в таблиці 2.5
Таблиця 2.5 Розподіл обсягу робіт
поточного ремонту
|
№
|
Найменування робіт
|
%
|
Трудомісткість
|
|
Постові роботи
|
-
|
-
|
|
Всього
|
50
|
75409,1
|
|
1
|
Агрегатні
|
18
|
2714727,6
|
|
2
|
Слюсарно-механічні
|
10
|
1508182
|
|
3
|
Електричні
|
5
|
754091
|
|
4
|
Акумуляторні
|
2
|
301636,4
|
|
5
|
Ремонт системи живлення
|
4
|
603272,8
|
|
6
|
Шиноремонтні
|
1
|
150818,2
|
|
7
|
Вулканізаційні
|
1
|
150818,2
|
|
8
|
Ковальсько-ресорні
|
3
|
452454,6
|
|
9
|
Мідницькі
|
2
|
301636,4
|
|
10
|
Зварювальні
|
1
|
150818,2
|
|
11
|
Бляхарські
|
1
|
150818,2
|
|
12
|
Арматурні
|
1
|
150818,2
|
|
13
|
Оббивні
|
1
|
150818,2
|
|
Всього
|
50
|
75409,1
|
|
Всього
|
100
|
150818,2
|
Визначаємо річну трудомісткість
робіт по відділенню:
(2.37)
де
- доля
трудомісткості робіт ПР, яка припадає на відділення
2.2.2
Розрахунок кількості робітників
До виробничих робітників
відносяться робітники різних зон і відділень, які безпосередньо виконують
роботи по ТО і ПР рухомого складу. При такому розрахунку розрізняють
технологічне і штатне число робітників. При розрахунку кількості робітників
відділення визначають технологічно необхідну і штатну кількість робітників. Їх
визначаємо за формулою:
Т =
(2.38)
де ФРМ - річний
виробничий фонд часу робочого місця при однозмінній роботі.
Визначаємо річний виробничий
виробничий фонд часу для шестиденного робочого тижня:
ФРМ = ТЗМ
·( ДК - ДВ - ДСВ ) - (ДПС · 1 + ДСВ
· 2); ( 2.39 )
де ТЗМ - час
робочої зміни ;
ДВ - кількість
вихідних днів в році;
ДСВ - кількість
святкових і релігійних днів;
ДПС -
передсвяткові дні скороченні на 1 годину;
ДК - кількість
календарних днів в році;
ДС - кількість
суботніх днів які скорочені на 2 години;
ТЗМ = 7 год.;
ДВ = 107 днів.;
ДСВ = 7 днів.;
ДПС = 7 днів.;
ДК = 365 днів.;
ДС = 52 днів;
ФРМ = 7 ·(365 -
107 - 7 ) - ( 7 · 1 + 7 · 2 ) = 1736 (год);Т =
=15,6(робітників).
Приймаємо PТ =16
робітників
Визначаємо штатну кількість
робітників:
ШТ =
(
2.40 )
де ФШТ - річний
виробничий час штатного робітника;
ФШТ = ФРМ
- tвідп - tпп ,год; ( 2.41 )
де
- втрата
часу по поважним причинахвідп - час основного відпуску працівника
пп =
0,04 · ( ФРМ - tвідп ),год; ( 2.42 )відп= ДВІДП·∙ТЗМ
,год; ( 2.43 )
де ДВІДП -
кількість днів відпустки робітника
ДВІДП =24(дні)відп
= 24·7=168 (год)пп = 0,04 · ( 1736 - 168 )=62,7(год)
ФШТ = 1736 - 168-
62,7=1505,3(год)ШТ =
=18,03 (робітників).
Приймаємо 18 робітників
2.2.3
Організація робіт в агрегатному відділенні і схема технологічного процесу
При попаданні автомобіля в
агрегатне відділення проводять такі роботи: зовнішнє миття вузлів і агрегатів,
розбирання, мийка деталей, дефектація. Після чого деталі, які потребують
ремонту, поступають в ремонт, а не придатні до подальшої експлуатації деталі
вибраковують. Далі проводиться збирання вузлів і агрегатів , під час якого
вибракуванні деталі замінюються новими. Далі вузли і агрегати проходять
контроль і обкатку, після чого їх передають на зберігання.
Схема організації
технологічного процесу ремонту карданної передачі показана на рисунку 2.1
|
Розбирання на вузли і деталі
|
|
Не придатні деталі
|
|
Дефектування деталей
|
|
Придатні деталі
|
|
Брухт
|
|
Деталі які потрібно ремонтувати
|
|
Комплектування
|
|
Ремонт деталей
|
|
Деталі із ремонту
|
|
Збирання
|
|
Нові деталі
|
Рисунок 2.1 - Схема організації
технологічного процесу ремонту карданної передачі
2.2.4
Розробка технологічного процесу ПР карданної передачі
Карданна передача складається з
чотирьох карданних валів і проміжної опори. Всі карданні вали, крім основного,
розташованого між коробкою передач і роздавальною коробкою, однакові за
конструкцією і відрізняються один від одного довжиною труб.
Зміна робочої довжини карданного
вала при русі автомобіля забезпечується шліцами, виконаними на ковзній вилці і
шліцевому кінці валу. Утримання мастила в шліцевому з'єднанні досягається
ущільнювальним кільцем, яке притискається до торця вилки обоймою.
Всі шарнірні з'єднання карданних
валів однакові за конструкцією, кожен вал складається з ковзної або приварної
вилки, фланця-вилки і хрестовини, встановленої у вушках вилок на голчастих
підшипниках. Ущільнення підшипників шарнірів забезпечується сальником і
торцевим ущільненням.
Проміжна опора призначена для
підвіски карданного валу заднього мосту і складається з валу (встановленого на
двох підшипниках) і фланців. До фланця проміжної опори приварені відбивачі, що
оберігають від проникнення бруду через сальники всередину опори.
У хрестовині не встановлюється
запобіжний клапан (сапун), тому нагнітати мастило через маслянку необхідно до
тих пір, поки свіже мастило не з'явиться з-під торцевого гумового ущільнення
шипів хрестовини.
Перевірку кріплення фланців
карданної передачі на шліцевих кінцях вихідних валів агрегатів трансмісії
рекомендується виконувати в наступному порядку:
· встановити
автомобіль на оглядовій ямі або естакаді і підкласти упори під колеса;
· відпустити
стоянкове гальмо, встановити важелі роздавальної коробки і коробки передач у
нейтральне положення і розблокувати міжосьовий диференціал;
· зусиллями обох рук
похитати за фланець в поздовжньому і поперечному напрямках. При наявності
відчутного люфту слід підтягнути гайки кріплення фланців, для чого від'єднати
відповідний кінець карданного вала, розшплінтувати гайку кріплення фланця і
затягнути її до упора, потім знову зашплінтувати. Відпускати гайку для
поєднання прорізи з отвором у валу не допускається.
Складові частини карданних валів
показано на рисунку 2.2
Рисунок 2.2 - Складові частини
карданного валу:
- кришка голчастого підшипника; 2 -
штопорна пластина; 3 - болт; 4 - хрестовина; 5 - сполучний болт; 6 - торцевий
сальник комбінованого ущільнення голчастого підшипника; 7-стакан підшипника; 8
- шліцеве з'єднання.
Підшипники карданних валів перед
зняттям витримуються разом з шарніром в бензині протягом 30 хв. Після чого
відгинається стопорна пластина, знімаються болти і опорні пластини
фланця-вилки. Підшипник знімається знімачем И-801.33.000 наступним чином.
Вкручуються болти 2 знімача в різьбові отвори вилки 1. Упираючись упорною
шайбою 3 знімача в підшипник, вкручується гвинт 4 в траверс 5 до випресовки
суміжного підшипника на 15-20 мм. Виступаюча частина обертається смужкою шкурки
підшипника і виймається з вилки. Таким же чином знімається другий підшипник.
Для зняття хрестовини шарніра необхідно зняти підшипники і сальники торцевих
ущільнювачів вилки валу.
Зняття підшипника хрестовини
карданного валу знімачем И-801.33.000 показано на рисунку 2.3
Рисунок 2.3- Зняття підшипника
хрестовини карданного валу знімачем И-801.33.000: 1 - вилка кардана; 2 - болт
знімача; 3 - упорний наконечник гвинта; 4 - гвинт знімача; 5 - траверс знімача;
6 - підшипник хрестовини; 7 - хрестовина.
Після розбирання карданних валів
деталі піддаються миттю і дефектації.
Несправностями карданних валів є
забоїни і задирки на шліцевому кінці і вилці, значні ушкодження у вигляді
тріщин, які потребують відновлення або заміни деталі, вм'ятини та пробоїни на
трубі карданного валу, погнутість валу, порушення цілісності зварювальних швів,
пошкодження різьби в отворах вилки під болти кріплення кришок або опорних
пластин підшипників, скручування труби валу, знос внутрішніх поверхонь під
голчасті підшипники в вилці, погнутість валу і щік вилок.
Можливі дефекти карданних валів і
способи їх усунення наведені в таблиці 2.6
Таблиця 2.6 Дефекти карданних валів
і способи їх усунення
|
Дефект
|
Розміри, допустимі без ремонту, не більше
|
Спосіб усунення дефектів
|
|
Скручування труби валу
|
3 °
|
Заміна
|
|
Знос внутрішніх циліндричних поверхонь під
підшипники в вилці карданного валу
|
0,02 мм
|
>
|
|
Зміна розміру між щоками вилки карданного валу
(погнутість вилок)
|
0,20 мм
|
Правка на пресі
|
|
Погнутість валу
|
Радіальне биття не більше 0,80 мм
|
>
|
Скручування труби карданного валу
встановлюється шляхом визначення відхилення положення осей вилок кардана від
площини їх розташування. При скручуванні труби більше 3 ° карданний вал
підлягає заміні.
Погнутість валу визначається після
його встановлення на пристосуванні. Погнутість валу допускається не більше 0,80
мм. Вал, що має погнутість більше допустимої величини, правиться на пресі. При
неможливості виправки погнутості вал підлягає заміні.
При наявності тріщин, а також при
зносі шліців по ширині 0,2 мм поступають таким чином. При відсутності тріщин і
вм'ятин на трубі і великої погнутості зношені шліци відновлюють автоматичним
наплавленням під шаром флюсу, а в разі відсутності необхідного обладнання -
ручним наплавленням електродами типу У-340пб. У разі ж наявності тріщин на
шліцевому кінці і вилці останні необхідно замінити. Для цієї мети деталь
закріплюють у чотирьохкулачковому патроні токарно-гвинторізного верстата, що
задовольняє габарити деталі, підтискають центром задньої бабки і, підтримуючи
люнетом, виробляють сточування зварювальних швів з утворенням фасок під кутом
45 ° (0,788 рад) на буртиках шліцевого кінця і вилки, 60 ° (1,05 рад) - на
буртиках труби. За допомогою гідравлічного преса випресовуєются шліцевий кінець
і вилку з труби.
Торці труби зачищають під заварку,
після чого запресовують шліцевий кінець і нову вилку в трубу до упору.
Шліцевий кінець прихоплюють до труби
у шести діаметрально протилежних місцях електродами УОНИ-13/55 за допомогою
дуги постійного струму при зворотній полярності, після чого приварюють шліцевий
кінець до труби по колу, з поворотом деталі під час зварювання. Після видалення
шлаку і бризок та перевірки зварювального шва виробляють правку деталі на
плиті, домагаючись, щоб биття валу було не більше 1,0 мм.
У тій же послідовності проводиться
приварювання вилки до труби,і наступна правка і контроль валу
Після зварювання деталь очищають від
бризок металу і шлаку за допомогою сталевої щітки і зубила, а зварювальний шов
зачищають шліфувальним колом зернистістю 16-24, що приводиться в обертання
шліфувальною машинкою.
Після зачистки швів необхідно вал
перевірити на биття, і при необхідності виправити. Відновлений вал слід піддати
балансуванню з витримуванням величини дисбалансу згідно з даними технічної
документації.
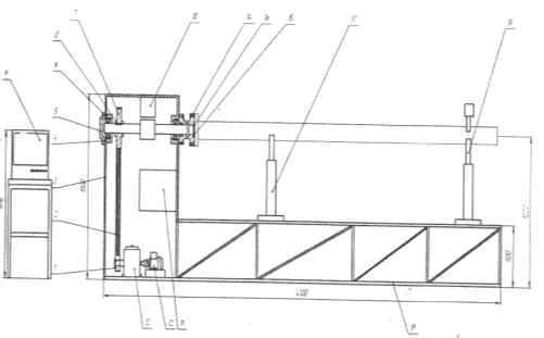
Стенд для балансування карданних
валів показано на рисунку 2.4
Рисунок 2.4 - Стенд для балансування
карданних валів
- ведучий шків; 2 - пасова передача;
3 - корпус; 4 - гвинт;5-кришка; 6 - підшипник; 7 - ведений шків; 8 - шпонка; 9
- електронне табло; 10 - блок вимірної апаратури; 11 - блок апаратури; 12 -
електродвигун; 13 - редуктор; 14 - фланець; 15 - пластина; 16 - фланець
карданного вала; 17 - діагностувальна опора; 18 - задня призма; 19 - рама.
Для визначення дисбалансу карданного
вала необхідно встановити його на
стенд для балансування карданних валів. Спочатку встановити вал на передню
опору з'єднати болтами фланець стенда з фланцем карданного вала і зафіксувати в
задній призмі. Ввести довжину і діаметр карданного вала і запустити стенд. При
обертанні балансованого вала виникають відцентрові сили, які передаюся на вал
стенда, де сили і місце дисбалансу визначає блок вимірної апаратури. А місце
дисбалансу визначає діагностувальна опора,перемішаючись по довжині осі деталі.
Дисбаланс не повинен перевищувати 65 Гсм, якшо він більший то необхідно
балансувати карданний вал за допомогою пластин, які приварюють на ковзній
вилці.
Ковзні вилки карданних валів
виготовляються зі сталі 45 твердість вилок HВ 229-268, 207-241. Шліцева і
циліндрична частини піддаються гартуванню.
У вилках карданних валів мають місце
забоїни і задирки на площині прилягання пластин підшипників до вилках,
пошкодження різьби в отворах під болти кріплення опорних пластин підшипника,
різьби під маслянку, знос шліцьових канавок і отворів під підшипники. При
зазначених несправностях вилки карданних валів піддаються відновленню. Способи
відновлення ковзних вилок розберемо на прикладі вилки автомобіля.
Дефекти ковзної вилки показані на
рисунку 2.5
Рисунок 2.5 - Дефекти ковзної вилки
,7 - забоїни і задирки на торцях;
2,6 - зношені отвори під кільця голчастих підшипників; 3 - зрив або знос різьби
в отворі; 4 - спрацювання шліців; 5 - зношена або зірвана різьба в отворі під
маслянку.
Забоїни і задирки на торцях 1 і 7
під опорні пластини зачищаються напилком. Забоїни на різьбі в отворах 3 під
болти кріплення опорних пластин, під маслянку 5 усувають прогоном різьби
мітчиком М6х1,0
Зрив або знос різьби в отворах 3 під
болти кріплення опорних пластин усувається нарізуванням різьби ремонтного
розміру. З цією метою різьбові отвори зі зношеною різьбою розсвердлюють до Ø
6,7 мм, зенкером під кутом 90 ° (1,57 радий) на
глибину 1 мм, після чого нарізають різьбу М8. Отвір 5 із зношеної або зірваної
різьби під маслянку заглушають і нарізають різьбу в новому місці зі зміщенням
по колу на 180 °. Для установки заглушки різьби в отворі 5 поглиблюють мітчиком
М6 до утворення профілю нитки, нарізають на прутки Ø
6-7 мм різьби М6 для заглушки, ввертають заглушку в
отвір, відрізають виступаючий кінець, розклепують торець заглушки і запилюють
врівень з поверхнею деталі. Після розмітки і накернювання центру отвори
свердлять отвори Ø
4,6 мм на прохід, а потім нарізують різьбу М6.
Зрив або знос різьби усувається
нарізуванням різьби ремонтного розміру. Шліцьові западини, зношені по ширині до
розміру більш 3,58 мм, відновлюють протягуванням до розміру 3,75-3,77.
Пошкоджену заглушку заміняють новою, приварюючи її за місцем. Отвори 2, під
кільця голчастих підшипників, зношені до розміру більш 35,07 мм, відновлюються
наплавленням з наступною обробкою. Перед наплавленням поверхню отворів очищають
від жиру і слідів корозії, а різьбові отвори заглушають мокрим азбестом.
Внутрішні поверхні отворів 2, 6 наплавляють до Ø
30-32 мм електродами УОНИ-13/66 при допомозі дуги
постійного струму при зворотній полярності.
Розташування дефектів на карданному
валі показано на рисунку 2.6
Рисунок 2.6 - Розташування дефектів
на карданному валі:
- труба карданного валу; 2,4 -
посадкові отвори під підшипники в вилках карданного валу; 3,5 - вилки
карданного валу; 6 - сполучна втулка вилки кардана; 7 - зварне з'єднання труби
кардана з втулкою вилки; d0 - діаметр отвору під підшипники ; LT -
відстань між осями вилок кардана; П - погнутість і скручування труби карданного
валу; Вм - вм'ятини на трубі карданного валу; i - знос отворів під підшипники
хрестовин; В1, В2 - габаритні розміри вилки кардана.
Хрестовини кардана виготовлені зі
сталі 18ХГТ і мають твердість НRС 58-г64.
Хрестовини можуть мати такі дефекти:
знос торцевих і зовнішніх поверхонь шипів, їх тріщини і обломи.
Відновлення зношених шипів
хрестовини кардана раніше вироблялося переважно напресування втулок. Але з
розвитком електроімпульсної наплавлення відновлення шипів ведеться цим способом
або наплавленням у середовищі вуглекислого газу. Наплавлення проводиться дротом
ОВС діаметром 1,6-1 / 8 мм.
Шліфування ведеться під початкові
розміри. При необхідності перед I шліфуванням здійснюється заправлення центрів
шипів хрестовини на свердлильному верстаті зенковкой або шліфувальним колом
зернистістю 46-60, заправленим за шаблоном, стосовно до розмірів центрів.
Після механічної обробки проводиться
контроль хрестовини. Осі шпильок повинні лежати в одній площині. Овальність і
конусність допускаються не більше 0,01 мм на довжині 20 мм. Перевірка
проводиться індикатором в пристосуванні.
Відновлення фланця-вилки виробляється
тими ж способами, що і ковзаючих вилок.
Можливі дефекти хрестовин карданної
передачі наведені в таблиці 2.7
Таблиця 2.7 Дефекти хрестовин
карданної передачі
Розміри, допустимі без ремонту, не більше
|
Спосіб усунення дефектів
|
|
Знос поверхонь шипів:
|
|
|
|
торцевих
|
0,2 мм
|
Хромування
|
|
зовнішніх
|
0,02 мм
|
>
|
|
Тріщини або обломи
|
Не допускаються
|
Заміна
|
Знос торцевих поверхонь А і B шипів
визначається виміром відстані Lш між кінцями шипів. При розмірі
менше допустимого хрестовина бракується.
Знос зовнішньої поверхні типу А
усувається повітряно-плазмовим наплавленням з подальшим шліфуванням і
отриманням номінального розміру.
Дефекти хрестовини кардана показано
на рисунку 2.7
Рисунок 2.7 - Дефекти хрестовини
кардана
- хрестовина; 2 - шип хрестовини; 3
- отвір для змащування; Lш - габаритні розміри хрестовини; dш
- діаметр шипа; А, В - знос торцевих поверхонь шипів; Б - знос робочої поверхні
шипа хрестовини.
Відновлена хрестовина кардана
повинна відповідати таким технічним вимогам: по поверхнях А неціліндрічность на
довжині 20 мм від поверхні В повинна бути не більше 0,007 мм; відхилення осей
від положення в одній площині має бути не більше 0,3 мм, а їх
неперпендикулярність - не більше 0,2 мм; торцеве биття поверхні B будь-якого
типу відносно поверхні А - не більше 0,025 мм; шорсткість R поверхні А повинна
бути 0,40-0,32.
Перед збиранням карданної передачі
ретельно промити підшипники і хрестовини; масляні канали хрестовин продути
стисненим повітрям. Збирають карданні вали і проміжну опору в послідовності,
зворотному розбиранні. Ковзні вилки на шліцеві кінці валів встановлюють по
стрілках, вибитих на вилці і шліцьовому кінці валу. Стрілки повинні лежати на
одній прямій. При складанні поверхні деталей, що сполучаються змастити
трансмісійним маслом, а ущільнювальні кільця 6 просочити в маслі і віджати.
Особливу увагу при складанні звертати на наявність заглушок в ковзних вилках,
відсутність яких призводить до різкого скорочення терміну служби карданних
валів через інтенсивний абразивний знос шліцевих з'єднань.
Збирання хрестовини з вилками може
здійснюватися наступними двома способами.
-й спосіб. Торцеві сальники
попередньо напресовується на два суміжних шипа хрестовини. Після цього
хрестовина встановлюється у вилку. Два торцевих сальника встановлюються на шипи
через отвори для підшипників в вилках і напресовується на посадковий пасок
шипа.
-й спосіб. Хрестовина без торцевих
сальників встановлюється у вилки. Після цього на шипи хрестовини через отвори
для підшипників напресовується торцеві сальники.
Збирання шарніра з підшипниками
проводиться тільки із застосуванням преса. Використовувати молоток категорично
забороняється. Після запресовування підшипників на торцеві поверхні вилок
встановлюються опорні й стопорні пластини. Болти затягуються моментом сили
14-17 Н • м. Після затягування болти фіксуються від відвернення відгинанням
вусиків пластини, які є на кінцях пластин, на межі головки кожного болта.
Перед складанням з'єднання карданних
валів у всередину шліцьового з'єднання закладається мастило «Літол-24».
При установці карданних валів на
автомобіль всі болти з'єднання фланців карданних валів затягуються моментом
сили 80-90 Н • м.
Після складання карданних валів
ковзна вилка повинна вільно переміщатися по шліцах, вилки на хрестовинах
повинні повертатися плавно, без заїдань, від зусилля руки. Після перевірки
якості складання заповнити хрестовини трансмісійним мастилом через
прес-маслянку в тілі хрестовини до появи масла з сапу
Шліцеві з'єднання валів змащують
солідолом через прес-маслянки на ковзних вилках до появи опору нагнітання.
Установку карданних валів і
проміжної опори на автомобіль виконують у послідовності, зворотній зняттю.
2.2.5 Вибір
технологічного устаткування і оснастки
Перелік технічного устаткування
приводиться в таблиці 2.6
Таблиця 2.8 Перелік устаткування
відділення
|
№ п/п
|
Назва устаткування
|
Габаритні розміри, мм
|
Кількість
|
Площа м2
|
|
1
|
2
|
3
|
4
|
5
|
|
1.
|
Токарно-гвинторізний верстат
|
2470×1186
|
1
|
2,93
|
|
2.
|
Інструментальна шафа
|
200×780
|
4
|
0,624
|
|
3.
|
Настільно-свердлильний верстат
|
800×375
|
1
|
0,3
|
|
4.
|
Прес ручний
|
450×375
|
1
|
0,17
|
|
5.
|
Слюсарний верстат
|
1200×800
|
2
|
1,92
|
|
6.
|
Слюсарні лещата
|
300×400
|
2
|
0,12
|
|
7.
|
Стенд для ремонту зчеплень
|
1050×800
|
1
|
0,84
|
|
8.
|
Стенд для ремонту двигунів
|
1340×950
|
1
|
1,27
|
|
9.
|
Плита вимірна
|
1000×830
|
1
|
0,83
|
|
10.
|
Прес гідравлічний
|
480×630
|
1
|
0,3
|
|
11.
|
Стенд для ремонту коробок передач
|
810×590
|
1
|
0,48
|
|
12.
|
Стенд для ремонту редукторів
|
830×700
|
1
|
0,58
|
|
13.
|
Стенд для ремонту двигунів
|
1300×850
|
1
|
1,1
|
|
14.
|
Стенд для ремонту рульових механізмів
|
1000×450
|
1
|
0,45
|
|
15.
|
Стенд для ремонту мостів
|
1020×780
|
1
|
0,79
|
|
16.
|
Стіл для контролю
|
2000×800
|
1
|
1,6
|
|
17.
|
Ящик для обтирочних матеріалів
|
900×450
|
2
|
0,81
|
|
18.
|
Ванна для мийки деталей
|
960×660
|
2
|
1,26
|
|
19.
|
Вертикально - фрезерний верстат
|
2100×1780
|
1
|
3,74
|
|
20.
|
Кран-балка
|
1330×730
|
1
|
1
|
|
21.
|
Верстат для заточки
|
825×825
|
1
|
0,68
|
|
22.
|
Вертикально свердлильний верстат
|
850×725
|
1
|
0,62
|
|
23.
|
Стелаж для деталей
|
1400×500
|
5
|
3,5
|
|
24.
|
Ящик для стружки і металевих відходів
|
|
|
|
|
25.
|
Місток перехідний
|
1400×550
|
1
|
0,77
|
|
|
26.
|
Підйомник канавочний
|
2120×500
|
1
|
1,06
|
|
|
27.
|
Підставка для роботи в оглядовій канаві
|
450×600
|
2
|
0,54
|
|
|
28.
|
Витяг відпрацьованих газів
|
1050×920
|
1
|
1,0
|
|
|
29.
|
Маслороздавальний бак
|
720×450
|
2
|
0,65
|
|
|
30.
|
Колонка для подачі стиснутого повітря
|
1150×620
|
1
|
0,713
|
|
|
31.
|
Бак для відпрацьованих мастил
|
820×480
|
1
|
0,39
|
|
|
32.
|
Ящик з піском
|
1000×450
|
1
|
0,45
|
|
|
33.
|
Пожежний щит
|
1200×125
|
2
|
0,3
|
|
|
34.
|
Стенд для балансування карданних валів
|
4300×936
|
1
|
4,02
|
|
|
Всього
|
|
|
36,2
|
|
|
|
|
|
|
|
|
|
|
2.2.6
Розрахунок площі обґрунтування планувальних рішень
Площа агрегатного
відділення визначаємо за формулою:
агр=kгуст∙∑Fобл.
( 2.44 )
де kгуст
- коефіцієнт густини розміщення обладнання;
∑Fобл
- сумарна площа обладнання у відділенні;густ =3,5…4,5;агр=4,05∙36,2=146,6(м2)
2.2.7
Організація робіт в підрозділі і схема технологічного процесу
Схема технологічного процесу ремонту
передньої підвіски показана на рисунку 2.2.7
Рисунок 2.2.7 - Схема технологічного
процесу ремонту передньої підвіски
2.2.8
Організація і схема управління підрозділу (з використанням ЦУВ)
Схема управління
підрозділом (з використанням ЦУВ) приведена на рисунку 2.2.8
Рисунок 2.2.8 - Схема управління
підрозділом ЦУВ
2.2.9 Схема
технологічного процесу виробництва авто підприємства
Технологічний процес виробництва
передбачає послідовність технічних дій щодо автомобіля на автопідприємстві.
Послідовність проведення робіт з ТО і ПР, прийняту на автопідприємстві, можна
подати у вигляді схеми, яка зображає шлях автомобілів від моменту повернення в
гараж до моменту виходу на лінію рисунок 2.2.9.
Рисунок 2.2.9- Схема технологічного
процесу за наявності постів діагностики
. КОНСТРУКТОРСЬКА ЧАСТИНА
3.1 Аналіз
вихідних даних і розробка конструкції пристрою, його робота
В процесі роботи на кардану передачу
діють відцентрові сили, які можуть викликати згин або скручування карданного
вала чи вилок, внаслідок чого порушується баланс карданного шарніра. Також
дисбаланс може появитись при неправильному складанні вала, ослабленні кришок
підшипників, втраті балансувальних пластин внаслідок нього можуть з'явитися
вібрації карданних валів, що
відчуваються на певних швидкостях руху автомобіля. А порушення балансу зменшує
термін служби внаслідок тогол,що можуть виникнути наступні несправності:
- спрацювання
шліців на ковзній вилці і на валові;
- ослаблення
кріплення фланців карданних шарнірів і проміжної опори;
- знос
хрестовини;
- знос
голчастих підшипників;
- прогин
валу;
- поява
вібрації карданного валу, яка викликає прискорене зношування деталей;
- знос
внутрішніх циліндричних поверхонь під голчасті підшипники в вилці карданного
валу;
- тріщини
і обломи хрестовини;
- пошкодження
підшипника проміжної опори.
Тому для вчасного виявлення і
усунення несправностей необхідно в заданий термін робити ТО, діагностику і
ремонт автомобіля.
Основними ознаками несправності
карданної передачі є стуки і ривки при рушанні з місця і перемиканні передач,
вібрації та шуми. Сильні вібрації карданної передачі проявляються па певних
швидкостях руху автомобіля, коли рівень вібрації і шуму може досягати
максимальної величини,переважно це швидкість 80 ... 90 км / год. Весь
автомобіль охоплює дрібне тремтіння і чується монотонний гул. Їздити з
вібруючою карданної передачею неприпустимо.
При ремонті карданної передачі мною
був застосований стенд для балансування карданних валів. Він складається з:
- електродвигуна;
редуктора;
- ведучого
і веденого шківів;
- пасової
передачі;
- фланця
стенда до якого кріпиться фланець карданного вала;
- діагностувальної
опори;
- задньої
призми;
- блоку
вимірної апаратури і блоку апаратури,що обробляє дані отримані з вимірної
апаратури;
- електронного
табло на якому показуються дані дисбалансу, а також з рами і корпусу до яких
кріпляться всі деталі .
Стенд працює за рахунок того, що при
обертанні балансованого вала виникають відцентрові сили, які передаюся на вал
стенда, де сили і місце дисбалансу визначає блок вимірної апаратури, тоді
заміряні дані передаються і обробляються на блоці апаратури вкінці дані
дисбалансу показуються на електронному табло. А місце дисбалансу визначає
діагносту вальна опора,переміщаючись по довжині осі деталі. Для отримання
точного місця дисбалансу необхідно ще раз прокрутити кардан повільному режимі
для більш точного балансування.
Дане пристосування полегшує роботу
працівників і зменшує час ремонту завдяки його простоті і легкості в
користуванні. Також це пристосування зменшує час простою автомобілів в ТО і
ремонті. Па мою думку дане пристосування доцільно використовувати у ремонтних
відділеннях.
Стенд для балансування карданних
валів показано на рисунку 4.1
Рисунок 4.1 - Стенд для балансування
карданних валів
- ведучий шків; 2 - пасова передача;
3 - корпус; 4 - гвинт; 5-кришка; 6 - підшипник; 7 - ведений шків; 8 - шпонка; 9
- електронне табло; 10 - блок вимірної апаратури; 11 - блок апаратури; 12 -
електродвигун; 13 - редуктор; 14 - фланець; 15 - пластина; 16 - діагностувальна
опора; 17 - задня призма; 18 - рама.
ВИСНОВОК
Мій курсовий проект складається з
чотирьох розділів: загальний розділ, технологічний розділ, організаційний
розділ та конструкторський розділ.
В загальному розділі я описав
характеристики автомобіля КРАЗ-256. У технологічному розділі розрахував
виробничу програму АТП кількість робітників і площі обґрунтування приміщень. В
організаційному розділі я описав організацію і схему управління підрозділом з
використанням центрального управління відділення, а також техніку безпеки при
виконанні технологічного процесу у відділенні. В конструкторському розділі я
описав розробку конструкції пристосування і його роботу.
Під час розроблення технологічного
процесу було проведено вибір найбільш радикальних способів ремонту карданної
передачі на базі даного підприємства. При незначній зміні технологічного
оснащення і впровадження нового пристосування можна значно підвищити якість
ремонту, збільшити термін служби відремонтованої карданної передачі.
Основні розрахункові показники
проекту.
· Сумарний річний
пробіг автомобілів Lрп =15436872( км)
· Загальна
трудомісткість робіт проведення ТО і ПР складає 2218996,87( люд/год)
· Загальна кількість
ремонтно-обслуговуючого персоналу - 18 (чол.)
· Обсяг робіт по
самообслуговуванню - 199709,7 ( люд/год)
· Площа агрегатної
дільниці - 146,6 (м2)
Перелік
посилань
1. Напольський
Г.М. Технологическое проектирование автотранспортных предприятий и станций
технического обслуживания. - М.: Транспорт, 1985.
2. Суханов
Б.Н. Техническое обслуживание и ремонт автомобилей. - М.: Транспорт, 1991.
. Лудченко
О.А. Технічне обслуговування і ремонт автомобілів. - К.: Знання-Прес, 2003.
. Круговой
В.М. Автомобили КрАЗ - м. Куйбишев «Транспорт» - 161 с.
. Бордюг
Д.А. Автомобили КрАЗ-256Б1, КрАЗ-257Б1, КрАЗ-258Б1. Руководство по експлуатации
- м. Харків, «Прапор», 1984 р. - 26 с.
ДОДАТКИ
|
Позиція
|
Найменування
|
Кільк.
|
Примітка
|
|
1
|
Токарно-гвинторізний верстат
|
1
|
2470 x 1186
|
|
2
|
Інструментальна шафа
|
4
|
200 x 780
|
|
3
|
Настільний свердлильний верстат
|
1
|
800 x 375
|
|
4
|
Прес ручний
|
1
|
450 x 375
|
|
5
|
Верстак слюсарний
|
2
|
1200 x 800
|
|
6
|
Лещата слюсарні
|
2
|
300 x 400
|
|
7
|
Стенд для ремонту зчеплень
|
1
|
1050 x 800
|
|
8
|
Стенд для ремонту двигунів
|
1
|
1340 x 950
|
|
9
|
Плита вимірна
|
1
|
1000 x 830
|
|
10
|
Прес гідравлічний
|
1
|
480 x 630
|
|
11
|
Стенд для ремонту коробок передач
|
1
|
810 x 590
|
|
12
|
Стенд для ремонту редукторів
|
1
|
830 x 700
|
|
13
|
Стенд для ремонту карданних передач
|
1
|
1300 x 850
|
|
14
|
Стенд для діагностування рульових
|
|
|
|
механізмів
|
1
|
1000 x 450
|
|
15
|
Стенд для ремонту мостів
|
1
|
1020 x 780
|
|
16
|
Стіл для контролю
|
1
|
2000 x 800
|
|
17
|
Ящик для обтирочних матеріалів
|
2
|
900 x 450
|
|
18
|
Ванна для миття деталей
|
2
|
960 x 660
|
Вертикально-фрезерний верстат
|
1
|
2100 x 1780
|
|
20
|
Кран-балка
|
1
|
1330 x 730
|
|
21
|
Верстат заточний
|
1
|
825 x 825
|
|
22
|
Вертикально-свердлильний верстат
|
1
|
850 x 725
|
|
23
|
Стелаж для деталей
|
5
|
1400 x 500
|
|
24
|
Ящик для стружки і металевих відходів
|
1
|
900 x 450
|
|
25
|
Місток перехідний
|
1
|
1400 x 550
|
|
26
|
Підйомник канавний
|
1
|
2120 x 500
|
|
27
|
Підставка для роботи в оглядовій канаві
|
2
|
450× x 600
|
|
28
|
Витяг відпрацьованих газів
|
1
|
1050 x 920
|
|
|
29
|
Масло роздавальний бак
|
2
|
720 x 450
|
|
|
30
|
Колонка для роздачі стиснутого повітря
|
1
|
1150 x 620
|
|
|
31
|
Бак для відпрацьованих мастил
|
1
|
820 x 480
|
|
|
32
|
Ящик з піском
|
1
|
1000 x 450
|
|
|
33
|
Пожежний щит
|
2
|
1200 x 125
|
|
|
34
|
Стенд для балансування карданних валів
|
1
|
4300 x 936
|
|
|
|
|
|
|
|