Проектирование школы на 510 учащихся

  • Вид работы:
    Отчет по практике
  • Предмет:
    Строительство
  • Язык:
    Русский
    ,
    Формат файла:
    MS Word
    359,85 Кб
  • Опубликовано:
    2015-02-12
Вы можете узнать стоимость помощи в написании студенческой работы.
Помощь в написании работы, которую точно примут!

Проектирование школы на 510 учащихся

Введение

Производственная практика является составной частью учебного процесса. Ее целью является приобретение навыков практического выполнения отдельных видов строительных работ, практическое изучение современных технологий и форм организации труда, участие в разработке организационно-технологических решений строительного производства, изучение опыта организаторской работы в трудовом коллективе. Продолжительность производственной практики составляет четыре недели.

Данная практика ставит перед собой следующие задачи:

владеть современными технологиями и формами организации труда;

иметь практические навыки выполнения отдельных видов строительных работ;

разрабатывать организационно-технологические решения строительного производства;

владеть приемами организаторской работы в трудовом коллективе.

В результате прохождения первой строительной практики студенты должны знать:

технологические процессы возведения зданий и сооружений различного назначения;

порядок и принципы контроля качества при выполнении строительных работ;

основные требования охраны труда, противопожарной безопасности, производственной санитарии при выполнении отдельных видов строительно-монтажных работ.

Моя первая производственная практика будет проходить в г. Соргонь ОАО «Строительно-монтажный трест №41» СУ «Сморгоньстрой»

1. Характеристика объекта практики и организации, в которой проходит практика

.1 Полное наименование (в соответствии с учредительными документами) ОАО «Строительно-монтажный трест №41» СУ «Сморгоньстрой» г. Сморгонь

Предприятие, виды деятельности:

содержание жилищного фонда;

обеспечение населения и юридических лиц водоснабжением;

оказание населению и юридическим лицам услуг водоотведения;

оказание услуг отопления и горячего водоснабжения населению и юридическим лицам;

содержание и текущий ремонт объектов благоустройства (уличное освещение, механизированная уборка улиц и подъездов, содержание и уход за зелеными насаждениями);

санитарно-гигиеническая очистка территории;

ремонтно-строительные услуги;

оказание прочих услуг (бытовое обслуживания населения: услуги парикмахерских, швейного цеха, банно-прачечных комбинатов; ритуальные услуги; услуги автотранспорта, рынка, автостоянки, торговля, туристические услуги);

производство железобетонных изделий (столбы, кольца, тротуарная плитка, декоративные железобетонные заборы);

производство строительных металлических изделий;

производство столярных изделий.

.2 Юридический и почтовый адрес

Гродненская область, г.Сморгонь, ул. Гагарина 24.mail:oaocmt41@tyt.by

1.3 Объёмно-планировочное решение

Степень огнестойкости - 4(ТКП 45-2.02-142-2011).

Класс функциональной пожарной опасности - Ф 4.1 (ТКП 45-2.02-142-2011).

Уровень ответственности - 2 (ГОСТ 27751-88, СНБ 5.01.01-99).

Здание расположено в центре микрорайона на пересечении основных пешеходных связей в окружении детского сада и торгового центра.

Главный фасад здания ориентирован на площадь, которая является компазиционным акцентом микрорайона.

Сложная форма в плане, наличие выступающих и ступенчатых объёмов при активном рельефе участка позволяют создать интересный запоминающийся образ школы.

Объёмно-планировочная структура школы представляет собой совокупность криволинейного в плане 3-х этажного объёма, где сосредоточены основные помещения для обучения учащихся и объёма переменной этажности с доминирующим двухсветным спортивным залом.

При радиоактивным заражении местности подвальный этаж используется под ПРУ (противорадиационное укрытие) на 2201 место.

На 1 этаже находятся: помещения 1-х классов; помещения общешкольного центра; медицинского обслуживания; пищеблока; административно-хозяйственного и вспомогательного назначения.

На 2 этаже расположены: помещения 2-4 классов (обособленно в левом крыле); 5,6 классов; лабораторий; учебно-спортивных залов; кабинет музыки.

На 3 этаже находятся: помещения 7-11 классов; лабораторий; кабинет изобразительных искуств; помещения административно-хозяйственного помещения.

Ориентация помещений школы выполнена согласно приложения 2 Санитарных норм и правил «Требования для учреждений общего среднего образования» от 27 декабря 2012г. № 206 ТКП 45-02.04-153-2009.

Требуемая звукоизоляция помещений школы (согласно ТКП 45-02.04-154-2009) обеспечивается конструкцией и необходимой толщиной стен и перегородок.

1.4 Стоимость строительства

Составлен в текущих ценах на август 2012 г.

Общая стоимость на ремонт и модернизацию: 94 миллиарда 800 миллионов

1.5 Технико-экономические данные и показатели

Наименование

Ед. изм.

Количество

Вместимость

чел.

510

Этажность

-

3

Строительный объем

м3

42595,5

В т.ч. подземная часть

м2

90533,45

Общая площадь

м2

10503,99

Полезная площадь

м2

9145,89

Нормируемая площадь

м2

5864,14

м2

3566,86


К моменту начала прохождения мною практики на объекте выполнены работы оштукатуривания, установке дверных проёмов и окон, подготовке стяжки под полы, укладке перемычек, монтаж плит покрытия.

2. Конструктивные решения

Школа на 510 учащихся в г.п. Островец в плане имеет размеры 97,5*63,5м. Основной блок - 3-этажный, к нему примыкают разновысокий блок (1,2,3-этажный) общешкольного центра и блок с 2-х цветным спортивным залом.

Высота этажей - 3,3м. высота спортивного зала - 8м.

Здание имеет подвал высотой 3,13м. В подвале размещаются гардеробы и технические помещения. Часть здания между осями П-Р и 11-6, 21-25, И-М и 9-15 - без подвала.

В блоке основных учебных помещений в осях Г-Д, 11-14 предусмотрен лифт для инвалидов.

За условную отметку +0,030 принят уровень пола 1-го этажа. Что соответствует абсолютной отметке 168,930 на генплане.

Уровень ответственности - 2.

Коэффициент надёжности по ответственности = 0,95.

Нагрузки приняты по СНиП 2.01.07-85 «Нагрузки и воздействия», а также по изменению N1 к данному СНиПу для РБ.

Нормативная ветровая нагрузка принята для 1 климатического района и составляет qн=0,23кПа.

Нормативная снеговая нагрузка принята для района 2Б РБ по весу снегового покрова и состовляет qн=1,2кПа.

Здание школы имеет смешанную конструктивную схему:

в осях 10-26, Е-С - жёсткая схема;

в осях 1-35, А-Е - гибкая (каркасная) схема.

Между осямми Д-Е выполнен деформационно-осадочный шов.

Выбор типа фундаментов, определение глубины заложения и размеров фундаментов произведены на основании отчёта об инженерно-геологических изысканиях на площадеке строительства, выполненных отделом геологии УП «Институт Гродногражданпроект» в ноябре-декабре 2009 года № объекта 27.09-00- IГ.

Подземные воды обнаружены на отм. 156.80-157(9-11м от поверхности земли) и на отм. 166.40-167.80(0.6-3,5м от поверхности земли) - верховодка.

Нормативная глубина промерзания 0,88м.

Фундаменты под колонны - столбчатые из сборных ж/б фундаментов по серии 1.020-1/83, вып. 1-1 по монолитным ж/б фундаментам.

Фундаменты под диафрагмы - монолитные из бетона кл.С16/20 F75.

Фундаменты под стены - ленточные из сборных плит по серии Б1.012.1-2.08 и блоков бетонных по серии Б1.016.1-1, вып. 1.98.

Колонны приняты двуэтажной разрезки сечением 300*300мм. Шаг колонн - 6*7,2м, 3*6м.

Элементы каркаса (колонны, ригели, диафрагмы жёсткости) приняты по серии 1.020-1/83; вентблок-диафрагмы - по серии 1.034.1-1/90, вып. 1.

Наружные самонесущие стены в осях А-Е,Д/1 - из блоков газосиликатных СТБ 1117-98 на клею.

Крыша здания плоская. Верхний слой мягкой кровли из рулонного материала К-СТ-БЭ-К/ПП-5 СТБ 1107-98 (РП2).

Водосток с крыши запроектирован внутренний.

Для отвода грунтовой воды типа «верховодка» предусмотрен пластовый дренаж.

Вокруг здания устраивается отмостка из тротуарной плитки шириной 1,2м.

Школа запроектирована с сопротивлением теплопередаче ограждающих конструкций:

для наружных стен Rt>=3,2м2*0С/Вт;

для покрытий Rt>=6,0м2*0С/Вт;

для перекрытия над техподпольем Rt>=2,5м2*0С/Вт;

для заполнения оконных проёмов Rt>=1,0м2*0С/Вт.

Пределы огнестойкости и классы пожарной опасности несущих строительных конструкций, обеспечивающих общую устойчивость и геометрическую неизменяемость здания следующие:

колонн - R150-KO;

ригелей - R120-KO;

железобетонных диафрагм жёсткости - REI 150-KO;

перемычек железобетонных - REI 60-KO;

перекрытий междуэтажных - REI 60-KO;

внутренних стен лестничных клеток - REI 240-KO;

лестничных маршей и площадок - R60-KO.

По пожарной опасности системы утепления относятся к классу - КНО. Минеральная вата марки’’ Фасад12 ‘’, ‘’Фасад 15’’ по горючести относятся к классу - НГ.

Наибольшая масса применяемых в проекте конструкций 4,8т (колонны).

Производство работ вести в соответствии с требованиями:

СНиП 3.03.01-87 «Несущие и ограждающие конструкции»;

ТКП 45-5.03-131-2009 «Монолитные бетонные и железобетонные конструкции. Правила возведения»;

ТКП 45-5.03-21-2006 «Бетонные работы при отрицательных температурах воздуха. Правила производства»;

ТКП 45-5.03-130-2009 «Сборные бетонные и железобетонные конструкции. Правила и монтаж»;

ТКП 45-5,02-82-2010 «Каменные и армокаменные конструкции»;

ТКП 45-1.03-40-2006 «Безопасность труда в строительстве. Общие требования»;

ТКП 45-1.03-40-2006 «Безопасность труда в строительстве. Строительное производство».

Достовляемые на строительство каменные материалы должны иметь заводской паспорт, содержащий сведения о пределе прочности (марке) и морозостойкости, а для лёгких теплоизоляционных материалов - о марке, плотности (объёмной массе).

При отсутствии паспорта строительная организация до применения этих материалов должна провести необходимые испытания ГОСТ 7025-91 и ГОСТ 8462-85.

При бетонировании монолитных конструкций обязательно производить отбор и испытания проб бетонной смеси в соответствии с требованиями ТКП45-5.03-131-2009 «Монолитные бетонные и железобетонные конструкции. Правила возведения» и ГОСТ 18105-86 «Бетоны. Правила контроля прочности».

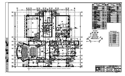
2.1 Генеральный план

Рис. 1

2.2 Графические материалы основного здания

Рис. 2

Рис. 3

Проект разработан для IB климатического района с расчетной температурой воз духа -28С.

Снеговая нагрузка q=120 кгс/м2.

Степень огнестойкости здания - IV.

Уровень ответственности здания - II.

Класс здания по функциональной пожарной безопасности ф 1.3 (СНБ 2.02.01-98).


В процессе прохождения практики я принимал непосредственное участие в выполнении следующих видов работ:

Выполнение плотничьих работ:

монтаж опалубки и последующий демонтаж;

заливка бетонной смеси т.к. у нас нет бетонщиков и бетоном занимаются плотники;

установка окон.

Рабочая инструкция плотнику 3-го разряда

. Общие положения

.1. Плотник 3-го разряда подчиняется непосредственно линейному работнику и является рабочим ОАО «СМТ № 41».

.2. В своей работе плотник 3-го разряда руководствуется нормативными документами общества, документами системы менеджмента качества общества (Политикой общества), приказами и распоряжениями по обществу, нормами и правами по охране труда и технике безопасности, правилами внутреннего трудового распорядка и настоящей рабочей инструкцией.

.3. Плотник 3-го разряда оформляется на работу на основании заключенного с ним договора (контракта) и увольняется с работы приказом директора треста.

.4. На работу в качестве плотника 3-го разряда может быть принято лицо со специальным (профессиональным) обучением.

.5. Плотник 3-го разряда должен знать:

.5.1. Основные породы и пороки древесины;

устройство электрифицированного инструмента и правила пользования им;

способы заготовки прямолинейных щитов опалубки и перегородок под штукатурку;

способы устройства цоколей, дощатых настилов, перегородок, черных обшивок и элементов крыш,

правила приготовления антисептирующих и огнезащитных составов и их нанесения;

основные свойства рулонных и штучных кровельных материалов;

способы разметки простых крыш и покрытия их кровельными материалами.

.5.2. Плотник 3-го разряда должен также знать и уметь выполнять все то, что и плотник 2-го разряда, в частности:

основные виды лесоматериалов и свойства дерева;

способы грубой обработки лесоматериалов;

правила обращения с антисептирующими и огнезащитными составами и способы покрытия ими деревянных деталей и конструкций;

способы разборки простых деревянных конструкций и их очистки;

правила перемещения и складирования грузов малой массы;

виды рулонных и штучных кровельных материалов;

способы разборки простых кровельных покрытий из рулонных и штучных материалов.

.5.3. Технический процесс выполняемой работы, технологические карты и иные локальные стандарты, регламентирующие выполнение работ, входящих в профессиональные обязанности;

методы рациональной организации труда и использования материальных ресурсов;

требования, предъявляемые к качеству выполняемых работ, в том числе по смежным операциям или процессам;

виды брака, причины его возникновения, способы предупреждения и устранения;

способы выявления и устранения возникающих неполадок текущего характера при производстве работ;

правила технической эксплуатации и ухода за оборудованием, приспособлениями и инструментом;

способы выполнения текущего, профилактического и капитального ремонта оборудования.

.5.4. Правила охраны окружающей среды при выполнении работ;

правила и инструкции по охране труда, безопасные методы и приемы работы;

правила, способы, приёмы и средства предупреждения и тушения пожаров, предупреждения и устранения аварий и иных прошествий на своём рабочем месте (участке, цехе);

правила и способы оказания доврачебной помощи пострадавшим;

правила внутреннего трудового распорядка организации.

.5.5. Основы законодательства о труде, договорного регулирования трудовых отношений, в том числе в области оплаты и нормирования труда, содержание коллективного договора организации и процедуру ведения переговоров по его заключению;

формы и системы оплаты труда, действующие в организации, их особенности, порядок установления и пересмотра тарифных ставок, норм и расценок;

порядок и особенности тарификации и перетарификации работ и рабочих;

основные формы подготовки, переподготовки и повышения квалификации рабочих на производстве.

. Функции

.1. Основными задачами плотника 3-го разряда являются:

выполнение всех видов работ, включенные в раздел «Профессиональные обязанности» данной инструкции;

реализация Политики руководства общества в области качества в пределах своих полномочий.

. Профессиональные обязанности

На плотника 3-го разряда возлагаются следующие профессиональные обязанности:

Выполнять следующие профессиональные обязанности:

.1. Выполнение простых плотничных и опалубочных работ;

покрытие крыш простой формы рулонными (насухо) и штучными кровельными материалами.

. Общестроительные работы

изготовление простых щитов для перегородок под штукатурку;

устройство обрешетки;

продольное распиливание материалов;

разборка временных зданий;

обшивка стен и потолков под штукатурку и облицовку;

устройство нижнего дощатого настила в двухслойных полах (черных полов);

установка плинтусов и галтелей;

устройство забирки и ремонта цоколей;

устройство временных заборов и ворот;

нанесение антисептирующих и огнезащитных составов на деревянные конструкции и детали краскопультами и распылителями;

устройство водосборных колодцев, лотков и т.д.;

изготовление и ремонт простого строительного инвентаря;

обтесывание бревен на канты и накругло, обтесывание кромок досок и пластин;

затеска концов бревен;

чистка острожка лесоматериалов, выборка пазов, гребней и четвертей;

обработка лесоматериалов электрифицированным инструментом;

разборка обрешетки и деревянной кровли;

изготовление плавучего рештования;

обшивка стен ряжей и ледорезов досками;

заготовка одиночных свай, насаживание на сваи бугелей и башмаков;

отпиливание голов свай и верха шпунтовых рядов;

заготовка одностоечных опор линий связи и электропередач;

заполнение стыков уплотнительной массой;

отделка поверхностей сухой штукатуркой;

покрытие и ремонт односкатных и щитовых крыш рулонными материалами насухо с прошивкой гвоздями, асбестоцементными листами или плитками (шифером) и ремонт кровельных покрытий из этих материалов;

обделка свесов и примыканий;

разборка подмостей.

. Опалубочные работы:

изготовление и ремонт щитов опалубки прямолинейного очертания (прямоугольные и косоугольные) и прямолинейных элементов опалубки всех видов;

заготовка простых элементов лесов, поддерживающих опалубку, без наращивания;

разборка опалубки перекрытий, балок, колонн, ледорезов, балочного пролетного строения мостов.

На плотника 3-го разряда возлагаются также обязанности:

соблюдение правил, технологических карт и инструкций, регламентирующих технологию работ;

соблюдение правил и инструкций при работе на оборудовании и машинах, технический уход за используемыми машинами и оборудованием, выявление и устранение неисправностей в их работе;

соблюдение правил охраны труда и пожарной безопасности, правил охраны окружающей среды;

соблюдение правил внутреннего трудового распорядка;

содержание своего рабочего места и инструмента в порядке;

повышение своей квалификации в соответствии с программами, предлагаемыми организацией.

Обязанности при приемке рабочей смены: проверка исправности оборудования, инструмента, получение документов.

Обязанности по окончании рабочей смены: уборка рабочего места, сдача инструмента, передача информации.

. Права

Плотник 3-го разряда имеет право:

.1. Требовать проведения с ним инструктажа:

по освоению новых способов и методов работы;

по правилам охраны труда, экологической и пожарной безопасности.

.2. Требовать обеспечения информацией о специфике работы с линейного работника.

.3. Вносить предложения по совершенствованию технологии выполняемой работы.

.4. Знакомится с правилами внутреннего распорядка.

. Ответственность

Плотник 3-го разряда несет ответственность, предусмотренную законодательством:

.1. дисциплинарную - за невыполнение возложенных на него обязанностей и правил внутреннего трудового распорядка;

.2. материальную - в случае причинения своими действиями ущерба организации;

.3. несвоевременное выполнение приказов и распоряжений руководителя;

.4. несоблюдение правил и норм по охране труда, технике безопасности, пожарной безопасности, правил внутреннего трудового распорядка.

. Требования охраны труда в аварийных ситуациях.

.1 При возникновении аварий и ситуаций, которые могут привести к авариям и несчастным случаям, необходимо:

.1.1 Немедленно прекратить работы и известить руководителя работ. 4.1.2 Под руководством руководителя работ оперативно принять меры по устранению причин аварий или ситуаций, которые могут привести к авариям или несчастным случаям.

.2 При возникновении пожара, задымлении:

.2.1 Немедленно сообщить по телефону «01» в пожарную охрану, оповестить работающих, поставить в известность руководителя подразделения, сообщить о возгорании на пост охраны.

.2.2 Открыть запасные выходы из здания, обесточить электропитание, закрыть окна и прикрыть двери.

.2.3 Приступить к тушению пожара первичными средствами пожаротушения, если это не сопряжено с риском для жизни.

.2.4 Организовать встречу пожарной команды.

.2.5 Покинуть здание и находиться в зоне эвакуации.

.3 При несчастном случае:

.3.1 Немедленно организовать первую помощь пострадавшему и при необходимости доставку его в медицинскую организацию.

.3.2 Принять неотложные меры по предотвращению развития аварийной или иной чрезвычайной ситуации и воздействия травмирующих факторов на других лиц.

.3.3 Сохранить до начала расследования несчастного случая обстановку, какой она была на момент происшествия, если это не угрожает жизни и здоровью других лиц и не ведет к катастрофе, аварии или возникновению иных чрезвычайных обстоятельств, а в случае невозможности ее сохранения - зафиксировать сложившуюся обстановку (составить схемы, провести другие мероприятия).

.4. Требования охраны труда по окончании работы:

.4.1. Привести рабочее место в порядок.

.4.2. Инструмент и приспособления очистить от грязи и мусора, промыть оборудование.

.4.3. Убрать инструмент в предназначенное для этого место.

.4.4. Снять спецодежду, осмотреть, вычистить и убрать в специально отведённое место.

.4.5. Необходимо тщательно вымыть лицо и руки тёплой водой с

. Индивидуальное задание.

Технологическая карта на устройство монолитных стен в несъемной опалубки.

Технологическая карта предназначена с целью ознакомления рабочих и инженерно-технических работников с правилами производства монтажных работ, своевременного и качественного выполнения работ на строительной площадке.

Наружные и внутренние стены, перекрытия здания выполняются из монолитного железобетона по технологии несъемной опалубки PLASTBAU, лестничные марши - сборные железобетонные. Высота этажа 2.5 м от пола до потолка, технического подполья- 1.80м.

Технологическая карта предусматривает подачу бетонной смеси к месту ее укладки автобетононасосом по распределительной стреле. Подача бетонной смеси в автобетононасос осуществляется из автобетоносмесителя по лоткам.

Технологическая карта разработана на основании проекта М05.105.10 «5-ти этажного 3-х секционного 55-квартирного жилого дома.

В технологической карте приведены: область применения, технология и организация работ, требования к качеству и приемке работ, потребность в материально-технических ресурсах.

4. Технология и организация работ

До начала работ по устройству монолитных стен по технологии несъемной опалубки PLASTBAU должны быть выполнены подготовительные работы:

выполнены все необходимые работы по устройству бетонирования монолитных железобетонных фундаментных балок, ростверков и железобетонных плит пола тех. подполья;

произведена разметка положения стен в соответствии с проектом;

подготовлена монтажная оснастка и инструмент;

основание очищено от грязи и мусора;

подготовлена площадка с твердым покрытием и металлические столы для сборки опалубки;

установлены поддерживающие леса с подмостями и ограждениями.

Работы следует выполнять, руководствуясь требованиями следующих нормативных документов:

M12291 5200023СНиП #S12-01-2004. Организация строительства;

СНиП 3.03.01-87. Несущие и ограждающие конструкции;

СНиП 12-03-2001. Безопасность труда в строительстве. Часть 1. Общие требования;

СНиП 12-04-2002. Безопасность труда в строительстве. Часть 2. Строительное производство;

ТИ РО 057-2003 (СП 12-135-2003), ПОТ РО 200-01-96, ПОТ РМ-007-98 «Правила по охране труда при погрузочно-разгрузочных работах и размещении грузов».

- СНиП 3.01.03-84. Геодезические работы в строительстве;

СНиП 3.02.01-87 Земляные сооружения, основания и фундаменты;

СНиП III-10-75 Благоустройство территорий.

ПБ 10-382-00. Правила устройства и безопасной эксплуатации грузоподъемных кранов;

РД 102-011-89. Охрана труда. Организационно-методические документы;

Инструкции по охране труда предприятия;

Технические регламенты, паспорта на используемые машины, механизмы, инструмент, материалы.

Технология монтажа стеновой опалубки.

Установку элементов стеновой опалубки обычно начинают с одного угла здания.

Чтобы создать плотное угловое соединение из стеновых элементов, при необходимости требуется отрезать внутреннюю пенополистирольную панель стеновых элементов (рис. 4а). Это можно выполнить любым режущим инструментом, используемым для резки пенополистирола, например ручной пилой. Необходимо также убрать лишние арматурные каркасы. Внутренние пенополистирольные плиты раскроенных стеновых элементов устанавливаются в направляющие профили. В углы необходимо установить дополнительную арматуру - анкеровку стены (рис. 4б) и выполнить фиксацию угла.

а                                                               б

Рис. 4 - Создание угла из стеновых элементов: а - совмещение стеновых элементов с созданием угла; б - угол из стеновых элементов

Опалубку выставляют юстируя по вертикали и фиксируют с помощью ригелей и опорных раскосов.

Рис. 5 - Временное крепление стеновых элементов

Затем устанавливают необходимую дополнительную горизонтальную и вертикальную арматуру. После чего закрепляют элементы стеновой опалубки, стягивая их вместе горизонтальными стяжками.

После закрепления первого опорного раскоса продолжают установку следующих элементов стеновой опалубки и их крепление опорными раскосами.

Рис. 6 -

Похожие работы на - Проектирование школы на 510 учащихся

 

Не нашли материал для своей работы?
Поможем написать уникальную работу
Без плагиата!
Без нейросетей!