Расчет редуктора
Реферат
Данный курсовой проект состоит из пояснительной
записки и графической части. В пояснительной записке приведен расчет привода к
мешалке, выполненный на 46 листах, в которых подробно расписана методика
кинематического расчета привода и выбора электродвигателя, приведен проектный
расчет на прочность зубчатых передач, расчет вала на прочность, кроме этого
расчет шпоночных соединений и расчет подшипников качения.
Графическая часть содержит:
лист формата А1 - сборочный чертеж редуктора,
лист формата А2 - чертеж тихоходного вала,
лист формата А2 - чертеж зубчатого колеса,
лист формата, А 2 - чертеж общего вида.
Содержание
1.
Кинематический расчет привода и выбор электродвигателя
.1
Выбор электродвигателя
.2
Кинематический расчет привода
.
Проектный расчет на прочность зубчатой передачи редуктора
.1
Выбор материала шестерни и колеса
.2
Определение допускаемых напряжений
.2.1
Допускаемые контактные напряжения
.2.2
Допускаемые напряжения изгиба зубьев
.3
Проектные расчет на прочность закрытой цилиндрической зубчатой передачи
редуктора
.
Определение компоновочных размеров редуктора
.
Расчет шпоночного соединения под колесо на тихоходном валу редуктора
.
Расчет тихоходного вала редуктора
.
Выбор подшипников качения
Список
использованных источников
1. Кинематический расчёт привода и выбор
электродвигателя
напряжение редуктор вал привод
Проектирование приводных устройств начинается с
кинематического расчёта привода, задачей которого являются выбор по каталогу
электродвигателя, определение общего передаточного числа привода и разбивка его
по отдельным ступеням передач согласно кинематической схеме.
Заключительным этапом этого расчёта является
определение основных кинематических (частот вращения валов) и силовых
(мощностей и вращающих моментов на валах) характеристик привода.
.1 Выбор электродвигателя
Определим потребную мощность двигателя [1, с 6,
ф 1.2]:
где 
мощность на 3-м валу; 
- общий КПД привода.
Определим общий КПД двигателя 
где 
- КПД ременной предачи;

- КПД пары подшипников
качения; 
- КПД закрытой зубчатой
передачи.
Тогда,
Проводим оценку кинематических
возможностей привода[1, стр. 10, ф. 1.7]:
Принимем по таблице [1,
стр. 8, т. 1.2]:

-
кинематические возможности привода.
Определяем частоту вращения 3-го
вала:
Тогда,
Определяем диапазон частот вращения
двигателя:
После этого по таблице
[1,стр. 9, т. 1.3] подбираем электродвигатель с мощностью 
и частотой вращения 
, близкими к полученным 
и 
. При этом 
должна быть равна или больше
требуемой. Можно выбрать электродвигатель меньшей мощности.
В этом случае он будет работать с
перегрузкой, величину которой определяют по формуле[1, с 7, ф 1.5]:
где 
- допускаемая
перегрузка двигателя: 
при постоянной
нагрузке, 
при переменной.
Выбираем из таблицы
[1,стр. 9, т. 1.3] двигатель с синхронной частотой 1000 мин-1 марки
4АМ112МА6У3, P = 3 кВт , 
.
1.2 Кинематический расчёт привода
После окончательного
выбора 
определяют общее
передаточное число привода [1, стр. 11, ф. 1.6]:
Тогда,
В соответствии с
требованием [1, стр. 12-14, т. 1.5] примем 
, тогда 
, примем из стандартного ряда 
.
Окончательно распределив общее
передаточное число привода по ступеням, определяем это расчетное значение 
. При этом отклонение от требуемого
не должно превышать 4% по формуле [1, стр. 14, 1.9]:

- условие выполняется.
Определяем частоты
вращения валов [1, стр 26]:
Определяем мощности на
валах [1, стр 27]:
Определяем вращающие
моменты на валах [1, стр 27]:
Рисунок 1 - Схема
редуктора.
2. Проектный расчёт на
прочность зубчатой передачи редуктора
Целью проектного расчёта является
определение геометрических размеров передачи, обеспечивающих работоспособность
и надежность при заданных условиях эксплуатации и заданном ресурсе. Исходные
данные для проектного расчёта принимаются по результатам кинематического
расчёта привода. При расчёте необходимо учитывать экономические факторы
(обеспечение минимальных габаритов, массы и стоимости передачи).
2.1 Выбор материала шестерни и
колеса
Для редукторов шестерни и колеса
следует изготовлять из одинаковых марок сталей, с термической обработкой по
двум вариантам [1, с. 31].
Из таблицы 2.1 [1, с. 30]выбираем
материал для шестерни и колеса -
Сталь 40Х,с термообработкой:
улучшение зубьев колеса HB 235…262; улучшение зубьев шестерни HB, 269…302.
2.2 Определение допускаемых
напряжений
Допускаемые напряжения при расчетах
на контактную и изгибную выносливость необходимо определять с учетом нагружения
зубьев и требуемого ресурса передачи Lh (ч).
По заданию - режим нагружения зубьев
постоянный (см. рисунок 2), требуемый ресурс передачи Lh = 14000 ч (задавался преподавателем).
Рисунок 2 - График постоянного
режима нагружения зубьев.
Допускаемые напряжения определяются
отдельно для зубьев шестерни и колеса.
2.2.1 Допускаемые контактные
напряжения
Допускаемые напряжения
для зубьев шестерни 
и колеса 
определяются по общей
зависимости [1, с.32, ф.2.1]:
где 
- длительный предел
контактной выносливости, определяемый по таблице 2.2 [1, с.33] в зависимости от
материала зубчатого колеса и вида термической обработки по среднему значению
твердости поверхностей зубьев 
, равной полусумме
верхнего и нижнего значений их твердости взятых из таблицы 2.1 [1, с.30];
Тогда,

- коэффициент,
учитывающий шероховатость рабочих поверхностей зубьев; при Ra =
1,25…0,63 мкм (притирка и обкатывание) 
; при Ra =
2,5…1,25 мкм (шлифование) 
; при Ra =
1,0…2,5 мкм (фрезерование) 
;
Принимаем: 
, 
.

- коэффициент,
учитывающий влияние скорости: повышение скорости вызывает увеличение толщины
гидродинамического масляного слоя и уменьшение коэффициента трения. При
скорости до 10 м/с (что имеет место в редукторах) и при твердости поверхностей
зубьев менее 350 HB 
; при твердости больше
350 HB 
; принимаем 
, 
.

- коэффициент запаса
контактной прочности, принимается из таблицы 2.2 [1, с.33];
Принимаем: 
, 
.

-коэффициент
долговечности, учитывающий режим нагружений и требуемы ресурс подачи,
принимается в пределах 
(
для материалов с
однородной структурой (нормализованных, улучшенных) 1,8 для поверхностно
упрочненных материалов).

- число циклов
нагружения зуба, соотвествующее перелому кривой усталости 
; если твердость задана
в единицах 
, то её переводят в
единицы 
(1
- 10 
)
Тогда,

- требуемый ресурс
расчитываемого зубчатого колеса в циклах.
При постоянном режиме
нагружений (см. рисунок 2)[1, c.33,
ф.2.2]:

,
где с - число
вхождений в зацепление зуба рассчитываемого колеса за один оборот, принимаем c
= 1 [1,с.34]; n - число оборотов в минуту рассчитываемого колеса, мин-1;

требуемый ресурс
передачи, ч.
Тогда,
Определяем коэффициент
долговечности:
Принимаем 
,
Принимаем 
,
Тогда,
Для косозубых передач с
твердостью шестерни 
≤ 350 
и колеса 
≤ 350 
в качестве расчетного
допускаемого напряжения принимают минимальное из 
и 
, т.е 
Принимаем допускаемые
контактные напряжения 
.
2.2.2 Допускаемые
напряжения изгиба зубьев
Допускаемые напряжения
изгиба зубьев шестерни 
и колеса 
определяются по общей
зависимости [1, с.35, ф.2.4]:
где 
- длительный предел
выносливости при "отнулевом" цикле нагружений, выбирается по таблице
2.3 [1, с.35] в зависимости от материала и твёрдости зубьев;

- коэффициент запаса
изгибной прочности выбирают по таблице 2.3 [1, с.35];
Принимаем: 
, 
.

- коэффициент
долговечности, принимаемый в пределах 
; 
- показатель степени
кривой усталости; 
для нормализованных и
улучшенных колес; 
для поверхностно
упрочнённых колёс, 
при 
, 
при 
Принимаем: 
, 

- требуемый ресурс
расчитываемого зубчатого колеса в циклах.
Тогда,
Принимаем: 
,
Принимаем: 
.
Тогда,
.3 Проектный расчёт на
прочность закрытой цилиндрической зубчатой передачи редуктора
Предварительные
геометрические размеры передачи определяют расчётом на контактную выносливость
зубьев.
Исходные данные
(получены при кинематическом расчёте):

- вращающий момент в
шестерне;

- вращающий момент на
колесе;

- частота вращения
колеса;

- передаточное число;

- допускаемое
контактное напряжение;

- допускаемое
напряжение изгиба зубьев шестерни;

- допускаемое
напряжение изгиба зубьев колеса;
Цилиндрическая зубчатая
передача показана на рисунке 3.
Рисунок 3 -
Цилиндрическая зубчатая передача.
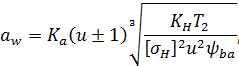
Определяем
предварительное значение межосевого расстояния 
по формуле 2.6 [1,
с.37]:
где знак "+"
(здесь и далее) относится к внешнему зацеплению, а знак "-" к
внутреннему;
- вращающий момент
колеса, Н м. Коэффициент К в зависимости от поверхностной твердости зубьев
шестерни и колеса имеет следующие значения.
|
Твердость H, HB:
|
|
|
|
|
|
|
|
|
Коэффициент K:
|
10
|
8
|
6.
|
Принимаем: K=10;
Тогда,
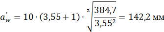
Уточняем найденное значение
межосевого расстояния [1, с.37, ф.2.7]:
где 
для косозубых и
шевронных зубчатых колёс;
для прямозубых зубчатых
колёс; принимаем 
Коэффициент ширины венца
зубчатого колеса 
для редукторов зубчатых
колес из улучшенных сталей при несиметрчном расположении относительно опор
0,315…0,4; для колес из закалённой сталей 0,25…0,315; при симметричном
расположении - 0,4…0,5; при консольном расположении - 0,2…0,25.
Принимаем 
.
Принимаем коэффициент
нагрузки 
.
Тогда,
Округляем до ближайшего
стандартного значения 
[1, с.41]
Определяем ширину венца
колеса и округляем до ближайшего целого значения:
Принимаем 
;
Определяем ширину венца
шестерни и округляем до ближайшего целого значения
Принимаем 
.
Определяем нормальный
модуль зубчатого колеса 
.
Значение модуля должно
быть в пределах
Минимальный модуль 
определяется из условия
прочности зубьев на изгиб по известному межосевому расстоянию по следующей
зависимости[1,с.41, ф.2.11]:
где 
; для прямозубых передач
и 2600 для косозубых и шевронных передач; принимаем 

- коэффициент нагрузки,
принимается равным 
; принимаем 
.
Тогда,
Максимально допустимый
модуль 
определяется из условия
неподрезания зубьев у основания [1,с.41, ф.2.12]:
Тогда,
В полученном диапазоне
(0,899…4,137) принимаем стандартное значение нормального модуля 
по ГОСТ 9563-60
[1,с.42], принимаем 
. Определим минимальный
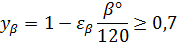
угол наклона зубьев [1, с.42. ф.2.14 ].
Тогда,
Определяем суммарное
число зубьев [1, с.42, ф.2.15 ].
Тогда,
Полученное значение
округляем в меньшую сторону до ближайшего целого:
Определяем число зубьев
шестерни [1, с.42. ф.2.16 ]:
Тогда,
Принимаем 
- условие выполняется
Определяем число зубьев
колеса
С целью сохранения
принятого межосевого расстояния 
необходимо определить
точное значение угла наклона зубьев [1, с.44. ф.2.18 ]:
Тогда,
Определяем фактическое
значение передаточного числа с точностью до 0,01.
Фактическое значение
передаточного числа не должно отличаться от заданного больше чем на 4%.
Тогда,
Выполняем проверочный
расчёт на контактную выносливость по формуле 2.19 [1, с.44 ]:
где

Тогда,
Так как расчётные
напряжения 
меньше допускаемых 
то ранее принятые
параметры передачи принимаем за окончательные.
Выполняем проверочный
расчет на выносливость при изгибе для зубьев шестерни и колеса [1, с.44. ф.2.20
]:
где коэффициент нагрузки
принимаем: 

-
коэффициент, учитывающий форму зуба и концентрацию напряжений, определяется по
табл. 2.6 [1, с.45] в зависимости от действительного числа зубьев колес z (для
прямозубых передач внешнего зацепления) или приведенного числа зубьев 
(для косозубых и
шевронных передач) и коэффициента смещения инструмента (при отсутствии смещения
x =
0).
Найдём приведенные числа
зубьев для шестерни и колеса.
Тогда при отсутствии
смещения 
принимаем из таблицы
2.6 [1, с.45]:

- для шестерни;

- для колеса

- коэффициент,
учитывающий наклон зуба [1, с.46. ф.2.22]:
Коэффициент осевого
перекрытия 
определяется по формуле
2.23 [1, c.46]:
Тогда,

- коэффициент,
учитывающий перекрытие зубьев. Для прямозубых и узких (
) косозубых передач
Для косозубых передач

, где коэффициент
торцевого перекрытия 
определяется по формуле
2.24 [1. с.46]
Тогда,
Получаем:
условия выполняются
Определяем
геометрические размеры передачи:
делительный диаметр
колес [1, с.47, ф.2.25]:
Тогда,
Проверка определенных
делительных диаметров колёс:
- диаметр вершин зубьев
[1, с.47, ф.2.26]:
Тогда,
диаметр впадин зубьев
[1, с.47, ф.2.27]:
Тогда,
Определение сил в
зацеплении, необходимых для расчета вала и подшипников:
окружная [1, с.47,
ф.2.30]:
Тогда,
радиальная [1, с.47,
ф.2.31]:
Тогда,
осевая [1, с.47,
ф.2.32]:
Тогда,
Схема сил действующих на
вал от зубчатых колес в цилиндрической передаче, показана на рис.4.
Рисунок 4 - Силы действующие на вал
от зубчатых колес в цилиндрической передаче.
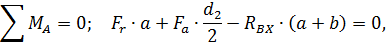
3. Определение компоновочных
размеров редуктора
По конструктивным и технологически
соображениям в редукторах применяют ступенчатые валы, имеющие различные
диаметры отдельных ступеней. Предварительно диметры консольных участков
входного и выходного валов редуктора определяют по формулам [2, с.11]:
Тогда,
примем стандартные значения из
таблицы П.1 [2, с.170]:
Диаметры остальных участков этих
валов для удобства посадки подшипников, начала зубчатых колес и других деталей
назначают по конструктивным и технологическим соображениям с учетом
необходимости фиксации детали на валу в осевом направлению.
Примем диаметры под подшипник [2,
с.12]:
Предварительно выбираем подшипник
легкой серии, шарикоподшипники радиальные однорядные по ГОСТ 8338-75 208,
209[1, с.179, т.П1].
Определяем диаметр упорного бортика
под подшипник [2, с.12]:
где t высоте упорного бортика [2,
с.12, т.2.1].
Тогда,
Определяем диаметр упорного бортика
под колесо [2, с.12]:
где t высоте упорного бортика [2,
с.12, т.2.1].
Определяем диаметр стяжного винта
[2, с.14]:
Принимаем 
Результаты расчётов сводим
в таблицу 1
Таблица 1
|
Входной вал
|
Выходной вал
|
|
|
36
|
40
|
|
|
58
|
82
|
|
|
40
|
45
|
|
|
80
|
85
|
|
|
18
|
19
|
|
|
46
|
|
|
-
|
60
|
Конструировании деталей зубчатой
передачи
Определяем толщину диска колеса [2,
с.34]:
принимаем толщину диска
колеса 
радиусов закругления 
Размеры остальных элементов
зубчатых колес принимают следующими:
Тогда,
принимаем
Определяем диаметр
ступицы:
Определяем размер фаски
на ступице:
принимаем
Определяем стандартный
размер фасок [2, с.36, т.3.1]:
Определяем минимальную
толщину стенок корпуса [2, с.71]:
Принимаем 
.
4. Расчет шпоночного
соединения под колесом на тихоходном валу редуктора
Чаще всего применяют
призматические (таблица П.6 [1, с.190] ) и сегментные (таблица П.7 [1, с.192])
шпонки. Соединения с помощью призматических и сегментных шпонок относятся к
ненапряженным соединениям. ГОСТ 23360-78 предусматривает для каждого диаметра
вала определенные размеры поперечного сечения шпонки. Поэтому при проектных
расчетах размеры поперечного сечения шпонки b и h берем из
таблицы П.6 [1, с.190] и определяем рабочую длину шпонки 
. Длину шпонки 
со скругленными или 
плоскими торцами
выбираем из стандартного ряда [1, с.190, т. П.6].
При передаче вращающего
момента на противоположных боковых узких гранях шпонки возникают напряжения
смятия 
, а в продольном сечении
- напряжения среза 
(см. рисунок 5). У
стандартных шпонок размеры b и h подобраны так, что нагрузку
соединения ограничивают не напряжения среза, а напряжения смятия.
Рисунок 5 - Схема
напряжений в шпоночном соединении.
Определяем рабочую длину
шпонки 
из условия прочности на
смятие:
Откуда,
где принимаем 
При 
(диаметр под колесом на
тихоходном валу) из таблицы П.6 [1, с.190] выбираем размеры для шпоночного
соединения (см. рисунок 6):
Рисунок 6 - Шпонка
призматическая.
Тогда,
Определяем общую длину
шпонки и округляем до ближайшего большего значения из стандартного ряда длин
шпонок [1, с.190, т. П.6]:.
принимаем 
Следовательно, выбираем
шпонку ГОСТ 233360-78:
5. Расчет тихоходного вала редуктора
На вал от зубчатого колеса,
подшипников и других деталей передаются окружные, радиальные и осевые силы,
создающие в поперечных сечениях продольные и поперечные силы, изгибающие и вращающие
моменты. Таким образом, вал испытывает сложную деформацию - изгиба (растяжения
- сжатия) и кручения. Продольные силы создают в сечениях вала нормальные
напряжения растяжения или сжатия небольшой величины, поэтому они в расчетах не
учитываются.
Действующие на вал силы распределены
по длине ступицы, ширине подшипника. При проектном расчете расчете считаем эти
силы сосредоточенными и приложенными на середине ширины зубчатого венца или
подшипника. Эти сечения принимаем за расчетные. По длине вала место приложения
нагрузки зависит от расположения зубчатого колеса и опор. Муфта создает силу,
лежащую в плоскости , перпендикулярно к оси вала. После приведения этих сил к
оси вала последний оказывается нагруженным поперечными силами и вращающим
моментом. Косозубая цилиндрическая передача, кроме сил, лежащих в плоскостях,
вызывает появление осевой силы, приложенной на зубьях. Приведение этой силы к
оси вала дает осевую (сжимающую или растягивающую) силу и сосредоточенный
изгибающий момент.
Исходные данные:
Силы, действующие на вал от
косозубой цилиндрической передачи (определены при расчете передачи):
окружная - 
- действует в
вертикальной плоскости;
радиальная - 
и осевая - 
(действуют в
горизонтальной плоскости);
Вращающий момент на валу
- 
;
Частота вращения вала - 
Диаметр делительной
окружности зубчатого колеса, установленного на валу - 
;
Режим нагружения -
постоянный;
Требуемый ресурс - 
;
Диаметр вала под
подшипники - 
мм;
Диаметр вала под колесо
- 
мм;
Расстояние между опорами
вала, координат точек приложения сил определяем по эскизной компоновке
редуктора: 


;
Выходной вал редуктор
соединен с приводным валом упругой муфтой.
Последовательность
расчета:
1. Определяем радиальную силу от
муфты, действующую на консольный участок вала по формуле [1, с.126, ф.6.2]:
Принимаем действие этой силы в
вертикальной плоскости (как и силы 
) направленной на увеличение
деформации вала от силы 
.
. Используя эскизную компановку
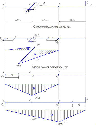
редуктора, составляем расчетную схему вала (см. рисунок 7, а).
Рисунок 7 - Эскизная компоновка
редуктора
. Опорные реакции в горизонтальной
плоскости (см. рисунок 7, б ).
Откуда,
Проверка
правильности определения реакций:
4. Опорные реакции в вертикальной
плоскости (см. рисунок 7, в ).
Откуда,
Проверка:
5. Опорные реакции от силы 
(см. рисунок 7, г ).
Откуда,
Проверка:
6. Суммарные реакции в опорах
(приведенные в одну плоскость), которые будут использованы в качестве
радиальных нагрузок при выборе подшипников качения:
7. Изгибающие моменты:
в горизонтальной плоскости (см.
рисунок 7.б):
в вертикальной плоскости (см.
рисунок 7.в):
изгибающие моменты от силы 
(см. рисунок 7.г):
изгибающий момент в сечении C (под
колесом):
8. Суммарный изгибающий момент в
сечении под колесом (сечение C - это сечение наиболее нагруженное)
9. Принимаем материал вала - сталь
45 [1, с.117, т.6.1]:
Механическая обработка тонкая
обточка; вал не подвергается поверхностному упрочнению
. Расчёт на сопротивление усталости:
Для опасного сечения вала (сечение C) расчетный
коэффициент запаса прочности определяется по [1, с.128, ф.6.8], а коэффициенты 
по формулам 6.10 и 6.11
соответственно [1, с.128]:
где 
- коэффициент запаса по напряжениям
изгиба:

- коэффициент запаса по напряжениям
кручения:
В этих формулах 
- пределы выносливости гладких
образцов при симметричном цикле изгиба и кручения;

- коэффициент долговечности,
учитывающий режим нагружения и срок службы; значение коэффициента лежит в
пределах 
; при постоянном режиме нагружения:
так как 
, то 
принимаем равным 1.

и 
суммарные коэффициенты учитывающие
влияние всех факторов на сопротивление усталости соответственно при изгибе и
кручении определяются по [1, с.131, ф.6.20]:
где 
- эффективные коэффициенты
концентрации напряжений зависят от вида концентраторов напряжений. В месте
посадки на вал имеются два типа концентраторов: ступенчатый переход с галтелью
и шпоночная канавка. Для этих концентраторов по [1, с.131, т.6.3 т.6.4] находим
значения 
.
для ступенчатого перехода с галтелью
(t = 4 мм, r
= 2,5 мм приняты по [1, с.133, т.6.5]):
- для шпоночной канавки, выполненной
пальцевой фрезой: 
.
Следовательно, большее влияние на
прочность вала оказывает ступенчатый переход с галтелью r = 2,5 мм;
поэтому для расчета принимаем 
. В этом сечении вал имеет сплошное
круглое сечение.
По таблице 6.6 [1, c.133]
находим 
; по таблице 6,7 [1, c.134] - 
; коэффициент 
, так как вал не подвергается
поверхностному упрочнению.
Таким образом,
По [1, c.129,
ф.6.14] определяем амплитудные значения напряжений:
где моменты сопротивления 
и 
определяем по [1, c.129, ф.
6.15]:
тогда ,
Определяем коэффициент запаса
прочности
Следовательно, вал удовлетворяет
условию прочности по сопротивлению усталости.
6. Выбор подшипников качения
При частоте вращения 
выбор подшипников проводится по
динамической радиальной грузоподъемности 
, а при 
- только по статической
грузоподъемности.
Исходные данные:

- диаметр опорной части вала;

- радиальные нагрузки действующие
на подшипник;

- внешняя осевая сила ( направлена
в сторону опоры 2 см. рис. 7);

- частота вращения внутреннего
кольца подшипника;

- требуемы ресурс подшипника;
Режим нагружения - постоянный.
Последовательность расчета:
Выбираем предварительно [1, с.179,
т.П1] шарикоподшипники легкой серии 209, у которых динамическая
грузоподъемность 
, а статическая радиальная нагрузка 
.
Определяем эквивалентную
динамическую нагрузку [1, с.145, ф.7.3]:
где i номер опоры
(i = 1; 2); V
- коэффициент вращения (V
=1 при вращении внутреннего кольца подшипника, V = 1,2 при вращении наружного колеса); 
- радиальная нагрузка,
действующая на подшипник, Н; 
- осевая нагрузка,
действующая на подшипник; 
- коэффициенты,
учитывающие разное повреждающее действие радиальной и осевой нагрузок; 
- коэффициент
безопасности, учитывающий характер нагрузки; 
- для коробок скоростей
металлорежущий станков; 
- для редукторов; 
- коэффициент,
учитывающий температуру подшипникового узла; при температуре 

Принимаем коэффициенты: 
; 
Схема установки двух
шариковых подшипников показана на рис. 8.
Рисунок 8 - Схема
расположения подшипников.
Осевую нагрузку
воспринимает подшипник 2, поэтому
По таблице 7.1 [1,
с.147] для соотношения 
находим коэффициент
линейной нагрузки 
э
Следовательно
коэффициенты учитывающие разные повреждающие действие радиальной и осевой
нагрузки принимаем
Тогда,
Дальнейший расчет
ведется по более нагруженной опоре 2.
Определяем ресурс
принятого подшипника [1, с.143, ф.7.1, ф.7.2]:
где n - частота вращения кольца, мин-1; L - ресурс подшипника, млн оборотов,
где 
- коэффициент долговечности,
вводимый при повышенных требованиях к надежности, равной 
(редукторы и коробки скоростей), 
; 
- коэффициент, учитывающий качество
материала деталей подшипника и условия эксплуатации;
Принимаем [1, с 144]: 

- показатель степени (для шариковых
подшипников 
, для роликовых 
).
Принимаем: 
Тогда,
Таким образом,
Так как ресурс выбранного подшипника
намного больше требуемого ресурса, то принимаем подшипник особо легкой серии
109 у которого 
, 
, а 
.
Таким образом,
Следовательно, ранее принятые
параметры принимаем за окончательные.
Проверяем подшипники качения по
статической грузоподъемности.
Во избежание появления опасных для
работы остаточных деформаций на контактирующих поверхностях нагрузку
подшипников ограничивают статической грузоподъемностью. Проверка на отсутствие
остаточных деформаций в зоне контакта тел качения с кольцами проводится по условию:
где 
- эквивалентная статическая
радиальная нагрузка. При совместном действии на подшипники радиальной 
и осевой 
нагрузок, эквивалентная статическая
нагрузка определяется как наибольшее значение двух [1, с 151 ф.7.9]:

; 
где 
, 
- коэффициенты радиальной и осевой
статических нагрузок, определяемые по таблице 7.2 [1, с 151]:

, 
Тогда,
Следовательно,
Подшипник пригоден. При заданном
ресурсе вероятность безотказной работы данного подшипника будет выше 
.
Список использованной литературы
1. Учебное
пособие "Расчеты деталей машин" В. Ф. Пантелеев, Издание 3, Пенза
Издательство Пензенского государственного университета, 2007.
2. Учебное
пособие "Конструирование деталей и узлов технологических и транспортных
машин" В. Ф. Пантелеев, Пенза, 2003.
. Методические
указания "Кинематический и энергетический расчеты механических приводов
машин" В. Ф. Пантелеев, Д. В. Кочетков, Пенза Издательство Пензенского
государственного университета, 2011.