Проектирование неутепленного здания с несущими деревянными гнутокленными рамами ступенчатого очертания

  • Вид работы:
    Курсовая работа (т)
  • Предмет:
    Строительство
  • Язык:
    Русский
    ,
    Формат файла:
    MS Word
    443 Кб
  • Опубликовано:
    2014-12-14
Вы можете узнать стоимость помощи в написании студенческой работы.
Помощь в написании работы, которую точно примут!

Проектирование неутепленного здания с несущими деревянными гнутокленными рамами ступенчатого очертания

КУРСОВОЙ ПРОЕКТ

Проектирование неутепленного здания с несущими деревянными гнутокленными рамами ступенчатого очертания

1. Исходные данные

Длина здания - 18 м;

Шаг несущих рам - 6 м;

Пролет здания - 21 м;

Высота в карнизном узле - 5 м;

Место строительства - г. Новосибирск;

Уровень ответственности здания - II.

Покрытие здания двускатное с наружным водоотводом. Кровлю назначаем из волнистых асбестоцементных листов профиля 54/200∙7,5 (ГОСТ 30340-95. Листы асбестоцементные волнистые).

Назначаем уклон ската покрытия i=25%, при нормативном требовании к уклону кровли на волнистых асбестоцементных листов не менее 20% (СНиП II-26-76. Кровли, п. 8. 1).

Деревянные прогоны принимаем из брусьев цельного сечения. Исходя из длины листов 54/200∙7,5 и требований СНиП II-26-76, табл. 4 расстояние между осями прогонов по скату назначаем 1,5 м.

Прогоны проектируем однопролетными, свободно опертыми на поперечные рамы. Длина опирания прогона на раму не должна быть менее 60 мм, что следует учесть при установлении ширины сечения рамы.

Пространственную неизменяемость и жесткость несущих конструкций здания, устойчивость рам из их плоскости, а также восприятие и передачу на фундамент нагрузки от ветрового напора на торцевые стены здания, обеспечиваем постановкой системы связей. Система связей включает: поперечные скатные связи в плоскостях верхних граней несущих конструкций покрытия; прогоны покрытия; продольные вертикальные связи по карнизным узлам рам; вертикальные связи по стойкам фахверка продольных стен здания. Скатные связи располагаем по торцевым секциям здания и в промежуточной секции (расстояние между связями допускается не более 30 м). В тех же секциях располагаем вертикальные связи по стойкам. Вертикальными связями по карнизным узлам соединяем рамы попарно.

Для изготовления несущих конструкций здания, связей и деталей узлов применим древесину сосны 2 и 3 сорта по ГОСТ 24454-80Е.

. Компоновка рамы

Уклон наружной кромки прямолинейной части ригеля проектируем равным углу кровли tgα = 0,25 (α = 14º).

Рама состоит из двух полурам заводского изготовления, соединяемых в коньке монтажным стыком с помощью деревянных накладок и стальных болтов.

По [1] устанавливаем, что г. Новосибирск находится в сухой зоне влажности. Тогда в соответствии с [2] п. 2.2 температурно-влажностные условия эксплуатации деревянных конструкций внутри неотпаливаемого помещения - Б1.

Древесина перед склеиванием конструкции, предназначенной для условий эксплуатации Б1, должна иметь влажность 5 - 9% [2]. В соответствие с п. 2.6 [2] для склеивания древесины назначаем синтетический фенольно-резорциновый клей марки ФРФ-50 (ТУ 6-05-281-14-77).

Склеивание досок по длине производим зубчатым клеевым соединением с вертикальными зубчатыми шипами (ГОСТ 19414-79).

Доски в пакете склеиваем в пласты. Перед склеиванием доски каждого слоя фрезеруем с 2-х пластей по 1-й группе припусков.

Отношение радиуса кривизны к толщине доски (r/δ) >150 [2]. Для обеспечения возможно меньшего радиуса кривизны криволинейного карнизного узла рамы толщину доски, после фрезерования, принимаем δ = 16 мм.

Учитывая минимальный припуск на фрезерование и исходя из сортамента ГОСТ 24454-80Е, для получения досок по фрезерования 16 мм, используем доски - заготовки δ = 22 мм.

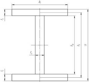
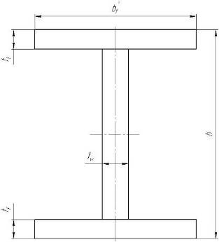
Длина полурамы не превышает 12 м. Припуск на фрезерование её боковых поверхностей - 15 мм. Проектную ширину сечения полурамы принимаем b = 135 мм. Ширина исходно доски - заготовки равна 150 мм.

Высота сечения полурамы изменяется ступенчато. Большую высоту сечения h1 можно принять: h1=(1/15…1/25) l, где l - пролет рамы, т.о. h1 = 832 мм, на 52 доски толщиной 16 мм, h2 = (0,5…0,6) h1, h2 = 496 мм - 31 доску толщиной 16 мм.

Принимаем радиус кривизны карнизного узла по внутренней кромке поперечного сечения полурамы rв = 2500 мм. Отношение rв / δ = 2500 / 16 = 156 >150.

Радиус кривизны по наружной кромке сечения , то же по центральной оси сечения .

За расчетную ось рамы принимаем параллельную наружной кромке линию, проходящую через центр тяжести конькового сечения рамы. Расстояние от наружной кромки до расчетной оси hр = 273 мм.

Длину по расчетной оси участка полурамы высотой сечения h2 = 496 мм принимаем равной 3900 мм.

Определим геометрические параметры расчетной оси:

расчетный пролет рамы считаем равным пролету здания l = 21000 мм;

высота рамы по расчетной оси в коньке:

;

- радиус кривизны расчетной оси в гнутой части полурамы:

;

величина углов α = 14º, ψ = 90º + α = 90º + 14º = 104º, φ = 180º - ψ = = 180º - 104º = 76º;

длина прямолинейной стойки полурамы:


длина гнутой части полурамы:


длина прямолинейного ригеля полурамы:


полная длина расчетной оси полурамы:


Координаты xn, yn точек расчетной оси (n - номер точки):



Для точек 4…8 найдем шаг:


Координаты точек 4…8 вычислим по формулам:



Таблица 1. Координаты точек расчетной оси

№ сечения

0

1

2

3

4

5

6

7

8

x, мм

0

0

648

2319

3955

5591

7227

8863

10500

y, мм

0

2610

4493

5578

5989

6398

6807

7216

7625


3. Сбор нагрузок

Нагрузка от собственного веса асбестоцементных листов принимаем .

Предварительно принимаем значение прогонов b x h = 200 x 250 мм, шаг прогонов , плотность древесины .

Тогда:

Нормативное значение снеговой нагрузки S для находящегося в IV снеговом районе г. Новосибирск, п. 5.1 [3]: , где  - нормативное значение веса снегового покрова на 1 м2 горизонтальной поверхности земли (п. 5.2 [3]), μ = 1 - коэффициент перехода (п. 5.3 [3]).

Коэффициент надежности по нагрузке для снега определяют с учетом соотношения

.

Тогда согласно [3] γf = 1,6.

Нормативная нагрузка от собственного веса рамы [4]:



Таблица 2. Нормативные и расчетные нагрузки на 1 м2 здания

Наименование нагрузки

Нормативная нагрузка, Па

γf

Расчетная нагрузка, Па

Постоянная: Волнистые асбестоцементные листы 54/200-7,5 с учетом нахлестки

220

1,2

264

Деревянные кровельные прогоны b x h = 200 x 250 мм

129

1,1

142

Собственный вес рамы

326

1,1

359

Итого:

765


765

Кратковременная: Снег

1500

1,6

2400

. Расчет прогона

Предварительно сечение прогона принято b x h = 200 x 250 мм. Геометрические характеристики сечения относительно главных осей x. y:

Расчет по предельному состоянию первой группы на прочность

Вертикальная расчетная нагрузка на 1 пог. метр прогона:

Составляющие вертикальной нагрузки, действующие перпендикулярно q1 и параллельно q2 скату кровли:



Расчетный пролет прогона . Сорт древесины прогона - второй.

Заданный уровень ответственности здания - II, значит . Составляющие расчетного изгибающего момента для главных осей сечения с учетом :


Проверку на прочность в соответствии с п. 4.12 [2] выполняем по формуле:


Здесь Ru = 15 МПа по табл. 3 [2] для древесины прогона 2 сорта. Прочность прогона обеспечена.

Расчет по предельному состоянию второй группы на прогиб.

В соответствии с табл. 19 [3] величина вертикального предельного прогиба прогона



Прогиб прогона f следует определить от сочетания нагрузок: постоянной и снеговой с полным нормативным значением ([3], разд. 10, прил. 8).

Вертикальная расчетная нагрузка на 1 пог. метр прогона равна нормативной, умноженной на  (п. 1.3 в [3]):

Находим составляющие вертикальной нагрузки:


Наибольший прогиб определяем в соответствии с п. 4.33 СНиП II-25-80. Значение вертикального прогиба равно геометрической сумме прогибов f1 и f2 от нагрузок q1 и q2:


Находим составляющие прогиба без учета деформаций сдвига:


Здесь - модуль упругости древесины вдоль волокон.

В формуле (50) СНиП II-25-80 имеем k = 1 - для прогона постоянного сечения; с = 15,4 + 3,8β = 15,4 + 3,8 ∙ 1 = 19,2 (β = 1 - для постоянного сечения).

Составляющие прогиба с учетом деформаций сдвига:


Полный вертикальный прогиб:


Фактический прогиб прогона не превышает предельный. По результатам проверки окончательно принимаем прогон с размерами поперечного сечения b x h = 200 x 250 мм.

Расчет узла опирания прогона на раму

Скатная составляющая (q2) нагрузки в месте опирания прогона на раму воспринимается бобышкой, прибитой к раме гвоздями.

Расчетное усилие, передаваемое на бобышку от двух прогонов:

,

где lпр = 6 м - длина прогона, равная шагу рам.

Число гвоздей крепления бобышки к раме определяем в соответствии с указаниями п. 5.13 [2]. Предварительно принимаем бобышку hб = 75 мм, гвозди диаметром dгв = 5 мм, длиной lгв = 150 мм (ГОСТ 4028-63). Соединение бобышки с рамой является несимметричным односрезным.

Расчетная длина защемления конца гвоздя в раме согласно п. 5.20 [2]:


Расчетная несущая способность гвоздя на один шов сплачивания принимается наименьшее из значений, найденных по формулам табл. 17, [2]:

, но не более

,

Здесь a и с - меньшая и большая длина защемления гвоздя в соединяемых элементах (a = aгв с = hб при hб > aгв; a = hб и с = агв при hб < aгв).

Имеем a = агв = 65,5 мм и с = hб = 75 мм, т.к. hб = 75 мм > aгв = 65,5 мм.

Тогда:


Наименьшая расчетная несущая способность Т = 1 кН.

Необходимое число гвоздей крепления бобышки:


Принимаем 6 гвоздей.

При расстановке гвоздей следует принимать расстояния ([2], п. 5.21).

Расстояние вдоль волокон древесины от гвоздя до торца элемента во всех случаях следует принимать не менее S1 = 15dгв = 15 ∙ 5 = 75 мм;

Расстояние между осями гвоздей поперек волокон древесины при прямой расстановке гвоздей следует принимать не менее S2 = 4d гв;

Расстояние S3 от крайнего ряда гвоздей до продольной кромки элемента следует принимать не менее 4dгв = 4 ∙ 5 = 20 мм;

Схема расположения гвоздей

Крепление прогонов к раме выполняем гвоздями через брусок b x h = 50 x 50 мм.

. Статический расчет рамы

Усилия в раме от постоянной и снеговой нагрузок

Расчетная схема рамы

Постоянная расчетная нагрузка от собственного веса несущих и ограждающих конструкций здания на 1 пог. метр рамы при шаге рам 6 м (табл. 2):

Снеговая расчетная нагрузка на 1 пог. метр рамы:

В расчете используем нагрузки, умноженные на коэффициент надежности по уровню ответственности здания [3]:

Определение изгибающих моментов в сечения 1…8 рамы при загружении левой половины пролета единичной нагрузкой . Вертикальные опорные реакции:



Распор:


Изгибающие моменты:


Где n - номер сечения, xn, yn - координаты сечений (точек) расчетной оси рамы:

Определение изгибающих моментов в сечениях 1…8 левой полурамы при загружении правой половины пролета единичной равномерно распределенной нагрузкой . Вертикальная опорная реакция:


Распор:


Изгибающие моменты:


Изгибающие моменты в раме при единичной нагрузке на всем пролете получены алгебраическим суммированием изгибающих моментов, определенных в соответствующих сечениях при одностороннем нагружении.

Таблица 3. Расчетные изгибающие моменты в сечениях рамы

№ сечения

Изгибающие моменты в сечениях рамы Мω, к∙Нм

Расчетные моменты при сочетании нагрузок


От q = 1 кН/м

От постоянной нагрузки

От снега

От ветра



Слева на 0,5L

Справа на 0,5L

На 1


Слева на 0,5L

Справа на 0,5L

На 1

Слева

Справа

Постоянная и снег слева на 0,5L

Постоянная и снег справа на 0,5L

Постоянная и снег на 1

1

-9,433

-9,433

-18,866










2

-11,335

-14,537

-25,872










3

-4,589

-13,956

-18,545










4

1,681

-8,567

-6,886










5

5,277

-8,446

-3,169










6

6,198

-5,63

0,568










7

4,441

-2,813

1,628










8

0

0

0

0

0

0

0

0

0

0

0

0


Усилия в раме от ветровой нагрузки


Находим требуемый момент сопротивления измененного сечения по формуле:


Определяем требуемый момент инерции уменьшенного сечения балки:


Определяем площадь поясов уменьшенного сечения:


Имея толщину пояса, находим ширину пояса уменьшенного сечения:


Т.к. по расчету ширина сечения получается меньше, чем требуется по конструктивным соображениям, то ширину полки уменьшенного сечения принимаем по конструктивным требованиям - 180 мм.

Подбор сечения из условия жесткости (прокатное сечение).


По ГОСТ 26020-83 принимаем двутавр 20Б1, Wx=194,3 см3, Ix=1943 см4,

Sx=110,3 см3, mпм=22,4 кг/м.

Вычисление геометрических характеристик составного сечения.


Для основного сечения:

 

Для уменьшенного сечения:


Статический момент полусечения:

. Проверки подобранного сечения

 

По I группе ПС

Проверка прочности по нормальным напряжениям.


Условие выполняется.

Проверка прочности по касательным напряжениям.

рама нагрузка прогон сечение

Условие выполняется.

Проверка прочности по местным напряжениям.

Т. к. сопряжение балок находится на одном уровне, то

Проверка прочности по приведенным напряжениям.


Условие выполняется.

Проверка общей устойчивости.

Общая устойчивость главной балки считается обеспеченной, и проверка не требуется, если соблюдается одно из условий:


Т. к. соотношение , то принимаем .

Приложение нагрузки к верхнему поясу:


Приложение нагрузки к нижнему поясу:


Независимо от уровня приложения нагрузки при расчете участка балки между связями или при чистом изгибе:



Условие выполняется.

Проверка местной устойчивости полки.


Условие выполняется.

Проверка местной устойчивости стенки.

- гибкость стенки

Условие гибкости:


а) Проверка устойчивости от действия касательных напряжений:

Т.к.  и , то ставим ребра жесткости.

Ширина ребра жесткости:

Принимаем ширину ребра - 80 мм.

Толщина ребра жесткости:

По ГОСТ 19903-74 принимаем толщину ребра - 6 мм.

б) Проверка устойчивости стенки при действии нормальных напряжений:

Т. к. , то местная устойчивость будет обеспечена.

в) Проверка устойчивости стенки при совместном действии касательных и нормальных напряжений:

Т. к. и , то местная устойчивость будет обеспечена.

По II группе ПС

Проверка местной устойчивости стенки.


Условие выполняется.

. Расчет колонны

Составление расчетной схемы


Определение нагрузки и внутренних усилий


;

;

- без учета собственного веса;

- с учетом собственного веса;


Расчетная нагрузка на колонну с учетом собственного веса:

N=F=4353,5 кН

Определение расчетных длин



- расчетная длина;

μ - коэффициент приведения длины;

l - геометрическая длина элемента.


Предварительный подбор сечения

Условие устойчивости:


А - площадь поперечного сечения;

φ - коэффициент продольного изгиба (φ=0,7-0,8);


а) Подбор сплошного прокатного сечения:

По ГОСТ 26020-83 принимаем двутавр 80Б1, Wx=5044 см3, Ix=199500 см4,

Sx=2917 см3, mпм=159,5 кг/м.

б) Подбор сплошного сварного сечения (сварной двутавр):




λ - гибкость колонны

Если φ=0,8 и Ry=240 МПа, то

Для колонны:

;

;

;


По ГОСТ 82-70 принимаем ширину полок - 420 мм.


Для получения конструктивного сечения принимаем .

Находим tw и tf. Для центральносжатых колонн: ; .

Отсюда:


По ГОСТ 19903-74 принимаем толщину полок - 21 мм.


По ГОСТ 19903-74 принимаем толщину полок - 11 мм.

По конструктивным требованиям  - условие выполняется.

Также  и  - условие выполняется.

в) Подбор сквозного сечения:


- требуемое сечение ветви.


По ГОСТ 8239-89 принимаем двутавр 55, Wx=2035 см3, Ix=55962 см4,

Sx=1181 см3, mпм=92,6 кг/м.

Определяем b, используя условие равноустойчивости.

; ;

;



Из условия удобства нанесения антикоррозионной защиты на внутренние поверхности, расстояние «в свету» между полками прокатных профилей должно быть не менее 100 мм. Условие выполняется.

Подбор соединительных элементов.


Ширина планок назначается в зависимости от ширины сечения b:


Толщина планок принимается конструктивно:

Расстояние между серединами планок определяется из условия обеспечения совместной работы ветвей колонны и зависит от минимального радиуса инерции ветви:


Длину ветви вычисляем по формуле:

Проверки подобранного сечения

а) Сплошное прокатное сечение:

условие прочности:

Условие выполняется.

условие устойчивости:


Условие выполняется.

б) Сплошное сварное сечение:


;


- условие местной устойчивости полки:

;

=

Условие выполняется.

условие местной устойчивости стенки:

;


Условие выполняется.

в) Сквозное сечение:

Т. к. ветви одинакового сечения и усилие в них одинаковое, то проверяем только одну ветвь.

условие устойчивости ветви относительно оси Х:


Условие выполняется.

условие устойчивости ветви относительно оси Y:


Условие выполняется.

условие устойчивости всего сечения относительно оси Y:


Условие выполняется.

условие устойчивости всего сечения относительно оси Х проверять не требуется, т.к. устойчивость отдельных ветвей относительно оси Х - обеспечена.

Библиографический список

1.   СНиП II-23-81*. Стальные конструкции / Госстрой СССР. - М.: ЦИТП Госстроя СССР, 1990. - 96 с.;

2.      Расчет и конструирование основных несущих конструкций стальной балочной клетки: методические указания к выполнению первого курсового проекта по курсу «Металлические конструкции» для студентов очной и заочной форм обучения специальности 270102 - Промышленное и гражданское строительство/ сост. Г.Н. Шавшукова, З.В. Беляева. Екатеринбург: УГТУ - УПИ, 2007. - 40 с.;

.        СНиП 2.01.07-84*. Бетонные и железобетонные конструкции. - М.: Стройиздат, 2000. - 80 с.;

.        Металлические конструкции. В 3 т. Т. 1. Элементы стальных конструкций: Учеб. пособие для строит. вузов / Под ред. В.В. Горева. - М.: Высш. шк., 2004. - 551 с.

Похожие работы на - Проектирование неутепленного здания с несущими деревянными гнутокленными рамами ступенчатого очертания

 

Не нашли материал для своей работы?
Поможем написать уникальную работу
Без плагиата!
Без нейросетей!