Разработка технологического процесса изготовления шкворневой балки полувагона
Содержание
1. Анализ
исходных данных для разработки технологического процесса изготовления
шкворневой балки полувагона
.1
Назначение, материал и конструкция рамы полувагона, шкворневой балки
.2
Нормативные требования при изготовлении рамы полувагона
. Определение
объема работ и выбор метода изготовления
.1 Расчет
программы изготовления шкворневой балки полувагона, определение такта
изготовления
.2 Выбор
метода изготовления
. Выбор
оборудования и разработка технологической оснастки
.2 Разработка
сварочного стола для сборки и сварки шкворневой балки
.
Нормирование технологического процесса, составление технологической карты
изготовления шкворневой балки
.1 Разработка
технологического процесса. Нормирование операций
.2
Составление технологической карты изготовления шкворневой балки
. Расчет
себестоимости изготовления шкворневой балки
. Техника
безопасности и охрана труда при изготовлении шкворневой балки
Литература
1. Анализ исходных данных для разработки технологического процесса
изготовления шкворневой балки полувагона
.1 Назначение, материал и конструкция рамы полувагона, шкворневой балки
Рама полувагона является основой кузова, воспринимает от него и
перевозимого груза все нагрузки, передает их на ходовые части и, кроме того,
служит для размещения автотормозного и автосцепных устройств. Рамы современных
грузовых вагонов представляют собой прочные металлические цельносварные
конструкции из продольных и поперечных балок. Рамы основных типов вагонов
эксплуатационного парка изготовлены из стали марок 09Г2Д, 10Г2БД, а после 2001
г. для изготовления рам применяют более прочные стали марок ЮХСНД и 16Г2АФД.
Рама универсального четырехосного полувагона (рисунок 1.1) имеет
хребтовую балку 7, сваренную из двух специальных Z-образных профилей и
перекрытую сверху двутавром 10, для навешивания петель 1 крышек люков, две
концевые балки 2 коробчатого сечения из гнутого уголка, вертикального и
горизонтального листов; две шкворневые балки 5 замкнутого коробчатого сечения
из двух вертикальных и двух горизонтальных листов и четыре промежуточные балки
11 из вертикального листа и горизонтальных поясов.
Рисунок 1.1 - Рама универсального четырехосного полувагона
К верхней полке концевой балки приварен порог торцевой двери 16. Верхним
листам шкворневых и поперечных балок придана выпуклая форма, чтобы верхние
точки этих балок были выше гофров крышек разгрузочных люков. При таком уровне
указанных элементов перевозимые длинномерные грузы опираются на балки рамы, а
не на крышки люков. Кроме того, выпуклая форма верхних листов поперечных балок
способствует более полной разгрузке через люки. Для предохранения тележек от
попадания на них сыпучего груза при разгрузке на вертикальных листах шкворневых
балок приварены специальные планки.
На всех поперечных балках имеются упоры, ограничивающие угол открывания
люков. У шкворневых балок упоры являются одновременно скользунами. Для опоры на
тележки рама имеет два стальных литых пятника. По концам хребтовой балки
расположены розетки автосцепки 17.
Наличие двутавровой балки увеличивает высоту хребтовой балки полувагона и
угол открытия крышек люков, что необходимо для более полной выгрузки сыпучих
грузов.
Рама восьмиосного универсального полувагона имеет восемь промежуточных
балок. Рама специализированного полувагона отличается от рамы универсального
тем, что в ней для поддержания пола между хребтовой балкой и каждой из боковых
стен поставлено по дополнительной продольной балке из двутавра № 19. Кроме
того, рама не имеет двутавра хребтовой балки.
Металлы для изготовления рам полувагонов относятся к I группе: несущие
толстостенные элементы, предельное состояние которых оценивается прочностью.
Поэтому металл для них должен обладать повышенными механическими
характеристиками. Вместе с тем в связи с толстостенностью этих элементов
предъявляются менее жесткие требования по коррозионной стойкости металла.
Для кузовов грузовых вагонов в основном применяются низколегированные
стали марок 09Г2Д, 09Г2СД и 10ХНДП вместо ранее применявшейся углеродистой
стали СтЗ. Стали 09Г2Д и 09Г2СД используются для изготовления рам и
подкрепляющих элементов стен и крыши, а сталь 10ХНДП - для обшивки кузова.
Объясняется это тем, что стали 09Г2Д и 09Г2СД значительно дешевле стали 10ХНДП,
поэтому они используются в более материалоемких элементах кузова.
Шкворневая балка рамы люкового полувагона, рисунок 1.2, устанавливается
на хребтовую балку рамы (на чертежах показана штрих-пунктирной линией) и
состоит из двух пар вертикальных стенок 1, соединенных диафрагмами 2, нижней
полки 3 (12 мм) и верхней полки 4 (10мм). Последние перекрывают вертикальные
стенки 1 попарно и хребтовую балку рамы. Вертикальные стенки 1 дополнительно
соединяются с хребтовой балкой компенсирующими накладками 5, являющимися
продолжением вертикальных стенок 1. Нижняя полка 3 сужается от пятникового
места Б, на ней установлены скользуны В, предназначенные для взаимодействия со
скользунами ходовой тележки полувагона. Верхняя полка 4 выполнена двускатной,
т.е. перегнутой по оси симметрии детали, имеет покатые края Г и сварена с обеими
парами вертикальных стенок 1 и накладками 5. Высота стенок 1 увеличена до
контакта с верхней двускатной полкой 4, а в верхних частях вертикальных стенок
выполнены прямоугольные вырезы Д, обеспечивающие сварочные соединения с
элементами кузова - нижними продольными обвязками Е боковых стенок.
Рисунок 1.2 - Шкворневая балка полувагона
При этом на верхней двускатной полке 4 установлены соединительные
компенсационные накладки 6, которые повторяют в поперечном сечении форму
верхней двускатной полки, прилегают к последней и к нижним продольным обвязкам
Е. Накладки 6 выполнены с двойными скосами Ж на торце, предназначенными для
улучшения сварных соединений с верхней двускатной полкой 4. Покатые боковые
края последней взаимодействуют с рабочими поверхностями закрытых крышек люков
по образующим линиям К нижних кромок, что не создает условий для прессования
остатков сыпучих грузов. Верхняя двускатная полка 4 может быть выполненной из
двух равных по длине частей, которые стыкуются между собой на постоянной
подкладке 7, привариваемой снизу и в поперечном сечении также повторяющей форму
верхней двускатной полки.
При сборнике рамы полувагона в нормальном положении две шкворневые балки,
без нижних полок 3 и соединяющих компенсационных накладок 5 и 6,
устанавливаются на хребтовую балку, которая размещена на предварительно
установленных нижних полках 3, и привариваются к последним. Потом
устанавливаются накладки 5. Накладки 6 устанавливаются и привариваются на
верхнюю двускатную полку 4 при соединениях рамы с боковыми стенками кузова и
выполняют свои функции. Установка предлагаемой шкворневой балки в раму возможно
и при сборнике рамы полувагона в перевернутом положении, т.е. при иной
технологической схеме сборки рамы.
.2 Нормативные требования при изготовлении рамы полувагона
Общая схема технологического процесса сборки и сварки рамы вагона
предусматривает сборку и сварку технологических сборочных единиц рамы, общую
сборку, сварку, зачистку швов после сварки, правку и контроль качества сварных
швов после правки, механическую обработку и монтажно-сборочные работы на раме,
контроль геометрических параметров рамы.
При разработке технологии изготовления рамных конструкций необходимо
выбирать оптимальную последовательность выполнения сборочно-сварочных операций.
Полное завершение сборки до начала сварки часто оказывается нецелесообразным
из-за больших сварочных деформаций и неудобства наложения швов. Поэтому при
изготовлении рам вагонов следует вначале выполнять сборку и сварку составных частей,
а затем уже общую. Хребтовую балку, шкворневые балки, поперечные балки,
металлический пол собирают и сваривают на отдельных специальных рабочих местах
параллельно процессу общейсборки рамы.
Хребтовые балки изготовляют раздельным способом (сборка и сварка
элементов на разных рабочих местах) или совмещенным (сборка и сварка на одном
рабочем месте). Если длина хребтовой балки больше, чем длина проката,
поставляемого промышленностью, производят стыковку профилей под углом 45 или 90
°. Первый способ применяют при ручной дуговой и полуавтоматической сварке. Швы
накладывают с двух сторон с разделкой кромок. Такой способ малопроизводителен и
рекомендуется для мелкосерийного производства.
Второй способ соединения стыков применяется при контактной стыковой
электросварке. Стыковую сварку прокатных профилей из малоуглеродистой и
низколегированной стали (уголков, швеллеров, двутавров, труб, зетов и т. п.)
выполняют на универсальных и специализированных машинах типов К-190П, K-19QM,
МСГУ-500.
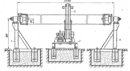
Кондуктор для сборки и сварки хребтовой балки (рисунок 1.3) имеет жесткую
раму 6 с базовыми поверхностями, на которые укладывают продольные элементы.
Рисунок 1.3 - Кондуктор для сборки и сварки хребтовой балки
На одном конце кондуктора установлены откидные упоры, ограничивающие
продольное перемещение элементов, на другом - торцовый прижим с силовым
цилиндром 5.
Для создания необходимого расстояния между вертикальными стенками
профилей кондуктор оборудован фиксирующими устройствами 1 и 4, а для ограничения
перемещений в поперечном направлении и соблюдения прямолинейности по всей длине
хребтовой балки предусмотрены боковые упоры-фиксаторы 3 и прижимы 2.
Изгибу балки в вертикальной плоскости препятствуют прижимы. В местах
установки диафрагм жесткости, пятников, упоров автосцепки, кронштейнов на
кондукторе смонтированы соответствующие фиксирующие устройства с прижимами.
Сборочно-сварочный стенд предназначен для сборки и сварки хребтовой балки на
одном рабочем месте. Конструкцией стенда предусмотрен свободный доступ ко всем
свариваемым местам, кроме того жесткость его элементов достаточна для
восприятия усилий, возникающих в результате деформаций изделия при сварке. Для
поворота (кантовки) собранных хребтовых балок и установки их в наиболее удобное
положение при сварке применяют различные стенды-кантователи.
Двухстоечные кантователи просты по конструкции и могут быть использованы
для хребтовых балок различных конструкций.
и 4 - стойки; 2 - поворотное кольцо с приводом; 3 - рама
Рисунок 1.4 - Двухстоечный кантователь для хребтовой балки
Свариваемую балку можно поворачивать на 360 °С фиксацией под любым углом.
Одностоечные кантователи просты и универсальны, однако их можно применять
только при ручной и полуавтоматической сварке. При автоматической сварке такой
кантователь не обеспечивает фиксации положения балки. Цепные кантователи
отличаются простотой конструкции.
В них нет устройств крепления свариваемой балки. При автоматической
сварке их не применяют, так как они не обеспечивают точную установку балки
параллельно оси перемещения сварочного автомата.
- стойка; 2 - привод цепи; 3 - хребтовая балка
Рисунок 1.5 - Цепной кантователь
Кольцевые кантователи применяют для установки хребтовых балок различных
конструкций. Свариваемую балку можно поворачивать на 360° и фиксировать ее под
любым углом.
Такие кантователи оснащены прижимными устройствами, закрепляющими жестко
балки во время сварки. Общую сборку рамы из предварительно сваренных частей
выполняют на стационарных стендах (кондукторах) или в поворотных
стендах-кантователях, которые оснащены быстродействующими механизированными
прижимами для жесткого фиксирования и закрепления сопрягаемых частей рамы.
Рамы кузовов всех вагонов собирают в перевернутом положении. Вследствие
этого продольные и поперечные элементы рамы со стороны настила пола
располагаются в одной плоскости, что обеспечивается точностью основной базовой
поверхности кондуктора (стенда). На собранной раме проверяют правильность
положения элементов. Зазоры между элементами устанавливают в зависимости от
толщины свариваемого металла и способов сварки в пределах 0,5-2 мм.
Прихватки для соединения деталей размещают в местах расположения сварных
швов. Размеры прихваток по сечению принимают не более 2/3 будущего шва, чтобы
их перекрыть при последующей сварке. Длина каждой прихватки должна быть в 4-5
раз больше толщины t свариваемых деталей, но не менее 30 мм. Расстояние между
прихватками выбирают в пределах (30-40) 1.
Для прихваток используют сварочные материалы тех же марок, что и при
окончательной сварке. У собранной рамы проверяют геометрические размеры, а
затем ее передают на сварку. Раму сваривают при положительной температуре
окружающей среды. Места на раме, подлежащие сварке, очищают от окалины и
загрязнений.
Если сварку выполняют вручную, то следует избегать наложения швов в
вертикальном и потолочном положении, так как при этом трудно обеспечить
надлежащее качество соединения. При сварке в среде защитных газов не должно
быть сквозняков, влияющих на стабильность сварочной дуги.
Для предотвращения деформаций сварку выполняют одновременно не менее двух
сварщиков, которые располагаются симметрично на противоположных сторонах рамы.
Минимальное расстояние между двумя одновременно работающими сварщиками
установлено 4 - 5 м по условиям безопасности от воздействия теплового
излучения. Для наложения открытых швов, доступных для продвижения сварочного
полуавтомата, применяют полуавтоматическую сварку в среде углекислого газа.
Сварку стыковых соединений рекомендуется вести только в нижнем или наклонном
(не более 20°) положении. В последнем случае электрод нужно вести на подъем.
Угловые соединения можно сваривать в нижнем и вертикальном положениях.
Автоматической сваркой в один слой можно выполнять угловые швы с катетом 6-8
мм. Швы большего сечения накладывают в несколько слоев. Стыковые соединения
металла толщиной 10 мм и более выполняют с разделкой кромок. Для поворота рам и
установки их в наиболее удобное положение при сварке применяют кантователи
(двухстоечные, кольцевые или с домкратами).
Двухстоечные кантователи просты по конструкции и универсальны по
применению.
и 6 - подвижная и неподвижная стойки; 2 и 5 - электроприводы; 3 и 4
захваты; 7 - привод перемещения стойки; 8 - грузоподъемные винты
Рисунок 1.6 - Двухстоечный кантователь для сварки рамы
Рама в них поворачивается вокруг горизонтальной оси.
Кольцевые кантователи используют для закрепления рам, имеющих достаточную
жесткость и относительно небольшой прогиб от собственной массы.
- привод кольцевой опоры; 2 и 3 - ведущая и ведомая опоры соответственно
Рисунок 1.7 - Кантователь с кольцевыми опорами
В кантователи с домкратами устанавливают рамы, которые не обладают
достаточной жесткостью для закрепления в кантователях других типов.

- рама кантователя; 2 - пульт управления домкратами; 3 - гидравлический
домкрат
Рисунок 1.8 - Кантователь с гидравлическими домкратами грузоподъёмностью
12 т
Стенды для сварки рам вагонов целесообразно применять в тех случаях,
когда рамы необходимо жестко закреплять для уменьшения деформаций.
Стенд одновременно является и сборочным приспособлением (кондуктором).
Требуется точная фиксация свариваемых кромок относительно сварочной головки.
Применяется автоматическая сварка на флюсовой подушке. По конструкции стенды
бывают стационарные и поворотные. При этом они могут быть универсальными или
специализированными.
Правка рамы вагона после сварки для устранения деформации осуществляется
в зависимости от ее конструктивных особенностей в холодном состоянии на прессах
или при помощи переносных домкратов с местным подогревом пламенем
газокислородных горелок.
Для холодной правки рам применяют гидравлические прессы усилием 1500 кН и
более, которые монтируют на поточной линии. Правка осуществляется созданием
обратного изгиба в деформированной зоне. Более универсален способ правки с
местным подогревом газокислородным пламенем и применением переносных
гидравлических домкратов и различных приспособлений.
Таким способом раму выправляют непосредственно на месте сборки и сварки.
После правки рамы проверяют качество сварных швов в соединениях
элементов. Все швы осматривают и проверяют соответствие их размеров чертежным с
помощью шаблонов. При внешнем осмотре выявляют наличие резких наплывов,
непроваров, кратеров (прожогов) и пор. Наплывы удаляют, непровары и прожоги
заваривают.
Дефектные участки швов выплавляют или вырубают и затем заваривают вновь.
Помимо наружного осмотра, швы наиболее ответственных соединений проверяют
дефектоскопом, просвечивают рентгеновскими или гамма-лучами или ультразвуком.
Дефектоскопированием контролируют швы соединений листов хребтовой балки с
листами шкворневой и концевой балок, соединений раскосов с листами шкворневых
балок, стыковые швы хребтовой балки, выявляют внутренние дефекты сварных швов -
газовые включения, непровары, трещины.
После проверки качества сварных швов раму передают на позиции монтажа подвагонного
оборудования.
2.
Определение объема работ и выбор метода изготовления
.1 Расчет
программы ремонта торцевой стены полувагона, определение такта ремонта
Выбор рациональной организации сборки во многом определяется
эффективность всего производства по изготовлению и ремонту изделия.
Прежде всего исходя из основных требований, предъявляемых к процессу
сборки, - всемерной экономии рабочего времени
и средств, сокращение продолжительности цикла, рационального использования
производственных площадей.
На выбор организации формы сборки влияют конструкция изделия, его размеры
и масса, программа и сроки выпуска.
Различают два основных метода сборки - стационарный и поточный. Также имеется еще один метод
сборки, являющийся разновидностью стационарного метода, бригадный, в этом
методе за каждым рабочим закрепляют одну или несколько сборочных единиц
изделия, вследствие чего члены бригады специализируются на выполнении сборочных
работ определенного вида. В данной работе мною был выбран бригадный метод
сборки, так как этот метод применяется в опытном и мелкосерийном производстве,
присутствует разделение труда.
Длительность сборочного процесса
без расчленения работ можно
определить по формуле
(1.1)
где
- трудоемкость процесса сборки
одного изделия,
;
- число собираемых изделий,
- количество рабочих в сборочной бригаде,
Подставим значения в формулу 1.1
Тактом сборки называется время между выходом со сборки двух смежных
изделий.
Номинальный такт сборки, мин/шт,
(1.2)
Где
- годовой фонд рабочего времени,
- годовая производственная программа,
Годовой фонд рабочего времени
(1.3)
Где
- число рабочих дней в году,
- число рабочих смен за день,
- лительность рабочей смены,
- коэффициент, учитывающий потери времени на ремонт
оборудования,
Тогда
Следовательно номинальный такт сборки равен
Действительный такт
учитывает потери времени на перерыв в работе и обслуживании
рабочих мест
(1.4)
где
- потери времени в течении смены на обслуживание
рабочих мест,
- потери времени на перерывы в работе для отдыха и
естественных надобностей рабочих в течение смены,
Подставим значения в формулу 1.4
Число сборочных стендов можно определить по формуле
(1.5)
Где
- программы выпуска изделий в год,
- затраты времени на одно собираемое изделие,
- полезное время работы на стенде в одну смену,
- число рабочих смен,
Тогда
Стационарная сборка с расчеленением работ позволяет сократить
потребность в рабочей силе и производственных площадях, увеличить выпуск изделий, уменьшить трудоёмкость, снизить
себестоимость сборочных работ.
2.2 Выбор метода
изготовления
Общая характерная особенность конструкций шкворневых балок
4-х осных вагонов заключается в использовании плоских или гофрированных
листовых полотнищ, соединенных сваркой. В результате этого получается жесткая
конструкция, способная с рамой воспринимать вибрационные и динамические
нагрузки, действующие на вагона.
Шкворневую балку полувагона целесообразно изготовлять
совмещенным способом. Так как он предусматривает полное изготовление шкворневой
балки на одной или нескольких позициях. Этот способ позволяет более эффективно
использовать производственные площади за счет концентрации операций на одном
рабочем месте, сократить количество транспортных операций и максимально
загрузить сборочно-сварочное оборудование.
Сборочно-сварочная оснастка для изготовления шкворневой балки
выполняется с учетом особенностей ее применения, когда в одном приспособлении
производится сборка и сварка конструкции.
Устройство стендов для сборки и сварки полотнищ обшивки
выбирается в зависимости от принятого способа сварки.
Сборку и сварку шкворневой балки рамы полувагона выполняют на
специально изготовленном сварном столе, в котором фиксируются боковые листы
(8мм) и непостредственно после их установки привариватся торцевые листы (12мм)
и нижний лист балки(12мм).
Сварку стыковых соединений листов толщиной
из мало-углеродистой стали
осуществяют вручную дуговым способом в среде защитного газа. Основание стенда
выполнено по форме профиля свариваемого листа.
Сборочно-сварочные столы снабжены дополнительными
преспособле-ниями для выполнения сварочных работ и устройствами для перемещения
сварочного оборудования вдоль свариваемого изделия. Для предотвращения
перемещения листов на поверхности стола во время сварки, они жестко
закрепляются с учетом всех размеров шкворневой балки.
шкворневый балка полувагон сварочный
3. Выбор
оборудования и разработка технологической оснастки
.1 Выбор оборудования для изготовления торцевой стены
Для изготовления торцевой стены применяются следующие приборы:
Сварочные аппараты «Рикон MIG-500 H» в количестве 1 шт. и сварочное
оборудование;
Мощный 4-х роликовый блок подачи проволоки
Сборочно-сварочный стол;
Сварочные аппараты «Рикон MIG-500 H» рисунок 3.1 предназначен для
промышленной полуавтоматической дуговой сварки на постоянном токе до 500 А в
среде защитного газа углеродистых, низколегированных и нержавеющих сталей
сплошной или порошковой стальной электродной проволокой. Данные аппараты
отличаются высокими показателями, надежности, долговечности.
Рисунок 3.1 - Сварочный аппарат «Рикон MIG-500H»
Таблица 3.1 - Параметры сварочного аппарата «Рикон»
|
Тип
|
|
Максимальный сварочный ток, А
|
500
|
|
Напряжение питания, В
|
380±10%
|
|
Номинальная частота трехфазной питающей сети, Гц
|
50/60
|
|
Максимальная потребляемая энергия,
|
24,5
|
|
Диапазон регулировки сварочного тока, А
|
60-500
|
|
Максимальное рабочее напряжение, В
|
400
|
|
Напряжение холостого хода, В
|
70 (12*)
|
|
Способ регулирования выходных параметров
|
Тиристорное регулирование, плавная регулировка сварочного
тока и напряжения
|
|
Номинальная ПН, %
|
60 (500А, 40В)
|
|
Рекомендуемые диаметры электродов, мм
|
от 1,5
|
|
Габаритные размеры, мм, не более
|
595х1450х1080
|
|
Вес, кг, не более
|
85
|
|
|
|
Сборочно-сварочный стол
Сборочно-сварочный стол предназначен для сборки и сварки шкворневой
балки. Конструкция стола описана в пункте 3.2
3.2 Разработка сварочного стола для сборки и сварки шкворневой балки
Стол
предназначен для сборки и частичной сварки шкворневой балки полувагона. Состоит
из четырех опор диаметром 100 мм, рамы стола, рабочей плиты. Рама стола
выполнена из прямоугольного профиля. Рабочая плита надежно и просто крепиться
болтами на раме стола. Простота крепления плиты к раме позволяет в случае
необходимости её замены с лёгкостью заменить на другую, что существенно
увеличивает сроки эксплуатации стола. Рабочая плита, выполненная из цельного
куска стали марки Ст3 предел прочности которой 52 кг/мм
, что позволяет выдерживать сильное механическое
воздействие, часто возникающее при использовании тяжёлых металлических
заготовок, при этом не происходит деформация или зарубка. Вспомогательные
инструменты, такие как тиски и элементы крепления монтируются на рабочую плиту
просто и надёжно. Стол оборудован технологическими отверстиями, которые
позволяют устанавливать специальные приспособления(упоры), предназначенные для
точного закрепления деталей шкворневой балки. Упоры обеспечивают правильность
положения деталей собираемой шкворневой балки, после фиксации которых
производится процесс сварки. Стол обеспечивает крепление всех составных частей
собираемой шкворневой балки. Устанавливается на полу цеха. Благодаря высокому
собственному весу и креплению к полу анкерными болтами, этот сварочный стол обеспечивает
достаточную надёжность от опрокидывания при выполнении работ с тяжёлыми
предметами и инструментом.
Таблица 4.1 - Технические характеристики
сборочно-сварочного стола шкворневой балки
|
Габаритные размеры собираемого изделия, мм
|
2665х210х550
|
|
Масса собираемого изделия, кг
|
450
|
|
Габаритные размеры стола, мм
|
3000x620x850
|
|
Высота рабочей плиты над уровнем пола, мм
|
850
|
|
Толщина рабочей плиты, мм
|
64
|
|
Габаритные размеры рабочей плиты, мм
|
3000x620
|
|
Максимальная, равномерно распределённая нагрузка на рабочую
плиту, кг
|
800
|
|
Масса стола, кг
|
750
|
Общий вид сборочно-сварочного стола, по сборке шкворневой балки
представлен на листе №1 графической части курсовой работы.
4
Нормирование технологического процесса, составление технологической карты
изготовления шкворневой балки
4.1 Разработка
технологического процесса. Нормирование операций
Затраты труда при выполнении электросварочных работ зависят от количества
наплавленного металла, толщины детали, марки электрода, величины сварочного
тока, положения шва и др.
(4.1)
где
- основное время, мин;
- вспомогательное время, мин;
- дополнительное время, мин.
Основное время на варку шкворневой балки 1м
(4.2)
Где
- вес наплавляемого металла;
- поправочный коэффициент, учитывающий положение шва в
пространстве,
;
- коэффициент наплавки,
;
- сварочный ток,
Вес наплавляемого металла
(4.3)
Где
- площадь наплавленной поверхности,
;
- требуемая высота наплавленного слоя,
;
- плотность наплавленного металла,
;
Тогда
Вспомогательное время, необходимое на установку, закрепление и снятие
наплавляемой детали, отвод и подвод электрода, осмотр и очистку шва, подачу
охлаждаемой жидкости на производство
сварного шва составляет 15% от
основного времени
(4.4)
Дополнительное время учитывает дополнительное организационно-техническое
время на обслуживание рабочего места, на отдых и естественные надобности
рабочего составляют 10% от суммы основного и вспомогательного времени
(4.5)
Тогда для сварки
штучное время составляет
.2 Составление технологической карты изготовления шкворневой балки
Изготовление шкворневой балки
Установка вертикальных листов.
2 Контроль.
Контролировать правильность установки вертикальных листов
шкворневой балки. Проконтролировать размеры согласно эскиза.
Дуговая сварка в углекислом газе сплошной проволокой.
.1 Приварить торцевые пластины к вертикальным листам .
.2 Приварить нижние наклонные листы к вертикальным листам.
.3 Приварить нижние горизонтальные листы к вертикальным листам.
Контроль.
Произвести контроль сварных соединений в соответствии с
"Инструкцией - технологической по проведению визуального и измерительного
контроля швов сварных соединений" (№061.11.25101.00195). При выявлении
дефектов руководствоваться положениями той же инструкции.
Раскрепление.
Обработка внутренней поверхности шкворневой балки
Транспортирование на участок сборки рамы.
Установка на хребтовую балку.
Контроль.
Контролировать правильность установки шкворневой балки на
хребтовую балку. Проконтролировать размеры согласно эскиза.
Дуговая сварка в углекислом газе сплошной проволокой.
10.1 Приварить шкворневую балку к хребтовой балке.
Контроль.
Произвести контроль сварных соединений в соответствии с
"Инструкцией - технологической по проведению визуального и измерительного
контроля швов сварных соединений" (№061.11.25101.00195). При выявлении
дефектов руководствоваться положениями той же инструкции.
Дуговая сварка в углекислом газе сплошной проволокой
.1 Приварить верхний горизонтальный лист шкворневой балки.
Контроль.
Произвести контроль сварных соединений в соответствии с
"Инструкцией - технологической по проведению визуального и измерительного
контроля швов сварных соединений" (№061.11.25101.00195). При выявлении
дефектов руководствоваться положениями той же инструкции.
Дуговая сварка в углекислом газе сплошной проволокой.
.1 Привариваем накладки на место соединения шкворневой и хребтовой
балки.
Контроль.
Произвести контроль сварных соединений в соответствии с
"Инструкцией - технологической по проведению визуального и измерительного
контроля швов сварных соединений" (№061.11.25101.00195). При выявлении
дефектов руководствоваться положениями той же инструкции.
Покраска.
. Расчет себестоимости изготовления шкворневой балки
Для расчета себестоимости проанализируем экономическую эффективность от
замены сварочного оборудованию полуавтомат сварочный «Искра - 4» с максимальной
потребляемой мощностью
, на сварочный аппарат «Рикон MIG-500 H» с максимальной
потребляемой мощностью
.
Рассчитаем общее количество потребляемой энергии при изготовлении
шкворневых балок
(5.1)
где n - количество изготавливаемых
шкворневых балок
- время, затраченное на выполнение сварочной работы по
изготовлению одной шкворневой балки, ч.
- максимальная потребляемая мощность сварочного полуавтомата,
.
Тогда
;
.
Рассчитаем экономическую эффективность, полученную после замены
сварочного аппарата
(5.2)
где
- тариф за 1 кВт, (1300 бел. руб.);
тыс. бел. руб.
Найдем время за которое окупятся все приобретённые аппараты
где
;
;
Тогда
6. Техника
безопасности и охрана труда при изготовлении шкворневой балки
Проходы между
стеллажами предназначенных для прохождения рабочих должны соответствовать
нормам проектирования механических и вспомогательных цехов. Рабочие места и
проходы к ним следует содержать в чистоте, не допуская загромождения их
запасными частями, посторонними предметами. Работник должен укладывать детали,
запасные части и материалы на стеллажи, расположенные на производственных
участках, обеспечивая, свободные проходы и исключая их раскладывание и падение.
При работе на
участие сборочного цеха по технике безопасности рабочие и все остальные должны
находиться в касках. При работе с использованием ручных шлифовальных машин
следует пользоваться защитными очками. К работе на участке по ремонту кузова
вагона допускаются лица не моложе 18 лет, прошедшие при поступлении на работу
предварительный медицинский осмотр, вводящий и первичный инструктаж на рабочем
месте, стажировку и проверку знаний. В процессе работы работниками должны
проходить повторный, не реже одного раза в три месяца и внеплановый инструктаж,
а также медицинские периодические осмотры. Перед началом работы рабочие места
должны быть приведены в порядок. В процессе работы необходимо пользоваться
только исправными инструментами. При рубке ручным или пневматическим зубилом
исполнитель должен быть в защитных очках. При выполнении работ в
непосредственной близости от не огражденных движущихся или вращающихся частей
машин и станков, использовать электрические машины с оголёнными или плохо
изолированными проводами. Работники, связанные с изготовлением шкворневой балки
полувагона должны:
знать
действие на человека опасных и вредных производственных факторов, возникающих
во время работы
знать правила
первой до врачебной помощи
знать
требования техники безопасности, производственной санитарии, пожарной
безопасности
выполнять
только входящую в их обязанности или порученную мастером (бригадиром) работу
владеть
безопасными приёмами труда
содержать в
исправном состоянии и чистоте инструменты и инвентарь, средства индивидуальной
защиты
следить за
сигналами и распоряжениями руководителя работ (мастера, бригадира) и выполнять
его команды
выполнять
требования запрещающих, предупреждающих, приписывающих знаков, надписей и
символов, подаваемых водителями транспортных средств и крановщиками кранов
проходить по
территории депо по установленным маршрутам, переходным дорожкам, проходам и
переходам; быть предельно внимательным в местах движения транспорта
соблюдать
правила внутреннего трудового распорядка
выполнять
требования режимов труда и отдыха.
Работникам,
занятым изготовлением шкворневой балки запрещается:
находиться
под поднятым и перемещающимся грузом
наступать на
электрические провода и кабели
наступать на
электрические провода и другие легкодоступные части
перебегать
пути перед движущимся транспортом
находиться на
территории и в помещениях депо в местах, отмеченных знаками (Осторожно;
Габаритное место), а также около этих мест при прохождении подвижного состава.
Для защиты
глаз от действия электродуги место сварки ограждается ширмой. Воспрещается
сварочные работы легко воспламеняющихся и огнеопасных материалов, в том числе у
свежевыкрашенных мест кузова.
Минимальное
допустимое расстояние от них до места сварки 5 метров. Соблюдать правила
пожарной безопасности.
Литература
1 Герасимов,
В.С. Технология вагоностроения и ремонта вагонов / В.С. Герасимов. - М.:
Транспорт, 1988. - 384 с.
Цирлин, М.И.
Основные требования к оформлению пояснительных записок курсовых и дипломных
проектов (работ) / М.И. Цирлин. - Гомель, 2007. 31 с.
Руководство
по деповскому ремонту (ДР) 033 ПКБ ЦЛ-04 РД
Инструкция
СТП СМК 02193.161.7.5.038-2007