Особенности деятельности и структуры строительной организации ГОУП 'Гроднооблсельстрой'

  • Вид работы:
    Отчет по практике
  • Предмет:
    Строительство
  • Язык:
    Русский
    ,
    Формат файла:
    MS Word
    345,13 Кб
  • Опубликовано:
    2015-06-17
Вы можете узнать стоимость помощи в написании студенческой работы.
Помощь в написании работы, которую точно примут!

Особенности деятельности и структуры строительной организации ГОУП 'Гроднооблсельстрой'

Оглавление

 

Введение

. Характеристика предприятия

.1 Основные сведения об ГОУП «Гроднооблсельстрой»

.2 Структура ГОУП «Гроднооблсельстрой»

. Индивидуальное задание

.1 Общие сведения об объекте

.2 Конструктивные решения

.3 Технологические решения

.4 Объемно-планировочное решения

.5 Отделка

.6 Технико-экономические показатели генерального плана

Заключение

Список использованных источников

 

 

Введение


Преддипломная практика проходила в ГОУП «Гроднооблсельстрой».

Целью прохождения практики является ознакомление с организацией, изучение структуры строительной организации, сбор проектно-сметных материалов и нормативов по теме дипломного проекта, выбор конструкционного решения, разработка принципиально-функционального планировочного решения объекта, изучение вопросов охраны труда и техники безопасности.

В ходе преддипломной практики ознакомился с организацией, изучил и проанализировал проекты аналогичных тем дипломного проекта, выполнил индивидуальное задание.

1.     

1. Характеристика предприятия

1.1    Основные сведения об ГОУП «Гроднооблсельстрой»


2 сентября 1961 года Решением № 474 исполнительного комитета Гродненского областного совета депутатов трудящихся (председатель И.С.Кононович) создан Гродненский областной совет межколхозных строительных организаций «Облмежколхозстрой».

С 1967 года, в связи с образованием «Минсельстроя» БССР, «Облмежколхозстрой» стал подчиняться Главному управлению строительства в колхозах Министерства сельского строительства БССР.

апреля 1969 года реорганизован в Гродненское областное объединение межколхозных строительных организаций «Облмежколхозстрой» и стал подчиняться «Белмежколхозстрою».

С апреля 1986 года - Гродненское областное кооперативно- государственное производственное проектно-строительное объединение по сельскому строительству «Гроднооблсельстрой».

В 1995 году объединение передано в республиканскую собственность.

В 2002 году объединение передано из республиканской в коммунальную собственность Гродненского областного исполнительного комитета и стало называться Гродненское областное производственное проектно-строительное унитарное предприятие «Гроднооблсельстрой».

(Путеводитель Государственного архива Гродненской области стр.130 (фонд 136, 107 дел 1961-1989 годов).

ГОУП «Гроднооблсельстрой» - одно из ведущих проектно- строительных предприятий области. Осуществляет производственную деятельность с 1961 года. Форма собственности - государственная.

В состав Гродненского областного производственного проектно- строительного унитарного предприятия входят 27 дочерних предприятий с правом юридического лица. Общая списочная численность работников на 01.01.2012 года - 7 583 человека.

Основные виды деятельности:

выполнение общестроительных, сантехнических, электромонтажных работ, строительство автомобильных дорог, наличие в каждой организации собственной производственной базы на которых имеются подсобные производства.

производство бетонных и железобетонных конструкций, элементов благоустройства (заводы железобетонных изделий в г.Лида, г. Слоним, г. Гродно), производство столярных изделий, в том числе ПВХ и алюминиевых профилей. Имеются необходимые машины и механизмы, оборудование средства малой механизации , а так же свой автокомбинат.

ГОУП «Гроднооблсельстрой» в 2009, 2010 и 2011 году признан победителем в конкурсах, проводимых Союзом Строителей в номинации «Объект года» (рисунок 1) присуждением данной номинации объектам реконструкции и благоустройства племптицерепродуктора «Юбилейный» в г. Скидель, реконструкции гостиницы в г.Лида, новому строительству «Комплекс пограничной заставы с ОПК н.п. Бенякони, Вороновский район» и «Пограничный пост с ОПК н.п. Геранены, Ивьевский район».

ГОУП «Гроднооблсельстрой» имеет систему контроля качества выполняемых работ на базе стандартов СТБ ISO 9001-2009, имеет аккредитованную лабораторию, лабораторию по контролю неразрушающих методов сварки, которые позволяют выполнять работы в соответствии со СНиП, производит геодезические работы.

Контактная информация

ГОУП “ГРОДНООБЛСЕЛЬСТРОЙ”

Республика Беларусь, 230025, г. Гродно, ул. К.Маркса, 31

Телефон: +(375 152) 75-67-53

Факс: +(375 152) 75-00-70

E-Mail: oss@mail.grodno.by <mailto:oss@mail.grodno.by>

1.2    Структура ГОУП «Гроднооблсельстрой»


Рисунок 1 - Карта расположения дочерних предприятий ГОУП «Гроднооблсельстрой»

Предприятие возглавляет генеральный директор Залога Геннадий Чеславович, который организует и полностью отвечает за его работу. В его обязанности входит общее руководство производственно-хозяйственной и финансово-экономической деятельностью предприятия.

Зам. генерального директора, Бич Дмитрий Валентинович, на которого возлагается техническое руководство проектной деятельностью предприятия, подготовка и организация проектирования объектов, информационное обеспечение.

Все структурные подразделения предприятия действуют в соответствии с положениями о подразделениях, а работники - в соответствии с должностными инструкциями.

Управление подразделениями осуществляют руководители, отвечающие за оперативно-производственную организацию работ в подразделениях, сроки и качество выполняемых работ.

Структура ГОУП «Гроднооблсельстрой» включает в себя следующие подразделения, выполняющие различные виды работ и услуг:

.        строительные работы;

.        электроизмерительные услуги;

.        производство металлоизделий;

.        участок механизации и автотранспорта;

.        цех ПВХ;

.        отдел контроля и качества.

Строительные работы

Строительный участок ГОУП «Гроднооблсельстрой» основан в 2008 году.Численность ИТР и рабочих 85 человек. За сравнительно небольшой срок подобраны квалифицированные специалисты рабочих специальностей и ИТР. Строительный участок обеспечен современным инструментом, оборудованием и механизмами, позволяющими выполнять основные виды общестроительных и отделочных работ на высоком уровне и в заданные сроки. Имеются специалисты по монтажу изделий из ПВХ и алюминиевого профиля.

Строительный участок согласно аккредитации имеет сертификаты соответствия на основные виды строительно-монтажных работ :

-      устройство фундаментов(сборных и монолитных)

-        кладка стен и перегородок (из Г/С блоков , кирпича)

         монтаж ЖБ и метало конструкции

         штукатурные работы(внутренние и наружные) цементно-известковым раствором и декоративными штукатурками

         малярные работы (шпатлевка, окраска оклейка обоями)

         облицовка стен и потолков (сайдинг, гипсокартон, керамическая плитка, ARMSTRONG)

         устройство полов (бетонных , деревянных) стяжки, покрытие плиткой, ПВХ , паркетом, ламинатом.

         утепление фасадов плитами полистирольными и минераловатными (армирование , защитные штукатурки , окраска)

         установка оконных и дверных блоков из ПВХ и алюминиевого профиля с устройством откосов листовыми. погонажными материала и штукатуркой

         устройство кровель плоских и скатных

         работы по благоустройству (установка БРТ , покрытие тротуарной плиткой, озеленение)

         устройство крылец и пандусов (облицовка мелкоштучными материалами).

Электроизмерительные услуги

В ГОУП «Гроднооблсельстрой» действует аккредитованная электроизмерительная лаборатория.

Аттестат аккредитации №BY/112.02.2.0.3827 от 27.02.2009 г.

Область аккредитации (виды измерений):

         Измерение сопротивления изоляции кабелей, силовых и осветительных проводок, электрооборудования.

         Измерение сопротивления заземляющих устройств.

         Проверка наличия цепи между заземлителями и заземлёнными элементами.

         Измерение сопротивления петли «фаза-нуль».

         Измерение напряжения прикосновения и шага в искусственно созданном аварийном режиме (устройства выравнивания потенциалов).

         Выполняем все виды электромонтажных работ 0,4 к В.

         Устанавливаем и берем на обслуживание домофонные системы.

Производство металлоизделий

Цех по производству металлоизделий принимает заявки на изготовление и монтаж стальных и противопожарных сертифицированных дверей и люков различных размеров, домофонных входных дверей, ворот распашных, вагонов-бытовок различной сложности, шарнирные подмости, урны для мусора, секции ограждений забора различной сложности, световые опоры (одно- и двухрожковые), козырьки различных размеров и др., а также различные конструкции любой сложности для внутридворовых детских площадок.

Также имеется возможность покрывать изделия полимерным покрытием в покрасочной камере.

Срок изготовления изделий - 15 рабочих дней с момента заключения договора (срок изготовления может меняться, в зависимости от количества изделий в партии и сложности изготовления).

Участок механизации и автотранспорта

Участок механизации и автотранспорта ГОУП «Гроднооблсельстрой» оказывает физическим и юридическим лицам следующие виды услуг:

         Перевозка сыпучих грузов автомобилями-самосвалами грузоподъёмностью от 5 до 40 тонн.

         Грузоподъёмными кранами грузоподъёмностью от 25 до 60 тонн с вылетом стрелы до 41 метра.

         Бульдозеры - Вт-90, Т-150, ТМ-10.

         Экскаваторы с объёмом ковша от 0,25 до 1,5 м3.

         ДСХ, гидромолот.

         Бетононасос, производительностью до 60 м2.

         Автобетоносмесители с объёмом конуса 6 м3.

         Международная перевозка грузов (шенген, РФ, Украина, Казахстан), объём полуприцепов 82 м3, грузоподъёмностью 26,5 тонн.

         Погрузочные работы фронтальными погрузчиками, объём ковша от 0,2 до 1,4 м3.

         Пневмонагнетатели для подачи для подачи бетонной смеси до 120 м.

         Панелевозы.

Цех ПВХ

Цех по производству изделий из металлопластика изготавливает столярные изделия из 5-камерного поливинилхлоридного профиля фирмы «МОНБЛАН» (белорусского производства), цвет - белый, фурнитура фирм «СТН» (Россия) и "Vabis" (Сербия), стеклопакеты - из стекла полированного толщиной 4 мм производства ОАО «Гомельстекло».

Отдел контроля и качества

Управление качеством в ГОУП «Гроднооблсельстрой» является составной частью управления строительством и представляет собой систему информационных, технических, правовых и экономических мероприятий, направленных на улучшение качества строительно-монтажных работ на объектах в структурных подразделениях, дочерних предприятиях и выпускаемой продукции на предприятиях строительной индустрии.

Данные мероприятия осуществляется путем систематического контроля качества на всех этапах выполнения строительно-монтажных работ и выпускаемой продукции.

В ГОУП «Гроднооблсельстрой» внедрена система менеджмента качества (СМК), соответствующая требованиям СТБ ISO 9001-2009, которая играет важную роль в повышении качества выполняемых работ по оказанию услуг по выполнению функций генерального подрядчика и оказанию услуг заказчику по сопровождению инвестиционного проекта строительства.

Благодаря данной системе на предприятии системно и комплексно, с охватом всех этапов инвестиционного процесса решаются вопросы повышения качества строительства, начиная с заявки на строительство объекта и кончая вводом объекта в эксплуатацию.

С помощью СМК на предприятии определен процесс создания продукции (оказанию услуг) и задокументированы и поддерживаются в рабочем состоянии процедуры по управлению документацией, записями, управление оборудование для мониторинга и измерений, внутренние аудиты, управление несоответствующей продукцией, а также корректирующие и предупреждающие воздействия.

В ГОУП «Гроднооблсельстрой» контроль за качеством строительно-монтажных работ и специализированных работ, а также выпускаемой продукции осуществляют отдел контроля качества, отдел главного сварщика и электроизмерительная лаборатория.

В ГОУП «Гроднооблсельстрой» контроль за качеством строительно-монтажных работ и выпускаемой продукции осуществляет отдел контроля качества, осуществляющий свою деятельность на основании аттестата аккредитации ВУ/112.02.2.0.0764 от 28 ноября 2009г. (действителен до 30 ноября 2014г.)

Отдел контроля качества согласно аттестата аккредитации проводит следующие испытания:

1. Смеси бетонные:

         Прочность бетона на сжатие;

         Удобоукладываемость;

         Водонепроницаемость;

         Морозостойкость;

         Подбор состава.

. Бетоны:

         Прочность бетона на сжатие;

         Водонепроницаемость;

         Морозостойкость;

         Истираемость;

         Водопоглащение;

         Подбор состава.

. Растворы:

         Подвижность растворной смеси;

         Плотность;

         Прочность на сжатие;

         Водопоглащение;

         Морозостойкость;

         Подбор состава.

. Песок:

         Зерновой состав;

         Содержание пылевидных и глинистых частиц методом отмучивания;

         Насыпная плотность.

. Щебень и гравий:

         Зерновой состав;

         Содержание пылевидных и глинистых частиц методом отмучивания;

         Дробимость;

         Морозостойкость.

. Конструкции и изделия бетонные и железобетонные сборные:

         Прочность.

. Кирпич и камни керамические. Кирпич и камни силикатные:

         Геометрические параметры;

         Внешний вид;

         Водопоглащение;

         Средняя плотность.

. Грунты:

         Влажность;

         Плотность грунта;

         Коэффициент уплотнения.

. Пиломатериалы хвойных пород. Пиломатериалы лиственных пород:

         Влажность.

. Детали профильные из древесины и древесных материалов:

         Влажность;

         Геометрические параметры;

         Пороки древесины;

         Отклонения от перпендикулярности, плоскостности, прямолинейности;

         Шероховатость;

         Прочность клеевых соединений на скалывание вдоль волокон;

. Плитки керамические глазурованные для внутренней облицовки стен. Плитки керамические фасадные:

         Внешний вид;

         Водопоглащение.

. Краски масляные алкидные готовые к применению:

         Степень высыхания.

. Окна и балконные двери для зданий и сооружений. Двери и окна для зданий и сооружений:

         Прочность угловых соединений на сжатие;

         Адгезия;

         Шероховатость;

         Геометрические параметры;

         Отклонения от перпендикулярности, плоскостности, прямолинейности;

         Влажность;

         Пороки и дефекты обработки древесины;

         Прочность клеевых соединений на скалывание вдоль волокон.

. Плиты бетонные и железобетонные для тротуаров и дорог:

Прочность бетона на сжатие;

Истираемость;

Водопоглащение;

Водонепроницаемость.

. Камни бортовые бетонные и железобетонные:

Прочность бетона на сжатие;

Водопоглащение.

Отдел контроля качества укомплектован необходимым оборудованием и измерительными приборами.

Главная задача отдела контроля качества (ОКК) - контроль качества строительно-монтажных работ, применяемых материалов, выпускаемой продукции, а также внедрение в строительство современных строительных материалов и изделий.

строительный здание планировочный отделка

2.     

2. Индивидуальное задание

2.1    Общие сведения об объекте


Темой дипломного проекта, является строительство офисного центра с подземным гаражом в городе Гродно. Исходными данными, для дипломного проекта, являются архитектурные чертежи, будущего офисного центра.

Офисный центр предназначен для размещения административных служб различных организаций (как правило это компании, не ориентированные на клиентский поток: call-центры, фирмы, занимающиеся IT-технологиями, а также логистические структуры, дистрибьюторы и ритейл-операторы.

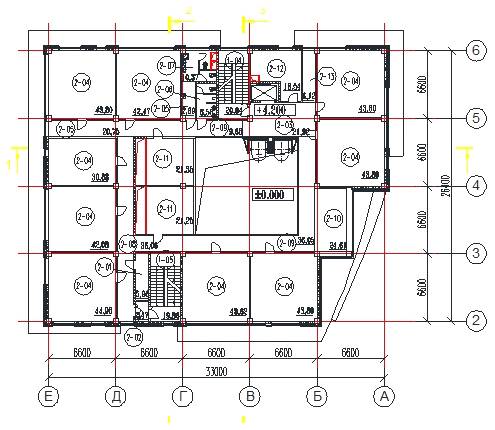
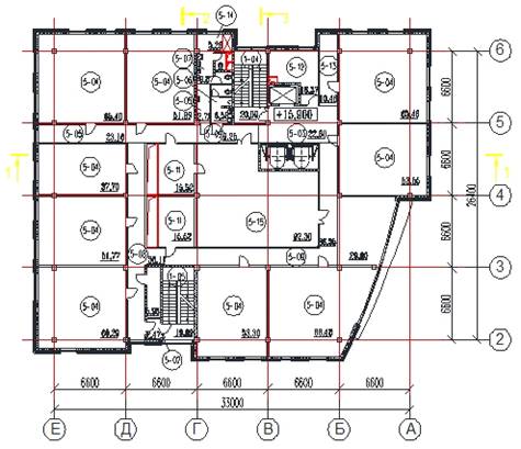
Планы на отметках -3700, - 3950, первого, второго, третьего этажа, представлены на рисунках 4, 5, 6, 7.

Офисы и бизнес-центры представляют собой один из основных сегментов рынка коммерческой недвижимости. Аренда офисов и помещений становится все актуальней не только для крупных компаний, но и для малого бизнеса, предпринимателей, различных организаций. Строительство бизнес-центров в Гродно становится тенденцией.

Рисунок 2 - План на отметке -3700; - 3950

Рисунок 5 - План первого этажа

Рисунок 6 - План второго этажа

Рисунок 7 - План пятого этажа

2.2    Конструктивные решения


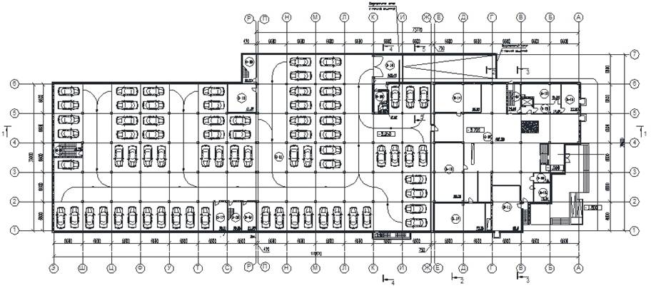
Офисный центр подразделяется на подземный гараж-стоянку, расположенный в осях 1-7 и Ж-Э и офисный центр, расположенный в осях 1-6 и А-Е.

Конструктивное решение гаража - одноэтажное здание с безбалочными перекрытиями. Пространственный каркас здания решается по рамной схеме в обоих направлениях. Ригелями одноэтажных многопролетных рам служит безбалочная плита, жестко связанная с колоннами при помощи капителей. Устройство капителей вызывается конструктивными соображениями, с тем чтобы: а) создать достаточную жесткость в месте сопряжения плиты с колонной; б) обеспечить прочность плиты на продавливание по периметру капителей; в) уменьшить расчетный пролет безбалочной плиты и более равномерно распределить моменты по ее ширине.

Внутренними опорами служат колонны сечением 400х400 мм. Сетка колонн принята 6,6х6,6 м.

Между осями Р и П расположен деформационный шов. От офисного центра между осями Ж и Е подземный гараж отделен осадочным швом.

Фундаментом под подземный гараж служит фундаментная плита.

2.3    Технологические решения

Офисный центр

Офисный центр предназначен для размещения административных служб различных организаций. Помимо двух эвакуационных лестниц для сотрудников и посетителей офисного здания предусмотрены три лифта с просторными лифтовыми холлами. Для удобства работы в здании предусмотрены комнаты переговоров на всех этажах, кроме первого, а так же конференц.зал на пятом этаже. Для обеспечения сотрудников офисов горячим питанием на первом этаже предусмотрено кафе с самообслуживанием.

Служебная стоянка

В проекте предусмотрена организация служебной стоянки закрытого типа вместимостью 73 машино-места, предназначенной для личного автотранспорта сотрудников офисного центра.

Помещение стоянки (оси 1-7 и Ж-Э) в плане имеет размеры 54,0х18,6м и занимает общую площадь 2927 м2.

По двухпутному въездному пандусу машины заезжают на стоянку. У въезда на пандус размещается КПП. Стоянка имеет четыре эвакуационные лестницы и выход на первый этаж офисного цетра.

Планировочное решение стоянки предусматривает помещение хранения автомобилей и помещения технического назначения.

В помещении хранения автомобилей, стоянки машин не выгорожены, способ хранения автомобилей - манежный, размеры машино-мест - 6,6х3,3 м. В местах хранения предусмотрены колесоотбойные устройства вдоль стен. Перемещение автомобилей организовано по внутренним проездам. Ширина проезжей части в наиболее узком месте - 6,6 м.

Параметры мест хранения автомобилей, расположенных на стоянке, ширина внутригаражных проездов обеспечивают возможность размещения легковых автомобилей.

Номенклатура и количество автомобилей приняты в соответствии с заданием на разработку документации и уточняются при разработке рабочего проекта.

Автомобили, приезжающие на автостоянку, поступают через КПП, где производится регистрация прибытия автомобиля в журнале учета, который находится у охраны.Затем автомобиль направляется к закрепленному за ним месту.

При выезде автомобиля производится регистрация факта убытия.

Для наблюдения за движущимися автомобилями при въезде и выезде из автостоянки в помещении КПП предусмотрены обзорные стекла.

Уборка пола стоянки - сухая, механизированная, уборочными машинами.

Общий разбор автомобилей в наиболее напряженные сутки, в % от общего количества мест на стоянке - 80 %.

2.4    Объемно-планировочное решения


Офисный центр подразделяется на подземный гараж-стоянку, расположенный в осях 1-7 и Ж-Э и офисный центр, расположенный в осях 1-6 и А-Е.

Одна из частей центра - офисная - представляет собой 9-ти этажное здание, с габаритами в осях 26,4 х 33 м.

Максимальная отм. на высоте - 38,85 м.

На первом этаже (отм. 0.000) здания расположены входная группа (вестибюль, гардероб, охрана, лестнично-лифтовой узел), кафе с обеденным залом на 80 мест , с кухней и подсобными помещениями, электрощитовая и венткамера.

Этажи со второго по девятый заняты офисными помещениями. На каждом этаже также предусмотрено по 2 комнаты для переговоров, на пятом этаже расположен конференц.зал. Высота этажей - 3,9 м.

Функциональная связь между этажами осуществляется лифтами, один из которых предусмотрен для транспортирования пожарных подразделений. Эвакуация людей с каждого этажа обеспечена двумя лестницами 1-го типа. Обе лестницы незадымляемые:

одна - Н1 (с выходом непосредственно наружу);

другая - Н2 (с выходом наружу через вестибюль).

Вторая часть комплекса - подземный гараж-стоянка.

Габариты в осях 39,6 х 86,22 м, высота этажа 2,9 м.

Эвакуация людей осуществляется непосредственно наружу по одной из трёх лестниц.

Доступ автотранспорта на этаж гаража-стоянки осуществляется с помощью двухпутного открытого пандуса.

Офисный центр имеет подвальный этаж технического назначения (на отм. -3.700). Эвакуация из подвала осуществляется по трём рассредоточенным лестницам с выходом непосредственно наружу.

Помещения гаража-стоянки - не отапливаемые.

Характеристику строительных конструкций см. в табл. 3.

Класс ответственности I.

2.5    Отделка

Наружная отделка

Наружные ограждающие конструкции офисной части выполнены из я/бетонных блоков γ = 600 кг/м^3.

Стена с утеплением из минераловатной плиты «Rockwool» - 150 мм и наружный слой - кассетная панель из алюминиевого композита или профлист.

Окна, витражи, входные двери и тамбуры - алюминиевые с двойными стеклопакетами фирмы «SCHUCO» (ГОСТ 31247.0-94).

Внутренняя отделка

Таблица 1 - материалы внутренней отделки стен

Наименование помещения

Наименование материала

Вестибюли, лифтовые холлы, лестницы, коридоры офисной части

Стены


стеклообои покраска водоэмульсионной краской


Потолки


 покраска водоэмульсионной краской подвесные из акуст. плитки типа «Акмигран»


Полы


керамогранит мозаичные

Офисные и административные помещения

Стены


покраска водоэмульсионной краской стеклообои


Потолки


покраска водоэмульсионной краской подвесные из акустической плитки типа «Акмигран»


Полы


коммерческий линолеум

Бытовые помещения

Стены


окраска водоэмульсионной краской


Потолки


покраска водоэмульсионной краской


Полы


линолеум

Вспомога-тельные помещения кафе

Стены


керамическая плитка


Потолки


-окраска водоэмульсионной краской


Полы


керамическая плитка

Санузлы, душевые, умывальные

Стены


керамическая плитка


Потолки


декоративная металлическая рейка


Полы


керамическая напольная плитка

Щитовые, технические помещения

Стены


окраска пентафталевой эмалью ПФ-115


Потолки


окраска водоэмульсионной краской


Полы


керамическая плитка

Помещения гаража-стоянки

Стены


Без отделки


Потолки


Без отделки


Полы


Асфальтобетон

2.6    Технико-экономические показатели генерального плана


Технико-экономические показатели генерального плана представлены в таблице 2.

Таблица 2 - Технико-экономические показатели генерального плана

Показатели

Ед.изм.

Кол-во

Примечание

Площадь участка в границах:  проекта  Площадь застройки  Процент застройки  Площадь озеленения  Процент озеленения  Площадь покрытий -проезды с твердым покрытием в том числе покрытие под автостоянкой -плиточное покрытие

  га  м2  %  м2  %  м2 м2 м2 м2

  2,32  4388  18,9  1340  5,78  5975,7 2814,5 997,8 3161,2

 

 

Заключение


В ходе преддепломной практики мы ознакомились со структурой организации, взаимодействием подразделений организации и со структурой управления в котором проходили практику. Так же мы ознакомились с порядком составления проектной документации. Проанализировали объекты аналогичные теме дипломного проекта. Были изучены экономические вопросы и вопросы охраны труда и техники безопасности.

Я считаю, что практика прошла успешно, полученные знания будут полезны в дальнейшей учебе и работе. Нарушений техники безопасности не наблюдал.

ГОУП «Гроднооблсельстрой».создает для персонала комфортные условия работы, поощряет материально работников, оплачивает отпуск; постоянно использует достижения НТП, соблюдает режим экономии, повышает качество продукции и уровень использования основных производственных фондов, совершенствует структуру управления и проводить оптимальную политику. Всё вместе это позволяет предприятию уверенно чувствовать себя в постоянно изменяющейся рыночной структуре.

 

Список использованных источников


1.      www. goss.by - официальный сайт ГОУП «Гроднооблсельстрой».

2.      Шерешевский И.А. «Конструирование гражданских зданий».

3.      Предтетченский В.М. «Архитектура гражданских и промышленных зданий» том 2 Стройиздат, Москва 1976г.

4.      Маклакова Т.Г «Архитектура гражданских и промышленных зданий» Стройиздат, Москва 1981г .

.        Электронные версии чертежей

Похожие работы на - Особенности деятельности и структуры строительной организации ГОУП 'Гроднооблсельстрой'

 

Не нашли материал для своей работы?
Поможем написать уникальную работу
Без плагиата!
Без нейросетей!