Електричне обладнання офісу

  • Вид работы:
    Курсовая работа (т)
  • Предмет:
    Физика
  • Язык:
    Украинский
    ,
    Формат файла:
    MS Word
    1,02 Мб
  • Опубликовано:
    2015-06-18
Вы можете узнать стоимость помощи в написании студенческой работы.
Помощь в написании работы, которую точно примут!

Електричне обладнання офісу

Міністерство освіти і науки України

Полтавський національний технічний університет імені Юрія Кондратюка

Кафедра комп’ютерної інженерії








Розрахунково-графічна робота

з навчальної дисципліни:

"Електроживлення систем зв’язку"



Виконав: студент 402-ТТ групи

Казидуб О.О.

Перевірив: к. т. н., доцент

Смоляр В.Г.



Полтава 2013

Зміст

Завдання на розрахунково-графічну роботу

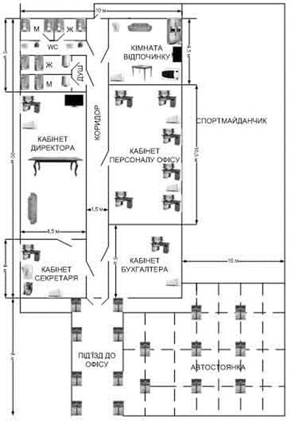
1. Схема облаштування офісу

2. Підрахунок необхідного електричного обладнання для офісу

3. Система блискавкозахисту

4. Заземлення

5. Підрахунок кількості світильників для приміщень офісу

6. Розрахунок вартості середньомісячного споживання електроенергіїї для трьох типів ламп

Висновок

Завдання на розрахунково-графічну роботу

Маємо офіс площею S=200 м2. Він містить в своєму складі:

кабінет директора (S=49,5 м2). В ньому знаходиться 1 телевізор, комп’ютер та кондиціонер;

кабінет бухгалтера (S=20 м2). В ньому знаходиться 1 комп’ютер, принтер та кондиціонер;

кабінет персоналу офісу (S=42 м2). В ньому знаходиться 6 комп’ютерів, 3 принтери та 2 кондиціонера;

кабінет секретаря (S=18 м2). В ньому знаходиться комп’ютер, принтер, електрочайник, кавоварка та кондиціонер;

кімната відпочинку (S=18 м2). В ньому знаходиться телевізор, холодильник, мікрохвильова піч, електрочайник та кондиціонер;

душ (S=11,25 м2). В ньому знаходиться 2 бойлера;

WC (S=11,25 м2);

коридор (S=30 м2).

Висота будинку - 7 м.

Висота стелі - 3 м.

Робочий день триває 8 годин - з 9.00 до 17.00. Сб, Нд - вихідний.

Потрібно забезпечити офіс електрикою, обладнати заземлення (4 Ом), освітлення приміщень.

Забезпечити зовнішнє освітлення офісу вночі. Вечірнє освітлення автостоянки (4 години), під’їзд до офісу (8 годин).

Розрахувати освітлення для різних типів ламп (накалювання, газорозрядні, світло-діодні), за умови, що використовуються стельові світильники.

Порахувати середньомісячне споживання електроенергії для трьох типів ламп та вартість електроенергії.

1. Схема облаштування офісу


2. Підрахунок необхідного електричного обладнання для офісу


Підрахунок обладнання проводитимемо по кабінетам офісу окремо.

Кабінет директора: повинен бути обладнаний 5 розетками, 2 вимикачами.

Кабінет бухгалтера: повинен мати 4 розетки, 1 вимикач.

Кабінет персоналу офісу: повинен мати 20 розеток, 2 вимикача.

Кабінет секретаря: повинен мати 7 розеток, 1 вимикач.

Кімната відпочинку: містить 6 розеток, 1 вимикач.

Душ: має 2 розетки, 2 вимикач.

WC: має 2 розетки та 2 вимикача.

Коридор: має 3 вимикача.

3. Система блискавкозахисту


 

електричне обладнання офіс лампа


4. Заземлення



5. Підрахунок кількості світильників для приміщень офісу


1). Почнемо обрахунок кількості світильників для приміщень офісу при використанні ламп накалювання.

Кабінет директора:

Маємо кабінет (офіс) з білим потолком, сірими стінами і сірою підлогою. Вихідні дані: а=11 м, b=4,5 м, h=3 м. Використовуємо світильник R-80 NEODYMIUM 60 W E27, лампа накалювання 60 Вт, в одному світильнику 2 лампи, Ф=1560 Лм. Норма освітленості Е=300 Лк на рівні 0,8 м від підлоги. Коефіцієнт запаса КЗ=1,4. Коефіцієнт відбиття потолка - 0,7, стін - 0,5, підлоги - 0,3. Коефіцієнт використання - 65.


Кількість світильників (при використанні ламп накалювання) для даного приміщення - 12 шт.

Кабінет бухгалтера:

Маємо кабінет (офіс) з білим потолком, сірими стінами і сірою підлогою. Вихідні дані: а=5 м, b=4 м, h=3 м. Використовуємо світильник R-80 NEODYMIUM 60 W E27, лампа накалювання 60 Вт, в одному світильнику 2 лампи, Ф=1560 Лм. Норма освітленості Е=300 Лк на рівні 0,8 м від підлоги. Коефіцієнт запаса КЗ=1,4. Коефіцієнт відбиття потолка - 0,7, стін - 0,3, підлоги - 0,3. Коефіцієнт використання - 38.


Кількість світильників (при використанні ламп накалювання) для даного приміщення - 8 шт.

Кабінет персоналу офісу:

Маємо кабінет (офіс) з білим потолком, сірими стінами і сірою підлогою. Вихідні дані: а=10,5 м, b=4 м, h=3 м. Використовуємо світильник R-80 NEODYMIUM 60 W E27, лампа накалювання 60 Вт, в одному світильнику 2 лампи, Ф=1560 Лм. Норма освітленості Е=400 Лк на рівні 0,8 м від підлоги. Коефіцієнт запаса КЗ=1,4. Коефіцієнт відбиття потолка - 0,7, стін - 0,3, підлоги - 0,3. Коефіцієнт використання - 44.

 

Кількість світильників (при використанні ламп накалювання) для даного приміщення - 20 шт.

Кабінет секретаря: маємо кабінет (офіс) з білим потолком, сірими стінами і сірою підлогою. Вихідні дані: а=4,5 м, b=4 м, h=3 м. Використовуємо світильник R-80 NEODYMIUM 60 W E27, лампа накалювання 60 Вт, в одному світильнику 2 лампи, Ф=1560 Лм. Норма освітленості Е=300 Лк на рівні 0,8 м від підлоги. Коефіцієнт запаса КЗ=1,4. Коефіцієнт відбиття потолка - 0,7, стін - 0,3, підлоги - 0,3. Коефіцієнт використання - 38.


Кількість світильників (при використанні ламп накалювання) для даного приміщення - 7 шт.

Маємо приміщення з білим потолком, сірими стінами і сірою підлогою. Вихідні дані: а=4,5 м, b=4 м, h=3 м. Використовуємо світильник R-80 NEODYMIUM 60 W E27, лампа накалювання 60 Вт, в одному світильнику 2 лампи, Ф=1560 Лм. Норма освітленості Е=150 Лк на рівні 0,8 м від підлоги. Коефіцієнт запаса КЗ=1,4. Коефіцієнт відбиття потолка - 0,7, стін - 0,3, підлоги - 0,3. Коефіцієнт використання - 38.

 

Кількість світильників (при використанні ламп накалювання) для даного приміщення - 4 шт.

Душ:

Маємо приміщення з білим потолком, сірими стінами і сірою підлогою. Вихідні дані: а=4,5 м, b=2,5 м, h=3 м. Використовуємо світильник R-80 NEODYMIUM 60 W E27, лампа накалювання 60 Вт, в одному світильнику 2 лампи, Ф=1560 Лм. Норма освітленості Е=75 Лк на рівні 0,8 м від підлоги. Коефіцієнт запаса КЗ=1,5. Коефіцієнт відбиття потолка - 0,7, стін - 0,3, підлоги - 0,3. Коефіцієнт використання - 32.

 

Кількість світильників (при використанні ламп накалювання) для даного приміщення - 1 шт.

WC:

Маємо приміщення з білим потолком, сірими стінами і сірою підлогою. Вихідні дані: а=4,5 м, b=2,5 м, h=3 м. Використовуємо світильник R-80 NEODYMIUM 60 W E27, лампа накалювання 60 Вт, в одному світильнику 2 лампи, Ф=1560 Лм. Норма освітленості Е=75 Лк на рівні 0,8 м від підлоги. Коефіцієнт запаса КЗ=1,5. Коефіцієнт відбиття потолка - 0,7, стін - 0,3, підлоги - 0,3. Коефіцієнт використання - 32.

 

Кількість світильників (при використанні ламп накалювання) для даного приміщення - 1 шт.

Коридор:

Маємо приміщення з білим потолком, сірими стінами і сірою підлогою. Вихідні дані: а=1,5 м, b=20 м, h=3 м. Використовуємо світильник R-80 NEODYMIUM 60 W E27, лампа накалювання 60 Вт, в одному світильнику 2 лампи, Ф=1560 Лм. Норма освітленості Е=75 Лк на рівні 0,8 м від підлоги. Коефіцієнт запаса КЗ=1,4. Коефіцієнт відбиття потолка - 0,7, стін - 0,3, підлоги - 0,3. Коефіцієнт використання - 25.

 

Кількість світильників (при використанні ламп накалювання) для даного приміщення - 5 шт.

Автостоянка:

Маємо автостоянку. Вихідні дані: а=11 м, b=7,5 м. Використовуємо вуличний світильник ODEON LIGHT 2322/1F, лампа накалювання 60 Вт, в одному світильнику 1 лампа, Ф=630 Лм. Норма освітленості Е=50 Лк. Коефіцієнт запаса КЗ=1,5. Коефіцієнт використання - 52.

 

Кількість світильників (при використанні ламп накалювання) - 22 шт.

Під’їзд до офісу:

Маємо подвір’я. Вихідні дані: а=8 м, b=4 м. Використовуємо вуличний світильник ODEON LIGHT 2322/1F, лампа накалювання 60 Вт, в одному світильнику 1 лампа, Ф=630 Лм. Норма освітленості Е=50 Лк. Коефіцієнт запаса КЗ=1,5. Коефіцієнт використання - 52.


Кількість світильників (при використанні ламп накалювання) - 8 шт.

2). Проведемо обрахунок кількості світильників для приміщень офісу при використанні газорозрядних ламп.

Кабінет директора:

Маємо кабінет (офіс) з білим потолком, сірими стінами і сірою підлогою. Вихідні дані: а=11 м, b=4,5 м, h=3 м. Використовуємо світильник Philips газоразряд. с прозор. колбой MASTER HPI-T Plus 250W/645 E40, лампа газорозрядна 250 Вт, в одному світильнику 1 лампа, Ф=9200 Лм. Норма освітленості Е=300 Лк на рівні 0,8 м від підлоги. Коефіцієнт запаса КЗ=1,4. Коефіцієнт відбиття потолка - 0,7, стін - 0,5, підлоги - 0,3. Коефіцієнт використання - 65.

Кількість світильників (при використанні газорозрядних ламп) для даного приміщення - 4 шт.

Кабінет бухгалтера:

Маємо кабінет (офіс) з білим потолком, сірими стінами і сірою підлогою. Вихідні дані: а=5 м, b=4 м, h=3 м. Використовуємо світильник Philips газоразряд. с прозор. колбой MASTER HPI-T Plus 250W/645 E40, лампа газорозрядна 250 Вт, в одному світильнику 1 лампа, Ф=9200 Лм. Норма освітленості Е=300 Лк на рівні 0,8 м від підлоги. Коефіцієнт запаса КЗ=1,4. Коефіцієнт відбиття потолка - 0,7, стін - 0,3, підлоги - 0,3. Коефіцієнт використання - 38.

Кількість світильників (при використанні газорозрядних ламп) для даного приміщення - 3 шт.

Кабінет персоналу офісу:

Маємо кабінет (офіс) з білим потолком, сірими стінами і сірою підлогою. Вихідні дані: а=10,5 м, b=4 м, h=3 м. Використовуємо світильник Philips газоразряд. с прозор. колбой MASTER HPI-T Plus 250W/645 E40, лампа газорозрядна 250 Вт, в одному світильнику 1 лампа, Ф=9200 Лм. Норма освітленості Е=400 Лк на рівні 0,8 м від підлоги. Коефіцієнт запаса КЗ=1,4. Коефіцієнт відбиття потолка - 0,7, стін - 0,3, підлоги - 0,3. Коефіцієнт використання - 38.

Кількість світильників (при використанні газорозрядних ламп) для даного приміщення - 8 шт.

Кабінет секретаря:

Маємо кабінет (офіс) з білим потолком, сірими стінами і сірою підлогою. Вихідні дані: а=4,5 м, b=4 м, h=3 м. Використовуємо світильник Philips газоразряд. с прозор. колбой MASTER HPI-T Plus 250W/645 E40, лампа газорозрядна 250 Вт, в одному світильнику 1 лампа, Ф=9200 Лм. Норма освітленості Е=300 Лк на рівні 0,8 м від підлоги. Коефіцієнт запаса КЗ=1,4. Коефіцієнт відбиття потолка - 0,7, стін - 0,3, підлоги - 0,3. Коефіцієнт використання - 38.

Кількість світильників (при використанні газорозрядних ламп) для даного приміщення - 2 шт.

Кімната відпочинку:

Маємо приміщення з білим потолком, сірими стінами і сірою підлогою. Вихідні дані: а=4,5 м, b=4 м, h=3 м. Використовуємо світильник Philips газоразряд. с прозор. колбой MASTER HPI-T Plus 250W/645 E40, лампа газорозрядна 250 Вт, в одному світильнику 1 лампа, Ф=9200 Лм. Норма освітленості Е=150 Лк на рівні 0,8 м від підлоги. Коефіцієнт запаса КЗ=1,4. Коефіцієнт відбиття потолка - 0,7, стін - 0,3, підлоги - 0,3. Коефіцієнт використання - 38.

Кількість світильників (при використанні газорозрядних ламп) для даного приміщення - 1 шт.

Душ:

Маємо приміщення з білим потолком, сірими стінами і сірою підлогою. Вихідні дані: а=4,5 м, b=2,5 м, h=3 м. Використовуємо світильник Philips газоразряд. с прозор. колбой MASTER HPI-T Plus 250W/645 E40, лампа газорозрядна 250 Вт, в одному світильнику 1 лампа, Ф=9200 Лм. Норма освітленості Е=75 Лк на рівні 0,8 м від підлоги. Коефіцієнт запаса КЗ=1,5. Коефіцієнт відбиття потолка - 0,7, стін - 0,3, підлоги - 0,3. Коефіцієнт використання - 32.

Кількість світильників (при використанні газорозрядних ламп) для даного приміщення - 1 шт.

WC:

Маємо приміщення з білим потолком, сірими стінами і сірою підлогою. Вихідні дані: а=4,5 м, b=2,5 м, h=3 м. Використовуємо світильник Philips газоразряд. с прозор. колбой MASTER HPI-T Plus 250W/645 E40, лампа газорозрядна 250 Вт, в одному світильнику 1 лампа, Ф=9200 Лм. Норма освітленості Е=75 Лк на рівні 0,8 м від підлоги. Коефіцієнт запаса КЗ=1,5. Коефіцієнт відбиття потолка - 0,7, стін - 0,3, підлоги - 0,3. Коефіцієнт використання - 32.

Кількість світильників (при використанні газорозрядних ламп) для даного приміщення - 1 шт.

Коридор:

Маємо приміщення з білим потолком, сірими стінами і сірою підлогою. Вихідні дані: а=1,5 м, b=20 м, h=3 м. Використовуємо світильник Philips газоразряд. с прозор. колбой MASTER HPI-T Plus 250W/645 E40, лампа газорозрядна 250 Вт, в одному світильнику 1 лампа, Ф=9200 Лм. Норма освітленості Е=75 Лк на рівні 0,8 м від підлоги. Коефіцієнт запаса КЗ=1,4. Коефіцієнт відбиття потолка - 0,7, стін - 0,3, підлоги - 0,3. Коефіцієнт використання - 25.

Кількість світильників (при використанні газорозрядних ламп) для даного приміщення - 1 шт.

Автостоянка:

Маємо автостоянку. Вихідні дані: а=11 м, b=7,5 м. Використовуємо вуличний світильник ArcoLux CLASSIC II, лампа газорозрядна 250 Вт, в одному світильнику 1 лампа, Ф=25000 Лм. Норма освітленості Е=50 Лк. Коефіцієнт запаса КЗ=1,5. Коефіцієнт використання - 52.

Кількість світильників (при використанні газорозрядних ламп) - 1 шт.

Під’їзд до офісу:

Маємо подвір’я. Вихідні дані: а=8 м, b=4 м. Використовуємо вуличний світильник ArcoLux CLASSIC II, лампа газорозрядна 250 Вт, в одному світильнику 1 лампа, Ф=25000 Лм. Норма освітленості Е=50 Лк. Коефіцієнт запаса КЗ=1,5. Коефіцієнт використання - 52.

Кількість світильників (при використанні газорозрядних ламп) - 1 шт.

3) Проведемо обрахунок кількості світильників для приміщень офісу при використанні світло-діодних ламп.

Кабінет директора:

Маємо кабінет (офіс) з білим потолком, сірими стінами і сірою підлогою. Вихідні дані: а=11 м, b=4,5 м, h=3 м. Використовуємо світильник Байкал LED 600 Тендер, світло-діодна лампа 32 Вт, в одному світильнику 2 лампи, Ф=3050 Лм. Норма освітленості Е=300 Лк на рівні 0,8 м від підлоги. Коефіцієнт запаса КЗ=1,4. Коефіцієнт відбиття потолка - 0,7, стін - 0,5, підлоги - 0,3. Коефіцієнт використання - 65.

Кількість світильників (при використанні світло-діодних ламп) для даного приміщення - 6 шт.

Кабінет бухгалтера:

Маємо кабінет (офіс) з білим потолком, сірими стінами і сірою підлогою. Вихідні дані: а=5 м, b=4 м, h=3 м. Використовуємо світильник Байкал LED 600 Тендер, світло-діодна лампа 32 Вт, в одному світильнику 2 лампи, Ф=3050 Лм. Норма освітленості Е=300 Лк на рівні 0,8 м від підлоги. Коефіцієнт запаса КЗ=1,4. Коефіцієнт відбиття потолка - 0,7, стін - 0,3, підлоги - 0,3. Коефіцієнт використання - 38.

Кількість світильників (при використанні світло-діодних ламп) для даного приміщення - 4 шт.

Кабінет персоналу офісу:

Маємо кабінет (офіс) з білим потолком, сірими стінами і сірою підлогою. Вихідні дані: а=10,5 м, b=4 м, h=3 м. Використовуємо світильник Байкал LED 600 Тендер, світло-діодна лампа 32 Вт, в одному світильнику 2 лампи, Ф=3050 Лм. Норма освітленості Е=400 Лк на рівні 0,8 м від підлоги. Коефіцієнт запаса КЗ=1,4. Коефіцієнт відбиття потолка - 0,7, стін - 0,3, підлоги - 0,3. Коефіцієнт використання - 44.

Кількість світильників (при використанні світло-діодних ламп) для даного приміщення - 10 шт.

Кабінет секретаря:

Кількість світильників (при використанні світло-діодних ламп) для даного приміщення - 4 шт.

Кімната відпочинку:

Маємо приміщення з білим потолком, сірими стінами і сірою підлогою. Вихідні дані: а=4,5 м, b=4 м, h=3 м. Використовуємо світильник Байкал LED 600 Тендер, світло-діодна лампа 32 Вт, в одному світильнику 2 лампи, Ф=3050 Лм. Норма освітленості Е=150 Лк на рівні 0,8 м від підлоги. Коефіцієнт запаса КЗ=1,4. Коефіцієнт відбиття потолка - 0,7, стін - 0,3, підлоги - 0,3. Коефіцієнт використання - 38.

Кількість світильників (при використанні світло-діодних ламп) для даного приміщення - 2 шт.

Душ:

Маємо приміщення з білим потолком, сірими стінами і сірою підлогою. Вихідні дані: а=4,5 м, b=2,5 м, h=3 м. Використовуємо світильник Байкал LED 600 Тендер, світло-діодна лампа 32 Вт, в одному світильнику 2 лампи, Ф=3050 Лм. Норма освітленості Е=75 Лк на рівні 0,8 м від підлоги. Коефіцієнт запаса КЗ=1,5. Коефіцієнт відбиття потолка - 0,7, стін - 0,3, підлоги - 0,3. Коефіцієнт використання - 32.

Кількість світильників (при використанні світло-діодних ламп) для даного приміщення - 1 шт.

WC:

Маємо приміщення з білим потолком, сірими стінами і сірою підлогою. Вихідні дані: а=4,5 м, b=2,5 м, h=3 м. Використовуємо світильник Байкал LED 600 Тендер, світло-діодна лампа 32 Вт, в одному світильнику 2 лампи, Ф=3050 Лм. Норма освітленості Е=75 Лк на рівні 0,8 м від підлоги. Коефіцієнт запаса КЗ=1,5. Коефіцієнт відбиття потолка - 0,7, стін - 0,3, підлоги - 0,3. Коефіцієнт використання - 32.

Кількість світильників (при використанні світло-діодних ламп) для даного приміщення - 1 шт.

Коридор:

Маємо приміщення з білим потолком, сірими стінами і сірою підлогою. Вихідні дані: а=1,5 м, b=20 м, h=3 м. Використовуємо світильник Байкал LED 600 Тендер, світло-діодна лампа 32 Вт, в одному світильнику 2 лампи, Ф=3050 Лм. Норма освітленості Е=75 Лк на рівні 0,8 м від підлоги. Коефіцієнт запаса КЗ=1,4. Коефіцієнт відбиття потолка - 0,7, стін - 0,3, підлоги - 0,3. Коефіцієнт використання - 25.

Кількість світильників (при використанні світло-діодних ламп) для даного приміщення - 2 шт.

Автостоянка:

Маємо автостоянку. Вихідні дані: а=11 м, b=7,5 м. Використовуємо вуличний світильник L-Street 24, світло-діодна лампа 28 Вт, в одному світильнику 1 лампа, Ф=2400 Лм. Норма освітленості Е=50 Лк. Коефіцієнт запаса КЗ=1,5. Коефіцієнт використання - 52.

Кількість світильників (при використанні світло-діодних ламп) - 6 шт.

Під’їзд до офісу:

Маємо подвір’я. Вихідні дані: а=8 м, b=4 м. Використовуємо вуличний світильник L-Street 24, світло-діодна лампа 28 Вт, в одному світильнику 1 лампа, Ф=2400 Лм. Норма освітленості Е=50 Лк. Коефіцієнт запаса КЗ=1,5. Коефіцієнт використання - 52.

Кількість світильників (при використанні світло-діодних ламп) - 2 шт.

6. Розрахунок вартості середньомісячного споживання електроенергіїї для трьох типів ламп

В офісі знаходиться 9 комп’ютерів. Один комп’ютер споживає

,45 кВат/год електроенергії. Отже за день (при тому, що кожен комп’ютер працює 8 годин в робочий день) маємо 0,45*9*8=32,4 кВат. За місяць (при 23 робочих днях) маємо: 32,4*23=745,2 кВат - споживають електроенергії комп’ютери офісу за місяць.

В офісі 5 принтерів. Один принтер споживає 0,35кВат/год енергії. Працюють принтери всі разом 2 год в день. Отже, за місяць принтери споживають: 0,35*2*23=16,1 кВат електроенергії.

В офісі 6 кондиціонерів. Будемо враховувати, що пора року літо, тому вони працюватимуть 23 дні в місяць по 8 годин в день. Один кондиціонер споживає 0,65 кВат/год. За день 6 кондиціонерів споживають: 0,65*8*6=31,2 кВат енергії. За місяць: 31,2*23=717,6 кВат енергії.

В офісі 2 телевізори. Працюють в день вони по 1 годині. Один телевізор споживає 0,08кВат/год. За місяць 2 телевізори споживають: 0,08*2*2*23=7,36кВат електроенергії.

В офісі один холодильник він працює кожен день незалежно, чи то робочий, чи вихідний, з урахуванням зупинок він працює 2 год в день. Споживає електроенергії 1 кВат/год. Отже за місяць він споживає: 1*2*31=62 кВат електроенергії.

В офісі 2 електрочайники. Він споживає 2 кВат/год електроенергії. Працюють вони разом в день 30 хв. Отже, за місяць електрочайники споживають: 0,5*2*23=23 кВат електроенергії.

В офісі є одна мікрохвильова піч. Вона споживає 1 кВат/год. Працює в день вона 40 хв. Отже, за місяць мікрохвильова піч споживає: 1* (4/6) *23=15 кВат.

В офісі є одна кавоварка. Вона споживає 0,36 кВат/год. Працює вона в день 20 хв. Отже, за місяць вона споживає: 0,36* (1/3) *23=2,76кВат енергії.

В офісі є 2 бойлери. Він споживає: 1,5кВат/год енергії. В день вони разом працюють 2 години. Отже, за місяць бойлери споживають: 1,5*2*23= 69 кВат електроенергії.

Отже, без врахування освітлення офіс споживає за місяць: 1628,02 кВат електроенергії. Звичайно це з урахування постійної роботи кондиціонерів.

Розрахуємо споживання електроенергії при освітленні офісу лампами накалювання:

Кабінет директора - використовує освітлення 12 світильників по 120 Ват кожен. Кабінет освітлюється 6 годин в день, 23 дня в місяць. Отже за місяць кабінет споживає на освітлення: 12*0,12*6*23=198,72 кВат електроенергії.

Кабінет бухгалтера - використовує освітлення 8 світильників по 120 Ват кожен. Кабінет освітлюється 7 годин в день, 23 дня в місяць. Отже за місяць кабінет споживає на освітлення: 8*0,12*7*23=154,56 кВат електроенергії.

Кабінет персоналу офісу - використовує освітлення 20 світильників по 120 Ват кожен. Кабінет освітлюється 7 годин в день, 23 дня в місяць. Отже за місяць кабінет споживає на освітлення: 20*0,12*7*23=386,4 кВат електроенергії.

Кабінет секретаря - використовує освітлення 7 світильників по 120 Ват кожен. Кабінет освітлюється 6 годин в день, 23 дня в місяць. Отже за місяць кабінет споживає на освітлення: 7*0,12*6*23=115,92 кВат електроенергії.

Кімната відпочинку - використовує освітлення 4 світильників по 120 Ват кожен. Кімната освітлюється 1 годину в день, 23 дня в місяць. Отже за місяць кабінет споживає на освітлення: 4*0,12*1*23=11,04 кВат електроенергії.

Душ - використовує освітлення 1 світильник на 120 Ват. Душ освітлюється 1 годину в день, 23 дня в місяць. Отже за місяць кабінет споживає на освітлення: 1*0,12*1*23=2,76 кВат електроенергії.

WC - використовує освітлення 1 світильник на 120 Ват. WC освітлюється 1 годину в день, 23 дня в місяць. Отже за місяць кабінет споживає на освітлення: 1*0,12*1*23=2,76 кВат електроенергії.

Коридор - використовує освітлення 5 світильників по 120 Ват кожен. Коридор освітлюється вночі 8 годин в день, 31 день в місяць. Отже за місяць кабінет споживає на освітлення: 5*0,12*8*31=148,08 кВат електроенергії.

Автостоянка - використовує освітлення 22 світильників по 60 Ват кожен. Автостоянка освітлюється 4 години в день, 23 дня в місяць. Отже за місяць кабінет споживає на освітлення: 22*0,06*4*23=121,44 кВат електроенергії.

Під’їзд до офісу - використовує освітлення 8 світильників по 60 Ват кожен. Під’їзд освітлюється 8 годин в день, 31 день в місяць. Отже за місяць кабінет споживає на освітлення: 8*0,06*8*31=119,04 кВат електроенергії.

Отже, за місяць при використанні для освітлення офісу ламп накалювання споживається електроенергія: 1260,72кВат електроенергії.

Разом з використанням офісної техніки виходить місячне споживання 2888,74 кВат електроенергії.


Вартість електроенергії складає: 2278,62 грн.

Розрахуємо споживання електроенергії при освітленні офісу газорозрядними лампами:

Кабінет директора - використовує освітлення 4 світильників по 250 Ват кожен. Кабінет освітлюється 6 годин в день, 23 дня в місяць. Отже за місяць кабінет споживає на освітлення: 4*0,25*6*23=138 кВат електроенергії.

Кабінет бухгалтера - використовує освітлення 3 світильників по 250 Ват кожен. Кабінет освітлюється 7 годин в день, 23 дня в місяць. Отже за місяць кабінет споживає на освітлення: 3*0,25*7*23=120,75 кВат електроенергії.

Кабінет персоналу офісу - використовує освітлення 8 світильників по 250 Ват кожен. Кабінет освітлюється 7 годин в день, 23 дня в місяць. Отже за місяць кабінет споживає на освітлення: 8*0,25*7*23=322 кВат електроенергії.

Кабінет секретаря - використовує освітлення 2 світильників по 250 Ват кожен. Кабінет освітлюється 6 годин в день, 23 дня в місяць. Отже за місяць кабінет споживає на освітлення: 2*0,25*6*23=69 кВат електроенергії.

Кімната відпочинку - використовує освітлення 1 світильник на 250 Ват. Кімната освітлюється 1 годину в день, 23 дня в місяць. Отже за місяць кабінет споживає на освітлення: 1*0,25*1*23=5,75 кВат електроенергії.

Душ - використовує освітлення 1 світильник на 250 Ват. Душ освітлюється 1 годину в день, 23 дня в місяць. Отже за місяць кабінет споживає на освітлення: 1*0,25*1*23=5,75 кВат електроенергії.

WC - використовує освітлення 1 світильник на 250 Ват. WC освітлюється 1 годину в день, 23 дня в місяць. Отже за місяць кабінет споживає на освітлення: 1*0,25*1*23=5,75 кВат електроенергії.

Коридор - використовує освітлення 1 світильник на 250 Ват. Коридор освітлюється вночі 8 годин в день, 31 день в місяць. Отже за місяць кабінет споживає на освітлення: 1*0,25*8*31=62 кВат електроенергії.

Автостоянка - використовує освітлення 1 світильник на 250 Ват. Автостоянка освітлюється 4 години в день, 23 дня в місяць. Отже за місяць кабінет споживає на освітлення: 1*0,25*4*23=23 кВат електроенергії.

Під’їзд до офісу - використовує освітлення 1 світильник на 250 Ват кожен. Під’їзд освітлюється 8 годин в день, 31 день в місяць. Отже за місяць кабінет споживає на освітлення: 1*0,25*8*31=62 кВат електроенергії.

Отже, за місяць при використанні для освітлення офісу газорозрядних ламп споживається електроенергія: 814кВат електроенергії.

Разом з використанням офісної техніки виходить місячне споживання 2442,02 кВат електроенергії.


Вартість електроенергії складає: 1851,53 грн.

Розрахуємо споживання електроенергії при освітленні офісу світло-діодними лампами:

Кабінет директора - використовує освітлення 6 світильників по 64 Ват кожен. Кабінет освітлюється 6 годин в день, 23 дня в місяць. Отже за місяць кабінет споживає на освітлення: 6*0,064*6*23=53 кВат електроенергії.

Кабінет бухгалтера - використовує освітлення 4 світильників по 64 Ват кожен. Кабінет освітлюється 7 годин в день, 23 дня в місяць. Отже за місяць кабінет споживає на освітлення: 4*0,064*7*23=41,2 кВат електроенергії.

Кабінет персоналу офісу - використовує освітлення 10 світильників по 64 Ват кожен. Кабінет освітлюється 7 годин в день, 23 дня в місяць. Отже за місяць кабінет споживає на освітлення: 10*0,064*7*23=103 кВат електроенергії.

Кабінет секретаря - використовує освітлення 4 світильників по 64 Ват кожен. Кабінет освітлюється 6 годин в день, 23 дня в місяць. Отже за місяць кабінет споживає на освітлення: 4*0,064*6*23=35,3 кВат електроенергії.

Кімната відпочинку - використовує освітлення 2 світильника по 64 Ват кожен. Кімната освітлюється 1 годину в день, 23 дня в місяць. Отже за місяць кабінет споживає на освітлення: 2*0,064*1*23=2,9 кВат електроенергії.

Душ - використовує освітлення 1 світильник на 64 Ват. Душ освітлюється 1 годину в день, 23 дня в місяць. Отже за місяць кабінет споживає на освітлення: 1*0,064*1*23=1,5 кВат електроенергії.

WC - використовує освітлення 1 світильник на 64 Ват. WC освітлюється 1 годину в день, 23 дня в місяць. Отже за місяць кабінет споживає на освітлення: 1*0,064*1*23=1,5 кВат електроенергії.

Коридор - використовує освітлення 2 світильника по 64 Ват кожен. Коридор освітлюється вночі 8 годин в день, 31 день в місяць. Отже за місяць кабінет споживає на освітлення: 2*0,064*8*31=31,7 кВат електроенергії.

Автостоянка - використовує освітлення 6 світильників по 28 Ват кожен. Автостоянка освітлюється 4 години в день, 23 дня в місяць. Отже за місяць кабінет споживає на освітлення: 6*0,028*4*23=15,5 кВат електроенергії.

Отже, за місяць при використанні для освітлення офісу газорозрядних ламп споживається електроенергія: 299,5кВат електроенергії.

Разом з використанням офісної техніки виходить місячне споживання 1927,52 кВат електроенергії.


Вартість електроенергії складає: 1358,37 грн.

Отже, найдешевший вид освітлення - це світильники з використанням світло-діодних ламп.

Висновок


Дана розрахунково-графічна робота передбачала розрахунок електроживлення офісу площею 200м2.

В даній роботі було підраховано необхідне електричне обладнання для офісу, розраховано систему близкавкозахисту, розраховано заземлення офісу, підраховано необхідну кількість світильників для всіх приміщень офісу з використанням ламп накалювання, газорозрядних ламп та світло-діодних ламп. І на останньому етапі був проведений розрахунок середньомісячного споживання електроенергії для трьох типів ламп.

Особлива увага приділялася розрахункові споживаної електроенергії, адже за електроенергію доводиться платити не малі гроші. Також, хотілося б розібратися, що пропонують світло-діодні лампи, які постійно рекламують, чи справді вони такі вигідні, адже коштують вони набагато дорожче від звичайних ламп накалювання? Що ж спробую довести те, що використання світло-діодних ламп вигідніше, ніж "старі" лампи накалювання. Перше на що хотілося б звернути увагу це те, що вони використовують майже в 4 рази менше електроенергії, ніж лампи накалювання (це видно з проведених в попередньому розділі розрахунках, наприклад для кабінету директора при однаковому освітленні лампи накалювання споживають 198,72 кВат, а світло-діодні - 53 кВат електроенергії). Друге на що хотілося б звернути увагу це те, що купуючи світло-діодну лампу видається гарантія 12 місяців, а на лампу накалювання немає ніякої гарантії. Третє - це ціна. Вартість лампи накалювання (в десять разів менше) сягає 3-4 грн, а вартість світло-діодної лампи 40-50 грн. Дані цифри лякають. Що ж доведу, як насправді це є, на прикладі розрахунків проведених в попередньому розділі. Споживана електроенергія з використанням ламп накалювання - 1260,72кВат=719 грн, а світло-діодних ламп - 299,5кВат=96,39 грн. В грошах економія в місяць при використанні світло-діодних ламп становить - 622,61 грн. Повернуся до проведених розрахунків і підрахую вартість встановлення освітлення в офіс з використанням ламп накалювання (всього 146 лампочок, вартість однієї 3 грн) становитиме 438 грн, а вартість встановлення світло-діодних (68 лампочок, вартість однієї 40 грн) становитиме 2720 грн. Враховую, що лампи накалювання не буду використовувати (тому вже економимо 438 грн), тобто різниця в ціні між даними видами ламп буде 2720-438=2282 грн.

Обраховую, за який термін себе окуплять світло-діодні лампи, це зроблю так розраховану різницю розділю на розраховану місячну економію, тобто 2282/622,61=3,7 міс., отже, через 4 місяців вартість світло-діодних ламп окупиться. Крім того, як я вже згадував про гарантію (12 міс), то світло-діодні цей і навіть більший термін витримають, тобто будуть приносити економію, а лампи накалювання такий термін не витримають, їх термін служби становить 3-5 місяці. Це означає, що доведеться доплатити за ці 4 місяців, ще як мінімум одну вартість всіх ламп накалювання (ну це, звичайно не обов’язково буде так, адже в кожних приміщеннях по-різному використовується освітлення, але врахую, що за 5 місяців кожна лампа накалювання заміниться на нову), а це 438 грн, в той час як світло-діодні прослужать, як мінімум рік.

Припускаю, що через рік (строк служби світло-діодних ламп) доведеться замінити всі світло-діодні лампи на нові це коштуватиме 2720 грн (тобто сумарна вартість встановлень світло-діодних ламп за рік становитиме 5440 грн), а лампи накалювання доведеться (покладаючись на їх строк служби в 5 місяців) замінити за рік двічі - це коштуватиме 438*2=876 грн, (сумарна вартість встановлення ламп накалювання за рік становитиме 1314 грн). Тобто різниця в ціні становитиме 5440-1314=4126 грн. А як було вже обраховано економія в місяць при використанні світло-діодних ламп становить - 622,61 грн, принесуть прибуток після того, як себе окуплять через 4 місяці, залишається 8 місяців за які кожен місяць економитиметься 622,61 грн, тобто маємо економію в 622,61*8=4980,88 грн.

Отже, порівнюючи отримані значення затрачені кошти 4126 грн та зекономлені кошти 4980,88 грн отримуємо економію в рік (при використанні світло-діодних ламп, а не ламп накалювання) 4980,88-4126=854,88 грн.

Похожие работы на - Електричне обладнання офісу

 

Не нашли материал для своей работы?
Поможем написать уникальную работу
Без плагиата!
Без нейросетей!