История архитектуры ХХ века
Оглавление
архитектура строительство жилой
хрущевский
Введение
.
Типовая архитектура в XX веке
.
Периоды в типовой архитектуре советского времени
.
Архитектура "сталинского периода" - 1930-1950-е годы
.
Дома постройки 1940-х годов
.
Дома постройки 1950-х годов
.
Дома постройки 1960-х годов
.
Дома постройки 1970-х годов
.
Дома постройки 1980-х годов
.
Дома с квартирами гостиничного типа - "гостинки"
.
Современное типовое строительство
.
Типовая архитектура других стран
Заключение
Список
использованной литературы
Введение
В настоящее время весьма назрела необходимость в
совершенствовании эстетических свойств жилой городской среды. В большой степени
это касается жилых домов второй половины ХХ века, поскольку их
архитектурно-художественные качества оставляют желать лучшего. Главная проблема
современной отечественной жилой архитектуры заключается в ее утилитарной
направленности. Здания превратились, по сути, в функциональные блоки, которые
характеризуются внутренними эксплуатационными качествами. Это обусловлено тем,
что в период правления советской власти страна развивала массовое домостроение
на основах типового проектирования, где эстетическая сторона вопроса уступала
место технико-экономической. Именно поэтому считалось, что для возведения
многоэтажных жилых домов рациональнее использовать типовые проекты, так как они
требуют меньших трудозатрат и финансовых расходов. Таким образом, задача
массового обеспечения людей жильем успешно выполнялась, но при этом значительно
ухудшалось качество архитектурной среды городов и деревень.
Однако архитектура жилых домов второй половины
XX века не была полностью лишена художественно-эстетических качеств, неся в
себе элементы стилистического направления того времени. Если отслеживать
поэтапно эволюцию жилого проектирования, станет очевидно, что оно шло путем
упрощения форм и с каждым этапом все больше внимания уделялось функции, что
негативно отразилось на эстетических качествах. Это связано, прежде всего, с
ростом масштаба строительства, внедрением и изменением его технологии и
характера. В XIX веке жилые дома были компактными и достаточно небольшими,
процесс строительства не требовал привлечения значительных технологических
средств и мощностей. Дома строились по индивидуальным проектам. Поэтому
возможностей совершенствования художественных параметров у архитектуры того
времени было несколько больше. Тем не менее, нельзя отказывать в определенной
стилистике домам послевоенного периода. И хотя эволюция типовой архитектуры шла
по линии совершенствования планировок и внутридомовой среды, тем не менее, если
рассматривать три периода архитектурного зодчества советского времени в
развитии, можно говорить о выработке определенной стилистики, о которой можно
спорить, но нельзя игнорировать.
Сегодня, во многих городах страны, типовая застройка
занимает значительную часть городов и напрямую взаимодействует с исторически
ценной застройкой, что негативно сказывается на состоянии местных памятников
архитектуры. Территориальные габариты типовой застройки весьма велики, а
архитектурно-эстетические качества намного ниже, чем у взаимодействующей с ними
исторической среды.
Нельзя забывать о том, что на психическом
здоровье людей сказывается окружающая их архитектурная среда. Поэтому сегодня
крайне необходимо искать новые формы выразительности, которые бы обеспечивали
визуальную образность и гармоничность жилой застройки, а также не теряли бы при
этом наработанные принципы функционального назначения и технико-экономических
показателей типового строительства. Синтез старых и новых архитектурных форм,
сочетание современной высокотехнологичной архитектуры и исторических стилей,
слияние прошлого и настоящего позволят нам получить совершенно новые
архитектурные формы и решить существующую проблему.
1. Типовая архитектура в XX веке
Как известно, после Второй мировой войны, в СССР
и странах ближнего зарубежья, был взят курс на строительство домов по типовым
проектам. Типовая архитектура стала одним из ведущих факторов в формировании
архитектурного облика городов. В жилищном строительстве это касалось, в первую
очередь, спальных районов - активно строящиеся жилые массивы, обеспечивали
новым жильем множество разорённых войной семей. Были и свои плюсы, были и свои
минусы. Если же отметить глобально, то можно сказать, что введение типовых
серий в жилищное строительство помогло быстро развивающейся великой державе
(СССР) встать на ноги и существенно улучшить жилищные условия простых людей в
самые короткие сроки.
Чуть позже, в период хрущёвской
"оттепели", когда наряду с развитием тяжёлой промышленности предполагалось
значительное увеличение объемов строительства, в силу политических,
идеологических и демографических причин, жилищное строительство приняло
исключительно "типовой" характер. В условиях плановой экономики,
именно на территории СССР, типовая архитектура получила свое максимальное
развитие. И, если в других странах (Северной Корее, Польше, Чехословакии, Китае
и др.) типовой застройке подверглись территории, в основном, больших городов,
то в нашей стране, застраивались и малые города, и большие деревни - по типовым
проектам отстраивалась вся страна.
В таких условиях, вполне оправдано говорить о
развитии и, в некоторой степени, об эволюции архитектурного принципа в типовой
архитектуре двадцатого века.
С начала 1960-х годов жилищное строительство в
СССР было тесно связанно с промышленным. Рядом с промышленной зоной,
планировалась селитебная - строились микрорайоны. В основном из 5- и 9-этажных
серийных панельных домов. Подобное однообразие снижало себестоимость
строительства, позволяло ускорить ввод жилья в эксплуатацию. Малогабаритные
квартиры, рассчитанные на небольшое количество человек, плохо обустроенные,
некачественные - казались просто "дворцами", по сравнению с
коммунальным жильем. В конце концов, люди получали "свою квартиру", рассчитанную
на заселение одной семьей, и это было хорошо. Одновременно со строительством
крупнопанельных домов стали появляться и серийные дома из "крупных
блоков", но эта технология так и не приобрела массового распространения
(строить из блоков было сложнее, чем из крупных панелей на всю комнату).
Эти технологии, на самом-то деле, пришли из
предыдущей эпохи "сталинского периода". Шлакоблочные
"сталинки" были, в некотором роде, предвестниками грядущего массового
строительства на основе индустриальных блоков и панелей. Архитектура после 1917
года претерпела ряд изменений с некоторыми новыми характерными общими чертами,
отличающими сталинскую архитектуру от других направлений в архитектуре других
исторических периодов, в СССР и за рубежом. В период правления И. В. Сталина,
архитектурная политика подразумевала классический монументальный стиль, во
многих чертах близкий к ампиру, эклектике и ар-деко. Отказ от присущих
предшествующим векам мотивов и форм декоративного убранства развивался в
направлении соцреализма с некоторыми элементами помпезности и пафоса эпохи
"великих свершений".
В этом отношении интересна первая половина
1930-х гг., когда традиционалистская романтика послереволюционных лет
неожиданным образом сплелась с современными движениями. На короткое время
удачно проявилось лучшее в тенденциях модернизации и преобразования форм
классики, как отражение европейских архитектурных изменений 1910-х гг., велась
разработка упрощённых ордерных построений, формировались новые самобытные
тенденции.
Рисунок 1.1 - "Сталинские высотки" -
высотные здания, построенные в Москве в конце 1940-х - начале 1950-х годов.
Архитекторы Д.Н. Чечулин, А.К. Ростковский, инженер Л.М. Гохман и др.
Рисунок 1.2 - Жилой дом РЖСКТ "Пищевая
Индустрия" на Гончарной улице г. Москва. Н.В. Вишневский, Г.Б. Воробьев
1939-1946 гг.
Рисунок 1.3 - Проект реконструкции Смоленской
площади г. Москва. Н.Я. Колли, И.Н. Кастель, В.П. Сергеев 1940 г.
Рисунок 1.4 - Жилой дом №9 на Ленинградском
проспекте г. Москва. А.Г. Рочегов 1950 г.
Комплексный подход в застройке, планирование
рекреационных зон, устройство транспортной инфраструктуры, строительство
общественных и гражданских сооружений - разрабатывались на основе
социалистической урбанистики. Тем не менее, в жилищном строительстве
архитектурная стилистика не развивалась, наиболее интересные проекты
отвергались, разнообразие не приветствовалось, сложные, стилистически новые формы
жилого строительства упрощались. При строительстве жилых домов того времени
использовались примитивные, безличные украшения, неоштукатуренный желтый
силикатный кирпич для наружных стен, невыразительные фасады с однообразной
лепниной. По политическим, идеологическим, да и по экономическим причинам,
предпочитали строить проще, скромнее, и эта тенденция, со временем,
развивалась, набирала обороты на протяжении дальнейших десятилетий.
Уже с конца 1930-х гг., в одно из самых страшных
для страны времен, наметился тяжелейший кризис советской архитектуры, который
продлился до конца 1950-х гг. Это период полного возврата традиционных форм в
ходе их прямого заимствования, сводящий работу архитектора до уровня
инженера-утилизатора. Тем не менее, надо сказать, что в этот сложнейший период,
советскими архитекторами и реставраторами была проделана огромная и важная
работа по восстановлению разрушенной войной страны. Именно работы по
реставрации исторически важных памятников архитектуры занимала внимание
архитекторов того времени. Сразу после войны, в первую очередь отстраивались
разрушенные промышленные объекты и объекты общественного назначения.
Кульминационное завершение периода архитектуры
сталинского неоклассицизма и советского монументального классицизма произошло после
выхода Постановления ЦК КПСС и СМ СССР от 4 ноября 1955 года "Об
устранении излишеств в проектировании и строительстве". На заседании
пленума ЦК КПСС, Н.С. Хрущев объявил о взятии курса на унификацию, типизацию и
стандартизацию в строительстве. С этого момента, стали строить так называемые
"хрущевки". Стали строить быстро, дешево и одинаково безлично - чем
проще организованы фасады, экстерьеры, тем лучше.
Подобные преобразования вели к решению ряда
функциональных проблем, которые игнорировались в предшествовавшие периоды:
обеспечению государства массовым жильем, переход на индустриальное производство
элементов строительных конструкций и т.д. С тех пор и на долгие годы
установилась тенденция к упрощению, явному утилитаризму, основанному на
концепции возврата к универсальной эстетике модернизма, без учета особенностей
стиля. Повсеместное преобладание "хрущевских домов" с начала 1960-х
гг. в жилой архитектуре типового проектирования, сформировало особую
градостроительную политику Советского Союза, характеризуемую массовым
строительством районов дешёвого сборного жилья, а также массированной
реконструкцией исторической среды старых городов.
Это обернулось двумя серьезными проблемами:
монотонностью и унылостью пространства новой застройки и эстетической индифферентностью
новостроек, внедрявшихся в исторически сформированные среды городов, по
отношению к окружению. Попросту говоря, в архитектуре того времени, сложность,
изысканность, творческий поиск уступили место простоте, дешевизне и скорости,
основанной на строительстве однообразных жилых домов из одинаковых элементов,
по типовым проектам. Это были, в первую очередь, железобетонные панельные и
каркасно-панельные многоэтажки, с максимально простым унылым фасадом, зачастую
не окрашенные вовсе.
Прототипом для первых "хрущёвок" стали
блочные здания, строившиеся в Германии с 1920-x годов, а в особенности,
немецкие проекты послевоенного времени, рассчитанные на заселение одинокими
людьми, потерявшими семьи в период войны. Первые однокомнатные малосемейки
проектировались на основе германских проектов. Это были хорошие проекты,
предназначенные для условий проживания одиноких холостяков. Однако у нас в
такие квартиры заселяли целые семьи и люди были рады новому жилью, в
альтернативу коммунальным условиям довоенной эпохи. В дальнейшем, вполне
логичные однокомнатные "малосемейки" превратились в двухкомнатных и
даже трехкомнатных монстров, в "малосемейки" у которых большинство
нормативных показателей, технико-экономические показатели и объемно планировочные
коэффициенты остались прежние.
Строительство подобных зданий, обусловленное
соответствующими нормами проектирования, осуществлялось повсеместно в 60х-80х
годах. За десять лет, в период с 1955 по1965 годы было построено больше 15
тысяч жилых домов. Почти все пятиэтажные. Это позволило ежегодно вводить 100
миллионов квадратных метров жилья. Была создана соответствующая
производственная база и инфраструктура: домостроительные комбинаты, заводы ЖБИ
и т. д. Первые ДСК создавались в период с 1959 по 1963 года по всей территории
страны одновременно. С 1965 по 1970 в Ленинграде около миллиона человек
получили жилую площадь. С 1960 года в крупных городах велось строительство
жилых 9-этажных панельных домов, с 1963 года - 12-этажных.
Первый в СССР четырёхэтажный каркасно-панельный
дом сооружён в 1948 году в Москве на 5-й ул. Соколиной горы (Г. Кузнецов, Б.
Смирнов). В это время была поставлена задача разработать типовой, максимально
дешёвый проект жилого дома с отдельными квартирами, посемейного заселения.
Важнейшим условием для выполнения этой задачи стало внедрение идеи
индустриального панельного домостроения с несущим каркасом. В 1948-1951 году
М.В. Посохин, А.А. Мндоянц и В.П. Лагутенко застроили 10-этажными
каркасно-панельными домами квартал в Москве (улицы Куусинена, Зорге).
В 1958 году инженер В.П. Лагутенко сделал проект
пятиэтажки - это была серия К-7 (К-каркасный). Возможно, что именно с нее и
пошло в дальнейшем прозвище "хрущевка". В народе их стали называть
"хрущобами" за ряд определённых неудобств:
маленькие и часто нерациональные размеры кухонь
и жилых комнат,
узкие коридоры и лестничные клетки,
низкие потолки,
совмещённые санузлы,
плохая шумоизоляция,
недостаточная теплоизоляция - прохлада зимой и,
наоборот - жара летом (особенно на верхних этажах),
ряд недоделок при строительстве, которые часто
жильцам самим приходилось устранять.
Эти дома являлись копией французской пятиэтажки,
но имели некоторые функциональные упрощения (например, отсутствие лифта).
Печально знаменитая серия К-7 отличалась рядом технических упущений, в
частности: проблемными швами наружных стеновых панелей, ужасной звукоизоляцией,
низкое качество внутренней отделки помещений, проблемы с сантехническим
оборудованием, плохая теплоизоляция и т.д. В дальнейшем, эта серия претерпела
ряд модификаций и технологических улучшений. К примеру, один из последних домов
серии К7, построенный в Москве в Новых Черемушках, обладал рядом достоинств,
которых у первых домов не было и в помине. Перекрытия в нем отвечали
требованиям звукоизоляции, имелись балконы, межквартирные перегородки толщиной
20 см (такая звукоизоляция обеспечена далеко не у всех современных зданий), а
крыша дома была вентилируемой. Тем не менее, серия К7 довольно быстро была
снята с производства и не получила широкого распространения по всей стране. В конце
концов, эти дома строились из расчета 20-летней эксплуатации, а простояли более
50 лет, что они обеспечили наиболее нуждающихся людей, пускай и маленькими, но
отдельными квартирами в кратчайшие сроки. Дома этой серии послужили делу
распространения типового проектирования и явились "предвестником"
крупнопанельного типового домостроения, как в столице, так и в союзных
республиках.
Основная идея такого домостроения заключалась в
том, что фактически здание изготавливалось на заводе, а на месте только собиралось.
Это позволяло значительно ускорить и удешевить процесс домостроения. Типовые
дома, в частности из серии К-7 и ее дальнейших модификаций, стали основным
элементом застройки микрорайонов в пригородах Москвы, в Кузьминках,
Хорошево-Мневники и других новых жилых районах на свободных территориях вокруг
столицы.
Характеристики серии К-7:
Первая буква "К" в названии серии -
означает КАРКАСНЫЙ. На 1-х этажах могут располагаться магазины, кроме того
входы в дом и лестницы могут располагаться по разные стороны дома.
Планировка:
Тип дома - каркасно-панельный.
Этажность - 5.
Квартиры - 1,2,3 комнатные.
Наличие балконов - нет.
Высота жилых помещений - 2,59 (2.5) м.
Строительные конструкции.
Наружные стены навесные ж/б панели утепленные
пеностеклом и минватой (касcетные панели) толщиной 270 мм., 160 мм.
Перегородки ж/б тонкостенные балки-стенки 80 мм.
Производитель - ДСК-1 и Дмитровский ДСК.
Годы строительства - 1958-1969 г.
Города распространения - Москва, Подмосковье
(Балашиха, Подольск, Климовск, Дмитров, Люберцы, Мытищи, Нахабино,
Солнечногорск, Электросталь, Дубна), Саратов, Санкт-Петербург.
Отличительная особенность домов серии -
отсутствие балконов (они были предусмотрены проектом, и их, например, до сих
пор можно увидеть на 4-этажных домах модификации К-7-3-3 в 1-м и 2-м
микрорайонах Зеленограда, но в подавляющем большинстве домов от них отказались
в пользу удешевления конструкции) и глухие торцы домов. Таким образом, дом
представляет собой прямоугольный параллелепипед, без каких-либо выступающих
деталей. Панели, из которых строили эти дома, в большинстве случаев облицованы
белым квадратным кафелем со стороной около 5 см. Ещё одна особенность -
выступающие элементы каркаса по углам комнат.

Рисунок 1.6 - Планировка секции в серии К-7
Рисунок 1.7 - Дом серии К-7, г. Москва
Рисунок 1.8 - Дома серии К-7
Первый домостроительный комбинат (ДСК1)
образовался 31 мая 1961 года, и создавался специально для массового
строительства домов серии К-7. В некотором смысле, К-7 была настоящим открытием
своего времени. Инженерная конструкция, разработанная Виталием Павловичем
Лагутенко, руководителем первой мастерской Моспроекта, была уникальной: дом
собирался как этажерка. Если Генри Форд придумал автомобиль, сходящий с
конвейера, то Виталий Лагутенко придумал дом, подобный этому автомобилю.
Технология, позволяющая строить дешево, много и быстро, была найдена. Дом К-7
должен был уничтожить бараки, подвалы и коммуналки. И надо сказать, что во
многом это ему удалось. Проект Лагутенко критиковали ценители московской
старины, много оппонентов было и из профессиональной среды, и поводы для критики
действительно были. Но была ли в том вина только архитектора? В 1962 году ДСК-1
сдал 100 тыс. квадратных метров жилья, а в 1966 году - в два раза больше. У
таких темпов была и оборотная сторона медали. Лагутенко не успел довести свой
дом до желаемого качества по многим причинам. К массовому строительству не была
готова промышленность - так, например, в те времена просто не существовало
качественных утеплителей. Некоторые моменты выявлялись только во время
эксплуатации - ведь никакого опыта в строительстве панельных домов еще ни у
кого не было. Только эксплуатация показала, что нельзя делать утепленные крыши,
- утеплитель вбирает в себя влагу, зимой замерзает, а весной крыша начинает
течь. Поэтому стали делать прохладные, вентилируемые крыши. До плачевного состояния
дом могло довести не только незнание его эксплуатационных свойств, но и
банальная неряшливость.
"В 1971 году в город Набережные Челны,
который сооружался усилиями московских строителей, приехал Алексей Николаевич
Косыгин - председатель Совета Министров СССР. Показывали ему новостройки.
Косыгин был человеком непредсказуемым, и на подобных встречах вел себя не по
сценарию местного начальства, а так, как считал нужным. Посмотрев отделанные
пустые квартиры, он неожиданно пожелал посетить уже заселенный дом. Разумеется,
такого пункта в программе не было. Алексей Николаевич решительно рванул к
первому попавшемуся дому, а за ним, меся ногами грязь и холодея от ужаса
(где-то на пути зияла разрытая траншея с теплотрассой) побежала свита и
строители. Премьер-министр поднялся на второй этаж и позвонил. Дверь ему
открыла молодая женщина, за юбку которой держались два пацана. Косыгин, не
растерявшись, сунул детям конфеты и проник в квартиру. Открывшийся взгляду
"пейзаж" привел премьера в негодование. Обитательница квартиры, между
прочим, занимавшая должность коменданта дома, успела всего за три месяца
привести ее в пещеру: кухня была залита водой, ванна завалена барахлом, обои
свисали со стен живописными лохмотьями. "Вы недостойны нового жилья -
заявил расстроенный Косыгин городскому руководству, - вы не понимаете, что это
такое, как надо с этим обращаться. И если у вас такой комендант здания, то
представляю, что у вас творится в городе" [3].
Бывшие подвальные обитатели с трудом привыкали к
благам цивилизации: бывало, что в ванной - солили огурцы, а в унитазы бросали
консервные банки…
В наше время условно принято разделять
архитектуру массового жилого домостроения XX века на четыре периода:
й период - 1930-1950 гг. Период правления И.В.
Сталина и строительство так называемых "сталинских" домов;
й период - 1950-1960 гг. Период правления Н.С.
Хрущева и строительство "хрущевок";
й период - 1970-1980 гг. Период правления Л.И.
Брежнева, строительство "брежневок" и "гостинок";
й период - 1990 и позже. Период
"Перестройки" и современное время.
. Архитектура "сталинского периода" -
1930-1950е годы
"Ста́линки"
- общее разговорное название домов, сооружавшихся в СССР с конца 1930-х годов
до середины 1950-х годов, во время правления И. В. Сталина.
Такие здания принято называть: "сталинские
дома", "сталинки", иногда - "сталинские здания". Кроме
того, применяются названия "полногабаритная" или
"полнометражная" квартира, сокращенно "полнометражка".
Сталинские дома строили с 1935 до 1960 года. По
дате, здания делят на до- и послевоенные. Строительство сталинских домов резко
сократилось после смерти Сталина, когда был взят курс на индустриализацию и
унификацию в строительстве, что привело к появлению "хрущёвок". Тем
не менее, отдельные здания строились до 1960 года.
"Cталинки" бывают от 4 до 7 этажей.
Квартиры включают обычно три или четыре комнаты, реже две или больше четырех.
Однокомнатные дома этого периода строились ограниченно. Комнаты могут быть как
раздельными, так и смежными (в трехкомнатных обычно две комнаты совмещены). Подъездов
несколько. На одном этаже 3,4 квартиры.
Стены из красного (в довоенный период) или
белого кирпича. Также применялись шлакоблоки - шлакоблочные дома стали
предвестниками грядущего массового строительства на основе индустриальных
блоков и панелей. В конце 40-х - начале 50-х были построены первые
крупнопанельные дома. Кирпичные дома, как правило, отличаются более изысканным
фасадом, просторными квартирами, лучшей шумоизоляцией. Внутренние перегородки
обычно выполнены из дерева и оштукатурены.
Перектрытия - железобетонные или деревянные (в
последствии заменялись на ж/б), в местах расположения санузлов замоноличивались
бетоном. Потолки высокие - 2,95-3,25 метра. Полы паркетные, газовая плита.
Лифты, ввиду малой этажности, часто отсутствуют, мусоропровода нет или
индивидуальный - на кухне. Также на кухнях нередко размещался зимний
холодильник - шкаф под окном, соединенный с улицей. Электрические счётчики в
"сталинских домах" размещали внутри квартир. Технический этаж. Крыши
в "сталинках" двухскатные, вальмовые или многоскатные, с большим
чердаком. В качестве кровельного материала использовался шифер или кровельная
сталь. Конструкция фундамента могла быть ленточная с монолитной заливкой,
столбчатая, а позднее и свайная.
В те времена в городах отсутствовало газоснабжение,
поэтому на кухнях ставились дровяные плиты. В конструкции стен
предусматривались дымоходы. Для нагрева воды использовались твердотопливные
котлы. Дрова или уголь хранились в подвале или в сарае во дворе. Первый этаж
здания часто сооружался более высоким - на нём размещались магазины, почтовые
отделения и другие социально значимые объекты.
Во времена Сталина, строить "абы как"
было недопустимо. Потому здания выполнены качественно. Такие дома до сих пор
выглядят фундаментально, монументально, внушительно и долговечно. Даже
коммунальные системы в большинстве случаев находятся в очень хорошем состоянии.
Метражи достаточно большие:
Однокомнатные квартиры: 34-42/17-23/7-12 кв.м.
Двухкомнатные квартиры: 50-60/29-37/8-12 кв.м.
Трехкомнатные квартиры: 69-78/41-53/8-12 кв.м.
По конструкции зданий и планировке квартир
делятся на два типа: "номенклатурные" и "рядовые"
сталинские дома.
Номенклатурные дома ("директорские",
"дома для начальников") строились для работников управленческого
аппарата, чиновников высокого уровня, военных, выдающихся люде и т.д. Эти дома
были с хорошей планировкой, с 2-4 квартирами на этаже, большой площади. Во
многих квартирах предусматривались кабинеты, детские, библиотеки, комнаты для
прислуги, просторные кухни, раздельные санузлы, изначально большие комнаты - от
15 до 25, а местами даже до 30 кв. м., подсобные помещения. Многие квартиры
имели балконы. В таких домах устраивались большие подвалы и даже бомбоубежища
(здания с бомбоубежищами строились и в послевоенное время).
Обычно "директорские" дома построены в
простых архитектурных формах, иногда оштукатуренные, с бедным лепным декором и
высокими потолками (2,9-3,2 м и более).
Здания этого типа возводились в центре города,
при застройке проспектов и магистральных улиц, возле площадей. Обычно они
построены по индивидуальным проектам и являются архитектурными
достопримечательностями города.
Рядовые "сталинки" строились для
рабочих (часто под коммунальное заселение) и представляют из себя более
скромное жилье. В домах встречаются как классические для того периода трёх- и
четырёхкомнатные квартиры, так и послевоенные "коридорные" общежития.
Площади квартир меньше, чем в домах для номенклатуры (однако всё равно больше,
чем в "хрущёвках" и более поздних домах), встречаются смежные
комнаты. Архитектура утилитарна, отсутствуют украшения, фасады - почти плоские
со стандартным лепным декором. Наружные стены зданий из красного или
силикатного кирпича почти не штукатурились, перекрытия применялись в основном
деревянные. В рабочих "сталинках" часто не было мусоропровода и
лифта, отсутствовала ванная. Были только унитазы и умывальники. В таком доме
обычно не было и горячего водоснабжения. Позднее ванны или душевые кабины
устанавливались на кухнях либо проводилась перепланировка для увеличения площади
санузла. Распространенным видом рабочей "сталинки" являются
двухэтажные дома без подвалов. Их строительство не требовало применения
специальной строительной техники. Такие дома строились, как правило, в рабочих
посёлках, размещавшихся возле заводов, на окраинах или в глубине кварталов. При
строительстве применялось копирование проекта, что приводило к возникновению
однотипных жилых массивов.
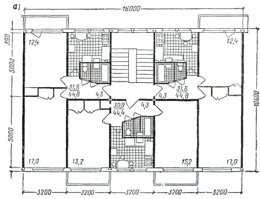
Рисунок 3.1 - Варианты планировок в
"сталинских" домах
Таким образом, дома этого периода являются
достаточно престижным жильем. Прежде всего, это объясняется надежностью,
высокими шумо- и теплоизоляционными качествами, высокими потолками и хорошей
площадью квартир. Такие дома располагаются в центре. Тем не менее, эти дома
имеют долгий срок службы, а, следовательно, физический и моральный износ их
велик. Это сказывается на качестве внутренних коммуникаций, отсутствует
современная инфраструктура. Кроме того, в "сталинских" домах и
сегодня еще встречаются коммунальные квартиры.
В 1990-е спрос на дома "сталинского
типа" был очень большой. Эти дома были значительно лучше
"хрущевок" периода 70х-80х годов. Но даже сегодня
"сталинки" остаются дорогим и востребованным жильем.
3. Дома перестройки 1940-х годов
Во время войны, строительство жилых домов
приостановилось. Но сразу после войны, буквально с 1947 года, строительство
возобновилось по всей стране.
Рисунок 4.1 - Жилой дом по ул. Руставели, 9.
Построен в 1947 году. Получил третью премию на конкурсе лучших построек года.
Включён в свод архитектурных памятников Москвы. Архитектор - Яков Лихтенберг,
автор проектов станций метро Кропоткинская и Динамо
Первые бескаркасные и каркасно-панельные здания
начинают строить с 1947 года в Москве и Ленинграде. Дома строятся в 4-5 этажей,
а в Москве строится несколько 8-этажных панельных, с панелями в 2 этажа.
Академия архитектуры СССР начинает полномасштабные разработки сборного
крупнопанельного жилища.
. Дома перестройки 1950-х годов
В начале 50-х годов обострилась и без того
сложная ситуация с решением жилищных проблем населения. В период Великой
Отечественной войны и первые послевоенные годы средств на строительство не
хватало, а потребность в жилье была высока хотя бы уже потому, что множество
зданий было разрушено, особенно в Белоруссии. В конце 40-х - начале 50-х годов
застройка городов производилась индивидуальными жилыми домами, особенно в г.
Гомеле и других, меньших городах. И это впоследствии стало препятствием для
развития инфраструктуры города. Гомель и сегодня лидирует по количеству частной
застройки.
Серия II-01. Годы строительства - 1954-1959 гг.
Тип дома - кирпичный. Этажность - 3-5. Высота жилых помещений - 300 см.
Квартиры - 1,2,3 комнатные. Производитель - местные стройматериалы. Города
распространения - Москва и др.
Рисунок 5.1 - Дома серии II-01 г. Москва
Серия II-02. Годы строительства - 1952-1960 г.
Тип дома - панельно-кирпичный. Этажность - 8. Высота жилых помещений - 300 см.
Квартиры - 1,2,3 комнатные. Города распространения - Москва. Наружные стены -
кирпичные блоки заводского изготовления, облицованные особой плиткой.
Перегородки - гипсокартон. Перекрытия - железобетонные плиты с круглыми
пустотами толщиной 22 см.
Рисунок 5.2 - Дома серии II-02, г. Москва
Рис 5.2 - План типового этажа в серии II-02
Серии 300 и 400 строились с 50-х годов. И
являются предшественниками массовых серий эпохи индустриализации строительства.
Как правило, здания этих серий возводились из силикатного кирпича или из
крупных блоков, с применением бетонных перекрытий из плит ПРТ, или позже из
круглопустотных плит. В этих домах зачастую не было горячего водоснабжения, но
был подведен газ. Дома строились в основном в рабочих районах больших городов СССР.
Серия 1-440. Разработчик: Мастерская им.
Веснина, 1958 г. Тип дома - кирпичный (крупные блоки или кирпич). Этажность -
3-5. Квартиры - 1,2,3 комнатные. Высота этажа - 2.5 м. Производитель - местные
заводы ЖБИ. Города распространения - СССР (общесоюзная серия).
Рисунок 5.3 - Дом серии 1-440
Рисунок 5.4 - Дворовой фасад дома серии 1-440
Серия 1-460. Годы строительства
- 1950е - 1960е гг. Тип дома - кирпичный. Перекрытия ж.б круглопустотки.
Продольные несущие стены. Этажность - 4-5. Высота жилых помещений - 2.48
м.Квартиры - 1,2,3 комнатные. Производитель - местные стройматериалы. Города
распространения - Москва, Великий Новгород, Тольятти, Климовск и др.
Рисунок 5.5 - Дом серии 1-460 в
г. Москва
Рисунок 5.6 - Планировки в
домах серии 1-460
Серия СМ-3, СМ-6. Типовые серии кирпичных домов
СМ-3, СМ-6 (Секции Моспроекта-3, Секции Моспроекта-6) распространены во многих
районах Москвы, застройка которых велась во второй половине 1950-х - начале
1960-х годов. Годы строительства 1957-1963 гг. В квартирах комнаты в
большинстве случаев изолированные, но есть варианты со смежными комнатами.
Дома типовых серий СМ-3, СМ-6 узнаваемы по
кирпичным необлицованным внешним стенам песочного цвета, которые встречаются и
в других 8-9-10-этажных домах 1950-х-1960-х годов. В квартирах некоторых
корпусов есть эркеры. Санузлы раздельные, ванные комнаты стандартные, длиной
170 см. Лестницы - без общего противопожарного балкона. Мусоропровод с
загрузочным клапаном на межэтажной площадке. Вентиляция естественная вытяжная.
Наружные стены - кирпич толщиной 50 см., внутренние стены - кирпич толщиной
40-50 см. Перекрытия - железобетонные круглопустотные плиты толщиной 22 см.
Несущие стены - наружные, внутренняя центральная продольная, поперечные
межквартирные и стены лестничных клеток. Облицовки и штукатурки нет. Цвета стен
темно-песочный, реже - песочный с красным. Тип кровли - четырехскатная,
покрытие - кровельное железо. В поздних 8-этажных домах встречается плоская
крыша.
Достоинства: хорошая тепло- и шумоизоляция стен;
относительно высокие потолки; удачные планировки. Недостатки: смежные
комнаты в некоторых квартирах, отсутствие грузового лифта.
Типовые серии СМ-3, СМ-6 включают в себя большое
число модификаций. Внутренние и внешние стены обладают отличными звуко- и
теплоизоляционными свойствами, большинство комнат изолированные. Высота
потолков: 2,7-2,8 м. Этажность: 8, 9 или 10 этажей, первый - часто нежилой. 1
пассажирский лифт. Балконы во всех квартирах, начиная с 3 или 4го этажа.
Количество квартир на этаже - 4, реже 3.
Причина прекращения строительства: внедрение в
производство более дешевых, "хрущевских" серий домов.
Рисунок 5.7 - Дом серии См-3 в Москве

Рис 5.9 - Варианты планировок квартир в СМ-6
. Дома перестройки 1960-х годов
Дома периода строительства 60х-70х годов
традиционно принято называть домами "хрущевской" постройки
("хрущевки", "хрущо́бы")
- кирпичные, крупнопанельные дома разной этажности (преимущественно от 2х до
5ти), строившиеся по всей территории Советского Союза с 1956 по 1985 год в период
правления Н. С. Хрущева.
В Москве были наиболее распространены серии
1-510, 1-515/5, К-7. В Ленинграде это были серии 1-335, 11-32 и др. На
сегодняшний день, серии K-7, 1605/5, 11-32, 11-35, 1-335 и некоторые другие,
менее известные, пришли в состояние отказа, устарели морально и физически. На
данный момент, по крайней мере в Москве, их уже снесли. "Хрущёвки"
сносимых серий предназначались для временного решения жилищной проблемы и были
рассчитаны на 25 лет, но часть из них до сих пор используется по назначению.
"Хрущёвки" несносимых серий имели расчётный ресурс 50 лет, однако
дальнейшие исследования показали, что срок их эксплуатации может быть продлён и
до 150 лет при условии своевременного проведения текущих и капитальных
ремонтов. В Москве и Санкт-Петербурге действуют программы сноса и реконструкции
кварталов "хрущёвок" и замены их современным жильём. В Минске
некоторые серии "хрущевок" подлежат капитальному ремонту или
модернизации. Таким домам утепляют наружные стены, выполняют профилактику
стыков стеновых панелей, ремонтируют фундамент, гидроизоляцию, кровлю и др.
"Хрущевки" наиболее распространенных
серий имеют по 5 этажей, от 3х до 5ти подъездов. Железобетонные перекрытия с
круглыми пустотами 22 см. По три или четыре 1-3х комнатные квартиры на этаже в
секции. Потолки 2,5 м.-2,55 м, пол - доски, паркет, линолеум, иногда
встречаются газовые колонки, обычно газовые плиты. Обычно отсутствуют лифты и
мусоропроводы, отсутствует технический этаж. Санузлы смежные даже в 2-х
комнатных квартирах. Маленькие площади квартир. Фасады максимально упрощенные,
функциональный стиль. Зачастую отсутствует декор и окраска. Панельные дома -
серый бетон, иногда облицовка панелей мелким щебнем, плиткой. Первые
"хрущёвки" делались с черепичными или шиферными скатными вальмовыми
кровлями. Однако, очень скоро, в связи с постановлением о борьбе с
архитектурными излишествами, стали строить с плоскими совмещенными, более
дешёвыми в исполнении, битумными крышами с низким чердачным пространством или
вообще без него. Узкие щели воздушного пространства засыпались каким-нибудь
сыпучим изоляционным материалом и имели вентиляционные отверстия наружу. Эти
отверстия становились местом гнездования диких голубей, воробьёв и т.п.
Довольно часто под окном кухни кирпичной
"хрущёвки", которая имеет минимальные размеры, имеется специфический
встроенный шкаф типа чулана для хранения продуктов. Это отверстие получило
название "хрущевский холодильник". Толщина наружной стены в шкафу -
обычно полкирпича, в некоторых вариантах построек в этой стене есть наружное
постоянно открытое отверстие, оно необходимо для обеспечения нормального
функционирования газовой плиты, т.е. является приточной вентиляцией. В холодный
период года шкаф заменял холодильник. Однако подобный холодильник встречается и
в более ранней архитектуре "сталинок". Название "хрущёвский
холодильник" часто переносят на сами "хрущёвки" (особенно
панельные), именуя их так из-за низкой температуры в квартирах зимой,
обусловленной плохой теплоизоляцией.
Эти дома строились очень быстро и в огромных
количествах. Задача была предельно проста - необходимо было обеспечить как
можно быстрее, как можно большее количество отдельных семей жильем. И эта
непростая цель была достигнута за счет снижения качества жилья.
Первые каркасно-панельные "хрущевские дома"
были построены в 1948 году в Москве по проектам Госстройпроекта и
Мосгорпроекта, при участии Академии архитектуры СССР. Автором первых проектов
был В.П. Лагутенко. Первые 4х- этажки строились со стальным каркасом, но из-за
большого расхода металла, вскоре перешли на сборный железобетон. С 1950 года,
кроме каркасно-панельных, началось массовое сооружение бескаркасных панельных
домов. Опыт был признан удачным, и Постановлением Совета Министров СССР от 9
мая 1950 года №1911 "О снижении стоимости строительства" было
инициировано проектирование первых высокомеханизированных заводов ЖБИ.
Масштабный переход на новые, прогрессивные решения в области строительства
начался с Постановления ЦК КПСС и Совета Министров СССР от 19 августа 1954 года
"О развитии производства сборных железобетонных конструкций и деталей для
строительства", которым предусматривалась постройка 402 заводов сборных
железобетонных конструкций и организация изготовления деталей на 200 площадках
полигонного типа.
июля 1957 года ЦК КПСС и Совет Министров СССР
приняли постановление "О развитии жилищного строительства в СССР",
положивший начало новому жилищному строительству.
К тому же, в 70х годах, согласно ВСН 32-77
(Госгражданстрой) "Инструкция по проектированию конструкций панельных
жилых зданий", серии зданий были разделены по конструктивно-планировочной
структуре:
с поперечными и продольными несущими стенами, на
которые перекрытия опираются по контуру или трем сторонам; наружные продольные
стены несущие или ненесущие (система I);
с поперечными несущими стенами, продольными
диафрагмами жесткости (продольные стены лестничных клеток, отдельные участки
наружных или внутренних стен) и перекрытиями, опертыми преимущественно по двум
сторонам на поперечные стены (система II);
с продольными несущими стенами, поперечными
диафрагмами жесткости (поперечные стены лестничных клеток, торцовые стены и
др.) и перекрытиями, опертыми преимущественно по двум сторонам на продольные
стены (система III).
Отсюда и маркировки серий.
К особенностям "хрущевского" этапа
типового жилищного строительства следует отнести, в первую очередь, разработку
большого количества типовых серий. Однако, в первую очередь в силу
экономических причин, рост этажности и смена серийных поколений носили
вынужденный характер - в первую очередь был актуален вопрос стоимости жилого
метра. Особенно в центрах больших городов. Поэтому вспомогательные помещения
квартир старались сводить к минимуму. Технические изменения касались зданий в
целом, но планировки квартир не менялись. И такое положение растянулось на
долгие годы - разработанные планировочные решения переходили из серии в серию
практически без изменений.
Однокомнатные квартиры имеют площади
28-32/15-19/6 кв.м.
Двухкомнатные квартиры имеют площади
40-46/26-30/6 кв.м.
Трехкомнатные квартиры имеют площади
54-59/39-45/6 кв.м.
Рисунок 6.1 - Варианты планировок в домах 60х
годов
Серия 1ЛГ-502. Экспериментальный крупнопанельный
жилой дом новой типовой серии 1ЛГ-502. Год создания проекта: 1963.
Архитекторы: Д.С. Гольдгор, А.В. Шприц, А.В.
Аланнэ, К.И. Емельянов (авторский коллектив мастерской №5 Ленпроекта).
Инженеры: И.Д. Зейман, И.П. Белоголова, З.И. Журавлева. Санкт-Петербург
(Ленинград), Россия.
В 127-м квартале Невского района в Ленинграде,
был сдан в эксплуатацию первый экспериментальный пятиэтажный жилой дом типовой
серии 1ЛГ-502. Авторы проекта ставили задачу - экспериментально проверить в
натуре новые архитектурно-планировочные и конструктивные решения, возможности
использования новых строительных и отделочных материалов, а также методы
монтажа дома и технологию его производства на Обуховском ДСК.
Экспериментальный дом состоял из трех секций:
рядовой 2-2-2 и торцовых 2-2-3 и 1-2-4. В рядовой секции две двухкомнатные
квартиры имели сквозное проветривание. Для трехкомнатной и четырехкомнатной
квартир отведены соответственно площади таких же размеров, что и в
двухкомнатной и трехкомнатной квартирах типовых крупнопанельных домов.
Благодаря увеличению в квартирах числа комнат создавались большие удобства для
заселения, появилась возможность выделить на той же площади общую комнату,
освобожденную от спальных мест.
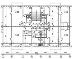
Рисунок 6.1 - Архитектурно дизайнерские
особенности серии 1ЛГ-502
Рисунок 6.2 - Дом серии 1ЛГ-502.
Рисунок 6.3 - Планировка квартир в домах серии
1ЛГ-502.
Серия II-68. Проблемой всех предыдущих блочных
серий, была невозможность строительства зданий этажностью выше 14 этажей. Тоже
самое верно для кирпичных домов с несущими и самонесущими стенами. И если в
современном монолитно-кирпичном здании применяется поэтажное опирание, то в
крупноблочном строительстве применили наружные навесные панели. Именно такое
решение и было применено в серии II-68.
Серия одноподъездных 16-этажных домов. Годы
строительства - 1969-1999г. Особенностью данной серии являются утолщенные
стены, состоящие из двух панелей, а также улучшенная шумо и теплоизоляция за
счет керамзитного устройства покрытия полов. Реже встречаются здания этой серии
высотой 14 этажей. Дома этой серии практически без изменений строились в
течение 30 лет. Этажность: 16 этажей. Высота потолков: 2,48 м.
Тип дома - панельно-блочный. Этажность - 5-16.
Квартиры - 1, 2, 3 комнатные. Производитель - Моспромстройматериалы (МПСМ).
Города распространения - Москва, Подмосковье, Петрозаводск, Таганрог,
Ростов-на-Дону, Тольятти. Лифты пассажирский и грузопассажирский. Мусоропровод
есть. Вентиляция на кухне и в санкабинах. Перегородки гипсобетонные 80 мм.
Перекрытия - многопустотные плиты толщиной 220мм пролетом 6 м.
Начиная с середины 1970-х гг внешний вид домов
изменился, поменялась отделка панелей. Также переход от лифтовых холлов на
лестницу был вынесен на балкон. Планировка квартир дома серии II-68 при этом
практически не изменилась. Помимо панельно-блочной, у II-68-й серии есть и
чисто блочные вариации разработанные для сравнительно малоэтажной застройки -
до 12 этажей их три. В отличие от базовой серии в них увеличена высота этажа.
Рисунок 6.4 - Дома серии II-68
Рисунок 6.5 - Вариант планировочного решения
серии II-68-3
Серия 1-335. Дома этой серии возводились с 1958
года по 1966 год, после чего перешли к строительству модернизированных серий
1-335А, 1-335АК, 1-335К и 1-335Д, которые производились по 1976 год
включительно.
Наиболее часто встречающаяся по всему бывшему
СССР серия панельных 5-этажных жилых домов. Первый дом этой серии был построен
в г. Череповце. Наибольшее количество домов этой серии можно встретить в
Санкт-Петербурге-Ленинграде. Серия была признана самой неудачной из всех серий
жилых домов, разработанных при Хрущёве. При этом, как это ни странно, они не
попали в список домов, сносимых в первую очередь. Родственница К-7 по
конструктивному решению. Имеет схожие проблемы.
Внешнее отличие серии 1-335 от других серий в
Москве - широкие окна (двухстворчатые окна выглядят квадратными), железная
4-х-скатная крыша и удлинённые окна почти во всю высоту панели на лестничных
клетках. Торцевые стены состоят из 4-х панелей с окнами на крайних. Обычно в
одном из торцов дома имеется внешняя пожарная лестница. В другой модификации,
может быть плоская крыша вообще без чердака. На площадке по 4 квартиры.
Квартиры 1-2-3-комнатные, высота потолков - 2,55 м. Центральная комната
проходная. Санузел совмещённый. Водо-теплоснабжение централизованное.
Жилые дома полукаркасного типа серии I-335
практически повсеместно находятся нынче в предаварийном состоянии с почти
исчерпанной надежностью конструктивной схемы, поэтому, прежде всего, нуждаются
в усилении и повышении жесткости системы несущих конструкций всего здания в
целом.
Рисунок 6.6 - Дом серии 1-335
Серия 1-434. Дома серии 1-434 - это белорусская
модификация серии 1-447. Годы строительства - 1958-1960 гг. Тип дома - блочный.
Этажность - 4-5. Высота жилых помещений - 2.48 м. 4 квартиры на площадке.
Квартиры - 1,2,3 комнатные. площадь кухни: 6.2 кв.м. Санитарный узел
совмещенный. Производитель - местные стройматериалы. Города распространения -
БССР (Минск, Могилев).
Рисунок 6.7 - Дом серии 1-434 в г. Минске
Рисунок 6.8 - Планировка секции в серии 1-434
Серия 1-447. Серия домов 1-447 имеет очень
большое число модификаций, которые можно встретить во многих городах бывшего
СССР. Объединяющей особенностью столь разных проектов является тип дома - он
кирпичный, кроме того этажность большинства проектов - 5 этажей.
Годы строительства - 1958-1970-е гг. Тип дома -
кирпичный. Этажность - 3, 4, 5, 9, 12. Высота жилых помещений - 2,48 м. Несущие
стены продольные толщиной 380мм. Наружные стены кирпич силикатный и/или
глиняный обыкновенный - 510мм. Перекрытия панели круглопустотные,
преднапряженные 220 мм. Дома как правило снабжены всеми видами коммуникаций, но
довольно часто встречаются варианты с газовыми колонками. Крыша скатная,
водоотвод наружный. Квартиры - 1, 2, 3, 4 комнатные. Производитель - местные
стройматериалы. Недостатком этой серии можно считать часто встречаемые
малоуклонные кровли с плохим водоотводом, слабые водоизоляционные свойства
материалов конструкций, в частности - гидроизоляция, силикатный кирпич и т.п.
Площади квартир:
-комнатные квартиры: общая: 28-33 кв. м., жилая:
15-20 кв. м., кухня: 5-5.5 кв. м.
-комнатные квартиры: общая: 40-43.7 кв. м.,
жилая: 28-32.4 кв. м., кухня: 4.7-5.6 кв. м.
-комнатные квартиры: общая: кв. м., жилая: кв.
м., кухня: кв. м.
Разработчик: Гипрогор, 1958 г.
Архитекторы: Дюбек Л., Белоконь А., Звездина Т.,
Ефимова В.
Инженеры: Розенберг Я., Дидина М., Шапиро Б.,
Сухова А.
Города распространения - СССР (общесоюзная
серия), включая небольшое число домов в Москве и Петербурге.
Рисунок 6.9 - Дом серии 1-447
Рисунок 6.10 - Планировка квартир в домах серии
1-447
Серия 1-447С-26. Улучшенная модификация серии
1-447. Годы строительства - 1963-1970-е гг. Тип дома - кирпичный. 9 этажей.
Высота жилых помещений - 2,48 м. Несущие стены продольные и поперечные толщиной
380 мм. Наружные стены кирпич силикатный и/или глиняный обыкновенный 510 (640)
мм.
Внешняя верста - облицовочный кирпич (кремлевка)
или красный кирпич. Перекрытия панели круглопустотные, преднапряженные 220 мм.
Как правило снабжены всеми видами коммуникаций.
Крыша малоуклонная водоотвод внутренний.
В домах есть лифт и мусоропровод. Квартиры -
1,2,3 комнатные.
Производитель - местные стройматериалы
Разработчик: Гипрогор, 1963 г.
Рисунок 6.11 - Дома серии 1-447С-26
Рисунок 6.12 - Планировка квартир в секции для
серии 1-447С-26
Серии 1-447С-47 и С48. Тип дома - кирпичный.
Годы строительства - 1960е-1980е гг. Этажность - 9. Высота помещений 2,64 м.
Несущие стены продольные толщиной 380мм. Наружные стены кирпич силикатный и/или
глиняный обыкновенный.510 (640)мм. Наружная верста - как правило, отделочный кирпич.
Перекрытия панели круглопустотные, преднапряженные 220 мм. Как правило,
снабжены всеми видами коммуникаций. Крыша плоская, водоотвод внутренний. Лифт,
мусоропровод. Квартиры - 1,2,3,4 комнатные.
Отличия модификаций - выпирающая у 47й и
утопленная у 48й торцевая лоджия. Производитель - местные стройматериалы.
Города распространения - СССР (общесоюзная серия), Подмосковье,
Санкт-Петербург.
Рисунок 6.13 - Дома серии 1-447С-26
Рисунок 6.14 - Дом серии 1-447С-27
Серия 1-464. Панельный 5-этажный многосекционный
жилой дом. Дома строились в Белоруссии, Украине, Литвии, Латве. Количество
этажей - 5, реже - 3, 4 . Первый этаж жилой Высота потолков - 2,50 м. Лифта
нет. Балконы есть во всех квартирах. Количество квартир на этаже - 4. Годы
строительства - 1958-1963.
Общее количество построенных домов - более 3000.
Больше всего домов серии 1-464 было построено в городах: Иваново, Казань,
Челябинск, Новосибирск и мн. др. (в т. ч. в нескольких городах Украины и
Белоруссии).
В Москве строились дома московской версии серии
1-464 (назв. 1605-АМ/5) с квартирами увеличенных площадей. В городах
Подмосковья дома серии 1-464 построены в городах Ногинск, Раменское, Люберцы,
Подольск и мн. др.
В 1961 г. был разработан модифицированный
вариант серии 1-464 - 1-464А, получивший еще большее распространение.
Санузлы совмещенные во всех квартирах. Лестницы
без общего противопожарного балкона. Тип кухонной плиты: газовая. Вентиляция:
естественная вытяжная, блоки в сантехкабинах (санузлах). Наружные стены: 1- и
3-слойные железобетонные толщиной от 21 до 35 см в зависимости от
климатического района строительства. Перекрытия: сплошные железобетонные плиты
толщиной 10 см. Перегородки - железобетонные, сплошного сечения, толщиной 12
см. Несущие стены все поперечные (в т.ч. наружные).
Тип секций (подъездов) рядные (рядовые, набор
квартир на этаже: 3-2-1-3, 2-2-3-2), торцевые (набор квартир на этаже:
1-2-2-3). Все квартиры, кроме угловых, выходят на одну сторону. Количество
шагов в секции (подъезде) 7 (в рядных секциях), 6 (в торцевых). Ширина шага
(расстояние между двумя соседними несущими стенами, ширина пролета перекрытия):
260 см, 320 см. Ширина корпуса: 11.3 м. Облицовки, штукатурки наружных стен
нет. Кровля плоская, совмещенная невентилируемая (чердак отсутствует).
-этажные панельные дома типовой серии 1-464
внешне узнаваемы по окнам на межэтажной площадке в подъездах, идентичным
2-створчатым окнам в квартирах. Достоинством можно считать наличие балконов,
кладовок. К недостаткам оносятся: низкая теплоизоляция внешних стен,
совмещенные санузлы даже в 3-комнатных квартирах, невозможность капитальной
перепланировки.
Производители - около 200 домостроительных
комбинатов (ДСК) по всему СССР.
Проектировщик - Проектный институт
"Гипростройиндустрия".
Себестоимость строительства 1 кв. м жилой
площади для каркасно-панельных домов серии 1-464 в ценах 1961 г. была второй по
дешевизне за всю историю индустриального домостроения в СССР.
Площади 1-комнатных квартир: общая:
-31 кв. м., жилая: 18 кв. м., кухня: от 5 кв. м.
Площади 2-комнатных квартир: общая:
-46 кв. м., жилая: 17-35 кв. м., кухня: 5.6-6.3
кв. м.
Площади 3-комнатных квартир: общая:
-58 кв. м., жилая: 39-45 кв. м., кухня: 5.6-6.3
кв. м.
Рисунок 6.15 - Дом серии 1-464
Рисунок 6.16 - Планировка секции в серии 1-464
6. Дома перестройки 1970-х годов
В 1970 году был принят Единый каталог
строительных деталей, на основе которого в дальнейшем разрабатывались типовые
проекты. В него входили жилые дома таких серий как: П3, П22, П30, П31, П42,
П43, П44, П46 ("П" - "панельный").
Как и "хрущевки",
"брежневки" представляют собой выполненные в стиле конструктивизма
постройки ("коробки"). Пятиэтажные брежневки лишены лифта.
Отличаются, как правило, следующим: наличием лифта и мусоропровода;
большей площадью и этажностью; разделённым
санузлом; относительным разнообразием форм (например, одновременно высокие и
широкие здания, закруглённые); наличием шкафа-чулана на кухне под окном,
перешедшего к брежневке от хрущевок. В народе именуется "хрущёвским
холодильником". Также при Брежневе возводились дома гостиничного типа.
Брежневки существуют в нескольких вариантах планировки, этажности и площади
квартир. Существуют:
однокомнатные (22-31 кв.м)
двухкомнатные (42-45 кв.м)
трёхкомнатные (48-56 кв.м)
четырёхкомнатные (58-70 кв.м)
Серия М-111-90 - серия крупнопанельных
9,12,16-этажных домов для Беларуси (1976-1994 г.г.), производящаяся на ДСК-1,
ДСК-2 города Минска с 1976 года. Данная серия - одна из самых массовых в
Минске. Дома этой серии есть также в Жодино, Борисове и других городах
Беларуси. Это серия крупнопанельных многосекционных жилых домов индустриального
домостроения. Отличительная особенность большинства проектов: балконы и лоджии
расположены под небольшим углом относительно плоскости фасада. Разработка
проектов жилых домов серии 90 была начата Центральным научно-исследовательским
и проектным институтом жилых и общественных зданий (ЦНИИЭП жилища) в 1960-х гг.
Промышленное производство домов серии 90 было освоено в 1971 г.
В составе серии запроектировано более 180
типовых проектов домов и блок-секций. Среди них есть и блок-секции с квартирами
для малосемейных (типовой проект 90-041), и общежития для рабочих и служащих
(типовые проекты 90-042 и 90-043) и даже дома усадебного типа на одну
(например, типовой проект 181-90-78/1.2) или две квартиры.
В номенклатуру типовых проектов включены
блок-секции различной конфигурации: рядовые, торцевые, поворотные и угловые с
внутренними или внешними углами поворота на 135° и 90°. Положение блок-секций в
застройке многовариантно и может обеспечиваться наличием различных элементов
блокировки секций (рядовых, торцевых, с глухими торцевыми окончаниями, с
деформационными швами и др.), а также вариантностью планировочного решения
первых этажей (с колясочной, помещением электрощитовой, сквозным проездом или
проходом и т.п.
Кроме традиционных типов отделки наружных
стеновых панелей и экранов ограждения летних помещений, были предложены
различные композиционные решения фасадных плоскостей, создающие композиции
целых улиц или отдельных дворов, отвечающие конкретным градостроительным
ситуациям.
Планировочные решения квартир в проектах серии
обеспечиваются продольными и поперечными конструкциями зданий с
"малым" шагом поперечных несущих стен в 300 и 360 см и пролётами в
570 и 660 см. Наружные стены - железобетонные панели толщиной 300, 350, 400 мм
(в зависимости от региона строительства). Внутренние стены - железобетонные
панели толщиной 120, 160 мм; электропанели - 180 мм. Перегородки -
железобетонные панели толщиной 60 мм. Перекрытия - сплошные железобетонные
плиты, с опиранием по контуру, толщиной 120 и 160 мм.
Высота помещений в "чистоте" - 264 см.
В блок-секциях имеется один пассажирский лифт и мусоропровод с приёмными
клапанами на межэтажных лестничных площадках через этаж.
Рисунок 7.1 - Незначительно модернизированный
дом серии 111-90
Рисунок 7.2 - Планировка квартир серии 111-90
С начала 1980-х годов эти дома стали возводить
практически во всех новых микрорайонах Минска: например, в Юго-Западе,
Малиновке, Уручье. Дома данной серии выпускаются и по сей день. С 1983
появилась 16-ти этажная модификация, а с 1997 - 19-ти. В 1998 году появилась
модификация 12-ти этажной версии, именуемая БС40-БС41.
Серия 111-108 - региональная серия
многосекционных крупнопанельных жилых домов, разработанная Ленинградским
зональным научно-исследовательским институтом экспериментального проектирования
(ныне ОАО "СПбЗНИиПИ") в 1970-е годы, и применяемая по настоящее
время в строительстве 5 и 9-этажных домов.
Дома серии 111-108 в настоящее время формируют
облик Витебска и городов Витебской области в Белоруссии, где они возводятся
заводом крупнопанельного домостроения РУП "Витебский ДСК" с 1975
года.[1][2] Помимо Витебска, дома серии 111-108 встречаются также в Великом
Новгороде, Луге, Тосно, Череповце, Смоленске, Вологде и в городах Башкирии -
Уфе, Салавате, Ишимбае и Белорецке.
Серия 111-108 для 5 и 9-этажных домов и
блок-секций разработана в двух конструктивных вариантах: основном - с
продольными несущими стенами (пролетами 6,3 и 5,1 м) и редко расположенными
поперечными несущими стенами - диафрагмами жесткости (шаги 6,3 и 3,0 м), и
дополнительном - с поперечными несущими стенами (шаги 6,6 и 3,6 м). В обоих
вариантах перекрытия состоят из сплошных плоских предварительно напряженных
плит или из многопустотного настила.
Рисунок 7.3 - 9-этажный панельный дом серии
111-108, Уфа, Башкирия
Серия М-335 распространена только в республике
Беларусь и является одной из модификаций распространенной по всей России серии
пятиэтажек - 1-335.
Тип дома - панельный
Этажность - 9
Квартиры - 1,2,3,4 комнатные
Производитель - ДСК-2 г. Минска
Годы строительства - 1966- 1970е гг.
Города распространения - Минск
Рисунок 7.4 - Дом серии М-335 в г. Минске
Рисунок 7.5 - Планировка секции в серии М-335
М-464 - это серия крупнопанельных 9-этажных
домов, строявшихся с 1976 по 1983 годы. Преимущественно, дома строились в
Минске и Минской области.
Серия была спроектированна в начале 1970-х годов
и производилась на ДСК-1 города Минска с 1976 года, как и серия М111-90. Данная
серия - самая массовая типовая серия столицы. Дома этой серии, помимо Минска,
можно встретить во всей Минской области.
Дома серии М-464 формируют облик таких жилых
районов, как Серебрянка, Восток, Зеленый Луг, Юго-Запад. Более поздняя
модификация М-464БК, формирует образ Уручья, Малиновки, Шабанов, Кунцевщины. С
2002 года новые микрорайоны столицы начали застраиваться домами серии М-464-У -
коренной модернизацией М-464БК.
Отличительной особенностью всех домов 464 серии
(кроме М-464-М) является интеграция канала мусоропровода в панели лестничного
марша, из-за чего они имеют характерную форму. В серии М-464БК номер каждого
подъезда выложен керамической плиткой на экране, прикрывающем вход в приемную
камеру мусоропровода. В отличие от М-464 и М-464БК, этажность которых
составляет 9 этажей, М-464-М и М-464-У имеют этажность в 10 этажей.
Рисунок 7.6 - Дом серии М-464 в г. Минске
. Дома перестройки 1980-х годов
Серия 84. В состав серии включены проекты
крупнопанельных 2-5 и 9-этажных жилых домов и блок-секций с продольными и
поперечными несущими стенами (шаги 240, 360, 480 и 600 см, пролеты 480 и 600
см), а также общежития для рабочих и служащих, дома усадебного типа на одну или
две квартиры. Разработаны индивидуальные проекты 12-этажных жилых домов. Серия
разработана в Мастерской №7 ЦНИИЭП жилища на основе методических принципов
серии 60 в 1971 г.
В настоящее время строится в модернизированных
вариантах с конструктивными улучшениями и переработанными планировочными
решениями блок-секций. Также институтом Оргстройпроект на основе серии 84 была
разработана серия 12-, 14- и 16-этажных домов МЭС-84 для строительства
предприятиями Мосэнергостроя.
Серия 85. Серия кирпичных жилых домов и
блок-секций, разработанная ЦНИИЭП жилища. Тип дома - кирпичный. Этажность - 6,
9, 12. Высота жилых помещений - 248 см. Квартиры - 1, 2, 3, 4 комнатные (в
разных модификациях может не быть одно- или четырехкомнатных квартир).
Производитель - местные стройматериалы. Годы строительства - 1970е-2000е гг.
Города распространения - СССР (общесоюзная серия), встречаются в Москве и
Подмосковье. Конструктивная схема - с поперечными кирпичными несущими стенами с
шагами 6,3 и 3,0 метра, шаги поперечных стен - 4,8, 5,7, 6,0 и 6,9 метра.
Серия 86 (114-86). Серия пяти- и девятиэтажных
жилых домов и блок-секций разработана ЦНИИЭП жилища. Конструктивная схема - с
продольными кирпичными несущими стенами с пролетами 6,3 и 5,1 метра и шагами
поперечных стен 6,3 и 7,0 метра. Тип дома - кирпичный. Этажность - 2-5 или 9.
Высота жилых помещений - 250 см. Квартиры - 1, 2, 3, 4 комнатные. Производитель
- местные стройматериалы. Годы строительства - 1980е гг. - настоящее время.
Города распространения - СССР (общесоюзная серия). Разработчик: ЦНИИЭП Жилища
Серия Э-93. Города распространения - СССР
(общесоюзная серия). В Москве не выявлены, дома можно встретить в подмосковных
городах: Подольск, Дубна, Железнодорожный, Электросталь, Балашиха, Реутов,
Лыткарино. Разработчик: ВПТИтрансстрой. Тип дома - кирпичный. Этажность - 9-12,
14, 5. Высота жилых помещений - 260 см. Квартиры - 1, 2, 3, 4 комнатные.
Производитель - местные стройматериалы. Годы строительства - 1970е-2000е гг.
Рисунок 8.1 -Типовой дом серии Э-93 Рисунок 8.2
- Планировки квартир для серии Э-93
. Дома с квартирами гостиничного типа -
"гостинки"
"Гости́нка"
(от "комната гостиничного типа") - тип жилого помещения,
представляющего собой либо малометражную однокомнатную квартиру, либо комнату с
кухонной нишей и санузлом. Также "гостинкой" называют здание,
состоящее из таких квартир или комнат. Это многоэтажные (от 3 до 16 этажей)
панельные или кирпичные дома. На этаже сосредоточено значительное число квартир
- от 10 до 40, в большинстве своем, исключительно 1- комнатных.
Первые гостинки начали состоить из одной секции,
впоследствии ввели многосекционные (до восьми секций), обычно 5,9-этажные.
Подобные дома строились для работников промышленных предприятий, крупных
производств как временное жилье в цепочке "общежитие - гостинка -
полнометражная квартира". Массовое строительство домов с квартирами и
комнатами гостиничного типа началось в СССР в 1960-70-е гг.
Существует два типа гостинок - квартирные и
комнатные. Квартира гостиничного типа включает в себя жилую комнату (12-18 кв.
м), небольшую кухню (4-6 кв. м), прихожую и санузел. Такие дома можно поделить
на два типа, зависимо от площади жилой комнаты. Нередко в таких квартирах
встречается и балкон (лоджия) на всю квартиру. Второй тип гостинок - дома с
комнатами гостиничного типа. Эти дома состоят не из квартир, а из комнат с
кухонной нишей в прихожей и совмещенным санузлом с сидячей ванной.
С середины 50гг строились такие дома от 5 до 9
этажей. По началу, стены выполнялись из кирпича, затем панельные. Перекрытия -
железобетонные. На этаже располагалось от 8 до 12 квартир. Потолки 2,5 м.-2,6
м. В домах до 5 этажей лифта нет. 9-ти- этажные дома оснащались мусоропроводом.
Технический этаж маленький или вообще отсутствует. Крыша - плоская,
совмещенная. Дома с такими планировками заполняют все массивы города.
Длинные коридоры на этажах. Планировки
различные. Чаще санузел - совмещен, ванная сидячая, душ. Площади квартир
различны в основном невелики. Так что аренда квартир совсем недорогая,
соответственно и продажа. В свое время это жилье строилось рекордными темпами в
огромных количествах и преследовало только одну основную цель - обеспечить как
можно быстрее, как можно большее количество людей крышей над головой, что отрицательно
сказалось на качестве жилья.
Однокомнатные квартиры имеют площади
21-38/10,5-19/3,5-8 кв.м.
Рисунок 7.1 - "Гостинка" во
Владивостоке
. Современное типовое строительство
В условиях современной жизни, сложно представить
всю картину изменений, вызванных развалом СССР и развитием регионального
строительства. Сегодня мы можем говорить не столько о государственной
архитектурной позиции, и даже не о каком-то целостном урегулировании типовой
архитектуры в отдельно взятом городе, сколько о работе конкретных частных
проектных и строительных организаций. Это создает бесконечное число модификаций
типовых секций предыдущих периодов, провоцирует возникновение новых технологий,
планировок, экстерьеров и т.д. и т.п.
В настоящее время люди сами платят за свое
жилье, и они хотят, что бы их жилище максимально соответствовало всем
требованиям, предъявляемым к современной квартире: жилье должно быть
современным - с достаточной площадью кухни, встроенными шкафами, лоджиями,
местом для стиральной машины и др.; жилье должно быть теплым, с возможностью
регулирования отопительной системы (региляторы, счетчики, индивидуальные
отопительные приборы и т.п.), в конце концов - жилье должно быть красивым и
оригинальным - не таким, как соседний дом. Люди устали жить в одинаковых
"многоэтажках". И надо сказать, что современное строительство,
понемногу, откликается на эти требования, в условиях рыночных отношений. На
сегодня у нас в стране разрабатываются архитектурно-строительные технологии
способные удовлетворить даже весьма капризного покупателя. В рамках этой главы,
давайте познакомимся с некоторыми из них.
Каркас унифицированный безригельный КУБ-2,5.
Впервые безбалочные перекрытия были применены в строительстве многоэтажных
зданий в начале прошлого века. В 1906 году в США по предложению инжененра
Торнера, а в 1908 году в Москве под руководством А.Ф. Лолейта было
запроектировано и построено четырехэтажное здание склада молочных продуктов,
затем в 1910 году было возведено здание с безбалочными перекрытиями в
Швейцарии. За время своей вековой истории безбалочные перекрытия претерпели
существенные изменения в конструкциях, методах расчетов и областях применения.
В 30-х годах монолитные безбалочные перекрытия с капителями находят широкое
применение в России на предприятиях пищевой промышленности, промышленных
зданиях и московских станциях метро, подземных резервуарах.
В 60-х годах в ЦНИИЭП жилища под руководством
А.Э. Дорфмана и Л.Н. Левонтина, для высотной гостиницы во Владивостоке, были
разработаны конструкции безбалочного бескапительного перекрытия. Эти перекрытия
с жесткими узлами примыкания плит к колоннам представляли собой рамную систему
в двух направлениях: с колоннами-стойками, защемленными в фундаментах и
ригелями - нарезными плитами. Наиболее сложный узел - примыкание плиты к
колонне - решен приваркой закладной коробчатой детали плиты к продольной
рабочей арматуре колонны. Такой железобетонный каркас получил название
"каркас унифицированный, безригельный" (КУБ-1). В дальнейшем были разработаны
модифицированные варианты систем серии "КУБ" для различных нагрузок и
условий изготовления. Следующим развитием систем КУБ явились модификация
КУБ-2,5. Были усовершенствованы основные конструктивные решения системы - стыки
панелей перекрытий, стыки неразрезанных многоярусных колонн, узлы соединения
панелей перекрытия с колоннами, образующие рамные узлы, решение связей,
шпренгельные конструкции 12-метровых пролетов. В системе КУБ-2,5 предусмотрены
панели перекрытий двух типов.
При строительстве 15 этажного жилого дома в
Новосибирске было проведено сравнение каркаса КУБ-2,5 и стального. Стоимость
перекрытия безригельного каркаса на 28% ниже стального, расход стали ниже на
44%.
Система КУБ отличается универсальностью,
простотой изготовления и монтажа, минимальным количеством типоразмеров и
экономией средств на 20-25%, свободной планировкой помещений, широкими
возможностями разнообразного решения фасадов. Она находит все более широкое
применение в практике строительства. В последние годы здания с безригельным каркасом
построены и строятся во многих городах Росcии и СНГ.
КУБ-2.5 - это универсальная система
сборно-монолитного безригельного каркаса, состоящая из плоских панелей
перекрытий и вертикальных колонн. Она используется при строительстве
многоуровневых паркингов, жилой и коммерческой недвижимости до 25 этажей в
высоту. На сегодня, на базе системы КУБ-2.5 возведено более 2,5 млн. квадратных
метров по России и СНГ. В системе присутствует 4 основные формы - колонна и
плиты надколонная, межколонная и средняя. Эта система привлекательна простотой
изготовления и монтажа, относительно других технологий строительства. Монтаж
конструкции осуществляется следующим образом: монтаж колонн и замоноличивание в
стаканах фундаментов, установка и приваривание к арматуре колонн надколонных
панелей, монтаж межколонных и средних панелей. КУБ-2.5 может быть использована
при создании лестничных маршей, вентблоков, лифтовых шахт. Также, при
использовании данной системы возможно увеличивать полезный объем помещения.
Система позволяет минимизировать затраты и сократить себестоимость, благодаря
чему стоимость недвижимости становится более доступной.
Технология строительства: монолитно-каркасная.
Годы строительства: с 1990 г. по настоящее время. Количество этажей - до 25-ти.
Высота потолков: 2,8-4,2 м. Балконы/лоджии остеклены однокамерными
стеклопакетами в деревянных рамах Лестницы: сборные железобетонные, либо
сборные ступени по косоурам в лестничных шахтах или с креплением к элементам
каркаса. Есть лифты. Стены и облицовка: в качестве наружных стен могут
использоваться панели, кирпич или блоки, каркас состоит из колонн (40/40 см.) и
плоских плит перекрытий (3/3 м.), толщиной 16 см., пространственная жесткость
обеспечена монолитной связью элементов (перекрытий и колонн) и, при необходимости,
включением в систему связей и диафрагм. Тип кровли: плоская с теплым чердаком.
Производитель - КУБ-инвест. Проектировщики - ЦНИИЭП жилища. Достоинства:
надежность каркаса, разнообразие архитектурных решений, высокие темпы
строительства, свободная планировка, выбор различных типов фасадов.
Рисунок 10.1 - Технология возведения системы
КУБ-2,5
Рисунок 10.2 - Планировки квартир дома типовой
серии КУБ-2,5
Серия Б 1.020-7,8. "Универсальная каркасная
безригельная система с плоскими сплошными сборными плитами перекрытия для жилых
и общественных зданий".
На сегодняшний день наиболее перспективной
является сборная каркасная унифицированная безригельная система со сплошными
плитами перекрытия (серия Б1.020.1-8), которая на протяжении ряда лет
совершенствовалась и внедрялась в производство. Она подкупает своей простотой,
поскольку имеет, по сути, только 2 несущих элемента - колонны и плиты; несущий
остов здания можно собрать в самые кратчайшие сроки.
Система создана конструкторами института
"Белгоспроект" (А.М. Телеш, С.Л. Березовский, А.Г. Волосач и Н.П.
Герасимчик, с участием д.т.н., профессора Т.М. Пецольда, БНТУ). Предназначена
она для проектирования и строительства рациональных энергосберегающих жилых
домов нового поколения, различных общественных зданий как в Республике
Беларусь, так и за ее пределами, в том числе в сейсмических районах.
"Универсальный безригельный каркас"
был разработан специалистами АП "Институт "Белгоспроект" на
основе системы "КУБ", которая на протяжении ряда лет
совершенствовалась и внедрялась. Специалисты института, обобщив опыт такого
строительства, смогли усовершенствовать эту систему, разработав принципиально
новый стык колонны с плитой перекрытия, армированию изделий, ограждающим
конструкциям и др.
В 1999 г. в Минске на опытно-экспериментальной
базе БГПА (сейчас БНТУ) под руководством доктора технических наук, профессора,
заведующего кафедрой "Бетонные и железобетонные конструкции" Т.М.
Пецольда были проведены первые испытания 2-х фрагментов стыка колонны с плитой,
выполненных в натуральную величину. Образцы для испытаний - надколонные плиты
(НП) размером 3x3 м толщиной 160 мм в количестве 2 шт. и колонны сечением
400x400 мм в количестве 4 шт. - были изготовлены на Гомельском ДСК в деревянной
опалубке. Испытания прошли успешно и показали, что прочность плит перекрытия
при изгибе и продавливании не ниже расчетной, а в целом показали надежность
узла. Плита выдержала нагрузку на продавливание - 67 т. (Проектная нагрузка на
колонну от перекрытия при шаге 6x6 м обычно не превышает 44 т.). Специалисты
БНТУ провели также натурное испытание фрагмента каркаса, которое подтвердило
несущую способность элементов перекрытия каркаса. В результате в рамках
Государственной научно-технической программы Республики Беларусь
"Строительные материалы и технологии" Минстройархитектуры в 2000 году
была выпущена серия Б 1.020.1-8 "Универсальная каркасная безригельная
система с плоскими сплошными сборными плитами перекрытия для жилых и
общественных зданий".
Основным достоинством системы является сборность
(бетонируются только стыки плит и колонн, причем без установки опалубки), что
увеличивает скорость монтажа и позволяет беспрепятственно вести монтаж каркаса
в любое время года. Наличие небольшого числа типоразмеров колонн и плит
перекрытия, простота монтажа, отсутствие большого количества сварочных работ,
отсутствие опалубочных и незначительное число арматурных работ дают
безригельной системе предлагаемого типа значительные преимущества по сравнению
с другими системами.
Ограждающие конструкции выполняют в виде
наружных стен и поэтажно опертых перегородок, размещаемых в любом месте диска
перекрытия. Наружные стены, как правило, выполняют в виде кладки из различных
штучных изделий (вибропрессованный кирпич, блоки из ячеистого бетона, керамики
и др.) поэтажно опертыми на диски перекрытий. Они могут быть однослойными и
многослойными.
Рисунок 10.3 - Принципиальная схема каркаса серии
Б 1.020.1-8
Рисунок 10.4 - "Базовое" планировочное
решение - 4-квартирная секция 1-2-3-4. Трансформируя внутренне пространство,
можно осуществлять перепланировку квартир, изменять набор, соотношение и
количество квартир на этаже и доме в целом, создавать квартиры различной
комнатности с разной величиной общей площади и комфортности проживания.
Рисунок 10.5 - Технология возведения домов серии
Б 1.020.1
Рисунок 10.6 - Жилой дом серии Б 1.020.1 по ул.
Медведева, г. Брянск
При строительстве в технологии серии Б1.020.1-7,
предварительные расчеты показали, что затраты на строительство квадратного
метра ниже на 35-40 % по сравнению с традиционными методами строительства, в
частности крупнопанельным домостроением.
Архитектурно-конструктивная система домостроения
АРКОС-1 с использованием сборно-монолитного каркаса серии Б1.020.1-7, является
открытой и позволяет из одних и тех же конструкций вести проектирование и
строительство зданий любой этажности, конфигурации и протяженности. Основой
конструктивной системы является сборно-монолитный каркас, включающий в себя
сборные железобетонные колонны с проемами в уровне перекрытий, несущие
монолитные железобетонные ригели, связевые монолитные железобетонные ригели,
предварительно - напряженные плиты пустотного настила ППС, диафрагмы жесткости,
сборные шахты лифтов. Также каркасно-монолитное строительство комплектуется
сборными лестничными маршами с полуплощадками, вентиляционными блоками и
мелкоштучными изделиями для устройства внутренних стен, перегородок и
ограждающих конструкций здания.
Соединение элементов каркаса между собой
обеспечивается путем устройства монолитных несущих и связевых ригелей с
одновременным затеканием бетона в шпонки, образованные из пустот по торцам плит
перекрытий (в нашем случае это плиты ППС) и в проемы колонн. Ригели в одной
блок-секции могут быть ориентированы в продольном и поперечном направлении.
Арматурные стержни из каркаса монолитных ригелей, пропущенные в проем колонны
через проемы, после замоноличевания повышают жесткость здания. Такое
армирование способно выдерживать знакопеременные нагрузки, характерные для
сейсмических воздействий. Наружные стены, опирающиеся на каждом этаже,
самонесущие, выполняются из вибропрессованных блоков и облицовочного цветного
кирпича. В перспективе произойдет замена вибропрессованных блоков на
пенобетонные блоки, улучшенных характеристик. Это уменьшит нагрузку на
фундамент и приведет к снижению себестоимости строительства.
Конструктивная система зданий системы АРКОС-1
каркасно-монолитной серии Б1.020.1-7 всесторонне исследована с испытаниями по
стандартной методике до разрушения всех несущих элементов, стыков и фрагментов
каркаса. Каркасы зданий в процессе их строительства подвергнуты натурным
испытаниям до уровня расчетных нагрузок по специально разработанной методике,
применительно к методике ГОСТ 8829-94.
Структуру квартир в жилых домах, построенных по
данной технологии, можно регулировать в соответствии со спросом, вплоть до
момента заселения, а также изменять в процессе эксплуатации здания с учетом
меняющихся потребностей и условий проживания семей. Только основа всякий раз
постоянна - колонна и плита. Но повороты зданий, лоджии, эркеры - все это
возможно сделать совершенно по-разному. Не менее важен и тот факт, что можно
использовать высокий первый этаж для встроенных помещений любого назначения.
Важно, что в системе "безригельный каркас" можно строить
одноуровневые и многоуровневые стоянки для автомобилей, что сегодня особенно
актуально. Кроме того, использование этой системы дает возможность применения
нескольких вариантов наружного и внутреннего заполнения стен. Это могут быть
ячеистые блоки и газосиликатные, а также пенобетон, мелкоштучный блок -
возможности не ограничены.
Мировой и отечественный опыт, растущий спрос на
жилые помещения свободной планировки дают уверенность в том, что именно за
таким способом возведения зданий будущее. Под руководством ГИПа А.М. Телеша и
во многом благодаря его настойчивости эта система уже освоена в Беларуси.
Запроектирован ряд жилых домов в Мозыре, Могилеве и Минске (5-, 10- и
16-этажные соответственно).
Рисунок 10.10 - 8-10-12 этажный жилой дом по ул.
Волотовской в г. Гомеле с подземной автостоянкой. Конструктивная схема жилого
дома - монолитный железобетонный каркас. Наружные стены - из ячеисто бетонных
блоков.
Рисунок 10.11 - На строительстве 8-10-12
этажного жилого дома по ул. Волотовской в г. Гомеле
Рисунок 10.12 - Варианты планировок 8-10-12
этажного жилого дома по ул. Волотовской в г. Гомеле
Серия П-152м. На сегодняшний день, ОАО
"Гомельский ДСК" приступило к техническому перевооружению и
модернизации производства. Основной стратегической целью развития комбината
является увеличение объемов производства путем перехода на новую технологию
производства железобетонных изделий с заменой имеющейся серии 152 на
модернизированную - 152М, отвечающую европейским стандартам.
Серия 152М разработана специалистами института
жилища НИПТИС и выпускается с применением новых технологий. Увеличено
термическое сопротивление ограждающих конструкций, разработана новая технология
устройства стыков панелей, которая позволяет выровнять параметры теплового
сопротивления по всей плоскости стены. Предусмотрена система отопления с
поквартирной регулировкой и учетом тепла, оконные блоки с термическим
сопротивлением не менее единицы. Это, по сути, энергосберегающий дом. Остается
только модернизировать систему вентиляции с рекуперацией тепла. Преимуществом
современной технологии является возможность варьировать площадь квартир по
желанию заказчика. Таким образом, новое производство открывает иные возможности
в жилищном строительстве, поднимает его на новый уровень.
Рисунок 10.6 - 10-этажный 5-секционный жилой КПД
№20 в микрорайоне №104 г. Гомеля запроектирован с использованием индустриальных
изделий типового проекта 152М-1.10. Жилой дом состоит из пяти секций, 10
этажей, 200 квартир.
Рисунок 10.7 - Планировка типового этажа в
10-этажном 5-секционный жилой КПД №20 в микрорайоне №104 г.Гомеля
В жилом доме запроектированы: техподполье,
индивидуальный тепловой пункт, водомерный узел, лестнично-лифтовые узлы с
машинными помещениями, мусоропроводы с мусоросборными камерами, электрощитовая,
комната связи, помещение уборочного инвентаря, холодный чердак. Для обеспечения
жизнедеятельности маломобильных групп населения предусмотрена возможность
выполнить пандусы на входах в здание. Конструктивная схема здания - продольные
и поперечные несущие стены. Фундаменты - ленточные из сборных железобетонных
элементов. Наружные стеновые панели - трехслойные сборные железобетонные с
утеплителем из пенополистирола - 350 мм. Внутренние стены - сборные
железобетонные панели толщиной 160 мм. Плиты перекрытия и покрытия - сборные
железобетонные толщиной 160 мм. Плиты лоджий - сборные железобетонные.
Рисунок 10.8 - Жилой дом серии П-152м по ул.
Мазурова 133, г. Гомель
Рисунок 10.9 - Конструктивные особенности серии
П-152 м
. Типовая архитектура других стран
Надо сказать, что типовая архитектура
развивалась в основном в странах социалистического лагеря. Это было связанно, в
первую очередь, с централизацией органов управления строительством, а так же, с
принятием решения об "унификации, стандартизации и типизации в
строительстве" для всех социалистических держав. Социалистический строй
изменил условия развития архитектуры, стали строить для "народа". В
СССР и странах народной демократии строительство опиралось на единые
народнохозяйственные планы, на государственные и кооперативные организации.
Интенсивный рост народного хозяйства в странах социалистического лагеря вызвал
бурное развитие строительства промышленных, энергетических и транспортных
сооружений.
В связи с развитием промышленности и ростом
городского населения широко развернулась реконструкция старых и строительство
новых городов (Комсомольск на Амуре, Великое Запорожье, Новая Каховка, Ангарск
в СССР, Новая Гута в Польше, Острава-Поруба в Чехословакии и др.). Значительно
возросло благоустройство населенных мест. Полагаясь на дружественную помощь
СССР, активно застраиваются крупные города Севернай Кореи, Китая и других
стран, развивается типовое строительство в ГДР и Чехословакии, в Польше.
Однако надо отметить, что идеи типовой
архитектуры существуют во многих цивилизациях с древних времен. Сам принцип
"типичности", однотипности при строительстве жилья можно заметить в
саманных домах африканских пигмеев, принцип типизации и унификации заметен в
архитектуре древнего египта, цивилизаций Перу и др. С начала XX века, в
Северной Америке и Западной Европе, возникает движение к типизации
архитектурных форм.
Во Франции для выставки "Осенний
Салон" 1922 года Эдуард Ле Корбюзье и Пьер Жаннере представили проект
"Современный город на 3 млн. жителей", в котором предлагалось новое
видение города будущего. Впоследствии этот проект был преобразован в "План
Вуазен" (1925) - развитое предложение по радикальной реконструкции Парижа.
Планом Вуазен предусматривалось строительство нового делового центра Парижа на
полностью расчищенной территории. Для этого предлагалось снести 240 гектаров
старой застройки. Восемнадцать одинаковых небоскрёбов-офисов в 50 этажей по
плану располагались свободно, на достаточном расстоянии друг от друга.
Застраиваемая площадь составляла при этом всего 5%, а остальные 95% территории
отводились под магистрали, парки и пешеходные зоны. "План Вуазен"
широко обсуждался во французской прессе и стал своего рода сенсацией.
В 1924 году по заказу промышленника Анри Фрюже в
посёлке Пессак под Бордо был возведён по проекту Корбюзье городок
"Современные дома Фрюже" (Quartiers Modernes Frugиs). Этот городок,
состоящий из 50 двух-трёхэтажных жилых домов, был одним из первых опытов
строительства домов сериями (во Франции). Здесь применены четыре типа здания,
различные по конфигурации и планировке - ленточные дома, блокированные и
отдельно стоящие. В этом проекте Корбюзье пытался найти формулу современного
дома по доступным ценам - простых форм, несложного в строительстве и
обладающего при этом современным уровнем комфорта.
На Международной выставке современных
декоративных и промышленных искусств 1925 года в Париже по проекту Корбюзье был
построен павильон "Эспри Нуво" (L’Esprit Nouveau). Павильон включал в
себя жилую ячейку многоквартирного дома в натуральную величину -
экспериментальную квартиру в двух уровнях. Похожую ячейку Корбюзье использовал
позже, в конце 40-х годов, при создании своей Марсельской Жилой Единицы.
Марсельский блок (1947-1952) - это многоквартирный жилой дом в Марселе,
расположенный особняком на просторном озеленённом участке. Корбюзье использовал
в этом проекте стандартизированные квартиры "дуплекс" (в двух
уровнях) с лоджиями, выходящими на обе стороны дома. Внутри здания - в середине
по его высоте - расположен общественный комплекс услуг: кафетерий, библиотека,
почта, продуктовые магазины и прочее. На ограждающих стенах лоджий впервые в
таком масштабе применена раскраска в яркие чистые цвета - полихромия. Подобные
Жилые Единицы (частично видоизменённые) были возведены позже в городах
Нант-Резй (1955), Мо (1960), Брие-ан-Форе (1961), Фирмини (1968) (Франция), в
Западном Берлине (1957). В этих постройках воплотилась идея "Лучезарного
города" Корбюзье - города, благоприятного для существования человека. В
1950 году по приглашению индийских властей штата Пенджаб Корбюзье приступил к
осуществлению самого масштабного проекта своей жизни - проекта новой столицы
штата, города Чандигарх. Как и в Марсельском блоке, для наружной отделки
применена особая технология обработки бетонной поверхности, так называемый
"bйton brut" (фр. - необработанный бетон). Эта техника, ставшая
особенностью стилистики Ле Корбюзье, была подхвачена позже многими
архитекторами Европы и стран других регионов, что позволило говорить о
возникновении нового течения "брутализм". Брутализм получил
наибольшее распространение в Великобритании (особенно в 1960-е гг.) и в СССР
(особенно в 1980-е гг.) К началу 1980-х гг. Западную Европу захлестнула волна
протестов против такого рода застройки. Со временем брутализм стал
восприниматься как воплощение худших качеств современной архитектуры
(отчуждённость от потребностей человека, бездушность, клаустрофобичность и т.
д.), и его востребованность сошла на нет. Построенный по плану город Бразилиа,
столица Бразилии, был создан как воплощение видения Ле Корбюзье, и включает
некоторые знаменитые во всём мире образцы типовых жилых зданий разработанные им
в 20-40-х годах.
Жилой комплекс "Пруитт-Айгоу".
(Англ. Pruitt-Igoe; также встречается написание
"Прюитт-Игоу") - социальный жилой комплекс, существовавший с 1954 по
1974 год в городе Сент-Луисе штата Миссури, США. Состоял из тридцати трёх
11-этажных жилых зданий. Был спроектирован архитектором Минору Ямасаки, который
известен как автор проекта Всемирного торгового центра в Нью-Йорке.
Официальное открытие жилого комплекса произошло
в 1956 году. На строительство Казначейством США было выделено в общей сложности
36 млн. долларов.
Целью создания комплекса было решение проблемы
жилья для молодых квартиросъёмщиков, относящихся к среднему классу.
Плотность заселения оказалась выше, чем в
городских трущобах, около 50 квартир на акр. В соответствии с принципами Ле
Корбюзье и Международного конгресса современной архитектуры, для того, чтобы
сохранить придомовую площадку и нижний этаж в качестве мест общего пользования,
были спроектированы 11-этажные здания. Каждый ряд зданий отделялся полосой насаждений
согласно концепции Харланда Бартоломью. Однако рекреационные и парковые зоны
были неудовлетворительны, детские площадки были созданы только после
многочисленных обращений жителей.
Своё название жилой комплекс получил в честь
героя Второй мировой войны чернокожего пилота Уэнделла О. Пруитта и белокожего
конгрессмена от штата Миссури Уильяма Айгоу. До 1954 в жилищной политике
Сент-Луиса использовался принцип сегрегации, и планировалось, что комплекс
будет состоять из двух частей - для чёрных и для белых. С отменой сегрегации на
законодательном уровне комплекс вначале имел смешанный состав жильцов, но в
течение двух лет большинство белых квартиросъёмщиков переехали в другие места,
и в комплексе осталось в основном малообеспеченное негритянское население.
Вскоре комплекс стал ассоциироваться с нищетой и преступностью.
После завершения строительства в 1955 году,
жилой комплекс состоял из 33 11-этажных жилых корпусов, расположившихся на
площадке в 57 акров. В комплексе было 2870 квартир, что делало его одним из
самых больших в стране. Квартиры были небольшие, с маленькими кухнями. Лифты
останавливались только на первом, четвёртом, седьмом и десятом этажах. Эти
этажи были оборудованы большими коридорами, комнатами для стирки, общественными
комнатами, и мусоропроводами. Вентиляция была недостаточной, централизованого
кондиционирования воздуха не было.
В середине 1960-х годов квартал стал отчетливо
напоминать гетто, а не тот радужный уголок, каким он являлся первые годы после
своего заселения. Работа дворников прекратилась, а на место привычных дверей и
светильников в подъездах начали устанавливать антивандальные. Полиция все чаще
отказывалась выезжать по вызову в этот район. В связи с возросшей стоимостью
содержания района, местные власти приняли решение увеличить стоимость арендной
платы для жителей Пруитт-Айгоу в три раза. Позже в этом году массовая неуплата
счетов привела к коммунальной трагедии - прорыву канализации в одном из домов.
В 1970 году городские власти объявили квартал зоной бедствия. Не найдя средств
для ремонта местной инфраструктуры, власти решили начать отселение жильцов.
После многочисленных безуспешных попыток
улучшить криминогенную ситуацию в жилом комплексе, 16 марта 1972 года по
решению Федерального правительства было взорвано первое здание, затем в течение
двух лет - и все остальные. Полностью территория была расчищена в 1976 году.
Передача о подрыве домов комплекса широко транслировалась по телевидению США,
что сделало "Пруитт-Айгоу" одним из самых известных неудавшихся
проектов социального жилья. Сцены упадка и разрушения комплекса отображены в
философском фильме 1983 года "Койяанискаци".
Чарльз Дженкс свою знаменитую книгу "Язык
архитектуры постмодернизма", которую сегодня назвают: "библией
архитектуры постмодернизма", начал с критики района Прюитт-Игоу. О дате
сноса этого знаменитого "неудачного" типового проекта он отозвался,
как о "дате гибели постмодернизма в архитектуре нашего времени".
Рисунок 10.1 Жилой район Прюитт-Игоу с высоты
птичьего полета
Заключение
Таким образом, типовые дома начали строиться по
всей стране, часто даже в сельской местности, успешно решая жилищную проблему
того времени, но, несомненно, нивелируя облик городов и поселков. Эстетика этих
зданий практически не имела значения. После смерти Сталина, проведения
известного кремлевского съезда строителей и исторического постановления
"Об устранении излишеств в проектировании и строительстве" (1955),
начинается крупномасштабная кампания по борьбе с излишествами и развитие идеи
типового проектирования. Строительство жилых домов по типовым проектам станет
идеей-фикс для всей страны на десятилетия. Одинаковые дома будут строиться во
всех городах союзных республик - от Владивостока до Бреста.
Идеологическое и научное обоснование нового
курса сводилось к следующим пунктам:
коммунальная квартира не являлась проектом
советской власти, а была результатом экономии средств во время
индустриализации;
проживание нескольких семей в одной квартире -
ненормально и является социальной проблемой;
коммунальные квартиры - экономически невыгодный
тип жилья, не удовлетворяющий современным требованиям;
проблема коммунальных квартир может быть решена
посредством массового строительства с использованием новых технологий.
Поворотной точкой стали постановления "О
мерах по дальнейшей индустриализации, улучшению качества и снижению стоимости
строительства" (1956) и "О Развитии жилищного строительства в
СССР" (1957). Задание партии строителям состояло в том, чтобы разработать
к осени 1956 года проекты, позволяющие резко удешевить строительство жилья и
сделать его доступным для трудящихся. Цель проекта была в том, чтобы в 1980
году каждая советская семья встретила коммунизм в отдельной квартире.
Впрочем, к середине 1980-х годов отдельные
квартиры имелись только у 85% семей: в 1986 году Михаил Горбачёв отодвинул
сроки на 15 лет, выдвинув лозунг "Каждой советской семье - отдельную
квартиру к 2000 году".
Таким образом, жилая архитектура, до конца
существования СССР, остается практически вне сферы полноценного индивидуального
архитектурного творчества. Строгая осевая симметрия планов и фасадов, выражение
на фасадах тектоники стоечно-балочной системы с упрощенными колоннами и
антаблементом, выявление в объемно-пространственных композициях таких качеств
как монументальность, тяжесть, устойчивость и т.д. - характерны для композиции,
как жилых, так и общественных зданий. По принципам "безордерной
классики" велось проектирование и промышленных объектов. Большим
своеобразием в вопросах формообразования отличаются в этот период региональные
архитектурные школы советских республик.
Период 1970-х-1980-х годов в периодической
печати того времени именовался эпохой развитого социализма. Архитектурная жизнь
СССР 1980-х гг., когда на фоне официальной государственной архитектуры, создававшейся
в стенах проектных институтов, появились молодые самостоятельные авторы, была,
тем не менее, весьма однообразна. Смена руководства страны (главой государства
стал Л.И. Брежнев) в очередной раз повлекла за собой социокультурные изменения,
в том числе и в сфере градостроительства. Однако "брежневская"
городская архитектура - это, прежде всего, продолжение "хрущевской",
а затем уже развитие многоэтажного секционного домостроения. Государственные
стандарты, строительные нормы и правила, регулировали деятельность архитекторов
в полной мере, вырваться за рамки норм не было возможности. Строительство
кирпичных "хрущевок", но более поздней серии 1-447 велось с 1960-х до
начала 1980-х годов. Они определяли архитектурный образ улиц и городов. Отсутствие
фасадного декора и предельная упрощенность форм, создававших монотонность
пространственной среды, стали "визитной карточкой" эпохи
социалистических свершений типового домостроения.
Возникшая в 1980-е гг. идея "бумажной"
архитектуры, создала прецедент для новых формальных и эстетических поисков и,
некоторым образом, повлияла на архитектурную жизнь последующих поколений.
Однако важнейшим фактором "смены курса" стал развал Союза и
кардинальное изменение ситуации в строительстве.
В связи с кризисом во многих сферах деятельности
в те времена, государство быстро переложило финансирование строительства на
плечи граждан и частных организаций. Так, если в 1985 году около 80% вводимого
жилья строилось государственными предприятиями, то в 2008-м - только 5%. В 1990
году доля жилья, построенного населением за свой счет, составляла 14,4%. В
настоящее время большая часть жилья строится или покупается населением. Отказ
государства от строительства жилья привел к быстрому взвинчиванию цен на него.
В условиях высокой стоимости, а так же в связи с изменением некоторых функций
жилья, сегодня мы имеем ситуацию, когда покупатель, до известной степени, сам
диктует условия производителю. Люди не хотят, и не будут покупать неудобные,
морально устаревшие проекты квартир за свои деньги. В таких условиях
архитекторы просто вынуждены переосмыслить существующие приемы и средства
архитектурного проектирования в поиске наиболее перспективных путей его
развития. В XXI веке мы просто вынуждены строить жилье более комфортабельное,
отвечающее требованиям современности. Изменяются строительные нормы,
государственные стандарты, развиваются технологии. В результате, на сегодняшний
день мы имеем неплохие шансы, позволяющие отечественным практикам и теоретикам
отбросить архаичные предрассудки и приступить к воплощению потенциальных
замыслов на качественно новом информационном уровне, сегодня уже есть
возможность говорить о прогрессивных тенденциях, наметившихся фундаментальных
областях архитектурной науки.
В частности, градостроительное искусство
открывает новые перспективы для совершенствования и гуманизации городского
пространства путем формирования планировочных ансамблей с ярко выраженной
индивидуальностью проектных решений, органично сочетающихся с исторической
средой и образующих с ней живописный синтез разновременной застройки. Ситуация
в архитектуре сегодня тесно связана с возникновением новых естественнонаучных
областей познания окружающего мира и инновациями в сфере компьютерных
технологий, воплощающих самые экстравагантные замыслы в виртуальную реальность.
С освоением компьютерной техники появилась возможность цифрового моделирования,
а благодаря современным технологиям строительного производства, становится
реальной и творческая реализация архитектурных форм практически любой
сложности.
Список использованной литературы
1.
Шаронов М. Типовое проектирование - основная линия развития советской
архитектуры // Архитектура СССР. - 1954. - №1. - С. 1-3.
.
Постановление Центрального Комитета КПСС и Совета Министров СССР от 4 ноября
1955 года №1871 "Об устранении излишеств в проектировании и
строительстве" / КПСС в резолюциях и решениях съездов, конференций и
пленумов ЦК. Т. 8. - М.: 1985.
.
Д.С. Гольдгор, "Архитектура СССР" (10/1963)
.
СНиП II-В.10 "Жилые здания" М. 1955 г.
.
Дженкс Ч. Язык архитектуры постмодернизма // Стройиздат. Москва. 1985, 435 с.
Интернет
источники (время доступа - сентябрь 2014):
.
http://mgsupgs.livejournal.com/196340.html
.
http://www.kvmeter.ru/information/homes_series/1_335/
.
http://tipdoma.com/search-results/?materials=0&years=0®ions=0&levels=
0&types=49
.
http://www.domastik.ru/info/planirovki/ii_29/
.
http://tipdoma.ru/series_II-29.html
.
http://www.zdanija.ru/ApartmentHouses/p2_articleid/3372
.
http://www.kvmeter.ru/information/homes_series/kub_2_5/
.
http://www.zavodsd.ru/arkos/