Двухэтажный жилой дом из мелкоразмерных элементов

  • Вид работы:
    Курсовая работа (т)
  • Предмет:
    Строительство
  • Язык:
    Русский
    ,
    Формат файла:
    MS Word
    397,99 Кб
  • Опубликовано:
    2014-12-26
Вы можете узнать стоимость помощи в написании студенческой работы.
Помощь в написании работы, которую точно примут!

Двухэтажный жилой дом из мелкоразмерных элементов

1. Генеральный план. Технико-экономические показатели

Участок, отведённый под строительство, расположен в юго-восточной части г. Смоленска.

Фасад 1-4 ориентирован на юг, фасад 4-1 ориентирован на север, что обеспечивает инсоляцию жилых комнат, а также необходимую вентиляцию помещений всего здания.

Рельеф участка ровный, с небольшим уклоном.

Проект выполнен в соответствии с нормами и правилами, инструкциями и государственными стандартами:

СНиП 23-01-99 Строительная климатология;

СНиП 2.07 01-89* Градостроительство. Планировка и застройка городских и сельских поселений;

ГОСТ 21.508-93 Правила выполнения рабочей документации генеральных планов предприятий, сооружений и жилищно-гражданских объектов различного назначения;

СНиП 31-02-2001 Дома жилые одноквартирные;

СНиП 21-01-97* Пожарная безопасность зданий и сооружений;

СНиП 23-05-95 Естественное и искусственное освещение;

СНиП 2.01.07-85* Нагрузки и воздействия;

СНиП 2.02.01-83* Основания зданий и сооружений.

Решение генерального плана.

площадь участка - 900 м².

участок прилегает к центральной улице микрорайона. Для жителей проектируемого дома предусмотрена стоянка легкового автотранспорта.

проектом предусматривается максимальное озеленение всей прилегающей территории. Предусматривается посадка деревьев, кустарника, посев газонов, устройство клумб.

Со стороны главного фасада предусмотрен пешеходный бульвар с установкой скамеек для отдыха.

Технико-экономические показатели по генеральному плану

Площадь участка - 900 м²

Площадь застройки - 96,38 м²

Площадь дорог и тротуаров - 46,86 м²

Площадь озеленения - 756,76 м²

Коэффициент застройки территории К= Пз / Пу =96,38 /900=0,107 или 10.7 %.

Коэффициент озеленения К= Поз / Пу =756,76 /900 =0.84 или 84,0%.

Коэффициент использования территории К= (Пз+Поз) / Пу==0,948 или 94,8%.

Условные обозначения на генплане

 

Экспликация зданий и сооружений на генплане

Таблица 1.

Номер на плане

Наименование

Координаты квадрата сетки

1

Проектируемое здание


2




. Краткая характеристика здания

Технико-экономические показатели по проекту.

Проект двухэтажного жилого дома разработан на основании задания на курсовое проектирование.

Здание запроектировано прямоугольной формы в плане с центральным входом, выходящим на юг.

Дом рассчитан на односемейное проживание. На первом этаже двухэтажного дома запроектированы: кухня, общая комната, спальня, холл, ванная, туалет.

На втором этаже расположены: 3 спальни, туалет, выход на балкон.

В доме предусмотрен подвал высотой 2,2 м. В нем располагаются хозяйственные помещения: складское помещение, котельная, склад топлива.

Также в доме предусмотрен холодный чердак высотой до 3,0 м.

Длина здания- 11,06 м.

Ширина здания- 8,83 м.

Высота здания- 10,02 м.

Степень огнестойкости- III.

Класс по долговечности- II

Экспликация помещений

Таблица 2

№ помещ

Наименование помещений

Площадь помещений (м2)



П - по проекту

Подвал

1

Коридор

7,10

2

Складское помещение

10,57

3

Котельная

3,10

4

Склад топлива

4,75

1-ый этаж

5

7,10

6

Комната

20,10


Комната

10,57

7

Кухня

10,90

8

Ванная

2,44

9

Туалет

3,10

2-ой этаж

5

Холл

7,50

6

Комната

14,20


Комната

16,90


Комната

10,57

9

Туалет

2,10

Итого

131


Технико-экономические показатели по проекту.

Строительный объем :

Остр.подз.=52,21´2,2=114,86м3

Остр.надз.=94,87´9,13=866,16 м3

Озд.=981,02 м3

Площадь застройки :

Пзастр.=96,38 м2

Жилая площадь дома:

Пж.=72,34 м2

Общая площадь дома:

Побщ.=131 м2

К2 - отношение строительного объема к общей площади, характеризует рациональность использования площадей.

К2=Озд./Побщ. = 981,02/131 = 7,49.

. Краткая характеристика района строительства

Место строительства проектируемого здания г. Смоленск. Согласно карте климатического районирования участок для строительства расположен во II климатическом подрайоне.

Климатические показатели заданного района строительства:

Средняя годовая температура наружного воздуха составляет 4.4 С0

Средняя температура воздуха наиболее холодной пятидневки равна -260С.

Средняя температура наиболее холодных суток составляет-310С.

Район по весу снегового покрова -III.

Отопительный сезон составляет 215 суток.

Господствующее направление ветра данного района - СЗ, З, ЮЗ.

Зона влажности - нормальная.

Инженерно-геологические условия строительства:

нормативная глубина промерзания грунта составляет - 1,29 м;

площадка строительства со спокойным рельефом местности, не требующая больших затрат на земляные работы

грунты основания - суглинки.

грунтовые воды отсутствуют

Площадка под строительство выбрана исходя из следующих факторов:

наличие и близость обеспечения строительства местными строительными

материалами;

наличие источников водоснабжения, обеспечивающих здание хозяйственной и питьевой водой;

наличие источников электроэнергии и теплоснабжения;

удовлетворительные свойства грунтов;

удовлетворительное санитарно-техническое и экологическое состояние площадки.

Исходя из наличия перечисленных факторов, строительство данного здания считается целесообразным.

Для строительства выбран участок свободный от застройки.

. Объемно-планировочное решение здания

На отведённом участке запроектирован двухэтажный жилой дом.

Класс конструктивной пожарной опасности - СО

Общий размер застройки в осях 11,06 х 8,83 м.

Дом рассчитан на односемейное проживание. В доме запроектировано 5 жилых комнат, кухня, ванная, 2 туалета. Все жилые комнаты освещены естественным светом, имеют отдельные входы, высота помещения - 2,5м. Кухня оборудована вытяжной естественной вентиляцией, мойкой, плитой.

В подвале находятся хозяйственно-бытовые помещения (складское помещение, котельная).

Дом запроектирован 2-хэтажный.

Лестница - внутренняя повседневной эксплуатации из деревянных элементов.

На 1-ом этаже запроектирована терасса. На 2-ом этаже - балкон с выходом из холла.

Высота этажа - 2,8 м.

За отм.0.000 принят уровень пола первого этажа здания.

В доме предусмотрен один вход.

Освещение - естественное, проветривание через фрамуги, форточки.

Главный фасад выходит на юг. Окна жилых комнат выходят на запад и восток, что обеспечивает инсоляцию.

Санитарно-техническое оборудование.

Отопление и горячее водоснабжение - индивидуальное, от газового котла.

Вентиляция - вытяжная с естественной тягой из кухонь и санитарных узлов через каналы.

Водопровод и канализация - присоединены к городским сетям.

Плита в кухне - на газовом топливе.

. Конструктивное решение

Здание бескаркасное с продольным и поперечным расположением несущих стен. Пространственная жесткость в здании обеспечена за счет продольных и поперечных стен, балок, связанных со стенами с помощью анкеров, заводимых в несущие стены.

Жесткие диски перекрытия созданы заделкой швов между плитами цементно-песчаным раствором.

Фундамент ленточный - бутобетонный, глубина заложения 2,130 м. Размеры поперечного сечения 500 мм, 380 мм. По верху фундамента предусмотрен слой гидроизоляции горизонтальной из двух слоев рулонного ковра. По стенам подвала выполнена вертикальная обмазачная гидроизоляция горячим битумом 2 раза.

Наружные стены трехслойные из керамического кирпича (ГОСТ 530-2007) с облицовкой силикатным кирпичом (ГОСТ 379-95) с утеплителем пеноплексом (ТУ 5767-001-56925804-2003) толщиной 510 мм. Цоколь - бутобетонный, оштукатуренный. Внутренние стены из кирпича глиняного обыкновенного по ГОСТ 530-2007 толщиной 380 мм. Междуэтажные перекрытия - сборные по железобетонным балкам. Несущая конструкция покрытия - щиты перекрытий по деревянным балкам.

Перемычки - железобетонные по серии 1.038.1-1 в. 1,2 .

Полы первого этажа - с утеплителем пенополистиролом 100 мм. В санузле, туалете- из керамической плитки; в комнатах, кухне, холле - досчатые. Кровля - скатная из металлочерепицы.

Перегородки кирпичные толщиной 120 мм.

Лестница из деревянных элементов (косоуров, ступеней).

Окна из ПВХ профиля индивидуального изготовления с остеклением стеклом и однокамерным стеклопакетом ГОСТ 30674-99 .

Двери внутренние деревянные по ГОСТ 6629-88, двери наружные по ГОСТ 24698-81.

Теплотехнический расчет ограждающей конструкции

Определим необходимую толщину эффективного утеплителя многослойной стены жилого дома в г. Смоленске, выполненной из лицевого кирпича, керамического кирпича, оштукатуренного изнутри цементно-песчаным раствором.

Расчетная схема ограждающей конструкции.

Исходные данные:

Относительная влажность внутреннего воздуха      50%

Температура внутреннего воздуха                                     +20 °С

Температура наиболее холодной пятидневки

обеспеченностью 0,92                                                -26 °С

По прил.В СНиП 23-02-2003 устанавливаем, что г. Смоленск находится в нормальной зоне по влажности. Так как влажностный режим помещений нормальный, то табл. 2 условия эксплуатации ограждения - «Б».

По СНиП II-3-79* примем показатели, которые сведем в табл. 3.

Рассчитаем требуемое сопротивление теплопередаче Rred, исходя из условий энергосбережения по формуле:

ГСОП=(tв - tот) · zоп,           (1)

где tв - расчетная температура внутреннего воздуха, °С, принимаемая согласно ГОСТ 12.1.005-76 и нормам проектирования зданий соответствующего назначения;от, zоп - соответственно средняя температура наружного воздуха, °С, и продолжительность отопительного периода, сут.

ГСОП=(20+2,4) ·215=4816 [°С ·сут.]

По СНиП 23-02-2003, табл. 4 определим требуемое сопротивление теплопередаче Rred=3.09 [м²·°С / Вт].

Высчитываем требуемое сопротивление теплопередаче, отвечающее санитарно-техническим и комфортным условиям, по формуле:

к = [n (tв - tн)] / (Δtн · αв)               (2)

где n- коэффициент, принимаемый в зависимости от положения наружной поверхности ограждающей конструкции по отношению к наружному воздуху СНиП 23-02-2003, табл.6;в - то же, что и в формуле (1);н - расчетная температура наружного воздуха, °С, равная средней температуре наиболее холодной пятидневки, обеспеченностью 0,92;

Δtн - нормативный перепад, между температурой внутреннего воздуха и температурой внутренней поверхности ограждающей конструкции, °С, СНиП 23-02-2003, табл.5;

αв - коэффициент теплоотдачи внутренней поверхности ограждающей конструкции, Вт/ (м²·°С), СНиП 23-02-2003, табл.7.

= 1

Δtн = 4

αв = 8,7 Вт/ (м²·°С).к = [1 (20 + 26)] / (4 · 8,7) = 1,32 [м²·°С / Вт].

Теплофизические показатели материалов слоев ограждения

Таблица 3

Номер слоя и наименование материала

Толщина слоя, δ, м

Теплопроводность, λ, Вт/ (м·°С),

1. Силикатный кирпич

0,12

0,87

2. Пеноплекс

Х

0,03

3. Керам. кирпич

0,25

0,56

4. Штукатурка из цементно-песчаного раствора

0,02

0,81


Поскольку Rк < Rred, то все дальнейшие вычисления выполним по Rred, т.е. по наибольшему из них.

 = δi / λi, (3)

где δi - толщина i-го слоя ограждения, м;

λi - расчетный коэффициент теплопроводности материала рассчитываемого слоя, Вт/ (м·°С).

=0,12/0,87=0,14 [м²·°С / Вт].=x/0,03 [м²·°С / Вт].=0,25/0,56=0,45 [м²·°С / Вт].=0,02/0,81=0,016[м²·°С / Вт].

Подставляя их в формулу Rk=R1+R2+Ri+…+Rn (4), получим:

=0,14+x/0,03+0,45+0,016=0,606+x/0,03 [м²·°С / Вт].

Подставим полученное выражение в формулу фактического сопротивления теплопередачи:

=1/ αв + Rk +1/ αн; (5)

где αн - коэффициент теплоотдачи (для зимних условий) наружной поверхности ограждающей конструкции Вт/ (м·°С), αн=23 Вт/ (м·°С);- термическое сопротивление ограждающей конструкции, м²·°С / Вт.

=1/ 8,7 + 0,606+х/0,03 +1/ 23= 0,764+х/0,03.

Приравнивая полученное значение к Rred

,09=0,764+х/0,03,

найдем необходимую толщину утеплителя

х=0,07 м.

Окончательно примем толщину утеплителя 100 мм, толщину стены равной 0,51 м.

.Спецификация сборных железобетонных и бетонных элементов.

Таблица 4.

Поз.

Наименование

Обозначение

Кол-во

Масса, кг

Примеч.

1

2

3

4

5

6

Балки

Б 1


L=4800

6



Б 2


L=4500

18



Б 3


L=3000

12



Б 4


L=2700

4



Плиты

П1


910х395

188



П2


710х395

56



Перемычки

1ПБ13

Серия 1.038.1-1 в.1

1 ПБ13-1

5

25


2ПБ10


2 ПБ 10-1-п

3

43


2ПБ13


2 ПБ 13-1-п

3

54


2ПБ16


2 ПБ 16-2-п

5

65


2ПБ19


2 ПБ 19-3-п

4


2ПБ25


2 ПБ 25-3-п

6

103


3ПБ16


3 ПБ 16-37-п

1

102


3ПП14

Серия 1.038.1-1 в.2

3 ПП14-71

4

189



. Спецификация элементов заполнения проемов

Таблица 5.

Марка Поз.

Обозначение

Наименование

Количество шт.

Масса. Ед кг.

Примеч.

Оконные блоки

ОК -1

ГОСТ 30674-99

ОП ОСП 15-12 ПО

1



ОК- 2


ОП ОСП 15-21 ПО

2



ОК-3


ОП ОСП 15-15 ПО

3



ОК-4


ОП ОСП 15-6 ПО

1



ОК-5


ОП ОСП 9-15 ПО

1



ОК-6


ОП ОСП 9-9 ПО

2



Двери

ДН

металлические

ДНМ 21-9

1



Д 1

ГОСТ 6629-88

ДГ 21-7п

4



Д 1л


ДГ 21-7 пл

1



Д 2


ДО 21-9

3



Д3


ДГ 21-9

4



Д4


ДГ21-6

1




Спецификация элементов заполнения проемов относится к 1 листу графической части проекта. Маркировка элементов выполнена на плане типового этажа и составлена на основании [5],[6].

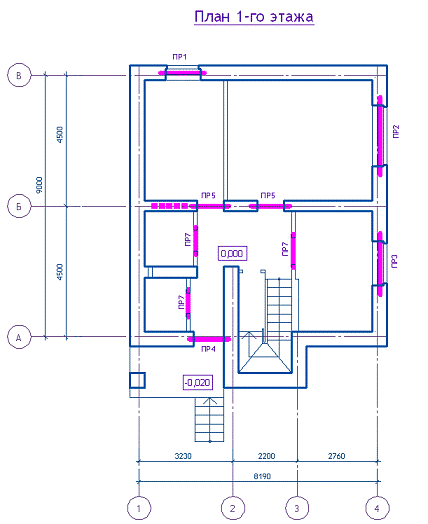
8. Ведомость перемычек

дом генеральный конструктивный

Схема расположения перемычек


Таблица 5.

Тип Кол-во

ПР1 1 шт

ПР2 2 шт.

ПР3 2 шт

ПР4 1 шт

ПР5 4 шт

ПР6 1 шт

ПР7 5 шт

ПР8 1 шт

  9. Экспликация полов

Таблица 6.

Наиме-нование помеще-ния (номер на плане)

Схема пола

Элементы пола и их толщина

Площадь, м²

Комнаты, холл, кухня 1 этажа       1. Досчатый пол- 37мм

. Лага деревянная - 43 мм

. Упругая прокладка

. Пенополистирол ПСБ-С-50 по ГОСТ 15588-98 - 100м

5. Плиты по ж/б балкам48,67



Санузел, ванная 1 этажа  1.Плитка керамическая на цементном растворе М150-25мм

. Стяжка цементно-песчаная М150 - 40 мм

. 1 слой гидроизола на битумной мастике - 5 мм

. Пенополистирол ПСБ-С-50 по ГОСТ 15588-98 - 100м

5. Плиты по ж/б балкам5,54



Комнаты, холл 2 этажа    1. Досчатый пол- 37мм

. Лага деревянная - 43 мм

. Упругая прокладка

. Слой звукоизоляции

5. Плиты по ж/б балкам49,17



Санузел 2 этажа  1.Плитка керамическая на цементном растворе М150-25мм

. Стяжка цементно-песчаная М150 - 40 мм

. 1 слой гидроизола на битумной мастике - 5 мм

. Слой звукоизоляции

5. Плиты по ж/б балкам2,10



Подвальные помещения   1. Покрытие из бетона кл. В15- 20 мм

. Подстилающий слой из бетона кл. В 7,5 -80 мм

3. Грунт с втрамбованным щебнем25,52



Примечание.

Экспликация полов составлена к первому и второму листу графической части проекта.

. Наружная и внутренняя отделка здания. Ведомость отделки помещений

Отделка и оборудование помещений жилого дома запроектирована с учетом характера эксплуатации здания и эстетическими требованиями, предъявляемыми к жилым зданиям.

Наружная отделка.

Цоколь оштукатурить «под шубу», окрасить фасадной краской, стены - лицевой кирпич с расшивкой швов.

По периметру дома выполнить асфальтобетонную отмостку шириной 1000 мм без бортового камня.

Внутренняя отделка.

Внутренняя отделка групп помещений производится с учетом их назначения.

Стены жилых комнат, кухню, холл оклеить обоями. Стены ванной и туалетов - керамическая плитка. Потолки - улучшенная клеевая окраска. Подвальные помещения - стены оштукатурить и окрасить водоэмульсионной краской.

Ведомость отделки помещений

Таблица 7.

№ пом. по плану

Наименование помещений

Стены

Площадь, м²

Потолок

Площадь, м²

5,6,7

Жилые комнаты, холл, кухня

Обои

243,9

Улучшенная клеевая окраска

97,84

8,9

Керамическая плитка

45,42

Улучшенная клеевая окраска

7,64

1,2,3,4

Подвальные помещения

Водоэмульсионная окраска

101,28

Улучшенная клеевая окраска

25,52









Список использованной литературы

Нанасова С.М. Конструкции малоэтажных жилых домов. М., АСВ. 2003

Вильчик Н.П. Архитектура зданий М. 2005г.

Маклакова Т.Г. Нанасова С.М Конструкции гражданских зданий М.2000г.

Курсовое и дипломное архитектурное проектирование: уч. Пособ.-М.Ж Высшая школа, 1983

Архитектура гражданских и промышленных зданий. Граждан­ские здания / Под ред. А-В. Захарова- М.: Стройиздат, 1993.

Маклакова Т.Г. и др. Конструкции гражданских зданий. М.: Стройиздат, 1986.

Дехтяр С.Б. и др. Архитектурные конструкции гражданских зданий. Киев: Будивельник, 1987.

Общесоюзный каталог типовых строительных конструкций и изделий. Конструкции и изделия кирпичных и крупноблочных жилых и общественных зданий для обычных условий строительства. Т. 1-3.

Территориальный каталог типовых строительных конструкций и изделий для жилищно-гражданского строительства в Смоленской области.

СНиП 31-01-2003 Здания жилые многоквартирные.

ТСН 31-304-95 Многофункциональные здания и сооружения.

СНиП 21-01-97 Пожарная безопасность зданий и сооружений.

ГОСТ 24699-02. Окна и балконные двери со стеклопакетами для жилых и общественных здании,

ГОСТ 24698-81. Двери деревянные внутренние для жилых и общественных зданий,

ГОСТ 217501-80 СПДС. Архитектурные решения. Рабочие чер­тежи.

Каталоги, и ГОСТы на индустриальные строительные изделия.

Похожие работы на - Двухэтажный жилой дом из мелкоразмерных элементов

 

Не нашли материал для своей работы?
Поможем написать уникальную работу
Без плагиата!
Без нейросетей!