Организация технического обслуживания подвижного состава в ООО 'Генподряд' г.Новосибирска

  • Вид работы:
    Курсовая работа (т)
  • Предмет:
    Транспорт, грузоперевозки
  • Язык:
    Русский
    ,
    Формат файла:
    MS Word
    770,23 Кб
  • Опубликовано:
    2015-07-11
Вы можете узнать стоимость помощи в написании студенческой работы.
Помощь в написании работы, которую точно примут!

Организация технического обслуживания подвижного состава в ООО 'Генподряд' г.Новосибирска

Содержание

Введение

. Анализ деятельности предприятия

.1 Юридический статус, географическое и административное положение предприятия

.2 Основное направление деятельности предприятия

.3 Подвижной состав предприятия

.4 Генеральный план предприятия

. Технологическая часть

.1 Принципы организации технического обслуживания и ремонта подвижного состава

.2 Технологический расчет

.3 Корректирование нормативных данных

.4 Определяем программу работ по ТО и ремонту

. Конструкторская разработка

3.1 Анализ существующих конструкций

.2 Устройство для вывешивания колес автомобилей

3.2.1 Описание конструкции

3.3 Расчет деталей на прочность

.3.1 Расчет стойки

3.3.2 Расчет сварных соединений

3.4 Вывод

. Безопасность жизнедеятельности

4.1 Охрана труда

.1.1 Анализ состояния охраны труда на предприятии

.1.2 Анализ противопожарного состояния

.1.3 Предложения по улучшению организации службы охраны труда

4.2 Проектная часть

.2.1 Безопасность технологического процесса

.3 Безопасность конструкторской разработки

.4 Экологическая безопасность проекта

.5 Устойчивость проектируемого объекта (производства) в чрезвычайных ситуациях региона

5. Экономическая эффективность проекта

Заключение

Библиографический список

Введение

В настоящее время экономика нашей страны по-прежнему пока еще находится в кризисном состоянии. Российский автомобильный транспорт по многим параметрам не отвечает потребностям экономики и общества, не соответствует современным требованиям и находится в кризисном состоянии.

Подвижность населения России в 2,5 раза ниже, чем в развитых зарубежных странах, поскольку отсутствие опорной транспортной сети на всей территории страны препятствует развитию единого экономического пространства и росту личной мобильности. Около 28 тыс. населенных пунктов, в которых проживают 12 млн. человек, не имеют круглогодичного автотранспортного сообщества.

На сегодняшний день, при огромных суммарных материальных и финансовых затратах эффективность решения многих транспортных задач в стране становится чрезвычайно низкой, грузовой автотранспорт - неконкурентоспособным, а пассажирским - все менее доступным.

Следует отметить, что производство в этих социально-экономических условиях развивается практически без поддержки со стороны государства. Отсюда - недостаток материально-денежных средств на развитие производства. Вместе с тем, техника и топливо-смазочные материалы постоянно дорожают. В связи с этим возникает острая необходимость экономии ресурсов, что возможно за счет рационального технического обслуживания (ТО) машин.

Совершенствование технологии и организации ТО подвижного состава предприятий должно быть направлено на повышение технической готовности машинно - тракторного парка, сокращение эксплуатационных затрат, на увеличение производительности машин, а также на улучшение технической и экологической безопасности использования машин.

Для повышения эффективности планово-предупредительной системы технического обслуживания и ремонта техники необходимо располагать соответствующей материально-технической базой: ЦРМ, ПТО и передвижными агрегатами ТО, а так же складами, гаражами, оборудованными местами для хранения техники и горюче-смазочных материалов.

С постоянным совершенствованием средств ТО растет необходимость в повышении квалификации кадров, мастеров-наладчиков и диагностов.

Планирование технического обслуживания машинно-тракторного парка позволяет рационально использовать средства технического обслуживания, сокращать простои техники по организационным причинам. Своевременное и качественное проведение ТО позволяет значительно повысить моторесурс техники и ее техническую готовность.

В данном дипломном проекте предлагается решить проблемы организации технического обслуживания подвижного состава в ООО "Генподряд" г.Новосибирска.

Задачи дипломного проекта.

Анализируя состояние дел по проведению технического обслуживания автомобилей в ООО "Генподряд" можно сделать вывод: проведение технических воздействий на подвижной состав предприятия недостаточен. Проведение ТО проводится не своевременно, оборудование для проведения технического обслуживания морально устарело, что отрицательно сказывается на качестве производимых воздействий. На основании вышеизложенного предлагается:

) подойти к организации работы участка технического обслуживания автомобилей предприятия с научной точки зрения;

) оснащение пункта технического обслуживания автомобилей необходимым количеством постов и современным технологическим оборудованием с применением средств диагностики с полностью укомплектованным штатом рабочих по проведению технического обслуживания автомобилей.

Применение средств диагностики, новейших методов проведения технического обслуживания автомобилей, современного оборудования даст положительный эффект в повышении эксплуатационных показателей автопарка ООО "Генподряд" в целом.

1. Анализ деятельности предприятия

Эффективность работы автомобиля в значительной степени зависит от его технической готовности, которая обеспечивается своевременным и качественным обслуживанием и ремонтом. Только первые 2 - 3 года можно использовать автомобиль, не имея достаточно хорошо развитой и оснащенной материально-технической базы по его обслуживанию и текущему ремонту. Интенсивность эксплуатации автомобиля зависит также от величины города, развития общественного транспорта, расстояния до постоянного места стоянки, технического состояния автомобиля, возраста, доходов и характера работы владельца, местных и других факторов. Поддержание автомобилей в состоянии высокой технической готовности требует не только повышения производительности труда ремонтных и обслуживающих рабочих, качества проведения ТО, но и создания или реконструкции материальной базы предприятий автомобильного транспорта, а также структур управления. В крупных городах с большим сосредоточением автомобилей создаются более прогрессивные структурно-организационные подразделения, а именно: объединения, автокомбинаты, базы централизованного обслуживания и ремонта, авто центры по обслуживанию грузовых и легковых автомобилей и придорожные станции. Для эксплуатации, обслуживания и хранения новых моделей подвижного состава необходимы качественно новые предприятия автомобильного транспорта. Инженерно-техническим работникам автотранспорта в своей практической деятельности приходится решать вопросы проектирования и реконструкции производственно-технических баз предприятий, на которых они работают. Эта задача должна решаться с учетом прогрессивных форм методов технического обслуживания и ремонта подвижного состава, повышения уровня механизации производственных процессов, использования средств диагностики для объективной оценки технического состояния автомобиля, научной организации труда, наиболее рациональных с технической и экономической точек зрения планировочных решений помещений и зданий предприятия.

1.1 Юридический статус, географическое и административное положение предприятия

Главный офис ООО "Генподряд" находится по адресу: г.Новосибирск ул. Каменская 32. В главном офисе находится руководство предприятия. Директор, главный инженер, бухгалтерия управляют и координируют производственную деятельность ООО "Генподряд". Производственная база ООО "Генподряд" находится по адресу: г.Новосибирск п.Матвеевка ул.Каштановая 12. Режим работы головного офиса: с 08.00 до 17.00.

Режим работы производственной базы и порядок выпуска на линию техники и возращения: с 08.00 до 21.00.

.2 Основное направление деятельности предприятия

Основными направлениями деятельности ООО "Генподряд" являются:

 разработка и подготовка стройплощадки к нулевому циклу;

 сдача в аренду строительной техники и оборудования;

 забивка и испытание свай;

 перевозка тяжеловесных не габаритных грузов;

 услуги по подъёму грузоподъёмными механизмами.

.3 Подвижной состав предприятия

Основной подвижной состав ООО "Генподряд", выполняющий основную транспортную работу представлен ниже.

Бульдозер ДТ 75 и 2 бульдозера рыхлителя KAMATSU.

Экскаваторы с ковшом от 0,85 кв.м до 1,65 кв.м - 7 единиц.

Парк собственных большегрузных самосвалов для вывоза грунта;

КамАЗ 65115 - 7 единиц;

КамАЗ 6520 - 4 единиц;

МАЗ - 5432 с тяжеловесным полуприцепом для доставки техники на объекты - 1 единица;

многофункциональная машина МКС - 800, 1 - единица;

виброкаток - 1 единица.

В таблице 1.1 представлен списочный состав автомобилей предприятия, распределенный по годам выпуска.

Таблица 1.1 - Списочный состав автомобилей ООО "Генподряд"

Марка а/м

Кол-во а/м

По году выпуска

По пробегу (тыс. км)



2001

2002

2003

2004

2005

2006

2007

2008

2009

До 150

150-300

300-500

КамАЗ 65115

7



1

2

3

1




7



КамАЗ 6520

4






1

1

2


4



МАЗ 5432

1



1








1


Итого

12

-

-

2

2

3

2

1

2

-

11

1

-

МАЗ 937900 -010

1



1








1



Структурная схема организации работы предприятия представлена на рисунке 1.2.

Рисунок 1.2 - Структурная схема ООО "Генподряд"

В таблице 1.2 представлено основное оборудование ремонтной базы предприятия, используемое для проведения технических воздействий на подвижной состав ООО "Генподряд".

Таблица 1.2 - Технологическое оборудование ООО "Генподряд"

Наименование оборудования

Марка или ГОСТ

Количество, шт.

Токарный станок

1Л62

2

Вертикально-сверлильный станок

2148А

2

Ножницы с ручным приводом

Н-970

1

Кузнечный горн

8121

1

Кузнечная двуногая наковальня

ГОСТ 1139865

1

Стеллаж

ОГ-13

2

Подвесной ручной одноблочный кран


1

Моечная передвижная ванна

ОМ-1316

1

Передвижной компрессор

038 Б

1

Прибор для проверки зажигания

КИ-1178

1

Приборы и инструменты для контроля состояния аккумуляторных батарей

ОГ-24 ЛЭ-2

2 2

Емкость для слива отработанного масла


2

Маслораздаточный бак (22л)


1

Стенд для проверки и регулировки топливной аппаратуры

КИ-22205

1

Приборы для проверки и регулировки форсунок, плунжеров, нагнетательных клапанов

КИ-32205

2

Настольный замочный станок

ТА-25Б

2

Кран-балка

-

1


Анализируя таблицу 1.2 можно сделать вывод, что в хозяйстве недостаточно оборудования для проведения технического обслуживания (ТО) и ремонтов подвижного состава предприятия. Планирование и учет ТО в настоящее время не производится. Контроль за состоянием технического обслуживания и ремонта осуществляется водителем или механиком, если водитель имеет малый стаж работы на данной марке автомобиля. Составлены круглогодовые графики ремонта и технического обслуживания автомобилей. Техника безопасности при техническом обслуживании автомобилей соблюдается в соответствии с установленными нормами и правилами. Водители и слесари проводят техническое обслуживание и ремонт в спецодежде, в достаточно освещенных помещениях, технически исправным инструментом, состояние которого контролируется механиком.

На предприятии не осуществляется планирование завоза и расхода нефтепродуктов. Топливо и смазочные материалы водители покупают на городских АЗС, получая на это деньги в кассе предприятия. Учет этих расходов ведется бухгалтерией. Сбор отработанного моторного масла и трансмиссионных масел осуществляется в неметаллические бочки. Зачастую отработанные нефтепродукты выливаются на землю, что ухудшает экологическую обстановку на предприятии.

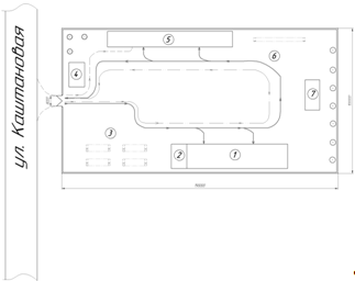
.4 Генеральный план предприятия

На рисунке 1.1 представлен генеральный план предприятия.

Рисунок 1.3 - Генеральный план

- бокс для хранения автомобилей, часть бокса используется для ТО и ТР (2 осмотровые ямы); 2 - административно-бытовой корпус; 3 - место для хранения спец.техники; 4 - КПП; 5 - административное здание; 6 - площадка для хранения автомобилей; 7 - АЗС.

Ближайший жилой дом находится на расстоянии 100 м.

В соответствии с СанПиН 2.2.1/2.1.1. 1200-03 "Санитарно-защитные зоны и санитарная классификация предприятий, сооружений и иных объектов" предприятие относится к IVсанитарному классу с размером нормативной санитарно-защитной зоны 100 м.

Вывод: Проводя анализ технической эксплуатации автомобильного парка можно сделать следующие выводы: в целом по предприятию техническое обслуживание и ремонт автомобилей производится удовлетворительно. Следует отметить ряд недостатков: не хватает квалификационных кадров, слабая материально-техническая база хозяйства, не хватает запасных частей, топлива и смазочных материалов. Оборудование и инструмент частично устарел. Отсутствует подлежащие приспособления и оборудование для диагностики и технического обслуживания, нет поста для диагностики. Проанализировав имеющиеся недостатки можно сделать вывод о необходимости создания более строгой и более четкой системы технического обслуживания автомобилей.

. Организовать пост технического обслуживания и диагностики, обеспечить его соответствующим оборудованием, инструментом, средствами диагностики, кадрами.

. Составить четкий план - график проведения технического обслуживания автомобилей.

. Наладить учет и контроль за выполнением плана - графика по техническому обслуживанию и работ по текущему ремонту.

. Для повышения эффективности ТО рекомендуется улучшить снабжение мастерской ТСМ и техническими жидкостями, приобрести современные средства диагностики технического состояния машин, ввести материальные поощрения водителям за сохранность материально-технической части.

2. Технологическая часть

2.1 Принципы организации технического обслуживания и ремонта подвижного состава

Чтобы обеспечить работоспособность автомобиля в течение всего периода эксплуатации, необходимо периодически поддерживать его техническое состояние комплексом технических воздействий, которые в зависимости от назначения и характера можно разделить на две группы: воздействия, направленные на поддержание агрегатов, механизмов и узлов автомобиля в работоспособном состоянии в течение наибольшего периода эксплуатации; воздействия, направленные на восстановление утраченной работоспособности агрегатов, механизм воздействий первой группы составляет систему технического обслуживания и носит профилактический характер, а второй - систему восстановления техники. У нас в стране принята планово-предупредительная система технического обслуживания и ремонта автомобилей. Сущность этой системы состоит в том, что техническое обслуживание осуществляется по плану, а ремонт - по потребности.

Принципиальные основы планово-предупредительной системы технического обслуживания и ремонта автомобилей установлены действующим Положением о техническом обслуживании и ремонте подвижного состава автомобильного транспорта. Техническое обслуживание включает следующие виды работ: уборочно-моечные, контрольно-диагностические, крепежные, смазочные, заправочные, регулировочные, электротехническое и другие работы, выполняемые, как правило, без разборки агрегатов и снятия с автомобиля отдельных узлов и механизмов. Если при техническом обслуживании нельзя убедиться в полной исправности отдельных узлов, то их следует снимать с автомобиля для контроля на специальных стендах и приборок, периодичности, перечню и трудоемкости выполняемых работ техническое обслуживание согласно действующему Положению подразделяется на следующие виды: ежедневное (ЕО), первое (ТО-1), второе (ТО-2) и сезонное (СО) технические обслуживания.

Положением предусматривается два вида ремонта автомобилей и его агрегатов: текущий ремонт (ТР), выполняемый в автотранспортных предприятиях, и капитальный ремонт (КР), выполняемый на специализированных предприятиях.

Каждый вид технического обслуживания (ТО) включает строго установленный перечень (номенклатуру) работ (операций), которые должны быть выполнены. Эти операции делятся на две составные части контрольную и исполнительную. Контрольная часть (диагностическая) операций ТО является обязательной, а исполнительская часть выполняется по потребности. Это значительно сокращает материальные и трудовые затраты при ТО подвижного состава.

Диагностика является частью технологического процесса технического обслуживания (ТО) и текущего ремонта (ТР) автомобилей, обеспечивая получение исходной информации о техническом состоянии автомобиля. Диагностика автомобилей характеризуется назначением и местом в технологическом процессе технического обслуживания и ремонта.

Ежедневное техническое обслуживание (ЕО) выполняется ежедневно после возвращения автомобиля с линии в меж сменное время и включает: контрольно-осмотровые работы по механизмам и системам, обеспечивающим безопасность движения, а также кузову, кабине, приборам освещения; уборочно-моечные и сушильно-обтирочные операция, а также дозаправку автомобиля топливом, маслом, сжатым воздухом и охлаждающей жидкостью. Мойка автомобиля осуществляется по потребности в зависимости от погодных, климатических условий и санитарных требований, а также от требований, предъявляемых к внешнему виду автомобиля.

Первое техническое обслуживание (ТО-1) заключается в наружном техническом осмотре всего автомобиля и выполнении в установленном объёме контрольно-диагностических, крепежных, регулировочных, смазочных, электротехнических и заправочных работ с проверкой работа двигателя, рулевого управления, тормозов и других механизмов. Комплекс диагностических работ (Д-1), выполняемый при, или перед ТО-1, служит для диагностирования механизмов и систем, обеспечивающих безопасность движения автомобиля.

Проводится ТО-1 в меж сменное время, периодически через установленные интервалы по пробегу и должно обеспечить безотказную работу агрегатов, механизмов и систем автомобиля в пределах установленной периодичности.

Углубленное диагностирование Д-2 проводят за 1-2 дня до ТО-2 для того, чтобы обеспечить информацией зону ТО- 2 о предстоящем объеме работ, а при выявлении большого объема текущего ремонта заранее переадресовать автомобиль в зону текущего ремонта.

Второе техническое обслуживание (ТО-2) включает выполнение в установленном объеме крепежных, регулировочных, смазочных и других работ, а также проверку действия агрегатов, механизмов и приборов в процессе работы. Проводится ТО-2 со снятием автомобиля на 1-2 дня с эксплуатации.

Сезонное техническое обслуживание (СО) проводится 2 раза в годи является подготовкой подвижного состава к эксплуатации в холодное и теплое времена года. Отдельно СО рекомендуется проводить для подвижного состава, работающего в зоне холодного климата. Для остальных климатических зон СО совмещается с ТО-2 при соответствующем увеличении трудоемкости основного вида обслуживания.

Текущий ремонт (ТР) осуществляется в автотранспортных предприятиях или на станциях технического обслуживания и заключается в устранении мелких неисправностей и отказов автомобиля, способствуя выполнению установленных норм пробега автомобиля до капитального ремонта.

Капитальный ремонт (КР) автомобилей, агрегатов и узлов выполняется на специализированных ремонтных предприятиях, заводах, мастерских. Он предусматривает восстановление работоспособности автомобилей и агрегатов для обеспечения их пробега до следующего капитального ремонта или списания их, но не менее чем при 80% их пробега от норм пробега для новых автомобилей и агрегатов. При капитальном ремонте автомобиля или агрегата выполняется его полная разборка на узлы и детали, которые затем ремонтируют или заменяют. После укомплектования деталями агрегаты собирают, испытывают и направляют на сборку автомобиля. При обезличенном методе ремонта автомобиль собирают из ранее отремонтированных агрегатов.

2.2 Технологический расчет

Для планирования производственной программы необходимы пробеги до технического обслуживания и капитального ремонта и трудоёмкость работ по ТО и КР.

В таблице 2.1 приведены исходные данные по количеству большегрузных автомобилей предприятия для технологического расчета.

Таблица 2.1 - Исходные данные для расчета

Марка авто

Кол-во авто

Пробег сред. сут (lсс)

Раб. дней в году, Др.г.

Клим. Район экспл.

Категория условий эксплуатации

Пробег с начала эксплуатации, Lн.э./Lцикла

КамАЗ

11

122

253

хол.

3

0,7

МАЗ

2

124

253

хол.

3

0,7


В таблице 2.2 представлены данные по нормативным пробегам для ТО - 1, ТО - 2, КР.

Таблица 2.2 - Нормативные пробеги до ТО-1,ТО-2, КР

Марка транспортного средства

Пробег до ТО-1, км

Пробег до ТО-2, км

Пробег до КР, км

КАМАЗ

3000

12000

300000

МАЗ

2000

8000

300000


Нормативная трудоемкость работ при проведении технического обслуживания и ремонта подвижного состава представлена в таблице 2.3 .

Таблица 2.3 - Нормативная трудоёмкость ТО-1, ТО-2,КР, ЕТО

Марка транспортного средства

Трудоемкость работ по ТО-1(ч/ч.)

Трудоемкость работ по ТО-2(ч/ч.)

Трудоемкость работ по ЕТО (ч/ч.)

Трудоемкость работ по ТР (ч/ч.)

КАМАЗ

3,8

15

3

8,5

МАЗ

3,8

15

3

8,5


.3 Корректирование нормативных данных

Корректирование нормативных данных производится с использованием коэффициентов учитывающих: условия эксплуатации (К1), тип и модификацию автомобилей (К2), природно-климатические условия (К3), пробег автомобилей с начала эксплуатации (К4), размер автотранспортного предприятия (К5).

При определении периодичности ТО коэффициент корректирования:

Кр1 = К1(2.1)

При определении пробега до КР коэффициенты корректирования:

Кр2 = К123 (2.2)

При определении трудоёмкости ТО коэффициент корректирования:

Кр3 = К25(2.3)

При определении трудоёмкости ТР коэффициент корректирования:

Кр4 = К12345 (2.4)

Принимаем значение коэффициента К1, с учётом 2-ой категории эксплуатации для условий Западной Сибири, принимаем равным: по переодичности - К1=0,8, по норме межремонтного пробега - К1=0,8, по норме удельной трудоемкости ТР- К1=1,2.

Значения коэффициента К2 принимаем из таблицы 2.4.

Таблица 2.4 - Значение коэффициента К2

Тип и модификация автомобиля

Коэффициент К2


Трудоёмкость ТО и ТР

Пробег до КР

Базовый автомобиль

1,2

1,2

Автомобили с одним прицепом

1,15

0,8

С двумя прицепами

1,20

0,8

Самосвалы при работе на плечах свыше 5 км.

1,15

0,8

Автомобили-самосвалы с одним при работе на коротких плечах (до 5 км.)

1,20

0,8

Автомобили-самосвалы с двумя прицепами

1,25

0,8


Значения коэффициента К3, учитывающего природно-климатические условия эксплуатации, для нашей зоны ( холодная ), можно принять равным: по удельной трудоёмкости ТО и ТР- К3 по норме межремонтного пробега-К3=0,8

Значения коэффициента корректировки К4, принимаем из таблицы 2.5

Таблица 2.5 - Значение коэффициента К4

Пробега автомобиля(в долях от пробега до первого КР

Коэффициент К4

Пробег автомобиля(в долях от пробега до первого КР

Коэффициент К4

До 0,25

0,3

От 1,25 до 1,5

1,4

От 0,25 до 0,50

0,7

От 1,50 до 1,75

1,6

От 0,5 до 0,75

1,0

От 0,75 до 2,00

2,0

От 0,75 до 1,00

1,2

Свыше 2,00

2,5

От 1,00 до 1,25

1,3




Значение коэффициента корректирования К5, учитывающего число автомобилей (в наших исходных данных до 75 шт.), принимаем равным К5=1,3.

Для наших условий нормативная периодичность ТО, нормы пробега до КР, а также нормативы трудоёмкости ТО и ТР должны быть скорректированы по выражениям:

Периодичность ТО

Lто-1 = Кр1*Lнто-1,(2.5)

Lто-2 = Кр1*Lнто-2,(2.6)

где Lто-1, Lто-2 - соответственно нормативный пробег до ТО-1 и ТО-2 после корректирования; Lнто-1, Lнто-2 соответственно нормативный пробег до ТО-1 и ТО-2 до корректирования.

Для КАМАЗ, МАЗ:

Lто-1 = 3000*0,8 = 2400(км).

Lто-2 = 12000*0,8 = 9600 (км).

Пробег до КР:

Lкр = Кр1*Lнкр,

где Lнкр нормативный пробег автомобиля до КР до корректирования.

Для КАМАЗ :

Lкр= 300000*0,8*0,9*0,8 = 155520 (км).

Для МАЗ:

Lкр= 300000*0,8*1*0,8 = 172800 (км).

Трудоёмкость ТО:

Зтто-2 = Кр3*Зтнто-2,(2.7)

Зтто-1 = Кр3*Зтнто-1,(2.8)

Зтето = Кр3*Зтнето,(2.9)

где Зтто-2, Зтто-1, Зтето- соответственно трудоёмкость одного ТО-2, ТО-1, ЕТО после корректирования;

Зтнто-2, Зтнто-1, Зтнето- соответственно трудоёмкость одного ТО-2, ТО-1, ЕТО до корректирования(принимаем из таблицы 2.2). Для КАМАЗ :

Зтто-2 = 3,8*1,15*1,3=5,7 (чел./ч);

Зтто-1 = 15*1,15*1,3=22,4 (чел./ч);

Зтето = 0,3*1,15*1,3= 0,44 (чел./ч);

Для МАЗ:

Зтто-1 = 15*1*1,3=19,5 (чел./ч);

Зтето = 0,3*1*1,3= 0,40 (чел./ч);

Трудоёмкость ТР:

Зттр = Кр4*Зтнтр, (2.10)

где Зттр, Зтнтр- соответственно нормативная трудоёмкость ТР(на 1000 км. пробега) после и до корректирования. Значения Зтнтр, принимаем из таблицы 2.3.

Для КАМАЗ:

Зттр = 8,5*1,2*1,15*1,2*1,3*1,3 = 45,7(чел./ч).

Для МАЗ:

Зттр = 8,5*1,2*1*1,2*1,3*1,3 = 30,6(чел./ч).

Результаты расчётов по корректированию сводим в таблицу 2.6.

Таблица 2.6 - Результаты корректировки пробегов и трудоёмкости

Марка автомобиля

Показатели


То-1 (км.)

То-2 (км.)

Lкр (км.)

тето (ч\ч)

тто-1 (ч\ч)

тто-2 (ч\ч)

ттр (ч\ч)

КАМАЗ

2400

9600

155520

0,7

2,4

0,44

5,7

МАЗ

2400

9600

172800

0,9

9,5

0,4

0,6


.4 Определяем программу работ по ТО и ремонту

С учётом результатов корректирования нормативных данных необходимо определить количество ТО и КР по маркам на один автомобиль за цикл по выражениям:

Количество КР:

nкр = 1. (2.12)

Количество ТО-2:

nто-2 = Lкр/Lто-2- nкр.  (2.13)

Количество ТО-1:

nто-1 = Lкр/Lто-1- nкр- nто-2, (2.14)

Количество ЕТО:

nето= Lкр/Lс.с. (2.15)

Lс.с - среднесуточный пробег автомобиля в км.(для расчётов принимаем для КАМАЗ = 122км, МАЗ - 124км.

Для КАМАЗ :

nто-2 = 300000/12000 - 1 = 21;

nто-1 = 300000/3000 - 21 = 68;

nето= 300000/150 = 1800.

Для МАЗ:

nто-2 = 300000/12000 - 1 = 21;

nто-1 = 300000/3000 - 21 = 68;

nето= 300000/170 = 1588;

Определяем количество ТО и КР на планируемый год по маркам.

Так как пробег автомобилей за год отличается от пробега за цикл необходимо выполнить перерасчёт полученных значений. Перерасчёт производиться при помощи коэффициента от цикла к году, который определяется для всех типов имеющихся автомобилей по выражению:

µг = Lг\Lкр, (2.17)

где µг - коэффициент перехода от цикла к году;

Lг- планируемый годовой пробег автомобилей ( км.). Принимаем 253 дня работы автомобилей на линии тогда µг = Lс.с*253/Lкр.

Для КАМАЗ:

µг = 150*253/300000 = 0,14.

Для МАЗ:

µг = 170*253/300000 = 0,17.

Определяем годовое количество КР и ТО на один списочный автомобиль, он определяется:

кр = nкр* µг,  (2.18)

то-2 = nто-2* µг, (2.19)

то-1 = nто-1* µг, (2.20)

ето = nето* µг, (2.21)

где nгкр , nгто-2 , nгто-1, nгето соответственно годовое количество КР, ТО-1, ТО-2, ЕТО на один автомобиль.

Для КАМАЗ:

кр = 1* 0,14 = 0,14;

то-2 = 21* 0,14 = 2,94;

то-1 = 68*0,14 = 9,52;

ето = 1800*0,14 = 252.

Для МАЗ:

кр = 1* 0,17 = 0,17;

то-2 = 21* 0,17 = 3,57;

то-1 = 68*0,17 = 11,56;

ето = 1588*0,17 = 306.

Определяем годовое количество ТО и КР на парк автомобилей одной марки.

Количество сезонных ТО на один автомобиль за год равняется двум.

Σnгкр = nгкрi, (2.22)

Σnгто-2 = nгто-2i, (2.23)

Σnгто-1 = nгто-1i, (2.24)

Σnгето = nгетоi,  (2.25)

Σnгсто = nгсто*кi, (2.26)

где кi списочное число автомобилей прицепов(полуприцепов) одной марки, шт.

Σnгкр,Σnгто-2,Σnгто-1,Σnгето,Σnгсто -соответственно суммарное годовое количество КР и ТО на парк автомобилей одной марки.

Для КАМАЗ:

Σnгкр = 0,14*11 = 1,5 принимаем 1;

Σnгто-2 = 2,94*11 = 32,7 принимаем 38;

Σnгто-1 = 9,52*11= 104,7 принимаем 105;

Σnгето = 252*11 = 2772;

Σnгсто = 2*11 = 22.

Для МАЗ:

Σnгкр = 0,17*2 = 0,34 принимаем 1;

Σnгто-2 = 3,57*2 = 7,14 принимаем 7;

Σnгто-1 = 11,56*2= 23,12 принимаем 23;

Σnгето = 306*2 = 712;

Σnгсто = 2*2 =4;.Определяем суточную программу работ по ТО.

Суточную программу по каждому виду ТО определяют по выражению:

ncто-i = Σnгто-i/Дргyi.  (2.27)

где ncто-I - суточное количество ТО по каждому виду(ncто-1, ncто-2, Σn) для автомобилей одной марки ;

Σnгто- - годовое количество ТО i-го вида(Σnгто-2, Σnгто-1, Σnгето);

Дргyi - количество рабочих дней в году участка (зоны),выполняющего i-й вид ТО(рекомендуется принимать для зон ТО-1, ТО-2, ЕТО количество рабочих дней в году 253).

Для КАМАЗ:

ncто-2 = 38/253 = 0,1;

ncто-1 = 95/253 = 0,4;

ncето = 2772/253 = 10,9.

Для МАЗ:

ncто-2 = 7/253 = 0,02;

ncто-1 = 23/253 = 0,09;

ncето = 712/253 = 2.8.

Результаты расчёта программы по ТО и ремонту сводим в таблицу 2.7.

Таблица 2.7 - Расчёты производственной программы по ТО и ремонту

Марка автомобиля

Показатели


Число автомобилей в парке

Число воздействий на:



на один автомобиль за цикл(ед.)

на один автомобиль за год(ед.)

Парк автомобилей за год(ед)

Суточная программа работ по ТО(ед в сутки)



КР

ТО-2

ТО-1

ЕТО

КР

ТО-2

ТО-1

ЕТО

СТО

КР

ТО-2

ТО-1

ЕТО

СТО

ТО-2

ТО-1

ЕТО

КАМАЗ

11

1

38

105

2772

0,14

0,1

0,4

10,9

22

11

418

1155

30492

22

1,1

4,4

119,9

МАЗ

2

1

7

23

712

0,17

0,02

0,09

2,8

4

2

14

46

1424

4

0,04

0,18

5,6


Определяем годовую трудоёмкость работ по ТО и ремонту, а так же число рабочих для выполнения ТО и ТР.

Годовая трудоёмкость работ по ТО определяем по выражению:

ΣЗтгто-i = Зтто-i*Σnгто-i, (2.28)

где ΣЗтгто-I годовая трудоёмкость по i-му То для автомобилей одной марки (чел./ч).

Для КАМАЗ:

ΣЗтгто-1 = 5,7*1155 = 6583,5(чел./ч);

ΣЗтгто-2 = 22,4*418 = 9363,2(чел./ч);

ΣЗтгето = 0,44*30492 = 13416,5(чел./ч).

Для МАЗ:

ΣЗтгто-1 = 4,9*46 = 225,4(чел./ч);

ΣЗтгто-2 = 15*14 = 210(чел./ч);

ΣЗтгето = 0,3*1424 = 427,2(чел./ч).

Определяем для автомобилей одной марки трудоёмкость работ по ТР в (ч\ч).

ΣЗттр = Lт*Зттрi/1000, (2.29)

где ΣЗттр - годовая трудоёмкость работ по ТР для автомобилей одной марки (чел./ч).

Для КАМАЗ:

ΣЗттр = 39600*45,7*11/1000 = 19906,9(чел./ч).

Для МАЗ:

ΣЗттр = 44880*30,6*2/1000 = 2746,6(чел./ч).

Определяем число рабочих, необходимое для выполнения работ по ТО и ТР

Mр = (ΣЗтто + ΣЗттр + Зтсо)/Ф, (2.30)

где ΣЗтто,ΣЗттр,Зтсо - соответственно суммарная трудоёмкость (по всему парку ) ТО,ТР и работ по самообслуживанию;

Ф - фонд рабочего времени исполнителя (принимаем равным 1900ч.).

Для КАМАЗ:

Mр = (29363,2 + 19906,9 + 211,2)/1900 ≈ 26(чел.).

Для МАЗ:

Mр = (862,6 + 2746,6 + 223.8)\1900 ≈ 2(чел.).

Результаты расчёта трудоёмкости работ по ТО и ТР сводим в таблицу 2.8.

Таблица 2.8 - Результаты расчёта трудоёмкости

Марка автомобиля

Годовая трудоёмкость работ (чел./ч)

Всего


ЕТО

То-1

То-2

СТО

ТР


КАМАЗ

13416,5

6583,5

9363,2

26,4

19906,9

49296,5

МАЗ

427,2

210

225,4

28

2746,6

3637,2

ИТОГО






52933,7


Вывод: по результатам расчета следует, что общее количество ремонтных работников, занятых на обслуживании и ремонте автомобилей предприятия составило 28 человек. Трудоемкость операций по техническому обслуживанию и ремонту автомобилей КАМАЗ составила 49296,5чел./ч., для автомобилей МАЗ 3637,2 чел./ч. Общая трудоемкость работ по парку составила 52933,7 чел./ч.

3. Конструкторская разработка

Техническое обслуживание автомобилей и тракторов включают в себя большой перечень технологических операций, связанных с осмотром, техническим диагностированием, демонтажем и монтажом отдельных узлов и агрегатов, а так же всевозможных работ по предупреждению и устранению неисправностей. Одним из очень трудоемких процессов ТО является демонтаж колес, необходимый при обслуживании и ремонте тормозных механизмов, а в ряде случаем и при проверки технического состояния рулевого управления. Так работы связанные с монтажом, демонтажем шин, их обслуживанием, ремонтом составляют 3-7% общей трудоемкости ТО и ремонта автомобилей, а в ремонтных мастерских сельскохозяйственных предприятий имеются специальные цеха, обслуживаемые одним или двумя рабочими. Наблюдения параметров технического состояния шин приводит к росту расхода шин до 15%, почти вдвое увеличивается вероятность дорожно-транспортных происшествий.

.1 Анализ существующих конструкций

Для подъема автомобиля над уровнем пола при техническом обслуживании используют стационарные подъемники различных конструкций. Для вывешивания передних и задних мостов при работах на осмотровых канавах широко используют канавные подъемники. Для подъема передних и задних частей автомобиля при работе на напольных постах используют гаражные передвижные домкраты различной грузоподъемности и всевозможные устройства.

Универсальным осмотровым устройством, обеспечивающий одновременный фронт работ снизу, сбоку и сверху, являются осмотровые канавы. Канавами оборудуются тупиковые прямоточные посты и поточные линии.

По ширине канавы подразделяются на узкие и широкие. По способу заезда автомобиля на канаву и съезда с нее - на тупиковые, проездные. По устройству - на межколейные и боковые, с колейными мостами и вывешиванием колес траншейные и изолированные

Недостатком осмотровых канав всех типов являются сложность обеспечения нормальных условий труда для исполнителя (ограничены перемещения, недостаточная естественная вентиляция, слабое естественное освещение автомобиля снизу).

Эстакады представляют собой колейный мост, расположенный выше уровня пола на 0,7-1,4 м/с рамами, имеющими уклон от 20 до 25одля выезда и съезда автомобиля эстакады могут быть тупиковые и прямоточные, стационарные или передвижные. Для одновременного производства работ снизу, сбоку и сверху автомобиля применяются эстакады с неглубокой осмотровой канавой под ними.

Основным недостатком эстакад являются их габаритные размеры.

Наиболее эффективным оборудованием при проведении технического обслуживания автомобилей являются канавные подъемники.

Подъемники классифицируют по способу установки на стационарные и передвижные; по типу механизма на механические и гидравлические; по роду привода на ручные и электрические; по месту установки на напольные и канавные; по конструкции опорной рамы на подъемники с колейной; межколейной и поперечной рамами и с опорными траверсами. Наиболее распространенными являются электромеханические гидравлические подъемники.

На рисунке 3.1 представлен канавный подъемник MGH-ZB.

Рисунок 3.1 - Канавный подъемник MGH-ZB

Канавный подъемник MGH-ZB применяется в канавах с диагностическим оборудованием, где невозможно обеспечить непрерывные направляющие по краям канавы для работы подвесных подъемников.

Преимущества данного подъемника:

) Универсальность.

) Компактное основание (750×1000 мм) обеспечивает широкую область применения подъемников - в смотровых канавах с диагностическим оборудованием, вместе с подкатными подъемниками или вместе с подвесными домкратами.

) Быстрота в применении.

) Подъемник MGH-ZB имеет функцию быстрого подвода штока к точке подхвата. В качестве опции доступен пневмомотор, обеспечивающий быстрый и эффективный подъем груза.

) Эргономичность.

) Высокая маневренность в канаве.

Этот тип подъемников адаптируется к глубине канавы. Высота может быть выставлена пошагово в 1180 / 1380 / 1580 мм.

Легкое передвижение подъемника обеспечивается пружинно подвешенными пластиковыми роликами.

Под нагрузкой 800-1000 кг подъемник садится основанием на пол.

На рисунке 3.2 представлен автомобильный подъемник канавный П114Е-10-1, передвижной, с интегрированной системой поддержки, привод ручной (гидравлический), г/п 10т.

Рисунок 3.2 - Подъемник канавный П114Е-10-1, передвижной

Автомобильный подъемник канавный П114Е-10-1, с интегрированной системой поддержки, передвижной, привод ручной (гидравлический), г/п 10т. Предназначен для вывешивания над смотровой канавой или подъемником передних или задних мостов автомобилей, автобусов, тракторов, строительных и сельскохозяйственных машин. Автомобильный подъемник устанавливается на канаву или платформенный подъемник на внутренние поверхности швеллеров; способ передвижения - ручной вдоль осмотровой канавы; тележка с гидроцилиндром и насосом имеет возможность перемещения поперек канавы; высокая универсальность обеспечивается сменными подхватами для различных видов работ, высокая степень безопасности обеспечивается применением одновременно механического и гидравлического страховочных устройств.

Технические характеристики:

) Интегрированная система поддержки.

) Грузоподъемность, 10т.

) Диаметр поршневого штока, 60мм.

) Рабочее давление, 244бар.

) Высота подъема, 750 мм.

) Скорость опускания, 150 мм/сек.

) Управление: ручной, гидравлический привод.

На рисунке 3.3 представлен автомобильный подъемник ПНК-1 канавный, навесной, ручное передвижение, привод гидравлический, ручной, г/п 3т.

Рисунок 3.3 - Канавный автомобильный подъемник ПНК-1

Автомобильный подъемник ПНК-1 канавный, навесной, ручное передвижение, привод гидравлический ручной с регулируемым усилием на рукоятке насоса, г/п 3т., канава 930мм, предназначен для ремонта и техобслуживания легковых автомобилей. Подъемник состоит из рамы, корпуса, фиксатора, гидроцилиндра, системы рычагов, насоса ручного гидравлического и выдвижных опор. Перемещение подъемников вручную, усилие перемещения не превышает 15 кг. Подъем и опускание корпуса с подхватами осуществляется за счет выдвижения штока гидропривода и изменения формы системы рычагов подъемника. У подъемника есть регулируемые упоры, с помощью которых можно поднимать автомобили с разной конфигурацией днища или рамы, есть многоуровневая система безопасности. Возможность установить подъемник на обычную осмотровую яму с минимальными строительно-монтажными работами. По отдельному заказу подъемник ПНК-1 может быть изготовлен для установки на канаву шириной от 930 до 1100 мм (с обязательным приложением к заказу поперечного разреза канавы). Конструкция основания подъемника ПНК-1-01 предусматривает возможность регулировки в целях установки на канаве шириной от 930 до 1200 мм.

Техническая характеристика ПНК-1:

) Тип канавный, передвижной.

) Привод гидравлический.

) Грузоподъемность, т 3.

) Наибольший ход рабочего механизма, мм 390.

) Высота подъема упоров над уровнем пола, миним. мм 100.

) Габаритные размеры канавы (ширина min.х глубина), мм 930-1200.

) Габаритные размеры подъемника (длина х ширина х высота), мм 1000х555х505.

) Габаритные размеры (длина х ширина х высота), мм 1320х700х620.

) Масса нетто, кг 140.

) Масса брутто, кг 180.

) Расстояние между подхватывающими элементами (по центру) min/max, мм 150/500.

На рисунке 3.4 представлен Канавные подъёмники TKS с перемещением по дну канавы, гидропневматические с воздушным мотором LM. Производитель: SOMMERER (Германия).

Рисунок 3.4 - Канавный подъёмник TKS с перемещением

Принцип действия серии "TKS" - подъем груза пневматический, далее только ручной привод до оптимальной высоты и опускание груза под нагрузкой. Высота подъёма штока 1200мм. Ножное управление для быстрого хода и хода под нагрузкой с пневмомотором. Идеальное решение для тех канав, где конструктивно края канавы не дают возможности установить обычный канавный подъёмник. Подъёмник может двигаться по смотровой канаве в поперечном и продольном направлении. Несколько вариантов исполнения шасси: на поворотных колёса 360гр, по рельсам. Подъёмник может двигаться по дну смотровой канавы, свободно во всех направлениях с нагрузкой до 1000 кг.

На рисунке 3.5 представлен канавный подъёмник HKE с электрогидравлической системой управления. Производитель: SOMMERER (Германия).

Рисунок 3.5 - Канавный подъёмник HKE

Принцип действия серии "HKE"- основан на базе электрогидравлического привода, ускоренный и точный подъём груза до оптимальной высоты, быстрое опускание груза. Профессиональный уровень использования, разработанный для экстремальных условий эксплуатации и высоким уровнем нагрузки. Подъёмник может двигаться по смотровой канаве в поперечном и продольном направлении. Высокая надёжность и низкий уровень шума. Ролики рамы на игольчатых подшипниках с повышенным диаметром. Рекомендован для помещений где нет возможности подачи сжатого воздуха.

Вывод по разделу: Из приведенных выше моделей канавных подъемников для технического обслуживания автомобильного транспорта следует, что промышленность выпускает достаточное количество современных подъемных механизмов. Однако, недостатком выпускаемых подъемных механизмов, выпускаемых промышленностью являются следующие факторы:

1-  статическое исполнение некоторых подъемных механизмов;

2-      высокая стоимость;

-        недостаточная высота подъема обслуживаемой машины;

- недостаточная грузоподъемность и т.д.

3.2 Устройство для вывешивания колес автомобилей

Устройство предназначено для вывешивания колес автомобилей при соответствующих заездах на техническое обслуживание, при демонтаже колес для шиномонтажных работ, а так же при техническом обслуживании тормозных механизмов и частей рулевого привода.

На рисунке 3.6 представлен вид общий разрабатываемой конструкции.

Рисунок 3.6 - Устройство для вывешивания колес

-        трап для заезда; 2 - трап поворотный; 3 - направляющая; 4 - стойка; 5 - пневмоцилиндр; 6 - рама.

.2.1 Описание конструкции

Автомобиль своим ходом наезжает по продольным площадкам рамы на клинья, находящиеся на трапе по оси движения колес. При дальнейшем движении его колеса скатываются с клиньев, при этом мост автомобиля опускается на стойки, в результате чего происходит вывешивание колес.

Далее клинья по направляющим сдвигают пространство между колесами автомобиля, что обеспечивает удобство для снятия колес и проведения необходимых операций по техническому обслуживанию. Для снятия моста со стоек в пневмоподъемник падают воздух. При этом настил трапа воздействует на колеса автомобиля и его мост приподнимается над стойками. После этого автомобиль своим ходом съезжает с площадок трапа и площадок рамы устройства.

Из пневмобалонов стравливается воздух при помощи трехходового крана, клинья устанавливаются опять в исходное положение по оси движения колес автомобиля.

3.3 Расчет деталей на прочность

Устройство для вывешивания колес автомобилей предназначено для проведения технического обслуживания подвижного состава, а так же при демонтаже колес для шиномонтажных работ, а так же при ремонте и техническом обслуживании тормозных механизмов и некоторых частей рулевого привода.

В таблице 3.1 представлена техническая характеристика разрабатываемой конструкции.

Таблица 3.1 - Техническая характеристика

Назначение

Для вывешивания автомобиля

Тип

напольный нестационарный с превмоподъемником.

Грузоподъемность

40КН

Максимальное давление воздуха

0,8 Мпа

Рабочее давление воздуха

0,6Мпа

Расход воздуха на один полный подъем

0,045м3

Полный ход подъемника

0,3м

Габаритные размеры

3000*2600*640


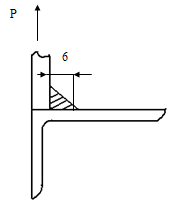
.3.1 Расчет стойки

При использовании устройства стойка рамы воспринимает всю основную нагрузку при вывешивание моста. При этом сила действующая на стойку будет носить динамический характер (рис. 3.7)

Рисунок 3.7 - Схема нагружения стойки

1) Для данной балки находим критическую силу нагружения. [1.3]

(3.1)

где Е - модуль упругости материала, Па

У - минимальный момент инерции поперечного сечения, м4

е - длина стойки, м


2)      Находим действующий коэффициент динамичности

(3.2)

где То - энергия удара , балки автомобиля об стойку

Ис - потенциальная энергия при статистической нагрузке, которую можно найти по формуле:

(3.3)

где Q -действующая статическая сила, Н


3) Определяем действующую силу и сравниваем ее с критической

РдСД, (3.4)

где РС - статистическая сила


Расчет показывает, что данная стойка имеет более чем тройной (1420/440) запас прочности на устойчивость при опускании балке автомобиля под действием силы равной 40Кн с высоты 5см

.3.2 Расчет сварных соединений

Наиболее ответственным из сварных соединений являются соединения кронштейнов трапа с рамой (рис 3.8.)

Рисунок 3.8 - Расчетная схема сварного соединения

1)  Для проверочного расчета данного соединения сначала находим значение силы Р которое можно найти составив уравнение моментов сил, действующих на трапе (рис. 3.9)

Рисунок 3.9 - Схема действия сил


2) Находим напряжение сдвига  и сравниваем с допустимыми значениями, которые равны 0,66р=0,6*2*108=1,2*107 Па

(3.5)

где R -катет шва

 -длинна шва

n -количество швов


Расчеты показывают, что при данных нагрузках швы имеют более чем тройной запас прочности.

.4 Вывод

В данной главе представлена конструкторская разработка дипломного проекта. Предлагается разработать устройство для вывешивания автомобиля при проведении технического обслуживания.

Произведен анализ существующих конструкций подъемников, выпускаемых промышленностью. Основным недостатком которых, является их высокая стоимость.

Произведены прочностные расчеты наиболее нагруженных деталей конструкции. Из произведенных расчетов следует, что выбранный материал и размеры деталей устройства соответствуют условиям прочности.

4. Безопасность жизнедеятельности

Положение с охраной труда в РФ следует квалифицировать как напряженное. Если опираться на данные статистики, то ситуация по сути двойственная. Анализ сведений об абсолютном количестве погибших на производстве ООО "Генподряд" в результате несчастных случаев свидетельствует об устойчивой тенденции к их уменьшению. Если в 2001 году было более шести тысяч погибших на производстве, то в 2013 году, по данным федеральной инспекции труда, а мы учитываем абсолютно все случаи во всех отраслях, на всех видах хозяйствующих субъектов - уже 3200. Уменьшение почти в два раза, позволяющее говорить об устойчивости тенденции. К началу 2013 года относительное количество работников, занятых в условиях, не соответствующих гигиеническим требованиям в целом по РФ, составило чуть более 30 процентов. В прошлом 2013 году было 29, в 2012 году - 27. Это тенденция, которая может говорить о некой напряженности. Практика контрольно-надзорной деятельности свидетельствует, что в ряде случаев в официальную статистику попадают работники, которые получают компенсации за работу во вредных условиях труда, а в действительности их условия труда являются оптимальными или допустимыми. Однако им все равно предоставляются компенсации, так как работодатели опираются на списки профессий, утвержденные в далеком 1974 году. А результаты аттестации на этих рабочих местах свидетельствуют о нормальных условиях труда. Но при этом работодатель, боясь социального напряжения, оставляет за ними компенсации или направляет сведения о них в статистические отчеты. Сегодня органы власти проводят серьезные мероприятия, чтобы исключить такой подход. Если условия труда действительно неудовлетворительные и подтверждены результатами проведенной аттестации рабочих мест, работники должны получать установленные законодательством компенсации.

4.1 Охрана труда

.1.1 Анализ состояния охраны труда на предприятии

Организация службы охраны труда на предприятии ООО "Генподряд" находится на удовлетворительном уровне.

На предприятии действует система управления охраной труда, которая включает в себя:

.        Приказ №1 по ООО "Генподряд", в котором ответственным за охрану труда назначен инженер по технике безопасности.

Однако аттестация рабочих мест по условиям труда не проводится. Сертификат по охране труда ООО "Генподряд" не имеет. На предприятии имеются стенды с наглядной агитацией по тематике охраны труда. Охрана труда организована согласно Трудовому Кодексу РФ от 01.02.02, статья 217. Служба охраны труда в организации. У инженера по технике безопасности имеются журналы по проведению инструктажей.

Также согласно Постановлению Минтруда России №28 от 12.05.03 г. "Об утверждении межотраслевых правил по охране труда на автомобильном транспорте" на предприятии существуют сборники Инструкций по охране труда, также имеются сборники инструкций, по которым проводятся инструктажи согласно ГОСТ 12.0.004-90:

вводный;

первичный, на рабочем месте;

повторный;

внеплановый;

целевой.

На предприятии имеется нормативно-техническая документация по эксплуатации транспорта и оборудования. Имеется статистическая отчетность по охране труда.

Расследования несчастных случаев проводится согласно Положения правительства РФ от 24 октября 2002 года №73, путем создания комиссии на предприятии. На предприятии имеются журналы :

1)  Журнал инструктажа по технике безопасности на рабочем месте.

2)      Журнал первичного инструктаж по технике безопасности.

Повторные инструктажи по технике безопасности проводятся инженерным составом предприятия каждые шесть месяцев.

Анализ производственного травматизма на предприятии позволяет сказать, что с каждым годом случаи травматизма снижаются. Это связано прежде всего с тем, что на участке технического обслуживания и ремонта применяются более технологичное оборудование, используются современные средства индивидуальной защиты и т.д.

Показатели производственного травматизма представлены в табл. 4.1.

Таблица 4.1 - Уровень производственного травматизма ООО "Генподряд"

Показатели

Годы



2011

2012

2013

1

Среднесписочное число работников на предприятии, Р

100

96

112

2

Число людей травмированных за год, Т

2

1

1

3

Суммарное число дней по бюллетеню за период, Дн

18

5

7

4

Число смертельных травм, Тс

0

0

0

5

Коэффициент частоты травматизма, Кч = Т / Р х 1000

20,0

10,4

8,9

6

Коэффициент тяжести травматизма, Кm = Т1 / Дн

0,1

0,01

0,008

7

Коэффициент потерь рабочего времени, Кп = Дн / Р х 1000

180,0

52,0

62,5

8

Коэффициент летальности, Кл =10000 / Тс

0

0

0

9

Количество проф. заболеваний, П

0

0

0

10

Затраты на охрану труда, Зот р.

Нет данных

Нет данных

Нет данных

11

Сумма отчислений на возмещение по проф. заболеваниям и травмам в соц. страх, р.

Нет данных

Нет данных

Нет данных

Вывод по разделу:

За последние три года на предприятии не произошло ни одного смертельного случая. Количество пострадавших держится на одном уровне, коэффициент частоты травматизма уменьшился. В последние годы, так же снижается тяжесть травматизма, следовательно состояние дел по охране труда в ООО "Генподряд" можно признать удовлетворительным.

Предложения по улучшению охраны труда:

)        организовать кабинет по охране труда;

)        приобрести сертификаты на производственное оборудование для выполнения работ, представляющих наибольшую сложность и опасность.

.1.2 Анализ противопожарного состояния

На предприятии ООО "Генподряд" создана внештатная пожарная дружина, в состав которой входят:

главный инженер;

главный механик;

мастера участков.

В задачи пожарной дружины входят обязанности по оказанию помощи пожарным в случае возгорания объектов на территории предприятия, также решаются задачи по устранению нарушений противопожарной обстановки.

Территория ремонтных боксов оснащены пожарными щитами согласно ГОСТ 12.1.004-91 ССБТ. Пожарная безопасность. Общие требования. ГОСТ 12.4.009-83. ВППБ 11-01-96 Правила пожарной безопасности для предприятий автотранспорта.

У месторасположения пожарных гидрантов установлены указатели с буквенными индексами "ПГ". Расположение и количество эвакуационных выходов из здания выполнено согласно п.2.22 СНиП 2.01.02-82.

Вывод по разделу:

Считаю, что состояние дел по пожарной безопасности на предприятии ООО "Генподряд" находится в удовлетворительном состоянии.

Предложения по улучшению противопожарного состояния:

) увеличить количество огнетушителей в ремонтной зоне, т.к. при проведении технологических работ с подвижным составом ООО "Генподряд" в зоне технического обслуживания возникает угроза возгорания из - за сложных технологических операций.

.1.3 Предложения по улучшению организации службы охраны труда

Для того, чтобы улучшить положение дел по охране труда на предприятии необходимо разработать план распределения функциональных обязанностей между руководителями предприятия и его работниками.

Этот план может иметь следующие разделы:

1.  Организация контроля условий охраны труда на рабочих местах;

2.      Использование защитных устройств и приспособлений при ремонте автомобилей;

.        Контроль за соблюдением техники безопасности.

Выполнение условий этого плана позволит значительно поднять уровень соблюдения техники безопасности на предприятии, а также снизить уровень производственного травматизма.

.2 Проектная часть

.2.1 Безопасность технологического процесса

Аттестация рабочих мест существующего производства (визуально).

Опасными и вредными факторами на производстве являются:

1)      наличие на участках технического обслуживания горючих жидкостей;

2)      наличие запыленности;

Наличие загазованности предельно допустимые концентрации вредных веществ согласно ГОСТ 12.1.005-88 представлены в таб. 4.2.

Сведение к минимуму вредных веществ в воздухе рабочей зоны, предусмотренному нормативным документом ГН 2.2.5.1313-03 Гигиенические нормативы. Предельно допустимые концентрации (ПДК) вредных веществ в воздухе рабочей зоны.

Расчет естественного освещения.

Для анализа состояния безопасности технологического процесса при проведении технического обслуживания и ремонта подвижного состава предприятия необходимо произвести следующие расчеты.

Действительное значение коэффициента естественного освещения находим из выражения:

2(4.1)

где SF0 - суммарная площадь окон, м2.

SF0 = 4 × Н0 × В0 = 3 × 3,0 × 1,8 = 21,6 м2,

Н0 - ширина одного окна, м;

В0 - высота окна, м;

t0 - общий коэффициент светопропускания, t0 = 0,5;

h0 - световая характеристика окна, h0 = 15,0;

Sп - площадь пола помещения, м2;

r1 - коэффициент, r1 = 3.

ед = 100 × 21,6 × 0,5 × 3 / (15 × 310) = 1620 / 4650 = 0,69.

Полученные данные позволяют сказать, что коэффициент естественного освещения участка соответствует санитарным нормам согласно СНиП 23.05-95 (ен = 0,5) [2] "Естественное и искусственное освещение в зависимости от характера зрительной работы".

Расчет искусственного освещения.

Как правило, для освещения производственных помещений на автопредприятиях используется комбинированный тип освещения (общее плюс местное освещение). Для местного освещения используются лампы накаливания НБ-220-60, для общего - газоразрядные лампы (люминесцентные, ртутные).

Выбор светильника зависит от характера выполняемых в помещении работ, возможности запыления воздушной среды, требования пожаро-взрывобезопасности, оптимальности направления светового потока, влажности воздуха и т.д.

В автопредприятии светильники общего освещения установлены на высоте 3,8 метра от пола, открытые лампы не применяются. Переносные светильники имеют напряжение в сети не выше 42В и защиту от механических повреждений.

Определяем число ламп и высоту подвеса светильника -  из условия равномерности освещения, используя отношение:

(4.2)

где  расстояние между лампами в ряду, м;

высота подвеса светильников при использовании ламп мощностью до 200 Вт принимается равной 2,5-4 м ().

 ,

 .

Число ламп определяем по формуле:

(4.3)

где количество рядов ламп ();

 длина помещения, м ().


Определяем световой поток одной лампы:

(4.4)

где норма освещенности принимается по таблицы 1 [ ], лк ();

площадь пола, м2 ();

коэффициент запаса ();

число ламп;

коэффициент использования светового потока ().

.

По полученному значению из выражения (4.4) подбираем по таблице 5 [4] мощность ламп, которые нужно установить в светильники, чтобы обеспечить в помещении освещенность, соответствующую санитарным нормам.

Принимаем люминесцентные лампы ЛБ-80, мощностью 80 Вт и световым потоком 5220 лм, в количестве 48 штук.

Расчёт одиночного стержневого молниеотвода.

Для исключения случаев поражения электрическим током работников ремонтной зоны следует предусмотреть зону защиты стержневого молниеотвода.

Зона защиты стержневого молниеотвода на рис.4.1. При известных значениях защищаемого объекта и  высота стержневого молниеотвода определяется. При защите зоной Б. [4]

,(4.5)

.

Рисунок 4.1 - Схема зон защиты одностержневого молниеотвода:

- молниеприёмник; 2 - столб; 3 - заземлитесь; 4 - проводник.

Однако защитная аппаратура ещё не в полной мере отвечает требованиям электробезопасности. Расположение и количество эвакуационных выходов из этажей зданий в целом на предприятии выполнено согласно п. 2.22 СНиП 2.01.02 - 82.

Расчет заземления.

Каждую электроустановку следует присоединять к заземляющей магистрали с целью уменьшения вероятности поражением эл. током.

Заземляющее устройство состоит из заземлителя и проводника, соединяющего металлические части электроустановки с заземлением. В качестве искусственных заземлителей применяют заглубляемые в землю стальные трубы, уголки, штыри или полосы.

Так как сопротивление тела человека значительно больше сопротивления заземляющего устройства, то сила тока, протекающая через человека, оказывается намного меньшей, чем сила тока, стекающая в землю через заземлитель. Однако полностью опасность поражения током не исключаем. Еще один недостаток защитного заземления - значительное увеличение опасности поражения током при обрыве в цепи заземляющего устройства или ослабления крепления заземляющего проводника.

Каждую электроустановку следует присоединять к заземляющей магистрали отдельным проводником. Последовательное соединение заземляемых частей не допускается.

Надежность защитного заземления зависит от величины сопротивления заземляющего устройства. Сопротивление растеканию тока при одиночных заземлителях зависит от конфигурации заземлителя, расположения его в земле и удельного сопротивления грунта.

Сопротивление одиночного трубчатого заземлителя, верхний конец которого находится на уровне поверхности земли, находим по формуле:

 (4.6)

где  - удельное сопротивление почвы (грунта), Омм;

  длина заземляющей трубы, м;

- диаметр заземляющей трубы, м.

Принимаем:  (для суглинистых почв), , .

 Ом.

Определим необходимое количество одиночных трубчатых заземлителей в контуре по формуле:

,(4.7)

где Rк - общее сопротивление растеканию тока с контура (по установленным нормам Rк должно быть не более 10 Ом);

- коэффициент сезонности, учитывающий климатические особенности района, где устанавливается заземление (для средней полосы России

- коэффициент экранирования (принимаем равным 0,9).


Для заземления необходимо 9 одиночных трубчатых заземлителей расположенных по контуру рис 4.2.

Рисунок 4.2 - Схема расположения заземлителей

.3 Безопасность конструкторской разработки

В данном дипломном проекте предлагается разработать установку для вывешивания автомобиля при проведении технического обслуживания. На рисунке 4.3 представлен вид общий разрабатываемой конструкции с обозначенными опасными зонами.

Рисунок 4.3 - Опасные зоны установки

- опасная зона заезда автомобиля; 2 - опасная зона вывешивания оси автомобиля; 3 - опасная зона пневмоцилиндра.

Предлагаемая конструкция устройства для вывешивания колес автомобилей проста и удобна в обращении и при соблюдении необходимых мер предосторожности позволяет производить все возможные технологические операции без нанесения какого либо ущерба обслуживающему персоналу. Изготовление и монтаж устройства необходимо производить в соответствии с ГОСТ 12.2.2003-74 и ГОСТ 12.2.042-79. после завершения монтажных работ установку необходимо зарегистрировать в органах Государственного надзора, к общим мерам безопасности при обслуживании данного устройства относятся:

1.      Перед постановкой на устройство, автомобиль необходимо очистить от грязи и помыть.

2.      К обслуживанию устройства допускать людей прошедших медицинское освидетельствование и необходимое обучение.

.        При обслуживании необходимо руководствоваться правилами при обслуживании пневмоустановок.

Безопасность жесткости конструкции подтверждены всеми необходимыми инженерными расчетами, приведенными в разделе.

4.4 Экологическая безопасность проекта

При работе с установкой, следует исключить отрицательное воздействие на окружающую среду и человека. На участке текущего ремонта подвижного состава исключены вредные выбросы в атмосферу выхлопных газов, а также смывание моющих жидкостей в окружающую среду. На ремонтной базе предприятия предусмотрены две отдельные системы внутренней канализации: хозяйственно-бытовая и производственная. При выполнении технологических операций предприятие выделяет в окружающую среду следующие виды отходов: химические, физические, биологические. На ремонтной базе предприятия существует разрешение на выброс загрязняющих веществ в атмосферу согласно ГОСТ 12.1.005-88, которые сведены в табл. 4.2.

Таблица 4.2 - Предельно допустимые концентрации вредных веществ согласно ГОСТ 12.1.005-88

Наименование вещества

Выбросы, мг/л

ПДК, мг/л

Бензол

0,003

0,5

Гексохлорбензол

0,012

0,05

Формальдегид

0,030

0,5

Этиленгликоль

0,020

0,5

Скипидар

0,008

0,2

Дихлорэтан

0,013

0,2

Нефть

0,01

0,1-0,3

Нафтеновые кислоты

0,002

0,3

Керосин

0,002

0,3

Свободный хлор

0

0


В целях охраны окружающей среды ГОСТ Р51206-98 установлены предельно допустимые концентрации токсичных веществ в воздухе

Таблица 4.3 - Предельно допустимая концентрация токсичных веществ

Наименование

ПДК, мг/м3


Разовая

Суточная

Бензин Окись углерода Окись азота Окись серы Сажа Свинец Пыль Сероводород

1 6 0,3 0,5 0,15 - 0,5 0,006

- 1 0,1 0,15 0,05 0,0007 - -


В настоящее время разработаны пути снижения токсичности отработанных газов: это применение сжиженных газов в качестве топлива двигателей внутреннего сгорания, применение водорода в качестве дополнительного топлива. Разработка конструктивных усовершенствований двигателей, разработка нейтрализаторов, создание малотоксичных двигателей. Все это приведет к оздоровлению экологической обстановки.

4.5 Устойчивость проектируемого объекта (производства) в чрезвычайных ситуациях региона

В Новосибирской области в данной природной климатической зоне крайне редко возникают такие поражающие факторы как землетрясение и наводнение. В зимний период возможно кратковременное снижение температуры окружающего воздуха до минус 40 градусов, а также возможны порывы ветра до 30-50 м/с в любое время года.

Наибольшую опасность для деятельности ООО "Генподряд" представляют пожары, мороз, бураны.

Поэтому на предприятии предусмотрены основные противопожарные мероприятия:

Помещения, транспортные средства и различные устройства, не оборудованные защитными и противопожарными средствами и приспособлениями, к эксплуатации не допускаются.

Электропроводку используемых помещений и техники содержат в исправном, надежно закрепленном и изолированном состоянии.

К работе допускаются люди, прошедшие инструктаж, которые расписались в журнале по технике безопасности.

Проведение газосварочных работ, пользование открытым огнем вблизи горючих и легковоспламеняемых предметов категорически запрещается.

С получением информации из управления по делам ГО и ЧС района или других источников об угрозе возникновения чрезвычайной ситуации, немедленно оповещается директор предприятия и начальник штаба ГО.

Начальник штаба по громкоговорящей связи оповещает весь руководящий и командно - начальствующий состав предприятия о немедленном сборе в кабинете директора.

Директор ООО "Генподряд" доводит руководящему и командно - начальствующему составу информацию об угрозе возникновения чрезвычайной ситуации (время свершения и характер происшествия, масштабы, прогноз развития событий на ближайшее время).

Штаб проводит уточнение "Плана действий по предупреждению и ликвидации ЧС", отрабатывает предложения на принятие решения и проведение мероприятий, направленных на предотвращение и снижение последствий ЧС.

Приводится в готовность личный состав, формированный и необходимый автотранспорт для выполнения эвакуационных мероприятий.

Производится информирование рабочих и служащих о происшествии, доводится порядок действий и правила поведения при данной чрезвычайной ситуации.

При необходимости производится подготовка к выдаче и выдача средств индивидуальной защиты рабочим и служащим предприятия.

Выполняются профилактические противопожарные и другие мероприятия для безаварийной работы предприятия.

Приводятся в готовность силы и средства, предназначенные для ликвидации ЧС, уточняются планы их действий и при необходимости они выдвигаются в район предполагаемых работ.

О проделанной работе докладывается в вышестоящие организации и управления (согласно табелю срочных донесений).

Вывод: В данном дипломном проекте нами предлагаются следующие мероприятия по улучшению экологической обстановки на ремонтной базе предприятия.

.Укомплектовать шлифовальные и обдирочные станки пылеуловителями.

.Оснастить посты по ТО и ремонту автомобилей вытяжными и фильтрующими элементами.

. Ужесточить контроль за соблюдением техники безопасности в ремонтной зоне.

5. Экономическая эффективность проекта

В данном дипломном проекте для нужд ООО "Генподряд" предлагается разработать устройство для вывешивания колес автомобилей.

Изготовление устройства производится в условиях предприятия.

Для изготовления конструкторской разработки необходимы покупные агрегаты, узлы и изделия, а также материалы. Затраты на изготовления можно определить по формуле:

Ск = Сп.имобщ + Оснопрох (5.1)

Ск = 5388,8 +4133,6+4578,2+1606,9+4712,2+1570,7=21990,4р.

где Ск - стоимость конструкторской разработки, р.;

РОПР - общепроизводственные расходы, р.;

РОХ - общехозяйственные расходы, р.

Общепроизводственные расходы определяются по формуле:

Ропр = Копр (Сп.и+См+Зобщ+Осн),р(5.2)

Ропр = 0,3* (5388,8+4133,6+4578,2+1606,9)=4712,2р

где КОПР - 0,3…0,8 коэффициент общепроизводственных расходов

Спи - стоимость покупных изделий, узлов агрегатов, р.;

См - стоимость используемых материалов, р.;

Зобщ - заработная плата рабочих, занятых на изготовлении разрабатываемой конструкции, р.;

Осн - отчисления на социальные нужды.

Общехозяйственные расходы находят по формуле:

Рох = Кох * (Сп.и.+Смобщсн),р.(5.3)

Рох = 0,1 * (5388,8+4133,6+4578,2+1606,9)=1570,7р.

где КОХ - 0,1…0,5 коэффициент общехозяйственных расходов,

Отчисления на социальные нужды в виде отчислений в страховые внебюджетные фонды КОСФ и отчислений по страхованию от несчастных случаев (травматизму) КТР.

Осн=(Косфтр)/100*Зобщ, р.(5.4)

Осн=(34+1,1)/100*4578,2=1606,9 р.

Для изготовления конструкции применяются следующие материалы для изготовления деталей (см. табл. 5.1). Источник: www.skladbest.ru, nsk.pulscen.ru

Таблица 5.1 - Количество и стоимость покупных агрегатов (узлов)

№ поз

Наименование установки

Марка

Кол-во

Стоимость одной ед., р.

Общая стоимость, р.

Примечание

3

Пневмоцилиндр

40М2L050А001

2

2150,0

4300,0


10

Электроды сварочные Э-42

ГОСТ10051- 75

10

104,0

1040,0


5

Болт

М8х16 ГОСТ 7796-70

4

8,5

34,0


6

Гайка

М8 ГОСТ 5916-70

4

3,2

12,8


7

Шайба

8 ГОСТ 10450-68

4

0,5

2,0



Итого

Сп



5388,8

кг

11,0

63,5

698,5

09/СБ

Поперечина Швеллер

кг

14,0

63,5

889,0

02/СБ

Вставка Швеллер

кг

16,0

63,5

1016,0

03/СБ

Раскос Швеллер

кг

6,0

63,5

381,0

02/СБ

Швеллер продольный Швеллер

кг

13,0

63,5

825,5

12/СБ

Пята Труба

кг.

1,0

56,4

56,4

10/СБ

Косынка Полоса

кг.

1,5

46,9

70,4


Всего:

См



4133,6

 

Трудоёмкость работ по изготовлению конструкции, а также стоимость проведения работ представлены в табл. 5.3.

Расчет трудоемкости работ по изготовлению конструкции производится по следующим формулам:

Токарные работы:

Тновдоп+(Тпз/nшт)+Ттехорготдл.н, ч.(5.5)

Тн=35,0+45,0+15+(21/4)+15+20+10+10=2,58 ч.

где То - основное время на станочные работы, мин;

Тв - основное время для проведения токарных работ, мин;

Тдоп - вспомогательное время на проведение токарных работ, мин;

Тпз - подготовительно-заключительное время на проведение токарных работ, мин;

nшт - количество деталей обрабатываемых одновременно;

Ттех - время на техническое обслуживание, мин;

Торг - время на организацию труда, на рабочем месте, мин;

Тотд - время на отдых, мин;

Тл.н - время на личные нужды, мин;

Слесарные работы:

При выполнении слесарных работ очень трудно разграничить основное и вспомогательное время, поэтому сразу определяют оперативное время на разметку, рубку и т.д. Сумму времени на обслуживание и отдых принимают равной 8%,

Тпр= Топ(1+Ко/100),ч.(5.6)

Тпр= 98,0(1+15/100)=1,89,ч.

где Топ - оперативное время на выполнение слесарных работ

Ко - коэффициент, учитывающий процентное отношение к оперативному времени, подготовительно-заключительному времени и организационно технологического рабочего места, время на отдых и личные нужды .

Величину Тпз находят по нормативным таблицам в зависимости от сложности работ.

Сверлильные работы:

Норму времени на выполнение сверлильных работ определяют по формуле

Тн = (Товдоппз)/П,ч.(5.7)


где То - основное время, мин;

Тв - вспомогательное время, мин;

Тдоп1 - дополнительное время, мин;

Тпз - изготовительно-заключительное время, мин;

П - количество деталей в партии, шт;

Сварочные работы:

Норму времени на проведение сварочных работ определяют по формуле:

Тср = То2в2,ч(5.8)

где То2 - основное время при сварочных работах, мин;

Тв2 - вспомогательное время, мин;

То2 = (60*G*А*m)/(l*a)(5.9)

где G - масса наплавляемого материала, г;

А - поправочный коэффициент на длину шва;

m - поправочный коэффициент на нахождение сварного шва в пространстве;

I - свариваемый ток;

α - коэффициент наплавки;

Массу наплавляемого материала, G, определяем по формуле

G=F*a1*y,гр (5.10)

где F - площадь поперечного сечения шва, см2;

α1 - суммарная длина швов сварки, см;

γ - плотность электрода, г/см3


Вспомогательное время на одну деталь определяют по формуле

Тв2 = Тв1в1, мин. (5.11)

где Тв1 - время, связанное со свариваемым швом, мин;

Тв2 -время, затрачиваемое на свариваемое изделие, мин;


Общее время определяют по формуле

Тв2в2*i, мин (5.12)

где i - число привариваемых деталей.


Шлифовальные работы:

Т=То+Тв, ч  (5.13)

где То - основное время при шлифовальных работах, мин;

Тв - вспомогательное время, мин;


Данные для таблицы были взяты из [19].

Таблица 5.4 - Расчёт стоимости работ по изготовлению конструкции

Наименование работ

Трудоёмкость, Т, чел.*ч

Разряд работ

Часовая тарифная ставка , р.

Стоимость работ Зт, р

Слесарно-сборочные

1,89

5

78,2

147,8

Токарные

2,58

5

64,2

165.6

Сверлильные

0,3

5

59,2

17.8

Сварочные

21,2

5

74,1

1570,9

Шлифовальные работы

2,25

5

59,1

132,97

Итого:

2035,0

 

Основную тарифную заработную плату Зт определяют по формуле:

Зт=Т*Сч (5.14)

где Т - средняя трудоемкость отдельных видов работ чел.-ч.;

Сч - часовая тарифная ставка, р/ч

Общую заработную плату с учетом районного коэффициента определяют по формуле:

Зобщ = (Зтдн)*(1+(Кр/100)) (5.15)

Зобщ = (2035,0+1017,5+610)*(1+(25/100)) = 4578,2р.

где ЗТ - основная тарифная заработная плата;

Зд - компенсационные доплаты;

Зн - стимулирующие выплаты (надбавки);

Кр - районный коэффициент Кр= 25%.

Компенсационные доплаты могут достигать от 30 до 80% от 3Т, принимаем 50%.

Зд=(Кдт)/100 (5.16) Зд=(50*2035,0)/100= 1017,5р.

Стимулирующие выплаты-надбавки не должны превышать 60% от ЗТ - за высокие достижения в труде устанавливаются в размере 30% от ЗТ.

Зн = (Кдт)/100 (5.17)

Зн = (30*2035,0)/100 =610,0р.

Тогда общая заработная плата с учетом районного коэффициента будет равна: Отчисления на социальные нужды или во внебюджетные фонды определяют по формуле:

Осн=(Косфтр)/100*Зобщ (5.18)

Осн=(34+1,1)/100*4578,2= 1606,9 р.

где КОСФ - отчисления в страховые внебюджетные фонды:

- при обычной системе налогообложения 34%;

- при специальном режиме налогообложения 27,1%;

КТР - для предприятий автомобильного транспорта составляет 1,1%. Общепроизводственные расходы определяются в пределах (30-80)%. Общехозяйственные расходы  составляют (10-50)%. Итого стоимость конструкторской разработки рассчитываем по формуле 5.1.

Таблица 5.4 - Стоимость конструкторской разработки

Наименование затрат

Обозначение

Стоимость, р.

Стоимость покупных деталей

Сп

5388,8

Стоимость материалов

См

4133,6

Заработная плата рабочим

Зобщ

4578,2

Отчисления на социальные нужды

Осн

1606,9

Общепроизводственные расходы

Роп

4712,2

Общехозяйственные расходы

Рох

1570,7

Итого:

Ск

21990,4

 

Вывод: стоимость проектируемого мною устройства - 21990,4р.

Если сравнивать с аналогичными конструкциями, выпускаемые промышленностью, стоимость которых составляет от 70000 до 350000 рублей (Глава 3) с разработанным и изготовленным устройством в условиях предприятии, то экономический эффект составит:


Э=(К1-СК)*Ен (5.18)

где К1 - капвложения на приобретенную аналогичную конструкцию, рублей, К1 = 100000,0 р.; Ен - номинальные вложения за год Ен =0,12.

Э = (100000,0-21990,4)*0,12= 9361,2 р.

Окупаемость конструкции определяется:

То = СК/Э, лет (5.19)

Ток = 21990,4/9361,2 = 2,3года

Коэффициент дисконтирования рассчитывается по формуле:

 (5.20)

где i - уровень инфляции (i = 12%);

t - период времени.

,

Тогда годовой экономический эффект составит:

Э = 9361,2 ∙ 0,89 = 8331,5р.

Тогда окупаемость конструкции составит:

Ток = 21990,4/8331,5 = 2,6 года

 

Технико-экономические показатели целесообразности проектирования представим в таблице 5.5.

Таблица 5.5 - Экономические показатели

Показатель

Ед. изм.

Базовый вариант

Проектируемый вариант

Тип привода

-

гидравлический

пневматический

Грузоподъемность

т

До 3

До 4

Высота подъема

мм

100

300

Расстояние между подхватами

мм

От 1500 до 2000

От 1500 до 2500

Стоимость конструкции

р.

100000,0

21990,4

Экономический эффект

р.

-

8331,5

Срок окупаемости

лет

-

2,6

 

Вывод.

Стоимость конструкторской разработки составит 21990,4 рублей. Экономическая выгода от разработки составляет 8331,5 рублей, по отношению к стандартному изделию подобного типа. Окупаемость конструкторской разработки составляет 2,6 года.

 

Заключение

. Анализ хозяйственной деятельности предприятия показал, что техническому обслуживанию грузовых автомобилей в хозяйстве должного внимания не уделяется.

. Выполненные в дипломном проекте расчеты показали, что есть возможность повысить коэффициент технической готовности автомобильного парка до 0,91, а также снизить затраты на проведение ТО автомобилей и уменьшить себестоимость грузоперевозок.

. Для внедрения разработанных мер по ТО и диагностированием хозяйству необходимо дополнительное оборудование по ТО, а также нужно иметь современные оборудование и приборы по диагностированию.

. Предлагается создать бригаду по ТО и диагностированию автомобилей, принять к внедрению организационно-технологические карты ТО грузовых автомобилей с обязательным выполнением операций диагностирования.

. В целях учета пробега автомобиля необходимо организовать постоянный контроль за постановкой автомобилей на ТО с диагностированием. Постановка на ТО с диагностированием автомобилей должна производиться исходя из пробега автомобиля и возможностей поста ТО и диагностирования. Расчеты показали, что целесообразно одновременно находиться на посту ТО одному автомобилю на посту ТО-1, а другому на ТО-2, с постановкой автомобилей с отклонением по пробегу не более 5% от запланированного пробега.

. Для снижения затрат ручного труда на техническое обслуживание автомобильного парка, повышения производительности и безопасности проведения ТО, предлагается конструкторская разработка установки для вывешивания автомобиля.

Библиографический список

1.     Афанасьев Л.Л., Колясинский Б.С., Маслов А.А. Гаражи и станции технического обслуживания. Альбом чертежей. М.: Транспорт, 1980.-216с.

2.      Борзых И.О. Расчет вентиляции, освещения. Методическое пособие для курсового и дипломного проектирования. НАТТ, 1995. - 6с.

.        Кузнецов Ю.М. Охрана труда на автотранспортных предприятиях - М.: "Транспорт", 1990. - 288с.

.        Кукин П.П. Безопасность технологических процессов и производств. "Охрана труда" М.: "Высшая школа", 1999.

.        Кузнецов E.Д. Управление техническими системами: Учебное пособие/ МАДИ(ТУ) - М.,1998. - 177 с.

.        Марков О.Д. Автосервис: Рынок, автомобиль, клиент. - М.: Транспорт, 1999. - 270 с.

.        Методика планирования и учета объемов реализации бытовых услуг по ремонту и ТО транспортных средств, принадлежащих гражданам. Минавтопром СССР. Филиал НАМИ. - М.: НАМИ, 1983. - 40с.

.        Муравкина Г.Ш. Методика расчёта производственной мощности предприятия технического сервиса на примере предприятия г. Москвы // Повышение организованности предприятий коммунального хозяйства города (населённого пункта). Материалы международной научно-практической конференции / ЮРГУЭС. Новочеркасск, 2002. С. 4-25.

.        Методические рекомендации по оценке эффективности инвестиционных проектов (2-я редакция). М. :Экономика, 2000. - 421 с.

.        Минавтотранспорт РСФСР. Центр по научной организации труда и управления производственных участках автотранспортных предприятий (вторая часть). - М.: 1985. - 183с.

.        Напольский Г.М. Технологическое проектирование автотранспортных предприятий и станций технического обслуживания: Учебник для вузов. -2-е изд. переработанное и дополненное. М.: Транспорт, 1993. -271 с.

.        Напольский Г.М., Кривенко Е.И, Фролов Ю.Н. Техническая эксплуатация легковых автомобилей. Автосервис. -М.: Транспорт, 1976.-217с.

.        Общетехнический справочник / Под. ред. Е.А. Скороходова - 2-е изд. Перераб. И доп. - М: Машиностроение, 1982. - 415 с.

.        Решетов Д.Н. Детали машин: Учебник для студентов машиностроительных и механических специальностей вузов. М.:

.        Российская автотранспортная энциклопедия. Техническая эксплуатация и ремонт автотранспортных средств. - Том 3. -М.: РООНП "За социальную защиту и справедливое налогообложение", 2000. - 456 с.

.        Сопротивление материалов: Учебное пособие для самостоятельной работы/ Новосиб. гос. аграр. ун-т; Сост. А.А. Шибков. - Новосибирск, 2002. - 90 с.

.        Табель технологического оборудования и cпецинструмента для СТО легковых автомобилей, принадлежащих гражданам. - М: НАМИ, 1988.-197с.

.        Техническая эксплуатация автомобилей: Учебник для вузов, 4-е издание, перераб. и доп./ Под ред. Кузнецова Е.С -М.: Наука. 2001 - 535 с

.        Технологическое оборудование для технического обслуживания и ремонта легковых автомобилей: Справочник / По-прежедзинский Р.А. и др. -М.: Транспорт, 1988. - 176 с.

.        Фастовцев Г.Ф. Автотехобслуживание. -М.: Машиностроение, 1985.-256 с. технический ремонт колесо автомобиль

.        Херцег К. Станции обслуживания легковых автомобилей: Пер. с венг. -М.: Транспорт, 1978. -303 с.

Похожие работы на - Организация технического обслуживания подвижного состава в ООО 'Генподряд' г.Новосибирска

 

Не нашли материал для своей работы?
Поможем написать уникальную работу
Без плагиата!
Без нейросетей!