Гражданские здания и их конструкции
Введение
Монтаж
строительных конструкций является ведущим технологическим процессом, который во
многом определяет структуру объектных потоков, общий темп строительства
объекта, порядок и методы производства других строительных работ, включая и
монтаж конструкций, должно быть увязано в единый технологический процесс,
конечной целью которого является получение готовой продукции в виде здания или
сооружения.
В целях
сокращения сроков строительства все виды работ совмещают по времени, т.е.
осуществляют поточным методом, что позволяет более эффективно использовать
машины и механизмы, повысить производительность труда и снизить стоимость
строительства.
При
разработке технологических карт на производство отдельных строительных
процессов, выборе метода производства работ - определяющую роль играет
назначение здания или сооружения, его объемно - планировочные и конструктивные
характеристики.
В настоящее
время, в мире все чаще ставиться вопрос об охране окружающей среды - поэтому
планировку и застройку территории объектами необходимо вести с учетом
климатических условий, внедрению высокоэффективных установок для очистки
промышленных выбросов, воспитанию у рабочих ответственности за бережное
использование земли и её богатств.
Конструктивные
решения здания:
При проектировании
очередности монтажа сборных элементов этого здания учесть, что несущими
конструкциями здания являются внутренние поперечные панели и панели наружных
торцевых стен.
Фундаменты из
сборных элементов под наружные стены из бетонных блоков, под внутренние - из
железобетонных подушек.
Элементы
фундаментов укладываются на выровненное песчаное основание (при песчаных
грунтах) или песчаную подушку толщиной 20 см.
Горизонтальная
гидроизоляция устраивается по верху фундаментов и состоит из слоя цементного
раствора толщиной 5 см. Поверхности цокольных стеновых панелей, соприкасающиеся
с грунтом, покрываются горячим битумом за 3 раза.
Полы подполья
состоят из бетонной подготовки толщиной 200 мм (бетон "7" на щебне) и
чистого цементного пола.
Глава 1. Основные элементы и конструктивные схемы гражданских зданий
1.1 Конструктивные элементы зданий
Основные конструктивные элементы гражданских зданий - это фундаменты,
стены, перекрытия, отдельные опоры, крыши, лестницы, окна, двери и перегородки
(рис.1.1).
Фундаменты являются подземной конструкцией, воспринимающей всю нагрузку
от здания и передающей ее на грунт.
Стены по своему назначению и месту расположения в здании делятся на наружные и
внутренние и являются вертикальными ограждениями и одновременно выполняют
несущие функции. В зависимости от этого они делятся на несущие и ненесущие.
Несущими могут быть как наружные, так и внутренние стены. Ненесущие стены - это
обычно перегородки. Они служат для деления в пределах этажа больших,
ограниченных капитальными стенами помещений на более мелкие, причем для
опирания перегородок не требуется устройство фундаментов.
Наружные стены, кроме того, могут быть самонесущими, которые опираются на
фундаменты и несут нагрузку только от собственной массы, и навесными, которые
являются только ограждениями и опираются в каждом этаже на другие элементы
здания.
Отдельные опоры - это несущие вертикальные элементы (колонны, столбы,
стойки), передающие нагрузку от перекрытий и других элементов здания на
фундаменты. Перекрытия опираются на уложенные по колоннам специальные балки,
называемые прогонами или ригелями, а иногда и непосредственно на колонны.
Рис.1.1 - Основные конструктивные элементы здания с кирпичными несущими
стенами: 1 - подошва; 2 - подвальное перекрытие; 3 -
фундаменты; 4 - потолок; 5 - нижнее перекрытие; 6 -
подполье; 7 - перегородка; 8 - нагрузка от собственной массы,
людей и оборудования; 9 - междуэтажное перекрытие; 10 -
продольная внутренняя стена; 11 - стена; 12 - оконный проем; 13
- карниз; 14 - чердачное перекрытие; 15 - чердак; 16 -
стропильная балка; 17 - кровля; 18 - дымовая труба; 19 -
зонт; 20 - коньковый прогон; 21 - подкос; 22 - стойка; 23
- конек; 24 - слуховое окно; 25 - снег; 26 - карниз; 27
- мауэрлат; 28 - оконный переплет; 29 - дверное полотно; 30
- крыльцо; 31 - цоколь; 32 - подвал; 33 - грунтовая влага
Расположенные внутри здания отдельные опоры и балки образуют внутренний
каркас здания.
Перекрытия представляют собой горизонтальные несущие конструкции,
опирающиеся на несущие стены или столбы и воспринимающие передаваемые на них
постоянные и временные нагрузки. Одновременно перекрытия, связывая между собой
стены, значительно повышают их устойчивость и увеличивают пространственную
жесткость здания в целом. В зависимости от месторасположения в здании
перекрытия делятся на междуэтажные (разделяющие смежные этажи), чердачные
(между верхним этажом и чердаком), подвальные (между первым этажом и подвалом)
и нижние (между первым этажом и подпольем).
Крыша является конструктивным элементом, защищающим помещения и конструкции
здания от атмосферных осадков. Она состоит из несущих элементов и ограждающей
части. Крыша, совмещенная с перекрытием верхнего этажа, т.е. без технического
этажа (или чердака), называется совмещенной крышей или покрытием. Хорошо
выполненные плоские совмещенные крыши дешевле скатных как в строительстве, так
и в эксплуатации. Кроме того, плоские крыши можно использовать в качестве
площадок для отдыха и других целей.
Лестницы служат для сообщения между этажами, а также для эвакуации людей из
здания. Помещения, в которых располагаются лестницы, называются лестничными
клетками. Конструкции лестниц в основном состоят из маршей (наклонных элементов
со ступенями) и площадок. Для безопасности передвижения по лестницам марши ограждаются
перилами.
Окна устраивают для освещения и проветривания помещений; они состоят из
оконных проемов, рам или коробок и оконных переплетов.
Двери служат для сообщения между помещениями. Состоят из дверных проемов,
устраиваемых в стенах и перегородках, дверных коробок и дверных полотен. В гражданских зданиях могут быть и другие конструктивные
элементы (входные тамбуры, козырьки над дверьми, балконы, лоджии и др.).
Для обеспечения необходимых эксплуатационных и санитарно-гигиенических
условий современное гражданское здание оборудуется санитарно-техническими и
инженерными устройствами. К ним относятся отопление, горячее и холодное
водоснабжение, вентиляция, канализация, мусороудаление, газификация,
энергоснабжение, телефонизация и др. Оборудование ими зданий рассматривается в
специальных курсах.
1.2 Конструктивные схемы зданий
Фундаменты, стены, отдельные опоры и перекрытия - основные несущие
элементы здания. Они образуют остов здания - пространственную систему
вертикальных и горизонтальных несущих элементов.
Остов определяет так называемую конструктивную схему здания. В
зависимости от характера опирания горизонтальных несущих элементов (перекрытий)
на вертикальные несущие элементы (стены, отдельные опоры и балки между ними)
различают следующие конструктивные схемы гражданских зданий (рис.3.2):
бескаркасные с несущими продольными стенами; с несущими поперечными стенами; с
неполным каркасом; с полным каркасом.
Рис.1.2 - Конструктивные схемы зданий: 1 - внутренняя продольная
стена; 2 - внутренние поперечные стены; 3 - панели перекрытий; 4
- столбы и прогоны; 5 - прогоны (или распорки); 6 - стойки
каркаса; 7 - ненесущие наружные стены.
В зданиях с несущими продольными стенами (рис.1.2, а) последние
устраивают из тяжелых материалов, имеющих надлежащую прочность. Кроме того,
наружные стены должны также удовлетворять теплозащитным требованиям. По такой
конструктивной схеме строят кирпичные и крупноблочные дома.
Устойчивость такой конструктивной схемы в поперечном направлении
обеспечивается специально устраиваемыми поперечными стенами, которые не несут
нагрузки от перекрытия. Такие поперечные стены возводятся лишь для ограждения
лестничных клеток и в местах, где они нужны для придания устойчивости наружным
стенам. Применение указанной конструктивной схемы дает большие возможности для
решения планировки помещений или, другими словами, имеется большая свобода в
решении планировочных вопросов. Кроме того, при данной конструктивной схеме
требуется меньшее число типоразмеров сборных изделий.
В зданиях с поперечными несущими стенами (рис.1.2, б)
обеспечивается большая жесткость системы, однако увеличивается общая
протяженность несущих внутренних стен. Тем не менее такое решение в ряде
случаев является рациональным, так как при этом к конструкциям наружных
продольных стен предъявляются только теплозащитные требования и для их
устройства можно использовать легкие эффективные материалы.
Кроме того, иногда применяется смешанный вариант, при котором опорами для
перекрытий служат как продольные, так и поперечные стены.
Если вместо внутренних продольных и поперечных стен устраивается система
столбов с опирающимися на них горизонтальными балками (прогонами), на которые,
в свою очередь, опираются перекрытия, то такая схема соответствует зданию с
неполным каркасом (рис.1.2, в, г).
Если же вместо несущих наружных стен применены столбы, образующие вместе
с внутренними столбами и балками (прогонами) как бы скелет здания, то такая
конструктивная схема определяет здания с полным каркасом (рис.1.2, д). В
этом случае наружные стены выполняют только ограждающие функции и могут быть
самонесущими или навесными. Самонесущие стены опираются на фундаменты или
фундаментные балки и не воспринимают никаких нагрузок, кроме собственной массы.
Навесные стены опираются на горизонтальные элементы на уровне каждого этажа.
По характеру работы каркасы бывают рамные, связевые и рамно-связевые.
Столбы и балки рамного каркаса (рис.1.3, а) соединяются между собой
жесткими узлами, образуя поперечные и продольные рамы, воспринимающие все
действующие вертикальные и горизонтальные нагрузки. В зданиях со связевым
каркасом (рис.1.3, б) узлы между столбами и балками нежесткие, поэтому
для восприятия горизонтальных нагрузок необходимы дополнительные связи. Роль
этих связей выполняют чаще всего перекрытия, образующие диафрагмы и передающие
горизонтальные нагрузки на жесткие вертикальные диафрагмы (стены лестничных
клеток, железобетонные перегородки, шахты лифтов и др.). В практике
строительства находят применение здания с комбинированным типом каркаса,
который называют рамно-связевым. В нем в одном направлении ставят рамы, а в
другом - связи. В гражданском строительстве наибольшее распространение получили
здания со связевыми каркасами. Необходимо
отметить, что применение каркасной конструктивной схемы наиболее выгодно для
строительства крупнопанельных высотных жилых и общественных зданий. Материалом для конструкций каркаса являются железобетон,
сталь, а для малоэтажных зданий столбы нередко выкладывают из кирпича. Для
деревянных зданий каркас также выполняют из дерева.
Рис.1.3. Схемы каркасов здания: 1 - элемент каркаса; 2 -
жесткие узлы; 3 - горизонтальные диафрагмы; 4 - вертикальные
поперечные и продольные диафрагмы
Широкое распространение получает монолитное строительство, строительство
зданий из объемных элементов (блок-коробок), в которых остов здания образуется
коробчатыми элементами заводского изготовления.
Глава 2. Общие сведения о проектировании промышленных зданий
конструктивный гражданский здание фундамент
2.1 Общие положения
Объемно-планировочное решение промышленного здания зависит прежде всего
от технологического процесса, который происходит в нем. Технологический
процесс, в свою очередь, определяется производственно-технологической схемой.
Технологическую часть проекта разрабатывают технологи. Задание на строительное
проектирование должно содержать такие основные материалы:
· схему, определяющую последовательность операций производства;
· план расстановки технологического оборудования, привязанный к
унифицированной сетке колонн, с указанием габаритов оборудования, проходов и
проездов, технологических площадок, участков складирования, а также подземных
сооружений;
· высотные параметры здания: высоту от уровня пола до низа
основных несущих конструкций покрытия для бескрановых зданий и от уровня пола
до отметки головки кранового рельса для цехов, оборудованных кранами; высоту
этажа для многоэтажных зданий. Кроме того, должны быть указаны отметки рабочих
и технологических площадок и этажерок;
· данные о средствах внутрицехового подъемно-транспортного
оборудования;
· данные о производственных вредных отходах, которые могут
выделяться (газы, дым, пыль и др.), и их источниках, а также о необходимом
температурно-влажностном режиме в отдельных помещениях;
· характер работ с точки зрения их санитарной характеристики и
степени точности;
· численность рабочих и административно-управленческого
персонала по каждой смене (мужчин и женщин) и в отдельности по санитарной
характеристике выполняемых работ;
· категорию производства по степени пожарной опасности;
· данные о районе и участке строительства;
· топографический план территории строительства;
· материалы гидрогеологического исследования и испытания
грунтов;
· особые условия (сейсмичность, вечная мерзлота, наличие горных
выработок и др.).
Наличие этих данных дает возможность приступить к строительному
проектированию, основными задачами которого являются:
· разработка и выбор наиболее рационального
объемно-планиро-вочного и конструктивного решение здания в целом и отдельных
его элементов с учетом осуществления строительства индустриальными методами.
При этом широко используют унифицированные типовые секции (УТС) и
унифицированные типовые пролеты (УТП), осуществляют расчеты и обоснования всех
изделий и деталей, принимая во внимание район строительства и класс здания;
· обеспечение требуемой пожарной безопасности в соответствии с
установленной степенью огнестойкости здания;
· создание наиболее благоприятных условий работы (организация
рабочих мест, температурно-влажностный режим в помещениях, условия безопасности
и гигиены, освещенности);
· расчет и проектирование административных и бытовых помещений;
· решение вопросов технологии и организации строительства, его
сметной стоимости и вопросов охраны работы и окружающей среды.
Разработанный проект может отвечать всем действующим нормам, каталогам и
ГОСТам, а также указаниям по проектирования промышленных зданий.
.2 Проектирование производственных зданий
Производственные здания должны иметь простую конфигурацию в плане, при
этом целесообразно избегать пристроек к корпусу, которые в дальнейшем могут
усложнить расширение и реконструкцию производства.
Современная практика показывает, что производства с однотипными, а иногда
и различными технологическими процессами целесообразно блокировать в одном
здании. Конечно, такое объединение не должно противоречить
санитарно-гигиеническим требованиям, пожаро- и взрывобезопасности.
Современные методы типизации основаны на применении единой модульной
системы и сквозной унификации всех строительных параметров зданий и сооружений.
Разработки комплексных типовых проектов, типовых проектных решений,
чертежей типовых конструкций и изделий, типовых монтажных и архитектурных
деталей дают возможность при выполнении конкретных проектов ограничиваться
составлением монтажных схем со ссылкой на соответствующие рабочие чертежи
типовых конструкций, изделий и деталей. Для каждой области промышленности на
этой основе определены оптимальные размеры блоков, из которых можно компоновать
производственные здания нужных размеров. Так, для предприятий машиностроения
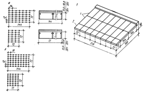
рекомендованы такие типы УТС (рис.2.1):
· размерами в плане 144х72 и 72х72 м с сеткой колонн 24х12 и
18х12 м;
· высота пролетов бескрановых и с подвесным транспортом
грузоподъемностью до 5 т включительно 6 и 7,2 м;
· высота пролетов с мостовыми кранами грузоподъемностью до 30 т
включительно 10,8 и 12,6 м.
Приняты также дополнительные секции. На рис.2.2 приведен пример УТС. УТС
многоэтажных зданий разработаны для зданий в 2, 3, 4, 5 этажей, следует
принимать сетку колонн 6х6 и 6х9 м. Высота этажа может быть кратной 1,2 м, в
зависимости от технологических условий и габаритов оборудования выбирают 3,6;
4,8; 6,0 м. В пределах одного здания допускается не более двух высот.
Одним из важных вопросов при проектировании производственных зданий
является организация людских и грузовых потоков и эвакуация людей из здания.
Цех надо проектировать так, чтобы люди имели возможность перемещения по
кратчайшим, удобным и безопасным путям. Рабочие места должны иметь свободный
доступ. Не следует допускать пересечений в одной плоскости напряженных грузовых
и людских потоков. В местах неизбежных пересечений предусматривают туннели,
переходы и проходы. Для перехода рабочих на другую сторону конвейеров,
транспортеров, рольгангов и других движущихся устройств предусматривают
переходные мостики.
Рис.2.1 - Примеры габаритных схем унифицированных типовых секций (УТС) одноэтажных производственных зданий: а - при сетке
колонн 24х12 м; б - то же, 18х12 м; в -
варианты компоновки зданий из типовых секций блоков; 1 - основные секции;2 - доборные.
При проектировании и строительстве производственных зданий обязательно
предусматривают пути вынужденной (аварийной) эвакуации людей из помещений. Время
эвакуации определяется нормами и зависит от характера производства. Аварийная
эвакуация людей из зданий обычно происходит в условиях высоких температур,
задымления и загазованности. Для быстрой и безопасной эвакуации людей
необходимы достаточное количество выходов, определенная протяженность и ширина
путей эвакуации и эвакуационных выходов. При этом учитывают, что время
эвакуации зависит от плотности потока, т.е. количества людей (или суммы площади
их проекций, м2) на единицу площади (м2), а также длины пути
эвакуации.
Пути эвакуации должны быть по возможности прямыми и без пересечения
другими потоками. Двери на путях эвакуации должны открываться по направлению
выхода из здания.

Обычно разрабатывают специальную схему эвакуации людей из здания, а всех
работающих в здании люди предварительно оповещают о порядке эвакуации в случае
возможных аварийных условиях.
Проектируя производственные здания, наряду с технологическими факторами
надо учитывать ряд физико-технических вопросов, играющих при эксплуатации
здания исключительно важную роль. К ним относятся вопросы: строительной
теплотехники, вентиляции, в том числе аэрации; освещенности, борьбы против
чрезмерной инсоляции; борьбы со снежными заносами; изоляции от агрессивных
воздействий; борьбы с производственными шумами и вибрацией.
При чрезмерной инсоляции, когда прямые и отраженные солнечные лучи,
попадая в глаза, мешают работе и бывают причиной травматизма, а также, нагревая
облученные поверхности, вызывают перегрев помещений, ориентированных
соответствующим образом, или здания в целом предусматривают устройство
остекленных поверхностей или применяют конструктивные меры против инсоляции.
Важным вопросом является защита конструкций от агрессивных химических
воздействий путем рационального выбора материалов, а также окраски специальными
составами.
Шумы и вибрации, которые возникают от работы машин и транспорта, вредно
отражаются на организме человека, снижают его трудоспособность и могут вызывать
деформации в конструкциях здания. Основными мерами борьбы при этом являются:
· установка оборудования на самостоятельных, обособленных от
конструкций здания опорах и фундаментах;
· устройство под машинами в толщи фундамента упругих прокладок
и "экранов" из шпунтованных свай или траншей, засыпанных рыхлым
материалом; надежная изоляция помещений с значительными сотрясениями и
вибрациями от других помещений и их размещение на первых этажах или в крайних
пролетах и др.
Как уже отмечалось, промышленные здания проектируют на основе УТС и УТП.
Типовые проекты привязывают к конкретным условиям строительства.
Проектирование производственных зданий имеет две стадии: проектное
задание и рабочие чертежи.
Привязку основных конструкций зданий к координационным осям делают с
соблюдением правил, изложенных дальше.
.3 Привязка конструктивных элементов к координационным осям
Привязка определяет расстояние от модульной, координационной оси до грани
или геометрической оси сечения конструктивного элемента. Применяемые правила
привязки дают возможность установить взаимозаменяемость конструкций и
значительно сократить количество доборных элементов.
Ниже рассмотрены основные правила привязки конструктивных элементов к
координационным осям.
В одноэтажных производственных зданиях колонны средних рядов располагают
так, чтобы геометрические оси сечения колонн совпадали с продольными и
поперечными модульными координационными осями (рис.2.3). Исключения допускаются
относительно колонн возле температурных швов и перепадов высот.
При использовании в качестве несущих конструкций стропильных ферм и балок
колонны крайних рядов и наружные стены привязывают к продольным координационным
осям по таким правилам:
· внешнюю грань колонн совмещают с координационной осью
(нулевая привязка), а внутреннюю плоскость стены смещают наружу на 30 мм (рис.
2.3,б) в зданиях следующих типов: в зданиях без мостовых кранов со сборным
железобетонным каркасом при шаге крайних колонн 6 или 12 м, а также в зданиях
со стальным или смешанным каркасом при шаге колонн крайних рядов 6 м; в зданиях
с кранами грузоподъемностью до 20 т и со сборным железобетонным или смешанным
каркасом при шаге крайних колонн 6 м и при высоте не более 14,4 м; в зданиях с
ручными мостовыми кранами;
· внешнюю грань колонн смещают наружу с координационной оси на
250 мм, а между внутренней плоскостью стены и гранью колонн предусматривают
зазор 30 мм (рис.2.3, в) в таких зданиях: без мостовых кранов со стальным или
смешанным каркасом при шаге крайних колонн 12 м; с кранами при шаге колонн
крайних рядов 12 м, в зданиях со стальным каркасом при шаге колонн 6 м, а также
в зданиях с кранами грузоподъемностью свыше 20 т и сборным железобетонным или
смешанным каркасом при шаге крайних колонн 6 м и высоте 12 м и более; при
наличии проходов вдоль подкрановых путей.
Колонны и наружные стены из панелей привязывают к крайним поперечным
координационным осям по линиям поперечных температурных швов с соблюдением
таких требований:
1. В
торцах зданий геометрические оси сечения колонн основного каркаса смещают
внутрь на 500 мм с координационной оси, а внутренние поверхности стен - наружу
на 30 мм с той же оси (рис.2.3, г);
2. По
линиям поперечных температурных швов геометрические оси сечения колонн смещают
по 500 мм в обе стороны от оси шва, совмещаемого с поперечной координационной
осью (рис.2.3,е).
Рис.2.3 - Привязка колонн и стен одноэтажных зданий к координационным
осям: а - привязка колонн к средним осям; б, в - то же, колонн и стен к крайним
продольным осям; г-е - то же, к поперечным осям в торцах зданий и местах
поперечных температурных швов; ж-и - привязка колонн в продольных температурных
швах зданий с пролетами одинаковой высоты; к-м - то же, при перепаде высот
параллельных пролетов; н-о - то же, при взаимно перпендикулярном примыкании
пролетов; п-т - привязка несущих стен к продольным координационным осям; 1 -
колонны повышенных пролетов; 2 - колонны пониженных пролетов, которые примыкают
торцами к повышенному поперечному пролету.
При устройстве продольных температурных швов или перепаде высот
параллельных пролетов на парных колоннах следует предусматривать парные
модульные координационные осы со вставкой между ними.
В зависимости от размера привязки колонн в каждом из смежных пролетов
размеры вставок между парными координационными осями по линиям температурных
швов в зданиях с пролетами одинаковой высоты и с покрытиями по стропильным
балкам (фермам) принимают равными 500, 750, 1000 мм (рис.2.3, ж-и).
Размер вставки между продольными координационными осями по линии перепада
высот параллельных пролетов в зданиях с покрытиями по стропильным балкам
(фермам) должен быть кратным 50 мм (рис.2.3, к-м):
· привязки к координационным осям граней колонн, обращенных в
сторону перепада;
· толщины стены из панелей и зазора 30 м между ее внутренней
плоскостью и гранью колонн повышенного пролета;
· зазора не менее 50 мм между внешней плоскостью стены и гранью
колон пониженного пролета.
При этом размер вставки должен быть не менее 300 мм. Размеры вставок в
местах примыкания взаимно перпендикулярных пролетов (пониженных продольных к
повышенному поперечному) составляют от 300 до 900 мм (рис.2.3, н, о).
Если есть продольный шов между пролетами, которые примыкают к
перпендикулярного пролету, этот шов продлевают в перпендикулярный пролет, где
он будет поперечным швом. При этом вставка между координационными осями в
продольном и поперечном швах равна 500, 750 и 1000 мм, а каждую из парных
колонн по линии поперечного шва нужно смещать с ближайшей оси на 500 мм.
Если на наружные стены опираются конструкции покрытия, то внутреннюю
плоскость стены смещают внутрь от координационной оси на 150 (130) мм (рис.2.3,
п).
Колонны к средним продольным и поперечным координационным осям
многоэтажных зданий привязывают так, чтобы геометрические оси сечения колонн
совпадали с координационными осями (рис.2.4,а), за исключением колонн по линиям
температурных швов.
В случае привязки колонн и наружных стен из панелей к крайним продольным
координационным осям зданий внешнюю грань колонн (в зависимости от конструкции
каркаса) смещают наружу с координационной оси на 200 мм или совмещают с этой
осью, а между внутренней плоскостью стены и гранями колонн предусматривают
зазор 30 мм (рис.2.4, б,в).
По линии поперечных температурных швов зданий с перекрытиями из сборных
ребристых или гладких многопустотных плит предусматривают парные
координационные оси с вставкой между ними размером 1000 мм, а геометрические
оси парных колонн совмещают с координационными осями (рис.2.4 ,е).
Рис.2.4 - Привязка колонн и стен многоэтажных зданий к координационным
осям: а - привязка колонн к средним осям; б,в - привязка колонн и стен к
крайним продольным осям; г,д - то же, в торцах зданий; е,ж - привязка колонн по
линиям поперечных температурных швов.
В случае пристройки многоэтажных зданий к одноэтажным не допускается
взаимно смешивать координационные оси, перпендикулярные к линии пристройки и
общие для обеих частей сблокированного здания.
Размеры вставки между параллельными крайними координационными осями по
линии пристройки зданий назначают с учетом использования типовых стеновых
панелей - удлиненных рядовых или доборных.
Глава 3. Элементы и конструктивные схемы промышленных зданий
3.1 Классификация промышленных зданий
Промышленные предприятия разделяют на отрасли производства, которые
являются составной частью народного хозяйства. Они состоят из промышленных
зданий, которые предназначены дня осуществления производственно-технологических
процессов, прямо или косвенно связанных с выпуском определенного вида
продукции. Независимо от отрасли промышленности
здания разделяют на четыре основные группы: производственные, энергетические,
здания транспортно-складского хозяйства и вспомогательные здания или помещения. К производственным относятся здания, в которых осуществляется
выпуск готовой продукции или полуфабрикатов. Они подразделяются на многие виды
соответственно отраслям производства, среди которых механосборочные, термические,
штамповочные, ткацкие, инструментальные, ремонтные и др.
К энергетическим принадлежат здания ТЭЦ (теплоэлектроцентралей),
котельных, электрические и трансформаторные подстанции и др.
К зданиям транспортно-складского хозяйства относятся гаражи, склады
готовой продукции, пожарные депо и др. К
вспомогательным зданиям относятся административно-конторские, бытовые, пункты
питания, медицинские пункты и др. Характер
объемно-планировочного и конструктивного решения промышленных зданий зависит от
их назначения и характера технологических процессов. Здания подразделяют на четыре класса, причем к І классу
относят те, к которым выдвигаются повышенные требования, а к ІV классу -
постройки с минимальными требованиями. Для каждого класса определены свои
эксплуатационные свойства, а также долговечность и огнестойкость основных
конструкций зданий.
Установлены три степени долговечности промышленных зданий: І степень - не
менее 100 лет; ІІ - не менее 50 лет и ІІІ - не менее 20 лет.
По огнестойкости здания и сооружения подразделяют на пять степеней.
Степень огнестойкости, характеризуемая группой возгораемости и пределом
огнестойкости основных строительных конструкций, принимается: для зданий І
класса - не ниже ІІ степени, для зданий ІІ класса - не ниже ІІІ степени. Для
зданий ІІІ и ІV классов степень огнестойкости не нормируется.
По архитектурно-конструктивным признакам промышленные здания подразделяют
на одноэтажные, многоэтажные и смешанной этажности.
Производства, в которых технологический процесс протекает по горизонтали
и характеризующиеся тяжелым и громоздким оборудованием, крупногабаритными
изделиями и значительными динамическими нагрузками, целесообразно размещать в
одноэтажных зданиях.
В зависимости от количества пролетов одноэтажные здания могут быть одно-
и многопролетными (рис.3.1). Пролетом называется объем промышленного здания,
ограниченный по периметру рядами колонн и перекрытий по однопролетной схеме.
Расстояние между продольными рядами колонн называют шириной пролета.
Рис.3.1 - Основные типы одноэтажных промышленных зданий:
а - однопролетные бесфонарные; б - то же, с мостовым краном; в,г -
многопролетные с фонарями; д- общий вид здания
В многоэтажных зданиях размещают производства с вертикально направленными
технологическими процессами для предприятий легкой, пищевой, радиотехнической и
аналогичных видов промышленности. Их, как правило, сооружают многопролетными
(рис.3.2). На первых этажах размещают производства, имеющие более тяжелое
оборудование, выделяющие агрессивные сточные воды, в верхних - производства,
которые выделяют газовые вредности, пожароопасные и др.
Рис.3.2 - Основные типы многоэтажных промышленных зданий:
а-в - схемы поперечных разрезов; г - общий вид здания.
По расположению внутренних опор промышленные здания разделяют на
ячейковые, пролетные, зальные и комбинированные
В зданиях ячейкового типа обычно используют квадратную сетку опор
с относительно небольшим продольным и поперечным шагом. В этих зданиях
технологические линии размещают в двух взаимно перпендикулярных направлениях.
В зданиях пролетного типа, которые являются наиболее
распространенными, ширина пролетов преобладает над шагом опор.
Здания зального типа характерны для производств, которые требуют значительных
свободных площадей без внутренних опор.
Здания комбинированного типа представляют собой сочетание
перечисленных выше типов.
По наличию подъемно-транспортного оборудования здания бывают крановые (с
мостовым или подвесным транспортом) и бескрановые.
По материалу основных несущих конструкций здания можно разделить: с
железобетонным каркасом (сборным, сборно-монолитным и монолитным); со стальным
каркасом; с кирпичными стенами и покрытием по железобетонным, металлическим или
деревянным конструкциям.
Кроме перечисленных факторов промышленные здания классифицируют и по
другим признакам: системе отопления, вентиляции, освещения по профилю покрытия.
Ниже рассмотрены особенности проектирования зданий с учетом этих признаков.
.2 Требования к промышленным зданиям
К промышленным зданиям предъявляют технологические, технические,
архитектурно-художественные и экономические требования.
Технологические требования обусловливают полное соответствие здания
своему назначению, т.е. здание должно обеспечивать нормальное функционирование
размещаемого в нем технологического оборудования и нормальный ход
технологического процесса в целом. С этой целью при проектировании здания
составляют технологическую часть проекта и решают все вопросы, связанные с
выбором способа производства, типов оборудования, его производительности и др.
В эту часть проекта входит так называемая технологическая схема, которая
определяет последовательность операций в технологическом процессе и,
следовательно, последовательность расстановки оборудования и компоновки
производственных помещений.
С учетом технологических требований выбирают вид и материал несущих и
ограждающих конструкций, тип и грузоподъемность внутрицехового
подъемно-транспортного оборудования, обеспечивают соответствующие
санитарно-гигиенические условия работающим в цехе, качество и характер отделки.
Решая вопросы объемно-планировочного и конструктивного решения здания,
необходимо учитывать перспективы развития используемого технологического
процесса, который даст возможность изменять и совершенствовать производство без
реконструкции самого здания.
К техническим требованиям относятся обеспечение необходимых прочности,
стойкости и долговечности зданий, противопожарных мероприятий, а также
сооружение зданий индустриальными методами. Перечисленные качества, которые
обеспечиваются во время проектирования и сооружение здания, характеризуют его
надежность. Под надежностью здания или его отдельных конструктивных элементов
обычно понимают безотказную работу в заданных условиях и всего расчетного периода
эксплуатации.
К техническим требованиям относят также требования по пожарной,
взрывопожарной и взрывной опасности. Следует иметь в виду все более
возрастающее значение этого фактора в связи с усложняющейся технологией
производства, применением дорогостоящего оборудования.
Экономические требования выдвигают задачу оптимального, научно
обоснованного расхода средств на строительство и эксплуатацию здания, которое
проектируют. С этой целью обычно берут несколько вариантов
объемно-планировочных и конструктивных решений и сравнивают их по основным
технико-экономическим показателям.
3.3 Одноэтажные и многоэтажные промышленные здания. Унификация
Одноэтажные здания могут иметь в плане простые и сложные формы. В
основном преобладает прямоугольная форма, а сложные формы характерны для
производств со значительными тепло- и газовыбросами, если нужна организация
притока и удаления воздуха.
В зависимости от характера технологического процесса одноэтажные здания
по объемно-планировочному решению могут быть пролетного, зального, ячейкового и
комбинированного типа.
Здания пролетного типа проектируют в тех случаях, если
технологические процессы направлены вдоль пролета и обслуживаются кранами или
без них.
Основными конструктивными элементами современного одноэтажного пролетного
промышленного здания являются (рис.3.3): колоны, которые передают нагрузки на
фундаменты; конструкции покрытия, которые состоят из несущей (балки, фермы,
арки) и ограждающей (плиты и элементы покрытия) части; подкрановые балки,
которые устанавливают на консоли колонн; фонари, которые обеспечивают нужный
уровень освещенности и воздухообмен в цехе; вертикальные ограждающие
конструкции (стены, перегородки, конструкции остекления), причем конструкции
стен опираются на специальные фундаментные и обвязочные балки; двери и ворота
для движения людей и транспорта; окна, которые обеспечивают необходимый
световой режим.
Одноэтажные промышленные здания проектируют чаще всего по каркасной
системе, образованной стояками (колоннами), вмонтированными в фундамент, и ригелями
(фермами или балками).
Специальные связи (горизонтальные и вертикальные) обеспечивают
пространственную жесткость каркаса.
Габариты сборных элементов для промышленных зданий унифицированы, и
соответственно унифицированы габариты конструктивных элементов на основе
укрупненного модуля.
Пролет зданий (поперечное расстояние между колонами) принимают 12, 18,
24, 30 , 36 м и др.
Высота от пола до низа несущей конструкции покрытия устанавливают кратной
модулю 0,6 м (от 3,6 до 6,0 м), укрупненному модулю 1,2 м (от 6,0 до 10,8 м) и
модулю 1,8 м (от 10,8 до 18,0 м).
Здания зального типа применяют тогда, когда технологический
процесс связан с выпуском крупногабаритной продукции или установкой
большеразмерного оборудования (ангары, цеха сборки самолетов, главные корпусы
мартеновских и конверторных цехов и др.). Пролеты зданий зального типа могут
быть 100 м и более.
Развитие и внедрение средств автоматизации и механизации технологических
процессов создает потребность передвижения транспортных средств в двух взаимно
перпендикулярных направлениях. Необходимость частой модернизации
технологического процесса легко осуществима в одноэтажных зданиях сплошной
застройки с квадратной сеткой колонн. Такое объемно-планировочное решение
получило название ячейкового, а здания - гибких, или универсальных.
В зданиях комбинированного типа сочетаются основные признаки
зданий зального, пролетного или ячейкового типа.
Рис.3.3 - Конструктивное решение одноэтажного многопролетного
промышленного здания: 1 - бетонный подлив для опоры фундаментных балок; 2 -
подкрановая балка; 3 - колонна среднего ряда; 4 - подстропильная железобетонная
ферма; 5 - железобетонная безраскосная ферма; 6 - железобетонная плита
покрытия; 7 - пароизоляция; 8 - слой утеплителя; 9 - цементная стяжка; 10 -
многослойный рубероидный ковер; 11 - конструкция остекления; 12 - стеновая
панель; 13 - цокольная стеновая панель; 14 - колонна крайнего ряда; 15 -
металлическая крестовая вертикальная связь между колоннами; 16 - железобетонная
фундаментная балка; 17 - железобетонный фундамент под колонну
Многоэтажные промышленные здания применяют в легкой, пищевой,
электротехнической и других видах промышленности.
По конструктивной схеме многоэтажные промышленные здания бывают с
неполным каркасом и несущими внешними стенами или с полным каркасом (рис.3.4).
Основными элементами каркаса являются колонны, ригели, плиты перекрытий и
связи. Междуэтажные перекрытия выполняют из сборных железобетонных конструкций
двух типов: балочные и безбалочные.
Рис.3.4 - Конструктивное решение многоэтажного здания: 1 - колонна; 2 -
монтажный столик для опоры стеновых панелей; 3 - вертикальная металлическая
портальная связь между колоннами; 4 - балка (ригель); 5 - плита перекрытия
железобетонная ребристая; 6 - железобетонная подкрановая балка; 7 -
железобетонная двухскатная балка покрытия; 8 - железобетонная плита покрытия; 9
- стеновая панель; 10 - конструкции оконного остекления; 11 - отмостка; 12 -
фундаментная балка (ранд-балка); 13 - бетонный прилив для опирания фундаментных
балок; 14 - песчаная подготовка.
Сборные каркасы могут быть решены по рамной, рамно-связевой или связевой
системе. При рамной системе каркаса пространственная жесткость здания
обеспечивается работой самого каркаса, рамы которого воспринимают как
горизонтальные, так и вертикальные нагрузки. При рамно-связевой системе
вертикальные нагрузки воспринимаются рамами каркаса, а горизонтальные - рамами
и вертикальными связями (диафрагмами). В случае связевой системы вертикальные
нагрузки воспринимаются колонами каркаса, а горизонтальные - вертикальными
связями.
Сетку колонн многоэтажных зданий принимают 6х6 или 6х9 м, в последнее
время разработаны проекты с сеткой 6х12, 6х18 и даже 6х24 м.
Высоты этажей многоэтажных производственных зданий унифицированные и
могут быть 3,6; 4,8; 6,0 м, для первых этажей допускается высота 7,2 м (модуль
12 м).
Для вертикального транспорта в многоэтажных зданиях предусматривают
грузовые и пассажирские лифты, которые вместе с лестницами объединяются в узлы.
При выборе конструктивных решений промышленных зданий необходимо иметь в
виду экономическую значимость стоимости отдельных конструктивных элементов в
общей сметной стоимости здания. Для многоэтажных зданий наибольшее влияние на
стоимость оказывают стены, каркас, полы и проемы, в одноэтажных - каркас,
конструкции кровли, полы и стены.
Список литературы
1. Архитектура гражданских и промышленных зданий.
Т.III. Жилые здания. - М.: Высш. шк., 1983. - 237 с.
2. Архитектура гражданских и промышленных зданий. Т.I.
Основы проектирования. - М.: Высш. шк., 1975.
. Буга П.Г. Гражданские, промышленные и
сельскохозяйственные здания. - М.: Высш.шк., 1983. - 404 с.
. Благовещенский Ф.А., Букина Е.Ф. Архитектурные
конструкции. - М.: Высш.шк., 1985. - 230 с.
. Дехтяр С.Б. Архитектурные конструкции гражданских
зданий. - К.: Будівельник, 1987.
. Кузнецов Д.В., Армановский Л.И. Архитектурные
конструкции гражданских зданий. Части зданий. Фундаменты. - К.: Будівельник,
1978.
. Савченко И.П., Липявкин А.Ф., Сербинович П.П.
Архитектура. - М.: Высш. шк., 1975.
. Сербинович П.П. Гражданские здания массового
строительства. - М.: Высш. шк., 1975.
. Казбек-Казиев З.А.. Беспалов В.В., Дыховичный Ю.А. и
др. Архитектурные конструкции. - М.: Высш.шк., 1989. - 342 с.
. Миловидов Н.Е., Орловский Б.Я., Белкин А.Н.
Гражданские здания. - М.: Высш. шк., 1987. - 352 с.
. Дятков С.В. Архитектура промышленных зданий: Уч.
пособие для вузов - М., 1984. - 415 с.
. Ким Н.Н. Промышленная архитектура. - М.: Стройиздат,
1981. - 314 с.
. Красенский В.Е., Федоровский А.Е. Гражданские,
промышленные и сельскохозяйственные здания. - М.: Стройиздат, 1972. - 335 с.
. Архитектура гражданских и промышленных зданий. Т.V.
Промышленные здания. - М.: Стройиздат, 1986.
. Шубин Л.Ф. Архитектура гражданских и промышленных
зданий. Т.V. Промышленные здания. - М.: Стройиздат, 1986 с.
. Орловский Б.Я. Архитектура гражданских и
промышленных зданий: Промышленные здания. - М.: Высш. шк., 1991
. Журнал "Красивые дома". - М.: Роспечать. -
2000-2002.
. "Строительство. Реконструкция".
Рус.-информ. - 2000-2003.
. Журнал "Частная архитектура". - 2000-2002.
. Журнал "Дом и сад". - 2000-2003.
. Романенко И.И. Конспект лекций учебной дисциплины
"Экономика и предпринимательство". - Харьков, 2002.
. Будівництво та архітектура. - К., 2003.