Стандартизація і уніфікація деталей і елементів приладів
МІНІСТЕРСТВО ОСВІТИ І НАУКИ УКРАЇНИ
УЖГОРОДСЬКИЙ НАЦІОНАЛЬНИЙ УНІВЕРСИТЕТ
ІНЖЕНЕРНО-ТЕХНІЧНИЙ ФАКУЛЬТЕТ
КАФЕДРА "ПРИЛАДОБУДУВАННЯ”
КУРСОВА РОБОТА
З дисципліни: Метрологія, стандартизація та
взаємозамінність
Ужгород - 2012
Зміст
Вступ
1. Гладкі циліндричні з’єднання
1.1 Посадки із зазором
1.2 Посадка з натягом
1.3 Перехідна посадка
2. Калібри для контролю гладких циліндричних деталей
3. Розмірні ланцюги
3.1 Розрахунок методом повної взаємозамінності (пряма задача)
3.2 Розрахунок імовірнісним методом (пряма задача)
4. Допуски і посадки різьбових зєднань
Висновки
Перелік посилань
Вступ
Одним із найважливіших завдань, що стоять перед
працівниками підприємств при виготовленні та відновленні деталей і вузлів, є
подальше підвищення якості приладів та обладнання. За таких умов великі вимоги
ставляться до інженерів-приладобудівників: вони повинні бути обізнаними в
галузі метрології, стандартизації, взаємозамінності та технічних вимірювань.
Взаємозамінність в її широкому розумінні пов’язує
в єдине ціле конструювання, технологію виробництва і контроль виробів в
будь-якій галузі промисловості. Стандартизація і уніфікація деталей і елементів
приладів сприяє прискоренню та зменшенню вартості конструювання і виготовлення
виробів і приладів. Стан вимірювальної техніки характеризує рівень і культуру
виробництва.
1.
Гладкі циліндричні з’єднання
1.1
Посадки із зазором
Задано з’єднання Æ80H8/h8. Визначити
граничні розміри і відхилення отвору та вала, найбільший і найменший зазори,
допуск посадки, побудувати схему полів допусків з’єднання.
Розв’язок. За ДСТУ 2500 - 94
визначаємо основні відхилення і граничні розміри отвору і вала.
Отвір Æ80H8. EI=0 (це
основне відхилення системи отвору). Найменший діаметр отвору буде Dmin =
D + EI = 80,0 + 0 = 80,0 мм; верхнє відхилення отвору, ES = +46 мкм; найбільший
діаметр отвору буде Dmax = D + ES = 80,0 + 0,046 = 80, 046 мм.
Вал Æ80h8. Визначаємо
граничні розміри: верхнє відхилення вала es = = 0 мкм; тоді найбільший розмір
вала буде dmax = d + es = 80,0 + 0 = 80,0 мм; нижнє відхилення вала
ei = - 46 мкм, тоді найменший розмір вала буде dmin = d + ei = 80,0
+ (-0,046) = 79,954 мм.
Визначаємо найменший зазор у з'єднанні Æ80H8/h8 за формулою
(1.4):
min = Dmin - dmax = EI
- es = 80,0 - 80,0 =0 мм.
Визначаємо найбільший зазор у з'єднанні Æ80H8/h8 за формулою
(1.5):
max = Dmax - dmin = ES
- ei = 80,046 - 79,954 =0,046- (-0,046) =0,092 мм.
Визначаємо допуск посадки із зазором Æ80H8/h8 за формулою
= Smax - Smin = TD
+ Td = 0,092 - 0 =0,092 мм.
Схему полів допусків з'єднання Æ80H8/h8 наведено на рис.
1.1
.
Рис. 1.1
1.2
Посадка з натягом
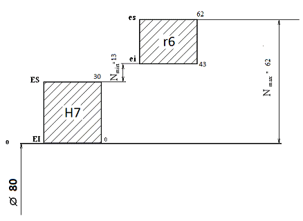
Задано з’єднання Æ80H7/r6.
Визначити граничні розміри і відхилення отвору та вала, найбільший і найменший
натяги, допуск посадки. Побудувати схему полів допусків з’єднання.
Розв’язок. За ДСТУ 2500 - 94
визначаємо основні відхилення і граничні розміри отвору і вала.
Отвір Æ80H7. Знаходимо нижнє відхилення: EI=0 (це
основне відхилення системи отвору).; знаходимо верхнє відхилення ЕS = EI+IT7 =
0+30=30 мкм; найбільший діаметр отвору буде D
= D + ES = 80 + 0,03 =80,03 мм; найменший діаметр отвору буде D
= D + EI = 80,0 + 0 = 80,0 мм.
Вал Æ80r6.
Визначаємо граничні розміри: верхнє
відхилення вала ei = = +43мкм, тоді найменший розмір вала d
=d + ei = 80,0 + 0,043 = 80,043 мм; нижнє
відхилення вала еs =ei +IT6=43+19=62 мкм, тоді найбільший розмір вала d
= d + es = 80,0 + 0,062 = 80,062 мм.
Найменший натяг визначаємо за формулою (1.6):
= d
- D
= ei - ES = 80,043-80,03=0,043-0,03= 0,013 мм.
Найбільший натяг визначаємо за формулою (1.7):
= d
- D
= es - EI = 80,062-80,0=0,065-0=0,062 мм.
= N Визначаємо допуск посадки з’єднання Æ80H7/r6 з натягом:
=N
- N
= TD + Td =0,062-0,013 =0,03+0,019 =0,049мм.
Схему полів допусків з’єднання Æ80H7/r6 на рис. 1.2.
Рис.1.2
1.3
Перехідна посадка
Задана перехідна посадка Æ80N7/h6. Визначити
граничні розміри і відхилення отвору та вала, найбільший зазор і найбільший
натяг, допуск посадки. Побудувати схему полів допусків з’єднання. Визначити
імовірність одержання зазорів і натягів та побудувати криву нормального розподілу
в довільному масштабі.
Розв’язок. За ДСТУ 2500 - 94
визначаємо основні відхилення і граничні розміри.
Отвір Æ80N7. Нижнє відхилення
отвору EI = ES-IT7 =-9-30=-39 мкм; верхнє відхилення отвору ES = -
2O+∆=-20+11=-9 мкм, ∆= IT7 - IT6 =30-19=11мкм;
Визначимо граничні розміри:
найменший діаметр Dmin = D + EI = 80,0
+ (-0,039) = 79,961 мм;
найбільший діаметр Dmax =D + ES= 80,0
+ (-0,009) = 79,991 мм;
Вал Æ80h6. Верхнє відхилення
вала es = 0; нижнє відхилення ei = - 19 мкм.
Визначимо граничні розміри:
найбільший діаметр dmax = d + es =
80,0 + 0 = 80,0 мм;
найменший діаметр dmin= d + ei = 80,0
+ (-0,019) = 79,981 мм;
Найбільший зазор у з’єднанні Æ80N7/h6
визначається за формулою:
max = Dmax - dmin =
79,991 - 79,981 = 0,010 мм,
а найбільший натяг:
max= dmax - Dmin = 80,0
- 79,961 = 0,039 мм.
Допуск посадки з’єднання Æ80N7/h6:
(SN) = Smax + Nmax = 0,010
+ 0,039 = 0,049 мм, або(SN) = TD + Td = 0,030 + 0,019 =
0,049 мм.
Схему полів допусків перехідної посадки з’єднання
Æ25N7/h6 наведено на рис 1.3
Рис 1.3
Визначення найбільшого зазору та натягу з’єднання
можна було провести і наступним чином:
найбільший зазор Smax = ES - ei = -
0,009 - (-0,019) = 0,010 мм;
найбільший натяг Nmax = es - EI = 0 -
(-0,039) = 0,039 мм.
· Розсіювання відхилень
розмірів отвору і вала підлягає нормальному розподілу (закону Гауса);
стандартизація деталь прилад розмір
· Границі полів розсіювання
(для закону Гауса при великій виборці деталей обмежується з достатньою
імовірності 6σ) відхилень співпадають з
границями полів допусків, тобто
З цього виразу визначаю середньоквадратичні
значення випадкових величин (відхилення розмірів отвору і вала):
σN = IT7/6 = 0,030/6
= 0,00500 мм,
σh = IT6/6 =
0,019/6 = 0,00317 мм.
Відхилення розмірів вала і отвору являють собою
незалежні випадкові величини і тому для визначення середньоквадратичної посадки
σ∆ застосуємо правило
сумування:
мм.
Побудуємо криву розподілу зазорів - натягів у певному
масштабі (рис.1.4). Центром групування є величина середнього натягу, оскільки
при середніх значеннях отвору (-0,009 - 0,039) /2 = - 0,024 мм і валу (-0,019 -
0) /2=-0,0095 мм отримується натяг рівний - 0,024 - (-0,0095) = - 0,0145 мм.
Тоді найбільш імовірнісний натяг
Pmax = - 0,0145 - 3σ∆ = - 0,0145 - 3 ∙
0,00592 = - 0,03226 мм,
а найбільший імовірнісний зазор
Pmax =-0,0145 + 3σ∆ =-0,0145 + 3 ∙
0,00592 = - 0,00326мм,
значення яких проставлені на рис. 1.4.
Рис. 1.4
Імовірність натягу в межах 0…0,0145 мм можна
визначити за допомогою інтегралу Фо (z), де z = x/ σ∆ =-2,45. З таблиці значень
функції Лапласа Ф0 (2,45) =0,0071. Таким чином,імовірність одержання
натягів:
N =0,0071+0,5=0,5071 або 50,71 %.
Імовірність одержання зазорів PS = 1 -
0,5071 = 0,4929 або 49,29%.
Даний розрахунок є наближеним, оскільки в ньому
не враховані можливості зміщення центра групування відносно середини поля
допуску внаслідок систематичних похибок.
2.
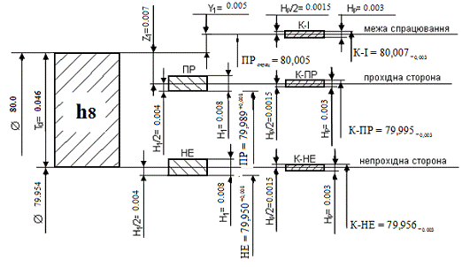
Калібри для контролю гладких циліндричних деталей
Задано циліндричне з’єднання Æ80 H8/h8. Розрахувати
калібри.
Розв’язок.
. Визначаємо за ДСТУ 2500 - 94 [1] граничні
відхилення і розміри отвору Æ80H8.
EI = 0 мкм; D
= D + EI = 80,0 + 0 = 80,0 мм;= +46 мкм; D
= D + ES = 80,0 + 0,046 = 80,046 мм.
За ГОСТ 24853 - 81 [3], табл.2 знаходимо дані для
розрахунку розмірів калібрів: H = 5 мкм; Y = 7 мкм; Z = 7 мкм; a = 0.
Розрахунок виконавчих розмірів виконуємо за формулами, які
приведені в [3], табл.1.
Найбільший розмір прохідного нового калібру - пробки ПР:
ПР
= D
+ Z + H/2 =80,0 + 0,007 + 0,0025 = 80,005 мм.
Найменший розмір спрацьованого калібру - пробки ПР
ПР
= D
- Y = 80,0 - 0,007 = 79,993 мм.
Найбільший розмір непрохідного калібру - пробки НЕ:
НЕ
= D
+ H/2 = 80,046 + 0,0025 =80,0485 мм.
Отже, виконавчі розміри калібру - пробки Æ80H8:
ПР = 80,005
мм;
ПР
= 79,993 мм;
НЕ = 80,0485
мм.
Побудуємо схему розміщення полів допусків калібру - пробки Æ80H7 у відповідності до
[3], кресл.1 (рис. 2.1).
Рис. 2.1 Схема розміщення полів допусків калібру - пробки Æ80H8.
. Визначаємо за [1] відхилення і розміри валу (Æ80h8).
= 0; d
= d + es = 80,0 + 0 = 80,0 мм;= - 46 мкм;
d
= d + ei = 80,0 + (-0,046) = 79,954 мм.
За ГОСТ 24853 - 81 [3], табл. 2 знаходимо дані для
розрахунку розмірів калібрів: H
= 8 мкм; H
= 3 мкм; Y
= 5 мкм; Z
= 7 мкм.
Розрахунок виконавчих розмірів виконуємо за формулами, які
приведені в [3], табл. 1.
Примітка. В даній таблиці у формулах розміри отворів
і валів позначені однаково - літерою D з відповідними індексами. Для зручності,
згідно означення в п.1.1, будемо використовувати позначення розміру валу d.
Найменший розмір прохідного нового калібру - скоби ПР:
ПР
= d
- Z
- H
/2 = 80,0 - 0,007 - 0,004 = 79,989 мм.
Найбільший розмір спрацьованого калібру - скоби ПР
:
ПР
= d
+ Y
= 80,0 + 0,005 = 80,005 мм.
Найменший розмір непрохідного калібру - скоби НЕ:
НЕ
= d
- H
/2 = 79,954 - 0,004 = 79,950 мм.
Отже, виконавчі розміри калібру - скоби Æ80h7:
ПР = 79,989
мм; ПР
= 80,005 мм;
НЕ = 79,950
мм;
. Визначаємо розміри контрольних калібрів для калібру -
скоби.
Найбільший розмір для контролю прохідного нового калібру -
скоби:
К-ПР
= d
- Z
+ H
/2 = 80,0 - 0,007 + 0,0015 = 79,995 мм.
Найбільший розмір для контролю непрохідного нового калібру
- скоби:
К-НЕ
= d
+ H
/2 = 79,954 + 0,0015 = 79,956 мм.
Найбільший розмір для контролю спрацьованого калібру скоби:
К-I
= d
+ Y
+ H
/2 = 80,0 + 0,005 + 0,0015 = 80,007 мм.
Отже, виконавчі розміри для контролю калібру - скоби Æ80h8:
К-ПР = 79,995
мм;
К-НЕ = 79,956
мм;
К-I = 80,007
мм.
Побудуємо схему розміщення полів допусків калібру - скоби Æ80h8 у відповідності до [3], кресл. 5 (рис.
2.2).
Рис. 2.2 Схема розміщення полів допусків калібр - скоби Æ80h8.
Ескізи калібру - пробки і калібру - скоби показані на рис.
2.3

Рис. 3.1
. В даній задачі замикальною ланкою є зазор В∆.
Приймаємо номінальний розмір цього зазору В∆ = 1 мм. Тоді,
згідно завдання: [В∆] = 1,0 мм;
[ES∆] = 0,7 мм; [EI∆] = -
0,6 мм;
[∆c∆] = 0,05мм; [T∆]
= 1,3 мм.
. За рис. 3.1, визначаємо ланцюг розмірів, які впливають на
зміну замикаючої ланки і складаємо схему розмірного ланцюга (рис. 3.2.). рис.
3.2
Зменшуючою є ланка В2, всі інші є -
збільшуючими.
. Номінальні розміри складових ланок: В1 = 9 мм;
В2 = 37 мм; В3 = 17 мм; В4 = 12 мм. Складаємо
рівняння розмірного ланцюга (3.1):
В∆ = (В1 + В3 + В4)
- В2 = (9 + 17 + 12) - 37 = 1 (мм).
Отже, номінальні розміри складових ланок призначені
правильно.
. Розрахуємо допуски складових ланок за способом одного
квалітету. За формулою (3.14) і табл.3.1 визначаємо середнє число одиниць
допуску складових розмірів:
По табл. 3.2 знаходимо, що таке число одиниць допуску
відповідає наближено 13-му квалітету в ЄСДП. Приймаємо, що така точність в
даних умовах доцільна.
. Таким чином, допуски складових розмірів з врахуванням
степені складності виготовлення приймаємо згідно [1]: T1 =220 мкм; T2
= 390 мкм; T3 = 270 мкм; T4 = 270 мкм.
Перевіряємо правильність призначення допусків складових
ланок за рівнянням (3.4):
T∆ = 0,22+0,39 + 0,27 + 0,27 =
1,15 < [T∆] » 1,3 мм.
. Призначаємо граничні відхилення на всі складові
розміри виходячи з економічної доцільності виготовлення. Для ступеневої ланки В1
призначаємо відхилення h, тобто Dс1 = ES + 1/2T1
= - 110 мм. Для ступеневої ланки В2 призначаємо відхилення x, тобто
Dс2 = EI + 1/2T2 = +275 мм; а для ступеневої
ланки B4 призначаємо відхилення s, тобто Dс4 = EI + 1/2T4
= +163 мм; Тоді середнє відхилення поля допуску В3 = Вх
(див.3.18) [8], стор.24:
Dс3 = Dcx =Dс2 - (Dс1 + Dс4) + [DсD]
Граничні відхилення В3 = Вх
(3.19) [8], стор.24
ЕS3 = ЕSx =Dcxзб + 1/2T3 =272 + 135 = +407
мкм;3 = EIx =Dcxзб - 1/2Т3 =272 - 135 = +137
мкм.
Одержані значення близькі до 17zb13
; Dc3 = +243 мкм.
Прийняті розміри і відхилення заносимо в табл. 3.1:
Таблиця 3.1
|
Позначення
ланок
|
Можлива
кінцева технологічна операція
|
Розміри
і відхилення, мм
|
Примітка
|
|
ВD
|
Складання
|
1 За умовою
|
|
|
В
1
|
Токарна
обробка
|
9 9 h13
|
|
|
В
2
|
Токарна
обробка
|
37 37 x13
|
|
|
В
3
|
Токарна
обробка
|
17 17 zb13
|
|
|
В4
|
Токарна
обробка
|
12 12 s13
|
|
. Правильність призначення граничних відхилень
перевіряємо за формулами (3.8), (3.9), (3.10) [8], стор.22:
ESD = Dc2 - (Dc1 +Dc3 + Dc4) + 1/2TD = 0,275 -
(-0,110+0,243+0,163) + 0,575 = = 0,554 ≤ [ESD] = 0,700 мм;D = (Dc1 +Dc3 + Dc4) - Dc2 - 1/2TD = 0,275 -
(-0,110+0,243+0,163) - 0,575 = = - 0,596 ≥ [ESD] = - 0,600 мм,
тобто граничні відхилення складових ланок
призначені правильно.
3.2
Розрахунок імовірнісним методом (пряма задача)
Для можливості порівняння з розрахунком за
методом повної взаємозамінності розглянемо той же розмірний ланцюг (див. рис.3.1).
. - 3-й пункти аналогічні відповідним пунктам
розв'язку методом повної взаємозамінності.
4. Приймаємо, що розсіювання розмірів ланок близьке
до нормального закону, тобто li = 1/3 і відповідно lD = 1/3. Приймаємо також ai = 0.
5. Розрахуємо допуски складових ланок за способом
одного квалітету,
приймаючи Р = 0,27 %. знаходимо коефіцієнт t = 3.
За формулою (3.21) [8], стор.26 визначаємо
середнє число одиниць допуску складових ланок ([ТD] = 1300 мкм):
де і - одиниця допуску за табл. 3.1 [8], стор. 23.
Для розміру В1 = 9 мм: і1 = 0,9 мкм;
для В2 = 37 мм: і2 = 1,56 мкм; для В3 = 17 мм:
і3 = 1,08 мкм; В4 = 12 мм: і3 = 1,08 мкм
За табл. 3.2 [8], стор. 23 визначаємо, що одержане число
одиниць допуску аср = 215 відповідає наближено 13-му квалітету.
Приймемо, що в даних умовах така точність доцільна.
6. Таким
чином, допуски 13-го квалітету для ланок В1, В2, В3,
В4 дорівнюють:
Т1 = 0,220 мм; Т2 = 0,390 мм; Т3
= 0,270 мм, Т4 = 0,270 мм. Перевіряємо правильність
призначення допусків складових ланок за формулою:

мм.
Оцінимо процент ризику Р, оскільки ТD
[ТD]. За формулою (3.25) [8], стор. 28:
.
За табл. 3.4 [8], стор.27 знаходимо Р = 0,27 %, що дорівнює
прийнятому значенню.
. Призначаємо
граничні відхилення на всі складові розміри. Для ланок В1, В2,
В3, В4 приймаємо відхилення,
В1 = 9n13 = 9
,Dc1 = 120 мкм,
В2 = 37zb13 = 37
, Dc2 = 395 мкм;
В3 = 17js13 = 17
, Dc3 = 0 мкм;
В4 = = 12zb13=12
,Dc4
=225 мкм;
Відхилення заносимо в табл. 3.2:
Таблиця 3.2
Номінальні
розміри, мм
|
Відхилення,
мкм
|
Допуски,
мм
|
|
|
-
|
ES
|
EI
|
Dc
|
|
|
ВD
|
1
|
-
|
+0,7
|
-0,6
|
0,1
|
1,3
|
|
В1
|
9
|
9n13
|
+0,230
|
+0,010
|
0,120
|
0,22
|
|
В2
|
37
|
37zb13
|
+0,590
|
+0,
200
|
0,395
|
0,39
|
|
В3
|
17
|
17js13
|
0,270
|
-
0,270
|
0
|
0,54
|
|
В4
|
12
|
12zb13
|
+ 0,360
|
+ 0,090
|
+ 0,225
|
0,27
|
|
|
|
|
|
|
|
|
|
Розрахуємо середнє значення замикаючої ланки за
формулою (3.23) [Dci] за формулою (3.7)] [8],
стор. 27:
DcD = Dc2 - (Dc1 + Dc3 + Dc4) = 0,395 -
(0,120 + 0 + 0,225) = 0,05мм= = [DcD].
. Визначимо граничні відхилення замикаючої ланки за
формулами (3.9) і (3.10) [8], стор. 22:
ESD = DcD +
TD = + (0,05) +
0,585 = +0,343 мм < [ESD] = [+0,700];D = DcD -
TD = + (0,05) -
0,585 = - 0,243 мм > [EID] = [ - 0,6],
тобто граничні відхилення складових ланок призначені
правильно.
Порівнюючи результати розв'язку попередньої задачі (метод
повної взаємозамінності) із даною задачею (імовірнісний метод), неважко
помітити перевагу останньої, оскільки допуски складових розмірів є більшими при
практичній відсутності ризику появи бракованих виробів (Р = 0,27 %).
4.
Допуски і посадки різьбових з¢єднань
Задано різьбове з¢єднання М36
7H/8h. Визначити номінальні та граничні значення діаметрів болта і гайки,
граничні відхилення на зовнішній, внутрішній та середній діаметр заданої різьби
болта і гайки.
Згідно позначення різьби поле допуску болта М36
7H/8h, тобто поле допуску середнього діаметру 8h і поле допуску зовнішнього
діаметру 8h, а поле допуску гайки 7H - поле допуску середнього і внутрішнього
діаметрів 7H. Також згідно [5], с.142, табл.4.22 при зовнішньому діаметрі d (D)
= = 36 мм крок різьби P = 4 мм.
Визначимо за [5], с.144, табл.4.24 згідно ГОСТ
24705 - 81 номінальні діаметри різьби болта і гайки:
середній діаметр d2 = D2 =
36 - 3 + 0,402 = 33,402 мм;
внутрішній діаметр d1 = D1 =
36 - 5+ 0,670 = 31,670 мм.
Розрахуємо також наступні параметри:
висота вихідного трикутника H = 0,866 ∙ P =
3,464 мм;
робоча висота профілю H1 = 0,541 ∙
P = 2,164 мм;
номінальний радіус заокруглення впадини
внутрішньої різьби R = H/6 = = 0,58 мм;
висота зрізу вершини різьби
для болта H/4 = 0,866 мм;
для гайки H/8 = 0,433 мм.
Графічне зображення різьбового профілю показано
на рис. 1
Рис. 4.1 Профіль різьбового з’єднання М36 7H/8h.
За [5], с.154, табл.4.29 згідно ГОСТ 16093 - 81
вибираємо відхилення діаметрів різьби:
§ для болта - верхнє
відхилення (es) для d, d1, d2 = 0;
нижнє відхилення (ei) для d2 = - 355
мкм;
нижнє відхилення (ei) для d = - 750 мкм;
§ для гайки - нижнє
відхилення (EI) для D, D1, D2 = 0;
верхнє відхилення (ES) для D2 = + 375
мкм;
верхнє відхилення (ES) для D1 = + 750
мкм.
max = d + es = 36 + 0 = 36,0 мм;min
= d + ei = 36 + ( - 0,75) = 35,250 мм;2max = d2 + es =
33,402 + 0 = 33,402 мм;2min = d2 + ei = 33,402 + ( -
0,355) = 33,047 мм;1max = d1 + es = 31,670 + 0 = 31,670
мм;
min - не нормується.
Розрахуємо
граничні діаметри гайки
Dmax
= не нормується;
min = D + EI = 36 + 0 = 36,0 мм;
D2max = D2 + ES = 33,402 +
0,375 = 33,777 мм;2min = D2 +EI = 33,402 + 0 = 33,402 мм;1max
= D1 + ES = 31,670 + 0,750 = 32,420 мм;1min = D1 +EI
= 31,670 + 0 = 31,670 мм
Схема полів допусків різьбового з¢єднання М36 7H/8h
зображена на рис. 4.2 (посадка із зазором).
Висновки
Основною метою цієї курсової роботи було
навчитися користуватися стандартами, правильно встановлювати значення допусків
і види посадок для проектованих вузлів, в тому числі і норми точності
геометричних параметрів, визначати технічні засоби вимірювання для проведення
контролю деталей.
Мною були проведені розрахунки:
§ гладких циліндричних
з’єднань, а саме розрахунки:
. посадки із зазором;
2. посадки із натягом;
. перехідної посадки;
§ калібрів для контролю
гладких циліндричних деталей;
§ розмірних ланцюгів, а
саме розрахунок:
1. методом повної взаємозамінності (пряма
задача);
2. імовірнісним методом (пряма задача);
§ допусків і посадок
різьбових з’єднань.
Розрахунок та оформлення було виконано згідно
вимог до курсової роботи.
Перелік
посилань
1. ДСТУ
2500 - 94. Єдина система допусків і посадок. Терміни та визначення. Позначення
і загальні норми. К.: Держстандарт України 1994.
2. ГОСТ
24853 - 81 (СТ СЭВ 157 - 75). Калибры гладкие для размеров до 500 мм. М.:
Изд-во стандартов, 1981.
. Метрологія,
взаємозамінність і стандартизація. Методичні вказівки та завдання до курсової
роботи для студентів інженерно-технічного факультету спеціальностей 7.090901 -
"Приладобудування” та 7.090905 - "Наукові, аналітичні та екологічні
прилади і системи”. Викладачі: В.В. Федак, С.В. Тютюнников. УжНУ, 2002, 44 с.