Склад та призначення коксового газу для заводів

  • Вид работы:
    Дипломная (ВКР)
  • Предмет:
    Другое
  • Язык:
    Украинский
    ,
    Формат файла:
    MS Word
    2,41 Мб
  • Опубликовано:
    2014-07-08
Вы можете узнать стоимость помощи в написании студенческой работы.
Помощь в написании работы, которую точно примут!

Склад та призначення коксового газу для заводів

Вступ

газозбірник коксовий газ теплоємність

Хімічні продукти, що утворюються при коксуванні кам'яного вугілля, виходять з подсводового простору коксових печей з температурою, що дорівнює 650-700° С. Для подальших технологічних процесів коксовий газ повинен бути охолоджений до 25-35° С.

Це необхідно з наступних причин:

а) у результаті охолодження газу і конденсації паров води і смоли різко зменшується об'єм газу і, отже, зменшуються продуктивності нагнітачів і витрата енергії на стиснення і переміщення газу через уловлювану апаратуру;

б) уловлювання хімічних продуктів коксування (аміаку, бензольних углеводороводов, сірководню, та ін) при температурі 25-35 ° С забезпечує досить високу ступінь поглинання;

в) виділення з коксового газу, при його охолодженні, смоли дозволяє зменшити забруднення апаратури для уловлювання хімічних продуктів коксування і газопроводів. Крім того, виділення парів смоли з коксового газу необхідно для покращення якості сульфату амонію. Присутність смоли в газі погіршує також якість поглинаючого масла, вживаного для уловлювання бензольних вуглеводнів. Тому першою технологічною операцією, якій піддається газ на виході з коксових печей, є його охолодження.

Незважаючи на простоту фізичного охолодження коксового газу, конструктивного його оформлення зустрічає певні труднощі технічного порядку. Це пояснюється великим обсягом газів, що підлягають охолодженню, виділенням на поверхні апаратури плівок смоли і відкладень нафталіну, що порушують нормальний тепловий режим, а також агресивністю утворюється в процесі охолодження коксового газу.

Несприятливі умови роботи охолоджуючої апаратури коксового газу повинні бути враховані при виборі технологічної схеми і розрахунку апаратури з тим, щоб забезпечити необхідну продуктивність апарата та встановлені правилами технічної експлуатації режимні показники.

Первинне охолодження коксового газу виробляється у дві стадії:

а) охолодження коксового газу в колінах стояків і газозбірника при зрошенні водою до 80-85° С;

б) охолодження коксового газу в первинних газових холодильниках до 25-35° С.

У вітчизняній коксохімічної промисловості застосовують в даний час дві схеми первинного охолодження коксового газу:

) в трубчастих холодильниках;

) в холодильниках безпосередньої дії.

Кожна з цих схем має свої переваги і недоліки, які детально розглядаються в спеціальній літературі по технології коксохімічного виробництва.

В останні роки в якості типовой застосовується схема первинного охолодження коксового газу в трубчастих холодильниках як більш економічна.


1. Склад і властивості коксового газу; охолодження коксового газу і вошденсація парів води і смоли

1.1 Склад прямого коксового газу

Склад прямого (сирого коксового газу), що виходить з камер коксових печей, змінюється протягом періоду коксування; змінюється також вихід і щільність газу.

У з'єднувальному газозбірнику відбувається усереднення з різних камер, складових в різні години коксування з різних камер, складових коксову батарею.

Вихід і склад коксового газу залежить від технологічного режиму процесу коксування і якості перероблюваної вугільної шихти. При незмінному режимі коксування і постійному складі шихти вихід і склад коксового газу на конкретному коксохімічному заводі залишається практично постійним. Виділяющійся з печей коксовий газ являє собою суміш, що складається з водню, метану, окисю вуглецю, азоту і його окислів, вуглекислого газу, бензольних вуглеводнів, етилену і його гомологів та ін

Таблиця 1. вихід окремих компонентів газу і хімічних продуктів коксування в масових відсотках від сухої шихти

Метан

5.5-6.5

Кам'яновугільна смола

3-4

Окис вуглецю

2.6-2.8

Азот

2.1-2.4

Водень

1.5-1.7

Вуглекислий газ

1.2-1.3

Неграничні вуглеводні

1.2-1.25

Ароматичні вуглеводні

1.0-1.02

Аміак

0.3-0.47



Прямий коксовий газ переробляється в хімічних цехах коксохімічного підприємства. Процес переробки зводиться до охолодженню коксового газу і виділення з нього кам'яновугільної смоли, вилученню аміаку, нафталіну, піридинових підстав, ароматичних вуглеводнів, сірководню і ряду інших продуктів. Питання вилучення перелічених продуктів з коксового ряду розглядаються у наступних главах.

1.2 Склад зворотнього коксового газу

Коксовий газ, що прийшов конденсаційну і уловлює апаратуру хімічних цехів (зворотний) має наступний зразковий склад.

Таблиця 2. Склад зворотного коксового газу

Компонент

Вміст, % об

Середній склад, % об.

Водень

58.0-62.0

60.0

Метан

24.5-26.5

26.0

Неграничні вуглеводні

2.0-2.5

2.2

Окис вуглецю

5.0-6.5

6.0

Азот

2.0-3.5

2.7

Двоокис вуглецю

1.6-3.0

2.6

Кисень

0.4-0.8

0.5


Середня щільність зворотного коксового газу дорівнює 0,44 кг/м3, нижча теплота згорання - 18226, 5 кДж/м3.

1.3 Склад коксового газу для заводів, коксівного шихти з вугілля різних басейнів СНД

Склад коксового газу для заводів, коксівного шихти з вугілля різних басейнів СНД неоднаковий. У табл. 3 представлений середній склад коксового газу, отриманого з вугілля різних басейнів СНД.

Таблиця 3. Склад коксового газу по групах заводів СНД.

Група заводів

Склад коксового газу, % (об.)

Густина, кг/м³

Нижча теплота згорання, кДж/м³

Н2

СН4

СmHn

CO

N2

CO2

O2

Заводи, які переробляють шихту з вугілля Донецького басейну

60.5

25.7

2.5

5.6

3.0

2.4

0.6

0.436

18234.88

Заводи, які переробляють шихту з вугілля Кузнецького і Карагандинського басейнів

58.5

25.4

2.2

7.5

3.7

2.3

0.5

0.456

17929,0

Заводи, які переробляють з вугілля родовищ: - Печорського - Кизеловского

   59.8 55.6

   24.6 27.3

   2.4 4.1

   6.8 5.5

   3.5 2.7

   2.4 4.0

   0.5 0.8

   0.448 0.490

   17891.3 19542.16


Газ заводів, які використовують шихти з підвищеним вмістом вугілля Кузнецького басейну, має підвищену густину і меншу теплоту згорання, містить велику кількість азоту і менше водню. Газ, одержуваний із шихт з високим вмістом вугілля Кизеловського родовища, містить велику кількість метану і неграничних вуглеводнів [1].

1.4 Вихід газу і хімічних продуктів коксування

Вихід газу на 1т сухої шихти може бути виражений у вагових одиницях (G Кг), об'ємних одиницях (V, м3), при нормальних умовах або приведених до 16760 кДж/м3 (Vпрів).

Ці величини пов'язані між собою наступними співвідношеннями:

G/ρ=V (1.1)

V·Q/16760=Vприв (1.2)

Де ρ-густина газу, кг/м3; Q - нижча теплота згорання газу, кДж/м3.

Для характеристики коксових печей як генераторів коксового газу користуються виходом наведеного газу. (табл. 4)

Група заводів

Вихід на 1 т сухої шихти


Газу, V, м³

Газу Vприв, м ³

Газу, кг

Смоли, кг

Аміаку, кг

Сирого бензолу, кг

Заводи, які переробляють шихту з вугілля Донецького басейна

  310

  337

  136

  32.5

  2.85

  10.56

Заводи, які переробляють шихти з вугілля Кузнецького і Карагандинського басейнів

 332

 355

 152

 29.2

 3.8

 9.8

Заводи, які переробляють з вугілля родовищ: - Печорського - Кизеловского

  322 320

  345 372

  144 157

  36.8 46.6

  4.35 2.16

  9.8 13.8


Виходячий з газозбірников прямий газ містить водяні пари, одержувані за рахунок випаровування вологи шихти, пірогенетичной води, частини води газозбірикового циклу, і за рахунок інжекції при бездимної завантаженні печі. Для вугілля Донбасу залежність виходу пірогенетичной води від виходу летких речовин вугілля можна представити по рівнянню [2]:

Н2Опир.=4.64-0.354·Vс+0.0118 (Vс)², (1.3)

Де Vс-вихід летких речовин на суху шихту.

Зміст окремих складових в газі для широкого діапазону шихт приведено в табл. 5, г / м ³ очищеного газу [3].


Таблиця 5. Зміст окремих складових в газі

Пари смоли

80-150

Ароматичні вуглеводні

22-45

Аміак

6-13

Сірководень

5-40

Нафталін

<10

Піридинові підстави

0.4-0.6

Ціаністий водень

0.5-2.5

Органічна сірка

0.2-0.7


Також в коксовому газі міститься оксиди азоту, сполуки германію та ін. Зміст водяної пари в газі після газозбірника визначається точкою роси, яка на 1-2° С нижче температури надсмольної води, що виходить з газозбірника.

1.5 Властивості газу і його компонентів. Стисливість. Газова постійна. Густина

Об'єм ідеального газу (до яких можна віднести двоатомні гази), температура і тиск зв'язані рівнянням:

рυ = RT (1.4)

де р-тиск газу, кг/м3;

υ - питомний об'єм газу, м ³ / кг;газова постійна, Н м / кг° К;

Т - абсолютна температура,° К.

Газова постійна, може бути виражена в: ккал / (кмоль° К), в ккал / (кг° К). Питомний об'єм газу пов'язаний з його густиною співвідношенням:

υ=1/ρ, (1.5)


де ρ - щільність газу, кг / м ³;

об'єм реальних газів обчислюють за спрощеною формулою:

рυ=КRТ, (1.6)

К-коефіцієнт стисливості газу, що характеризує відхилення даного газу від ідеального, для газових сумішей визначаються за правилом адитивності.

Наближені значення К для коксового газу представлені в табл. 6, величини ρ і R компонентів коксового газу наведено в табл. 7.

Таблиця 7. наближені величини коефіцієнтів стисливості компонентів коксового газу

Компоненти

Тиск, атм


50

100

150

200

Двоокись вуглецю

0.99

0.98

0.99

1.02

Неграничні вуглеводні

0.98

0.95

0.93

0.90

Окис вуглецю

0.99

0.98

0.99

1.02

Метан

0.91

0.85

0.82

0.80

Водень

1.03

1.06

1.11

1.15

Азот

0.99

0.99

1.02

1.04


При розрахунках процесу згорання необхідно також враховувати тепловий еквівалент газу (число Вобба). Для коксового газу середнього складу цей показник дорівнює:

W=Q/ρ=4350/√0.44=6600. (1.7)

1.6 Теплоємність

У табл. 7 наведені значення середньої об'ємної теплоємності компонентів коксового газу при постійному тиску Ср в інтервалі температур 0-2500° С, мольну теплоємність виражають в ккал / (кмоль° С) і ккал / (м ³° С).

Мольна теплоємність ккал / (кмоль° С) компонентів коксового газу приблизно може бути обчислена за форму

Ср= а+вТ+сТ², (1.8)

Де Т - абсолютна температура, К;

А.В, з - коефіцієнти. В табл. 7 наведено коефіцієнти для деяких газів.

Таблиця 7. значення коефіцієнтів для визначення мольной теплоємності компонентів коксового газу

Компоненти

а

b·10³

c·106.

CO2

6.85

8.533

-2.475

O2

6.26

2.746

-0.770

CO

6.25

2.091

-0.459

H2

6.88

0.066

+0.279

CH4

3.38

1.819

-4.188

N2

6.30

5.558

-0.345

H2S

6.48

3.283

-1.204

Н2О (пары)

6.89

2.426

-0.343


Теплоємність коксового газу може бути обчислена за правилом адитивності:

Ссм=(а1с+а2с2+…аnсn)/100, ккал/(м³°С) (1.9)

Де а1… аn - вміст компонентів, % (об'емн);

с1… сn - середні теплоємності компонентів, ккал / (кмоль° С).


Таблиця 8. середня теплоємність компонентів коксового газу та повітря, ккал / (м ³° С)

Температура, °С

О2

N2

Повітря

Н2

СО

СО2

Н2S

Водяна пара

СН4

С2Н4

С3Н6

0

0.3119

0.3092

0.3098

0.3049

0.3103

0.3821

0.360

0.3569

0.3702

0.4363

0.6393

100

0.3147

0.3095

0.3106

0.3083

0.3109

0.4061

0.366

0.3595

0.3922

0.4925

0.7281

200

0.3189

0.3104

0.3122

0.3098

0.3122

0.4269

0.373

0.3637

0.4201

0.5452

0.8071

300

0.3239

0.3121

0.3146

0.3103

0.3145

0.4449

0.381

0.3684

0.4505

0.5960

0.8851

400

0.3290

0.3144

0.3175

0.340

0.3174

0.4609

0.390

0.3739

0.4814

0.6415

0.9565

500

0.3339

0.3171

0.3207

0.3117

0.4750

0.399

0.3797

0.5112

0.6839

1.0230

600

0.3384

0.3201

0.3240

0.3124

0.3242

0.4875

0.408

0.3857

0.5400

0.7227

1.0841

700

0.3426

0.3233

0.3274

0.3134

0.3277

0.4988

0.417

0.3920

0.5677

0.7571

1.1408

800

0.3463

0.3265

0.3306

0.3145

0.3311

0.5090

0.426

0.3984

0.5957

0.7901

1.1921

.7 Теплопровідність

Залежність теплопровідності газу від температури обчислюють за формулами:

λ=λ0(273+С/Т+С) (Т/273)3/2; (1.10)

λ=λ0 + бt (1.11)

де Т - абсолютна температура, К;

t - температура,° С;

λ0 - теплопровідність при 0° С, ккал / (м • год •° С)

б і С - постійні;

Таблиця 9. Значення λ0, С і б для компонентів коксового газу

Компоненти

λ0, ккал/(м·г·°С)

С

б·105

СО2 (от -78 до +500°С)

0.012

-

5.5

О2 (от -101 до +100°С)

0.021

144

-

Н2 (от -192 до +100°С)

0.150

94

-

N2 (от -192 до +100°С)

0.021

114

-

Повітря (от -191 до +212°С)

0.021

125

-

Н2S

0.011

-

-

CH4

0.026

-

10.7

CO

0.019

156

-

C2H4

0.015

-

-

H2O

0.0139

-

-


Теплопровідність газової суміші не підкоряється закону адитивності. Залежність теплопровідності двох-трьохатомних газів від температури показана в табл. 10.

Таблиця 10. залежність теплопровідності двох-трьохатомних газів від температури. (λ0 • 10 ³ ккал / (м • год •° С)).

Температура,°С

О2

N2

Повітря

Н2

CO2

H2O(пари)

0

21.55

21.38

21.36

150

12.42

13.8

100

27.99

21.09

27.40

186

19.52

21.19

200

34.37

32.30

32.91

222

26.70

28.94

300

40.64

37.31

38.28

258

33.86

39.24

400

46.65

42.44

43.45

294

40.84

49.06

500

52.40

47.47

48.38

330

47.60

60.16

600

57.72

52.35

53.22

366

54.07

72.10

700

62.82

57.08

57.81

402

60.27

84.68

800

67.69

61.63

62.21

438

66.12

98.10

900

72.00

66.03

66.40

474

71.74

111.90

1000

76.36

70.27

70.50

510

77.10

126.10

1100

80.60

74.29

74.32

546

82.26

140.50

1200

84.60

78.17

78.10

582

87.11

155.00


1.8 Динамічна в'язкість

Динамічна в'язкість - сила тертя, віднесена до одиниці поверхні і одиниці градієнта швидкості.

Для середнього складу коксового газу динамічну в'язкість при 0° С можна прийняти рівною 1.1 • 10-6 кг / м • с.

Кінематична в'язкість визначається як динамічна в'язкість, віднесена до щільності газу, м2 / с. (табл. 11 - 12)

Таблиця 11. залежність коефіцієнта динамічної в'язкості від температури, η • 105, кг / (см • с).

Компоненти

Температура,°С


0

200

400

600

800

1000

1200

Кисень

1.943

2.910

3.677

4.327

4.900

5.416

5.889

Азот

1.667

2.478

3.121

3.664

4.143

4.575

4.972

Водень

0.850

1.226

1.521

1.771

1.991

2.190

2.373

Повітря

1.721

2.604

3.308

3.905

4.430

4.904

5.338

Окис вуглецю

1.656

2.462

3.100

3.640

4.116

4.545

4.939

Двоокис вуглецю

1.384

2.262

2.991

3.620

4.177

4.681

5.143

Водяна пара

0.8180

1.605

2.390

3.145

3.864

4.547

5.194

Метан

1.036

1.609

2.071

2.464

2.811

3.124

3.410

Етилен

0.9420

1.532

2.034

2.461

2.839

3.181

3.345

Бензол

0.6897

1.213

1.677

2.089

2.460

2.800

3.113


Таблиця 12. залежність коефіцієнта кінематичної в'язкості від температури, υ • 105, м2 / с

Компоненти

Температура,°С


0

200

400

600

800

1000

1200

Кисень

1.361

3.530

6.345

9.686

13.481

17.68

22.24

Азот

1.132

3.417

6.124

9.325

12.959

16.98

21.35

водень

0.0945

0.2361

0.4167

0.6294

0.8697

11.35

1.423

Повітря

1.331

3.489

6.304

9.653

13.460

17.68

22.27

Окис вуглецю

1.325

3.412

6.112

9.308

12.936

16.95

21.31

Двоокис вуглецю

0.7052

1.996

3.755

5.895

8.360

11.114

14.131

Водяна пара

1.017

3.457

12.505

18.88

26.36

34.84

Метан

1.446

3.893

7.128

11.001

15.42

20.33

25.69

Етилен

0.5271

1.485

2.805

4.402

6.241

8.297

10.548

Бензол

0.1979

0.6031

1.185

1.916

2.773

3.744

4.181


Кінематична в'язкість коксового газу середнього складу при 0° С дорівнює 23 • 106 м ² / с, а при 25 • 10-6 м ² / с. Залежність кінематичної в'язкості коксового газу від температури і тиску виражається формулою:

νр.t=ν760.20 (0.88+0.06t) 760/р         (1.12)

де νр.t, ν760.20 - кінематична в'язкість при робочих і нормальних умовах, м ² / с,

р - абсолютний тиск газу, мм рт. ст.,- температура газу,° С.

1.9 Вибуховості і займистість

Боковий вівтар вибуховості компонентів коксового газу наведено в табл. 13

Таблиця 13. Межі вибуховості коксового газу

Компонент

Межі вибуховості, % (об.)


Нижній

Верхній

Діапазон вибуховості

C2H4

3-4

34

30.5

C3H6

2.2

9.7

7.5

CO

12.4

75

62.6

CH4

5.4

15

9.6

C2H6

3-5.8

10.7-15

8.4

H2

4.2

24.0

19.8

H2S

4.3

45.5

41.2


Межі вибуховості газової суміші визначають за формулою:

n=100/(а1/n1+a2/n2+ … +an/nn), (1.13)

де n, n1,… nn - межа вибуховості (нижній і верхній), % (об'емн);

а1, а2… аn - вміст компонентів газу, % (об'емн).

для коксового газу середнього складу експериментально встановлені межі вибуховості наступні: нижній - 6%; верхній - 30%. температура займання - 600-650° С, максимальна швидкість займання-75 см / с.

.10 Вологість

Вологість коксового газу (абсолютна) - це зміст водяної пари в 1 м ³ сухого або вологого газу. Виражається в об'ємних або вагових одиницях. Залежність вологості від температури і тиску ілюструє табл. 14.

Таблиця 14. вологість газу при різних температурі і тиску

Температура,°С

Тиск, мм рт. ст.

Вологовміст



м³/м³

кг/м³

-10

1.95

0.0026

0.0021

-5

3.01

0.0040

0.0032

0

4.58

0.0060

0.0048

5

6.5

0.0086

0.0070

10

9.2

0.0122

0.0098

15

12.8

0.0171

0.0137

20

17.5

0.0236

0.0189

25

23.8

0.0323

0.0260

30

31.8

0.0436

0.0351

35

42.2

0.0587

0.0473

40

55.3

0.0780

0.0631

45

71.9

0.104

0.0840

50

92.6

0.139

0.1114

55

118.0

0.183

0.148

60

149.4

0.246

0.196

65

187.5

0.326

0.265

70

233.7

0.444

0.361

75

289.1

0.612

0.499

80

355.1

0.875

0.716

85

433.6

1.33

1.092

90

525.8

2.24

1.877

95

633.9

5.01

4.381

100

760.0

-

-




1.11 Теплотехнічні засоби

Теплота згорання коксового газу складає 4250 - 4400 ккал / м ³. Теоретична кількість сухого повітря, необхідне для згорання газу середнього складу - 4.35 м ³ / м ³. При коефіцієнті надлишку повітря α = 1.2 кількість повітря складе 5.2 м ³ / м ³. склад і кількість продуктів згорання при теоретичной кількості повітря і коефіцієнті α = 1.2 наведено в табл. 15.

Таблиця 15. Характеристика продуктів згорання при різних значеннях α.

Характеристика

α1

α2


Вологі продукти згоряння

Сухі продукти коксування

Вологі продукти згоряння

Сухі продукти коксування

Кількість, м³/м³

5.03

3.85

5.90

4.72

Зміст, %: - двуоокис вуглецю - кисень - азот - водяна пара

 7 - 68.0 24.3

 10.0 - 90.0 -

 6.5 3.1 70.8 19.6

 8.2 3.9 87.9 -


1.12 Склад надсмольної води

Однією з основних функцій відділення конденсації є зрошення газозбірника надсмольної води, ретельно окремої від домішок (смоли, фусів і т.д.). в цьому відділенні є 2 різновиди надсмольної води:

. вода, що циркулює між освітлювачами і газозбірника.

. конденсат газових холодильників.

У газозбірнику частина зрошающей надсмольної води випаровується і конденсується вже в газових холодильниках спільно з вологою шихтою і пірогенетіческою вологою. Поповнення випарованої частини води циклу газозбірників проводиться за рахунок аміачної води циклу холодильників; надлишок вологи направляється в аміачне відділення для виділення аміаку. За хімічним складом ці води трохи різняться. У воді циклу газозбірників переважають пов'язані солі амонію (NH4Cl, NH4CNS та ін); у воді циклу холодильників переважають солі летючого аміаку ((NH4) S, (NH4) CO3), т.е. солі, які при підвищенні температури розкладаються. Зразковий склад надсмольних вод наведено в табл. 16.

Таблиця 16. Склад надсмольной води, г / л

Компонентов

Надсмольна вода


Цикла газозбірника

Газових холодильників

Надходить на переробку


Півдня

Сходу

Півдня

Сходу

Півдня

Сходу

аміак летючий

1.0-1.7

1.5-2.1

2.2-7.5

3.9-6.4

0.14-4.36

1.7-6.4

аміак пов'язаний

3.9-12.9

0.6-13.2

0.5-6.7

0.06-1.34

0.3-5.6

0.06-2.1

хлориди

0.7-39.6

0.33-2.06

0.7-9.4

0.06-0.82

0.6-8.6

0.9-1.6

роданіди

0.2-3.0

0.9-7.9

0.2-2.7

0.72-1.4

0.1-5.9

0.9-16

ціаніди

0.05-0.23

0.15-1.35

0.03-0.12

0.09-0.22

0.04-0.1

0.04-0.28

Сульфати і сульфіти

0.45-4.77

-

0.22-1.86

0.23

0.18-1.31

0.23

тіосульфати

0.64-1.4

1.25-2.25

0.49-1.04

0.385

0.23-1.11

0.38

сірководень

0.07-1.3

0.37-3.56

0.6-1.29

0.37-3.56

0.6-1.28

-


У воді циклу холодильників зміст летючого (вільного) аміаку вище, ніж у воді циклу газозбірників.

При схемі конденсації з трубчастими холодильниками змішання вод циклів газозбірника і холодильника не тільки допустимо, але і бажано, т.я в результаті цього припиняється накопичення хлористих і роданистих (тобто найбільш корозійних) солей амонію. В результаті змішання вод зміст цих солей знижується в 6-8 разів [2].

1.13 Очищення надсмольної води і смоли від фусів

Відстоювання надсмольної води газозбірникового циклу від смоли і фусів є необхідною технологічною операцією, що забезпечує кА необхідне охолодження коксового газу. Так і безперервну роботу форсунок, встановлених у газозбірника і стояках.

Поділ конденсату засноване на гравітаційному відділенні смоли і фусів від основної маси надсмольної води під дією сил тяжіння. Надсмольна вода з розчиненими в ній солями і ін домішками має густину 1020-1050 кг / м ³, смола 1120-1220 кг / м ³, а фуси до 1250 кг / м ³. Поділ здійснюється в механізованих освітлювачах різних конструктивних виконань. На коксохімічних виробництвах України застосовуються освітлювачі прямокутної форми ємністю 210 і 380 м ³ і циліндричні об'ємом 650 м ³. При часу відстоювання ≈ 30 хв, продуктивність по воді становить 420, 760, і 1300 м ³ / год відповідно.

Швидкість випадання фусів залежить від в'язкості смоли, яка, в свою чергу, пов'язана з температурою надсмольнойї води в освітлювачі. Для її підвищення нижня частина корпусу і днище обігріваються глухим паром. Помічено, що чим рівномірніше обігрів, тим менше виникає конвективних струмів води і тим легше і ефективніше відбувається розподіл фаз.

1.14 Очищення смоли від фусів

Погіршення якості смоли, викликане впровадженням бездимного завантаження з використанням паро-і гідроінжекціей ускладнює і здорожує процес поділу надсмольної води і смоли. Тому представляється доцільним перехід на двоступеневі схеми поділу надсмольної води і смоли. [3-4].

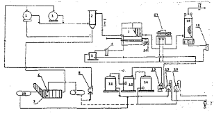
Характерною особливістю таких схем є застосування гравітаційної апаратури на першій ступені, а остаточне очищення смоли від фусів виробляють на другому ступені із застосуванням осаджувальних центрифуг. Одна з таких технологічних схем наведена на рис. 1


Рис. 1 Двоступенева технологічна схема поділу надсмольної води і смоли: 1 - механізований відстійник - освітлювач; 2 - збірка; 3 - циркуляційний насос, 4 - теплообмінник; 5 - осаджувальна центрифуга; 6, 7, 8 - Збірники; 9 - насос циркуляційний; 10 - насос; 11 - переливне влаштування; 12-регулятор рівня; 13-збірник. I - надсмольная вода зі смолою і фусамі; II - освітлена вода на зрошення газозбірника; III - надмірна аміачна вода на переробку; IV - Смола; V - Фуси; VI - аміачна вода з процесу зневоднення смоли; VII - пар.

Надсмольная вода (містить смолу і aуси) подається в механізований відстійник-освітлювач 1 для відділення крупнодисперсних фусів. Освітлена вода стікає в збірник 2, з якого частина її направляється на зрошення газозбірника, а надлишок - на переробку. Смола з вмістом води 20-30% перекачується циркуляційним насосом 3 через теплообмінник 4, що обігрівається парою в осадительную центрифугу 5. В ній відбувається остаточне очищення смоли з виділенням води, смоли і фуси, що надходять у відповідні збірники 6,7,8. Воду циркуляційним насосом 9 повертають у відстійник, а смолу з вмістом вологи менше 5% подають насосом 10 в переливний пристрій 11. регулятор 12 забезпечує підтримання постійного рівня смоли у відстійнику стабільну роботу центрифуги. Надлишкова смола надходить у збірник 13.

1.15 Схеми первинного охолодження коксового газу в трубчастих холодильниках

На рис. 2 представлена технологічна схема первинного охолодження коксового газу в холодильниках з вертикальними трубами. Коксовий газ після охолодження в газозбірнику 80-85° С надходить через сепаратор 2 в міжтрубний простір холодильників 3 з вертикальними трубами. За ним протитечією рухається технічна вода, з початковою температурою 20-24° С. При теплообміні між цими двома потоками газ охолоджується до 30-35° С, в ньому відбувається конденсація пари смоли і води.

Рис. 2 Технологічна схема первинного охолодження коксового газу в холодильниках з вертикальним розташуванням труб.

- газосборнік; 2 - сепаратор; 3 - первинний трубчастий холодильник; 4, 19 - гідравлічний затвор; 5 - проміжний збірник конденсату; 6-освітлювач механізований; 7 '* - проміжний збірник; 8,13,15, 16 - насоси; 9 - регулятор рівня смоли; 10 - промсборнік смоли; 11 - збірник смоли; 12 - відстійник для води; 14 - збірник для надлишкової води; 17 - нагнітач; 18 - електрофільтр; 20 - трубопровід технічної води.

- прямий коксовий газ; II - охолоджений коксовий газ; III - технічна вода; IV - аміачна вода на переробку; V - смола на склад.

Охолоджений газ газодувки 17 через електрофільтр 18 подається в сульфатне відділення, а конденсат з газових холодильників стікає через гідрозатвор 4 в проміжний збірник 5, з останнього конденсат насосом 13 подається в відстійник 12.

З відстійника 12 смола через смолоотводчік вступає у збірник 11, а з нього насосом 15 відкачується в резервуари складу смоли. У свою чергу, надсмольна вода з відстійника 12 вступає у збірник 14, з якого частина її перетікає в проміжний збірник 7 для поповнення газозбірникового циклу, а надлишок подається насосом 16 для переробки в аміачну дистиляційну колону.

Обстеження роботи газових холодильників з вертикальними трубами і подальший аналіз отриманих даних показав, що їм властиві низькі коефіцієнти теплопередачі (50-90 Вт / м ² К) через низькі швидкості води в трубах і інтенсивного відкладення смолистих в міжтрубному просторі. До переваг цих холодильників відносять їх невисоку вимогливість до якості технічної води, що охолоджує.

На рис. 3 представлена ​​технологічна схема первинного охолодження коксового газу в холодильниках з горизонтальними трубами.

Рис., 3 Технологічна схема первинного охолодження коксового газу в холодильниках з горизонтальним розташуванням труб.

- газозбірнік; 2 - сепаратор; 3 - освітлювач механізований; 4-заглиблена проміжна збірка для смоли; 6 - механізоване сховище для смоли; 7 - проміжний збірник для води; 9 - первинні трубчасті газові холодильники; 10 - електрофільтр; 11 - нагнітач; 12,14 - гідрозатвори; 13 - проміжний збірник конденсату; 16 - відстійник для конденсату; 17-сховище для надлишкової води; 5,8,15,18,19 - насоси.

I - прямий коксовий газ; II - охолоджений коксовий газ; III - вода на охолодження; IV - вода після холодильника; V - вода у відстійники; VI - вода на переробку; VII - смола на кінцеві газові холодильники.

За цією схемою, коксовий газ, охолоджений в газозбірнику до 80-85° С надходить через сепаратор 2 в міжтрубний простір холодильників 9 і рухається зверху вниз, омиваючи злегка похилі труби. По висоті холодильника труби розділені на окремі секції. Охолоджуюча вода подається в нижню частину холодильника і рухається вгору через всі пучки труб, з'єднані послідовно за допомогою водяних камер. При температурі охолоджуючої води 20-25° С газ охолоджується до 25-35° С, очищається від туманообразной смоли в електрофільтрі 10 і подається нагнітачем 11 в сульфатне відділення.

Конденсат з 9, 10, 11 надходить через гідрозатвори в збірник 13, звідки насосом 15 перекачується у відстійник 16.

Смола з останнього надходить в механізоване сховище 6, а надсмольна вода - в проміжний збірник 7 для поповнення газозбірникового циклу. Надлишкова надсмольная вода стікає в сховище 17, звідки насосом 18 передається на переробку в аміачне відділення.

При роботі з окремими водяними циклами газозбірників і холодильників у першому відбувається накопичення нелетких солей амонію, що викликають корозію апаратури і комунікацій відділення конденсації. Погіршується відстоювання надсмольной води від смоли і фусів. При цьому відбувається збільшення вмісту апаратури в смолоперегонном цеху.

Для підтримки концентрації хлористих і роданистих солей амонію у воді газосборнікового циклу на рівні ≤ 6 г / л, частина її відводиться з проміжного збірника 7 в відстійник газового конденсату 16. при цьому відповідну кількість конденсату перетікає з відстійника 16 в збірник 7.

Як показав промисловий досвід, застосування холодильників з горизонтальним розташуванням труб, забезпечує більш ефективне охолодження газу, полегшує роботу нагнітачів т всієї наступної апаратури цеху уловлювання. Ці апарати мають цілий ряд переваг (у порівнянні з холодильниками з вертикальними трубами):

Охолоджуюча вода рухається в трубах під напором, має більшу швидкість (0.8-1.0 м / с), що дозволяє інтенсифікувати теплопередачу від труб до води, зменшити відкладення зважених часток в трубах;

Низхідний потік конденсату змиває з зовнішньої поверхні труб відкладення смоли і нафталіну, завдяки чому сповільнюється зростання гідравлічного опору апарату;

Наявність самостійних трубних секцій дозволяє використання різних холодоагентів в одному апараті. Тим самим дозволяючи використовувати тепло коксового газу для технологічних потреб.

Разом з тим, експлуатаційники відзначають ряд недоліків:

Підвищені вимоги до якості технічної води;

Складні умови ремонту (особливо заміна труб);

Необхідність підтримки швидкості води в трубному пучку не менше 1 м / с;

Неможливість заміна окремих секцій.

На ряді нововведених коксохімвиробництва для первинного охолодження коксового газу встановлюються сучасні холодильники безпосередньої дії. Коксовий газ проходить холодильники безпосередньої дії знизу вгору, контактуючи з розбризкуючою через форсунки циркулюючої водою. Вода, що подається на верхній (перший) щабель зрошувального холодильника. Стікає на проміжну перегородку 2 і далі насосом 3 під тиском подається на розбризкуючий пристрій нижній (другий) ступені зрошення, нагнітаючи циркулююча вода з відстійника другого ступеня надходить в освітлювач 4 для осадження смоли, твердих включень і освітлення води. Циркуляційний насос 5 подає осветлювану воду в холодильник 6 для охолодження її перед подачею на зрошення. Добавка смоли до зворотньої води сприяє запобіганню відкладень нафталіну та інших забруднень.

Питома поверхня охолодження в зрошувальних холодильниках складає 0.04-0.06 м ² • ч / м ³ газу, витрата охолоджуючої води - 0.024-0.03 м ³ на 1 м ³ газу. Подібні холодильники безпосередньої дії встановлені на комплексі для уловлювання і переробки ГПК потужністю 100 тис. м ³ / год коксового газу.

Високий ступінь видалення нафталіну з коксового газу в результаті подачі в холодильник безпосередньої дії смоли циклу газозбірників і холодильників і змішання її з циркулюючої надсмольною водою.

В одній з технологічних схем відділення первинного охолодження передбачено 2 триступеневих зрошувальних холодильника (один резервний), в які на перші дві ступені зрошення подають оборотну охолоджену надсмольну воду, а ні третю-рециркулят з перших двох ступенів. Оборотну аміачну воду охолоджують в спеціальних холодильниках водою, охолоджуваної на градирні. Обсяг оборотної води підтримують постійним, а задану температуру коксового газу - шляхом регулювання кількості води, що охолоджує [5].

Порівняння прямого охолодження коксового газу в холодильниках безпосередньої дії і непрямої (в трубчастих газових холодильниках) вказує на більш низькі капітальні вкладення і більш високі енергетичні витрати при використанні схеми прямого охолодження [4].

Вибір найбільш доцільної схеми та її апаратурного оформлення визначається економікою виробництва; при цьому в кожному окремому випадку необхідний облік специфічних особливостей конкретної установки.

Непряме охолодження вигідно тоді, коли потрібно досить низька температура. У цьому випадку різниця між температурою входу охолоджуючої води і температурою виходу газу Δt = 2-3° С, в той час, як при прямому охолодженні 5-8° С. Якщо ж це не є першочерговим вимогою, то спосіб прямого охолодження має незаперечні переваги: ​​поверхня теплообміну в холодильниках для циркулюючою надсмольної води набагато менше, ніж при непрямому охолодженні. Більш того, якщо холодильник виконаний у вигляді порожнього апарату, то він нечутливий до забруднень.

1.16 Обгрунтування вибору технологічної схеми

газозбірник коксовий газ теплоємність

Вибір технологічної схеми застосовуваної в даній роботі, заснований на промисловому досвіді роботи коксохімічних заводів, і удосконаленнях схеми уловлювання, розроблених Гипрококс.

За схемою, коксовий газ з газозбірників надходить у первинні газові холодильники з горизонтальним розташуванням теплообмінних труб. Холодильники технологічно розділені на дві зони охолодження. Кожна зона працює на своєму холодоагенті. На першому ступені по ходу газу, тепло коксового газу відбирається регенерувати поглинювальним розчином цеху сіркоочищення. На другій, технічною водою. Таким чином, у перших секціях холодильників відбувається нагрів розчину сіркоочищення, і за рахунок цього є можливість економити енергію, що йде на отримання гострої пари для підігріву поглинаючого розчину в теплообмінниках, що робить процес уловлювання хімічних продуктів коксування економічно дешевше.

Застосування холодильників такої конструкції, пов'язано ще і з тим, що холодильники з горизонтальним розташування труб, мають наступні переваги:

* Інтенсивне охолодження газу в холодильнику з горизонтальним розташуванням труб обумовлено перпендикулярним рухом газу і води

* Більш високими швидкостями руху охолоджувальної води, що виключають можливість випадання суспензій і забезпечують турбулентний характер руху рідини * Значно мале обволікання поверхні труб плівкою конденсату, безперервно змивається при його стогони зверху вниз

Для постійного видалення відкладень нафталіну на поверхні теплообмінних труб і на стінках холодильника, що знижують гідравлічний опір апарату, застосовується його постійна промивка водо-смоляною сумішшю через форсунку, розташовану під входом газопроводі в холодильник.

Для кращого поділу смоли від води, передбачається два механізованих освітлювача. Один призначений для відстоювання надсмольной (аміачної) води. Він так і називається - механізований освітлювач для надсмольной води. А інший для остаточного поділу важкої смоли і знаходиться залишкової надсмольної води. Смола з механізованого освітлювача для надсмольної води по перетіканню самопливом надходить в механізований освітлювач для смоли.

Відстояна смола в збірнику і відстійниках стікає в колектор смоли і направляється в проміжний збірник смоли після механізованого освітлювача для смоли.

Розташування електрофільтрів перед нагнітачами коксового газу засноване на наступних факторах:

* Коксовий газ поступає в електрофільтр вільним від смоли

* Виключається можливість проходу газу назовні і загорання його в ізоляторних коробках, що робить роботу електрофільтрів більш надійною.

Подібна схема відділення охолодження і конденсації коксового газу була спроектована Гипрококс і успішно працює на ВАТ КХП «Криворіжсталь».

1.17 Основна апаратура первинного охолодження коксового газу та конденсації парів моли і води. Холодильник з вертикальним розташуванням труб

Холодильник (рис. 4) являє собою овальний апарат з плоским днищем 1, верхньої та нижньої трубними гратами 3, до яких кріпляться вертикально розташовані труби 4. вертикальні перегородки 5 ділять міжтрубний простір, на 6 ходів. Коксовий газ через штуцер 6 надходить в міжтрубний простір, проходить послідовно всі 6 ходів і покидає апарат через штуцер 9. Т.к. при охолодженні коксового газу та конденсації парів води і смоли, об’єм значно зменшується, для збереження постійної швидкості газу перегородки встановлені таким чином, щоб поперечний переріз ходів зменшувалася до виходу з апарату. Трубний простір, в свою чергу, поділено на 6 ходів.

Рис. 4 Холодильник з вертикальним розташуванням труб.

-днище холодильника; 2 - перегородки; 3 - трубні решітки; 4-труби; 5 - вертикальні перегородки міжтрубному простору; 6 - штуцер введення газу; 7 - додаткова перегородка; 8 - корпус холодильника; 9 - штуцер виходу газу; 10 - штуцер входу води; 11 - штуцер виходу води; 12-штуцер для виходу конденсату

- вхід коксового газу в; II - вихід коксового газу; III - вхід охолоджуючої води; IV - вихід охолоджуючої води.

Охолоджуюча технічна вода входить в нижню частину трубного простору через штуцер 10 - проходить назустріч газу послідовно 6 ходів (з нижньої камери у верхню по трубах і назад) і виходить через штуцер 11 з нижньої водяної камери. У кожному з ходів здійснюється противоточний рух газу і води. Тепло від газу до води передається через поверхню труб, яка і є поверхнею теплопередачі холодильника. Конденсат, що утворився при охолодженні газа, в міжтрубному просторі видаляється через штуцери 12.

Технічна характеристика холодильника з вертикальним розташуванням труб:

Номінальна продуктивність по газу, м ³ / год……………………… 10000

Площа поверхні охолодження, м ²…………………………………. 2100

Площа прохідного перерізу, м ²:

Для газу…………………………………………………………. 1.25

Для технічної води………………………………………………. 0.82

Число труб…………………………………………………………. 1265

Зовнішній діаметр труби, мм…………………………………………… 76

Довжина труб, мм…………………………………………………… 7000

Габарити, мм:

- Висота……………………………………………………………… 9532

- Довжина…………………………………………………………. 6500

Ширина………………………………………………………………. 2600

Маса, т………………………………………………………………. 79.9

Для ефективної роботи холодильника необхідно забезпечити проектні швидкості газу і води чистоту зовнішніх і внутрішніх поверхонь труб.

Відхилення від проектних швидкостей газу відбувається через відкладення нафталіну в міжтрубному просторі холодильника. Для очищення міжтрубному простору холодильника, на нього припиняють подачу води і газу, і в міжтрубний простор подають пар протягом 4-6 годин. Така пропарювання повинно проводитися регулярно за спеціальним графіком.

Відхилення від проектної швидкості води може відбуватися в результаті утворення накипу всередині трубок. Для зменшення накипоутворення оборотна вода повинна бути відфільтрована, додано відповідну кількість речовин, що перешкоджають утворенню накипу (мідний купорос, триполіфосфат і т. п.), а температура нагрітої води після холодильника не повинна перевищувати 42° С.

Основними недоліками холодильників з вертикальними трубами є:

Велике гідравлічний опір;

Трудомісткість промивання зовнішньої поверхні труб;

Порівняно низькі коефіцієнти теплопередачі (до 90 Вт / (м ² К))

1.18 Холодильники з горизонтальним розташуванням труб

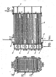
На рис. 5 представлений первинний газовий холодильник з горизонтальними трубами.

Рис. 5 Холодильник з горизонтальним розташуванням труб.

- вертикальні стінки з трубними гратами; 2 - труби для теплообміну; 3-кришка; 4 - прокладки; 5 - ребра жорсткості; 6 - анкерні стяжки; 7 - штуцер входу газу; 8 - штуцер виходу газу; 9 - штуцер входу води; 10 - штуцер виходу води; 11 год-штуцер для виходу конденсату; 12 - люки; 13 - стропові пристрої; 14 - форсунки.

- вхід коксового газу в; II - вихід коксового газу; 111 - вхід охолоджуючої води; IV - вихід охолоджуючої води.

Корпус холодильника має прямокутний перетин, до двох вертикальних стінок 1 якого кріпляться теплообмінні труби 2. По висоті холодильника труби розташовані у вигляді окремих пучків. Суміжні пучки нахилені в різні боки (1° до горизонталі). Зближені кінці трубних пучків перекриваються загальною кришкою 3, ущільнюваної зі стінками холодильника м'якими прокладками 4. Кришки разом із кроком, рівним 82 мм. Плоскі стінки холодильника посилені ребрами жорсткості 5 і внутрішніми анкерними стяжками 6, виготовленими з труб. Штуцер входу газу 7 розташований на верхній кришці холодильника, штуцер виходу газу 8 - в нижній частині корпусу. Штуцери входу води 9 виконані у нижній водяний камері, штуцери виходу води 10 - верхній.

Збирається в нижній частині холодильника конденсат стікає по похилому днищу (3-4°) в сторону штуцера 11 для виходу конденсату.

Холодильник має монтажні та обслуговуючі люки 12. апарат по висоті розбитий на окремі блоки, збірка яких виробляється при монтажі холодильника; для стропування кожної секції передбачені стропувальні пристрої 13. Для очищення зовнішніх поверхонь від відкладень нафталіну і фусів міжтрубний простір зрошується смолоконденсаціонной сумішшю. Для цих цілей встановлені вводи з форсунками 14.

Коксовий газ охолоджується при русі по міжтрубному просторі, з нього послідовно конденсуються вода, смола і нафталін. Т.к. охолоджуваний газ рухається зверху вниз, що конденсується у верхній частині холодильника смола розчиняє нафталін, кристалізується на трубах, і виводить його з холодильника. Цей ефект посилюється зрошенням міжтрубному простору. Промивання зовнішньої поверхні труб зменшує їх забруднення та збільшує період між пропарювання холодильника.

Для запобігання утворення накипу і відкладень у трубах рекомендується підтримувати карбонатну жорсткість води менше 3 мг-екв. / Л, а вміст завислих речовин - не більше 30 мг / л. При цьому швидкість води в трубах повинна бути не менше 0.8-1.0 м / с, а її температура на виході з холодильника не повинна перевищувати 42° С.

В даний час Гипрококс розробив холодильники підвищеної одиничної потужності, що дозволяють збирати з компактних блоків загальну поверхню до 4500 м ². так, зокрема, холодильник ХПГ 3600 призначений для первинного охолодження до 24-25° С неочищеного коксового газу з газозбірників коксових батарей з температурою 82° С. Технічна характеристика холодильника з горизонтальним розташуванням труб:

Типорозмір холодильника ХПГ 3600

Площа поверхні охолодження загальна, м ² 3600

У тому числі:

Верхньої секції………………………………………………………. 1156

Середньої секції………………………………………………… 1156

Нижньої секції…………………………………………………… 1348

Номінальна продуктивність по газу, м ³ / год…………………. 31000

Тиск, МПа:

В трубному просторі………………………………………………. 0.6

В міжтрубному просторі………………………………………… 0.095

Площа прохідного перерізу, м ²:

Одного ходу в трубному просторі……………………………. 0.343

Міжтрубному простору………………………………………… 2.64

Кількість подаваної технічної води, м ³ / год……………………. 1290

Температура середовища,° С

в трубному просторі техн. води:

Початкова………………………………………………………. 24-25

Кінцева………………………………………………………………. 37

У міжтрубному просторі коксового газу……………………… 82-85

Кількість водо-смоляний суміші для

промивки, м ³ / год…………………………………………………… 25

Габарити, мм………………………………………… 21767х4040х3370

Маса холодильника, т…………………………………………… 230.0

1.19 Апарати повітряного охолодження коксового газу

Апарат АВОГ-1 (Рис. 6) складається з шести секцій 1 з шатровим розташуванням. У кожній секції є 8 рядів оребрених труб, развальцованних в двох трубних гратах прямокутної форми. Газ надходить паралельно у всі секції. До трубним гратам кріпляться кришки 2 із штуцерами для введення і виведення охолоджуваного газу. Трубні решітки мають жалюзійні пристрої 11, керовані за допомогою пневматичного приводу.

Рис. 6. Апарат повітряного охолодження для коксового газу.

- трубна секція теплообміну; 2 - кришки зі штуцерами для введення і виведення охолоджуваного газу; 3 - рама для монтажу трубних секцій; 4-опорна металоконструкція; 5 - дифузор; 6 - колектор вентилятора; 7-робоче колесо вентилятора; 8 - привід вентилятора; 9 - зволожувач повітря; 10 - жалюзійних пристрій.- вхід коксового газу в трубні секції; II - вихід коксового газу з трубних секцій; III - вода в зволожувач

Трубні секції встановлюються на рамі для монтажу за допомогою опорних металоконструкцій 4. до рами кріпиться дифузор 5 із колектором вентилятора 6. В нижній частині встановлений осьовий вентилятор, робоче колесо 7 посаджено на вертикальний вал безредуктівного приводу 8. Апарат укомплектований зволожувачем повітря 9, розташованим усередині дифузора (використовується для зниження температури повітря в літній період). У зимовий період апарат може працювати з включеним вентилятором. Охолодження газу в трубах відбувається за рахунок природної конвекції.

Технічна характеристика АВГО - 1:

Число секцій………………………………………………………………. 6

Число рядів труб в секції………………………………………………… 8

Число труб в секції…………………………………………………. 220

Теплообмінна труба:

Діаметр х товщина, мм…………………………………… 38х2.0

Коефіцієнт оребрення………………………………………………… 7.8

Довжина, м……………………………………………………………. 6

Площа поверхні теплообміну, м ²:

Секції по оребрені……………………………………………… 1337

Внутрішня…………………………………………………………… 141

Апарату по оребрені……………………………………………. 8020

Внутрішня……………………………………………………………. 846

Число ходів газу по трубному простору………………………………. 1

Площа прохідного перерізу апаратура по газу, м ²…………………… 1.2

Тиск робочий, МПа………………………………………………… 0.09

Матеріал……………………………………………. вуглекисла сталь

Габаритні розміри апарату (без несучої конструкції), мм:

Довжина…………………………………………………………. 6000

Ширина……………………………………………………………. 7950

Висота……………………………………………………………………. 6510

Вентилятор поставляється з ручним регулюванням кута установки кожної з лопастей з пневмоприводом.

Характеристика вентилятора:

Діаметр колеса, м……………………………………………………… 5

Число лопастей…………………………………………………………. 4

Профіль лопастей……………………………………………. ЦАГІУК-2М

Продуктивність, м ³ / год………………………………………. 735000

Потужність номіналу, кВт……………………………………………. 90

Частота обертання, с-1……………………………………………. 4.16

Показники роботи апарату повітряного охолодження: пропускна спроможність за обсягом газу - 16000 нм ³ / год; коефіцієнт теплопередачі 25-30 Вт / (м ² • К); швидкість газу в трубах 10-13 м / с. Гідравлічний опір апарату 500-1000 Па (в залежності від обсягу минаючого газу).

1.20 Охолодження коксового газу і конденсація з нього води і смоли

Коксовий газ по виході з газосборніков має все ще високу температуру (85-90° С) і великий об’ем водяної пари. Це виключає можливість безпосереднього уловлювання з гарячого газу хімічних продуктів коксування. Тому першою обов'язковою технологічною операцією, якою газ піддається по виході з газозбіринків, є його охолодження, що протікає в так званих первинних холодильниках. При цьому головним завданням охолодження газу є різке зменшення його обсягу для зниження витрати енергії на подальший стиск його в нагнітач [7].

Охолодження газу в первинних холодильниках супроводжується не тільки зниженням його температури, але і конденсацією парів води і смоли. В результаті охолодження газу обсяг його після холодильників різко зменшується. Це підтверджується даними, наведеними в табл. 23 (обсяг, тепломісткість і зміст водяної пари в коксовому газі при різних температурах.) Як видно з даних, наведених у графі 5 цієї таблиці, при охолодженні газу від 80 до 30° С об'єм його зменшується в 2.429 / 1.158 = 2.10 рази, при цьому з обсягу, отриманого після насичення 1 м ³ газу при 0° С, виділиться (сконденсіруется) 712.5-35.2 = 677.3 г. водяної пари.

Виділення переважної частини пароподібної смоли в холодильниках важливо тому, що ото виключає можливість забруднення апаратури для уловлювання хімічних продуктів коксування і відкладення смоли нафталіну в газопроводах. Разом з тим більш повне виділення парів смоли необхідно і тому, що їх присутність в газі забруднює сульфат амонію, знижуючи його якість і погіршує якість поглотительного масла, використовуваного для уловлювання бензольних вуглеводнів.

Температура газу після первинних газових холодильників повинна знаходиться в межах 25-30° С. Саме ця температура є оптимальною для уловлювання з газу деяких хімічних продуктів коксування. Цей температурний режим охолодження коксового газу. Встановлений правилами технічної експлуатації коксохімічних заводів, на багатьох заводах не витримується з ряду причин, найважливіші з яких: недостатньо низька температура охолоджуючої води, недостатня поверхня теплопередачі, конструктивні дефекти холодильників, градирень, недостатня потужність насосів, накипоутворення і т. п. підвищена температура газу після первинних газових холодильників викликає ускладнення в роботі хімічних цехів, а саме:

а) у зв'язку зі збільшенням обсягу газу потрібна додаткова продуктивність нагнітачів і, отже, підвищені енергетичні витрати;

б) водний баланс сатураторів (см. гл.ΙV, стр. 303 Джерело: «Технологія коксохімічного виробництва» Лейбович Р.Є., Обухівський Я.М., Сатановський С.Я. Москва 1966 р) стає більш напруженим; в) ускладнюється робота пристроїв кінцевого охолодження газу у зв'язку з підвищеним вмістом в ньому нафталіну. На практиці це призводить до засмічення відкладеннями нафталіну кінцевих холодильників і окремих ділянок газопроводу, що змушує проводити часті пропарювання їх на шкоду уловлюванню бензольних вуглеводнів з газу;

г) знижується вміст аміаку, вуглекислоти і сірководню в надсмольной аміачної воді і, отже, в парах після аміачної колони, що направляються в піридинову установку. Це призводить до зменшення вироблення легких піридинових підстав, до поганого відділенню їх від водного розчину і, отже, до втрат піридину;

д) зростає забрудненість сульфату амонію маслянистим і смолистим речовинами, підвищується його кислотність і збільшуються втрати кислоти з сіллю; знижується вміст азоту в сульфаті амонію;

е) знижується продуктивність центрифуг сульфатного відділення в зв'язку з забрудненням отворів сит ротора смолистими речовинами;

Таким чином, цілком очевидно те величезне значення, яке має оптимальний температурний режим охолодження газу в первинних холодильниках для подальших процесів уловлювання аміаку, бензольних вуглеводнів і інших хімічних продуктів коксування.

Залежно від типу застосовуваних холодильників - трубчастих з теплопередачею через стінку або безпосередньої дії - розрізняють дві відмінності одна від одної схеми первинного охолодження газу. Обидві ці схеми знайшли широке застосування в практиці вітчизняної коксохімічної промисловості.

В останні роки в якості типова застосовується схема первинного охолодження коксового газу в трубчастих холодильниках, як більш економічна.

Таблиця 17. Об'ем, тепломісткість і зміст водяної пари в коксовому газі при різних температурах

0

1,000

62

10271

1,006

4,9

4,93

0,0

2,93

2,93

1

1,004

67

10266

1,010

5,1

5,15

0,36

3,06

3,42

5

1,018

89

10244

1,027

6,8

6,98

1,80

4,17

5,97

10

1,037

125

10208

1,049

9,4

9,86

3,60

5,91

9,51

15

1,055

174

10159

1,073

12,9

13.84

5,40

8,33

13.73

20

1,073

238

10095

1,098

17,4

19,10

7,20

11,54

18,74

25

1,091

322

10011

1,126

23,1

26,00

9,00

15,77

24,77

30

1,110

431

9902

1,158

30,4

35,20

10,80

21,44

32,24

35

1,128

572

9761

1,195

39,7

47,45

12,60

29,02

41,62

40

1,146

750

9583

1,236

51,2

63,27

14,40

38,85

53,25

45

1,165

974

9359

1,286

65,4

84,10

16,20

51,82

68,02

50

1,183

1255

9078

1,348

83,0

111,8

18,00

69,14

87,14

55

1,201

1602

8731

1,423

104,3

148,1

19,80

92,09

111,89

60

1,220

2028

8305

1,518

130,1

197,5

21,60

122,90

144,50

65

1,238

2547

7786

1,644

161,1

264,9

23.40

165,50

188,90

70

1,256

3175

7158

1,814

198,0

359,0

25,20

225,10

250,30

75

1,275

3929

6404

2,058

241,9

498,6

27,00

313,30

340,30

80

1,293

4828

5505

2,429

293,3

712,5

28,80

449,70

478,50

85

1,311

5894

4439

3,053

353,7

1079

30,60

683,90

714,50

90

1,330

7149

3184

4,317

423,6

1828

32,40

1162,00

1194,40

95

1,348

8620

1713

8,132

505,1

4106

34.20

2618,0

2652,20

100

1,366

10333

0

-

598,7

-

36,0

-

-


1.21 Технологічна характеристика основного устаткування відділення первинного охолодження газу і конденсація з нього води смоли

У відділенні первинного охолодження газу здійснюються наступні основні операції:

а) поділ надходять з газозбірників по газопроводу газової і рідкої фаз. Ця операція здійснюється в сепараторі 2 (див. ріс.62) внаслідок великої різниці щільності обох фаз. При цьому газ піднімається догори і виходить із сепаратора в газопровід через верхній боковий штуцер. Рідка фаза відводиться з сепаратора через штуцер в нижні конічні його частини;

б) відстоювання надсмольної води від смоли та виділення фусів здійснюється в механізованих відстійниках - освітлювачах;

в) охолодження газу до 25-30° С в холодильниках трубчастого типу безпосередньої дії. Одержуючий при цьому конденсат відстоюється, потім у спеціальних відстійниках з отриманням освітленої надсмольної аміачної води і смоли, придатні для подальшої переробки.

.22 Газові холодильники

Трубчасті холодильники знайшли застосування на збудованих та реконструйованих коксохімічних заводах. Для первинного охолодження газу встановлювалися шестіходові вертикальні трубчасті холодильники системи Гипрококс (рис. 65) поверхнею охолодження 2100 м ². Продуктивність цього холодильника по газу дорівнює 10-11 тис. м ³ / год газу, приведеного до нормальних умов.

Газ рухається в міжтрубному просторі, охолоджуюча вода - всередині труб. Так як коефіцієнт теплопередачі зростає зі збільшенням швидкості руху газу і води. То для збільшення цих швидкостей холодильник розділений вертикальними перегородками на шість секцій.

Холодильник по висоті розділений трьома горизонтальними перегородками, що утворюють нижню камеру для води, середню камеру - охолодження, заповнену трубами і верхню камеру для переливу води.

Газ потрапляє в міжтрубний простір камери охолодження і послідовно проходить з однієї секції в іншу. Вода надходить у нижню камеру, розділену також на секції, і піднімається по трубах шостий по ходу газу (першої по ходу води) вгору, а потім зливається вниз і т.д. Таким чином, у всіх шести секціях дотриманий повний противоток руху газу.

Для підтримування постійної швидкості руху газу і води і, отже, сталості коефіцієнта теплопередачі від газу до води секції, по яких рухається газ. Мають змінне перетин: найбільше у першої по ходу газу секції. Для води, що рухається в протиточному напрямку, найменше перетин труб в першій по ходу води секції і найбільшу в місці виходу її з холодильника. Розміри холодильника 9532 × 5845 × 2766 мм, вакуум в міжтрубному просторі 600 мм вод. ст.

Нижче наведені технічні дані, що характеризують роботу газових холодильників з вертикальними трубками:

Температура газу для холодильників,° С 80-85

Точка роси газу до холодильників,° С 78-82

Температура газу після холодильників,

° С не вище 35

Температура води до холодильників,

° С не вище 25

Температура води після холодильників,

° С не вище 45

Перепад тиску газу, мм вод. ст.

не більше 400

Коефіцієнт теплопередачі, Вт / м ² ×

× град 92,8-139,2

(80-120 ккал / м ² • год • град)

Норма поверхні охолодження, м ²

На 1000 м ³ газу на годину 250

Кількість охолоджуючої води на

м ³ газу на годину, м ³ 17-22

(В обох випадках мається на увазі газ.

Приведений до нормальних умов).

Дуже важливим фактором, значною мірою визначає ефективність роботи трубчастих холодильників, є швидкість газового потоку. Вона, природно буде тим вище, чим більш навантаження холодильника по газу. Тому краще охолодження газу при меншій витраті охолоджуючої води виходить при послідовному проходженні газу через ряд з'єднаних один з одним холодильників. Однак при цьому різко зростає опір газовому потоку, тобто різниця розрідження газу до і після холодильників збільшується.

Навпаки, при паралельному включенні весь газовий потік розгалужується на частини за числом холодильників. При цьому, природно. Знижується швидкість газу, зменшується опір, але погіршується охолодження.

На практиці найчастіше застосовують змішане, послідовно-паралельне, проходження газу.

На роботу трубчастих холодильників істотно впливають також такі фактори: температура надходжуваного газу, величина охолоджуючої поверхні і її чистота, кількість охолоджуючої води і її температура.

З наведених тут факторів найбільше значення мають початкова температура надходжуваного на охолодження газу і чистота внутрішньої і зовнішньої поверхні труб. При сталості кількості охолоджувальної води і її температури ефект охолодження газу буде нижче, чим вище температура надходжуваного в холодильники газу і чим більше забруднення зовнішньої і внутрішньої поверхні труб.

Охолодження смоли і нафталіну на зовнішній поверхні труб холодильника видаляють пропарюванням, яке проводять періодично (за графіком). Внутрішня поверхня труб покривається накипом, накопичується зазвичай повільніше, так як для охолодження намагаються застосувати чисту технічну воду. На час пропарювання включається резервний холодильник.

Шкідливий вплив високої температури газу перед холодильниками позначається в необхідності підвищення витрати охолоджуючої води, яким доводиться компенсувати збільшений прихід тепла.

Зараз в практику первинного охолодження коксового газу вводяться більш потужні газові трубчасті холодильники з горизонтальним розташуванням труб.

На рис. 6 представлений трубчастий холодильник Гипрококсу з горизонтальними трубами, встановлений на споруджуваних нових заводах.

Холодильник з горизонтальним розташуванням труб являє собою в плані прямокутник розмірами 2620 × 2942 і висотою 24700 мм.

Поверхня охолодження, м ³ 2950

Середа:

в міжтрубному просторі коксовий газ

в трубах охолоджуюча вода або

інший хладоагент

Тиск (абсолютне), ат:

в корпусі 0,95

в трубках 3,5

Зовнішній діаметр труб, мм 57 × 3,5

Швидкість охолоджуючої води, м / сек 0,5-0,6

Продуктивність одного холодильника

по газу, м ³ / год 20000

Витрата технічної води, м ³ / год

(Початкова температура води 25° С) 400

Опір холодильника:

по газу мм вод. ст. 70

по воді мм вод. ст. 4,0

Коксовий газ поступає в холодильник через штуцер у верхній частині корпусу і рухається між трубами зверху вниз. Охолоджений газ йде з холодильника через штуцер. Конденсат газу збирається в нижній частині холодильника.

Охолоджуюча вода або інший теплоносій подається в штуцери на кришці нижнього трубного пучка і рухається по трубах, переходячи з пучка в пучок, поступово піднімаючись назустріч газовому потоку, і виходить з штуцера на кришці верхнього трубного пучка.

Охолодження газу може проводитися не тільки технічною водою, але і іншими рідинами, зокрема поглинювальним розчином цеху сіркоочищення. Розподіл поверхні, охолоджуваної розчином і технічною водою, може змінюватися шляхом перестановки роздільної кришки.

Більш інтенсивне охолодження газу в холодильнику з горизонтальним розташуванням труб обумовлено перпендикулярним рухом газу і води; більш високими швидкостями руху охолоджувальної води, що виключають турбулентний характер руху рідини; значно меншим обволакивания поверхні труб плівкою конденсату, безперервно змивається при його стіканні зверху вниз.

Разом з тим конструкція має деякі недоліки:

) більше, ніж у холодильника з вертикальними трубами, опір руху газу і рідини, обумовлене більшим числом рядів і трубних пучків;

) більш низька температура конденсату газу після холодильників, що викликає додаткову витрату пари його нагрів;

) необхідність обов'язкової підготовки технічної води в напрямку видалення з неї суспензій і тимчасової рідини, що обумовлено незручністю доступу до труб на великій висоті.

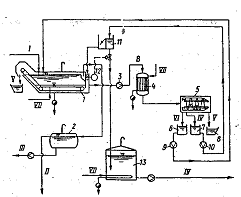
1.23 Ступінчасті холодильники з форсунковим зрошенням

Відомий ряд розробок, в яких в якості первинних холодильників використані ступінчасті апарати безпосередньої дії, в яких поверхня контакту між газом і рідиною досягається розпилюванням циркулюючої аміачної води за допомогою форсунок [3,4]. Насадки, тарілки та ін пристрої для збільшення поверхні контакту фаз в цих апаратах не застосовують через можливе їх забруднення. Оборотну воду охолоджують в сучасних холодильниках (в першу чергу спіральних і пластинчастих).

На рис. 7 представлений варіант двоступінчастого зрошувального холодильника, що є основним технологічним апаратом схеми і мають більшу пропускну здатність (до 100 тис. м ³ / год). Коксовий газ 1 проходить холодильник знизу вгору. Вступаючи в контакт із розбризкуючою через форсунки циркулюючої водою. Вода, що надходить на верхню сходинку зрошувального холодильника, стікає на проміжну перегородку2 і звідти насосом під тиском розбризкується через форсунки в нижньому ступені (IV). Далі нагріта циркулююча вода падає на відстійник 3, де відбувається первинне розділення води і смоли. Оборотна вода (V) з відстійника направляється на охолодження, після чого повертається на верхній ступінь зрошення. Смола, що відокремилася від води у відстійнику 3 виводиться з нижньої частини холодильника. Питома поверхня охолодження в зрошувальних холодильниках складає 0.04-0.06 м ² • ч / м ³ газу, а витрата охолоджуючої води 0.024-0.03 м ³ / м ³ газу [3].

Рис. - 7 Двоступінчастий зрошувальний холодильник:

- форсунки для подачі води; 2 - проміжна перегородка; 3 - відстійник;- вихідний коксовий газ; II - охолоджений коксовий газ; III - охолоджуюча вода, подавана на першу сходинку зрошення; Ц / - охолоджуюча вода, що надходить з першої ступені зрошення на другу; V - оборотна вода, що спрямовується на охолодження: VI - смола

Для охолодження циркулюючю надсмольну воду в цих холодильниках використовують закладену технічну воду. (12° С). Високий ступінь вимивання нафталіну з коксового газу досягається при добавці в холодильник безпосередньої дії смоли циклів газозбірника і холодильника і хорошого розподілу її суміші з циркулюючої водою.

У триступеневий зрошувальних холодильниках, на перші два ступені подають оборотну охолоджену надсмольну воду. А на третю - нижню - рециркулят з перших двох ступенів. Оборотну аміачну воду охолоджують в спіральних холодильниках водою з градирні. Пропускна здатність обох холодильників складає 57 тис. м ³ / год при охолодженні газу від 80° С до 33° С. [3].

Зрошувальні холодильники мають значно менші капітальні витрати, ніж трубчасті, вони не чутливі до забруднень, але при їх експлуатації підвищуються енергетичні витрати.

1.24 Електрофільтри для очищення прямого коксового газу від смоли

Електрофільтр (рис 8.) Являє собою колонний апарат, в якому між двома трубними гратами 1 розміщені осаджувальні електроди 5, виконані зі сталевих труб. Ці труби підвішені до верхньої трубної решітці, нижні кінці закріплені в нижній дистанційної решітці.

Рис. 8. Електрофільтр.

- трубна решітка; 2 - коробки ізоляторні; 3 - ізолятори; 4, 8-рами коронуючих електродів; 5 - труби осаджувальні; 6 - корпус; 7-електроди коронирующі; 9-решітки газорозподільні; 10-лази; 11 - штуцер входу газу 12 - штуцер виходу газу; 13 - введення пара; 14 - вихід смоли; 15 - вихід конденсату.- коксовий газ; II - коксовий газ, III - смола.

По осі кожної з осаджувальних труб натягнуто дріт, що є коронирующим електродом 7. Ці електроди зверху і знизу пов'язані рамами коронуючих електродів. Нижня рама 8 висить на електродах, зверху 4 підвішена до гірляндам високовольтних ізоляторів 3, встановлених в ізоляторних коробках 2. Для живлення електрофільтра випрямленою струмом високої напруги мається трансформаторно - перетворювальні агрегат з номінальною напругою до 80 кВ і випрямленою струмом до 400 мА.

Введення струму електрофільтр здійснюється через прохідний ізолятор. Осаджувальні електроди приєднуються до позитивного полюса трансформаторно - перетворювального агрегату, а коронирующим - до негативного. Ізоляторні коробки забезпечені системою обігріву з автоматичним регулюванням температури, що виключає можливість конденсування вологи на поверхні ізолятора.

Технічна характеристика електрофільтрів:

Тип електрофільтру………………………………………. С-5П С-7.2П

Активна площа перерізу, м ²……………………………………… 5 7.2

Оптимальна швидкість газу, віднесена до активної площі

перетину, м / с……………………………………………………. 1.5 1.5

Розрахункова продуктивність по очищають газу

(При оптимальній швидкості), м ³ / год…………………… 27000 39000

Розрахункова площа осадження осаджувальних електродів,

м ²………………………………………………………………. 315 422

Електричні витрати на очищення 1000 м ³ газу / ч, кВт ………. 0.6 0.6

Масова концентрація смоли на вході в електрофільтр

г / м ³, не більше………………………………………………… 3 березня

Гідравлічний опір, кПа……………………………. 0.25-0.35 0.25-0.35

Напруга, В…………………………………. 55000-65000 55000-65000

Розрядження всередині електрофільтра, кПа, не більше……………. 6

Тиск усередині електрофільтра, кПа, не більше………………. 40 40

Тиск пари усередині парових сорочок, кПа. Не більше……. 1000 1000

Температура очищуваного газу,° С…………………… 45-60 45-60

Ступінь очищення газу від смоли, %, не більше………………. 98 98

Маса, т:

Корпуси…………………………………………………. 1069 13.26

Механічного обладнання…………………………………… 27.2 37.0

Температура зовнішньої поверхні теплоізоляції

електрофільтру,° С, не більше……………………………… 60 60

діаметр апарату, мм………………………………………. 4200 - 4600

висота, мм……………………………………………… 13300 - 14490

Коронуючі електроди виготовлені з дроту Ø 3 мм, матеріал - сплав

Х15Н60-Н, інші конструктивні елементи виготовлені з вуглецевої сталі.

1.25 Освітлювачі для надсмольної води

Для освітлення надсмольної води та відділення смоли застосовуються апарати гравітаційного типу. На коксохімічних підприємствах застосовуються апарати з механізованим видаленням фусів: освітлювачі прямокутного перерізу ємністю 210 і 380 м ³; освітлювачі круглого перетину ємністю 650 м ³. Досвід експлуатації освітлювачів круглого перетину виявив ряд значних недоліків, пов'язаних з ненадійною їх роботою. На знову споруджуваних підприємствах установка циліндричних освітлювачів в цехах уловлювання не передбачається.

Гипрококсом розроблена і застосовується більш досконала конструкція механізованого освітлювача прямокутної форми ємністю 380 м ³, наведена на рис 9.


Рис. 9 Механізований освітлювач для надсмольной води ємністю 380 м-1

- корпус; 2 - труба введення води; 3 - відбивач; 4 - решітка розподільна; 5 - кишеня * проточна; 6 - кишеня зворотня; 7-конвеєр скребковий; 8 - бункер розвантажувальний; 9 - бічну кишеню; 10-центральна переточна кишеню; 11 - перегородки; 12 - регулятор рівня; 13 - штуцери- надсмольная вода; II - вода; III - смола; IV - Фуси

Освітлювач складається з корпусу 1 прямокутного перерізу з комбінованим днищем (які мають горизонтальну і похилу частини). Для введення води встановлена ​​труба 2 з відбивачем 3. В нижній частині труби є отвори (див. перетин А-А). Всередині апарату змонтована розподільча грати 4. Для виведення води передбачений припливне кишеню 5, а для виведення смоли - зворотня кишеня 6. Над днищем освітлювача змонтовані 2 скребкових конвеєра 7. Горизонтальна частина днища виконана подвійно. Внутрішній простір днища повідомляється з кишенею для води за допомогою двох бічних 9 і одной центральной 10 переточною кишенею. Зсередини порожнина днища розділена перегородками 11 (див. перетин Б-Б) на окремі канали. Спорожнення каналів проводиться через штуцери 13.

Освітлювач працює таким чином: надсмольна вода надходить із двох сторін в трубу введення води 2 і випливає з неї через отвори. Розташовані в нижній частині труби, рівномірно розподіляючись по ширині апарату. Потоки води спрямовуються за допомогою отражателя 3 і розподільної решітки у напрямку поздовжньої осі апарата. При русі потоків уздовж апарату більш важкі частинки осідають на дно, а більш легкі спливають вгору. У освітлювачі підтримуються постійні рівні розділу шарів: верхній - вода; нижній - смола; середній - фуси. Освітлена вода і відстояна від фусів смола виводиться через кишені 5 і 6, а осілі фуси згрібають конвеєрами в розвантажувальний бункер 8. необхідний робочий рівень смоли (≈ 1 500 мм) в освітлювачі підтримується автоматично регулювання рівня смоли з допомогою телескопічного регулятора рівня 12, поміщеного всередині корпусу освітлювача.

При очищенні надсмольной води, що містить 4.36 г. / л смолистих речовин і 0.67 г. / л механічних домішок, вміст смолистих речовин і суспензій складе відповідно 0.119 г. / л. Вміст води в смолі після освітлювачів було одно 3.03%, а вільного вуглецю 5.74%. при цьому щільність смоли становила 1208 кг / м ³, а води 1005 кг / м ³.

.26 Устаткування вживане у відділенні охолодження і конденсації коксового газу

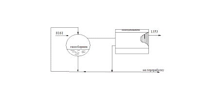
Призначення та конструкція газозбірника.

В даний час коксові батареї обладнуються двома газозбірника з машинної і коксової сторін, з'єднаними між собою перекидним газопроводом. Установка двох газозбірників сприяє більш рівномірному відсмоктуванню коксового газу з печей, підтриманню в них оптимального тиску і забезпечує кращі умови для бездимної завантаження.

Основні призначення газозбірників полягають в наступному:

а) збирання коксового газу, що виділяється з камер коксових печей протягом усього періоду коксування, і вирівнювання його складу;

б) охолодження коксового газу від температури 650-700° С до 80-85° С шляхом зрошення його в газозбірнику розпорошеною надсмольною водою.

Газозбірник являє собою горизонтальний колектор діаметром 1200-1500 мм, що укладається уздовж батареї на кронштейнах анкетних колон.

У газозбірника передбачені штуцери для під'єднання стояків, газоскидних печей і гідрозатворів. Для полегшення сходу фусів газозбірника встановлюють з ухилом, рівним 0,006. У центрі кожного газозбірника мається трійник для приєднання перекидного газопроводу.

Коксовий газ з камер коксових печей надходить в газозбірник через стояки, які за допомогою колін з'єднані з газозбірника.

В коліна стояка встановлений тарілчастий клапан, за допомогою якого камера може бути відключена від газозбірника. У верхній частині коліна стояка передбачено отвір для відводу пари, необхідно для бездимної завантаження камер коксових печей шихтою.

У газозбірнику газ зрошується мелкораспиленною водою, яка подається через форсунки, встановлені в газозбірнику. Для полегшення сходу смоли з газозбірника охолодження коксового газу в ньому здійснюється гарячою водою. Крім того, зрошення гарячою водою забезпечує випаровування води в газ, а, отже, охолодження газу меншою кількістю води. Зазвичай температура води, що надходить в газозбірник, вище точки роси поступає в нього газу і складає 70-75° С. Надсмольна вода разом зі смолою і фусами виводиться з газозбірників через відповідні гідрозатвори.

Аналіз процесу охолодження в газозбірнику

Взаємодія газу і охолоджувальної води в газозбірнику супроводжується процесами тепло й масообмінних. Процес теплообміну визначається різницею температур газу та води. Так як температура газу вище температури орошающей води, то тепло передається від газу до води, і він охолоджується.

Рушійною силою другого процесу - масообміну є різниця між пружністю парів води при її температурі і парціальним тиском водяної пари в газі. Так як пружність водяної пари над надходуючою водою більше, ніж парціальний тиск їх в газі, що надходять з камер коксових печей, то відбувається випаровування води.

Отже, тепло QГ, що віддається газом, частково в кількості Qи переходить до образу пару, смешивающимся з газовим потоком, а інше тепло охолодження газу QГ - Qи йде на нагрів води. Але по мірі охолодження газу і нагріву води різниця температур між ними буде зменшуватися, а разом з тим буде зменшуватися і кількість переданого тепла від газу до води. Очевидно, настане момент, коли величина QГ стане рівній Qи, після чого подальше нагрівання стане не можливим, а все тепло, що отримується водою від газу, піде на її випаровування при постійній температурі. Межі охолодження газу буде відповідати температура мокрого термометра.

В дійсності процес охолодження коксового газу в газозбірника ускладнюється конденсацією пари смоли і втратами тепла назовні поверхнею газозбірника.

Крім того, досягнення стану рівноваги, тобто досягнення температури мокрого термометра, залежить від тривалості контакту і поверхні випаровування крапель розпилюється води, яка визначається якість розпилення води форсунками, встановленими в газозбірника.

Аналітичне визначення температури мокрого термометра може бути зроблено на основі теплового балансу газозбірника з урахуванням нагріву води, втрат тепла назовні і конденсації парів смоли.

Проведений аналіз отриманих рівнянь показав, що температура мокрого термометра залежить від наступних факторів: вологості шихти, температури газу, що надходить в газозбірник, кількість і температури надходить і вихідної води і втрат тепла назовні.

Розрахунки показують, що найбільший вплив на температуру мокрого термометра надає вологість шихти.

Значення температур від мокрого термометра залежно від вологості шихти w і температури газу, що надходить в газозбірник, tr представлений в таблиці 1.2.1.

Таблиця 18. Вологість шихти.

tr,°С

Важливість шіхты%


0

4

8

12

14

650

73,5

78,5

82,0

84,8

86,0

700

75,0

79,5

82,8

85,3

86,4

750

76,3

80,5

83,6

85,8

86,8


Ці результати отримані при наступних вихідних даних: кількість води, що надходить в газозбірник, 5,5 м3 на 1т сухої шихти; вихід сухої коксового газу 330м3 на 1т сухої шихти; нагрів води в газозбірнику 3° С; втрати тепла назовні 10% від переданого тепла в газозбірнику; кількість конденсованої смоли 60% від ресурсів.

Транспортування газу через апаратуру цеху уловлювання

Для безпечної та ефективної роботи коксових печей потрібно підтримувати в них тиск, близьке у атмосферному, щоб уникнути значних втрат летких продуктів або підсмоктування повітря через нещільність кладки і арматури. Це досягається шляхом регульованого відсмоктування газу з газосборніков при тиску 100-140Па. При русі газу по трубопроводах та апаратів цеху уловлювання виникають значні гідравлічні опору, для подолання яких необхідно витрачати енергію.

Відсмоктування коксового газу з печей та транспортування його через апаратуру здійснюється за допомогою спеціальних газодувок, званих також ексгаустерів або нагнітачами, які розташовуються в машинному відділенні після первинних газових холодильників. Місце установки газодувок диктується не тільки прагненням скоротити витрату електроенергії на транспортування газу, але і необхідністю зменшення числа газових апаратів, що працюють під розрідженням і створюють небезпеку підсосу повітря в систему.

Нагнітачі є найбільш відповідальними агрегатами заводу, від яких залежить робота коксових печей, цеху уловлювання та споживачів коксового газу. Кількість нагнітачів, встановлюваних в машинному відділенні, визначається їх продуктивністю по газу і потужністю заводу. На типовому заводі, що включає чотири батареї коксових печей, встановлюється три нагнітача, з яких два робочих, один резервний. На випадок виникнення перебоїв в подачі електроенергії один або два нагнітача повинні мати привід від парової турбіни.

Газ з коксових батарей, з'єднаних попарно, надходить через первинні газові холодильники в загальний колектор, розташований перед машинним відділенням, з якого двома нагнітачами подається в апаратуру цеху уловлювання. Типова схема газового тракту коксохімічного заводу, з холодильниками побічної дії показана на малюнку.

За своїми параметрами нагнітачі повинні забезпечувати відсмоктування максимального обсягу коксового газу з урахуванням форсування роботи печей. Необхідний напір нагнітача визначається загальним гідравлічним опором газового тракту та вимогами споживачів газу.

За досвідченим даними, гідравлічний опір окремих ділянок газового тракту складають, Па:

Газопровід від коксових печей до нагнітачів 1500-2500

Газові холодильники 1000-2000

Електрофільтри 400-500

Дросельні клапани 500-1000

Всього на лінії всмоктування 3500-6000

Газопровід від нагнітачів до споживача 3500-5000

Підігрівачі газу 500-600

Сатуратори з пастками 5000-6500

Кінцеві газові холодильники 1000-1500

Скрубери сірководневі 1500-2000

Скрубери бензольні 2000-2500

Тиск газу в кінцевій точці газопроводу 4000-6000

Всього на лінії нагнітання 17500-24100

На сучасних коксохімічних заводах застосовуються нагнітачі відцентрового типу, що приводяться в рух паровою турбіною (3000-5000 об/мін) або тихохідним високовольтним електродвигуном (1450 об / хв) через зубчастий редуктор, що збільшує швидкість обертання до 3000-5000 об/мін. нижче наведена технічна характеристика серійно випускаються нагнітачів з електричними приводами:

Тип нагнітача 750-23-8 1200-27-2 Е1800-23-2

Продуктивність 750 1270 1900

при 35  С і 93200Па,

м3/хв

Підвищення тиску, Па 29400 34335 34335

Частота обертання -1 79,3 65,1 50,0

ротора, с-1

Потужність 800 1250 3150

електродвигуна, кВт

Регулювання продуктивності нагнітача з паровим приводом здійснюється зміною подачі пари в турбіну, що викликає відповідну зміну швидкості обертання ротора нагнітача. Такий спосіб регулювання є найбільш економічним.

У нагнітачів з електроприводом число оборотів залишається постійним, а регулювання їх продуктивності здійснюється двома способами:

* Прикривання (відкриванням) засувки на всмоктувальному газопроводі;

* Шляхом передачі частини газу з нагнітального газопроводу через обвідний газопровід (байпас) у всмоктуючий.

Другий спосіб є більш зручним, проте як і перший пов'язаний з марною витратою енергії. Недоліком другого способу є також те, що температура газу після нагнітача значно підвищується через повторного стиснення частини газу. Сучасні нагнітачі з електроприводом обладнані автоматичними регуляторами, які діють за допомогою поршневого виконавчого механізму на клапан - метелика, встановлений в обвідному газопроводі. При турбінному приводі задане розрядження перед нагнітачем підтримується шляхом автоматичної зміни числа обертів турбіни.

При автоматичному регулюванні продуктивності нагнітача коливання тиску в газопроводі перед ним не перевищують 100-200Па. Оскільки такі коливання неприпустимі для газозбірників коксових печей, то безпосередньо за ними на відвідних газопроводах встановлюються автоматично регульовані дроселі, що знижують коливання тиску в газозбірниках до 10-20Па.

При роботі нагнітачів під дією відцентрової сили з газу виділяється смола і водний конденсат, які стікають вниз камери кожного робочого колеса. Для безперервного видалення конденсату в нижній частині корпусу є спускні отвори, до яких приєднані дренажні труби, занурені в гідрозатвор і забезпечені паровим підігрівом.

Велика швидкість обертання робочого колеса нагнітача обумовлює необхідність безперервної примусової мастила підшипників за допомогою спеціального масляного насоса, що приводиться від головного валу. Цей насос починає працювати при швидкості обертання вала 1500 об/хв. Перед вступом до підшипники циркулюючі масло проходить через спеціальний холодильник і фільтр.


2. Технологічний розрахунок устаткування первинного охолодження і конденсації коксового газу

.1 Розрахунок газозбірника

Розрахунки продуктивності:

П=V·ρ·k·N∕t

П=14,5746 кг

а) Кількість сухої шихти, коксованість в батареї коксової печі 145т∕год

б) Вихід основних продуктів коксування (у вагових відсотках на суху шихту):

водяні пари (пірогенетична волога) 6%;

смола 3,0%;

бензольні вуглеводні (СБ) 1%;

сірководень 0,4%;

аміак 0,3%;

коксовий газ (КГ) 12%;

разом: 22,7%

в) Склад сухого коксового газу після уловлювання з нього хімічних продуктів (в об'ємних%):

Н2-56,7%; СО - 6,0%; СО2-3,0%; О2-0,8%; СН4-26,0%; N2-5,0%; СmНn-2,5%.

Матеріальний розрахунок:

У газозбірнік надходить в годину така кількість газоподібних продуктів коксування:

а) по вазі: (у кг)

СКГ Gг=145746·0,12=17489,52

Вод. пари Gв=145746·0,06=8744,76

- Пари смоли Gсм=145746·0,03=4372,38

- Бензольн. вуглев. Gб=145746·0,01=1457,46

Сірководень Gс=145746·0,004=582,984

Аміак Gа=145746·0,003=437,283

б) за обсягом:

Сухий коксовий газ:г=17489∕0,48=36435 нм³;

Де 0,48 - питома вага сухого коксового газу, що визначається за складом газу:

γг=(0,567·2+0,26·16+0,06·28+0,05·28+0,03·44+0,025·28+0,008·32) 1∕22,4=0,48 кг∕м³;

Водяні пари:в=8744,76·22,4∕18=10882,368 нм³;

Пари смоли:       

Vсм=4372,38·22,4∕170=576,12 нм³;

Де 170 - середня молекулярна вага смоли (умовний).

Бензольні вуглеводні:б=1457,46·22,4∕83=393,33 нм³;

Де 83 - середня молекулярна вага бензольних вуглеводнів (відгону до 180˚).

Сірководень:с=582,984·22,4∕34=384,08 нм³;

Аміак:

Vа=437,283·22,4∕17=576,18 нм³;

Разом за обсягом: 48217,61 нм³;

Приймаємо, що в газозбірнику конденсується 60% смоли, що міститься в газі, який надходить. Тоді кількість смоли, яка конденсується, буде одно:

gсм=0,6·4372,38=2623,42 кг;

і залишається смоли в газі, що виходить з газозбірника:

G'cм=0,4·4372,38=1748,95 кг;

и за обсягом:

,4·576,12=230,44 нм³

Позначаємо кількість (кг) води, яка випарувалася в газозбірнику, через G. Це становить за обсягом в пароподібному стані 1,245 G нм ³ / год. Тоді з газозбірника виходить наступна кількість газоподібних продуктів (табл. 1)

Найменування продуктів

кількість

Кількість


кг∕год

нм³∕год

Сухий КГ

17489,52

36435

Водяні пари

8744,76+G

10882,368+1,245G

Пари смоли

1748,95

576,12

Бензольні вуглеводні

1457,46

393,33

Сірководень

582,984

384,08

Аміак

437,283

576,18


Разом: 30461+G 49247+1,245G

Величина G визначається надалі по тепловому балансу газозбірника;

Тепловий розрахунок.

Прихід тепла:

1 Тепло, яке внесене в газозбірик коксовим газом.:

а) Тепло, яке внесене сухим газом:

g1=GгСгt1

Приймаємо температуру вхідного коксового газу рівній 650 ˚ С.

Середня теплоємність сухого коксового газу в межах температур 0-650 ˚ С. може бути визначена за складом газу і середня теплоємність компонентів і буде дорівнює:

Сг=0,567·0,3135+0,26·0,555+0,06·0,3265+0,05·0,3235+0,03·0,4905+0,025·0,7165+0,008·0,339=0,094 кДж∕м³·град;

А вагова теплоємність:

Gг=0,094∕0,48=0,195 кДж∕кг·град;

Тоді:

g1=650·17489·0,195=2216730 кДж∕час;

б) Тепло, яке внесене водяними парами:

g2=Gв·(595+Свt1)

Приймаємо середню теплоємність водяної пари:

Св=0,115 кДж∕кг·град;

Отримуємо:

g1=8744 (595+0,115·650)=5856294 кДж∕год;

в) Тепло, яке внесене парами смолы:

g3=Gсм(100+Ссмt1)

Теплоємність парів смоли визначаємо за формулою:

Ссм=0,305+0,393·10ˉ³·t1;

Або

Ссм=0,305+0,393·10ˉ³·650=0,132 кДж∕кг·град;

Тоді:3=4372,38·(100+0,132·650)=812388 кДж∕год;

г) Тепло, яке внесене бензольнимі вуглеводнями:

g4=GбСбt1

Теплоємність парів бензольних вуглеводнів визначаємо за формулою:

Сб=20,7+0.026·t∕М

Де М - середня молекулярна вага бензольних вуглеводнів.

Сб=20,7+0.026·650∕83=0,105 кДж∕кг·град;4=1457·0,105·650=99440 кДж∕час;

д) Тепло, яке внесене сірководнем:
5= GсСсt1

Теплоємність паров сірководня:

Сс=0,065 кДж∕кг·град;5=582·0,065·650=24589 кДж∕год;

е) Тепло, яке внесене аміаком:

g6= GаСаt1

Теплоємність аміака:

Са=0,15 кДж∕кг·град;6=437·0,15·650=42607 кДж∕год;

Загальна кількість тепла, що вноситься газозбірник:

Q1=9052048 кДж∕год.

2. Тепло внесене в газозбірник надсмольною водою, що надходить для охолодження газу:

Q2=W1t'в

Де W1 - кількість води. кг∕год;

t'в - температура води, що надходить;

кількість води, що подається в газозбірник, приймаємо рівним 5,5 м ³ на 1т коксованої шихти, що становить:

W1=8744·5,5=48092 кг∕год;

Мінімальна температура води, що подається в газозбірник, визначається по точці роси газу, що надходить в газозбірник.

Парціальний тиск водяної пари в газі, який поступає в газозбірник. При загальному тиску 760 мм. рт. ст. складе:=760·(10882∕49247)=167 мм. рт. ст.,

Що відповідає температурі 67,54 ˚ C;

Приймаємо температуру води, що поступає на 5-10 ˚ вище точки роси, тобто дорівною 75 ˚, тоді:

Q2=48092·75=3606900 кДж∕год;

Загальна кількість тепла, що вноситься в газозбірник:

Qприх=9052048+3606900=12658948 кДж∕год;

Витрата тепла:

. Тепло, уносимое коксовим газом з газозбірника:

а) Тепло, уносимоє сухим газом: g1= GгСгt2

Приймаємо температуру газу t2 на виході з газозбірника рівній 82 ˚ (ця температура в подальшому перевіряється).

Середня теплоємність сухого коксового газу, в межах температур 0-82 ˚, буде рівною:

Сг=0,567·0,31+0,26·0,382+0,06·0,306+0,05·0,305+0,03·0,415+0,025·0,518+0,008·0,314=0,08 кДж∕м³·град;

а вагова теплоємність:

Сг=0,08043∕0,48=0,16 кДж∕кг·град;

Тоді:

g1=17489·0,16·82=240299 кДж∕час;

б) Тепло, яке уноситься водяними парами:

g2=G'в(595+Свt2)

Кількість водяної пари, що виходять з газозбірника:

G'в=8744+G

Теплоємність водяної пари:

Св=0,104 кДж∕кг·град;

Тоді:

g2=(8744+G) (595+0,104·82)= 5277248+603G кДж∕час;

 

в) Тепло, яке уноситься парами смоли:

g3=G'см(100+Ссмt2)

Теплоємність паров смоли:

Ссм=0,305+0,392·10ˉ³·82=0,08 кДж∕кг·град;

Тоді:

g3=4372 (100+0,08·82)=465880 кДж∕год;

г) Тепло, яке уноситься бензольнимі вуглеводнями:

g4=GбCб t2

Теплоємність паров бензольних вуглеводнів дорівнює:

Cб=20,7+0,026·82∕83=0,065 кДж∕кг·град;

g4=1457·0,065·82=7841 кДж∕год;

д) Тепло, яке уноситься сірководнем:

g5=GсCс t2

Теплоємність сірководня:

Сс=0,056 кДж∕кг·град;

g5=582·0,056·82=2672 кДж∕год;

е) Тепло, яке уноситься аміаком:

g6=GаCа t2

Теплоємність аміака:

Са=0,12 кДж∕кг·град;

g6=437·0,12·82=4300 кДж∕год;

Загальна кількість тепла, яке уноситься газом з газозбірника:

Q3=5998170+603G

2. Тепло, яке уноситься з газозбірника надсмольною водою:

Q'4=(48092-G)·t"в

І смоли, що після конденсації:»4=2623,48·Cсмt"см

Де теплоємність смоли:см=0,327+0,31·10ˉ³· t"в

Приймаємо температуру води, що виходить з газозбірника t"в=77˚C;

Тоді:

Q'4=(48092-G)·77=3703084-77G кДж∕год;

І

Q'4=2623·0,084·77=16956 кДж∕час;

Де Cсм=0,327+0,31·10ˉ³·77=0.084 кДж∕кг·град;

Загальна кількість тепла, яке уноситься надсмольною водою:4=3720040-77G кДж∕год;

3. Тепло, яке уноситься газозбірником у навколишнє середовище.

Все тепло, що втрачається газозбірником, складається із втрат тепла верхньою його частиною, що омивається з середини газом, і втрат тепла нижньою частиною, омитою надсмольною водою. Вважаємо, що газ омиває 80% всієї поверхні газозбірника, а надсмольна вода - інші 20%. Якщо позначити частку поверхні, яка омивається водою, через α, то перетин для проходу надсмольної води буде дорівнюватиме:

Sв=(3,14α-0,5sin360ºα) R²

І для проходу газу:

Sг=[3,14 (1-α)+0,5 sin360ºα] R²

Приймаючи α=0,2 отримуємо:

Sв=(3,14·0,2-0,5sin72ºα) R²=0,155R²г=(3,14·0,8+0,5sin72º) R²=2,985R²

 

а) Втрата тепла верхньою частиною газозбірника:


Поверхня газозбірника F = πDL. Приймаємо діаметр газозбірника D = 1,3 м і довжину L = 77,5 м;

Тоді:=3,14·1,3·77,5=316 м²;

Загальний коефіцієнт теплопередачі від газу до навколишнього повітря:

K=(1 (1/α1)+∑(δ/λ)+1 (α23)) кДж/м²·год·град;

Коефіцієнт тепловіддачі конвекцією від газу до стінки газозбірника визначаємо по рівнянню:

Nu=0,023Re0,8Pr

Склад сухого коксового газу: H2=56,7%; CH4=26%; O2=0,8%; CO2=3%; CO=6%; N2=5%; Cm Hn=25H%.

В'язкості компонентів сухого газу (у сантіпуазах), при середній температурі газу:

t=(650+82)/2=360º

Обчислені за спеціальними формулами (див. Коробчанський), дорівнюють:H=0,015; ZСН4=0,022; Z02=0,037; ZСО2=0,03; ZСО=0,03; ZN2=0,032; ZСmHn=0,02;

Тоді в'язкість сухого газу визначається за формулою:

(100·Мс.г.)/Zс.г.=∑(Мі·υі)/Zі;

Де Мс.г. - молекулярна вага сухого газу;

Zс.г. - в'язкість сухого газу;

Мі - молекулярна вага компонентів;і - в'язкість компонентов;

Υі - склад компонентів (в об'ємних%);

Тоді: (100·Мс.г.)/Zс.г. =(56,7·2)/0,015+(26·32)/0,022+(0,8·32)/0,037+(3·44)/0,033+(6·28)/0,03+(5·28)/ 0,032+(2,5·28)/0,02=44733

Молекулярна вага сухого газу:

Мс.г.=22,4γ=22,4·0,48=10,75

Отже, в'язкість сухого газу дорівнює:

Zс.г. =(100· Мс.г.) /44733=(100·10,75)/44733=0,024 сантипуаза;

Визначаємо в'язкість вологого газу. Зміст водяної пари в газі на вході дорівнює:'в/P=210/760=0,277 або 27,7% об'ємних;

І на виході:

P"в/P=384,9/760=0,505 або 50,5%

Де P-загальний тиск в газозбірнику;'в - парціальний тиск водяної пари в газі, на вході;«в - пружність водяної пари при 82 º;

Середній вміст водяної пари в газі дорівнює 39,1% і сухого газу 60,9%;

В'язкість водяної пари при 366 º ZН2О = 0,022 сантіпуаза;

Тоді в'язкість вологого газу визначаємо за формулою:

(100· Мвл.г.)/Zвл.г.= Мс.г.·υс.г/ Zс.г.Н2О·υН2О/ZН2О або

(100· Мвл.г.)/Zвл.г.=(10,75·60,9)/0,024+(18·39,1)/0,022=59300;

Молекулярна вага вологого газу:

Мвл.г. =(60,9·10,75+39,1·18)/100=13,59;

Тоді:

Zвл.г.= (100· Мвл.г.)/59300=100·13,59/59300=0,023 сантипуаза;

Питома вага вологого газу:

γвл.г=(13,59/22,4)·(273 (273+366))=0,26 кг/м³;

Число Рейнольдса:

Re=(1000·υ·D·γвл.г)/Zвл.г

Приймаючи середню швидкість газу в газозбірнику υ = 4,25 м / с, отримаємо:=(1000·4,25·1.3·0,26)/0,023=62500

Число Прандтля:

Pr=(3,6·C·Zвл.г)/ γвл.г


Де C - середня теплоємність вологого газу; кДж / кг • град;

Теплоємність сухого газу на вході:'с.г.=0,19 кДж/кг·град;

Теплоємність водяної пари на вході:'Н2О=0,11 кДж/кг·град;

Вміст водяної пари на вході складає 27,2% об'ємних або вагових:

(27,7·18)/27,7·18+72,3·10,75=39,1%;

І сухого газу - 60,9%;

Тоді теплоємність вологого газу на вході:'вл.г=0,19·0,609+0,11·0,391=0,158 кДж/кг·град;

Теплоємність сухого газу на виході:'с.г.=0,167 кДж/кг·град;

Теплоємність водяної пари на виході:

C"Н2О=0,104 кДж/кг·град;

Вміст водяної пари на виході складає 50,5% об'ємних; вагових:

(50,5·18)/50,5·18+49.5·10,75=63% і сухого газу 37%;

Тоді теплоємність вологого газу на виході:"вл.г=0,7·0,037+0,438·0,63=0,13 кДж/кг·град;

І середня теплоємність вологого газу:

C=(0,158+0,13)/2=0.144 кДж/кг·град;

Визначили теплопровідність вологого газу теплопровідності компонентів сухого газу при 366º дорівнюють (в Дж/м·год·град):

λН2О=0,251; λСН4=0,065; λ02=0,0392; λС0=0,0374; λС02=0,0319; λН2=0,036; λСmHn=0,0225;

Теплопровідність сухого коксового газу:

λс.г.=0,251·0,567+0,065·0,26+0,0392·0,008+0,0319·0,03+0,0374·0,06+0,036·0,05+0.0225·0,025=0,039 кДж/м·год·град;

Теплопровідність вологого газу:

λвл.г=0,165·0,609+0,0432·0,391=0,028 кДж/м·год·град;

Теплопровідність водяної пари при 366º:

λв=0,0103 кДж/м·год·град;

Таким чином:=3,6·(0,144·0,023)/0,028=0,425

Тоді:=0,023·625000.8 ·0,4250,4 =112

α1=Nu·(λвл.г/D)=112·(0.0028/1,3)=2,4 кДж/м·год·град;

Коефіцієнт тепловіддачі конвекцією від стінки газозбірника навколишньому повітрю визначаємо по рівнянню:

Nu=CRen;

Де С и n беруться в залежності від числа Re;

Приймаємо температуру навколишнього повітря 25 º і швидкість руху 3,5 м ² / сек;

В'язкість повітря при 25 º дорівнює 16,5 •16,5·10ֿ6 м ² / сек;

тоді:

Re=(υ·D)/υ=(3,5·1,3·106)/16,5=282000

Для Re=282000; С=0,023 і n=0.8=0,023·2820000,8=527

Так як теплопровідність повітря при 25 º дорівнює 0,005 кДж / м • год • град, то

α2=Nu·(λ/D)=527·(0,005/1,3)=2,027 кДж/м²·год·град;

Коефіцієнт тепловіддачі випромінюванням від стінки газозбірника в навколишнє середовище визначаємо за формулою:

α3=C·((Тст/100)4 - (Тв/100)4/(tcт-tв))= кДж/м²·год·град;

Величина С=1,09 кДж/м²·год·ºК (для шорстких металевих поверхонь). Задаємося температурою зовнішній поверхні газозбірника tcт, рівною 142º

Тоді при температурі повітря=25º

α3=1,09·(((273+142)/100)4 - ((273+25)/100)4/(142-25))=2,02 кДж/м²·год·град;

Загальний коефіцієнт теплопередачі:

К1=1·(1/24)+0,006/0,12)+1/(2,027+2,02)=1,42 кДж/м²·год·град;

Де товщина відкладень на стінках прийнята рівною 6 мм і їх коефіцієнт теплопровідності λ=0,12 кДж/м·год·град, (термічними опором металевої стінки нехтуємо). Перевіряємо температуру зовнішньої поверхні газозбірника за формулою:

tст=tв +((К1(tг-tв))/(α23);

тоді:ст=25+(1,42 (366-25)/(2,027+2,02)=142º

що збігається з прийнятою раніше.

Втрата тепла газовою частиною газозбірника буде дорівнювати:'5=0,5·1,42·630 (366-25)=244046 кДж/год;

б) Втрата тепла нижньою частиною газозбірника:

5=0,2·F·К2(tвод-tвозд) кДж/год;

Коефіцієнт тепловіддачі від води до внутрішньої поверхні газозбірника:

α1=(1190+21,5·tвод-0,045·t²вод) w0,8 кДж/м²·год·град;

де tвод-середня температура води; дорівнює 76 º С;швидкість руху надсмольною води в газозбірнику;

так як перетин для проходу надсмольною води дорівнює:

S=0,155R²(1,3/2)²=0,064 м²;

То швидкість руху води буде дорівнює:=W·(4·3600·S)=м/с;

де коефіцієнт 4 введений з огляду на те, що є 1 батарея.

Таким чином:

w=448·(4·3600·0,064)=0,48 м /с;

тоді:

α1=(1190+21,5·76-0,045·76²)·0,0480,8=340 кДж/м²·год·град;

Коефіцієнт тепловіддачі конвекцією від стінки газозбірника до навколишнього повітря (визначений вище):

α2=2,027 кДж/м²·год·град;

Коефіцієнт тепловіддачі випромінюванням від нижньої частини газозбірника:

α3=С·((Tст/100)4 - (Tвоз/100)4/(tст-tвоз)= кДж/м²·год·град;

Задаємося температурою стінки газозбірника в його нижній частині tст= 68º

α3=1,09·(((273+68)/100)4 - (273+25)/100/(68-25))=1,44 кДж/м²·год·град;

Загальний коефіцієнт теплопередачі від води до повітря буде дорівнювати:

К2=1·(1/340)+0,006/0,12)+1/(2,027+1,44)=3,003 кДж/м²·год·град;

Перевіряємо температуру нижньої частини газозбірника по формулі:

tст=tвозд +((К2(tвоз-tвоз))/(α23);

tст=25+(3,003 (76-25)/(2,027+1,44)=68º

що збігається з прийнятою раніше.

Втрата тепла нижньою частиною газозбірника буде дорівнювати:

5=0,2·630·3,003 (76-25)=19297 кДж/год;

Загальна кількість тепла, що втрачається газозбірником:5=244046+19297=263343 кДж/год;

Таким чином, загальна витрата тепла дорівнює:расх=9981553+526G кДж/год;

Прирівнюючи прихід і витрати тепла, отримаємо:

=9981553+526G;

Звідси кількість води, що випарувалася в газозбірнику, виходить рівним:=5090 кг/рік;

Що становить за обсягом в пароподібному стані:

5090·(22,4/17)=6706 нм³/год;

Загальний обсяг водяної пари на виході:

0882+6706=17588 нм³/год;

На підставі отриманого значення G складаємо зведену таблицю матеріального балансу:

Таблиця 2


Надходить у газозбірник:

Надходить у газозбірник:

Виходить з газозбірника:

Виходить з газозбірника:


кг/год:

нм³/год:

кг/год:

нм³/год:

Газ:





С.к.г.

17489

36435

17489

36435

Вод.пари

8161

10882

32509

40468

Пари смоли

4372

576,12

1748

576

Бенз.вуглевод.

1457

393

1457

393

Сірководень

582

384

582

384

Аміак

437

576

437

576

Разом

33081

49246

54222

78832

Рідина:





Надсмольна вода

73138

24327

Смола

2623


73138

27387

Разом:

106219

106219


Парціальний тиск водяної пари на виході з газозбірника буде дорівнювати:=760·(40468/78832)=390

Що відповідає точці роси 83 º.

Отже, температура вихідного газу прийнята правильно.

Перевіряємо швидкість руху газу в газозбірнику.

Середній обсяг газів в газозбірнику (на вході і виході) при середній температурі 366 º дорівнює:=((49246+78832)/1·(366+273)/273)=128675·2,4=299702 м³/год;

Перетин для проходу газу:г=2,985R²=2,985·(13)²=5,04 м²;

Швидкість руху газу в газозбірнику при наявності чотирьох відводів газопроводів від кожної батареї (см. схему газопроводів):

υ=299702/(5,04·3600·8)=2,06 м/с;

що збігається з прийнятої раніше.

Зведений тепловий баланс газозбірника наведено в таблиці 3:


Прихід тепла, кДж/год

Витрата тепла, кДж/год

З с.к.г.

2216730

240299

З парами води

5856294

17292407

З парами смоли

812388

465880

З бенз. вуглевод.

99440

7841

З сірководнем

24589

2672

З аміаком

42607

4300

Разом з газом:

9052048

18013399

З надсмольною водою

3606900

3328110

втрати тепла назовні

263343

Разом:

21710996

21710996


2.2 Розрахунок первинного газового холодильника

 

Матеріальний розрахунок

Первинні газові холодильники встановлюються на газовий потік, що йде від 1 батареї коксової печі.

Кількість газів, що надходять в холодильники, становить:


кг/г

м³/г

с.к.г

17489,52

36435

Водяні пари

32509

40468

Пари смоли

1748

576

Бенз. вуглевод.

1457,46

393,33

Сірководень

582,984

384,08

Аміак

437,283

586,18

Разом:

54223,7

78872


Температура газу 82 º С, тиск 760 мм рт. ст.

Приймаємо, що температура газу на виході з холодильника дорівнює 30 º С і тиск 745 мм рт ст. приймаємо також, що в холодильнику конденсується вся смола, наявна в газі.

Обсяг водяної пари на виході з холодильників визначаємо з рівняння:

VВ=Vс.г(p/P­p)

Де Vс.г - обсяг сухого газу на виході з холодильника, м ³ / год

p - пружність водяної пари при 30 º С, p = 31,8 мм рт ст;

P - загальний тиск газу на виході з холодильника, мм рт ст;с.г=78872-672-40468=37732 м³/г;

Тоді:В=37732 (31,8/745-31,8)=1682,3 м³/г;

І по масі:

(1682,3/22,4)·18=1352 кг/г;

Отже, в холодильнику конденсується водяної пари в кількості 32509-1352 = 31157 кг / год. Кількість аміачної води, що йде на переробку, так само:

-1352 = 7392 кг / год. Де 8744-кількість вологи шихти і пірогенетичної води, кг / год; 1352 - кількість водяної пари, що уноситься з холодильника газом, кг / год; Різниця між кількістю водяної пари, що конденсується 31157 кг / год і переробляється води 7392 кг / год, дорівнює 23765 кг / год, йде на поповнення циклу води газозбірників.

Схема матеріальних потоків води показана на рис.

В аміачної воді, що йде на переробку, розчиняється деяка кількість аміаку та сірководню. Приймаємо наступний склад аміачної води, г / л: аміаку 5, сірководню 2, двоокису вуглецю 2. Тоді кількість цих газів, що розчинилися у воді, буде дорівнювати кг / год: аміаку 7392 • 0,005 = 36,96

Сірководню 7392 • 0,002 = 14,78, двоокису вуглецю 7392 • 0,002 = 14,78.

Рис. Схема матеріальних потоків надсмольної води при первинному охолоджуванні коксового газу


Матеріальний баланс холодильника наведено в таблиці 4:


Прихід

Прихід

Витрата

Витрата


кг/год:

м³/год:

кг/год:

м³/год:

Газ:





С.к.г.

17489

36435

16489,52

36420

Вод.пари

32509

40468

2764

1490

Пари смоли

1748

576

-

-

Бенз.вуглевод.

1457

393

1457,46

393,33

Сірководень

582

384

560

370

Аміак

437

576

420

470


54223

78872

21690,98

39143,33

Вода

-

-

61279

-

розчинені гази

-

-

195

Смола

3190,3



54222


86355

-

Разом:

54222


 

Тепловий розрахунок

Прихід тепла. 1. Тепло, внесене в холодильник коксовим газом згідно з розрахунком газозбірників (таблиця 4):1=17594107 кдЖ/год,

2. Тепло, внесене в холодильник охолоджуючої водою:

Q2=W t'в

W - кількість технічної води, що надходить в холодильник, кг/г;

t'в - температура технічної води, ща надходить, дорівнює 20-28°C, тоді

Загальний прихід тепла:прих=17594107+24W

Витрата тепла. 1. Тепло, що уноситься коксовим газом з холодильника при 30°C:

а) Тепло, що уноситься сухим газом:1=16489·0,16=81225 кДж/г,

де 0,16 - теплоємність сухого газа, кДж/(кг·град);

б) Тепло, що уноситься водяною парою:2=2764 (1490+0,103·30)=4126900 кДж/г,

де 0,103 - теплоємність водяної пари, кДж/(кг·град);

в) Тепло, що уноситься бензольними вуглеводнями:3=1457,5·0,058·30=2567,2 кДж/г,

де 0,058 - теплоємність бензольних вуглеводнів, кДж/(кг·град);

г) Тепло, що уноситься сірководнем:4=560·0,056·30=942,3 кДж/г,

де 0,056 - теплоємність сірководня, кДж/(кг·град);

д) Тепло, що уноситься аміаком:5=420·0,12·30=1482 кДж/г,

де 0,12 - теплоємність аміака, кДж/(кг·град);

Загальна кількість тепла, що уноситься газом:3=4213116,5 кДж/г.

2. Тепло, що уноситься конденсатом води та смоли:4=(61279+195+3191,3·0,082)·52=3210251,4 кДж/г,

Де 0,082 - теплоємність рідкої смолы при 52°C,

Ссм=0,0327+0,31·10ֿ³·52=0,082 кДж/(кг·град);

І середня температура конденсації водяної пари

t= (80-30)/(2,3lg (82/36))=52°C.

3. Тепло, що уноситься охолоджуючої водою:5=45W

Де 45 - температура води, що виходить,°C.

Загальна кількість тепла, що уноситься з холодильника:расх=7423367+45W

Прирівнюючи прихід і витрати тепла, знайдемо витрати води на охолодження газу в холодильнику:

+24W=7423367+45W

Звідси:=484320,9 або 484 м³/г,

Що складає на 1000 м³ сухого газу в годину

(484·1000)/36435=13,28 м³.

На підставі проведених розрахунків складаємо тепловий баланс холодильників:

Прихід тепла, кДж/г:


Тепло, що вноситься газом

17594107

Тепло, що вноситься водою

17594107

разом

309552614

Витрата тепла, кДж/г:


Тепло, що уноситься газом

4213116,5

Тепло, що уноситься конденсатом

3210251,4

Тепло, що уноситься водою

302129243

Разом

309552614


Визначення потрібної поверхні теплопередачі холодильників

Як сказано вище, первинні трубчасті газові холодильники з'єднують між собою паралельно, так як при цьому гідравлічний опір їх значно менше, ніжпри послідовному з'єднанні. Приймаються вісім паралельно працюючих холодильників. Коефіцієнт теплопередачі від охолоджуючого газу до води визначаємо за рівнянням:

К=1·((1/α1)+δ/λ)+1/α2)

де α1 - коефіцієнт тепловіддачі від газу до стінки, кДж/(м²·г·град),

Як і для холодильника з вертикальним розташуванням труб, величина коефіцієнта тепловіддачі від газу до стінки дорівнює 234 ккал/(м²·г·град),

α2 - коефіцієнт тепловіддачі від стінки до охолоджувальної води, кДж/(м²·г·град),

δ/λ - термічний опір забруднень на металевій поверхні, приймаємо рівним 0,001 (м²·г·град)/кДж.

Коефіцієнт тепловіддачі α визначаємо за формулою:

α2=Nu (λ/d)

де Nu=0,023 · Re0,8·Pr0,4 · φ

швидкість руху води при середньому перерізі трубного простору 0,82 м ² і восьми паралельно працюючих холодильниках складе:

ω=1715/ (3600·8·0,82)=0,073 м/с.

При середній температурі технічної води, що дорівнює 34,5 ºС, вода має наступні фізичні властивості:

питома теплоємність С=0,238 кДж/(кг·град);

коефіцієнт теплопровідності λ=0,13 кДж/(м·г·град);

динамічна в'язкість Z=0,733 спз;

густина ρ=995 кг/м³;

Тоді число Рейнольдса:

Re=1000 (ω·d·ρ/Z)=1000 (0,073·0,69·995/0,733)=6850,

де d - внутрішній діаметр трубок, що дорівнює 69 мм.

Число Прандтля:

Pr=3,6 (CZ/λ)=3,6 (0,238·0,733/0,13)=4,83

Тоді число Нуссельта:=0,023·68500,8·4,830,4·0,95=48,03

де φ=0,95 для числа Re=6850.

Коефіцієнт тепловіддачі α2 тоді буде дорівнювати:

α2=48,0,3 (0,13/0,069)=90,3 кДж/(м²·г·град);

Коефіцієнт теплопередачі виходить рівним:

К=1·((1/234)+0,001+1/90,3)=66,6 кДж/(м²·г·град);

Середня різниця температур в теплопередачі між газом і водою дорівнює:

Δtср=((82-45) - (30-24)/(2,3lg (82-45)/(30-24)))=17,1°С

При передачі кількості тепла:

Q=309552614-17594107=291958507 кДж/ч;

Потрібна поверхня теплопередачі холодильників складе:

F=Q/(FΔtср)= 291958507/(66,6·17,1)=25636 м².

Так як поверхня охолодження кожного холодильника дорівнює 2950 м², то необхідно мати робочих холодильників (25636/2950) = 8 шт., Тобто це число дорівнює прийнятому числу холодильників при визначенні швидкості руху води.

Питома поверхня теплопередачі на 1000 м ³ сухого газу на годину становить:

·1000/36435=263 м².


3. Техніко-економічне обгрунтування виробництва

Науково-технічний прогрес в економіці в цілому, та в хімічній промисловості зокрема, направлений на більш раціональне використання матеріальних и енергетичних ресурсів, підвищення продуктивності труда за рахунок механізації та автоматизації виробництва. Більш гостро ставиться питання про охорону навколишнього середовища, та, як наслідок цього, необхідність впровадження нових безвідходних технологій.

В сучасних умовах досягнення високої ефективності виробництва та управління можливо лише при широкому и ефективному використанні досягнень науково-технічного прогресу.

Удосконалення автоматизації індивідуального и дрібносерійного виробництва є в теперішній час одній з важливіших народногосподарських задач. Сучасна тенденція її рішення міститься у широкому застосуванні ЕОМ и другої електронної техніки на протязі всього виробничого циклу - від наукових розробок до виготовлення готової продукції - на базі комплексної автоматизації всього циклу (використання автоматизованих станків, машин та механізмів, уніфікованих модулів обладнання, робото - технічних комплексів и обчислювальної техніки). При автоматизації процесів шляхом заміни старої техніки слід мати на увазі, що нова техніка повинна бути настільки ефективною, щоб окупити не тільки спричинені нею капвкладення, але і ту шкоду, яку понесе господарство від заміни неамортизованого обладнання за винятком реалізованої суми (хоча б по ціні лому).

Економічна ефективність капіталовкладень і нових технологій належить до числа найважливіших проблем економіки. Основним фактором ефективності є покращення техніко-економічних показників виробництва. Таких, як зростання продуктивності, економія матеріальних та паливно-енергетичних ресурсів, стабілізація и підвищення якості продукції.

В цьому проекті розглядається ефективність роботи підприємства по випуску смоли. Якість смоли є однією з важливіших економічних категорій, які дозволяють займати певний рівень як на внутрішньому.

3.1 Розрахунок витрат сировини і матеріалів

В даному проекті проводиться техніко-економічний розрахунок виробництва смоли. Початковими даними для розрахунку собівартості продукції є матеріальний баланс виробництва, розрахований технічною частиною роботи, норми витрат енергоресурсів, питомі капіталовкладення чисельністю обслуговуючого персоналу (за даними технічних звітів підприємств або справочників).

Витрати сировини і матеріалів на одиницю продукції визначаються по формулі:

,(3.1)

де Н - норма витрат даного виду сировини (матеріалу) на одиницю продукції, т/т - показник матеріального балансу; Ц - заготівельна вартість 1 т сировини (матеріалу) в гривнях як сума її договірної ціни і залізничного тарифу за перевозку (приймається рівним 10% від договірної ціни).

Таблиця 3.1 - Розрахунок вартості сировини і матеріалів

Найменування і одиниці вимірювання

Норма розходу на одиницю, т/т

Заготовча вартість 1т, грн.

Витрати на одиницю продукції, грн.

Витрати на весь випуск, тис. грн

Продукти:





1. Газ

48000

780

858

41184

48000

780

858

41184


Другою статтею калькуляції собівартості є вартість паливно - енергетичних ресурсів на технологічні цілі. Їх витрати визначаються за установленими нормами.

3.2 Розрахунок вартості паливно-енергетичних ресурсів

Таблиця 3.2 - Розрахунок вартості паливно - енергетичних ресурсів

Найменування ресурсів і одиниці вимірювання

Норма витрат на одиницю продукції

Вартість, грн.

Витрати на одиницю продукції, грн.

Витрати на весь випуск, тис. грн.

1. Електроенергія, кВт-год

17,40

1,05

18,27

876,96

2. Вода, м3

64,72

0,4

25,88

124,62

Разом:



44,15

1001,59


3.3 Витрати на оплату праці виробничих робочих

Фонд заробітної плати основних виробничих робочих (третя стаття калькуляції) визначається по формулі 3.2:

,(3.2)

де Ч0 - чисельність основних виробничих робочих, чол.; З0 - їх середньо-річна заробітна плата, грн (при відсутності даних приймається рівним 4000 грн. в місяць).

3.4 Відрахування на соціальні потреби

Відрахування в соціальний єдиний внесок (четверта стаття) приймаються 37,96% від фонду заробітної плати.

Фвс = Фз.п.х37,97/100, (3.3)

Фвс=128000х37,97/100=48588,8 грн.

3.5 Амортизаційні відрахування

Амортизація і витрати на поточний ремонт визначаються зі питомих капіталовкладень по відповідному продукту виробництву. Амортизація на весь випуск (п’ята стаття калькуляції) визначається по формулі 3.4:

, (3.4)

де УП - питомі капіталовкладення на одиницю продукції, грн./т (У=60 грн/т); ОП - обсяг виробництва продукції, т; α - середньо звішена норма амортизації (приймається рівною 15%); 100 - відсотки.

3.6 Витрати на поточний ремонт

Витрати на поточний ремонт визначається по аналогічній формулі, що і амортизація, тільки замість норми амортизації (15%) підставляється середньостатистичний показник - 12%:

,    (3.5)

.7 Розрахунок цехових, загальновиробничих і загальногосподарських витрат

Останні статті калькуляції - цехові витрати (інші), загальновиробничі та загальногосподарські - визначаються відповідно 1%, 2% та 0,5% від суми всіх попередніх статей витрат.

Таблиця 3.3 - Калькуляція собівартості продукції

Найменування статей витрат

Витрати на виробництво

Витрати на виробництво


одиниці основного продукту, грн./т

основного продукту у рік, млн. грн

1. Сировина і матеріали (за відніманням попутної продукції)

858

41,18

2. Паливно і енергія на технологічні цілі

44,15

1,00

3. Заробітна плата виробничих робочих

2,66

0,128

4.Відрахування на соціальні нужди

1,012

0,048

5. Амортизація

9

0,432

6. Поточний ремонт

7,2

0,34

7. Цехові витрати

9,22

0,430

8. Загальновиробничі витрати

18,44

0,860

9. Загальногосподарські витрати

4,47

0,215

10. Разом виробнича собівартість

954

44,63

.8 Відпускна ціна і виторг від реалізації

Відпускна ціна 1т продукції розраховується за формулою 3.6:

 (3.6)

де Сп - собівартість виготовлення 1т продукту, грн./т; R - рівень рентабельності, що встановлює відношення прибутку і собівартості виробів, (% до собівартості). Рівень рентабельності може дорівнювати від 15% до 30%; 1,2 - коефіцієнт, що враховує податок на додану вартість (складає 20% від ціни виробника, на 01.01.13 р).

Виторг від реалізації річного обсягу виробництва продукції розраховується за формулою 3.7:

 (3.7)

де Оп - річний обсяг виробництва в натуральних одиницях, т/рік.

3.9 Визначення прибутку підприємства від реалізації річного обсягу випуску продукції

Для встановлення показників ефективності виробництва продукту, що пропонується в технологічній частині роботи, розраховується прибуток, що залишається на підприємстві (чистий прибуток Пч) за формулою 3.8:

                    (3.8)

де - виторг від реалізації, тис. грн.; ПДВ - податок на додану вартість, що утримується при реалізації, тис. грн.; - поточні витрати на виробництво реалізованої продукції, тис. грн.; ППр - податок на прибуток, тис. грн.; ПЛ - інші платежі з прибутку (приймаються 5% від
 валового прибутку).

а) розраховується ПДВ, що утримується у виторзі від реалізації продукції за формулою 3.9:

, (3.9)


де  - ставка податку на додану вартість, що дорівнює 20%.

б) визначається сума поточних витрат на виробництво річного випуску продукції за формулою 3.10:

, (3.10)

де Сп - собівартість виготовлення 1т продукту, грн./т.

в) визначається податок на прибуток розраховується за формулою 3.11:

,     (3.11)

де - ставка податку на прибуток, що дорівнює 19%; Пвал - валовий прибуток від реалізації, тис. грн.

На базі одержаних даних розраховуються показники: фонду віддача, продуктивність праці, рентабельність виробництва (до виробничих фондів).

.10 Розрахунок фондовіддачі розраховується за формулою 3.12:

,                                                         (3.12)

де      Фвід - фондовіддача основних виробничих фондів, грн./грн.; Р¢ - чистий обсяг продаж, тобто вартість реалізованої продукції без ПДВ, тис. грн.; ОФ -   вартість основних фондів, тис. грн. (див. п. 3.5 (Упп));

Чистий обсяг продаж розраховується за формулою 3.13:

Р¢ = Оп ´ Ц вир.-ва,                                               (3.13)

Р¢ = 48000 ´ 1373,76=65940,48 тис. грн.

де      Оп - річний обсяг випуску продукції, нат. од.; Цвир-ва - ціна виробництва одиниці продукції, грн./од.

3.11 Рентабельність виробництва розраховується за формулою 3.14

Р=Пчп *100, (3.14)

Р=6960,38/44543 *100=15,6%

де Пч - чистий прибуток, тис. грн.; Сп - собівартість виготовлення 1т продукту, грн./т.

3.12 Вартісний метод визначення виробітку розраховується за формулою 3.15

ПП=Vро, (3.15)

ПП=65940,48/32=2060,64 тис. грн/чол

де Vр - виторг від реалізації, тис. грн.; Чо - чисельність основних виробничих робочих, чол.

.13 Натуральний метод визначення виробітку розраховується за формулою 3.16

ППн= Опо, (3.16)

ППн= 48000/32=1500т/чол.

де Оп-річний обсяг випуску продукції, нат. од.; Чо - чисельність основних виробничих робочих, чол.

Результати економічних розрахунків оформлюється у вигляді

Таблиця 3.4-Техніко-економічні показники

Найменування показників

Значення

1. Обсяг виробництва, т

48000

2. Виторг від реалізації, тис. грн.

65940,48

3.Ціна виробництва, грн. /т

1373,76

4. Собівартість, грн. /т

954

5. Поточні витрати, млн. грн.

45,79

6. Чистий прибуток, млн. грн.

6,96

7. Рентабельність виробництва, %

15,6

8. Фондовіддача, грн./грн.

22,9

9. Продуктивність праці, млн. грн./чол. у т.ч. т/чол.

2,06 1500




Висновки

У процесі виконання дипломного проекту була розроблена раціональна технологічна схема процесу газифікації антрациту.

Були досліджені вітчизняні та зарубіжні джерела літератури, в яких наведено досвід проведення процесу газифікації антрациту.

У проекті виконано розрахунки основного обладнання, проведено розрахунок економічних показників даного виробництва, викладені правила і вимоги охорони праці та навколишнього середовища при роботі на установках даного типу, досліджено вплив відходів виробництва на стан навколишнього середовища.

Перелік використаної літератури

1. Расчёта аппаратуры для улавлвания химических продуктов коксования./ Коробчинский И.Е., Кузнецов М.Д. Изд-во «Металлургия», 1972, 2-е изд., 296 с.

2.      Макареня А.А., Д.И. Менделеев и физико - химические науки. - М.: Энергоиздат, 1982. - 256 с.

3.      Державний баланс запасів корисних копалин України. Вугілля. К.: Геоінформ України, 2004. - В. 22. С. 5 - 9.

.        Шишаков Н.В. Основы производства горючих газов. - М.-Л.:Госэлектроиздат. 1948. - 480 с.

.        Скляр М.Г., Тютюнников Ю.Б. Химия твердых горючих ископаемых. - К.: Вища школа, 1985.

.        Авчухов В.В., Паюсте Б.Я. Задачник по процессам тепломассообмена. - М.: Энергоатомиздат, 1986. - 144 с.

.        Шелков А.К., Зашквара В.Г., Аронов С.Г. Справочник коксохимика. Т. 1. Сырьевая база и подготовка углей к коксованию. - М.: Металлургия, 1964. - 492 с.

8. Є.Ф. Чалих. Технологія устаткування електродних та електоровугільних підприємств. Москва: - Металургія, 1972 р.

9. Кричко А.А., Лебедев В.В., Фарберов И.Л. Нетопливное использование углей. - М.: Недра, 1978. - 215 с.

10.    Вирозуб И.В., Лейбович Р.Е. Расчеты коксовых печей процессов коксования. - К.: Вища школа, 1970. - 248 с.

.        Методические рекомендации по формированию себестоимости, утв. приказом Государственного комитета промышленной политики Украины, №47, 2001.

.        Методические указания по расчетному заданию по курсу «Экономика и организация промышленности». Верютина В.Ю., Х., 2012.

13.    Методічні вказівки по виконанню економічної частини бакалаврських робіт зі спеціальності «Хімічна технологія палива та вуглецевих матеріалів». Дмитрієнко Є.О., Жиліна М.В., Х., 2009.

14. Закон України «Про охорону праці», листопад 2002 р.

15.    ГОСТ 12.0.003 - 74 ССБТ. Опасные и вредные производственные факторы. Классификация. - Введ. 01.01.76.

16.    Лазарев Н.В. Вредные вещества в промышленности. - М.: Химия, 1976. - Ч. І. - 336 с.

.        Лазарев Н.В. Вредные вещества в промышленности. - М.: Химия, 1976. - Ч. ІІ. - 400 с.

.        Макаров Г.В. И др. Охрана труда в химической промышленности. - М.: Химия, 1980. - 568 с.

19. ГОСТ 12.1.005-88 ССБТ. Общие санитарно-гигиенические требования к воздуху рабочей зоны. - Введ. 01.01.89.

20. Долин П.А. Справочник по технике безопасности. - Энергоатомиздат, 1984-824 с.

21.    СНиП 2.04.05-91 Нормы проектирования. Отопление, вентиляция и кондиционирование воздуха. - М.: Стройиздат, 1991 г.

22. ДБН В.2.5-28-2006. Інженерне обладнання будівель та споруд. Природне і штучне освітлення. - К.: МінбудУкр., 2006.

23.    ГОСТ 12.1.003-83* ССБТ. Шум. Общие требования безопасности. - Введ. 01.01.1989.

24.    ПУЭ -87. Правила устройства электроустановок. Энергоатомиздат, 1987.

25. ГОСТ 12.1.004-91 ССБТ. Пожарная безопасность. Общие требования. - Введ. 01. 07. 92.

26.    НАП Б Б.03-002-2007 Норми визначення категорій приміщень, будинків та зовнішніх установок за вибухопожежною та пожежною набезпекою. Наказ МНС №633 від 03.12.2007.

.        Родионов А.И., Клушин В.Н., Торочешников Н.С. Техника защиты окружающей среды. - М.: Химия, 1989. - 512 с.

.        Закон України «Про охорону навколишнього середовища» від 25.06.1991

29. Основи охорони праці: Навчальний посібник / За ред. проф. В.В. Березуцького. - Х.: Факт, 2005. - 480 с.

30. СНиП II-4-79. Естественное и искусственное освещение. Нормы проектирования. - М.: Стройиздат, 1980. -110 с.

Похожие работы на - Склад та призначення коксового газу для заводів

 

Не нашли материал для своей работы?
Поможем написать уникальную работу
Без плагиата!
Без нейросетей!