Расчет и проектирование цеха для производства отливок из никелевых сплавов с применением технологии прототипирования при получении моделей мощностью 350 тонн в год

  • Вид работы:
    Дипломная (ВКР)
  • Предмет:
    Другое
  • Язык:
    Русский
    ,
    Формат файла:
    MS Word
    1,97 Мб
  • Опубликовано:
    2015-03-12
Вы можете узнать стоимость помощи в написании студенческой работы.
Помощь в написании работы, которую точно примут!

Расчет и проектирование цеха для производства отливок из никелевых сплавов с применением технологии прототипирования при получении моделей мощностью 350 тонн в год

СОДЕРЖАНИЕ

 

Введение

. ПРОЕКТНАЯ ЧАСТЬ

.1 Исходные данные для проектной части

.2 Производственная программа цеха

.3 Выбор технологического процесса

.4 Выбор технологического оборудования

.5 Проектирование отделений цеха

.5.1 Модельное отделение

.5.2 Отделение изготовления оболочек

.5.3 Прокалочно-плавильно-заливочное отделение

.5.4 Термообрубное отделение

.5.5 Вспомогательные отделения цеха

. ТЕХНОЛОГИЧЕСКАЯ ЧАСТЬ

.1 Технология изготовления рабочей лопатки 1-ой ступени

.1.1 Приготовление модельного состава

.1.2 Изготовление модели

.1.3 Контроль моделей лопаток

.1.4 Изготовление литниковой системы

.1.5 Зачистка модели и сборка блока

.1.6 Клеймение моделей и блоков

.1.7 Контроль моделей блоков

.1.8 Приготовление огнеупорной суспензии на водном связующем

.1.9 Формирование керамической оболочки

.1.10 Вакуумно-аммиачная сушка блоков

.1.11 Удаление модельного состава из блоков

.1.12 Прокалка блоков

.1.13 Контроль керамических форм

.1.14 Подготовка форм к заливке

.1.15 Аттестация шихты

.1.16 Подготовка шихты

.1.17 Подготовка вакуумной установки к работе

.1.18 Прокалка керамических блоков перед заливкой

.1.19 Плавка металла и заливка формы

.1.20 Отбивка керамики

.1.21 Отрезка отливки от литниковой системы

.1.22 Контроль марки сплава

.1.23 Обдувка отливок

.1.24 Зачистка остатков питателей и промывников

.1.25 Визуальный контроль

.1.26 Зачистка дефектов

.1.27 Травление лопаток на макроструктуру

.1.28 Контроль макроструктуры

.1.29 Рентгеноконтроль

.1.30 Капиллярно-люминисцентный контроль

.1.31 Подготовка линии «Magnaflux» к работе

.1.32 Подготовка поверхности отливок и нанесение дефектоскопических материалов

.1.33 Предварительный контроль дефектов, выявленных КЛК

.1.34 Рихтовка отливок

.1.35 Контроль геометрии

.1.36 Сдача отливок

.2 Современные технологии в литейном производстве

.2.1 Расчет литниково-питающей системы

.2.2 ПолигонСофт

.2.3 ProCAST

. КОНСТРУКТОРСКАЯ ЧАСТЬ

.1 Введение

.2 Описание конструкции

.3 Направление модернизации камерной прокалочной печи Н85-В

.4 Улучшение конструкции загрузочного окна и замена привода дверцы

.5 Выводы

. СТРОИТЕЛЬНАЯ ЧАСТЬ

.1 Расположение корпуса на территории завода

.2 Основные показатели проектируемого цеха

.3 Элементы конструкции проектируемого цеха

.3.1 Фундаменты под колонны

.3.2 Колонны

.3.3 Фундаментные балки

.3.4 Обвязочные балки

.3.5 Подкрановые балки

.3.6 Несущие конструкции покрытия

.3.7 Несущие ограждающие конструкции покрытий

.3.8 Гидроизоляционный ковер

.3.9 Водостоки

.3.10 Перегородки

.3.11 Оконные переплеты

.3.12 Фонари

.3.13 Полы

.3.14 Ворота

.3.15 Лестницы

. ЭКОНОМИЧЕСКАЯ ЧАСТЬ(Бизнес-план)

.1 Резюме(введение)

.2 Описание товара и обоснование его выбора

.3 Оценка рынков сбыта

.4 Оценка конкурентов

.5 План маркетинга

.6 Производственный и финансовый план

.6.1 Расчет капитальный затрат(инвестиций) на проектируемый цех

.6.2 Определение численности работающих в проектируемом цехе и фондов заработной платы

.6.3 Определение общей суммы годовых расходов

.6.4 Расчет показателей экономической эффективности

.6.5 Технико-экономические показатели цеха и их анализ

.6.6 Определение точки безубыточности

. ОСНОВЫ БЕЗОПАСНОСТИ ЖИЗНЕДЕЯТЕЛЬНОСТИ

.1 Факторы, определяющие исход воздействия электрического тока

.2 Мероприятия по обеспечению электробезопасности

.3 Требования по охране труда при выплавке жаропрочных сплавов в вакуумных печах

.4 Защитное заземление электроустановок

.5 Защитное зануление

Вывод

Список литературы

 

ВВЕДЕНИЕ

Литейное производство - одна из отраслей промышленности, продуктом которой являются отливки, получаемые в литейных формах при заполнении их жидким металлом. Литые детали используются в металлообрабатывающих станках, двигателях внутреннего сгорания, компрессорах, насосах, электродвигателях, паровых и гидравлических турбинах, прокатных станах, сельскохозяйственных машинах, автомобилях тракторах, локомотивах, вагонах. Значительный объем литых изделий, особенно из цветных сплавов, потребляют авиация, оборонная промышленность, приборостроение. Годовой объем производства отливок в мире превышает 100 млн.т., из которых около 20% приходится на Россию. Методами литья изготавливается до 40% заготовок деталей машин, а в некоторых отраслях машиностроения, например в станкостроении, доля литых изделий составляет 80%.

Перед другими видами металлообработки (обработка металлов давлением, резанием, сваркой) литейное производство имеет преимущество в обеспечении формообразования изделия из металла в жидком состоянии с минимальным силовым воздействием на металл. При этом даже очень сложные формы заполняются самотеком или при силовом воздействии на металл в сотни и тысячи раз меньшем, чем, например, при обработке металлов давлением. По этой же причине литейное производство обеспечивает изготовление изделий сложной формы (например, блоков цилиндров автомобилей) недоступных для других видов металлообработки. Однако обратный процесс затвердевания и охлаждения металла в форме создает проблемы обеспечения качества отливок, что является предметом теории литейных технологий.

Литьем могут быть изготовлены изделия практически любой массы от нескольких граммов до сотен тонн, со стенками толщиной от долей миллиметра до метров. Основные сплавы, из которых изготавливают отливки: серый и высокопрочный чугун (до 75% отливок по массе), углеродистые и легированные стали (свыше 20%) и цветные сплавы (медные, алюминиевые, цинковые и магниевые). Область применения литых изделий будет непрерывно расширяться по мере решения проблем литейной технологии.

В рамках становления в нашей стране рыночных отношений, наиболее важным критерием бесперебойной работы предприятий автомобильной промышленности является гибкий технологический процесс производства, который позволяет в условиях конкуренции и небольшой покупательной способности потребителей продукции обеспечивать жителей страны рабочими местами, получать прибыль, наращивать объем производства путем быстрой переориентации производства на новые виды продукции.

Сегодня к технологиям литейного производства предъявляются очень строгие требования. Наиболее актуальными являются требования к качеству отливок и условиям труда в цехе.

Основная тенденция современного литейного производства заключается в непрерывном росте качества отливок, повышении их геометрической и весовой точности, снижении металлоемкости. Способ получения отливок в обычные сырые песчано-глинистые формы остается наиболее распространенным, особенно в массовом производстве, а в некоторых случаях и единственным. Это объясняется относительно низкой стоимостью, технологической надежностью, возможностью получать отливки любой массы и сложности.

Растет механизация и автоматизация литейного производства. На российских заводах работают десятки автоматических линий отечественного и зарубежного производства.

1. ПРОЕКТНАЯ ЧАСТЬ

1.1 Исходные данные для проектной части

Исходными данными для дипломного проекта являются:

§ Задание на дипломный проект, утвержденное приказом ректора МГИУ;

§  Материалы, собранные за время прохождения преддипломной практики на ФГУП ММПП «Салют».

 

1.2 Производственная программа цеха

Производственная программа является основой для проектирования литейного цеха. Расчет производственной программы рекомендуется производить по приведенной программе, для чего в период прохождения преддипломной практики студенты выбирают не менее двадцати представителей отливок средней сложности, разбитых на три весовые группы: мелкого, среднего и крупного литья.

Спецификация отливок-представителей вместе с уточняющими характеристиками представлена в виде таблицы - 1.

Программа выпуска отливок обычно задается в тоннаже - Q т/год.

На основании данных табл.1.1 можно вычислить вес одного комплекта отливок на условное изделие но каждому виду сплава.

q1II n1II + q2II n2II +…+ qkII nkII = S qiII niII (1)

а также по всем сплавам производственной программы

S qII nII = S qjII njII + … +S qjII njII (2)

Определив полную массу годных отливок, выпускаемых проектируемым литейным цехом в соответствии о заданной программой на условное изделие, можно рассчитать количество комплектов отливок на приведённую программу выпуска продукции.

 N = компл.отл./год. (3)

Определим также массу стружки, образующейся при механической обработке отливок,

qотл =S (qjII qjI), кг (4)

и массу литников и прибылей на отливках

qлп =S (qjIII qjII), кг (5)

где qjI - масса отливки в механически обработанном виде, кг;

qjII - масса отливка в обрубленном виде, кг;

qjIII - масса отливки с литниками и прибылями;

nI - количество отливок на изделие, шт.;

nII - количество отливок на изделие с учетом запасных частей, шт;

nIII - количество отливок на комплект сучетом запасных частей и брака по вине механического и литейного цехов, шт;

Запасные части берутся в % к njI, а брак - в % к njII

Отсюда:

njII = njI + 0,01Sj * njI = njI(1+0,01Sj) (6)

njIII = njII *(1+0,01Pj) (7)

Процент запасных частей назначается индивидуально по каждому виду отливок: S = 0 + 5%

Брак отливок по вине механического цеха обычно не превышает 0,2 - 0,3%. Брак литья зависит от рода сплава и способа изготовления отливок, а также от совершенства технологического процесса изготовления отливок. Брак отливок составляет: при литье алюминиевых сплавов - 3 - 4%; при литье магниевых сплавов - 4 - 5%; при литье медных сплавов - 2 - 4%; при литье стальных отливок - 3 - 5%.

В ряде случаев необходимо учитывать при определении оптимальной мощности литейного цеха объем выпуска продукция для собственных нужд цеха, предприятия и по кооперированным поставкам.

Подетальная спецификация отливок составляется отдельно по каждой марке сплава, поскольку именно марка сплава определяет специфику технологического процесса производства отливок.

Количество отливок, выпускаемых цехом по каждому наименованию, определяется следующим образом:

n = njII * N шт./год. (8)

q = qjII * njII * N кг./год. (9)

Исходные технологические данные отдельно по каждой группе по массе рассчитывают и заносят в табл. 1.2.

Таблица 1.1. Подетальная ведомость расчета количества и массы отливок и металлозавалки на годовую программу из сплава ЧС70-ВИ.

№ п/п

Изделие, деталь

Металл

Масса, кг

Габаритные размеры, мм

На изделие

Годовая программа выпуска отливок

 

 

 

Детали

Отливки

Длина

Ширина

Высота

Штук

Отливок, кг

На изделие

На запчасти

Всего

 

 

 








Штук

Тонн

%

Штук

Тонн

Штук

Тонн

1

2

3

4

5

6

7

8

9

10

11

12

13

14

15

16

17

1

Лопатка рабочая 1 ст.

ЧС70-ВИ

2,14

2,64

354

78

86

66

174,24

19338

51,05

2

394

1,04

19732

52,092

2

Лопатка рабочая 2 ст.

ЧС70-ВИ

2,17

2,67

407

89

90

66

176,22

18776

50,14

2

383

1,02

19159

51,154

3

Лопатка рабочая 3 ст.

ЧС70-ВИ

2,4

2,9

453

84

85

66

191,4

17003

40,31

2

347

1

17350

50,315

4

Лопатка рабочая ТНД

ЧС70-ВИ

0,206

0,313

65

60

160

90

28,17

83300

26,07

2

1700

0,532

85000

26,605

5

Лопатка рабочая 1 ст.

ЧС70-ВИ

0,125

0,245

43

64

115

80

19,6

90334

22,14

2

1843

0,45

92177

22,59

6

Лопатка рабочая ТВД

ЧС70-ВИ

0,225

0,305

22

37

188

80

24,4

96236

29,35

2

1964

0,6

98200

29,951

7

Лопатка рабочая 1 ст.

ЧС70-ВИ

0,460

0,490

48

32

145

65

31,85

41865

20,51

2

854

0,42

42719

20,932

8

Лопатка рабочая 2 ст.

ЧС70-ВИ

0,350

0,370

48

32

145

75

27,75

54140

20,04

2

1104

0,41

55244

20,44

9

Лопатка рабочая 3 ст.

ЧС70-ВИ

0,190

0,210

55

30

130

90

18,9

93567

19,65

2

1909

0,4

95476

20,05

Блок сопловых лопаток ТВД

ЧС70-ВИ

0,950

1,200

38

180

47

14

16,8

31004

37,20

2

633

0,76

31637

55,872

Итого















350


Таблица 1.2. Исходные технологические данные

 

№ детали

Масса отл., кг. (А)

Программа

Число моделей в звене (В)

Число звеньев в блоке.

Число моделей в блоке (Г)

Число модельных звеньев /моделей/ на программу

Число блоков на программу (Д)

Масса модельного состава, кг.




шт. (Б)

тонн






На одну Модель

На один блок (Ж)

На программу

1

Лопатка рабочая 1 ст.

2,64

19732

52,092

1

1

1

19732

19732

0,660

1,720

33,939

2

Лопатка рабочая 2 ст.

2,67

19159

51,154

1

1

1

19159

19159

0,667

1,760

33,180

3

Лопатка рабочая 3 ст.

2,9

17350

50,315

1

1

1

17350

17350

0,725

2,100

36,435

4

Лопатка рабочая ТНД

0,313

85000

26,605

1

1

6

85000

14167

0,108

1,628

23,064

5

Лопатка рабочая 1 ст.

0,245

92177

22,59

1

1

9

92177

10242

0,101

2,349

24,058

6

Лопатка рабочая ТВД

0,305

98200

29,951

1

1

9

98200

10911

0,102

1,888

20,6

7

Лопатка рабочая 1 ст.

0,490

42719

20,932

1

1

6

42719

7120

0,168

2,212

15,749

8

Лопатка рабочая 2 ст.

0,370

55244

20,44

1

1

6

55244

9207

0,122

1,880

17,309

9

Лопатка рабочая 3 ст.

0,210

95476

20,05

1

1

6

95476

15913

0,103

1,756

27,943

10

Блок сопловых лопаток ТВД

1,200

31637

55,872

3

1

2

10546

5273

0,325

1,662

8,763

Итого


241,6


Таблица 1.2 содержит только исходные технологические данные и использовать их для расчёта числа оборудования нельзя. В этих данных не учтены неизбежные на производстве потери и брак из-за некачественных материалов, ошибок рабочего, неисправности оборудования и других причин. Брак и потери на производстве возмещают путём увеличенного против программы изготовления моделей, форм или отливок по переходам процесса. Для определения числа подлежащих изготовлению моделей, форм и отливок на которое рассчитывают оборудование, вводят коэффициенты технологических потерь:

k = Bn / B,

где Bn - число отливок, форм для моделей, которое необходимо изготовить в данном отделении для выполнения программы и для восполнения брака и потерь; В - число отливок, форм или моделей по программе (без учёта брака и потерь).

Для каждого производственного участка /группы операций/ рассчитывают свой k, учитывающий потери и брак не только этой группы операций, но и всех последующих (табл. 3)

Таблица 1.3. Примерные коэффициенты технологических потерь.

 

Группа операций или производственный участок цеха

Технологические потери и брак, %

Коэффициенты технологических потерь


Изготовление модельных блоков

15

k4 = 1,42


Изготовление форм

3

k3 = 1,2


Обжиг форм, плавка и заливка металла

6

k2 = 1,16


Обрубка, термообработка и отделение отливок

9

k1 = 1,1


Определив k1 - k4 составляют ведомость объемов производства для расчёта основного оборудования (табл. 1.4.).

Таблица 1.4. Ведомость объемов производства.

Наименование отливки.

Программа

Число на программу, шт.

Масса модельного состава на программу, кг (Д)

На программу с учетом потерь.


Шт (А)

Кг (Б)

Модельных звенеьев (В)

Блоков (Г)


Число, шт.

Масса, кг.







Модельных блоков (Е)

оболочек

Блоков отливок (л)

отливок

Модельного состава

Суспензии

Отливок (И)

Лопатка рабочая 1 ст.

19732

52092

19732

19732

540,75

28019

33623

39003

42903

48193

-

57301

 

Лопатка рабочая 2 ст.

19159

51154

19159

19159

372,3

27205

32646

37870

41657

47115

-

56269

 

Лопатка рабочая 3 ст.

17350

50315

17350

17350

10217,69

24637

29594

34294

37724

51737

-

55346

 

Лопатка рабочая ТНД

85000

26605

85000

14167

20117

20117

24140

28003

30803

32750

-

29265

 

Лопатка рабочая 1 ст.

92177

2259

92177

10242

14543

14543

17452

20244

22269

34162

-

24849

 

Лопатка рабочая ТВД

98200

29951

98200

10911

15493

15493

18592

21567

23723

29252

-

32946

 

Лопатка рабочая 1 ст.

42719

20932

42719

7120

10110

10110

12132

14073

15481

22363

-

23025

 

Лопатка рабочая 2 ст.

55244

2044

55244

9207

13073

13073

15688

18198

20018

24578

-

22484

 

Лопатка рабочая 3 ст.

95476

2005

95476

15913

22596

22596

27115

31454

34599

39679

-

22055

 

Блок сопловых лопаток ТВД

31637

55872

10546

5273

7487

7487

8985

10422

11465

12443

-

61459

 


Число модельных блоков: Г * k4

Число оболочек: Г * k4 * k3

Число блоков отливок: Г * k4 * k3 * k2

Число отливок: Г * k4 * k3 * k2 * k1

.3 Выбор технологического процесса

Основными параметрами, определяющими выбор технологического процесса изготовления отливок, являются:

а) характер производства литой продукции;

б) масса и габаритные размеры отливок;

в) класс точности и чистота поверхности литых деталей;

г) род применяемых в производстве сплавов;

д) вид производственной программы и мощность проектируемого или реконструируемого цеха.

Вариант технологического процесса изготовления отливок выбирают на основании расчета и сравнения ряда показателей: коэффициента использования металла, трудоемкости и себестоимости литейной продукции, определявших рентабельность производства.

Одним из прогрессивных направлений дальнейшего развития литейного производства является его специализация, заключающаяся в создании отдельных производственных потоков для изготовления технологически однородных групп отливок в зависимости от массы, габаритных размеров отливок, марки сплава, объема и типа производства и открывающая широкие возможности, для роста производительности труда, внедрения средств механизации и автоматизации технологических процессов, робототехники, гибких автоматизированных производств и автоматизированных систем управления.

1. Стандартное качество отливок в соответствии с ГОСТ и ТУ.

2. Возможность механизации и автоматизации и высокую производительность.

. Применение по возможности недорогих и недефицитных материалов.

4. Изготовление отливок с применением малоотходных и безотходных технологий при комплексном использовании отходов производства.

. Здоровые условия труда с исключением тяжёлых ручных операций.

6. Достаточную экономичность, т.е. невысокую стоимость продукции, включая затрату на освоение технологии изготовления отливок, на приспособления, оснастку и т.д.

При обосновании технологического процесса литья необходимо предусмотреть контрольные мероприятия для наиболее раннего выявления брака отливок и снижения затрат на обработку дефектных деталей необходимо предусмотреть контрольные мероприятия для наиболее раннего выявления брака отливок и снижения затрат на обработку дефектных деталей.

1.4 Выбор технологического оборудования

В соответствии с обоснованно назначенным технологическим процессом выбираемое производственное оборудование должно быть:

1. По возможности более производительным и обеспечивать качественное выполнение операций.

2. Более полно загружено по мощности и по времени.

3. Наиболее механизированным и по возможности автоматизированным, должно обеспечивать здоровые условия труда и безопасность.

4. По возможности недорогим и недефицитным и занимать возможно меньшую площадь с учетом обслуживания, а также использовать по возможности недорогие виды энергии.

Литейное оборудование должно быть нагружено на 80 - 90%. Загрузка более, чем на 90 - 95% допускается при использовании дорогого, уникального и импортного оборудования.

При применении многопозиционных установок резко повышается производительность труда, на 35 - 50% снижается себестоимость продукции, сокращается число рабочих мест, повышается степень механизации и автоматизации производственных процессов, уменьшается площадь литейного цеха, снижаются капитальные затраты на приобретение оборудования и транспортных средств, появляется большая точность в регулировании технологического процесса, резко упрощаются транспортные оперении.

1.5 Проектирование отделений литейного цеха

.5.1 Модельное отделение

В процессе производства моделей деталей используется литьевой воск. Этот литьевой воск имеет очень низкую зольность (образование золы в результате сжигания модели в керамической корке) и обеспечивает наилучшее качество обработки поверхности. Он идеально подходит для процесса литья по выплавляемым моделям, поскольку быстро выжигается из оболочки, используемой при типичном процессе литья по выплавляемым моделям. Изготовление выплавляемых моделей производится на установках с применением технологии прототипирования при получении моделей ThermoJet. ThermoJet - это трехмерный принтер, производящий модели с помощью специальной струйной головки. Процесс предложен Скоттом Крампом, а выпуск производственных установок начался с 1991 года компанией Stratasys. FDM - это вторая по счету распространенная технология быстрого прототипирования Stereolithography.

Концепция процесса включает предварительный подогреве материала и затем контролируемую заливку расплавом.

Материал в виде нити, диаметр которой составляет 0,127 см, поступает на катушках (А) длиной 926 м. к экструдируемой головке (В). Сопло находится в нагретом состоянии, температура которого соответствует температуре плавления материала. Материал выдавливается дозами и тут же скрепляется с предыдущем слоем.

Головка перемещается в направлении X - Y или сама платформа (D) позиционируется, синтезируя модель слой за слоем. Платформа опускается на толщину одного слоя и процесс повторяется.


Вся система помещена в термический корпус, который поддерживает температуру чуть ниже температуры плавления материала. Таким образом, необходимо небольшое количество дополнительной тепловой энергии, чтобы сопло достигло температуры плавления материала.

 Модельное отделение состоит из следующих участков. Участка подготовки компонентов модельного состава и его приготовления, участка изготовления и охлаждения моделей и их сборки в блоки. Потребность в оборудовании для приготовления модельного состава определяют по формуле:

 (шт.)

где ММ - количество модельного состава данной марки для годовой программы, т;

q - часовая производительность оборудования, т./ч.

ФД - действительный фонд времени работы оборудования в год, ч.

Принимаем 1 установку, коэффициент загрузки K=0,93/1=0,93.

Необходимое количество оборудования для изготовления моделей или звеньев и литниковых систем рассчитывается по формуле:

 (шт.)

где QМ - годовое количество моделей или звеньев, шт;

K1 - коэффициент, учитывающий брак отливки, K1 = 1,05;

q - производительность машин, съемов/ч.;

K2 - коэффициент, учитывающий брак оболочек, K2 =1,2;

ФД - действительный фонд времени работы оборудования;

a - количество моделей в пресс-форме, шт.

Принимаю 8 установок, коэффициент загрузки K=7,1/8=0,88.

 

1.5.2 Отделение изготовления оболочек

При изготовлении керамических форм используются керамические порошки, применяемые в качестве наполнителей керамической суспензии при литье по выплавляемым моделям лопаток и деталей ГТД. Составы для изготовления керамических форм позволяют получать керамическую форму с повышенной теплопроводностью, что способствует получению более мелкой структуры отливок, в частности лопаток ГТД из жаропрочных никелевых сплавов, а также ведет к снижению металлургических дефектов.

Это отделение состоит из участка подготовки огнеупорных материалов, растворителей и связующих, участка формирования оболочки, участка выплавления модельного состава.

Годовое количество суспензии (кг) определяет по формуле:

 (кг.)

где Q - годовой выпуск литья, т;

K5 - коэффициент, учитывавши брак литья, K5 = 1,06;

K6 - коэффициент, учитывающий брак моделей, K6 = 1,1

K7 - коэффициент, учитывающий потери суспензии, K7 = 1,2;

h - коэффициент использования оборудования для изготовления моделей.

Часовая потребность в суспензии:

 ( кг )

где Ф - фонд рабочего времени оборудования для изготовления моделей, ч.

Для изготовления оболочек рекомендуется применять полуавтоматические и автоматические установки.

Потребное количество оборудования для изготовления оболочек рассчитывается по формуле:

 (шт.)

где Qоб - количество оболочек в год, шт.;

h - 0,7-0,8 - коэффициент использования оборудования;

,05 - коэффициент, учитывающий брак отливки;

,07 - коэффициент, учитывающий брак оболочек.

Ф - годовой фонд времени, ч.;- производительность оборудования, обол./ч.

Принимаем 6 установок, коэффициент загрузки K=5,2/6=0,86.

Количество сушильных установок определяется по формуле:

 (шт.)

где M - количество модельных блоков в год, шт.;

n - количество слое покрытия,

Т - длительность сушки, ч;

Ф - годовой фонд времени, ч.;

a -коэффициент заполнения, a = 0,6-0,8.

Принимаю 4 сушилки, коэффициент загрузки K=3,3/4=0,825.

Количество установок для выплавления модельного состава определяется по формуле:

 (шт.)

где М - количество модельных блоков в год, шт.;

Т2 - длительность выплавления, ч.;

Ф - годовой фонд временя, ч;

a2 - коэффициент заполнения, a2=0,5 - 0,8.

Принимаем 2 установки, коэффициент загрузки K=1,7/2=0,85.

.5.3 Прокалочно-плавильно-заливочное отделение

В этом отделении выполняются операции, связанные с комплектованием оболочек по маркам сплавов, установкой их в опоки, уплотнением засыпанного в опоки наполнителя, прокаливанием форм и их заливкой металлом.

Камерная электропечь Н85-В.

Электропечь предназначена для прокалки модельных блоков. В зависимости от габаритных размеров в нее могут быть помещены от 8 до 18 модельных блоков. Электропечь состоит из кожуха, футеровки, нагревательных элементов, механизма подъема дверцы. Кожух электропечи бескаркасный. На передней наклонной стенке кожуха закреплены чугунные плиты. Они играют роль направляющих для дверцы, а также служат для плотного прилегания дверцы к загрузочному проему.

Огнеупорная часть футеровки выполнена из легковесного шамота ШЛБ-1,0 и шамота ШБ, теплоизоляционная - из засыпки диатомитовой, диатомитового кирпича и керамвола. Под изготовлен из отдельных литых жароупорных плит.

Нагревательные элементы выполнены из проволоки высокого омического сопротивления, в виде спиралей, уложенных на полочки на боковых стенках и поду и подвешенных на трубках на своде.

Материал трубок - высокоглиноземистый шамот ВГЛ-1,3.

Подъем дверцы осуществляется от электропривода.

Электропечь двухзонная. Это дает возможность получить равномерную температуру по длине электропечи.

Регулировка температуры в каждой зоне автоматическая. На электропечи предусмотрены блокировки, отключающие нагреватели электропечи при подъеме дверцы и ограничивающие ход дверцы.

Технические характеристики электропечи Н85-В.

Мощность установленная, кВт 91,1

Мощность нагревателей, кВт 90

Напряжение питающей среды, В 380

Напряжение на нагревателях, В 220

Число фаз 3

Частота, Гц 50

Максимальная рабочая температура, С 1000

Число зон 2

Время разогрева электропечи до рабочей температуры, ч 4

Мощность холостого хода, кВт 22

Масса садки, кг 1350

Рабочая среда воздух

Размеры рабочего пространства, мм

ширина 850

длина 1700

высота 500

Установка для вакуумного литья «УППФ-ЗМК».

Вакуумная установка «УППФ-ЗМК» предназначена для литья лопаток газотурбинных двигателей с равноосной структурой из жаропрочных сталей и сплавов по выплавляемым моделям. Приоритетным направлением при изготовлении лопаток газотурбинных двигателей из жаропрочных сплавов на никелевой основе для условий эксплуатации с рабочими температурами ниже 900°С является литьё изделий с равноосной структурой. Этот процесс менее трудоёмок по сравнению с литьём деталей с направленной и монокристаллической структурами.

Установка типа «УППФ-ЗМК» состоит из следующих основных частей:

·              плавильная камера с индуктором, закреплённым на вращающейся платформе;

·              шлюзовая камера;

·              печь подогрева форм;

·              устройство загрузки шихты;

·              вакуумная система;

·              источник питания типа «ТПЧТ»;

·              система управления.

Подача заливаемых форм, находящихся в печи подогрева, и загрузка шихтой плавильной печи осуществляется через технологические вакуумные затворы, чем обеспечивается сохранение рабочего вакуума в плавильной камере в процессе работы.

Наличие печи подогрева форм увеличивает жидкотекучесть расплава, чем обеспечивается требуемая плотность отливок. Наличие постоянного рабочего вакуума в плавильной камере повышает производительность установки, увеличивает стойкость плавильной печи, уменьшает попадание в расплав газовых включений и частиц тигля. Плавильная печь работает на набивных или мерных тиглях. Установка позволяет отливать разнообразную номенклатуру деталей весом до 15 кг.

Технические характеристики установки “УППФ-ЗМК”.

Масса, кг 10300

Рабочий вакуум, мм рт ст 5-10-3

Производительность, форм/час 3

Емкость тигля, кг 15

Температура расплава, °С 1600

Температура печи подогрева форм, °С 1000

Установочная мощность, кВт 175

Габариты, мм (max) 5900x6000x4200

Количество устанавливаемых плавильных печей рассчитывается по формуле:

 (шт.)

где Qжм - масса жидкого металла в формы на годовую программу, т;

1,2 - коэффициент, учитывающий неравномерность потребления металла;

0,97 - коэффициент, учитывающий выход жидкого металла в формах по сравнению с жидким металлом, полученным из печей;

q - производительность печи в час, т/час;

Фд - фонд рабочего времени печей, ч.

Принимаем 6 печей, коэффициент загрузки K=5,2/6=0,86.

1.5.4 Термообрубное отделение

Назначение технологии очистки отливок определяется прежде всего характером литой продукции и наукой применяемого сплава.

Для выбивки стержней из отливок рекомендуется использовать агрегаты для выщелачивания керамики, галтовочные барабаны непрерывного действия, вибрационные установки, гидравлические и пескогидравлические камеры непрерывного и периодического действия, электрогидравлические установки.

Для очистки отливок также рекомендуется использовать перечисленное выше оборудование, а также дробемётные барабаны, столы, камеры и дробемётно-дробеструйные камеры.

Для удаления химического пригара о поверхности стальник отливок необходимо планировать использование электрохимического травления.

Отдаление элементов литниково-питающих систем от отливок осуществляют ацетиленокислородными резаками, на пильных дисковых и ленточных станках, механических станках, на пневмогидравлических прессах и механических ножницах, анодно-механической резкой и т.д.

Зачистку отливок рекомендуется производить на автоматизированных обдирочно-шлифовальных станках с использованием робототехники.

Термообработку отливок проводят в электрических печах непрерывного (конвейерного) и периодического действия.

Практически вся обработка производится на станках с числовым программным управлением. Использование станков с числовым программным управлением, как отечественного, так и импортного производства, позволяет изготавливать детали с максимальной концентрацией комбинированной обработки в одной операции, что дает возможность снижать цены и трудоемкость сложных в изготовлении деталей и сборочных единиц. Механическая обработка лопаток производится с помощью высокопроизводительных прецизионных фрезеровальных центров с ЧПУ фирм Starr AG, Heckert, Forest и др.

Подготовка поверхностей для механической обработки, удаление элементов, связанных с особенностями изготовления заготовки (облой, напуски, и пр.),производится на универсальном фрезерном оборудовании - на вертикально -фрезерных, горизонтально-фрезерных, продольно-фрезерных станках ,и на специальных агрегатных станках горизонтальной компоновки типа“обрабатывающий центр”; используется стандартизированный инструмент, твердосплавный инструмент со сменными режущими пластинами или сменными зубьями (для лопаток из нержавеющих сталей)

Операции фрезерования выполняются на станках NX-155, NX-251

фирмы Starr AG и FA-4, FA-5 фирмы Forest и другом специализированном оборудовании. Для обработки лопаток с бандажными полками будут применяться пятикоординатные фрезерные станки Liechti Turbomill 1200 (Щвейцария), на которых за одну установку можно обрабатывать все трактовые поверхности пера лопаток.

Лопатки проходят ручную шлифовальную и машинную ленточно-шлифовальную обработку на станках Metabo, окончательная обработка профиля пера лопаток компрессора осуществляется полированием на виброконтактных станках. Базовые поверхности литых турбинных лопаток и хвостовики турбинных рабочих лопаток обрабатываются глубинным шлифованием на специальном оборудовании.

Обработка каналов сопловых аппаратов производится на фрезерных станках с ЧПУ модели 6Р13Ф3.

Для обдирки, выполнения специальных элементов конструкций лопатки в некоторых случаях для формирования профилей рабочей части в лопатках из никелевых сплавов используются методы электроэрозионной и электрохимической обработки.

Наиболее характерным примером разработанного и внедренного технологического процесса при обработке деталей ГТД является высокопроизводительная струйная электроэрозионная обработка глубоких отверстий диаметром 0,2…2,0 мм.

Для повышения эффективности охлаждения, отверстия в лопатках имеют тенденцию к уменьшению диаметров до 0,2…0,5 мм, увеличению соотношения глубины отверстия к диаметру и вход отверстий в обрабатываемую поверхность осуществляется под острыми углами.

Традиционными методами ЭЭО изготавливают отверстия диаметром 0,4…1,2 мм при соотношении глубины к диаметру менее 10. Поэтому эти методы ЭЭО не могут быть использованы для получения глубоких отверстий малого диаметра. Другие методы (в том числе механические) также не могут быть применены для этих целей, учитывая геометрические размеры, расположение отверстий и то, что материалы деталей двигателей имеют высокие физико-механические характеристики.

В результате проведенных исследований были определены условия обработки глубоких отверстий (до 30…50 мм) диаметром 0,2…2,0 мм в указанных деталях методом струйной электроэрозионной обработки.

Суть струйной ЭЭО заключается в электроэрозионной обработке глубоких отверстий трубчатыми электродами, через которые прокачивается диэлектрическая жидкость под высоким давлением. В качестве рабочей жидкости используются диэлектрические жидкости на водной основе или на основе углеводородного сырья. Это позволяет получать наряду с высокой производительностью хорошее качество поверхности.

Анализ существующих конструктивных решений и технологических процессов в производстве ГТД показал, что одним из путей повышения качества и технологичности конструкций, коэффициента использования металла, снижения трудоемкости изготовления изделий является применение сварных и паяных конструкций. Так, например, общая протяженность сварных и паяных швов в современном ГТД составляет более 1000 м, поэтому их высокое качество во многом определяет ресурс и надежность двигателя. Для изготовления охлаждающих отверстий на профиле пера лопаток турбины газотурбинных двигателей и энергетических машин широкое применение находит электроэрозионная обработка (ЭЭО). Относительная глубина отверстий, получаемых электроэрозионной прошивкой, обычно не превышает 20. Максимальная относительная глубина прошиваемого отверстия при ЭЭО, помимо электрических параметров, во многом зависит и от параметров гидродинамических, особенно от давления прокачки.

Установлено, что самым эффективным способом электроэрозионной прошивки глубоких отверстий малого диаметра является прокачка маловязкой рабочей жидкости под большим давлением (до 10 МПа) через внутреннюю полость капиллярного вращающегося электрода. Обработка по такой схеме получила название струйной. Наиболее эффективно струйная электроэрозионная обработка реализована на станке "Fine SODICK".

Очистка отливок от керамики будет производится на установке для отделения керамической оболочки от блоков отливок (или оболочки от блоков и отливок от ЛПС) стояка за счет вибрации, создаваемой вибратором мод. 67101.

Установка для отделения керамики мод. 67101

Производительность до 45 блоков/ч

Расход сжатого воздуха 3,5 м3/мин.

Габаритные размеры, мм 1300х855х3100

Масса, кг 9000

Количество устанавливаемых установок для отделения керамики определяется по формуле:

 (шт.)

где Qоб - количество отливок, назначенных для обработки на данном типе оборудования;

q - почасовая производительность оборудования, блоков/ч

Кн - коэффициент неравномерности подачи отливок на обработку.

Коэффициент Кн зависит от характера производства и равен 1,1-1,35;

Фд - действительный годовой фонд времени работы оборудования;

1,05 - коэффициент, учитывающий брак литья.

Принимаем 7 установок, коэффициент загрузки K=6,43/7=0,91.

 

1.5.5 Вспомогательные отделения литейного цеха

К вспомогательным отделениям относятся:

. Участок ремонта и сушки ковшей.

2. Мастерская ремонта пресс-форм и специальной оснастки.

3. Ремонтно-механическая мастерская.

4. Электроремонтная мастерская.

. Экспресс-лаборатория металлов, химическая, спектральная, механических испытаний.

. Лаборатория модельных, связующих и формовочных материалов.

7. Экспериментальное отделение для выявления и устранения причин брака продукция, освоения и доводки технологии изготовления новых изделий и усовершенствованию технологи литья.

8. Участок контроля качества отливок, включая участок испытания отливок и исправления дефектов, окраски, оксидирования, пассивирования отливок и складирования.

. Специализированный участок по регенерации модельного состава, материалом оболочковой формы и переработке других отходов производства.

Кроме того, должно быть предусмотрено размещение на планировке литейного цеха энергетических установок трансформаторных подстанций и щитов, установок постоянного тока, высокочастотных установок и санитарно-технических установок, установок приточно-вытяжной вентиляции, отопительных установок и агрегатов, установок для нейтрализации сточных вод, установок кондиционирования воздуха, бойлерных установок, а также уголков отдыха и установок газирования воды.

Оборудование перечисленных выше участков выбирается в основном по материалам, полученным проектантами на базах преддипломной практики.

По каждому участку необходимо обосновать выбор оборудования, его расстановку на плане, занимаемую площадь расположение на плане проектируемого цеха, а также представить перечень устанавливаемого оборудования и приборов контроля.

При расчёте любого типа оборудования следует учитывать тот факт, что в расчётном годовом фонде времени работы оборудования учитывают только потери временя на планово-предупредительный ремонт оборудования и не учитывает непредвиденные простои оборудования, при проектировании принимает к установке несколько большее число оборудования (с округлением в большую сторону, до целых единиц), чем получается по расчёту.

Размер резерва, который должен компенсировать непредвиденные простои оборудования, характеризуется коэффициентом загрузки оборудования:

з.о. = Pp / P

где Pp - расчётное число оборудования,

P - принятое число единиц оборудования.

Коэффициент kз.о. должен быть таким, чтобы обеспечивалось выполнение программы в реальных производственных условиях при отсутствии неиспользуемых производственных мощностей. Чем сложнее оборудование, тем оно менее надежно в работе, поэтому меньше должен быть kз.о. И наоборот, чем надёжнее оборудование, тем ближе kз.о. к единице.

Технологии контроля качества отливок.

При контроле качества отливок используются современные технологии и оборудование. Контроль качества отливок осуществляется следующими методами:

·              Люминисцентные методы контроля:

o     ЛЮМ17-П - уровень чувствительности III, минимальная глубина раскрытия дефекта - 10 мкм и более;

o     ЦМ15-В - уровень чувствительности II, минимальная глубина раскрытия дефекта - 1...2 мкм;

o     ЛЮМ1-ОВ - уровень чувствительности I, минимальная глубина раскрытия дефекта - 0,12...0,5 мкм;

·              Рентгеновская дефектоскопия:

o     рентгеновская установка ISOVOLT 450;

o     проявочная установка "Фонодакс";

o     негатоскопы с компьютерной обработкой снимков;

·              Контроль геометрии:

o     измерительная машина LK;

o     лазерная компьютерная установка "ОПТЭЛ";

·              Контроль толщин стенок:

o     компьютерный толщиномер "Panametric 25 DL";

o     негатоскоп "Нева-рентген";

·              Контроль ориентации - автоматизированные компьютерные установки рентгеноструктурного анализа "Дрон-3М", "Дрон-4".

2. ТЕХНОЛОГИЧЕСКАЯ ЧАСТЬ

Введение

В соответствии с заданием в технологической части проекта представлена разработка технологии изготовления отливки рабочей лопатки 1-ой ступени. Данная лопатка имеет сложную конструкцию и ответственное назначение, поэтому её следует изготовлять методом литья по выплавляемым моделям.

Для проектирования модели лопатки и процессов затвердевания использовались современные технологии САПР (Полигон и ProCAST).

.1 Технология изготовления рабочей лопатки 1-ой ступени

.1.1 Приготовление модельного состава

В качестве материала для изготовления модели использовать литьевой воск.

.1.2 Изготовление модели

Изготовление модели производить на установке ThermoJet.- это трехмерный принтер, производящий модели с помощью специальной струйной головки.

Спецификация

Технология:

Multi-Jet Modeling

Разрешение:

300 x 400 x 600 DPI (XYZ)

Материал:

Полимеры ThermoJet™ 2000 и ThermoJet 88

Цвет материала:

Нейтральный, серый, черный

Максимальный вес модели:

5,9 кг

Загрузка материала:

Картридж 2,3 кг

Интерфейс:

TCP/IP protocol; Ethernet 10/100 Base-TX network; RJ-45 кабель

Поддерживаемые платформы:

Silicon Graphics IRIX v6.5.2 (OpenGL required) Hewlett Packard HP-UX v10.2 ACE (OpenGL required) Sun Microsystems Solaris v2.6.0 (OpenGL required) IBM RS/6000 v4.3.2 OpenGL required) Windows NT v4.0 98, 2000 and Millennium Edition

Питание:

100В, 50/60 герц, 15,5 ампер 115В, 50/60 герц, 10 ампер 230В, 50/60 герц, 6,3 ампера

Размер:

1,37x0,76x1,12 м (WxDxH)

.1.3 Контроль моделей лопаток

Проверить визуально каждую модель. На модели не допускаются: трещины, сколы, утяжины, воздушные раковины, посторонние включения и другие дефекты, нарушающие чистоту поверхности и геометрические размеры модели. Контроль визуальный, 100%, по контрольному образцу.

.1.4 Изготовление литниковой системы

В качестве исходного материала использовать модельную композицию Салют-1.

Перед запрессовкой рабочую поверхность пресс-формы протереть смазкой.

Допускается использовать смазку следующего состава, объёмная доля в процентах:

спирт гидролизный - 70 % (7000 мл)

масло касторовое - 30 % (3000 мл)

Собрать пресс-форму и запрессовать модельную массу. Отпрессованную литниковую систему поместить в ванну с водой. Температура воды - (18+7) °С.

.1.5 Зачистка модели и сборка блока

Произвести подготовку моделей под сборку:

Зачистить заусенцы и облой на модели детали и литниковой системы согласно контрольному образцу ножом для зачистки. Небольшие складки и поднутрения замазать ремонтным воском «Салют Р-4» или церезином и оплавить.

Произвести сборку модельного блока по эскизу, и контрольному образцу при помощи электроножа. При сборке тщательно заделать место соединения, не допуская острых углов и поднутрений.

Собранный блок обдуть сжатым воздухом (давление сетевое).

.1.6 Клеймение моделей и блоков

Клеймение модели производить металлической чертилкой. Модели лопаток заклеймить порядковым номером на замке лопатки. В модельном журнале сделать соответствующую отметку.

На элементах литниково-питающей системы должна быть указана марка сплава «ЧС-70» (клеймо марки сплава выгравировано в пресс-формах).

.1.7 Контроль модельных блоков

Проверить чистоту поверхности моделей, литниковой системы и качество соединения моделей с литниковой системой. На блоках не допускаются поднутрения, наплывы модельной массы, острые углы и заусенцы, трещины и поломы.

Поставить клеймо о годности на литниковой чаше.

.1.8 Приготовление огнеупорной суспензии на водном связующем

Каждую бочку со связующим «Ludox SK» подвергнуть входному контролю на содержание SiO2 и рН. Содержание SiO2 должно составлять 24…26 %, значение рН должно находиться в пределах 4…7 ед.

Приготовление огнеупорной суспензии для первого слоя с алюминатом кобальта производить следующим образом:

В чистый бак влить связующее «Ludox SK». Засыпать алюминат кобальта, засыпать электрокорунд небольшими порциями, начиная с самой мелкой фракции и заканчивая самой крупной фракцией, рассыпая его равномерно по поверхности. Время перемешивания между засыпкой каждой фракции электрокорунда должно составлять 40…60 мин. Следить за тем, чтобы не происходило образования комков. Соотношение «связующее : наполнитель» = «1 л : 3,6 кг».

Состав наполнителя, массовая доля в процентах:

Электрокорунд 25А М5 [F-1200] - 25 %

Электрокорунд 25А М40 [F-320/360] - 40 %

Электрокорунд 25А М60 [F-230] - 35 %

Алюминат кобальта - 5 % (сверх 100 %)

После внесения последней порции электрокорунда перемешать суспензию не менее 24 ч.

Проверить вязкость. Вязкость суспензии для первого слоя должна быть 98…103 с.

Приготовление огнеупорной суспензии для последующих слоев (наполнитель - электрокорунд) производить следующим образом:

В чистый бак влить связующее «Ludox SK». Засыпать электрокорунд небольшими порциями, начиная с самой мелкой фракции и заканчивая самой крупной фракцией, рассыпая его равномерно по поверхности. Время перемешивания между засыпкой каждой фракции электрокорунда должно составлять 40…60 мин. Следить за тем, чтобы не происходило образования комков. Соотношение «связующее : наполнитель» = «1 л : 3,6 кг». Состав наполнителя, массовая доля в процентах:

Электрокорунд 25А М5 [F-1200] - 25 %

Электрокорунд 25А М40 [F-320/360] - 40 %

Электрокорунд 25А М60 [F-230] - 35 %

После внесения последней порции электрокорунда перемешать суспензию не менее 24 ч.

Проверить вязкость. Вязкость суспензии для последующих слоев (наполнитель - электрокорунд) должна быть 70…75 с.

.1.9 Формирование керамической оболочки

Формирование керамической оболочки производить по следующей программе: количество слоев 10, 11 - нулевой.

Для нанесения первого слоя использовать суспензию для первого слоя с алюминатом кобальта. Для нанесения второго и третьего слоя использовать суспензию для последующих слоев с электрокорундом в качестве наполнителя. Для нанесения с четвертого по десятый слои использовать суспензию для последующих слоев с дистен-силлиманитом в качестве наполнителя. Для нанесения одиннадцатого слоя использовать суспензию для предварительного смачивания. 11 слой без обсыпки.

Сушку слоев производить следующим образом:

Сушку первого слоя производить в течение 3…4 ч. Сушка последующих слоев не менее 2 ч. Сушка после одиннадцатого слоя не менее 8 ч. После 10 слоя дополнительно на выходную кромку нанести 2 слоя суспензии.

Окончательная сушка блоков до удаления модельной массы в бойлерклаве не менее 2 суток. Сушку производить в помещении участка при температуре 20…25 °С, относительной влажности 45…60 %.

.1.10 Вакуумно-аммиачная сушка блоков

Просушить блоки на воздухе в течение 15 -20 мин., потом поместить в вакуумно-аммиачную камеру.

.1.11 Удаление модельного состава из блоков

Вытопку модельной массы производить в бойлерклаве.

Режимы вытопки модельной массы:

давление - 0,686…0,735 МПа

температура - 150…170 °С

выдержка - 8…12 мин.

Блоки на участок предварительной прокалки подавать не ранее, чем через 2 ч после удаления модельной массы.

Допускается производить удаление модельной массы из керамических форм в горячей воде.

.1.12 Прокалка блоков

Уложить блоки на вагонетки в горизонтальном положении корытом вверх с подставками под перо и замок. Литниковая чаша должна быть направлена по ходу движения вагонетки. Прокалку блоков производить в газовой печи ПГ-30 с периодичностью толкания вагонеток через 25…40 мин (обеспечивается специальным устройством). Температура в рабочей зоне печи - (950-50) °C. Время нахождения блоков при температуре - (950-50) °C не менее 2,5 ч.

Прокалённые блоки подвергнуть визуальному контролю.

.1.13 Контроль керамических форм

Проконтролировать блоки на отсутствие сколов, отслоений керамики, трещин. Блоки, имеющие сколы, отслоения, крупные трещины - на заливку не допускать. Допускаются небольшие сколы по краю литниковой чаши и следы ремонта мелких трещин на литниковой системе.

.1.14 Подготовка форм к заливке

Подвергнуть 100% визуальному контролю блоки, прошедшие предварительную прокалку. На оболочках не допускаются сколы углов, трещины, отсутствие порядкового номера блока. Операцию выполняет рабочий.

.1.15 Аттестация шихты

Исходным шихтовым материалом для отливки деталей является готовый (исходный) сплав ЧС70-ВИ, завода-поставщика в виде мерной заготовки или прутков, поступающих с сертификатом на каждую плавку, в котором должно быть указано его соответствие требованиям норм на поставку данного сплава.

Запуск сплава в работу осуществляется на основе сверки данных сертификата с требованиями.

Рабочий сплав составляется из одной плавки исходного сплава и возврата литейного производства, состоящего из элементов литниковой системы с отрезанными чашами, забракованных деталей, годных по химическому составу, в количестве до 50 % от массы шихты. Допускается использовать в качестве возврата ЧС70, восстановленный из отходов методом электрошлакового переплава, в количестве до 60 % от веса шихты.

Из плавки собственного производства отлить блок заготовок под образцы для контроля механических свойств. Сплав подвергается контролю химического состава и механических свойств.

Контроль химического состава плавки производится химическим и спектральным способами на образце, вырезанном из литниковой системы.

.1.16 Подготовка шихты

Исходными шихтовыми материалами для приготовления рабочего сплава являются:

готовый (исходный) сплав ЧС70-ВИ, ЧС70У-ВИ поступающий с завода-поставщика;

возврат литейного производства.

Свежий сплав, поступающий с завода-поставщика в виде мерной заготовки или прутков, разрезать на части, удобные для загрузки плавильной установки.

Подготовку возврата литейного производства выполнять следующим образом:

Загрузить галтовочный барабан и произвести галтовку.

При наличии в труднодоступных местах остатков керамики разрешается произвести обдувку электрокорундом с последующей галтовкой.

Разрезать на части, удобные для загрузки плавильной установки.

Плавка рабочего сплава составляется (шихтуется) из одной плавки исходного сплава и возврата литейного производства в количестве до 50 % от веса шихты.

.1.17 Подготовка вакуумной установки к работе

Произвести установку тигля.

Перед началом работы необходимо:

произвести внешний осмотр вакуумной печи;

проверить давление воды в сети;

проверить работу всех механизмов и узлов с ручным управлением;

проверить исправность вакуумных затворов;

проверить работу и запустить вакуумные насосы;

проверить индуктор печи на исправность изоляции и крепления, отсутствия течи в катушке индуктора и шлангах, нормальное истечение охлаждающей воды;

проверить исправность печи подогрева форм;

проверить исправность контрольно-измерительной аппаратуры.

.1.18 Прокалка керамических блоков перед заливкой

Нагрев оболочек под заливку производить в электрических нагревательных печах. Блоки укладывать горизонтально в один ряд корытом вверх. Температура прокалки Т=(1050+20) °С, выдержка не менее 4 и не более 8 часов.

2.1.19 Плавка металла и заливка формы

Плавку металла и заливку формы производить в индукционной вакуумной печи УППФ-3МК:

.        Перед началом работы следует убедиться в исправности вакуумной установки.

.        Плавку сплава производить в сменных керамических тиглях. Замену тигля производить не реже 1 раза в смену.

.        Загрузить в тигель печи навеску шихты. При загрузке следует плотно уложить шихту в загрузочный стакан и предусмотреть возможность свободного осаживания её в тигле в процессе расплавления.

.        Произвести форсированное расплавление шихты при мощности на индукторе 70…100 кВт. После полного расплавления дать выдержку 2…3 мин. Плавку вести при остаточном давлении не более 1·10-1 мм рт.ст. (13,332 Па).

.        Произвести нагрев металла до Т=(1640+10) °С и выдержать при этой температуре до полного исчезновения плен (время выдержки 3…5 мин.

.        Снизить мощность на индукторе до 10…40 кВт и, постепенно наклоняя тигель, прогреть сливной носок.

.        Выставить тигель в вертикальное положение, и проверить наличие плен на поверхности жидкого металла. В случае обнаружения плен осадить их на противоположную сливному носку стенку тигля.

.        Снизить мощность на индукторе и довести температуру металла до температуры заливки Тзал.=(1500±10) °C.

.        Извлечь из печи подогрева керамическую оболочку, провести инжектирование внутренней полости блока и поместить её в муфель (обечайку) печи. Блок должен стоять в муфеле (обечайке) вертикально.

.        Перед заливкой металла в форму температуру металла замерить термопарой погружения с кварцевым наконечником. Замер производить при мощности на индукторе 10…15 кВт, обязательно выдерживая термопару в тигле с жидким металлом с регистрацией на диаграмме прямолинейного участка длиной не менее 5 мм. Общее время нахождения термопары погружения в тигле с жидким металлом не должно превышать 80…100 с, во избежания разрушения кварцевого наконечника термопары. Температуру заливки записать в сопроводительную карту.

.        Перед заливкой установить мощность на индукторе 30…35 кВт, подвести блок к тиглю и произвести заливку формы (время заливки должно быть минимально). Перед заливкой наклонить тигель в сторону формы на уровень, обеспечивающий расстояние от металла до верхней кромки тигля (примерно 15…30 мм - для сведения), выдержать металл в течение 5…15 с, дав возможность шлаку переместиться к задней стенке. После заливки блок выдержать под вакуумом 0,5…1 мин.

.        Плавно вывести блок из плавильной камеры. Произвести напуск воздуха в форкамеру и откатить кожух камеры.

.        После открытия камеры необходимо накрыть литниковую чашу асбестом.

.        Через 3…5 мин после заливки извлечь залитую оболочку из плавильной камеры и перенести ее на поддон для залитых блоков.

.        Освободить блоки от утеплителя и асбеста не ранее, чем через 2 ч.

.        Залитые блоки подавать на выбивку не ранее, чем через 6 ч после заливки.

.1.20 Отбивка керамики

Залитые блоки поступают на выбивку не ранее, чем через 6 ч после заливки.

Отбивку керамики производить вручную ударами молотка по литниковой чаше. Запрещается при выбивке наносить удары по отливке.

2.1.21 Отрезка отливки от литниковой системы

Отрезку отливки производить на абразивно-отрезном станке вулканитовым или армированным кругом следующим образом:

.        Блок отливки установить в тиски и закрепить.

.        Включить электромагнит, закрепив тиски в нужном положении.

.        Отрезать отливку от литниковой чаши.

.        Отрезать часть литниковой системы, толщиной ≈ 3 мм, для контроля марки сплава и передать в БТК.

.        Отключить электромагнит и извлечь из тисков оставшуюся часть.

.        Закрепить отрезанную деталь и включить электромагнит.

.        Отрезать стояк с щелевыми питателями от отливки.

.        Отключить электромагнит и извлечь деталь.

.1.22 Контроль марки сплава

 Произвести стилоскопирование части литниковой системы, отрезанной от залитого блока на соответствие материала - сплав ЧС70-ВИ. Стилоскопированию подвергаются 100 % залитых блоков. Операцию выполняет БТК цеха.

.1.23 Обдувка отливок

Обдуть лопатки от остатков керамики в пескоструйной камере. Давление воздуха не более 4,0кгс/см2.

Производить обдувку электрокорундом марки 25АF46.

Осуществлять подачу песка эжекционным методом равными проходами струи по всей поверхности, не допуская задержки на одном участке.

Не допускать появления забоин на поверхности деталей.

2.1.24 Зачистка остатков питателей и промывников

Зачистить заподлицо, не врезаясь в тело отливки, остатки питателей на пере и остатки промывников.

Зачистить остаток питателя на торце хвостовика. Длина литника не более 1 мм.

.1.25 Визуальный контроль

Произвести контроль отливок на выявление наружных дефектов.

На поверхностях отливок не допускаются трещины, вскипы, корольки, сквозные дефекты, неспаи, сколы. На обрабатываемых поверхностях отливок лопаток допускаются любые дефекты в пределах припуска на механическую обработку. Допускается повторная зачистка дефектов в пределах допуска по размерам с последующим контролем. Визуальный контроль проводится невооруженным глазом, в сомнительных случаях допускается применение 2х-кратной лупы.

.1.26 Зачистка дефектов

Зачистить дефекты. Допустимая глубина зачистки - в пределах допуска и припуска на механическую обработку.

.1.27 Травление лопаток на макроструктуру

Травлению подвергается одна лопатка от сменной плавки. Допускается производить травление на лопатке из числа, забракованных по визуальному

контролю. Лопатки, поступающие на травление, должны быть обдуты электрокорундом, иметь однородную поверхность без темных пятен. Остатки керамики не допускаются.

Протравленные и промытые лопатки обдуть сжатым воздухом (давление сетевое) до полного удаления влаги.

Поверхность протравленных лопаток должна быть серого цвета с четко выявленной границей зерен. При неудовлетворительных результатах разрешается повторное травление лопаток.

.1.28 Контроль макроструктуры

Контроль макроструктуры производить на одной лопатке от сменной плавки по фотоэталонам.

Допускается производить контроль макроструктуры на лопатке из числа, забракованных по визуальному контролю.

Лопатки, имеющие неконтрастную структуру, вернуть на повторное травление.

В случае несоответствия макроструктуры контрольным образцам , каждый залитый блок сменной заливки подвергается контролю макроструктуры. При получении неудовлетворительных результатов вопрос о годности отливок решается Главным конструктором промышленных ГТУ.

.1.29 Рентгеноконтроль

Произвести рентгеноконтроль отливок.

Проверить отливки рентгенопросвечиванием на наличие металлургических дефектов.

Просвечивание деталей производить с эталоном чувствительности для подтверждения качественности выполнения операции.

Допустимые дефекты усадочного происхождения (рыхлоты), обнаруженные при рентгеновском просвечивании, принимаются по контрольной рентгенограмме.

На обрабатываемых поверхностях отливок лопаток допускаются любые дефекты в пределах припуска на механическую обработку.

Результаты контроля внести в журнал с указанием вида дефекта забракованных отливок.

На годные отливки выписать свидетельство с указанием номеров годных деталей и передать в БТК цеха.

.1.30 Капилярно - люминисцентный контроль

Провести капиллярно-люминисцентный контроль.

.1.31 Подготовка линии «Magnaflux» к работе

Ежедневно в начале каждой смены для проверки качества дефектоскопических материалов производить окраску рабочих и стандартных образцов с использованием каждого типа пенетранта, применяемого на участке.

Параметры процесса контроля стандартного образца должны быть аналогичны процессу контроля деталей.

При необходимости провести повторные работы по окраске стандартного образца.

После каждого контроля стандартный образец промыть, обдуть сжатым воздухом (давление сетевое), протереть салфеткой и поместить в футляр.

Проверять показания индикаторов температуры, давления, таймеров и при необходимости производить регулировку.

.1.32 Подготовка поверхности отливок и нанесение дефектоскопических материалов

Подготовить контролируемую поверхность к нанесению пенетранта. Нанести пенетрант. Удалить излишки пенетранта с отливки. Затем просушить детали и нанести проявитель.

.1.33 Предварительный контроль дефектов, выявленных КЛК

Произвести контроль отливок.

Проверить отливки на отсутствие грубых наружных дефектов.

На обрабатываемых поверхностях отливок лопаток допускаются любые дефекты в пределах припуска на механическую обработку.

Годные отливки и отливки с дефектами, исправляемыми зачисткой, отправить на смывку краски.

.1.34 Рихтовка отливок

1.      Рихтовку разворота бандажной полки производить следующим образом:

.1.     Положить лопатку на контрольную плиту на боковую поверхность полки хвостовика входной кромкой вверх.

.2.     Прижать лопатку к плите и проверить угол разворота бандажной полки (угол поворота бандажной полки характеризуется величиной зазора между поверхностью бандажной полки и контрольной плитой). Допустимый зазор между поверхностью бандажной полки и контрольной плитой на расстоянии 5 мм от края: (4,3±0,5) мм. Зазор проверять плиткой для контроля разворота бандажной полки. Тонкая часть плитки должна проходить между поверхностью бандажной полки и контрольной плитой, а толстая часть плитки не должна проходить между этими поверхностями.

.3.     При несоблюдении допустимого зазора закрепить лопатку в тиски и произвести рихтовку при помощи приспособления для рихтовки (воротка). В процессе рихтовки проверять угол разворота бандажной полки.

.        Рихтовку профиля пера производить следующим образом:

.1.     Установить лопатку на технологические базы в прибор для контроля отливки зафиксировать ее прижимами и проверить профиль лопатки шаблонами (эскиз №22). При контроле профиля пера максимально допустимый зазор между шаблонами и профилем лопатки в сечениях А-А, Б-Б, В-В, Г-Г, Д-Д - 1,0 мм (щуп 1,0 - проходной, щуп 1,1 - непроходной), при отсутствии зазора под базой шаблона.

.2.     При зазоре между шаблонами и профилем лопатки больше 1 мм или появлении зазора под базой произвести рихтовку. В процессе рихтовки контролировать зазор по профилю между контрольными шаблонами и отливкой (п.2.1), а также разворот бандажной полки (п.1).

.3.     Произвести проверку фактического изготовления величины размера 20±0,2 (от торца замка со стороны зацепа под стопорные пластины до оси лопатки). Замеры производить на контрольно-измерительной машине LK G-90C. Замерять точки Т1 и Т2 на поверхности хвостовика со стороны конусной базы согласно эскизу.

.4.     При получении замеров положения точек Т1 и Т2 относительно номинала больше |±0,2| мм или при перекосе между точками Т1 и Т2 (Δ=Т1-Т2) больше |±0,2| мм произвести повторную рихтовку по п.2.2 с последующей перепроверкой точек Т1 и Т2 по п.2.3.

.        Рихтовку межполочного расстояния производить следующим образом:

.1. Установить лопатку на технологические базы в прибор для контроля отливки, зафиксировать ее прижимами и проверить положение бандажной полки шаблонами.

.1.35 Контроль геометрии

Произвести контроль разворота бандажной полки:

Положить лопатку на контрольную плиту на боковую поверхность полки хвостовика входной кромкой вверх.

Прижать лопатку к плите и проверить угол разворота бандажной полки. Допустимый зазор между поверхностью бандажной полки и контрольной плитой на расстоянии 5 мм от края: (4,3±0,5) мм. Зазор проверять плиткой для контроля разворота бандажной полки. Тонкая часть плитки должна проходить между поверхностью бандажной полки и контрольной плитой, а толстая часть плитки не должна проходить между этими поверхностями.

Контроль профиля пера производить следующим образом: установить лопатку на технологические базы в прибор для контроля отливки зафиксировать ее прижимами и проверить профиль лопатки шаблонами. Зазор под базой шаблона не допускается.

Контроль межполочного расстояния производить следующим образом: установить лопатку на технологические базы в прибор для контроля отливки, зафиксировать ее прижимами и проверить положение бандажной полки шаблонами.

Годные детали передать на следующую операцию. Детали, требующие доработки отправить на операцию «Рихтовка отливок».

Все лопатки, прошедшие операцию «Рихтовка» подвергнуть отжигу для снятия напряжений. Произвести контроль отливок капиллярно люминесцентным контролем. Зачистить дефекты выявленные капиллярно люминесцентным контролем. Произвести обдувку зачищенных мест в пескоструйной камере электрокорундом. Произвести контроль отливок капиллярно люминесцентным контролем после зачистки и обдувки. Смыть дефектоскопические материалы с годных отливок.

.1.36 Сдача отливок

Проверить наличие заключений ЦЗЛ по механическим свойствам и химическому анализу всех элементов на партию (плавку) завода- поставщика. Проверить наличие свидетельств, отметок в журнале и наличие клейм за проведенные операции:

визуальный контроль;

рентгеноконтроль;

капиллярный люминесцентный контроль;

окончательный контроль геометрии.

Клеймить годную отливку чернильным клеймом.

Выписать паспорт на детали с указанием годности и выполненных контрольных операций.

Лопатки уложить в тару и отправить.

2.2 Современные технологии в литейном производстве

В этом разделе описаны новые технологии при проектировании САПР, которые были применены в качестве разработки технологического процесса, с целью улучшения качества производимой продукции, снижения трудоёмкости и сокращению времени изготовления, что очень актуально для метода литья по выплавляемым моделям.

2.2.1 Расчет литниково-питающей системы

Расчет литниково-питающей системы проводился в программе для расчета литниковых систем, разработанную в институте стали и сплавов.

Программа рассчитывает минимально необходимые размеры литниковой системы. Поскольку сплав дает усадку при затвердевании, принято решение компенсировать ее, увеличив поперечное сечение питателя, подводящего металл к верхней части отливки. В нижнюю часть отливки подводится металл для обеспечения более спокойного заполнения металлом формы для избежания поверхностных дефектов отливки, например, в виде неспаев.

.2.2 ПолигонСофт

СКМ ЛП "ПолигонСофт"- система моделирования литейных процессов методом конечных элементов. Применима для моделирования практически любых литейных технологий и любых литейных сплавов. Долгое время СКМ ЛП "ПолигонСофт" оставалась единственной в мире системой моделирования литейных процессов, имеющей в составе специальную модель для расчета микропористости. До сих пор, эта модель может считаться наиболее устойчивой, а результаты, полученные с ее помощью, способны удовлетворить самых требовательных пользователей.

По многим параметрам, СКМ ЛП "ПолигонСофт" может считаться российским аналогом известной системы ProCAST <#"792838.files/image012.gif">


2.2.3 ProCAST

ProCAST представляет собой профессиональную систему компьютерного 3D-моделирования литейных процессов методом конечных элементов. Оригинальным разработчиком этого программного продукта является UES Inc. (США), ряд модулей разработан швейцарской фирмой Calcom SA. В 2003 году обе фирмы вошли в состав группы компаний ESI Group (Engineering Systems International), а программный комплекс ProCAST стал частью семействаPAM-систем для инженерного анализа.

Система работает под ОС UNIX, MS Windows и позволяет моделировать практически все варианты литейных технологий, включая свободное литье в формы, литье под низким и высоким давлением, литье по выплавляемым моделям и т.д. Геометрия отливок может быть самой сложной.

Создание сетки

Чтение CAD-моделей, проверка и, при необходимости, «лечение» импортированной геометрии осуществляются с помощью тетрагонального генератора сетки MeshCAST. В его состав также включен генератор оболочек, предназначенный для моделирования литья по выплавляемым моделям. Помимо собственных файлов системы генератор способен распознавать следующие форматы:

·              геометрия: IGES, STEP, PARASOLID и STL;

·              поверхностные сетки: Patran и I-DEAS;

·              объемные сетки: Patran и I-DEAS.

 



3. КОНСТРУКТОРСКАЯ ЧАСТЬ

В данной части проведена модернизация прокалочной печи Н85-В с изменением наклона дверцы и заменой подъемного механизма дверцы.

.1 Введение

В технологической цепочке производства лопаток ГТД методом литья по выплавляемым моделям предусмотрена прокалочная печь Н85-В. Печь предназначена для прокалки модельных блоков лопаток ГТД перед заливкой в вакуумных печах УППФ-3МК. Блоки проходят контроль после прокалки в проходных газовых печах ПГ-30 и далее поступают в печи Н85-В. Печи Н85-В установлены в плавильном отделении напротив плавильных печей и, по сути, предназначены для нагрева модельных блоков перед заливкой в печах УППФ-3МК.

.2 Описание конструкции

Электропечь состоит из кожуха, футеровки, нагревательных элементов, механизма подъема дверцы. Кожух электропечи бескаркасный. На передней наклонной стенке кожуха закреплены чугунные плиты. Они играют роль направляющих для дверцы, а также служат для плотного прилегания дверцы к загрузочному проему.

Огнеупорная часть футеровки выполнена из легковесного шамота ШЛБ-1,0 и шамота ШБ, теплоизоляционная - из засыпки диатомитовой, диатомитового кирпича. Под изготовлен из отдельных литых жароупорных плит.

Нагревательные элементы выполнены из проволоки высокого омического сопротивления, в виде спиралей, уложенных на полочки на боковых стенках и поду и подвешенных на трубках на своде.

Материал трубок - высокоглиноземистый шамот ВГЛ-1,3.

Подъем дверцы осуществляется от электропривода.

Электропечь двухзонная. Это дает возможность получить равномерную температуру по длине электропечи.

Регулировка температуры в каждой зоне автоматическая. На электропечи предусмотрены блокировки, отключающие нагреватели электропечи при подъеме дверцы и ограничивающие ход дверцы.

Технические характеристики печи приведены в таблице:

Техническая характеристика камерной прокалочной печи Н85-В

Наименование

Нормы

1. Мощность установленная, кВт

91,1

2. Мощность нагревателей, кВт

90

3. Напряжение питающей среды, в

380

4. Напряжение на нагревателях, в

220

5. Число фаз

3

6. Частота, Гц

50

7. Максимальная рабочая температура, С

1000

8. Число зон

2

9. Время разогрева электропечи до рабочей температуры, ч

4

10. Мощность холостого хода, кВт

22

11. Масса садки, кг

1350

12. Рабочая среда

воздух

13. Размеры рабочего пространства, мм


ширина

850

Длина

1700

Высота

500

14. Общая масса электропечи, т

6,7

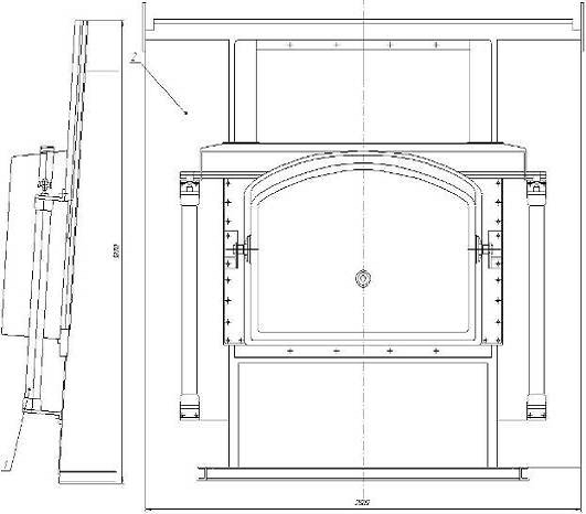
.3 Направление модернизации камерной прокалочной печи Н85-В

 

Модернизация заключается:

. Изменение наклона дверцы печи Н85-В с целью обеспечения надежной герметизации оконного проема.

.Замена электрического привода подъема дверцы на пневматический.

Общий вид модернизируемой печи Н85-В представлен на рис. 3.1.

Рис. 3.1.

3.4 Улучшение конструкции загрузочного окна и теплоизоляции дверцы печи

 

Для улучшения теплоизоляции дверцы печи плоскость, по которой она поднимается, сделана наклонной, что обеспечивает плотное прилегание ее к оконному проему (рис. 3.2). Также для сокращения тепловых потерь увеличена площадь перекрытия оконного проема дверцей.

Рис 3.2. Механизм подъема дверцы печи.

Рис 3.3. Механизм подъема дверцы печи.

Рис 3.4. Замена механизма подъема дверцы печи.

3.5 Выводы

Осуществлена модернизация прокалочной камерной печи Н85-В, заключающаяся в следующем:

Для лучшей герметизации рабочего пространства печи дверца загрузочного окна сделана наклонной.

Заменен электрический привод подъема дверцы печи на пневматический.

4. СТРОИТЕЛЬНАЯ ЧАСТЬ

4.1 Расположение корпуса на территории завода

Цех проектировался для условий завода «Салют». Инженерно-технические коммуникации нового цеха на базе действующего. Учитывая господствующие направления дующих в течении года ветров, литейный цех на предприятии следует размещать с подветренной стороны.

.2 Основные показатели проектируемого цеха

Проектируемый цех литья по выплавляемым моделям расположен в одноэтажном корпусе и состоит из 3-х продольных пролетов: центрального пролета шириной 24 метра и двух боковых пролетов шириной 18 метров.

В первом боковом продольном пролёте находятся: участок обрезки и обдувки, участок шлифовки и полировки, склад хим. реактивов и расходных материалов, участки травления и нейтрализации, БТК, участок контроля методом КЛК, инструментальная лаборатория и лаборатория рентгено-контроля.

В центральном продольном пролёте расположено плавильно-прокалочно-заливочное отделение, шихтовой двор, участок прокалки керамических форм и склад готовой продукции.

Исходя из максимальной высоты оборудования и специфики находящихся в данном пролете отделений, высоту бокового пролета ( от уровня пола до нижнего пояса несущей фермы ) принимаем равной 8,4 метра.

Высота центрального пролета также принимается равной 8,4 метра. Вдоль через весь пролёт проходит путь для подачи на склад материалов, здесь находятся площадки для складирования и хранения шихты: собственного возврата, мерных шихтовых заготовок и т.д. Для разгрузки - загрузки шихты, загрузки и навески бадьи на весовые тележки, перемещения грузов по отделению, оно оборудовано мостовым краном, грузоподъемностью 5 тонн.

Плавильное отделение отделено от прилегающих к нему отделений температурно-осадочными швами. Также температурно-осадочный шов проходит поперек продольных пролетов на расстоянии 48 метров от торца здания.

В данном цехе литья по выплавляемым моделям производятся отливки из сплава: ЧС70-ВИ. Шихтовое отделение разделёно условно на две части. В первой находятся площадки для данного сплава, а во второй части находятся бадьи для складирования литейных отходов.

В плавильном отделении расположены шесть установок УППФ-3МК.

Центральный пролет обслуживает мостовой кран грузоподъемностью 5 тонн, применяющийся для транспортировки бадей с шихтой, разгрузки автотранспорта и т.д.

Во втором продольном пролёте, высота которого 8,4 метра, располагаются: группа механика, участок регенерации электрокорунда, гидролизная, насосная станция, участки приготовления и удаления модельной массы, модельный участок, участок нанесения огнеупорного покрытия, участок изготовления тиглей, стержневой участок, участок размола глинозема и участок лазерной обработки.

Ширина проездов 4 метра, что соответствует нормам литейных цехов, а также предусмотрен пожарный проезд шириной 6 метров между плавильно -прокалочно-заливочным отделением и участком обрезки и обдувки через весь цех в продольном направлении.

Поперечные температурно-осадочные швы осуществляются на парных колонах. При этом ось температурно-осадочного шва совмещается с поперечной разбивочной осью, геометрические оси торцевых колон смещаются на 400 мм.

Административные, помещения хозяйственно-бытового назначения располагаются в отдельно стоящем здании. Проход из цеха в административное здание осуществляется по переходу.

Административное здание имеет один этаж, построено по методу быстровозводимых конструкций. Фундамент здания ленточный с глубиной заложения не менее 2 метров. Каркас здания выполнен из металлических балок, стены выкладываются из строительного кирпича на бетонном растворе.

Оконные проемы во всем здании имеют размер 2,0 х 2,0 метра.

Рамы выполняются из алюминия или ПВХ, что обеспечит долговечность окон, хорошую звуко- и теплоизоляцию.

Кровля административного здания выполнена на металлических фермах, на фермы укладывается крупнопанельный настил, накладывается слой утеплителя ( пенобетон или пено-шамот ) толщиной 30 мм и сверху застилается водоизоляцией из рубероида на горячей мастике.

Административное здание имеет два выхода: основной и пожарный, кроме того имеется переход в литейный цех.

.3 Элементы конструкции проектируемого цеха

литейный сплав керамический отливка

Каркас из сборных железобетонных элементов промышленных зданий состоит из колонн, фундаментов под колонны, несущих конструкций покрытий и перекрытий, связей и подкрановых балок. В полостях стен каркас дополняется фундаментными и обвязочными балками.

 

.3.1 Фундаменты под колонны

Под колоннами устраивают железобетонные фундаменты стаканного типа. Фундаментные стаканы укладываются на щебенчатых или песчаных основаниях.

Глубина заложения основания фундамента должна быть на 300-500 мм ниже максимальной глубины промерзания грунта в данном районе. Грунт под опорной колонной не должен промерзать в самый сильный мороз, поскольку при замерзании грунт изменяет свой объем, а это приводит к смещению колонны.

Исходя из глубины промерзания грунта в климатической зоне Москвы и Московской области, глубину заложения фундамента проектируемого цеха принимаем равной 2 метрам.

 

.3.2 Колонны

В зданиях высотой более 9,6 метров оборудованных мостовыми кранами грузоподъемностью до 20 тонн применяют прямоугольные колонны с консолями сечением 400х600 мм. Стеновые колонны имеют сечение 400х400 мм.

С целью снизить стоимость здания в боковых пролетах применены металлические колонны, т.к. в этих пролетах нет мостовых кранов и других подъемно-транспортных устройств. Исходя из максимальной высоты оборудования высота боковых пролетов принимается равной 8,4 метрам.

 

.3.3 Фундаментные балки

Фундаментные балки служат для передачи нагрузки от наружных и внутренних стен на фундаменты колонн, фундаментные балки для наружных стен выносят за грани колонн, а для внутренних стен располагают между колоннами по линии их геометрических осей. Фундаментные балки укладываются на столбики, расположенные на стаканах. Высота фундаментных балок принимается равной 400-500мм и шириной 400мм (в зависимости от толщины стены). В проектируемом цехе применены фундаментные балки длиной 12 метров и шириной не менее 300 мм.

4.3.4 Обвязочные балки

Обвязочные балки служат для опоры наружных стен. Размеры и формы их определяются в зависимости от шага колонн и толщины стен. В проектируемом цехе применены балки длина которых составляет 12 метров, ширина не менее 300 мм.

 

.3.5 Подкрановые балки

Подкрановые балки предназначены для опоры рельсов, по которым передвигаются мостовые краны. Изготавливаются из железобетона.

Рельсы для мостовых кранов крепятся на подкрановых железобетонных балках, лежащих на специальных опорных выступах колонн. Крепление рельс к балкам, балок между собой и к колоннам производится приваркой к армирующему каркасу балок и колонн. Рельсовые пути смещаются от оси колонн на 500-700 мм в соответствии с ГОСТами на мостовые краны ( в зависимости от ширины пролета и грузоподъемности крана ).

В проектируемом цехе принимаем высоту подкрановых балок 8,5 метров, длина рельсового пути 60 метров.

Похожие работы на - Расчет и проектирование цеха для производства отливок из никелевых сплавов с применением технологии прототипирования при получении моделей мощностью 350 тонн в год

 

Не нашли материал для своей работы?
Поможем написать уникальную работу
Без плагиата!
Без нейросетей!