Разработка требований по обеспечению взаимозаменяемости соединений узла планетарного редуктора В-150
Курсовая работа
Тема
Разработка требований по обеспечению
взаимозаменяемости соединений узла планетарного редуктора В-150
ИСХОДНЫЕ ДАННЫЕ
посадка планетарный редуктор точность
Соединение для расчета зазора и натяга d2 = 70, d5 =
70
Серия подшипника качения200
Резьбовое соединениеM5 =
12
Зубчатое колесоZ2 =
20
Детали, подлежащие деталировке1 - вал ведомый,
- солнечное колесо,
19 - подшипник
d1 =
60Z2 = 20
d2 = 70Z3 = 22=
90Z4 = 25= 120L1 = 70= 70L2 = 40= 40m = 5= 55M1 = 64x1,5= 36M2 = 30= 55M3 =
45x1,5= 55M4 = 36x1,5= 40M2 = 12= 450A1 = 120= 560A2 = 100= 32= 400= 27
РЕФЕРАТ
Курсовая работа стр., рис., табл., источников, чертежа, приложение.
ПЛАНЕТАРНЫЙ РЕДУКТОР, ПОСАДКИ ЦИЛИНДРИЧЕСКИХ СОЕДИНЕНИЙ, РАССЧЕТ
ПРЕДЕЛЬНЫХ ДОПУСКОВ И ПОСАДОК ДЛЯ ЦИЛИНДРИЧЕСКОГО СОЕДИНЕНИЯ
Проведены расчеты допусков и посадок для заданных цилиндрических
соединений, шпоночного соединения, резьбового соединения, подобраны классы
точности для зубчатого колеса, подшипника.
СПИСОК ОБОЗНАЧЕНИЙ
ES, es - верхнее отклонение;
EI, ei - нижнее отклонение;
D -
диаметр отверстия;
d -
диаметр вала;
max -
наибольший, максимальный;
min -
наименьший, минимальный;
ср - средний;
Td, TD , TS, TN - допуск;
S -
зазор;
N -
натяг;
Для резьбы:- номинальный
наружный диаметр внутренней резьбы (номинальный диаметр резьбы), мм;-
номинальный наружный диаметр наружной резьбы (номинальный диаметр резьбы), мм;-
номинальный средний диаметр внутренней резьбы, мм;- номинальный средний диаметр
наружной резьбы, мм;- номинальный внутренний диаметр внутренней резьбы, мм;, -
номинальный внутренний диаметр наружной резьбы, мм;- номинальный внутренний
диаметр наружной резьбы по дну впадины, мм;
Р - шаг резьбы, мм;- ход
резьбы, мм;
Н - высота исходного
треугольника, мм;- группа длин свинчивания «короткие»;- группа длин свинчивания
«нормальные»;- группа длин свинчивания «длинные»;
Для калибра:
Z - расстояние от наименьшего предельного размера
отверстия до середины проходной стороны калибра;- расстояние от наименьшего
предельного размера отверстия до границы износа проходной стороны;
Н - величина допуска на
изготовление проходной и непроходной сторон калибра;
ПР, НЕ - размеры проходной и
непроходной сторон калибра;- расстояние от наибольшего предельного размера вала
до середины проходной стороны калибра-скобы;- расстояние от наибольшего
предельного размера вала до границы износа проходной стороны;
Н1 - величина допуска на
изготовление проходной и непроходной сторон калибра;
НР - величина допуска на
изготовление контрольных калибров для проверки скобы.
ВВЕДЕНИЕ
Планетарный редуктор имеет тип передачи, который относится к зубчатым
передачам с непосредственным контактом тел вращения.
Редуктор служит для передачи энергии от двигателей к рабочим машинам, с
преобразованием скоростей, сил и крутящих моментов.
В данной работе рассматривается редуктор на примере
фрезерно-вертикального станка 654 с мощностью главного привода движения 14кВт;
при m =5, Z1 = 27, Z2 =
20, Z3 = 22, Z4 = 25 количество сателлитов равно 4.
Описание конструкции и работы планетарного редуктора данной курсовой
работы (ссылки приведены на позиции сборочного чертежа ТПЖА 303100.153 СБ) :
валы, колеса, втулки помещены в корпус поз. 18, который закрывается
крышкой поз. 5 и закрепляется винтовым соединением поз. 7 и шайбой-гровер поз.
30;
от двигателя через ведомый вал поз. 1 передается вращательное движение на
зубчатое колесо поз. 4, закрепленное на вале шпоночным соединением - шпонка
поз. 28 , которое в свою очередь передает вращение сателлитам поз. 11.;
сателлиты поз. 11 закреплены через втулки поз. 10 и пальцы поз. 13 (оси
сателлитов) на поз. 16 - водило;
солнечное колесо поз. 12 неподвижно крепиться в крышке редуктора поз. 5 и
устанавливается вместе с крышкой поз. 5 на корпус редуктора поз. 18,
центрируясь по ведомому валу поз. 1 через втулку поз. 3;
вращаясь на своих осях, сателлиты поз. 11 при зацеплении с солнечным
колесом поз. 4 вращают водило поз. 10, которое соединено с выходным валом поз.
20;
вал поз. 20 закреплен и центрируется в корпусе редуктора поз. 18 через
подшипники поз. 32 и распорную втулку между ними поз. 21 и является
заключительным участником планетарной передачи от двигателя;
на части вала поз. 20, выходящей из корпуса редуктора поз. 18 установлена
шпонка поз. 27, служащая для крепления ответной части оборудования.
крепление крышки поз. 17, закрывающей подшипник поз. 32 и надеваемой на
вал поз. 20 - резьбовое соединение винт поз.19 и стандартной шайбы-гровер.
подшипники, колеса от перемещения ограничены гайками поз. 2, 14, 15.
для предотвращения вытекания машинного масла, которое заливается в корпус
редуктора, на выходном валу ппз. 20 устанавливается сальник поз. 8.
контроль уровня масла, возникающего давления в ходе работы планетарной
передачи (нагрев частей) осуществляется через специальные отверстия в корпусе
редуктора поз. 18, которые закрываются резьбовыми пробками поз. 33 с
уплотнительными прокладками поз. 6.
1.
Выбор посадок
В рассматриваемом планетарном редукторе детали связаны друг с другом, и
отклонения размеров, форм и расположения осей или поверхностей какой-либо из деталей
вызывают отклонения у других деталей, что влияет на эксплуатационные
характеристики узла (долговечность, надежность, точность и т.д.). Данную
проблему решают назначением соответствующих допусков (квалитетов) и посадок,
учитывая характер соединений и стоимость изготовления.
В данной работе выбор посадок осуществляется методом аналогов.
Метод заключается в поиске в однотипных или других машинах, ранее
сконструированных и находящихся в эксплуатации, случаев применения сборочной
единицы, подобной проектируемой и назначении таких же или аналогичных допусков
и посадок.
Выбор посадок с обоснованием представлен в таблице 1.
Таблица 1
|
Обозначение на чертеже
|
Обоснование
|
|
1
|
2
|
Æ
,
Æ
Соединения:
вал и втулка, палец и втулка.
|
Посадка функциональная, подвижная. Выполняется в системе
отверстия с зазором. В соединении необходимо обеспечить подвижность и точное
центрирование, поэтому необходимо гарантированный зазор. Зазор дает
возможность попадания смазки к трущимся частям, что обеспечивает их работу.
|
|
Æ
,
Æ
Соединения:
втулка и солнечное колесо, втулка и сателлит.
Посадка
функциональная, переходная, центрирующая без дополнительных крепежных
элементов. Посадка в системе отверстия.
|
Во избежании повреждения сопрягаемых поверхностей в
процессе сборки и разборки, а также предупреждения поворота втулки относительно
солнечного колеса/сателлита, назначаем посадку с умеренным натягом.
|
|
|
Æ Обеспечивает соединение солнечного колеса и крышки
редуктора. Посадка функциональная, неподвижная, конструктивная для фиксации
деталей, разъемная. Посадка с натягом в системе отверстия. Н солнечное колесо
действует крутящий момент и для предотвращения поворота необходим натяг.
Необходимо обеспечить точное центрирование.
|
|
Æ
Æ
Соединения:
зубчатое колесо и вал, водило и палец.
Функциональная
посадка, переходная, центрирующая с дополнительными конструктивными элементами.
Посадка в системе отверстия. Нужно обеспечить высокое центрирование и
возможность разборки.
Благодаря
шпонке колесо передает крутящий момент, от осевых перемещений колесо
фиксируется гайкой.
|
В соединении с водилом палец фиксируется гайкой.
|
|
|
Æ Обеспечивает соединение ведущего
вала и водила. Функциональная посадка, фиксационная для передачи крутящего
момента. Посадка в системе отверстия. Осуществляется запрессовкой.
Обеспечивает точность центрирования, с гарантированным натягом.
|
|
|
Æ Крышка устанавливается в отверстие,
обработанное под наружное кольцо подшипника, для свободной установки и снятия
крышки назначаем посадку с гарантированным зазором. Посадка в системе
отверстия, подвижная, обеспечивает свободное перемещение.
|
|
|
Æ Обеспечивает установку редуктора в
корпусе оборудования. Необходимо обеспечить высокую точность центрирования,
при возможности снятия, и установки деталей, назначается посадка с
минимальным зазором
|
|
|
Æ Обеспечивает соединение крышки
редуктора с корпусом редуктора. Необходимо обеспечить точность центрирования,
при возможности снятия, и установки деталей, назначается посадка с
минимальным зазором.
|
|
2.
Расчетная часть
.1 Расчет
цилиндрических соединений
Соединение вал - втулка Ø 70 Н7/ g6
Согласно ГОСТ 25347-82 предельные отклонения деталей:
|
Отверстие Ø 70 Н7
|
Вал Ø 70 g6
|
|
Верхнее
|
ES = +30 мкм
|
es = -10 мкм
|
|
Нижнее
|
EI = +0 мкм
|
ei = -29 мкм
|
Рисунок 1 - Схема полей допусков Ø 70 Н7/ g6
Предельные размеры и допуска:
Отверстие Ø 70 Н7
Наибольший предельный диаметр отверстия:
Dmax =
D + ES,(1)
Dmax =
70+0,03= 70,03 мм.
Наименьший предельный диаметр отверстия:
Dmin = D + EI,(2)
Dmin = 70+0= 70 мм.
Допуск отверстия:
ТD = ES - EI,(3)
ТD =+0,03-0 = 0,03 мм.
Вал Ø 70 g6
Наибольший предельный диаметр вала:
dmax = d + es,(4)
= 70+(-0,01)= 69,99 мм.
Наименьший предельный диаметр вала:
dmin =
d + ei,(5)
dmin =
70+(-0,029)= 69,971 мм.
Допуск вала:
Td = es - ei,(6)
Td =
-0,01-(-0,029) =0,019мм
Расчет характеристик посадки
Максимальный зазор:
Smax = ES - ei,(7)
= 0,030-(-0,029) = 0,059 мм.
Минимальный зазор:
Smin =
EI-es,(8)
Smin =
0-(-0,010) = 0,01 мм.
Средний зазор:
Sср =
(Smax + S min) / 2 ,(9)
Sср =
(0,059+0,010)/2 = 0,0345 мм.
Допуск посадки с зазором:
TS = Smax- S min ,(10)
=0,059-0,010=0,049 мм.
Соединение вал - зубчатое колесо Ø 70 Н7/ k6
Согласно ГОСТ 25347-82 предельные отклонения деталей:
|
Отверстие Ø 70 Н7Вал Ø 70 k6
|
|
|
|
Верхнее
|
ES = +30 мкм
|
es = +21 мкм
|
|
Нижнее
|
EI = +0 мкм
|
ei = +2 мкм
|
Рисунок 2 - Схема полей допусков Ø 70 Н7/ k6
Расчет предельных размеров и допусков ведется по формулам
(1),(2),(3),(4),(5),(6):
Отверстие Ø 70 Н7
Dmax =
70+0,03= 70,03 мм.
Dmin =
70+0= 70 мм.
ТD =+0,030-0 = 0,03 мм.
Вал Ø 70 k6
dmax =
70+0,021=70,021 мм.
dmin =
70+0,002= 70,002 мм.
Td =
0,021-0,002 = 0,019мм.
Расчет характеристик посадки
Наибольший натяг:
Nmax =
es - EI, (11)
Nmax =
0,021-0 = 0,021 мм
Максимальный зазор определяется по формуле (7):
Smax =
30-2 = 28 мкм = 0,028 мм
Допуск посадки с натягом:
TN = es - EI - ei +ES = ТD+ Td,(12)
=0,030+0,019 = 0,049 мм.
.2 Расчет
резьбовых соединений
Резьбовые соединения представлены в таблице 2.
Таблица 2
|
Обозначение на задании
|
Обоснование
|
|
M1
|
гайка/вал
|
Резьбовые соединения. Резьба метрическая крепежная. Особых
требований не предъявляется, группа длин свинчивания - нормальная (N), в связи с чем назначают посадку
с зазором средней степени точности согласно ГОСТ 16093-2004 - 6H/6g.
|
|
M2
|
гайка/палец
|
|
|
M3
|
гайка/вал
|
|
|
M4
|
корпус/пробка
|
|
|
M5
|
корпус/винт
|
|
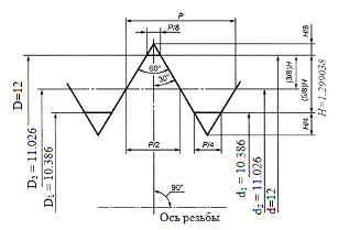
Резьбовое соединение винт - резьбовое отверстие корпуса редуктора
М12х1,5-6H/6g
Рисунок 3 - Профиль метрической резьбы согласно ГОСТ 9150-2002
Внутренняя резьба 6Н (отверстия в корпусе)
Согласно ГОСТ 16093-2004 предельные отклонения:
|
Средний диаметр D2
|
Внутренний диаметр D1
|
|
Верхнее
|
ESD2 = +190 мкм
|
ESD1 = +300 мкм
|
|
Нижнее
|
EID2 = 0 мкм
|
EID1 = 0 мкм
|
Расчет предельных размеров и допусков ведется по формулам (1),(2),(3):
Наименьший номинальный средний диаметр внутренней резьбы:
D2min = 11,026+0 = 11,023 мм.
Наибольший номинальный средний диаметр внутренней резьбы:
D2max = 11,026+0,19 = 11,216 мм.
Допуск номинального среднего диаметра внутренней резьбы:
TD2 =
0,190-0 = 0,19 мм.
Допуск номинального внутреннего диаметра внутренней резьбы:
TD1 =
0,300-0 = 0,3 мм.
Наружная резьба 6g
(винт)
Согласно ГОСТ 16093-2004 предельные отклонения:
|
Средний диаметр d2
|
Внутренний диаметр d1
|
Номинальный диаметр d
|
|
Верхнее
|
esd2 = -32 мкм
|
esd1 = -32 мкм
|
esd = -32 мкм
|
|
Нижнее
|
eid2 = -172 мкм
|
eid1 = -268 мкм
|
|
Расчет предельных размеров и допусков ведется по формулам (4),(5),(6):
Допуск номинального среднего диаметра наружной резьбы:
Td2 =
-0,032-(-0,172) = 0,14 мм.
Допуск номинального внутреннего диаметра наружной резьбы:
Td1 =
-0,032-(-0,268) = 0,236мм.
Наименьший средний диаметр наружной резьбы:
d2min = 11,026+(-0,172) = 10,854мм.
Наибольший средний диаметр наружной резьбы:
d2max = 11,026+(-0,032) = 10,994мм.
Расчет характеристик посадки по среднему диаметру D2 ,d2 6H/6g
Максимальный зазор определяется по формуле (7):
S2max = 0,190-(-0,172) = 0,362 мм.
Минимальный зазор определяется по формуле (8):
S2min = 0-(-0,032) = 0,032 мм.
Средний зазор определяется по формуле (9):
S2ср =
(0,362+0,032)/2 = 0,197 мм.
Допуск посадки, по формуле (10):
TS2
=0,362-0,032 = 0,330 мм.
Рисунок 4 - Схема полей допусков резьбового соединения М12х1,5-6H/6g
.3 Расчет
шпоночного соединения
Рассчитывается посадка в пазы во втулке и на валу. Основная деталь
соединения призматическая шпонка - Шпонка 12х8х28 ГОСТ 23360-78 , N9Js9/h9. Система вала.
Посадка подобрана из условий, что соединение не требует частых разборок,
отсутствуют ударные и реверсивные нагрузки, передающиеся крутящие моменты
небольшие. Посадка шпонки с пазом вала для получения неподвижного соединения
осуществляется с наибольшей вероятностью натяга. Посадка шпонки с пазом втулки
- переходная, для облегчения сборки. Призматическая шпонка позволяет более
точно центрировать сопрягаемые элементы.
Согласно ГОСТ 25347-82 предельные отклонения деталей:
|
Паз вала 20 N9
|
Шпонка 20h9
|
Паз втулки 20 Js9
|
|
Верхнее
|
ES = 0 мкм
|
es = 0 мкм
|
ES = +26 мкм
|
|
Нижнее
|
EI = -52 мкм
|
ei = -52 мкм
|
EI = -26 мкм
|
Рисунок 5 - Схема полей допусков шпоночного соединения 20 N9Js9/h9
Расчет предельных размеров и допусков ведется по формулам
(1),(2),(3),(4),(5),(6):
Паз вала 20 N9
Dmax =
20+0 = 20 мм.
Dmin =
20+(-0,052) =19,948 мм.
ТD = 0-(-0,052) = 0,052 мм.
Шпонка Ø 20 h9
dmax =
20+0 = 20 мм.
dmin =
20+(-0,052) =19,948 мм.
Td =
0-(-0,052) = 0,052 мм.
Расчет характеристик посадки
Наибольший натяг определяется по формуле (11):
Nmax =
0-(-0,052) = 0,052 мм.
Максимальный зазор определяется по формуле (7):
Smax =
0-(-0,052) = 0,052 мм.
Расчет предельных размеров и допусков паза втулки ведется по формулам
(1),(2),(3):
Паз втулки 20 N9
Dmax =
20+0,026 = 20,026 мм.
Dmin =
20+(-0,026) =19,974 мм.
ТD = 0-(-0,052) = 0,052 мм.
Расчет характеристик посадки
Наибольший натяг определяется по формуле (11):
Nmax =
0,026-(-0,052) = 0,078 мм.
Максимальный зазор определяется по формуле (7):
Smax =
0-(-0,026) = 0,026 мм.
2.4
Обоснование выбора шлицевых соединений
В данной курсовой работе шлицевое соединение представлено соединением
ведомого вала поз. 1 с электродвигателем. Соединение неподвижное, соосность
элементов соединения высокая. Выбирается способ центрирования по наружному
диаметру D:
D-8x52x60Н7/js6x10F8/js7.
Посадка обеспечивает центрирование по наружному диаметру D, гарантирует
зазор по внутреннему диаметру и боковым сторонам зубьев для обеспечения
собираемости соединения.
В сборочном чертеже планетарного редуктора обозначено шлицевое соединение
с центрирование по наружному диаметру D для вала:
D-8x52x60js6x10js7.
2.5 Расчет
характеристик посадок подшипникового узла
Таблица 3
|
Обозначение на чертеже
|
Обоснование
|
|
1
|
2
|
|
Æ55 L6/k6
|
К работе планетарного редуктора предъявляются следующие
требования: плавность хода, точность, вращение без вибраций, бесшумность
работы передач, поэтому выбираются шариковые радиальные однорядные подшипники
6-го класса точности. Соединение: внутреннее кольцо и вал. Вид нагружения -
циркулярное, кольцо должно вращаться вместе с валом и не должно перемещаться
по нему в осевом направлении. Назначается посадка с гарантированным натягом.
ГОСТ 520-2011.
|
|
Æ100 Н7/l6
|
Соединение: наружное кольцо и корпус. Функциональная
посадка в системе отверстия. Вид нагружения - местное. Во избежании
заклинивания кольца в корпусе допускается периодический незначительный
проворот кольца. Назначается посадка с минимальным «нулевым» зазором,
подвижная. ГОСТ 520-2011.
|
Согласно ГОСТ 8338-75 подшипник 211: d = 55 мм, D =
100 мм, B=21 мм.
Соединение вал - внутреннее кольцо подшипника Ø 55 L6/ k6
|
Отверстие Ø 55 L6
|
Вал Ø 55 k6
|
|
Верхнее
|
ES = 0 мкм
|
es = +21 мкм
|
|
Нижнее
|
EI = -12 мкм
|
ei = +2 мкм
|
Рисунок 6 - Схема полей допусков Ø 55 L6/ k6
Расчет предельных размеров и допусков ведется по формулам
(1),(2),(3),(4),(5),(6):
Отверстие Ø 55 L6
Dmax =
55+0 = 55 мм.
Dmin =
55+(-0,012) =54,988 мм.
ТD = 0-(-0,012) = 0,012 мм.
Вал Ø 55 k6
dmax =
55+0,021 = 55,021 мм.
dmin =
55+0,002 =55,002 мм.
Td =
0,021-0,002 = 0,019 мм.
Расчет характеристик посадки
Наибольший натяг определяется по формуле (11):
Nmax =
0,021-(-0,012) = 0,033 мм
Наименьший натяг:
Nmin =
dmin - Dmax (13)
Nmin =
55,002-55 = 0,002 мм.
Допуск посадки, по формуле (12):
TN =
0,033-0,002 = 0,031 мм.
Соединение наружное кольцо подшипника - корпус редуктора Ø 100 H7/l6
|
Отверстие Ø 100 H7 Вал Ø 100 l6
|
|
|
|
Верхнее
|
ES = 35 мкм
|
es = 0
|
|
Нижнее
|
EI = 0 мкм
|
ei = -13 мкм
|
Рисунок 7 - Схема полей допусков Ø 100 H7/l6
Расчет предельных размеров и допусков ведется по формулам
(1),(2),(3),(4),(5),(6):
Отверстие Ø 100 H7
Dmax =
100+0,035 = 100,035 мм.
Dmin
=100+0 =100 мм.
ТD =0,035-0 = 0,035 мм.
Вал Ø 100 l6
dmax =
100+0 = 100 мм.
dmin =
100+(-0,013) = 99,987 мм.
Td =
0-(-0,013) = 0,013 мм.
Расчет характеристик посадки
Максимальный зазор определяется по формуле (7):
Smax =
0,035-(-0,013) = 0,048 мм.
Минимальный зазор определяется по формуле (8):
Smin =
0 мм.
Средний зазор определяется по формуле (9):
Sср =
(0,048 + 0) / 2 = 0,024 мм.
Допуск посадки, по формуле (10):
TN =
0,013+0,035 = 0,048 мм.
2.6 Выбор и
обоснование степени точности зубчатых колес узла
Зубчатые передачи рассматриваемого планетарного редуктора относятся к
передачам общего назначения, не требующих особой точности.
Редуктор применяется в металлорежущем станке с допускаемой окружной
скоростью до 10 м/с для нереверсивной передачи, в связи с чем в соответствии с
ГОСТ 1643-81 назначается 8-ая степень точности.
Вид сопряжения, который определяет величину бокового зазора в зубчатой
передаче, должен обеспечивать свободное размещение смазки в месте контакта
зубьев, отчасти компенсировать неточность изготовления зубчатых колес,
обеспечивать компенсацию погрешности сборки, и компенсировать изменение
размеров зубчатых колёс в результате колебаний температуры. Назначаем вид
сопряжения с нормальным зазором - В.
По ГОСТ 1643-81 степень точности зубчатых колес имеет следующее обозначение:
- B ГОСТ 1643-81.
2.7 Расчет
системы гладких калибров
Исходные данные для расчетов берутся по ГОСТ 24853-81 для номинального
размера 70 мм в соответствии с применяемым квалитетом.
Расчет гладкого калибра-пробки
Рисунок 8 - схема полей допусков калибра-пробки отверстия Ø 70 Н7
Проходная сторона
Наибольший размер проходной стороны рабочего калибра:
Р-ПРmax = Dmin + Z +H/2 (14)
Р-ПРmax = 70+0,004+0,005/2 = 70,0065 мм.
Наименьший размер проходной стороны рабочего калибра:
Р-ПРmin = Dmin + Z - H/2(15)
Р-ПРmin = 70+0,004-0,005/2 = 70,0015 мм.
Размер изношенной проходной стороны рабочего калибра:
Р-ПРизн = Dmin -Y (16)
Р-ПРизн = 70-0,003 = 69,997 мм.
Непроходная сторона
Наибольший размер непроходной стороны рабочего калибра:
Р-НЕmax = Dmax +H/2
(17)
Р-НЕmax = 70,03+0,005/2 = 70,0325 мм.
Наименьший размер непроходной стороны рабочего калибра:
Р-НЕmin = Dmax -H/2(18)
Р-НЕmin = 70,03+0,005/2 = 70,0275 мм.
Исполнительные размеры рабочего калибра-пробки
Р-ПРисп: Ø 70,0065 -0,005
Р-НЕисп: Ø 70,0325 -0,005
Расчет калибра-скобы
Рисунок 13 - Схема полей допусков калибра-скобы вала Ø 70 k6
Проходная сторона
Наибольший размер проходной стороны рабочего калибра:
Р-ПРmax = dmax - Z1 + H1/2(19)
Р-ПР = 70,021-0,004 +0,005/2= 70,0195 мм.
Наименьший размер проходной стороны рабочего калибра:
Р-ПРmin = dmax - Z1 - H1/2 (20)
Р-ПРmin = 70,021-0,004 -0,005/2= 70,0145 мм.
Проходная изношенная сторона
Размер изношенной проходной стороны рабочего калибра:
Р-ПРизн = dmax +Y1 (21)
Р-ПРизн = 70,021+0,003 = 70,024 мм.
Непроходная сторона
Наибольший размер непроходной стороны рабочего калибра:
Р-НЕmax = НЕmin = dmin +
H1/2 (22)
Р-НЕmax = 70,002+0,005/2 = 70,0045 мм.
Наименьший размер непроходной стороны рабочего калибра:
Р-НЕmin = dmin - H1/2
(23)
Р-НЕmin = 70,002-0,005/2 = 69,9995 мм.
Исполнительные размеры калибра-скобы
Р-ПРисп: Ø 70,0145+0,005
Р-НЕисп: Ø 69,9995+0,005
Исполнительные размеры контрольных калибров
Наибольший размер изношенной стороны контрольного калибра:
К- ПРизн max = dmax +Y1 +Hр/2
(24)
К- ПРизн max =
70,021+0,003+0,002/2 = 70,025 мм.
Наибольший размер проходной стороны контрольного калибра:
К- ПР max = dmax - Z1 +Hр/2 (25)
К- ПР max = 70,021-0,004 +0,002/2 = 70,018 мм.
Наибольший размер непроходной стороны контрольного калибра:
К- НЕmax = dmin +Hр/2
(26)
К- НЕmax = 70,002+0,002/2 = 70,003 мм.
Наименьший размер изношенной стороны контрольного калибра:
К- ПРизн min = dmax +Y1 - Hр/2
(27)
К- ПРизн min =
70,021+0,003-0,002/2 = 70,023 мм.
Наименьший размер проходной стороны контрольного калибра:
К- ПР min = dmax - Z1 - Hр/2 (28)
К- ПР min = 70,021-0,004 -0,002/2 = 70,016 мм.
Наименьший размер непроходной стороны контрольного калибра:
К- НЕ min = dmin - Hр/2
(29)
К- НЕ min = 70,002-0,002/2 = 70,001 мм.
Исполнительные размеры контрольного калибра
К- ПР: Ø 70,018 -0,001
К- НЕ: Ø 70,003 -0,001
К- ПРизн min: Ø 70,025 -0,001
Для отверстия контрольные калибры не предусмотрены, так как рабочие калибры-пробки с высокой точностью можно измерить на
универсальных измерительных приборах.
Общий вид рабочих калибров представлен в приложении А.
2.8 Расчет
размерной цепи методом полной взаимозаменяемости

Рисунок 14
-
увеличивающее звено;
- увеличивающее звено;
-
уменьшающее звено;
- уменьшающее звено;
-
уменьшающее звено.
Номинальный
размер звена АД :
,
где
-увеличивающие размеры;
-
уменьшающие размеры.
;
АД
= (40+21)-(50+5+5) = 1 мм
Предельные
отклонения и допуск замыкающего звена:
АД
= АДmax - АД ;
ES АД = 1,35-1=
+ 0,35мм
EIАД = АДmin -
АД ;
EIАД = 0,65-1= -
0,35мм
TАД = ES АД
- EIАД;
TАД = 0,35-
(-0,35) = 0,7 мм
Величина
допуска каждого составляющего размера :
,
где
- число единиц допуска
размера;
-
единица допуска.
- средний
геометрический размер для интервала диаметров (таблица 5, ГОСТ 25346-89)
Определяется
соответствующая единица допуска для каждого размера:
i1 = i3 =
1,56
i2 = i5 =
0,73
i4 = 1,3
Среднее
число единиц допуска:
,
где
- число размеров (звеньев),

= 119,05
мкм
Полученное
число единиц находится между 11 и 12 квалитетами точности (ГОСТ 25346-89).
Размер А1 принимаем как корректируемый.
Значения
допусков для размеров (таблица 1, ГОСТ 25346-89):
Допуски
размеров
и
- 11
квалитет.
ТА2=0,075
мм
ТА5=0,075
мм
Допуски
размеров
и
- 12
квалитет.
ТА3=0,25мм
ТА4=0,21
мм
Допуск
корректирующего звена:
TA1 = 0,7-
(0,25+0,21+0,075+0,075) = 0,09 мм - 9 и 10 квалитет точности.
Для
коррекции А4 - 11 квалитет:
ТА4=0,13
мм
TA1 = 0,7-
(0,25+0,13+0,075+0,075) = 0,17 мм - 11 квалитет точности.
Увеличивающие
звенья - симметричные отклонения:
А3
= 40±0,0125мм
А4
= 21±0,065 мм
Уменьшающие
звенья - отрицательные:
А2
= А5 = 5-0,075 мм
Предельные
отклонения корректирующего звена:
Проверка:
Схема
размерной цепи:
Рисунок
15
3. Выбор измерительных приборов
Для контроля размеров Ø70Н7 - отверстие зубчатого колеса и Ø70k6 - диаметр вала проводится выбор измерительных приборов по
РД 50-98-86.
Выбор измерительного прибора для контроля отверстия Ø70Н7.
По допуску на размер в соответствии с требованиями ГОСТ 8.051
"Погрешности, допускаемые при измерении линейных размеров до 500 мм"
и согласно таблице VII РД 50-98-86 определяется наибольшая
допускаемая погрешность измерения: д = 9 мкм.
Погрешность измерения прибора не должна превышать допустимую погрешность.
Исходя из этого, можно использовать следующие приборы (данные таблицы II РД 50-98-86): нутромеры индикаторные; нутромеры
индикаторные (НИ) с заменой отсчётного устройства измерительной головкой (ИГ) с
ценой деления 0,001 или 0,002 мм; пневматические пробки с отсчётным прибором с
ценой деления 1 мкм и 0,5 мкм с настройкой по установочным кольцам; микроскопы
универсальные измерительные с использованием штриховой головки.
При этом значительное превышение точностных
возможностей измерительного прибора нецелесообразно из-за повышения их
стоимости и трудоемкости измерения.
При выборе измерительного прибора так же необходимо учесть
шероховатость измеряемой поверхности и серийность производства измеряемого
изделия.
Учитывая вышеизложенное, выбираем измерительный прибор для
контроля отверстия: нутромер индикаторный НИ 50 - 100 - 1 ГОСТ 868-82 с ценой
деления отсчётного устройства 0,01 мм (Приложение РД 50-98-86).
Выбор измерительного прибора для контроля вала Ø70k6.
Для контроля вала выбираем измерительный прибор аналогично
описанной выше методике (по таблицам II, V, VI РД 50-98-86).
Наибольшая допускаемая погрешность измерения: д = 5 мкм
Выбирается: Микрометр МР 75 ГОСТ 4381-87 с ценой деления
0,002 мм.
ЗАКЛЮЧЕНИЕ
В данной курсовой работе на примере конструкции планетарного редуктора
был рассмотрен метод взаимозаменяемости, который дает возможность без
дополнительной обработки или подгонки соединять отдельно выполненные детали во
время сборки или при замене поврежденных или вышедших из строя в процессе
эксплуатации деталей с сохранением заданного качества изделия.
Были проведены расчеты посадок цилиндрического, резьбового, шпоночного
соединений. Так же были рассчитаны исполнительные размеры калибров и скоб для
измерения точности посадочных поверхностей.
Подобранные значения допусков и посадок позволяют произвести сборку
планетарного редуктора наиболее рационально и качественно.
Библиографический список
1. ГОСТ 25346-89. Основные нормы взаимозаменяемости.
Единая система допусков и посадок. Общие положения, ряды допусков и основных
отклонений.
2. ГОСТ 25347-82. Основные нормы взаимозаменяемости.
Единая система допусков и посадок. Поля допусков и рекомендуемые посадки.
. Анухин В.И. Допуски и посадки. Выбор и расчет,
указание на чертежах. Учебн. пособие 2-е изд., перераб. и доп. СПб. : Изд-во
СПбГТУ, 2001.219 с.
. ГОСТ 24705-81. Резьба метрическая. Основные размеры.
. ГОСТ 9150-2002. Резьба метрическая. Профиль.
. ГОСТ 16093-2004. Резьба метрическая. Допуски.
Посадки с зазором.
. ГОСТ 23360-78. Основные нормы взаимозаменяемости.
Соединения шпоночные с призматическими шпонками. Размеры шпонок и сечений
пазов. Допуски и посадки.
. ГОСТ 1139-80. Основные нормы взаимозаменяемости.
Соединения шлицевые прямобочные. Размеры и допуски.
. ГОСТ 520-2002. Подшипники качения. Общие технические
условия.
. ГОСТ 8338-75. Подшипники шариковые радиальные
однорядные.
. ГОСТ 1643-81. Основные нормы взаимозаменяемости.
Передачи зубчатые цилиндрические. Допуски.
. ГОСТ 24853-81. Калибры гладкие для размеров до 500
мм. Допуски.
. Методические указания. РД 50-98-86.
ПриложениЕ
Двухсторонняя калибр-пробка для контроля отверстия Ø 70 H7
Калибр-скоба для контроля вала Ø 70 k6