Гидравлический расчет и исследование сифонного слива для нефтепродукта

  • Вид работы:
    Контрольная работа
  • Предмет:
    Другое
  • Язык:
    Русский
    ,
    Формат файла:
    MS Word
    78,51 Кб
  • Опубликовано:
    2014-09-10
Вы можете узнать стоимость помощи в написании студенческой работы.
Помощь в написании работы, которую точно примут!

Гидравлический расчет и исследование сифонного слива для нефтепродукта

РОССИЙСКИЙ ГОСУДАРСТВЕННЫЙ УНИВЕРСИТЕТ НЕФТИ и ГАЗА им. И.М. Губкина

Факультет разработки нефтяных и газовых месторождений

Кафедра нефтегазовой и подземной гидромеханики










Контрольная работа

по курсу «Гидравлика»

«ГИДРВАЛИЧЕСКИЙ РАСЧЕТ И ИССЛЕДОВАНИЕ СИФОННОГО СЛИВА ДЛЯ НЕФТЕПРОДУКТА»

научный руководитель, Н.М. Дмитриев

студент Ле Ван Лам





Москва,2014

Содержание

1. Теоретическая часть

. Расчетная часть

2.1 Определение расхода жидкости через сифонный слив и проверка его работоспособности при заданных условиях перекачки

.2 Исследование возможности увеличения расхода жидкости путем изменения ее температуры или диаметра i-го участка

Заключение

Литература

Приложение

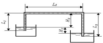
Исходные данные

Схема установки


В теоретической части приводятся и разъясняются основные понятия, уравнения и формулы применительно для расчета сложных трубопроводов и излагаются принципы расчета сифонных сливов. В расчетной части обосновывается последовательность действий при выполнении задания. Рассматривается метод и приводится расчет расхода в сифонном сливе и устанавливается его работоспособность при заданной температуре. Устанавливается возможность и желательность подогрева жидкости и указываются пути определения оптимальной ее температуры для получения максимального расхода. Исследуется также расход жидкости в заданных по условию пределах. Приводятся результаты расчетов и графики зависимости потерь от расхода h = h(Q) и расхода от вязкости Q = Q(n).

Длины линий: L1=5 м, L2=30 м, L3=15 м.

Диаметры линий: d1=80 мм, d2=80 мм, d3=100 мм.

Δ, мм

ρ, кг/м3

H1, м

H2, м

T, ̊ C

pатм кПа

0,08

715

1

3

20

105


Возможные границы изменения диаграмма участка: 50-150 мм.

Эквивалентная длина местных сопротивлений: 15%

Вид жидкости: бензин.

Номер участка, с изменяемым диаметром: 2.

Введение

Сифоном называется трубопровод, соединяющий два резервуара, в которых жидкость находится на разных уровнях.

Если соединительно (сифонную) трубу заполнить жидкостью, то начнется движение жидкости из резервуара с более высоким уровнем жидкости в резервуар с более низким уровнем жидкости. Сифон относится к категории простых трубопроводов, поскольку, как правило, он не имеет ответвлений и параллельных участков. Сифоны используется для верхнего слива жидкости из железнодорожных цистерн, опорожнения водоемов, применяются при прокладке возвышенности. Сифонные трубопроводы используются при подаче воды во многих инженерных сооружениях.

1. Теоретическая часть

Сложные трубопроводы

Параллельное соединение



Определить расхода по потерям напора


Последовательное соединение.


Уравнение Бернулли имеет вид:


где v1 и v2 - средние скорости жидкости в начальном и конечном сечениях трубопровода, а суммарные потери напора hA-B определяются формулой:


Q= Q1 = Q2 =……= Qn.

Определение расхода по потерям напора:


Коэффициент гидравлического сопротивления.

Потери hτ напора на трение при течении жидкости в трубах определяются формулой Дарси - Вейсбаха.


в которой λ = λ(Re,ε) - коэффициент гидравлического сопротивления,

ε = Δ/d - относительная шероховатость.

Δ - средняя шероховатость.

Ламинарный режим: Re<2320

λ=64/Re

Турбулентный режим:

а) 2320< Re < 10 d/Δ : зона гидравлических гладких труб


б) 10 d/Δ < Re < 500 d/Δ : зона шероховатых труб


в) Re > 500 d/Δ - зона квадратичная λ = λ(ε)


Основы гидравлического расчета сифонных сливов.


Рассмотрим простейшую схему сифона. Выбирая контрольные сечения A - A и B - B, совпадающие со свободными поверхностями жидкости в каждом из резервуаров, запишем уравнение Бернулли:

 (1)

Это уравнение упрощается, если принять во внимание следующие обстоятельства. Давление pA и pB равны между собой и равны атмосферному давлению pa. Если сифонная труба соединяет два резервуара, площадь свободных поверхностей которых намного больше, чем площадь сечения трубы, то в уравнении (1) можно пренебречь скоростными напорами по причине их малости. Действительно, в силу уравнения неразрывности имеет место равенства расходов жидкости:


где SA и SB - площади свободных поверхностей жидкости в резервуарах, а Sтр - площадь сечения трубопровода, следовательно, отношения скоростей жидкости обратно пропорциональны площадям поверхностей, через которые она течет. Поскольку SA и SB много больше, чем Sтр , то скорости vA и vB жидкости в резервуарах много меньше скорости v жидкости в соединительном трубопроводе. Следовательно, можно принять, основные потери напора между сечениями A - A и В - В имеют место только в сифонной трубе. С учетом этих обстоятельств уравнение Бернулли (1) сводится к простому уравнению

zA - zB = hA-B (2)

или, если обозначить разность zA - zB уровней жидкости в резервуарах через Н1, то получим уравнение:

H1= hA-B (3)

Для того чтобы сифон работал, давление жидкости, текущей в сифоне, во всех его сечениях больше давления рнп насыщенных паров, а в противном случае жидкость вскипит, и ее непрерывный столб в сифонном трубопроводе разорвется.

гидравлический сифонный слив трубопровод

2. Расчетная часть

.1 Определение расхода жидкости через сифонный слив и проверка его работоспособности при заданных условиях перекачки


Составим уравнение Бернулли для уровней жидкости в резервуарах:

 (4)

Решим задачу графоаналитическим способом. Задаем рядом значений Q и определяем соответствующие им величины hа-в.

По этим данным строиться график hA-B(Q), отложив на оси ординат которого известное значение H1=1 м, на оси абсцисс находят соответствующее ему искомое значение Q = 0,0064 м3/c = 6,4 дм3/c.

Проверим выполнение условия нормальной работы сифона.

«Опасным» сечением, где давление должно быть наименьшим, будет живое сечение в конце горизонтального участка слива как наиболее удаленное от начала движения из всех наиболее поднятых сечений. Уравнения Бернулли для сечений на поверхности жидкости в верхнем резервуаре и «опасного» сечения имеет вид

 (5)

 (6)

Определим величины α2 , hA-O входящие в уравнение (5):

 v1=4Q/(πd12) = 4.0,0064/(3,14.0,082)=1,27 (м/с)

v2=4Q/(πd22) = 4.0,0064/(3,14.0,082)=1,27 (м/с)

Re1= v1d1/ν =1,27.0,08/(0,6.10-6) = 1,7.105

Re2= v2d2/ν =1,27.0,08/(0,6.10-6) = 1,7.105

d1/Δ=10.0,08/(0,08.10-3)=104; 500d1/Δ=500.0,08/(0,08.10-3)=5.105

10d1/Δ< Re1<500d1/Δ; λ1=0,11.(68/Re1+ Δ/d1)0,25

=0,11/(68/(1,7.105)+0,08.10-3/0,08)0,25=0,0212;

d2/Δ=10.0,08/(0,08.10-3)=104; 500d2/Δ=500.0,08/(0,08.10-3)=5.105

10d2/Δ< Re1<500d2/Δ; λ2=0,11.(68/Re2+ Δ/d2)0,25

=0,11/(68/(1,7.105)+0,08.10-3/0,08)0,25=0,0212;

=> α2 = 1

A-O =h1+h2 = 0,13+0,75= 0,88 м

так как pоп >> pнп = 27 кПа , то сифонный слив работать будет.

2.2 Исследование возможности увеличения расхода жидкости путем изменения ее температуры или диаметра i-го участка

Изменение температуры.

вязкость многих жидкостей - воды, нефти, и почти всех нефтепродуктов зависит от температуры. При повышении температуры вязкость уменьшается, при понижении - увеличивается.

Заключение

Исследования сифонного слива для нефтепродукта помогают нам определить расход жидкости через сифонный слив и проверку его работоспособности при заданных условиях перекачки.

Для того чтобы сифон работал, давление жидкости, текущей в сифоне, во всех его сечениях больше давления насыщенных паров.

Для увеличения расхода жидкости мы можем увеличивать диаметры трубопровода и уменьшать вязкости путем нагревания жидкости.

Литература

1)      М.В. Лурье, И.М. Астрахан, В.В. Кадет - Гидравлика и ее приложения в нефтегазовом производстве.

)        И.М. Астрахан, В.Г. Иванников, В.В. Кадет, И.Н. Кочина, А.Е. Евгеньев, Г.Д. Розенберг - Сборник задач по гидравлике и газодинамике для нефтегазовых ВУЗов.

)        Е.Г. Разбегина, А.Р. Сумбатова - Прикладные задачи гидравлики.

Приложение

Зависимость упругости насыщенного пара авиабензина от температуры.

Зависимость кинематического коэффициента вязкости бензина Б-70 от температуры.

Похожие работы на - Гидравлический расчет и исследование сифонного слива для нефтепродукта

 

Не нашли материал для своей работы?
Поможем написать уникальную работу
Без плагиата!
Без нейросетей!