Внутрифабричный транспорт и сооружения
Министерство образования и науки
Российской Федерации
Федеральное Государственное бюджетное
образовательное
Учреждение высшего профессионального
образования
“Магнитогорский государственный
технический университет им. Г.И. Носова”
Кафедра обогащения полезных
ископаемых
Курсовая работа по дисциплине:
«Внутрифабричный транспорт и
сооружения»
Выполнил: ст. гр. ГФ-10
Абдиханов М.К.
Проверил: к. т. н.
Сединкина Н.А.
Магнитогорск, 2015
Содержание
Введение
1. Расчет
горизонтального загрузочного конвейера
1.1 Общие сведения о ленточных конвейерах и их проектировании
.2 Определение ширины ленты
.3 Определение сопротивлений на конвейере
.4 Определение натяжения в намеченных точках
.5 Определение числа прокладок ленты
.6 Определение стрелы провеса груженой ветви ленты между
роликовыми опорами и усилия на натяжном устройстве
.7 Определение мощности двигателя
.8 Определение передаточного числа редуктора
. Расчет горизонтального сборного конвейера
.1 Определение ширины ленты
.2 Определение сопротивлений на конвейере
.3 Определение натяжения в намеченных точках
.4 Определение числа прокладок ленты
.5 Определение стрелы провеса груженой ветви ленты между
роликовыми опорами и усилия на натяжном устройстве
.6 Определение мощности двигателя
.7 Определение передаточного числа редуктора
. Расчет наклонного ленточного конвейера
.1 Определение ширины ленты
.2 Определение сопротивлений на конвейере
.3 Определение натяжения в намеченных точках
.4 Определение числа прокладок ленты
.5 Определение стрелы провеса груженой ветви ленты между
роликовыми опорами и усилия на натяжном устройстве
.6 Определение мощности двигателя
.7 Определение передаточного числа редуктора
. Расчет аккумулирующих бункеров
Библиографический список
Введение
конвейер лента редуктор
Цель выполнения курсовой работы является закрепление и углубление знаний
по дисциплине «Внутрифабричный транспорт и сооружения» развитие навыков
самостоятельного решения технических вопросов на основании анализа
соответствующих литературных источников.
Объектом курсовой работы является транспортные устройства и бункерное
хозяйство обогатительных фабрик.
В курсовой работе производится: эксплуатационный расчет ленточных
конвейеров, входящих в заданную технологическую цепь; расчет вместимости,
геометрических и силовых параметров бункеров полезного ископаемого; выбор
стандартного оборудования по действующим каталогам и справочникам.
На обогатительных и брикетных фабриках различают внешний и
внутрифабричный транспорт. Транспортирование - это технологический процесс,
связанный с погрузкой, разгрузкой и перемещением грузов.
Средства внешнего транспорта используют для доставки исходного сырья на
фабрику с сырьевых баз - шахт или разрезов, отправки обогащенных углей или
брикетов потребителю и для удаления отходов фабрики в отвал.
Средства внутрифабричного транспорта предназначены для погрузки,
разгрузки и перемещения грузов в переделах цехов и отделений фабрики,
обеспечивают между ними транспортную связь.
Совокупность погрузочных и транспортных средств фабрики со средствами их
управления образует транспортную систему фабрики.
1. Расчет горизонтального загрузочного конвейера с тележкой
.1 Общие сведения о ленточных конвейерах и их проектировании
Ленточные конвейеры - наиболее производительный вид непрерывного транспорта,
используемый для транспортирования сыпучих и штучных грузов с различной
производительностью и скоростью движения конвейерной ленты. Расстояние
транспортирования ленточными конвейерами достигает нескольких километров, а их
трасса может иметь различную схему, что позволяет приспосабливать конвейеры к
условиям производства и местности.
Ленточный конвейер условно можно разбить на три
основные части: головную, среднюю и хвостовую. В качестве несущего
(транспортирующего) и тягового органа ленточного конвейера применяются
резинотканевые ленты с гладкой поверхностью. Верхняя ветвь ленты, в большинстве
случаев, имеет желобчатость за счет применения желобчатых роликоопор. Загрузка
верхней ветви ленты производится загрузочным устройством (или несколькими
устройствами), расположенным в хвостовой части ленточного конвейера. Разгрузка
ленточного конвейера чаще всего производится через приводной (головной)
барабан. В ряде случаев необходима промежуточная разгрузка ленточного конвейера
в средней его части, тогда применяется барабанная разгрузочная тележка или
плужковый сбрасыватель.
В движение конвейерная лента приводится фрикционным
приводом. Привод конвейера состоит из приводного барабана и приводного
механизма, соединенных между собой тихоходной муфтой. Приводной механизм
состоит из двигателя, редуктора и соединяющих их муфты, которые устанавливаются
на своей раме.
Конвейерная лента располагается на роликоопорах:
верхняя ветвь ленты на верхних (желобчатых или прямых), нижняя ветвь на нижних
прямых.
Обеспечение фрикционной связи приводного барабана с
лентой осуществляется путем натяжения ленты натяжным устройством. Натяжные
устройства могут быть винтовые, тележечные и вертикальные. Кроме того, на
ленточном конвейере имеются средства автоматизации его работы: центрирующие
роликоопоры, устройства против схода и пореза ленты и др.
Приводной барабан и натяжное устройство
устанавливаются на свои опоры, а роликоопоры на секции, которые сами
устанавливаются на стойки средней части. В ряде случаев, целесообразно нижнюю
ветвь ленты поддерживать прямыми верхними роликоопорами, которые
устанавливаются на стойках с кронштейном.
.2 Определение ширины ленты
Исходные данные:
Материал: медная-цинковая руда, рядовая;
Производительность ленточного конвейера Q = 234 т/ч;
Наибольший допускаемый угол наклона конвейера β
=18 ͦ;
Угол естественного откоса груза в покое ρ ͦ =
30-50 ͦ;
Насыпная плотность груза γ = 1,9 т/м³;
Крупность максимального куска amax =10 мм;
Длина конвейера
= 58 м.
Производим расчет:
Ширина
ленты
, м
где
скорость перемещения ленты, м/с;
.
В=
Выбираем
ближайшую ширину ленты, она составит 650 мм, Б - 820.
Проверка
ширины ленты по кусковатости:
В=
2аmax+200=2*10+200=220 мм,
где
- максимальный размер куска, мм.
В
=
Выбираем
ближайшую ширину ленты, она составит 500 мм, Б -820.
Останавливаемся
на выборе ленты шириной 650 мм.
1.3 Определение сопротивлений на конвейере
Предварительно определим некоторые величины, необходимые для этого
расчета.
Погонная
нагрузка ленты
кг/м
Погонный
вес ленты
, кг/м
,
где
- толщина прокладки в зависимости от типа применяемой
ткани (прил., табл.5);
-толщина
верхней и нижней обкладок конвейерных лент, мм (прил., табл.6).
Диаметр
роликов
=108 мм, выбирается исходя из ширины ленты равной 650
мм, вес вращающихся частей трехроликовой опоры рабочей
и порожней ветви
ленты
(прил., табл.8). Также принимаем расстояние между роликами рабочей ветви
и холостой ветви
(прил.,
табл. 9).
Погонный
вес роликов рабочей ветви
, кг/м и холостой ветви
, кг/м:
Рис. 1. Схема трассы к расчету ленточного горизонтального конвейера
Т.о. нумеруем точки 1, 2, 3, 4, 5, 6 на контуре ленты (рис. 3), начиная с
точки схода ленты с приводного барабана. При определении сопротивлений на
груженой ветви будем считать, что разгрузочное устройство занимает крайнее
правое положение.
Сопротивление
на горизонтальном участке 1-2 порожней ветви ленты
, кг
где
- коэффициент сопротивления, принимаемый 0,03-0,04.
Сопротивление
на участке груженой ветви 3 - 4 порожней ветви
. кг
,
,
где
- длина разгрузочного устройства.
Сопротивление
на разгрузочном устройстве
(кг) на
участке 4 - 5 зависит от типа разгрузочного устройства:
где S’ - натяжение ленты перед тележкой,
кг;
GT - масса тележки, кг;
ω’т - коэффициент сопротивления движению ходовых колес.
1.4 Определение натяжения ленты в намеченных точках
Расчет оформляем в виде табл. 1.
Натяжение ленты в различных точках
Таблица 1
|
№ точек
|
Выражения для определения
натяжения
|
Расчет
|
Числовое значение
натяжения, кг
|
|
1
|
2
|
3
|
4
|
1 2 3 4 5 6 S1 S2= S1+W1-2 S3=
1,05S2 S4= S3+ W3-4 S5=
S4+ W4-5 S5
S6S1
S2= S1+453=1,05(S1+45)=1,05S₁ + 47
S4=1,05S1+47+139=1,05S₁ +1865=1,05S1+186+155=1,05S₁ +3416=1,05S₁ + 341300
В этой таблице заполняются сначала графы 1, 2, и 3, где наряду с
буквенными обозначениями натяжений ленты вписываются и полученные расчетом
числовые значения сопротивлений на отдельных участках конвейера. В итоге в
конце графы 3 получаем уравнение
Из
условия отсутствия скольжения ленты по барабану должно быть:
Примем
однобарабанный привод с углом обхвата a = 2100;
барабан без футеровки, атмосфера сухая;
= 0,3,
Тогда
Решая
совместно уравнения, находим S1 = 254
кг; принимаем S1 » 300 кг Вписываем
это значение S1 в первую
строку графы 4 расчетной табл. 1.
На
основании полученных данных строим диаграмму натяжения ленты (рис. 2).
Рис.
2. Диаграмма натяжения ленты
1.5 Определение числа прокладок ленты
По найденному максимальному натяжению ленты Sмакс = S6 определяем число прокладок ленты

,
где
- число прокладок ленты, см;
- ширина
ленты, см;
- предел
прочности на разрыв одного погонного сантиметра ширины одной прокладки (табл.
3).
Приняв
запас прочности ленты m = 10, а предел прочности на разрыв прокладок (из
бельтинга 820)
= 55 кг/см, получаем при Sмакс = S6 = 703
кг.
,
Принимаем
i = 3.
Число
прокладок было предварительно принято 7. Пересчета сил сопротивления и
натяжений ленты в связи с этим не производим, так как разница в окончательных
результатах расчета невелика, что не имеет практического значения.
.6
Определение стрелы провеса груженой ветви ленты между роликовыми опорами и
усилия на натяжном устройстве
Максимальная
стрела провеса груженой ветви ленты на участке с наименьшим натяжением вблизи
точки 4 с учетом угла наклона b
Здесь
Следовательно,
Отношение

,
что
не превышает рекомендуемых норм, по которым это отношение должно быть не более
0,025 - 0,03.
Усилие
на натяжном устройстве
, кг
1.7 Определение мощности двигателя
Тяговое усилие
Сопротивление
на приводном барабане
Следовательно,
Мощность
двигателя:
, кВт,
где
ήм - к.п.д.
редуктора.
Обычно
применяют двухступенчатые редукторы с цилиндрическими колесами.
При
к. п. д. одной пары 0,97 получаем общий к. п. д. редуктора
= 0,972 = 0,94.
Тогда
Принимаем
асинхронный электродвигатель типа 4A132М4У3 мощностью 11 кВт с числом оборотов
в минуту nдв = 1500.
1.8
Определение передаточного числа и выбор редуктора
Диаметр
приводного барабана D, мм (табл. 11).
или
Останавливаемся
на диаметре приводного барабана D = 500 мм.
Число
оборотов барабана
, об/мин
Передаточное
число редуктора
Мощность
на валу приводного барабана конвейера
, кВт
Мощность
редуктора
, кВт
где
в данном случае
.
Тогда
Останавливаемся
на редукторе типа ЦДШ-500 с передаточным числом 20,49. Этот редуктор имеет
передаточное число несколько меньше, чем расчетное, поэтому скорость движения
ленты будет несколько больше принятой в расчете, а именно:
т.
е. находится в пределах точности практических расчетов. Поэтому соответствующих
пересчетов не производим.
. Расчет горизонтального сборного конвейера
Рис.3. Горизонтальный конвейер
Исходные данные:
Материал: медная-цинковая руда, рядовая;
Производительность ленточного конвейера Q = 198 т/ч;
Наибольший допускаемый угол наклона конвейера β
=18 ͦ;
Угол естественного откоса груза в покое ρ ͦ =
30-50 ͦ;
Насыпная плотность груза γ = 1,9 т/м³;
Крупность максимального куска amax =10 мм.
Длина конвейера
= 58 м.
2.1 Определение ширины ленты
Ширина
ленты
, м
где
скорость перемещения ленты, м/с;
-
насыпная плотность материала, т/м3;
.
В=
Проверка
ширины ленты по кусковатости:
В=
2аmax+200=2*10+200=220 мм,
где
- максимальный размер куска, мм.
В=
Выбираем
ближайшую ширину ленты, она составит 500 мм, Б -820.
Останавливаемся
на выборе желобчатой ленты шириной 650 мм.
2.2 Определение сопротивлений на конвейере
Предварительно определим некоторые величины, необходимые для этого
расчета.
Погонная
нагрузка ленты
кг/м
Погонный
вес ленты
, кг/м
,
где
- толщина прокладки в зависимости от типа применяемой
ткани (прил., табл.5);
-толщина
верхней и нижней обкладок конвейерных лент, мм (прил., табл.6).
Диаметр
роликов
=108 мм, выбирается исходя из ширины ленты равной 650
мм, вес вращающихся частей трехроликовой опоры рабочей
и порожней ветви
ленты
(прил., табл.8). Также принимаем расстояние между роликами рабочей ветви
и холостой ветви
(прил.,
табл. 9).
Погонный
вес роликов рабочей ветви
, кг/м и холостой ветви
, кг/м:
Сброс материала происходит через барабан.
Сопротивления
на участке порожней ветви ленты
, кг
где
- коэффициент сопротивления.
Сопротивление
на участке груженой ветви
. кг
.
.3 Определение натяжения ленты в намеченных точках
Расчет оформляем в виде табл. 2.
Таблица 2 Натяжение ленты в различных точках
|
№ точек
|
Выражения для определения
натяжения
|
Расчет
|
Числовое значение
натяжения, кг
|
|
1
|
2
|
3
|
4
|
|
1 2 3 4
|
S1 S2= S1+W1-2 S3= 1,05S2
S4=S3+ W3-4
|
S1 S2= S1+43 S3=1,05(S1+43)
=1,05S1+45 S4=1,05S1+45+102=1,05S1+147
|
300 343 360 462
|
В этой таблице заполняются сначала графы 1, 2, и 3, где наряду с
буквенными обозначениями натяжений ленты вписываются и полученные расчетом
числовые значения сопротивлений на отдельных участках конвейера. В итоге в
конце графы 3 получаем уравнение
Из
условия отсутствия скольжения ленты по барабану должно быть
Примем
однобарабанный привод с углом обхвата a = 2100;
барабан без футеровки, атмосфера сухая,
= 0,3,
Тогда
Решая
совместно уравнения, находим S1 =286,6
кг, принимаем S1 » 300 кг.
Вписываем
это значение S1 в первую
строку графы 4 расчетной табл. 2.
На
основании полученных данных строим диаграмму натяжения ленты (рис. 4).
Рис.
4. Диаграмма натяжения ленты
2.4 Определение числа прокладок ленты
По найденному максимальному натяжению ленты Sмакс = S4 = 462 кг определяем число прокладок
ленты
,
где
- число прокладок ленты, см;
- ширина
ленты, см;
- предел
прочности на разрыв одного погонного сантиметра ширины одной прокладки.
- запас
прочности, принимаемый.
Приняв
запас прочности ленты m = 10, а предел прочности на разрыв прокладок (из
бельтинга 820)
= 55 кг/см, получаем при Sмакс = S4 = 462
кг.
Принимаем
i = 3.
Пересчета
сил сопротивления и натяжений ленты в связи с этим не производим, так как
разница в окончательных результатах расчета невелика, что не имеет
практического значения.
2.5 Определение стрелы провеса груженой ветви ленты между
роликовыми опорами и усилия на натяжном устройстве
Максимальная стрела провеса груженой ветви ленты на участке с наименьшим
натяжением вблизи точки 4 с учетом угла наклона b
Здесь
Следовательно,
Отношение


Усилие
на винтовом натяжном устройстве
, кг
2.6 Определение мощности двигателя
Тяговое усилие
Сопротивление
на приводном барабане
Следовательно,
Мощность
двигателя:
, кВт,
где
ήм - к.п.д.
редуктора.
Обычно
применяют двухступенчатые редукторы с цилиндрическими колесами.
При
к. п. д. одной пары 0,97 получаем общий к. п. д. редуктора
= 0,972 = 0,94.
Тогда
Принимаем асинхронный электродвигатель типа 4А71А4УЗ мощностью 0,55 кВт с
числом оборотов в минуту nдв = 1500.
2.7 Определение передаточного числа и выбор редуктора
Диаметр приводного барабана D, мм
Останавливаемся
на диаметре приводного барабана D = 630 мм.
Число
оборотов барабана
, об/мин
Передаточное
число редуктора
Мощность
на валу приводного барабана конвейера
, кВт
Мощность
редуктора
, кВт
где
в данном случае
.
Тогда
Останавливаемся на редукторе типа ЦДШ-300 с передаточным числом 23,34.
Этот редуктор имеет передаточное число несколько больше, чем расчетное, поэтому
скорость движения ленты будет несколько больше принятой в расчете, а именно:
что
на 4 % отличается от расчетной (2 м/сек), т. е. находится в пределах точности
практических расчетов. Поэтому соответствующих пересчетов не производим.
. Расчет наклонного ленточного конвейера
.1 Определение ширины ленты
Рис.
5. Схема к расчету наклонного ленточного конвейера
Принимаем ширину ленты равной ширине ленты сборного конвейера В=0,65 м;
Определим длину конвейера:
,
где
Н - высота подъема материала, м
- угол
наклона, ͦ
3.2 Определим сопротивления на конвейере
Погонная
нагрузка ленты
кг/м
Погонный
вес ленты
, кг/м
Диаметр
роликов
=108 мм, выбирается исходя из ширины ленты равной 650
мм, вес вращающихся частей трехроликовой опоры рабочей
и порожней ветви
ленты
(прил., табл.8). Также принимаем расстояние между роликами рабочей ветви
и холостой ветви
(прил.,
табл. 9).
Погонный
вес роликов рабочей ветви
, кг/м и холостой ветви
, кг/м:
Сброс материала происходит через барабан.
Сопротивления
на участке порожней ветви ленты
, кг
где
- коэффициент сопротивления, принимаемый 0,03 - 0,04.
Сопротивление
на участке груженой ветви
, кг
.3 Определение натяжения ленты в намеченных точках
Расчет оформляем в виде табл. 3.
Таблица 3 Натяжение ленты в различных точках
|
№ точек
|
Выражения для определения
натяжения
|
Расчет
|
Числовое значение
натяжения, кг
|
|
1
|
2
|
3
|
4
|
|
1 2 3 4
|
S1 S2= S1+W1-2 S3= 1,05S2
S4=S3+ W3-4
|
550 353 370 1183
|
В этой таблице заполняются сначала графы 1, 2, и 3, где наряду с
буквенными обозначениями натяжений ленты вписываются и полученные расчетом
числовые значения сопротивлений на отдельных участках конвейера. В итоге в
конце графы 3 получаем уравнение
Из
условия отсутствия скольжения ленты по барабану должно быть
Примем
однобарабанный привод с углом обхвата a = 2100;
барабан без футеровки, атмосфера сухая,
= 0,3,
Тогда
Решая
совместно уравнения, находим S1 » 550 кг.
Вписываем
это значение S1 в первую
строку графы 4 расчетной табл. 3.
На
основании полученных данных строим диаграмму натяжения ленты (рис. 6).
Рис. 6. Диаграмма натяжения ленты
3.4 Определение числа прокладок ленты
По найденному максимальному натяжению ленты Sмакс = S4 определяем число прокладок ленты

,
где
- число прокладок ленты, см;
- ширина
ленты, см;
- предел
прочности на разрыв одного погонного сантиметра ширины одной прокладки.
- запас
прочности, принимаемый 0,03 - 0,04.
Приняв
запас прочности ленты m = 10, а предел прочности на разрыв прокладок (из
бельтинга 820)
= 55 кг/см, получаем при Sмакс = S4 = 1183
кг.
Принимаем
i = 5.
Пересчета
сил сопротивления и натяжений ленты в связи с этим не производим, так как
разница в окончательных результатах нет.
3.5 Определение стрелы провеса груженой ветви ленты между
роликовыми опорами и усилия на натяжном устройстве
Максимальная стрела провеса груженой ветви ленты на участке с наименьшим
натяжением вблизи точки 4 с учетом угла наклона b ͦ
Здесь
Следовательно,
Отношение

что не превышает рекомендуемых норм, по которым это отношение должно быть
не более 0,025 - 0,03.
Усилие
на винтовом натяжном устройстве винтового типа
, кг
.6 Определение мощности двигателя
Тяговое усилие
Сопротивление
на приводном барабане
Следовательно,
Мощность
двигателя:
, кВт,
где
ήм - к.п.д.
редуктора.
Обычно
применяют двухступенчатые редукторы с цилиндрическими колесами.
При
к. п. д. одной пары 0,97 получаем общий к. п. д. редуктора
= 0,972 = 0,94.
Тогда
Принимаем
асинхронный электродвигатель типа 4А90L6УЗ мощностью 1,5 кВт с числом
оборотов в минуту nдв = 1000.
3.7 Определение передаточного числа и выбор редуктора
Диаметр приводного барабана D, мм
Останавливаемся
на диаметре приводного барабана D = 800 мм.
Число
оборотов барабана
, об/мин
Передаточное
число редуктора
Мощность
на валу приводного барабана конвейера
, кВт
Мощность
редуктора
, кВт
где
в данном случае
.
Тогда
Останавливаемся на редукторе типа ЦДШ-350 с передаточным числом 20,49.
Этот редуктор имеет передаточное число несколько меньше, чем расчетное, поэтому
скорость движения ленты принимаем как в расчете (2 м/сек).
3.8 Проверка необходимости установки в приводном механизме
стопорного устройства, препятствующего самопроизвольному движению ленты вниз
при выключенном двигателе
Проверку произведем для случая заполнения грузом только наклонного
конвейера. Этот случай менее выгоден в смысле величины сопротивления обратному
ходу ленты; практически он вполне возможен.
Формула в данном случае имеет вид
Без ущерба для данного расчета можно принять
.
Тогда получим

55*17=935 кг (*)
и в правой 0,04[27,5*55+(58+55)(2*14,3+17,25+4,25)]=286,95 кг.
Неравенство (*) не соблюдено, следовательно, в приводе необходимо
предусмотреть стопорное устройство.
4. Расчет аккумулирующих бункеров
Бункеры представляют собой емкость большого объема с разгрузочными и
загрузочными отверстиями, перекрытыми задвижками. Бункеры предназначены для
приема, временного накапливания, хранения и подачи на транспортные средства
насыпных грузов для дальнейшей переработки. Бункеры загружаются через открытый
верх или загрузочные отверстия, разгружаются через отверстия в днище или внизу
боковых стенок. Продвижение груза по бункеру и истечение его через отверстие
происходит под действием силы тяжести.
Применение бункеров необходимо в том случае, если сопряженные в едином
производственном процессе, транспортные и технологические машины работают в
разных режимах по времени. Режим времени работы и производительность комплекса
транспортно-технологических машин определяет необходимые объем бункера для
накопления и хранения грузов.
Бункер состоит из 2 основных частей: верхней части, образованной
вертикальными стенками и нижней части, выполненной в виде воронки, стенки
которой обеспечивают самостоятельную разгрузку материала через люк.
Аккумулирующие бункера служат для хранения насыпных грузов, снабжены
устройствами для загрузки и разгрузки грузов, а также устройствами для
определения массы.
Производительность главного корпуса фабрики Q = 198 т/ч;
Аккумулирующие бункера устанавливаются между отдельными цехами фабрики
для компенсации различий в производительности, графике работы отдельных цехов,
для обеспечения независимой работы одного цеха от другого.
На практике установлено, что аккумулирующие бункера должны обеспечивать
работу главного корпуса на 36 часов работы цеха.
При производительности главного корпуса 198 т/ч, емкость бункеров
составит:
.
Бункер
состоит из
10 ячеек.
Так
как емкость бункеров составляет 7128 т, емкость одной ячейки составит:
Приступая
к определению размеров бункера, принимаем толщину стен (ориентировочно) 200мм.
Для
обеспечения полной самотечной выгрузки материала из бункера принимаем угол
наклона стенок пирамидальных воронок с облицовкой стальными плитами 45 - 50 ͦ
(для кусковатых материалов - угля и руды).
Для
наших условий принимаем
= 500 ,размеры выпускного отверстия
определяем размерами качающегося питателя производительностью 36 т/ч, а именно,
а
b =1,0
0,75 м.
Принятые
размеры выпускного отверстия удовлетворяют предъявляемым к ним требованиям в
отношении кусковатости руды. Выпускное отверстие должно иметь размеры до 4 - 5
раз, превышающие размеры максимальных кусков материала.
Заполнение
бункера производится методом одновременного заполнения всех бункеров путем
непрерывного реверсивного движения разгрузочной тележки над бункерами в оба
конца.
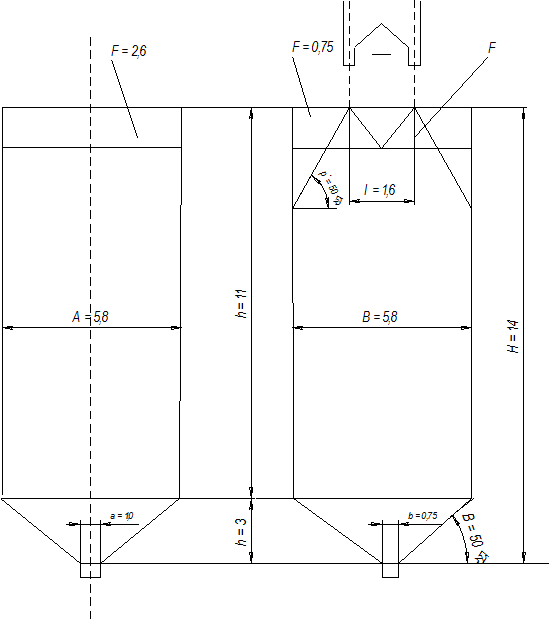
Расстояние
между осями загрузочных рукавов разгрузочной тележки
l = 1600 мм.
Объем
пирамидальной воронки бункера
, м3
где
A = B=
= 5,8 м -
длина и ширина ячейки бункера в плане (в свету)
Тогда
объем пирамидальной воронки бункера равен
При
заданной вместимости одной ячейки бункера (
= 712,8
т) полезный объем ее
,
а
полезный объем призматического корпуса бункера
.
На основании эпюры заполнения бункера (рис. 6) полезный объем корпуса
где
- площади поперечного сечения незаполненных пустот в
виде призм
Решая
уравнение относительно
получим:
Высота
бункера H =
= 3 + 11
= 14 м.
Геометрический
объем одной ячейки
Коэффициент
заполнения бункера
Рис. 7. Эпюра заполнения бункера
Библиографический список
1. Методические указания к практическим занятиям по
дисциплине ''Внутрифабричный транспорт и сооружения''.- Магнитогорск: МГТУ,
2013 г.
. Современная теория ленточных конвейеров горных
предприятий / В.И. Галкин, В.Г. Дмитриев, В.П. Дьяченко., - М.: Изд-во Моск.
гос. горного ун-та, 2005. - 543 с.
. Васильев Н.В.. Основы проектирования и расчеты
транспортных устройств и складов обогатительных фабрик.- М.: Недра, 1965.
. Зеленский О.В., Петров А.С. Справочник по
проектированию ленточных конвейеров. - М.: Недра, 1986.
. Интернет-ресурсы.