Базовая компоновка РТК на сверлильную операцию для обработки вала-шестерни в среднесерийном производстве
Содержание
Введение
.
Исходные данные для разработки РТК
.
Выбор основного оборудования
.
Выбор промышленного робота для РТК
.
Выбор вспомогательного оборудования для РТК
.
Анализ возможных вариантов компоновок РТК
.
Построение и расчет элементов траектории захватного устройства ПР
.
Расчет допустимых скоростей перемещения заготовки (детали)
.
Построение циклограммы функционирования РТК
.
Определение основных показателей РТК
Заключение
Список
использованной литературы
Введение
Прогрессивное развитие технологических процессов
в области технологии машиностроения должно проходить путем механизации и
автоматизации, обеспечивающих непрерывный рост производительности труда,
снижению себестоимости выпускаемой продукции и повышению ее качества.
Интенсивное развитие наиболее прогрессивных
областей техники вызывает частое обновление продукции. В последнее время
практически во всем мире появились тенденции увеличить разнообразие выпускаемых
изделий. А применение технологического оборудования с ЧПУ обеспечивает необходимую
гибкость производства изделий.
В настоящее время разнообразное технологическое
оборудование с ЧПУ и робототизированные технологические комплексы объединяют в
единые производственные комплексы с помощью транспортной и управляющей систем,
обеспечивающих функционирование этих комплексов в автоматическом режиме в
течении заданного интервала времени, и обладающих свойством автоматической
переналадки при производстве изделий произвольной номенклатуры в установленных
пределах. Эти комплексы называют ГПС.
Робототизированным технологическим комплексом
(РТК) называется совокупность промышленного робота, основного оборудования,
непосредственно выполняющего операции технологического процесса и
вспомогательного оборудования автономно функционирующая.
В данном курсовом проекте будет разрабатываться
базовая компоновка РТК на сверлильную операцию для обработки вала-шестерни в
среднесерийном производстве, позволяющая сократить время на выполнение операции
и повысить качество изготавливаемых деталей.
1. Исходные данные для разработки РТК
робототизированный технологический
комплекс захватное
К исходным данным относят:
рабочий чертеж детали;
рабочий чертеж заготовки;
годовой объем выпуска деталей (N=3600 шт.);
маршрутный технологический процесс.
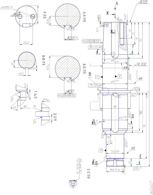
Деталь представлена на рисунке 2
Материал детали - сталь 45 ГОСТ 1050-88.
Твердость детали - 220…270HB.
Масса детали - 9 кг.
В соответствии с объемом выпуска, массой детали,
а также норм времени на каждую операцию принимаем среднесерийный тип
производства.
Для среднесерийного производства заготовку
экономически целесообразно получать штамповкой на КГШП, что повышает
коэффициент использования материала и уменьшает время на обработку, так как
заготовка наиболее приближена по форме и размерам к детали. Соответственно,
увеличивается производительность выпускаемой продукции и уменьшается ее
себестоимость.
Рисунок 1 - Рабочий чертеж заготовки
Рисунок 2 - Рабочий чертеж детали
Маршрутный технологический процесс обработки
детали приводим в таблице 1.
Таблица 1 - Маршрутный техпроцесс изготовления
вала-шестерни
|
№
операции
|
Наименование
и краткое содержание операции
|
Технический
эскиз
|
Режущий
инструмент
|
Модель
станка
|
|
1
|
2
|
3
|
4
|
5
|
|
05
|
Заготовительная
|
|
Штамп
|
КГШП
|
|
10
|
Фрезерно-центровальная
1 Фрезеровать две поверхности 1 одновременно 2 Сверлить два центровочных
отверстия 2 одновременно
|
|
Фреза
торцовая Ø160;
Т15К6
Сверло центровочное Ø6,3;
Р6М5
|
МР-75
|
|
15
|
Токарная
с ЧПУ 1 Точить начерно поверхности 1, 2, 3, 4,5 и фаски 2 Точить начисто
поверхности 2, 3 и фаски 3 Точить канавку 6 4 Точить резьбу7
|
|
Резец
проходной 16×25;
Т15К6
канавочный, резьбовой
|
16К20Ф3
|
|
20
|
Токарная
с ЧПУ 1 Точить начерно поверхности 1, 2, 3, и фаски 2 Точить начисто
поверхности 1, 2 и фаски
|
|
Резец
проходной 16×25;
Т15К6
|
16К20Ф3
|
|
25
|
Шлифовальная
с ЧПУ 1 Шлифовать поверхность 1
|
|
Круг
шлифовальный
|
3М151Ф2
|
|
30
|
Шлифовальная
с ЧПУ 1 Шлифовать поверхность 1
|
|
Круг
шлифовальный
|
3М151Ф2
|
|
35
|
Фрезерная
с ЧПУ 1 Фрезеровать паз 1,2 2 Фрезеровать паз 3
|
|
Фреза
концевая Ø20;
Р6М5
Ø8;
Р6М5
|
6Р13Ф3
|
|
40
|
Термическая
|
|
|
|
|
45
|
Сверлильная
с ЧПУ 1 Засверлить два отверстия1 последовательно 2 Сверлить два отверстия 2
последовательно 3 Зенковать в двух отверстиях фаску 3 последовательно 4
Нарезать резьбу 4 в двух отверстиях последовательно
|
|
Сверло
центровочное Ø4;
Р6М5;
Сверло спиральное Ø10;
Р6М5;
зенковка Р6М5; Метчик М12 Р6М5;
|
ГДВ500
|
|
50
|
Торце-круглошлифовальная
Установ А 1 Шлифовать поверхности 1,2,3 Установ Б Шлифовать поверхности 1,2
|
Установ
А Установ Б
|
Круг
шлифовальный
|
3Т160
|
|
55
|
Круглошлифовальная
1 Шлифовать поверхность 1
|
|
Круг
шлифовальный
|
3М153
|
|
60
|
Токарная
1 Накатывание поверхности 1 2 Полирование поверхности 2
|
|
Накатник;
Шкура полировальная тканевая 770*50 ГОСТ 6009-82
|
1К62
|
|
65
|
Контрольная
|
|
|
Стол
ОТК
|
. Выбор основного оборудования
В данном курсовом проекте необходимо выбрать
основное оборудование, которое входит в состав РТК. К такому оборудованию
относится оборудование, используемое непосредственно для выполнения операций
технологического процесса (металлорежущие станки, прессы, нагревательные печи и
т.д.).
Станки должны встраиваться в РТК без каких-либо
серьезных конструктивных изменений. Данным требованиям отвечают станки, имеющие
полностью автоматизированный цикл работы, в том числе переключение скоростей и
подач, а также устройства для автоматической смены инструмента. Также
необходимо учитывать и технологические возможности этих станков.
Станок модели 2206ВМФ4 полностью соответствует
заданным требованиям.
Основными характеристиками станка являются:
размеры рабочей поверхности стола - 630×800
мм;
наибольшая масса обрабатываемой заготовки - 800
кг;
программируемые перемещения по осям:- 630 мм;-
630 мм;- 800 мм.
точность позиционирования по осям:, Y - 0,012
мм;- 0,016 мм.
расстояние от оси шпинделя до рабочей
поверхности стола - 95…725 мм;
расстояние от торца шпинделя до центра стола -
165…795 мм;
вместимость инструментального магазина - 30;
время смены инструмента - 8 с;
частота вращения шпинделя - 31,5…2500 мин-1;
рабочие подачи по осям X, Y, Z - 1…4000 мм/мин;
скорость быстрых перемещений по осям X, Y, Z -
10000 мм/мин;
наибольшее усилие подачи по осям X, Y, Z - 15
кН;
мощность электродвигателя привода главного
движения - 11 кВт;
габаритные размеры:
длина - 3470 мм;
ширина - 3170 мм;
высота - 2930 мм.
масса- 12000 кг.
Разработаем подробный план сверлильной операции,
выполняемый на станке данной модели. План представим в виде эскиза (рисунок 3),
на котором показана последовательность выполнения сверлильной операции,
траектория движения рабочего инструмента. Основными линиями показана траектория
движения рабочего хода инструмента, а пунктиром показана траектория движения по
ускоренному перемещению, со скоростью быстрого движения.
На эскизе также представлено:
схему установа заготовки;
положение нуля детали;
положение нуля шпинделя;
опорные точки траектории движения режущего
инструмента;
положение исходной точки.
Координаты опорных точек, необходимые для
расчета элементов траектории, сводим в таблицу 2.
Рисунок 3 - Траекторию движения режущего
инструмента
Таблица 2 - Координата опорной точки
В миллиметрах
|
Номер
инструмента
|
Номер
опорной точки
|
Координата
опорной точки
|
|
|
X
|
Z
|
|
1
|
0
(И Т)
|
0
|
+60
|
|
1,
8
|
0
|
+3
|
|
2,
4
|
+20
|
+3
|
|
3
|
+20
|
-9
|
|
5,
7
|
-20
|
+3
|
|
6
|
-20
|
-9
|
|
2
|
0
(И Т)
|
0
|
+60
|
|
1,
8
|
0
|
+4
|
|
2,
4
|
+20
|
+4
|
|
3
|
+20
|
-28
|
|
5,
7
|
-20
|
+4
|
|
6
|
-20
|
-28
|
|
3
|
0
(И Т)
|
0
|
+60
|
|
1,
8
|
0
|
+3
|
|
2,
4
|
+20
|
+3
|
|
3
|
+20
|
-3
|
|
5,
7
|
-20
|
+3
|
|
6
|
-20
|
-3
|
|
4
|
0
(И Т)
|
0
|
+60
|
|
1,
8
|
0
|
+3
|
|
2,
4
|
+20
|
+3
|
|
3
|
+20
|
-18
|
|
5,
7
|
-20
|
+3
|
|
6
|
-20
|
-18
|
Назначаем режимы резания на сверлильную операцию
45:
Засверливание двух отверстий, сверление двух
отверстий Ø10, зенкование в
них фасок и нарезание резьбы М12. Станок 2206ВМФ4. Режущий инструмент: сверло
центровочное Ø4; Р6М5; сверло Ø10;
Р6М5; зенковка Р6М5; метчик М12; Р6М5.
Переход 1. Засверливание двух отверстий.
Определяем величину припуска
,(1)
где D - диаметр сверла, мм.
мм
Подачу принимаем S=0,06 мм/об [1, с.
381, таблица 35].
Определяем скорость резания
,(2)
где
- поправочный коэффициент [1, с.
383, таблица 38];
m, q, y - показатели степеней [1, с.
383, таблица 38];
Т - период стойкости, мин [1, с.
384, таблица 40];
Kv - общий поправочный коэффициент,
учитывающий фактические условия резания.
=
,(3)
где Кmv- коэффициент, учитывающий
качество обрабатываемого материала;
Кlv - коэффициент, учитывающий
глубину сверления [1, с. 385, таблица 41];
Кuv- коэффициент, учитывающий
материал инструмента [1, с. 361, таблица 6].

(4)
где Кг - коэффициент,
характеризующий группу стали по обрабатываемости [1, с. 359, таблица 2];
- предел прочности материала, МПа;
nv - показатель степени [1, с. 359,
таблица 2].
,
,
Определяем частоту вращения шпинделя
,(5)
мин-1
Принимаем n=2500 мин-1.
Определяем действительное значение
скорости резания
Определяем крутящий момент
,(6)
где
- поправочный коэффициент [1, с.
385, таблица 42];
q, y - показатели степеней [1, с.
385, таблица 42];
Kp - общий поправочный коэффициент,
учитывающий фактические условия резания.
,(7)
,
Н·м
Определяем мощность резания
,(8)
кВт
Определяем мощность электродвигателя
станка
Nдв =
кВт, (9)
гдеhст - коэффициент полезного действия станка;
Кп - коэффициент перегрузки.
Получившаяся мощность меньше мощности
главного привода станка равной 11 кВт.
Определяем минутную подачу
,(10)
мм/мин
Определяем основное время
,(11)
где L - длина резания, мм.
Определяем длину резания
,(12)
где y - величина врезания, мм.
мм,
мин
Переход 2. Сверление отверстия Ø10.
Определяем величину припуска
,
где D - диаметр сверла, мм.
мм
Подачу принимаем S=0,11 мм/об [1, с.
381, таблица 35].
Определяем скорость резания
,
где
- поправочный коэффициент [1, с.
383, таблица 38];, q, y - показатели степеней [1, с. 383, таблица 38];
Т - период стойкости, мин [1, с.
384, таблица 40];- общий поправочный коэффициент, учитывающий фактические
условия резания.
=
,
где Кmv- коэффициент, учитывающий
качество обрабатываемого материала;
Кlv - коэффициент, учитывающий
глубину сверления [1, с. 385, таблица 41];
Кuv- коэффициент, учитывающий
материал инструмента [1, с. 361, таблица 6].

где Кг - коэффициент,
характеризующий группу стали по обрабатываемости [1, с. 359, таблица 2];
nv - показатель степени [1, с. 359,
таблица 2].
,
,
Определяем частоту вращения шпинделя
,
мин-1
Принимаем n=1650 мин-1.
Определяем действительное значение
скорости резания
Определяем крутящий момент
,
где
- поправочный коэффициент [1, с.
385, таблица 42];
q, y - показатели степеней [1, с.
385, таблица 42];
Kp - общий поправочный коэффициент,
учитывающий фактические условия резания.
,
,
Н·м
Определяем мощность резания
,
кВт
Определяем мощность электродвигателя
станка
дв =
кВт,
Получившаяся мощность меньше
мощности главного привода.
Определяем минутную подачу
,
мм/мин
Определяем основное время
,
где L - длина резания, мм.
Определяем длину резания
,
мм,
мин
Переход 3. Зенкование фасок.
Припуск t=1,6 мм.
Подачу принимаем S=0,17 мм/об [1, с.
381, таблица 35].
Определяем скорость резания
,
где
- поправочный коэффициент [1, с.
383, таблица 39];
m, q, y, x - показатели степеней [1,
с. 383, таблица 39];

,
,
Определяем частоту вращения шпинделя
,
мин-1
Принимаем n=840 мин-1.
Определяем действительное значение
скорости резания
Определяем крутящий момент
,
x, q, y - показатели степеней [1, с.
385, таблица 42];
Kp - общий поправочный коэффициент,
учитывающий фактические условия резания.
,
,
Н·м
Определяем мощность резания
,
кВт
Определяем мощность электродвигателя
станка
дв =
кВт,
Получившаяся мощность меньше
мощности главного привода станка.
Определяем минутную подачу
,
мм/мин
Определяем основное время
Определяем длину резания
,
мм,
мин
Переход 4. Нарезание резьбы.
Подачу принимаем S=1,25 мм/об.
Определяем скорость резания
,
где
- поправочный коэффициент [1, с.
431, таблица 118];- номинальный диаметр резьбы, мм;, q, y - показатели степеней
[1, с. 431, таблица 118];
Т - период стойкости, мин [1, с.
431, таблица 118].
=
,(13)
где Кmv- коэффициент, учитывающий
качество обрабатываемого материала [1, с. 433, таблица 119];
Кtv - коэффициент, учитывающий
точность нарезаемой резьбы [1, с. 433, таблица 119];
Кuv- коэффициент, учитывающий
материал инструмента [1, с. 433, таблица 119].

,
Определяем частоту вращения шпинделя
,
мин-1
Принимаем n=405 мин-1.
Определяем действительное значение
скорости резания
Определяем крутящий момент
,(14)
где
- поправочный коэффициент [1, с.
433, таблица 120];, y - показатели степеней [1, с. 433, таблица 120];- шаг
резьбы, мм;- общий поправочный коэффициент, учитывающий фактические условия
резания [1, с. 433, таблица 119].
Н·м
Определяем мощность резания
,
кВт
Определяем мощность электродвигателя
станка дв =
кВт,
Получившаяся мощность меньше
мощности главного привода станка.
Определяем минутную подачу
,
мм/мин
Определяем основное время
(15)
Определяем длину резания
,
мм,
мин
Рассчитаем время перемещения
инструмента по выбранной траектории
, (16)
где tр.х. - время выполнения
рабочего хода траектории;
n - количество рабочих ходов;
tх.х. - время выполнения холостого
хода траектории;
m - количество холостых ходов;
Переход 1.
Определяем время холостого хода
, (17)
где Lх.х. - величина траектории
холостого хода, мм;
Sм.б - минутная подача быстрых
перемещений, мм/мин.
мин
Переход 2.
Определяем время холостого хода
мин
Переход 3.
Определяем время холостого хода
мин
Переход 4.
Определяем время холостого хода
мин
Соответственно
мин
Определяем время автоматической
смены инструмента - (8 c) 0,13 мин.
, (18)
где t - время смены одного
инструмента, мин;
i - количество используемых на
операции инструментов.
мин
Время зажима или разжима заготовки в
приспособлении - 0,05 мин.
. Выбор промышленного робота для РТК
Для выбора промышленного робота,
работающего в составе РТК, необходимо отметить основные требования, которым
должен соответствовать промышленный робот:
обеспечение заданной
грузоподъемности;
размеры рабочей зоны промышленного
робота должны определяться размерами, формой и положением рабочих зон
обслуживаемого оборудования;
система управления промышленного
робота выбирается с учетом способа позиционирования рабочего органа, количества
управляющих координат, объема памяти;
захватное устройство ПР выбирается с
учетом конструктивно-технологических параметров объекта манипулирования.
грузоподъемность промышленного
робота должна превышать массу объекта манипулирования не менее чем на 10%.
Формы и размеры рабочей зоны должны
быть такими, чтобы загрузка и выгрузка заготовки из рабочей зоны основного и
вспомогательного оборудования осуществлялась беспрепятственно.
Для разгрузки-загрузки станка модели
2206ВМФ4 могут быть использованы ПР с прямоугольной и цилиндрической системой
координат.
Для промышленного робота,
работающего в составе РТК, число степеней подвижности в наибольшей степени
зависит от формы, размеров и положения рабочей зоны оборудования и
относительного положения ограничительных поверхностей, образующих зону
загрузки-разгрузки.
Погрешность позиционирования влияет
на процесс установки заготовки в приспособлении, как основного, так и
вспомогательного оборудования.
В соответствии с выше изложенным
выбираем промышленный робот модели “JOB’ oT-10”.
грузоподъемность - 50 кг;
число степеней подвижности - 5;
число программируемых координат - 5;
привод основных движений -
электромеханический;
система управления - позиционная;
средство программирования -
обучение;
погрешность позиционирования - ±2 мм
наибольший вылет руки - 2500 мм;
линейное перемещение, мм: = 1170;=
1000.
скорость линейного перемещения,
м/с:= 0,6;= 0,5.
угловые перемещения, °:
φ = 300;
α = 350;
β = 180.
угловая скорость, °/с:
φ =60;
α =60;
β = 60.
- масса - 2400 кг.
Рисунок 4 - Схема ПР
На рисунке 5 представим схему
захвата заготовки.
Рисунке 5 - Схема захвата заготовки
4. Выбор вспомогательного
оборудования для РТК
Основными функциями вспомогательного
оборудования является:
функция накопления;
функция транспортирования и
поштучной выдачи изделий;
функция ориентации и переориентации
изделий.
Основным требованием к выбору
вспомогательного оборудования для РТК является: заготовка при поступлении и
удалении должна занимать требуемое положение относительно захватного устройства
ПР, а рабочая зона вспомогательного оборудования должна пересекаться с рабочей
зоной промышленного робота.
В состав проектируемого РТК в
качестве вспомогательного оборудования будет входить тактовый стол. На пластины
тактового стола устанавливаются приспособления с заготовками. В качестве
приспособления для базирования используются призмы, которые выбираются в
зависимости от величины диаметров заготовки, устанавливаемой на ней. Выбираем
призмы 7033-0108 ГОСТ 12197-66.
Представим схему укладки заготовки в
призму на рисунке 6.
Рисунок 6 - Схема укладки заготовки
в призму
В состав проектируемого РТК будет
входить тактовый стол СТ 350, служащий для хранения заготовок (готовых деталей)
и подачи их в зону (из зоны) захвата ПР. Время поворота тактового стола Тв=3,5
с. Представим схему тактового стола СТ 350 и пластины к нему на рисунке 7.
Рисунок 7 - Схема тактового стола СТ
350 и пластины к нему
. Анализ возможных вариантов компоновок
РТК
При анализе возможных вариантов
компоновок РТК мы будем сравнивать компоновочные схемы линейного типа и
кольцевого типа.
При линейной компоновке
обслуживаемое оборудование расположено в один ряд. Роботизированный
технологический комплекс такого типа строится на базе напольных и портальных
роботов.
Рисунок 8 - Компоновочная схема
линейного типа
- Станок;
- Промышленный робот;
- Тактовый стол.
Представленная линейная схема
компоновки оборудования имеет следующие преимущества:
экономия производственной площади;
удобство обслуживание оборудования;
обеспечение беспрепятственного
перемещения захватного устройства;
удобство загрузки-разгрузки
основного и вспомогательного оборудования.
В кольцевой компоновке оборудование
располагается непосредственно вокруг робота.
Кольцевая компоновка РТК дает:
удобство загрузки-разгрузки
основного и вспомогательного оборудования;
беспрепятственное перемещение
захватного устройства ПР;
возможность расстановки оборудования
с учетом удобства подхода к нему оператора или наладчика;
оборудование располагается вокруг
робота, что приводит к экономии производственной площади;
кольцевая компоновка РТК дает очень
высокую точность позиционирования (углового 7’’).
Рисунок 9 - Компоновочная схема
кольцевого типа
В данной курсовой работе мы
принимаем компоновочную схему кольцевого типа как более предпочтительную.
. Построение и расчет элементов
траектории захватного устройства ПР
Построение траектории выполним в
виде графического изображения пути перемещения геометрического центра
захватного устройства ПР. Начало траектории свяжем с нулевой (исходной) точкой,
определенной в соответствии с исходным положением ПР.
Рисунок 10 - Траектория перемещения
захватного устройства ПР
Таблица 3 - Элементы траектории
перемещения захватного устройства
|
Элемент
траектории
|
Комментарий
|
Величина
перемещения, мм, (град)
|
|
r01
|
Перемещение
руки ПР вперед
|
720
|
|
Зажим
заготовки схватом ПР
|
-
|
|
z12
|
Перемещение
руки ПР вверх
|
100
|
|
r23
|
Перемещение
руки ПР назад
|
720
|
|
φ34
|
Поворот
руки ПР по часовой стрелки
|
90
|
|
r45
|
Перемещение
руки ПР вперед
|
720
|
|
Z56
|
Перемещение
руки ПР вниз - до оси шпинделя
|
100
|
|
Разжим
схвата ПР
|
-
|
|
r67
|
Перемещение
руки ПР назад
|
720
|
|
Выстой
руки ПР
|
-
|
7. Расчет допустимых скоростей перемещения
заготовки (детали)
Определяем допустимую скорость линейного
позиционирования в диапазоне вылета руки промышленного робота
,(19)
где Lx - вылет руки ПР, м;
- погрешность позиционирования, мм;
М - масса объекта манипулирования,
кг.
Определяем скорость вертикального
перемещения ПР при условии уравновешивания масс
,(20)
где
- коэффициент, зависящий от
конструкции привода;
Lz - длина пути при вертикальном
перемещении, м.
Определяем допустимую угловую
скорость при повороте руки ПР относительно вертикальной оси
, (21)
где
- угловая скорость, рад/с;
- угол поворота руки, рад;
- погрешность углового
позиционирования, с.
рад/с
. Построение циклограммы
функционирования РТК
Циклограмма функционирования РТК
включает в выбранной последовательности все действия, выполняемые основным и
вспомогательным оборудованием, а также ПР, необходимые для обработки заготовки.
Построение циклограммы
функционирования РТК обеспечивает:
быстроту определения рабочего цикла
Тр;
значение цикловой производительности
Qц;
существенное представление о том как
возможно произвести сокращение Тр за счет совмещения времени выполнения
отдельных переходов и сокращении длительности не совмещенных переходов.
После того, как мы определи все
движения ПР и установили последовательность их выполнения, нам необходимо
определить время выполнения каждого движения
,(22)
,(23)
где
- углы поворотов механизмов, рад;
- линейные перемещения механизмов,
м;
- скорость углового перемещения
механизма по соответствующей координате, рад/с;
- скорость линейного перемещения
механизма по соответствующей координате, м/с.
Рисунок 11 - Циклограмма работы РТК
9. Определение основных показателей
РТК
Основные показатели, характеризующие
работу РТК следующие:
цикловая производительность Qц;
коэффициент относительной
загруженности ПР Кгр;
коэффициент использования ПР Кир;
коэффициент использования основного
оборудования Кио;
коэффициент нагруженности ПР Кнр;
режим работы робота.
Определяем цикловую
производительность
,(24)
где
- длительность рабочего цикла, ч.
Определяем коэффициент относительной
загруженности
,(25)
где
- среднее значение рабочей
нагрузки, кг;
- грузоподъемность робота, кг.
Определяем коэффициент использования
ПР
,(26)
где
- время работы ПР за рабочий цикл,
с.
Определяем коэффициент использования
основного оборудования
,(27)
где
- время работы основного
оборудования за рабочий цикл, с.
Рассчитав значения коэффициентов, по
[2, стр.379, таблица 3] устанавливаем, что режим работы ПР "легкий"
при этом коэффициент нагруженности Кнр =1,1.
Заключение
Применение промышленных роботов при
обслуживании станков с ЧПУ позволяет исключить участие рабочего в выполнении
вспомогательных операциях и полностью автоматизировать процесс механической
сборки.
Анализ линейной и кольцевой
компоновки показал, что для данного РТК наиболее удовлетворяющая всем условиям
эксплуатации является компоновочная схема кольцевого типа. Она позволяет ПР
совершать перемещения при подаче заготовки от тактового стола к станку и назад
с большей точностью. Время рабочего цикла можно уменьшить за счет рационально
назначенных режимов резания.
Режим работы ПР, в составе РТК,
соответствует области применения РТК.
Список использованной литературы
1
Справочник технолога-машиностроителя. Т.2 / Под ред. А.Г. Косиловой, Р.К.
Мещерякова.- М.: Машиностроение, 1985.
Козырев
Ю.Г. Промышленные роботы: Справ. - М.: Машиностроение, 1988. - 392с.: ил.