Организация проведения спасательных работ при возможном пожаре в спортивном комплексе 'Жастар' города Талдыкоргана

  • Вид работы:
    Дипломная (ВКР)
  • Предмет:
    Безопасность жизнедеятельности
  • Язык:
    Русский
    ,
    Формат файла:
    MS Word
    437,01 Кб
  • Опубликовано:
    2015-06-27
Вы можете узнать стоимость помощи в написании студенческой работы.
Помощь в написании работы, которую точно примут!

Организация проведения спасательных работ при возможном пожаре в спортивном комплексе 'Жастар' города Талдыкоргана





















Организация проведения спасательных работ при возможном пожаре в спортивном комплексе "Жастар" города Талдыкоргана

Введение

Здания с массовым пребыванием людей это здания, в которых одновременно находится 50 и более человек. К ним относятся театры, Дворцы культуры, кинотеатры, клубы, концертные залы, учебные заведения, детские сады, торговые учреждения, административные здания, больницы, выставки, музеи и т.д..

Высота помещений в зданиях с массовым пребыванием людей колеблется от 3 до 9 м и более. Например, в сценической части театральных зданий она достигает 25-40 м.

Коридоры в зданиях с массовым пребыванием людей являются основными горизонтальными коммуникациями, обеспечивающими связь между помещениями в пределах этажа, а также путями движения из помещений к лестницам.

Минимальная ширина коридоров для массового движения принимается 1,5 м (в чистоте) и второстепенных (при длине 10 м) 1,25 м. В лечебных профилактических учреждениях ширина коридоров устраивается не менее 2,2 м. Коридоры, в которые выходят двери учебных помещений, устраиваются шириной не менее 1,8 м с открывающимися дверями в коридор.

В качестве вертикальных коммуникаций в зданиях с массовым пребыванием людей применяются лестницы, подъемники периодического и непрерывного действия, пассажирские и грузовые лифты и эскалаторы.

В реальных условиях пожара основными факторами, вызывающими потерями сознания или смерть людей, являются: прямой контакт с пламенем, высокая температура, недостаток кислорода, наличие в дыму окиси углерода и других токсичных веществ, механические воздействия. Наиболее опасны недостаток кислорода и наличие токсичных веществ, т.к. около 50-60% смертей при пожарах происходит от отравления и удушья.

Опыт показывает, что в закрытых помещениях снижение концентрации кислорода в отдельных случаях возможно по истечении 1-2 мин с начала возникновения пожара. Например, в театрах с объемом зрительного зала и сцены 25 000 м3 при горении декораций концентрация кислорода снижается до опасных значений в течение 2-3 мин.

Особую опасность для жизни людей на пожарах представляет воздействие на их организм дымовых газов, содержащих токсичные продукты горения и разложения различных веществ и материалов. Так, концентрация окиси углерода в дыме в количестве 0,05% является опасной для жизни людей.

В некоторых случаях дымовые газы содержат сернистый газ, окислы азота, синильную кислоту и другие токсичные вещества, кратковременное воздействие которых на организм человека даже в небольших концентрациях (сернистый газ 0,05; окислы азота 0,025%; синильная кислота 0,2%) приводит к смертельному исходу.

Чрезвычайно высока потенциальная опасность для жизни человека продуктов горения синтетических полимерных материалов.

Опасные концентрации могут образоваться даже при термическом окислении и разрушении небольших количеств синтетических полимерных материалов.

С учетом того, что синтетические полимерные материалы составляют в современных помещениях более 50% всех материалов, нетрудно заметить, какую опасность они представляют для людей в условиях пожара.

Реальная угроза для жизни людей в зданиях повышенной этажности еще более возрастает. Как показали исследования и имевшие место пожары в зданиях повышенной этажности, продукты горения распространяются по этажам здания в течение 2-3 мин. В то же время для эвакуации людей из такого здания, даже при нормальных условиях, требуется не менее 10-15 мин, а то и более.

Опасно для жизни людей также воздействие на них высокой температуры продуктов горения не только в горящем, но и в смежных с горящим помещениях. Превышение температуры нагретых газов над температурой человеческого тела в таких условиях приводит к тепловому удару. Уже при повышении температуры кожи человека до 42-46°С появляются болевые ощущения (жжение). Температура же окружающей среды 60-70°С является опасной для жизни человека, особенно при значительной влажности и вдыхании горячих газов, а при температуре выше 100°С происходит потеря сознания и через несколько минут наступает смерть.

Не менее опасной, чем высокая температура, является воздействие теплового излучения на открытые поверхности тела человека. Так тепловое облучение интенсивностью 1,1-1,4 кВт/м2 вызывает у человека те же ощущения, что и температура 42-46°С.

Критической же интенсивностью облучения считают интенсивность, равную 4,2 кВт/м2. Для сравнения в (табл. 1) приведены данные о времени, в течение которого человек способен переносить тепловое облучение незащищенной кисти руки при различной интенсивности облучения.

Таблица 1

Плотность теп. потока, кВт/м2

Допустимое время пребывания людей, мин

Требуемая защита людей

Степень теплового воздействия на кожу человека

3,0

не ограничивается

без защиты

Болевые ощущения отсутствуют

4,2

не ограничивается

В боевой одежде и в касках с защитным стеклом

Не переносимые болевые ощущения через 20с

7,0

5

то же

Не пер. болевые ощущ., возник. мгновенно

8,5

5

В боев. одежде, смоч. водой, и в касках с защ. стек.

Ожоги через 20 с

10,5

5

То же, но под защ. расп. струй воды или вод. завес

Мгновенные ожоги

14,0

5

В теплоот. кост. под защ. водяных струй или завес

то же

85,0

1

То же, но со средствами индивидуальной защиты

«


Еще большей опасности подвергаются люди при непосредственном воздействии пламени, например, когда огнем отрезаны пути спасения некоторых случаях скорость распространения пожара может оказаться настолько высокой, что застигнутого пожаром человека спасти очень трудно или невозможно без специальной защиты (орошение водой, защитная одежда). К серьезным последствиям приводит и загорание одежды на человеке. Если своевременно сбить пламя с одежды, то человек может получить ожоги, которые обычно вызывают смерть.

Наконец, большой опасностью при пожаре является паника, представляют собой внезапный, безотчетный, неудержимый страх, овладевающий массой людей. Она возникает от неожиданно появившейся опасности. Люди сразу ставятся перед лицом грозной стихии, сознание и воля подавляются впечатлением от пожара, невозможностью сразу же найти выход из создавшегося положения.

Для спасания людей в первую очередь выбирают кратчайшие и наиболее безопасные пути.

Способы спасания людей определяются в зависимости от обстановки на пожаре и состояния людей, которые нуждаются в помощи. Основными способами спасания людей являются: самостоятельный выход людей; вывод людей в сопровождении пожарных; вынос людей; спуск спасаемых с высоты.

В большинстве случаев, заметив опасность, люди выходят из помещений еще до прибытия пожарных подразделений.

Когда пути спасания задымлены или не известны спасаемым и, кроме того, состояние и возраст спасаемых вызывают сомнение в возможности самостоятельного выхода из опасной зоны (люди находятся в состоянии сильного нервного возбуждения или это дети, больные, престарелые), то организуют вывод спасаемых.

Вынос людей из опасной зоны осуществляется, когда люди не могут самостоятельно передвигаться (потеряли сознание или это лежачие больные, малолетние дети, инвалиды и т.д.).

Спуск спасаемых с высоты производится в тех случаях, когда пути спасания отрезаны огнем и другие способы применить нельзя. Для этого, как указывалось выше, используются стационарные, передвижные и переносные лестницы, коленчатые подъемники, спасательные веревки и другие приспособления.

В некоторых случаях способы спасания могут применяться в комбинации. Например, самостоятельный выход до определенного места и далее вывод в сопровождении пожарных; вывод людей на крышу или балкон и спуск их с высоты с помощью выдвижных лестниц, спасательных веревок, вертолетов и др.

По прибытии к месту вызова РТП должен немедленно установить связь с обслуживающим персоналом объекта и получить сведения о наличии людей в горящих и смежных с ними помещениях (иногда эти сведения поступают при приеме сообщения о пожаре), после чего провести тщательную разведку задымленных помещений.

Разведка выясняет наличие опасности для жизни людей, их местонахождение и способность самостоятельно передвигаться; пути и способы спасания;

последовательность проведения спасательных работ; возможность угрозы огня и дыма путям спасания; наличие сил и средств для спасания людей; наличие обслуживающего персонала, который можно привлечь к спасательным работам;

меры, принятые для спасания до прибытия пожарных подразделений; определяет места для размещения спасенных людей (особенно в зимнее время).

В зависимости от обстановки разведка может проводиться в нескольких направлениях.

Разыскивая людей в помещениях, необходимо окликать их голосом. Взрослых надо искать у окон, дверей, в коридорах, т.е. на путях к выходам из помещений. Детей следует искать под кроватями, в шкафах, за печками, в чуланах, под столами, в санузлах и т.д.

Проверку помещений проводят во всех случаях, ее прекращают только после тщательного осмотра, убедившись в отсутствии людей в горящем здании.

На основании данных, полученных в ходе разведки пожара, РТП принимает решение и отдает необходимые распоряжения по спасанию людей. При этом возможны различные варианты действия подразделений:

-        если на пожар прибыло достаточное количество сил и средств и имеется необходимость проведения спасательных работ, РТП обязан немедленно организовать спасание людей. При этом РТП должен лично возглавить спасательные работы, в то же время руководя тушением пожара;

         если людям угрожает огонь и пути спасания отрезаны или могут быть отрезаны огнем, подача стволов для обеспечения спасания людей обязательна;

         в случаях, когда сил и средств для одновременного проведения работ по тушению пожара и спасанию людей недостаточно, весь личный состав прибывших пожарных подразделений может быть направлен на спасательные работы с последующим тушением пожара. Подача стволов для обеспечения спасания людей в этом случае обязательна как в местах, где людям непосредственно угрожает огонь, так и для спасания, из мест где возможно распространение пожара.

В практике работы подразделений противопожарной службы по спасанию людей в зависимости от обстановки на пожаре могут быть применены и другие варианты действий.

Очередность спасания определяется не числом людей, а степенью опасности для их жизни. В первую очередь спасают людей из наиболее опасных мест. При одинаковой степени опасности сначала спасают детей, больных и престарелых.

Во всех случаях, когда проводятся спасательные работы, РТП должен одновременно с развертыванием сил и средств вызвать скорую медицинскую помощь. До прибытия на пожар медицинского персонала первую помощь пострадавшим должен оказать личный состав пожарных подразделений.

1. Тушение пожаров в зданиях

Подготовке страны к участию в конкурсе на проведение зимних олимпийских игр оказывают значительное внимание на общегосударственном уровне. Повышается требования пожарной безопасности для спортивных сооружений, к организационным мероприятиям перед началом и во время соревнований, а также в случае пожара, инфраструктуре.

Особое внимание уделяется расчетам путей и продолжительности эвакуации людей из спортивных сооружений. Так, в соответствии с требованиями Технический регламента «Требования по оборудованию зданий, помещений и сооружений системами автоматического пожаротушения и автоматической пожарной сигнализацией, оповещения и управления эвакуацией людей при пожаре» используют показатель «расчетное количество зрителей на 1 м ширины пути эвакуации» без учета параметров времени и учитывают направление эвакуации с трибун (вниз или вверх).

Также должно регламентироваться максимальное расстояние от наиболее удаленного зрительского места до эвакуационного выхода, как например согласно «GuidetoSafetyatSportsGrounds (GreenGuide)», оно не должно превышать 30 м.

Для обеспечения пожарной безопасности спортивных сооружений на современном уровне, соответствия стадионов международным требованиям действующая нормативная база Казахстана в области проектирования, строительства и обеспечения надлежащей эксплуатации спортивных сооружений требует доработки и приведения в соответствие с требованиями Европейских норм и стандартов.

1.1 Общие положения по тушению пожаров в зданиях

В современной архитектурно-строительной практике здания различаются по назначению:

·   гражданские, промышленные и сельскохозяйственные

·   по этажности: одноэтажные, малоэтажные, многоэтажные

·   по виду материала наружных стен: каменные, деревянные

·   по степени огнестойкости.

Назначение, этажность и другие элементы, характеризующие здания, могут влиять только на отдельные (частные) стороны развития и тушения пожаров в помещениях.

Задача руководителя тушения пожара состоит в том, чтобы, прежде всего, выявить общие параметры развития пожаров в зданиях, а на их основе разработать наиболее эффективные способы и приемы тушения пожаров в них.

Известно, что общим признаком любого пожара является неорганизованный процесс горения, который невозможен без наличия газообмена - притока свежего воздуха в зону горения с одновременным выходом продуктов горения из этой зоны.

Условия газообмена при пожара в здании отличны от тех, которые существуют при пожаре на открытом пространстве.На открытом пространстве газообмен зависит только от разности температур продуктов сгорания и атмосферного воздуха, а при пожаре в здании газообмен зависит также от архитектурно-строительной, технологической характеристик и объемно-планировочного решения здания в целом.

Здания представляют собой архитектурные сооружения, состоящих из одного или нескольких помещений различного назначения. Поэтому, вначале рассмотрим наиболее общие факторы, определяющие пожарную обстановку в помещениях зданий.

Пожарная обстановка в любом помещении здания на данный момент времени характеризуется следующими основными среднеобъемными параметрами состояния: полностью газовой среды в объеме горящего помещения, давлением в горящем помещении, температурой, концентрацией компонентов газовой среды.

Главными факторами, определяющими изменение этих параметров при развитии пожаров в помещениях зданий, являются:

агрегатное состояние, величина пожарной нагрузки и ее распределение в помещении (сосредоточенная или равнораспределенная);

коэффициент условий газообмена при развитии пожара в помещениях Кг.

В зависимости от выше перечисленных факторов при развитии пожаров в помещениях одного и того же здания величина основных среднеобъемных параметров состояния в каждый момент времени будет различной.

Величина в первом опыте равна 0,33 , а во втором и пятом - примерно 0,16. Анализируя другие данные, характеризующие объекты испытаний, можно сказать, что условия проведения второго и третьего опытов отличались только высотой помещений, второго и четвертого - величиной пожарной нагрузки, третьего и пятого - площадью пола помещений, а первого и второго - коэффициентом условий газообмена.

Таблица 1.2

№ опыта

Sп, м2

Sо, м2

Высота помещения, м

Пожарная нагрузка, кг/м2

Среднеобъемная температура, Со

Продолжительность пожара, мин

1

28,9

9,6

6,4

50

800

22,5

2

28,9

4,8

6,4

50

950

42,5

3

26,4

4,1

3,2

50

1025

53,2

4

28,9

4,8

6,4

100

1050

80

5

35

5,4

3,2

50

1090

52,5



По данным таблицы построен график. Из рисунка видно, что наиболее высокая температура была в пятом опыте, а наибольшая продолжительность пожара - в четвертом.

с увеличением площади проемов в ограждающих конструкциях помещений и их высоты происходит уменьшение температуры и сокращается продолжительность пожара при общем увеличении скорости горения;

с увеличением пожарной нагрузки увеличивается температура и продолжительность пожара;

при одинаковой пожарной нагрузке особенности развития пожаров в помещениях зданий, в основном, зависят от коэффициента условий газообмена и высоты данного помещения.

По величине Кг все помещения можно разделить на две группы: Кг< 0,15 и Кг>0,15. В каждой из этих групп по две подгруппы помещений по высоте h< 6 метров и h>6 метров.

Развитие пожаров в здании в целом выражается в распространении огня и продуктов горения из одного помещения в другое различными путями и в выгорании сгораемых материалов.

В зависимости от места возникновения пожаров в зданиях можно выделить три наиболее типичные схемы распространения огня и продуктов горения.

Первая схема может быть при возникновении пожара в подвальном помещении или в первом этаже здания без подвала.

Вторая схема характерна для случая возникновения пожара в этажах выше первого.

Третья схема присущая возникновению пожаров в чердачных помещениях, а при их отсутствии, в верхних этажах здания.

1.2 Прогнозирование и оценка пожарной обстановки в зданиях

Прогнозирование и оценка пожарной обстановки в зданиях выражается в определении основных параметров пожара во времени и пространстве.

В начале проводиться оценка и прогнозирование обстановки в горящем помещении (в помещениях), а затем переходят к анализу возможной ее динамики с учетом влияния параметров сосредоточения и введения сил и средств.

Во всех случаях при тушении пожаров в зданиях прогнозируется три параметра развития пожара:

площадь пожара;

температурный режим в объеме горящего помещения (помещений);

газообмен при развитии пожара в помещении (помещениях).

При прогнозировании площади пожара в данном помещении основным параметром, определяющим ее величину во времени, является линейная скорость распространения горения vл , м/мин, которая является функцией пожарной нагрузки qп , коэффициента условий газообмена Кг и высота помещений h:

vл =f(qп, Кг,h)

В настоящее время пользуются усредненными значениями величин vл, полученными на основе математико-статистического анализа - описаний реальных пожаров.

При прогнозировании температуры необходимо иметь в виду, что в процессе свободного развития пожара может быть: нарастание температуры, установившейся режим и снижение температуры.

Установившийся режим наступает тогда, когда расход уходящих газов из горящего помещения равен сумме расхода поступающего воздуха и продуктов сгорания. Такое положение наступает при установившемся расположении нейтральной зоне в объеме горящего помещения (помещений) - плоскости, которой внутреннее избыточное давление равно атмосферному. Ниже нейтральной зоны давление меньше атмосферного, а поэтому в эту часть объема помещения будет приток наружного воздуха. Выше нейтральной зоны давление больше атмосферного. Это приводит к тому, что огонь и нагретые продукты горения будут распространяться, в первую очередь, в ту часть объема горящего помещения, которая располагается выше нейтральной зоны. Следовательно, очень важно при прогнозировании и оценке пожарной обстановки в отдельном помещении или здании в целом определить место расположения нейтральной зоны визуально на данный момент времени или аналитически с учетом возможной динамики пожара.

При наличии одного отверстия в ограждающих конструкциях горящего помещения нейтральная зона будет располагаться примерно на высоте 1/3 отверстий проема. При прогнозировании развития пожара в здании в целом нужно учитывать, что основными путями распространения огня в гражданских и промышленных зданиях могут быть наружные и внутренние поверхности сгораемых конструкций (стены, перегородки, перекрытия, крыши); проемы и различные конструкции в конструктивных элементах; лестничные клетки, шахты подъемников (лифты), вентиляционные каналы. Последние два вида путей являются и основными путями распространения дыма при пожаре в здании.

Преобладающее направление распространения огня и дыма при развитии пожара по различным схемам будет зависеть от степени огнестойкости, назначения и этажности здания, а также от планировки и компоновки помещений в них. Так, в одноэтажных зданиях первой степени огнестойкости преобладающим направлением распространения огня будет горизонтальное по поверхности пожарной нагрузки.

При пожарах в многоэтажных зданиях первой, второй, третьей степеней огнестойкости преобладающим направлением распространения огня можно также считать горизонтальное и внутри конструкций с воздушными конструкциями, особенно при коридорной системе. Однако в этих зданиях огонь может распространяться выше и ниже расположенные помещения по отношению к горящему, через различные отверстия в стенах и перекрытиях, по шахтам лестничных клеток и лифтов, по вентиляционным каналам.

В защищенных от возгорания зданиях 4-й степени огнестойкости огонь, преимущественно, также распространяется в горизонтальном направлении, но в вертикальном направлении опасность распространения огня здесь будет больше, нежели в зданиях 1-, 2-, 3-й степеней огнестойкости. При пожарах в зданиях 4-й степени огнестойкости преобладающим направлением распространения огня может быть вертикальное (вверх). Основными путями распространения дыма при пожарах в зданиях всегда будут вертикальные.

Увеличение интенсивности горения, распространению огня и дыма, при развитии пожара в здании может способствовать обрушение строительных конструкций.

Потери несущей способности в условиях пожара может происходить под действием температуры или в следствии уменьшения сечения конструкций за счет ее выгорания.

При рассмотрении оценки фактической степени огнестойкости конструкций, при тушении пожара в здании могут приниматься ошибочные решения. В практике имели место случаи, когда силы и средства выводятся с занятых позиций при отсутствии угрозы обрушения конструкций, и на оборот, а не своевременно не выводятся при создавшейся угрозе обрушения, что в некоторых случаях приводит к гибели личного состава.

Руководитель тушения пожара ориентируясь на нормативный предел огнестойкости, иногда (при большом пределе огнестойкости) не выделяет силы и средства на защиту конструкций, которые фактически оказываются в более жестких условиях, чем предусмотрено нормами, и могут потерять несущую способность.

При определении поведения строительных в реальных условиях нужно знать характерные признаки, предшествующие обрушению конструкций.

Так, например обрушению железобетонных конструкций обычно предшествует образование прогиба и трещин. Обрушение деревянных конструкций, защищенных слоем штукатурки, предшествует отслаивание штукатурки и т.п..

На строительные конструкции могут воздействовать различные динамические и статические временные нагрузки (падение вышележащих конструкций, ударная волна, образующаяся при взрыве, скопление личного состава, большое количество воды и т.д.).

Исходя из факторов, определяющих процесс развития пожара по различным схемам, можно сделать следующие выводы: наибольшая площадь пожара и зоны задымления возможна при развитии пожара по первой и второй схемам, наименьшая по третьей. При этом общая площадь пожара в здании определяется как сумма площадей во всех горящих помещениях.

Как показывает практика борьбы с пожарами в зданиях после распространения огня в вертикальном направлении (вверх), огонь начинает преимущественно распространяться по помещениям этажей. При этом характер распространения огня по помещениям этажей, как правило, будет односторонним или двусторонним. В некоторых случаях огонь может распространяться во все стороны (по кругу) или в каком-либо углу. Но с течением времени распространение огня будет двусторонним или односторонним. При этом ширина фронта распространения огня будет равна ширине помещения, в котором распространяется огонь.

1.3 Средства, способы и приемы тушения пожаров

При тушении пожара в помещении первой группы для прекращения горения могут быть использованы все огнетушащие вещества (вода, пена, негорючие пары и газы и т.д.). Прекращение горения в объеме помещения этой группы осуществляется подачей огнетушащих веществ на горящие поверхности, введением негорючих паров и газов или заполнением помещений водой и пеной.

При тушении пожаров в помещениях второй группы в основном используется вода и пена. Негорючие пары и газы не могут быть применены потому, что помещения этой группы могут быть большие по объему (более 500 м3) и иметь значительный коэффициент утечки.

Степень возможности применения тех или иных огнетушащих веществ при тушении пожаров в помещениях определяются не только тем, что они, с точки зрения физико-химической сущности, могут создавать условия для прекращения горения, но и технико-экономическими и тактическими показателями.

Практика тушения пожаров показывает, что с точки зрения технико-экономических и тактических показателей наиболее эффективными огнетушащими веществами в помещениях первой и второй группы являются вода и пена.

Для подачи воды или пены, как правило, используются основные пожарные автомобили (автоцистерны, автонасосы).

Основным видом боевых действий является решительное и непрерывное наступление на огонь (наступательные действия) до полной его ликвидации. Во многих случаях подразделения могут защищать не горящие поверхности конструкции (защитные действия) от агрессивного воздействия тепла.

Боевые действия могут осуществляться следующими способами:

сосредоточением и введение сил только по линии фронта распространения огня с последующим наступлением на огонь на всю глубину помещения;

сосредоточением и введением сил и средств по фронту распространения с последующим наступлением на огонь от периферии к центру площади пожара по всем направлениям;

подготовительной атакой на пожар.

Для тушения пожара в помещениях могут быть использованы стволы РСК-50, РС-50, РС-70 и лафетные.

Стволы РСК-50 и РС-50 целесообразно применять в помещениях второй группы при их высоте до 6 метров (например, в этажах помещений). Это объясняется тем, что относительно небольшие размеры помещений ограничивают маневренность действий струй. Ствол РС-50, РСК-50, как известно, является наиболее маневренным, поэтому коэффициент использования воды подаваемой стволом РСК-50, РС-50 для создания условий прекращения горения, будет наивысшим.

В помещения первой и второй группы высотой более 6 метров целесообразно применять стволы РС-70 и лафетные стволы. В помещениях первой группы высотой до 6 метров не рекомендуется применять стволы РС-50, РСК-50 потому, что в этих помещениях площадь пожара может быть весьма значительной, а целесообразней использовать более мощные стволы, имеющие большую длину струи.

В помещении первой и второй группы высотой более 6 метров возникает необходимость подачи воды на значительные расстояние по высоте, что можно осуществить с помощью стволов РС-70 и лафетных. Не исключена возможность применения стволов РС-50 во всех помещениях, особенно когда прибывшее подразделение застает пожар в первой фазе его развития.

При осуществлении защитных действий в процессе тушения пожара в помещении используется, как правило, стволы РС-50.

Не зависимо от применяемых типов стволов пожарные должны подавать воду на горящие поверхности с использованием максимальной площади орошения струей. Ни в коей мере нельзя допускать работу ствольщиков по (дыму), так как это приводит к излишнему проливу воды и нанесению значительного материального ущерба.

В практике могут иметь место случаи, когда ствольщики правильно выбирают позицию, но они не в состоянии обеспечить максимальный коэффициент использования струи (например, при горении внутри перегородок, перекрытия). В этом случае на позиции ствольщиков необходимо вскрывать и разбирать конструкции.

Действия подразделений по осуществлению необходимых условий локализации будут усложнятся наличием дыма в помещениях. Более того, в задымлении при тушении пожара, пожалуй является основным препятствием проникновения ствольщиков к зоне горения. Поэтому для ствольщиков при тушении пожара в помещениях нужно создавать так называемую рабочую зону, по которой понимается часть пространства в помещении, где ствольщик может работать. Это пространство будет находиться всегда ниже нейтральной зоны, то есть там, где давление будет ниже атмосферного и куда будет поступать наружный чистый воздух. Величина этого пространства по высоте от пола помещения может быть 1,5 - 2 метра. Следовательно, для того, чтобы создать рабочую зону для ствольщика, необходимо обеспечить повышение нейтральной зоны.

Повышение нейтральной зоны может быть осуществлено двумя способами: естественным и принудительным. В большинстве случаев повышение нейтральной зоны осуществляется естественной вентиляцией. Воздухообмен, как известно, осуществляется через отверстия в ограждениях.

Из уравнения видно, что при равенстве площадей проемов нейтральная зона располагается почти на половине высоты между геометрическими центрами отверстий; при увеличении или уменьшении площади отверстий нейтральная зона всегда будет располагаться ближе к большим по площади отверстиям.

Повышение нейтральной зоны за счет естественной вентиляции может быть достигнуто двумя способами:

увеличением площади верхних отверстий, работающих на вытяжку продуктов горения из помещения (вскрытие и разборка перекрытия, кровли и устройство других проемов в верхней части помещения). Иногда в целях выполнения условия локализации пожара приходиться взрывать конструкции покрытий (например, в блокированных зданиях);

уменьшение площади нижних отверстий, работающих на приток воздуха в помещение (прикрывание дверей или перекрывание других проемов и нижней части помещения.

Для создания рабочей зоны по первому способу нужно вскрыть в верхней части столько отверстий, чтобы они по площади превышали нижние (приточные) примерно в 1,5-2 раза, а по второму способу - закрыть столько приточных отверстий, чтобы они по площади стали в 1,5 -2 раза меньше верхних.

Если нет возможности управлять газовым потоком с помощью естественной вентиляцией, то используют дымососы. Чаще всего они используются для повышения нейтральной зоны в помещениях первой группы, где очень трудно проделать дополнительные отверстия (например, в подвальных помещениях, холодильниках).

Применять дымососы на нагнетание рекомендуется в помещениях первой группы с высотой до 6 метров. При работе дымососа дым как бы отжимается подаваемым потоком свежего воздуха и тем самым освобождается путь для продвижения ствольщика.

Для отсоса продуктов горения дымосос лучше всего устанавливать в вытяжном отверстии. При этом необходимо уменьшать площадь приточных отверстий. Дымососы на пожарах значительно облегчают работу личного состава, особенно если в сочетании с ними применяются брезентовые полотнища-перемычки.

На нагнетание свежего воздуха дымососы используются в исключительных случаях.

Если поднять нейтральную зону невозможно, то ствольщики должны продвигаться к очагу горения в средствах индивидуальной защиты органов дыхания.

Повышение нейтральной зоны существенным образом влияет на понижение температуры в помещении. Известной, что снизить температуру в помещении можно за счет увлажнения воздуха распыленными струями.

При выполнении условий локализации пожаров в зданиях во многом зависит от правильности и своевременности введения необходимых сил и средств как в горизонтальных, так и в вертикальных направлениях, т.е. от места и очередности введения стволов на непосредственное тушение и защиту.

Места и очередность введения стволов при тушении пожаров в зданиях в основном зависит от схем распространения горения и дыма в них.

Так, при развитии пожара в здании стволы вводятся в горящее помещение для локализации и ликвидации горения в них, а в соседние и вышерасположенные помещения - для защиты от теплового воздействия.

При развитии пожара по схеме 2 стволы вводятся в верхние горящее (горящие), смежные, в выше- и нижерасположенные помещения.

В случае развития пожара по схеме 3 стволы вводятся в верхние горящие помещения, смежные, в нижерасположенные помещения.

Ликвидация пожаров в зданиях характеризуется уменьшением площади пожара, расхода огнетушащих средств, постепенным свертыванием сил и средств, разборкой, вскрытием и дотушиванием горящих конструкций, удалением воды из помещений и т.д.

Разборка отдельных конструкций здания осуществляется лишь при необходимости, т.е. когда дотушивание пожара без разборки и вскрытия не удаляется.

В период ликвидации пожара необходимо провести осмотр всех помещений здания с целью определения возможностей повторного возобновления горения и их ликвидации.

Окончательное свертывание сил и средств при тушении пожаров в зданиях наступает в том случае, когда горение полностью прекращено и устранены условия его возобновления в данном месте.

Общая продолжительность тушения пожара в здании будет слагаться из времени локализации и ликвидации пожара во всех направлениях.

1.4 Организация и проведение спасательных работ

Нередки случаи, когда к моменту прибытия первых отделений на пожар лестничные клетки сильно задымлены и люди из окон и балконов просят о помощи. В этих условиях принимают меры по предотвращению паники и немедленно организуют спасательные работы. Для этих целей создают максимальное количество поисково-спасательных групп из прибывших на пожар газодымозащитников, оповещают людей о прибытии помощи и об их поведении в опасных зонах. Эти группы в первую очередь вскрывают окна лестничных клеток и двери, ведущие на чердак, для освобождения путей эвакуации от дыма и снижения температуры. Затем эвакуируют людей из квартир верхних этажей, так как они наиболее задымлены, проверяют площадки лестничных клеток и квартиры, двери которых открыты. Закрытые квартиры в зоне задымления вскрывают и тщательно проверяют наличие в них людей. Для определения мест нахождения пострадавших производят опрос граждан, находящихся на месте пожара, и спасаемых.

Для устранения паники, установление очередности спасательных работ и координации действий поисково-спасательных групп РТП назначает наиболее подготовленного командира и обеспечивает его громкоговорящей связью, определяет способы и порядок проведения спасательных работ.

Людей эвакуируют и спасают по маршевым лестницам через основные выходы, по стационарным пожарным лестницам и через запасные выходы, через окна и балконы с помощью авто-лестниц, выдвижных и штурмовых лестниц, спасательных веревок. В случае необходимости людей выводят на чердаки или покрытия зданий с последующим переходом в соседние, не задымленные лестницы и из здания.

Для эвакуации людей из первых этажей через окна используют лестницы-палки. Со второго и третьего этажей взрослые и дети старшего возраста спускаются по выдвижным лестницам самостоятельно. С четвертого и вышерасположенного этажей взрослых спускают по авто-лестницам, каскаду штурмовых лестниц или по штурмовым лестницам и выдвижным с обязательной страховкой. Пострадавших, больных и детей младшего возраста пожарные выносят по автомобильным лестницам, спускают с помощью коленчатых подъемников и спасательных рукавов или на спасательных веревках.

Период проведения спасательных работ и до конца тушения пожара перед входом в задымленные подъезды выставляют постовых для того, чтобы никто, кроме газодымозащитников, без разрешения РТП не входил в дом. Это необходимо для того, что в процессе тушения пожара могут деформироваться и частично обрушиться перекрытия, разрушаться остекление окон, может измениться направление тяги, а при введении водяных струй в очаг пожара происходит интенсивное парообразования, повышается давление и может произойти повторное задымление лестничных клеток и этажей зданий.

В некоторых случаях, когда лестничные клетки еще не задымлены или задымлены слабо и сообщаются с горящим подвалом в котором создалась высокая концентрация дыма и большая температура, не позволяющая проникнуть к очагу пожара, необходимо немедленно организовать эвакуацию людей из возможных зон задымления.

Спасательные работы считаются законченными тогда, когда все помещения освобождены от дыма, тщательно проветрены и РТП убедился, что все люди, нуждающиеся в помощи, спасены. После окончания спасательных работ все силы и средства сосредотачиваются на боевых участках по тушению пожара.

2. Оперативно-тактическая характеристика Дворца спорта «Жастар» в городе Талдыкорган

2.1 Общие данные

.1.1 Исходные данные для проектирования

Рабочий проект объекта разработан на основании и в соответствии следующих документов:

         Задание на проектирование объекта: «Дворец спорта в г. Талдыкорган» от 17.05.2010 г.

         Дополнение к Заданию на проектирование «Дворца спорта» от 06.05.2011 г.

         Задание по оснащению спортсооружений от 17.08.2010 г.

         Карточка принятых решений в части материалов, конструкций и инженерного оборудования по объекту: «Дворец спорта», разделы 1, 2, 3, 4).

         «Архитектурно-планировочное задание № 25/03 от 10 июня 2010 г.

         Протокол заседания архитектурно-градостроительного Совета от 20.05.2010г. Об одобрении проекта.

         Постановление Акимата города Талдыкорган за № 25/03 от 10 июня 2010 г. о выдаче архитектурно-планировочного задания на проектирование Дворца спортапо ул.Конаева 22.

         ГосударственныйАкт № 0077856на право временного возмездного землепользования (аренды) на земельный участок сроком до 01.06.2020 года. Кадастровый номер земельного участка: 09-142-139-043. Площадь земельного участка 6,000 га.

Краткая характеристика района и площадки строительства.

В соответствии со СНиП РК 2.04-01-2001* район для строительства расположен в I климатическом районе, подрайон В.

Для всех сооружений в соответствии со СНиП 2.01.07-85* «Нагрузки и воздействия» следующие характеристики по нагрузкам:

         Снеговой район - III, нормативная снеговая нагрузка - 1,0 кПа (100кг/м2).

         Ветровой район скоростных напоров ветра - IV,

         нормативное значение ветрового давления - 0,48 кПа (48 кг/м2).

Территория г. Талдыкорган расположена на Казахском щите, на котором не проявляются тектонические явления и поэтому не является сейсмоактивной.

Участок строительства расположен в Юго - Восточном жилом районе г. Талдыкорган, напротив микрорайона «Жастар».

Расчётная температура наружного воздуха наиболее холодной пятидневки (- 320С) СНиП РК 2.04-21-2004*.

Инженерно-геологические условия.

В геоморфологическом отношении участок изысканий приурочен к делювиально-пролювиальной равнине.

Поверхность площадки строительства относительно ровная и колеблется в абсолютных отметках в пределах 531,89 - 532,33 м.

Климат района резко континентальный и засушливый.

Нормативная глубина промерзания для г. Талдыкорган - 101 см для глинистых грунтов и 252 см для песчаных грунтов. Средняя глубина проникновения «0» в грунт - 193 см.

В геолого-литологическом строении площадки принимают участие делювиально-пролювиальные четвертичные отложения, представленные суглинками, супесями, песками средней крупности и крупными, общей мощностью 0,4 - 2,8 м, а так же отложениями коры выветривания по осадочным породам среднеюрского возраста, представленные глинами, вскрытой мощностью 4,8 - 11,8 м.

С поверхности эти образования перекрыты почвенно-растительным слоем мощностью 0,2 м.

На площадке вскрыты два водоносных горизонта:

         Первый от поверхности водоносный горизонт вскрыт на глубинах 1,1 - 1,8 м с абсолютными отметками 529,91 - 531,23 м. Грунтовые воды носят сезонный характер. Питание их происходит за счёт инфильтрации атмосферных осадков, талых вод и паводковых вод.

         Второй от поверхности водоносный горизонт приурочен к глинам средней юры. Пьезометрический уровень устанавливается на отметках 520,95 - 526, 02 м. Подземные воды обладают местным напором, величина которого составляет 0,4 - 5,5 м.

Грунтовые воды первого горизонта характеризуются как сульфатно-натриевые и гидрокарбонатно-натриевые, умеренно жёсткие, слабощелочные, пресные.

Агрессивность грунтовых вод по отношению к свинцовой оболочке кабеля - средняя и высокая, по отношению к алюминиевой оболочке кабеля - высокая, по отношению к стальным конструкциям грунтовые воды не коррозирующие.

По отношению к бетонам марки W4 по водонепроницаемости на портландцементе грунтовые воды не агрессивные, по отношению к железобетонным конструкциям - слабоагрессивные.

Агрессивность подземных вод по отношению к свинцовой оболочке кабеля - средняя, по отношению к алюминиевой оболочке кабеля - высокая, по отношению к стальным конструкциям грунтовые воды не коррозирующие и коррозирующие.

По отношению к бетонам марки W4 по водонепроницаемости на портландцементе грунтовые воды слабоагрессивные, по отношению к железобетонным конструкциям - слабо и среднеагрессивные.

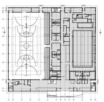
2.2 Краткая характеристика объекта

Генеральный план

Рис.

Генеральный план Дворца спорта «Жастар» разработан в соответствии с архитектурно-планировочным заданием на проектирование, техническим заданием на разработку рабочего проекта, действующими нормами и правилами Республики Казахстан - СНиП РК 3.01-01-2008, СНиП РК 3.02-25-2004, функциональным назначением объекта и требованиям по благоустройству и санитарно-экологическим нормам.

В качестве топографической основы использованы материалы топографической съёмки масштаба 1:500. Границы участка приняты в соответствии с Актом № 0077856на право временного возмездного землепользования (аренды) на земельный участок сроком до 01.06.2020 года. Кадастровый номер земельного участка: №09-142-139-043. Площадь земельного участка 6.0000 га.

Участок строительства расположен в Юго-Восточном жилом районе г. Талдыкорган, напротив микрорайона «Жастар».

Рельеф участка спокойный, с общим уклоном на юго-восток. Абсолютные отметки поверхности земли в границах участка колеблются от 533,2 на северо-востоке с плавным понижением на юго-восток до отметки 532,2.

Расположение проектируемых зданий и сооружений и расстояние между ними соответствуют противопожарным и санитарно-экологическим действующим нормам и правилам с учётом противопожарных мероприятий.

Дворец спорта «Жастар» расположен в центральной части участка. Транспортные пути организованы для удобного въезда и выезда на близлежащие улицы. На территорию Дворца предусмотрено четыре въезда: два с Северо-Восточной стороны участка и по одному с юго-восточной и северо-западной сторон участка, что обеспечивает возможность обслуживания объекта и подъезда пожарных машин. Кроме того, предусмотрены восемь отдельных въездов на стоянки автомобилей. Отдельно расположена стоянка для маломобильной группы населения.

Проектом предусмотрена дифференциация транспортных и пешеходных путей (пешеходные площади, тротуары дорожки). Предусмотрено современное асфальтобетонное и плиточное покрытие дорог, площадей и тротуаров с обрамлением бетонным бортовым камнем.

Вертикальная планировка участка решена с учётом существующего рельефа местности, а также с учётом отметок прилегающих к участку дорог и территории. Проектом организации рельефа полностью обеспечивается отвод поверхностных вод от стен здания а также с территории проектируемого объекта по проектируемым проездам и лоткам в сторону ул. Конаева и далее - вдоль территории Дворца спорта в соответствии с техническими условиями на устройство ливневой канализации. Проект и устройство инженерных сетей и сооружений по ливневой канализации выполняет ГКП «Городское коммунальное хозяйство».

Для создания нормальных санитарно-гигиенических условий и архитектурного оформления участка предусмотрено озеленение из различных видов деревьев и кустарника, травяной газон. При подборе пород деревьев и кустарников учитывались местные климатические условия.

Полив зелёных насаждений предусматривается из поливочной сети водопровода.

Участок обустроен малыми архитектурными формами, скамейками, урнами и освещён.

Рис.

Мероприятия для маломобильных групп населения

В части решения генерального плана, благоустройства и организации рельефа предусмотрены мероприятия, обеспечивающие полноценную жизнедеятельность инвалидов и маломобильных групп населения с учетом требований РДС РК 3.01-05-2001 «Градостроительство. Планировка и застройка населенных мест с учетом потребностей инвалидов и других маломобильных групп населения».

В местах, предназначенных для посещения маломобильными группами населения, предусмотрены мероприятия, обеспечивающие беспрепятственный доступ на территорию и эвакуацию. На путях передвижения людей с ограничениями двигательных функций запроектированы пандусы, отвечающие всем нормативным требованиям.

Возле здания предусмотрена открытая гостевая стоянка автомашин, рассчитанная для размещения автотранспортных средств инвалидов, которая выделяется разметкой и обозначается специальными символами.

Нормы расчета стоянок автомобилей при спортивных сооружениях с трибунами - 3÷ 5 машино/мест на 100 человек.

Количество мест на автостоянке 376 машино/мест в том числе:

для зрителей - 275 машино/мест

маломобильной группы населения - 5 машино/мест

автостояка для VIP -персон - 12 машино/мест

для обслуживающего персонала и спортсменов - 84 машино/мест

Технико-экономические показатели по генеральному плану:

Площадь территории

по государственному акту на землю - 60000,0м2

Площадь участка в пределах красных линий - 57437,1 м2

Площадь застройки - 11266,1м2

Площадь покрытий - 30100,0 м2

в том числе:

площадь покрытий спортплощадки и шайбодрома - 2425,0м2

Площадь озеленения - 16071,0м2

% застройки - 19,6

% покрытий - 52,4

% озеленения - 28,0

Технологические решения.

Технологические решения приняты в соответствии с архитектурно-планировочным заданием, заданием на проектирование, а так же с действующими строительными и санитарными нормами:

-        СНиП РК 3.02-02-2009 «Общественные здания и сооружения»;

-        СН РК 3.02-23-2005 «Инструкция по проектированию закрытых спортивных залов»

Дворца спорта «Жастар»с местами для зрителей на 1500 мест предназначен для организации массовых спортивно-зрелищных мероприятий.

Основное предназначение дворца - организация обучения тренировок и проведение соревнований по олимпийским видам спорта. Возможно проведение концертных мероприятий.

Для организации тренировочного процесса и проведения соревнований дворец представляет собой комплекс помещений, обеспечивающий организованную структуру: универсальное поле со стационарными трибунами для зрителей, вспомогательные помещения, пункты общественного питания, санитарно-бытовые и санитарно-гигиенические помещения, зал хореографии, помещения по общей физической подготовке на тренажёрах, зал сухой разминки, сауны, гостиница, тир и бильярдная.

Основные функциональные помещения:

.        Судейский блок (бригада судей из 13 человек) со следующим набором основных помещений:

         Раздевалки со шкафчиками, скамейками и санитарно-бытовыми комнатами для главного судьи и судейской бригады;

-        Комната судьи видеоповтора;

         Помещение статистической службы (3 человека);

         Офис президента (руководства федерации);

         Офис исполнительного директора и секретариата (3 - 6 человек);

         Помещение собраний на 30 мест;

         Помещения фотографов и прессы;

         Помещения для отдыха официальных лиц соревнований (20 человек);

         Офис руководства соревнований (на 10 человек).

2.      Основная зона.

         Универсальное поле размером 60х30 метров, оборудованное воротами и другим оснащением, которые могут трансформироваться под размеры для проведения соревнований под эгидой НБА с шириной площадки размером 26 м.;

-        Помещения на четыре команды (4 раздевалки с одновременным пребыванием 25 игроков в каждой раздевалке). В каждой раздевалке комната тренера, кладовая, сушилка, душевая и санузел;

         Помещения на четыре команды для ДЮСШ (4 раздевалки). В каждой раздевалке комната тренера, кладовая, сушилка, душевая и санузел;

         Зал разминки - тренажёрный зал;

         Зона отдыха игроков.

3.      Зона трибун для зрителей на 1500 мест. Трибуны выполняются в стационарном исполнении с местами для сидения.

4.      Зона помещений для работы представителей массовой информации. Основные помещения - рабочая зона прессы и фотографов, информационный офис телевещания и другие.

.        Зона VIP. Помещения VIP кабинетов с гардеробными и санузлами. Обеспечена возможность обеспечения отдельного входа и использование лифта.

.        Вестибюльная группа помещений.

.        Вспомогательные помещения. Пункты общественного питания, санитарно-бытовые и санитарно-гигиенические помещения, помещения для занятий по общей физической подготовке, помещения для руководства и технических работников обслуживающего комплекс персонала с санитарно-бытовыми помещениями.

Похожие работы на - Организация проведения спасательных работ при возможном пожаре в спортивном комплексе 'Жастар' города Талдыкоргана

 

Не нашли материал для своей работы?
Поможем написать уникальную работу
Без плагиата!
Без нейросетей!