Оценка химической и радиационной обстановки
ГОУ ВПО
Санкт-Петербургский государственный архитектурно-строительный университет
Архитектурный
Факультет
Кафедра
Безопасность жизнедеятельности
Дисциплина:
«Безопасность жизнедеятельности»
Специальность:
270301 «Архитектура»
Расчётно-графическая
работа
Выполнил студент гр. 4-А-IV
Коковихин Григорий
г.
Санкт-Петербург 2015 г.
Содержание
1. Оценка воздействия опасных
факторов пожара на персонал и население»
. Оценка химической обстановки при
авариях на химически опасных объектах
. Оценка радиационной обстановки на
местности при проведении аварийно-спасательных и других неотложных работ в
мирное время
. Исследование мероприятий по
повышению коэффициента защиты помещения, приспосабливаемого в качестве
противорадиационного укрытия
1. Оценка воздействия опасных факторов пожара на
персонал и население
. Объект экономики расположен на территории
населённого пункта в районе плотной застройки общей площадью S
Т
=
46000 м2.
Расстояние между зданиями составляет R
=18 м. Площадь занимаемая зданиями в районе общей застройки составляет: жилых:
- SЗД жилых =
53% к SТ.
Зданий объекта экономики: - SЗД
оэ = 31% к SЗД
жилых.
Основным производственным процессом объекта
экономики является производство с воспламеняющимися жидкостями, которое в
соответствии с технологией имеет температуру вспышки 190С. Предел
огнестойкости здания составляет 1,0 ч.
Погодные условия: Скорость ветра V=5
м/с, влажность: j =36 %
Длина фронта пожара LФ=350
м
норматив тушения пожара на одно противопожарное
отделение составляет (за 10 ч) - h
= 60 м
Требуется выполнить:
Дать оценку пожарной обстановки, как на ОЭ, так
и возможных последствий пожаров для района нахождения ОЭ, а так же рекомендации
по их предотвращению.
Определить порядок действий персонала ОЭ и
жителей городской застройки в условиях возникновения пожара.
Решение:
. Устанавливаем степень огнестойкости здания:
при пределе огнестойкости основных конструкций 1,0 часа здание относится к IV
степени огнестойкости (табл. 33 [1]).
. Определяем категорию взрывопожарной опасности
производства. Поскольку tвсп=19
0С, то производство относится к категории А.
. Определяем плотность застройки:
Площадь, занимаемая жилыми зданиями:
SЗДжилых=0.54*SТ=0,53*46000=25440
м2.
Площадь, занимаемая зданиями ОЭ:
SЗДоэ=0,34*SЗДжилых=0,31*25440=7886,4
м2
Общая площадь, занимаемая зданиями:
SЗД =
SЗД оэ +
SЗД жилых =
25440+ 7886,4 = 33326,4 м2.
Плотность застройки:

.
. Определение вероятности
возникновения и распространения пожара (Р):
· в зависимости от расстояния между
зданиями(R=18) : по табл. 34
[1] вероятность распространения пожара на соседние здания составит:
· в зависимости от плотности застройки
(график на рис. 26 [1]) - опасная зона распространения пожаров
. Возможность возникновения сплошных пожаров.
В соответствии с табл. 32 [1] при плотности
застройки более 30% для зданий III
степени огнестойкости возможны сплошные пожары.
. Определяем скорость распространения пожара.
При скорости ветра V=5
м/с и влажности воздуха j =36 % имеет место высокая скорость(I)
распространения пожара (рис. 27 [1]).
Рис. 1 Зависимость вероятности распространения
пожара от плотности застройки
Рис. 2. I
- распространяется очень быстро - срочная эвакуация; II
- распространяется быстро - эвакуация, либо локализация пожара; III
- распространяется медленно.
. Определяем потребность в силах для
пожаротушения (количество отделений):

.
9. Определяем характер воздействия пожара на людей
в ЗС :
В соответствии с табл. 1 [1] за 1,0 часа, при
отдельно стоящем типе защитных сооружений, люди получат легкое отравление.
Таблица 1
Выводы:
Оценка пожарной обстановки в населённом пункте:
. Степень огнестойкости - IV
. По пожарной опасности технологического
процесса категория A.
. Исходя из плотности застройки, делаем вывод,
что это опасная зона распространения пожаров.
. Исходя из скорости распространения пожара -
необходима срочная эвакуация.
.Исходя из типа защитных сооружений и времени
воздействия, люди получат легкое отравление.
. Исходя из длины фронта пожара и норматива на
одно отделение - необходимо 6 отделений противопожарной службы.
Определяем возможные последствия пожара: из
приведенных расчетов видно, что возникший пожар при несвоевременной его
локализации может с высокой вероятностью распространиться на соседние здания и
перейти в сплошной пожар. Поэтому для предотвращения последствий такого пожара
необходимо:
1) соблюдение правил безопасной эксплуатации
технологических установок и емкостей, использующих или содержащих легко
воспламеняющиеся жидкости и газы;
) содержание в рабочем состоянии систем
автоматического пожаротушения и совмещенных с ними систем пожарной
сигнализации;
) обеспечение готовности эвакуационных путей и
выходов к организованному выводу персонала из опасной зоны;
) своевременное оповещение о начале пожара и
вызов противопожарной службы.
Порядок действий персонала и населения в
условиях возникновения пожара:
По сигналу пожарной тревоги персоналу объекта
следует: 1) немедленно вызвать пожарную охрану; 2) по возможности обесточить
здание, оборудование внутри его, отключить работу установок; 3) определив
направление развития пожара, организованно покинуть здание согласно схемам эвакуации;
4) далее действовать по указаниям штаба ГО и ЧС предприятия, дежурных служб
МЧС.
Населению района необходимо следить за
сообщениями органов ГО и ЧС по СМИ и своевременно покинуть жилище в случае
распространения пожара. Далее действовать по указаниям соответствующих служб.
Дано: Склад с АХОВ расположен южнее города.
Глубина санитарной зоны - 4 км.
На удалении 0,5 км от северной границы склада в T:
6.17 произошла авария емкости с АИ объемом Q
= 20 тыс.тонн. Емкость обвалована, высота обваловки H
= 2,9 м. Метеоданные: ветер южный; скорость V=
2 м/сек; восход солнца в Tвосх:
7.17; температура воздуха t
= -6°С; ясно.
Примечание: АИ - аммиак при изотермическом
хранении.
Определить: степень угрозы химического поражения
для жителей города через 4 часа после взрыва.
Графическая часть:
Рис 1: План местности
Рис 2:Обваловка местности с АХОВ
Решение:
. Количество эквивалентного вещества по
первичному облаку, т:
где К1 = 0,01 - зависит от условия
хранения АХОВ;
К3 = 0,04 - коэффициент, равный
отношению пороговой токсодозы хлора к пороговой токсодозе данного АХОВ;
К5 = 1,0 - коэффициент, учитывающий
степень вертикально устойчивости воздуха при инверсии (ночь, ясно);
К7 = 1 - коэффициент, учитывающий
влияние температуры воздуха (-6°С);
Q0 =
20 000 т - количество выброшенного (разлившегося) при аварии вещества.
. Время испарения аммиака с площади
разлива:
где h
- толщина слоя АХОВ при разливе в обваловании: h
= H - 0,2 = 2,9 - 0,2
= 2,7 м; d = 0,681 т/м3- плотность жидкого аммиака; K2 =
0,025 - коэффициент, зависящий от физических свойств АХОВ; K4 =
1,33- коэффициент, учитывающий скорость ветра; K7 = 1,0 для
вторичного облака при -6ºС.
. Эквивалентное количество вещества (т)
во вторичном облаке:
В указанной формуле для QЭ2 значения
всех коэффициентов, за исключением K6, уже известны. K6
зависит от времени, прошедшего после начала аварии (N, ч). Необходимо сравнить
N со временем испарения Т=55 ч.
N = 4 ч (условие
задачи), при N < T
принимается К6 = N0,8
=
40,8 = 3,03.
4. Глубина зоны заражения
первичным облаком (Г1) для 
а также вторичным облаком (Г2)
для 
и скорости ветра V= 2 м/сек
. Полная глубина заражения Г (км).
Г = ГI + 0,5ГII,
где ГI
=
Г2 - наибольший из размеров, ГII
=
Г1 - наименьший из размеров.
. Находим предельно возможное значение
глубины переноса воздушных масс Гп, км:
Гп = N∙ν,
где N
= 4 ч - время от начала аварии, ν - скорость
переноса фронта зараженного воздуха при данной скорости ветра и степени
вертикально устойчивости воздуха; ν = 10 км/ч;
Поскольку Гп > Г, то при расчете
площади фактического заражения будем принимать Г.
Глубина заражения в жилых кварталах города
. Площадь зоны фактического заражения (км2)
через 4 ч после аварии (Sф):
где К8 = 0,081 - при инверсии, Г
= 27 км, N = 4 ч.
. Площадь зоны возможного заражения:
где φ = 90º при
скорости ветра v = 2 м/с, Г
= 27 км.
при этом Sв
>
Sф.
Выводы:
Таким образом, так как продолжительность
поражающего действия АХОВ (аммиака) равна времени испарения и составляет 55 ч,
а глубина зоны заражения жилых кварталов города 22,5 км, сделаем вывод:
· через 4 ч после аварии облако зараженного
воздуха (ОЗВ) представит опасность для населения, проживающего на удалении 22,5
км от южной окраины города в течение последующих (50-4) = 46ч, или 1,92 сут., с
площадью зоны заражения 
= 77,9
.
Так как аммиак опасен для человек и оказывает
следующее влияние:
слезотечение, боль в глазах;
удушье, приступы кашля;
головокружение, боль в желудке, рвота;
расстройство дыхания, кровообращения;
сердечная слабость, остановка дыхания,
необходимо оказать неотложную помощь:
надеть противогаз;
вынести на свежий воздух;
вдыхание теплых водяных паров с добавлением
уксуса или лимонной кислоты;
теплое питье - молоко с боржоми или содой;
искусственное дыхание;
глаза промыть водой;
освободить от стесняющей одежды;
пораженного согреть и обеспечить покой.
и применять средства индивидуальной защиты:
фильтрующий противогаз: промышленные марки: Г,
КД, СО, ДП-2; гражданские: ГП-5, ГП-7 с ДПГ-1,2;
изолирующие противогазы;
респираторы РПГ-67 КД;
ВПМ, пропитанные уксусной или лимонной кислотой;
защитный костюм, перчатки сапоги.
Дегазатором для аммиака является вода - на 1 т
аммиака 150 т воды.
3. Оценка радиационной обстановки на местности
при проведении аварийно-спасательных и других неотложных работ в мирное время
Исходная обстановка:
Объект экономики расположен на территории
населённого пункта г Борска. В соответствии со складывающейся
военно-политической обстановкой в городе Борске и области в 05 час. 30 мин.
09.09.2002 объявлена «УГРОЗА нападения» (УН). Срочно проводятся мероприятия,
предусмотренные планами ГО области, города и объекта народного хозяйства.
В 7.00 10.09 подан сигнал «ВОЗДУШНАЯ ТРЕВОГА»
(ВТ). Население укрылось в защитных сооружениях. Рабочие и служащие завода
строительных конструкций (ЗСК) укрылись в убежище № 1 и подземной галерее для
подачи инертных материалов к бетоносмесительному узлу.
В 8.00 10.09 противник нанес ядерные удары:
по городу - воздушный взрыв мощностью 500 кТ,
эпицентр взрыва - площадь с памятником на пересечении основных магистралей
города;
по заводу № 25 на территории области - наземный
взрыв мощностью 100 кТ, центр взрыва - перекресток дорог в 1км северо-западнее
завода.
В результате ядерного удара по городу на объекте
(ЗСК) возникли разрушения зданий и сооружений, завалы на проездах и пожары;
имеются жертвы среди рабочих и служащих. На местности в районе воздушного
ядерного взрыва средняя прозрачность воздуха, видимость до 20 км. Радиоактивное
облако от наземного ядерного взрыва движется в северо-западном направлении,
азимут среднего ветра 135°, скорость среднего ветра 50 км/час.
Для ведения АСДНР из района: Иваново, Угрюмово,
Писарево направляется сводная команда механизации работ (СвКМР) с приданными СГ
и СД, со сроком прибытия на объект работ к 11.00 10.09. Заданная доза
радиоактивного облучения личного состава на первые сутки установлена 30 Р.
Штаб ГО города производит выявление
радиоактивной обстановки и планирования ввода сил ГО в очаг поражения.
Рассчитывая дозы облучения за время пребывания в
зонах радиоактивного заражения, нужно учитывать остаточные дозы радиации в
человеческом организме, сохранившиеся от предыдущих облучений. Первые четверо
суток первичного облучения организм инертен и только с пятых суток начинает
восстанавливаться, но медленно (через 14 недель, т.е. через 3,5 месяца -
остается еще 10 % дозы).
Остаточной дозой радиации называется доза
облучения в % от ранее полученной дозы и не восстановленная организмом человека
к данному времени (она показана в таблице 1.1):
Задача 1: Определить полученную дозу для
резчиков металла (К=1) и бульдозеристов (К=4), если уровень радиация на время t
= 2,2 ч составляет Р = 20 р, время начала работы tнач
= 2,6 ч, а продолжительность рабочей смены Т = 3,1 ч.
Задача 2: Определить продолжительность рабочих
смен в течение суток (3 смены) для резчиков металла (К=1) и бульдозеристов
(К=4), если уровень радиации на время t
= 2,2 ч составляет Р = 20 р, время начала работы tнач
=
2,6 ч.
Задача 3: Определить допустимое время начала
работ для резчиков металла (К=1) и бульдозеристов (К=4], если уровень радиации
на время t = 2,2 ч составляет
Р = 20 р, а продолжительность рабочей смены T
= 3,1 ч.
Задача 1
Определить полученную дозу для резчиков металла
(К=1) и бульдозеристов (К=4), если уровень радиация на время t
= 2,2 ч составляет Р = 20 р, время начала работы tнач
= 2,6 ч, а продолжительность рабочей смены Т = 3,1 ч.
Решение:
1. По номограмме для приведения уровней
радиации на час после взрыва, если уровень радиации на t
= 2,2 ч после взрыва составляет Р = 20 р/ч, определим Р1 = 46 р/ч.
. По номограмме: Др = 28 р, Дб
= 7 р.
. При проведении аварийно-спасательных
работ доза заданная принимается 50-60% от безопасной, следовательно Дзад =
25 р.
Рис. 3
Вывод: В зоне радиоактивного загрязнения, через
2,6 часа после взрыва в течение 3,1 часов могут находиться только бульдозеристы
Задача 2
Определить продолжительность рабочих смен в
течение суток (3 смены) для резчиков металла (К=1) и бульдозеристов (К=4), если
уровень радиации на время t
= 2,2 ч составляет Р =20р, время начала работы tнач
=2,6ч.
Решение:
. Используя полученные ранее значения Р1
= 46 р/ч, по номограмме определяем длительность рабочих смен резчиков
металла (К=1):
1 смена 2 смена
Рис. 4 3 смена
2. Аналогично определяем длительность
рабочих смен бульдозеристов (К=4)
Рис. 5 1 смена
Вывод:
1. Для резчиков металла время начала работы
для первой смены - 2,6 часа после взрыва, длительность смены 2,1 часа; для
второй смены - 4,7 и 5 часов соответственно; для третьей смены - 9,7 и 8 часов
(так как возможная продолжительность смены 14 часов превышает 8 часов).
. Так как каждая рабочая смена для
бульдозеристов имеет продолжительность более 8 часов, то принимаю:
продолжительность рабочих смен бульдозеристов - 8 часов, а время начала работ
2,6, 10,6, 18,6 часов после взрыва соответственно.
Задача 3
Определить допустимое время начала работ для
резчиков металла (К=1) и бульдозеристов (К=4], если уровень радиации на время t
= 2,2 ч составляет Р = 20 р, а продолжительность рабочей смены T
= 3,1 ч.
Решение:
. Используя полученное при решении задачи
№1 значение Р1 = 46 р/ч, определяем допустимое время начала работ
для резчиков металла (К=1)
Рис. 5
.
Определяем допустимое время начала работ для бульдозеристов (К=4)
Рис. 6
Вывод: Допустимое время начала работы резчиков
металла составляет tн.р.=3,1 ч,
а бульдозеристов - tн.р.= 0,5 ч.
Общий вывод:
Для обеспечения успешных действий формирований
ГО и организации надежной защиты населения исключительно важно своевременно
обнаружить очаг, определить его вид и масштаб, правильно оценить степень
огнеопасности для людей и разработать конкретные меры защиты правил действий
населения. Быстрая и правильная оценка обстановки дает возможность руководителю
ОЭ (начальнику ГО) принять оптимальное решение для спасательных работ в очаге
поражения, а также для выбора средств и способов защиты личного состава
формирований и населения.
Обстановка может быть выявлена и оценена:
) Методом прогнозирования (прогнозируемая
обстановка).
) По данным разведки (фактическая обстановка).
Выявление обстановки методом прогнозирования
производится как до, так и после применения противником ОМП. Методом
прогнозирования обстановка оценивается штабами ГО городов и районов. Прогноз
дает приближенные характеристики обстановки, которые могут существенно
отличаться от фактических. Поэтому прогнозируемая обстановка уточняется данными
всех видов разведки, проводимой на местности.
Под радиационной обстановкой понимают
обстановку, сложившуюся на данное время, после взрыва или выпадения
радиоактивных осадков: 1)масштабы заражения (размеры зараженной территории) и
2)степень заражения (уровни радиации).
При радиоактивном заражении местности для
предотвращения поражения людей и обеспечения продолжения производственной
деятельности необходимо заранее разработать режим радиационной защиты.
. Исследование мероприятий по повышению
коэффициента защиты помещения, приспосабливаемого в качестве
противорадиационного укрытия
Цель работы:
Выработать практические умения в решении задач,
выполнении чертежей и производстве расчетов при прогнозировании, оценке и мерах
защиты в чрезвычайных ситуациях.
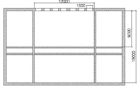
Исходные данные:
Длина помещения: l
= 12м
Ширина помещения: b =9м
Ширина здания: B = 18м
Высота помещения: h1 = 3м
Сумма плоских углов SaI
:
106
Площадь оконных проемов первого этажа: So = 12,0
м2
Расстояние от пола 1 этажа до оконного проема:
hо = 0,8м
Вес 1 м2 наружных стен: qст =
450 кг/м2
Заданный коэффициент защиты: Kзад =
180
Тип здания: Первый этаж многоэтажного каменного
здания
Примечания:
)суммарный вес наружных и внутренних стен, кроме
одной - более 1000кг/м2;
) размеры оконных проемов на первом этаже -
1,6х1,5 м (площадь окна 2,4м2);
) расстояние от планировочной отметки грунта до
пола первого этажа - 0,5м.
Рис. 7
В соответствии со СНиП II-11-77*
«Защитные сооружения ГО» защитные свойства ПРУ от гамма-излучений оцениваются коэффициентом
защиты КЗ. Он характеризует степень ослабления излучений вследствие
их рассеивания в объемах помещений при проникании их сквозь толщу ограждающих
конструкций.
Определяется по формуле (для ПРУ, расположенного
на первом этаже многоэтажного здания):
Где K1 - характеризует фронт
проникания излучений через все наружные и внутренние стены здания в точке,
расположенной в геометрическом центре ПРУ;
К0 - учитывает снижение поглощающей
способности наружных стен за счет оконных и дверных проемов;ш -
учитывает, какую часть зараженной территории занимает крыша здания;
КМ - коэффициент, учитывающий
снижение дозы радиации в зданиях, расположенных в районе застройки, от
экранирующего действия соседних строений;
Кст - коэффициент барьерной защиты,
учитывает поглощение излучений наружной стеной; г - коэффициент герметичности.
Определяем коэффициент К1,
учитывающий долю радиации, проникающей через наружные и внутренние стены:
Сумма плоских углов с вершиной в центре
помещения∑αi
- 137о, тогда:
Коэффициент КО, учитывающий
проникание в помещение вторичного излучения:
Коэффициент m= 0,8, т.к.
высота проема ho = 0,8 м;
Общая площадь оконных проемов So =
16,8 м2;
Площадь пола помещения Sп = l· b =
12м ·9м = 108м2;
Определяем коэффициент Кш, учитывающий, какую
часть зараженной территории занимает крыша здания.
Определяем коэффициент Kш
по таблице 29 СНиП, (высота помещений не учитывается).
Дано: ширины здания: B =18м
Кш = 0,38
По табл. 30 принимаем коэффициент Км,
учитывающий снижение дозы радиации в зданиях, расположенных в районе застройки,
от экранирующего действия соседних строений. При ширине зараженного участка D =
10 м, примыкающего к зданию:
Км = 0,55.
Определяем барьерный коэффициент Кст по табл.28,
для чего находим:
площадь стены:
м2
приведенный вес 1м2
наружной стены:
кг/ м2
определяем методом интерполяции
барьерный коэффициент Кст по табл.28 СНиП I-11-77* Кст =5,2
Определяем коэффициент
герметичности:
0 /Sп
<0,3, Кг = 0,8; 0 /Sп >0,5 , Кг
=0,45.
где So - суммарная
площадь оконных проемов, Sо=16,8 м2
n - площадь пола помещения, Sп= l* b=12*9=108 м2
S0 /Sп
=16,8/108=0,135 м2
S0 /Sп <0,3
Cледовательно
Kг = 0,8
Вычисляем первоначальный коэффициент
защиты:
Известные данные:
K1 = 2,54; Kст= 5,2; Kг= 0,8; Kш= 0,38; Ко =
0,1244;Kм = 0,65.
Полученное по приведенным расчетам
значение (Кз=12,23) меньше минимально допустимого для ПРУ(110), поэтому
требуется провести мероприятия по повышению степени противорадиационной защиты
помещения.
Расчет мероприятий по повышению коэффициента
защиты
Помещение расположено на первом этаже,
следовательно, можно провести следующие мероприятия:
. Заделка оконных проемов кирпичом. При этом
уменьшаются расчетная площадь проемов и величина коэффициента Ко.
. Устройство пристенных экранов из различных
материалов. Это мероприятие значительно увеличивает суммарный вес стен и
повышает кратность ослабления излучений Кст.
. Герметизация соседних помещений.
.Также возможно комбинирование приведенных
мероприятий.
Рассмотрим вариант повышения Kз путем
закладки оконных проемов кирпичом полностью толщиной 25 см.
Тогда So = 0 м2 , а значит и Ко = 0 и
qпр= qст= 450 кг/м2.
Необходимо определить новое значение барьерного
коэффициента Кст. При qпр= qст= 450 кг/м2. по
табл.28:
Кст = 22.
Коэффициент защиты будет равен:
Первоначальный коэффициент защиты с
полной закладкой окон кирпичом в 25 см: Кз = 91,08
Трудоемкость работ по герметизации
проемов рассчитывается по формуле:
= Fзaз
где nг - количество герметизируемых
проемов; aг - удельная трудоемкость герметизации.
Выбирается вариант с наименьшими
трудозатратами, который может быть реализован с учетом имеющихся возможностей
(наличия специалистов, машин и пр.). Таким образом, эффективность намеченных
мероприятий оценивается степенью повышения Kз и сравнительной
трудоемкостью работ. Площадь закладки, м2 , Fз = Sо
= 16,8 м2, aз=1,0 чел.×ч
Вывод: трудоемкость варианта
повышения Kз путем закладки оконных проемов кирпичом полностью
толщиной 25 см составляет 2,4чел.×ч.
Дополним предыдущий вариант
устройством пристенного экрана из кирпича толщиной 25 см.
По таблице 6 вес 1 м2
пристенного экрана из кирпича равен 450 кг.
Следовательно: вес 1 м2
сплошной стены qст= 450+450 = 900 кг/м2
Определяем методом интерполиции
барьерный коэффициент Кст табл. 28 СНиП II-11-77*
Ответ: Кст = 500
Находим коэффициент защиты:
Вывод: новый первоначальный
коэффициент защиты с устройством пристенного экрана из кирпича толщиной 25 см Кз
= 2070,22
Определим трудоемкость (А) варианта:
Для этого найдем:
высоту экрана. По условию расстояние
от планировочной отметки грунта до пола первого этажа - 0,5 м. При отметке пола
0,5 м над уровнем земли и устройстве экрана по высоте до уровня верха закладки
имеем:
Дано: hо= 0.8 м
Высота окна - 1,6 мэ = hо+
0,5=1,6+0,8+0,5=2,9 м
длину экрана. Она равна длине помещения
плюс две толщины поперечных стен, которые принимаем по 0,3 м:
Дано: l=6м э =
12+0,6=12,6 м
Площадь экрана, м2, Fз= lэ*hэ=
12,6*2,9= 36,54 м2
Трудоемкость варианта, чел.×ч:
A = Fзaз + Fэaэ=
36,54+16,8*1= 53,34чел.×ч
твет: А = 53,34 чел.×ч
Таким образом, трудоемкость варианта
устройства пристенного экрана из кирпича толщиной 25 см и высотой 2,6 м
составляет 57,36чел.×ч.
Применим теперь закладку оконных проемов с
оставлением 0,3 м сверху
1. Определяем количество окон (N).
По условию площадь окна 2,4 м2
= Sо/2,4 = 16,8/2,4 = 7
. Т.к. размеры оконных проемов на первом этаже -
1,6´1,5
м, то новое значение Sо (суммарная площадь оконных проемов), м2,
будет равно:
о = 1,5×0,3×n
=0,45×7=3,15
. Величина hо (высоты оконного проема
над уровнем пола) м, составит:
о=
hо,нач+1,6-0,3 =0,8+1,3 = 2,1.
При этом m = 0,12 (см. таблицу 1)
. Найдем новое значение Kо
Известно: m
= 0,12, Sо=3,15, Sп=135;
о= m× (Sо/Sп)=0,12*(3,15/135)=
0,0028;
. Надем приведенный вес 1 м2 наружной
стены, кг/м2
Дано: Scт=45,
S0=3,15, qст=450
Решение: qпр=450*((45-3,15)/45)=
419кг/м2.
. Методом интерполяции таблицы 7
определяем Кст
Ответ: Кст = 18,28
. Определяем коэффициент защиты:

Ответ: первоначальный коэффициент
защиты с закладкой окон кирпичом в 25 см с оставлением 0.3 м сверху: Кз
= 23,88
. Площадь закладки, м2 ,
Fз= Sо.нач - Sо=16,8 -3,15= 13,65м2
.Трудоемкость варианта, чел.×ч, составит
A = Fзaз= 13,65*1= 13,65чел.×ч
Таким образом, трудоемкость варианта
закладки оконных проемов с оставлением 0,3 м сверху кирпичом составляет
13,65чел.×ч.
Рассмотрим вариант повышения Kз
путем закладки оконных проемов на высоту 1,7 м от пола.
. Величина hо (расстояние
от пола 1 этажа до оконного проема), м, составит hо=1,7< 2.
Методом интерполяции находим m (см.
аналог в начале): m= 0,13
. Определяем количество окон (N). По
условию площадь окна 2,4 м2
n=Sо/2,4=16,8/2,4= 7
Ответ: N =7
. Т.к. размеры оконных проемов на
первом этаже - 1,6´1,5 м, то
новое значение Sо (суммарная площадь оконных проемов), м2,
будет равно:
о = 1,5×0,1×n
= 1,5*7*0,1=1,05
м2
. Найдем новое значение Kо
Известно: m = 0,13, Sо=1,05, Sп=135;
о= m× (Sо/Sп)=0,13*(1,05/135)=
0,001;
. Надем приведенный вес 1 м2
наружной стены, кг/м2
Дано: Scт=45, S0=1,05,
qст=450
Решение: qпр=450*((45-0,05)/45)=
440кг/м2.
. Методом интерполяции таблицы 7
определяем Кст
Ответ: Кст =20,8
. Определяем коэффициент защиты:

Ответ: первоначальный коэффициент
защиты с закладкой оконных проемов на высоту 1,7 от пола: Кз = 71,22
. Площадь закладки, м2 ,
з= Sо.нач
- Sо=16,8-0,9 = 15,9 м2
9. Трудоемкость варианта, чел.×ч, составит
= Fзaз=15,9*1=15,9
чел.×ч
Таким образом, трудоемкость варианта
закладки оконных проемов на высоту 1,7 м от пола кирпичом составляет 15,9 чел.×ч.
Вывод:
В результате произведенных расчетов
определенно, что первоначальный коэффициент защиты помещения при заданных
параметрах составляет Кз=12,23. Полученное по приведенным расчетам
значение меньше минимально допустимого для ПРУ(110), поэтому требуется провести
мероприятия по повышению степени противорадиационной защиты помещения.
Проведены следующие расчеты по
определению оптимального варианта, обеспечивающего заданную степень
противорадиационной защиты, который имеет минимальные трудозатраты и
удовлетворительный коэффициент защиты от радиации:
• дополнение предыдущего варианта
устройством пристенного экрана из кирпича толщиной 25 см.
• закладка оконных проемов с оставлением
0,3 м сверху.
• закладка оконных проемов на высоту 1,7
м от пола.
• Из рассмотренных вариантов повышения
защитных свойств помещений ПРУ требованиям противорадиационной защиты отвечает
только вариант устройства пристенного экрана из кирпича. При этом коэффициент
защиты помещения выбираемого в качестве ПРУ составляет 2070,22. Однако этот
вариант и самый трудоемкий - 53,34
чел.×ч.
• Таким образом, всем требованиям ПРУ в
данном расчете отвечает устройство пристенного экрана из кирпича толщиной 25
см. Однако для выявления наиболее экономичного варианта следует воспользоваться
электронной программой «Защита» для расчета всех возможных вариантов
мероприятий обустройства ПРУ.
пожар химический радиация
Список использованной литературы
1. Учебное пособие: «Гражданская
защита в чрезвычайных ситуациях», часть I, В.К. Смоленский, И.А. Куприянов,
СПбГАСУ, 2007 г.
. СНиП II-11-77*. Защитные
сооружения гражданской обороны.
. Графики и номограммы для решения
задач по оценке радиационной обстановки. СПбГАСУ.
. Таблицы для оценки химической
обстановки. СПбГАСУ.
. Журавлев В.Н. и др. Защита
населения и территорий в условиях чрезвычайных ситуаций. - М.: Ассоциация
строительных вузов. 1999.