Защита кабинета руководителя от утечек по электромагнитному и акустоэлектрическому каналам

  • Вид работы:
    Курсовая работа (т)
  • Предмет:
    Информатика, ВТ, телекоммуникации
  • Язык:
    Русский
    ,
    Формат файла:
    MS Word
    130,09 Кб
  • Опубликовано:
    2015-05-27
Вы можете узнать стоимость помощи в написании студенческой работы.
Помощь в написании работы, которую точно примут!

Защита кабинета руководителя от утечек по электромагнитному и акустоэлектрическому каналам

Содержание


Введение

Глава 1. Анализ степени защищенности объекта защиты и разработка требований его защищенности

.1 Анализ объекта защиты

.2 Анализ угроз и уязвимостей

.3 Требования защищенности объекта защиты кабинета руководителя по электромагнитному и акустоэлектрическому каналам

Выводы по первой главе

Глава 2. Разработка технического решения по защите конфиденциальной информации в кабинете руководителя

.1 Технические решения по защите по электромагнитному каналу

.2 Технические решения по защите по акустоэлектрическому каналу

Выводы по второй главе

Заключение

Список литературы

Источники используемой литературы

 

Введение


С древнейших времен любая деятельность людей основывалась на получении и владении информацией, т.е. на информационном обеспечении. Именно информация является одним из важнейших средств решения проблем и задач, как на государственном уровне, так и на уровне коммерческих организаций и отдельных лиц. Но так как получение информации путем проведения собственных исследований и создания собственных технологий является достаточно дорогостоящим, то часто выгоднее потратить определенную сумму на добывание уже существующих сведений. Таким образом, информацию можно рассматривать как товар. А бурное развитие техники, технологии и информатики в последние десятилетия вызвало еще более бурное развитие технических устройств и систем разведки. В создание устройств и систем ведения разведки всегда вкладывались и вкладываются огромные средства во всех развитых странах.

Одним из возможных каналов утечки информации является излучение элементов компьютера. Принимая и декодируя эти излучения, можно получить сведения обо всей информации, обрабатываемой в компьютере. Этот канал утечки информации называется ПЭМИН (Побочные Электромагнитные Излучения и Наводки). В Европе и Канаде применяется термин «compromising emanation» - компрометирующее излучение.

Процесс перехвата конфиденциальной информации путем приема паразитного излучения композитного сигнала монитора вполне реален, но процесс этот достаточно длителен - нужно дождаться, пока пользователь выведет на экран монитора интересующую конфиденциальную информацию. Такой процесс может занимать дни и недели. Встала задача заставить компьютер передавать нужную информацию и не ждать, пока пользователь сам обратится к конфиденциальным документам, которая может быть решена следующим образом: нужный компьютер «заражается» специальной программой-закладкой любым из известных способов Программа ищет необходимую информацию на диске и путем обращения к различным устройствам компьютера вызывает появление побочных излучений. Например, программа-закладка может встраивать сообщение в композитный сигнал монитора, при этом пользователь, играя в любимый Солитер, даже не подозревает, что в изображение игральных карт вставлены конфиденциальные текстовые сообщения или изображения. С помощью разведывательного приемника (в простейшем варианте доработанный телевизор) обеспечивается перехват паразитного излучения монитора и выделение требуемого полезного сигнала.

Целью несанкционированного сбора информации в настоящее время является, прежде всего - коммерческий интерес. Как правило, информация разнохарактерна и разноценна и степень ее секретности (конфиденциальности) зависит от лица или группы лиц, кому она принадлежит, а также сферы их деятельности.

В настоящее время одним из актуальных вопросов в сфере защиты конфиденциальной информации является вопрос защиты от утечек по техническим каналам. Некоторыми из этих каналов являются акустоэлектрический и электромагнитный каналы утечки защищаемой информации, речь о которых и пойдет в курсовой работе. Невозможно переоценить важность проблемы утечки информации именно по этим каналам, т.к. условия, позволяющие допустить подобную утечку, встречаются повсеместно. Поэтому важно обеспечить защиту конфиденциальной информации в местах, где находится ее источник. Одним из таким мест является кабинет руководителя т.к, невозможно исключить вероятность передачи конфиденциальной информации в указанном помещении.

Цель курсовой работы - совершенствование систем защиты информации от утечек по электромагнитному и акустоэлектрическим каналам.

Задачами курсовой работы являются :

)        Проведение анализа объекта защиты, анализ угроз и уязвимостей, составление требований защищенности объекта защиты,

)        Разработка технических решений на основе полученных данных из анализа, который рассматривается в первой задаче, а именно технические решения по защите по электромагнитному и акустоэлектрическим каналам, а также разработка рекомендаций по реализации технических решений.

 

Глава 1. Анализ степени защищенности объекта защиты и разработка требований его защищенности

 

.1 Анализ объекта защиты


Виды и уровень угроз безопасности информации в кабинете руководителя зависят от его расположения и архитектурно-строительной конструкции, от формы представления информации во время проведения совещаний, от типов радио и электро-аппаратуры, размещенных в помещении.

Поэтому, для определения угроз необходимо рассмотреть структурную и пространственную модели помещения. Структурная модель описывает состав основных элементов комнаты, влияющих на безопасность информации в нем: двери, окна, радио- и электронные устройства, телефонные и другие линии связи, кабели электропитания и другие.

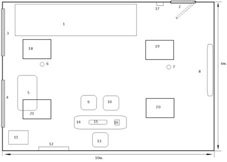
Ниже представлена структурная модель рассматриваемого кабинета руководителя. ( рис. 1)

Рисунок 1. Схема кабинета руководителя. Структурная модель

-стеллаж; 2- дверь; 3,4 - окна; 5 - диван; 6,7 - датчики дыма; 8 - телевизор; 9,10,13 - кресла; 11 - МФУ; 12- кондиционер; 14 - стол; 15 - ПЭВМ; 16 - телефон; 17 - Считыватель СКУД; 18,19,20,21 - лампы дневного света

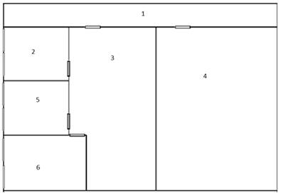
Пространственная модель(рис. 2) характеризует расположение зала в коридоре, этаже, ориентацию окон относительно внешних возможных мест расположения технических средств злоумышленника.

Из схемы видно, что окна выходят на улицу, одинарная дверь помещения выходит в зону 3 (рис. 2), которая является рабочей зоной той же фирмы, где не может находиться случайных посетителей.

Рисунок 2. Схема расположение залов на этаже; Пространственная модель

- коридор; 2,3,5 - рабочие зоны фирмы; 4 - рабочие зоны фирмы партнера; 6 - кабинет руководителя

Сегодня в России активно развивается промышленный шпионаж, использующий самые совершенные средства сбора информации. Из-за утечки информации многие фирмы терпят банкротство, либо вынуждены оставлять свой сектор рынка конкурентам.

При проведении совещаний с участием представителей сторонних организаций вниманию участников совещания предоставляются в полном объеме материалы информации, составляющие ту информационную базу, на основании которой принимаются конкретные решения при обсуждении проекта комплексной работы. В зависимости от вида предоставляются сведения, которые могут составлять коммерческую тайну какой-либо из участвующих организаций.

Источниками информации в кабинете руководителя могут являться акустическая информация, документы, задокументированные материалы для совещания, плакаты, фото, видео, аудио файлы, а также документы в электронном виде.

 

1.2 Анализ угроз и уязвимостей


Для защиты кабинета руководителя от утечки нужно понять, какими способами может происходить потенциальная утечка. В таблице 1 показаны объекты, через которые возможна утечка речевой информации по акустоэлектрическому каналу. В таблице 2 показаны объекты, через которые возможна утечка речевой информации по акустоэлектрическому каналу.

Из данных анализа, понятно по какому каналу и какой объект необходимо рассматривать, для достижения информационной защиты

Таблица 1 Акустоэлектрический канал

Предметы

Угроза

Уязвимость

1

Окна

 +

 +

2

Датчики дыма

 +

 +

3

Телевизор

 +

 +

4

МФУ

 +

 +

5

Кондиционер

 +

 +

6

ПЭВМ

 +

 +

7

Телефон

 +

8

Считыватель СКУД

 +

 +

9

Пусковое уст-во ламп дневного света

 +

 +

10

Провода

+

+


На рисунке 3 показаны элементы, с которыми необходимо провести работы для достижения защищенности конфиденциальной информации по акустоэлектрическому каналу. Звуковая(речевая) информация распространяется(механические колебания воздуха) от источника и принимается приборами, которые могут эту информацию передавать. В считывателе СКУД, лампах( пусковое уст-во), датчиках, ПЭВМ, кондиционере и телевизоре передатчиками являются акустопреобразующие элементы. Окна так же являются потенциальным передатчиком ,т.к возможно использование злоумышленниками лазерноего микрофона. Лазерный микрофон позволяет осуществлять дистанционное прослушивание помещений по колебаниям оконного стекла. Телефон также является передатчиком из-за возможности реализации микрофонного эффекта, защита от которого будет рассмотрена во второй главе.

Рисунок 3. Схема распространения речевой информации

А1- источник информации ;1 - Считыватель СКУД; 2,3,4,5 - пусковое уст-во ламп дневного света ; 6,7 - противопожарные датчики; 8 - ПЭВМ; 9-телефон; 10 - телевизор; 11 - МФУ; 12 - кондиционер; 13,14 - окна. * А1 - источник звуковой (речевой) информации, т.е человек. Источников может быть несколько

На схеме проводки (Рис. 4) видно, куда идут провода, соответственно становится понятно, в каких местах необходимо проводить работы по защите от утечек по электромагнитному каналу.

защита кабинет акустоэлектрический канал

Рисунок 4. Схема проводки Оранжевый - провода от ламп; голубой - от противопожарных датчиков; красный - от приборов; фиолетовый - от телефона; серым показана КЗ, желтым - защищаемое помещение

*Проводка в кабинете подробно описана на рис.5

Таблица 2 Электромагнитный канал

Предметы

Угроза

Уязвимость

1

Окна

 -

 -

2

Датчики дыма

 -

 -

3

Телевизор

 +

 +

4

МФУ

 +

 +

5

Кондиционер

 -

 -

6

ПЭВМ

 +

 +

7

Телефон

-

-

8

Считыватель СКУД

 -

 -

9

Пусковое уст-во ламп дневного света

 -

 -

10

Провода

+

+

 

 

.3 Требования защищенности объекта защиты кабинета руководителя по электромагнитному и акустоэлектрическому каналам


В кабинете руководителя должна быть обеспечена защита конфиденциальной информации.

Основными требованиями по защите речевой информации, циркулирующей в защищаемом помещении, являются:

·       Защищаемые помещения должны размещаться в пределах КЗ

·       Защищаемые помещения рекомендуется оснащать сертифицированными по требованиям безопасности информации ОТСС и ВТСС либо средствами, прошедшими специальные исследования и имеющими предписание на эксплуатацию.

Требованиями по защите информации, обрабатываемой средствами вычислительной техники, являются:

·       Использование технических средств, удовлетворяющих требованиям стандартов по электромагнитной совместимости;

·       Развязка цепей электропитания объектов защиты с помощью защитных фильтров, блокирующих (подавляющих) информативный сигнал;

Выводы по первой главе


В 1 главе выполнен анализ объекта защиты, в который входит анализ защищаемого объекта и определение информации, циркулирующей в защищаемом объекте. Также выполнен анализ угроз и уязвимостей.

После выполнения этих работ стало ясно, что кабинет руководителя, рассматриваемый в курсовой работе недостаточно защищен по акустоэлектрическому и электромагнитным каналам. Соответственно были вынесены требования по защищенности защищаемого объекта.

 

Глава 2. Разработка технического решения по защите конфиденциальной информации в кабинете руководителя

 

.1 Технические решения по защите по электромагнитному каналу


Электромагнитный канал утечки информации - физический путь от источника побочных электромагнитных излучений и наводок различных технических средств к злоумышленнику за счет распространения электромагнитных волн в воздушном пространстве и направляющих системах.

Электромагнитный канал утечки информации занимает лидирующее место среди других каналов утечки информации. Источниками утечки информации являются:

·       действующая аппаратура (ПЭВМ, дисплеи, факсы, телетайпы, радиотелефоны и т.д.), необходимая для функционирования фирмы;

·       вспомогательная аппаратура; кабели, находящиеся и проходящие через помещение фирмы;

·       Речь в помещении.

·       Утечка конфиденциальной информации по электромагнитному каналу возможна путем:

·       Прослушивания информации от радиотелефонов

·       Прослушивания информации от работающей аппаратуры фирмы

·       Прослушивания информации от внедренных радиозакладок

·       Утечки информации от вспомогательной аппаратуры и кабелей, проходящих через помещение

Защита информации от утечки по электромагнитным каналам - это комплекс мероприятий, исключающих или ослабляющих возможность неконтролируемого выхода конфиденциальной информации за пределы контролируемой зоны за счет электромагнитных полей побочного характера и наводок.

Защита от утечки по электромагнитному каналу обеспечивается пассивными и активными методами.

К методам пассивной защиты относится комплекс мероприятий по экранированию помещения и сигнальных проводов, осуществление развязки по цепям питания и т.д.

Активные - источники бесперебойного питания, шумогенераторы, скремблеры, устройства отключения линии связи, программно-аппаратные средства маскировки информации и др.

Активные способы защиты, направленные на увеличение Рш (создание маскирующего шума). Данный способ защиты осуществляется за счет скрытия информативных излучений шумовыми помехами внутри самой ПЭВМ и в линиях электропитания. К средствам активной защиты (САЗ) относятся: пространственное зашумление, линейной зашумление, уничтожение закладных устройств. Средства активной защиты (САЗ) применяются в случаях, когда контролируемая зона ОТСС превышает размеры контролируемой зоны объекта, и способы пассивной защиты неэффективны или экономически и технически нецелесообразны. Системы пространственного зашумления применяются для создания маскирующих помех в окружающем ОТСС пространстве.

В условиях, рассмотренных в ходе курсовой работы, нет необходимости применения активных средств защиты информации, т.к пассивными методами можно добиться защищенности информации от утечек по электромагнитному каналу.

Наиболее радикальным способом предотвращения перехвата информации от побочных излучений и установленных радиозакладок является экранирование помещений. Экранирование не требуется в описанных условиях, т.к две стены кабинета являются внешними стенами здания, а остальные две находятся на территории контрольной зоны. Возможность утечки путем использования радиозакладок исключается по той же причине, т.к это проблему можно решить организационными мероприятиями защиты информации, путем контроля над входящими в КЗ людьми, а также возможно использование видеотехники.

Отсюда следует, что остается защитить кабинет руководителя от утечек защищаемой информации по проводам, исходя анализа угроз и уязвимостей и из схемы проводки (Рис.3)

Рисунок 5. Схема проводки

В данной задаче рассмотрена защита по электромагнитному каналу, поэтому в расчет идут 2 цепочки проводов, а именно красная и фиолетовая.

К красной цепочке присоединены приборы: телевизор, МФУ, ПЭВМ. Все эти приборы включаются в разветвитель (a1), а дальше провода идут за территорию КЗ, поэтому необходимо поставить фильтр(а2), который защитит от утечек через указанные приборы.

На рисунке (рис. 4) показана схема установки трехпроводного помехопадавляющего фильтра типа ФП на объекте информатизации. При этом должны быть соблюдены следующие требования и рекомендации:

·       двух и трёхпроводные сетевые помехоподавляющие фильтры, предназначенные для питания отдельных СВТ (средства вычислительной техники), («фильтры для локальных цепей»), должны устанавливаться внутри помещений (объектов информатизации) и монтироваться таким образом, чтобы исключить возможность появления наведённого сигнала в фильтруемых (отходящих от фильтра) проводах электропитания. Это требование выполняется, если фильтр будет удалён от СВТ на расстоянии не менее, чем r1;

·       корпус фильтра должен быть заземлён на контур рабочего заземления, заземлитель которого должен находиться в пределах контролируемой зоны на расстоянии не менее 10 м от её границы.

Рисунок 5 . Схема установки

Для защиты цепей электропитания отдельных автоматизированных рабочих мест (АРМ) используются двух- и трёхпроводные однофазные помехоподавляющие фильтры: ФСП-1Ф-10А, ФП-10, ФСПК-10 и ЛФС-10-1Ф, рассчитанные на номинальное напряжение 220 В и ток 10 А. Фильтры ФП-10, ФСПК-10 и ЛФС-10-1Ф обеспечивают затухание от 60 до 80 дБ в полосе частот от 150 кГц до 1000 МГц, а фильтр ФСП-1Ф-10А - в полосе частот до 1800 МГц. Размеры фильтров составляют от 164x70x56 мм до 470x170x80 мм, а вес - от 0,8 до 6,0 кг. Наименьшие размеры и вес имеет фильтр ФСП-1Ф-10А, а наибольшее затухание (80 дБ) обеспечивает фильтр ФП-10. В корпусе фильтра ФСПК-10 имеется четыре розетки, в комплект поставки фильтра ФСП-1Ф-10А включена распределительная коробка на 4 евророзетки, что позволяет без использования дополнительных удлинителей подключать к ним основные технические средства, входящие в состав АРМ режимного делопроизводства.

 

2.2 Технические решения по защите по акустоэлектрическому каналу


Телефонные каналы связи представляет собой самый удобный и при этом самый незащищенный способ передачи информации между абонентами в реальном масштабе времени. Электрические сигналы передаются по проводам в открытом виде, и прослушивать телефонную линию очень просто и дешево. Современная техника телефонной связи продолжает оставаться наиболее привлекательной для целей шпионажа.

В телефонах с электромагнитным звонком существует возможность реализовать его обратимость (так называемый «микрофонный эффект»). При механических (в том числе и от голоса) вибрациях подвижных частей телефона в нем возникает электрический ток с амплитудой сигнала до нескольких милливольт. Этого напряжения вполне хватает для дальнейшей обработки сигнала.

Для защиты от «микрофонного эффекта» следует включить последовательно со звонком два запараллеленных во встречном направлении кремниевых диода.

Исходя из того, что кроме телефонной линии необходимо защитить помещение по остальным каналам утечки. На схеме поводки (рис.5) в точках а3,а4,а5,а6 необходимо обеспечить защищенности речевой информации от утечки по проводам, а в точках а7,а8 обеспечить защиту от лазерных микрофонов. Поэтому оптимальным решением было бы использование шумогенератора, который сведет угрозы к минимуму.

На практике наиболее широкое применение нашли генераторы шумовых колебаний. Шумогенераторы применяются для подавления непосредственно микрофонов как у радиопередающих устройств, так и у диктофонов, т. е. такой прибор банально вырабатывает некий речеподобный сигнал, передаваемый в акустические колонки и вполне эффективно маскирующий человеческую речь. Кроме того, такие устройства применяются для борьбы с лазерными микрофонами. При организации акустической маскировки следует помнить, что акустический шум создает дополнительный дискомфорт для сотрудников, для участников переговоров (обычная мощность генератора шума составляет 75-90 дБ), однако в этом случае удобство должно быть принесено в жертву безопасности. Оптимальным решением было бы использование генератора ЛГШ-301, который защитит и от утечки по проводам и от утечки со стекол.

Генератор акустического шума ЛГШ-301 предназначен для защиты речевой информации от перехвата по прямому акустическому, виброакустическому и оптикоакустическому каналам.

ЛГШ-301 используется в условиях замкнутого пространства с питанием от сети переменного тока 220 В. Данная модель защищает пространство объемом до 50 м3.

Генератор ЛГШ-301 может быть настроен на оптимальный для определенных условий уровень громкости и при последующем включении не требует дополнительной подстройки.

Технические характеристики:

·             Габаритные размеры 66×66×20 мм

·             Масса 100 г

·             Рабочее напряжение 5 В (±1%)

·             Параметры выходного акустического сигнала: основной диапазон частот 300-3400 Гц (речевой диапазон)

·             Сопротивление излучающей головки 8 Ом

Выводы по второй главе


Во второй главе курсовой работы были найдены необходимые технические решения по проведению технической защиты по электромагнитному каналу утечки информации, путем установки фильтра, который препятствует утечкам. Техническое решение по защите от утечек по акустоэлектронному каналу было принято в использовании шумогенератора, который решил проблемы потенциальной утечки по проводам и по стеклам. Телефонную линию обезопасили установкой(доработкой) кремниевых диодов., которые исключили возможность утечки речевой информации, через телефон.

 

Заключение


Целью курсовой работы было совершенствование систем защиты информации от утечек по электромагнитному и акустоэлектрическим каналам.

Так же были поставлены задачи курсовой работы по проведению анализа объекта защиты, анализ угроз и уязвимостей, составление требований защищенности объекта защиты, а также разработка технических решений на основе полученных данных из анализа, который рассматривается в первой задаче, а именно технические решения по защите по электромагнитному и акустоэлектрическим каналам.

В ходе курсовой работы задача по проведению анализа была полностью раскрыта, а именно был составлен анализ объекта защиты. Анализ угроз и уязвимостей также был проведен, что позволило поставить требования в конкретных условиях, как по защита от утечек по электромагнитному, так и по акустоэлектронному каналам.

Во второй главе, основываясь на результатах анализа, сделанного в первой главе, были найдены оптимальные решения по защите кабинета руководителя от утечек по рассмотренным каналам, а именно установка фильтра, который препятствует утечкам по электромагнитному каналу, а также использование шумогенератора защищающего от утечек по акустоэлектронному каналу.

В итоге кабинет руководителя стал полностью соответствовать выдвинутым требования по защите.

 

Источники используемой литературы


1.      Бузов Г.А. - Защита технических каналов от утечки конфиденциальной информации

.        Зайцев А.П. - Техническая защита информации

.        Хорев А.А - Техническая защита информации. Часть 1.

.        Халяпин Д.Б. - Вас подслушивают? Защищайтесь А.А. Хорев «Способы и средства защиты информации», 2004г.

.        Г.А. Бузов, С.В. Калинин, А.В. Кондратьев «Защита от утечки информации по техническим каналам», 2005г, 416

.        Сидорин Ю.С. - Технические средства защиты информации. Учебное пособие.

Похожие работы на - Защита кабинета руководителя от утечек по электромагнитному и акустоэлектрическому каналам

 

Не нашли материал для своей работы?
Поможем написать уникальную работу
Без плагиата!
Без нейросетей!