Методи випробувань і досліджень металу шва і зварних з’єднань
Зміст
1.
Мета і задачі дисципліни
1.1 Значення
випробування матеріалів і зварних з’єднань
.2 Методи
випробувань
.3 Види
зовнішніх навантажень на зварні з’єднання
і матеріали
Статичні
випробування
.1 Методи
випробування на розтягування за ГОСТ 1497-73
.1.1 Розтягнення
зразків
.1.2 Розтягнення
зварних з’єднань
.1.3 Випробування
на розтяг при підвищених і понижених температурах
.1.3.1 Методи
випробувань на розтяг при підвищених температурах регламентуються ГОСТ 9651-73
.1.3.2 Методи
випробувань на розтяг при понижених температурах
.2 Методи
випробувань на тривалу міцність ГОСТ 10145-62
.2.1 Форма
і розмір зразків
.2.1.1 Встановлюються
наступні основні зразки для випробувань
.2.1.2 Форма
і розміри головок зразків і перехідної частини визначаються прийнятим способом
закріплення зразка в затискачах випробувальної машини
.2.2 Устаткування
та апаратура для проведення випробувань
.2.2.1 Машини
для випробувань на тривалу міцність повинні
забезпечувати
2.2.2.2 Продовження
штанги для закріплення зразків повинно забезпечувати встановлення зразків без
переносу і осьове прикладання
навантаження
2.2.2.3 Нагрівальні
пристрої повинні забезпечувати рівномірний нагрів зразків до заданої
температури і зберігання її на протязі всього періоду випробування
.2.2.4 Термопари
повинні систематично перевірятися
.2.2.5 Вимірювання
температури потрібно проводити приладами з похибкою не більше 0,5
.2.3
Проведення випробувань
.2.3.1 Встановлений
в захват випробувальної машини і розміщений в печі зразок, нагрівають до
заданої температури, час нагріву зразка переважно не більше 8 год. і вимірюють
його при потрібній температурі не менше 1 години
.2.3.2 Для
вимірювання температури зразків на кінцях робочої частини повинно
встановлюватися не менше 2 термопари, таким чином, щоб гарячі спаї щільно
доторкались до поверхні зразка
.2.3.3 Необхідно
періодично не рідше ,ніж через 2 год. змінювати температуру з допомогою
потенціометра
.2.3.4 Після
нагрівання зразка, і витримці його при заданій температурі до нього плавно
прикладають навантаження
.2.3.5 Після
руйнування зразка визначають
.2.3.6 Тривалість
випробування встановлюється для кожного металу в залежності від марки матеріалу
.2.3.7 У
випадку вимушеного переривання випробувань, розвантаження зразків можна не
проводити
.2.3.8 Результати
випробувань вважати недійсними
.2.4
Підрахунок (розрахунок) результатів
.2.5
Форма запису (оформлення) результатів випробувань металів і сплавів на тривалу
міцність
.3 Метод
випробувань на повзучість
.4 Форма
і розміри зразків
.4.1
Встановлюються наступні основні зразки
2.4.1.1 Допустимі відхилення від заданої
розрахункової довжини зразка, довжини ділянки робочої частини зразка, на якому
вимірюється видовження ліній, не повинні перевищувати 
.4.1.2 Форма та розміри головки зразків
визначають прийнятим способом закріплення вимірювача видовження на зразку і
способом закріплення зразка в захватах випробувальної машини
.4.1.3 Зразки повинні мати однакову площу
поперечного перерізу по всій довжині
.4.1.4 Поверхня зразків повинна бути гладка, без
рисок і пошкоджень
.4.1.5 Якщо метал підлягає випробуванню в
термічно обробленому стані, то термообробці піддаються заготовки для зразків
2.4.2
Устаткування та апаратура для випробувань
.4.2.1 Машини
для випробування металів на повзучість повинні забезпечувати
.4.2.2 Прилади
для вимірювань деформації повинні забезпечувати точність підрахунку не менше
0,002мм
.4.2.3 Нагрівний
пристрій повинен забезпечувати рівномірний нагрів зразка до заданої температури
і зберігання її на протязі всього часу випробувань
.4.2.4 Для
вимірювання температури на зразках з розрахунковою довжиною до 100мм включно,
повинно встановлюватись не менше двох термопар
.4.2.5 Термопари
повинні систематично провірятись по еталонній
.4.2.6 Вимір
температури потрібно проводити приладами з похибкою
.4.3
Проведення випробувань
.4.3.1 Правильність
(відсутність ексцентриситету) встановлення зразків в захват випробувальної
машини провіряється вимірюванням при нормальній температурі пружних видовжень
зразка на двох діаметрально-протилежних сторонах
.4.3.2 Встановлений
в захват випробувальної машини і поміщений в нагрівальну піч зразок
нагрівається до заданої температури (час нагрівання не більше 8 годин) і
витримують при цій температурі не менше 1 години
.4.3.3 Температура
випробувань (°С) вибирається кратною 50
.4.3.4 Після
нагріву зразка до заданої температури і витримки, до нього плавно прикладають
попереднє навантаження, що повинно бути рівне приблизно 10% від заданого
загального навантаження
.4.3.5 Норми
на тривалість випробувань і допуск на деформацію при заданому напруженні і
температурі встановлюється для кожного матеріалу в залежності від його
призначення
.4.3.6 Температура
приміщення під час випробування повинна бути по можливості постійною
.4.3.7 Після
закінчення випробувань на повзучість зразок розвантажують до величини
попереднього навантаження і визначають абсолютну величину залишкового
видовження
.4.4
Підрахунок результатів випробувань
.4.4.1 Процес
випробувань відображають у вигляді первинної кривої повзучості в координатах
.4.4.2 Умовна
границя повзучості - напруження, які викликають за встановлений час випробувань
при заданій температурі, задане видовження зразка (сумарне або залишкове), або
задану швидкість повзучості на прямолінійній ділянці кривої повзучості
.4.4.3 Визначення
умовної границі повзучості повинно проводитися наступним чином
.4.5
Форма запису результатів випробування металів на повзучість
Перелік
посилань
1. Мета і задачі дисципліни
зварне з’єднання
навантаження сплав
Сучасні зварні конструкції
експлуатуються в складних умовах в широких діапазонах роботи (температура,
тиск, рівень радіації, статичні і динамічні навантаження та ін.) Тому при
виготовленні зварних конструкцій необхідно чітко виявляти основні фактори, що
діють на конструкцію в процесі експлуатації. Ці дані необхідні для моделювання
зовнішніх навантажень, як в процесі створення нових металевих конструкцій, так
і для визначення якості готових конструкцій. Якість зварних з'єднань
перевіряють вибірковими руйнівними випробуваннями на міцність і не руйнівними
випробуваннями за допомогою радіаційних, ультразвукових, магнітних,
електромагнітних та інших методів контролю.
Якість продукції, згідно з
Держстандартом - це сукупність властивостей продукції, що обумовлюють її
працездатність задовільняти визначені потреби відповідно до її призначення:
міцності, надійності, відсутності дефектів, структури металу шва і біляшовної
зони, корозійної стійкості, числа та характеру виправлення. З метою економії
матеріалів і забезпечення високої якості зварних виробів на перший план
виступає питання технічного матеріалознавства. Для визначення доцільності
використання того чи іншого матеріалу для виготовлення зварної конструкції
необхідно комплексно вивчити його властивості і поведінку під час різних
навантажень, близьких до умов експлуатації, застосовуючи для цього сучасну
методику випробувань матеріалів.
1.1 Значення
випробування матеріалів і зварних з'єднань
Найважливішою метою випробувань
матеріалів і зварних з'єднань є визначення їх властивостей за характерними
ознаками, відтворення цих ознак у кількісній формі у вигляді визначених
параметрів, регулярний контроль за зміною цих властивостей, що відбувається в
процесі виготовлення конструкцій (виробничий контроль) і, зокрема, виявлення
дефектів, які можуть при цьому виникнути.
1.2 Методи
випробувань
1) механічні і технологічні методи
випробувань застосовують для дослідження міцності, пластичності, деформування,
в'язкості та характеру пошкодження. Отримані числові показники використовують
для розрахунку інтенсивності механічного навантаження вузлів та конструкцій,
для характеристики технологічних властивостей (деформування під час обробки
тиском, зварювання, прожарювання). До цієї групи можна віднести і визначення
властивостей поверхні (твердості, опору спрацювання);
) фізичні методи випробування
застосовують для кількісного визначення механічних, термічних, оптичних,
електричних і магнітних властивостей матеріалу, для виявлення зміни стану;
) хімічні та фізичні методи
застосовуються для дослідження хімічного складу та структури матеріалу, а також
для визначення його стійкості в агресивних середовищах (корозійні
випробовування);
) методи визначення деформацій і
напружень;
) методи неруйнівного контролю
призначені для виявлення виду, величини і частоти розподілу не суцільностей
(дефектів) і часто використовується для безперервного визначення параметрів
якості;
) методи дослідження тонкої побудови
та структури їх зміни - металографія.
1.3 Види
зовнішніх навантажень на зварні з'єднання і матеріали
Основна задача випробувань полягає в
тому, щоб максимально наблизити умови випробувань до експериментальних умов
експлуатації, та кількісно визначити зміни в цих умовах основних властивостей,
функцій і характеристик конструкцій (виробів) та матеріалів. Види діючих
факторів та їх значення в залежності від умов експлуатації матеріалів і зварних
конструкцій, обумовлені державними стандартами та технічними умовами. А для
створюваної продукції технічним завданням на їх розробку.
До основних діючих факторів відносяться:
механічні, кліматичні, біологічні і спеціальні середовища, іонізуючі та
електромагнітні випромінювання.
2. Статичні випробування
2.1 Методи випробувань на
розтягнення за ГОСТ 1497-73
.1.1 Розтягнення зразків - є одним з
основних видів механічних випробувань металів (матеріалів) і зварних з'єднань.
Воно дозволяє виявляти їх важливі властивості. З випробовуваного матеріалу
виготовляють спеціальні зразки (найчастіше циліндричної форми, а якщо з
листового - то плоскі). Ці зразки спеціальних розмірів (рис. 1).
Випробування на розтяг проводять на
розривних машинах, що дозволяють визначати зусилля та відповідні деформації
зразка. За одержаними даними будують первинну діаграму розтягу, де по осі
ординат відкладають зусилля, а по осі абсцис - відповідне видовження. Характер
діаграми залежить від властивостей випробовуваного матеріалу або зварного
з'єднання.
Методи випробування на розтяг
ГОСТ 1497-73, який введений в дію з 1.01.75. Даний ГОСТ розповсюджується на
чорні і кольорові метали і сплави, і вироби з них, за винятком дроту, труб,
стрічки і листового металу товщиною до 0,5 мм. Даний ГОСТ встановлює методи
статичних випробувань на розтяг для визначення при температурі 
°С наступних характеристик
механічних властивостей: границя пропорційності 
, границя пружності 
, границя текучості (фізична 
, і умовна 
- 0,2 деформація), тимчасовий опір 
, дійсний опір розриву 
, відносне
видовження після розриву 
, відносне звуження після розриву ψ.
Границя текучості (фізична 
) в ГОСТі, яскраво виражена на
графіку, найменше напруження при якому зразок деформується без помітного
збільшення розтягуючого навантаження.
Границя текучості (умовна 

- напруження, при якому залишкове
видовження досягає 0,2% довжини ділянки зразку, видовження якого приймається в
розрахунок при визначенні вказаної характеристики.
Тимчасовий опір 
- напруження, що відповідає
найбільшому навантаженню Рmах , що
передує руйнуванню зразка.
Дійсний опір 
розриву 
- напруження, яке визначається
відношенням навантаження - 
в момент розриву до площі
мінімального поперечного перерізу зразка після розриву - 
.
Для випробувань на розтяг
застосовують циліндричні зразки діаметром 3 мм і більше,
а також плоскі товщиною 0,5
мм
і більше.
Випробування на розтяг - це
основний і найбільш поширений метод дослідження та контролю механічних
властивостей, металу і зварних з'єднань. Розтяг використовують для дослідження
нових сталей при розрахунку їх механічних характеристик, для визначення
розмірів і величини статичного навантаження деталей і для контролю якості
металу та зварних з'єднань. Випробування на розтяг досліджують поведінку металу
при одноосьовому навантаженні з рівномірним розподілом по всьому перерізу.
Характеристики пластичності і
міцності сильно відрізняються.
Рисунок 1 - Загальний вигляд зразків:
а)
циліндричного
б) плоского (виготовленого з
листового металу)
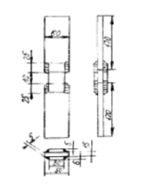
2.1.2 Розтягнення зварних з'єднань
Для випробування плоских (рис.2 і 3)
і трубчастих зварних з'єднань використовують зразки, що мають надріз у тому
місці, де виконувалось зварювання. Надріз виконують для того, щоб при розтягу
руйнування проходило по шву. Це дозволяє оцінювати якість зварного шва.
Ступінь, деформування металу тої чи іншої зони зварювання оцінюють за
переміщенням контрольних рисок на еластичній плівці. Випуклість зварного шва
(підсилення), попередньо знімають торцевою вертикальною фрезою. Випробування на
розтяг кутових (рис.4) швів проводять на хрестоподібних зразках без надрізів.
Кутові зварні шви зразків повинні бути симетричними і не мати великої товщини
для запобігання руйнуванню основного металу. Контроль товщини зварного шва
здійснюється в трьох місцях за шириною зразка з точністю до 0,2мм.
Рисунок 2 - Загальний вигляд
плоского Рисунок 3 - Загальний вигляд зразка з надрізом трубчастого зразка з
надрізом
Рисунок 4 - Загальний вигляд
хрестоподібного зразка без надрізу
При випробуванні зварних зразків з
накладками (рис.5) та з накладними поздовжніми кутовими швами (рис. 6)
оцінюється границя текучості і тимчасовий опір зварних з'єднань. Загальний
вигляд хрестоподібного зразка і зварного зразка з муфтовим з'єднанням для
випробування труб наведені на (рис 7 і 8).
Для випробування швів точкового
зварювання на зріз розтягуванням застосовують зразки як з однобічним (рис. 9),
так і з двобічним (рис. 10) зварним з'єднанням для контролю режимів точкового
зварювання, для перевірки зварюваності різних металів, а також для контролю
міцності зварних точкових швів.
Розподілення силових ліній в
зварному зразку показано на (рис. 11), а можливі види руйнувань на (рис. 12).
Переважно здатністю матеріалу виробу
протистояти руйнуванню визначають його надійність.
Руйнування - макроскопічне порушення
суцільності матеріалу через ті чи інші силові впливи на нього. Вивчення макро -
та мікроструктури зламу випробовуваного матеріалу дозволяє оцінити опір
матеріалу розповсюдженню тріщин.
2.1.3
Випробування на розтяг при підвищених і понижених температурах
2.1.3.1 Методи випробувань на
розтяг при підвищених температурах регламентуються ГОСТ 9651-73
- ним регламентується проведення випробувань із
чорних і кольорових металів, сплавів і виробів з них, за винятком листового
металу і стрічки товщиною до 0,5 мм, а також дроту, труб. Даний стандарт
встановлює методи короткочасного статичного випробування на розтяг для
визначення при температурах до 1200°С наступних характеристик механічних
властивостей:
1) границі пружності,
;
2) границі текучості (фіз.),
;
) границі текучості умовної,
;
) тимчасового опору,
;
) відносного звуження після
розриву, 
;
) відносного видовження після
розриву ψ.
Устаткування
для випробувань.
В якості машин для
випробування використовують розривні і універсальні випробувальні машини всіх
систем, при умові відповідності їх вимогам стандарту і ГОСТ 7855-74.
Рисунок 5 - Загальний вигляд
зварного зразка з накладками
Рисунок 6 - Загальний вигляд
зварного зразка з накладними повздовжніми кутовими швами
Рисунок 7 - Загальний вигляд
зварного Рисунок 8 - Загальний вигляд зварного зразка з муфтовим з’єднанням
хрестоподібного зразка
Рисунок 9 - Загальний вигляд
зразка Рисунок 10 - Загальний вигляд
виконаного точковим зварюванням з
зразка виконаного точковим
однобічним зварним
з’єднанням зварюванням з двобічним
зварним з’єднанням
Рисунок 11 - Розподіл силових ліній
в зварному зразку виконаному точковим зварюванням
Рисунок 12 - Загальний вигляд
зварних зразків виконаних точковим зварюванням після руйнування
а) надійне центрування випробуваного
зразка;
б) плавність зростання навантаження;
в) швидкість випробувань
(вказується в стандартах або ТУ на металопродукцію, якщо вони відсутні, тоді
швидкість переміщання активного захвату (
) встановлюється в межах 0,04-0,1
від розрахункової довжини зразка). При наявності вказаних в стандартах або ТУ
на металопродукцію визначення границі текучості при постійній швидкості
навантаження зразка не більше в 
;
г) можливість припинення
навантаження з точністю - до однієї найменшої поділки шкали сило вимірювача.
Деформацію при визначенні умовної границі текучості вимірюють тензометрами з
ціною поділки шкали не більше 0,2 мм, а при визначенні границі пружності - не
більше 0,002 мм;
д) пристрої для нагрівання
повинні забезпечувати рівномірний нагрів зразків по всій його робочій довжині
до заданої температури і зберігати цю температуру у встановлених межах на
протязі всього випробування. Вимірювання температури потрібно проводити
приладами, клас точності яких не менше 5%. Термопари повинні систематично
провірятися у відповідності з інструкціями державного стандарту. При наявності
в стандартах або ТУ на металопродукцію особливих вказівок дозволяється
проведення випробувань в захисній атмосфері.
Багато сучасних машин
(парових і газових турбін, реактивних двигунів) працюють при підвищених
температурах (800-1000°С). Випробування показали, що всі механічні властивості
істотно змінюються в залежності від температури.
На (рис. 13) зображено
діаграми напружень вуглецевої сталі при різних температурах, а на (рис. 14) -
графіки залежності границі текучості тимчасового опору і відносного видовження
при розриві від температури.
В інтервалі температур
150-250°С тимчасовий опір має найбільше значення, а відносне видовження після
розриву - найменше; сталь стає синеламкою. При підвищених температурах міцність
вуглецевої сталі швидко падає, тому для експлуатації при температурах вище
350-400°С таку сталь не використовують, при підвищенні температури також
істотно зменшується модуль пружності (рис. 15).
Рисунок 13 -
Залежність напружень (
) вуглецевої сталі від температури
(Т°С)
Рисунок 14 -
Залежність границі текучості (
) тимчасового опору (
) і відносного видовження
(δ) при
розриві від температури (Т°С)
Рисунок 15 -
Залежність модуля пружності 
від температури (Т°С)
.1.3.2
Методи випробувань на розтяг при понижених температурах
На механічні властивості деяких
металів суттєве впливають низькі температури. Матеріали, які пластичні при
нормальній температурі (20°С), стають крихкими при низьких температурах. Такі
матеріали називають холодноламкими.
Холодноламкість характерна для
металів з кристалічною решіткою об'ємноцентрованою або гексагональною. До них
відносяться більшість чорних металів, зокрема сталі та цинкові сплави.
Виявляється холодноламкість виникає особливо при статичних і динамічних
навантаженнях. Метали, що кристалізуються в системі куба з центрованими гранями
(мідь, алюміній, срібло та ін.) не виявляють холодноламкості при пониженні
температури. Наприклад алюміній при температурі рідкого азоту (-196°С) збільшує
міцність приблизно в 2 рази, одночасно збільшується відносне видовження в 4
рази. Аналогічно ведуть себе мідь і нікель.
Випробування на розтяг чорних
і кольорових металів та зварних з'єднань при підвищених і понижених
температурах регламентується державним стандартом. Встановлені розмір і форма
зразків для випробування на розтяг, а також температурні режими випробувань на
розтяг при підвищених і понижених температурах проводять однаково, як і при
нормальних температурах. Зразок розтягують поступово з постійною швидкістю
деформації (або навантаження). Спочатку його нагрівають охолоджують до заданої
температури, яку підтримують в необхідних межах на протязі всього часу
випробування. Як
приклад на рисунку 16 показаний графік зміни границі
текучості 
та тимчасового опору 
при статичних випробувань вуглецевої
сталі в області низьких температур.
Рисунок 16 -
Графік зміни границь текучості та тимчасового опору при статичних
випробуваннях вуглецевої сталі при низьких температурах
Методи випробувань на розтяг
при понижених температурах проводять згідно ГОСТ 11150 - 75(65). Даний стандарт
регламентує випробування, які проводяться на чорних і кольорових металах,
сплавах і виробах з них, і встановлює метод статичних досліджень на розтяг при
температурах від 0°С до -100°С наступних характеристик механічних властивостей:
) границю пружності, 
) границю текучості (фіз.), 
3) границю текучості (умов.),

) тимчасового опору, 
) відносне видовження,

6)
відносне звуження після розриву, ψ.
Стандарт не поширюється на стрічку
товщиною до 0,5мм, дріт, труби
А Устаткування.
В якості випробувальних машин використовують розривні і універсальні машини
всіх систем, при умові відповідності з
ГОСТ 7855 - 74. Робочий простір
машини повинен дозволяти встановлювати кріокамеру або посудину з охолоджуючою
рідиною із продовжуючими штангами.
Конструкція посудини або кріокамери
повинна забезпечувати рівномірність охолодження робочої частини зразка.
Охолоджуючі рідини не повинні бути токсичними, агресивними і
вибухонебезпечними. Застосовувати в якості охолоджувача рідкий кисень і повітря
не допускається. Допускається охолоджувати зразки в газовому середовищі. В
якості охолоджувачів можна застосовувати рідини органічного і неорганічного
охолодження, що представляють собою суміш хладогентів (тверда вуглекислота,
рідкий азот та ін.).
Для вимірювання температури
охолодження середовища застосовують рідинні (не ртутні) термометри з ціною
поділки шкали не більше 1°С, і термоелектричні термометри, які відповідають
вказаним вимогам відносно ціни поділки.
Б.
Підготовка до випробувань:
1) температура, при якій повинно
проводитися випробування зразку повинна бути передбачена і записана в ТУ на
металопродукцію. Рекомендується випробування проводити при температурах: 0°С;
-20С;
-40°С; ... -100°С (інтервал -20°С),
при необхідності - інтервал 10°С.
) зразок, встановлений у штангах, в
кріокамеру або посудину з охолоджуваною рідиною;
) температуру охолодження рідини в
посудині підтримують на рівні, добавляючи при необхідності невеликі порції
охолоджувача або перемішують;
) при випробуваннях зразків в
газовому середовищі, час охолодження до заданої температури встановлюється
експериментально;
5) допускається відхилення
температури охолоджуючого середовища від заданої ±2°С, в інтервалі від 0 до
-100°С;
) час витримки при заданій
температурі повинен бути заданий в стандартах або ТУ на металопродукцію, якщо
такі дані відсутні то витримку зразків в охолоджувальному середовищі
встановлюють:
а) не менше 10 хв. - для круглих
зразків діаметром 6 мм;
б) менше 10 хв. - для плоских
зразків, товщиною 4 мм і більше;
в) більше 15 хв. - для круглих
зразків діаметром більш 6 мм;
г) більше 15хв. - для плоских
зразків товщиною більше 4 мм.
В. Проведення випробувань і
розрахунок результатів.
Зразки які знаходяться в кріокамері
або посудині піддають випробуванням на розтяг. Проведення випробувань і
підрахунок результатів проводять згідно ГОСТ 1497-73. При проведені випробувань
повинні виконуватись наступні основні умови:
а) надійне центрування зразків в
захватах випробувальної машини;
б) плавність навантаження;
в) швидкість переміщення основного
захвату, при випробуваннях повинно бути більше 0,1 розрахункової довжини
зразка;
г) плавність розвантаження;
д) можливість призупинки
навантаження з точністю до однієї найменшої поділки силовимірювача.
Г.
Випробування вважаються недійсними:
а) при розриві зразка по кермах якщо
при цьому якась характеристика не відповідає встановленим вимогам;
б) при розриві зразків за границею
розрахункової довжини (при визначенні відносного видовження);
в) при розриві зразків по дефектах
металургійного походження (розшарування, газові раковини, бульбашки, плівки та
ін.);
г) при порушенні температурного
режиму випробування.
.2 Методи
випробувань на тривалу міцність за ГОСТ 10145 - 62
Тривала міцніть - це властивість
матеріалу протистояти руйнуванню під дією тривалого навантаження при
температурі до 1200°С.
Метод полягає в тому що зразок
доводиться до руйнування під дією постійно розтягуючого навантаження при
постійній температурі. Даний стандарт поширений на чорні і кольорові метали і
сплави. В результаті випробувань визначають границю тривалої міцності
(встановлюють відповідність між часом до руйнування і нормою часу вказаною в
стандартах або ТУ на металопродукцію).
2.2.1 Форма і розміри зразків
2.2.1.1 Встановлюються наступні
основні зразки для випробувань:
а) циліндричний зразок діаметром 5
мм, з початковою розрахунковою довжиною 25 мм;
б) циліндричний зразок діаметром 10
мм з початковою розрахунковою довжиною 50 мм;
в) циліндричний зразок діаметром 10
мм з початковою довжиною
мм;
г) циліндричний зразок діаметром 7
мм з початковою розрахунковою довжиною 70 мм;
д) плоскі зразки з початковою
розрахунковою довжиною.

(2.1)
де 
- початкова площа поперечного
перерізу робочої частини
Товщина плоского зразка
визначається товщиною прокату. Допускається також при наявності технічних
обґрунтувань застосовувати зразки інших розмірів і форм, але діаметр зразків повинен
бути не менш
мм. Форма і розміри зразків
для випробувань встановлюється стандартами або технічними умовами на
виготовлення продукції.
.2.1.2 Форма і розміри
головок зразків і перехідної частини визначаються прийнятим способом
закріплення зразка в затискачах випробувальної машини. Зразки повинні мати
однакову площу поперечного перерізу по всій розрахунковій довжині. Допускається
відхилення по площі поперечного перерізу ± 0,5 %
Поверхня зразків повинна бути
гладкою без рисок і пошкоджень.
2.2.2 Устаткування та апаратура для
проведення випробувань
2.2.2.1 Машини для випробувань на
тривалу міцність повинні забезпечувати:
а) постійність навантаження на
протязі всього процесу випробування;
б) плавність навантаження і
розвантаження зразку;
в) прикладання навантаження до
зразка з похибкою не більше ±0,1%.
.2.2.2 Продовження штанги для
закріплення зразків повинно забезпечувати встановлення зразків без переносу і
осьове прикладання навантаження.
.2.2.3 Нагрівальні пристрої повинні
забезпечувати рівномірний нагрів зразків до заданої температури і зберігання її
на протязі всього періоду випробування.
2.2.2.4 Термопари
повинні систематично перевірятися.
2.2.2.5 Вимірювання
температури потрібно проводити приладами з похибкою не більше 0,5%.
2.2.3 Проведення випробувань.
2.2.3.1 Встановлений
в захватах випробувальної машини і розміщений в печі зразок, нагрівають до
заданої температури (час нагріву зразка переважно не більше 8 год.) і
витримують його при потрібній температурі не менш 1 години.
2.2.3.2 Для
вимірювання температури зразків на кінцях робочої частини повинно
встановлюватися не менше 2 термопар, таким чином, щоб гарячі спаї щільно
доторкались до поверхні зразка. Гарячий спай термопари повинен бути захищений
від дії нагрітих стінок печі. Холодний шар термопари повинен мати постійну
температуру.
2.2.3.3 Необхідно періодично не
рідше, ніж через 2год. змінювати температуру з допомогою потенціометра.
Рекомендується автоматичний запис температури на протязі випробовування.
.2.3.4 Після нагрівання зразка, і
витримці його при заданій температурі до нього плавно прикладають навантаження.
Час до руйнування при заданій величині напруження є основним показником даного
виду випробувань.
.2.3.5 Після руйнування зразка
визначають:
відносне видовження, δ;
відносне звуження, ψ.
.2.3.6 Тривалість випробування
встановлюється для кожного металу в залежності від марки матеріалу.
Рекомендується визначати границю тривалої міцності на основі випробувань
тривалістю 50, 100, 500, 1000, 3000, 5000, 10000 годин, якщо не потрібна інша
база випробувань.
.2.3.7 У випадку вимушеного
переривання випробувань, розвантаження зразків можна не проводити. Однак
необхідно забезпечити відсутність додаткових напружень в зразку при його охолодженні.
.2.3.8 Результати випробувань
вважати недійсними:
а) при розриві зразка по розміточних
рисках або кернах, а також за межами його розрахункової довжини, за винятком
випробувань при яких сумарна тривалість випробувань, або сумарне видовження не
нижче встановлених стандартами або ТУ на виготовлену продукцію;
б) при розриві зразків по дефектах
металургійного виробництва (розшарування, плівки та ін.);
в) температура приміщення під час
проведення випробувань повинна бути постійною.
.2.4 Підрахунок (розрахунок)
результатів
) В результаті випробувань
встановлюються залежність між напруженнями і часом до руйнування, що може бути
виражена графіками побудованими в логарифмічній, напівлогарифмічній системі
координат. За цими графіками, шляхом інтерполяції або екстраполяції, визначають
границю тривалої міцності металу (з точністю МПа).
Не рекомендується проводити
екстраполяцію на термін служби, який перевищує максимальну тривалість
випробування більш ніж на 1-1,5 порядки.
) Границя тривалої міцності
позначається 𝜎
з двома числовими індексами. Верхній індекс - температура випробувань в °С,
нижній - тривалість випробування до руйнування в год.
Тривалість випробувань можна
позначати числом годин або цифрою 10 з показником в степені.

- границя тривалої міцності за 1000
год. випробовують (або 103) при температурі 700°С.
) Відносне видовження в %
після розриву вираховують за формулою:

(2.2)
де 
- початкова розрахункова довжина,
що вимірюється при нормальній температурі, мм;

- після розриву, мм.
Початкову розрахункову
довжину - довжину ділянки робочої частини зразка, на якій вимірюється
видовження, перед початком випробування обмежують рисками або кернами з
точністю до
) Для вимірювання
розрахункової довжини після розриву, частини, які зруйнувалися, щільно
складають між собою так, щоб їх осі утворювали пряму лінію. Вимірювання
проводяться з точністю до 0,05мм.
) Відносне звуження після
розриву в % (ψ)
циліндричних зразків розраховують за формулою:

(2.3)
де 
- початкова площа
поперечного перерізу робочої частини зразка, що вимірюється при нормальній
температурі перед випробовуваннями, мм;

- мінімальна площа поперечного
перерізу робочої частини зразка після руйнування, підрахована за середнім арифметичним
із результатів вимірювань мінімального діаметру в місці розриву в двох взаємно
перпендикулярних напрямках, мм2.
Вимірювання діаметру зразка
до і після випробування проводиться з точністю до
0,05%.
) В протоколі випробувань
повинні бути вказані температура випробувань, напруження, матеріал і розміри
зразка, параметри надрізу, якщо зразок його має, час до руйнування або
тривалість випробування, відносне видовження зразка і звуження площі
поперечного перерізу зразка після руйнування.
Якщо під час випробувань мали
місце перерви, то необхідно вказати їх кількість і умови, в яких знаходився
зразок під час перерви.
Результати випробувань на
міцність оформляються по формі.
2.2.5 Форма запису
(оформлення) результатів випробувань металів і сплавів на тривалу міцність
1)
МАТЕРІАЛИ: а) марка;
б) хімічний
склад;
в) напівфабрикату (прокат сортовий,
прокат листовий, труба, поковка, відливка та ін.) їх розміри;
г) види і режими термообробки;
д) мікроструктура, величина і злам;
2) ЗРАЗКИ: а) з якого місця заготовки
або виробу вирізаний зразок;
б) напрям вирізування зразка
(поздовжній чи поперечний);
в) форма зразка.
3) АПАРАТУРА:
а) тип установки для випробування;
б) точність вимірювання температури;
в) точність прикладання
навантаження.
.3 Метод
випробувань на повзучість
ГОСТ 3248-60
Повзучість - властивість матеріалів
повністю і безперервно, пластично деформуватися при незмінній температурі, під
дією незмінного і тривалого навантаження розтягу.
Даний стандарт розповсюджується на
чорні, кольорові метали і їх сплави і встановлює метод випробувань на
повзучість при розтягу суть якого полягає в тому, що зразок який випробовують
на протязі тривалого часу, піддають дії постійного розтягуючого зусилля і
постійної температури при фіксованій деформації зразка в часі. В результаті
випробувань визначають:
границю повзучості матеріалу;
найбільші напруження, при яких
швидкість або деформація повзучості за визначений проміжок часу не перевищують
заданої величини.
2.4 Форма і
розміри зразків
2.4.1
Встановлюються наступні основні зразки
а) циліндричні діаметром 10мм з
розрахунковою довжиною 100 мм (нормальний зразок) і з розрахунковою довжиною
200 мм (подовжений зразок);
б) тонкий шириною 15мм з
розрахунковою довжиною 100мм товщина зразка визначається товщиною листа.
Даним стандартом
допускається, при наявності технічного обґрунтування застосовувати зразки іншої
форми і розмірів. Розрахункова довжина циліндричних зразків (
) повинна бути рівна 5 або 10 діаметрів.
.4.1.1 Допустимі відхилення
від заданої розрахункової довжини зразка, довжини ділянки робочої частини
зразка на якому вимірюється видовження ліній не повинні перевищувати ±1%.
.4.1.2 Форму та розміри
головок зразків визначають прийнятим способом закріплення вимірювача видовження
на зразку і способом закріплення зразка в захватах випробувальної машини.
Спряження головки зразка з робочою частиною повинно виконуватися плавною
кривою.
.4.1.3 Зразки повинні мати
однакову площу поперечного перерізу по всій довжині. Відхилення на допуск 
При виготовленні зразків не
повинно проходити зміни властивостей випробуваного матеріалу внаслідок нагріву
і наклепу.
.4.1.4 Поверхнязразків
повинна бути гладка, без рисок і пошкоджень. Зразки, що виготовляють з
листового матеріалу, можна застосувати в двох видах:
) із збереженням поверхневого
шару;
2) з шліфованою поверхнею.
Биття зразків при перевірці в
центрах випробувальної машини не повинно перевищувати 0,02мм.
.4.1.5 Якщо метал підлягає
випробуванню в термічно обробленому стані то термообробці піддаються заготовки
для зразків. Якщо термообробка додає металу погану обробку різанням (підвищує твердість
або в'язкість) то ці заготовки попередньо повинні бути підігнаними до розмірів,
що враховують припуск на кінцеву обробку і можливе короблення.
.4.2 Устаткування та
апаратура для випробувань
.4.2.1. Машини для
випробування металів на повзучість повинні забезпечувати:
а) постійність навантаження
на протязі всього процесу випробувань;
б) плавність навантаження і
розвантаження зразка;
в) положення навантаження до
зразка з похибкою не більше ±1%;
г) прикладання навантаження
до зразка без помітного ексцентриситету.
.4.2.2 Прилади для вимірювань
деформації повинні забезпечувати точність підрахунку не менше 0,002 мм.
.4.2.3 Нагрівний пристрій
повинен забезпечувати рівномірний нагрів зразка до заданої температури і
зберігання її на протязі всього часу випробувань.
.4.2.4 Длявимірювання
температури на зразках з розрахунковою довжиною до 100мм включно, повинно
встановлюватись не менше двох термопар. Якщо розрахункова довжина не меша 100мм
- тоді не менше трьох термопар.
.4.2.5 Термопари повинні
систематично провірятись по еталонній.
.4.2.6 Вимір температури
потрібно проводити приладами з похибкою
Крім цього необхідно не рідше
1 разу в годину вимірювати температуру з допомогою потенціометра.
Рекомендується автоматичний запис температури на протязі всього часу випробувань.
2.4.3 Проведення
випробувань
2.4.3.1 Правильність(відсутність
ексцентриситету) встановлення зразків в захватах випробувальної машини
провіряється вимірюванням при нормальній температурі пружних видовжень зразка
на двох діаметрально-протилежних сторонах. Одержання нерівних видовжень вказує
на ексцентричне положення зразків.
.4.3.2 Встановлений в захват
випробувальної машини і поміщений в нагрівальну піч зразок нагрівається до
заданої температури (час нагрівання не більше 8 годин) і витримують при цій
температурі не менше 1 години.
.4.3.3 Температуравипробувань (°С)
вибирається кратною 50. Якщо по умовах випробувань не задається спеціальна
температура.
.4.3.4 Післянагріву зразка до
заданої температури і витримки, до нього плавно прикладають попереднє
навантаження, що повинно бути рівне приблизно 10% від заданого загального
навантаження. Одночасно з прикладанням навантаження повинно проводитись
візуальний підрахунок деформації зразка, починаючи з попереднього навантаження
і на кожен ступінь навантаження, якщо воно прикладається ступенями і вмикається
прилад для автоматичного запису видовження. Інтервали для запису видовження
повинні вибиратися з таким розрахунком, щоб в процесі випробування можна було
повністю встановити характер зміни видовження. Якщо конструкція випробувальної
машини на повзучість не дозволяє виконувати навантаження ступенями, то
пластична деформація при навантаженні може бути одержана шляхом вирахування
пружної деформації від сумарної.
.4.3.5 Нормина тривалість
випробувань і допуск на деформацію при заданому напруженні і температурі
встановлюється для кожного матеріалу в залежності від його призначення.
.4.3.6 Температура приміщення під
час випробування повинна бути по можливості постійною. Коливання її не повинні
перевищувати ±5°С.
.4.3.7 Післязакінчення випробувань
на повзучість зразок розвантажують до величини попереднього навантаження і
визначають абсолютну величину залишкового видовження. Визначення границі
повзучості повинно проводитись при допусках на видовження в межах від 0,1 до 1%
при тривалості випробувань 100, 300, 500, 1000 год. якщо по умовах випробувань
не потрібна інша тривалість або інший допуск на деформацію.
У випадку визначення границі
повзучості по швидкості повзучості, тривалість випробувань повинна тривати не
менше 2000 - 3000год. при умові тривалості прямолінійної ділянки кривої
повзучості не менше 500 год.
2.4.4 Підрахунок результатів
випробувань
.4.4.1 Процес випробувань
відображають у вигляді первинної кривої повзучості в координатах. Відносне
видовження у відсотках по осі ординат, і час в годинах - по осі абсцис.

- видовження при навантаженні;

-повне
(пружне залишкове) видовження на криволінійній ділянці;

- сумарне (пружне + залишкове)
видовження за час випробуваня,%;

- пружне видовження, %;

- залишкове видовження, %.
Рисунок 17 - Залежність величино видовження від величини навантаження
2.4.4.2 Умовна границя повзучості -
напруження, які викликають за встановлений час випробувань при заданій
температурі, задане видовження зразка (сумарне або залишкове), або задану
швидкість повзучості на прямолінійній ділянці кривої повзучості.
.4.4.3 Визначення умовної границі
повзучості повинно проводитися наступним чином:
а) випробовують не менше 4-х зразків
при даній температурі і різних напруженнях;
б) на основі одержаних кривих
повзучості (див. рис 16) будують діаграми залежності між напруженням і
видовженням, або між напруженням і середньою рівномірною швидкістю повзучості
на прямолінійній ділянці в логарифмічній системі координат, але допускаються і
іншій системі координат. За цими діаграмами знаходять потрібне напруження.
в) після знаходження потрібного
напруження, не менше ніж при трьох різних температурах випробувань будують
діаграму залежності (напруження - температура).
При визначенні по величині
деформації границя повзучості позначається буквою з трьома числовими індексами,
наприклад:
- температура в °С;

, 700 - температура в °С; 0,2/100 -
задане видовження (сумарне або залишкове), %, тривалість випробування, год.
При цьому необхідно додатково
вказувати по сумарній або залишковій деформації чи визначалася границя
повзучості, у випадку визначення по швидкості повзучості, границя повзучості
позначається двома числовими індексами:
нижній - задана швидкість
повзучості, %/год.;
верхній - температура, °С/
При цьому необхідно додатково
вказати час випробувань, за який була одержана задана швидкість повзучості.
Результати випробувань по
кожному зразку оформляють у формі таблиці.
.4.5 Форма запису результатів
випробування металів на повзучість. МАТЕРІАЛ : 1 Найменування, марка по
відповідному стандарту.
2 Хімічний склад.
Спосіб виплавки, тип печі, розмір
відливки чи заготовки.
Форма (листовий прокат, труба,
відливка та ін.)
Види і режими термообробки.
6 Механічнівластивості (видовження,
поперечне звуження ударна в’язкість, твердість, тимчасовий опір, границя
текучості).
7 Мікроструктураі величина зерна.
ЗРАЗКИ: 1 З якого місця вирізаний
зразок (відстань осі зразка від осі відливки, заготовки чи виробу), крім цього
поздовжній чи поперечний зразок.
2 Розміри розрахункової частини
зразка, довжина, діаметр, поперечний переріз (в мм) до і після випробувань
(вимірювання проводяться в приміщенні, де проводяться випробування).
АПАРАТУРА: 1 Тип установки для
випробувань.
2 Точність вимірювання деформації
(абсолютна).
3
Точність вимірювання температури.
Перелік посилань
Основна
1.
Ботюк В.В. Методи випробувань матеріалів і зварних з'єднань. - К.: КПІ, 1992,
147
с.
.
Сварка, пайка и термическая резка металлов. Часть 5 - М.:
Издательство стандартов, 1979. - 376с.
3.
Рахштад А.Г. Справочник метал листа Т2.:справочник / под. ред. А.Г.Рахштада и
В.А.Брострема. - М.:Машиностроение, 1976. - 720с.
5.
Алешин, Н.П. Контроль качества сварочных работ: учебное пособие / Н.П.Алешин,
В.Г.Щербинский. - М.: Высшая школа, 1986, - 207с.
Додаткова
6.
Стандарты по сварке и родственным технологиям. Академия наук Украины. Институт
Электросварки им. Е.О. Патона. - К.: ИЭС им. Е.О. Патона, 1993, - 59 с.
.
Испытания материаллов: Справочник / Под. ред. X. Блюменуера; Пер. с нем. Под
ред. М.Л. Бернштейна. - М.: Металургия, 1979, - 448 с.
.
Сварка в машиностроении. В 4-х томах. Т.4. / Под ред. к.т.н. Ю.Н. Зорина. - М.:
Машиностроение, 1978, - 512 с.
.
Куркин С.А. Прочность сварных тонкостенных сосудов, работающих под давлением. -
М.: Машиностроение, 1976, - 184с.
.
ГОСТ6996-66. Сварные соединения. Методы опредиления механических свойств.
ГОССТАНДАРТ. - М., 1970, - 60 с.
.
Расчетыи испитания на прочность. Методы механических испытаний металлов. ГОСТ
25.506-85: ГОСТ стандарт. - М.: Издательство стандартов,
.
- 95с.
12.
Методичні вказівки до практичних
занять
з
дисципліни «Методи випробовувань і дослідження металу шва і зварних з'єднань» /
Б.П.Татарин.
- Тернопіль.: ТНТУ імені Івана Пулюя 2011. - 29с.