Монтаж электропроводки в стальных трубах
Курсовая работа
Монтаж
электропроводки в стальных трубах
Введение
На современном
этапе развития Республики Беларусь профессиональная компетентность населения
становится одним из важнейших условий устойчивого развития общества,
обеспечения конкурентоспособности национальной экономики. Значимость
эффективного функционирования системы профессионально-технического образования
в решении этих задач определяется прежде всего существующей квалификационной
структурой занятого населения, в которой рабочие составляют около 60 процентов.
С учетом возросшей
востребованности отраслей экономики и социальной сферы в рабочих кадрах в
Республике Беларусь сохранена и получила дальнейшее развитие система
профессионально-технического образования.
Основная цель развития
системы профессионально-технического образования удовлетворять потребности
организаций в кадрах требуемого уровня квалификации и качества, содействовать
реализации принципов непрерывности общего и профессионального образования в
стране, обеспечивать эффективное использование финансовых и материальных
ресурсов.
В настоящее время в
стране функционируют 211 учреждений профессионально-технического образования, в
которых обучаются свыше 75 тыс. учащихся. Ведется подготовка по 100
специальностям, включающим более 300 профессий.
Система профессионально-технического
образования включает:
участников образовательного
процесса; научно-методическое обеспечение профессионально-технического
образования; учреждения образования, реализующие основные и дополнительные
образовательные программы профессионально-технического образования, и
организации, осуществляющие или обеспечивающие производственное обучение;
научные, методические, учебно-методические и другие организации, обеспечивающие
эффективное функционирование системы профессионально-технического образования;
республиканские органы государственного управления и местные исполнительные и
распорядительные органы в пределах их полномочий по управлению в сфере
профессионально-технического образования.
УПТО может иметь в своей структуре
обособленные подразделения и структурные подразделения. К структурным
подразделениям УПТО относятся: библиотека, общежитие, производственная
(учебно-производственная) мастерская, лаборатория, отделение, учебное
хозяйство, учебный полигон, автодром, ресурсный центр, центр профессиональной и
социальной реабилитации для лиц с особенностями психофизического развития, иные
структурные подразделения.
1. Анализ основных
документов, определяющих содержание производственного обучения
Профессионально-квалификационная
характеристика
Профессионально-квалификационная
характеристика учебной специальности «Техническая эксплуатация
электрооборудования» представляет собой профессионально-ориентированную
программу формирования квалификационного, психофизиологического и
социально-психологического потенциала выпускника учреждения образования,
определяющую конечные цели его профессионального становления и развития на
период обучения.
В состав ПКХ входят следующие
разделы:
Раздел 1. «Нормативные
ссылки». Приводится перечень документов, на основании которых разработана
профессионально-квалификационная характеристика.
Раздел 2. «Формы и сроки обучения».
Указываются возможные формы и сроки освоения учебной специальности.
Раздел 3. «Характеристика
учебной специальности». Описываются:
– общие сведения об учебной специальности;
– перечень предметов, средств, продуктов (результатов)
профессиональной деятельности;
– санитарно-гигиенические и физиологические особенности
деятельности.
Раздел 4. «Профессионально
значимые свойства и качества личности работника». Включает два подраздела:
психические и психофизиологические свойства, социально-психологические
качества.
Перечень таких качеств (свойств)
является своеобразным ориентиром для всех участников единого педагогического
процесса, позволяющим создавать наиболее оптимальные условия развития
(саморазвития) личностного потенциала обучающихся.
Раздел 5. «Требования к уровню
образования поступающих на обучение».
Указывается уровень общего
образования, необходимый для поступления в учреждения, обеспечивающие получение
профессионально-технического образования, с целью освоения соответствующей
учебной специальности.
Раздел 6. «Требования к результатам
обучения по учебной специальности».
На основании содержания
профессиональной деятельности работника указывается совокупность требований к
его общеобразовательным, общепрофессиональным, общеспециальными, специальным
знаниям и умениям.
Учебный план
Учебный
план - государственный документ, устанавливающий наименование и
минимальный объем учебного времени (количество обязательных контрольных работ,
экзаменов) компонентов, циклов, предметов применительно к единичной
квалификации и специальности в целом с учетом диапазона уровней квалификации,
срока обучения. Разработан из расчета 36-часовой недельной нагрузки.
В типовом учебном
плане указан финансируемый объем учебного времени на консультации и
факультативы. Его распределение осуществляется учреждениями образования
самостоятельно с учетом нормативов, установленных Министерством образования Республики
Беларусь.
Рекомендуемая
последовательность изучения учебного материала отражена в случаев, когда
планируется обучение по одной единичной квалификации.
Использование
резервов времени, определение содержания компонента обязательного выбора и
факультативов, распределение учебного времени на предметы обязательного выбора
осуществляют учреждения образования самостоятельно.
Количество часов
учебного времени на предмет «Физическая культура» определяется из расчета 3-х
часов в неделю, исключая учебное время, отводимое на производственное обучение
и производственную практику.
Учебная специальность: Техническая эксплуатация электрооборудования.
Наименование, уровни
единичной квалификации: Электромонтер по
ремонту и обслуживанию электрооборудования 2, 3, 4-й разряды.
Срок обучения 2 года и 10 месяцев на
основе общего базового образования с одновременным получением общего среднего
на основе типового учебного плана. 2006 г.
Учебная
программа
Учебная программа предназначена для
использования в учреждениях, обеспечивающих получение
профессионально-технического образования, при организации производственного
обучения по единичной квалификации «Электромонтер по ремонту и обслуживанию
электрооборудования» по учебной специальности «Техническая эксплуатация
электрооборудования».
Отбор и структурирование содержания
тем типовой учебной программы основаны на требованиях к общеспециальным и
специальным умениям обучающихся, осваивающих единичную квалификацию
«Электромонтер по ремонту и обслуживанию электрооборудования». Программа
содержит цели изучения тем, их содержание и результат. Из тематического плана
мастер узнаёт перечень изучаемых тем, а также последовательность и порядок их
изучения, количество часов и т.д. Мастер в зависимости от сложившихся условий
может в отдельных случаях изменять программу при непременном условии полного её
выполнения.
Режим учебных занятий согласно
учебной программе: учебные недели - 62, каникулы зимние - 2 недели, летние - 9,
праздники - 1, экзамены - 1 неделя.
. Характеристика и
учебно-воспитательные темы
Тема программы: Монтаж и техническое обслуживание электрических проводок и
осветительных электроустановок. Количество часов при изучении темы - 54. Тема
изучается во втором полугодии 3 курса.
Данный вид работ важен для
профессиональной подготовки будущих электромонтёров. На нём закладывается
профмастерство учащихся, которое имеет большое значение для подготовки
квалифицированного рабочего.
Задачей данной темы является
формирование умения производить монтаж открытых, скрытых и тросовых электропроводок.
Формирование умения выполнять монтаж установочной арматуры и светильников,
выполняет разметку, установку и затягивание электропроводки в гибкие
бумажнометаллические трубы. Производит разметку трассы, установку крепежных
деталей, комплектование труб и затягивание провода в стальные трубы. Выполняет
разметку, резку, крепление и затягивание электрических проводок в пластмассовые
трубы.
Изучая эту тему, учащиеся научатся
пользоваться следующими инструментами, приборами и приспособлениями:
перфоратор, мегомметром, инструментом для разделки кабеля, приспособления для
изгибания проводов КТ-2, ручной трубогиб ТРТ-24, универсальный шинотрубогиб
УШТМ-2, резание труб осуществляется на труборезном станке и др.
Для успешного изучения и освоения
данной темы, потребуются знания и умения полученные при изучении слесарных и
электромонтажных работ, а также знания по полученные при изучении предмета
электротехника, материаловеденье, и охрана труда.
Знания и умения, полученные при
изучении данной темы, будут необходимы при изучении такой темы, как монтаж и
ремонт воздушных, и кабельных линий электропередач.
Межпредметную связь сданной темой
будут представлять дисциплины спецтехнология и электротехнтка, т.к. в
результате изучения дисциплин обучающийся должен:
- понимать сущность, порядок,
правила и способы выполнения работ различной сложности по ремонту и
обслуживанию электрооборудования;
характеризовать особенности ремонта
и обслуживания электрооборудования различной сложности;
читать и применять конструкторскую и
технологическую документацию.
Воспитательной задачей данной темы
будет: выработать умения проверять качество выполняемых работ, рационально
организовывать рабочее место, соблюдать требования безопасности труда; привить
учащимся добросовестное выполнение указаний мастера, самоконтроль и дисциплина
при выполнении работ; аккуратность при использовании электротехнического
инструмента.
. Распределение
материала темы на уроки
Разделение темы программы
производственного обучения на уроки, проводится с той целью, что на изучение
темы отводится 54, а урок производственного обучения длится всего 6 часов.
Поэтому тема программы разбивается на отдельные уроки,
с соблюдением следующих требований:
- определенность и
законченность содержания учебного материала каждой темы;
четкость и
конкретность целей урока;
равномерность
нагрузки учащихся на уроках;
взаимосвязь уроков,
их логическая последовательность.
Тема
программы: Монтаж и техническое
обслуживание электрических проводок и осветительных электроустановок.
Количество часов на
изучение темы - 54.
Тему забиваем на 9
уроков, продолжительностью по 6 часов каждый.
|
№ уроков
|
Тема урока
|
Учебные цели урока
|
Воспитательные цели урока
|
Развивающие цели урока
|
|
1.
|
Монтаж открытой электропроводки.
|
Научить учащихся выполнять монтаж открытых электропроводок.
|
Воспитывать любовь к трудовой деятельности и к избранной
профессии.
|
Способствовать развитию умения расчленять всю производственную
работу на составные части, практически или мысленно соединять элементы в
единое целое.
|
|
2.
|
Монтаж тросовой проводки.
|
Обучить учащихся выполнять монтаж тросовой электропроводки.
|
Воспитывать привычку качественно выполнять работу.
|
Способствовать развитию умения анализировать
учебно-производственные работы с позиции достижения наилучших результатов при
наименьших затратах труда и материалов.
|
|
3.
|
Монтаж скрытой электропроводки.
|
Обучить учащихся выполнять монтаж скрытой электропроводки.
|
Воспитывать привычку соблюдать требования безопасности труда,
при выполнении работ.
|
Развивать умения осуществлять планирования своих действий,
выбирать наиболее рациональное их сочетание и чередование с учетом вида
работ.
|
|
4.
|
Монтаж установочной арматуры и светильников.
|
Обучить учащихся выполнять монтаж установочной арматуры и
светильников.
|
Воспитывать у учащихся ответственность, трудолюбие.
|
Развивать умения быстро и точно реагировать на новую
непредсказуемую производственную ситуацию и находить неожиданные и
нестандартные решения.
|
|
5.
|
Монтаж электропроводки в бумажнометаллических трубах.
|
Обучить учащихся выполнять разметку, установку и затягивание
электропроводки в гибкие бумажнометаллические трубы.
|
Воспитывать привычку соблюдать требования безопасности труда,
при выполнении работ.
|
Развивать умение умело работать с электротехническим
инструментом, точно и скоординировано выполнять движения при выполнении
работы.
|
|
6.
|
Монтаж электропроводки в стальных трубах.
|
Обучить учащихся выполнять разметку, резку, гибку, крепление и
затягивание провода в стальные трубы.
|
Воспитывать навыки аккуратно использовать электротехнического
инструмент.
|
Развивать умение зрительно контролировать правильность и
точность своих движений.
|
|
7.
|
Монтаж электропроводки в пластмассовых трубах.
|
Обучить учащихся выполнять разметку, резку, крепление и
затягивание электрических проводок в пластмассовые трубы.
|
Воспитывать привычку качественно выполнять работу.
|
Развитие способности применять теоритические знания на практике.
|
|
8.
|
Техническое обслуживание осветительных электроустановок со
сложными схемами электрических соединений.
|
Обучить учащихся выполнять техническое обслуживание осветительных
установок со сложными схемами эл. соединений.
|
Способствовать воспитаю культуры труда.
|
Способствовать развитию технологического мышления и
профессиональной интуиции.
|
|
9
|
Проверка, монтаж и ремонт схем люминесцентного освещения.
|
Обучить учащихся производить монтаж, ремонт и проверку схем
люминесцентного освещения.
|
Воспитывать стремление к постоянному развитию профессиональных
способностей и мастерства.
|
Способствовать развитию умения в оперативности мышления в
анализе сигнальных признаков нарушений технологического процесса, предвидеть
возможные виды брака.
|
. Подбор
учебно-производственных работ
Подбор учебно-производственных работ
имеет целью перевод рекомендаций и установок учебной программы
производственного обучения (проекта содержания обучения) в собственно
содержание процесса обучения. Это определяет и важность, и сложность этого
элемента планирования. Сложность в том, что при этом необходимо тесно увязывать
педагогические принципы рационального подбора работ с реальными возможностями,
которые не всегда соответствуют этим принципам. Отсюда и многообразие вариантов
организации подбора учебно-производственных работ.
При подборе (выборе)
учебно-производственных работ руководствуются следующими общими требованиями к
ним:
соответствие программе производственного
обучения по профессии (группе профессий);
производственная ценность;
посильность для выполнения учащимися
на соответствующем периоде производственного обучения по степени сложности,
точности, требуемым физическим усилиям, объему и содержанию необходимых
профессиональных знаний;
постепенное усложнение как в
пределах одной темы, так и в процессе производственного обучения в целом;
типичность для осваиваемой профессии
(специальности);
возможность применения современной
высокопроизводительной техники, технологии, передовых методов труда.
5. Нормирование
учебно-производственных работ
Цель нормирования
учебно-производственных работ - способствовать формированию и воспитанию
квалификационного рабочего, отвечающего требованиям современного производства и
социального развития общества. Эта цель предполагает решение следующих задач:
обеспечить постепенное освоения
учащимися примеров и методов работы передовиков производства.
приучить учащихся ценить фактор
времени и тем самым обеспечить освоение ими к концу обучения норм,
установленных на предприятии для рабочих соответствующей профессии и уровня
квалификации.
определить исходные данные для
правильного планирования производственного обучения и рационального
использования имеющегося оборудования.
содействовать наиболее объективной
оценке успеваемости учащихся по производственному обучению на основе
показателей выполнения учащимися установленных норм.
Техническое нормирование работ
учащимися в учебных заведениях проводится в соответствии с технологическим процессом
с учетом производственных возможностей, производительных режимов работы и
передового опыта.
Одна из важных задач
производственного обучения - воспитание у учащихся профессиональной
самостоятельности. Профессиональная самостоятельность у рабочего проявляется в
умении без посторонней помощи разбираться во всех требования, предъявляемых к
порученной работе, планировать и осуществлять её, проверяя результаты,
предупреждая и устраняя неполадки, преодолевая различные трудности, добиваться
отличного качества продукции, экономного расхода материалов и энергии,
образцового состояния оборудования, высокой производительности.
Последнее предполагает полное
выполнение установленных норм времени (норм выработки). Нормирование
учебно-производственных работ содействует этому.
Существуют два основных
взаимодополняющих метода нормирования учебно-производственных работ:
расчетно-аналитический метод и метод нормирования наблюдением.
Аналитически-расчетный метод
применяется для получения рабочей нормы времени, при работе на оборудовании,
когда известна производительность станка, паспортные данные. В методе
нормирования наблюдением изучаются затраты времени при выполнении работ. При
этом используется хронометраж и фотография рабочего дня.
Хронометраж - это замер времени на
выполнение какой-либо операции, изготовление и выполнение единицы работы,
включая затраты на основную работу и временно вспомогательные работы. Рабочий
выполняет задание, а нормировщик
фиксирует все его действия и
замеряет время на каждое из них. Учитываются все действия рабочего - от
получения задания до сдачи готовой продукции. Затем, затраты времени
анализируются, исключаются заведомо непроизводительные затраты времени и
получаются рабочая норма времени. Фотография рабочего дня осуществляется
следующим образом. Нормировщик контролирует действие рабочего, в течение всей
смены, фиксируя все его действия. Зачем проводиться анализ, исключаются,
непроизводительные затраты, выделяется чистое время затраченное на работу.
Мастером производственного обучения
применяется также суммарный метод нормирования. Суть, которого заключается в
том, что мастер устанавливает время на выполнение учебно-производственной
работы на основе личного опыта и выполнения данной работы учащимися.
При нормировании
учебно-производственной работы учитывают, что урок длится 45 минут, и учащийся
должен уложиться в этот отрезок времени.
Ученическую норму времени, требуемую
для выполнения учебно-производственных работ, рассчитывают в следующем порядке:
. Определяют техническую (расчетную)
норму рабочего (Тр.).
. Выбирают поправочный коэффициент (К).
. Определяют ученическую норму
времени (Ту.).
Расчёт технической нормы времени:
устанавливаем величину основного времени
(Т0.), затрачиваемого на изменение размеров,
формы, физико-механических свойств и внешнего вида обрабатываемой детали,
пользуясь таблицей «Общемашиностроительные нормативы режимов резания для
технического нормирования работ на металлорежущих станках»;
устанавливаем вспомогательное время
(Тв.), затрачиваемое на установку и снятие заготовки
или собираемого узла, на измерение и контроль качества. Выбирается Тв.
по таблице «Общемашиностроительные нормативы режимов резания для
технического нормирования работ на металлорежущих станках»; - определяем оперативное
время (Топ.), затрачиваемое на выполнение
операции, по формуле:
Топ=То+Тв;
рассчитываем время обслуживания
рабочего места (Т0), затрачиваемое на смену и правку
инструмента, на регулировку инструмента, уход за рабочим местом, по формуле:
Тоб = 5…8% Тon;- рассчитываем время, затрачиваемое на отдых и естественные
потребности (Тот), по формуле:
Тот =
2>5% Топ;
суммируем все полученные результаты:
Тр = Т0
+ Тв + Тоб + Тот,
Ученическая норма времени при этом
определяется путем умножения расчетной технической нормы на поправочный коэффициент,
учитывающий период обучения и сложность учебно-производственной работы.
Ту=Тр∙k;
Например: 15 ∙ 1,5=22,5
Коэффициенты
перевода рабочих норм времени в ученические
|
Для профессий машинного и машинно-ручного труда (ПУ с 3-х
годичным сроком обучения)
|
Для профессий ручного труда (ПУ с 3-х годичным сроком обучения)
|
|
Месяц обучения
|
1 курс
|
2 курс
|
3 курс
|
Месяц обучения
|
1 курс
|
2 курс
|
3 курс
|
|
Сложность работ
|
|
Сложность работ
|
|
2 разряд
|
2 разряд
|
3 разряд
|
4 разряд
|
|
2 разряд
|
2 разряд
|
3 разряд
|
4 разряд
|
|
Сент.
|
-
|
2,5
|
2
|
3
|
Сент.
|
-
|
3
|
2
|
3
|
|
Окт.
|
4
|
2
|
1,6
|
2,6
|
Окт.
|
-
|
2,5
|
1,9
|
2,8
|
|
Нояб.
|
4
|
2
|
1,6
|
2,6
|
Нояб.
|
5
|
2,5
|
1,8
|
2,6
|
|
Дек.
|
4
|
2
|
1,6
|
2,6
|
Дек.
|
5
|
2,5
|
1,7
|
2,4
|
|
Янв.
|
3,5
|
1,5
|
1,4
|
2,4
|
Янв.
|
4,5
|
2
|
1,6
|
2,2
|
|
Фев.
|
3,5
|
1,5
|
1,4
|
2,4
|
Фев.
|
4
|
2
|
1,5
|
2
|
|
Март.
|
3,5
|
1,5
|
1,4
|
2,4
|
Март
|
4
|
2
|
1,4
|
1,6
|
|
Апр.
|
3
|
1,2
|
1,2
|
2,2
|
Апр.
|
3,5
|
1,5
|
1,2
|
1,2
|
|
Май.
|
3
|
1,2
|
1,2
|
2,2
|
Май.
|
3,5
|
1,5
|
1
|
1
|
|
Июнь.
|
3
|
1,2
|
1
|
2
|
Июнь.
|
3,5
|
1,5
|
1
|
1
|
|
Июль.
|
2,5
|
1
|
1
|
2
|
Июль.
|
3,5
|
1,5
|
1
|
1
|
Для примера перенормируем одно
упражнение по монтажу электропроводки в стальной трубе «Затягивание электропроводки в
стальную трубу». Время на выполнение этого упражнения ушло 15 мин, исходя, из этого времени мы устанавливаем
ученическую норму времени, перемножаем время выполненное мастером на переводной
коэффициент и получаем ученическую норму времени.
Ту ∙
1,5=22,5 мин.
.
Материально-техническая подготовка к изучению темы
Материально техническая база
является основой для качественного обучения учащихся, так как на её основе
строится весь процесс обучения и от её укомплектованности зависит уровень
подготовки учащихся, а значит и востребованность специалистов выпускаемых
учебным заведением.
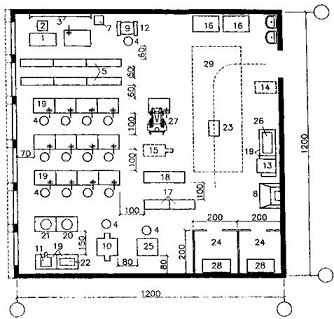
План электромонтажной мастерской
- стол мастера; 2 - стул; 3 - доска
учебная; 4 - табурет; 5 - скамья; 7 - тумба к рабочему месту станочника; 8 -
шкаф вытяжной химический; 9 - станок точильно-шлифовальный; 10 - станок
вертикально-сверлильный; 11 - станок настольный сверлильный; 12 -
пылеулавливающий агрегат; 13 - шкаф сушильный; 14 - установка компрессорная; 15
- тележка для транспортировки; 16 - стол физический; 17 - подставка для
электромашин; 18 - скамья кабельная; 19 - верстак слесарный; 20 - трубоприжим;
21 - трубогиб ручной; 22 - пресс ручной; 23 - электроталь; 24 - кабина для
электромонтажных работ; 25 - станок вертикально-сверлильный; 26 - станок
вертикально-сверлильный; 27 - рабочее место студента-инвалида; 28 - стол
электромонтажный; 29 - место сборки.
Для выполнения электромонтажных
работ необходимы специальное рабочее место и набор электромонтажных
инструментов.
Рабочее место электромонтёра должно
быть оборудовано специальным столом с диэлектрическим покрытием из пластика, на
полу должен лежать диэлектрический (резиновый) коврик. На этом рабочем месте
размещается специальная электрическая розетка с напряжением 42 В. и подставка
для паяльника и инструментов, на которой могут располагаться ванночки для
припоя и флюса.
Учебные электромонтажные мастерские
комплектуются следующим оборудованием: верстак слесарный одноместный с
подъемный тисками, верстак с трубогибом, верстак для жестяных работ, лебедка
ручная, оборудование вытяжной вентиляции над столами для разогрева кабельной
массы, оборудование приточно-вытяжной вентиляции к местам пайки и лужение,
станок сверлильный, станок точильный 2 х сторонний, стенд испытательный, столы
верстаки для электромонтажных работ.
В набор электромонтажных
инструментов входят: монтажный нож или приспособление для снятия изоляции;
плоскогубцы с узкими губками или пинцет для удержания концов проводников в
нужном положении; кусачки-бокорезы; плоские и крестообразные отвертки;
круглогубцы; изоляционная лента; крепежные изделия (болты, гайки, шайбы). Кроме
того, на рабочем месте электромонтёра могут располагаться и другие инструменты
и приспособления: небольшие слесарные тиски, молоток, кернер, набор мелких сверл
(диаметром 1-4 мм), надфили, напильники, наждачная бумага, коловорот или ручная
дрель, электроизмерительные приборы, шило, устройство для крепления
электрических схем, светильник местного освещения и др.
Под рабочим местом понимается часть
участка или мастерской. Рабочее место предназначено для выполнения работ
определенного вида и должно быть оснащено оборудованием, приспособлениями,
инструментами и материалами, необходимыми для их проведения.
Рабочее место мастера должно
обеспечивать эффективность занятий и снижение потерь рабочего времени мастера.
Располагается на поддоне высотой 250-300 мм, площадью S 3,5
.
Основные требование к
рабочему месту мастера:
1. Мастеру должно быть удобно
наблюдать за работой учащихся, а учащимся должны хорошо видны показываемые во
время коллективного инструктажа приемы работ, экспонаты, наглядное пособие,
чертежи, технологические карты и т.д.;
2. Перед рабочим местом мастера
должно быть свободная зона, где на скамейках или стульях располагаются учащиеся
во время коллективного инструктажа;
3. В зависимости от прогрессии
на рабочем месте, устанавливаются оборудование, на котором мастер демонстрирует
изучаемые приемы. Для повышения эффективности учебного процесса рабочее место
оборудуется ТСО.
4. Рабочее место оснащено
необходимым инструментами и приспособлениями, а также устройствами для хранения
и демонстрации наглядных пособий, документации и т.д.;
Перечень оборудования необходимого
для проведения работы «Монтаж электропроводки в стальных трубах»
|
№ п/п
|
Наименование
|
Характеристика
|
Количество
|
|
|
|
На одного уч-ся (на звено)
|
На группу
|
|
1.
|
Верстак слесарный.
|
Одноместный 76И-01
|
1 шт.
|
4 шт.
|
|
2.
|
Набор ИН-3.
|
|
1 шт.
|
4 шт.
|
|
3.
|
Газовый клупп для нарезания трубной резьбы.
|
|
1 шт.
|
2 шт.
|
|
4.
|
Трубогиб ручной.
|
ТРТ-24
|
1 шт.
|
1 шт.
|
|
5.
|
Газовые прижимы.
|
|
1 шт.
|
2 шт.
|
|
6.
|
Газовый ключ.
|
|
1 шт.
|
2 шт.
|
|
8.
|
Рулетка в закрытом корпусе.
|
|
1 шт.
|
5 шт.
|
Инструменты и приспособления,
материалы и заготовки.
|
№ п/п
|
Наименование
|
Количество
|
|
|
На одного уч-ся(звено)
|
На группу
|
|
1
|
Концы стальных тонкостенных труб.
|
12 шт.
|
|
2
|
Муфта с резьбой и контрогайкой.
|
2 шт.
|
6 шт.
|
|
3
|
Лента ФУМ.
|
1 шт.
|
3 шт.
|
|
4
|
Скобы.
|
2 шт.
|
6 шт.
|
|
5
|
Пенька.
|
1 шт.
|
1 шт.
|
|
6
|
Олифа.
|
1 шт.
|
1 шт.
|
|
7
|
Сурик.
|
1 шт.
|
1 шт.
|
|
8
|
Провода АПРТО.
|
1 шт.
|
3 шт.
|
|
9
|
Втулки для оконцевания труб.
|
2 шт.
|
6 шт.
|
|
10.
|
Ответвительные коробки.
|
1 шт.
|
3 шт.
|
|
11.
|
Комплект защитных средств.
|
1 шт.
|
3 шт.
|
Таблица 7.3. Средства наглядности
|
№ п/п
|
Номер и наименование темы программы
|
Наименование
|
Количество
|
Применяемые технические средства обучения
|
|
1
|
№6.5 Монтаж электропроводки в стальной трубе
|
Инструкционные карты. Плакаты. Фрагменты видеофильма
|
5 5 3
|
Телевизор видеомагнитофон
|
7. Разработка
планирующей документации
технический
электропроводка монтаж
Основными задачами планирования
производственного обучения являются:
¾ Определение
соответствия требований учебных программ фактическим условиям обучения в
мастерских, лабораториях, учебных участках;
¾ Разработка
планирующей документации в зависимости от учебных задач, периода обучения,
материально-технической базы;
¾ Создания
условий для планомерного использования имеющегося материально-технического
оснащения учебного процесса (подготовка материалов, инструментов,
приспособлений производственного обучения, технической документации);
¾ Оказание
помощи мастерам в подготовке уроков, занятий;
¾ Обеспечение
полной и равномерной загрузки всех учащихся объектами работ в течении дня;
¾ Обеспечение
целесообразного и экономичного использования государственных денежных средств и
материальных ресурсов, отпускаемых на производственное обучение.
При планировании производственного
обучения составляются следующие основные документы:
¾ Перечень
учебно-производственных работ по профессии;
¾ План и
график производственного обучения для группы;
¾ План
работы мастера на день;
¾ График
перемещения учащихся по рабочим местам
Непосредственно при подготовке и
проведении занятий мастер пользуется:
¾ Перспективно-тематическим
планом;
¾ Планом
урока.
Перспективно-тематический план на
тему: Монтаж электропроводки в стальной трубе
|
Номер урока
|
Тема урока
|
Цель урока
|
Учебно-производственные работы
|
Материально-техническое оснащение урока
|
Учебно-наглядные средства
|
Связь с предметами теоритического обучения
|
Домашнее задание
|
|
6.6
|
Монтаж электропроводки в стальных трубах.
|
Научить производить монтаж электропроводок в стальных трубах.
|
1. Резка стальных труб. 2. Гибка стальных труб. 3. Нарезание
резьбы на металлических трубах. 4. Соединение труб. 5. Затягивание провода в
трубы.
|
Набор ИН-3, газовый клупп для нарезания трубной резьбы, трубогиб
ручной, газовые прижимы, газовый ключ, рулетка в закрытом корпусе, инструмент
МБ-1МУ1, для снятия изоляции, приспособление для оприсовки жил, спец одежда,
защитные средства.
|
Инструкционная карта монтаж электропроводки в стальной трубе;
видеофильм «монтаж электропроводки в стальной трубе»; демонстрационной стенд;
макет разборно-демонстрационный.
|
Электротехника; охрана труда; электро-материаловедение;
спецтехнология.
|
Ктиторов А.Ф. п/о электромонтажников по освещению, осветительным
и силовым сетям и электрооборудованию Стр. 100
|
Таблица 8.2. График перемещения
учащихся по рабочим местам
|
Бригада учащихся
|
Периоды перемещения
|
|
1
|
2
|
3
|
4
|
|
1 бригада
|
А
|
Б
|
В
|
Г
|
|
2 бригада
|
Б
|
В
|
Г
|
Д
|
|
3 бригада
|
В
|
Г
|
Д
|
А
|
|
4 бригада
|
Г
|
Д
|
А
|
Б
|
|
5 бригада
|
Д
|
А
|
Б
|
В
|
А - резка стальных труб; Б - гибка
стальных труб; В-нарезание резьбы на металлических трубах; Г - соединение труб;
Д - затягивание провода в трубы.
. Разработка
учебно-технической документации
К учебно-технической документации
относятся чертежи на изделия и детали, включенные в перечень учебно-производственных
работ, чертежи на приспособления и оснастку, применяемые при изучении темы,
инструкционно-технологические карты и схемы технологического процесса.
Инструкционная карта составляется для изучения операций, а для выполнения работ
комплексного характера инструкционно-технологическая карта.
В инструкционных и
инструкционно-технологических картах содержаться указания «что делать», т.е.
инструкционные указания о характере и особенности, а также наиболее
целесообразных способах выполнения работы.
Предъявляются особые требования при
разработке инструкционных и инструкционно-технологических карт:
. Раскрывать условия и требования к
выполнению каждого трудового действия.
. Давать последовательность трудовых
действий в приеме.
. Указать, когда нужно осуществлять
контроль за выполнением работ.
. Необходимо предусматривать
указания по технике безопасности.
К выполнению учебно-производственной
работы предъявляются следующие технические требования: порядок и правильность
внешнего осмотра силового трансформатора, правильность проверки уровня и
температуры трансформаторного масла, правильность проверки подводящих кабелей и
ошиновки, заземления, состояние бака.
Для более точной оценки успеваемости
учащихся мастер пользуется таблицей критерий оценок, в которой приведены баллы
и соответствующие им показатели.
Инструкционно-технологическая
карта
Тема: Монтаж электропроводки в стальных трубах.
Учебная цель: Научиться выполнять монтаж электропроводки в стальных трубах.
|
Эскиз
|
Указание и пояснение
|
|
Соединение труб с уплотнением на резьбе.
|
Для соединения труб с уплотнением накатывают или нарезают резьбу
на их концы (I), причем на одном конце на длину соединительной муфты плюс
толщина гайки («сгон»), а на другом - на половину длины муфты («полусгон»).
Наматывают на резьбу уплотнение из пенькового волокна, пропитанного
разведенным на олифе суриком, или ленты ФУМ. Навинчивают гайку и
соединительную муфту на «сгон», состыковывают трубы торцами и навинчивают
муфты на «полусгон». Гайку плотно привертывают к муфте (II), во избежание
самоотворачивания соединения. Трубы вводят в коробку тем же способом, но без
гайки (III). Для указанных соединений применяют специальные разводные ключи.
|
|
Соединение труб манжетами на винтах без уплотнения.
|
Для соединения труб между собой служит разъемная стальная
манжета на винтах (I), а для соединения их с коробкой (II) - такая же манжета и
винты. В последнем случае к коробке предварительно приваривают втулку того же
диаметра, что и присоединяемая труба, при этом манжета охватывает одной
половиной трубу, а второй втулку.
|
|
Элементы трубных разводок.
|
Трубопроводы, как правило, выполняют в МЭЗ и изготовляют
одиночными, собранными в пакеты, блоки и узлы с расположением труб в один или
несколько рядов
|
|
Заготовка блока трубных разводок .
|
Углы поворота и радиусы изгиба труб нормируют. Они должны быть
90, 105, 120, 135 и 150° и 400, 800, 1000 мм. Радиус изгиба 400 мм используют
при прокладке труб в перекрытиях и для вертикальных выходов, а 800 и 1000 мм
- при прокладке труб в фундаментах и кабелей с однопро волочными жилами в
трубах. При строительстве зданий и сооружений по типовым проектам трубные
заготовки выполняют в виде наборов, состоящих из блоков, прямых участков труб
в комплекте с фасонными отводами и углами и необходимыми деталями для
соединения и крепления
|
|
Ответвительные коробки.
|
Для предупреждения попадания влаги и пыли внутрь трубных
электропроводок применяют чугунные коробки (II), имеющие патрубки 5 с
внутренней резьбой для ввинчивания труб от 1/2 до 2». Их выпускают нескольких
модификаций (прямая, угловая вправо, угловая влево, тройниковая, крестовая).
Крышки 6 чугунных коробок устанавливают на четырех болтах 7 с пружинящими
шайбами 8 и уплотняющими прокладками 9. Для обеспечения контактности и
приближения коробок к размерам труб служат коробки-кондулеты (III) нескольких
модификаций (магистральные и ответвительные; прямые, угловые, тройниковые с
выходами патрубков в разные стороны; с внутренней резьбой патрубков от 1/2 до
2»).
|
Таблица 9.1. Критерии оценок
|
Баллы
|
Выполнение технических требований
|
Самостоятельность в работе
|
Выполнение Т.Б.
|
|
1 (один)
|
Неудовлетворительно (Узнавание)
|
(Узнавание) Нарушает основные технические требования при монтаже
электропроводки в стальной трубе. Учащийся не выполняет указаний мастера,
совершает ошибки, которые повторяет после дополнительного инструктажа
|
Не усваивает основные приёмы и способы монтажа, небрежно
выполняет все работы. Самостоятельность отсутствует.
|
Не выполняет установленные правила Т.Б.
|
|
2 (два)
|
Удовлетворительно (Репродуктивный уровень)
|
(Недостаточный) Выполняет приёмы и способы монтажа с грубыми
ошибками. Не стремится качественно освоить приёмы. Нарушает основные
технические требования при монтаже.
|
Допускает неисправимый брак в работе. Не умеет пользоваться
инструментом. Работает с неисправным оборудованием.
|
Не выполняет установленные правила Т.Б.
|
|
3 (три)
|
|
(Почти удовлетворительный) Выполняет операции по ремонту с
существенными ошибками. Не соблюдает технические требования. Небрежно
относится к оборудованию электромонтажной мастерской.
|
Слабо усваивает основные приёмы монтажа. Не может принимать
решения без помощи мастера.
|
Не совсем точно соблюдает правила Т.Б.
|
|
4 (четыре)
|
|
(Удовлетворительный) Выполняет приёмы и способы монтажа с
недостатками, устраняемыми после указания мастера; неправильная
последовательность выполнения работ.
|
Ориентируется в обстановке. Выполняет допустимые недочёты в
организации труда и рабочего места.
|
Соблюдает правила Т.Б.
|
|
5 (пять)
|
Почти хорошо (репродуктивный)
|
(Весьма удовлетворительный) Выполняет задания в пределах
технических требований. Неточности исправляет при помощи мастера.
|
Работы выполняет правильно, но с помощью товарищей или мастера.
Недостаточно самостоятелен в работе.
|
Соблюдает правила Т.Б.
|
|
6 (шесть)
|
|
(Почти хорошо) Усваивает основные приёмы монтажа после
повторного показа мастером. В некоторых действиях наблюдаются незначительные
ошибки. Правильно соблюдает рабочую последовательность ремонта.
|
Внимателен в работе, инструменты содержит в хорошем состоянии.
Наблюдается некоторые затруднения в пользовании инструкционной картой.
|
Соблюдает правила Т.Б.
|
|
7 (семь)
|
Очень хорошо (продуктивно-репродуктивный уровень)
|
(Хорошо) Технически правильно выполняет приёмы монтажа в
соответствии с указаниями мастера, допущенные ошибки не повторяются.
Правильно работает с инструментом.
|
Незначительные ошибки в работе устраняет самостоятельно,
необходима лишь помощь в инструкционной карте.
|
Строго соблюдает правила Т.Б.
|
|
8 (восемь)
|
|
(Почти отлично) Правильное выполнение всех приёмов и способов
монтажа при единичных несущественных недочётах
|
Соответствует техническим требованиям с отклонениями в пределах
допустимого. Принимает правильные решения под руководством мастер.
|
Строго соблюдает правила Т.Б.
|
|
9 (девять)
|
Превосходно, хорошо (продуктивный уровень)
|
(Отлично) Отличное качество выполнения всех операций и заданий с
указаниями мастера. Действия спокойные, умеренные.
|
Полное применение знаний изученного материала. Наличие
творческого характера, аккуратность и внимательность в работе.
|
Строго соблюдает правила Т.Б.
|
|
10 (Десять)
|
|
(Превосходно) Безошибочное и правильное выполнение всех приёмов
и способов монтажа электропроводки в стальных трубах. Превосходное выполнение
всех операций без указаний мастера. Свободное оперирование изученным
материалом.
|
Твердо усваивает и свободно применяет полученные знания.
Выполненная работа полностью соответствует техническим требованиям к
качеству. Поддерживает образцовый порядок на рабочем месте.
|
Строго соблюдает правила Т.Б.
|
9. Подготовка мастера к занятиям
Подготовка мастера п/о к занятиям
является ответственным этапом перед проведением самого занятия для учащихся.
Подготовка включает в себя 3 основных этапа:
1. Методическая (личная) подготовка, в которую входит:
– изучение содержания данной темы;
– определение объёма знаний и умений, подлежащих усвоению учащимися;
– систематизирование
учебного материала темы с учётом нового в развитии отрасли;
– подбор учебного материала в учебнике, технической, методической и
другой литературе;
– установление межпредметных связей;
– продумывание организационных форм, методов и приёмов изучения
темы;
– планировка наглядности;
– уточнение целей предстоящего урока;
– определение типа и структуры урока;
– подготовка вопросов для учащихся;
– тщательное
продумывание последовательности личного показа трудовых приёмов;
– подбор методов контроля и учёта знаний, умений и навыков;
– уточнение форм и методов подведения итогов занятия;
– определение содержания и объёма домашнего задания для учащихся.
2. При подготовке материально-технического оснащения мастер:
– организует своё рабочее место;
– отбирает и приводит в систему учебно-наглядные пособия, макеты;
– подготавливает технические средства обучения;
– просматривает исправность инструментов, приспособлений и
оборудования для выполнения заданий учащимися;
– проверяет пригодность каждого рабочего места учащихся для изучения
учебного материала и выполнения намеченных учебно-производственных работ;
– заготавливает материал и заготовки;
– особое внимание мастер должен обратить ка состояние инструментов
необходимых для выполнения ремонта;
– проверяет наличие в аптечке учебной мастерской йода и бинтов;
– подготавливает демонстрационный стенд «Монтажа электропроводки в
стальной трубе»;
– проверяет
тренировочное оборудование для проведения пробных ремонтов;
– подготавливает
видеофильм «Монтажа электропроводки в стальной трубе».
З. При подготовке
планирующей и учебной документации мастер:
– составляет письменный план урока (технологическую карту урока),
который служит рабочим документом в процессе проведения занятия;
– формулирует
вопросы для учащихся;
– составляет
конспект вводного инструктажа;
– подготавливает
инструкционные карты по монтажу электропроводки в стальной трубе;
№ п/п
|
Этапы урока
|
Технология
|
|
|
Методы обучения
|
Средства обучения
|
Форма организации учебной деятельности
|
Примечание
|
|
1.
|
Организационная часть
|
Словесные
|
Слесарная мастерская.
|
|
5 мин.
|
|
1.1
|
Приветствие.
|
|
|
|
|
|
1.2
|
Осмотр внешнего вида учащихся.
|
Наблюдение.
|
Журнал посещаемости.
|
Фронтальная.
|
|
|
1.3.
|
Запись в журнал отсутствующих.
|
Беседа.
|
Журнал по ТБ.
|
|
|
|
1.4.
|
Запись в журнал по ТБ.
|
|
|
|
|
|
2.1.
|
Сообщение темы и цели занятия.
|
|
|
|
|
|
2.2.
|
Опрос учащегося по пройдённому материалу:
|
Беседа.
|
Инструкционная карта.
|
Индивидуальная.
|
|
|
1. Как выполняют крепление трасса? 2. Устройство труб и
электропроводки? 3. Назовите особенности хранения деталей для сборки? 4.
Правила ТБ при выполнении электропроводки?
|
|
|
|
|
|
2.3.
|
Изложение нового материала.
|
Словесные. Наглядные.
|
Электромонтажная мастерская.
|
Фронтальная.
|
|
|
2.3.1.
|
Общие понятия о электропроводке в трубах.
|
Объяснение.
|
Плакаты.
|
|
|
|
2.3.2.
|
Инструменты и оборудование для монтажа.
|
Наглядные.
|
Плакаты. Демонстрационный стенд.
|
Урок по формированию новых знаний.
|
|
|
2.3.3.
|
Соединение труб.
|
Объяснение. Наглядные.
|
|
|
|
|
2.3.4.
|
Крепление труб к несущей поверхности.
|
|
Демонстрационный стенд.
|
|
|
|
2.3.5.
|
Затягивание проводов в трубы.
|
Личный показ мастера.
|
|
|
|
|
2.3.6.
|
Правила по ТБ.
|
Рассказ.
|
|
|
|
|
2. 4.
|
Закрепление нового материала.
|
Беседа.
|
Плакаты. Инструкционные карты.
|
Фронтально-индивидуальная
|
|
|
1. В чём сущность монтажа электропроводки в трубах? 2. Способы
соединения труб? 3. Какие существуют способы крепления труб к стене? 4. Каким
образом производят затягивание провода в трубы?
|
Беседа. Опрос.
|
Плакаты.
|
|
|
|
3.
|
Самостоятельная работа учащихся.
|
Наглядные. Практические.
|
Электромонтажная мастерская.
|
Фронтальная.
|
290 мин.
|
|
3.1.
|
Действия мастера ПО:
|
|
Инструкционная карта.
|
|
|
|
3.1.1.
|
Выдача заданий учащимся.
|
|
|
Самостоятельная работа
|
|
|
3.1.2.
|
Контроль за выполненными действиями учащихся.
|
Наблюдение
|
|
|
|
|
3.1.3.
|
Контроль за соблюдением Т.Б. накопление оценок в оценочную
ведомость.
|
Наблюдение.
|
Журнал по Т.Б оценочная ведомость.
|
Фронтально-индивидуальная.
|
|
|
3.2.
|
Действия учащихся.
|
Учебно-производственный труд.
|
Инструкционные карты.
|
Индивидуальная.
|
|
|
3.2.1.
|
Изучение инструкционных карт.
|
|
|
|
|
|
3.2.2.
|
Организация рабочего места в мастерской.
|
|
Заготовки и уборочный инвентарь.
|
|
|
|
3.2.3.
|
Выполнение упражнений.
|
Упражнения.
|
Заготовки. Рабочий инструмент.
|
Индивидуальная.
|
|
|
3.2.4.
|
Уборка рабочего места и инструментов
|
|
|
|
|
|
4.
|
Заключительный инструктаж.
|
|
Фронтальная.
|
Фронтальная.
|
20 мин.
|
|
4.1.
|
Анализ работ учащихся
|
Словесные. Наглядные.
|
|
|
|
|
4.2.
|
Сообщение оценок каждому учащемуся
|
Словестные.
|
Таблица типичных ошибок, оценочная ведомость
|
Фронтальная.
|
|
|
4.3.
|
Подведение итогов занятия.
|
Беседа.
|
|
Фронтальная.
|
|
|
4.4.
|
Беседа.
|
Ктиторов А.Ф. П/о электромонтажников по освещению, осветительным
и силовым сетям и электрооборудованию Стр. 100
|
|
|
Конспект вводного
инструктажа.
. Общее понятие о
электропроводках.
Электропроводка - совокупность проводов и
кабелей с креплениями, поддерживающими защитными конструкциями и деталями,
служащих для передачи и распределения электроэнергии в здании или сооружении.
Электропроводка
бывает следующих видов:
Открытая
электропроводка - проложенная по
поверхности стен, потолков, по фермам и другим строительным элементам зданий и
сооружений, по опорам и т.п. При открытой электропроводке применяются следующие
способы прокладки проводов и кабелей: непосредственно по поверхности стен и
потолков. На струнах, тросах, роликах, изоляторах. В трубах, коробах, гибких
металлических рукавах, на лотках, в электрических плинтусах, свободной
подвеской. Открытая электропроводка может быть стационарной, передвижной и
переносной.
Скрытая
электропроводка - проложенная внутри
конструктивных элементов зданий и сооружений (в стенах, полах, фундаментах,
перекрытиях), а так же по перекрытиям в подготовке пола, непосредственно под
съёмным полом. При скрытой электропроводке применяются следующие способы
прокладки проводов и кабелей: в трубах, гибких металлических рукавах, коробах,
замкнутых каналах и пустотах строительных конструкций, в заштукатуриваемых
бороздах, под штукатуркой, а так же замоноличиванием в строительные конструкции
при их изготовлении.
Наружной
электропроводкой называется электропроводка, проложенная по наружным стенам зданий
и сооружений, под навесами, между зданиями на опорах (не более 4х пролётов
длинной до 25 м каждый) вне улиц и дорог. Наружная электропроводка может быть
открытой и скрытой.
Вводом
от воздушной линии электропередачи
называется электропроводка, соединяющая ответвление от ВЛ с внутренней
электропроводкой, считая от изоляторов, установленных на наружной поверхности
(стене, крыше) здания или сооружения, до зажимов вводного устройства.
Струной как несущим элементом
электропроводки называется стальная проволока, натянутая вплотную к поверхности
стены, потолка и т.п., предназначенная для крепления к ней проводов, кабелей
или их пучков.
Полосой как несущим элементом электропроводки называется металлическая
полоса, закреплённая к поверхности стены, потолка и предназначенная для
крепления к ней проводов, кабелей, или их пучков.
Тросом как несущим элементом электропроводки называется стальная
проволока или стальной канат, натянутые в воздухе, предназначенные для подвески
к ним проводов, кабелей и их пучков.
Коробом называется закрытая полая конструкция прямоугольного или другого
сечения, предназначенная для прокладки в ней проводов и кабелей. Короб должен
служить защитой от механических повреждений проложенных в нём проводов и
кабелей. Короба могут быть глухими или с открываемыми крышками, со сплошными
или перфорированными стенками. Глухие короба должны иметь только сплошные
стенки со всех сторон и не иметь крышек. Короба могут применяться в помещениях
и наружных установках.
Лотком называется открытая
конструкция, предназначенная для прокладки на ней проводов и кабелей. Лоток не
является защитой от внешних механических повреждений проложенных на нём
проводов и кабелей. Лотки должны изготавливаться из несгораемых материалов. Они
могут быть сплошными, перфорированными или решётчатыми. Лотки могут применятся
в помещениях и наружных установках.
Выполнение проводки
включает в себя следующие основные операции: разметку мест установки
токоприёмников, штепсельных розеток и выключателей. Мест прокладки проводов по
стенам и потолку. Мест проходов проводов через стены и междуэтажные перекрытия,
мест ответвлений проводов и установки коробок. Прокладку проводов со всеми
соединениями, крепление проводов к изолирующим опорам или закрепление их
скобами; оконцевание проводов и присоединение их к токоприёмникам.
Электропроводка
должна обеспечивать возможность лёгкого распознавания по всей длине проводников
по цветам:
· голубого цвета - для обозначения нулевого рабочего проводника;
· двухцветная комбинация зелёно - жёлтого цвета - для обозначения
нулевого защитного проводника;
· чёрного, коричневого, красного, оранжевого, серого, белого цвета -
для обозначения фазного проводника.
Сети,
прокладываемые от групповых щитов до штепсельных розеток и светильников, должны
выполняться трехпроводными (фазный, нулевой рабочий N, и нулевой защитный РЕ
проводники). При этом, нулевой рабочий и нулевой защитный проводники, не
следует подключать на щите под один контактный зажим. В щите должны быть
предусмотрены раздельные зажимы для нулевого и защитного проводников. Причём
зажимы нулевого рабочего проводника должны быть изолированы от корпуса щита.
Нулевой рабочий проводник в цепи, защищаемой АВДТ или ВДТ, не должен
соединяться с заземлёнными корпусами электрооборудования, с защитными
контактами штепсельных розеток.
2. Инструменты и
оборудование для монтажа
Монтаж трубных проводок требует
применения значительного ряда инструментов, приспособлений и оборудования. Все
их можно подразделить на общепромышленные, применяемые для различных
слесарно-монтажных работ, включая рассматриваемые виды работ, и на специальные,
созданные или создаваемые для данного вида работ. Как известно, выполнение
работ по монтажу трубных проводок осуществляется в две стадии. К первой,
подготовительной, стадии относятся такие работы, как: организационно-подготовительные;
контрольные, оценивающие качество исходных материалов, деталей и арматуры;
заготовительные, такелажные при складировании и транспортировании изделий;
разметочные, по определению и разметке мест прокладки проводок и установке приборов;
дыропробивные и установочные на местах установки и прокладки; а также
транспортные. Вторая стадия работ включает монтаж трубных проводок, их
испытание и сдачу в эксплуатацию.
При этом пользуются следующим
инструментом: ножницы кабельные, перфоратор, дрель, набор отверток,
плоскогубцы, пассатижи, трубогиб, отвес, разметочная рулетка, болгарка,
крепежные изделия, пресс механический ручной.
3.
Крепление труб электропроводки
Крепежные элементы
представляют собой опоры и подвески, являющиеся несущими конструкциями, и
предназначены для прикрепления горизонтальных и вертикальных трубопроводов к
строительным конструкциям с помощью закладных деталей, консолей и кронштейнов.
Общими требованиями
к крепежу являются:
возможность его
многократного применения с обязательным сохранением высокого качества изделий;
применение для
крепления труб в различных условиях строительства трубопроводов, в том числе
рассчитанных на средние и тяжелые нагрузки;
универсальность и
унифицированность;
высокая
механическая прочность;
коррозионная
стойкость к окружающей среде;
легкость и простота
монтажа.

Рисунок 4.3.1.
Монтаж элементов электропроводок в стальных трубах: а - общий вид
электропроводки освещения в стальных трубах, б, в, г, д, е - соединение труб
манжетой с винтами, манжетой с клиновой обоймой, гильзой под электросварку, на
резьбе, муфтой с раструбами, ж, з, к, л - ввод труб в коробку на резьбе, с
помощью гильзы с последующей об варкой, по всему периметру, с помощью
заземляющих гаек, с помощью втулок, приваренных к коробке, и манжет с винтами,
м - наворачивание царапающих гаек прямым и накладным ключом. Эксплуатационная
надежность трубопроводов зависит от их правильного закрепления, которое должно
выполняться с учетом специфических свойств материалов труб.
Несоблюдение этого
условия приводит к повреждению трубопроводов и снижению их долговечности.
Физическими свойствами труб обусловлены определенные технические требования к
конструкциям опор и подвесок, а также к закреплению на них трубопроводов.
Стальные трубы при
открытой прокладке крепят скобами и хомутами. Запрещено крепление стальных труб
всех типов к металлоконструкциям с помощью электрической и газовой сварки. При
прокладке стальных труб должны быть выдержаны определенные расстояния между
точками их крепления: не более 2,5 м для труб с условным проходом 15-20 мм, 3
м- с проходом 25 - 32 мм, не более 4 м - с проходом 40-80 мм, не более 6 м - с
проходом 100 мм. Допустимые расстояния между протяжными коробками зависят от
числа изгибов трубной линии: при одном - не более 50 м; при двух - не более 40
м; при трех - не более 20 м. Выбор диаметра стальной трубы для размещения в ней
проводов зависит от их количества и диаметра проводов.
Чтобы избежать
повреждения изоляции проводов при протяжке, на концах стальных труб устанавливают
пластмассовые втулки. Для облегчения протяжки проводов в трубы вдувают тальк и
предварительно затягивают стальную проволоку диаметром 1,5-3,5 мм, к концу
которой прикрепляют тафтяную ленту с шариком. Затем в трубу сжатым воздухом
небольшого передвижного компрессора при избыточном давлении 200-250 кПа вдувают
шарик, с помощью тафтяной ленты втягивают проволоку и за ней провод или кабель,
прикрепленные к проволоке. В вертикально проложенные трубы провода
рекомендуется затягивать снизу вверх. Соединения и ответвления проводов,
проложенных в трубах, выполняют в коробках и ящиках.
Применяемые для
электропроводок стальные трубы делятся на три группы: водогазопроводные
обыкновенные, легкие и тонкостенные электросварные.
4.
Соединение труб с коробками

Рисунок 4.3.2.
Соединение труб. Соединения и присоединения труб к коробкам, аппаратам и
электроприемникам выполняют без специального уплотнения (когда они применяются
для защиты проводов от механических повреждений), уплотненными (для защиты труб
от попадания в них пыли, влаги, едких паров и газов) и взрывобезопасными для
исключения возможности попадания внутрь труб, аппаратов и электроприемников
взрывоопасных смесей. Соединения или ответвления проводов в трубах выполнять
запрещено, их делают только в коробках. После стыковки трубы с коробкой,
свинчиваем ее с коробкой.
5. Техника безопасности
при монтаже электропроводок
При выполнении работ по монтажу
вторичных цепей необходимо строго соблюдать основные требования, изложенные в
СНиП Ш-А.11-70 «Техника безопасности в строительстве», «Правилах техники
безопасности при электромонтажных и наладочных работах», «Инструктивных
указаниях по технике безопасности при электромонтажных работах» и «Правилах пожарной
безопасности при производстве строительно-монтажных работ». Ответственность за
соблюдение требований правил техники безопасности и выполнение мероприятий по
безопасности труда и противопожарной безопасности, а также производственной
санитарии несут производитель работ в пределах руководимых им объектов и
мастера участков.
В проектах производства
электромонтажных работ (ППЭР) должны быть указаны основные мероприятия,
обеспечивающие безопасное проведение работ, и меры предупреждения возникновения
пожара.
Все монтажные работы надо
производить в недействующих электроустановках. При монтаже вторичных цепей в
действующих электроустановках производитель работ должен обеспечить
безопасность их ведения: произвести необходимые отключения, наложить переносное
защитное заземление, выставить ограждения, вывесить предупреждающие и
запрещающие плакаты на ограждениях и разрешающие на месте работ, снабдить
работающих индивидуальными защитными средствами (диэлектрическими перчатками,
калошами, ковриками и др.). Выполнять какие-либо работы на частях, находящихся
под напряжением, категорически запрещается.
Провода и кабели можно прокладывать
после того как трубы, лотки и короба будут окончательно закреплены, а стальные
трубы, проложенные в бороздах, фундаментах и полах, - заштукатурены или
забетонированы.
При использовании переносных
светильников необходимо соблюдать следующие требования: их питание в помещениях
повышенной опасности может осуществляться при напряжении до 42 В, а в особо
опасных-12 В; сеть пониженного напряжения (42 и 12 В) должна иметь специальные
штепсельные розетки, а светильники - специальные вилки, которые нельзя было бы
включить в розетки сети 220 В; провода светильника должны быть медные с гибкой
токопроводящей жилой и хорошей изоляцией, а лампа должна быть защищена
металлической сеткой.
При оборудовании переносного
освещения с понижающим трансформатором 220/42 или 220/12 В придерживаются
следующих правил:
трансформатор должен иметь надежную
изоляцию между обмотками и между каждой обмоткой и корпусом;
вторичную обмотку трансформатора (на
напряжение 42 или 12 В) необходимо заземлять;
провода, подводящие питание к
первичной обмотке (на напряжение 220 В), должны иметь хорошую изоляцию; с
одного конца они имеют обычную штепсельную вилку, а с другого конца подключаются
к выводам первичной обмотки (при этом хотя бы один провод должен быть приварен
или припаян к одному из выводов во избежание ошибочного подключения питающих
проводов к вторичной обмотке трансформатора); длина этих проводов не должна
превышать 1,5 м; провода, соединяющие светильник с вторичной обмоткой
трансформатора, могут быть любой длины, но с хорошей изоляцией.
Паяльник в нагретом состоянии
следует держать только на металлической подставке с лотком, предотвращающим
попадание флюса, припоя и нагара на поверхности стола или проводов. При
окончании пайки паяльник надо убрать в металлический ящик с соблюдением
требований противопожарной безопасности; если пайку производили электрическим
паяльником, то прежде всего его необходимо отключить от сети.
Прозвонку проводов и жил контрольных
кабелей можно производить с помощью приборов на напряжение не более 12 В. Перед
началом прозвонки необходимо убедиться в том, что с прозваниваемых цепей снято
напряжение. Измерение сопротивления изоляции мегаомметром или другими приборами
нужно производить вдвоем, причем лица, выполняющие эту работу, должны иметь
соответствующую квалификационную группу по технике безопасности.
По окончании работ надо: привести в
порядок рабочее место, удалить остатки материалов, посторонние предметы,
обрезки проводов и изоляции; убрать инструмент и защитные средства на место их
хранения, предварительно осмотрев и очистив их от загрязнений; вынести
использованный обтирочный материал из помещения, где производились работы, в
специально отведенное место; снять (после получения указания от производителя
работ) вывешенные плакаты и покинуть помещение, где выполнялись работы.
10. Методика проведения
занятий
Вводный инструктаж имеет цель
подготовить учащихся к активному и сознательному выполнению
учебно-производственных заданий, предупредить брак и ошибки, обеспечить
соблюдение правил техники безопасности.
Методы производственного
обучения - это способы совместной
деятельности мастера и учащихся, при помощи которых достигается овладением
учащимися знаниями и умениями, профессиональным мастерством, развитие
умственных и физических силы, творческих способностей.
Методы производственного
обучения:
1. Словесные
. Наглядные
. Практические
Наглядные методы
производственного обучения:
. Личный показ
мастером трудовых приемов. Это главный метод
из группы наглядных, т.к. никакие самые подробные описания того, как необходимо
провести например оконцевание проводов не заменят личного показа. Демонстрируя
прием, мастер показывает его в рабочем режиме, т.е. так как он должен
выполняться в реальных условиях, затем расчленяет его на отдельные составляющие
части, объясняет и показывает выполнение каждой из них, особо останавливаясь на
более трудных. Затем снова показывает всё в рабочем режиме.
2. Демонстрация
наглядных пособий, образцов выполненных работ, ТСО. В п/о применяются наглядные пособия которые знакомят учащихся с
образцами оборудования, инструментов и приспособлений, это могут быть как
натуральные объекты, так и схематические изображения оборудование, инструментов,
технологических процессов, трудовых приемов и операции.
3. Самостоятельные
наблюдения учащихся. Применяется после
соответствующего объяснение мастера. Является активным методом. Стимулирует
мыслительную деятельность учащихся, способствует развитию самостоятельности.
4. Экскурсия.
Знакомя учащихся с целью и
содержанием темы урока, мастер разъясняет им, какие практические знания, умения
и навыки они должны приобрести или закрепить в результате выполнения
учебно-производственных работ. Затем мастеру необходимо проверить, как учащиеся
усвоили пройденный материал по теме «Монтаж электропроводки в стальной трубе».
Он задаёт учащимся вопросы, чтобы увязать теорию с практикой:
1. Устройство стальных труб?
2. Какой порядок монтажа электропроводки в стальных трубах?
3. Назовите особенности хранения деталей до монтажа
4. Какие правила нужно соблюдать при монтаже электропроводки?
5. ТБ при выполнении монтажных работ.
6. Назовите порядок монтажа электропроводки в трубах.
Чтобы такой опрос был более
эффективен, его можно проводить в связи с конкретным заданием. Это даёт
возможность ставить перед учащимися задачи, требующие мобилизации имеющихся у
них знаний.
При изложении нового материала во
время показа приёмов необходимо использовать подготовленный плакат, инструкционные
карты общего пользования, а также таблицу типичных ошибок. Хороший эффект даёт
демонстрационный стенд. Очень важно, чтобы мастер показывал приёмы монтажа
уверенно, чётко, мастерски. После показа приёмов работ по монтажу мастером
учащиеся должны увидеть образец того, что они должны сделать.
В результате хорошо проведённого
ознакомления с трудовым содержанием задания у учащихся должен сформироваться
чёткий образ изучаемого трудового действия. Подробное выполнение учащимися
приёмов должно следовать непосредственно за показом их мастером. Иногда
необходимо, чтобы учащиеся повторяли вслед за мастером одно движение за другим.
Только после нескольких упражнений, когда учащиеся накопят некоторый
двигательный опыт, мастер, учитывая допущенные ими ошибки, подробно объясняет,
какими должны быть: рабочая поза, хватка инструмента, траектория движения,
координация усилий, темп выполнения действий.
Большое значение для повышения
эффективности инструктажа имеет разбор инструкционных карт, которыми учащиеся
будут пользоваться в процессе упражнений.
В конце инструктажа следует
тщательно проверить, в какой мере учащиеся усвоили новый учебный материал,
используя для этого опрос. После этого необходимо расположить учащихся около
своих рабочих мест. Особое внимание при этом обратить на соблюдение правил
безопасности в соответствии с рекомендациями инструкционных карт. Необходимо
предупредить учащихся, что при возникновении сложностей, они должны обратиться
к мастеру.
Во время проведения вводного
инструктажа рекомендую использовать словесные, наглядные и практические методы
обучения. Из них наиболее оптимальны для проведения инструктажа это - беседа,
объяснение, разъяснение, иллюстрация и демонстрация, письменное
инструктирование и упражнения. Самым лучшим и эффективным методом обучения
является - личный показ мастером.
После окончания вводного инструктажа
учащиеся приступают к самостоятельному выполнению заданий. Эта часть урока
является основной. К ней предъявляется целый ряд важнейших требований, от
соблюдения которых зависит и качество всего урока, и результат обучения.
В процессе работы нужно приучать
учащихся к самостоятельному решению вопросов, опираясь на ранее полученные
знания и имеющийся опыт. Степень самостоятельности, которую мастер
предоставляет учащимся в работе, должна быть дифференцированной, учитывающей
способности и подготовку каждого учащегося.
Результаты выполнения учебных
заданий в значительной степени зависят от организованности учащихся. Поэтому
мастер должен постоянно наблюдать за рабочим местом учащегося.
В процессе текущего инструктирования
мастер должен обратить особое внимание на правильность выполнения учащимися
приёмов ремонта и его составных элементов, а также соблюдение правил
безопасности.
Если учащийся нарушает правила
техники безопасности, нельзя ждать момента, когда он сам поймёт последствия
этих нарушений. Вмешательство мастера не должно быть простой подсказкой, оно
должно нацеливать учащегося на анализ причин, приведших к ошибке, на
последствия, к которым она может привести. Немедленное вмешательство необходимо
в том случае, когда неверные приёмы в работе, применение не того оборудования,
которое требуется по технологическому процессу, могут вывести из строя машину,
инструмент.
Во время выполнения упражнений
учащимися, мастер должен использовать следующие методические приёмы:
- повторный показ приёмов на рабочих местах учащихся;
- проверку соблюдения рекомендаций инструкционных карт;
- организацию взаимного контроля учащихся, работающих на соседних
рабочих местах;
- организацию взаимного обучения учащихся (предлагает учащемуся,
хорошо освоившему приём, объяснить и показать его товарищу);
коллективное текущее
инструктирование всей группы, если большинство учащихся допускает однотипные
ошибки.
Учебно-воспитательная работа должна
обеспечивать выработку у учащихся бережного отношения к труду,
добросовестности, аккуратности, честности, настойчивости в достижении
поставленной цели. Необходимо приучать учащихся рационально организовывать свой
труд, рабочее место, соблюдать установленную технологию выполнения работы,
воспитывать бережливое отношение к инструменту и материалу. В процессе обучения
следует помогать учащимся, вырабатывать у них умения и навыки, отвечающие
правилам и нормам культуры труда.
Правильно определённая и хорошо
выдержанная в процессе занятий цель, будет помогать учащимся видеть результат,
которого они обязаны достигнуть, и поможет идти к этому результату сделает их
работу более осмысленной, целеустремленной, сознательной, активной, будет
вырабатывать привычку определять цель и з будущей практической деятельности, и
в жизни.
Очень часто отдельные учащиеся
значительно опережают других в выполнении задания. В этом случае мастер обязан
заблаговременно подготовить и выдать учащимся дополнительные задания, которые
расширяли бы их кругозор, давали возможность приобретать новые умения.
Во время заключительного инструктажа
мастеру производственного обучения необходимо подвести итоги работы учащихся по
выполнению учебно-производственных заданий. Эта часть урока очень важна. Мастер
должен оценивать работ каждого учащегося в отдельности.
Мастеру нужно провести анализ
освоения учащимися основных приёмов рубки: указывает на наиболее характерные
ошибки учащихся, их причины, способы предупреждения и недопущения в дальнейшем,
а также, пользуясь таблицей типичных ошибок, проанализировать качество
выполнения работ.
В ходе заключительного инструктажа
рекомендую предлагать учащимся выполнять отдельные приёмы, производить
действия, выполнять определённые операции по монтаже тросовой электропроводки.
В процессе проведения инструктажа
наряду с указанием недостатков, которые должны быть устранены в процессе
дальнейшего обучения, необходимо создать у учащихся и чувство удовлетворения
результатами урока. Для этого нужно остановиться на отдельных положительных
моментах работы, а также показать, как в результате занятия учащиеся
продвинулись вперед на пути овладения профессией.
Анализ работы учащихся на уроке
должен направлять их на размышление, на оценку своей работы, помочь найти и
увидеть пути улучшения работы, совершенствование мастерства.
В заключительном анализе работы
учащихся мастер объявляет оценки, тщательно обосновывая их.
В конце занятия мастеру необходимо
выдать учащимся домашнее задание, которое может включать в себя подготовку к
следующему занятию, углубление и совершенствование знаний и умений,
полученных на данном уроке.
Заключение
При выполнении курсовой работы по
дисциплине «Методика производственного обучения» на тему «Монтаж
электропроводки», я развил в себе практические знания по организации урока
производственного обучения. Получил опыт по составлению технологических карт,
перечня учебно-производственных работ, перспективно-тематического плана,
конспекта вводного инструктажа и инструкционной карты. Выполнение данной работы
способствовало развитию терпения, усидчивости и стремления к поставленной цели.
Разработка и написание курсовой
работы по дисциплине «Методика производственного обучения» является важным
условием закреплением пройденного материала и приобретения первоначальных
умений и навыков в педагогической деятельности, которая в дальнейшем пригодится
в педагогической деятельности.
Процесс производственного обучения
должен обязательно происходить на основе тесной взаимосвязи теории с практикой.
Практические умения и навыки формируются на основе знаний, которые в ходе их
применения совершенствуются, углубляются, расширяются.
Это определяет необходимость,
во-первых, координации изучения специальных предметов и производственного
обучения таким образом, чтобы теория опережала практику; во-вторых, высокого
уровня специальных знаний мастера производственного обучения; в-третьих,
осуществление таких межпредметных связей в деятельности мастеров и
преподавателей специальных предметов (специальной технологии).
Список использованной
литературы
1. Атабеков В.Б.
Монтаж электрических сетей и силового электрооборудования, М., «Высшая школа»,
1985
2. Атабеков В.Б.,
Покровский К.Д. Монтаж электрических сетей и силового электрооборудования, М.,
«Высшая школа», 1977
. Волпян Г.А.
Производственное обучение электромонтеров-ремонтников, М., «Высшая школа», 1972
. Жиделев М.А.
Производственное обучение в профессионально-технических училищах, М., «Высшая
школа», 1972
. Жиделев М.А.,
Коваленко И.Г., Саюшев В.А. Организация и методика производственного обучения,
М., «Высшая школа», 1978
. Ктиторов А.Ф.
Практическое руководство по монтажу электрических сетей, М., «Высшая школа»,
1987
. Ктиторов А.Ф.
Основные приемы и способы выполнения электромонтажных работ, М., «Высшая
школа», 1982
. Ктиторов А.Ф.
Производственное обучение электромонтажников по освещению, осветительным и
силовым сетям и электрооборудованию, М., «Высшая школа», 1976
. Ктиторов А.Ф.
Производственное обучение электромонтажников по освещению, осветительным и
силовым сетям и электрооборудованию, М., «Высшая школа», 1984
. Макиенко Н.И.
Общий курс слесарного дела, М., «Высшая школа», 1984
. Скакун В.А.
Преподавание общетехнических и специальных предметов в средних ПТУ, М., «Высшая
школа», 1987
. Скакун В.А.
Введение в профессию мастера производственного обучения, М., «Высшая школа»,
1988