Разработка участка технического обслуживания автопарка учебно-методического центра 'Автошкола СВФУ'
Министерство
образования и науки Российской Федерации
ФГАОУ ВПО
«Северо-восточный федеральный университет
имени М. К.
Аммосова»
Автодорожный
факультет
Кафедра
«Эксплуатация автомобильного транспорта и автосервиса»
Отделение очное
Специальность 190601 гр.АиАХ-08(2)
Допускается к защите ВКР
Зав. кафедрой ЭАТиАС: /Друзьянова В.П.
ДИПЛОМНЫЙ
ПРОЕКТ
На тему: Разработка участка
технического обслуживания автопарка Учебно-методического центра «Автошкола
СВФУ»
РАСЧЕТНО-ПОЯСНИТЕЛЬНАЯ
ЗАПИСКА
Дипломник: /Бурнашев
А.И.
Руководитель: /Портнягин
С.П.
Консультант:
по теоретической части: /Портнягин
С.П.
Нормоконтролер: /Шахурдин
В.Д.
Якутск, 2013
Министерство образования и науки Российской Федерации
ФГАОУ ВПО «Северо-Восточный федеральный университет
имени М. К. Аммосова»
Автодорожный факультет
Кафедра «Эксплуатация автомобильного транспорта и автосервиса»
УТВЕРЖДАЮ
Зав. кафедрой ЭАТиАС: Друзьянова В.П.
«___»____________2012 г.
КАЛЕНДАРНЫЙ ПЛАН
Студент-дипломник Бурнашев АйсенИгорьевич
|
Наименование и содержание разделов проекта
|
Содержание листов и их количество
|
Срок выполнения
|
Процент к общему объему
|
|
|
от
|
до
|
|
|
Введение, изучение данной темы, перспективы развития
|
|
|
04.02.2012
|
10%
|
|
1. Сбор данных.
|
|
|
15.03.2012
|
20%
|
|
2. Изучение эксплуатации автомобилей Автошколы СВФУ услуг
по ТО и ремонту.
|
|
|
29.03.2012
|
30%
|
|
3. Изучение метода вычисления технологического расчета.
|
|
|
22.04.2012
|
45%
|
|
4. Обработка и анализ полученных результатов. Составление
графиков, выполнение расчетов.
|
|
|
27.04.2012
|
55%
|
|
5. Подсчет технико-экономических показателей. Защита
окружающей среды. Охрана окружающей среды. Пожарная безопасность.
|
|
|
30.05.2012
|
70%
|
|
6. Заключение
|
|
|
05.05.2012
|
90%
|
|
7. Окончательная компоновка пояснительной записки.
|
|
|
19.06.2012
|
100%
|
Результаты проверки хода выполнения дипломного проекта
|
Дата проверки
|
Процент выполнения
|
Замечания
|
Проверяющий преподаватель
|
|
по плану
|
фактически
|
|
Подпись
|
Расшифровка
|
|
04.02.2012
|
12%
|
10%
|
|
|
Портнягин С.П..
|
|
15.03.2012
|
25%
|
20%
|
|
|
Портнягин С.П.
|
|
29.03.2012
|
36%
|
30%
|
|
|
Портнягин С.П.
|
|
22.04.2012
|
50%
|
45%
|
|
|
Портнягин С.П.
|
|
27.04.2012
|
60%
|
55%
|
|
|
Портнягин С.П.
|
|
30.05.2012
|
80%
|
70%
|
|
|
Портнягин С.П.
|
|
05.06.2012
|
90%
|
90%
|
|
|
Портнягин С.П.
|
|
19.06.2012
|
100%
|
100%
|
|
|
Портнягин С.П.
|
Содержание
Оглавление
Введение
ГЛАВА 1. ТЕХНИКО-ЭКОНОМИЧЕСКОЕ ОБОСНОВАНИЕ
.1 Краткая характеристика деятельности учебно-методический
центр «Автошкола СВФУ»
.2 Материально техническая база
.3 Перспективный план развития УЦ
ГЛАВА 2. ТЕХНОЛОГИЧЕСКИЙ РАСЧЕТ ПРОЕКТИРУЕМОГО ПРЕДПРИЯТИЯ
.1 В зависимости от трудоемкости и периодичности
.2 Крепёжные работы
.3 Автомобильные газоанализаторы и дымометры
.4 Технологический расчет
.5 Расчёт производственной программы по количеству
воздействий
.6 Расчёт производственной программы по количеству
воздействий за год
.7 Производственная программа по количеству воздействий за
год
.8 Количество ТО для групп автомобилей за год
.9 Количество диагностических воздействий для групп
автомобилей за год
.10 Суточная программа по ТО и диагностике
.11 Расчёт годового объёма работ по техническим обслуживаниям
и текущим ремонтам
.12 Годовой объём работ по ТО и ТР
.13 Определение годового объёма вспомогательных работ
.14 Трудоёмкость вспомогательных видов работ
.15 Распределение объёма работ технических обслуживаний и
текущих ремонтов по производственным зонам и участкам
.16 Расчёт численности производственных рабочих
ГЛАВА 3. КОНСТРУКТОРСКАЯ ЧАСТЬ
.1 Подъемник четырехстоечный под сход-развал г/п 4 тонн
.2 Техника безопасности
.3 Химический анкер для крепления подъемников к полу
.4 Проверочный расчет анкерных болтов
.5 Проверочный расчет анкерного болта на прочность
.6 Проверочный расчет анкерного болта на смятие
ГЛАВА 4. БЕЗОПАСНОСТЬ ЖИЗНЕДЕЯТЕЛЬНОСТИ
.1 Общее положение
ГЛАВА 5. ЭКОНОМИЧЕСКАЯ ЧАСТЬ
.1 Перечень необходимого оборудования
.2 Расчет заработной платы для ремонтных рабочих
Заключение
Литература
Аннотация
В данном дипломном проекте представлен проект участка технического
обслуживания автопарка УМЦ «Автошкола СВФУ»
В разделе организации технологического процесса в участке написана
технология процесса ТО и ТР автомобилей и организация работ по ТО и ТР
автомобилей.
В технологической части произведен расчет годового объема работ, расчет
численности производственных рабочих.
В конструкторской части представлено приспособление, которое позволит
обслуживать автомобили автошколы на подъемнике GAOCHANG GC-4,0 F4,
предназначенном для обслуживания легковых автомобилей.
В разделе безопасности жизнедеятельности и экологической безопасности
рассматривается проблема загрязнения окружающей среды и приведены способы,
обеспечивающие экологически чистую работу предприятия.
В экономической части проведен расчет экономического эффекта данного
проекта. Заработанная плата работников.
Объем расчетно-пояснительной записки 64 страниц.
Объем графической части 8 листов.
Введение
Автомобильный транспорт является почти самым массовым и удобным видом
транспорта, особенно эффективным и удобным при перевозке грузов и пассажиров.
Обладающий большой проходимостью, хорошей маневренностью и приспособленностью
для работы в разных климатических и географических условиях. Интенсивный рост
автопарка требует при обслуживании и ремонте подвижного состава, увеличение
количества рабочих, обновления оборудования, повышение квалификации
ремонтнообслуживающего персонала. Своевременное и качественное выполнение ТО в
установленном объеме обеспечивает высокую техническую готовность подвижного
состава, снижает потребность в ремонте и обеспечивает его работоспособность в
течении установленных сроков эксплуатации. Для выполнения поставленных задач необходимо
широко использовать средства диагностики, совершенствовать и обновлять
оборудование, инструменты, максимально механизировать зоны ТО и ТР.
Затраты на ТО и ремонт автомобилей на АТП и СТО остаются ещё достаточно
высокими. При этом большое количество автомобилей эксплуатируется с
неисправностями и отклонениями регулировочных параметров технического состояния
агрегатов и механизмов от оптимальных, остается высокой и доля
дорожно-транспортных происшествий, вызванных неисправностями и отказами автомобилей,
по большому числу автомобилей наблюдается повышенный расход топлива и запасных
частей. Кроме того в капитальный ремонт направляются автомобили с
невыработанным до 30% и более ресурсом, а качество их ремонта остаётся на
низком уровне. К основным факторам, определяющим такое неудовлетворительное
состояние дел, относят несоблюдение требований существующей системы технической
эксплуатации автомобилей на всех стадиях их существования: от разработки до
списания, а так же не достаточный уровень приспособленности автомобилей к
техническому диагностированию. Важнейшим условием высокопроизводительной и
бесперебойной работы подвижного состава автомобильного транспорта является
обеспечение его современной производственно-технической базой по ремонту
автомобилей, агрегатов и восстановлению изношенных деталей. Главные задачи
ремонтного производства состоят в дальнейшем развитии централизованного ремонта
машин и оборудования как важнейшей предпосылки внедрения прогрессивных
технологических процессов, обеспечивающих повышение качества и эффективности
ремонта сложной современной техники. Особое место в поддержании машин и
оборудования в эксплуатационном состоянии занимает текущий ремонт, задачей
которого является восстановление утраченной потребительской стоимости средств труда
в связи с износом. Автомобили ремонтируют агрегатным методом путем замены
деталей, узлов, механизмов и агрегатов на новые или заранее отремонтированные.
Технологический процесс ремонта автомобилей предусматривает надлежащее
обеспечение предприятия запасными частями, крепежными изделиями, нормалями и
автомобильными принадлежностями промышленного производства. Основная задача
проектирования состоит в создании наиболее передовых по техническому уровню и
наиболее экономичных по капитальным затратам и эксплуатационным показателям
предприятий, что особенно актуально в условиях рыночной экономики.
Таким образом, целью дипломного проекта является: разработка предложений
по созданию участка технического обслуживания автомобилей УМЦ «Автошкола
СВФУ»на базе гаража автодорожного факультета
Задачи для раскрытия поставленной цели:
. Анализ деятельности автопарка «автошколы СВФУ»
. Обоснование темы дипломного проекта
. Технологический расчет работ по ТО и Р
. Разработка конструкторского узла - расчет крепления подъемникаGAOCHANG
GC-4,0 F4 4000кг
. Мероприятия по БЖД
. Экономическая оценка проекта
ГЛАВА 1. ТЕХНИКО-ЭКОНОМИЧЕСКОЕ ОБОСНОВАНИЕ СОДЕРЖАНИЯ ТЕМЫ ДИПЛОМНОГО
ПРОЕКТА
1.1 Краткая характеристика деятельности
учебно-методический центр «Автошкола СВФУ»
История автошколы:
Учебный центр «Автошкола ЯГУ» создан по Распоряжению Ректора № 11- ОРГ от
27 февраля 2008 г. и решением Ученого Совета ЯГУ № 42 от 16 ноября 2007 г.
является учебным подразделением, осуществляющим начальную и профессиональную
подготовку водителей автотранспортных средств.
Учебно-методический центр «Автошкола СВФУ», является структурным подразделением
автодорожного факультета СВФУ им. М.К. Аммосова.Полное официальное наименование Автошколы - Учебно-методический
центр «Автошкола СВФУ» Сокращенное наименование Автошколы - УМЦ "Автошкола
СВФУ".
Автошкола вправе иметь штампы и
бланки со своим наименованием, собственную эмблему и другие средства визуальной идентификации.
Место нахождения Автошколы - г.
Якутск, ул. Красильникова 13.
В соответствии с Положением Учебно-методический центр
«Автошкола СВФУ»
Деятельность предприятия:
Основной целью Автошколы является
подготовка, обучение и переподготовка водителей автотранспортных средств,
создание необходимых условий для удовлетворения потребностей личности в получении
необходимой профессии,
ускоренного приобретения трудовых навыков для выполнения определенной работы
или группы работ.
Автошкола в своей деятельности осуществляет следующие
задачи:
·
Обучение
водителей автотранспортных средств;
·
Подготовка
мастеров производственного обучения по вождению автомобиля;
·
Проводит экспертизу программ, проектов, рекомендаций, других документов и материалов по профилю
работы Автошколы;
·
Изучает, обобщает и распространяет лучший педагогический опыт, внедряет новые педагогические
технологии;
·
Разрабатывая учебные планы и образовательные программы, оформляет наглядные пособия;
·
Выполняет научно-методическую работу в целях улучшения качества обучения,
построения его на основе достижении отечественной и зарубежной преподавательской практики;
·
Осуществляет в
установленном порядке разработку и издание учебных планов и программ, учебно-методических пособий, конспектов лекций и
т.д.;
·
Подготавливает предложения и рекомендации по совершенствованию системы
подготовки и повышения квалификации водителей автотранспортных средств, в
целях обеспечения соответствия их профессиональной компетенции возрастающему уровню
образования.
Для осуществления указанных целей и задач Автошкола
может:
·
Организовывать
учебные курсы подготовки и переподготовки водителей автотранспортных средств,
курсы обучения водителей разных категорий, семинары,
лекции, научно-методические конференции, совещания, практические занятия;
·
Осуществлять опытно-экспериментальную деятельность и методическую работу;
·
Устанавливать деловые контакты, сотрудничать в области экономики,
финансов со всеми юридическими и физическими лицами, в том числе зарубежными по доверенности ректора
университета;
·
Осуществлять предпринимательскую деятельность в соответствии с действующим законодательством;
·
Свободно распространять и рекламировать информацию о деятельности Автошколы.
УМЦ «Автошкола СВФУ» подготовили:
За 2010 год по программе подготовки водителей ТС кат. «В» коммерческий
набор 159 курсантов;
За 2011 год по программе подготовки водителей ТС кат. «В» коммерческий
набор 168 курсантов, студентов очного обучения 60человек.
По подготовке мастеров производственного обучения вождению выпущено 21
инструктор.
1.2 Материально техническая
база
автомобиль технический обслуживание ремонт
Список автотранспорта:
. ВАЗ 21060 2000г. двигатель№6256157 кузов№4285308 цвет темно
красный
р/з А874АХ14 выдано свидетельство о Р\ТС 14РТ №121704 РЭО ГАИ при УВД
г.Якутска 29.05.2005г.
. ВАЗ 2106 2000г. двигатель№8519520 кузов№42966558 цвет темно
бордовый
р/з А914ВО14 выдано свидетельство о Р\ТС 14ТТ №268519 РЭО ГАИ при УВД
г.Якутска 09.02.2010г.
. ГАЗ3110 2000г. двигатель№У3307746 кузов№311000У0326396 цвет
белый
р/з У407АТ14 выдано свидетельство о Р\ТС 14НО №215844 РЭО ГАИ при МВД
РС(Я) 02.06.2005г.
. ВАЗ 2107 2000г к703во
5. ToyotaCorsa1998г. двигатель№274659 кузов№EL 52-0261776 цвет светло серый
р\з А372ЕО14 выдано свидетельство о Р\ТС 14СТ №010041 РЭО ГАИ при УВД
г.Якутска 25.09.2008г.
6. RENAULTSR 2010г. кузов №X7LLSRB2HAH328454 цвет белый р/з Х983КА 14 выдано свидетельство о
Р/ТС 14 УМ 507069 РЭО ГИБДД ММУ МВД России «Якутское» 05.08.2011
7. RENAULTSR 2011г. кузов №X7LLSRBYABH376309цвет синийр/з К548КВ 14 выдано
свидетельство о Р/ТС 14 УМ 507071 РЭО ГИБДД ММУ МВД России «Якутское»
05.08.2011
8. RENAULTSR 2010г. кузов №X7LLSRB2HAH289508цвет белый р/з Х982КА 14 выдано свидетельство о
Р/ТС 14 УМ 507070 РЭО ГИБДД ММУ МВД России «Якутское» 05.08.2011
. Зил-131 Парм-1 гос.№Е620ЕР, 1984.
10. WolkswagenGolf, цвет серый, куплен в 24.03. 2013.
. Автотренажер марки ОТКВ-2М кат. «В».
Таблица 1.1
Списочное количество автомобилей
|
№
|
Марка автомобиля
|
Гос.номер
|
Год выпуска
|
Пробег
|
|
1
|
ВАЗ 2106
|
А874АХ
|
2000г
|
150000км
|
|
2
|
ВАЗ 2106
|
А914ВО
|
2000г
|
150000км
|
|
3
|
ГАЗ3110
|
У407АТ
|
2000г
|
130000км
|
|
4
|
ВАЗ 2107
|
к703во
|
2000г
|
150000км
|
|
5
|
ToyotaCorsa
|
А372ЕО
|
1998г
|
140000км
|
|
6
|
Renault Logan
|
Х983КА
|
2010г
|
82000км
|
|
7
|
Renault Logan
|
К548КВ
|
2011г
|
82000км
|
|
8
|
Renault Logan
|
Х982КА
|
2010г
|
82000км
|
|
9
|
Вольсваген Гольф
|
|
2011г
|
б/п
|
|
10
|
КаМАЗ
|
|
|
б/п
|
.3 Перспективный
план развития УЦ
Расширение материальной базы и материальных ресурсов:
· создание современного кабинета
автотренажеров (первый в республике);
· расширение и обновление парка учебных
автомобилей;
· создание на базе факультета
современного автодрома отвечающего требованиям подготовки водителей не только
категории «В» но и «А», «С», «Д» и «Е»
· внедрение информационных технологий в
образовательный процесс.
· Расширение спектра образовательных
услуг за счет открытия курсов дополнительной подготовки
водителей(контраварийная подготовка, курсы восстановление навыков вождения)
получение лицензий на подготовку водителей категории «А», «С», «Д» и «Е».
· Развитие практики подготовки
водителей в институтах и на факультетах СВФУ, подготовки «своих» студентов.
· Развитие коммерческих и методических
связей с другими автошколами республики, создание учебно-методического центра.
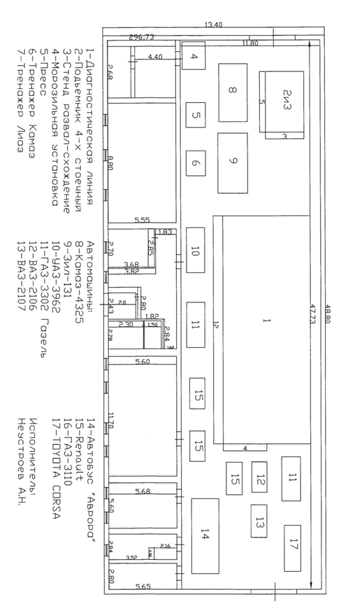
Рис 1.1. Компоновочный план помещения БТР
ГЛАВА 2. ТЕХНОЛОГИЧЕСКИЙ РАСЧЕТ ПРОЕКТИРУЕМОГО ПРЕДПРИЯТИЯ
2.1 Стандартные виды РАБОТ, проводимые для автопарка
В зависимости от трудоемкости и периодичности, Техническое обслуживание
имеет подразделение :
• ЕО -Техническое ежедневное обслуживание, так же его называют ТО
• ТО-1 - Первое техническое обслуживание
• ТО-2 - Второе техническое обслуживание
• СО - Сезонное техническое обслуживание
Заправочно-смазочные работы
• Предназначены для уменьшения интенсивности изнашивания и
сопротивления в узлах трения, а также для обеспечения нормального
функционирования систем, содержащих технические жидкости, смазки. Эти работы
составляют значительный объем ТО-1 (16-26%) и ТО-2 (9-18%).
• Основным технологическим документом, определяющим содержание
смазочных работ, является химмотологическая карта, в которой указывают места и
число точек смазки, периодичность смазки, марку масел, их заправочные объемы.
• Смазочно-заправочные работы состоят в замене или пополнении
агрегатов (узлов) маслами, топливом, техническими жидкостями, замене фильтров.
Качество этих работ относится к числу значимых факторов, влияющих на ресурс
узлов. Так, например, у большинства конструкций шаровых опор легковых
автомобилей запаса "заводской" смазки хватает на весь период
эксплуатации.
• Однако в тех опорах, где есть отверстие для масленки и смазка
производится в режиме ТО-2, ресурс повышается на 20-30%. Объясняется это тем,
что, несмотря на защитный резиновый чехол, внутрь опоры может проникать вода с
грязью (абразивом). Вновь поступающая смазка очищает трущиеся поверхности.
Эксплуатация двигателя с уровнем масла ниже допустимого приводит к полному падению
давления в системе смазки и выходу из строя вкладышей коленчатого вала.
Снижение уровня тормозной жидкости приводит к попаданию воздуха в систему и ее
отказу.
• Оборудование для смазочно-заправочных работподразделяется на
стационарное и передвижное. Подачу масла (жидкостей) обеспечивают
нагнетательные устройства, приводимые в действие электроэнергией или сжатым
воздухом. Некоторые модели оборудования имеют ручной привод.
• На специализированных постах по смазке и заправке (дозаправке)
автомобилей целесообразно применение стационарных универсальных
механизированных установок. В большинстве случаев они имеют панель, содержащую
несколько барабанов с самонаматывающимися шлангами и раздаточными наконечниками
(кранами) для моторного и трансмиссионного масел, пластической смазки, воды,
сжатого воздуха. Масла и смазки поступают в раздаточные шланги с помощью
пневматических насосов, установленных в резервуарах - стандартных бочках, в
которых масла и смазки доставляют на АТП. При подаче жидких масел обеспечивается
давление до 0,8 МПа, при подаче пластической смазки - 25-40 МПа.
• Необходимость столь высокого давления вызвана тем, что при
несистематической смазке узлов трения, например шкворневого соединения,
продукты износа забивают подводящие каналы. В некоторых случаях приходится
применять ручные "пробойники" - приспособления, давление в которых
создается парой: цилиндр с резьбовым каналом, заполняемым смазкой, и
вворачиваемый в него резьбовой шток.
• Кроме настенного варианта, установка может быть напольного или потолочного
расположения. Некоторые модели имеют счетчики расхода масел. Есть отдельные
установки для одного конкретного вида смазки. Для моторного масла бывают
модели, позволяющие его разогревать. Для пластических смазок выпускают
нагнетатели, имеющие индивидуальный привод. Основные отличия разных моделей
установок одного назначения состоят в конструкции подающих насосов и
резервуаров для масла (смазки).
• Для заправки, прокачки или замены рабочей жидкости привода
гидравлических тормозов выпускаются приспособления, представляющие собой бак на
несколько литров, из которого тормозная жидкость под действием сжатого воздуха
(0,3 МПа) через раздаточный шланг и резьбовой штуцер подается в главный
тормозной цилиндр. С таким приспособлением замену тормозной жидкости или
прокачку системы может проводить один исполнитель. Некоторые приспособления
этого типа позволяют проверять качество тормозной жидкости.
• Для нанесения жидких противокоррозионных покрытий на нижние
поверхности и оперение автомобиля, в полости коробчатого типа выпускаются
установки, распыляющие (с давлением 0,5-1,0 МПа) противокоррозионные эмульсии
(с воздухом). Вязкость покрытия 70-150 мм2/с.
• Составной частью заправочных работ являются промывочные. При
промывке вымываются продукты износа, что обеспечивает лучшие условия работы
деталей и вновь заливаемых жидкостей. Замена, например, всего объема тормозной
жидкости в системе (1раз в год), что приравнивается к промывочным работам,
увеличивает долговечность резиновых уплотнительных манжет в 1,5-2,5 раза.
• Косвенно к заправочным работам относится подкачка шин.
Накачивание шины грузового автомобиля в стационарных условиях должно
проводиться в специальном металлическом ограждении, способном защитить
обслуживающий персонал от ударов съемными деталями обода в случае их
самопроизвольного демонтажа. В дорожных условиях при накачивании шина должна
лежать замковым устройством к земле.
• Норму давления для конкретной модели правильнее всего определить
по надписи на боковине шины; на ней может быть указано давление в различных
единицах дано несколько разных его значений в зависимости от нагрузки на шину.
При незнании фактической нагрузки лучше ориентироваться на максимальные
значения. Если на шине нет обозначения давления, надо руководствоваться
каталогами, проспектами завода-изготовителя шины (но не автомобиля), в которых
приводятся рекомендуемые нормы по каждой конкретной модели.
Установки для удаления (извлечения) моторных и трансмиссионных масел из
агрегатов классифицируются по принципу их действия:
. Сливные - масло удаляется методом самотека под действием силы тяжести
через сливное отверстие в агрегате автомобиля;
. Декомпрессионные - масло удаляется методом откачки из агрегата
автомобиля в емкость, установки, давление в которой ниже атмосферного;
. Установки, в которых удаление масла происходит путем его откачки
встроенной вакуумной электрической помпой через отверстие масляного щупа либо
самотеком (наличие предкамеры с индикацией объема и смотрового окна позволяет
контролировать объем откаченной жидкости);
. Пневматические - комплектуются пневмонасосом, подключаемым к
пневмолинии;
. Комбинированные - масло может удаляться как методом откачки
(декомпрессии), так и самотеком (методом слива) в зависимости от ситуации.
Выше перечисленные установки бывают переносными, подкатными
(передвижными) или стационарными. Следует обратить внимание на способ удаления
масел из резервуара установки после его максимального заполнения в емкость для
хранения и дальнейшей утилизации. Разгрузка масел из резервуара при объемах
меньше 25 литров ведется вручную, при больших объемах - пневматически.
Маслозаправочные установки по принципу действия классифицируются
следующим образом:
. Ручные - насос подачи масла приводится в действие в ручную;
. Компрессионные - подача масла осуществляется за счет сжатого воздуха в
резервуаре установки (важно, что такие установки функционируют независимо от
источника сжатого воздуха, например, пневмолинии);
. Пневматические - подача масла осуществляется дозировано пневматическим
насосом двойного действия, подключаемым к пневмолинии (предполагаются различные
модели насосов и способы их установки на емкостях любого размера, включая
стандартные бочки, возможно настенное закрепление, размещение на подкатных
тележках с установленными на них емкостями).
Также применяются пневматические системы (в том числе с электронным
управлением) централизованной подачи масел, смазок и жидкостей по трубопроводам
со склада расходных материалов к рабочим местам.
Примечание. PSI - значения
давления размерностью фунт на дюйм в квадрате ( 1PSI= 6,895 кПа)
2.2 Крепёжные работы
• Предназначены для обеспечения нормального состояния (затяжки)
резьбовых соединений. В объеме ТО в зависимости от вида ТО и типа подвижного
состава эти работы составляют 25-30%. Так, у автомобиля КамАЗ 3,5 тыс. резьбовых
соединений. При ТО-1 необходимо проверить и, если требуется, подтянуть
несколько десятков соединений. При ТО-2 это количество значительно возрастает.
При текущем ремонте большинство сборочно-разборочных операций связано с
крепежными работами. Поэтому применение правильных приемов по обслуживанию
резьбовых соединений повышает эксплуатационную надежность автомобиля в целом,
облегчает труд рабочих, значительно снижает трудоемкость этих работ при
вторичном их выполнении.
• Резьбовые соединения обеспечивают сборку узлов как посредством
резьбы, находящейся непосредственно на детали (свеча зажигания, шаровые пальцы
шарниров рулевого привода, регулировочные винты в механизме газораспределения),
так и при помощи крепежных деталей - болтов, шпилек, гаек специального и общего
назначения.
• Специальные применяют в ответственных узлах (шатунные болты,
шпильки крепления головки цилиндров) или там, где без них технология
сборки-разборки усложнится (например, квадратные гайки, устанавливаемые в пазы,
где они удерживаются от прокручивания). Ответственные крепежные соединения
имеют мелкий шаг резьбы и защитное покрытие.
2.3 Автомобильные газоанализаторы и дымометры
Что
такое автомобильный газоанализатор - это прибор, который позволяет быстро
определить структуру, качественный и количественный анализ выхлопных газов
автомобиля с бензиновым двигателем. Для измерения дымности выхлопа используют
дымомер <#"732145.files/image002.jpg">
Рисунок
1.2. Газоанализатор 2-х компонентный Инфракар 10 (стоимость 28тыс.рб)
Дымометры Инфракар работают с дизельными двигателями автомобилей. Их
функциональным назначением является определение дымности выхлопных газов.
Модификации дымометров Инфракар разные возможности, дымометры с индексом .02
имеют встроенный принтер, модификации с индексом -3 имеют тахометр и канал для
измерения температуры масла и пр.
Рисунок 1.3.ДымомерИнфракарстоимость 37тыс.рб
Своевременная замена трансмиссионной жидкости очень важна для надежной
работы автомобиля, особенно если он не новый. Около 50% масла оседает на
корпусе клапанов, насосе, гидротрансформаторе и в других полостях системы. В
следствии этого в ручном режиме масло можно заменить только частично.
Установка для замены масла в АКПП ODA 2010 позволяет:
. Контролировать давление в автоматической коробке передач при
помощи показаний манометра.
. Наблюдать за качеством вытекаемой жидкости из АКПП.
. Включить режим «Рециркуляции» при окончании жидкости в емкости
установки.
Габариты: 590х420х1000
Рабочее давление воздуха, атм - 6-7(6-8л/с)


Рисунок 1.4. ODA 2010 -
установка для замены масла АКПП
С помощью манометра установки можно замерить давление срабатывания
перепускного клапана на крышке радиатора или расширительного бачка. Процесс
замены жидкости происходит без завоздушивания системы и при автоматическом
контролировании давления в системе охлаждения. Данная установка имеет
встроенную защиту, которая предотвращает повышение давления в системе до
опасных значений.
В комплект установки ODA
4010 входит универсальный переходник, который подходит как для использования в
режиме «замена», так и в режиме «промывка». Мобильность установке придает
компрессор, который осуществляет ее питание.
Важно! Использовать только специальные промывочные жидкости!
Основные функции установки для замены антифриза в системе охлаждения.
· Слив старого и наполнение новым антифризом
· Контроль давления по показаниям манометра
· Промывка системы охлаждения
· Визуальный контроль качества антифриза по специальным трубам
Габариты: мм, 600х420х1100
Рабочее давление воздуха, атм - 6-7(6-8л/с)



Рисунок 1.5. ODA 4010 - Установка для замены антифриза в системе
охлаждения
Особенности установки для замены тормозной жидкости.
· В ходе работы установки невозможно образование эмульсии, что
значительно увеличивает высокое качество выполняемого процесса.
· Временной интервал полного цикла работ по замене тормозной
жидкости равен от 15 до 20 мин.
· Установка может выполнить несколько операций по прокачке
систем при постоянном давлении без дополнительной зарядки воздухом
компрессионной камеры установки
Комплектация установки для замены тормозной жидкости.
· Основной блок установки
· Сливной бачок
· Комплект переходников на бачок для жидкости из гидропривода
тормозов
· Соединительный шланг SP 20
Габариты в упаковке ДxШxВ, мм490х450х540
Номинальное давление, атм6- 7


2.4 Технологический расчет
Теперь проведем технологические расчеты по определению трудоемкостей
планируемых работ
Таблица 2.1.
|
Подв.состав (марка модель)
|
Аи
|
Lcc, км
|
Тн, ч
|
Драб.г, дней
|
пробег
|
Ку.э
|
Ккл.р
|
Условия хранения ПС
|
|
Рено Логан
|
3
|
112
|
10,5
|
305
|
82000
|
I
|
Оч.холодный
|
Закрытое
|
|
ВАЗ 2106
|
2
|
70
|
10,5
|
305
|
150000
|
I
|
Оч.холодный
|
Закрытое
|
|
ВАЗ 2107
|
1
|
70
|
10,5
|
305
|
150000
|
I
|
Оч.холодный
|
Закрытое
|
|
ГАЗ 3110
|
1
|
70
|
10,5
|
305
|
130000
|
I
|
Оч.холодный
|
Закрытое
|
|
Тойота Корса
|
1
|
70
|
10,5
|
305
|
150000
|
I
|
Оч.холодный
|
Закрытое
|
|
Новые автомобили
|
|
|
|
|
|
|
|
|
|
Вольсваген Гольф(МКПП и АКПП)
|
2
|
---
|
10,5
|
305
|
---
|
I
|
Оч.холодный
|
Закрытое
|
|
КаМАЗ
|
1
|
---
|
12,0
|
305
|
---
|
I
|
Оч.холодный
|
Закрытое
|
Необходимо определить нормы пробега до кап.ремонта и скорректировать
периодичности ТО для автомобиля Рено Логан с пробегам с начала эксплуатации
82000км. Автомобиль работает во II
категории условий эксплуатации, центральной природно-климатической зоне, со
среднесуточным пробегом lcc = 140км
Для расчета принимаем:
. Норму пробега автомобиля Рено Логан для I категории условий эксплуатацииLцн = 150 000км, нормативную периодичность ТО - 1 Lнто-1 = 5000км; ТО-2 Lнто-2 = 20000км.
. Коэффициент, учитывающий II категории условий эксплуатации, к1=1
. Коэффициент, учитывающий модификацию ПС, к2 =1
. Коэффициент, учитывающий природно-климатическую зону, к3=0.8
Скорректированные нормируемые пробеги
L’ц= 150 000х1х1х0,8=120 000км
L’ТО-2=20 000х1х0,8=16000
L’ТО-1 =5000х1х0,8=4000
Скорректированные со среднесуточным пробегом периодичности ТО-1
Рено Логан
n1=4000/112 =35.714=36000км
Остальные легковые
n1=4000/70 =280000
Округление произведено в большую сторону с учетом постановки ПС 1 раз
через две недели (отклонение 5% меньше допустимого 10%), тогда
Рено Логан
LТО-1=36х112=4,032≈4000 км
Др.ТС
LТО-1=36х70=2520км
Скорректированные с ТО-1 периодичность ТО-2
n2=16000/4000=4
LТО-2=4х4000=16000
Др.ТС
n2=16000/2520=6,3
LТО-2=6,3х2520=15876=16000
Скорректированные с ТО-2 периодичность КР
n3=120000/16000=7,5
Lкр=7,5х16000=120000км
Таблица 2.2.
Нормативы ресурсного пробега(или пробега да КР) и периодичность ТО
|
Подвижной соства
|
Lнц
|
LнТО-2
|
LнТО-1
|
К1
|
К2
|
К3
|
L’ц
|
L’ТО-2
|
L’ТО-1
|
Lц
|
LТО-2
|
LТО-1
|
|
Рено Логан
|
120000
|
16000
|
4000
|
1
|
1
|
0,8
|
120000
|
16000
|
4000
|
120000
|
16000
|
4000
|
|
Ост.Авто
|
120000
|
16000
|
4000
|
1
|
1
|
0,8
|
120000
|
16000
|
2520
|
120000
|
16000
|
4000
|
2.5 Расчёт производственной программы по
количеству воздействий
Число технических воздействий определяется цикловым методом в том случае,
когда неизвестен годовой пробег автомобилей.
Число КР и ТО на один автомобиль за цикл определяется отношением
циклового пробега к пробегу до данного вида воздействия. Так как цикловой
пробег Lц в данной методике расчета принят равным пробегу LКР автомобиля до КР,
то число КР одного автомобиля за цикл будет равно единице.
Принято, что ежесменное обслуживание (ЕО) разделяется на ЕОс (выполняемое
ежедневно) и ЕОт (выполняемое перед ТО и текущим ремонтом (ТР)).
Так как цикловой пробег Lц в данной методике расчёта принят равным
пробегу LКР автомобиля до КР, то число КР одного автомобиля за цикл будет равно
единице.
Количество ТО-2 за цикл будет равно
ТО-2ц=LКР/L2-NКР=120000/16000=7,5
Количество ТО-1 за цикл будет равно
ТО-1ц=LКР/L1-(NКР+NТО-2)=120000/4000-(1+7,5)=21,5
Принято, что ЕО разделяется на ЕОс (выполняемое
ежедневно) и ЕОт (выполняемое перед ТО и ТР).
Рено Логан
ЕОсц=Lц/Lсс=120000/112=1071
Др.ТСЕОсц=Lц/Lсс=120000/70=1714ЕОтц=(NТО-2+NТО-1)х1,6
2.6 Расчёт производственной программы по
количеству воздействий за год
Так как пробег автомобиля загод отличается от его пробега за цикл, а
производственную программу предприятия обычно рассчитывают загод, то для
определения числа ТО за год необходимо сделать соответствующий перерасчет
полученных значений NТО-1, NТО-2, NЕОс , NЕОт за цикл к значениям NТО-1г,
NТО-2г, NЕОсг , NЕОтг за год по формулам:
На проектируемом АТП для группы автомобилей Рено Логан былорассчитано,
чтопробег до капитального ремонта составил LКР= 120 000 км. В то же
время фактический средний пробег, рассчитанный по формулеи
Lф.ср
ΣL/Аидля той же группы
автомобилей, составил246км (где Σ L - суммарныйпробег с начала
эксплуатации автомобилей одной группы; Аи - списочное число автомобилей этой
группы).Следовательно,
Х=Lф.ср /LКР.ср=82000/120 000=0,69
,69иk4= 1,0 так как он находится в интервале пробегов от 0,50 и до 0,75
Коэффициент технической готовности
Рено Логан
0,97
Др.ТС
1
Годовой пробег автомобиля рассчитывается по формуле:
Рено Логан
г=lccДрабαт=112х305х0,97=33 135
Др.ТС
г=lccДрабαт=70х305х1=21350
Производственная программа за год:
Рено Логан
Др.ТС
2.7 Расчет производственной
программы по количеству воздействий за год
Таблица 2.3.
Производственная программа по количеству воздействий
за год
|
Подвижной состав
|
|
|
|
|
|
|
|
|
|
|
Рено Логан
|
0,22
|
1,0
|
0,97
|
33 135
|
0,276
|
1
|
7
|
295
|
11,2
|
|
Др.ТС
|
0,22
|
1,0
|
1
|
21350
|
|
1,1
|
4
|
305
|
8,16
|
Количество ТО для групп автомобилей.Количество ТО для групп автомобилей
рассчитывается по формуле (
Где
- списочное количество автомобилей.
Рено Логан
Др.ТС
2.8 Количество ТО для групп
автомобилей за год
Таблица 2.4.
Количество ТО для групп автомобилей
|
Показатель
|
Рено Логан
|
Др.ТС
|
|
|
3
|
5,5
|
|
|
21
|
20
|
|
|
885
|
1525
|
|
|
33,6
|
40,8
|
Количество диагностических воздействий за год по маркам автомобилей.
Согласно Положению, диагностирование как отдельный вид обслуживания не
планируется, и работы по диагностированию подвижного состава входят в объём
работ ТО и ТР. При этом в зависимости от метода организации диагностирование
автомобилей может производиться на отдельных постах или быть совмещено с
процессом ТО, поэтому в данном случае число диагностических воздействий
определяется для последующего расчета постов диагностирования его организации.
На АПТ в соответствии с Положением предусматривается диагностирование
подвижного состава Д1 и Д2.
Диагностирование Д1 предназначено главным образом для определения
технического состояния агрегатов, узлов и систем автомобиля, обеспечивающих
безопасность движения. Д1 предусматривается для автомобилей при ТО-1, после
ТО-2 (по узлам и системам, обеспечивающим безопасность движения, для проверки
качества работ и заключительных регулировок) и при ТР (по узлам, обеспечивающим
безопасность движения).
Число автомобилей, диагностируемых при ТР согласно опытным данным и
нормам проектирования ОНТПАТП-СТО-80, принято равным 10 % от программы ТО-1 за
год. Диагностирование Д2 предназначено для определения мощностных и
экономических показателей автомобиля, а также для выявления объёмов ТР. Д2
проводится с периодичностью ТО-2 и в отдельных случаях при ТР. Число
автомобилей, диагностируемых при ТР, принято равным 20 % от годовой программы
ТО-2.
Таким образом, количество Д1 (NД1) и Д2 (NД2) рассчитывается по формулам:
где 1,1 и 1,2 - коэффициенты, учитывающие число
автомобилей, диагностируемых при ТР.
Др.ТС
2.9 Количество диагностических воздействий для
групп автомобилей за год
Таблица 2.5.
|
Показатель
|
Рено Логан
|
Др.ТС
|
|
|
26,1
|
27,5
|
|
|
3,6
|
6,6
|
Определение суточной программы по ТО и диагностике. Суточная
производственная программа является критерием выбора метода организации ТО (на
универсальных постах или поточных линиях) и служит исходным показателем для
расчёта числа постов и линий ТО. По видам ТО и диагностике суточная
производственная программа рассчитывается по формуле:
Др.ТС
2.10 Суточная программа по ТО
и диагностике
Таблица 2.6.
Суточная программа по ТО и диагностике
|
ПоказательРено ЛоганДр.ТС
|
|
|
|
|
0,009
|
|
|
|
0,06
|
|
|
|
2,9
|
|
|
|
0,11
|
|
|
|
0,085
|
|
|
|
0,011
|
|
2.11 Расчёт годового объёма работ по техническим
обслуживаниям и текущим ремонтам
Расчет нормативных трудоемкостей ТО. Важное значение при технологических
расчётах имеет расчёт трудоёмкостей ТО и ТР и определение годового объёма работ
по обслуживанию и ремонту автомобилей. Рассчитав объём работ, можно определить
потребную численность производственных рабочих, число постов, рабочих мест.
Нормативная трудоёмкость работ по обслуживаниям (ЕО, ТО-1, ТО-2) и
удельная трудоёмкость работ по текущему ремонту на 1000 км пробега приведены в
Положении для основных типов автомобилей и базовых марок, выпускаемых в СНГ.
Нормативная трудоёмкость i-го обслуживания н Ti корректируется с
помощью коэффициентов k2 и k5:
- коэффициент, учитывающий число
технологически совместимых групп ПС
Удельная нормативная трудоёмкость ТР (tТР)
корректируется с помощью коэффициентов
- удельная нормативная трудоёмкость ТР;
- коэффициент корректирования
нормативовудельной трудоёмкости ТР.
х0,20=0,1
=1,8х1,1х1,0х1,0х1,15=2,27
Таблица 2.7.
Трудоёмкость ЕО, ТО и ТР
|
ПС
|
Вид технического воздействия
|
Нормативные Трудоёмкости ЕО, ТО (чел -ч) и ТР(чел.ч/1000км)
|
Коэффициенты корректирования
|
Скорректированные Нормативные Трудоёмкости ЕО ТО(чел.ч) и
ТР(чел.ч/1000км)
|
|
|
|
|
|
|
|
|
|
|
ЕОс
|
0,20
|
|
1,0
|
|
|
1,15
|
0,23
|
|
ЕОт
|
0,1
|
|
1,0
|
|
|
1,15
|
0,115
|
|
ТО-1
|
|
1,0
|
|
|
1,15
|
2,99
|
|
Все лег.автоолоолл оооо
|
ТО-2
|
10,5
|
|
1,0
|
|
|
1,15
|
12,075
|
|
ТР
|
1,8
|
1,1
|
1,0
|
1,0
|
1,0
|
1,15
|
2,07
|
|
СО
|
2,1
|
|
1,0
|
|
|
1,15
|
2,415
|
Определение годового объёма работ по ТО и ТР. Объём работ по ЕОс,
ЕОт, ТО-1 и ТО-2 (ТЕОс, ТЕОт, ТТО-1,ТТО-2)
за год определяется произведением числа ТО на нормативное скорректированное
значение трудоёмкости данного вида ТО по формуле
ТЕО,ТОг=
Объём работ по СО рассчитывается:
Годовой объём работ по ТР равен:
Рено Логан
885х0,23=203,55
33,6х0,115=3,864
21х2,99=62,79
3х12,075=36,225
33 135х3х2,07/1000=205,768
Др.ТС
х0,23=350,75
40,8х0,115=4,692
20х2,99=59,8
5,5х12,075=66,412
21350х5х2,07/1000=220,972
2.12 Годовой объём работ по
ТО и ТР
Таблица 2.8.
Годовой объём работ по ТО и ТР
|
Показатель
|
Рено Логан
|
Марка ПС
|
Всего по АТП
|
|
ТЕОсг, чел.-ч
|
204
|
350
|
|
|
ТЕОтг, чел.-ч
|
4
|
5
|
|
|
ТТО-1г, чел.-ч
|
63
|
60
|
|
|
ТТО-2г, чел.-ч
|
36
|
65
|
|
|
ТТРг, чел.-ч
|
206
|
221
|
|
|
ТСОг, чел.-ч
|
14,4
|
24
|
|
|
ΣТг
|
528
|
725
|
|
Таким образом на проведение ТО и ТР 3х автомобилей
Рено потребуется только 0,5 человек, а Др.ТС 0,7 человек
2.13 Определение годового
объёма вспомогательных работ
Кроме работ по ТО и ремонту, на АТП выполняются вспомогательные и
подсобные работы, объём которых (Твсп) устанавливается не более 30 %
от общего объёма работ по ТО и ТР подвижного состава
Годовой объём вспомогательных работ по АТП
=
Др.ТС
=
2.14 Трудоёмкость
вспомогательных видов работ
После подсчетов основных видов работ, перейдем к
расчетам вспомогательных работ
Таблица 2.9.
Трудоёмкость вспомогательных видов работ
|
Виды вспомогательных работ
|
Объем вспомогательных видов работ чел.ч Рено Логан
|
Объем вспомогательных видов работ чел.ч Др.ТС
|
|
Ремонт и обслуживание технологического оборудования,
оснастки и инструмента
|
1
|
|
|
Ремонт и обслуживание инженерного оборудования, сетей и
коммуникаций
|
0,8
|
|
|
Транспортные работы
|
0,5
|
|
|
Приём, хранение и выдача материальных ценностей
|
0,8
|
|
|
Перегон подвижного состава
|
0,8
|
|
|
Уборка производственных помещений и территории
|
0,5
|
|
|
Уборка территории
|
0,5
|
|
|
Обслуживание компрессорного оборудования
|
0,2
|
|
|
ИТОГО
|
5,1
|
7,2
|
2.15 Распределение объёма работ технических
обслуживаний и текущих ремонтов по производственным зонам и участкам
Таблица 2.10
Распределение объёма работ ЕО, ТО и ТР по видам работ
|
Виды работ и ТО
|
|
|
|
% по видам работ
|
трудоёмкость
|
|
ЕОс
|
|
|
|
Уборочные
|
25
|
51
|
|
Моечные
|
15
|
30,6
|
|
Заправочные
|
12
|
24,5
|
|
Контрольно-диагностические
|
13
|
26,2
|
|
Ремонтные
|
35
|
71,5
|
|
ИТОГО
|
100
|
204
|
|
ЕОт
|
|
|
|
Уборочные
|
60
|
2,4
|
|
Моечные
|
40
|
1,6
|
|
ИТОГО
|
100
|
4
|
|
ТО-1
|
|
|
|
Общее диагностирование Д1
|
15
|
9,45
|
|
Крепёжные, регулировочные, смазочные
|
85
|
53,55
|
|
ИТОГО
|
100
|
63
|
|
ТО-2
|
|
|
|
Общее диагностирование Д2
|
12
|
4,32
|
|
Крепёжные, регулировочные, смазочные
|
88
|
31,68
|
|
ИТОГО
|
100
|
36
|
|
Текущий ремонт
|
|
|
|
Постовые работы
|
|
|
|
Общее диагностирование Д1
|
1
|
2
|
|
Углубленное диагностирование Д2
|
1
|
2
|
|
Регулировочные и разборочно-сборочные
|
33
|
68
|
|
Сварочные
|
4
|
8
|
|
Жестянщики
|
2
|
4
|
|
Окрасочные
|
8
|
16,5
|
|
|
Итого по постам
|
49
|
101
|
|
|
Участковые работы
|
|
|
|
|
Агрегатные работы
|
16
|
33
|
|
|
Слесарно-механические работы
|
10
|
20
|
|
|
Электротехнические работы
|
6
|
12
|
|
|
Аккумуляторные работы
|
2
|
4
|
|
|
Ремонт приборов систем питания
|
|
|
|
|
Шиномонтажные работы
|
1
|
5
|
|
|
Вулканизационные работы
|
|
|
|
|
Кузнечно-рессорные работы
|
2
|
4
|
|
|
Медницкие работы
|
2
|
4
|
|
|
Сварочные работы
|
2
|
4
|
|
|
Жестяницкие работы
|
2
|
4
|
|
|
Арматурные работы
|
2
|
4
|
|
|
Обойные работы
|
2
|
4
|
|
|
Таксометровые работы
|
3
|
6
|
|
|
ИТОГО
|
51
|
105
|
|
|
ВСЕГО
|
12
|
|
|
|
|
|
|
|
2.16 Расчёт численности
производственных рабочих
К производственным рабочим относятся рабочие зон и участков,
непосредственно выполняющие работы по ТО и ТР подвижного состава. Различают
технологически необходимое (явочное) и штатное (списочное) число рабочих.
Технологически необходимое число рабочих обеспечивает выполнение суточной, а
штатное - годовой производственных программ по ТО и ТР.
Технологически необходимое (Рт) и штатное
(Рш) число рабочих рассчитывается по формулам:
Рт = Тгi/Фт;
где Тгi- годовой объём работ по зоне ТО и ТР или участку,
чел.-ч; Фт - годовой фонд времени технологически необходимого
рабочего, 2070 ч;
Рено Логан
Рт=528/2070=0,3=1
Др.ТС
Рт=725/2070=0,35=1
ГЛАВА 3. КОНСТРУКТОРСКИЙ УЗЕЛ
Для
конструкторской разработки был выбран подъемника GAOCHANG GC-4,0 F4 для
которого были рассчитаны крепления анкерных болтов на 4 стойках.
3.1 Подъемник четырехстоечный под сход-развал г/п 4 тонн
Подъемник 4х стоечный для сход-развала предназначен в
автосервисе для регулировки углов установки передних и задних колес, имеет
передние углубления для установки поворотных кругов и задние сдвижные пластины.
Большое расстояние между колоннами дает возможность использовать данные
подъемники со стендами регулировки углов установки колес технологии 3D. Каждый
4 стоечный подъёмник на заводе собран и испытан под полной нагрузкой. Четырех
стоечный автоподъемник для автосервиса используется с траверсой ХТ-2Н (опция).
Итальянская гидростанция.
Грузоподъемность 4000кг
Грузоподъемность дополнительного подъемника(траверса): 2,0 т
Длина платформ 4650 мм
Ширина платформ 490 мм
Расстояние между колоннами 2860 мм
Высота подъёма 1750 мм
Время подъёма/спуска 55/50 с
Мощность привода: 2,2 кВт
Напряжение питания 380 В
Вес 1330 кг
Рисунок 3.2.
Рисунок 3.3.
Таблица 3.1.
Технические характеристики подъемника GAOCHANG GC-4,0
F4
|
МОДЕЛЬ
|
GC-4.0F
|
|
Привод
|
Электрический
|
|
Максимальная грузоподъёмность
|
4000 кг
|
|
Высота подъёма
|
1700 мм
|
|
Начальная высота платформ
|
170 мм
|
|
Длина платформ
|
4650
мм
|
|
Ширина платформ
|
530 мм
|
|
Время подъёма
|
£ 50 сек.
|
|
Время опускания
|
£ 50 сек.
|
|
Общая ширина
|
3310
мм
|
|
Общая длина
|
5750
мм
|
|
Общий вес
|
1330
кг
|
|
Вес домкрата на тележке
|
110 кг
|
|
Давление воздуха пневматич. домкрата
|
6 - 8 кг/см2
|
|
Температура
|
5 - 40°С
|
|
Влажность
|
30 - 95%
|
|
Уровень шума
|
< 76 децибел
|
|
Высота установки
|
£1000 м над уровнем моря
|
|
Температура хранения
|
От -25 до 55°С
|
.2 Техника безопасности
Подъёмники разработаны и изготовлены для подъёма автомобилей и
удерживания их в поднятом состоянии в закрытом помещении мастерской. Все прочие
виды использования подъёмников являются не одобренными. В частности подъёмники
не пригодны для следующих видов использования:
для работ по мойке и чистки автомобилей;
для создания поднятых платформ для персонала или для подъёма персонала;
для использования в качестве пресса с целями раздавливания чего-либо;
для использования в качестве лифта;
- для использования в качестве подъёмного домкрата для подъёма кузовов
автомобилей или для смены колёс.
Изготовитель не несёт никакой ответственности ни за какое получение травм
персоналом или повреждение автомобилей и другого имущества, вызванное
неправильным использованием подъёмника, или его использованием неуполномоченным
персоналом.
Во время подъёма и опускания автомобиля оператор должен оставаться у
стойки управления.
Присутствие персонала внутри указанной опасной зоны строго запрещено.
Во время работы персоналу разрешено находиться в зоне
под автомобилем только тогда, когда автомобиль уже находится в поднятом
положении, когда платформы неподвижны, и когда механические устройства
обеспечения безопасности находятся в надёжном зацеплении.
3.3 Химический анкер для крепления подъемников к
полу
Химический анкер (Клеевой анкер) работает по принципу склеивания.
Химическое анкерное крепление состоит из анкерного стержня и синтетической
смолы с наполнителем или без него (наполнителем может служить кварцевый песок).
Синтетическая смола проникает в поры материала строительной основы и
обеспечивает удерживающую силу после затвердевания. Применение специальных
сетчатых втулок позволяет устанавливать анкер в пустотелые кирпичи и блоки с
пустотами.
Анкер -при установке химического анкера площадь контакта с бетоном равна
площади цилиндра сверления, что гораздо лучше, чем при установке обычного
клинового анкера. При установке обычного клинового анкера очень часто приводит
к перегрузке анкера, его расшатыванию и вырыванию
Установка анкерных болтов:
закрепите подъёмник на бетонном основании 16-ю анкерными болтами
с помощью вибрационной дрели, просверлив отверстия на глубину 120 мм;
сначала не устанавливайте никаких расширяющихся болтов.
Регулировка горизонтальности:
отрегулируйте горизонтальность двух передних поворотных пластин и
сдвижных пластин на обеих сторонах сзади.
Рисунок 3.4. Рисунок 3.5.

Рисунок 3.6.
Рисунок 3.1. Анкерный болт
3.4 Проверочный
расчет анкерных болтов
Анкерные болты - это болты крепления стойки подъемника к полу
производственного корпуса ПТО.
Характеристика резьбы:
·
Резьба общего
назначения, треугольная, однозаходная М14х2 ГОСТ 9150-59
·
шаг резьбы P = 2 мм
·
наружный диаметр
резьбы болта d = 14 мм;
·
внутренний
диаметр резьбы болта d1 = 11,84 мм;
·
средний диаметр
резьбы болта и гайки d2 = 12,7 мм;
·
высота гайки Н =
11 мм;
·
высота резьбы h = 1,082 мм;
·
площадь сечения
стержня винта A = 110.05 мм2;
Каждая стойка подъемника крепится четырьмя болтами.
При не нагруженном подъемнике будем считать болты ненагруженными. Рассмотрим
одну стойку: при подъеме подъемником автомобиля нагруженными будут два внешних
болта, поэтому необходимо произвести проверочный расчет анкерных болтов на
прочность и смятие резьбы.
3.5 Проверочный
расчет анкерного болта на прочность
Расчет на прочность резьбовых соединений выполняют следующим образом. Площадь
поперечного сечения стержня болта по заданному внешнему усилию определяют по
формуле:
где
d1 -
внутренний диаметр резьбы винта, d1= 11,84
мм;
Р
- растягивающее усилие, действующее на болт,
растягивающее
усилие, действующее на один болт, найдем следующим образом:
где G - нагрузка, действующая на
подъемник, G = 25480 Н.
Подставив данные в формулу, получим:
[σв]р
- допускаемое напряжение на растяжение, допускаемое напряжение при растяжении
находится по формуле:
[σв]р= σв/n ,
где σв
- предел прочности материала болта, σв = 420 Н/мм2;
n -
коэффициент запаса, для статически нагруженного пластичного материала n = 2,5.
[σв]р= 420/2,5 = 168 Н/мм2
Подставим данные в формулу и получим:
Из результатов расчета видно, что площадь поперечного сечения стержня
болта гораздо больше площади, необходимой для сохранения целостности болта при
нагрузке Р = 6370 Н. Это означает, что прочность при растяжении анкерного болта
удовлетворяет условию прочности при данных условиях эксплуатации.
3.6 Проверочный расчет анкерного болта на
смятие
Из условия износостойкости резьбы по напряжениям смятия:
где F - сила, действующая на резьбу винта
и гайки.
Так как подъемник П-97М имеет четыре нагруженных анкерных болта то силу,
действующую на резьбу болта и гайки, найдем следующим образом:
где G - нагрузка, действующая на
подъемник,
G = 25480 Н.
d2 - средний диаметр резьбы винта и
гайки d2 = 48 мм;
h -
высота резьбы, h = 4 мм;
z -
число рабочих витков.
Число рабочих витков находится следующим образом:
где
Н - высота гайки, Н = 11 мм;
Р - шаг резьбы, Р = 2 мм.
[σсм] -
допускаемое напряжение при смятии, допускаемое напряжение при смятии находится
по формуле:
[σсм]
= σв/n ,
где σв
- предел прочности материала болта, σв = 420 Н/мм2;
n -
коэффициент запаса, для статически нагруженного пластичного материала n = 2,5.
[σсм]= 420/2,5 = 168 Н/мм2
Подставив данные в формулу получим
Напряжение
смятия полностью удовлетворяет условию износостойкости ходовой резьбы по
напряжениям смятия, более того имеет запас более 100%.
Таким образом, предложенное приспособление просто в использовании,
функционально и имеет огромный ресурс работы. Оно позволит расширить
производственные возможности участка технического обслуживания и сократить
время на ТО и ТР автомобилей автошколы.
ГЛАВА 4. БЖД НА УЧАСТКЕ ТЕХНИЧЕСКОГО ОБСЛУЖИВАНИЯ ИРЕМОНТА
4.1 Общее положение
Безопасность жизнедеятельности (БЖД) - это теоретические основы
безопасности, приложенные к любому виду человеческой деятельности.
Безопасность жизнедеятельности тесно связана с такими науками, как
психология, экология, эргономика, экономика и другие.
Безопасность жизнедеятельности шире охраны труда, которая рассматривает
вопросы создания безопасных условий труда. Безопасность жизнедеятельности
рассматривает не только опасности на производстве и защиту от них, но и
особенности самого человека, возможные его ошибочные действия.
Вопросы безопасности жизнедеятельности, экологии и охраны труда в данном
дипломном проекте рассматриваться на проектируемом участке ремонта грузовых
автомобилей, где будет расположен стенд диагностики и ремонта системы питания
дизельных двигателей.
Цель безопасности - обеспечением безопасности является выявление причин,
влияющих на появление нежелательных событий и разработке предупредительных
мероприятий, снижающих вероятность их появления.
При проектировании участка технического обслуживания должны учитываться
следующие требования безопасности:
помещение участка ремонта оборудуется общеобменной приточно-вытяжной
вентиляцией и местной вытяжкой;
над воротами участка ТО и ремонта возможно размещение воздушных завесов,
так как ворота открываются чаще 5 раз за смену;
электродвигатели и вентиляторы в вентиляционных системах устанавливаются
на виброоснования (пружинное или резиновое) - снижение шума и вибраций
технологическое оборудование должно иметь фундамент с акустическими
разрывами, которые заполняются пористыми материалами (шлаком или керамзитом) -
снижение распространение звука;
проектируется водяная система отопления;
пол участка ремонта изготавливается из асфальтобетонного покрытия,
устойчивого на воздействие смазочных веществ, кислот и щелочей;
освещение в виде люминесцентных ламп (200 ЛК), лампы накаливания
используются во взрывобезопасном исполнении;
строительным конструкциям придают матовую или полуматовую фактуру
окраски;
предусматривается защитное заземление источников питания оборудования;
эвакуационные пути в случае пожара - не должно быть выступающих
конструктивных элементов; двери должны открываться по направлению выхода;
размер дверного проема должен быть не менее 1,9 метра в высоту, ширина
коридоров - в зависимости от общей численности рабочих;
наличие на участке средств защиты персонала при монтаже и эксплуатации
оборудования - средства индивидуальной и комплексной защиты ;
наличие на участке средств пожаротушения.
Любые нововведения вызывают необходимость более тщательного рассмотрения
вопросов безопасности жизнедеятельности, экологии и охраны труда при работе на
технически сложном оборудовании.
Обеспечением безопасности возможно в случае предупреждения и разработке
мероприятий снижающих появление опасностей
Классификация опасностей на участках ремонта.
Классификация опасностей производится согласно принятому мировому
стандарту
Условия труда на СТО - это совокупность факторов
производственной среды, оказывающих влияние на здоровье и работоспособность
человека в процессе труда. Эти факторы различны по своей природе, формам проявления,
характеру действия на человека. Среди них особую группу представляют опасные и
вредные производственные факторы. Их знание позволяет предупредить производственный травматизм и
заболевания, создать более благоприятные
условия труда, обеспечив тем самым его безопасность. В соответствии с ГОСТ 12.
О. 003-74 опасные и вредные производственные
факторы подразделяются по своему действию на организм человека на следующие группы: физические, химические, биологические и психофизиологические.
Физические опасные и вредные производственные факторы
подразделяются
на: движущиеся машины и механизмы; подвижные части производственного
оборудования и технической оснастки ;передвигающиеся изделия, детали, узлы,
материалы; повышенную запыленность и загазованность воздуха рабочей зоны;
повышенную или пониженную температуру поверхностей оборудования,
материалов; повышенную
или пониженную температуру воздуха рабочей зоны; повышенный уровень шума на рабочем месте; повышенный уровень вибрации; повышенный уровень ультразвука и
инфразвуковых колебаний; повышенное или пониженное барометрическое давление в
рабочей зоне и его резкое изменение; повышенную или пониженную влажность
воздуха, ионизацию воздуха в рабочей
зоне; отсутствие или недостаток естественного
света; недостаточную освещенность рабочей зоны; пониженную контрастность; повышенную яркость света; острые кромки, заусенцы и шероховатость на поверхностях
заготовок, инструментов и всего
оборудования.
Химические опасные и вредные производственные
факторы подразделяются по характеру воздействия на
организм человека на токсические,
раздражающие, сенсибилизирующие, канцерогенные, мутагенные, влияющие на репродуктивную функцию, а по пути проникновения в организм человека - на проникающие
через органы дыхания, желудочно-кишечный тракт, кожные покровы и слизистые оболочки.
Биологические опасные и вредные производственные
факторы включают следующие биологические объекты: патогенные микроорганизмы
бактерии, вирусы, грибы, спирохеты, риккетси) и продукты их жизнедеятельности;
микроорганизмы (растения и животные).
Психофизиологические опасные и вредные
производственные факторы
по характеру действия подразделяются на физические и нервно-психические перегрузки на человека. Физические
перегрузки подразделяются на
статические и динамические, а нервно-психические - на умственное
перенапряжение, перенапряжение анализаторов, монотонность труда, эмоциональные перегрузки.
При техническом обслуживании и текущем ремонте автомобилей возникают следующие опасные и вредные
производственные факторы: движущихся автомобилей, незащищенных подвижных
элементов производственного оборудования,
повышенной загазованности помещений отработавшими газами легковых
автомобилей, опасности поражения
электрическим током при работе с электроинструментом и др.
Требования безопасности при ТО и ремонте автомобилей установлены ГОСТ 12. 1. 004-85, ГОСТ 12. 1. 010-76, Санитарными
правилами организации технологических процессов и гигиеническими
требованиями к производственному оборудованию,
правилами по охране труда на автомобильном
транспорте и правилами пожарной безопасности для станций технического обслуживания.
Технологическое оборудование должно отвечать
требованиям ГОСТ 12. 2. 022-80, ГОСТ 12. 2. 049-80, ГОСТ 12. 2. 061-81 и
ГОСТ 12. 2. 082-81.
В зоне ТО и в зоне ТР для обеспечения безопасной и безвредной работы ремонтных рабочих, снижения трудоемкости,
повышения качества выполнения работ по ТО и ТР легковых автомобилей работы
проводят на специально оборудованных
постах, оснащенных электромеханическими подъемниками, которые после подъема автомобиля крепятся специальными стопорами, различными
приспособлениями, устройствами, приборами и инвентарем. Автомобиль на
подъемнике должен быть установлен без
перекосов.
Для предупреждения поражения работающих
электрическим током подъемники заземляют. Для работы ремонтных рабочих
"снизу" автомобиля применяется индивидуальное освещение 220
вольт, которые оборудованы необходимыми средствами безопасности. Снятие
агрегатов и деталей, связанное с большими физическими напряжениями, неудобствами,
производят с помощью съемников. Агрегаты, заполненные жидкостями,
предварительно освобождают от них, и лишь после этого снимают с
автомобиля. Легкие детали и агрегаты переносят вручную, тяжелые агрегаты
массой более 20кг снимают с приспособлениями и транспортируют на передвижных
тележках.
Карбюратор, топливный насос, трубы глушителя снимают
при остывшем
двигателе. Ремонтные рабочие должны пользоваться исправным инструментом и
оснасткой, так как автомобили сами заезжают на посты ТО и ремонта, зона ТО и ТР
снабжена принудительно-вытяжной вентиляцией.
Все рабочие места в зонах ТО и ТР должны содержаться
в чистоте, не загромождаться деталями, оборудованием, приспособлениями. На рабочем месте слесаря
по ремонту автомобиля должны быть необходимые оборудование, приспособления и
инструмент. Все оборудование и инструмент, запасные части, приспособления
располагают в непосредственной близости в пределах зоны досягаемости.
В зоне рихтовки и сварочном цехе на СТО применяют
газовую, точечную и электродуговую сварку. При сварочных работах основную опасность
представляет видимое и инфракрасное излучение, повышенная температура,
расплавленный металл и вредные газы.
Сварочные работы выполняются по ГОСТ 12. 3. 003-86,
а также на основании Правил техники безопасности и производственной санитарии при
электросварочных работах и других.
Сварочный цех окрашен в светло серый цвет краской с
добавлением в нее окиси цинка или титана для поглощения ультрафиолетовых лучей. На рабочем месте сварщика есть стол и
стул. Стол оборудован местным отсосом. Плита
стола изготовлена из чугуна, а стул с сиденьем - из диэлектрического материала, регулируемый по
высоте. Все оборудование электросварочных установок должно иметь исполнение,
соответствующее условиям окружающей
среды. Корпуса электросварочных установок и другие металлические нетоковедущие части оборудования заземляют.
Для создания здоровых условий труда рихтовщиков в
зоне рихтовки предусмотрена приточно-вытяжная вентиляция. Для предохранения глаз сварщиков от
лучей электрической дуги применяются сварочные шлемы с защитными
стеклами. Все рабочие должны быть оснащены спецодеждой и исправным
оборудованием.
Электрокарбюраторный цех и пост диагностики
оборудуются специальными местными отсосами отработавших газов, так как все работы проводят с
работающим двигателем. Кроме того, к рабочим местам карбюраторщика и электрика подводятся
местные отсосы приточно-вытяжной вентиляции.
Для охлаждения двигателя автомобиля дополнительно
устанавливают передвижной электрический вентилятор.
В окрасочном отделении и краскоприготовительной
выделяются токсичные компоненты лакокрасочных материалов в виде аэрозолей, пыли и паров
растворителей. Поэтому организацию и проведение работ, размещение и
эксплуатацию оборудования следует проводить в соответствии с
требованиями ГОСТ 12. 3. 002-75, Правил и норм техники безопасности, пожарной
безопасности и производственной санитарии. Помещение окрасочного отделения и
сушильная камера в частности дополнительно
оборудована механической приточно-вытяжной вентиляцией и средствами пожаротушения. Краскоприготовительная
располагается в изолированном помещении у наружной стены.
ГЛАВА 5. ЭКОНОМИЧЕСКАЯ ЧАСТЬ
5.1 Перечень необходимого
оборудования
Табл 5.1.
|
№
|
Наименование
|
Стоимость
|
Кол-во
|
|
1
|
2-х компонентный газоанализатор Инфракар 10
|
28000рб
|
1
|
|
2
|
ДымомерИнфракар 10
|
37000рб
|
1
|
|
3
|
ODA 2010 - установка для замены масла АКПП
|
24900 руб
|
1
|
|
4
|
ODA 4010 - Установка для замены антифриза в системе
охлаждения
|
18900 руб
|
1
|
|
5
|
ODA 5010 - Установка для замены тормозной жидкости
|
14500 руб
|
1
|
|
6
|
Химические анкера
|
3.500х16= 56000
|
16
|
|
7
|
Подъемник четырехстоечный под сход-развал 4 тонн
|
172.000 руб.
|
1
|
|
8
|
HunterHawkEye Стенд сход-развала Hunter с
3D-датчиками
|
725.000 руб
|
1
|
|
ИТОГО
|
1.076.300
|
|
Необходимые оборудования
5.2 Расчет заработной платы для ремонтных
рабочих
Годовой объем работ
Ссто=47руб
где Ссто-стоимость одного чел.-час.
Общая стоимость работ по заработной плате:
Ссто =528х47=24816руб.
Основная заработная плата:
Где П-премия
П=30%ЗП=7444,8
Дополнительная заработная плата:
ДЗП=Дот/(Дк-Дв-Дот) х 100
где Дот - 36,дни отпуска;
Дк - 365,дни календарные;
Дв - 52,дни выходные.
ДЗП=13% от ОЗП
ДЗП=4193,904
Фонд заработной платы:
,
4193,904)х2,5=91137
где Рк - районный коэффициент и северные надбавки; Р=2,5
ФЗПр.р.= 91136,76
Отчисления на социальные нужды:
О=39% от ФЗПр.р.
О=35543,336
Средняя месячная заработная ремонтных рабочих:
91136,76/(2х12)=3797,365
где Nр.р-количество ремонтных рабочих;
12 -количество месяцев в году
Таблица 5.2.
Основные показатели
|
№
|
Статья расходов
|
Показатель
|
|
1.
|
Годовой объем работ
|
|
|
2.
|
Стоимость одного чел.-час.
|
47 руб
|
|
3.
|
Общая стоимость работ по заработной плате
|
24816руб.
|
|
4.
|
Основная заработная плата
|
руб
|
|
5.
|
Премия
|
7444руб
|
|
6.
|
Дополнительная заработная плата
|
4193руб
|
|
7.
|
Фонд заработной платы
|
91137руб
|
|
8.
|
Отчисления на социальные нужды
|
35543руб
|
|
9.
|
Средняя месячная заработная ремонтных рабочих
|
3797руб
|
Заключение
В данном дипломном проекте разработан участок технического
обслуживания на базе автопарка УМЦ «автошкола СВФУ».
В технологической части
произведено обоснование мощности СТО автомобилей, проведен расчет
годового объема работ, численности производственных рабочих, необходимого оборудования.
В конструкторской части представлено приспособление, которое позволит обслуживать легковые автомобили
на подъемнике GAOCHANG GC-4,0 F4,
предназначенном для обслуживания легковых отечественных автомобилей, что позволит существенно расширить
возможности СТО.
В разделе безопасности жизнедеятельности рассмотрены
опасные и вредные производственные факторы, требования по безопасности,
организация и осуществление мероприятий по технике безопасности, обеспечение
противопожарной безопасности, техника безопасности при выполнении
слесарно-пригоночных работ.
В экономической части проведены расчеты необходимых затрат, в том числе по заработной плате,
капитальным вложениям экономического
эффекта от работы СТО, произведен расчет ожидаемой прибыли СТО, а так же рассчитан срок окупаемости капитальных вложений.
Сейчас настало такое время, когда технического
обслуживание автотранспорта выполняется в тесном взаимодействии человека и
современном компьютерном оборудовании. Человек в данном симбиозе выполняет роль
направляющего и контролирующего, таким образом применение современного
оборудования намного облегчает труд человека.
Использованная литература
1. Авдонькин
Ф.Н. Текущий ремонт автомобилей М.: Транспорт 1978.
. Бобриков
Ф.А. Курсовое и дипломное проектирование, М.: Колос,1975.
. Боднев
А.Г., Дагович В.М. Устройство, эксплуатация и техническое обслуживание
автомобилей» М.: Транспорт 1974.
. Иващенко
Н.И. Технология ремонта автомобилей К.: Высш. школа 1978.
. Карташов
В.П., Мальцев В.М. Организация технического обслуживания и ремонта автомобилей
М.: Транспорт 1979 .
. Копарев
Ф.М. Охрана труда, М.В.О. Агропромиздат, 1988.
. Горячев
А.Д., Беленький Р.Р. Механизация и автоматизация производст-венных процессов на
авторемонтных предприятиях. -М.: Машинострое-ние, 1990.
. Дехтеринский
Л.В. и др. Ремонт автомобилей.-М.: Транспорт, 1992Курчаткина В. В. Оборудование
ремонтных предприятий
. Дюмин
И.Е., ТрегубГ.Г.Ремонт автомобилей. - М.: Транспорт, 1995.
. Методические
указания по выполнению дипломного проекта
. Суханов
В.Н. и др. Техническое обслуживание и ремонт автомобилей (пособие по курсовому
дипломному проектированию). -М.: Транспорт, 1990.
. Туревский
И. С. Дипломное проектирование автотранспортных предприятий: учебное пособие. -
М.: ИД «ФОРУМ»: ИНФАРМА-М, 2008. - 240 с.: ил. - (Профессиональное
образование).
. Автослесарь:
устройство, техническое обслуживание и ремонт автомобилей: учебное пособие/
Ю.Т.Чумаченко, А.И.Герасименко, Б.Б.Рассанов; Под ред.А.С.Трофименко. -
Изд.13-е - Ростов н/Д: Феникс, 2008.-539 [1] с. - (НПО).
. Автомеханик/
Ю.М. Слон. - Изд. 6-е. - Ростов н/Д: Феникс, 2012. - 350с. : ил. - (Среднее
профессиональное образование).
. Автомеханик/сост.
А.А.Ханников. - 2-е изд. - Минск: Современная школа, 2011. - 384с. -
(Серия»Профессиональное образование»).
16. Боднев
А.Г., Шаверин Н.Н. Лабораторный практикум по ремонту авто-мобилей. -М.:
Транспорт, 1989.
17. Горячев
А.Д., Беленький Р.Р. Механизация и автоматизация производст-венных процессов на
авторемонтных предприятиях. -М.: Машинострое-ние, 1990.
. Дехтеринский
Л.В. и др. Ремонт автомобилей.-М.: Транспорт, 1992Курчаткина В. В. Оборудование
ремонтных предприятий
19. Дюмин
И.Е., ТрегубГ.Г.Ремонт автомобилей. - М.: Транспорт, 1995.
20. Методические
указания по выполнению дипломного проекта
21. [<http://www.engtech.ru/>]