|
Количество
аналоговых входов
|
4
|
|
Типы
поддерживаемых унифицированных входных сигналов
|
Напряжение
0...1 В, 0...10 В, -50...+50 мВ Ток 0...5 мА, 0(4)...20 мА Сопротивление
0...5 кОм
|
|
Типы
поддерживаемых датчиков
|
Термосопротивления:
ТСМ50М, ТСП50П, ТСМ100М, ТСП100П, ТСН100Н, ТСМ500М, ТСП500П, ТСН500Н,
ТСП1000П, ТСН1000Н Термопары: ТХК (L), ТЖК (J), ТНН (N), ТХА (K), ТПП (S),
ТПП (R), ТПР (В), ТВР (А&1), ТВР (А&2)
|
|
Разрядность
встроенного АЦП
|
16
бит
|
|
Внутреннее
сопротивление аналогового входа: в режиме измерения тока в режиме измерения
напряжения 0...10 В
|
50
Ом около 10 кОм
|
|
Время
опроса одного аналогового входа
|
0,5
с
|
|
Предел
основной приведенной погрешности измерения аналоговыми входами
|
0,5
%
|
|
Гальваническая
изоляция аналоговых входов
|
отсутствует
|
Программирование ПЛК-150 осуществляется при
помощи профессиональной системы программирования CoDeSys v.2.3.6.1 и старше.
CoDeSys это Controller Development System. Комплекс состоит из двух основных
частей: среды программирования CoDeSys и системы исполнения CoDeSys SP. CoDeSys
работает на компьютере и применяется при подготовке программ. Программы
компилируются в быстрый машинный код и загружаются в контроллер. CoDeSys SP
работает в контроллере, он обеспечивает загрузку и отладку кода, обслуживание
ввода/вывода и прочие сервисные функции. Более 250 известных компаний
изготавливают оборудование с CoDeSys. С ним ежедневно работают тысячи людей,
решающих задачи промышленной автоматизации. На сегодняшний день CoDeSys - это
самый распространенный комплекс МЭК программирования в мире. Практически он сам
служит стандартом и образцом систем МЭК программирования.
Синхронизация ПЛК с персональным компьютером
производится при помощи "COM" порта, который есть на каждом
персональном компьютере.
Микроконтроллер фирмы "ОВЕН"
отечественного производства подходит по всем параметрам. К нему можно
подключать как аналоговые, так и цифровые измерительные устройства с
унифицированными сигналами. Контроллер легко согласуется с персональным компьютером
при помощи "COM" порта, есть возможность удаленного доступа. Возможно
согласование ПЛК-150 с программируемыми логическими контроллерами других
производителей. Программируется ПЛК-150 при помощи Controller Development
System (CoDeSys), на языке программирования высокого уровня.
.5 Выводы по первой главе
В данной главе были рассмотрены основы
функционирования очистки сточных вод, анализ современных способов очистки и
возможность автоматизации этих процессов.
Был произведен анализ существующих аппаратных
средств (логических программируемых контроллеров ПЛК) и программных средств для
управления технологическим оборудованием, при очистки сточных вод. Произведен
анализ отечественных и зарубежных производителей микроконтроллеров.
2.
Схемотехническая часть
Одной из важных функций автоматизации является:
автоматический контроль и управление технологическими процессами, оборудованием
насосных станций и очистных сооружений, создание автоматизированных рабочих
мест для всех специальностей и профилей работы на основании современных
технологий.
Основной функцией систем и сооружений
водоотведения является повышение надежности работы сооружений путем контроля
состояния оборудования и автоматической проверки достоверности информации и
стабильности работы сооружений. Всё это способствуют автоматической
стабилизации параметров технологических процессов и показателей качества
очистки сточных вод, оперативной реакции на возмущающие воздействия (изменение
количества отводимой сточной воды, изменение качества очищенной сточной воды). Конечной
целью автоматизации является повышение эффективности управленческой
деятельности.
Современные водоотводящие сети и насосные
станции должны по возможности разрабатываться с управлением без постоянного
присутствия обслуживающего персонала.
.1 Разработка структурной схемы уровня воды для
наполнения основного резервуара
Структурная схема системы автоматического
контроля представлена на рисунке 9:
Рисунок 9 - Структурная схема
Справа структурной схемы изображен ПЛК-150.
Справа от него изображен интерфейс подключения к локальной сети (Ethernet) для
получения удаленного доступа к контроллеру. Сигнал передается цифровой.
Посредством интерфейса RS-232 происходит согласование с персональным
компьютером. Поскольку контроллер не требовательный к технической составляющей
вычислительной машины, то для корректной работы всей системы в целом достаточно
будет даже слабой "машины" типа Pentium 4 или аналогичных моделей.
Сигнал между ПЛК-150 и персональным компьютером передается в цифровом виде.
.2 Разработка функциональной схемы
Функциональная схема системы автоматического
контроля уровня воды приведена на рисунке 10:
Рисунок 10 функиональная схема
Параметры передаточной функции объекта
управления
Согласно техническому заданию имеем:
H= 3 [м]- высота
трубы.
h0
= 1,0 [м]-заданный уровень.
Qп0
= 12000 [л/час]-номинальный расход.
d = 1,4 [м]-диаметр
трубы.
Передаточная функция ОУ:
(1)
Рассчитаем численные значения передаточной
функции.
Площадь сечения бака:

(2)
Номинальный поступающий расход:
(3)
Коэффициент передачи K:
(4)
Постоянная времени T:
(5)
Таким образом передаточная функция для объекта
управления будет иметь вид:
(6)
Структура системы автоматического управления
представлена на рисунке 0:
Рисунок 11 - Структурная схема САУ
Где: Кр.о.- коэффициент передачи регулирующего
органа (РО) поступающего расхода Qпо;
Кд- коэффициент передачи датчика уровня h
Wp-
передаточная функция автоматического регулятора
Расчет коэффициента усиления регулирующего
органа Kр.о:
,
где
-
изменение поступающего потока;
изменение степени
открытия клапана (в процентах).
Зависимость поступающего потока от степени
открытия клапана изображено на рисунке 12:
Рисунок 12 - Зависимость поступающего потока от
степени открытия клапана
Оценка коэффициента передачи датчика уровня
Коэффициент передачи датчика уровня определяется
как отношение приращения выходного параметра датчика уровня
i[мА]
к входному параметру
[m].
Максимальная высота уровня жидкости ,которую
должен измерять датчик уровня соответствует 1.5 метрам, а изменение токового
унифицированного выходного сигнала датчика уровня при изменении уровня в
диапазоне 0-1.5 метра соответствует 4-20 [мА].
(7)
Общепромышленные датчики уровня имеют встроенную
функцию сглаживания выходного сигнала инерционным фильтром-звеном первого
порядка с устанавливаемой постоянной времени Tф в диапазоне от единиц до
десятков секунд. Выбираем постоянную времени фильтра Тф=10 с [2].
Тогда передаточная функция датчика уровня равна:
(8)
Структура системы управления примет вид:
Рисунок 13 - структура системы управления
Упрощенная структура системы управления с
численными значениями:
Рисунок 14 - упрощенная структура систему
управления
Логарифмические амплитудно-фазовые частотные
характеристики неизменяемой части системы
ЛАФЧХ неизменяемой части САУ строятся
приближенным методом, состоящим в том, что для звена с передаточной функцией :
(9)
в логарифмической сетке координат до частоты
1/Т, где Т=56 с - постоянная времени, ЛАЧХ имеет вид прямой, параллельной
частотной оси на уровне 20 lg
K=20 lg0.43=-7,3
дб, а для частот ,больших 1/Т, ЛАЧХ имеет вид прямой линии с наклоном -20дб/дек
до сопрягающей частоты 1/Тф, где наклон изменяется дополнительно на -20дб/дек и
составляет -40 дб/дек. [2]
Сопрягающие частоты:
(10)
(11)
Таким образом имеем:
Рисунок 15 - ЛАФЧХ исходной разомкнутой системы
2.3 Расчет регулирующего органа для поступающего
и отходящего расходов
Произведем выбор регулирующего органа на
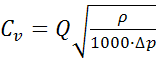
основании условной пропускной способности Cv.
Вычисление величины Сv
производится по международному стандарту DIN
EN 60534 согласно
следующей формуле:
(12)
где Q
- расход [м3/ч], ρ - плотность
жидкостей [кг/м3], Δp
- разность давлений [бар] перед клапаном (Р1[bar])
и за клапаном (Р2[bar])
по направлению потока.
Тогда для регулирующего органа расхода Qп0
согласно
исходным данным:
(13)
Для возможного изменения расхода Qп
в процессе автоматического управления относительно его номинального значения Qп0
максимальное значение Qп
принимаем в два раза больше номинального, то есть
.
Диаметр проходного сечения для поступающего
расхода вычисляется следующим образом :
(14)
Аналогично для отходящего расхода имеем:
(15)
(16)
2.4 Определение настроек регулятора. Синтез САУ
Построение ЛАФЧХ разомкнутой САУ исходит из
следствия теории линейных систем заключающегося том, что если ЛАЧХ разомкнутой
системы(состоящей из минимально - фазовых звеньев) имеет в области существенных
частот (секторе, отсекаемом линиями ±20 дб наклон -20 дб/дек, то:
замкнутая САУ устойчива;
переходная функция замкнутой САУ близка к
монотонной;
время регулирования
. (17)
Структура разомкнутой исходной системы с ПИ -
регулятором :
Рисунок 16 - Структура исходной системы с ПИ-регулятором
Желаемый ЛАЧХ (Lж) простейшего вида
разомкнутой САУ, которая бы в замкнутом виде удовлетворяла заданным показателям
качества, должна иметь в окрестности существенных частот наклон ЛАЧХ равный
-20дб/дек и пересечение с осью частот при:
(18)
В области низкочастотной асимптоты, для создания
нулевой (согласно ТЗ) статической ошибки δст
=0 частотные характеристик разомкнутой системы должны соответствовать
интегратору по крайне мере 1-го порядка. Тогда естественно сформировать в этой
области желаемую ЛАЧХ в виде прямой с наклоном -20 дб/дек. как продолжение Lж
из области существенных частот. С целью упрощения реализации САУ
высокочастотная асимптота должна соответствовать высокочастотной асимптоте
неизменяемой части системы. Таким
образом, желаемая ЛАЧХ разомкнутой системы представлена на рисунке 0:
Рисунок 17 - Желаемые ЛАФЧХ разомкнутой системы
Согласно принятой структуре промышленной САУ,
единственным средством приведения ЛАФЧХ неизменяемой части Lнч к Lж
является ПИ- регулятор с передаточной функцией ЛАФЧХ (при Кр=1)
Рисунок 18 - ЛАФЧХ ПИ-регулятора
На рисунке 14 видно, что для
в
области низких частот ЛАЧХ ПИ-регулятора соответствуют интегрирующему звену с
отрицательным фазовым сдвигом -90град, а для
частотные
характеристики регулятора соответствуют усилительному звену с нулевым фазовым
сдвигом в области существенных частот проектируемой системы при надлежащем
выборе величины Ти.
Примем постоянную интегрирования регулятора
равной постоянной времени Т объекта управления, т.е Ти = 56, при Кр
=1. Тогда ЛАЧХ разомкнутой САУ примет вид L1=Lнч+Lпи,
качественно соответствующий виду Lж на рисунке, но с меньшим
коэффициентом усиления. Для совпадения ЛАЧХ проектируемой системы с Lж
необходимо увеличить коэффициент усиления разомкнутой системы на 16 дб, т.е в 7
раз. Следовательно, настройки регулятора определены.
Рисунок 19 - Синтез САУ. Определение настроек
регулятора
Такие же параметры настройки регулятора
получаются, если из Lж графически вычесть Lнч и по виду
ЛАЧХ получившегося последовательного корректора (ПИ регулятора) восстановить
его передаточную функцию.
Как видно из рисунка 12 при Ти=Т=56
с, передаточная функция разомкнутой системы имеет вид
,
в составе которой имеет место интегрирующее звено. При построении ЛАЧХ,
соответствующей Wp(p)
коэффициент передачи Kp0,32/7850
должен численно соответствовать частоте пересечения ЛАЧХ с осью ω
на
частоте
с-1,
откуда
с-1
или Kp=6,98.
При расчетных настройках регулятора САУ
устойчива, имеет переходную функцию близкую к монотонной, время регулирования tр=56
с, статическая ошибка δст=0.
Датчиковая аппаратура
Измеритель 2ТРМ0 предназначен для измерения
температуры теплоносителей и различных сред в холодильной технике, сушильных
шкафах, печах различного назначения и другом технологическом оборудовании, а
также для измерения других физических параметров (веса, давления, влажности и
т. п.).
Рисунок 20 - Измеритель 2ТРМ0
Класс точности 0,5 (термопары)/0,25 (другие типы
сигналов). Регулятор выпускается в корпусах 5 типов: настенном Н, монтаж на
Дин-рейку Д и щитовых Щ1, Щ11, Щ2.
Рисунок 21 - Функциональная схема прибора ОВЕН 2
ТРМ 0.
Рисунок 22 - Габаритный чертёж измерительного
прибора
Схема подключения прибора:
На рисунке приведена схема клеммной колодки
прибора. На рисунках приведены схемы подключения прибора.
Рисунок 23 - Схема подключения прибора
Клеммная колодка прибора.
Многоканальный блок питания БП14 предназначен
для питания стабилизированным напряжением 24 В или 36 В датчиков с
унифицированным выходным токовым сигналом.
Блок питания БП14 выпускается в корпусе с
креплением на DIN-рейку типа Д4.
Рисунок 28 -Блок питания
Основные функции:
Преобразование переменного (постоянного
напряжения в постоянное стабилизированное в двух или четырех независимых
каналах;
Ограничение пускового тока;
Защита от перенапряжения импульсных помех на
входе;
Защита от перегрузки , короткого замыкания и
перегрева;
Индикация о наличии напряжения на выходе каждого
канала.
Рисунок 29 - Схема подключения
двухканального блока питания БП14
Частота входного переменного напряжения 47...63
Гц. Порог срабатывания защиты по току (1,2...1,8) Imax. Суммарная выходная
мощность 14 Вт. Количество выходных каналов 2 или 4. Номинальное выходное
напряжение канала 24 или 36 В.
Рисунок 30 - Габаритный чертёж блока питания
Нестабильность выходного напряжения при
изменении напряжения питания ±0,2 %.Нестабильность выходного напряжения при
изменении тока нагрузки от 0,1 Imax до Imax ±0,2 %.Рабочий диапазон температур
-20...+50 °C.Коэффициент температурной нестабильности выходного напряжения в
рабочем диапазоне температур ±0,025 % / °C.Электрическая прочность изоляции-
вход - выход (действующее значение)2 к.
САУ-М6 является функциональным аналогом приборов
ESP-50 и РОС 301.
Рисунок 31 -Сигнализатор уровня
Рисунок 32 - Схема подключения САУ-М6
Сигнализатор уровня жидкости трехканальный ОВЕН
САУ-М6 - предназначен для автоматизации технологических процессов, связанных с
контролем и регулированием уровня жидкости.
Рисунок 33 - Функциональная схема САУ-М6
САУ-М6 является функциональным аналогом приборов
ESP-50 и РОС 301.
Прибор выпускается в корпусе настенного
крепления типа Н.
Функциональные возможности сигнализатора уровня
Три независимых канала контроля уровня жидкости
в резервуаре
Возможность инверсии режима работы любого канала
Подключение различных датчиков уровня -
кондуктометрических, поплавковых
Работа с различными по электропроводности
жидкостями : дистиллированной, водопроводной, загрязненной водой, молоком и
пищевыми продуктами (слабокислотными, щелочными и пр.)
Защита кондуметрических датчиков от осаждения
солей на электродах благодаря питанию их переменным напряжением

Технические характеристики прибора номинальное
напряжение питания прибора 220 В
частотой 50 Гц. Допустимые отклонения напряжения питания от номинального
значения -15...+10 %. Потребляемая мощность, не более 6 ВА. Количество каналов
контроля уровня - 3. Количество встроенных выходных реле - 3. Максимально
допустимый ток, коммутируемый контактами встроенного реле 4 А при 220 В 50 Гц (cos
> 0,4).
Рисунок 35 - Модуль дискретного ввода/вывода
Модуль дискретных входов и выходов для
распределенных систем в сети RS-485 (протоколы ОВЕН, Modbus, DCON).
Модуль может использоваться совместно с
программируемыми контроллерами ОВЕН ПЛК или др.МДВВ работает в сети RS-485 при
наличии в ней "мастера", при этом сам МДВВ не является
"мастером" сети.
дискретных входа для подключения контактных
датчиков и транзисторных ключей n-p-n типа. Возможность использования любого
дискретного входа(максимальная частота сигнала - 1 кГц)
Возможность генерации шим-сигнала любым из
выходов
Автоматический перевод исполнительного механизма
в аварийный режим работыпри нарушении сетевого обмена
Поддержка распрастранненых протоколов Modbus
(ASCII, RTU), DCON, ОВЕН.
Рисунок - 36 Общая схема подключения прибора
МДВВ
Рисунок 37 - Функциональная схема МДВВ
МЭОФ предназначены для перемещения рабочих
органов запорно-регулирующей трубопроводной арматуры поворотного принципа
действия (шаровые и пробковые краны, поворотные дисковые затворы, заслонки и
пр.) в системах автоматического регулирования технологическими процессами
различных отраслей промышленности в соответствии с командными сигналами,
поступающими от регулирующих или управляющих устройств. Механизмы
устанавливаются непосредственно на арматуру.
Рисунок 38 - Устройство
механизма МЭОФ
Рисунок 39 - Габаритные размеры
Схема установки датчика Метран 100-ДГ 1541 при
измерении гидростатического давления (уровня) в открытом резервуаре:
Рисунок 40 - Схема установки датчика
Принцип действия датчиков основан на
использовании пьезоэлектрического эффекта в гетероэпитаксиальной пленке
кремния, выращенной на поверхности монокристаллической пластины из
искусственного сапфира.
Рисунок 41 -Внешний вид устройства
Чувствительный элемент с монокристаллической
структурой кремния на сапфире является основой всех сенсорных блоков датчиков
семейства "Метран".
Для лучшего обзора жидкокристаллического
индикатора (ЖКИ)и для удобства доступа к двум отделениям электронного
преобразователя последний может быть повернут относительно измерительного блока
от установленного положения на угол не более 90° против часовой стрелки.
Рисунок 42 - Схема внешнего
электрического соединения датчика:
Где X
- клеммная колодка или разъем;
Rн - сопротивление
нагрузки или суммарное сопротивление всех нагрузок в системе управления;
БП - источник питания постоянного тока.
2.5 Расчет параметров встроенного АЦП
Рассчитаем параметры встроенного АЦП
микроконтроллера ПЛК-150. К основным параметрам АЦП следует отнести
максимальное входное напряжение Umax,
число разрядов кода n,
разрешающую способность ∆ и погрешность преобразования.
Разрядность АЦП определяется по формуле:
= log2N,
(19)
где N
- число дискрет (квантовых уровней);
Так как АЦП встроено в выбранный контроллер
ПЛК-150, то имеем n=16.
Разрешающая
способность АЦП - входное напряжение, соответствующее единице в младшем разряде
выходного кода:
(20)
где 2n
-
1 - максимальный вес входного кода,
вх
= Umax - Umin
(21)
При Umax
=
10В, Umin
=
0В, n = 16,
(22)
Чем больше n,
тем меньше и тем точнее выходным кодом может быть представлено входное
напряжение.
Относительное значение разрешающей способности:
, (23)
где ∆ - наименьшая различимая ступенька
входного сигнала.
Таким образом, ∆ - наименьшая различимая
ступенька входного сигнала. Сигнал меньшего уровня АЦП не зарегистрирует. В
соответствии с этим разрешающую способность отождествляют с чувствительностью
АЦП.
Погрешность преобразования имеет статическую и
динамическую составляющие. Статическая составляющая включает в себя
методическую погрешность квантования ∆δк
(дискретности) и инструментальную погрешность от не идеальности элементов
преобразователей. Погрешность квантования ∆к обусловлена самим
принципом представления непрерывного сигнала квантованными уровнями, отстоящими
друг от друга на выбранный интервал. Ширина этого интервала и есть разрешающая
способность преобразователя. Наибольшая погрешность квантования составляет
половину разрешающей способности, а в общем случае:
(24)
Относительная наибольшая погрешность
квантования:
(25)
Инструментальная погрешность не должна превышать
погрешность квантования. При этом полная абсолютная статическая погрешность
равна:
(26)
Полная относительная статическая погрешность
может быть определена в виде:
(27)
Далее рассчитаем разрешающую способность
встроенного ЦАП микроконтроллера ПЛК-150.Разрешающая способность ЦАП - выходное
напряжение, соответствующее единице в младшем разряде входного кода: Δ=Umax/(2n-1),
где 2n-1 - максимальный вес входного кода. При Umax =
10B, n = 10 (разрядность встроенного ЦАП) рассчитаем разрешающую способность
ЦАП микроконтроллера:
(28)
Чем больше n, тем меньше Δ
и
тем точнее выходным напряжением может быть представлен входной код.
Относительное значение разрешающей способности ЦАП:
(29
Рисунок 43 - Схема подключения
Рисунок 44 - Схема подключения
2.6 Вывод по второй главе
В данной главе была произведена разработка
структурной и функциональной схемы. Произведен расчёт регулирующего органа,
определение настроек регулятора и синтез САУ.
Параметры передаточной функции объекта
управления. Подобранна датчиковая аппаратура. Так же был сделан расчёт
параметров АЦП И ЦАП встроенного в микроконтроллер ОВЕН ПЛК 150.
3.
Программная часть
.1 Разработка алгоритма функционирования системы
САК в среде CoDeSys
Профессиональная разработка систем промышленной
автоматизации неразрывно связана с CoDeSys (Controller Development System).
Основным назначением комплекса CoDeSys является разработка прикладных программ
на языках стандарта МЭК 61131-3.
Комплекс состоит из двух основных частей: среды
программирования CoDeSys и системы исполнения CoDeSys SP. CoDeSys работает на
компьютере и применяется при подготовке программ. Программы компилируются в
быстрый машинный код и загружаются в контроллер. CoDeSys SP работает в
контроллере, он обеспечивает загрузку и отладку кода, обслуживание ввода/вывода
и прочие сервисные функции.
Более 250 известных компаний изготавливают
оборудование с CoDeSys. С ним ежедневно работают тысячи людей, решающих задачи
промышленной автоматизации.
Разработка прикладного программного обеспечения для
ПЛК-150, как и множества других контроллеров, производится на персональном
компьютере в среде CoDeSys под управлением Microsoft Windows. Генератор кода
непосредственно компилирует программу пользователя в машинные коды, что
обеспечивает высочайшее быстродействие контроллера. Система исполнения и
отладки, генератор кода и библиотеки функциональных блоков специально
адаптированы на архитектуру контроллеров серии ПЛК.
Средства отладки включают просмотр и
редактирование входов-выходов и переменных, выполнение программы по циклам,
контроль исполнения алгоритма программы в графическом представлении,
графическую трассировку значений переменных по времени и по событиям,
графическую визуализацию и имитацию технологического оборудования.
Главное окно CoDeSys состоит из следующих
элементов (в окне они расположены сверху вниз):
) Меню.
) Панель инструментов. На ней находятся кнопки
для быстрого вызова команд меню.
) Организатор объектов, имеющий вкладки POU,
Типы данных (Data types), Визуализации (Visualizations) и Ресурсы (Resources).
) Разделитель Организатора объектов и рабочей
области CoDeSys.
) Рабочая область, в которой находится редактор.
) Окно сообщений.
) Строка статуса, содержащая информацию о
текущем состоянии проекта.
Панель инструментов, окно сообщений и строка
статуса не являются обязательными элементами главного окна.
Меню находится в верхней части главного окна.
Оно содержит все команды CoDeSys. Внешний вид окна изображен на рисунке 45.
Рисунок 45 - Внешний вид окна
Кнопки на панели инструментов обеспечивают более
быстрый доступ к командам меню.
Вызванная с помощью кнопки на панели
инструментов команда автоматически выполняется в активном окне.
Команда выполнится, как только нажатая на панели
инструментов кнопка будет отпущена. Если вы поместите указатель мышки на кнопку
панели инструментов, то через небольшой промежуток времени увидите название
этой кнопки в подсказке.
Кнопки на панели инструментов различны для
разных редакторов CoDeSys. Получить информацию относительно назначения этих
кнопок можно в описании редакторов.
Панель инструментов можно отключить, рисунок 46.
Рисунок 46 - Панель инструментов
Общий вид окна программы CoDeSys
выглядит следующим образом, рисунок 47.
Рисунок 47 - Окно программы CoDeSys
Блок-схема алгоритма функционирования в среде CoDeSys
изображена на рисунке 48.
Рисунок 48 - Блок схема функционирования в среде
CoDeSys
Как видно из блок-схемы, после включения
микроконтроллера в него загружается программа, происходит инициализация
переменных, чтение входов и опрос модулей. Так же есть выбор переключения между
автоматическим и ручным режимом. В ручном режиме есть возможность управление
клапаном и управление МЭОФ. Затем происходит запись выходных данных и
формирование посылок по последовательным интерфейсам. После чего алгоритм
зацикливается на чтение входов либо происходит окончание работы.
.2 Разработка программы в среде CoDeSys
Запускаем Codesys и создаем новый проект на
языке ST. Тарджет-файл для ARM9 на персональном компьютере уже установлен, он
автоматически выбирает нужную библиотеку. Связь с контроллером налажена.
PROGRAM PLC_PRG
reg_for_meof:VALVE_REG; (*регулятор для управления
ПДЗ*)
K,b:REAL; (*коэффициенты кривой регулирования*)
timer_for_valve1: TON; (*таймер аварийного
отключения*)
safety_valve_rs_manual: RS;(*для ручного
управления клапаном*)
reference:REAL; (*задание угла поворота
ПДЗ*)_VAR
(*при наладке фиксируем сигнал с датчика
положения МЭОФ и рассчитываем значения ain low ain high, изначально примем
что
датчик 4-20 миллиампер и при 4 ма - ПДЗ полностью закрыт (0%), а при 20 ма -
полность открыт (100%) - настраивается в конфигурации ПЛК *)NOT auto_mode THEN
(*если не автоматический режим*)_open:=manual_more; (*открываем по нажатию
кнопки*)_close:=manual_less; (*закрываем по нажатию кнопки*)
safety_valve_rs_manual(SET:=valve_open
, RESET1:=valve_close , Q1=>safety_valve ); (*управление
аварийным
клапаном*)
ELSE
(*при наладке фиксируем сигнал с датчика
давления и рассчитываем значения ain low ain high, изначально примем
что
датчик 4-20 миллиампер и при 4 ма - резервуар пуст (0%), а при 20 ма - полон
(100%) - настраивается в конфигурации ПЛК *)
IF pressure_sensor< WORD_TO_REAL(w_reference1)
THEN reference:=100; END_IF; (*если
уровень
меньше
"w_reference1", то
открываем
заслонку
на
100%*)
IF pressure_sensor>
WORD_TO_REAL(w_reference1) THEN (*задаём угол поворота - уменьшаем
пропорционально росту уровня "датчик давления" --- угол =К*уровень+b
*)
K:=(-100/(WORD_TO_REAL(w_reference2-w_reference1)));
b:=100-K*(WORD_TO_REAL(w_reference1));
reference:=K*pressure_sensor+b;
END_IF;
(*таймер для управления аварийной заслонкой*)
timer_for_valve1(
IN:=(pressure_sensor>
WORD_TO_REAL(w_reference2)) AND high_level_sensor ,
PT:=t#10s);
(*условие открытия аварийного клапана*)
IF timer_for_valve1.Q
THEN
reference:=0; (*закрываем
МЭОФ*)
safety_valve:=TRUE; (*открываем
аварийный
клапан*)
ELSE
safety_valve:=FALSE;
END_IF;
(*регулятор для управления заслонкой*)_for_meof(
IN_VAL:=reference ,
POS:=MEOF_position ,
DBF:=2 , (*чувствительность регулятора*)
ReversTime:=5 , (*не более 600 включений*)
MinWork:=5 ,
MinStop:=5 ,
MORE=>MEOF_open ,
LESS=>MEOF_close ,
FeedBackError=> );_IF;
(*преобразование данных для отображения в
скаде*)
w_MEOF_position:=REAL_TO_WORD(MEOF_position);_level:=REAL_TO_WORD
(pressure_sensor);
(*индикация режима для заливки кнопок
авто-ручн*)_out:=auto_mode;
(*индикация выхода для заливки кнопок закр/откр
аварийный клапан*)_out:=safety_valve;
3.3 Разработка интерфейса визуального
отображения измерительной информации
Для разработки интерфейса визуального
отображения была выбрана программа Trace Mode 6, т.к. она обладает всеми
нужными нам функциями и характеристиками:
имеет довольно широкий спектр возможностей для
имитации технологических процессов на графическом экране;
доступны все стандартные языки программирования
для SCADA-систем, контроллеров;
дружественный графический интерфейс;
довольно простое подключение к программируемому
логическому контроллеру;
доступная полная версия данной системы на сайте
производителя.race
Mode 6 предназначена
для автоматизации промышленных пред-приятий, энергетических объектов,
интеллектуальных зданий, объектов транспорта, систем энергоучета и т.д.
Масштаб систем автоматизации, создаваемых в Trace
Mode, может быть любым
- от автономно работающих управляющих контроллеров и рабочих мест операторов,
до территориально распределенных систем управления, включающих десятки
контроллеров, обменивающихся данными с использованием различных коммуникаций -
локальная сеть, интранет/интернет, последовательные шины на основе RS-232/485,
выделенные и коммутируемые телефонные линии, радиоканал и GSM-сети.
Интегрированная среда разработки проекта в
программе Trace
Mode показана на
рисунке 49.
Рисунок 49 - Интегрированная среда разработки Trace
Mode 6
Навигатор проекта позволяет осуществлять быстрый
переход между подпунктами проекта. При наведении курсора на один из пунктов
появляется комментарий, который позволяет понять содержимое.
Рисунок 50 - Навигатор проекта
Мнемосхема проекта, накопительного бака первой
ступени очистки сточных вод показана на рисунке 0. Она включает в себя :
Панель управления (возможность выбора режима
управления, возможность регулирования заслонок);
Отображение угла поворота ПДЗ;
Индикацию уровня воды в баке;
Аварийный сброс (при переполнении воды в баке);
График отслеживания измерительной информации
(состояния уровня воды и положение заслонки отображаются на графике).
Рисунок 51 - Мнемосхема накопительного бака
Под полем "Положение ПДЗ" отображается
фактический угол поворота заслонки (0-100%), что позволяет более точно
отслеживать измерительную информацию.
Рисунок 52 - Положение ПДЗ
Стрелочки слева от резервуара меняют цвет с
серого на зелёный при срабатывание сходов ПЛК (сигнал с САУ), т.е. если
стрелочка зеленая то уровень воды выше чем датчик.
Ползунок на шкале - индикатор уровня (по датчику
давления метран) (0-100%).
Рисунок 53 - Индикатор уровня
Управление может осуществляться в двух режимах:
) Ручное.
) Автоматическое.
При выборе режима цвет соответствующей кнопки
меняет цвет с серого на зеленый и этот режим становится активным для
пользования.
Кнопки "Открыть" и "Закрыть"
используются для управления клапанами в ручном режиме.
В автоматическом режиме есть возможность
выставлять задания, от которых будет зависеть угол поворота ПДЗ.
Справа от поля "задание 1" вводится
уровень в резервуаре, при котором начнёт уменьшаться угол поворота ПДЗ.
Справа от поля "задание 2" вводится
уровень в резервуаре, при котором ПДЗ будет полностью закрыт.
Так же в автоматическом режиме работает
аварийный клапан на случаи возможного перелива воды. Аварийный клапан
открывается при условии превышения уровня выше "задание 2" и при
срабатывание датчика верхнего уровня (САУ) в течении 10 секунд.
Рисунок 54 - Аварийный сброс
Для удобства отслеживания измерительной
информации, состояния уровня воды и положение заслонки отображаются на графике.
Синий линией отображается уровень воды в баке, а красной положение заслонки.
Рисунок 55 - График уровня и положения заслонки
.4 Выводы по третьей главе
В третьей главе была произведена разработка
алгоритма функционирования системы в среде CoDeSys,
построена блок-схема функционирования системы и разработан программный модуль
ввода/вывода информации в АСУТП.
Так же был разработан интерфейс визуального
отображения измерительной информации с помощью программы Trace
Mode 6, для системы
автоматического контроля.
4.
Организационно - экономическая часть
.1 Экономическая эффективность АСУТП
Экономическая эффективность - результативность
экономической системы, выражающаяся в отношении полезных конечных результатов
ее функционирования к затраченным ресурсам.
Эффективность производства складывается из эффективности
всех действующих предприятий. Эффективность предприятия характеризуется
производством товара или услуги с наименьшими издержками. Она выражается в его
способности производить максимальный объем продукции приемлемого качества с
минимальными затратами и продавать эту продукцию с наименьшими издержками.
Экономическая эффективность предприятия в отличие от его технической
эффективности зависит от того, насколько его продукция соответствует
требованиям рынка, запросам потребителей.
Автоматизированные системы управления
технологическими процессами обеспечивают повышение эффективности производства
за счёт повышения производительности труда, увеличения объёма производства,
улучшения качества выпускаемой продукции, рационального использования основных
фондов, материалов и сырья и уменьшения числа работающих на предприятии.
Внедрение СУ отличается от обычных работ по внедрению новой техники тем, что
оно позволяет перевести производственный процесс на качественно новую ступень
развития, характеризуемую более высокой организацией (упорядоченностью)
производства.
Качественное улучшение организации производства
обусловлено значительным увеличением объёма обрабатываемой в СУ информации,
резким увеличением скорости её обработки и применением для выработки управляющих
решений более сложных методов и алгоритмов, чем те, которые использовали до
внедрения АСУТП.
Экономический эффект, получаемый от внедрения
одной и той же системы, зависит от уровня организованности производства
(стабильности и настроенности технологического процесса (ТП)) до и после
внедрения АСУТП, т. е. может быть различным для разных предприятий.
Обоснование разработки (или внедрения) новой
техники начинается с технической оценки, путем сравнения проектируемой
конструкции с лучшим из существующих отечественных и зарубежных образцов.
Высокая экономическая эффективность нового прибора или устройства достигается
путем закладки в его проект прогрессивных технических решений. Они могут быть
выражены системой технических и эксплуатационных показателей, характеризующих
данный вид прибора. Прогрессивные технические показатели являются базой для
достижения высокой экономической эффективности - конечного критерия оценки
новой техники. Это не умаляет значения технических показателей при оценке
экономической эффективности.
Обычно экономические показатели эффективности
новой техники немногочисленны и едины для всех отраслей промышленности, а
технические показатели специфичны для каждой отрасли и количество их может быть
очень велико с тем, чтобы всесторонне характеризовать технические параметры
изделий. Технические показатели выявляют в какой мере новый прибор
удовлетворяет потребность в выпуске продукции или в производстве работ, а также
в какой мере он увязан с другими машинами, которые применяются или проектируются
для того же процесса.
Прежде чем приступить к проектированию (или
внедрению) необходимо детально и всесторонне ознакомиться, для какой цели
создается (внедряется) прибор, изучить технологический процесс, в котором он
будет использоваться, и получить четкое представление об объеме работ,
подлежащих выполнению новым изделием. Все это должно найти свое отражение в
технической оценке новой машины (прибора) изделия.
Оценка деятельности предприятия должна учитывать
результаты и затраты производства. Однако практика показывает, что оценка
производственных звеньев только с помощью показателей результатно-затратного
подхода не всегда нацеливает их на достижение высоких конечных результатов
деятельности, изыскание внутренних резервов и на деле не способствует повышению
общей эффективности.
.2 Расчет основных затрат на систему управления
При определении экономической эффективности
внедрения средств механизации и автоматизации должны быть получены ответы на
следующие вопросы:
насколько технически и экономически прогрессивны
предлагаемые средства механизации и автоматизации и должны ли они быть приняты
к внедрению;
какова величина эффекта, от внедрения в
производство.
Основные затраты на создание СУ состоят, как
правило, из затрат на предпроектные и проектные работы Sn и затрат Sоб на
приобретение специального оборудования, устанавливаемого в СУ. При этом в
стоимость проектных работ включают помимо расходов, связанных с разработкой
проекта, и затраты на разработку математического обеспечения и внедрение СУ, а
в стоимость оборудования - помимо стоимости средств управляющей вычислительной
техники, устройств подготовки, передачи и отображения информации, стоимость тех
узлов технологического оборудования, модернизация или разработка которых
вызвана условиями работы оборудования в системе ТП - АСУТП. Кроме затрат на
создание СУ предприятие несёт ещё и затраты на её эксплуатацию. Таким образом,
годовые затраты на СУ:
(30)
где Т - время эксплуатации; обычно Т = 5 - 7
лет;
-
годовые эксплуатационные затраты, руб.
Эксплуатационные затраты на СУ:
(31)
где
-
годовой фонд заработной платы персонала, обслуживающего СУ, руб.;
-
амортизационные отчисления и плата за фонды, руб.;
-
затраты на коммунальные услуги (электроэнергию, воду и т.п.), руб.;
-
годовые затраты на материалы и комплектующие изделия, руб.
Амортизационные отчисления и плата за фонды:
(32)
где
-
стоимость оборудования i-го типа, руб.;
-
коэффициент амортизационных отчислений по i-му типу оборудования;
-
коэффициент отчислений за фонды.
Годовой фонд заработной платы персонала,
обслуживающего СУ:
(33)
где
-
время работы обслуживающего персонала за год, ч;
-
средняя часовая ставка обслуживающего персонала, руб.;
-
коэффициент цеховых накладных расходов; m′ - численность обслуживающего
СУ и специализированные устройства технологического оборудования персонала,
чел.
Смета затрат на систему управления включает в
себя следующие статьи расходов:
затраты на основное оборудование;
затраты на дополнительное оборудование;
заработная плата рабочих;
отчисления на социальные нужды;
стоимость машинного времени;
накладные расходы.
Основная заработная плата исполнителей Сосн,
руб, определяется по формуле:
Сосн = Тож * tс
* b,
(34)
где tс - продолжительность рабочего дня, ч (tс =
8 ч);- стоимость 1 чел-ч (определяется делением месячного оклада на количество
часов, подлежащих отработке в месяц), руб-ч.
Средняя стоимость 1 чел-ч составляет 75 руб
Трудоемкость работ составляет 30,8 чел-дней.
Сосн = 30.8 * 8 * 75 = 18480 руб.
(35)
Дополнительная заработная плата Сдоп, руб,
принимается в размере 15 % от основной заработной платы.
Сдоп = 0,15 * 18 480 = 2772 руб.
Отчисления на социальные нужды Сотч, руб,
рассчитываются от суммы основной и дополнительной заработной платы в размере
26,2 %
Сотч = 0,262 * (Сосн + Сдоп),
(36)
Сотч = 0,262 * (18480 + 2772) = 5568 руб.
Затраты на материалы См составляют:
С1 - стоимость Микроконтроллера ПЛК-150 (средняя
стоимость 10000 руб.);
С2 - стоимость блока питания (средняя стоимость
1800 руб.);
С3 - стоимость датчиковой аппаратуры (средняя
стоимость 4000 руб.);
С4 - стоимость ПК (средняя стоимость ПК 15000
руб, Pentium
DC E6700,
GA-EG41MFT-US2H,2
x 2GB,500Gb);
С5 - прочие расходы (расходные материалы,
провода, крепления и т.д.);
См = С1 + С2 + С3 + С4 + С5
С1 =10000 руб.
С2 = 1800 руб.
С3 = 4000 руб.
С4 = 15000 руб.
С5 = 9000
руб.
См =10000+1800+4000+15000+9000=
39800 руб.
Машинное время - период, в течение которого
машина (агрегат, станок и т. п.) выполняет работу по обработке или перемещению
изделия без непосредственного воздействия на него человека.
Стоимость машинного времени определяется по
формуле:
Смв = Тмаш * Цмч,
(37)
где Тмаш - время использования технических
средств, ч;
Цмч - стоимость машино-часа, которая включает
амортизацию технических средств, затраты на техническое обслуживание и ремонт,
стоимость электроэнергии, руб-ч.
Время использования технических средств равно
трудоемкости работы исполнителей и составляет 412 ч.
Стоимость машино-часа Цмч составляет 17 руб.
Смв = 412 * 17 = 7004 руб.
Накладные расходы Снак включают в себя все
затраты, связанные с управлением и хозяйственным обслуживанием. Таковых
расходов в данном случае нет.
Смета затрат на разработку автоматизированной
системы предприятия представлена в таблице 0.
Таблица 6 - Затраты на разработку
|
Статья
расходов
|
Сумма,
руб.
|
Процент
к итогу
|
|
Затраты
на материалы
|
39800
|
54.2
|
|
Основная
заработная плата
|
18480
|
25.1
|
|
Дополнительная
заработная плата
|
2772
|
3.7
|
|
Отчисления
на социальные нужды
|
5568
|
7.5
|
|
Стоимость
машинного времени
|
7004
|
9.5
|
|
Всего
|
73624
|
100
|
Таким образом, затраты, на систему управления,
составляют 73 624 рублей.
Рисунок 56 - Основные затраты на систему
управления
.3 Организация процессов производства
Организация производственных процессов состоит в
объединении людей, орудий и предметов труда в единый процесс производства материальных
благ, а также в обеспечении рационального сочетания в пространстве и во времени
основных, вспомогательных и обслуживающих процессов.
Одним
из основных аспектов формирования производственной структуры является
обеспечение взаимосвязанного функционирования всех составляющих
производственного процесса: подготовительных операций, основных
производственных процессов, технического обслуживания. Необходимо всесторонне
обосновать наиболее рациональные для конкретных производственно-технических
условий организационные формы и методы осуществления тех или иных процессов.
Принципы организации производственного процесса
представляют собой исходные положения, на основе которых осуществляются
построение, функционирование и развитие производственных процессов.
Принцип дифференциации предполагает разделение
производственного процесса на отдельные части (процессы, операции) и их
закрепление за соответствующими подразделениями предприятия. Принципу
дифференциации противостоит принцип комбинирования, который означает объединение
всех или части разнохарактерных процессов по изготовлению определенных видов
продукции в пределах одного участка, цеха или производства. В зависимости от
сложности изделия, объема производства, характера применяемого оборудования
производственный процесс может быть сосредоточен в каком-либо одном
производственном подразделении (цехе, участке) или рассредоточен по нескольким
подразделениям.
Принцип концентрации означает сосредоточение
определенных производственных операций по изготовлению технологически
однородной продукции или выполнению функционально-однородных работ на отдельных
рабочих местах, участках, в цехах или производствах предприятия.
Целесообразность концентрации однородных работ на отдельных участках
производства обусловлена следующими факторами: общностью технологических
методов, вызывающих необходимость применения однотипного оборудования;
возможностями оборудования, например обрабатывающих центров; возрастанием
объемов выпуска отдельных видов продукции; экономической целесообразностью
концентрации производства определенных видов продукции или выполнения
однородных работ.
Принцип пропорциональности заключается в
закономерном сочетании отдельных элементов производственного процесса, которое
выражается в определенном количественном соотношении их друг с другом. Так,
пропорциональность по производственной мощности предполагает равенство
мощностей участков или коэффициентов загрузки оборудования. В этом случае
пропускная способность заготовительных цехов соответствует потребности в
заготовках механических цехов, а пропускная способность этих цехов -
потребности сборочного цеха в необходимых деталях. Отсюда вытекает требование
иметь в каждом цехе оборудование, площади, рабочую силу в таком количестве,
которое обеспечивало бы нормальную работу всех подразделений предприятия. Такое
же соотношение пропускной способности должно существовать и между основным
производством, с одной стороны, и вспомогательными и обслуживающими
подразделениями - с другой.
4.4 Вывод по пятой главе
В данной главе в соответствии с заданием на
дипломный проект была определена экономическая эффективность внедрения АСУТП.
Так же были рассмотрены основные положения и был произведен расчёт основных
затрат на систему управления.
5.
Безопасность жизнедеятельности и охрана окружающей среды
.1 Безопасность жизнедеятельности
При создании сложных автоматизированных систем
управления все чаще практикуют системное проектирование, на ранних стадиях
которого поднимаются вопросы безопасности рабочего места и эргономического
обеспечения, таящего в себе большие резервы повышения эффективности и
надежности всей системы. Это связано с всесторонним учетом человеческого
фактора в процессе его пребывания на рабочем месте. Основной задачей мер
безопасности является ограждение здоровья человека от вредных факторов, таких
как поражение электрическим током, недостаточная освещенность, повышенный
уровень шума на рабочем месте, повышенная или пониженная температура воздуха
рабочей зоны, повышенная или пониженная влажность воздуха, повышенная или пониженная
подвижность воздуха. Все это достигается в результате проведения и выполнения
комплекса взаимосвязанных по значению, логике и последовательности процедур и
мероприятий, осуществляемых в ходе разработки системы человек-машина и при ее
эксплуатации. Тема дипломного
проекта - "Автоматизированная система управления процессом очистки сточных
вод после автомойки с разработкой программного модуля для микроконтроллера
ОВЕН". В связи со спецификой данного рабочего места, на предприятии
осуществляется очистка сточных вод с помощью хлора, а хлор относится к аварийно
химически опасным веществам (АХОВ).
Поэтому, для обеспечения сохранности здоровья и
высокой производительности труда, необходимо исследовать опасные и вредные
факторы при работе на предприятии с вероятностью выбросов АХОВ.
Опасные и вредные факторы при работе с АХОВ
Отравление аварийными химически опасными
веществами (АХОВ) при авариях и катастрофах происходит при попадании АХОВ в
организм через органы дыхания и пищеварения, кожные покровы и слизистые
оболочки. Характер и тяжесть поражений определяются следующими основными
факторами: видом и характером токсического действия, степенью токсичности,
концентрацией химических веществ на пострадавшем объекте (территории) и сроками
воздействия на человека.
Вышеуказанные факторы будут определять и
клинические проявления поражений, которыми в начальный период могут быть:
)явления раздражения - кашель, першение и боль в
горле, слезотечение и резь в глазах, боли в груди, головная боль;
)нарастание и развитие явлений со стороны
центральной нервной системы (ЦНС) - головная боль, головокружение, чувство
опьянения и страха, тошнота, рвота, состояние эйфории, нарушение координации
движений, сонливость, общая заторможенность, апатия и т.п.
Защита от опасных и вредных факторов
Для предотвращения выброса хлора, на предприятии
должны чётко соблюдаться правила техники безопасности, проводиться инструктаж
при обращении с АХОВ и проводиться контроль к допуску опасных веществ.
На предприятии должны быть средства защиты в
случае аварийных ситуаций. Одним из таких средств защит является противогаз
ГП-7.Противогаз предназначен для защиты органов дыхания, зрения и лица человека
от отравляющих веществ, биологических аэрозолей и радиоактивной пыли (ОВ, БА и
РП).
Рисунок 57 - Противогаз ГП-7
Противогаз ГП-7: 1 - лицевая часть; 2 -
фильтрующе-поглощающая коробка; 3 - трикотажный чехол; 4 - узел клапана вдоха;
5 - переговорное устройство (мембрана); 6 - узел клапанов выдохов; 7 -
обтюратор; 8 - наголовник (затылочная пластина); 9 - лобная лямка; 10 -
височные лямки; 11 - щёчные лямки; 12 - пряжки; 13 - сумка.
Противогаз ГП-7 - одна из последних и самых
совершенных моделей противогазов для населения. Обеспечивает высокоэффективную
защиту от паров отравляющих, радиоактивных, бактериальных, аварийных химически
опасных веществ (АХОВ). Имеет малое сопротивление дыханию, обеспечивает
надёжную герметизацию и небольшое давление лицевой части на голову. Благодаря
этому им могут пользоваться люди старше 60 лет и больные с легочными и сердечно
сосудистыми заболеваниями.
Рисунок 58 - время защитного действия ГП-7
Рисунок 59 - Технические характеристики ГП-7
Действия при аварии с выбросом хлора
При получении информации об аварии с АХОВ
наденьте средства защиты органов дыхания, средства защиты кожи (плащ, накидка),
покиньте район аварии в направлении, указанном в сообщении по радио
(телевидению).
Выходить из зоны химического заражения следует в
сторону, перпендикулярную направлению ветра. При этом избегайте перехода через
туннели, овраги и лощины - в низких местах концентрация хлора выше.
Если из опасной зоны выйти невозможно,
останьтесь в помещении и произведите его экстренную герметизацию: плотно
закройте окна, двери, вентиляционные отверстия, дымоходы, уплотните щели в
окнах и на стыках рам и поднимитесь на верхние этажи здания.
Рисунок 60 - Схема эвакуации от зоны заражения
Выйдя из опасной зоны, снимите верхнюю одежду,
оставьте ее на улице, примите душ, промойте глаза и носоглотку.При появлении
признаков отравления: покой, теплое питье, обратитесь к врачу.
Признаки отравления хлором: резкая боль в груди,
сухой кашель, рвота, резь в глазах, слезотечение, нарушение координации
движений.
Средства индивидуальной защиты: противогазы всех
типов, марлевая повязка, смоченная водой или 2% раствором соды (1 чайная ложка
на стакан воды).
Неотложная помощь: вынести пострадавшего из
опасной зоны (транспортировка только лежа), освободить от одежды, стесняющей
дыхание, обильное питье 2% раствора соды, промывание глаз, желудка, носа этим
же раствором, в глаза - 30% раствор альбуцида. Затемнение помещения, темные
очки.
5.2 Охрана окружающей среды
Здоровье человека напрямую зависит от окружающей
среды, и в первую очередь от качества воды, которую он пьёт. Качество воды
влияет на жизнедеятельность человеческого организма, его работоспособность и
общее самочувствие. Недаром, экологии и, в частности, проблеме чистой воды
уделяется так много внимания.
В наше время развитого технического прогресса
всё больше и больше загрязняется окружающая среда. Особенно опасно загрязнение
сточных вод промышленными предприятиями.
Наиболее широко распространенными загрязнителями
сточных вод являются нефтепродукты - неидентифицированная группа углеводородов
нефти, мазута, керосина, масел и их примесей, которые вследствие их высокой
токсичности, принадлежат, по данным ЮНЕСКО, к числу десяти наиболее опасных
загрязнителей окружающей среды. Нефтепродукты могут находиться в растворах в
эмульгированном, растворенном виде и образовывать на поверхности плавающий
слой.
Факторы загрязнений сточных вод нефтепродуктами
Одним из загрязнителей окружающей среды являются
нефтесодержащие сточные воды. Они образуются на всех технологических этапах
добычи и использования нефти.
Генеральным направлением решения проблемы
предотвращения загрязнения окружающей среды является создание безотходных,
малоотходных, бессточных и малосточных производств. В связи с этим при приемке,
хранении, транспортировке и выдаче потребителям нефтепродуктов надлежит
принимать все необходимые меры по предотвращению или максимально возможному
сокращению их потерь. Данная задача должна решаться путем совершенствования
технических средств и технологических приемов переработки нефти и
нефтепродуктов на нефтебазах и перекачивающих станциях. Наряду с этим полезную
роль могут выполнять местные сборные устройства различного назначения,
позволяющие собирать проливы или протечки продуктов в чистом виде, не допуская
их удаления с помощью воды.
При ограниченных возможностях использования
вышеупомянутых средств на нефтебазах образуются сточные воды, загрязненные
нефтепродуктами. В соответствии с требованиями существующих нормативных
документов они подлежат довольно глубокой очистке. Технология очистки
нефтесодержащих вод определяется фазоводисперсным состоянием образовавшейся
системы нефтепродукт - вода. Поведение нефтепродуктов в воде обусловлено, как
правило, меньшей их плотностью по сравнению с плотностью воды и чрезвычайно
малой растворимостью в воде, которая для тяжелых сортов близка к нулю. В связи
с этим основными методами очистки воды от нефтепродуктов являются механические
и физико-химические. Из механических методов наибольшее применение нашло
отстаивание, в меньшей мере - фильтрование и центрифугирование. Из
физико-химических методов серьезное внимание привлекает флотация, которую иногда
относят и к механическим методам.
Очистка сточных вод от нефтепродуктов
отстойниками и песколовками
Песколовки предназначены для выделения
механических примесей с размером частиц 200-250 мкм. Необходимость
предварительного выделения механических примесей (песка, окалины и др.)
обуславливается тем, что при отсутствии песколовок эти примеси выделяются в
других очистных сооружениях и тем самым усложняют эксплуатацию последних.
Принцип действия песколовки основан на изменении
скорости движения твердых тяжелых частиц в потоке жидкости.
Песколовки делятся на горизонтальные, в которых
жидкость движется в горизонтальном направлении, с прямолинейным или круговым
движением воды, вертикальные, в которых жидкость движется вертикально вверх, и
песколовки с винтовым (поступательно-вращательным) движением воды. Последние в
зависимости от способа создания винтового движения разделяются на
тангенциальные и аэрируемые.
Самые простейшие горизонтальные песколовки
представляют собой резервуары с треугольным или трапециидальным поперечным
сечением. Глубина песколовок 0,25-1 м. Скорость движения воды в них не
превышает 0,3 м/с. Песколовки с круговым движением воды изготавливаются в виде
круглого резервуара конической формы с периферийным лотком для протекания
сточной воды. Осадок собирается в коническом днище, откуда его направляют на
переработку или отвал. Применяются при расходах до 7000 м3/сут. Вертикальные
песколовки имеют прямоугольную или круглую форму, в них сточные воды движутся с
вертикальным восходящим потоком со скоростью 0,05 м/с.
Конструкцию песколовки выбирают в зависимости от
количества сточных вод, концентрации взвешенных веществ. Наиболее часто
используют горизонтальные песколовки. Из опыта работы нефтебаз следует, что
горизонтальные песколовки необходимо очищать не реже одного раза в 2-3 суток.
При очистке песколовок обычно применяют переносный или стационарный
гидроэлеватор.
Отстаивание - наиболее простой и часто
применяемый способ выделения из сточных вод грубо дисперсных примесей, которые
под действием гравитационной силы оседают на дне отстойника или всплывают на
его поверхности.
Нефтетранспортные предприятия (нефтебазы,
нефтеперекачивающие стан-ции) оборудуют различными отстойниками для сбора и
очистки воды от нефти и нефтепродуктов. Для этой цели обычно используют
стандартные стальные или железобетонные резервуары, которые могут работать в
режиме резервуара-накопителя, резервуара-отстойника или буферного резервуара в
зависимости от технологической схемы очистки сточных вод.
Исходя из технологического процесса,
загрязненные воды нефтебаз и нефтеперекачивающих станций неравномерно поступают
на очистные сооружения. Для более равномерной подачи загрязненных вод на
очистные сооружения служат буферные резервуары, которые оборудуют
водораспределительными и нефтесборными устройствами, трубами для подачи и
выпуска сточной воды и нефти, уровнемером, дыхательной аппаратурой и т.д. Так
как нефть в воде находится в трех состояниях (легко-, трудноотделимая и
растворенная), то попав в буферный резервуар, легко- и частично трудноотделимая
нефть всплывает на поверхность воды. В этих резервуарах отделяют до 90-95%
легко отделимых нефтей. Для этого в схему очистных сооружений устанавливают два
и более буферных резервуара, которые работают периодически: заполнение, отстой,
выкачка. Объем резервуара выбирают из расчета времени заполнения, выкачки и
отстоя, причем время отстоя принимают от 6 до 24 ч. Таким образом, буферные
резервуары (резервуары-отстойники) не только сглаживают неравномерность подачи
сточных вод на очистные сооружения, но и значительно снижают концентрацию нефти
в воде.
Перед откачкой отстоявшейся воды из резервуара
сначала отводят всплывшую нефть и выпавший осадок, после чего откачивают
осветленную воду. Для удаления осадка на дне резервуара устраивают дренаж из
перфорированных труб.
Отличительная особенность динамических
отстойников заключается в отделении примеси, находящейся в воде, при движении
жидкости.
В динамических отстойниках или отстойниках
непрерывного действия жидкость движется в горизонтальном или вертикальном
направлении, отсюда и отстойники подразделяются на вертикальные и
горизонтальные.
Вертикальный отстойник представляет собой
цилиндрический или квадратный (в плане) резервуар с коническим днищем для
удобства сбора и откачки осаждающегося осадка. Движение воды в вертикальном
отстойнике происходит снизу вверх (для осаждающихся частиц).
Горизонтальный отстойник представляет собой
прямоугольный резервуар (в плане) высотой 1,5-4 м, шириной 3-6 м и длиной до 48
м. Выпавший на дне осадок специальными скребками передвигают к приямку, а из
него гидроэлеватором, насосами или другими приспособлениями удаляют из
отстойника. Всплывшие примеси выводят с помощью скребков и поперечных лотков,
установленных на определенном уровне.
В зависимости от улавливаемого продукта горизонтальные
отстойники де-лятся на песколовки, нефтеловушки, мазутоловки, бензоловки,
жироловки и т.п. Некоторые типы нефтеловушек представлены на рисунке 0.
Рисунок 61 - Нефтеловушки
В радиальных отстойниках круглой формы вода
движется от центра к периферии или наоборот. Радиальные отстойники большой
производительности, применяемые для очистки сточных вод, имеют диаметр до 100 м
и глубину до 5 м.
Радиальные отстойники с центральным впуском
сточной воды имеют повышенные скорости впуска, что обуславливает менее
эффективное использование значительной части объема отстойника по отношению к
радиальным отстойникам с периферийным впуском сточных вод и отбором очищенной
воды в центре.
Чем больше высота отстойника, тем больше
необходимо времени для всплытия частицы на поверхности воды. А это, в свою
очередь, связано с увеличением длины отстойника. Следовательно,
интенсифицировать процесс отстаивания в нефтеловушках обычных конструкций
сложно. С увеличением размеров отстойников гидродинамические характеристики
отстаивания ухудшаются. Чем тоньше слой жидкости, тем процесс всплытия
(оседания) происходит быстрее при прочих равных условиях. Это положение привело
к созданию тонкослойных отстойников, которые по конструкции можно разделить на
трубчатые и пластинчатые.
Рабочий элемент трубчатого отстойника - труба
диаметром 2,5-5 см и длиной около 1 м. Длина зависит от характеристики
загрязнения и гидродинамических параметров потока. Применяют трубчатые
отстойники с малым (10) и большим (до 60) наклоном труб.
Отстойники с малым наклоном трубы работают по
периодическому циклу: осветление воды и промывка трубок. Эти отстойники
целесообразно применять для осветления сточных вод с небольшим количеством
механических примесей. Эффективность осветления составляет 80-85%.
Продолжительность работы отстойников практически
не зависит от диаметра трубок, но возрастает с увеличением их длины.
Стандартные трубчатые блоки изготовляют из
поливинилового или полистирольного пластика. Обычно применяют блоки длиной
около 3 м, шириной 0,75 м и высотой 0,5 м. Размер трубчатого элемента в
поперечном сечении составляет 5х5 см. Конструкции этих блоков позволяют
монтировать из них секции на любую производительность; секции или отдельные
блоки легко можно устанавливать в вертикальных или горизонтальных отстойниках.
Пластинчатые отстойники состоят из ряда параллельно
установленных пластин, между которыми движется жидкость. В зависимости от
направления движения воды и выпавшего (всплывшего) осадка, отстойники делятся
на прямоточные, в которых направления движения воды и осадка совпадают;
противоточные, в которых вода и осадок движутся навстречу друг другу;
перекрестные, в которых вода движется перпендикулярно к направлению движения
осадка. Наиболее широкое распространение получили пластинчатые противоточные
отстойники.
Рисунок 62 - Отстойники
Достоинства трубчатых и пластинчатых отстойников
- их экономичность вслед-ствие небольшого строительного объема, возможность
применения пластмасс, которые легче металла и не корродируют в агрессивных
средах.
Общий недостаток тонкослойных отстойников -
необходимость создания емкости для предварительного отделения легко отделимых
нефтяных частиц и больших сгустков нефти, окалины, песка и др. Сгустки имеют
нулевую плавучесть, их диаметр может достигать 10-15 см при глубине в несколько
сантиметров. Такие сгустки очень быстро выводят из строя тонкослойные
отстойники. Если часть пластин или труб будет забита подобными сгустками, то в
остальных повысится расход жидкости. Такое положение приведет к ухудшению
работы отстойника. Принципиальные схемы отстойников приведены на рисунке 0.
5.3 Выводы по пятой главе
В данном разделе были рассмотрены основные
вопросы безопасности жизнедеятельности и охраны окружающей среды. Был
произведен анализ опасных и вредных производственных факторов. Так же была произведена
разработка защитных мер при выбросе хлора. Кроме того, в этой главе были
рассмотрены основные задачи по защите окружающей среды, была предложена
установка горизонтального отстойника, для очистки сточных вод от
нефтепродуктов.
Заключение
В данном дипломном проекте была разработана
программная часть для системы автоматического контроля очистки сточных вод
после автомойки.
Были рассмотрены основы функционирования и
современные способы очистки сточных вод. А так же возможность автоматизации
этих процессов. Был произведен анализ существующих аппаратных (логических
программируемых контроллеров ПЛК) и программных средств для систем управления.
Разработана аппаратная часть управляющей системы
управления процессом очистки сточных вод автомойки.
Разработан алгоритм функционирования системы в
среде CoDeSys.
Разработан интерфейс визуального отображения в среде Trace
Mode 6.
Список литературы
автоматизация
очистка сточный вода
1. Лекции, по курсам
"Электроника" и "Технические измерения и приборы".
Харитонов В.И.
2. "Управление
техническими системами" Харитонов В.И., Бунько Е.Б., К.И. Меша, Е.Г.
Мурачёв.
3. "Электроника"
Савелов Н.С., Лачин В.И.
. Техническая документация по
мойке автомобилей МГУП "Мосводоканал".
. Журомский В.М. Курс лекций
по курсу "Технические средства"
. Казиник Е.М. - Методическое
указание к выполнению организационно экономической части - Москва, издательство
МГТУ МАМИ, 2006. - 36с.
. Сандуляк А.В., Шарипова
Н.Н., Смирнова Э.Е. - Методическое указание по выполнению раздела
"безопасность жизнедеятельности и охрана окружающей среды" - Москва,
издательство МГТУ МАМИ, 2008. - 22с.
. Техническая документация
МГУП "Мосводоканал"
. Стахов - Очистка
нефтесодержащих сточных вод предприятий хранения и транспорта нефтепродуктов
-Ленинград Недра.
. Ресурсы сайта
http://www.owen.ru.