Лаборатория геологических организаций

  • Вид работы:
    Курсовая работа (т)
  • Предмет:
    Строительство
  • Язык:
    Русский
    ,
    Формат файла:
    MS Word
    693,61 Кб
  • Опубликовано:
    2014-02-04
Вы можете узнать стоимость помощи в написании студенческой работы.
Помощь в написании работы, которую точно примут!

Лаборатория геологических организаций

Введение

Гражданское строительство одна из важных частей капитального строительства. На его долю приходится больше половины ежегодных капитальных вложений в народное хозяйство. Объектами массового строительства являются: жилые дома, образовательные учреждения, больницы и т.д.

Для возрастающих объемов гражданского строительства проведена огромная работа по коренному совершенствованию организации и методов строительства, создана крупная промышленность, поставляющая новые материалы и изделия.

Номенклатура изделий и материалов предприятий строительной индустрии включает разнообразные конструкции и детали из железобетона, стали, дерева, асбестоцемента, алюминия, пеноблоков, минераловатных и пенопластовых утеплителе.

Для изучения земляных пород было решено построить лабораторию геологических организаций. Финансирование обеспечивается из фонда государственного бюджета. Строительство ведётся из сборных ж/б конструкций по полнокаркасной схеме, что позволяет снизить трудоёмкость строительно-монтажных работ и тем самым снизить стоимость здания и сократить сроки ввода здания в эксплуатацию.

1. Исходные данные

Тема задания - Лаборатория геологических организаций.

Место строительства - г. Кыштым.

Вид грунтов - крупнообломочные.

Климатический район строительства - I В.

Класс здания - II.

Степень долговечности - II.

Степень огнестойкости - II.

Температура 1 х.с. с обеспеченностью 0,92 - -38°С.

Температура 5 х.с. с обеспеченностью0,92 - -34°С.

Температура внутреннего воздуха - +20°С.

Отопительный период - 218 суток.

Относительная влажность воздуха внутри здания - нормальная (50-60%).

Зона строительства по влажности - сухая.

Условия эксплуатации строительных конструкций - А.

Нормативная глубина промерзания грунтов - 1,9 м.

Месяц

С

С-В

В

Ю-В

Ю

Ю-З

З

С-З

Январь

7

3

2

7

20

38

10

13

Июль

20

12

7

5

7

12

12

25


2. Инженерное оборудование

Водопровод - хозяйственно-производственный от внешних сетей, напор на вводе 25м.

Канализация - бытовая производственная, дождевая во внешние сети.

Отопление - центральное. Теплоемкость воды с температурой 150° - 170°С.

Вентиляция - приточно-вытяжная с механическим побуждением.

Электроснабжение - от внешних сетей напряжения 380/220В

Устройства связи - телефон, рация от внешних сетей.

3. Объемно-планировочное решение

Количество этажей - 1;

Высота этажа - 3,3м;

Высота здания - 4,4м;

Количество пролётов - 3

Ширина пролёта - 6,0м

Шаг колонн - 6,0м;

Ширина здания - 180м

Длина здания -30,0м

Конструктивная схемаздания - полнокаркасная.

Пространственная жёсткость здания обеспечивается за счёт фундаментов, колонн каркаса, ригелей, плит покрытия и диафрагмы жесткости.

Экспликация помещений.

Наименование

Площадь, м2

Тип пола

6.

Склады

206,80

Мозаичный

7.

Механическая мастерская

56,90

Мозаичный

8.

Дробильный цех

110,90

Мозаичный

15.

Венткамера

121,10

Мозаичный

16

Душевая

4,8

Керамический

17.

Коридор

45,0

Мозаичный

18.

Тамбур

1,65

Мозаичный


4. Технико-экономические показатели


5. Описание генплана

Проектируемое здание находится на территории геологической организации.

Кроме проектируемого здания на генплане запроектированы: административно-бытовой корпус, проход, материальный склад с навесом, гараж, склад ГСМ, трансформаторная подстанция, контрольно-пропускной пункт, временная парковка. Кроме этого запроектированы: газоны, тротуары, дороги и проезды. Все здания на генплане запроектированы с учётом санитарно-гигиенических и противопожарных с учётом СНиП.

Ширина проездов: 10,0 м; ширина тротуаров: 4,0 м; ширина газонов: 4,0м, 6,0м, 8,0м, 10,0м, 17,0м, 28,0м. радиус поворота: 8,0м.

Плановая привязка проектируемого здания осуществляется к зданию АБК в створе по оси ”А”на расстоянии 10 м к оси”

После строительства выполняется благоустройство территории:

восстанавливается плодородный слой почвы;

оформляются газоны и цветники;

высаживаются деревья и кустарники определенных пород;

асфальтируются проезды и дороги и расставляются малые формы.

Территория генплана планируется таким образом, чтобы обеспечить быстрый сток атмосферной воды в ливневую канализацию города.

6. Характеристика грунтов

В основании фундаментов залегают крупнообломочные грунты. Это несвязные грунты разрушенных скальных пород с содержанием частиц крупностью более 2-х мм более 50%. К ним можно отнести: гравий, гальку, дресву, щебень. Они являются хорошим основанием под фундаменты. Это непучинистые, непросадочные и непластичные грунты, и являются хорошим основанием подфундаменты. Под нагрузкой они дают быструю и равномерную осадку, которая прекращается через полгода.

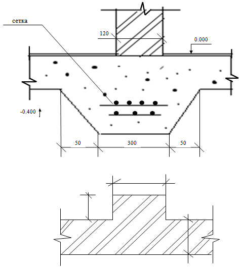
7. Глубина заложения фундаментов

Глубина заложения фундаментов назначается по СНиП 2.02.01-83* «Основание зданий и сооружений» и зависит от нагрузки здания, от конструктивных особенностей здания, от вида и свойства грунтов, от рельефа местности, от наличия грунтовой воды и ее свойств. Т.к. в основании фундаментов залегают непучинистые грунты, то глубина заложенияне зависит от промерзания и назначается конструктивно. Окончательно глубина заложения фундаментов принята на отметке -1,350относительно отметки 0,000.

8. Фундаменты

Серия1.020-1.

Фундаменты - приняты сборные, столбчатые, которые состоят из сборных, ж/б стаканов и цокольных балок.

Технические характеристики: армирование подошвы принято сварными сетками из арматурной стали классов А-III на контактной точечной сварке. Для сопряжения фундаментов с противопросадочными диафрагмами. В фундаментах предусмотрены шпонки и арматурные выпуски из стали классов А-II, А-III ГОСТ5781-75.

Эскиз

Марка

Размеры, мм

Расход материалов

Масса, кг

Кол. Шт.



L

H

C

Бетон,м3

Сталь, кг



Рис. 1 Рис. 2

1Ф15.8-1 1Ф18.8-1

1500 1800

750 750

450 450

1,00 1,40

15,25 21,35

2500 2500

12 12


. Цокольные балки

Серия:1.030.1-1

Балки приняты сборные, керамзитобетонные.

Марка Изделия.

Размеры мм.

Расход материалов.

Масса Изделия, Т.


L

H

В

Бетонм3

Цементный раствор

Сталь, кг.








Натур.

Привид. к кл. А-1


БЦ60.53,5

5980

460

350

0,98

-

35,11

49,85

1,47


. Колонны каркаса

Колонны приняты сборные, ж/б по серии 1.020-1/83. вып.5, типоразмеров-5.

Эскизы

Марка

Габаритные размеры

Масса, кг

Количество



H

h

h1



Рис. 3

1КД 3.36

4450

4150

-

1035


Рис. 4

1КО 3.36

4450

4150

-

1018



. Ригели

Ригели приняты сборные ж/б серии 1020-1/83. М300.

Эскиз

Марка

Габаритные размеры, мм.

Масса, кг.



D

B

H


Рис. 5 а) б)

РДП4.56-90AI

5565

565

450

2350

Рис. 6

РОП 6.56-45

5560

597

450

3250


. Диафрагма жёсткости

Технические характеристики:

Бетон тяжелый, вертикальная арматура из стали А-III, горизонтальная арматура из стали класса Вр-I.

Диафрагма жесткости армируется сетками, отдельными каркасами, стержнями.

Номенклатура диафрагмы жесткости.

Эскиз

Марка

Габаритные размеры, мм

Расход материалов

Марка бетона

Масса, т



L

H

Бетон, м3

Сталь, кг








Натур.

Привид. к кл. А-1



Рис. 7

2Д.26.36

2560

3270

1,62

162,20

195,30

250

4,05



Рис. 7

13. Стены

Стены приняты панельные и кирпичные.

Панельные стены приняты однослойные керамзитобетонные по серии 1.030.1-1.

Технические характеристики:

Бетон легкий на пористых заполнителях М100.

Наружный отделочный слой - цементный раствор М100.

Внутренний отделочный слой - цементный раствор марки М50.

Вертикальная и горизонтальная арматура из стали класса А-IIIи Вр-I. В закладных деталях применяется сталь класса А-III, полосовая сталь марки ВС3ПС6, угловая сталь марки ВТс3кп2 и швеллер марки Вст3кп2.

Марка

Размеры, мм

Расход материалов

Масса

Кол-во шт


L

H

B

Бетон,

Цем. р-р

Сталь, кг








Нар.слой

Вн. слой

Натур

Привет к КЛ АI



ПС60.12.4,0

5980

1185

400

2.59

0,14

0,11

37,22

52,46

4,22

5

ПС60.12.4,0

5980

1285

400

2,42

0,15

0,12

35,79

50,79

4,03

1

2ПС12.12.4,0

1180

1185

400

0,51

0,03

0,02

4,13

5,68

0,83

4

2ПС6.18.4,0

580

1785

400

0,38

0,02

0,02

3,38

4,66

0,62

8

3ПС61.120.4,0

610

1185

400

0,35

0,03

0,01

3,54

4,89

0,58

4

3ПС61.150,4,0

610

1485

400

0,44

0,04

0,01

4,15

5,92

0,72

4

3ПС61.180.4,0

610

1785

400

0,53

0,04

0,01

4,77

6,83

0,88

4


Кирпичные участки наружных стен в панельных зданиях приняты облегченной кладки многорядной системой перевязки толщиной 380 мм. Марка кирпича М150, марка раствора М50.

14. Плиты покрытия и перекрытия

Приняты: многопустотные для несейсмических районов строительства.

Серия:1.141-1

Техническая характеристика: плиты перекрытия из тяжелого бетона марки М200.Изделия армированы пространственными каркасами. Арматура сеток и каркасов из которых собирается пространственный каркас принят из стали класса А-3 диаметром 6,8,10мм по ГОСТ 5781-82,Вр-1 диаметром 3,5мм по ГОСТ 6727-80.


Рис.

Марка плиты

Размеры, мм

Расход материалов

Масса, т



L

B

H

Бетон

Сталь, кг








Марка

Объем, м3

Натур.

Привед. к кл. А-I



8

ПК.56.15

5650

1490

220

200

1,04

71,5

127,5

2,6


9

ПК56.15

5650

1490

220

200

1,04

64,90

103,7

2,6


10

ПК56.9

5650

940

220

300

0,68

46,0

78,7

1,7



15. Перегородки

Перегородки приняты кирпичные, выполняются из обычного глиняного кирпича марки М125 на растворе марки М50, толщина перегородок принята 120мм. Для устойчивости перегородок армируется сетка через 7-10 рядов по высоте. Также для устойчивости перегородок устраиваются пилястры. Расшивка швов принята в пустошовку.

Рис. 11

16. Перемычки

Серия 1.038.1-1

Приняты перемычки брусковые.

Технические характеристики:

Перемычки выполнены из тяжелого бетона марки М200 (класс бетона В15).

Продольная арматура класса А-III по ГОСТ 5781-82 диаметром 6-14 мм или 20мм. Поперечная - класса В-Iпо ГОСТ 6727-80 диаметром 4 и 5 мм.

Рис. 12

Марка

Размеры, мм

Расход материалов.

Масса

Кол. Шт.


L

B

Н

Бетон, м3

Сталь, кг








Натур.

Привед. ККл А-I



1ПБ10-1

1030

120

65

0,008

0,31

0,46

20


1ПБ13-1

1290

120

65

0,01

0,41

0,6

25



17. Полы

№ помещения.

Тип полов.

Схема пола.

Наименование полов.

Площадь

6,7,8,15,17,18           Мозаичный пол по грунту.            1. Цементный р-р с мраморной крошкой-25.

.Цементный р-р - 15.

.Бетонное основание - 80.

.Утрамбованный грунт - 200.7-

--

--

-

-

18-



16               Керамический пол по грунту.       1.Керамическая плитка- 7мм.

.Цем.песч.р-р-10мм.

.Слой рубероида-3мм.

.Цем.песч.р-р по уклону 30мм.

.Бетоннаяподготовка М200-80.

6.Утрамбованный щебнем грунт-200.16-




18. Окна

Серия: ОП18-18Г

Окна приняты пластиковые с двухкамерными переплетами из ПВХ.

Рис. 13

19. Двери

Серия:24698-81

Двери входные в здание, тамбурные и служебные ГОСТ6629-88

Дверь однопольная, глухая. ДГ24-9













Рис. 14

Внутренние двери ГОСТ6629-88. ДГ 21-9 Дверь в уборную, душевую ГОСТ6629-88 ДГ 21-6










Рис. 15                                                                Рис. 16

20. Входные площадки

Входные площадки выполняются монолитные из бетона марки М200. Толщина площадок принимается 200мм

Бетон укладывается на слой рубероида или пленке, которые укладываются на слой утрамбованного щебнем грунта.

Размер площадок - 1,2*1,5.

21. Пожарные лестницы

Рис. 17

22. Крыши

лаборатория фундамент ригель покрытие

Крыша принята совмещенная не вентилируемая, слои кровли приняты по СНиП и состоят из:

Слой гравия, втопленного в битум -10мм;

Гравий принимается по ГОСТ 8268-84* с фракцией зёрен размером 5-10мм и маркой морозостойкости М 75.

-хслойный кровельный ковер из бикроста;

Верхний слой марки СКП - 4,5;

Нижний слой марки СПП - 3,5;

Выравнивающая ц/п стяжка (М50,t=15мм)

Утеплитель жесткая минплитар=300кг/м3

Пароизоляция (слой рубероида, наклеенного на горячий битум).

Ж/б плита покрытия ПК 56.15.

Водоотвод принят внутренний организованный.Количество воронок принято по СНИП - 2 шт.

Рис. 18

23. Козырьки входов

Серия 1.238-1

Технические характеристики:

Бетон тяжелый марки М200. Козырьки входов армированы пространственными каркасами с продольной арматурой из стали марки А-III (ГОСТ 5781-82).

Указания по применению:

Ж/б козырьки входов предназначены для общественных зданий и зданий административно-бытового назначения со стенами из кирпича или крупных блоков.

Марка

Размеры, мм.

Расход материалов.

Масса, кг.


L

B

Бетон, м3.

Сталь, кг


КВ18.22

1840

2200

0,42

35,6

1050


Рис. 19

24. Отделка

Наружная отделка:

Стеновые панели имеют фактурный слой заводского изготовления. Выполняется заделка дефектов панелей и расшивка швов, двери окрашиваются маслеными красками темных тонов.

Внутренняя отделка:

Колонны, ригели, плиты покрытия и перекрытия, стеновые панели и диафрагма жесткости затираются, кирпичные участки стен и перегородки штукатурятся. Потолки во всех помещениях окрашиваются водоэмульсионной краской белого цвета.

В душевой выполняется облицовка глазурованной плиткой на всю высоту помещения.

В остальных помещениях выполняется окраска стен и перегородок водоэмульсионной краской с добавлением цветовых колеров. Двери окрашиваются маслеными красками светлых тонов.

Все металлические изделия и закладные детали окрашиваются кузбаслаком.

Список литературы

1.       П.Г. Буга “Гражданские, промышленные и с/х здания”, М., Высшая школа, 1987 г.

.        А.С. Коников “Гражданские, промышленные, и с/х здания” М., Стройиздат, 1980 г.

.        Т.Г. Маклакова “Конструкции гражданских зданий”, М., Стройздат, 1986 г.

.        Р.И. Шерешевский “Конструирование гражданских зданий” М., Стройиздат, 1980 г.

.        Г.И. Горчаков “Строительные материалы”, М., Высшая школа, 1981 г.

.        СНиП 2.02.0183* “Основания зданий и сооружений”, М., Стройиздат, 1996 г.

.        СНиП П-3-79* “Строительная теплотехника”, М., Стройиздат, 1982 г.

.        СНиП П-7-81* “Строительство в сейсмических районах”, М., Стройиздат, 1995 г.

.        СНиП 2.09.04-87* “Административные и бытовые здания”, М., Стройиздат, 1994 г.

.        СНиП 2.03.13-88 “Полы”, М., Стройиздат, 1995 г.

.        СНиП 2.07.01-89 “Градостроительство”, М., Стройиздат, 1989 г.

.        СНиП П-26-76 часть II «Кровли», М., Стройиздат, 1978 г.

.        Л.Н. Попов “Строительные материалы и детали” М., 1982 г.

Похожие работы на - Лаборатория геологических организаций

 

Не нашли материал для своей работы?
Поможем написать уникальную работу
Без плагиата!
Без нейросетей!