Розробка проекту ЛМ 10Base-2 Ethernet на 31 абонент
Міністерство освіти і науки, молоді
та спорту України
Одеський національний політехнічний
університет
ІРТ
Кафедра ЕЗІКТ
Пояснювальна записка
до курсової роботи
з дисципліни:
«Комп’ютерні мережі»
На тему: «Розробка проекту ЛМ
10Base-2 Ethernet на 31 абонент»
Виконав: ст.
гр. РІ-101
Ніколов І.М.
Перевірив:
Доц..
Єфіменко А.А.
Одеса 2012
Зміст
1. Вступ
. Аналіз технічного завдання та напрацювання
напрямків проекту
. Особливості використання та основні
характеристики розробляємої ЛМ
. Опис топології мережі
. Опис середи передачі даних
. Проектування структурної схеми мережі
. Вибір типу мережевого обладнання
. Вибір мережевих та програмних засобів
. Проектування конфігурації, розташування
обладнання
.1 План приміщень по поверхах
.2 Електричне з’єднання обладнання
.3 Схема розташування обладнання та прокладення
кабелів у приміщеннях
.4 Оцінка конфігурації мережі
Висновки
Ілюстративні матеріали
Список використаної літератури
1. Вступ
Способів і засобів обміну інформацією за останнім часом запропоновано
безліч: від найпростішого переносу файлів за допомогою дискет до всесвітньої
комп’ютерної мережі Інтернет, здатної всі комп’ютери миру. Яке ж місце у цій
ієрархії приділяється локальним мережам?
Існує багато визначень того, що таке локальна мережа, але
,напевно, найбільш точно було б визначити як локальну таку мережу, що дозволяє
користувачам не відчувати зв'язки. Ще можна сказати, що локальна мережа повинна
забезпечувати прозорий зв'язок. По суті, комп'ютери, зв'язані локальною
мережею, поєднуються в один віртуальний комп'ютер, ресурси якого можуть бути
доступні всім користувачам, причому цей доступ не менш зручний, чим до
ресурсів, що входять безпосередньо в кожен окремий комп'ютер. Під зручністю в
цьому випадку розуміється висока реальна швидкість доступу, швидкість обміну
інформацією між додатками, практично непомітна для користувача. При такому
визначенні стає зрозуміло, що ні повільні глобальні мережі, ні повільний
зв'язок через послідовний або паралельний порти не попадають під поняття локальної
мережі.
Метою цієї роботи є розробка проекту локальної мережі 10Base-2 Ethernet. 10Base-2 також відома, як “thin Ethernet” - це варіант Ethernet, який використовує у якості
середи передачі даних тонкий коаксіальний кабель.
. Аналіз технічного завдання та напрацювання напрямків
проектування
Проаналізувавши завдання, ми бачимо, що ЛМ, яку ми проектуємо
є автономною системою з доступом до глобальної мережі Internet. Цю можливість ми реалізуємо
підключивши до мережі Internet лише один сервер, який буде надавати абонентам доступ до
мережі.
Сервери, крім підключення абонентів до мережі Internet, повинні виконувати ще одну
функцію - створення бази даних з наданням відповідних послуг робочім станціям.
Виходячи з умов функціонування мережі, доцільно мати якнайменше
2 сервери: один - для підключення до глобальної мережі Internet, другий - для управління базою
даних. Так як сервери - це недешеве обладнання, вони повинні мати обмежений
доступ, тому їх слід розмістити в окремій кімнаті.
ЛМ розташовується у 13 кімнатах. Кількість абонентів 31, з
них 2 сервери, тому маємо 29 робочих станцій. Виділивши під серверну одну
кімнату, розподіл робочих станцій по кімнатам проведений таким чином:
· 2 комп’ютерних класи по 8 машин
· бібліотека - 3 комп’ютери
· вчительська - 2 комп’ютери
· кабінет директора, секретаря, завуча
та 5 учбових кабінетів по одному комп’ютеру
Кількість розміщених комп’ютерів в кімнатах цілком відповідає
санітарним нормам і допускає при необхідності розширення мережі.
Безперебійне живлення обладнання передбачимо у кабінеті
секретаря до якого під єднаємо комп’ютер секретаря та комп’ютер завуча з
сусідньої кімнати, для збереження інформації на випадок перебоїв в
електропостачанні.
Три принтери розмістимо у вчительській, кабінеті секретаря та
у кабінеті завуча.
Згідно з типом ЛОМ та кількістю абонентів доцільно розбити
проектуєму ЛОМ на 3 сегменти. Це ще надає можливість для подальшого розширення
мережі.
Таким чином, можна зробити висновок про можливість реалізації
мережі 10Base - 2 Ethernet
за характеристик і умов, визначених завданням.
. Особливості використання та основні характеристики
розробляємої ЛМ
мережа обладнання програмний електричний
Ethernet 10Base2 - локальна мережа, яка відноситься до класу
10Base2, її також іноді називають Thin Ethernet, є прямою
"спадкоємицею" мереж 10Base5.
Правила застосування технології 10Base-2:
· сегменти мережі з’єднуються між собою
репітерами (максимум 4).
· комп’ютери можуть бути підключені
тільки до трьох сегментів магістрального кабелю. Два сегменти служать для
збільшення діаметру ЛОМ.
· підключення комп’ютерів здійснюється
за допомогою Т-конекторів.
· максимальна довжина сегмента - 185 м.
· вживаний кабель - RG-58 (хвильовий
опір 50 ом).
· на кінцях кабельного сегмента повинні
бути встановлені термінатори.
· максимальна кількість комп’ютерів на
кабельному сегменті - 30 (вважаючи підключені до кабелю, але не задіяні
Т-конектори).
· максимальна кількість комп’ютерів на
всіх сегментах мережі - 1024.
· мінімальна довжина кабельного
сегмента - 0.5 м.
· максимально довжина мережі - 925 м.
.Опис топології мережі
Стандарт для мережі 10 Base 2 Ethernet визначає використання
шинної топології як базової .
Однак при значній кількості абонентів та відповідній
архітектурі приміщення може використовуватись комбінація базових топологій, а
саме зірково - шинна топологія .
Для вибору конкретної топології розглянемо їх характеристики
та особливості.
Топологія “шина” завдяки своєї структурі передбачає ідентичність
мережевого обладнання комп’ютерів, а також рівні права усіх абонентів. При
такому з’єднанні комп’ютери можуть передавати тільки по черзі, так як лінія
зв’язку одна. Інакше інформація, яка передається, буде спотворюватись в
результаті накладення сигналів.
Шині не заважають відмови окремих комп’ютерів, так як всі
останні комп’ютери мережі можуть нормально продовжувати обмін.
Через особливість розповсюдження електричних сигналів по
„довгих” лініях зв’язку необхідно передбачати включення на кінцях шини
спеціальних узгоджуючих пристроїв - термінаторів. Інакше, тобто без включення
термінаторів, сигнал відбивається від кінця лінії і спотворюється так, що
зв’язок по мережі стає неможливим.
Використання зірково - шинної топології має свої переваги,
які більше відчуваються зі зростанням розмірів мережі:
- більш раціональне використання трьохповерхового
розміщення приміщень;
- можливість утворення декількох сегментів, які є
незалежними при відмові ліній зв’язку в інших сегментах;
можливість використання загальних вузлів, таких як
сервери, принтери, комутатори, що значно здешевлює мережу;
вихід до глобальної мережі значно спрощується за
рахунок використання загального сервера та шлюзу.
.Опис середи передачі даних
Згідно зі стандартом для мережі 10 Base 2 Ethernet середа передачі інформації
визначена - тонкий коаксіальний кабель. Використання коаксіального кабелю
пов’язане з високою завадозахищеністю (завдяки металевій оплітці), а також
більш високими, в порівнянні зі скрученою парою, допустимими швидкостями
передачі даних (до 500 Мбіт/с) і більшими допустимими відстанями передавання .
До коаксіального кабелю важче підключитись для
несанкціонованого прослуховування мережі, він також дає значно менше
електромагнітних випромінювань зовні.
З іншої сторони, монтаж та ремонт коаксіального кабелю значно
складніше, ніж скрученої пари, а вартість його вище.
Основне використання коаксіальний кабель знаходить в мережах
з топологією типа “шина”. При цьому на кінцях кабелю обов’язково повинні
встановлюватись термінатори для запобігання внутрішніх відбивань сигналів,
причому один із термінаторів повинен бути заземленим. Без заземлення металева
оплітка не захищає мережу від зовнішніх електромагнітних завад і не знижує
випромінювання в зовнішню середу інформації, яка передається по мережі.
З іншої сторони, заземлювати оплітку в двох або більше точках
не можна, так як може вийти із ладу мережеве обладнання і робочі станції.
Термінатори повинні бути обов’язково узгодженні з кабелем, тобто
їх опір повинен дорівнювати хвильовому опору кабелю. Частіше всього для
локальних мереж використовується кабель з хвильовим опором 50 Ом. Відповідно і
опір термінаторів повинен дорівнювати 50 Ом.
Класична шинна топологія дуже зручна, вона не потребує використання
додаткових пристроїв - концентраторів.
Тонкий коаксіальний кабель має діаметр близько 5 мм, і є
достатньо гнучким, що робить роботу з ним набагато зручнішою, ніж з товстим
кабелем.
Підключення до тонкого коаксіального кабелю проводиться за
допомогою BNC Т-конекторів.
Тонкі кабелі можуть використовувати різні матеріали і мати
різні конструкції, що впливає на величину затримки розповсюдження сигналу
(середнє значення складає близько 5 нс/м) та величину загасання сигналу, а
значить і допустиму довжину кабелю у мережі.
Звичайно використовують у якості ізоляторів тефлон,
поліетилен та полівінілхлорид.
Існують варіанти конструкції коаксіального кабелю з подвійним
екраном для забезпечення кращої завадостійкості та захисту від прослуховування.
Але така конструкція приводить до здороження кабелю.
Таким чином, тонкий коаксіальний кабель - це сама дорога
середа передачі, але він забезпечує кращу завадостійкість, менше загасання та
вищу механічну міцність.
.Проектування структурної схеми мережі
Структурна схема мережі 10Base-2 Ethernet на 31
абонент.
Умовні позначення:
ПК - робоча станція;
С - сервер;
К - комутатор; ДБЖ - джерело
безперебійного живлення;
ГМ - глобальна мережа;
П - принтер; Ш - шлюз;
Аналізуючи схему, робимо наступні висновки, які пов’язані з
виконанням технічного завдання:
. Абоненти (робочі станції) розподілені рівномірно по
поверхах та кімнатах;
. Передбачена можливість підключення до Internet . Для цього
використовується окремий сервер С1 та шлюз;
. Забезпечене безперебійне живлення серверів,шлюзу, та
робочих станцій у кабінетах секретаря та завуча, що дає можливість
функціонування Internet, бази даних при відсутності напруги в мережі живлення;
. Передбачено три принтери, які розташовані у вчительській,
бібліотеці та кабінеті секретаря;
. Сервер С2 є файл-сервером і використовується для створення
бази даних.
. Використання двох серверів дозволяє розділити їх функції і
не створювати затримок в роботі мережі.
. Кількість сегментів дорівнює трьом і задовольняє завданню.
Отже, можна зробити висновок, що схема задовольняє завданню.
. Вибір
типу мережевого обладнання
Середа передачі даних. В якості середи передачі даних
використовуємо тонкий коаксіальний кабель типу RG-58(кабель, який використовується за стандартом 10Base-2 Ethernet). Для з’єднання частин кабелю, а також для підключення до
мережевого адаптеру комп’ютера використовуються BNC конвектори з хвильовим опором 50 Ом. Для
підключення робочої станції до шини використовуються BNC T-коннектори, також на
50 Ом. На кінцях кожного шинного сегменту за допомогою тих же самих BNC коннекторів приєднуються
термінатори з активним опором 50 Ом.
Комутатор. Використаємо комутатор D-link DES-1026G оснащений
двадцятьма чотирма портами 10/100. Також у ньому є 2 слоти розширення для
гигабітних модулів (minigbic). Світч підтримує технологію POE і може
вмонтовуватися в стек. Є розширений набір програмного забезпечення.
Сервери. Кількість серверів обмежена двома. Один сервер
обслуговуватиме базу даних, другий забезпечуватиме зв'язок із глобальною
мережею. Використаємо два сервери HP ProLiant MicroServer(AMD Turion II Neo N40L 1.5 ГГц, 2 Gb DDR3, 250 Gb HDD). Сервери з не дуже високою частотою
процесору та не дуже великим об’ємом жорсткого диску, тому що ніяких глобальних
задач перед ними не буде ставитись, також це набагато зменшить їх ціну.
Мережеві адаптери. Використаємо мережеві адаптери Edimax
EN-9260TXE. Вони відрізняються від мережевих адаптерів інших виробників своєю
надійністю та низькою ціною.
Джерело безперебійного живлення(ДБЖ). Для під’єднання
комп’ютерів секретаря та завуча використаємо ДБЖ APC Back-UPS CS 650VA (вихідна
потужність 650 ВА / 400 Вт, час роботи при повному навантаженні 5 хв., при
половинному 15 хв. ) - цілком достатньо для «нормального вимкнення комп’ютера».
Для серверної кімнати використаємо ДБЖ Powercom KIN-1500AP RM
(кількість розеток -7, вхідна потужність 1500 ВА / 900 Вт, час роботи при
повному навантаженні - 12-180 хв. в залежності від навантаження), цієї
потужності достатньо для підтримки роботи комутатора та обох серверів на деякий
час, для коректного завершення усіх процесів у мережі.
Принтери. Принтери марки Canon модель Pixma MP 280 - надійні, не дуже дорогі та дешеві в обслуговуванні.
Для з’єднання розроблямої локальної мережі з глобальною
мережею використовується шлюз. Це пристрій для з’єднання різних мереж з
протоколами, які сильно відрізняться, що ми маємо в даному випадку.
. Вибір мережевих програмних засобів
Операційна система(ОС). На робочих станціях використаємо ОС
на базі Linux Ubuntu 11.10. В цій операційній системі вже є вмонтовані
програмні та мережеві засоби, є безкоштовний набір офісних програм. Також є
необхідні програми для узгодження операційної системи з мережевими адаптерами.
Для роботи у мережі Інтернет використаємо браузер Google Chrome, який безкоштовно розповсюджується
для ОС Ubuntu 11.10.
Серверна операційна система. Для обох серверів використаємо
операційну систему також на базі Linux, але орієнтовану для серверного
обладнання, це операційна система Ubuntu Server
11.10. У ньому вже вбудовані необхідні мережеві та програмні засоби, а також
набір програмного забезпечення для адміністрування серверів, створення та
ведення баз даних та ін..
Вибір операційних систем Ubuntu мотивований по перше тим, що
вони розповсюджуються безкоштовно, по друге тим, що для цієї ОС дуже багато
вільного програмного забезпечення. Тому для такої організації як
школа,економічно це дуже вигідно.
.
Проектування конфігурації, розташування обладнання та розведення мережі
.1 План приміщень по поверхах
Відповідно до технічного завдання організація, на якій
створюється ЛОМ, розташовується на трьох поверхах багатоповерхового будинку.
Кількість кімнат по поверхах наступна: 3,5,5. Кімнати розташовані з обох сторін
будинку.
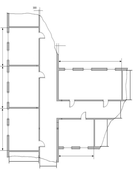
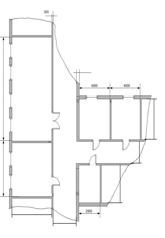
Рисунок 9.1.1 План приміщень першого поверху.
Рисунок 9.1.2 План приміщень другого поверху.
Рисунок 9.1.3 План приміщень третього поверху.
Рисунок 9.1.4 План приміщень у розрізі.
Розташування обладнання в приміщеннях :
· Вчительська - 2 ст., принтер
· Бібліотека - 3 ст.
· Кабінет директора - 1 ст.
· Секретар - 1 ст.,принтер, ДБЖ
· Завуч - 1 ст.,принтер
· Серверна - 2 сервера, комутатор, ДБЖ,
шлюз.
· Кабінет №2 - 1 ст.
· Кабінет №3 - 1 ст.
· Кабінет №4 - 1 ст.
· Кабінет №5 - 1 ст.
· Кабінет інформатики №1 - 8 ст.
· Кабінет інформатики №2 - 8 ст.
Загальна кількість робочих станцій, включно з серверами
складає 31. У вчительській, кабінеті секретаря та кабінеті завуча до робочих
станцій підключені по одному принтеру.
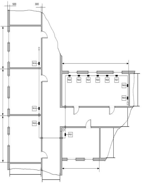
.2 Електричне з’єднання обладнання
Виконується за допомогою тонкого коаксіального кабелю у
відповідності до структурної схеми ЛОМ та нормативних вимог до мережі Ethernet.
На кожному з трьох поверхів в кімнатах вздовж стін на
відстані 200 мм від стелі прокладається кабель і закріплюється в пластмасових
коробах. На кінцях кабелю приєднуються термінатори. З’єднання поверхових сегментних
кабелів з комутатором, який розташований на другому поверсі, відбувається через
міжповерхові перекриття, в яких пробиваються отвори. Отвори і прокладення
кабелів відбувається в бібліотеці,серверній кімнаті та у кабінеті №5, які
розташовані одна під одною. Це зменшує довжину з’єднувальних кабелів.
З урахуванням мінімальної відстані між точками підключення
обладнання до кабелю, його максимальна довжина в кожному сегменті розгляданих
поверхів складає: 1й поверх - 18м., 2й поверх - 60м., 3й - 42м..
.3 Схема розташування обладнання та прокладення кабелів у
приміщеннях
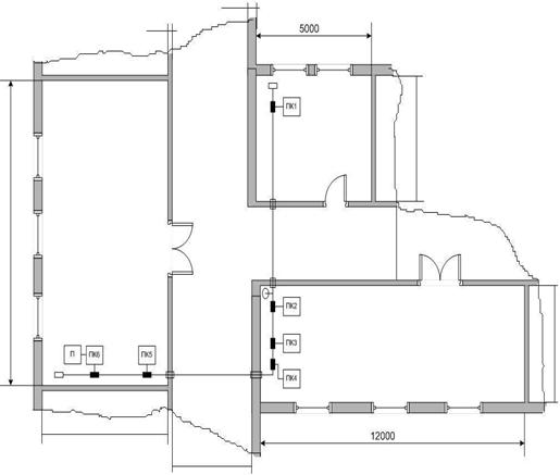
Схема розташування обладнання та прокладення кабелів у
приміщеннях першого поверху представлена на рисунці 9.3.1.
Схема розташування обладнання та прокладення кабелів у
приміщеннях другого поверху представлена на рисунці 9.3.2.
Схема розташування обладнання та прокладення кабелів у
приміщеннях третього поверху представлена на рисунці 9.3.3.
Рисунок 9.3.1 Розташування обладнання на першому поверсі.
Рисунок 9.3.2 Розташування обладнання на другому поверсі.
Рисунко 9.3.3 Розташування обладнання на третьому поверсі.
На схемах використовуються наступні умовні позначення:
-
термінатор; ПК - робоча станція; П - принтер;
- Т-Конектор; С- сервер; К - комутатор;
ДБЖ- джерело безперебійного живлення.
.4 Оцінка конфігурації мережі
Проведемо аналіз виконання основних вимог стандарту до
розробляємої мережі:
довжина значно менше 925 м;
кількість абонентів значно менше 1024;
довжина кожного із трьох сегментів менше 185 м;
на кожному із трьох сегментів кількість абонентів менше 30;
відстань між точками підключення абонентів складає не менше
0,5 м. Завдяки такій збитковості у довжині кабелю закладена можливість
розширення мережі шляхом підключення додаткових робочих станцій без
перекладення кабелю;
повний шлях між двома будь-якими абонентами не включає в себе
більше п’яти сегментів, чотирьох концентраторів і двох трансиверів.
На підставі аналізу можна зробити висновок про те, що
комп’ютерна мережа спроектована правильно і є роботоздібною.
Висновок
Локальна мережа 10Base-2 Ethernet (також відома, як “thin
eternet”) - варіант Ethernet, який використовує в якості середи передачі даних
тонкий коаксіальний кабель типу RG-58, який закінчується BNC-конекторами.
Кожний сегмент кабелю під’єднан до робочої станції за допомогою T-коннекторів,
також на кінці кожного сегменту потрібно встановлювати термінатори з опором 50
Ом.
Назва 10Base-2 походить від деяких фізичних властивостей
середи передачі даних. Число 10 означає максимальну швидкість передачі даних -
10 Мбіт/с. Слово Base є скороченням від baseband (принцип передачі даних без
модуляції), а двійка є першою цифрою числа 200 - округлена максимальна довжина
сегмента мережі (точне значення - 185м.).
Спроектована мережа 10Base-2 Ethernet на 31 абонент
теоретично повинна працювати вправно та без ніяких ускладнень. При розробці
цієї мережі були дотримані всі обмеження, які складені за стандартом 10Base-2:
дотримані всі обмеження по довжині сегменту, довжині мережі, відстані між
сусідніми абонентами, максимальна кількість абонентів, а також враховані
санітарні норми при розташуванні обладнання у приміщеннях. Все обладнання
використовуване у мережі утверджено стандартом, забезпечує максимально добрі
результати за максимально низькою ціною.
Стандарти мережі 10Base-2 були укладені десь у 90-х роках 20
сторіччя. У роки створення цього стандарту та у наступний період мережі
10Base-2 мали велику популярність, але в останній час, вони «здають свої
позиції» новим удосконаленим стандартам передачі інформації. Зменшення
кількості мереж стандарту 10Base-2 пояснюється тим, що мережеві адаптери з
підтримкою цього стандарту практично не випускаються, також його нема на
інтегрованих у материнські карти мережеві адаптери.
Список використаної літератури.
. Методичні
вказівки «Комп’ютерні мережі».
2. #"724534.files/image013.gif"> <#"724534.files/image014.gif">
<#"724534.files/image015.gif">
Вилка пряма (папа) на коаксіальний кабель
Роз’єм під пайку. (RG-58)
<#"724534.files/image017.gif">
Роз’єм на кабель навинчивающийся (twist-on). Інструмент для
установки не потрібен
Терминатор
<#"724534.files/image020.jpg">
<#"724534.files/image022.jpg"> <#"724534.files/image023.jpg">
При відключенні пристрою Т-конектор необхідно залишати у
мережі, щоб не порушувати її працездатність, або заміняти Т-конектор на прямий
з’єднувач (I-connector).
Прямі
переходи
barrel-connector/I-connector, bulk-head connector

<#"724534.files/image028.jpg">
Застосовується для з'єднання двох шматків коаксіального кабелю з
розташованими на кінцях роз'ємами. А також для організації підведення
коаксіального кабелю до робочого місця, що б уникнути випадкового обриву або
небажаного перегину основного дроти.