Локальная вычислительная сеть офисного здания
Информатика,
ИКТ
Локальная вычислительная сеть офисного
здания
Введение
Современное общество обладает огромными ресурсами, важнейшим из которых
стала информация. Высочайщий рост объемов информационныхпотоков поставил перед
обществом новые задачи, связанные с хранением, обработкий и быстрой передачей
информации. Для решения которых были использованы компьютерные технологии.
По всему миру большенство компьютеров (порядка 80%) объединены в различные
информационно-вычислительные сети от малых локальных сетей в офисах до
глобальных сетей типа Internet.
Объединение компьютеров в сети представляет следующие возможности:
) быстрый обмена информацией между пользователями: получение и
передача сообщений (факсов, e-mail писем, электронных конференций и
т.д.) не отходя от рабочего места;
) мгновенное получение информации из любой точки земного шара;
) обмен информацией между компьютерами разных фирм производителей
работающих под разным программным обеспечением.
В настоящее время трудно представить какую либо организацию без
установленной в ней локальной сети, все организации стремятся модернизировать
свою работу с помощью локальных сетей.
У локальной сети есть следующие отличительные признаки:
высокая скорость передачи данных (до 10 Гб), большая пропускная
способность;
низкий уровень ошибок передачи (высококачественные каналы передачи);
эффективный быстродействующий механизм управления обменом данных;
- точно определенное число компьютеров, подключаемых к сети.
Объект исследования: локальная вычислительная сеть офисного здания.
Цель исследовательской работы: разработка логической и физической схемы
локальной вычислительной сети офисного здания, включающей общий выход в
Интернет.
Для достижения поставленной цели необходимо решить следующие задачи:
1) теоретический анализ сетевых технологий и сетевого оборудования;
2) выбор сетевой технологии;
) проектирование структурной схемы вычислительной сети;
) выбор сетевого оборудования;
) расчет капитальных затрат на проектирование сети;
6) составление таблицы маршрутизации данных в сети.
Актуальность исследовательской работы: повышение производительности и
эффективности работы отделов фирм, сокращение времени для передачи информации и
возможность одновременной работы над одним проектом при минимальных затратах
стоимости сетевого оборудования.
Методы исследования: анализ литературных источников, синтез, сравнение
сетевых технологий и сетевого оборудования, моделирование.
Техническое
задание
Цель работы.
Разработка логической и физической схемы ЛВС здания, включающую общий
выход в Интернет. Описание используемого сетевого оборудования и обоснование
выбора конкретного решения.
Технические требования к проектируемой ЛВС.
. Элементы ЛВС располагаются на 2, 3, 5 этажах трёхэтажного
здания. Количество фирм - 5, каждая на отдельном этаже. Количество сотрудников
в фирме - 30-80. количество подразделений - 3-8. Количество городских
телефонных линий - 4.
. Серверы расположены в отдельных помещениях. Трафик между фирмами
отсутствует. Стоимость оборудования сети (без стоимости компьютеров) должна
быть минимально возможной при условии обеспечения ее корректности и
масштабируемости. Допустимо использовать оборудование, поддерживающее протоколы
802.1P и 802.1Q.
1.
Выбор конфигурации вычислительной сети
На основании технических требований и анализа теоретического материала
при проектировании локальной вычислительной сети была выбрана технология Fast Ethernet (100BASE-T), появившаяся в 1995
году. Общее количество сетей, работающих по протоколу Fast Ethernet,
оценивается в несколько миллионов. Главная причина выбора технологии Fast Ethernet - стоимость сетевого оборудования. В
настоящее время сетевые карты Fast Ethernet с поддержкой пропускной способности 100/10 Мбит/сек и
концентраторы Fast Ethernet, сетевой
кабель (витая пара) UTP категории 5
или 4 имеют невысокую стоимость. Максимальная длина кабеля всей сети в целом
теоретически может достигать 300 метров, но практически не превышает 200
метров.
Для выхода в интернет планируется использование оптоволоконного кабеля с
типологией сети 100Base-FX, что позволит осуществить необходимую скорость
передачи данных.
2.
Проектирование структурной схемы вычислительной сети
В проектируемой сети необходимо соединить между собой 233 компьютера.
Применительно к стандарту Ethernet наиболее целесообразна организация локальной сети с топологией «дерево»
- комбинация нескольких «звезд». Топология «звезда» - это топология с явно
выделенным центром, к которому подключаются все другие абоненты.
В нашем случае компьютеры будут подключаться к 24-портовым коммутаторам,
а коммутаторы, в свою очередь будут соединены между собой 16-портовым головным
коммутатором.
Достоинством топологии «дерево», определившим наш выбор именно этой
топологии, является то, что сеть поделена на сегменты, соединённые в единую
систему, все точки, подключения которой стекаются в одно место. Это позволяет
легко контролировать работу сети, локализовать неисправности сети путем
простого отключения от ветки тех или иных абонентов, а также ограничивать
доступ посторонних лиц к жизненно важным для сети точкам подключения. Такие
изолированные неисправности легче обнаружить и устранить, чем в шинной
топологии. Схема конфигурации локальной сети с топологией «дерево» представлена
на рис.1.
Рис.1. Конфигурация локальной сети с топологией «дерево»
3.
Выбор сетевого оборудования
Для построения локальной сети предприятия потребуется следующее сетевое
оборудование:
маршрутизатор;
- кабель UTP категории 5e (витая пара неэкранированная) - физически
связывает компьютеры между собой;
оптоволоконный кабель - для обеспечения высокоскоростного доступа выхода
в Интернет;
коннекторы RJ 45;
концентраторы сети (24 портовые и 16-портовый).
Рассмотрим подробнее перечисленное сетевое оборудование.
3.1. Маршрутизатор
Маршрутизатор (router, роутер) - это сетевое устройство, которое
подключается между разными компьютерными сетями и организует обмен данными. При
построении домашней или небольшой офисной локальной сети маршрутизатор работает
как пограничное устройство между локальной сетью и интернетом.
Маршрутизатор выполняет сразу несколько функций: защищает локальную сеть
от проникновения злоумышленников извне, ограничивает доступ к определенным
сайтам для пользователей, также он позволяет автоматически назначать IP-адреса
в локальной сети.
Когда маршрутизатор получает пакет, он считывает адрес назначения и
определяет, по какому маршруту отправить пакет. Обычно маршрутизаторы хранят
данные о нескольких возможных маршрутах. Выбор маршрута зависит от нескольких
факторов, в том числе:
применяемой системы измерения длины маршрута (его метрики);
маршрутизируемого протокола высокого уровня.
Если в таблице маршрутизации для адреса нет описанного маршрута, пакет
отбрасывается.
Рис. 2. Маршрутизатор
3.2. Сетевые
карты
Сетевые карты отвечают за передачу информации между единицами сети. Любая
сетевая карта состоит из разъема (в нашем случае это разъем стандарта RJ-45)
для сетевого проводника и микропроцессора, что кодирует/декодирует сетевые
пакеты, а так же вспомогательных программно-аппаратных комплексов и служб.
Каждая карта имеет свой Mac адрес - уникальный идентификатор устройства. На
рисунке 3 представлен вид сетевой карты.
Рис.3. Сетевая карта, подключаемая к шине PCI
Во многие современные материнские платы сетевые карты уже встроены, что
позволяет экономить разъем PCI. В
разрабатываемой сети сетевые карты уже интегрированы в материнскую плату карты.
3.3
Коннекторы RJ-45
Коннекторы RJ 45 используются для оконечивания витой пары пятой
категории, сегодня одного из самых распространенных кабелей. В нем все 8
позиций идут с контактами, а такой кабель активно используется для построения
локальных сетей. На рисунке 4 представлен внешний вид коннектора RJ-45.
Рис.4. Коннекторы RJ-45
3.4
Коммутаторы
В настоящее время существует множество моделей и типов сетевых
коммутаторов, их цена и функции очень различаются. При выборе исходили из
минимальной стоимости устройства, которое будет отвечать требованиям сети
(скорость, количество портов, дополнительные возможности).(концентратор) -
когда сетевая карта отсылает пакет данных, Hub просто делит и усиливает сигнал
так, что его получают все пользователи сети, но принимает пакет только та сетевая
карта, которой он адресован, остальные его игнорируют. По сути, хаб это просто
усилитель сигнала. Фактически сколько бы не было портов у Hub, одновременно
соединиться смогут только две сетевые карты. Очевидно, что при одновременной
работе нескольких пользователей скорость сети резко падает, зачастую до
неприемлемо низких величин. В настоящее время концентраторы сняты с
производства и встречаются редко, однако название Хаб (Hub) плотно вошло в
компьютерный сленг, обозначая центральную единицу локальной сети.(коммутатор) -
более интеллектуальное устройство, где есть свой процессор, внутренняя шина и
буферная память. Если концентратор просто передает пакеты от одного порта ко
всем остальным, Switch анализирует Mac адреса, откуда и куда отправлен пакет
информации и соединяет только эти компьютеры, в то время как остальные каналы
остаются свободными. Это позволяет намного увеличить производительность сети,
так как уменьшает количество паразитного трафика и обеспечивает большую
фактическую скорость передачи данных, особенно в сетях с большим количеством
пользователей.
Для соединения компьютеров рабочих групп будут использоваться управляемые
коммутаторы D-Link DES-1100-24. Внешний вид указанного коммутатора
представлен на рисунке 5, в таблице 1 приведены его основные характеристики.
Рис. 5. Коммутатор D-Link DES-1100-24
Таблица 1 Общие характеристики коммутатора D-Link DES-1100-24
|
Тип устройства
|
коммутатор (switch)
|
|
Возможность установки в
стойку
|
есть
|
|
Объем флеш-памяти
|
1 Мб
|
|
LAN
|
|
Количество портов
коммутатора
|
24 x Ethernet 10/100
Мбит/сек
|
|
Внутренняя пропускная
способность
|
4.8 Гбит/сек
|
|
Размер таблицы MAC адресов
|
8192
|
|
Дополнительно
|
|
Поддержка стандартов
|
Auto MDI/MDIX,
IEEE 802.1p (Priority tags), IEEE 802.1q (VLAN)
|
|
Размеры (ШxВxГ)
|
280 x 44 x 125 мм
|
Головной управляемый коммутатор D-Link DES-1000-16 позволит соединить все коммутаторы сети.
Внешний вид коммутатора представлен на рисунке 6, основные характеристики
приведены в таблице 2.
Рис. 6. Коммутатор D-Link DES-1100-16
Таблица 2 Общие характеристики коммутатора D-Link DES-1000-16
|
Тип устройства
|
коммутатор (switch)
|
|
Возможность установки в
стойку
|
есть
|
|
Объем флеш-памяти
|
1 Мб
|
|
LAN
|
|
Количество портов
коммутатора
|
16 x Ethernet 10/100 Мбит/сек
|
|
Внутренняя пропускная
способность
|
3.2 Гбит/сек
|
|
Размер таблицы MAC адресов
|
8192
|
|
Управление
|
|
Web-интерфейс
|
есть
|
|
Дополнительно
|
|
Поддержка стандартов
|
Auto MDI/MDIX,
IEEE 802.1p (Priority tags), IEEE 802.1q (VLAN)
|
|
Размеры (ШxВxГ)
|
280 x 44 x 125 мм
|
3.5
Коммуникационные каналы
Кроме вышеназванных компонентов локальной сети является сетевой кабель,
посредством которого выполняется прокладка коммуникаций.
.5.1
Коаксиальный кабель
Коаксиальный кабель представляет собой электрический кабель, состоящий из
центрального медного провода и металлической оплетки (экрана), разделенных
между собой слоем диэлектрика (внутренней изоляции) и помещенных в общую
внешнюю оболочку. Скорость передачи данных до 10 Мбит/с.
Основные свойства:
высокая помехозащищенность;
широкая полоса пропускания (свыше 1 ГГц);
монтаж и ремонт коаксиального кабеля существенно сложнее, чем витой пары;
он дороже примерно в 1,5 - 3 раза по сравнению с кабелем на основе витых
пар;
сложнее и установка разъемов на концах кабеля;
допустимые расстояниями передачи информации (до километра).
Рис. 7. Виды коаксиального кабеля
.5.2.Витая
пара
Витая пара представляет собой несколько пар скрученных попарно
изолированных медных проводов в единой диэлектрической (пластиковой) оболочке.
Свивание проводов производиться с целью уменьшения электромагнитных помех.
Скорость передачи данных до 100 Мбит/с. и до 200 Мбит/с. в режиме full-duplex.
При использовании гигабитного оборудования достижимы скорости до 1000 Мбит.
Основные свойства:
довольно гибкий и удобный для прокладки сети;
относительно невысокая цена;
простота монтажа и ремонта.
Витая пара требует сравнительно малого расстояния между компьютерами,
поэтому её удобно применять в небольших сетях но, кроме того, витая пара может
использоваться в структурированных кабельных системах, как для локальных сетей,
так и для телефонной связи.
Существует неэкранированная и экранированная витая пара, помимо обычной
изоляции у второго типа витой пары существует защитный экран, по структуре и
свойствам напоминающий фольгу. При соответствующем заземлении экранированная
витая пара обеспечивает отличную защиту от электромагнитных помех, даже при
проводке вблизи электрораспределительного щитка и линий высокого напряжения
отмечалась стабильная работа сети на скоростях свыше 90 Мбит.
На рисунке 8 изображен сетевой кабель «витая пара».
Рис. 8. Сетевой кабель «витая пара»
Обжим
кабеля осуществляется с помощью специального обжимного инструмента (кримпера).
Обжимной инструмент («обжимка») позволяет обрезать кабель, удалить внешнюю
оболочку и закреплять разъемы (коннекторы) RG-45 на круглом
или плоском кабеле. Конструкция инструмента позволяет точно позиционировать
разъем и обжимную головку для соединения любых 4-х пар с ключевым или не
ключевым модульным разъемом.
[<#"722493.files/image009.gif">
Рис. 9. Оптоволоконный кабель
Проанализировав характеристики различных вариантов сетевого кабеля и
сравнив стоимость можно сделать следующий вывод. В разрабатываемой локальной
сети необходимо использовать «витую пару», так как кабель такого типа имеет
низкую стоимость, скорость передачи данных в 10 раз большую, чем у
коаксиального кабеля, есть возможность ремонта, более удобен в установке.
Очевидно, что оптимальным по всем характеристикам и стоимости для использования
в домашних сетях является витая пара. Характеристики и стоимость сетевого
кабеля приведены в таблице 3.
Таблица 3. Характеристики и стоимость сетевого кабеля
|
Тип Кабеля
|
Скорость передачи данных,
Мбит/с.
|
Макс. официальная длинна
сегмента, м.
|
Макс неофициальная длинна
сегмента. м.
|
ремонтопригодность
|
помехоустойчивость
|
Сложность установки
коннекторов к сетевым картам.
|
Стоимость
|
|
Витая пара
|
100
|
250
|
200
|
Хорошая. С помощью
подручных средств
|
Низкая
|
Низкая
|
Низкая
|
|
коаксиальный кабель
|
10
|
185
|
200
|
Средняя
|
Очень Высокая
|
Средняя (не
Ethernet)
|
Низкая
|
|
Оптико-волоконный кабель
|
100
|
Свыше 2000
|
До 3000
|
Плохая. Требуется пайка
|
-
|
-
|
Высокая
|
|
2000
|
|
|
|
|
|
|
Для обеспечения надежной работы сети при авариях электропитания любое
сетевое оборудование подключается через источник бесперебойного питания (ИБП).
4.
Построение схемы кабельной разводки
Большое значение для обеспечения качественной связи имеет кабельная
разводка. Сеть проектируется по стандарту 100Base-TX,
что обеспечить передачу данных со скоростью 100 Мбит/с. Стандарт 100Base-T использует 2 витые пары кабеля UTP категории 5. Максимально допустимое расстояние от
станции до коммутатора составляет 200 м, а диаметр сети стандарта 100Base-T ограничен 250 м. Связь каждой рабочей станции с коммутатором
осуществляется с помощью неэкранированной витой пары 5 категории. Для этого со
стороны коммутатора и со стороны сетевой платы ПК имеется разъем RJ-45. Для связи ПК в рабочие группы
используются 24-портовые управляемые коммутаторы, причем в каждом коммутаторе
предусмотрены резервные порты. Один коммутатор позволяет связать в сеть
несколько отделов. Между собой коммутаторы соединены 16-портовым управляемым
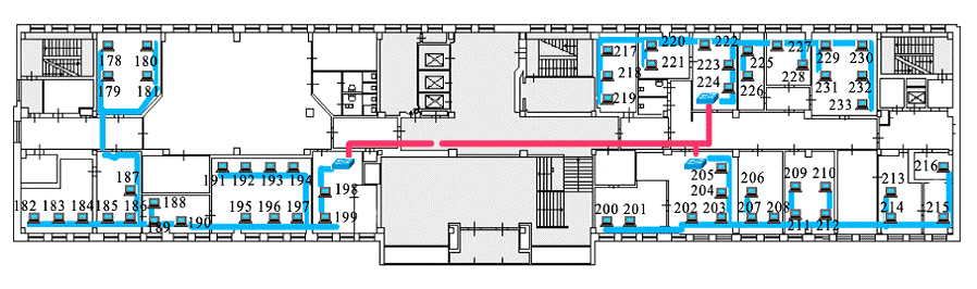
коммутатором, располагающемся на 3 этаже.
Схема кабельной разводки 2-го, 3-го и 5-го этажей представлены в
приложениях 1, 2 и 3.
4.2
Определение капитальных затрат
Капитальные затраты на проектирование сети складываются из стоимости
оборудования, стоимости монтажа, транспортных и заготовительно-складских
расходов (5% от стоимости оборудования) и затрат на тару и упаковку (0,5 % от стоимости
оборудования).
В разрабатываемой локальной сети 233 компьютера. Площадь на одно рабочее
место должна составлять не менее 6 м2, а объем не менее 20 м3.
Суммарная длина кабеля рассчитана с учетом запаса 12-20%, а также с
учетом толщины стены 0,3 м, высоты всех комнат 2,5 м и толщины перекрытия между
этажами 0,5 м. Так как кабель будет протягиваться по плинтусу, то также
учитывается подъем к компьютеру 0,5 м. и составляет 7500 м.
Результаты выбора сетевого оборудования, такие как коммутаторы, сетевые кабели,
разъемы, маршрутизатор и сервер описаны в таблице 4.
Таблица 4 Расчет капитальных затрат на сетевое оборудование
|
№
|
Наименование
|
Кол-во
|
Цена за ед., руб
|
Итоговая цена, руб
|
|
1
|
Сервер HP ProLiant DL580 G7 584087-421
(584087-421) ID: 622883016 (Процессор:
модель Intel® Xeon®, 6 ядер. Тактовая частота 1866МГц. Оперативная память
DDR3 1333 МГц, максимальный объем 1024 Гб)
|
1
|
347150,00
|
347150,00
|
|
2
|
Маршрутизатор HP 7102dl ID:
665777412
|
1
|
22190,00
|
22190,00
|
|
Итого:
|
|
|
3693040,00
|
|
3
|
Коммутатор (switch) D-Link DES-1100-16
|
1
|
2110,00
|
2110,00
|
|
4
|
Коммутатор (switch) D-Link DES-1100-24
|
12
|
2750,00
|
33000,00
|
|
5
|
Коннектор RJ-45 8P8C для
сети кат.5e со вставкой 50мкр
|
700
|
3
|
2100
|
|
6
|
Кабель UTP,
4 пары, категория 5е, бухта 305 м, медь,
|
25
|
2100
|
52500
|
|
Итого:
|
|
|
89710,00
|
Таким образом, стоимость сетевого оборудования составляет 89710 рублей.
Для подсчета общей стоимости проектирования сети также следует учесть
стоимость монтажа локальной сети, транспортные и заготовительно-складские
расходы, затраты на тару и упаковку. Учитывая стоимость отдельных элементов
сети, сетевого кабеля и монтажа подсчитывается стоимость всей сети.
С учетом транспортных и заготовительно-складских расходов:
Цена = 89710 * 1,05 * 1,005 = 94666 рублей 47 копеек.
5.
Маршрутизация потоков данных в сети
Маршрутизация - процесс определения маршрута следования информации в
сетях связи.
Маршруты
могут задаваться административно (статические маршруты
<#"722493.files/image010.gif">
Приложение 2
План локальной вычислительной сети 3-го этажа
Приложение 3
Локальная сеть 5-го
этажа
Приложение 4
IP адреса
сети
|
192.168.0.1 #сервер Фирма 1
Подразделение 1 192.168.1.1 #компьютер 1 192.168.1.2 #компьютер 2 192.168.1.3
#компьютер 3 192.168.1.4 #компьютер 4 192.168.1.5 #компьютер 5 192.168.1.6
#компьютер 6 192.168.1.7 #компьютер 7 Подразделение 2 192.168.2.1 #компьютер
8 192.168.2.2 #компьютер 9 192.168.2.3 #компьютер 10 192.168.2.4 #компьютер
11 192.168.2.5 #компьютер 12 Подразделение 3 192.168.3.1 #компьютер 13
192.168.3.2 #компьютер 14 192.168.3.3 #компьютер 15 192.168.3.4 #компьютер 16
192.168.3.5 #компьютер 17 Подразделение 4 192.168.4.1 #компьютер 18
192.168.4.2 #компьютер 19 192.168.4.3 #компьютер 20 192.168.4.4 #компьютер 21
192.168.4.5 #компьютер 22 192.168.4.6 #компьютер 23 Подразделение 5 192.168.5.1
#компьютер 24 192.168.5.2 #компьютер 25 192.168.5.3 #компьютер 26 192.168.5.4
#компьютер 27 192.168.5.5 #компьютер 28 192.168.5.6 #компьютер 29 192.168.5.7
#компьютер 30 192.168.5.8 #компьютер 31 192.168.5.9 #компьютер 32
192.168.5.10 #компьютер 33 Подразделение 6 192.168.6.1 #компьютер 34
192.168.6.2 #компьютер 35 192.168.6.3 #компьютер 36 192.168.6.4 #компьютер 37
192.168.6.5 #компьютер 38 192.168.6.6 #компьютер 39
|
Фирма 2 Подразделение 1
192.168.7.1 #компьютер 40 192.168.7.2 #компьютер 41 192.168.7.3 #компьютер 42
192.168.7.4 #компьютер 43 192.168.7.5 #компьютер 44 192.168.7.6 #компьютер 45
192.168.7.7 #компьютер 46 192.168.7.8 #компьютер 47 Подразделение 2
192.168.8.1 #компьютер 48 192.168.8.2 #компьютер 49 192.168.8.3 #компьютер 50
192.168.8.4 #компьютер 51 192.168.8.5 #компьютер 52 192.168.8.6 #компьютер 53
192.168.8.7 #компьютер 54 192.168.8.8 #компьютер 55 192.168.8.9 #компьютер 56
192.168.8.10 #компьютер 57 192.168.8.11 #компьютер 58 Подразделение 3
192.168.9.1 #компьютер 59 192.168.9.2 #компьютер 60 192.168.9.3 #компьютер 61
192.168.9.4 #компьютер 62 192.168.9.5 #компьютер 63 192.168.9.6 #компьютер 64
Подразделение 4 192.168.10.1 #компьютер 65 192.168.10.2 #компьютер 66
192.168.10.3 #компьютер 67 192.168.10.4 #компьютер 68 192.168.10.5 #компьютер
69 192.168.10.6 #компьютер 70 192.168.10.7 #компьютер 71 Подразделение 5
192.168.11.1 #компьютер 72 192.168.11.2 #компьютер 73 192.168.11.3 #компьютер
74 192.168.11.4 #компьютер 75 192.168.11.5 #компьютер 76 192.168.11.6
#компьютер 77 192.168.11.7 #компьютер 78 Подразделение 6 192.168.12.1
#компьютер 79 192.168.12.2 #компьютер 80 192.168.12.3 #компьютер 81
192.168.12.4 #компьютер 82 192.168.12.5 #компьютер 83 192.168.12.6 #компьютер
84
|
|
Фирма 3 Подразделение 1
192.168.13.1 #компьютер 85 192.168.13.2 #компьютер 86 192.168.13.3 #компьютер
87 192.168.13.4 #компьютер 89 192.168.13.5 #компьютер 90 192.168.13.6
#компьютер 91 192.168.13.7 #компьютер 92 192.168.13.8 #компьютер 93
192.168.13.9 #компьютер 94 192.168.13.10 #компьютер 95 Подразделение 2
192.168.14.1 #компьютер 96 192.168.14.2 #компьютер 97 192.168.14.3 #компьютер
98 192.168.14.4 #компьютер 99 192.168.14.5 #компьютер 100 192.168.14.6
#компьютер 101 Подразделение 3 192.168.15.1 #компьютер 102 192.168.15.2
#компьютер 103 192.168.15.3 #компьютер 104 192.168.15.4 #компьютер 105
192.168.15.5 #компьютер 106 192.168.15.6 #компьютер 107 192.168.15.7
#компьютер 108 192.168.15.8 #компьютер 109 192.168.15.9 #компьютер 110
192.168.15.10 #компьютер 111 192.168.15.11 #компьютер 112 Подразделение 4
192.168.16.1 #компьютер 113 192.168.16.2 #компьютер 114 192.168.16.3
#компьютер 115 192.168.16.4 #компьютер 116 192.168.16.5 #компьютер 117
192.168.16.6 #компьютер 118 192.168.16.7 #компьютер 119 192.168.16.8
#компьютер 120 Подразделение 5 192.168.17.1 #компьютер 121 192.168.17.2
#компьютер 122 192.168.17.3 #компьютер 123 192.168.17.4 #компьютер 124
192.168.17.5 #компьютер 125 192.168.17.6 #компьютер 126 192.168.17.7
#компьютер 127 192.168.17.8 #компьютер 128
|
Подразделение 6
192.168.18.1 #компьютер 129 192.168.18.2 #компьютер 130 192.168.18.3
#компьютер 131 192.168.18.4 #компьютер 132 192.168.18.5 #компьютер 133
192.168.18.6 #компьютер 134 192.168.18.7 #компьютер 135 Фирма 4 Подразделение
1 192.168.19.1 #компьютер 136 192.168.19.2 #компьютер 137 192.168.19.3
#компьютер 138 192.168.19.4 #компьютер 139 192.168.19.5 #компьютер 140
192.168.19.6 #компьютер 141 192.168.19.7 #компьютер 142 Подразделение 2
192.168.20.1 #компьютер 143 192.168.20.2 #компьютер 144 192.168.20.3
#компьютер 145 192.168.20.4 #компьютер 146 192.168.20.5 #компьютер 147
192.168.20.6 #компьютер 148 192.168.20.7 #компьютер 149 Подразделение 3
192.168.21.1 #компьютер 150 192.168.21.2 #компьютер 151 192.168.21.3
#компьютер 152 192.168.21.4 #компьютер 153 192.168.21.5 #компьютер 154
192.168.21.6 #компьютер 155 192.168.21.7 #компьютер 156 192.168.21.8
#компьютер 157 192.168.21.9 #компьютер 158 192.168.21.10 #компьютер 159
192.168.21.11 #компьютер 160 Подразделение 4 192.168.22.1 #компьютер 161
192.168.22.2 #компьютер 162 192.168.22.3 #компьютер 163 192.168.22.4 #компьютер
164 192.168.22.5 #компьютер 165 192.168.22.6 #компьютер 166 192.168.22.7
#компьютер 167 192.168.22.8 #компьютер 168 192.168.22.9 #компьютер 169
192.168.22.10 #компьютер 170
|
|
Подразделение 5
192.168.23.1 #компьютер 171 192.168.23.2 #компьютер 172 192.168.23.3
#компьютер 173 192.168.23.4 #компьютер 174 192.168.23.5 #компьютер 175
192.168.23.6 #компьютер 176 192.168.23.7 #компьютер 177 Фирма 5 Подразделение
1 192.168.24.1 #компьютер 178 192.168.24.2 #компьютер 179 192.168.24.3
#компьютер 180 192.168.24.4 #компьютер 181 192.168.24.5 #компьютер 182
192.168.24.6 #компьютер 183 192.168.24.7 #компьютер 184 192.168.24.8
#компьютер 185 192.168.24.9 #компьютер 186 192.168.24.10 #компьютер 187
192.168.24.11 #компьютер 188 192.168.24.12 #компьютер 189 192.168.24.13
#компьютер 190 Подразделение 2 192.168.25.1 #компьютер 191 192.168.25.2
#компьютер 192 192.168.25.3 #компьютер 193 192.168.25.4 #компьютер 194
192.168.25.5 #компьютер 195 192.168.25.6 #компьютер 196 192.168.25.7
#компьютер 197 192.168.25.8 #компьютер 198 192.168.25.9 #компьютер 199
Подразделение 3 192.168.26.1 #компьютер 200 192.168.26.2 #компьютер 201
192.168.26.3 #компьютер 202 192.168.26.4 #компьютер 203 192.168.26.5
#компьютер 204 192.168.26.6 #компьютер 205 Подразделение 4 192.168.27.1
#компьютер 206 192.168.27.2 #компьютер 207 192.168.27.3 #компьютер 208
192.168.27.4 #компьютер 209 192.168.27.5 #компьютер 210 192.168.27.6
#компьютер 211 192.168.27.7 #компьютер 212
|
Подразделение 5
192.168.28.1 #компьютер 213 192.168.28.2 #компьютер 214 192.168.28.3 #компьютер
215 192.168.28.4 #компьютер 216 Подразделение 6 192.168.29.1 #компьютер 217
192.168.29.2 #компьютер 218 192.168.29.3 #компьютер 219 192.168.29.4
#компьютер 220 192.168.29.5 #компьютер 221 192.168.29.6 #компьютер 222
192.168.29.7 #компьютер 223 192.168.29.8 #компьютер 224 Подразделение 7
192.168.30.1 #компьютер 225 192.168.30.2 #компьютер 226 192.168.30.3
#компьютер 227 192.168.30.4 #компьютер 228 192.168.30.5 #компьютер 229
192.168.30.6 #компьютер 230 192.168.30.7 #компьютер 231 192.168.30.8 #компьютер
232 192.168.30.9 #компьютер 233
|
Приложение 5
Маршрутизация сети
|
Сеть
|
Маска
|
Шлюз
|
|
192.168.1.1
|
255.255.255.240
|
192.168.0.1
|
|
192.168.1.2
|
255.255.255.240
|
192.168.0.1
|
|
192.168.1.3
|
255.255.255.240
|
192.168.0.1
|
|
192.168.1.4
|
255.255.255.240
|
192.168.0.1
|
|
192.168.1.5
|
255.255.255.240
|
192.168.0.1
|
|
192.168.1.6
|
255.255.255.240
|
192.168.0.1
|
|
192.168.1.7
|
255.255.255.240
|
192.168.0.1
|
|
192.168.2.1
|
255.255.255.240
|
192.168.0.1
|
|
192.168.2.2
|
255.255.255.240
|
192.168.0.1
|
|
192.168.2.3
|
255.255.255.240
|
192.168.0.1
|
|
192.168.2.4
|
255.255.255.240
|
192.168.0.1
|
|
192.168.2.5
|
255.255.255.240
|
192.168.0.1
|
|
192.168.3.1
|
255.255.255.240
|
192.168.0.1
|
|
192.168.3.2
|
255.255.255.240
|
192.168.0.1
|
|
192.168.3.3
|
255.255.255.240
|
192.168.0.1
|
|
192.168.3.4
|
255.255.255.240
|
192.168.0.1
|
|
192.168.3.5
|
255.255.255.240
|
192.168.0.1
|
|
192.168.4.1
|
255.255.255.240
|
192.168.0.1
|
|
192.168.4.2
|
255.255.255.240
|
192.168.0.1
|
|
192.168.4.3
|
255.255.255.240
|
192.168.0.1
|
|
192.168.4.4
|
255.255.255.240
|
192.168.0.1
|
|
192.168.4.5
|
255.255.255.240
|
192.168.0.1
|
|
192.168.4.6
|
255.255.255.240
|
192.168.0.1
|
|
192.168.5.1
|
255.255.255.240
|
192.168.0.1
|
|
192.168.5.2
|
255.255.255.240
|
192.168.0.1
|
|
192.168.5.3
|
255.255.255.240
|
192.168.0.1
|
|
192.168.5.4
|
255.255.255.240
|
192.168.0.1
|
|
192.168.5.5
|
255.255.255.240
|
192.168.0.1
|
|
192.168.5.6
|
255.255.255.240
|
192.168.0.1
|
|
192.168.5.7
|
255.255.255.240
|
192.168.0.1
|
|
192.168.5.8
|
255.255.255.240
|
192.168.0.1
|
|
192.168.5.9
|
255.255.255.240
|
192.168.0.1
|
|
192.168.5.10
|
255.255.255.240
|
192.168.0.1
|
|
192.168.6.1
|
255.255.255.240
|
192.168.0.1
|
|
192.168.6.2
|
255.255.255.240
|
192.168.0.1
|
|
192.168.6.3
|
255.255.255.240
|
192.168.0.1
|
|
192.168.6.4
|
255.255.255.240
|
192.168.0.1
|
|
192.168.6.5
|
255.255.255.240
|
|
192.168.6.6
|
255.255.255.240
|
192.168.0.1
|
|
192.168.7.1
|
255.255.255.240
|
192.168.0.1
|
|
192.168.7.2
|
255.255.255.240
|
192.168.0.1
|
|
192.168.7.3
|
255.255.255.240
|
192.168.0.1
|
|
192.168.7.4
|
255.255.255.240
|
192.168.0.1
|
|
192.168.7.5
|
255.255.255.240
|
192.168.0.1
|
|
192.168.7.6
|
255.255.255.240
|
192.168.0.1
|
|
192.168.7.7
|
255.255.255.240
|
192.168.0.1
|
|
192.168.7.8
|
255.255.255.240
|
192.168.0.1
|
|
192.168.8.1
|
255.255.255.240
|
192.168.0.1
|
|
192.168.8.2
|
255.255.255.240
|
192.168.0.1
|
|
192.168.8.3
|
255.255.255.240
|
192.168.0.1
|
|
192.168.8.4
|
255.255.255.240
|
192.168.0.1
|
|
192.168.8.5
|
255.255.255.240
|
192.168.0.1
|
|
192.168.8.6
|
255.255.255.240
|
192.168.0.1
|
|
192.168.8.7
|
255.255.255.240
|
192.168.0.1
|
|
192.168.8.8
|
255.255.255.240
|
192.168.0.1
|
|
192.168.8.9
|
255.255.255.240
|
192.168.0.1
|
|
192.168.8.10
|
255.255.255.240
|
192.168.0.1
|
|
192.168.8.11
|
255.255.255.240
|
192.168.0.1
|
|
192.168.9.1
|
255.255.255.240
|
192.168.0.1
|
|
192.168.9.2
|
255.255.255.240
|
192.168.0.1
|
|
192.168.9.3
|
255.255.255.240
|
192.168.0.1
|
|
192.168.9.4
|
255.255.255.240
|
192.168.0.1
|
|
192.168.9.5
|
255.255.255.240
|
192.168.0.1
|
|
192.168.9.6
|
255.255.255.240
|
192.168.0.1
|
|
192.168.10.1
|
255.255.255.240
|
192.168.0.1
|
|
192.168.10.2
|
255.255.255.240
|
192.168.0.1
|
|
192.168.10.3
|
255.255.255.240
|
192.168.0.1
|
|
192.168.10.4
|
255.255.255.240
|
192.168.0.1
|
|
192.168.10.5
|
255.255.255.240
|
192.168.0.1
|
|
192.168.10.6
|
255.255.255.240
|
192.168.0.1
|
|
192.168.10.7
|
255.255.255.240
|
192.168.0.1
|
|
192.168.11.1
|
255.255.255.240
|
192.168.0.1
|
|
192.168.11.2
|
255.255.255.240
|
192.168.0.1
|
|
192.168.11.3
|
255.255.255.240
|
192.168.0.1
|
|
192.168.11.4
|
255.255.255.240
|
192.168.0.1
|
|
192.168.11.5
|
255.255.255.240
|
192.168.0.1
|
|
192.168.11.6
|
255.255.255.240
|
192.168.0.1
|
|
192.168.11.7
|
255.255.255.240
|
192.168.0.1
|
|
192.168.12.1
|
255.255.255.240
|
192.168.0.1
|
|
192.168.12.2
|
255.255.255.240
|
192.168.0.1
|
|
192.168.12.3
|
255.255.255.240
|
192.168.0.1
|
|
192.168.12.4
|
255.255.255.240
|
192.168.0.1
|
|
192.168.12.5
|
255.255.255.240
|
192.168.0.1
|
|
192.168.12.6
|
255.255.255.240
|
192.168.0.1
|
|
192.168.13.1
|
255.255.255.240
|
192.168.0.1
|
|
192.168.13.2
|
255.255.255.240
|
192.168.0.1
|
|
192.168.13.3
|
255.255.255.240
|
192.168.0.1
|
|
192.168.13.4
|
255.255.255.240
|
192.168.0.1
|
|
192.168.13.5
|
255.255.255.240
|
192.168.0.1
|
|
192.168.13.6
|
255.255.255.240
|
192.168.0.1
|
|
192.168.13.7
|
255.255.255.240
|
192.168.0.1
|
|
192.168.13.8
|
255.255.255.240
|
192.168.0.1
|
|
192.168.13.9
|
255.255.255.240
|
192.168.0.1
|
|
192.168.13.10
|
255.255.255.240
|
192.168.0.1
|
|
192.168.14.1
|
255.255.255.240
|
192.168.0.1
|
|
192.168.14.2
|
255.255.255.240
|
192.168.0.1
|
|
192.168.14.3
|
255.255.255.240
|
192.168.0.1
|
|
192.168.14.4
|
255.255.255.240
|
192.168.0.1
|
|
192.168.14.5
|
255.255.255.240
|
192.168.0.1
|
|
192.168.14.6
|
255.255.255.240
|
192.168.0.1
|
|
192.168.15.1
|
255.255.255.240
|
192.168.0.1
|
|
192.168.15.2
|
255.255.255.240
|
192.168.0.1
|
|
192.168.15.3
|
255.255.255.240
|
192.168.0.1
|
|
192.168.15.4
|
255.255.255.240
|
192.168.0.1
|
|
192.168.15.5
|
255.255.255.240
|
192.168.0.1
|
|
192.168.15.6
|
255.255.255.240
|
192.168.0.1
|
|
192.168.15.7
|
255.255.255.240
|
192.168.0.1
|
|
192.168.15.8
|
255.255.255.240
|
192.168.0.1
|
|
192.168.15.9
|
255.255.255.240
|
192.168.0.1
|
|
192.168.15.10
|
255.255.255.240
|
192.168.0.1
|
|
192.168.15.11
|
255.255.255.240
|
192.168.0.1
|
|
192.168.16.1
|
255.255.255.240
|
192.168.0.1
|
|
192.168.16.2
|
255.255.255.240
|
192.168.0.1
|
|
192.168.16.3
|
255.255.255.240
|
192.168.0.1
|
|
192.168.16.4
|
255.255.255.240
|
192.168.0.1
|
|
192.168.16.5
|
255.255.255.240
|
192.168.0.1
|
|
192.168.16.6
|
255.255.255.240
|
192.168.0.1
|
|
192.168.16.7
|
255.255.255.240
|
192.168.0.1
|
|
192.168.16.8
|
255.255.255.240
|
192.168.0.1
|
|
192.168.17.1
|
255.255.255.240
|
192.168.0.1
|
|
192.168.17.2
|
255.255.255.240
|
192.168.0.1
|
|
192.168.17.3
|
255.255.255.240
|
192.168.0.1
|
|
192.168.17.4
|
255.255.255.240
|
192.168.0.1
|
|
192.168.17.5
|
255.255.255.240
|
192.168.0.1
|
|
192.168.17.6
|
255.255.255.240
|
192.168.0.1
|
|
192.168.17.7
|
255.255.255.240
|
192.168.0.1
|
|
192.168.17.8
|
255.255.255.240
|
192.168.0.1
|
|
192.168.18.1
|
255.255.255.240
|
192.168.0.1
|
|
192.168.18.2
|
255.255.255.240
|
192.168.0.1
|
|
192.168.18.3
|
255.255.255.240
|
192.168.0.1
|
|
192.168.18.4
|
255.255.255.240
|
192.168.0.1
|
|
192.168.18.5
|
255.255.255.240
|
192.168.0.1
|
|
192.168.18.6
|
255.255.255.240
|
192.168.0.1
|
|
192.168.18.7
|
255.255.255.240
|
192.168.0.1
|
|
192.168.19.1
|
255.255.255.240
|
192.168.0.1
|
|
192.168.19.2
|
255.255.255.240
|
192.168.0.1
|
|
192.168.19.3
|
255.255.255.240
|
192.168.0.1
|
|
192.168.19.4
|
255.255.255.240
|
192.168.0.1
|
|
192.168.19.5
|
255.255.255.240
|
192.168.0.1
|
|
192.168.19.6
|
255.255.255.240
|
192.168.0.1
|
|
192.168.19.7
|
255.255.255.240
|
192.168.0.1
|
|
192.168.20.1
|
255.255.255.240
|
192.168.0.1
|
|
192.168.20.2
|
255.255.255.240
|
192.168.0.1
|
|
192.168.20.3
|
255.255.255.240
|
192.168.0.1
|
|
192.168.20.4
|
255.255.255.240
|
192.168.0.1
|
|
192.168.20.5
|
255.255.255.240
|
192.168.0.1
|
|
192.168.20.6
|
255.255.255.240
|
192.168.0.1
|
|
192.168.20.7
|
255.255.255.240
|
192.168.0.1
|
|
192.168.21.1
|
255.255.255.240
|
192.168.0.1
|
|
192.168.21.2
|
255.255.255.240
|
192.168.0.1
|
|
192.168.21.3
|
255.255.255.240
|
192.168.0.1
|
|
192.168.21.4
|
255.255.255.240
|
192.168.0.1
|
|
192.168.21.5
|
255.255.255.240
|
192.168.0.1
|
|
192.168.21.6
|
255.255.255.240
|
192.168.0.1
|
|
192.168.21.7
|
255.255.255.240
|
|
192.168.21.8
|
255.255.255.240
|
192.168.0.1
|
|
192.168.21.9
|
255.255.255.240
|
192.168.0.1
|
|
192.168.21.10
|
255.255.255.240
|
192.168.0.1
|
|
192.168.21.11
|
255.255.255.240
|
192.168.0.1
|
|
192.168.22.1
|
255.255.255.240
|
192.168.0.1
|
|
192.168.22.2
|
255.255.255.240
|
192.168.0.1
|
|
192.168.22.3
|
255.255.255.240
|
192.168.0.1
|
|
192.168.22.4
|
255.255.255.240
|
192.168.0.1
|
|
192.168.22.5
|
255.255.255.240
|
192.168.0.1
|
|
192.168.22.6
|
255.255.255.240
|
192.168.0.1
|
|
192.168.22.7
|
255.255.255.240
|
192.168.0.1
|
|
192.168.22.8
|
255.255.255.240
|
192.168.0.1
|
|
192.168.22.9
|
255.255.255.240
|
192.168.0.1
|
|
192.168.22.10
|
255.255.255.240
|
192.168.0.1
|
|
192.168.23.1
|
255.255.255.240
|
192.168.0.1
|
|
192.168.23.2
|
255.255.255.240
|
192.168.0.1
|
|
192.168.23.3
|
255.255.255.240
|
192.168.0.1
|
|
192.168.23.4
|
255.255.255.240
|
192.168.0.1
|
|
192.168.23.5
|
255.255.255.240
|
192.168.0.1
|
|
192.168.23.6
|
255.255.255.240
|
192.168.0.1
|
|
192.168.23.7
|
255.255.255.240
|
192.168.0.1
|
|
192.168.24.1
|
255.255.255.240
|
192.168.0.1
|
|
192.168.24.2
|
255.255.255.240
|
192.168.0.1
|
|
192.168.24.3
|
255.255.255.240
|
192.168.0.1
|
|
192.168.24.4
|
255.255.255.240
|
192.168.0.1
|
|
192.168.24.5
|
255.255.255.240
|
192.168.0.1
|
|
192.168.24.6
|
255.255.255.240
|
192.168.0.1
|
|
192.168.24.7
|
255.255.255.240
|
192.168.0.1
|
|
192.168.24.8
|
255.255.255.240
|
192.168.0.1
|
|
192.168.24.9
|
255.255.255.240
|
192.168.0.1
|
|
192.168.24.10
|
255.255.255.240
|
192.168.0.1
|
|
192.168.24.11
|
255.255.255.240
|
192.168.0.1
|
|
192.168.24.12
|
255.255.255.240
|
192.168.0.1
|
|
192.168.24.13
|
255.255.255.240
|
192.168.0.1
|
|
192.168.25.1
|
255.255.255.240
|
192.168.0.1
|
|
192.168.25.2
|
255.255.255.240
|
192.168.0.1
|
|
192.168.25.3
|
255.255.255.240
|
192.168.0.1
|
|
192.168.25.4
|
255.255.255.240
|
192.168.0.1
|
|
192.168.25.5
|
255.255.255.240
|
192.168.0.1
|
|
192.168.25.6
|
255.255.255.240
|
192.168.0.1
|
|
192.168.25.7
|
255.255.255.240
|
192.168.0.1
|
|
192.168.25.8
|
255.255.255.240
|
192.168.0.1
|
|
192.168.25.9
|
255.255.255.240
|
192.168.0.1
|
|
192.168.26.1
|
255.255.255.240
|
192.168.0.1
|
|
192.168.26.2
|
255.255.255.240
|
192.168.0.1
|
|
192.168.26.3
|
255.255.255.240
|
192.168.0.1
|
|
192.168.26.4
|
255.255.255.240
|
192.168.0.1
|
|
192.168.26.5
|
255.255.255.240
|
192.168.0.1
|
|
192.168.26.6
|
255.255.255.240
|
192.168.0.1
|
|
192.168.27.1
|
255.255.255.240
|
192.168.0.1
|
|
192.168.27.2
|
255.255.255.240
|
192.168.0.1
|
|
192.168.27.3
|
255.255.255.240
|
192.168.0.1
|
|
192.168.27.4
|
255.255.255.240
|
192.168.0.1
|
|
192.168.27.5
|
255.255.255.240
|
192.168.0.1
|
|
192.168.27.6
|
255.255.255.240
|
192.168.0.1
|
|
192.168.27.7
|
255.255.255.240
|
192.168.0.1
|
|
192.168.28.1
|
255.255.255.240
|
192.168.0.1
|
|
192.168.28.2
|
255.255.255.240
|
192.168.0.1
|
|
192.168.28.3
|
255.255.255.240
|
192.168.0.1
|
|
192.168.28.4
|
255.255.255.240
|
192.168.0.1
|
|
192.168.29.1
|
255.255.255.240
|
192.168.0.1
|
|
192.168.29.2
|
255.255.255.240
|
192.168.0.1
|
|
192.168.29.3
|
255.255.255.240
|
192.168.0.1
|
|
192.168.29.4
|
255.255.255.240
|
192.168.0.1
|
|
192.168.29.5
|
255.255.255.240
|
192.168.0.1
|
|
192.168.29.6
|
255.255.255.240
|
192.168.0.1
|
|
192.168.29.7
|
255.255.255.240
|
192.168.0.1
|
|
192.168.29.8
|
255.255.255.240
|
192.168.0.1
|
|
192.168.30.1
|
255.255.255.240
|
192.168.0.1
|
|
192.168.30.2
|
255.255.255.240
|
192.168.0.1
|
|
192.168.30.3
|
255.255.255.240
|
192.168.0.1
|
|
192.168.30.4
|
255.255.255.240
|
192.168.0.1
|
|
192.168.30.5
|
255.255.255.240
|
192.168.0.1
|
|
192.168.30.6
|
255.255.255.240
|
192.168.0.1
|
|
192.168.30.7
|
255.255.255.240
|
192.168.0.1
|
|
192.168.30.8
|
255.255.255.240
|
192.168.0.1
|
|
192.168.30.6
|
255.255.255.240
|
192.168.0.1
|