Исследование моделей организационного поведения

  • Вид работы:
    Курсовая работа (т)
  • Предмет:
    Менеджмент
  • Язык:
    Русский
    ,
    Формат файла:
    MS Word
    346,47 Кб
  • Опубликовано:
    2014-04-10
Вы можете узнать стоимость помощи в написании студенческой работы.
Помощь в написании работы, которую точно примут!

Исследование моделей организационного поведения

Введение

Актуальность. Сегодня, более чем всегда, человеческие ресурсы являются важнейшим конкурентным преимуществом предприятия. Именно поэтому научные основы организационного поведения и их применение на практике рассматриваются как одно из приоритетных направлений в менеджменте. В последнее время проводилось множество исследований с целью определить принципы повышения эффективности функционирования организации и анализа проблем для их решения. Таким образом, как никогда более актуальным становится понимание организации, как системы разнонаправленных структур, в связи, с чемстановятся востребованными новые методы управления организационным развитием и поведением персонала, способные повысить социально-экономическую эффективность труда работника и организации в целом. Организационное поведение можно рассматривать как междисциплинарное научно-практическое направление, задачей которого является исследование и обеспечение эффективного функционирования организаций, критериями чего являются достижение целей организации, прибыльность, материальное и моральное благополучие их членов. Концепция организационного поведения направлена на повышение эффективности управления людьми. При этом основное внимание в работе уделяется таким предметам, как организационные изменения, организационная культура, система найма, аттестации и стимулирования персонала, анализ рабочих мест и трудовых ресурсов. Главная задача организационного поведения заключается в том, чтобы сделать управление человеческими ресурсами более эффективным.

Целью данной курсовой работы является закрепление теоретических знаний и выработка практических навыков проведения диагностики и проектирования моделей организационного поведения работников предприятия.

Для достижения данной цели необходимо решить следующие поставленные задачи:

1.       рассмотреть теоретические аспекты формирования малых профессиональных групп

2.      изучить модели группового поведения

.        разработать анкету - опросник для проведения диагностики моделей организационного поведения

.        провести диагностику моделей организационного поведения работников объекта исследования

.        спроектировать наиболее благоприятные модели организационного поведения работников объекта исследования

Предмет исследования - динамика группового поведения работников бухгалтерии ОООЗСМ «Новстрой»

Объект исследования - малая профессиональная группа работников - бухгалтерия ООО ЗСМ «Новстрой»


1.       Описание объекта исследования

Объект исследования - завод строительных материалов ОООЗСМ «Новстрой»

Правовой статус:

Полное фирменное наименование общества - Общество с ограниченной ответственностьюзавод строительных материалов «Новстрой» сокращенное фирменное наименование - ОООЗСМ «Новстрой»

Место нахождения Общества: г Новосибирск, ул. Линейная, д. 35А.

Миссия и цели организации:

Основной целью деятельности Общества является получение прибыли.

Миссия: предложение для конечного потребителя безопасных продуктов высокого качества по оптимальной цене.

Характеристика основных видов деятельности

Производство и реализация строительных материалов. Разработка и производство акриловых материалов специального назначения. Дата основания - 1994 г.

Качественные параметры и сертификация продукции

Качество продукции, выпускаемой под торговой маркой «Новстрой», обусловлено применением современных технологий производства строительных материалов, импортного оборудования, использованием высококачественного сырья ведущих зарубежных производителей, высокой квалификацией персонала и подтверждено протоколами испытаний ОАО «Оргтехстрой» г. Новосибирск, автономной некоммерческой организацией «Новосибирский орган по сертификации мебели и лесопродукции», испытательного центра «Красстрой», сертификатами о соответствии требованиям стандарта ISO к качеству красок лаборатории OY FORCIT (Финляндия); безопасность подтверждена санитарно-эпидемиологическим заключением.

Главные достижения предприятия

Налажено производство базовых материалов для компьютерного моделирования. Разработан и запущен в производство ряд новых материалов. Получено подтверждение соответствия качества продукции ТМ «Новстрой» требованиям стандарта ISO к качеству материалов лаборатории OY FORCIT. Приобретено и освоено оборудование для компьютерногомоделирования отделки в промышленном объеме, позволяющее автоматизировать, а следовательно и ускорить процесс подбора цвета, контролировать точность колеровки, обеспечить воспроизводимость цвета при повторном заказе. В 2010 году завод «Новстрой» осуществил ряд изменений в своем ассортиментном портфеле.

Наряду с традиционными материалами выделены новые серии: Professional «Novstroy» - материалы для компьютерного моделирования. Ecology «Novstroy» - наиболее популярная серия материалов для различных типов поверхностей внутри и снаружи помещений, Decorate «Novstroy» - декоративные материалы. Рейстайлинг был продиктован изменениями политики компании - переход на новые наукоемкие технологии производства и упаковки, изменение дизайна, использование дополнительных ингредиентов, повышающих стабильность качества продукции.

Позиция на рынке

Высокое качество, постоянно расширяющийся ассортимент продукции ТМ «Новстрой», растущая квалификация персонала предприятия позволили сформировать широкую региональную сбытовую сеть, надежно закрепиться на рынке потребителей строительных материалов специального назначения, завоевать авторитет у строительных организаций. Эти факторы, в свою очередь, создали предпосылки к постоянному росту объемов продаж продукции завода, необходимости модернизации оборудования и наращивания объемов производства.

Партнеры:

·              Красный проспект

·              Первый Строительный Фонд

·              Кварсис-риэлт

·              Атон

·              Региональная Строительная Компания

·              Струг

·              ПСФ Сибирь

·              Обьстрой

·              Техногарант - Новосибирск

·              Западно-Сибирская ЖД

ЗСМ «Новстрой» тесно сотрудничает с фирмами «Практик», «Палитра», «Строймаркет», «Перестройка», «БиК», ООО «Роса» (Тюмень), ЗАО «Техносистема» (Новокузнецк), «Доминго» (Новокузнецк), компания «Джем» (Абакан), сеть магазинов «Левша» (Омск), ООО «Знак» (Барнаул), ООО «Формика» (Красноярск), «Капитель» (Иркутск), «Юнис» (Омск), «Сахград» (Южно-Сахалинск), «Орион-эксперссия» (Якутск).

Организационная структура

Высшим органом Общества является Общее собрание участников Общества. Все права и обязанности участников Общества закреплены в Уставе.

Единоличным исполнительным органом Общества является Директор, который избирается Общим собранием участников Общества на срок три года.

В непосредственном подчинении директору находятся все структурные подразделения организации, а именно производственный отдел, отдел снабжения, отдел сбыта, бухгалтерия, отдел по науке и развитию, отдел рекламы, служба безопасности, а также в подчинении директора находятся системный администратор, начальник отдела кадров, начальник транспортного цеха, секретарь. К его компетенции относятся все вопросы руководства текущей деятельностью.

Во главе производственного отдела стоит начальник производства, которому подчиняются рабочие производственного цеха и склада готовой продукции.

Отдел снабжения возглавляет начальник отдела, в подчинении которого - заместитель, менеджер по снабжению, который отвечает за поставки сырья и материалов.

Реализация товара и работа с клиентами, а именно прием заказов, доставка товара, поиск потенциальных клиентов, осуществляется в отделе сбыта. Отдел сбыта возглавляет начальник отдела сбыта. Он организует и контролирует работу менеджеров оптовых продаж, менеджеров по работе с клиентами, региональных менеджеров.

Отдел бухгалтерии, возглавляемый главным бухгалтером, подчиняется финансовому директору и осуществляет ведение налогового и бухгалтерского учета (составление налоговой отчетности, бухгалтерской отчетности, предоставление информации в налоговую, операции по расчетному счету и т.д.). Непосредственно главному бухгалтеру подчиняются заместитель, старший бухгалтер и остальные бухгалтеры.

Продвижением товара занимается отдел рекламы, а именно начальник отдела и его помощник - менеджер по рекламе.

Также в ООО ЗСМ «Новстрой» функционирует отдел по науке и развитию. В данном отделе осуществляется разработка новой продукции, технологии, внедрение инновации. Этим занимаются персонал технологической лаборатории, подчиняющийся начальнику отдела.

Доставка товара в торговые точки осуществляется транспортным отделом (начальник отдела, водители).


2.      Разработка анкет-опросников для проведения диагностики моделей организационного поведения

опросник организационный поведение

Малые профессиональные группы

Формально вся организация представляет собой сочетание различных профессиональных групп, которые структурированы в особые подразделения. В каждой такой профессиональной группе существуют определенные «деловые связки» работников, где индивидуальные способы выполнения заданий преобразуются в кооперированные. Отечественные исследователи выделяют три уровня такой кооперации работников. [2] В бригадных формах организации труда это: совместно-индивидуальная деятельность (бригада станочников, где индивидуальный труд доминирует); совместно-последовательная деятельность (бригада, работающая на конвейере); совместно-взаимодействующая деятельность (бригада монтажников, где кооперированный труд доминирует). В функциональных подразделениях отечественные исследователи также выделяют три уровня взаимосвязанности работ[14]:

·              параллельно-индивидуальная, которая на определенных этапах сводится воедино по срокам, ресурсам, показателям, конечным результатам (например, отдел сбыта продукции, где каждый менеджер работает со своей клиентурой);

·              кооперативно-индивидуальная, когда результаты труда одних работников оказываются зависимыми от результатов труда других работников так, что эти результаты надо время от времени корректировать (например, отдел маркетинга, где результаты исследований используются в группе рекламы, в группах стимулирования сбыта);

·              кооперативно-сетевая, когда действия одного невозможны без одновременных или предшествующих действий других (проектные группы, конструкторские и технологические отделы, творческие лаборатории, проблемно-целевые группы).

Внутренние взаимосвязи работников между собой и с руководителем в группах весьма разнообразны. Они целиком зависят от характера работ, поставленных задач, сроков исполнения и могут быть динамичными, сопряженными друг с другом и даже взаимопереходящими, особенно во время экспериментов переналадки технологией, реорганизации функциональных подразделений. Но в производственных бригадах, если они устоялись, эти взаимосвязи более жесткие, чем в функциональных подразделениях. Руководство такими группами осуществляется прежде всего как распределение заданий на входе в технологические процессы и на выходе из них. Главной функцией руководителя малой профессиональной группы является оптимальное обеспечение «деловых связок», которые могут ослабляться или прерываться в результате взаимных отторжений, противостояний, конфликтов.

В отечественных исследованиях 80-х гг. [7] описаны разновидности бригадных технологических циклов различных конфигураций с входами сырья или комплектующих деталей и выходами изделий (см. рис. 5.1). На рисунке кружочками изображены работники профессиональных групп (бригад), а линиями - их взаимосвязанность между собой на входе и на выходе продукции.

Те или иные конфигурации работников профессиональных групп определяют и тип их поведения по шкале «индивидуализм - коллективизм». В отечественных исследованиях в конце 70-х гг. [2] изучались психологические характеристики работниц, которые работали индивидуально и в условиях групповой сборки. У последних были обнаружены большая общительность, открытость, дружелюбие, чувство связанности с другими людьми, склонность к открытому сотрудничеству, отзывчивость (профессиональная группа больше открыта к сотрудничеству с другими профессиональными группами). А первые проявляли большую замкнутость, сдержанность, холодность, отчужденность (профессиональная группа менее открыта к такому сотрудничеству, а иногда и совсем закрыта).

В первом случае поведение руководителя может стать лидерским, если оно соответствует коллективистским групповым нормам, если он «погружает» себя в группу. Если же его поведение им не соответствует, возможно состояние конфронтации, что и происходит при авторитарном стиле руководства в творческих профессиональных группах.

Во втором случае, когда внутренняя кооперация работников слабая, руководитель становится связующим звеном, осуществляя распределение и планирование работ, обеспечивая корректировку их трудовых усилий, осуществляя общий контроль по срокам и конечному результату. Он видит общие «плюсы» и «минусы» работы каждого, что позволяет ему управлять профессиональной группой, принимая решения, общие для всех.

Его поведение не обязательно может быть лидерским, но он должен быть авторитетным специалистом и признанным в группе организатором, что особенно важно в производственных бригадах с низкой степенью кооперации.

Лидерство как тот или иной социально-психологический феномен руководства в профессиональной группе можно классифицировать как выражение групповых интересов, мнений и настроений, которые учитывает и генерирует руководитель, направляя всю работу на достижение конечных результатов. Могут быть три типа такого лидера - организатор, специалист, интеллектуал. Особый тип лидерства руководителя возникает тогда, когда он становится реорганизатором (инноватором).

Эффективность руководства зависит от того, как совмещены три модели лидерства в поведении руководителя профессиональной группы, потому что они могут и противоречить. Если же они не противоречат, а дополняют друг друга, то возникает феномен универсального лидерства. И только в этом случае руководитель может стать действительно лидером в профессиональной группе.

При таком подходе можно объяснить, почему в группах с индивидуализированной формой организации труда один руководитель становится авторитетным, а другой оказывается отвергнутым. Так случилось, например, в отделе региональных продаж, где опытный специалист. проработавший на своем рынке пять лет и принятый на работу в другую фирму в качестве руководителя этого подразделения, не смог найти контакт с пятью работниками, подчиненными ему по статусу, которые ценили его как специалиста, но отторгали как руководителя. Он навязывал им те нормы поведения, которые были необходимы для перестройки работы во имя общей цели всей организации, а они привыкли работать по своим, удобным им нормам, и так продолжалось шесть месяцев. [12]

В этой, казалось бы, тупиковой ситуации могло быть только одно решение: создать параллельный отдел, назначить этого менеджера его руководителем и предоставить ему возможность подыскать себе сотрудников по продажам. А в существующем аналогичном отделе назначить руководителем работника, который оказался лидером оппозиции. Через несколько месяцев можно было бы сравнивать результаты труда двух параллельных отделов, поскольку между ними наверняка возникло бы соперничество. Показатели работы с клиентами улучшились бы, новый отдел расширил бы клиентурную базу, был бы сохранен квалифицированный специалист, которому давался шанс еще раз стать руководителем, создавшим свою команду, а в старом отделе улучшился бы морально-психологический климат. Но это предложение не было принято президентом фирмы. А в итоге сначала уволился лидер-оппозиционер и «увел» с собой всю свою клиентуру к конкуренту, а потом уволился и руководитель-специалист, которого группа обвинила в «гонениях» на своего лидера, а президент - в неумении руководить. Была потеряна и клиентура, и два специалиста. Так «сработал» против собственной фирмы апломб президента: «Сам разберусь, без консультантов!».

В отечественных исследованиях лидерский тип руководства объясняется с точки зрения коллективистского развития профессиональной группы (А.В. Петровский, 1984). Чем ниже группа в своем развитии, тем более вероятно, что характеристика лидера-руководителя будет включать сравнительно небольшой набор качеств (самоуверенность, жесткость, агрессивность, авторитарность и др.). Чем выше группа в своем развитии, тем более сложным и обширным оказывается качественный репертуар руководителя-лидера. Именно в этой ситуации происходит процесс взаимокомпенсаций: руководитель своими качествами дополняет и развивает качества работников, а работники своими качествами дополняют и развивают качества руководителя. А эти качества развиваются из содержания совместной трудовой деятельности.

Оказывается, что руководителем-лидером в малой профессиональной группе может быть тот, кто понимает эти компенсаторные процессы, умеет влиять на их развитие, помогая формировать общегрупповые нормы поведения в оптимизации «деловых связок» работников. Поведение такого руководителя проявляется как доверие авансом, поведение работников - как стремление оправдать его ожидания. Этот эффект взаимокомпенсаторного сотрудничества становится главным показателем лидерского поведения руководителя[6].

Факторы группового поведения

История промышленной социальной психологии началась с выявления центральной проблемы: какая деятельность - индивидуальная или коллективная - является наиболее эффективной для получения конечного результата? Эта проблема оказалась особенно актуальной в начале 20-х гт. XX в. в нашей стране, когда стал формироваться феномен трудового энтузиазма. В разработках и исследованиях отечественных ученых-первопроходцев [1] изучалось преимущество коллективных способов организации работ над индивидуальными в случаях, когда профессиональная группа является личностно-значимой для работников, т.е. «своей». Оказалось, что человеку легче работать, если группа поддерживает его, переживает за него, ожидает от него высоких результатов и верит в него, и наоборот.

Этот эффект «своего» и «чужого» поля экспериментально подтвердился в исследованиях немецкого ученого Е. Лоренца. В 30-х гг. он проводил свои исследования на фабрике резиновой обуви, где средняя производительность труда одной работницы, работающей индивидуально, была на 35-40% ниже, чем тех, кто работал в группе. На основе экспериментов по кооперированию индивидуального труда в групповые формы организации он установил, что производительность труда в группе повышается на 10% за счет повышения индивидуальной производительности: благодаря соревнованию и социально-психологическому влиянию группы. Эта производительная сила, приращенная кооперированием на основе разделения труда, стала открытием в социальной промышленной психологии.

Вторым открытием в объяснении феноменов группового поведения стали эксперименты, которые проводились на их завершающих этапах под руководством американского специалиста Э. Мэйо в американской фирме «Вестерн электрик» (1927-1932). Было выявлено, что производительность труда зависит прежде всего от тех групповых норм, которые определяют межличностный статус каждого работника. В эксперименте обнаружилось, что норма выработки может повышаться или понижаться не только в зависимости от хорошей или плохой работы, а прежде всего потому, что таково групповое мнение, выразителем которого в группе является лидер. Это означало, что в профессиональной группе складывается своя неформальная структура межличностных отношений, которая и определяет поведение каждого, кто считает эту группу «своей».

Многочисленные последующие исследования, прежде всего отечественные, помогли выявить очень важную социально-психологическую закономерность: групповая норма производительности может возрастать в несколько раз, если результаты работы каждого влияют на успех остальных и зависят от их общего успеха. Это было доказано самой жизнью и в ходе быстрого строительства промышленных предприятий, особенно в предвоенные и послевоенные периоды отечественной истории 30-50-х гг., и в практике хозрасчетных и подрядных бригад с оплатой по конечному результату в 70-80-х гг.

В этой связи можно выделить два основных фактора, которые и определяют прежде всего развитие тех или иных моделей группового поведения.

Во-первых, это профессиональная сработанность группы, т.е. интегральное качество, которое отечественные социальные психологи считают важным потому, что оно дает в конечном счете высокий эффект от реализации профессионального мастерства всех и каждого[11]. Это качество формируется только в результате накопленного опыта совместной работы профессионалов и проявляется в нормах взаимоуважения, взаимоответственности, взаимотребовательности, где каждый имеет «вес», дополняя своим мастерством других работников. Это особенно - наблюдается в рабочих бригадах, если их труд организован с точки зрения быстрого решения в совместной деятельности всех проблем, возникающих на «стыках» разнородных работ.

Во-вторых, это морально-психологическая сплоченность группы, т.е. такое ее интегральное качество, которое проявляется в единстве ценностных ориентации всех работников[4], интересы которых оказываются общими. Это качество формируется на основе общности представлений о самих себе как группе, которая может выполнять сверхзадачи. На этой социально-ценностной основе формируются такие нормы поведения, как взаимопомощь, взаимоподдержка, взаимовыручка.

Два этих фактора представляют мощную базу мотивационной направленности работников на выполнение заданий, которые и определяют в конечном счете их групповое поведение. Типичным примером таких профессиональных групп высокого уровня развития являются команды космических кораблей, где очень велика цена ошибки, команды проектировщиков, команды, работающие на сборке сложных технических систем в кораблестроении, авиастроении, ракетостроении и др. Это единство профессиональной сработанности и морально-психологической сплоченности можно изобразить на визуальной квадрограмме в виде противоречия в развитии профессиональной группы (рис. 1).

Рис. 1. Модель противоположных типов группового поведения: высокий - низкий уровень


Сектор «Б» свидетельствует о высоком уровне развития профессиональной группы, а сектор «А» - о низком ее развитии. В первом случае речь может идти о коллективистских ценностных ориентациях в совместной деятельности профессионалов, а во втором - об индивидуалистических ориентациях работников, провоцирующих и их профессиональную разобщенность (рис. 2).

Рис. 2. Модель противоположных типов группового поведения: средний - низкий уровень

Другими двумя факторами, характеризующими промежуточный уровень развития профессиональной группы, являются такие феномены.

Во-первых, это профессиональная согласованность - качество, предполагающее «увязку» профессиональных интересов в групповом «поле деятельности» работников. Задачей руководителя в этом случае является обеспечение взаимосвязанных интересов работников в такой «мотивационный узел», который помогал бы профессиональной группе выполнять задания по объему, качественно и в срок.

Во-вторых, это межличностная совместимость - качество, исходное для взаимосвязанных видов работ, например в бригадах. Это качество проявляется прежде всего как готовность работников сотрудничать между собой в выполнении тех или иных заданий. Оно отражает единство деловых и межличностных отношений, которое помогает делать работу производительнее, те. быстрее выпускать качественные изделия в необходимых объемах. На визуальной квадро-грамме эти факторы групповой работы могут быть представлены в проблемном противоречии так.

В секторе «Б» фиксируется нормальная работа профессиональной группы, а в секторе «А» - работа, осложненная взаимным непониманием и отчужденностью.

В организациях эти два фактора в секторе «Б» могут срабатывать, например, в бухгалтерском отделе, где каждый работник ведет какое-то свое направление, но в то же время выходит за рамки узкой специализации, приобретая навыки работы в смежных направлениях отдела. Его профессиональная зона значительно расширяется, что требует профессиональных согласований и межличностной совместимости «Я» - позиций.

В менее развитых профессиональных группах, как правило, есть свой лидер, позиции которого могут не совпадать с позицией официального руководителя. Если лидер ориентирован прежде всего на межличностные отношения, то в такой группе эти отношения могут доминировать над деловыми. Это представляет опасность их перерастания в эмоционально-привлекательные или эмоционально-непривлекательные, особенно в женских группах, и тогда деловые отношения подменяются межличностными, где конфликт оказывается неизбежным.

Но и противоположный вариант нежелателен, так как таит опасность доминирования деловых отношений над межличностными. Это особенно нежелательно в женских группах, где именно межличностные отношения выполняют своеобразную защитную функцию работниц от стрессов и фрустраций в условиях технократизации работ и интенсификации труда.

В профессиональной группе можно выделить еще два фактора, характеризующие успешность или неуспешность ее работы: целеустремленность и демократичность. Эти факторы задаются уже руководителем и зависят от его позиции по отношению к группе. Например, целевая установка может быть навязана «сверху» или выработана сообща всеми сотрудниками. Ее мотивирующий эффект будет разным, особенно для высокоразвитой профессиональной группы. Демократизм отношений «руководитель - группа» может проявляться в совместном обсуждении управленческих решений и в стимуляции инициативных предложений, исходящих от группы, а может и «размываться» позицией руководителя, который на словах всегда «за», а на самом деле не очень-то и считается с групповым мнением, выслушивая работников и откладывая их предложения «на потом».

Профессиональная группа характеризуется еще двумя факторами, по которым можно оценить успешность ее работы: продуктивность и удовлетворенность результатами труда. Эти факторы уже оказываются итогом их профессионально-групповых усилий и того, насколько мотивационный ресурс группы воплотился в конкретные дела, насколько признаны трудовые усилия профессиональной группы, если оплата труда ее работников начисляется по конечным результатам с использованием премиальных коэффициентов.

Групповые эффекты успешной трудовой деятельности зависят и от других факторов, которые можно назвать переменными. Они таковы:

·              групповой уровень притязаний, т.е. настроенность работников на достижение промежуточных и конечных результатов; квалификационный потенциал, достаточный для реализации итоговых и внеплановых показателей;

·              требования к конечному результату, который определяет качество групповой работы;

·              открытость оценок работы группы со стороны руководителя, особенно в ситуациях межгруппового соперничества (например, три группы продаж в одном отделе сбыта); взаимодействие с другими профессиональными группами (успешное или нет);

·              половозрастной состав (мужчины - женщины; молодые; среднего возраста; пожилые работники); внутригрупповые межличностные коммуникации, нарушение которых может сбить рабочий ритм, темп работ и снизить качество; лидерские позиции, которые могут быть единоличными или переменными, когда в тех или иных ситуациях лидером оказывается кто-то из работников;

·              постоянство профессиональной группы или временный характер ее работы.

Но самым важным переменным фактором работы профессиональной группы является групповая норма производительности, которая оказывается осью всех внутригрупповых отношений. Это положение доказано в отечественных разработках на основе анализа многочисленных ситуаций[2].

Резюме

Малые профессиональные группы являются основными исполнителями работ в организации. Их работники взаимосвязаны между собой по характеру и условиям трудовой деятельности. Существуют разнообразные модели такой взаимосвязанности работников. В малых профессиональных группах могут быть совмещенные варианты лидерства и руководства. Лидерский тип руководства является наиболее продуктивным тогда, когда он выражает потребности малой группы в эффектах взаимокомпенсаторного сотрудничества.

Поведение профессиональных групп в организации можно представить, используя визуальные квадрограммы, при помощи которых выявляются уровни группового развития и их различные конфигурации. Все шесть позиций, определяющих поведение профессиональной группы, можно изобразить на шестигранных моделях после их реального измерения по определенным признакам.

Основным индикатором проявления групповых способов поведения является групповая норма производительности. Именно вокруг ее социально-экономического содержания может развертываться конфликт и с руководителем, и с другими работниками, поскольку она, олицетворяя справедливость, оказывается и главным позитивно-мотивирующим фактором, и главным фактором конфликтного группового поведения.

Социальными генотипами, образующими феномен организационного поведения, являются:

·              способы Организации труда работников, зафиксированные в определенных конфигурациях;

·              эффекты взаимокомпенсаторного сотрудничества в моделях «руководство - лидерство»;

·              шесть факторов успешной работы профессиональной группы, где ведущей является модель «Б» - «профессиональная сработанность - морально-психологическая сплоченность»;

·              групповая норма производительности, которой важно умело управлять.

3.       Диагностика моделей организационного поведения

Обработка результатов производиться с помощью следующей методики:

Ключ для обработки анкеты

Факторы

Ответы а

Ответы б

Другое

Профессиональная сработанность

3, 6, 7, 19, 25, 26, 28, 40

14, 39


Профессиональная разобщенность

14, 39

3, 6, 7, 19, 25, 26, 28, 40


Морально-психологическая сплоченность

1, 2, 5, 8, 9, 11, 12,13, 24, 27



Морально-психологическая разобщенность


1, 2, 5, 8, 9, 11, 12,13, 24, 27


Профессиональная согласованность

15, 23, 29, 31, 32, 34, 35, 38

10, 37


Профессиональная рассогласованность

10, 37

15, 23, 29, 31, 32, 34, 35, 38


Межличностная совместимость

4, 20, 21, 22, 30, 36

16, 17, 18

e, f, g, h на вопрос 33

Межличностная несовместимость

16, 17, 18

4, 20, 21, 22, 30, 36

a, b, c, d на вопрос 33

В ходе анкетирования были опрошены 5 бухгалтеров, 1 старший бухгалтер, заместитель главного бухгалтера и главный бухгалтер. Таким образом, полученные данные мы суммируем и усредняем.

Ниже представлены обработанные результаты опроса сотрудников отдела бухгалтерии ОООЗСМ «Новстрой».


Профессиональная сработанность

Профессиональная разобщенность

Морально-психологическая сплоченность

Морально-психологическая разобщенность

Гл. бухгалтер

7

3

3

7

Зам.гл. бухгалтера

3

7

2

8

Старший бухгалтер

8

2

4

6

Бухгалтер 1

7

3

2

8

Бухгалтер 2

6

4

3

7

Бухгалтер 3

8

2

5

5

Бухгалтер 4

8

2

4

6

Бухгалтер 5

9

1

3

7

Средний балл

7

3

3.25

6.25


Профессиональная согласованность

Профессиональная рассогласованность

Межличностная совместимость

Межличностная несовместимость

Гл. бухгалтер

8

2

7

3

Зам.гл. бухгалтера

8

2

7

3

Старший бухгалтер

7

3

9

1

10

-

7

3

Бухгалтер 2

7

3

6

4

Бухгалтер 3

8

2

8

2

Бухгалтер 4

8

2

10

-

Бухгалтер 5

9

1

8

2

Средний балл

8.125

1.875

7.75

2.25


4.       Проектирование и корректировка моделей организационного поведения

Обработав полученные результаты, построим реальные модели группового поведения.

Построим модель, средний-низкий уровень.

Рис. 3. Реальная модель противоположных типов группового поведения: средний - низкий уровень

Начальный этап развития данной группы характеризуется нормальной работой профессионально согласованных бухгалтеров, для которых характерна взаимосвязанность профессиональных интересов, готовность работников сотрудничать, помогающая качественно и в срок выполнить свою работу.

На основе факторов: профессиональной сработанности и морально-психологической разобщенности построим модель противоположных типов группового поведения: высокий - низкий уровень.

Рис. 4. Реальная модель противоположных типов группового поведения: высокий - низкий уровень

Данная модель позволила выявить следующие тенденции. В данном отделе сложилась очень непростая система взаимоотношений персонала. Результаты опроса показали, что для бухгалтерии характерен достаточно высокий уровень профессиональной сработанности. Данный коллектив представляет собой группу профессионалов, знающих свое дело, нацеленных на получение высоких результатов. Что проявляется в нормах взаимоуважения, взаимоответственности, взаимотребовательности. Но в коллективе присутствует равнодушное отношение к окружающим, низкая степень морально-психологической сплоченности. Это можно объяснить тем, что исследование проводилось в исключительно женском коллективе - бухгалтерии ООО ЛЗ «Завода», в котором деловые отношения стоят выше межличностных. По результатам опроса выяснилось, что сравнительно малая часть коллектива общаются между собой вне работы, совместно отдыхают, отмечают дни рождения.

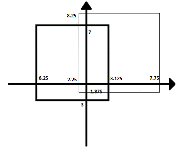
Для большей наглядности и простоты оценки четырех основополагающих факторов совместим две модели.

Рис. 5. Реальная совмещенная модель

Как видно из графического изображения, реальная модель группового поведения в отделе бухгалтерии представляет собой некую нестандартную, можно даже сказать противоречивую модель поведения. С одной стороны, коллектив характеризуется высокой сработанностью, профессиональной совместимостью. С другой - работники желают сотрудничать, и, несмотря на то, что в коллективе практически отсутствуют конфликты (или происходят крайне редко), атмосфера на рабочих местах - равнодушная, низкая степень морально-психологической сплоченности.

По результатам анализа реальной модели группового поведения можно отметить доминирование деловых отношений над межличностными. Как известно это особенно нежелательно в женских группах, где именно межличностные отношения выполняют своеобразную защитную функцию работниц от стрессов и фрустраций.

Данные тенденции - низкую степень морально-психологической сплоченности при сравнительно высокой степени профессиональной согласованности сработанности, а также межличностной совместимости можно объяснить временным фактором. Практически 90% сотрудников данного отдела сравнительно недавно работают вместе - от 1- 5 лет. Этим и можно объяснить, что на начальном этапе развития данной профессиональной группы характерна значительно высокая степень межличностной совместимости, а также отсутствие явных конфликтов. Но это не означает их полного отсутствия, вполне возможно развитие скрытой конфликтной ситуации, что наиболее характерно для женского коллектива.

Чтобы избежать отрицательных тенденций в поведении сотрудников, и повысить степень их морально-психологической сплоченности, разработаем следующие рекомендации.

Рекомендации:

1.       Организация совместного проведения отдыха (выезд на природу, посещение театров и т.д.)

2.      Проведение конкурсов на звание «лучшего отдела компании», которые помогут сплотить коллектив ради достижения общей цели.

.        Организация спортивных секций, спортивных соревнований между отделами

.        Организация совместных обедов

5.      «Чаша пожеланий». Рекомендуется в офисе, где находятся работники, поставить небольшую чашу или вазу, в которую любой сотрудник сможет опустить записку, в которой в корректной форме изложены пожелания, претензии к коллективу или отдельному человеку. Данные записки оглашаются на мини-советах отдела. В случае возникновения конфликта, проблемы - непременно совместно решать их.

.        Организация и проведение тренингов.

.        Привлечение специалистов - психологов, в компетенцию которых можно отнести анализ, сопоставление психологических характеристик, черт характера, типов поведения сотрудников при приеме на работу, разработка тестов, консультации как впервые пришедших в коллектив, так и уже давно работающих сотрудников. Также в обязанности психолога можно включить разработку и проведение тренингов, чтобы не привлекать специалистов со стороны и не пользоваться услугами агентств.

Первые пять предложений могут инициироваться как руководителем, так и самим коллективом. Они наименее затратные и зависят только от желаний и интересов самих сотрудников.

Последними советами рекомендуется воспользоваться директору предприятия. Совместные тренинги помогут сплотить коллектив, найти взаимопонимание как между сотрудниками, так и начальниками подразделений. Психолог на начальной стадии должен постараться отобрать сотрудников максимально совместимых типов характера, чтобы в последствии сформированная команда смогла достичь максимального синергетического эффекта. Но это не означает, что максимально подходящий по морально-психологическим критериям кандидат будет принят на работу, если по профессиональным данным он уступает остальным. Специально разработанные психологом тренинги, позволят в той или ной степени сплотить коллектив. Также по сравнению с тренингами, проводящими сторонними организациями, они будут менее затратными и максимально подходящими для данной организации, так как будут разработаны с учетом специфики взаимоотношений в конкретном коллективе.

В нашем случае к данным мерам (психолог, тренинги) следует прибегать в критической ситуации, так как коллектив отдела бухгалтерии ЗСМ «Новстрой» профессионально согласован, слажено работают, готовы к сотрудничеству, в отделе отсутствуют конфликты. Нейтральное отношение, равнодушие, низкая степень морально-психологической сплоченности на данный период времени не оказывает никакого влияния на функционирование и результаты работы всего отдела. В случае выполнения особо важного задания команда проявляет большую заинтересованность в достижении поставленных целей, высокое мастерство и согласованную работу. Но руководителю следует постепенно вводить меры по сплочению коллектива во имя избежание конфликтной ситуации в будущем, так как в силу специфики женского коллектива данные ситуации неизбежны.


Заключение

В настоящее время важным конкурентным преимуществом любой организации становятся ее человеческие ресурсы. Концепция организационного поведения направлена на повышение эффективности управления людьми. Главная задача организационного поведения заключается в том, чтобы сделать управление человеческими ресурсами более эффективным.

Целью данного курсового проекта являлось закрепление теоретических знаний и выработка практических навыков проведения диагностики и проектирования моделей организационного поведения работников предприятия.

Таким образом, в ходе написания курсового проекта были рассмотрены теоретические материалы на тему малых профессиональных групп, подробно изучены модели группового поведения.

На основе теоретической базы была разработана анкета и предложена сотрудникам отдела бухгалтерии - объекту исследования.

По результатам опроса были построены реальные модели группового поведения конкретной малой профессиональной группы.

Реальная модель группового поведения в отделе бухгалтерии представляет собой некую нестандартную, можно даже сказать противоречивую модель поведения. С одной стороны, коллектив характеризуется высокой сработанностью, профессиональной совместимостью. С другой - работники желают сотрудничать, и, несмотря на то, что в коллективе практически отсутствуют конфликты (или происходят крайне редко), сравнительно малая часть сотрудников общаются между собой вне работы, совместно отдыхают, отмечают дни рождения, атмосфера на рабочих местах - равнодушная, низкая степень морально-психологической сплоченности.

Была произведена диагностика данных моделей, выявлены положительные и отрицательные тенденции.

Чтобы избежать отрицательных тенденций в поведении сотрудников, и повысить степень их морально-психологической сплоченности, были предложены рекомендации по совершенствованию моделей.


Список использованной литературы

1.   Красовский Ю.Д. Организационное поведение. Учеб. пособие для студентов высших учебных заведений, обучающихся по специальностям «Менеджмент» М.: «ЮНИТИ», 2003

2.      Организационное поведение. Латифуллин. Громовой. СПб.: Питер, 2006

.        Виханский О.С., Наумов А.И. Менеджмент: Учебник. - 3-е изд. - М.: Гардарики, 2000.

.        Ньюстром Д.В., Дэвис К. Организационное поведение. - СПб.: Питер, 2000.

.        Психология малой группы: Сборник научных трудов. - М.: МГУ, 1994.

.        Психология менеджмента. / Под ред. проф. А.М. Никифорова. - СПб.: Изд-во С.-Петербургского Университета, 2000.

.        Саймон Г.А., Смитбург Д.У., Томнсон В.А. Менеджмент в организациях. / Под ред. А.М. Емельянова. - М.: Экономика, 1995.

.        Френсис Д., Вудкок М. Раскрепощенный менеджер. - М., 1994.

.        Чуйкин А.М. Основы менеджмента: Учебное пособие. - Казань: КГУ, 1996.

.        Крорринг В.И. Искусство управления. - М.: Бек, 1998.

.        Креженцев П.М. Принципы организации // Директор, 7, 2003.

.        Рейльян Я.Р. Основа принятия управленческих решений // М.: Секрет фирмы, 1999, 4.

.        Рожков К., Коноков Д. Технико-экономические аспекты развития малого бизнеса на основе реструктуризации градообразующих предприятий // Финансовая газета, 1998, N2.

.        Акбердин Р.З., Кибанов А.Я. Совершенствование структуры, функций и экономических взаимоотношений управленческих подразделений предприятий при формах хозяйствования. Учебное пособие. - М.: ГАУ, 1999 г.

.        2. Вестник В.Н. Основы менеджмента. Курс лекций для студентов ВУЗов. - М.:, 2000.

.        3. Виханский О.С., Наумов А.И. Менеджмент - М.: Гардарика, 2002.

.        4. Глущенко В.В., Глущенко И.И. Исследование систем управления: социологические, экономические, прогнозные, плановые, экспериментальные исследования, - Желенодорожный: ООО НПЦ «Крылья», 2000.

.        5. Игнатьева А.В., Максимцов М.М. Исследование систем управления: Учеб. пособие для вузов. - М.: ЮНИТИ-ДАНА, 2000.

Похожие работы на - Исследование моделей организационного поведения

 

Не нашли материал для своей работы?
Поможем написать уникальную работу
Без плагиата!
Без нейросетей!