Електропостачання механічного цеху
РЕФЕРАТ
електричний мережа навантаження
Об’єкт проектування - електрична мережа цеху з виготовлення пiдiймальних пристроїв машинобудiвного заводу.
Мета роботи - розробка електричної мережі 0,4 кВ та вибiр основного обладнаня для
електропостачання, а також провiдникiв i захисних апаратiв, які б задовольняли основним
техніко-економічним вимогам.
Методи дослідження - технічний та економічний аналіз
порівняння варiантiв.
До електричної мережі відносяться та кабельні лінії
електропередачі, розподільчі пункти. Основним призначенням мережі, що
проектується, є надійне забезпечення електроприймачів електроенергією
відповідної якості згiдно ПУЕ. Схема електричної мережі утворюється в результаті об’єднання
окремих вузлiв мережі з урахуванням
послідовності їх з’єднань. Мережа буде обладнана устаткуванням, яке відповідає
сучасним техніко-економічним вимогам до яких відносять забезпечення надійності
в експлуатації, компактності, зручності обслуговування, безпеки при
експлуатації та виконанні ремонтних робіт на електроустаткуванні.
Курсова робота має досить велике значення для закріплення
знань з дисципліни “Електроспоживання промислових підприємств”.
ПЕРЕЛІК УМОВНИХ СКОРОЧЕНЬ
КТП - комплектна трансформаторна підстанція;
ПУЕ -
правила улаштування електроустановок;
РП - розподiльчий пристрiй;
ПРА - пускорегулююча апаратура;
ЕП -електроприймач;
КЗ - коротке замикання;
КП - компенсуючий пристрій;
АВ -автоматичний вимикач;
СП -силовий пункт;
ТБ -технiка безпеки;
ВСТУП
У зв’язку з розвитком промислових електричних мереж необхідно
проектувати та споруджувати новi, більш надійнi з точки
зору електропостачання споживачів, та економічнi електричнi мережi промислових підприємств. Систему
електропостачання промислового підприємства можна умовно розділити на
внутрішньозаводське та цехове електропостачання. Цехове електропостачання складається з живильної й розподільної
мережi напругою до 1000 В, а також
комплектну трансформаторну підстанцію (КТП).
Вибір схеми електропостачання приймачів цеху залежить від
факторів:
потужності окремих приймачів;
розташування приймачів;
площі цеху;
технологічного процесу, що визначає категорію
електроприймачів за надійністю електропостачання.
Система електропостачання повинна задовольняти наступним
вимогам:
бути зручною та надійною в обслуговуваннi;
забезпечувати необхідну якість електричної енергії;
забезпечувати безперебійність та надійність
електропостачання як в нормальному так і в аваріному режимах;
бути економічною;
забезпечувати гнучкість, тобто можливість розширення
виробництва без суттєвих витрат.
У данному курсовому проектi буде
спроектована мережа для електропостачання цеху з виготовлення пiдiймальних пристроїв машинобудiвного
заводу. Основним завданням є вибiр
кабелiв та проводiв, а також електричних апаратiв для КТП та пунктiв розподiлу електроенергії.
1. ХАРАКТЕРИСТИКА ТЕХНОЛОГІЧНОГО ПРОЦЕСУ І СПОЖИВАЧІВ
Цех по виготовленню піднімальних пристроїв машинобудівного
заводу складається з троьх ділянок: термічної, нарізання листа та механічної. У термічній ділянці, у печах опору відбувається плавка
металу, який подається до ділянки нарізання листа, де на волочильному верстаті
виготовляються листи сталі і на ножицях їм надають
необхідну форму (розміри). Потім листи сталі подаються на механічну ділянку, де
виготовляються деталі піднімальних пристроїв на шліфувальних, заточувальних,
відрізних та свердлильних верстатах. Згідно з [1] електроприймачі цеху відносяться до І та ІІ
категорії по надійності електропостачання. Електроприймачі працюють в
повторно-короткочастному та тривалому режимах. Приміщення цеху має нормальне
середовище, приміщення цеху за класифікацією - сухе приміщення. Цех складається
з 3-х дільниць розміром 36000х18000. Висота цеху Н=8 м. До цеху прибудовано службово -
побутове приміщення розміром на плані 6х36 м і висотою у два поверхи. Джерело
живлення цеху - РП-10 кВ, розташоване на відстані 95 м. Струм КЗ на шинах РП-10 кВ: I"=12 кA; I¥=11,2 кА. Завантаження змін -
1:0,9:0,3.
Матеріал колон - залізобетон, ферм і підкранових балок -
метал.
Згідно з [2] приміщення усiх дiлянок цеху мають V розряд, підрозряд Б, по класу
зорових робіт. Норма освітлення складає 200 Лк . Для проектваного цеху
застосовуємо систему трифазного змінного струму з напругою 380/220 В, з
глухозаземленною нейтраллю. Що в свою чергу дозволяє здійснювати живлення
силових навантажень та освітлення від двох трансформаторів. Силове навантаження
живиться напругою 380 В, а освітлення - 220В. Згідно вимог Техніки Безпеки,
живлення ланцюгів керування та місцевого освітлення на верстатах виконується
зниженою напругою 110В, а освітлення - 12 або 24 В.
2. СВІТЛОТЕХНІЧНИЙ РОЗРАХУНОК
Згідно до ДНБУ ІІ 4-79 “Штучне і природне освітлення. Норми проектування у виробничих приміщеннях”, використовують три види освітлення:
робоче, аварійне та евакуаційне. Ці види відрізняються за рівнем освітлення.
Робоче освітлення є обов’язковим для всіх приміщень незалежно
від їх призначення. Робоче освітлення має найвищий рівень освітленості.
Аварійне освітлення для даного цеху не є необхідним. Так як у
випадку відключення освітлення дії персоналу в темряві не можуть призвести до
вибуху, пожежі чи до довготривалого порушення технологічного процесу.
Вихідні дані:
А = 18 м; В = 36 м; Н = 8 м
Середовище по ПУЕ - нормальне.
Для заданого приміщення вибираємо систему загального
освітлення з рівномірним розташуванням джерел світла.
Для приміщень висотою більш 6 м використовують газорозрядні
лампи високого тиску, які мають велику світловіддачу та світлопередачу, тому,
за джерело світла приймаємо лампи ДРИ.
В службово-побутових приміщеннях, використовують
люмінесцентні лампи. Вони забезпечують велику рівномірність освітленості,
світловіддачу та світлопередачу [1].
Для системи евакуаційного освітлення використовуються лампи
накалювання.
Для евакуаційного освітлення використовуємо світильники для
ламп накалювання типу “Універсаль”.
При розрахунку освітленості враховується коефіцієнт запасу.
Він враховує те, що з часом світловий потік джерела світла знижується від
забруднення ламп. Для виробничих приміщень із нормальним середовищем Кз=1,4-1,6
для ламп ДРИ.
В системі загального освітлення світильники розташовують над
освітлювальною поверхнею рівномірно - правильними симетричними рядами,
створюючи при цьому відносно рівномірну освітленість по всій площі. При виборі
відстані між світильниками необхідно знайти таке, що забезпечило б найменшу
встановлену потужність освітлювальної установки і достатню для практичних умов
рівномірність освітлення.
Розрахунок примiщення термiчного вiддiлення та дiлянки нарiзання листа однаковий тому приймемо кiлькiсть та тип свiтильникiв однаковим:
Розрахункова висота приміщення визначається за формулами:
(2.1)
де h= 8 м - висота приміщення;
hc= 0,7
м - висота підвісу світильника;
hp= 0,8
м - висота поверхні з нормованою освітленістю.
Нр = 8 - 0,7 - 0,8 = 6,5 м
Відстань між світильниками в ряду та відстань між рядами складають:
Lсв = л · Нр
(2.2)
Lр = л · Нр
(2.3)
де л - крива сили світла, для КСС типу Г коефіцієнт л =
0,8 ÷ 1,1.
lсв =
0,5 · Lсв (2.4)
lр = 0,5
· Lр (2.5)
Lсв =
0,9 · 6,5 = 5,85 м
Lр = 0,9
· 6,5 = 5,85 м
lсв =
0,9 · 5,2 = 2,92 м
lр = 0,9
· 5,2 = 2,92 м
Визначимо кількість світильників в ряду:
(2.6)
Визначимо кількість рядів:
(2.7)
Перерахуємо відстань між світильниками в ряду:
(2.8)
Перерахуємо відстань між рядами:
(2.9)
Перевіримо умову рівномірності світильників:
(2.10)
,3 ≤ 0,48 ≤ 0,5
Визначимо загальну кількість світильників:
Nсв = nсв · nр (2.11)
Nсв = 6
· 3 = 18 шт.
Визначимо індекс приміщення:
і = 
(2.12)
і =
Для приміщень, в яких прийнято загальне рівномірне освітлення
горизонтальних поверхонь, освітлення розраховують методом коефіцієнта
використання світлового потоку. Згідно цього методу розрахункову освітленість
на горизонтальній поверхні визначають, враховуючи світловий потік, падаючий від
світильників безпосередньо на поверхню і віддзеркалений від стін, стелі і самої
поверхні.
(2.13)
де
- світловий потік одного світильника, Лк;
- нормативна
освітленість для класу зорових
робіт;
-
коефіцієнт запасу для ламп ДРИ;
- площа підлоги, м2;
-
загальна кількість світильників в
одному прольоті;
-
коефіцієнт використання світлового потоку, який визначається в залежності від
індексу приміщень, коефіцієнта віддзеркалення стін та робочої поверхні, а також
від висоти приміщення.
Приймаємо лампу типу ДРИ-250 з номінальним початковим світловим потоком
. Вибираємо світильники типу ГСП-18-250.
Фактична освітленість:
(2.14)
Знаходжу похибку рівня освітленості, яка має лежати в межах (-10 ÷ +20)%:
(2.15)
Встановлена потужність освітлення:
Рвст = Nсв · Рном св (2.16)
Рвст = 18 · 0,25 = 4,5 кВт
Розрахунок примiщення механічної дiльницi:
Розрахункова висота приміщення визначається за формулами:
(2.17)
де h= 8 м - висота приміщення;
hc= 0,7
м - висота підвісу світильника;
hp= 0,8
м - висота поверхні з нормованою освітленістю.
Нр = 8 - 0,7 - 0,8 = 6,5 м
Відстань між світильниками в ряду та відстань між рядами складають:
Lсв = л · Нр
(2.18)
Lр = л · Нр
(2.19)
де л - крива сили світла, для КСС типу Г коефіцієнт л =
0,8 ÷ 1,1.
lсв =
0,3 · Lсв (2.20)
lр = 0,3
· Lр (2.21)
Lсв =
0,8 · 6,5 = 5,2 м
Lр = 0,8
· 6,5 = 5,2 м
lсв =
0,3 · 5,2 = 1,56 м
lр = 0,3
· 5,2 = 1,56 м
Визначимо кількість світильників в ряду:
(2.22)
Визначимо кількість рядів:
(2.23)
Перерахуємо відстань між світильниками в ряду:
(2.24)
Перерахуємо відстань між рядами:
(2.25)
Перевіримо умову рівномірності світильників:
(2.26)
,3 ≤ 0,48 ≤ 0,5
Визначимо загальну кількість світильників:
Nсв = nсв · nр (2.27)
Nсв = 6
· 3 = 18 шт.
Визначимо індекс приміщення:
і = 
(2.28)
і =
Розрахунковий свiтловий потiк:
(2.29)
де
- світловий потік одного світильника, Лк;
- нормативна
освітленість для класу зорових
робіт;
-
коефіцієнт запасу
для ламп ДРИ;
- площа підлоги, м2;
-
загальна кількість світильників в
одному прольоті
-
коефіцієнт використання світлового потоку, який визначається в залежності від
індексу приміщень, коефіцієнта віддзеркалення стін та робочої поверхні, а також
від висоти приміщення.
Приймаємо лампу типу ДРИ-250 з номінальним початковим світловим потоком
. Вибираємо світильники типу ГСП-18-250.
Фактична освітленість:
(2.30)
Знаходжу похибку рівня освітленості, яка має лежати в межах (-10 ÷ +20)%:
(2.31)
Встановлена потужність освітлення:
Рвст = Nсв · Рном св (2.32)
Рвст = 18 · 0,25 = 4,5 кВт
Для службово-побутового приміщення установлену потужність освітлення
визначаємо по площі:
(2.33)
де
- питома потужність освітлення по площі, Вт/м2.
= 12 Вт/м2;
-
площа підлоги, м2;
Для службово-побутового приміщення прийняті люмінесцентні лампи ЛБ-80
зі світильниками ЛСП 02-2х80. Нормативна освітленість
кВт
Кількість світильників, що необхідна для встановлення:
(2.34)
Перераховуємо встановлену потужніть враховуючи кількість світильників:
(2.35)
Вт
3. РОЗРАХУНОК ЕЛЕКТРИЧНИХ НАВАНТАЖЕНЬ
3.1 Розрахунок освітлювального навантаження
Розрахунок навантаження освітлювальної мережі проводиться
методом коефіцієнта попиту.
Розрахункове навантаження живильної освітлювальної мережі
визначаються добутком встановленої потужності лампи на коефіцієнт попиту
,
а для газорозрядних ламп - ще й множенням на коефіцієнт
що враховує втрати потужності в пускорегулюючій
апаратурі (ПРА).
(3.1)
де
- розрахункове навантаження освітлювальної мережі,
кВт;
-
сума номінальних потужностей усіх ламп даної установки, кВт;
-
коефіцієнт попиту;
=
0,95 для приміщень цеху
=
0,85- для службово-побутових приміщень
коефіцієнт
втрат потужності в пускорегулюючий апаратурі:
=1,1-
для ламп ДРЛ
=1,2-
для люмінесцентних ламп
=
13,5 · 0,95 · 1,1 = 14,10 кВт
=
3,8 · 0,85 · 1,2 = 3,87 кВт
Розрахункове навантаження за реактивною потужністю визначається:
(3.2)
де
- розрахункова реактивна потужність освітлювальної
мережі, кВАР;
- коефіцієнт реактивної потужності
=
14,10 · 0,62 = 8,74 кВАр
=
3,87 · 0,62 = 2,356 кВАр
Повна потужність освітлення:
(3.3)
кВА
3.2 Розрахунок силового навантаження
Розрахунок проводився методом упорядкованих діаграм за
допомогою ЕОМ. Вихідні данні для розрахунку наведено в таблиці 3.1
Таблиця 3.1 - Вихідні дані для розрахунку електричних
навантажень методом упорядкованих діаграм
Результати розрахунку наведено в таблиці 3.2 та в додатку А
Таблиця 3.2 - Результати розрахунку електричних навантажень
З урахуванням навантаження освітлення:
(3.4)
(3.5)
кВт
кВАр
4. ВИБІР КІЛЬКОСТІ І ПОТУЖНОСТІ СИЛОВИХ ТРАНСФОРМАТОРІВ КТП З
УРАХУВАННЯМ КОМПЕНСАЦІЇ РЕАКТИВНОЇ ПОТУЖНОСТІ
Намічуємо 2 варіанти цехової підстанції для виконання техніко-
економічного порівняння варіантів. Кількість встановлюваних трансформаторів
залежить від категорії ЕП за надійністю.
Для живлення цеху з ЕП переважно ІІ категорії, можливе
застосування однотрансформаторної КТП (І варіант), або двотрансформаторної КТП
(ІІ варіант). При першому варіанті, обов’язково передбачається складський
резерв трансформаторів, для швидкого відновлення роботи підстанції.
Для однотрансформаторної підстанції коефіцієнт завантаження коливається
в діапазоні
. Потужність трансформаторів вибирається з урахуванням
установки компенсуючих пристроїв, на стороні НН (НКУ).
Визначимо розрахункову потужність трансформатора:
(4.1)
де 
-
оптимальний коефіцієнт завантаження трансформатора.
- визначаємо за активною потужністю, так як
недостатня реактивна потужність може бути скомпенсована джерелами реактивної
потужності.
Втрати реактивної потужності:
(4.2)
Пропускна здатність трансформатора за реактивною потужністю:
(4.3)
Визначимо розрахункову потужність компенсуючих пристроїв на
стороні НН:
(4.4)
де
- розрахункова реактивна потужність, кВАр.
Повна розрахункова потужність з урахуванням КУ на стороні НН:
(4.5)
Перевірка коефіцієнту завантаження трансформатора проводиться за
формулою:
Кз = 
(4.6)
Необхідність установки компенсуючих пристроїв на стороні ВН
визначається за формулою:
=
Qр + ДQт - 
-
Qе (4.7)
де Qе - економічно обґрунтована реактивна
потужність при tgцд = 0,33
Qе =
Рроз · tgцд (4.8)
За
формулами (4.1) - (4.7) проведемо
розрахунки обох варіантів КТП.
Перший варіант - одно трансформаторна КТП.
кВА
Обираємо найближче більше стандартне значення потужності трансформатора
630 кВА, трансформатор ТМЗ-630/10. Відповідно, можна встановити комплектну
трансформаторну підстанцію КТП-630/10/0,4, що допускає перевантаження на 40%.
Трансформатор має такі параметри:
,
,
,
,
,
,
.
кВАр
Так як, пропускна спроможність трансформатора по реактивній потужності
цілком задовольняє умови передачi розрахункової реактивної потужностi, то потреби у компенсацiйних установках на сторонi 0,4кВ немає.
Розрахунок компенсацiйних установок на сторонi ВН:
кВА
=
0,84≤ 0,9
Qе =
429,5 · 0,33 = 137,956 кВАр
=
266,5+ 368,28 - 137,956 - 0 = 168,523 кВАр
Встановлюємо КУ на сторонi ВН типу УФМ(5)-10,5-150-У3
Другий варіант - двотрансформаторна КТП.
кВА
Обираємо найближче більше стандартне значення потужності трансформатора
400 кВА, трансформатор ТМЗ-400/10. Відповідно, можна встановити комплектну
трансформаторну підстанцію КТП-2х400/10/0,4. Трансформатор має такі параметри
,
,
,
,
,
,
.
кВАр
Так як, пропускна спроможність трансформатора по реактивній потужності
цілком задовольняє умови передачi розрахункової реактивної потужностi, то потреби у компенсацiйних установках немає.
Розрахунок компенсацiйних установок на сторонi ВН:
кВА
=
0,66≤ 0,7
Qе =
429,5 · 0,33 = 137,956 кВАр
QВКУ =
266,5+ 357,41 - 137,956 - 0 = 163,556 кВАр
Встановлюємо КУ на сторонi ВН типу УФМ(5)-10,5-150-У3
Для техніко-економічного розрахунку розглядається два варіанти
трансформаторної підстанції, схеми яких приведені на рисунку 4.1
В першому варіанті встановлюємо однотрансформаторну підстанцію
КТП-630/10. Перевагою даного варіанту є те, що однотрансформаторна підстанція
дешевше двотрансформаторної, але в після аварійному режимі після відключення
трансформатора втрачає живлення весь цех.
В другому варіанті встановлюємо двотрансформаторну підстанцію КТП-2
400/10,
яка дорожче однотрансформаторної, але в після аварійному режимі при відключенні
одного з трансформаторів втрачає живлення не весь цех. Техніко-економічне
порівняння варіантів дозволяє визначити оптимальний варіант трансформаторної
підстанції. Критерієм цього є мінімум річних приведених витрат.
Рисунок 4.1 - Графічне зображення варіантів КТП
Техніко-економічне порівняння варіантів проводиться шляхом
визначення наведених витрат по формулі:
(4.9)
де
=0,12 - нормативний коефіцієнт ефективності
капітальних витрат;
-
капітальні витрати для і-го варіанта;
-
експлуатаційні витрати для і-го варіанта;
-
збиток від перерви електропостачання для і-го варіанта;
Капітальні витрати складають:
Кі = Кктп + Кку (4.10)
де Кктп - капіталовкладення на спорудження КТП, грн.;
Кку - вартість компенсую чого пристрою, грн.;
К1= 28+11,4=39,44 тис.грн.
К2 = 2 · 24,5+11,47=60,44 тис.грн.
Експлуатаційні витрати визначаються по формулі:
Ва + Воб = (
)
· Кі (4.11)
де Ка, Коб - коефіцієнти відрахування на амортизацію та обслуговування,
відповідно: Ка = 6,4%, Коб = 3%.
(Ва + Воб)1 = (
)
· 39,44 = 3,707 тис.грн.
(Ва + Воб)2 = (
)
· 60,44 = 5,681 тис.грн.
Річні втрати електроенергії в трансформаторах складають:
ДW = nт · (ДРст + 
·
ДРобм · фmax) (4.12)
де фmax - число годин максимальних втрат;
(4.13)
ДW1 =1 · (1,31 · 8760 + 
·
7,6 · 3804) ·
= 34,894 МВт·год
ДW2 = 2 · (0,95 · 8760 + 
·
5,5 · 3804) ·
= 37,149 МВт·год
Вартість річних втрат електроенергії, складає:
Ввт = ДW · С (4.14)
де С - вартість одного кВт·год електроенергії. С = 0,8 грн.;
Ввт1 = 0,8 · 34,894 = 27920 грн.
Ввт2 = 0,8 · 37,149 = 29720 грн.
Рисунок 4.2 - Схема заміщення для визначення ймовірності перериву в
електропостачанні.
(4.15)
(4.16)

Вартість збитків від перерви в електропостачанні:
Взб = У0 · Рр · Тmax · q∑ (4.17)
де У0 - питомий збиток від перерви в електропостачанні, У0 =3,5;
Взб1 =
тис.грн.
Взб2 =
тис.грн.
Приведені витрати по кожному варіанту складають:
З1 = 39,44 · 0,12 + 3,707 + 1452 + 27920 =29,378 тис.грн.
З2 = 60,44· 0,12 + 5,681+ 0,11 + 29720 = 29,732 тис.грн.
Порівняємо приведені витрати по кожному варіанту між собою:
(4.18)
Оскiльки приведенi
витрати схем вiдрiзняються менше нiж на 5%, а також через неоднорiдне завантаження змiн обираємо схему з бiльш високою надiйнiстю електропостачання, це схема 2.
5. ВИБІР ЕЛЕКТРИЧНИХ АПАРАТІВ І ПРОВІДНИКІВ ЖИВИЛЬНОЇ МЕРЕЖІ
Для РП-10кв вибираємо осередку КРП типу КУ-10Ц з вимикачем
ВР1-10-20/630
У2.
Робочий максимальний струм на стороні ВН:
(5.1)
А
Таблиця 5.1 - Умови вибору й перевірки вимикача КРП
|
Данi
вимикача
|
Розрахунковi данi
|
|
Uном > Uмер
|
10,5
|
10
|
|
Іном > Імах.раб.
|
630
|
13,1
|
|
Івим > Ік.з.
|
20
|
12
|
|
Ідин > іуд.
|
52
|
30,5
|
|
І2к.з·tk >Bk
|
1200
|
144
|
В осередку КРП установлюємо трансформатори струму
ТОЛ-10/50-5У3, та трансформатор нульової послідовності ТЗЛ.
Площа перетину КЛ-10кВ вибирається за економічною густиною
струму.
Вибір перерізу за економічною густиною струму проводиться по
формулі:
(5.2)
де
- економічна густина струму
для КЛ з алюмінієвими жилами, при Тmax>5000 год.
мм2
З
довідникових даних вибираємо
найближчий бiльший стандартний
переріз кабелю Sст = 16 мм2.
Вибір перерізу за термічної стійкістю до струмів КЗ проводиться по
формулі:
(5.3)
де
- коефіцієнт для
КЛ ААШв при прокладці у траншеї;
-
наведений час к.з.,
;
,
- періодична й аперіодична складові
(5.4)
де
- фактичний час
к.з.
с
Цей метод веде до завищення, тому обираємо найближчий менший
стандартний перетин, тобто 95 мм2.
Обираємо КЛ марки ААШв 3х95. Кабель прокладено у траншеї.
Вибір перерізу за довгостроковим припустимим нагріванням при
ПАР проводиться по формулі:
Ідоп = 
(5.5)
де Кпоп - поправочний коефіцієнт, Кпоп = 1,25;
Кпр - коефіцієнт, що враховує умови прокладки, Кпр = 0,8;
Ксер - коефіцієнт, що враховує вплив навколишнього середовища, Ксер =
1.
А
За
довідниковими даними перевiряємо найближчий переріз кабелю за умови:
Ідл доп ≥ Ір max (5.6)
≥ 26,1
6. РОЗРАХУНОК ЦЕХОВОЇ МЕРЕЖІ
.1 Вибір схеми й конструктивного виконання цехової
мережі
Для цехової мережі обрана радіальна схема із застосуванням
силових пунктiв типу ШР-11, укомплектованих запобіжниками,
приєднаних до РП-0,4 кВ КТП.
Розташування КТП у цеху неможливо, тому КТП виконується
прибудованого типу з боку зовнішнього джерела живлення. КТП містить у собі два
силових трансформатори ТМ-400/10, шафи вводу ШНВ-3У3, лінійні шафи ШНЛ-4У3,
укомплектованих автоматичними вимикачами серії ВА.
Живильна мережа 0,4 кВ виконана кабельними лініями, із
прокладкою кабелів по стінах на конструкціях.
Розподільна мережа 0,4 кВ виконана проводом марки АПВ із
прокладкою в пластикових трубах, у підлозі.
Результати розрахунку навантажень по вузлам за допомогою ЕОМ
наведені в Додатку Б, та в таблиці 6.1
Таблиця 6.1 - Результати розрахунку по вузлам на ЕОМ
Продовження таблицi 6.1
Таблиця 6.2 - Вибір апаратів захисту шаф КТП
.2 Розрахунок живильної мережі
Живильна мережа - це ділянка цехової мережі від РП-0,4 кВ до
СП. Для данної мережі проведемо вибір уставок автоматичних вимикачів та вибір
перерізу кабельної лінії.
Уставки автоматичних вимикачів вибираються за наступними
умовами:
|
Uном > Uмер
|
|
Іном > Імах.раб.
|
|
Ітеп роз ≥ Ір
|
|
Іел маг роз ≥ 1,25 · Іпік
|
де Uном а - номінальна напруга АВ, В;
Uмер - номінальна напруга мережі, В;
Іном а - номінальний струм АВ, А;
Ітеп роз - номінальний струм теплового розчеплювача АВ, А;
Іел маг роз - струм електромагнітного розчеплювача АВ, А;
Ір - розрахунковий струм лінії, А;
Іпік - піковий струм лінії, А.
Іпік = Ір + (Кп - 1) · Іном max (6.1)
де Кп - коефіцієнту пуску.
Переріз КЛ проводиться за умовою:
Ідоп ≥ 
(6.2)
де Кпоп - поправочний коефіцієнт, Кпоп = 0,92;
Ксер - коефіцієнт, що враховує вплив навколишнього середовища, Ксер =
1.
Проведемо вибір уставок АВ та перерізу КЛ для лінії від РП-0,4кВ до
СП-1. Для встановлення в шафі КТП обираємо автоматичний вимикач ВА52-35.
|
Данi
вимикача
|
Розрахунковi данi
|
|
Uном > Uмер
|
400
|
380
|
|
Іном > Імах.раб.
|
250
|
129,4
|
|
Ітеп роз ≥ Ір
|
160
|
129,4
|
|
Іел маг роз ≥ 1,25 · Іпік
|
1600
|
456,3
|
Вибiр перерізу КЛ проводиться за умовою:
Ідоп ≥
А
Вибираємо кабель
АВВГ 3х95 + 1х70 Ідоп = 170А.
Перевіримо відповідність перерахованого довготривалого струму
КЛ з апаратами захисту:
Ідоп ≥Ітерл.розч(6.4)
≥160
Умови виконуються
Розрахунок для останніх приєднань проводиться аналогічно.
Результати вибору уставок та переізу КЛ наведено в зведеній таблиці 6.3.
Таблиця 6.3 - Вибір уставок АВ та перерізів КЛ для живильної
мережі
Для розподільчої мережі вибираємо провід АПВ та ШР-11 з
запобіжниками типу ПН-2.
Номінальний струм плавкої вставки вибирається за умовами:
Uном зап ≥ Uмер (6.5)
(6.6)
де Іпік - піковий струм ЕП, А;
-
коефіцієнт пуску.
= 2,5 легкий пуск;
=
1,6 важкий пуск.
Ір ЕП - номінадьний струм електроприймача, А;
(6.7)
Перетин проводів АПВ вибирається за умовою:
Ідоп ≥
Ір ЕП (6.8)
Проведемо вибір запобіжників та перерізу проводу АПВ для
вентиляторів потужністю Р=22 кВт.
Для встановлення обираємо запобіжники ПН2-250-100. Перевіримо їх по
умовам (6.5) - (6.6):
В ≥ 380 В
А ≥ 88,2 А
За умовою (6.8) оберемо переріз проводу АПВ:
А ≥ 44,1 А
Вибираємо провід АПВ 3(1х10)+1х8.
Перевiримо вiдповiднiсть запобiжникiв обраному
перерiзу провода:
(6.6)
Розрахунки для інших ЕП виконані аналогічно. Результати розрахунку
наведено в зведеній таблиці 6.4
Таблиця 6.4 - Вибір уставок запобіжників та перерізів проводів
розподільної мережі
|
№ ЕП за планом
|
Найменув. ЕП
|
Р,кВт
|
Тип Запобіжн.
|
Іном пл вст., ≥ Іпік/k, А
|
Переріз проводу АПВ
|
Ідоп ≥ Іном ЭП, А
|
|
49,53
|
Холодильно-висадочний автомат
|
4,5
|
ПН2-100-31,5
|
31,5≥21,6
|
4(1х2,5)
|
19≥10,8
|
|
54
|
Холодильно-висадочний автомат
|
28
|
ПН2-250-125
|
125≥103,3
|
3(1х16)+1x10
|
60≥51,6
|
|
7
|
Внутрiшньо-шлiфувальний верстат
|
20
|
ПН2-250-100
|
100≥82
|
3(1х10)+1x8
|
47≥41
|
|
16,17,18
|
Абразивно-вiдрiзний верстат
|
7
|
ПН2-100-40
|
40≥33,7
|
4(1х2,5)
|
19≥16,8
|
|
34
|
Пресс
|
20
|
ПН2-100-50
|
50≥41
|
3(1х10)+1x8
|
47≥41
|
|
14,15,35
|
Безцентрово-шлiфувальний верстат
|
21
|
ПН2-250-100
|
100≥84,2
|
3(1х10)+1x8
|
47≥42,1
|
|
37,45
|
Наждаковий верстат
|
2,5
|
ПН2-100-31,5
|
31,5≥12
|
4(1х2,5)
|
19≥6
|
|
28,29
|
Безцентрово-шлiфувальний верстат
|
14,5
|
ПН2-100-60
|
60≥59,1
|
3(1х5)+1x4
|
30≥29,5
|
|
36,39,41 42,46
|
Токарно-автоматичний верстат
|
5,5
|
ПН2-100-31,5
|
31,5≥26,5
|
4(1х2,5)
|
19≥13,2
|
|
13
|
Мийна машина
|
5
|
ПН2-250-80
|
31,5≥12
|
3(1х4)+1x2,5
|
28≥12
|
|
24,32,33
|
Абразивно-вiдрiзний верстат
|
14
|
ПН2-100-80
|
80≥61,7
|
3(1х10)+1x8
|
47≥30,9
|
|
44
|
Токарно-гвинторiз. верстат
|
7
|
ПН2-100-40
|
40≥33,7
|
4(1х2,5)
|
19≥16,8
|
|
51
|
Електро- тельфер
|
5,1
|
ПН2-100-31,5
|
31,5≥24,53
|
4(1х2,5)
|
19≥12,3
|
|
31
|
Кран
|
10,4
|
ПН2-250-125
|
125≥101,1
|
3(1х10)+1x8
|
47≥23,1
|
|
50,55
|
Вiброножицi
|
2,5
|
ПН2-100-31,5
|
31,5≥12,3
|
4(1х2,5)
|
19≥6,2
|
|
40,52
|
Роликовi
ножицi
|
4
|
ПН2-100-31,5
|
31,5≥19,24
|
4(1х2,5)
|
19≥9,6
|
|
56,57
|
Гiльотиннi ножицi
|
6,6
|
ПН2-100-40
|
40≥31,7
|
4(1х2,5)
|
19≥15,9
|
|
58
|
Гiльотиннi ножицi
|
12,5
|
ПН2-100-60
|
60≥56,4
|
3(1х5)+1x4
|
30≥28,2
|
|
59
|
Гiльотиннi ножицi
|
28
|
ПН2-250-125
|
125≥103,3
|
3(1х16)+1x10
|
60≥51,7
|
|
19,20,21 22,23
|
Пила
|
9
|
ПН2-100-50
|
50≥41,7
|
3(1х3)+1x2,5
|
22≥20,8
|
|
№ ЕП за планом
|
Найменув. ЕП
|
Р,кВт
|
Тип Запобіжн.
|
Іном пл вст ≥ Іпік/k ,А
|
Переріз проводу АПВ
|
Ідоп ≥ Іном ЭП, А
|
|
|
43
|
Вертикально-сверлильний верстат
|
3
|
ПН2-100-40
|
40≥36,5
|
4(1х2,5)
|
19≥7,3
|
|
|
12
|
Точильний верстат
|
2,2
|
ПН2-100-3,15
|
31,5≥10,85
|
4(1х2,5)
|
19≥5,4
|
|
|
60
|
Волочильний верстат
|
2
|
ПН2-100-3,15
|
31,5≥9,7
|
4(1х2,5)
|
19≥4,93
|
|
|
8
|
Голтовочний барабан
|
3,5
|
ПН2-250-80
|
80≥17
|
3(1х4)+1x2,5
|
28≥8,5
|
|
|
9
|
Вентилятор
|
4,5
|
ПН2-250-80
|
80≥21,6
|
3(1х4)+1x2,5
|
28≥10,8
|
|
|
5,10,47 48
|
Вентилятор
|
40
|
ПН2-250-160
|
160≥137,9
|
3(1х25)+1x16
|
80≥69
|
|
|
1,2,3,4
|
Вентилятор
|
22
|
ПН2-250-100
|
160≥88,2
|
3(1х10)+1x8
|
47≥44,1
|
|
|
25,26,27
|
Печi
опору
|
50
|
ПН2-250-100
|
100≥79,9
|
3(1х25)+1x16
|
80≥79,9
|
|
|
38
|
Пресс
|
20
|
ПН2-250-80
|
80≥41
|
3(1х10)+1x8
|
47≥41
|
|
|
6
|
Наждаковий верстат
|
2,5
|
ПН2-250-80
|
80≥12
|
3(1х4)+1x2,5
|
28≥6
|
|
|
30
|
Електротельфер
|
5,1
|
ПН2-250-80
|
80≥24,53
|
3(1х4)+1x2,5
|
28≥12,3
|
|
|
11
|
Точильний верстат
|
2,2
|
ПН2-250-80
|
80≥10,85
|
3(1х4)+1x2,5
|
28≥5,4
|
|
|
|
|
|
|
|
|
|
|
|
|
|
.3 Розрахунок тролейних ліній
Потужність, що споживається крановою установкою:
кВт
(6.10)
кВт
Розрахунковий струм однієї кранової установки:
(6.11)
Де
- коефiцiент попиту.
А
Для встановлення обираємо сталеву полосу з габаритами 25х4 та тривало
допустимим струмом 85 А.
Ітролеї ≥ Ірозр (6.12)
≥ 17,56
Для визначення втрат напруги в тролейній лінії розрахуємо піковий струм.
(6.13)
(6.14)
A

Розрахункова довжина тролейлої лінії:
(6.15)
м
Допустима втрата напруги складає:
(6.16)
де Дe=10,5
-втрати напруги на 100А струму та 100м
довжини тролеї;
В
Для запобіжників, що встановлені в ЯРЗ-100 IP54 для
живлення кранових тролейних ліній, вибираємо струм плавкої вставки:
(6.17)
Обираємо запобіжники типу ПН2-100-31,5.
7. РОЗРАХУНОК СТРУМІВ КЗ У МЕРЕЖАХ НАПРУГОЮ МЕНШЕ
1000 В
Розрахунок струмів кз виконуємо для найбільш віддаленого ЕП
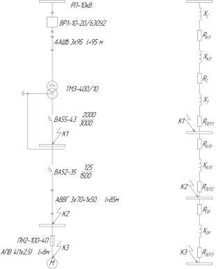
підключеного до СП6. В даному випадку розрахунок проведемо для абразивно-вiдрiзного верстата за номером 18 на планi цеху.
Розрахунок виконується методом іменованих одиниць.
Розрахункова схема й схема заміщення наведені на Рисунку 7.1.
А) Б)
Рисунок 7.1 - Схеми для розрахунку струмів КЗ
А) вихідна схема;
Б) схема заміщення.
Розрахуємо індуктивні та активні опори прямої послідовності
елементів схеми. Визначимо опір системи за формулою:
(7.1)
де
- надперехідний струм КЗ,
кА за завданням;
-
номінальна напруга на високій стороні,
кВ;
-
номінальна напруга на низькій стороні,
кВ.
мОм
Визначимо опір для кабельної лінії:
(7.2)
(7.3)
де
,
-
питомі активний та індуктивний опори відповідно, мОм/м.
=95 м - довжина кабельної лінії.
мОм
мОм
Визначимо активний опір трансформатора:
(7.4)
мОм
Визначимо реактивний опір трансформатора:
(7.5)
де
- напруга КЗ, %;
-
номінальна потужність трансформатора, кВА.
Для трансформатора ТМ 400/10/0,4
%.
мОм
Визначимо опір для кабельної лінії РП-0,4 кВ - СП6.
Кабель АВВГ 3(1х70) + 1х50.
Опір фазної жили складає:
(7.6)
(7.7)
де
,
-
питомі активний та індуктивний опори відповідно, Ом/км.
м - довжина кабельної лінії.
мОм
мОм
За формулами (7.2) та (7.3) знайдемо опори нульової жили кабелю:
мОм
мОм
Опір петлі фаза - нуль для кабелю АВВГ складає:
(7.8)
(7.9)
мОм
мОм
За формулами (7.2) та (7.3) знайдемо опори фазної та нульової жили
проводу АПВ:
мОм
мОм
мОм
мОм
Опір петлі фаза - нуль проводу АПВ 4(1х2,5):
мОм
мОм
Знайдемо значення струму трифазного КЗ для точки К1.
Результуючий опір системи для точки К1 складає:
(7.10)
де
-перехідний опір контактів автоматичного вимикача.
(7.11)
(7.12)
мОм
мОм
мОм
Трифазний струм КЗ визначимо за формулою:
(7.13)
кА
Ударний струм короткого замикання визначається за формулою:
(7.14)
де Ку - ударний коефіцієнт. Ку = 1,8;
кА
Знайдемо значення струму однофазного КЗ для точки К1.
Результуючий опір системи для точки К1 складає:
(7.15)
(7.16)
(7.17)
де Rт, Хт - значення опору силового трансформатора струму однофазного
замикання на корпус, мОм;
мОм
мОм
мОм
Струм однофазного КЗ визначаємо за формулою:
(7.18)
кА
За отриманими значеннями струмів КЗ проведемо перевірку автоматичного
вимикача ВА55-43 за наступними умовами:
|
Данi
вимикача
|
Розрахунковi данi
|
|
Івим > Ік.з(3).
|
9,6
|
8,48
|
|
iдин ≥ iуд
|
80
|
21,58
|
|
Ік.з(1)≥ 1,25 · Іелм роз
|
5,54
|
3750
|
Знайдемо значення струму трифазного КЗ для точки К2.
Результуючий опір системи для точки К2 складає:
(7.19)
(7.20)
(7.21)
мОм
мОм
мОм
Трифазний струм КЗ визначимо за формулою:
(7.22)
кА
Ударний струм короткого замикання визначається за формулою:
(7.23)
де Ку - ударний коефіцієнт. Ку = 1,8;
кА
Знайдемо значення струму однофазного КЗ для точки К2.
Результуючий опір системи для точки К2 складає:
(7.24)
(7.25)
(7.26)
мОм
мОм
мОм
Струм однофазного КЗ визначаємо за формулою:
(7.27)
кА
За отриманими значеннями струмів КЗ проведемо перевірку автоматичного
вимикача ВА52-35 за наступними умовами:
|
Данi
вимикача
|
Розрахунковi данi
|
|
Івим > Ік.з(3).
|
12
|
3,38
|
|
iдин ≥ iуд
|
30
|
8,6
|
|
Ік.з(1)≥ 1,25 · Іелм роз
|
2,66
|
2,5
|
Знайдемо значення струму трифазного КЗ для точки К3.
Результуючий опір системи для точки К3 складає:
(7.28)
(7.29)
(7.30)
мОм
мОм
мОм
Трифазний струм КЗ визначимо за формулою:
(7.31)
кА
Ударний струм короткого замикання визначається за формулою:
(7.32)
де Ку - ударний коефіцієнт. Ку = 1,8;
кА
Знайдемо значення струму однофазного КЗ для точки К3.
Результуючий опір системи для точки К3 складає:
(7.33)
(7.34)
(7.35)
мОм
мОм
мОм
Струм однофазного КЗ визначаємо за формулою:
(7.36)
кА
За отриманими значеннями струмів КЗ проведемо перевірку запобiжника
ПН2-100-40 за наступними умовами:
кА
Умови
перевiрки виконано, отже обраний запобiжник
вiдповiдає
вимогам чутливостi до однофазних КЗ.
8. ОСНОВНІ ЗАХОДИ ЩОДО ТЕХНІКИ БЕЗПЕКИ
Основними захисними заходами щодо ТБ у цехових мережах є
занулення, що виконується шляхом з'єднання нульового проводу заземленої нейтралi трансформатора й корпуса
електроприймача. Застосування занулення дозволяє підвищити чутливість захисних
апаратів до струмів однофазного КЗ. У розділі 7 захисні апарати перевірені на
чутливість до струмів однофазного КЗ - вимоги до чутливості виконуються.
Також у цехових мережах застосовуються заземлення, які
виконуються шляхом приєднання до заземлюючого пристрою металевих корпусів ЕП,
які не перебувають під напругою. Заземлюючий пристрій складається із
внутрішнього й зовнішнього контуру. Внутрішній контур заземлення виконується
сталевою смугою перетином 25х2 мм, прокладеної на висоті 0,4м вiд землi. Внутрішній контур з'єднується із
зовнішнім контуром заземлення, що виконується за допомогою заглиблених
вертикальних електродів (сталевих стрижнів довжиною l=4м і діаметром d=0,013м)
розташованих у ряд і з'єднаних горизонтальним електродом (сталева смуга
0,04х0,004м)
Для спільних захистів електричних установок напругою U>1000B з
ізольованої нейтралю та з U<1000B із глухозаземленою нейтралю. Опір
заземлюючого пристрою 
Вихідними даними для розрахунку заземлення є:
вид ґрунту - суглинок;
питомий електричний опір ґрунту - 
Для вертикальних електродів опір ґрунту з урахуванням коефіцієнта
сезонності: Ксез ве=1,4; Ксез ге=2
(8.1)
(8.2)
Опір розтікання струму для вертикальних електродів:
(8.3)
Коефіцієнт використання вертикальних електродів
Попередня кількість вертикальних електродів:
(8.4)
Приймаємо nве=12 шт
При відстані між вертикальними електродами 
довжина
горизонтального електрода:
(8.5)
Опір розтікання струму для горизонтального електрода:
(8.6)
Ом
Сумарний опір вертикальних електродів:
(8.7)
Опір заземлюючого пристрою:
(8.8)

,
що задовольняє умовам.
Згідно з проведеним розрахунком приймаємо для зовнішнього
контуру заземлення 12 вертикальних електродів, що знаходяться на відстані 5 м
один від одного та розташовані в ряд.
ВИСНОВОК
У курсовому проекті розроблена схема електропостачання
механічного цеху за такими пунктами:
Зроблений світлотехнічний розрахунок цеху і обрані світильники
робочого освітлення ГСП-18 з лампами ДРИ-250. Розрахункове навантаження
освітлення визначене методом коефіцієнта попиту.
Розрахунок силового навантаження проводився методом
упорядкованих діаграм на ЕОМ, результати розрахунку наведенi в додатку А.
По результатам порiвняння зведених витрат двох варіантів обрана прибудована КТП
2х400кВА із трансформатором ТМ3 400/10 на пiдставi преважаючого числа електроприймачiв IIї за надiйнiстю по ПУЕ, та нерiвномiрного добового графiку роботи цеху. Також вибрана установка
КП типу УФМ(5)-10,5-150УЗ для встановлення на сторонi ВН.
Для мереж 10 кВ обрано КРП типу КУ-10Ц з вимикачем
ВР1-10-20\630У2 та КЛ на 10 кВ ААШв 3х95 із прокладкою у траншеї.
Для мереж 0,4 кВ обрано двi шави вводу ШНВ-3У3 з вимикачами
ВА55-43, двi лiнiйнi шафи ШНЛ-4У3 на 5 вiдгалужень з автоматами типу ВА52-35,
секцiйна шафа ШНС-3У3 з вимикачем
ВА55-43.
Розроблено однолiнiйну схему цехової мережі, обрані уставки захисних апаратів і перетин проводів
та КЛ. В якості тролейних ліній обрана сталева смуга 25х4мм.
На підставі розрахунків струмів КЗ у мережі до 1кв зроблена
перевірка захисних апаратів та КЛ.
Для забезпечення ТБ персоналу цеху зроблений розрахунок
заземлюючого пристрою з вибором його конфігурацій.
ПЕРЕЛIК ЛІТЕРАТУРИ
1. Цигельман И.Е. Электроснабжение гражданских зданий и
коммунальных предприятий. - М.: Высшая школа, 1982
2. СН 357 “Инструкция по проектированию силового и осветительного оборудования
промышленных предприятий”.
3. Федоров А.А., Старкова А.Е. Учебное пособие для курсового и дипломного проектирования. -
М.: Энергоиздат, 1987.
. Справочник по проектированию по электроснабжения линий электропередач
и сетей/ ред. Я.М. Больмама, В.И. Круковича, М.А. Самовера - М. Энергия, 1975.
. Правила устройства електроустановок - М. Энергоиздат, 1985.
. Справочник по электроснабжению и электрооборудованию/ ред. Федоров А.А. -
М. Энергия,
1987.
. Справочник по электроснабжению промышленных предприятий/ ред. Федоров А.А. и Сербинского Г.В. - М. Энергия, 1973.
. Электротехнический справочник. Т3- М.: Энергоиздат,
1987.
. Справочник по проектированию электрических сетей и электрооборудования/ ред. Барыбин
Ю.Г. - 1991.
0. Липкин Б.Ю. Электроснабжение промышленных предприятий и установок. - М.: Высшая школа, 1981
1. Методические указания к курсовому проекту по курсу “ Электроснабжение промышленных предприятий ”. - 3.: ЗНТУ, 2004
2. Неклепаев Б.Н., Крючков И.П. Электрическая часть электростанций и
подстанций: Справочные материалы. - М.: Энергоиздат, 1989.