Проектировка гравитационного бетоносмесителя периодического действия
Министерство
образования и науки РФ
Федеральное
Государственное бюджетное образовательное учреждение
высшего
профессионального образования
«Себряковский
филиал Волгоградского государственного
архитектурно-строительного
университета»
Кафедра
общетехнических дисциплин и механизации строительства
Курсовая
работа по предмету
"Механическое
оборудование"
по
теме: «Проектировка гравитационного бетоносмесителя периодического действия»
Выполнил: студент
группы 21с-12 Игнатенко В.А.
Проверил: Филатов Н.В.
Михайловка
2013 год
1. ГРАВИТАЦИОННЫЙ БЕТОНОСМЕСИТЕЛЬ ПЕРИОДИЧЕСКОГО
ДЕЙСТВИЯ
1.1 ОБЩИЕ СВЕДЕНИЯ
Процесс перемешивания сыпучих строительных
материалов применяется для получения однородной массы, состоящей из нескольких
компонентов, что обеспечивает их равномерный контакт по всему объёму и создаёт
оптимальные поверхности реагирующих веществ. Наиболее распространённым является
механический способ приготовления смесей в машинах, называемых смесителями.
В гравитационных смесителях материал
перемешивается в барабанах, к внутренним стенкам которых прикреплены лопасти.
При вращении барабана смесь под действием сил трения о корпус и лопостями
поднимается на некоторую высоту и падает оттуда под действием сил тяжести (или
гравитации). Для получения сравнительно однородной смеси производят 30-40
циклов её подъёма и сбрасывания в барабане. Для свободного падения смеси в
корпусе барабана, его объём должен в несколько раз превышать объём загружаемой
смеси. Скорость вращения барабана должна быть невысокой (15-20 об/мин), чтобы
центробежные силы не препятствовали свободному падению смеси.
Бетоносмесители входят в комплект оборудования
бетонных заводов или бето-носмесительных цехов заводов ЖБИ. Бетоносмеситель
(рис. 1) состоит из рамы, опорных стоек, смесительного барабана, траверсы,
привода вращения барабана и пневмо- или гидроцилиндра для опрокидывания
барабана.
Смесительный барабан (рис. 2) представляет собой
ёмкость в виде двух конусов, соединённых цилиндрической обечайкой, внутренняя
поверхность которых снабжена футеровкой из сменных листов износостойкой стали.
В барабане на кронштейнах закреплены три передние и три задние лопасти. К
цилиндрической обечайке барабана с внешней стороны на прокладках приварен
зубчатый венец, а к торцу переднего конуса - фланец.
Траверса представляет собой сварную конструкцию
коробчатого сечения, выполненную в виде полукольца с цапфами на концах. Цапфы с
подшипниками закреплены на стойках и служат для поворота смесительного
барабана. На траверсе смонтированы опорные и поддерживающие ролики,
обеспечивающие вращение и удержание от осевых перемещений барабана при
разгрузке. На наружной стенке левой стойки установлен пневмопривод. На правой
стойке находится выводная коробка и два конечных выключателя в крайних
положениях барабана при его наклоне. Опорный ролик, вращающийся в подшипниках,
установлен на эксцентриковой оси, позволяющей регулировать положение роликов
для нормального зацепления шестерни и зубчатого венца при монтаже и изнашивании
роликов. Поддерживающие ролики также смонтированы на эксцентрико- вых осях,
позволяющих регулировать зазор между коническими поверхностями зубчатого венца
и ролика.
Рис.1 Бетоносмеситель СБ-103
-шиток; 2-кожух; 3 - барабан; 4 - пневмосистема;
5 - выводная коробка; 6-траверса; 7 - стойка; 8 - опорный ролик; 9 - подшипник
(цапфа); 10 - поддерживающий ролик; 11-конечные выключатели;
12-электродвигатель; 13-рама; 14-фланец.
Промышленностью выпускаются
гравитационные бетоносмесители циклического действия (БГЦ), с объёмом по загрузке
100 ÷ 3000 л, и
непрерывного действия, которые используются на заводах большой
производительности (св. 100 м
/ч), [1]. Характеристики некоторых
смесителей периодического действия, выпускаемых промышленностью, приведены в
таблице 1, [2].
Бетоносмесители, входя в комплект
оборудо-ания бетоносмесительных цехов и заводов, явля-тся базовыми машинами,
определяющими их производительность.
Рис. 2 Смесительный барабан. 1 -
крышка; 2 - задняя лопасть; 3 - передняя лопасть; 4 - футеровка; 5 - зубчатый
венец; 6 - кронштейн.
|
Параметры
|
|
ТИП
БЕТОНОСМЕСИТЕЛЯ
|
|
|
СБ-16Г
|
СБ-91Б
|
СБ-10В
|
СБ-94
|
СБ-3
|
СБ-103
|
|
Вместимость
по загрузке V3, м3
|
0,5
|
0.75
|
1.2
|
1.5
|
2.4
|
3
|
|
Объём
готового замеса -VГ,м3
|
0.33
|
0.5
|
0.8
|
1
|
1.6
|
2
|
|
Число
замесов, ч-1-ZC
|
30
|
25
|
25
|
20
|
20
|
20
|
|
Частота
вращения барабана, об/ с - пБ
|
0.3
|
0.3
|
0.283
|
0.293
|
0.21
|
0.21
|
|
Наибольшая
крупность заполнителя, мм
|
60
|
80
|
120
|
120
|
120
|
150
|
|
Производительность
техническая, м / час
-П9.9
|
12.5
|
20
|
20
|
32
|
40
|
|
|
Мощность
электродвигателя, кВт - N Д
|
4
|
4
|
13
|
15
|
25
|
28
|
|
Масса,
кг
|
1900
|
1250
|
3850
|
3000
|
8080
|
7200
|
.2 ЭЛЕМЕНТЫ ТЕОРИИ
бетоносмеситель
строительный редуктор электродвигатель
1.2.1 Коэффициент выхода бетонной смеси
Отношение объёма готового замеса - VГ
к объёму исходных компонентов смеси, загружаемых в смеситель (или к объёму по
загрузке) - У3, называется коэффициентом выхода смеси
кв=VГ/Г3
(1)
для бетона кв = 0.65 ÷
0.7, для
раствора кВ = 0.85 ÷ 0.9. Вместимость
смесителя по загрузке можно найти из выражения
V3=VГ/кв
.2.2 Внутренний диаметр цилиндрической части
барабана
Чтобы смесь могла свободно
циркулировать в барабане, его объём должен быть в 2.5 ÷ 3 раза больше
объёма готового замеса - VГ . Сама же цилиндрическая часть
бывает заполнена также на 25 ÷30%, что для неподвижного барабана
теоретически соответствует углу сегмента, занятого смесью,
= 130
÷140 град,
(рис. 3).
В свою очередь, объём смеси,
находящейся в цилиндрической части барабана - VЦ, равен
произведению площади сегмента, занятого смесью, на её длину - l :
где D и l -
внутренний диаметр и длина цилиндрической части барабана, м. Считая VЦ = 0.3 ·VГ=
0.3·V33· кв и l = 0.2·D, получим
,3·V3·кВ
Приняв α = 130° и кВ =
0.667, из последней формулы находим
D=
(2)
Формула является основой для отыскания
внутреннего диаметра смесительного барабана при известном объёме по загрузке.
.2.3 Частота вращения смесительного барабана
Частота вращения смесительного барабана должна
быть оптимальной с точки зрения производительности. При увеличении частоты
растёт число циклов подъёма и падения смеси в единицу времени, что способствует
ускорению процесса перемешивания, одновременно растёт отрицательное влияние
центробежных сил, прижимающих частицы к стенкам барабана, что ведёт к ухудшению
условий перемешивания и уменьшению производительности. При этом скорость циклов
растёт пропорционально числу оборотов, а ценробежные силы FЦ
пропорционально их квадрату. При увеличении скорости вращения довольно быстро
можно выйти на режим, когда смесь перестанет отрываться от стенок барабана и
процесс перемешивания прекратится вовсе. Оптимальной считается частота, при
которой у частицы смеси в точке М, находящейся под углом естественного откоса φ
к
вертикали (рис.4), касательная составляющая силы веса равна силе трения
FТ=G·sinφ
где G
- вес частицы. Представляя силу трения как произведение нормального давления на
коэффициент трения - f,
получим
С учётом того, что центробежная сила
FЦ=m·ω2·R, G= тg, и f=tgμ.
где т - масса частицы, ω - угловая
скорость вращения барабана, g - ускорение силы тяжести, а μ -угол трения,
получим
откуда оптимальная угловая скорость вращения
барабана, об/с
Принимая угол откоса смеси φ = 45°
÷ 48°, а
коэффициент трения бетона по стали f = 0.6 ÷
0.7, (что
соответствует углу трения μ= 31°
35°), а также имея в виду, что п = ω /
2π, найдём
частоту вращения смесительного барабана, об/с
nБ=
Поскольку чаще всего определение углов
φ и μ затруднено,
для предварительных расчётов можно принять
(3)
Из формулы (3) видно, что с увеличением радиуса
барабана его оптимальная частота вращения уменьшается, что связано с
увеличением центробежных сил, которые пропорциональны радиусу R
барабана и увеличивают силу трения FТ.
Следовательно, чтобы сохранить выражение FТ=G·sinφ
неизменным с увеличением радиуса R,
надо уменьшить частоту вращения барабана.
.2.4 Производительность смесителя
Для циклических смесителей производительность
м3/ час
П=V3-кв·zC·кИ
(4)
где V3
- вместимость смесителя по загрузке, м3;
zC - число
замесов, ч-1 ;
кИ -коэффициент использования рабочего времени
(0.7÷0.85).
.2.5 Мощность привода бетоносмесителя
При вращении барабана, мощность двигателя
смесителя в основном затрачивается на подъём смеси. Работа за 1 цикл
циркуляции, Дж
А = ССМ·h
где GСМ=VГ·ρ·g
- сила тяжести смеси, Н; h-
высота подъёма смеси, м.
Закон движения смеси при вращении барабана
достаточно сложный. На основании опытных данных считают, что при вращении
барабана одна часть смеси (85%) поднимается за счёт сил трения о корпус
барабана, а другая (15%) лопостями.Мощность, затрачиваемая на подъём смеси
где
- 0.85 • ССМ -сила тяжести смеси Н,
поднимаемой трением;
С2 = 0.15 • GСМ - сила
тяжести смеси Н, поднимаемой лопостями;
h1 и h2
- высоты
подъёма м смеси под действием сил трения и лопостями;
z1 и z2 - число
циркуляции смеси за один оборот барабана под действием сил трения и лопастей;
пБ - частота вращения барабана, об/с.
Рис. 5
Согласно схеме (рис.5), полученной опытным
путём, h1=R
и
R,где угол ф2 = 45°, что
соответствует углу трения смеси о лопасти. Угол φ1 с учётом
влияния лопастей и подпора других частиц принят равным 90°. Число циркуляции
смеси за 1 оборот барабана может быть принято равным
. Тогда
мощность, расходуемая на подъём смеси
nБ/1000 (5)
Мощность, расходуемая на преодоле
ние трения в опорных узлах барабана (мощность на перекатывание), зависит от
сил, возникающих на опорных роликах, (рис. 6)


где СБ - вес барабана кН, который в
первом приближении может быть найден из выражения
; β=30°
÷ 36
- угол
установки роликов
Силы и моменты, возникающие при
перекатывании барабана по роликам, показаны на рис. 6. Составив уравнение
, можно
найти сопротивление перекатыванию WP
и затрачиваемую на его преодоление
мощность из следующего выражения
(6)
где МБ - крутящий момент на барабане, Н · м
;
ω Б - угловая
скорость барабана, рад/ с;
RБ =
(1.05 ÷1.1)R - радиус
бандажа барабана, м;
к - (0.0008 ÷ 0.001)
-коэффициент
трения-качения бандажа по роликам;
f = (0.01÷ 0.015)
- коэффициент
трения-скольжения в опоре ролика;
DР - (0.15÷
0.20) ·DБ
- диаметр ролика, м;
DЦ = DР
/ 4 - диаметр цапфы ролика, м.
Последние два выражения рекомендуется
использовать при отсутствии справочных данных. Мощность электродвигателя
привода вращения барабана
(7)
где η
- кпд привода барабана, (см. формулу (Зп) приложения Ш).
По мере передачи мощности от двигателя к
барабану она теряется. Кпд привода барабана находится как произведение кпд всех
ступеней передачи (см. фор -мулу 4п приложения Ш и схему на рис.7 ):
(8)
Где η М -кпд муфты
ηП - кпд пары
подшипников качения, (редуктор содержит 3 пары),
η33- кпд пары зубчатых
колёс закрытой передачи,
ηг - кпд
гидравлических потерь на смазку 1 пары зубчатых колёс,
η30- кпд открытой
зубчатой пары (колёса z5,z6
).
Числовые значения η для
всех ступеней передачи могут быть выбраны из приложения Ш, (таблица 1п.). Кроме
того, необходимо вычислить кпд для всех зубчатых колёс передачи, начиная с
первого и кончая пятым (кпд для шестого колеса вычисляется по предыдущей
формуле и равен кпд всего привода). Вычисления (таблица 2), нужны для подсчёта
мощностей и крутящих моментов на всех колёсах зубчатой передачи. Заметим, что
две пары колёс ( 2-е и 3-е , а также 4-е и 5-е ) попарно сидят на одних валах,
поэтому можно принять, что кпд, мощности, а также скорости вращения для каждой
пары этих колёс одинаковы, что отражено в таблице 2 и последующих таблицах.
Таблица 2 Кпд колёс
привода
|
Номер
зубчатого колеса
|
Кпд
|
|
1
|
|
|
2
|
|
|
3
|
|
|
4
|
|
|
5
|
|
|
6
|
|
1.2.6 Подбор электродвигателя
Вычислив NД по формуле (7), по каталогу, (см.
приложение П2, таблица 2п), можно подобрать стандартный асинхронный
электродвигатель переменного тока серии 4А, приняв синхронное число оборотов в
минуту пС = 1000. По коэффициенту скольжения, взятому из таблицы, можно найти
число оборотов двигателя nД
под нагрузкой.
.2.7 Передаточные числа привода
Зная число оборотов двигателя nД,
и барабана пБ, найдём передаточное число всего привода (см. формулу (1п)
приложения Ш)
и = nД
/ nБ (9)
и разобьём его по ступеням, приняв для третей
ступени (шестерни z5, z6)
u3 =(9 ÷10).
Передаточное число двухступенчатого закрытого
редуктора определим из выражения :
иР =и/и3
для его тихоходной ступени
(10)
для быстроходной ступени: иБ =иР/иТ.
.2.8 Кинематика привода
Далее следует подсчитать:
мощности кВт
числа оборотов, об/мин
(11)
угловые скорости, 1/с
и крутящие моменты, кН ∙ м
для всех 6-ти зубчатых колёс (i = 1,2,...
6) и 3-х зубчатых пар (j = 1,2,3) привода. Согласно
сказанному выше
. Результаты
сводим в таблицу 3.
Таблица 3
Предварительные геометрические и
силовые параметры привода.
1 

Mi,
|
кН·мMi φa
|
|
|
|
|
|
|
|
|
1
|
|
|
|
|
|
|
|
|
2
|
|
|
|
|
|
|
|
|
|
|
|
|
|
|
|
|
6
|
|
|
|
|
|
|
|
Цифровые данные, занесённые в 6 строку таблицы 3
для мощности и чисел оборотов не должны отличаться более чем на 5% от мощности
и чисел оборотов, вычисленных ранее для барабана.
1.2.9 Расчёт на прочность зубчатых колёс привода
смесителя
Материал зубчатых колёс выбирается согласно
рекомендациям (см. приложение П4, табл. 4п). При этом для колёс закрытого
редуктора рекомендуется - II
вариант сочетания материалов, а для открытой передачи (третей ступени ) -1
вариант. Задавшись материалом зубчатых колёс, по формуле (15п) приложения П4
вычисляют допускаемые контактные напряжения - [σН
], и допускаемые напряжения изгиба - [gf
], (формула (16п), (17п) приложения). Напомним, что допускаемые контактные
напряжения, вычисленные по предлагаемой формуле, относятся сразу к паре
зубчатых колёс. О влиянии этих напряжений на усталостную прочность зубьев
смотрите приложение П4 и рис. п1,б). Затем по формуле (18п) находят межосевые
расстояния - аj для первых двух
ступеней привода и также заносят их в таблицу 3. В формуле (18п) при расчёте
первой ступени привода можно принять фа = 0.315, при расчёте второй фа = 0.4.
Для третьей ступени, включающей шестерню z5
и венец z6 (рис. п1,е),
межосевое расстояние находится не по условиям прочности зубьев, а исходя из
размеров смесительного барабана, радиус которого R
уже был вычислен ранее. Межосевое расстояние a3 найдём в предположении, что
делительный диаметр
Венца d6
= т6 ·z6 превышает диаметр бандажа DБ
не менее чем на 3 ÷4 модуля или
d6 ≥ DБ +
(3 ÷ 4) ·т6, где т6 - модуль зацепления
для 6-ой и 5-ой шестерен, откуда
m
6 (12)
Выбрав для пятой шестерни минимальное число
зубьев z5 -17, можем найти z6=
z5 ∙и3, что
даёт возможность сразу вычислить т6, а значит и межосевое расстояние для 3-й
ступени, (см. формулу (14п) приложения). Коэффициент длины зуба здесь фа =
0.075 и определяется не условиями прочности, а геометрией барабана. Числа
зубьев zi и модули
зацепления тi для первой и
второй зубчатых пар закрытого редуктора можно найти по формулам (19п)-(20п) приложения
П4 и соответствующим рекомендациям. Следует иметь в виду, что в указанных
формулах индекс 1 относится к ведущему колесу, а индекс 2 к ведомому для любой
зубчатой пары. . Все расчётные значения модулей зацепления необходимо округлять
до стандартных (таблица Зп приложения ПЗ), а числа зубьев должны быть целыми.
С учётом округления заново пересчитываются
межосевые расстояния по формуле (14п) и передаточные числа по формуле (9п)
приложения. Результаты заносятся в таблицу 4. Туда же заносятся делительные
диаметры - di,
вычисленные по формуле (11п) приложения ПЗ, а также окружные усилия в
зацеплении - Р
(см. рис.п1,а; п1,б приложения), вычисленные по
формуле (10п). Следует иметь в виду, что делительный диаметр d-
подставляется в формулу(10п) в мм, а крутящий момент М{ и Н∙ мм. В
таблице 3 тот же момент имел размерность кН·м, и, поэтому, должен быть
преобразован. Для расчётов Р рекомендуется брать крутящий момент М и
делительный диаметр d для
ведомого колеса каждой зубчатой пары.
Кроме того, в таблицу 4 заносятся коэффициенты
формы зуба - Yf, взятые из
таблицы 5п приложения 4П и длины зубьев bi,
вычисленные по формулам (29п) приложения П5. При вычислении длин зубьев,
необходимо помнить, что для каждой зубчатой пары длина зуба шестерни больше,
чем для колеса (см. рис. п1,а). Длины зубьев округляют до целого числа мм в
большую сторону.
Далее по формулам (22п) и (24п)
приложения П4 производится проверка прочности зубьев по контактным напряжениям
(для каждой
пары колёс) и по напряжениям изгиба -
(для каждого колеса). Расчётные
напряжения сравниваются с допускаемыми.
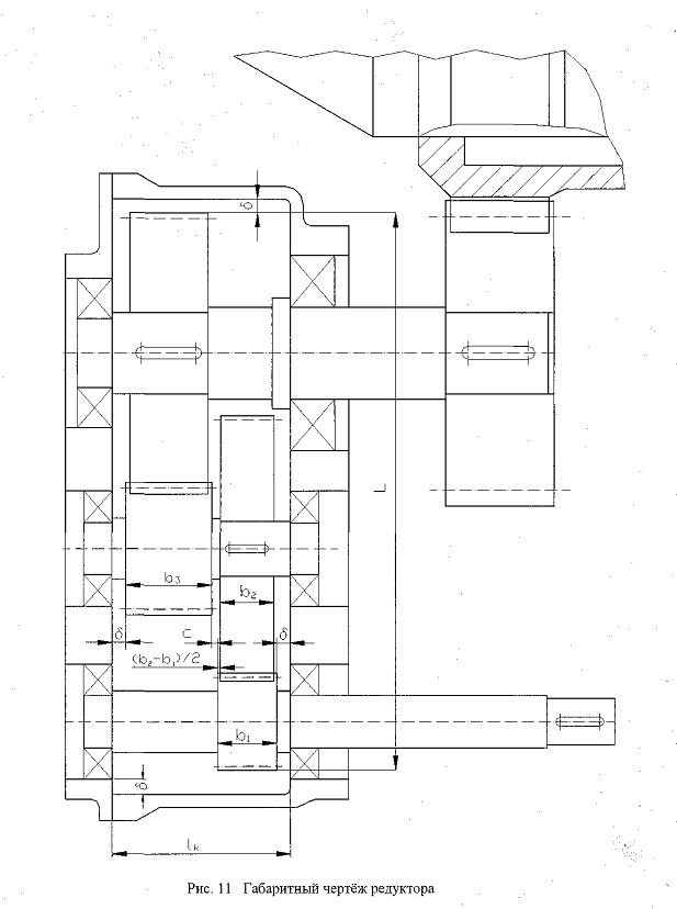
1.2.10 Эскизная компановка редуктора
Редуктор имеет три вала:
быстроходный, промежуточный и тихоходный. Диаметры валов вычисляют по
упрощённым формулам, (только по крутящему моменту), с учётом рекомендаций
приложения П5 и формул (25п). Валы схематично должны быть изображены в
пояснительной записке с указанием расчётных длин и диаметров. Длины элементов
валов, показанные на рис. 8-10 буквами, могут быть вычислены по формулам:
;
;
;
(13)
Подшипники на валах могут быть показаны условно,
однако желательно соблюдать пропорции при их изображении.
Диаметр заплечика на тихоходном валу
и его длина могут быть найдены из выражений
,
обе величины округляются до целого
числа мм.
На миллиметровке вычерчивается
габаритный чертёж привода (см. рис. 11), на котором все валы и шестерни
изображаются в соответствии с расчётными размерами и рекомендациями (приложение
П5), при этом, учитывая большие габариты зубчатого венца, изобразить на чертеже
только его часть, находящиеся в контакте с шестерней z5. Масштаб
изображения должен быть стандартным.
Размерные линии и сами размеры на
габаритном чертеже не проставляются, на рис. 11 они показаны в учебных целях.
Габаритный чертёж вкладывается в пояснительную записку.
1.3 ПРОЕКТИРОВАНИЕ ГРАВИТАЦИОННОГО
БЕТОНОСМЕСИТЕЛЯ ПЕРИОДИЧЕСКОГО ДЕЙСТВИЯ
1.3.1 Содержание работы
Исходными данными для проектирования являются:
объем готового замеса, м3 - VГ;
плотность бетонной смеси , кг/м3 -
ρ;
число замесов в час - zC.
коэффициент использования рабочего времени - кИ;
По заданным параметрам вычисляют:
объем по загрузке, м3 -V3;
внутренний диаметр смесительного барабана, м - D;
частоту вращения барабана, об/мин - п;
мощность приводного электродвигателя, кВт - NД,
производительность смесителя - ПС;
По вычисленной мощности производится подбор
электродвигателя. Делается расчет на прочность элементов привода смесительного
барабана. По результатам расчёта на миллиметровке выполняется габаритный чертёж
привода.
Пояснительная записка должна содержать:
краткую характеристику конструкций и типов
бетоносмесителей, назначение и техническую характеристику проектируемого
бетоносмесителя, расчет основных параметров смесителя, габаритный чертёж привода
барабана.На листе формата А1 (594x841) чертится сборочный чертеж
бетоносмесителя по прототипу (СБ-103), взятому из атласа конструкций [10].
Кроме того, на листах формата А4 (210x297) выполняются рабочие чертежи двух
несложных деталей (например зубчатого колеса и вала) по расчётным размерам,
полученным при проектировании. При вычерчивании использовать прототипы рабочих
чертежей, из учебной литературы, например [5],[8] или [9]. Все чертежи
выполняются с соблюдением ГОСТ-ов и ЕСКД.
1.3.2 Задание на проектирование
Спроектировать гравитационный бетоносмеситель
периодического действия по следующим данным:предпоследняя цифра номера зачётной
книжки соответствует номеру варианта, последняя цифра номера зачётной книжки
соответствует номеру задания.
Таблица 5 Вариант
|
Номер
варианта
|
0
|
1
|
2
|
3
|
4
|
5
|
6
|
7
|
8
|
9
|
|
Объём
готового замеса,м3 -VГ
|
0.2
|
0.4
|
0.6
|
0.8
|
1.2
|
1.4
|
1.6
|
1.8
|
2.0
|
2.2
|
|
Число
замесов zС,ч-1
|
|
30
|
|
|
25
|
|
|
20
|
|
|
Коэфф.
использования рабочего времени, кИ
|
|
0.7
|
|
|
0.75
|
|
|
0.8
|
|
Таблица 6 Задание
|
Номер
задания
|
0
|
1
|
2
|
3
|
4
|
5
|
6
|
7
|
8
|
9
|
|
Плотность
бетонной смеси, кг / м3 - ρ
|
1800
|
1900
|
2000
|
2100
|
2200
|
2300
|
2400
|
1800
|
1900
|
2000
|
1.3.3 Расчет
Рассчитать гравитационный бетоносмеситель
периодического действия по следующим данным:
· объём
готового замеса - VГ=1,4м3 ;
· плотность
бетонной смеси - ρ = 1900 кг/
м3 ;
· число
замесов -zС = 25 ч -1
:
- коэффициент использования
рабочего времени - кИ = 0.75.
РЕШЕНИЕ
1 Вместимость смесителя по загрузке найдём из
формулы (1):

2 Внутренний диаметр цилиндрической части
барабана (формула (2))
3 Оптимальная частота вращения барабана (см.
формулу (3))
где R=D/2
= 0.904 - радиус внутренней части барабана, м
Одновременно целесообразно вычислить угловую
скорость барабана
4 Сила тяжести бетонной смеси
GСМ=VГ·ρ·g=1,4·1900·9,81=26094,6Н
где ρ
= 1900кг
1м3 - плотность бетонной смеси, g= 9.81 м / с2 - ускорение силы тяжести.
5 Мощность двигателя привода смесителя
Мощность на перемешивание бетонной смеси найдём
из формулы (5)
N1=2,2·GСМ·R·nБ/1000=2,2·26094,6·0,904·0,284/1000=14,73кВт
Мощность на перекатывание барабана по роликам
(формула (6))
где СБ = (15 ÷16)
·V3 = 15 · 2,09 = 31,35 кН - вес барабана (приблизительный);
β = 30° - угол установки
опорных роликов;
к= (0.0008 ÷ 0.001)
-коэффициент
трения-качения бандажа барабана; f = (0.01 ÷ 0.015) - коэффициент
трения в опоре ролика;
RБ =(1.05÷1.1)·R
= 1.07·0.904 = 0,967 м - радиус бандажа;
DР = (0.15 ÷ 0.20)·DБ =
0.17 ·2·0,967 = 0.33 м - диаметр опорного ролика;Ц= DР / 4 = 0.33 / 4
= 0.083м - диаметр цапфы ролика;
ωБ =1,78-
угловая скорость барабана, рад/с Мощность электродвигателя (расчётная):
где η - кпд привода
смесительного барабана (см. формулу (8)).
Кпд привода, а также кпд на каждом
из колёс передачи могут быть найдены по формулам таблицы 2, численным значениям
самих кпд, взятых из таблицы 1п приложения с привлечением схемы передачи (рис.
7). Результат вычислений заносим в таблицу 7.
|
Номер
зубчатого колеса
|
Кпд
|
|
1
|
|
|
2
|
|
|
3
|
|
|
4
|
|
|
5
|
|
|
6
|
|
Подбор электродвигателя
Расчётная мощность NД
является основанием для подбора электродвигателя. Используя рекомендации
приложения П2 и таблицу 2п, подбираем асинхронный трёхфазный электродвигатель
переменного тока типа 4А160М6УЗ, мощностью 11 кВт с синхронной частотой
вращения пс =1000 об/мин, и относительным скольжением при номинальной нагрузке s
= 2.7%. Фактическая частота вращения двигателя под нагрузкой:
7 Предварительные передаточные числа привода
Выбрав электродвигатель, задаёмся передаточными
числами привода и его ступеней. Общее передаточное число привода (см. формулы
(1п), (2п) приложения Ш)
и
Применительно ко всему приводу (рис.
7), электродвигатель является входом, а смесительный барабан - выходом.
Передаточное число 3-й ступени передачи (шестерня z5 и венец z6) выберем
и3 = 9, тогда передаточное число закрытого двухступенчатого редуктора будет
равно:
Передаточное число тихоходной
ступени редуктора, которая является второй ступенью всего привода, найдём из
выражения (см. формулу (10))
и2 = 0.88 ·
= 0.88 ·
= 2.22
Передаточное число первой,
(быстроходной), ступени привода и редуктора:
Заметим, что передаточные числа,
найденные выше, являются предварительными и будут уточняться в дальнейших
расчётах.
8 Мощности, обороты и крутящие моменты на валах
привода
По формулам (11) вычислим мощности, числа
оборотов, угловые скорости и крутящие моменты на всех зубчатых колёсах привода.
Например, для 1 -го зубчатого
колеса, которое находится на первом
(быстроходном) валу редуктора, и вращается с такой же скоростью как и
электродвигатель:
N1=NД·∙η1=17,83∙0,97=17,29кВт
, п1=пД=973об/мин,
Для второго зубчатого колеса,
которое находится на промежуточном валу закрытого редуктора
N2 =NД ·η2 = 14,73·0.93 =
13,69 кВт, п2 = n1 /и1 =973/2.87 = 339 обIмин
ω2 = π∙n2/30
= 3.14·339/30 = 35.5
М2= N2/ω2 =/35.5
= 0.012 кН·
м
Результаты расчётов для остальных
колёс, сделанные по аналогии, занесём в таблицу 8. Поскольку 2-е и 3-е , а
также 4-е и 5-е зубчатые колёса попарно сидят на одних и тех же валах, рассчитываемые
параметры для них будут одинаковы.
Для четвертого колеса, которое
находится на тихоходном валу
N4 =NД ·η4 = 14,73·0.893
= 13,15 кВт, п4 = n3 /и2 =339/2.22 = 153 обIмин
ω2 = π∙n2/30
= 3.14·153/30 = 16
,
М4= N2/ω2 =0,431/16
= 0.026 кН·
м
Для шестого колеса (венец)
N6 =NД ·η6 = 17,83·0.85 =
15,15 кВт, п6 = n4 /и3 =153/9 = 17 обIмин
ω2 = π∙n2/30
= 3.14·17/30 = 1,78
,
М6= N6/ω6
=9,1/1,78 = 5,11 кН·
м
Результаты расчётов для остальных
колёс, сделанные по аналогии, занесём в таблицу 8
Таблица 8 Предварительные
геометрические и силовые параметры привода
|
i
|
Ni, кВт
|
ni. об/мин
|
ωi, 1/с
|
Мi, кН∙
м
|
Иj.
|
а
j, мм
|
Фа
|
|
1
|
17,29
|
973
|
102
|
0,144
|
2,87
|
130
|
0.315
|
|
2
|
13,69
|
339
|
35,5
|
0,012
|
|
|
|
|
3
|
13,69
|
339
|
35,5
|
0,012
|
2.22
|
152,6
|
0.4
|
|
4
|
13,15
|
153
|
16
|
0,026
|
|
|
|
|
5
|
13,15
|
153
|
16
|
0,026
|
9
|
772,8
|
0.075
|
|
6
|
9,1
|
17
|
1,78
|
5,11
|
|
|
|
Цифровые данные, полученные в строке 6 для
мощности и чисел оборотов практически не отличаться от тех же параметров,
вычисленных ранее для барабана смесителя.
Материалы и допускаемые напряжения зубчатых
колёс
Для колёс закрытого зубчатого редуктора выбираем
II вариант сочетания
материалов согласно таблице 4п приложения П4. Величина допускаемого контактного
напряжения для каждой пары зубчатых колёс закрытого редуктора (формула (15п)
приложения П4)
[σH] = 1,8·НВСР +67 =
1.8∙286 + 67 = 582 МПа
где НВСР = (269 +302)/2 = 286 МПа - средняя
твёрдость колеса (как слабейшего элемента пары колёс).
Допускаемые напряжения изгиба для каждой
шестерни и каждого колеса зубчатых пар закрытого редуктора (формулы (16п) и
(17п) приложения)
где НВСР = 286 МПа - средняя
твёрдость колеса закрытого редуктора.
Для третьей (открытой) пары, которая
включает колёса z5 и z6 (см. рис.
7) выбираем I вариант
сочетания материалов, для которого по аналогии:
[σн ] = 1.8∙249 + 67 =
515 МПа [σf]Ш =1.03·286
= 295 МПа
Межосевые расстояния зубчатых колёс
В приводе барабана бетоносмесителя
рекомендуется применять прямозубые зубчатые колёса. Для каждой пары зубчатых
колёс межосевое расстояние вычисляется по условию контактной прочности или по
контактным напряжениям по формуле (18п) приложения П4 и в соответствии с
методикой, изложенной в параграфе 1.2.9 теоретической части. Размерности
величин, входящих в формулу, смотрите там же. Межосевое расстояние для первой
пары зубчатых колёс (фа =0.315 ):
Для второй пары (фа = 0.4):
По третьей (открытой) пары (фа =
0.075):
Вычисленные межосевые расстояния а и
коэффициенты фд заносим в таблицу 8. Сравнивая межосевое расстояние аъ с
внутренним радиусом барабана, R= 904 мм, полученным выше, видим,
что а3 мало и не удовлетворяет условию его вместимости по загрузке. Иными
словами, взяв а3 = 722.8 мм, мы не сможем загрузить в барабан объём смеси,
который дан в задании. Необходимо увеличить межосевое расстояние третьей пары,
что, как уже отмечалось выше (параграф 1.2.9 теоретической части), идёт в запас
прочности зубчатой передачи. Для расчёта аъ используем формулу (12), задавшись
числом зубьев г5 = 17.
Тогда z6 =z5∙и3=
17· 9 = 153, и модуль зацепления зубчатого венца

Расчётное значение модуля округляем
до ближайшего стандартного, взятого из таблицы Зп приложения ПЗ
т6 =т5 = 14 мм
По формуле (14п) приложения ПЗ
вычислим новое значение
Делительный диаметр зубчатого венца d6 =т6 ∙z6= 14 ∙
153 = 2142 мм превышает диаметр бандажа DБ = 1934 мм
на 4.4 модуля. При расчётах надо следить за соблюдением неравенства (d6-DБ) ≥ 3
· т6
(21428-1934)≥3 ∙14
≥42
Уточнённые геометрические параметры
зубчатой передачи
Зададимся числом зубьев ведущего
колеса первой пары z1 = 22 и ведущего колеса второй пары
z3 = 21.
Тогда числа зубьев ведомых колёс тех же пар будут равны
z2 =z1·и1= 22∙2.87
= 63.14≈64
z4 =z2 ·и2=
21∙2.22 = 46.6 ≈47
Округлив числа зубьев до целых
значений, мы изменили передаточные числа ступеней, которые теперь следует
уточнить
а затем, используя формулу (20п) приложения П4,
вычислить модули зацепления для первых двух ступеней привода. Межосевые
расстояния аj берём из таблицы 8
Округляя оба модуля до ближайшего стандартного
значения по таблице Зп приложения ПЗ, имеем: m1
=т2 =3 мм т3 = т4 = 4,5 мм
Зная модули числа зубьев, по формуле (11п)
приложения ПЗ вычислим делительные диаметры зубчатых колёс:
d1 = т1·z1
= 3 ∙ 22 = 66мм, d2
= т2 ·z2 = 3 ∙ 64 =
192мм,
d3 = т3·z3
= 4,5 ∙ 21 = 94,5мм, d4
= т4 ·z4 = 4,5 ∙ 47
= 211,5мм,
d5 = т5·z5
= 14 ∙ 17 = 238мм, d6
= т6 ·z6 = 14 ∙ 153
= 2142мм
Занесём эти и другие уточнённые результаты в
таблицу 9, которая является прототипом таблицы 4 теоретической части
Таблица 9 Уточнённые геометрические и силовые
параметры привода
|
j
|
Z1
|
mi,мм .
|
Di, мм
|
и
|
аi, мм
|
Р,Н
|
Y
|
bi, мм
|
|
1
|
22
|
3
|
66
|
2.91
|
129
|
2917
|
4
|
45
|
|
2
|
64
|
3
|
192
|
|
|
|
3.615
|
41
|
|
3
|
21
|
4,5
|
94,5
|
2.24
|
153
|
5645
|
4.04
|
68
|
|
4
|
47
|
4,5
|
211,5
|
|
|
|
3.69
|
62
|
|
5
|
17
|
14
|
238
|
9
|
1190
|
4771
|
4.27
|
99
|
|
6
|
153
|
14
|
2142
|
|
|
|
3.61
|
90
|
Вновь используя формулу (14п) приложения ПЗ,
найдём уточнённые межосевые расстояния привода:
и также занесём в таблицу 9. Напомним, что
межосевое расстояние а3 уже было вычислено ранее. Длины зубьев колёс передачи
находим по комментариям к формулам (18п) и (23п) приложения П4, а также по
формуле (29п) приложения П5. С учётом выбранных значений фа (см. таблицу 8),
для колеса и шестерни 1-ой зубчатой пары:
b2=
,
для колеса и шестерни 2-ой зубчатой пары:
b4=
,
для колеса и шестерни 1-ой зубчатой пары:
b6=
,
(41)
Занесём результаты в таблицу 9.
Проверка прочности зубчатых колёс
После расчёта геометрических параметров
передачи, которые округлялись в ту или иную сторону, сделаем проверку прочности
зубьев по контактным напряжениям σН
и напряжениям изгиба σf.
Действующие контактные напряжения находим по формуле (21п) приложения П4.
Для первой пары колёс:
Для второй пары колёс:
Для третьей пары колёс:
Заметим, что в формулу мы
подставляем момент действующий на колесе и длину зуба колеса, которая меньше
чем у шестерни и поэтому ограничивает длину контактной поверхности зубчатой
пары
Для вычисления напряжений изгиба
необходимо знать окружные усилия в каждой паре зубчатых колёс. Усилия можно
найти по формуле (10п) приложения ПЗ (см. также рис. п1,а). Так для первой пары
колёс:
Для второй пары колёс:
Для третьей пары колёс:
Вычислив окружные усилия и для
остальных пар, занесём их в таблицу 9
Действующие напряжения изгиба найдём
из формулы (23п) приложения П4:
В формулы подставляется коэффициент
формы зуба У г, значения которого взяты из таблицы 5п приложения П4 и занесены
в текущую таблицу 9.
Сравнивая расчётные действующие
напряжения с допускаемыми, можно сделать заключение, что отклонения в сторону
превышения не более - 5%. Достаточно велик запас прочности по напряжениям
изгиба, но контактные напряжения в данном случае являются определяющими.
Расчёт валов
На ведущем валу редуктора (Рис. 8)
диаметр под муфту (формула (25п) приложения П5):
диаметр под подшипник (см. таблицы
6п и 7п приложения П5):
= 40 мм
Радиальный шарикоподшипник 308(40×90×23)
диаметр под шестерню:
= 47,7≈48 мм
На промежуточном валу редуктора
(Рис. 9)
диаметр под колесо:
диаметр под шестерню:
диаметр под подшипники:
Радиальный шарикоподшипник 308(40×90×23)
в последнем случае диаметр
подшипника округлён в большую сторону с целью уменьшения их номенклатуры, чтобы
диаметры подшипников на ведущем и промежуточных валах были одинаковыми.
На тихоходном валу (Рис. 10) диаметр
под колесо:
диаметр под первый подшипник:
Радиальный шарикоподшипник 309(45×100×25)
под второй подшипник:
Радиальный шарикоподшипник 312(60×130×31)
диаметр под шестерню:
Для построения эскизного
проекта(габаритного чертежа) определяем размеры зубчатых колес и шестерен и
другие необходимые размеры.
Диаметры вершин колес редуктора:
мм.
мм.
мм.
мм.
мм.
мм.
Наибольшее расстояние между внешними
поверхностями вращающихся деталей редуктора найдём по формуле (27п) приложения
П5:
L=а1+а2+dа1/2+dа4/2=129+153+72/2+220,5/2=428,25мм
По формуле (26п) найдём зазор между
вращающимися деталями и внутренними стенками корпуса редуктора:
Расстояние между торцовыми
поверхностями колёс редуктора:
с = (0.3 ÷ 0.5) ∙δ = 0.4 ·12 =
4.8 ≈ 5 мм
Длины элементов валов ,показанные на
рис. 8-10,могут быть вычислены по формулам:
мм;
мм;
мм;
мм
Диаметр заплечника на тихоходном
валу и его длину получаем из выражений:
мм,
мм
Имея все необходимые размеры можно
построить габаритный чертёж по прототипу рис. 11. Заметим, что на указанном
чертеже размеры соответствуют результатам расчётов, приведённых выше.
Производительность смесителя
По формуле (4) производительность м
/ час
П =V 3∙кв∙zC∙кИ =
1.2∙ 0.667 ∙ 25 ∙ 0.75 = 15 м³/ч
где V3 =1.2 -
вместимость смесителя по загрузке, м³ ;
кв = 0.667 - коэффициент выхода
бетонной смеси;
zС = 25 число
замесов, ч~ ;
кИ =0.75 - коэффициент использования
рабочего времени.
III. Кинематика
и силовые параметры механического привода
К основным характеристикам привода
относятся мощность NД и число оборотов nД двигателя,
и те же параметры N и п на исполнительном механизме. Иными словами, это
мощность и число оборотов на входе и выходе привода. Передаточное число привода
и=nД
/n (1п)
поскольку привод, как правило, компануется из
нескольких передач,
и =и1·и2·….·иn
(2п)
где и1·и2 • - передаточные числа отдельных
передач (ступеней) привода.
Таблица 1п. Рекомендуемые значения передаточных
чисел и кпд передач.
|
Тип
передачи
|
Передаточные
числа
|
Кпд
передачи
|
|
|
Закрытая
|
Открытая
|
Закрытая
|
Открытая
|
|
Зубчатая:
|
|
|
|
|
|
цилиндрическая
|
2.5-4.5
|
3-6.3
|
0.96-0.98
|
0.93-0.95
|
|
коническая
|
2-4
|
|
0.95-0.97
|
0.92-0.94
|
|
Планетарная:
|
|
|
|
|
|
одноступенчатая
|
3-7
|
|
0.9-0.95
|
|
|
двухступенчатая
|
6-18
|
|
0.85-0.9
|
|
|
Червячная
|
8-50
|
|
0.95(1-и/200)
|
|
|
Цепная
|
|
2-6
|
|
0.92-0.94
|
|
Плоскоремённая
|
|
2-4
|
|
0.96-0.97
|
|
Клиноремённая
|
|
2-5
|
|
0.95-0.96
|
|
Муфта
|
|
|
|
0.98
|
|
Подшипники
ка-
|
|
|
|
|
|
ченя
(1 пара)
|
|
|
|
0.99
|
Мощность электродвигателя, кВт
NД=N
/ η
(Зп),
где η| - кпд
привода машины. В свою очередь,
(4п),
где η1, η|2,...- кпд
отдельных звеньев кинематической цепи привода, значения которых, с учётом
потерь в подшипниках, даны в таблице 1п. При расчёте привода применяются
формулы, в которых одни параметры выражаются через другие, например: угловая
скорость ω, рад/с, через
частоту вращения n, об/мин
ω=π·n/30
(5п)
крутящий момент М, кН ∙ м , через мощность
N, кВт и угловую скорость ω, рад/с
крутящие моменты на ведущем М1 и ведомом М2
валах передачи с учётом передаточного числа и кпд привода
М1 = М2·и·η
(7п)
Большинство передач в технике понижают число
оборотов и повышают крутящий момент, такие передачи называются редукторами. У
редукторов передаточное число и > 1 и М2 > M1.
Заметим, что ни одна передача не повышает мощность, что непосредственно
вытекает из формулы (Зп), если учесть, что кпд η
< 1.
Электродвигатель подбирают по расчётной мощности
- NД и частоте
вращения -nД с допускаемой
перегрузкой по мощности не более 5%. Для машин, работающих при незначительно
меняющейся нагрузке (отношение максимальной нагрузки к средней 1.1 ÷
1.3), с
числом включений 20÷30 в
час, рекомендуются трёхфазные асинхронные короткозамкнутые двигатели
переменного тока единой серии - 4А общего назначения закрытые обдуваемые. К
таким машинам относится гравитационный бетоносмеситель Основные параметры таких
двигателей при номинальной нагрузке для интервала мощностей 1.1÷315
кВт
приведены в таблице 2п.
Для других машин, работающих в специфических
условиях, могут быть подобраны двигатели иных типов. Например, для кранов, где
при подъёме грузов необходим высокий пусковой момент, и число включений более
100 в час, или для дробилок, у которых более высокое отношение максимальной
нагрузки к средней. Частота вращения двигателя для каждого вида машин
оговаривается специально.
Мощность двигателя редко совпадает с расчётной и
отличается от неё в ту или иную сторону. Например, если расчётная мощность NД=
15.75 кВт, то допускается выбрать из каталога двигатель мощностью 15 кВт,
(перегрузка 5%), но если NД> 15.75 кВт, приходится выбирать двигатель
большей мощности (18 кВт), который будет работать с некоторой недогрузкой. В
любом случае, дальнейшее проектирование привода ведётся по расчётной мощности -
NД, и числу оборотов - nД
взятому из каталога с учётом коэффициента скольжения. Например, если синхронное
число оборотов пС -1000, а коэффициент скольжения S
= 2.6%, число оборотов двигателя под нагрузкой
пД=пС· (1-0.026) = 1000 ·0.974 = 974
об/мин (8п)
Таблица 2п Закрытые обдуваемые двигатели серии
4А (ГОСТ 19523-81)
|
Мощность
КВТ
|
Синхронная
частота вращения, об/мин
|
8
%
|
мп
Мн
|
|
3000
|
|
|
1500
|
|
1000
|
|
|
|
Типоразмер
двигателя
|
8
%
|
Мп
Мн
|
Типоразмер
двигателя
|
8
%
|
мп
Мн
|
Типоразмер
двигателя
|
|
|
|
1.1
|
4А71В2УЗ
|
6.3
|
2.0
|
4А80А4УЗ
|
6.7
|
2.0
|
4А80В6УЗ
|
8
|
2.0
|
|
1.5
|
4А80А2УЗ
|
4.2
|
|
4А80В4УЗ
|
6.7
|
|
4А90Ь6УЗ
|
6.4
|
|
|
2.2
|
4А80В2УЗ
|
4.3
|
|
4А90Ь4УЗ
|
5.4
|
|
4А100Ь6УЗ
|
5.1
|
|
|
3
|
4А90Ь2УЗ
|
4.3
|
|
4А10084УЗ
|
5.3
|
|
4А112МА6УЗ
|
4.7
|
|
|
4
|
4А10082УЗ
|
3.3
|
|
4А100Ь4УЗ
|
5.3
|
|
4А112МВ6УЗ
|
5.1
|
|
|
5.5
|
4А100Ь2УЗ
|
3.4
|
|
4А112М4УЗ
|
5
|
|
4А13286УЗ
|
3.3
|
|
|
7.5
|
4А112М2УЗ
|
2.5
|
|
4А13284УЗ
|
3
|
|
4А132М6УЗ
|
3.2
|
|
|
11
|
4А132М2УЗ
|
2.3
|
1.6
|
4А132М4УЗ
|
2.8
|
|
4А16086УЗ
|
2.7
|
1.2
|
|
15
|
4А16082УЗ
|
2.1
|
1.4
|
4А16084УЗ
|
2.7
|
1.4
|
4А160М6УЗ
|
2.6
|
|
|
18.5
|
4А160М2УЗ
|
2.1
|
|
4А160М4УЗ
|
2.7
|
|
4А180М6УЗ
|
2.7
|
|
|
22
|
4А18082УЗ
|
2.0
|
|
4А18084УЗ
|
2
|
|
4А200М6УЗ
|
2.8
|
|
|
30
|
4А180М2УЗ
|
1.9
|
|
4А180М4УЗ
|
2
|
|
4А200Ь6УЗ
|
2.1
|
|
|
37
|
4А200М2УЗ
|
1.9
|
|
4А200М4УЗ
|
1.7
|
|
4А225М6УЗ
|
1.8
|
|
|
45
|
4А200Ь2УЗ
|
1.8
|
|
4А200Ь4УЗ
|
1.8
|
|
4А25086УЗ
|
1.4
|
|
|
55
|
4А225М2УЗ
|
1.8
|
1.2
|
4А255М4УЗ
|
2
|
1.2
|
4А250М6УЗ
|
1.3
|
|
|
75
|
4А25082УЗ
|
1.4
|
|
4А25084УЗ
|
1.4
|
|
4А28086УЗ
|
2.0
|
|
|
90
|
4А250М2УЗ
|
1.4
|
|
4А250М4УЗ
|
1.3
|
|
4А280М6УЗ
|
2.0
|
|
|
110
|
4А28082УЗ
|
2.0
|
|
4А28084УЗ
|
2.3
|
|
4А31586УЗ
|
2.0
|
1.0
|
|
132
|
4А280М2УЗ
|
2.0
|
|
4А280М4УЗ
|
2.3
|
|
4А315М6УЗ
|
2.0
|
|
|
160
|
4А31582УЗ
|
1.9
|
1
|
4А31584УЗ
|
1.7
|
1
|
4А35586УЗ
|
1.8
|
|
|
200
|
4А315М2УЗ
|
1.9
|
|
4А315М4УЗ
|
1.7
|
|
4А355М6УЗ
|
1.8
|
|
|
250
|
4А35582УЗ
|
1.9
|
|
4А35584УЗ
|
1.7
|
|
4АН355М6УЗ
|
1.6
|
1.2
|
|
315
|
4А355М2УЗ
|
2.0
|
|
4А355М4УЗ
|
1.7
|
|
|
|
|
В типоразмерах двигателей: 4 - порядковый номер
серии; А - асинхронныйдвигатель.Буквы на третьем месте: А - станина и щиты
алюминиевые; X - станина
алюминиевая,щиты чугунные; отсутствие этих букв - станина и щиты чугунные или
стальные.Двух- или трёхзначное число - высота оси вращения, мм.Буквы L,S
или М - установочный размер по длине станины.Буквами А или В отмечается длина
сердечника статора.Цифры 2,4,6 или 8 означают число полюсов, по которым можно
найти синхроннуючастоту вращения двигателя, об/мин: пс = 60 ∙f/
р, где f- частота
промышленного тока, равная 50 периодам в 1с, р - число пар полюсов (1 ÷4).s%
= (пC -п)1пC∙100%
- относительное скольжение при номинальной нагрузке,где nC
- синхронная частота вращения;п - фактическая частота вращения под нагрузкой.МП
/МН - отношение пускового момента к номинальному
ПЗ Геометрия зубчатых колёс
Зубчатые колёса механических передач
предназначены для передачи мощности и крутящего момента от двигателя к
исполнительному механизму. Передаточное число пары зубчатых колёс может быть
найдено по формуле:
и=n1
/ n2=d1
/ d2=z1
/ z2 (9п),
где n1
и п2 - числа оборотов, d1
и d2 - делительные
диаметры, z1 и z2
-числа зубьев ведущего и ведомого зубчатых колёс (рис. п1,а). Передаточное
число редуктора и > 1, и число оборотов на ведомом колесе
n2 =n1/и
меньше, чем на ведущем . В проектных расчётах
передаточное число - и обычно бывает либо задано, либо выбирается в соответствии
с рекомендациями. Крутящий момент на ведущем и ведомом колёсах, кН ∙ м :
М1=Р·d1
/2, М2=Р∙d2 /2,
где Р - окружная сила (рис. п1,а). В свою
очередь:
Р = 2М1 /d1=2М2
/d2 (10п)
На обоих зубчатых колёсах окружная сила Р
одинакова, но поскольку d2
> d1, то и М2 > М1,
что характерно для редукторов.
Зубчатые колёса передач, как правило, имеют
эвольвентный профиль зубьев, их характерным диаметром считается делительный,
который равен:
d = т·z
(Пп),
где т - модуль зацепления, z
- число зубьев.
В свою очередь модуль, мм: т-t/π,
где
t - шаг зацепления,
мм или расстояние между одноимёнными точками двух близлежащих профилей зубьев,
измеренное по дуге делительной окружности (рис. п1,с). Заметим, что длина
делительной окружности - с может быть выражена двумя способами:
c= π∙d=t∙z
Разделив обе части равенства на число π,
мы
получим выражение для делительного диаметра, написанное выше. Делительный
диаметр - d делит зуб по
высоте в неравном отношении: на головку h'
и ножку h" . В
нормальном зацеплении высота головки зуба равна модулю: h'=
т , а высота ножки зуба h''
= 1.25·т. На этом основании можно записать, что диаметр окружности,
который ограничивает вершины зубьев, или диаметр вершин , мм :
dа = d
+ 2т = т(z + 2) (12п),
а диаметр, который ограничивает впадины зубьев,
или диаметр впадин, мм:
df=d
-2.5т =m(z
- 2.5) (13п)
Модуль зацепления является основной
характеристикой размеров зуба и регламентируется стандартом (табл. Зп), при
этом первый ряд модулей является более предпочтительным по сравнению со вторым.
Таблица Зп Выдержка из стандарта
|
Ряд
|
|
|
|
|
Модуль
- m,
|
мм
|
|
|
|
|
|
|
1
|
2
|
2.5
|
3
|
4
|
5
|
6
|
8
|
10
|
12
|
16
|
20
|
25
|
|
2
|
2.25
|
2.75
|
3.5
|
4.5
|
5.5
|
7
|
9
|
И
|
14
|
18
|
22
|
28
|
Межосевое расстояние пары зубчатых колёс, мм
(рис. п1,а)
а=(d1+d2)/2
= т·(z1 +z2)/2
(14п)
П4 Расчёт на прочность зубчатых передач
Во время работы передачи на поверхности контакта
2-х зубьев возникает нормальная сила - N, направленная перпендикулярно рабочим
поверхностям зубьев (рис. п1,б). Её переносят по линии её действия в полюс
зацепления -П и раскладывают на две составляющие: окружную силу - Р и
радиальную - R . Решающее влияние
на работоспособность зуба оказывают два напряжения, возникающие под действием
этих сил, контактное - σH и напряжение
изгиба - σf, которые изменяются
во времени по прерывистому (пульсирующему) циклу и являются причиной
усталостного разрушения зубьев. Напряжение - σH
приводит к контактному выкрашиванию поверхности зубьев, а - σf
к поломке зубьев, поэтому зубчатые колёса рассчитывают по контактным напряжениям
и проверяют по напряжениям изгиба. При расчётах на прочность силы, действующие
на зуб, несколько увеличивают умножением их на коэффициент кР =
1.2 ÷1.3 , который учитывает неравномерность
распределения нагрузки по длине зуба и дополнительные динамические нагрузки,
возникающие из-за неточности изготовления. Для пары зубчатых колёс
рекомендуется определённое сочетание машиностроительных материалов [8]. При
этом ведущее зубчатое колесо принято называть «щестерней», а ведомое колесо -
просто «колесом». Зубья шестерни чаще вступают в силовой контакт и,
следовательно, работают в более трудных условиях. Шестерню (или ведущее колесо)
изготавливают из более прочного материала по сравнению с ведомым колесом (см.
таблицу 4п).
Таблица 4п Материалы зубчатых колёс
|
Вариант
|
Тип
колеса
|
Термообработка
|
Твёрдость
|
Марка
стали
|
|
I
|
ведомое
|
улучшение
|
НВ
= 235 -262
|
45,
40Х,40ХН
|
|
ведущее
|
улучшение
|
НВ
= 269 - 302
|
35ХМ и др.
|
|
II
|
ведомое
|
улучшение
|
НВ
= 269 - 302
|
45,
40Х,40ХН,
|
|
ведущее
|
улучшение
+ ТВЧ
|
НКС
= 45-50
|
35ХМ
и др.
|
здесь НВ - твёрдость по Бринеллю, МПа.
НRС
- твёрдость по Роквеллу (шкала С).
Выбрав материал зубчатых колёс по таблице 4п,
можно вычислить допускаемые контактные напряжения, МПа для каждой пары.. В
первом приближении их можно рассчитать ориентируясь на наименее прочный
элемента пары, которым является колесо, по формуле
[σH]= 1.8·HBср+67
(15п),
где НВср - средняя твёрдость по Бринеллю для
материала колеса, МПа.
Допускаемое напряжение изгиба, МПа для каждого
из колёс зубчатой пары (для I
или II варианта)
может быть найдено из выражения:
[σf]=1.03
·НВСР (16п)
Для шестерни II
варианта сочетания материалов, для которой твёрдость задаётся в единицах НRС,
можно принять
[σf
] = 310÷ 370 МПа (17п)
Зная допускаемые контактные напряжения, можно
найти межосевое расстояние, мм зубчатой пары [6], (рис. п1,а):

(18п),
где к - 315 для прямозубых передач;
и - передаточное число зубчатой
пары,
МР =М·kP - расчётный
крутящий момент на ведомом колесе , Н· мм ;
М - номинальный момент на том же
колесе;
ф а = b2 / а , где b2 - ширина
колеса.
Значения фа выбираются по
рекомендациям [5]-[8] из нормального ряда чисел 0.1, 0.15, 0.2, 0.25, 0.315,
0.4, 0.5, 0.63
Далее задаются числом зубьев
шестерни в пределах z1=20÷24 и находят
число зубьев колеса z2=z1·и
(19п), причём последняя формула может дать дробное значение ъ 2, которое
следует округлить до целого, после чего необходимо уточнить значение
передаточного числа зубчатой пары
и = z2/ z1
и межосевого расстояния по формуле
(14п). Далее находят модуль зацепления
т = 2а/ zс
(20п)
где МP - расчётный
крутящий момент, Н· мм, и сравнивают их с допускаемыми по условию
(22п)
Проверка прочности на изгиб для зубьев как
ведущего, так и ведомого колёс производится по формуле
(23П)
где Рр = Р ·kf
- расчётное окружное усилие, Н;
kf = 1.3 ÷1.4
-коэффициент, учитывающий условия работы передачи),
Yf -
коэффициент формы зуба (табл. 5п), b
= фа ·а - длина зуба, мм,
т - модуль зацепления, мм.
Коэффициент формы зуба Yf, записанный
в формуле (22), характеризует прочность формы зуба и зависит от числа зубьев
колеса (рис. 2,d). Если число зубьев
, профиль
соответствует профилю зубчатой рейки и приближается к прямолинейному. Такой
профиль является наиболее прочным. При уменьшении числа зубьев, их ножка
становится всё тоньше, а при z < 17 происходит её подрезание и
прочность существенно уменьшается. По этой прихине минимальное число зубьев в
эвольвентном зацеплении zmin =17. Значения коэффициентов
формы зубьев, в зависимости от их числа, приведены в таблице 5п.
Таблица 5п. Коэффициенты формы
зубьев
|
z
|
16
|
20
|
25
|
32
|
40
|
50
|
60
|
71
|
80
|
90
|
100
|
180
|
>180
|
|
Yf
|
4.28
|
4.07
|
3.9
|
3.78
|
3.7
|
3.68
|
3.62
|
3.61
|
3.6
|
3.6
|
3.6
|
3.62
|
3.63
|
После вычисления напряжений изгиба по формуле
(23 п), их сравнивают с допускаемыми значениями:
(24п)
В случае, если контактное напряжение - σН,
превышает допускаемое больше чем на 5% , можно увеличить числа зубьев колёс при
неизменном модуле т, увеличив, таким образом значение произведения т·z
,а следовательно и размеры зубчатой пары, (d
= т·z). Соответственно
увеличится межосевое расстояние, что идёт в запас прочности передачи. Можно
также выбрать более прочный материал для зубчатых колёс.
П5 Эскизная компановка редуктора
После определения межосевых расстояний и размеров
колёс, приступают к разработке конструкции редуктора. Первым этапом
конструирования является разработка эскизного проекта (габаритного чертежа),
который выполняется на миллиметровой бумаге в масштабе удобном для чтения и
прилагается к пояснительной записке. Чертёж выполняется по результатам расчёта
и служит для наглядного контроля их правильности. При разработке эскизного
проекта определяется расположение деталей передач, ориентировочные диаметры
валов и подшипников. Диаметры, мм, различных участков валов редуктора вычисляют
по формулам:
для быстроходного вала (рис. 8)
диаметр под муфту -
;
диаметр под подшипник -
;
диаметр под шестерню -
;
для промежуточного вала (рис. 9)
диаметр под колесо -
диаметр под шестерню -
(25п)
диаметр под подшипник -
для тихоходного вала (рис. 10)
диаметр под колесо -
диаметр под первый подшипник - dП1≥dK-2t
диаметр под второй подшипник - 
диаметр под шестерню -
где МБ,МП и МТ - номинальные моменты на валах, Н
• м.
Высоту буртика -t,
размер фаски подшипника - г и размер - f(мм)
принимают в зависимости от диаметра - d
посадочной поверхности вала.
Таблица 6п Буртики и фаски, мм на валах
редукторов
|
d
|
17-24
|
25-30
|
32-40
|
42-50
|
52-60
|
62-70
|
71-85
|
86-100
|
|
t
|
2
|
2.2
|
2.5
|
2.8
|
3
|
3.3
|
3.5
|
3.8
|
|
r
|
1.6
|
2
|
2.5
|
3
|
3
|
3.5
|
3.5
|
3.8
|
|
f
|
1
|
1
|
1.2
|
1.6
|
2
|
2.2
|
2.5
|
3
|
Диаметры валов округляют до чисел, взятых из
ряда нормальных значений, как правило, в большую сторону, при этом диаметры под
подшипники dп должны
соответствовать посадочным размерам подшипников качения и заканчиваться на
цифру 0 или 5.
Таблица 7п Диаметры внутренних колец
подшипников, мм
|
20,
|
25,
|
30,
|
35,
|
40,
|
45,
|
50,
|
55,
|
60,
|
65,
|
70,
|
75,
|
80,
|
85,
|
90,
|
95,
|
100
|
Чтобы поверхности вращающихся деталей не
задевали за внутренние поверхности стенок корпуса, между ними оставляют зазор δ,
мм
который вычисляется по формуле
(26п),
где L
- наибольшее расстояние между внешними поверхностями деталей передач, мм.
Например, для редуктора, изображенного на рис. 11,
L=а1+а2+dа1
/2+dа4 /2 (27п),
где а1 и а2 - межосевые расстояния первой и
второй ступеней редуктора;
dа1 и dа4
- диаметры вершин первого и четвёртого колёс редуктора.
Вычисленное по формуле (25п) значение δ
округляется
в большую сторону до целого числа. Расстояние между торцовыми поверхностями
колёс двухступенчатого редуктора (рис. 4) определяют по выражению
с = (0.3 ÷0.5) ·δ
(28п).
Размеры зубчатых колёс, необходимые для
построения габаритного чертежа (см., например, рис.11), находятся из выражений
(12п)-(14п). На чертеже наносятся вершины зубьев, боковые поверхности колёс
(сплошные линии) и делительные диаметры (штрихпунктирные линии). Часть колеса,
которая опирается на вал, называется ступицей, её длина принимается равной
длине зуба. При этом сама длина зуба колеса находится из выражений (18п) или
(23п):
а длина зуба шестерни вычисляется по
формуле
b1= 1,1·b2
(29п),
причём обе длины, мм округляются до целых чисел.
При установке колёс на валах возможны два
конструктивных исполнения шестерен зубчатых передач: вместе с валом
(вал-шестерня) и отдельно от него (насадная шестерня). Качество (жёсткость,
точность и пр.) вала-шестерни бывает выше, а стоимость изготовления ниже,
поэтому по возможности шестерни редукторов изготовляют заодно с валом. В
редукторе, изображенном на рис.11, шестерни 1 и 3 изготовлены заодно с валом, а
шестерни 2,4, и 5 являются насадными. При применении насадных колёс, необходимо
обеспечить надёжное крепление, передачу крутящего момента и предусмотреть их
осевое фиксирование. Для передачи момента чаще всего применяют призматические
шпонки (рис.8,11), они имеют прямоугольное сечение и скруглённые концы.
Стандарт предусматривает для каждого размера вала определённые размеры сечения
шпонок и длину на 8-10 мм меньше длины ступицы колеса. Для осевой фиксации
колёс в конструкции валов предусмотрены специальные выступы (буртики),
распорные кольца, гайки и пр. [7] - [9]. Сами валы также должны быть
зафиксированы в опорах, которыми являются подшипники.
П6 Подшипники качения
Опорами валов чаще всего являются подшипники
качения, которые подбираются расчётом, в зависимости от условий работы вала.
Подшипники качения состоят из двух колец, между которыми расположены тела
качения, разделённые сепаратором.
Подшипники бывают радиальными,
радиально-упорными и упорными. Радиальные подшипники воспринимают в основном
радиальную нагрузку и бывают шариковыми и роликовыми. Шариковые подшипники
могут воспринимать также и осевую нагрузку, роликовые - только радиальную.
Радиаль-ноупорные подшипники воспринимают как радиальную, так и осевую
нагрузку. Упорные подшипники предназначены для восприятия только осевой
нагрузки.
При одинаковом внутреннем диаметре подшипника d
(на валах габаритного чертежа он обозначен как - dП
), подшипники делятся по габаритам на серии (например, на лёгкую, среднюю,
тяжёлую и др.). С увеличением серии (и размера) растёт нагрузочная способность,
т.е. имеется возможность при одинаковом посадочном диаметре d
увеличить нагрузку на подшипник. Самыми дешевыми являются радиальные однорядные
шарикоподшипники. Замена шариковых более дорогими роликовыми подшипниками
позволяет значительно уменьшить их размеры и массу или во много раз увеличить
промежуток времени между заменой подшипников. Кпд роликовых подшипников также
выше по сравнению с шариковыми. Подшипники качения изготавливат из сталей марок
ШХ6, ШХ9, ШХ15 и др.
Существуют различные схемы установки
подшипников, однако на габаритном чертеже достаточно нанести лишь контуры
подшипника качения, для чего нужно знать его внутренний диаметр - d.,
наружный диаметр -D, и ширину -
В. На рис.10 размеры подшипника даны на тихоходном валу.
Шарикоподшипники радиальные Средняя серия, (рис.
п2)
|
Условное
|
|
Размеры,
мм
|
|
Условное
обозначение подшипника
|
|
Размеры,
мм
|
|
|
обозначение
подшипника
|
d
|
D
|
В
|
r
|
|
d
|
D
|
В
|
r/r1
|
|
304
|
20
|
52
|
15
|
2
|
316
|
80
|
170
|
39
|
3.5
|
|
305
|
25
|
62
|
17
|
2
|
317
|
85
|
180
|
41
|
4
|
|
306
|
30
|
72
|
19
|
2
|
318
|
90
|
190
|
43
|
4
|
|
307
|
35
|
80
|
21
|
2.5
|
319
|
95
|
200
|
45
|
4
|
|
308
|
40
|
90
|
23
|
2.5
|
320
|
100
|
215
|
47
|
4
|
|
309
|
45
|
100
|
25
|
2.5
|
321
|
105
|
225
|
49
|
4
|
|
310
|
50
|
ПО
|
27
|
3
|
322
|
ПО
|
240
|
50
|
4
|
|
311
|
55
|
120
|
29
|
3
|
324
|
120
|
260
|
55
|
4
|
|
312
|
60
|
130
|
31
|
3.5
|
326
|
130
|
280
|
58
|
5
|
|
313
|
65
|
140
|
33
|
3.5
|
328
|
140
|
300
|
62
|
5
|
|
314
|
70
|
150
|
35
|
3.5
|
330
|
150
|
320
|
65
|
5
|
|
315
|
75
|
160
|
37
|
3.5
|
|
|
|
|
|
Роликоподшипники с короткими цилиндрическими
роликами, радиальные, однорядные. Средняя узкая серия (Тип 2000), (рис. пЗ).
|
Условное
|
|
Размеры,
|
мм
|
Условное
обозначение подшипника
|
|
Размеры,
|
мм
|
|
|
обозначение
подшипника
|
d
|
D
|
В
|
r/r1
|
|
d
|
D
|
В
|
r/r1
|
|
|
2305
|
25
|
62
|
17
|
2/2
|
2316
|
80
|
170
|
39
|
3.5/3.5
|
|
|
2306
|
30
|
72
|
19
|
2/2
|
2317
|
85
|
180
|
41
|
4/4
|
|
|
2307
|
35
|
80
|
21
|
2.5/2
|
2318
|
90
|
190
|
43
|
4/4
|
|
|
2308
|
40
|
90
|
23
|
2.5/2.5
|
2319
|
95
|
200
|
45
|
4/4
|
|
|
2309
|
45
|
100
|
25
|
2.5/2.5
|
2320
|
100
|
215
|
47
|
4/4
|
|
|
2310
|
50
|
ПО
|
27
|
3/3
|
2321
|
105
|
225
|
49
|
4/4
|
|
|
2311
|
55
|
120
|
29
|
3/3
|
2322
|
ПО
|
240
|
50
|
|
|
2312
|
60
|
130
|
31
|
3.5/3.5
|
2324
|
120
|
260
|
55
|
4/4
|
|
|
2313
|
65
|
140
|
33
|
3.5/3.5
|
2326
|
130
|
280
|
58
|
5/5
|
|
2314
|
70
|
150
|
35
|
3.5/3.5
|
2328
|
140
|
300
|
62
|
5/5
|
|
2315
|
75
|
160
|
.
37
|
3.5/3.5
|
2330
|
150
|
320
|
65
|
5/5
|
|
|
|
|
|
|
|
|
|
|
|
|
|
|
|
Список используемой литературы
1. Бауман В.А. и др. Механическое
оборудование предприятий строительных материалов, изделий и конструкций.
Москва, "Машиностроение", 1981.
. Борщевский А.А. Ильин А.С.
Механическое оборудование для производства строительных материалов и изделий.
Москва, "Высшая школа", 1987.
. Мартынов В.Д. и др. Строительные
машины и монтажное оборудование. Москва, "Машиностроение", 1990.
. Морозов М.К. Механическое
оборудование заводов сборного железобебетона. Киев "Вища школа",
1977.
. Чернавский С.А. и др. Курсовое
проектирование деталей машин. Москва, "Машиностроение", 1979.
. Чернавский С.А. и др.
Проектирование механических передач. Учебносправочное пособие для втузов.
Москва, " Машиностроение", 1984.
7.
Иванов
М.Н. Детали машин. Москва "Высшая школа», 1976.
8.
Дунаев
П.В. , Леликов О.П. Конструирование узлов и деталей машин. Москва, "Высшая
школа", 1985
9. Шейнблит А.Е. Курсовое
проектирование деталей машин. Москва, "Высшая школа", 1991.
10. Механическое оборудование
предприятий строительных материалов, изделий и конструкций. Атлас конструкций.
Под. ред. Сапожникова М.Я. , Москва, "Машиностроение", 1978.
. Лапир Ф.А. и др. Механическое
оборудование заводов сборных железобетонных изделий. Атлас конструкций. Москва,
"Маш-гиз", 1978