Плавка чугуна

  • Вид работы:
    Контрольная работа
  • Предмет:
    Другое
  • Язык:
    Русский
    ,
    Формат файла:
    MS Word
    996,94 Кб
  • Опубликовано:
    2013-11-26
Вы можете узнать стоимость помощи в написании студенческой работы.
Помощь в написании работы, которую точно примут!

Плавка чугуна

Міністерство освіти і науки, молоді та спорту України

Українська державна академія залізничного транспорту











Контрольна робота

З предмету ТКМ і М

На тему «Плавка чугуна»

Виконав Злобін І.Є

Перевірив Федченко І.І








1. Плавка чугуна в вагранках

Несмотря на создание в настоящее время ряда новых плавильных агрегатов, основное количество чугуна для отливок выплавляется в вагранках.

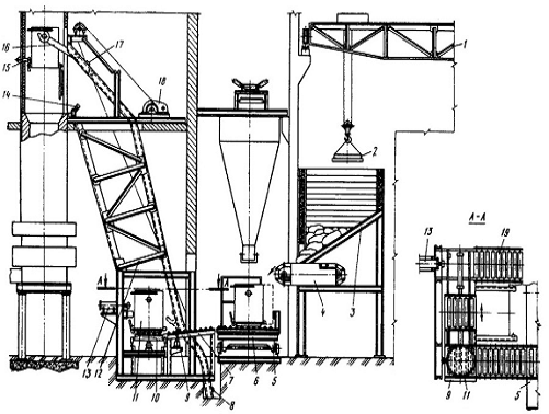
Устройство вагранки. Вагранка (рис. 1.1) представляет собой шахтную печь, диаметр которой колеблется в пределах 700- 2300 мм, а производительность 4- 50 т/ч. По конструктивным особенностям вагранки делят на два типа: с копильником и без него. Первые применяют при производстве крупных отливок, когда необходимо накопить большое количество расплава, а вторые - при получении мелких и средних отливок с небольшой толщиной стенок, когда требуется расплав, обладающий более высокой жидкотекучестью.

Рис. 1.1. Схема устройства вагранки открытого типа с копильником:

1 - летка, 2 - дверцы днища, 3 - горн, 4 - колонны, 5 - подовая плита, 6 _ лещадь. 7 - окна, 8 - фурмы, 9 - кирпичная кладка, 10 - кожух, 11 - чугунные кирпичи, 12 - загрузочное окно, 13 - искроуловитель. 14 - шахта. 15 - бадья, 16 - металлическая шихта, 17 - коксовая колоша, 13 - копильник, 19 - летка для расплава, 20 - желоб

Кожух вагранки 10 изготовляют из листовой стали в виде цилиндра, внутренняя поверхность которого выкладывается огнеупорным кирпичом

Между кожухом и огнеупорным кирпичом оставляется зазор размером 20-50 мм, который засыпается кварцевым песком. Кожух вагранки устанавливается на массивную стальную подовую плиту 5, имеющую посредине отверстие (равное внутреннему диаметру футеровки), которое закрывается дверцами 2, снабженными запорным устройством. В свою очередь, подовая плита опирается на четыре колонны 4, установленные на бетонный фундамент.

Дно 6 вагранки, называемое лещадью, набивается слоем формовочной смеси. В нижней части вагранки у лещади предусмотрено отверстие - летка 1 для выпуска чугунного расплава в копильник 13, а затем через летку 19 и желоб 20 в разливочный ковш. Для выпуска шлака в копильнике предусмотрена шлаковая летка. Для введения необходимого для горения топлива воздуха в шахте вагранки предусмотрены окна 7 и специальные трубы S, называемые фурмами; в них воздух поступает из фурменной коробки, соединенной с вентилятором. Чтобы обеспечить равномерность распределения воздуха, он вводится в плавильную зону двумя рядами фурм, располагаемых в шахматном порядке.

Завалка исходных материалов в вагранку производится с колошниковой площадки через загрузочное окно 12 бадьей 15. Отходящие при плавке газы удаляются через верхнюю часть шахты 14, после чего направляются в искроуловитель 13. Для предохранения футеровки печи от ударов кусками загружаемой шихты верхнюю часть шахты вагранки выкладывают пустотелыми чугунными кирпичами 11.

По виду используемого при плавке топлива вагранки подразделяют на коксовые, коксогазовые и газовые. В связи с необходимостью защиты окружающей среды вагранки с открытыми искроуловителями (см. рис. 1.1) заменяют на вагранки закрытого типа (рис. 1.2).

Рис. 1.2. Схема устройства вагранки закрытого типа без копильника:


Технологический процесс плавки. Вновь построенная или отремонтированная вагранка (см. рис. 1.1, 1.2) должна быть хорошо просушена. После розжига в нее загружают слой кокса высотой 500-1500 мм, который называется холостой колошей. Этот кокс служит для разогрева вагранки и поддерживает расплавляемые шихтовые материалы в зоне наиболее высоких температур, что способствует ускорению процесса плавки. Далее на разогретый кокс холостой колоши загружают рабочую коксовую колошу, флюс и первую порцию металлической шихты. Таким образом загрузка шихтовых материалов происходит слоями: кокс - флюс - металл.

В современных условиях загрузку шихты обычно осуществляют с помощью бадьи, вводимой в шахту вагранки наклонным (скиповым) подъемником . После загрузки шихтовых материалов открывают фурмы и дают дутье - воздух, необходимый для горения топлива. При этом летку оставляют открытой до тех пор, пока не появятся капли расплавленного чугуна. В плавильном поясе - зоне плавления шихта расплавляется и вместе со шлаком чугунный расплав стекает в горн вагранки. Образующиеся при этом газы поднимаются вверх и по пути нагревают металлическую шихту и топливо, а затем уходят в систему подогрева дутья. По мере сгорания кокса и плавления чугуна загружаемая в вагранку шихта опускается, а на ее место загружают сверху новые порции шихтовых материалов.

 <#"699142.files/image004.gif">

. Усадочные раковины и пористость

Усадочными раковинами называют открытые или закрытые полости в теле отливки, имеющие шероховатую глубокую кристаллическую поверхность со следами дендритов. Усадочная пористость представляет собой мелкие полости, расположенные между дендритами сплава по всему объему отливки или в ее центральных частях. Усадочные раковины в отличие от усадочной пористости имеют сравнительно большие размеры. Открытые усадочные раковины бывают окислены.

Усадочные раковины обычно образуются в утолщенных местах отливки, которые затвердевают в последнюю очередь. Как правило, за счет ликвации при затвердевании отливки металл в усадочной раковине имеет повышенное содержание серы и фосфора.

Все металлы при нагреве увеличиваются в объеме, а при охлаждении, наоборот, сокращаются. Следовательно, объем жидкого металла в форме всегда больше объема металла затвердевшей отливки. Сокращение объема и линейных размеров отливки в форме при остывании называется усадкой. Процесс усадки сплава в форме можно разбить на три стадии: усадка жидкого расплава до достижения им температуры начала затвердевания; усадка сплава в период перехода его из жидкого состояния в твердое; усадка сплава в твердом состоянии.

Если бы скорость охлаждения металла в отливке была одинаковой по всему ее объему до момента затвердевания, т. е. кристаллизация происходила бы одновременно во всем объеме, то концентрированная усадочная раковина отсутствовала бы. В этом чисто теоретическом случае отливка после затвердевания сократила бы свои размеры на величину /г,, зависящую от разницы удельных объемов в жидком и твердом состояниях (рис. 3, а). Практически одновременно с усадкой сплава происходит его затвердевание, которое начинается с поверхности отливки и заканчивается в ее центральной части.

После заливки в форму жидкий металл охлаждается и уменьшается в объеме. В этот период возможно уменьшение его уровня в форме на сравнительно небольшую величину. Затвердевание начинается с поверхности отливки. Одновременно жидкий металл продолжает охлаждаться. После образования сплошной корочки металла толщиной хи оставшийся жидкий металл затвердевает как бы в сосуде . За счет продолжающейся усадки образуется зазор б между уровнем жидкого металла и верхней затвердевшей корочкой, что и соответствует началу образования внутренней усадочной раковины. По мере затвердевания отливки расстояние между верхней корочкой и жидким расплавом увеличивается вплоть до полного затвердевания отливки, а сечения раковины постепенно уменьшаются. Под действием атмосферного давления наружная затвердевшая корочка прогибается (в полости раковины может быть разряжение).

Открытая усадочная раковина может образоваться при резком уменьшении скорости затвердевания сплава в каком-либо месте, например в верхней части отливки. В этом случае корочка сверху не образуется. Иногда корочка разрушается, тогда раковина становится видимой. В массивных отливках, например в слитках, может образоваться две (или даже три) усадочные раковины, разделенные тонкими перегородками и расположенные одна под другой.

В фасонных и сложных отливках с неравномерными по толщине стенками, приливами, утолщениями, бобышками и т. д., как правило, образуется несколько местных усадочных раковин (рис. 3) в местах, где металл затвердевает в последнюю очередь, т. е. в тепловых узлах. Наиболее часто усадочные раковины встречаются в Т-образных и крестообразных сечениях и в углах отливки, где имеются местные скопления металла.

чугун вагранка пористость усадка

3. Технологічний процес виготовлення ведучого шківа тепловоза

Вага литва G=3,9кг

Площа перетину живильників


М- коефіцієнт, що залежить від товщини стінки литва

Площа перетину шлаковловлювача


Площа перетину стояка



Список литературы

1.       Болотін Х.Л., Костромін Ф.П. Верстатні пристосування. - К., 2005

.        Данилевський В.В. Технологія машинобудування. - К., 2003

.        Довідник токаря: Навчальний посібник / Під ред. Л. І. Вереїна. - К., 2002

.        Довідник металіста/Під. ред. О.Е.Древаля, Е.О. Скороходова. - К., 2000

.        Посібник з курсового проектування металорізальних інструментів: / Під. ред. Г.Н. Кірсанова - К., 1998

.        Фрумін Ю.Л. Комплексне проектування інструментального оснащення. -К., 1997.


Не нашли материал для своей работы?
Поможем написать уникальную работу
Без плагиата!
Без нейросетей!