Разработка отправочного элемента КМД–ферма
ФЕДЕРАЛЬНОЕ
АГЕНТСТВО ПО ОБРАЗОВАНИЮ
Государственное
образовательное учреждение
Высшего
профессионального образования
«Кузбасский
государственный технический университет»
Кафедра
строительных конструкций
РАСЧЕТНО-ПОЯСНИТЕЛЬНАЯ
ЗАПИСКА
к
курсовому проекту по дисциплине
«Металлические
конструкции»
Выполнил:
студент
группы
СК-071
Кобер
Н.А.
Проверил:
Новиньков
А.Г.
Кемерово
2010г.
1. Исходные данные для
проектирования
. Место строительства - г. Салехард
2. Высота отметки головки кранового рельса
- 7м
. Пролет рамы L
- 24м
. Шаг рам B
- 6м
. Грузоподъемность крана - 100т
. Режим работы крана - 6К
. Разработка чертежа отправочного
элемента КМД - ферма
Город Пермь находится в IV
снеговом районе, значит, нормативная нагрузка от снега составляет -1,5кПа; и во
IV ветровом районе,
значит нормативная нагрузка от ветра составляет - 0,48кПа.
.1 Подбор мостового крана
Для грузоподъемности - 100т, пролета здания в
24м и при шаге колонн 6м, по таблице (прил.1 - Беленя) подбираем мостовой кран.
Параметры крана: Hк=3700мм,
B1=400мм, B2=9350мм,
K=4600мм
Максимальное давление колеса - Fk1max=410кН,
Fk2max=439кН
Вес тележки - Gt=363кН
Вес крана с тележкой - Gk=1107кН
Тип кранового рельса - КР-120
Высота рельса - hр=170мм
Высота подкрановой балки - hб=1000мм
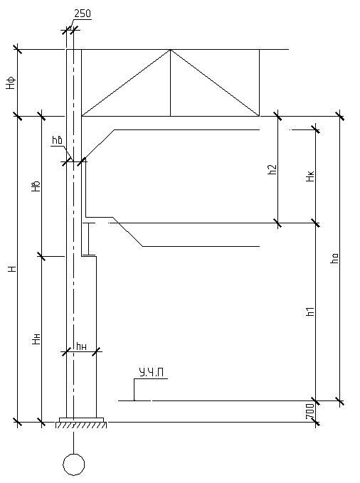
1.2 Вертикальная компоновка
) Определение высоты мостового крана:
2) Находим полную полезную высоту:
) Устанавливаем размеры верхней
части колонны Hв, нижней
части Hн и высоту у
опоры ферм Hф.
Высота верхней части колонны:
Размер нижней части колонны:
Общая высота колонны:
Высоту у опоры фермы Hф принимаем
равным 2,25м, т.к пролет рамы L=24м
.3 Горизонтальная компоновка
) Назначаем привязку к оси b0=250мм
) Определяем высоту сечения верхней
части колонны:
hb= 2b0- при
жестком опирании фермы на колонну
hb= 2х250=500
) Высота сечения нижней части
колонны:
2. Сбор нагрузок на раму каркаса
.1 Постоянные нагрузки
Постоянная поверхностная распределенная нагрузка
от покрытия на 1м2
|
Состав
покрытия
|
норм.
нагрузка, кН/м2
|
коэф.
Надежности по нагрузке
|
Расчетная
нагрузка кН/м2
|
|
Защитный
слой (битумная мастика с втопленным гравием) γ=21кН/м3;
t=20мм
|
0,42
|
1,3
|
0,55
|
|
Гидроизоляция(4
слоя рубероида)
|
0,2
|
1,3
|
0,26
|
|
Утеплитель
(пенопласт) γ=0,5кН/м3; t=50мм
|
0,03
|
1,2
|
0,04
|
|
Пароизоляция
(1 слой рубероида)
|
0,04
|
1,3
|
0,05
|
|
Стальная
панель с проф. настилом
|
0,35
|
1,05
|
0,37
|
|
Собственный
вес металлических конструкций покрытия
|
0,3
|
1,05
|
0,32
|
|
ИТОГ:
|
1,34
|
|
1,59
|
Находим расчетную равномерно распределенную
линейную нагрузку на ригель рамы:
Найдем расчетный вес верхней части
колонны (20% веса):
Нв=6,77м, Нн=6,53 , Нф=2,25м
Расчетный вес нижней части колонны
(80% веса):
Поверхностная масса стен 200кг/м2,
переплетов с остеклением - 35кг/м2.
Тогда в верхней части колонны
(включая вес этой части колонны) и нижней части колонны
Массу подкрановых балок находим по
формуле:
Вес подкрановых балок составляет:
Итоговая постоянная нагрузка:
2.2 Снеговая нагрузка п.5 СНиП - «НиВ»
.3 Ветровая нагрузка [п.6 СНиП -
«НиВ»]
Для типа местности В:
|
Z
|
<5м
|
от
5 до 10м
|
от
10 до 20м
|
|
k
|
0.5
|
0.65
|
0.85
|
Находим значения ветровой нагрузки:
|
q высота менее 5м
|
1,612кН/м
|
|
q на высоте 6,53м
|
1,677кН/м
|
|
q на высоте 10м
|
2,096кН/м
|
|
q на высоте 11,95
|
2,225кН/м
|
|
q на высоте 14,2
|
2,367кН/м
|
Сосредоточенные силы от ветровой нагрузки
вычисляем по формулам:
Эквивалентные линейные нагрузки:
2.4 Крановые нагрузки
Т.к здание однопролетное, то нагрузка
определяется от двух сближенных кранов
Находим значения моментов:
Сила горизонтального торможения
тележки:
3) Таблица расчетных сочетаний усилий
|
Номер
нагрузки
|
Нагрузка
и комбинации усилий
|
ψ
|
Сечения
стойки рамы
|
|
|
|
1-1
|
2-2
|
3-3
|
4-4
|
|
|
|
M
|
N
|
Q
|
M
|
N
|
M
|
N
|
M
|
N
|
Q
|
|
1
|
Постоянная
|
1,0
|
-138,94
|
-386,05
|
-8,35
|
-183,80
|
-386,05
|
-202,25
|
-491,16
|
+136
|
-491,16
|
-8,35
|
|
2
|
Снеговая
|
1,0
|
-95,95
|
-172,8
|
-1,24
|
-89,29
|
-172,8
|
-83,51
|
-172,8
|
+93,34
|
-172,8
|
-1,24
|
|
|
0,9
|
-86,355
|
-155,52
|
-1,116
|
-80,361
|
-155,52
|
-75,159
|
-155,52
|
+84,006
|
-155,52
|
-1,116
|
|
3
|
Dmax
|
на
левую стойку
|
1,0
|
-20,50
|
+6,08
|
-51,73
|
+251,37
|
+6,08
|
-603,33
|
-1133,32
|
+193,07
|
-1133,32
|
-51,73
|
|
|
|
0,9
|
-18,45
|
+5,472
|
-46,557
|
+226,233
|
+5,472
|
-542,997
|
-1019,99
|
+173,763
|
-1019,99
|
-46,557
|
|
3*
|
|
на
правую стойку
|
1,0
|
-166,54
|
-6,08
|
-51,73
|
+111,27
|
-6,08
|
-43,72
|
-220,86
|
+366,53
|
-220,86
|
-51,73
|
|
|
|
0,9
|
-149,88
|
-5,472
|
-46,557
|
+100,143
|
-5,472
|
-39,348
|
-198,774
|
+329,877
|
-198,774
|
-46,557
|
|
4
|
T
|
на
левую стойку
|
1,0
|
±36
|
±6,58
|
±14,28
|
±112,67
|
±6,58
|
±106,09
|
±6,58
|
±126,04
|
±6,58
|
±29,27
|
|
|
|
0,9
|
±32,4
|
±5,922
|
±12,852
|
±101,403
|
±5,922
|
±95,481
|
±5,922
|
±113,436
|
±5,922
|
±26,343
|
|
4*
|
|
на
правую стойку
|
1,0
|
±122,11
|
±6,58
|
±14,28
|
±45,44
|
±6,58
|
±38,85
|
±6,58
|
±74,37
|
±6,58
|
±14,28
|
|
|
|
0,9
|
±109,899
|
±5,922
|
±12,852
|
±40,896
|
±5,922
|
±34,965
|
±5,922
|
±66,933
|
±5,922
|
±5,922
|
|
5
|
Ветровая
|
слева
|
1,0
|
+38,14
|
+3,35
|
+3,18
|
+5,76
|
+3,35
|
+9,11
|
+3,35
|
-172,54
|
+3,35
|
+28,05
|
|
|
|
0,9
|
+34,326
|
+3,015
|
+2,86
|
+5,184
|
+3,015
|
+8,199
|
+3,015
|
-155,286
|
+3,015
|
+25,24
|
|
5*
|
|
справа
|
1,0
|
-42,34
|
-3,35
|
-5,85
|
-8,46
|
-3,35
|
-12,75
|
-3,35
|
+162,21
|
-3,35
|
-24,47
|
|
|
|
0,9
|
-38,106
|
-3,015
|
-5,26
|
-7,614
|
-3,015
|
-11,475
|
-3,015
|
+145,989
|
-3,015
|
-22,02
|
|
+Mmax,
Nсоотв
|
№
нагрузки
|
1.0
|
1,3,4
|
-
|
1,3*,4
|
|
|
Усилие
|
|
-
|
-
|
-
|
180,24
|
-373,39
|
-
|
-
|
628,57
|
705,44
|
-
|
|
|
№
нагрузки
|
0.9
|
-
|
1,3,4,5
|
-
|
1,2,3*,4,5*
|
|
|
Усилие
|
|
-
|
-
|
-
|
516,62
|
-371,64
|
-
|
-
|
809,308
|
-842,55
|
-
|
|
-Mmax,
Nсоотв
|
№
нагрузки
|
1.0
|
1,3*,4*
|
1,2
|
1,3,4
|
1,5
|
|
|
Усилие
|
|
-427,59
|
-398,71
|
-
|
-273,09
|
-558,85
|
-911,67
|
-1631,06
|
-36,54
|
-487,81
|
-
|
|
|
№
нагрузки
|
0.9
|
1,2,3*,4*,5*
|
1,2
,5*
|
1,2,3,4,5*
|
1,5
|
|
|
Усилие
|
|
-523,18
|
-555,98
|
73,865
|
-280,70
|
-544,58
|
-927,36
|
-1675,61
|
-19,286
|
488,14
|
-
|
|
Nmax, +Mсоотв
|
№
нагрузки
|
1.0
|
-
|
-
|
-
|
1,3,4
|
|
|
Усилие
|
|
-
|
-
|
-
|
-
|
-
|
-
|
-
|
455,11
|
-1631,06
|
-
|
|
|
№
нагрузки
|
0.9
|
-
|
-
|
-
|
1,2,3,4,5*
|
|
|
Усилие
|
|
-
|
-
|
-
|
-
|
-
|
-
|
-
|
653,194
|
-1663,65
|
|
|
Nmax, -Mсоотв
|
№
нагрузки
|
1.0
|
1,2
|
1,2
|
1,3,4
|
-
|
|
|
Усилие
|
|
-234,89
|
-558,85
|
-
|
-273,09
|
-558,85
|
-911,67
|
-1730,57
|
-
|
-
|
-
|
|
|
№
нагрузки
|
0.9
|
1,2,3*,4*,5*
|
1,2,5*
|
1,2,3,4,5*
|
-
|
|
|
Усилие
|
|
523,18
|
-555,98
|
73,865
|
-271,77
|
-544,58
|
-927,36
|
-1675,61
|
-
|
-
|
-
|
|
Nmin, +Mсоотв
|
№
нагрузки
|
1.0
|
Усилия
M и N
от постоянной нагрузки с коэф. 0,9/1,1=0,8
|
1,5*
|
|
|
Усилие
|
|
|
270
|
-396,28
|
-
|
|
Nmin, -Mсоотв
|
№
нагрузки
|
1.0
|
Усилия
M и N
от постоянной нагрузки с коэф. 0,9/1,1=0,8
|
1,5
|
|
|
Усилие
|
|
|
-63,74
|
-389,58
|
-
|
|
Qmax
|
№
нагрузки
|
0.9
|
|
|
|
|
|
|
|
1,2,3,4,5*
|
|
|
Усилие
|
|
|
|
|
|
|
|
|
|
|
109,56
|
|
|
|
|
|
|
|
|
|
|
|
|
|
|
|
|
|
|
4. Расчет колонны
Для верхней части колонны в сечении 1 - 1: N=-555,98кН;
M=-523,18кН*м
Для нижней части колонны N1=-1675,61кН;
M1=-927,36кН*м
(изгибающий момент догружает подкрановую ветвь); N2=-1663,65;
M2=653,194кН*м
(изгибающий момент догружает наружную ветвь); Qmax=-109,56кН
Соотношение жесткостей верхней и нижней части
колонны IB/IH=1/5
.1 Определение расчетных длин колонны
Определяется относительная погонная жесткость:
[прил.6 СНиП «СК»]
Определяем коэф. α равный
отношению коэф. расчетных длин нижней к верхней части колонны
По полученным значениям n и α определяем
коэф. расчетной длины нижней части колонны. По табл.68 - СНиП «2-23-81*»
µ1=1,94
Определяем коэф. расчетной длины для
верхней части колонны
µ2=µ1/α=1,94/0,87=2,2
Определяем расчетные длины нижней и
верхней части колонны в плоскости рамы:
Определяем расчетные длины нижней и
верхней части колонны из плоскости рамы:
. Расчет стропильной фермы
.1 Исходные данные
Параметры здания и нагрузки те же,
что в примерах компоновки и расчета рамы. Материал стержней фермы - С245 Ry=24кН/см2;
материал фасонок - С255. Элементы ферм выполнены из уголков. HФ=2,25м
.2 Сбор нагрузок на ферму
Постоянная нагрузка:
Снеговая нагрузка:
Значения погонных равномерно
распределенных расчетных нагрузок от собственного веса конструкций и снега
определяются по формулам:
КР = qКР
×
В = 1,59×
6 = 9,54кН/м ;
где В - шаг ферм (В = 6 м);
Нагрузка на промежуточные узлы
фермы от собственного веса конструкций
1 = QКР
× d
= 9,54 ×
3 = 28,6 кН;
где d
- длина панели верхнего пояса (d
= 3 м)
Нагрузка на опорные стойки от
собственного веса конструкций
2 = 0,5 ×
F1 = 0,5 ×
28,6 = 14,3кН
Нагрузка на промежуточные узлы
фермы от снега
1 = PСНЕГА
× d
= 14,4 ×
3 = 43,2кН;
Нагрузка на опорные стойки от
снега
2 = 0,5 ×
F1 = 0,5 ×
43,2 = 21,6кН
Схема загружения фермы
5.3 Определение усилий в стержнях фермы
Расчетная схема фермы
Нагрузка от рамных моментов:
я комбинация:
(сочетание 1,2,3*,4*,5*)
я комбинация:
(не учитываем снеговую нагрузку)
Нагрузка от распора рамы:
я комбинация:
я комбинация:
5.4 Расчетные усилия в элементах фермы, кН
|
Элемент
|
№
стержня
|
Усилия
от постоянной нагрузки
|
Усилия
от снеговой нагрузки
|
Усилия
от опорных моментов
|
Усилие
от распора рамы
|
Расчетные
усилия
|
|
|
|
|
|
|
№
усилий
|
растяжение
|
№
усилий
|
сжатие
|
|
|
|
 М1=-523,18М2=-436,82Н1=-83,9Н2=-82,8
|
|
|
|
|
|
|
|
|
|
|
|
1
|
2а
|
2б
|
3
|
4
|
5
|
6
|
|
|
|
|
|
Верхний
пояс
|
1-4
|
0
|
0
|
0
|
232.5
|
194,1
|
-
|
-
|
3
|
232,5
|
-
|
-
|
|
4-6
|
-22,896
|
-328,8
|
-295,8
|
201,9
|
163,51
|
-
|
-
|
-
|
-
|
1+2а
|
-351,69
|
|
6-8
|
-22,896
|
-328,8
|
-295,92
|
201,9
|
163,51
|
-
|
-
|
-
|
-
|
1+2а
|
-351,69
|
|
8-9
|
-30,568
|
-444
|
-399,6
|
169,9
|
131,6
|
-
|
-
|
-
|
-
|
1+2а
|
-474,56
|
|
Нижний
пояс
|
2-5
|
7,632
|
184,8
|
166,32
|
-217,86
|
-179,42
|
-57,13
|
-56,01
|
1+2а
|
192,4
|
1+4+6
|
-227,8
|
|
5-7
|
7,632
|
415,2
|
373,68
|
-185,94
|
-147,55
|
-57,13
|
-56,01
|
1+2а
|
422,8
|
-
|
-
|
|
Раскосы
|
2-4
|
-16,695
|
-238,77
|
-214,893
|
-18,90
|
-18,89
|
-
|
-
|
-
|
-
|
1+2б+3
|
-250,48
|
|
4-5
|
11,925
|
180
|
162
|
19,95
|
19,94
|
-
|
-
|
1+2б+3
|
193,8
|
-
|
-
|
|
5-8
|
-7,155
|
-108
|
-97,2
|
-19,95
|
-19,94
|
-
|
-
|
-
|
-
|
1+2б+3
|
-124,3
|
|
7-8
|
2,385
|
36
|
32,4
|
19,95
|
19,94
|
-
|
1+2б+3
|
54,7
|
-
|
-
|
|
1-3
|
0
|
0
|
0
|
0
|
0
|
-
|
-
|
-
|
-
|
-
|
-
|
|
Стойки
|
1-2
|
-1,431
|
-21,6
|
-19,44
|
0
|
0
|
-
|
-
|
-
|
-
|
1+2а
|
-23
|
|
5-6
|
-2,862
|
-43,2
|
-38,88
|
0
|
0
|
-
|
-
|
-
|
-
|
1+2а
|
-46,02
|
|
7-9
|
-2,862
|
-43,2
|
-38,88
|
0
|
0
|
-
|
-
|
-
|
-
|
1+2а
|
46,02
|
5.5 Таблица проверки сечений стержневой фермы
|
Элемент
|
№
элемента
|
Расчетное
усилие, кН
|
Сечение
уголка
|
Площадь
сечения, см2
|
IX/IY ,см
|
iX/iY ,см
|
λX/λY
|
[λ]
|
Φmin
|
γ
|
Проверка
сечений
|
|
|
растяжение
|
сжатие
|
|
|
|
|
|
|
|
|
прочность устойчивость
|
|
|
Верхний
пояс
|
1-4
|
232,5
|
-
|
L1
25х9
|
44
|
275/275
|
3,86/5,48
|
78/109
|
127
|
-
|
1
|
5,28<24
|
|
|
4-6
|
-
|
351,69
|
L 125х9
|
44
|
300/600
|
3,86/5,48
|
78/109
|
127
|
0,481
|
1
|
|
16,6<24
|
|
6-8
|
-
|
351,69
|
L 125х9
|
44
|
|
3,86/5,48
|
78/109
|
127
|
0,481
|
1
|
|
16,6<24
|
|
8-9
|
-
|
474,56
|
L 125х9
|
44
|
|
3,86/5,48
|
78/109
|
127
|
0,481
|
1
|
|
22,4<24
|
|
Нижний
пояс
|
2-5
|
192,4
|
227,8
|
L 125х9
|
44
|
575/575
|
3,86/5,48
|
148/105
|
150
|
0,283
|
1
|
|
18,3<24
|
|
5-7
|
422,8
|
-
|
L 125х9
|
44
|
600/1200
|
3,86/5,48
|
155/219
|
400
|
-
|
1
|
9,6<24
|
|
|
Раскосы
|
2-4
|
-
|
250,48
|
L 160x10
|
31,43
|
375/375
|
3,85/2,47
|
76/54
|
150
|
0,716
|
1
|
|
11,1<24
|
|
4-5
|
193,8
|
-
|
L 140х9
|
24,7
|
|
4,34/6,09
|
86/72
|
400
|
-
|
1
|
8<24
|
|
|
5-8
|
-
|
124,3
|
L 125x8
|
19,7
|
|
3,86/5,46
|
97/69
|
180
|
0,554
|
1
|
|
11,4<24
|
|
7-8
|
54,7
|
-
|
L 56х5
|
10,82
|
|
1,72/2,69
|
218/139
|
400
|
-
|
1
|
5,1<24
|
|
|
1-3
|
-
|
-
|
-
|
-
|
177/177
|
-
|
-
|
-
|
-
|
1
|
-
|
-
|
|
Стойки
|
1-2
|
-
|
23
|
L 56x5
|
10,82
|
225/225
|
1,72/2,69
|
131/84
|
180
|
0,360
|
1
|
|
6<24
|
|
5-6
|
-
|
46,02
|
L 56x5
|
10,82
|
|
1,72/2,69
|
131/84
|
180
|
0,360
|
1
|
|
12<24
|
|
7-9
|
-
|
40,02
|
L 56x5
|
10,82
|
|
1,72/2,69
|
131/84
|
180
|
0,360
|
1
|
|
12<24
|
5.6 Расчет сварных швов
мостовой кран нагрузка колонна
Для сварки узлов фермы применяем
полуавтоматическую сварку Св-08Г2С
=1.4…2мм;
kfmax=8мм; βf=0.9; βz=1.05; γwf=γwz=1
Rwf xβf=240x0.9=216>Rwz=0.45x370x1.05=175
Несущая
способность швов определяется прочностью по границе сплавления
(γwβRw)min=17.5кН/см2
Длина
сварных швов определяется по формуле:
=N/(2kf(βγwRw)min)+1
Таблица
расчета швов
|
Номер
стержня
|
Сечение
|
[N],
кН
|
Шов
по обушку
|
Шов
по перу
|
|
|
|
Nоб, кН
|
kf, мм
|
lw, см
|
Nп кН
|
kf, мм
|
lw, см
|
|
1-4
|
L1
25x9
|
232,5
|
162,75
|
8
|
5
|
69,75
|
6
|
2
|
|
4-6
|
L1
25x9
|
351,69
|
246,183
|
8
|
8
|
105,507
|
6
|
4
|
|
6-8
|
L1
25x9
|
351,69
|
246,183
|
8
|
8
|
105,507
|
6
|
4
|
|
8-9
|
L1
25x9
|
474,56
|
332,192
|
8
|
10
|
142,368
|
6
|
5
|
|
2-5
|
L1
25x9
|
192,4
|
134,68
|
8
|
4
|
57,72
|
6
|
2
|
|
5-7
|
L1
25x9
|
422,8
|
295,96
|
8
|
9
|
126,84
|
6
|
4
|
|
2-4
|
L 160x10
|
250,48
|
175,336
|
8
|
5
|
75,144
|
6
|
3
|
|
4-5
|
L 140x9
|
193,8
|
135,66
|
6
|
4
|
58,14
|
4
|
2
|
|
5-8
|
L 125x8
|
124,3
|
87,01
|
6
|
3
|
37,29
|
4
|
2
|
|
7-8
|
L 56x5
|
54,7
|
38,29
|
6
|
2
|
16,41
|
4
|
2
|
|
1-2
|
L 56x5
|
23
|
6
|
2
|
6,9
|
4
|
2
|
|
5-6
|
L 56x5
|
46,02
|
32,214
|
6
|
2
|
13,806
|
4
|
2
|
|
7-9
|
L 56x5
|
40,02
|
28,014
|
6
|
2
|
12,006
|
4
|
2
|
Список использованной литературы
1.
СНиП II-23-81*. Стальные конструкции.
.
СНиП 2.01.07-85. Нагрузки и воздействия.
.
Металлические конструкции / под общей редакцией Е. И. Беленя.