Планировочная организация комфортной среды в проектировании жилого интерьера мансарды
Министерство
образования и науки Краснодарского края
ГБОУ СПО
Краснодарский педагогический колледж №3
ВЫПУСКНАЯ
КВАЛИФИКАЦИОННАЯ РАБОТА
по
специальности Дизайн (по отраслям)
ПЛАНИРОВОЧНАЯ
ОРГАНИЗАЦИЯ КОМФОРТНОЙ СРЕДЫ В ПРОЕКТИРОВАНИИ ЖИЛОГО ИНТЕРЬЕРА МАНСАРДЫ
Выполнила:
студентка 4курса
группы «ДХ»
очного отделения
Свириденко Дарья
Сергеевна
Научный
руководитель:
Бригадир О. П.
Краснодар
2013
Оглавление
Введение
Глава 1. Краткая историческая
справка и этапы развития организации комфортной среды в жилом интерьере
.1 История возникновения
необходимости организации комфортной среды в интерьере
.2 Развитие организации комфортной
среды на разных исторических этапах
Глава 2. Основы
дизайн-проектирования комфортной среды в интерьере
.1 Дизайн как одна из форм
творческой организации комфортной среды
.2 Практическое применение
комфортной среды в интерьере
Глава 3. Этапы разработки дипломного
проекта
.1 Предпроектные исследования. Фото,
эскизы. Составление ситуационного плана
.2 Характеристика стиля,
используемого для создания проекта
.3 Разработка генерального плана
реконструированного интерьера
.4 Разработка ассортиментного
перечня, подбор материалов, краткая характеристика используемой мебели
.5 Экономический расчет проекта
Заключение
Список используемых источников
Приложения
Введение
Комфортная среда в интерьере - это качественный
интерьер, гармоничная и комфортная среда обитания для человека.
Каждый хочет иметь уютный и красивый дом. Дом,
где не раздражает ни цветовая гамма стен, ни яркое освещение, ни расстановка
мебели, ни другие мелкие детали. Ведь душевное состояние человека, прежде
всего, зависит от обстановки, которая его окружает.
Интерьер - (от французского Interieur -
внутренний) это архитектурное внутреннее пространство здания, жилища,
помещения. Особая среда обитания человека, обусловленная функциональным
комфортом и эстетической привлекательностью, достигаемая проектированием и
созданием внутреннего пространства помещений, линий и форм, фактурой и мебелью,
цветом и освещенностью. Подходящий интерьер играет ключевую роль в обеспечении
психологического комфорта, а также значительно влияет на производительность,
здоровье и безопасность.
Стиль в интерьере - в первую очередь это
построение комфортной жизни, среды обитания человека, находящегося в нем. [12]
Тема данного
дипломного проекта: «Планировочная организация комфортной среды в
проектировании жилого интерьера мансарды».
Объект исследования: процесс
планировочной организации комфортной среды.
Предмет исследования: комфортная
среда как гармоничная среда обитания для человека.
Цель исследования: разработка
дизайн - проекта интерьера мансарды в жилом интерьере.
Актуальность представленной темы: В
настоящее время все чаще приобретают популярность загородные дачные дома или
квартиры с выходом на чердак, где есть возможность сделать помещение под
мансарду.
В наши дни, вновь возводимые дома, как правило,
имеют этаж под кровлей. Популярность домам с подобной архитектурой принес
француз Франсуа Мансар своей работой в Париже в середине XVII века. В 1630 году
он впервые использовал подкровельное чердачное пространство для жилых и
хозяйственных целей. С тех пор чердачный этаж под скатной крутой изломанной
крышей носит название «мансарда» (по имени архитектора). С начала XIX века, в
связи с индустриализацией и урбанизацией, в мансардах жили преимущественно
бедные люди.
Обустройство мансарды повышает эффективность
капиталовложений (на один квадратный метр застройки приходится больше жилой
площади) и увеличивает инвестиционную привлекательность здания. Однако при
новом строительстве мансардная крыша сооружается в соответствии с проектом, в
котором продуманы все нюансы жилья в подкровельном пространстве. Для того чтобы
увеличить площадь квартиры - это простейший способ решить пространственный
вопрос - преобразовать холодный неэксплуатируемый чердак в теплую и жилую
мансарду. [2]
Мансарду можно смело назвать дополнительной
площадью в доме, а за счет удаления от центрального входа и, зачастую,
нестандартного вида, именно она обустраивается для работы или отдыха.
И если ранее в городах, в мансардных помещениях
устраивали недорогие квартиры-студии, которые были любимым местом проживания
студентов и людей творческих профессий, то теперь мансарды, как правило,
являются вторым уровнем дорогих элитных квартир, расположенных на верхних
этажах зданий. Зачастую мансарда является любимым местом в доме, потому что эту
территорию обустраивают по собственному вкусу и переделывают то ли в зимний
сад, то ли в рабочий кабинет.
В соответствии с объектом, предметом, целью
определенны следующие задачи исследования:
1. Проанализировать справочную, специальную
литературу по проектированию комфортной среды.
. Выявить современные тенденции в
проектировании интерьера.
. Определить влияние комфортной среды на
жизнь современного человека.
. Привести примеры и аналоги жилого
интерьера.
. Спроектировать и проверить ряд
методических указаний по проектированию жилого интерьера с планировочной
организацией комфортной среды.
В исследовании были использованы следующие
методы дизайн - проектирования:
1. Предпроектный анализ - обследование,
знакомство с ситуацией, особенностями обустройства будущего интерьера, перечнем
свойств, которыми он должен обладать;
. Изучение аналогов, обзор литературных
данных и реальных прототипов;
. Метод синтеза в дизайне - процесс
мысленного или процедурного упорядочения проектных сведений, отобранных при
дизайнерском анализе, определяющий процесс выдвижения концепции проектных
работ;
. Художественный метод - система
принципов, управляющих процессом создания произведения искусства. Х.м.
Определяется как «способ художественного обобщения», «принцип эстетической
оценки», «принцип воплощения действительности в образах искусства»;
. Графическое проектирование - способ
разработки устройства проектного решения посредством создания чертежей в
определенном масштабе. Компьютеризация г.п. наглядно демонстрирует научно -
технического процесса на проектную деятельность.
Противоречия проекта: Т.к.
мансарда обычно является чердачным помещением, и назначение для этого интерьера
могут быть самые разные (неиспользованный объем под крышей может использоваться
как игровая комната для детей, малярная мастерская, библиотека, бильярдный зал
или комната отдыха, где можно уединиться и расслабиться). Реконструкция
существующих зданий нередко ставит хозяев перед сложными эстетическими,
практическими и финансовыми дилеммами. Переделки могут существенно повлиять на
конструкцию и конфигурацию крыши, а также на архитектурный облик дома в целом.
При обустройстве мансардных помещений
проблемными обычно становятся участки под крышей, на ее стыке со стеной. Такое
место у одного из скатов крыши можно использовать, например, для создания
встроенного шкафа и рабочего уголка.
Практическая значимость работы
заключается в том, что разработанные положения, включают различные методы
дизайн - проектирования, изучение современных технологий проектирования
комфортной среды, приемы и методы формирования стилевого единства дизайнерских
решений, и способы визуализации дизайнерский идей.
Методологический анализ источников. В
ходе работы над дипломным проектом были использованы и изучены труды Шимко В.Т.
«Основы дизайна и средовое проектирование», в котором описывается предмет,
категории и принципы проектной деятельности, связанные с задачами комплексного
архитектурно - дизайнерского формирования окружающей человека предметно -
пространственной среды.
Так же изучен учебник Агранович-Пономарева Е.С.,
Аладова Н.И. «Интерьер и предметный дизайн жилых помещений», в котором
раскрывается комплексный подход к формированию интерьера, его
функционально-технологические аспекты, пространственную организацию жилища и
экологические принципы. Объясняется специфика проектирования основных помещений
квартиры: прихожей, общей, спальной и детской комнат, кухни, ванной и туалета.
Даны художественные особенности проектирования жилого интерьера: композиционное
и цветовое решения, использование стекла, тканей, зелени в интерьере.
Автор учебника А.Г. Лазарева «Архитектура,
строительство, дизайн». В содержание учебника включена вся необходимая
информация для освоения студентами предметов: «Архитектура», «Архитектурные
конструкции гражданских и промышленных зданий», «Основы
архитектурно-конструктивного проектирования».
В.П. Покатаев «Дизайнер-конструктор» в учебном
пособии изложены теоретические и конструктивно-технологические основы
проектирования оборудования интерьеров жилых и общественных пространств.
Освещены социальные, функциональные, эргономические, конструкторские,
технологические, экономические и эстетические аспекты проектирования элементов
интерьера (мебели, потолков, перегородок, лестниц, каминов и др.)
Книга Н. Игнатовой «Дизайн и декор интерьера.
500 полезных советов» направлена на то, чтобы научиться правильно
организовывать пространство жилища, лучшим образом использовать цветовую
палитру, освещение, стили, различные способы и приемы корректировки помещений,
подобрать мебель, модные и практичные аксессуары.
Глава 1. Краткая историческая
справка и этапы развития организации комфортной среды в жилом интерьере
.1 История возникновения необходимости
организации комфортной среды в интерьере
Говоря об интерьере нельзя не сказать о дизайне
интерьеров - процессе проектирования, отделки и обстановки внутренних помещений
зданий. Весь интерьер является продуктом объединения трех составляющих:
· строительной оболочки (стены, пол,
потолок),
· предметного наполнения (мебель,
оборудование),
· функциональных процессов,
формирующих пространство, а также чувственно-психологическую атмосферу.
История интерьера уходит корнями к тому моменту,
когда появились первые постройки людей. Архитекторы интерьер рассматривают в
связи с внешним видом постройки (экстерьером). Концепция архитектурного
интерьера до конца может реализоваться только как система пространств, в
которых выявлены акценты, направления эмоционального и физического движения.
Представления человека о красоте изменялись со
сменой эпох. Благодаря новым возможностям технического прогресса появлялись
новые материалы, а также новые возможности создавать окружающие предметы в
более сложных вариациях. История интерьера показывает, как стиль жизни человека
оказывал влияние и на отдельные предметы интерьера, и на оформление помещений в
целом. На сегодняшний день стилевое решение интерьера определенного помещения
является не только повторением архитектуры определенного исторического периода.
В первую очередь стиль в интерьере представляет собой построение комфортной во
всех отношениях среды обитания для человека, проживающего в нем. [9]
Стиль, как и история интерьера, является
понятием историческим и каждый из нас по-своему понимает этот термин. Это
совокупность довольно устойчивых художественных форм, объединение искусств
(скульптуры, живописи, архитектуры), присущих данному периоду времени и народу.
На протяжении всей истории интерьера видно, что ни один стиль бесследно не
умирает - он переходит в иной. Не существует стилей в совершенно чистом виде,
они всегда содержат части старого, а также ростки нового. Каждая эпоха имеет
свои эталоны красоты, гармонии, свое сидение окружающего.
Таким образом, при изучении эстетики прошлого
можно увидеть, как различные стили переплетаются и порождают новые направления.
Сначала элементы тех либо других старых стилей проникают в новые в виде
ностальгических веяний, увлечений, художественной богемы. Потом идеи, достигнув
широких масс, превращаются в моду.
1.2 Развитие организации комфортной
среды на разных исторических этапах
История классического интерьера зародилось еще в
Древнем Египте, сформировалось во время античности, средневековья, в эпоху
Возрождения. Оно дало основу всем последующим направлениям развития интерьера и
оказало большое влияние на нашу современность. [13]
Зодчество на Земле началось практически с
жилища. Первыми видами жилища для человека служили естественные укрытия:
пещеры, дупла, ветви деревьев, а затем сооруженные им самим шалаши, землянки,
дома. Обустройство жилища носило в основном утилитарный характер: решались
вопросы организации очага, мест вокруг него и т. п. Для этого использовались те
же природные материалы, что и для строительства самого жилища, - камень,
дерево, глина. С развитием ремесла и возникновением художественных ценностей
люди начали уделять внимание не только удобному устройству, но и украшению
жилищ. Об этом свидетельствуют жилые постройки Древнего Египта (Рисунок 1).
Рисунок 1 - Жилой дом в Древнем Египте
Небогатые дома включали самые необходимые
помещения. Центральное место занимала жилая комната, потолок которой,
выполненный в виде наката из бревен, опирался на деревянные столбы. Две задние
комнаты служили спальней и кухней с печью для выпечки хлеба и ступкой для
толчения зерна. В глиняный пол жилой комнаты вмазывался сосуд-жаровня для
обогрева в холодное время года. В некоторых домах лестница вела на плоскую
крышу-террасу.
О предметном мире древнеегипетского жилого дома
можно судить лишь по вещам, найденным в гробницах. Это различного рода мебель,
предметы прикладного искусства, красивая и практичная посуда.
Таким образом, жилище строилось по принципам
четкого функционального разделения на парадные, жилые и хозяйственные
помещения, их удобного взаиморасположения, создания среды, комфортной в
условиях жаркого климата. Искусство интерьера началось с осознания общей
композиции внутреннего пространства дома, выделения ее центра - главной жилой
комнаты, роли света и цвета в восприятии архитектурных форм, художественного
истолкования конструктивных элементов.
Рисунок 2 - Жилой дом в Древней Греции
В интерьере античного жилого дома стремление к
комфортности и художественной изысканности нашло более глубокое отражение.
Древнегреческие и италийские мастера выработали отличные друг от друга
композиции жилого дома (Рисунок 2), оптимальные в условиях средиземноморского
климата. Позже в римском городском доме и загородном доме-вилле эти два приема
были объединены в новую пространственную структуру.
Интерьер древнегреческого дома отличали
продуманность и простота композиции, человечность масштабов, изысканная
деликатность форм и сдержанность декоративной отделки. Отчасти это объяснялось
тем, что много времени греки уделяли общественной жизни, и дом им был нужен для
удовлетворения потребности в пище, сне и отдыхе. Отсюда скромное убранство
помещений и лаконичность пространства.
Дом делился на две части - женскую, где также
располагались дети, слуги и рабы, и мужскую, центром которой было парадное
помещение дома, предназначенное для мужских собраний и пиров. Вдоль его стен
устраивали возвышение для ложа пирующих. Важное помещение женской половины -
комната с главным очагом (ойкос), рядом с которой находилась узкая комнатка,
служившая дымоходом. В домах зажиточных горожан имелись ванные с терракотовыми
или каменными ваннами-креслами.
Простота интерьера сочеталась с лаконичной
росписью стен. Они были оштукатурены и окрашены обычно горизонтальными
полосами: белой, желтой, красной или желтой, голубой, красной, начиная с
цокольной части. Полы парадных помещений, выложенные разноцветной галькой,
отличались богатством мозаичного рисунка геометрических узоров, орнамента или изображений
животных и фантастических существ. [9]
Рисунок 3 - Жилой дом в Древнем Риме
Мебель в Греции делали из дерева (клен, самшит,
бук, кедр, кипарис), мрамора или бронзы. Это круглые или прямоугольные низкие
столики, табуреты, стулья со спинками, кресла с подлокотниками, высокие
кровати, на которых возлежали во время трапезы. Дополняли интерьер своеобразные
вазы, светильники, ларцы, циновки, цветные занавеси.
Италийский дом сочетал семейный уют с деловыми
интересами хозяина и его любовью к природе (Рисунок 3). Комфорт и роскошь быта
богатого римлянина сказывались и в пышной отделке помещений: мраморных
мозаичных полах, фонтанах и столах двора, цветниках, деревьях, статуях.
Фресковая роспись, покрывавшая всю поверхность стен главных помещений дома,
органично сочеталась с их архитектурными формами, обогащая интерьер либо
имитацией мраморной облицовки стен, либо изображениями картин и архитектурных
деталей, либо украшением стен орнаментами, либо иллюзорным развитием интерьера
путем изображения архитектурных форм в различных перспективных ракурсах.
Мебель по своему составу и материалам была такой
же, что и в греческом жилище, но отличалась более сложной формой и насыщенным
декоративным оформлением. Изделия из кедра, туи, оливы, клена, ясеня украшали
резьбой, инкрустацией из фаянса, слоновой кости, панциря черепахи, металлов.
Интерьер средневекового жилища Европы во многих
отношениях принципиально отличался от античного. Оно создавалось в иных
природно-климатических и социальных условиях, имело иные структуры построек,
иные строительные и архитектурные средства, конструктивные и эстетические
особенности.
Рисунок 4 - Западноевропейский средневековый
жилой дом
В Западной Европе, где тон жизни задавало
немногочисленное городское население, жилой дом и его интерьер получили иные
формы, пространственные и эстетические характеристики, отражавшие черты
романского и готического архитектурных стилей (Рисунок 4). Теснота застройки
средневекового города заставляла развивать внутреннее пространство домов вверх,
а также за счет небольшого выдвижения объема дома на уровне второго этажа в
сторону улицы. Внизу находились хозяйственные и торговые помещения, мастерские,
выше - жилые комнаты и чердак, используемый как склад. Центром вертикальной
композиции внутреннего пространства дома являлся второй этаж, где располагалось
жилое помещение с очагом. В домах знатных и богатых лиц небольшие жилые
помещения второго этажа группировались вокруг центрального парадного зала с
очагом, а третий этаж составляли маленькие жилые комнаты прислуги.
В отличие от античного жилого дома исчезло
деление на женскую и мужскую половины, жилище перестало быть замкнутым. Семью
объединял общий очаг, который использовали и для обогрева, и для приготовления
пищи. Для этого он устраивался открытым с вытяжным козырьком. В вечернее время
очаг давал дополнительное освещение.
Парадные залы богатых домов иногда украшались
стенными росписями, декоративными тканями, цветными витражами. Но в целом в это
время даже парадные помещения сохраняли простоту и суровость убранства. Мебель
была грубовата по форме и малочисленна - скамьи, сундуки, которые служили и
кроватями, табуреты, стулья с высокой спинкой, простые шкафы. Мебель украшалась
резьбой, росписью, железными накладками.
Со временем в парадных помещениях появились
эркеры, украшенные цветными витражами, дубовая обшивка стен, полы, выложенные
керамическими плитками, драпировки и тканые ковры - шпалеры на стенах.
Кирпичное производство вытеснило очаг, и появился камин, завершающийся
пирамидальным колпаком. Мебель стала разнообразней. Появились большие и тяжелые
шкафы, буфеты, этажерки, ширмы, широкие кровати с балдахинами. Ее украшали
резьбой. На столах и полках стояла металлическая, керамическая, цветная
стеклянная посуда - кувшины, подносы, блюда, кружки и т.д.
На смену средневековью пришло Новое время,
связанное с проантичной архитектурой, выразившейся в стилях ренессанс
(возрождение), барокко, классицизм и эклектизм, общей основой которых оставалась
античная архитектура. Из всего многообразия интерьеров жилых построек этого
времени интерьер эпохи Возрождения является заключительным в ряду классических,
послуживших основой для последующих этапов развития жилого интерьера.
Рисунок 5 - Интерьер эпохи Возрождения
Основу пластического убранства помещений
составляли элементы художественно истолкованной античной конструкции, которые
использовались с целью передать торжественность, монументальность, парадность,
простоту, интимность и другие образные качества внутреннего жилого пространства
(Рисунок 5). Относительно малые параметры помещений, более человеческий масштаб
пространства, комфортность среды и функциональное разнообразие привели к
сознательному изменению пропорций, тонкости проработки деталей. Стены внизу
имели высокую дубовую филенчатую панель, выше которой покрывались фресковой
живописью или тисненой кожей, или ткаными коврами-шпалерами. Верхняя часть
стены могла обрабатываться аркадой на колонках или лепным фризом. В искусно
оформленные ниши на стенах помещались рельефные или скульптурные изображения
Богоматери и святых. Большие камины, часто достигающие потолка, размещались по
оси помещения. Полы покрывались каменными плитами с геометрическим орнаментом
рисунка. Мебель расставлялась, как правило, вдоль стен за исключением
центрально располагаемого стола и кровати в спальне. Сундуки, скамьи, складные
стулья, столы с массивными опорами, соединенными перекладинами, двухъярусные
шкафы украшали профилями античной формы, покрывали позолотой, живописью. Особое
внимание обращалось на оформление дверей наличниками и фронтончиками, порталами
с колонками. Мелкие предметы убранства были немногочисленны. Это светильники,
медные или фаянсовые подсвечники, вазы, декоративные тарелки и блюда,
выставляемые на полках. В целом же характерное для эпохи Возрождения
разнообразие мебели, декоративного решения интерьера отличалось
индивидуальностью, и было символом значительности владельца дома. [13]
Возможно, эстетика ренессанса слишком гармонична
и разумна для сегодняшней архитектуры, предпочитающей замысловатые и
несимметричные формы. Новая эстетика отразилась и на дизайне интерьера стиля
ренессанс: теперь ему характерны большие помещения со скругленными арками,
отделка резным деревом, сама ценность и относительная независимость каждой
отдельной детали, из которых набирается целое. На фоне декоративного
великолепия ренессанса обстановка интерьеров довольна скупа - в одном помещении
редко находилось более трех предметов мебели. Зато большие окна с широкими
откосами, напоминающими раму картины, способны существенно изменить характер
интерьера, залить его солнечным светом и украсить весенним пейзажем. [7]
Давние исторические стили на этапах формирования
соседствовали с уходящими, не вытесняя их. Каждая следующая цитата прежних форм
показывает, что абсолютная копия прежнего стиля невозможна и не нужна, и
сосуществование всей гаммы прошлых стилистик в современных пространствах - это
новая, другая жизнь.
В качестве самого общего приближения к
направлениям интерьерных стилистик, их можно разделить на исторические,
современные и этнические. Они, в свою очередь, состоят из множества
ответвлений, соответствующих географическим, социальным, вкусовым и прочим
факторам. Реальность неизбежно эклектична. Однако, эклектика, которую принято
было еще совсем недавно считать упадком, сейчас рассматривается как
естественный и закономерный процесс развития стиля, при котором происходит
расширение его границ, разрабатываются новые принципы, принимаются новые критерии
и вызревают новые подходы.
Эклектика может быть хаотичной и уродливой, а
может быть цельной и стильной (Рисунок 6).
Рисунок 6 - Интерьер в стиле эклектика
Вначале девяностых дизайнеры-декораторы, пожимая
плечами и подчиняясь капризу резко разбогатевшего клиента, расписывали потолки
двухкомнатных квартир в стиле рококо. Сегодня нередки дома, где обветшавший
паркет и мебель, купленная бабушкой и дедушкой в начале семидесятых уживаются с
домашним кинотеатром, новыми окнами и джакузи. И это лучше, чем
последовательная консервация разрухи. Выдержанность стиля - вопрос вкуса,
возможностей, образа жизни. Для многих соединение старого с новым - вынужденное
искусство. Когда это делается с любовью, осознанно, а еще лучше с участием
профессионалов - результатом может быть эклектика как стиль.
Люди основательные любят респектабельные
интерьеры в духе старых добрых традиций. Часто их называют классическими (не
путать с классицизмом). Подлинники покупают коллекционеры антиквариата, а в
массе своей поклонники традиционных интерьеров довольствуются стилизациями
известных стилей - барокко, рококо, классицизма и др. Исторически стили мебели
назывались либо по их основным художественным признакам, скажем,
"рокайль" от слова раковина, либо в соответствии с периодом правления
- стиль Людовика V, либо по имени мастера - Чиппендейл. Характерно, что все эти
три названия относятся к одному и тому же стилю рококо. На том же примере
рококо можно видеть и заметные отличия стиля в разных странах и на разных
этапах его развития. Современные интерьеры традиционной ориентации по западным
классификациям обобщенно так и называют "Tradinional". [7]
Вторая половина человечества отдает предпочтение
модернистским интерьерам (не путать с модерном). Тут и минимализм, и
индастриал, и хай-тек, и лофт. Больше всего простая и лаконичная мебель,
предложенная нам XX-м веком, напоминает самые древние образцы лежанок и сидений
первобытных народов. А мебельная культура древнего Египта, где изобрели первую
форму стула со спинкой и существовали практически все типы современной мебели,
послужила источником европейских стилей мебели. Похоже, интерьерная мода
движется по кругу, точнее, по спирали, как общественное развитие, согласно
учению Карла Маркса.
Рисунок 7 - Китайская комната в Поместье Клейдон
(Англия)
Этнические стили можно обозначить как третье
направление. Хотя и исходные исторические разнились в соответствии с
особенностями стран, а на них, в свою очередь, оказывали влияния третьи
национальные культуры. На том же примере с рококо показательно, что в
английских и французских интерьерах XVIII века этот стиль адаптировал китайские
мотивы (Рисунок 7). При этом современные интерьеры этно-экзотического направления
можно рассматривать и как часть модернистской культуры, особенно учитывая
всплеск современного интереса и новейших интерпретаций.
Глава 2. Основы
дизайн-проектирования комфортной среды в интерьере
.1 Дизайн как одна из форм
творческой организации комфортной среды
Дизайн как самостоятельная отрасль
проектирования окружающей среды вырос из архитектурно-художественного
творчества начала ХХ века. Основной предпосылкой этого явления стали
кардинальные изменения в сфере материального производства предметов потребителя,
и зарождение и стремительное развитие в новой сфере деятельности.
Первоначальный смысл широко используемого
сегодня термина «дизайн» означает «проектирование». В современной проектной
практике «дизайн» относится, прежде всего, к проектированию предметной среды,
окружающей человека. Дизайнер - инженер-художник, преобразовывающий все то, с
чем человек сталкивается в повседневной жизни, в предмет искусства. Официальная
история дизайна как профессионального занятия ведет отчет с 1907 г., с создания
в германии немецкого Союза передовых художников и инженеров. Одними из первых
дизайнеров Европы считаются Г. Мутозиус и П. Беренс.
После окончания Первой Мировой войны идеологию
нового вида творчества развивали и тиражировали две всемирно известные школы производственного
искусства: ВХУТЕМАС (Высшие художественно-технические мастерские) в Москве
(Россия) и БАУХАУЗ (Высшая архитектурно-художественная школа) в г. Веймаре
(Германия). В этих учебных творческих заведениях были сконцентрированы
выдающиеся художники, архитекторы и инженеры: В. Татлин, А. Родченко, Л. Попов,
К. Мемчиков, В. Гропиус, М. ван дер Роэ, В. Кандинский, Ш. Жаннере, П. Мондриан
и др. Все эти процессы творческого развития поразились на образности новой
архитектуры ХХ века. Развитие нового направления в архитектурном творчестве -
рационализма целиком и полностью соответствовало идеологии дизайнерского
творчества. До этого времени на долю архитектора, приходилась основная часть
творческих забот по формированию своеобразных «связующих звеньев» между
проектируемыми зданиями и сооружениями, заполнившими интерьеры комфортной
средой. [6]
В начале ХХ века величайшие архитекторы в
наиболее развитых странах мира Ш. Жаннере, В. Гропиус, К. Мельников, П.
Голосов, Л. Коста и многие другие обратили свои мысли к проблемам формирования
«непрерывной» комфортной среды, связывающей единой тканью
архитектурно-художественного замысла жилые и осуществленные здания.
Нельзя сказать, что в предыдущие эпохи
архитектурная мысль не стремилась достичь этой цели. Можно привести достаточно
большое количество примеров из истории архитектуры Древнего Мира, античных
государств Средиземноморья, эпохи Возрождения. Зодчие этих культур стремились
рассматривать все пространство, осваиваемое ими, как единую среду. Следует
признать, что мастерами архитекторы достигались конечной цели - восхищение
современников и потомков, этими высокохудожественными произведениями. Однако
несравнимы масштабы и сложность задач, которые выдвигает современная комфортная
среда перед архитекторами и дизайнерами.
Одним из процессов, весьма заметных в общем
контексте неизбежно развивающейся комфортной среды ХХ века, стало уплотнение
пространственной структуры интерьеров. Исторически требования к внутреннему
пространству, определяемые назначением здания, менялись с изменением социальных
условий. В этом проявляется следующая особенность интерьера - ее социальный
характер. Под влиянием сложных социальных воздействий изменялись типы
создаваемых зданий, появлялись новые виды внутреннего пространства, по-разному
использовалось декоративное искусство.
Любой предмет в интерьере всегда является частью
совокупности предметов, которая, в свою очередь, включается в систему
внутреннего пространства: посуда - часть сервировки стола, стол - часть
меблировки одного помещения, меблировка одного помещения - часть мебельного
комплекса всего здания. Каждая из этих совокупностей должна решаться в
стилистическом единстве. [1]
Во второй половине ХХ века насыщенность
интерьеров архитектурно-художественными формами стала настолько плотной, что
архитектору стало чрезвычайно трудно самостоятельно решать свои задачи.
Исторически выработались приемы, объединяющие
архитектуру и интерьер, внутреннее ограждение и предметную среду. В старой
архитектуре творческий замысел одного архитектора претворялся в формах мебели и
светильников, часов и дверной ручки, в рисунках на полу, стене, декоративных
тканях. Цвет и фактура материалов предметной среды согласовывались с общим
решением интерьера. Пластичность готики, пышность барокко, торжественность
классицизма можно увидеть в любом элементе внутренней архитектуры прошлых эпох.
Требование единства стиля в интерьере возрастает с расширением индустриализации
при производстве предметов быта, мебели. Конечной целью изучения этих
требований является осуществление возможности управления эмоциями и настроением
человека. [16]
Интерьер - это организация внутреннего
пространства здания, которое представляет собой зрительно ограниченную,
искусственно созданную среду, обеспечивающую нормальные условия
жизнедеятельности человека. В архитектуре связь между решением внутреннего
пространства и внешним оформлением здания, по словам архитектора А.А. Веснина,
является "самой неразрывной и органичной". Интерьер, как
организованное внутреннее пространство, является неотъемлемой частью
архитектуры. Поэтому интерьер определяют и как внутреннюю архитектуру.
Внутреннее пространство выступает средством для осуществления определенного
процесса социальной деятельности, т.е. является средой действия. Гармонично
организованное внутреннее пространство воздействует на психику человека и
участвует в его развитии, т.е. внутреннее пространство является средой
восприятия. Но человек не только существует в пространстве и воспринимает его,
он и преобразует его, создавая для себя окружение, в котором выражает свои
представления о структуре мира и общества. Отсюда следуют основные функции
интерьера - утилитарная и эстетическая. [12]
2.2 Практическое применение
комфортной среды в интерьере
На сегодняшний день немногие придерживаются
общепринятых канонов - модных тенденций и других нововведений. Но желание
уютного стильного дома до сих пор актуально. Дом менял свой облик, приобретал
новые черты, обрастал мебелью, вещами. Многое стали решать цвет, свет и стиль.
В первую очередь нужно обратить внимание на индивидуальные особенности хозяина
дома и всех домочадцев: возраст, стиль жизни, предпочтения, вкусы, интересы,
темперамент жильцов и многое другое. [5]
Каждый человек, независимо от своей
специальности и рода деятельности, рано или поздно сталкивается с вопросами
обустройства своего жилья, созданием интерьера. Погружаясь в область оформления
создания дизайна квартиры, человек сразу же сталкивается с массой задач: чтобы
правильно определить, какие предметы интерьера необходимы; сколько этих
предметов действительно нужно для оптимального благоустройства квартиры; как и
где их разместить, чтобы они максимально эффективно выполняли свое
предназначение; где лучше есть, пить, спать, отдыхать; сделать жилье таким,
чтобы оно понравилось нам и живущим с нами людям. Для этого существуют правила,
которых нужно придерживаться всегда.
Правило №1. Помещение должно быть максимально
функциональным.
Все жилище должно максимально работать на
человека, проживающего в нем (Рисунок 8, Рисунок 9). Это значит, что оно,
прежде всего, должно быть функциональным и по возможности более полно отвечать
физиологическим и духовным потребностям человека, то есть в нем все должно быть
целесообразно. Например, чтобы конструкции для хранения вещей в спальне были
удобны и полезны, желательно:
· продумать их оптимальные размеры с
учетом количества вещей;
· найти самое удобное место в комнате
для их устройства, используя торцевые стены, пространство вокруг изголовья
кровати, ниши под подоконником;
· помнить о том, что они должны
выглядеть органично и быть минимально заметны (если, конечно, вы не ставите
цель привлечь к ним внимание);
· если имеются выступы, ниши, колонны,
- их можно прекрасно “обыграть” конструкциями для хранения вещей;
· если вы планируете хранить одежду, -
глубина отсеков должна быть не менее 50-60 см, для книг и мелочей достаточно
30-40 см;
· часть конструкций - это встроенные
отсеки, которые можно даже создать специально во время ремонта, используя
гипсокартон. [4]
Рисунок 8 - Мебель для хранения вещей в спальне
Рисунок 9 - Хранение вещей под кроватью
Предназначение жилья определяется на основе
требований человека, которые должны быть увязаны с характером.
Смысл правила состоит в том, чтобы не усугубить
недостаток личного «замкнутого пространства» и не свести к минимуму
положительный фактор его «достатка», превратив своё жилище в выставку
достижений мебельной промышленности и бытовой техники или унылый мешок о
четырех стенах и сделав себя, таким образом, приложением к нему.
Правило №2. Эстетика жилища не должна
доминировать над его функциональностью.
Помещение должно быть, прежде всего, максимально
функционально, а потом уже красиво. Красивое, но не удобное, непрактичное и
нерациональное не должно быть в вашем доме. Идеальным является сочетание
удобства и красоты, но если приходится делать выбор, то следует остановиться на
удобстве.
Так, например, в собственном доме дизайнера Тами
Ризингер, в котором он отразил свою любовь к водным просторам, нет излишней
серьезности, зато есть место игре и экспериментам (Рисунок 10). Стихия,
навевающая настроение безмятежности, ощущается здесь во всем. Морские сюжеты
разбавляется другими тематиками и текстурами - садовой и гламурной.
Рисунок 10 - Американский дом дизайнера Тами
Ризингер
Великолепный образец работы дизайнера Келли
Хоппен - квартира, оформленная в стиле «американского арт-деко» (Рисунок 11).
Восхищает лаконизм использованных форм и материалов, можно изучать отдельные
элементы и восторгаться талантом мастера соединять все эти элементы в такую
тонкую гармонию в интерьере.
Рисунок 11 - Интерьера от Келли Хоппен
Прежде чем затевать устройство дорогого покрытия
пола, подиум, нужно подумать о том, будут ли у вас время и деньги содержать
его. Это правило распространяется даже на такие вещи как картины, скульптуры,
вазы и прочие произведения искусства. Не имея чисто практического значения для
своего хозяина, они тем не менее, могут выполнять функцию удовлетворения
потребностей человека в эстетическом наслаждении, сглаживать недостатки
интерьера комнат и отдельных предметов в ней, придавать уют, определенную
цветовую тональность и создавать у находящихся в ей людей определенный настрой,
напоминать о каких - то событиях и т.д.
Правило №3. Параметры необходимых вещей должны
быть соотнесены с параметрами жилища.
Специфика каждого жилища определяется не только
уровнями его функциональности и эстетики, но и его параметрами - общими
размерами и размерами отдельных его помещений, их количеством, характером
освещенности, степенью защиты от климатических условий данной местности и
внешней среды, качеством строительных материалов, качеством и техническим
уровнем его инженерного оборудования и т.д. При обустройстве помещения
необходимо помнить, что их функциональность и эстетичность опосредованно
зависят от перечисленных факторов и находятся с ними во взаимной связи.
Например, громоздкая стиральная машина может мешать умываться, а удобный
красивый диван может выглядеть некрасивым в комнате, в которой он будет
занимать половину площади. [14]
Мастерство композиции - это умение организовать
отдельные, разрозненные предметы в единое целое. Гармония интерьера как раз и
достигается за счет продуманного расположения различных предметов с учетом их
функции, формы, размеров, цвета и фактуры поверхности. Хорошим примером
является интерьер квартиры в Лондоне от дизайнера Келли Хоппен.
Рисунок 12 - Работа дизайнера Келли Хоппен
Удачное решение интерьера зависит, в первую
очередь, от учёта пропорций самой комнаты. Например, доказано, что высота
любого трёхмерного пространства в большей степени влияет на комфортность
пребывания в нём, чем длина и ширина. Так, если потолок комнаты высотой 2,4 м и
размерами 3,6 х 4,8 м поднять всего лишь на 30 см, это значительно сильнее
отразится на ощущениях человека, чем увеличение на те же 30 см других
параметров комнаты. [10] В обоих случаях, в комнате вы будете чувствовать себя
достаточно комфортно, однако при большей высоте появится ощущение простора.
Пропорции комнат с помощью простых приёмов можно визуально изменить. Например,
в гостиной, длина которой почти вдвое превышает ширину, нужно установить
секционную мебель, имеющую значительную длину по сравнению с шириной. А если
такую мебель разместить вдоль наиболее протяжённой стены, пропорции помещения
визуально ухудшатся, станут «коридороподобными». Если же у короткой стены -
пространство будет казаться пропорциональным.
При создании композиции нужно учитывать масштаб
и пропорции таких элементов:
· размеры проёмов по отношению к
стенам, в которых они устроены;
· место расположения проёмов на
плоскости стен;
· масштаб мебели и оборудования по
отношению к пропорциям отдельных стен и размерам помещения в целом.
Именно они, как правило, формируют визуальный
масштаб, связанный не столько с настоящими размерами деталей, как с тем,
насколько крупными или мелкими они окажутся по сравнению с ожидаемыми
размерами. Так, диван с высокой спинкой покажется громоздким, если его
поставить в недостаточно высоком помещении, а современный обеденный стол будет
смотреться хрупким и ненадёжным в столовой старинной квартиры. [8]
Комфортность жилой среды достигается удачным
взаиморасположением помещений, их большими размерами, хорошими пропорциями и
красивой организацией пространств в интерьере. Раскрытые общие помещения могут
использоваться разнообразно. Обогащают интерьер камин, оранжерея, уютная
библиотека, винтовая лестница и двухсветное пространство.
Комфортность дома, по сравнению с современными
массовыми квартирами, создают дополнительные помещения - гардеробные, бельевые,
сауны, зимние сады, изолированные рабочие комнаты. Комфортная жилая среда
созданная в районах с теплым климатом, наряду с экологическим комфортом,
предлагается повысить и бытовой комфорт за счет возможности изменения
планировки квартиры в процессе жизни семьи путем перестановки встроенной
мебели, а также вскрытия заложенных в монолитных стенах проемов. [6]
Интерьер в силу непрерывного и продолжительного
воздействия на психику человека играет важную роль в "воспитании
чувств", следовательно, интерьер должен обладать не только способностью
эмоционального воздействия, но это воздействие должно быть управляемым и
состоять в стимулировании положительных эмоций и подавлений или ослаблений
отрицательных. Эмоциональный комфорт зависит, главным образом, от того,
насколько точно и удобно организованы в интерьере те процессы, для которых
предназначено данное пространство. При организации архитектурной среды в плане
ее эмоционального воздействия необходимо учитывать формирующие ее компоненты.
Первым компонентом является пространственная форма-оболочка, определяющая границы
внутреннего пространства, степень изолированности, разделение на участки, зоны
(например, в гостинице - зона работы или отдыха, торговая зона). Второй
компонент - ограждающие элементы формы-оболочки (стены, перегородки, потолки,
полы), создающие индивидуальный художественный образ посредством материала,
цвета, пластики. Третий компонент - предметное наполнение (оборудование,
мебель) определяет функциональное содержание интерьера.
Эмоциональные свойства архитектурной среды
проявляются в непосредственном взаимодействии человека с архитектурным
окружением. Но человек находится в интерьере не только в фиксированном
положений, он движется в пространстве и воспринимает его в движении. В этом
заключается еще одна особенность интерьера - его динамический характер.
Организация самого внутреннего пространства такова, что задает движение
человеку. При этом происходит восприятие пространства при входе в здание, при
движении внутри его и восприятие пространства в конце движения, у цели. [6]
Глава 3. Этапы разработки дипломного
проекта
.1 Предпроектные исследования. Фото,
эскизы. Составление ситуационного плана
Было изучено множество примеров и мировых
аналогов организации комфортной среды в интерьере таких дизайнеров как Келли
Хоппен, Тами Ризингер, Стивена Гамбрела и др. Например, интерьер
гостиной в загородном доме от Виктории Хейган (Рисунок 13).
Рисунок 13 - Гостиная дизайнера Виктории Хейган
Творчество американского декоратора Стивена
Гамбрела заключается в хорошем вкусе и умении работать с полутонами. Он
работает в жанре классической элегантности, используя широкий диапазон стилей,
текстур и палитр, основанных на нейтральных тонах. В своих работах Гамбрел
показывает, как эффектно подчеркнуть красоту определенного оттенка серого
(Рисунок 14). [22]
И, особенно, отталкивалась от дизайн - проекта
Анастасии Рыковой и Анны Денисовой в одной из серии передачи «Дачный ответ»
(Рисунок 15, Рисунок 16, Рисунок 17). [18]
Рисунок 14 - Гостиная “Town” в Нью-Йорке
Рисунок 15 - Интерьер с концепцией sitting room
Рисунок 16 - 3D эскиз интерьера
Рисунок 17 - 3D эскиз интерьера
Первым практическим этапом работы над
практической частью дипломного проекта стал выбор помещения, его осмотр,
зарисовка в глазомерном масштабе (приложение А). Следующим этапом стала установка
размеров, выполнение ситуационного плана (Рисунок 18).
Рисунок 18 - Ситуационный план
.2 Характеристика стиля,
используемого для создания проекта
комфортный интерьер дизайн мансарда
Американский стиль в интерьере сегодня находится
на пике своей популярности. За счет свойственного ему конформизма,
демократичности и универсальности, это течение имеет большое количество
поклонников, как за рубежом, так и в России. Американский стиль в интерьере
значительно отличается от европейского, хотя и был сформирован переселенцами со
Старого Света. Они легко воспринимали все новое и постепенно стали вносить в
свои интерьеры черты других стилей. Возникало стилевое смешение, называемое
эклектикой. Эклектичные интерьеры домов жителей США постепенно обрели некую
упорядоченность, что дало возможность условно выделить особую разновидность
интерьерного стиля - американского. Это направление сочетает в себе креативный
подход и уже устоявшиеся сентенции.
Американский декораторский образ перенял
некоторые повадки, которыми славится колониальный интерьер, прямым наследником
которого является и кантри, и классический английский интерьер. Однако это не
значит, что колониальный и американский стиль в интерьере похожи как две капли
воды. Напротив, развитие каждого из них происходило в разных
общественно-политических условиях, что сделало их совершенно разными. Так,
эклектичность американского подхода - одна из его особенностей - заключается в
одновременной простоте и функциональности, которые стали отражением уважения к
своим традициям и бытового конформизма.
Большую роль в американском направлении занимают
аксессуары. Их количество и тематика меняются в зависимости от региона, но
общий тренд прост и ясен. Это направление начало формироваться с середины 18
века, но достигло пика популярности только в 50-е года прошлого века.
Колониальный мотив сменялся новыми индустриальными чертами. Сегодня чаще всего
эту волну называют американским ретро. Все элементы такой атрибутики
переносились и в американский стиль в интерьере, который был подчинен духу
Нью-Йорка и Голливуда. Базовая концепция построена в духе демократических
ценностей. [7]
· Гостиная, столовая зона, а также
кухня часто организованы как одно большое пространство. Если все же разделение
есть, то в большинстве случаев дверей между кухней и гостиной вы не увидите.
· Переходы между другими комнатами
«маркированы» различными порожками, либо с помощью специальных отделочных
материалов: резиновых накладок, ковров и прочее.
· Диваны в гостиной комнате обычно
располагаются посередине комнаты (Рисунок 19). Рабочее пространство на кухне
также часто находится в самом центре комнаты.
Рисунок 19 - Гостиная в американском стиле
· Американский стиль в интерьере это
почти всегда работа с большими площадями. Большинство квартир в США достаточно
большие, просторные и светлые, многие квартиры являются двухэтажными, что
делает их удобным объектом для самых различных вариантов декорирования.
Например, интерьер известного американского дизайнера Марка Трейси в США
(Рисунок 20) [21], или роскошный лофт на месте бывшей типографии в Париже от
дизайнера Роксаны Бейс (Рисунок 21). [20] В России, где квартиры часто не
отличаются своей просторностью, большое внимание занимает работа по визуальному
увеличению пространства.
Рисунок 20 - Интерьер дизайнера Марка Трейси
Рисунок 21 - Интерьер Роксаны Бейс в Париже
· Американский стиль в интерьере
приветствует все блага современной цивилизации, поэтому в квартире наблюдается
обилие технологических новинок, которые часто выглядят как настоящие предметы
декора.
· Мебель американского интерьера дань
роскоши и качества. В ее производстве участвуют как элитные породы дерева, так
и инновационные материалы. Использование передовых технологий позволяет создать
удобную и качественную мебель, которая служит годами и не теряет своей
актуальности независимо от времени. Особое внимание также уделяется качеству
фурнитуры и текстильного оформления, от которых напрямую зависит срок службы
любой мебели.
Основные нюансы. Американские интерьеры жилых
домов достаточно просты, непритязательны и фактически недороги. Однако при этом
создается эффект дороговизны и респектабельности. Добиться этого позволяет
качественная имитация дорогих материалов. Например, деревянные стеновые панели
зачастую вовсе не деревянные, а выполненные из древесноподобного материала.
Лестницы в домах собирают на деревянном или металлическом каркасе из ДСП,
который впоследствии красят, покрывают ковролином или отделывают другими
недорогими материалами. Полностью деревянные или мраморные лестницы - большая
редкость в американских домах.
Зонирование и стены. Американский интерьер
выделяется, как правило, множеством ниш, выступов, полуперегородок, уступов,
арок. Очень многие предметы мебели и техники встраиваются в стены. Например,
плоские телевизоры очень часто вешают в арку, а в спальне делают встроенные
конструкции с распашными или раздвижными дверями. Встроенный шкаф в спальне
может быть достаточно просторным для того, чтобы в него можно было войти - по
сути, монтаж шкафа превращается в дизайн гардеробной. [19]
Как правило, отсутствуют сплошные перегородки
между гостиной, кухней, холлом и даже столовой. При этом холлы-прихожие обычно
выглядят максимально парадно. В этой зоне ставят удобную мягкую мебель и
столики, чтобы удержать гостя именно здесь, не приглашая без особой на то
необходимости в другие помещения дома или квартиры.
Стены очень часто обшиваются стеновыми панелями
из дерева или древесноподобного материала. Как правило, панели окрашиваются.
Естественный цвет дерева редко остается в первозданном виде. Панелями
обшивается только низ стены. Высота панелей - примерно одна треть или одна
четверть от общей высоты стены. Стены над панелями обычно окрашиваются матовой
краской пастельного оттенка или оклеиваются обоями - однотонными или с
орнаментом, но не слишком броским и пестрым.
Стены, стыки, углы и т.п. часто декорируются
различными элементами из пенополиуретана, реже - из гипса. Конечно, в
интерьерах, оформленных в стиле, близком к кантри или колониальному (а именно
эти стили наравне с классическим берутся, как правило, за основу) наличие
лепнины, пусть даже и полиуретановой, кажется лишним. Но ведь речь идет об
американском стиле, в основе которого - эклектика. Множество полиуретановых
накладок, широкие дверные и оконные наличники и напольные плинтусы - это одна
из самых ярких отличительных особенностей современного американского стиля. [15]
Полы. Для отделки полов чаще используется дерево
- деревянная паркетная доска укладывается в коридорах и в общих помещениях. В
комнатах нередко лежит ковролин. На кухне - либо дерево, либо плитка, причем
необязательно каменная. Как уже было сказано, американский интерьер отличает
присутствие недорогих имитаций, поэтому плитка на кухне и в ванной может быть
из ПВХ.
Освещение. В американских интерьерах редко
используется потолочное освещение. Как правило, люстры вешаются лишь в столовых
и гостиных. В основном же применяется комбинирование настенных, напольных и
настольных светильников, которые позволяют к тому же зонировать пространство.

Цвета. В интерьерах в американском стиле очень
много белого цвета (Рисунок 22). Панели, которыми обычно обшивают стены, тоже
белые. Ниши, дверцы встроенных шкафов, двери, наличники, полиуретановые
накладки, рамки для фотографий и картин, дверцы антресолей и т.п. обычно белые
или, что встречается реже, кремовые, либо имеющие цвет слоновой кости. [17]
Отдельно стоит сказать о межкомнатных дверях.
Цвет межкомнатных дверей в американском интерьере подбирается не под полы и не
под мебель, как это принято у нас. Дверь - это самодостаточный объект
интерьера, поэтому она может вообще ни с чем не сочетаться. Цвет двери
поддерживается такого же оттенка наличниками и плинтусами, которые словно
обрамляют и дверную коробку, и все помещение по периметру. [11]
Мебель. В гостиной устанавливается массивная
мягкая мебель с обивкой из ткани или кожи. Кожаная мягкая мебель очень
популярна в США. Но эклектика и здесь напоминает о себе: во вполне классическом
американском интерьере может стоять плетеная мебель из ротанга. Недалеко от
диванов и кресел в гостиной, как правило, находится камин - часто встроенный.
В гостиной располагаются также 1-2 громоздких
шкафа и зачастую ниша с телевизором. Цвет шкафов и внутренней отделки ниш -
либо белая эмаль, либо темный орех. Что касается цвета обивки мягкой мебели, то
здесь преобладают белые, кремовые, бежевые, коричневые, бордовые, зеленые
цвета.
Кухонная мебель современная, функциональная,
прямо-таки напичканная новейшей техникой, которой часто даже не пользуются. По
возможности на кухне ставится остров. Для завтраков и перекусов устанавливается
либо барная стойка, либо небольшой угловой пристенный столик. Полноценный
обеденный стол со стульями присутствует лишь в том случае, если кухня очень
просторная. В большинстве же случае место под стол отводится в столовой.
Окна. Окна обычно с переплетами. Оконные рамы
могут быть белыми или цвета дерева, но изнутри оконные проемы все равно
декорируются широкими полиуретановыми наличниками с накладками. На окнах
обыкновенно присутствуют фестончатые жалюзи.
Декор. Здесь эклектика цветет буйным цветом. В
одном интерьере могут присутствовать предметы декора, характерные и для кантри,
и для колониального стиля. Старинные сундуки, плетеные короба, африканские
статуэтки и маски, состаренные канделябры из железа или дерева, характерные для
прованса натюрморты, высокие напольные часы в колониальном стиле, вышитые
вручную чехлы на диванных подушках и стульях, посуда фарфоровая или деревянная
и многое другое (Рисунок 23).
Рисунок 23 - Интерьеры от компании “Brooklyn
Home Company”
Именно этот стиль подходит больше всего,
поскольку большое пространство позволяет организовать комфортную среду и
сделать интерьер просторным, уютным и интересным. Эклектика вносит в проект
насыщенность, делает интерьер интереснее и уютнее.
3.3 Разработка генерального плана
реконструированного интерьера
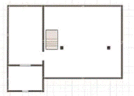
Генплан был выполнен в масштабе 1:100 на формате
А4. План был выполнен в ручной технике (Рисунок 24).
Рисунок 24 - Генплан помещения. Черно-белый
вариант
Вместе с этим была выполнена чертеж (Рисунок 25)
и экспликация, для облегчения прочтения генплана.
Рисунок 25 - Чертеж помещения мансарды
3.4 Разработка ассортиментного
перечня, подбор материалов, краткая характеристика используемой мебели
После создания генплана к нему был приложен
список мебели, которые планируется использовать (Приложение Г).
3.5 Экономический расчет проекта
Финальным аккордом проектирования интерьера
является составление сводной сметы. В смету входят все виды работ, которые
необходимо провести в помещении. Кроме того, в смету вносится список всех
необходимых материалов и мебели, а также полный пакет документации. Это
позволяет четко определить систему траты средств, урегулировать расходы.
Заключение
Путем привлечения комфортной среды в
проектирование интерьера, можно крайне успешно обогатить и разнообразить самую
серую и неприметную часть дома. Своей необычной композиции и привлекательным
внешним видом, комфортная среда наполнит мутное чердачное пространство яркими
красками и свежим дыханием.
Данная дипломная работа помогла разобраться в
подробностях этого искусства, в его пользе, эстетической привлекательности,
удобстве. Тема данной дипломной работы раскрыта в нужной широте и подробности.
Процесс организации комфортной среды и ее
применение для благоустройства проектировании жилого интерьера был подробно
исследованы.
В ходе работы был разработан дизайн-проект
планировочной организации комфортной среды в проектировании жилого интерьера
мансарды.
Все поставленные задачи исследования выполнены.
Результатом работы над данной дипломной работой стало создание дизайн - проекта
интерьера мансарды, его подробные эскизы, подбор аналогов и их анализ.
Список используемых источников
Учебная литература:
1.
Агранович-Пономарева Е.С., Н.И. Аладова. Интерьер и предметный дизайн жилых
помещений / Агранович-Пономарева Е.С., Аладова Н.И. - Ростов н/Д: Феникс, 2005.
2.
Богданович А.Л., Петров В.В. Ваш дом, коттедж, квартира, дача: Стильный
интерьер своими руками: Золотые правила дизайна. М.: 2005.
3.
Зайцев А. Наука о цвете. М., 1986.
.
Зингер Б.И. Встроенная мебель в вашей квартире. М., 1990.
.
Игнатова Н. Дизайн и декор интерьера. 500 полезных советов. / авт. - сост. Н.
Игнатова. - М.: АСТ, 2011.
6.
Лазарев А.Г. Архитектура, строительство, дизайн: Учебник для студентов высших
архитектурно-строительных учебных заведений / Под общ. Ред. А.Г. Лазарева. -
Изд. 2-е. - Ростов н/Д: Феникс, 2006.
7.
Макарова В.В. Дизайн помещений. Стили интерьера на примерах: Учеб. пособие:
«Строительство и архитектура», Издательство - БХВ-Петербург, 2011.
.
Милославович Р. Эргономика: принципы и рекомендации. М., 1983.
.
Михайлов С. История дизайна. М., 2000.
10.
Покатаев. В.П. Дизайнер-конструктор. Учебное пособие/ В.П. Покатаев. - Ростов
н/Д: Феникс, 2006.
11.
Пономарева Е.С. Цвет и интерьер. Минск, 1984.
.
Протопопов В.В. Дизайн интерьера. Теория и практика организации домашнего
интерьера. Март, М., Ростов-на-Дону, 2004.
.Станькова
Я., Пехар И. Тысячелетнее развитие архитектуры. М., Стройиздат, 1997.
.
Фрийлинг Г. Человек. Цвет. Пространство. М., 1973.
.
Шепелев А.М. Штукатурные декоративно-художественные работы. М., Высшая школа,
1981.
16.
Шимко. В.Т. Основы дизайна и средовое проектирование: Учеб. пособие.- М.:
Издательство «Архитектура-С», 2007.
.
Джилл М. Гармония цвета в дизайне интерьера. Издательство - АСТ, 2007.
Электронные ресурсы:
18.
www.peredelka.tv
.#"667785.files/image033.gif">
Приложение Б
Фотографии интерьера мансарды до реконструкции
Интерьер гостиной
Интерьер спальни
Балкон

Приложение В
Эскизный вид интерьера
Дизайн гостиной



Дизайн спальни


Дизайн балкона


Смета
|
№
|
Название
|
Размер
|
Кол-во
|
Примечания
|
|
1
|
Диван
|
|
1
|
|
|
2
|
Кресло
|
|
2
|
|
|
3
|
Кресло
и пуф
|
|
1
|
|
|
4
|
Журнальный
столик
|
|
1
|
|
|
5
|
Книжный
шкаф
|
|
2
|
|
|
6
|
Стул
|
|
1
|
|
|
7
|
Пуф
|
|
3
|
|
|
8
|
Бар
|
|
1
|
|
|
9
|
ЖК
телевизор
|
|
1
|
|
|
10
|
Напольная
лампа
|
|
2
|
|
|
11
|
Напольная
лампа
|
|
1
|
|
|
12
|
Люстра
|
|
1
|
|
|
13
|
Ковер
|
|
2
|
|
|
14
|
Кровать
и тумбы
|
|
1
|
|
|
15
|
Комод
|
|
1
|
|
|
16
|
Туалетный
столик
|
|
1
|
|
|
17
|
Пуф
|
|
1
|
|
|
18
|
ЖК
телевизор
|
|
1
|
|
|
19
|
Зеркало
|
|
1
|
|
|
20
|
Светильник
|
|
2
|
|
|
21
|
Люстра
|
|
1
|
|
|
22
|
|
1
|
|
|
23
|
Дверь
|
|
2
|
|
|
24
|
Тумба
|
|
1
|
|
|
25
|
Шкаф
|
|
1
|
|
|
26
|
Турник
|
|
1
|
|
|
27
|
Лампа
|
|
1
|
|
|
28
|
Окно
|
|
1
|
|
|
29
|
Мансардное
окно
|
|
1
|
|